
EP.619 รีวิว คอนโด ริทึ่ม สุขุมวิท 36-38 RHYTHM Sukhumvit 36-38 ใกล้ BTS ทองหล่อ เพียง 350 เมตร
สวัสดีค่ะ คุณผู้อ่านทุกท่าน วันนี้ทีมงาน Homenayoo ขอพาไปอัพเดทโครงการ “RHYTHM สุขุมวิท 36-38” คอนโดใหม่สร้างสร็จพร้อมอยู่ ที่ทาง AP ร่วมพัฒนากับ Mitsubishi Estate
โครงการอยู่ในระหว่างซอยสุขุมวิท 36 และ ซอยสุขุมวิท 38 เดินเท้าเพียง 350 เมตร ถึง BTS ทองหล่อ เดินทางโดยรถยนต์ได้สะดวก เข้า-ออกได้ทั้งทางถนนสุขุมวิท และ ถนนพระราม 4
ริทึ่ม สุขุมวิท 36-38 เป็นคอนโด High-Rise 25 ชั้น 1 อาคาร พื้นที่โครงการขนาด 2-2-76.30 ไร่ ห้องพักอาศัยรวม 496 ยูนิต มีห้องพักให้เลือกแบบ Studio, 1 Bedroom และ 2 Bedroom ขนาดเริ่มต้น 24-86 ตร.ม. โครงการสร้างเสร็จพร้อมอยู่ปี 2560
สิ่งอำนวยความสะดวกภายในโครงการครบครัน อาทิ โถงต้อนรับ, ห้องจดหมาย, สระว่ายน้ำ, ฟิตเนส, ห้องสตรีมแยกชาย-หญิง, สวนพักผ่อน, ลิฟต์โดยสาร, ประตูคีย์การ์ด, ที่จอดรถ 72 คัน, กล้องวงจรปิด และ รปภ.24 ชม. ราคาเริ่มต้น 3.69 ล้านบาท* (พ.ย.59)
สำหรับรายละเอียดโครงการจะเป็นอย่างไรบ้าง เชิญดูรายละเอียดทั้งหมดได้จากบทความด้านล่างเลยค่ะ : )

| ชื่อโครงการ | ริทึ่ม สุขุมวิท 36-38 RHYTHM Sukhumvit 36-28 |
| เจ้าของโครงการ | เอพี ไทยแลนด์ AP Thailand |
| เนื้อที่ทั้งหมด | 2 ไร่ 2 งาน 76.30 ตร.ว. |
| จำนวนตึก | 1 อาคาร |
| จำนวนชั้น | 25 ชั้น |
| จำนวนห้อง | 496 ยูนิต |
| ลักษณะห้องและขนาดห้อง |
|
| ที่จอดรถทั้งหมด | คิดเป็น 48% หรือ 213 คัน ไม่รวมซ้อนคัน |
| จำนวนลิฟท์ |
|
| โซน | สุขุมวิท, ทองหล่อ, เอกมัย, พระโขนง |
| ขนส่งสาธารณะ |
|
| รถโดยสารที่ผ่าน | n/a |
| ที่ตั้ง | ถนนสุขุมวิท 36 แขวงพระโขนง เขตพระโขนง กทม. |
| กำหนดการ | เริ่มก่อสร้าง ส.ค. 2557 |
| ปีที่สร้างเสร็จ | คาดว่าแล้วสร้างเสร็จ ม.ค. 2560 |
| ราคา | เริ่มต้น 3.69 ล้านบาท (พ.ย.59) |
| ราคาเฉลี่ยต่อ ตร.ม | เริ่มต้น ประมาณ 154,000 บาท/ตร.ม. |
| ค่าส่วนกลางและกองทุน |
|
| สถานที่สำคัญใกล้เคียง |
|
| สิ่งอำนวยความสะดวก |
|
| จุดเด่นของโครงการ | RHYTHM สุขุมวิท 36-38 คอนโดใหม่พร้อมอยู่ พบมิติการใช้ชีวิตรูปแบบที่ต่าง ใจกลางสุขุมวิท เพียง 350 เมตร จาก BTS ทองหล่อ เริ่ม 3.69 ล้านบาท (พ.ย.59) |
คอนโดใกล้ BTS ทองหล่อ ติดถนนสุขุมวิท ใกล้ BTS ทองหล่อ
ที่ตั้งโครงการ
ถนนสุขุมวิท ระหว่างซอยสุขุมวิท 36 และ ซอยสุขุมวิท 38 แขวงพระโขนง เขตพระโขนง กรุงเทพฯ
พิกัด google map: 13.721487, 100.576770
ที่ตั้งโครงการ RHYTHM สุขุมวิท 36-38 ตั้งอยู่ในซอยสุขุมวิท 36 ที่เชื่อมต่อกับซอยสุขุมวิท 38, ถนนใหญ่สุขุมวิท และ ถนนพระราม4 ซึ่งเป็นโซนที่ดินที่มีราคาสูง และอุดมสมบูรณ์มาก เนื่องจากอยู่ทำเลตรงข้ามซอยทองหล่อที่เต็มไปด้วยแหล่งอาหารการกิน ห้างสำหรับช๊อปปิ้ง และแหล่งตระเวนราตรี ที่ครึกครื้นและเต็มไปด้วยสีสัน
สำหรับคนไม่ใช้รถ นอกจากตัวโครงการจะอยู่ใกล้ BTS ทองหล่อ ในระยะเดินไปได้แล้ว โซนนี้ยังมีทั้ง Taxi วินมอเตอร์ไซค์ แทบจะ 24 ชั่วโมงค่ะ จะไปไหนก็สะดวกรวดเร็ว รถติดก็มีทางเลี่ยงให้เลือกเยอะ ใช้ระยะทางไปไหนมาไหนค่อนข้างสั้น เพราะอยู่ใจกลางเมือง รายล้อมด้วยแหล่งห้างสรรพสินมากมาย อยากไปช๊อปปิ้ง สามารถขึ้นรถไฟฟ้าไปได้ทั้ง เอ็มโพเรียม เอ็มควอเทียร์ เทอมินอล 21 ไม่ต้องกลัวรถติด ทั้งใกล้ และสะดวก
สำหรับคนขับรถ โครงการ RHYTHM สุขุมวิท 36-38 เป็นโครงการที่อยู่ห่างจากถนนใหญ่ สุขุมวิทประมาณ 300 เมตร เป็นสุขุมวิทย่าน CBD โซนในเลย ซึ่งถนนสุขุมวิทช่วงนี้ จะเป็นจุดที่มีการจราจรหนาแน่น ทั้งฝั่งเลขคู่และเลขคี่ เนื่องจากเป็นจุดที่คนใช้เดินทางไป-มา ระหว่างถนนสุขุมวิท ถนนพระรามสี่ และถนนเพชรบุรี ผ่านซอยน้อยใหญ่ต่างๆ รถค่อนข้างหนาแน่น เพราะทั้งสามเส้นทาง เป็นถนนสายหลัก บวกกับการที่โลเคชั่นอยู่ใจกลางเมือง ห้างเยอะ คอนโดเยอะ ออฟฟิศอาคารสำนักงานเยอะ คนใช้รถใช้ถนนจึงเยอะไปด้วย
ทำเลตรงนี้มีจุดขึ้นทางด่วนกระจายตัวอยู่รอบๆ ทั้ง ทางด่วนเพลินจิต, พระราม 4, เอกมัย-รามอินทรา, สุขุมวิท 50 ฯลฯ แต่เนื่องจากย่านนี้รถค่อนข้างติดค่ะ เพราะทุกเส้นอยู่ในตัวเมืองทั้งนั้น ทำให้การเดินทางโดย “เลี่ยงเมือง” ทำไม่ได้ แต่โดยรวมการเดินทางก็สะดวกอยู่ค่ะ อย่างไรก็ตาม ก่อนออกเดินทางก็ศึกษาเส้นทางกันให้ดี แล้วเลือกใช้เส้นทางกันได้ตามสะดวกค่ะ
ตัวโครงการ RHYTHM สุขุมวิท 36-38 อยู่ห่างจาก BTS ทองหล่อ ประมาณ 500 เมตร ถนนเส้นหลัก คือถนนใหญ่สุขุมวิทฝั่งวิ่งเข้าเมืองไปพร้อมพงษ์ เพลินจิต สยาม นอกจากนี้ภายในซอยสุขุมวิท 36 เอง ก็เชื่อมกับถนนพระราม 4 และลัดเข้าเอกมัย ไปถนนเพชรบุรีได้เลย พื้นที่ใกล้เคียงโครงการล้อมรอบไปด้วยห้างสรรพสินค้าชั้นนำ สถานที่ท่องเที่ยว และร้านอาหารนานาชาติมากมายเลยค่ะ คุณผู้อ่านสามารถดูระยะทางได้จากข้อความด้านล่างนี้ ⇓
จะเห็นว่าในระยะเดิน รอบๆโครงการ ร้านอาหาร ของกิน แหล่งช๊อปปิ้งมีให้เลือกหลากหลายค่ะ ทั้งห้างหรูอย่างเอ็มโพเรียม เอ็มควอเทียร์ หรือพื้นที่สีเขียวไว้เดินเล่น อย่างสวนสาธารณะเบญจสิริ โรงหนังอย่างเมเจอร์ ไปดูดาวที่ท้องฟ้าจำลอง ใกล้แหล่งรวมร้านอาหารนานาชาติดีๆ อย่าง Rain Hill หรือซุปเปอร์มาเก็ตอย่าง Tops ร้านอาหารสองฝั่งถนนใหญ่สุขุมวิทโซนนี้ ก็มีร้านคุณภาพดีๆ และมีคอนเซ็ปต์ร้านเก๋ๆ เยอะทีเดียว
หรือจะเข้าไปในทองหล่อ เอกมัย ก็มีชื่อเสียงอยู่แล้วเรื่องผับ บาร์ และร้านอาหารอีกเป็นร้อยร้าน เปิดทั้งกลางวันกลางคืน มีทั้งโรงพยาบาล,โรงหนัง, วัด, ห้างสรรพสินค้า, Community mall ผุดขึ้นมามากมาย นอกจากสาธารณูปโภคเหล่านี้ก็ยังมี ปั๊มน้ำมัน อู่ซ่อมรถอยู่อีกด้วย
ไม่ว่าจะซอยทองหล่อ เอกมัย หรือโซนพร้อมพงษ์ อย่างซอยสุขุมวิท 24, 39 ก็ล้วนแต่เป็นย่านหรูที่เต็มไปด้วยแหล่งอาหารการกินที่มีชื่อเสียง และแหล่งตระเวนราตรีที่ครึกครื้น และเต็มไปด้วยสีสัน เป็นเหตุผลนึงที่ทำให้ย่านนี้เป็นย่านที่ขึ้นชื่อเรื่องความหรูหรา และมีสไตล์ที่สุดแห่งหนึ่งในกรุงเทพนะคะ
แต่ก็ต้องมีเงินในกระเป๋าที่หนักพอสมควรค่ะ สำหรับการอยู่ในย่านที่ค่าครองชีพสูง ซึ่งเราว่ามันก็น่าจะตอบโจทย์กับไลฟ์สไตล์ของกลุ่มคนซื้อ หรือ เช่าคอนโดราคาระดับนี้อยู่แล้ว เนื่องจากย่านนี้ (พร้อมพงษ์-ทองหล่อ) ร้านอาหารส่วนมากราคาเฉลี่ยอยู่ที่ประมาณ 200- 500 บาทต่อคนค่ะ
แต่ก็จะมีร้านข้างทางริมถนนใหญ่สุขุมวิทฝั่งโครงการ โดยเฉพาะช่วงต้นซอยสุขุมวิท 36, 38 ตรงข้ามซอยทองหล่อ ที่เป็นซอยที่ตั้งของโครงการเอง ก็มีแผงขายอาหาร และร้านอาหารราคาย่อมเยาอยู่มาก ที่ราคาอาหารเฉลี่ยอยู่ที่ 30-50 บาทต่อคนเท่านั้น

วันนี้เรามีภาพการเดินทางโดยรถมาให้ชมกันก่อน เส้นทางการเดินทางตามลูกศรแดง โดยเริ่มเดินทางจาก
ถนนสุขุมวิทจากทางฝั่งอ่อนนุช พระโขนงมุ่งหน้าไปทองหล่อ ⇒ ตรงตามเส้นรางรถไฟฟ้าสายสีเขียวบนถนนสุขุมวิทมาเรื่อยๆ ⇒ ผ่านสถานีทองหล่อ ⇒ เลี้ยวซ้ายเข้าซอยสุขุมวิท 36 ⇒ ตรงไปประมาณ 300 เมตร จะเจอโครงการ Rhythm สุขุมวิท 36-38 อยู่ทางซ้ายมือแล้วค่ะ
เริ่มกันจากบนถนนใหญ่สุขุมวิท จากพระโขนงฝั่งมุ่งหน้าเข้าเมืองนะคะ เราตรงไปเรื่อยๆตามรางรถไฟฟ้าไปเลย
ตรงมาหน่อย ก่อนถึง BTS เอกมัย ซ้ายมือจะเป็น Gateway เอกมัย อีกห้างที่อยู่ใกล้โครงการนะคะ โดยจะห่างจากโครงการ RHYTHM สุขุมวิท 36-38 แค่ประมาณ 1.6 กม. ภายในก็มีร้านอาหาร และสิ่งอำนวยความสะดวกมากมาย
ตรงผ่าน BTS เอกมัยมา จะมีป้ายบอกทางให้เตรียมเลี้ยวขวา สำหรับคนที่จะไปเพชรบุรี หรือไปขึ้นทางด่วนรามอินทรา เอกมัย ส่วนเราวันนี้ไปโครงการก็ตรงไปเรื่อยๆเลย
เลย BTS เอกมัยมาหน่อย จะมีแยกขวามือเป็นทางเข้าซอยเอกมัยหรือสุขุมวิท 63 ที่หัวมุมปากซอย จะมีโรงหนังเมเจอร์ เอกมัยอยู่
ตรงต่อไป ฝั่งซ้ายมือตรงข้ามเมเจอร์ เอกมัย จะเป็นศึกษาภัณฑ์ แหล่งขายเครื่องมือการศึกษา ถัดไปจะเป็นท้องฟ้าจำลองกรุงเทพฯ
เอาภาพภายในท้องฟ้าจำลองกรุงเทพมาให้ดูกันจากแฟนเพจ ท้องฟ้าจำลองกรุงเทพ – Bangkok Planetarium มาให้ดูกันค่ะ เนื่องจากตอนนี้ปรับปรุงเสร็จแล้วนะคะ คิดตั๋วค่าเข้าแค่ 40 บาทเท่านั้นเอง ใครอยากเข้าไปดูดาวก็ถือว่าคุ้มมากๆ ส่วนตัวเราพยายามจะไปช่วงที่เปิดใหม่แรกๆ ปรากฏว่าคนเยอะมากค่ะ แบบคิวยาว รอบหมด เลยยังไม่ได้ไปดูซักที ได้แต่เดินดูส่วนจัดแสดงรอบๆ แต่ยังไงก็เชียร์ให้ไปดูกันนะคะ โดยจะห่างจากโครงการ RHYTHM สุขุมวิท 36-38 แค่ประมาณ 1.2 กม. เท่านั้น
ตรงมาอีกหน่อยก็จะเจอ BTS ทองหล่อ จากตรงนี้ก็อยู่ห่างจากโครงการ RHYTHM สุขุมวิท 36-38 แค่ประมาณ 500 เมตรเท่านั้น
ผ่านสถานีทองหล่อ → เลี้ยวซ้ายเข้าซอยสุขุมวิท 36 → จากปากซอยตรงไปประมาณ 300 เมตร จะเจอโครงการ Rhythm สุขุมวิท 36-38 อยู่ทางซ้ายมือแล้วค่ะ
เราตรงลอดใต้ BTS สถานีทองหล่อมา ข้างทางจะมีป้ายรถเมล์ และจุดขึ้นลง BTS อยู่
ตรงไปอีกนิด ติดกับ BTS ทองหล่อเลย ก็คือปากซอยสุขุมวิท 36 หรือซอยโครงการนั่นเองค่ะ ส่วนปากซอยจะมีล้อมรั้วโครงการอสังหาเอาไว้อีกโครงการ กำลังปรับที่ดินกันอยู่
เราเลี้ยวซ้ายเข้าซอยสุขุมวิท 36 ค่ะ ก็จะเป็นซอยที่เป็นทางลัดจากถนนสุขุมวิทไปออกถนนพระราม 4 ด้วย
ภายในซอยสุขุมวิท 36 หรือซอยทางเข้าโครงการ Rhythm สุขุมวิท 36-38 จะเป็นถนนสองเลนพอรถสวนกันไปมาได้ ไม่มีทางเดินเท้า ถ้าสมมติไม่ใช้รถ เดินเข้ามาจาก BTS ทองหล่อ นี่เราแนะนำให้เข้าทางซอยสุขุมวิท 38 มากกว่านะคะ ซึ่งเดี๋ยวเราจะมีพาไปเดินดูกันอีกทีค่ะ
หน้าปากซ้ายฝั่งซ้ายมือ จะมีวินมอเตอร์ไซค์ปากซอยสุขุมวิท 36 ให้บริการ อัตราค่าบริการตามป้าย เริ่มต้น 12 บาท ข้อดีของวินมอเตอร์ไซค์ และการอยู่ย่านนี้คือ เป็นย่านที่ครึกครื้นทั้งกลางวันกลางคืน เพราะอยู่ตรงข้ามซอยทองหล่อแหล่งตระเวนราตรีอยู่แล้ว ตอนกลางคืน ดึกๆนี่หามอเตอร์ไซค์ง่ายค่ะ ไม่เปลี่ยวเหมือนที่อื่นๆทั่วไป
เข้ามาในซอยสุขุมวิท 36 ก็จะมีร้านอาหารเรียงรายค่ะ อย่างถัดจาก Noble Remix เข้ามาจะมีครัวเวียงจันทร์นี่ขายส้มตำ อาหารอิสาน และเบียร์พร้อม ด้านในมีที่นั่งตกแต่งสไตล์อิสานจัดเต็ม ด้านในก็มีร้านอาหาร ร้านขนมอีกหลายร้านให้ไปลองชิมกัน
เข้ามาแป๊ปเดียว ก็จะเจอรั้วของโครงการ Rhythm สุขุมวิท 36-38 อยู่ทางซ้ายมือแล้วค่ะ ฝั่งตรงข้ามส่วนใหญ่จะเป็นอพาร์ทเม้นท์ และคอนโดหรูแบบ Low Rise ซะเป็นส่วนใหญ่ ทำให้มีบรรยากาศย่านที่พักอาศัยที่เงียบสงบค่ะ แต่ก็จะมีแผงขายข้างทางพวกส้มตำ ไก่ย่างผ่านไปผ่านมา จอดขายคนในพื้นที่อยู่บ้าง
โดยตัวโครงการ Rhythm สุขุมวิท 36-38 จะตั้งอยู่บนทางเชื่อมระหว่างซอยสุขุมวิท 36 และซอยสุขุมวิท 38 ซึ่ง AP มาปรับภูมิทัศน์ ทำถนนทางเท้า ปลูกต้นไม้เป็นแนวให้ร่มรื่น และปักป้ายตั้งชื่อเป็นซอย AP ก่อนจะไปดูรอบๆโครงการ เราขอพาไปดูทางเดินจาก BTS ทองหล่อ มา โครงการ Rhythm สุขุมวิท 36-38 กันต่อค่ะ
เนื่องจากตัวโครงการ Rhythm สุขุมวิท 36-38 อยู่ห่างจาก BTS ทองหล่อ ประมาณ 500 ม. (เข้าจากซอยสุขุมวิท 38) ถ้าขับรถมาก็แนะนำให้เข้ามาทางซอยสุขุมวิท 36 อย่างที่เราขับพาเข้ามาตอนแรกนะคะ แต่สำหรับคนที่เดินเข้ามา และใช้ BTS เป็นหลัก เราแนะนำให้เข้ามาทางซอยสุขุมวิท 38 จะดีกว่าค่ะ เพราะเป็นทางเดินเท้า และมีระยะห่างจากจุดขึ้นลง BTS พอๆ กัน วันนี้เราจะพาเดินจาก BTS ทองหล่อ ประตูทางออกที่ 4 มาโครงการ Rhythm สุขุมวิท 36-38 เพื่อให้เห็นภาพทางเดินเท้าและสิ่งอำนวยความสะดวกรอบๆโครงการกันนะคะ

เริ่มกันจาก BTS ทองหล่อ ออกมาประตู 4 ฝั่งสุขุมวิทซอยเลขคู่ตรงข้ามซอยทองหล่อ เพื่อเดินไปซอยสุขุมวิท 38 กัน
จากด้านบน BTS ทองหล่อ มองลงไปที่ซอยสุขุมวิท 38 จะเห็นว่ามีทางเดินเท้าทั้งสองฝั่งกว้างและค่อนข้างปลอดภัย ไม่เปลี่ยวค่ะ เพราะในซอยมีคอนโด และร้านอาหารที่เปิดตอนกลางคืนเยอะอยู่ และมีรปภ.ของคอนโดแต่ละโครงการคอยดูความเรียบร้อยอยู่อีกส่วนนึงนั่นเอง
บันไดทางขึ้นลงประตู 4 ที่อยู่ใกล้ซอยสุขุมวิท 38 ที่สุดค่ะ พอลงมาเราก็เดินมุ่งหน้าไปซอยสุขุมวิท 38 ตามการวิ่งรถของถนนฝั่งนี้เลยค่ะ ซึ่งเป็นฝั่งมุ่งหน้าไปทางพร้อมพงษ์
ทางเดินเท้าข้างถนนใหญ่สุขุมวิทไปซอยสุขุมวิท 38 ค่อนข้างกว้างตามที่เห็น
จุดสังเกตของซอยสุขุมวิท 38 นอกจากป้ายซอยคือที่หัวมุมจะมีร้านขายสีร้านใหญ่อยู่ค่ะ เราเลี้ยวซ้ายเข้าซอยสุขุมวิท 38
จาากปากซอยสุขุมวิท 38 มองเข้าไปด้านในโครงการ เป็นถนนสองเลน แต่กว้างกว่าซอยสุขุมวิท 36 พอจอดรถข้างทางได้ และมีทางเท้าทั้งสองฝั่งนะคะ ที่หัวมุมจะมีวินมอเตอร์ไซค์อยู่เช่นกัน นั่งไปโครงการคิด 10 บาท
ทางเดินภายในซอยมีความปลอดภัยค่อนข้างสูง ส่วนนึงเพราะมีบ้านหลังใหญ่ของบรรดาเศรษฐีในไทยอยู่ในซอยนี้หลายหลัง และอีกส่วนนึงคือมีคอนโดอยู่เยอะนะคะ ซึ่งรปภ. ของแต่ละแห่งก็จะช่วยสอดส่องดูแลความปลอดภัยไปในตัวด้วย
นอกจากนี้ภายในซอยก็จะมีร้านอาหาร คาเฟ่ และบาร์อยู่หลายร้าน เราเอาเฉพาะที่เราเดินผ่านมาให้ดูบางส่วนนะคะ จริงๆตอนเย็นๆกับช่วงกลางคืนจะมี Food Truck หรือร้านอาหาร
มีร้านขายอาหารญี่ปุ่น OYAJI เห็นมีขายเป็นอาหารชุดหลากหลายดี
ถัดมาเป็นร้านอาหาร The Face Bar ร้านนี้ด้านในเป็นเรือนไทย ตกแต่งด้านในสวยเลยค่ะ มีห้องที่เหมาะสำหรับงานเลี้ยงรับรองลูกค้าต่างชาติด้วย ขายอาหารอินเดียและอาหารไทย มีค็อกเทลและไวน์ด้วย
ถัดมาเป็นร้าน No.38 Infinite Natural Spa เป็นสปาแนวสมุนไพรไทย พร้อมนวดและดูแลผิวพรรณแบบต่างๆ ซึ่งมีร้านกาแฟให้นั่งชิวหลังนวดได้ด้วย
ถัดมาเราเดินเลี้ยวขวาเข้าทางเชื่อมไปซอยสุขุมวิท 36
จากทางเชื่อมนี่ก็จะเห็นตึกโครงการ Rhythm สุขุมวิท 36-38 อยู่ทางฝั่งขวามือเราแล้วค่ะ ในซอยจะมีทางเท้าสองฝั่ง ถนนสองเลนรถพอสวนกันได้ ภายในซอยเป็นโซนที่พักอาศัยที่สะอาดและสงบ
ทางเดินเท้าในซอยกว้างดี และมีต้นไม้ใหญ่ปลูกอยู่หลายจุด ทำให้ดูร่มรื่น
ถึงหน้าโครงการ Rhythm สุขุมวิท 36-38 แล้วค่ะ
ตัวโครงการ
รอบๆที่ดินโครงการ Rhythm สุขุมวิท 36-38 ทางเข้าออกโครงการจะอยู่ที่ซอย AP ซึ่งเชื่อมอยู่ระหว่างถนนสุขุมวิทซอย 36 และ 38 ค่ะ แต่ที่ดินโครงการจะอยู่ค่อนมาทางซอยสุขุมวิท 36 มากกว่า ถัดจากถนนซอยสุขุมวิท 36 ไปทางทิศตะวันออกจะเป็นคอนโด Low Rise สูง 6 – 7 ชั้น ที่ดินโครงการทางทิศตะวันออกเป็นบ้านพักอาอาศัยขนาดใหญ่หลายหลัง ทิศเหนือเป็นที่ดินเปล่า ทิศใต้เป็นคอร์ตเทนนิส
โครงการ Rhythm สุขุมวิท 36-38 เป็นโครงการที่ AP ได้ร่วมมือกับ Mitsubishi และออกแบบโครงการนี้ภายใต้แนวคิด Living Unordinary ซึ่งก็เชื่อมโยงกับแนวคิดแบบญี่ปุ่น เช่น การจัดสวนสไตล์ Engawa หรือการออกแบบที่ก่อให้เกิดความเชื่อมโยงระหว่างพื้นที่ภายนอก และภายในให้มีความสัมพันธ์ต่อเนื่องกัน โดยตัวอาคารออกแบบมาในรูปตัว U และมีต้นไม้ล้อมรอบอาคารตามคอนเซ็ปต์

มาดูผังของโครงการชั้นล่างกันก่อนค่ะ จากถนนใหญ่เมื่อเข้าโครงการมาจะผ่านป้อม รปภ. มาให้วนซ้ายเพื่อกลับรถมาจะมีจุด Drop off หน้า Lobby เลี้ยวขวาไปจะเป็นทางไปที่จอดรถ โดยที่จอดรถของโครงการจะอยู่ที่ชั้น 1 – 5 มีที่จอดทั้งหมด 213 คัน ไม่รวมจอดซ้อนคัน ก็คือคิดเป็น 48% ของจำนวนยูนิตในโครงการค่ะ ก็คือเน้นคนใช้รถไฟฟ้าเป็นหลักนะคะ เราว่าส่วนนึงก็เพราะเป็นทำเลที่เน้นปล่อยเช่าคนต่างชาติหรือพวก Expat ได้ด้วย เลยอาจไม่ได้เน้นที่จอดรถมาก แต่ก็มีให้ประมาณครึ่งนึงของจำนวนยูนิตเพราะมีระดับราคาสูง คนส่วนใหญ่ที่ซื้อก็น่าจะมีรถอยู่แล้วนะคะ เข้ามาด้านในอาคารจะเป็นส่วนของ Lobby วิวสวนด้านหน้าของโครงการ, ห้องจดหมาย, สำนักงานนิติบุคคล มีลิฟท์โดยสารให้ 4 ตัว เทียบกับจำนวนยูนิตโครงการคือ 496 ยูนิต ก็ถือว่ากำลังพอเหมาะค่ะ ลิฟท์บริการมี 1 ตัวแยกส่วนกันจากลิฟท์โดยสารเรียบร้อย
เงยหน้ามองขึ้นไปบนตัวตึก Rhythm สุขุมวิท 36-38 ตัวอาคารเป็นตึกสูง 25 ชั้น ทางเข้าติดถนนที่เชื่อมอยู่ระหว่างซอยสุขุมวิท 36 และ 38 ตามชื่อโครงการเลย (ตอนนี้เรียกกันว่าซอย AP ค่ะ เพราะปรับปรุงภูมิทัศน์ซอยให้ใหม่ด้วย ทั้งทำทางเดินเท้า ปลูกรั้วแนวพุ่มไม้ ฯลฯ) ล้อมรอบด้วยกำแพงสูงสีเทาเน้นการสร้างบรรยากาศสงบ และสีเขียวจากต้นไม้ใหญ่หลายต้นภายในโครงการ เพื่อความเป็นส่วนตัวจากอาคารรอบๆ และสร้างบรรยากาศผ่อนคลายจากธรรมชาติ
ซุ้มทางเข้าโครงการ รอบๆอาคารจะล้อมด้วยสวนหย่อมและต้นไม้ทำให้บรรยากาศของโครงการร่มรื่น จากซุ้มโครงการ จะห่างจากทางขึ้นรถไฟฟ้า BTS สถานีทองหล่อ ประมาณ 350 เมตร (ออกทางซอยสุขุมวิท 36)
ซ้ายมือเป็นทางไปจุด Drop-Off
ขวามือเป็นทางเข้าอาคารจอดรถยนต์ การเดินรถภายในโครงการแบบ One Way
เข้า-ออกระบบ Access Card Control กั้นไม้กระดกอัตโนมัติ + กล้องวงจรปิดฝั่งละ 1 ตัว
ขับตามทางไปเลยค่ะ ข้างๆถนนโครงการ ลงต้นไม้ใหญ่ จัดตกแต่งสวนร่มรื่นมากๆ
ซ้ายมือเป็นทางเข้าอาคารจอดรถยนต์ ถ้าตรงไปจะเป็นทางรถออกค่ะ
ทางเข้า-ออก อาคารจอดรถยนต์
ที่จอดรถพื้นคอนกรีตขัดมัน แบ่งช่องจอดไว้ให้ชัดเจนดีค่ะ
บรรยากาศสวนชั้นล่าง ส่วนด้านหน้าทางเข้าโครงการ ออกแบบตามแนวคิดของญี่ปุ่น โดยคำนึงถึงความเชื่อมโยงระหว่างพื้นที่ภายนอก และภายในให้มีความสัมพันธ์ต่อเนื่องกัน เพื่อให้ผู้พักอาศัยสามารถสัมผัสความรู้สึกโปร่งสบายใกล้ชิดธรรมชาติ
จะเห็นว่ามีการจัดสวนแบบใช้กริดไลน์ของสี่เหลี่ยมจตุรัส เหมือนเป็นตารางหมากรุก โดยแทนสีขาวด้วยผืนหญ้าสีเขียว และแทนสีดำด้วยสระน้ำ ที่นอกจากจะทำให้ดูสบายตา และน่าสนใจแล้ว พอรวมกับบรรดาไม้ยืนต้นที่ปลูกเอาไว้ในโครงการ ยังสร้างบรรยากาศที่ร่มรื่นได้ดีอีกด้วย
Lobby ของโครงการที่มีบรรยากาศหรูหรา ด้วยโทนสีดำ เทาและแต่งด้วยสีม่วง ล้อมด้วยวิวสวนของโครงการชั้นล่างโดยส่วนล็อบบี้ เป็นแบบ Double Volume เพดานสูง 5 เมตร และใช้ผนังกระจกบานใหญ่ทำให้เห็นวิวสวนด้านนอกแบบเต็มที่ ตามคอนเซ็ปต์การเชื่อมโยงพื้นที่ภายใน และภายนอกของโครงการ
ผ่านโซน Lobby เดินต่อเข้ามา ขวามือเป็นโถงลิฟท์โดยสาร เข้า-ออกด้วยประตู Key Card เพื่อความปลอดภัยของผู้อยู่อาศัย ซ้ายมือเป็นห้องตู้จดหมาย ถัดเข้าไปด้านในเป็นห้องนิติบุคคล
ซ้ายมือเป็นทางเข้าห้องตู้จดหมาย บรรยากาศภายในห้องจดหมาย ตกแต่งสไตล์โมเดิร์น ตู้จดหมายแบบบิวท์อิน ซ่อนไฟ Led สวยงาม แยกกล่องจดหมายแต่ละยูนิตชัดเจน
ตรงข้ามกับห้องเก็บจดหมาย เป็นโถงลิฟท์โดยสาร ภายในโถงลิฟท์ตกแต่งด้วยหินอ่อน สไตล์เดียวกันกับ Lobby มีลิฟท์โดยสารแบบล็อคชั้นให้ 4 ตัว
ลิฟท์โดยสารแบบล็อคชั้น ของ OTIS ต้องแตะ Key Card ก่อน แล้วกดชั้นพักอาศัย แผงกดลิฟท์ดูทันสมัย มีจอ LED บอกสถานะด้วยค่ะ
ส่วนที่พักอาศัยจะเริ่มที่ผังชั้น 6 ซึ่งก็เป็นชั้นส่วนกลางด้วยนะคะ โดยมีห้องพักทั้งหมด 24 ยูนิต ก็เป็นชั้นที่มีความหนาแน่นของยูนิตที่พักอาศัยน้อยกว่าชั้นอื่นๆ และอยู่ใกล้สระว่ายน้ำที่สุดค่ะ โถงทางเดินวางตัวเป็นแนวยาวแบบ Double Corridor รูปตัว U อย่างที่เห็น
สระว่ายน้ำโครงการ Rhythm สุขุมวิท 36-38 จะใช้กระเบื้องสระว่ายน้ำเป็นสีม่วงแปลกตาจากที่อื่นตามคอนเซ็ปต์ Live in an unordinary landscape ของโครงการ ขณะที่สระส่วนใหญ่นี่จะพยายามเลียนสีธรรมชาติ โดยใช้กระเบื้องสีน้ำทะเล เขียว ฟ้า น้ำเงิน ดำ เทา แต่สระสีม่วงนี่ไม่เคยเห็นเลยค่ะ เราว่าเป็นคอนเซ็ปต์ที่สร้างความยูนีคให้ตัวโครงการได้ดีเลย ทดแทนกับการที่สระไม่ได้อยู่ชั้นสูงมาก ซึ่งวิวจากสระจึงมองออกไปได้ไม่ไกลเท่าไหร่ โดยตัวสระเป็นสระกลางแจ้ง ขนาดประมาณ 18 x 17 เมตรค่ะ พร้อมห้องซาวน่าแยกชายหญิง
จากโถงลิฟท์จะมีประตูแยกไปใช้งานพื้นที่ส่วนกลางต่างหาก ไม่เข้าไปปะปนกับโถงทางเดินส่วนที่พักอาศัยของชั้นนี้เพื่อความเป็นส่วนตัวค่ะ เนื่องจากตรงทางเข้าไปส่วนที่พักอาศัยจะมีประตูกั้นไว้ให้อีกที แต่ด้วยความที่อยู่ชั้นเดียวกันกับพื้นที่ส่วนกลาง ข้อดีคืออยู่ใกล้ เหมือนมีสระว่ายน้ำอยู่หน้าบ้าน หรือเดินเข้ามาอบซาวน่าได้ทุกวันก่อนนอนสบายๆเลย แต่ข้อเสียก็คือเสียงรบกวนจากคนมาใช้งานสระว่ายน้ำซึ่งยูนิตใกล้ๆสระ ก็อาจจะมีเจอเสียงรบกวนบ้าง ซึ่งก็เป็นส่วนนึงที่ต้องชั่งน้ำหนักกันดูค่ะ
ประตูทางเข้า-ออกไปยังพื้นที่ส่วนกลาง
ผ่านประตูออกมา จะเจอกับสระว่ายน้ำแบบในภาพค่ะ ขวามือเป็นสระว่ายน้ำ มีพื้นที่พักผ่อนริมสระว่ายน้ำจัดเตรียมไว้ให้ ส่วนซ้ายมือเป็นทางเชื่อมสู่ห้องน้ำ และ ห้องซาวน่าแยกชาย-หญิง
สระว่ายน้ำระบบเกลือแบบ Infinity Edge ขนาด 18 x 17 เมตร เปิดรับวิวฝั่งด้านหน้าโครงการ
พื้นที่พักผ่อนริมสระว่ายน้ำ ปูพื้นไม้เทียม จัดวาง Sunbed ไว้ให้ 3 ชุด
บรรยากาศภาพรวมสระว่ายน้ำค่ะ
สวนหย่อมมีการปลูกต้นไม้ใหญ่ ประดับด้วยต้นไม้พุ่มแนวสูง สนามหญ้าที่พื้น ตกแต่งแผ่นหินทางเดิน สลับกันไม้พุ่มต้นเล็ก บรรยากาศดูร่มรื่นผ่อนคลายดี
เดินต่อเข้ามาด้านใน จะเจอกับสระว่ายน้ำเด็ก ตกแต่งพื้นสระว่ายน้ำด้วยกระเบื้องสีม่วงตามนี้ ส่วนตัวเราว่าเก๋ไม่เหมือนใครดี
ถ่ายจากอีกมุมให้ดูค่ะ
ด้านหลังสระว่ายน้ำ มีพื้นที่พักผ่อนริมสระ จัดวาง Sunbed ให้อีก 1 ตัว ผนังด้านหลังยังคงตกแต่งสวนแบบ Vertical Garden ร่มรื่นดี
เดินขึ้นบันไดมา ซ้ายมือเป็นพื้นที่สำหรับล้างตัว ก่อนขึ้นและลงสระว่ายน้ำ
ถ่ายจากพื้นที่พักผ่อนริมสระว่ายน้ำ ออกมาให้ดูบรรยากาศโดยรวมค่ะ
ผังชั้น 7-16 เป็น Typical Floor Plan หลักของโครงการโดยในชั้นนี้จะมีห้องพักทั้งหมด 28 ยูนิต ซึ่งก็ถือว่าเป็นชั้นที่มียูนิตหนาแน่นสุดแล้วนะคะ เพราะชั้นบนๆเจอ Building code หรือกฏหมายอาคารให้ร่นระยะอาคารสูงเข้าไป ยูนิตชั้นสูงๆจึงมีจำนวนยูนิตน้อยกว่านั่นเอง เนื่องจากผังอาคารเป็นรูปตัว U และ Core lift ทั้ง 4 จะอยู่ทางมุมด้านในฝั่งซ้ายมือ ทำให้ยูนิตฝั่งขวาล่างสุดมีระยะเดินมาลิฟท์ประมาณ 70 เมตร
ผังอาคารเป็นตัว U วิวภายนอกส่วนใหญ่จะเป็นวิวเมือง เพราะทำเลอยู่ในย่านสุขุมวิท ข้อดีคือรอบๆติดที่ดินโครงการส่วนใหญ่เป็นอาคาร Low rise นะคะ พอขึ้นมาชั้น 7 บวกกับ Podium ของชั้นล่างค่อนข้างสูงอยู่แล้ว จึงไม่ได้ถูกบล็อควิวระยะใกล้ และมองออกไปได้ไกลพอสมควร ส่วนวิวในก็เป็นวิวสระว่ายน้ำนั่นเอง
สังเกตจากการวางผังอาคาร จุดเด่นที่เป็นข้อดีไม่เหมือนโครงการส่วนมากคือ การวางผังห้องแบบ Interlock กันค่ะ เนื่องจากส่วนพื้นที่ห้องน้ำจะแยกออกมาจากพื้นที่ห้องใหญ่ จากที่ทั่วไปยูนิตสตูดิโอ จะเป็นผังสี่เหลี่ยมผืนผ้าที่มีห้องน้ำรวมอยู่ด้านในเลย ข้อดีคือสามารถใช้ประโยชน์จากพื้นที่ภายในห้องสี่เหลี่ยมได้อย่างเต็มที่ ได้พื้นที่ส่วนครัวเพิ่มขึ้น ได้ระยะดูทีวีเพิ่มขึ้น สามารถวางจอทีวีได้ใหญ่ขึ้น จากลักษณะผังห้องสตูดิโอแบบปกตินั่นเอง

ผังชั้น 17 ตามระยะถอยร่นอาคาร ฝั่งขวาของอาคารจะยุบห้องหายไป 1 ยูนิตและ เป็นสวนขึ้นมาแทนแบบนี้ ชั้นบนๆขึ้นไปก็จะถูกร่นระยะเข้าไปเรื่อยๆค่ะ
ผังชั้น 23 จากแปลนจะเห็นว่าตัวอาคารถูกร่นระยะเข้าไปอย่างเห็นได้ชัด จำนวนยูนิตก็น้อยลงความเป็นส่วนตัวก็มากขึ้นค่ะ โดยชั้นนี้จะมีเพียง 21 ยูนิตเท่านั้น และมีสวนให้ทั้งสองฝั่งเลย
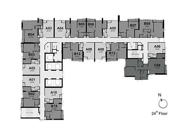
ผังชั้น 24 เป็นชั้นที่น่าจะแพงที่สุดชั้นนึงค่ะเนื่องจากเป็นชั้นที่พักอาศัยที่ได้วิวสูงสุดและจะใกล้พื้นที่ส่วนกลางอย่าง Sky Fitness และสวนชั้นดาดฟ้า โดยมียูนิตที่พักอาศัยจำนวน 20 ยูนิต
ผังชั้น 25 หรือดาดฟ้านี่เรียกได้ว่าเป็นชั้นส่วนกลางหลักๆอีกชั้นนึงเลยก็ว่าได้ค่ะ จะเป็นส่วนของห้องฟิตเนสวิวเมือง หันไปทางถนนสุขุมวิท มีห้องน้ำแยกชาย หญิง และสวนพักผ่อนที่กว้างขวางและออกแบบมาให้มีที่นั่งพักผ่อน ขึ้นมาเดินเล่นชมวิวเมืองได้ การแยกห้องฟิตเนส (ที่อยู่ชั้นนี้) และสระว่ายน้ำ (ที่อยู่ชั้น 6) ออกจากกันแบบนี้มีข้อดีข้อเสียอยู่คือ สำหรับคนที่เคยชินกับการออกกำลังกายเสร็จ ล้างตัว ลงสระว่ายน้ำเล่นต่อ ก็จะต้องลงลิฟท์ไปชั้น 6 ซึ่งก็มีความไม่ต่อเนื่องอยู่บ้าง ส่วนข้อดีคือ แต่ละชั้นไม่ว่าจะเป็นยูนิตชั้นล่าง หรือยูนิตชั้นบน ก็จะไม่อยู่ห่างจากพื้นที่ส่วนกลางมากเกินไปนั่นเอง
โถงลิฟท์โดยสารชั้น 25 ตกแต่งโทนสีดำ-ขาว เพดานดรอปฝ้าซ่อนไฟ LED หรูหราดีค่ะ
ออกจากโถงลิฟท์มาเลี้ยวขวา จะเจอกับห้องน้ำส่วนกลางทางซ้ายมือ เดินตรงไปด้านสุดเป็นห้องฟิตเนส
ห้องฟิตเนสชั้น 25 วิวที่เห็นจะเป็นวิวเมืองหันไปทางถนนใหญ่สุขุมวิทค่ะ
ผนังกระจกทำเป็นเหลี่ยมมุมแบบฟันปลาเพื่อเพิ่มความเป็นส่วนตัวในแง่มุมมองของเครื่องเล่นแต่ละเครื่องมากขึ้น
ปิดม่านลงมาให้ดูก็จะได้อีกอารมณ์นึงเลยค่ะ ภายในห้องจัดเครื่องออกกำลังกายให้ครบเซ็ทเลยนะ
ด้านในมีเครื่องนั่งปั่นจักรยานไฟฟ้า 3 เครื่อง ถัดมาตรงกลางเป็นมุมบริหารกล้ามเนื้อ
บาร์เบลมาตรฐาน
เครื่องซิทอัพ 2 ตัว
ลู่วิ่งออกกำลังกายไฟฟ้า 3 เครื่อง หันออกไปรับวิวเมืองกว้างๆ
มองย้อนกลับมา มีประตูทางเข้า-ออก ที่ใช้เชื่อมกับพื้นที่สวนลอยฟ้า
เปิดประตูออกมา จะเจอกับสวนพักผ่อนสไตล์ญี่ปุ่น ที่พื้นสวนยังคงการตกแต่งคอนเซ็ปต์เดิมเลยค่ะ
ผนังฝั่งขวากั้นกระจกนิรภัย ช่วยให้ลูกบ้านยืนชมวิวกันได้อย่างชัดเจน
เดินต่อเข้าไปด้านใน เป็นพื้นที่นั่งเล่นพักผ่อน
ที่นั่งเล่นพักผ่อนเล่นระดับขั้นบันได รายล้อมด้วยต้นไม้สีเขียวร่มรื่นมากๆ
มองผ่านกระจกนิรภัยออกมา ก็เห็นวิวเมืองสวยๆ แบบนี้เลยค่ะ
เอาบรรยากาศวิวมุมสูงมาฝากกันด้วยค่ะ มุมนี้มองไปออกไปเห็นบ้านพักแนวราบ และแนวรถไฟฟ้า
มุมนี้จะเห็นบ้านแนวราบฝั่งซอยสุขุมวิท 38 อาคารสูงโซนสุขุมวิท และ แนวรถไฟฟ้า
ฝั่งนี้มองเห็นซอยสุขุมวิท 36 และบ้านพักอาศัยแนวราบโซนสุขุมวิทฝั่งขาเข้าค่ะ
จากพื้นที่นั่งเล่นชมวิว มองย้อนกลับเข้ามาทางห้องฟิตเนส
อีกฝั่งของชั้นดาดฟ้า มีพื้นที่พักผ่อนให้อีก 1 จุด
วางเก้าอี้เชือกถักที่จะนั่งก็ได้ นอนชมวิวก็ดี
จากมุมนี้มองออกไป จะเห็นส่วนกลางฝั่งที่เราพาไปชมมาเมื่อสักครู่ค่ะ
วิวบ้านเรือนและอาคารสูงฝั่งสุขุมวิทขาเข้า
มองตรงมาได้วิวบ้านพักแนวราบ และ แนวรถไฟฟ้า
มองลงมาเห็นสระว่ายน้ำชั้น 6 แบบนี้ด้วยหละ
:: UNIT TYPE ::
โครงการ Rhythm สุขุมวิท 36-38 มีห้องให้เลือกทั้งหมด 3 แบบ คือแบบ
TYPE A01, A02, A03, A04, A05, A06, A07, A10 เป็นห้องแบบ Studio 24.00 ตร.ม. ห้องพักขนาดเริ่มต้น ที่รวมพื้นที่มุมครัว, มุมพักผ่อน และห้องนอนไว้ด้วยกัน ซ้ายมือมีห้องน้ำแยกส่วนแห้ง ส่วนอาบน้ำให้เป็นสัดส่วน ด้านนอกมีระเบียงซักล้างให้มา 1 จุด
Type B01,B11 เป็นห้องแบบ 1 Bedroom 33.00 ตร.ม. แบบ 1 ห้องนอน 1 ห้องน้ำ 1 ห้องนั่งเล่น เมื่อเดินเข้าไปจะเจอกับส่วนครัวทางซ้ายมือ ต่อด้วยห้องนั่งเล่นติดระเบียง ที่เชื่อมต่อกับห้องนอน กั้นด้วยประตูบานเปิดและผนังทึบ ติดกันเป็นห้องน้ำที่มีการแยกส่วนเปียกส่วนแห้งให้เรียบร้อย ข้อดีคือสามารถเปิดเข้าได้ทั้งจากห้องนั่งเล่นและในห้องนอน
Type B04 เป็นห้องแบบ 1 Bedroom 41.5 ตร.ม. แบบ 1 ห้องนอน 2 ห้องน้ำ 1 ห้องนั่งเล่น เมื่อเดินเข้าไปจะเจอกับมุมครัวกว้างๆที่เชื่อมต่อกับห้องนั่งเล่นริมระเบียง และมีห้องน้ำแบบ Powder Room ที่มีเฉพาะโถสุขภัณฑ์มาให้แยกต่างหากกับห้องน้ำในห้องนอนอีกที
Type B02, B03, B05, B06, B09, B10, B14 เป็นห้องแบบ 1 Bedroom 33 ตร.ม. แบบ 1 ห้องนอน 1 ห้องน้ำ 1 ห้องนั่งเล่นและครัวปิด เมื่อเดินเข้าไปจะเจอกับห้องนั่งเล่นที่เชื่อมต่อกับห้องนอน กั้นด้วยผนังทึบประตูบานเปิด ห้องน้ำเข้าออกทางห้องนอนมีการแยกส่วนเปียกส่วนแห้งให้เรียบร้อยและมีระเบียงในตัว
Type B07, B12, B13 เป็นห้องแบบ 1 Bedroom 34.5 ตร.ม. แบบ 1 ห้องนอน 1 ห้องน้ำ 1 ห้องนั่งเล่น เมื่อเดินเข้าไปจะเจอกับส่วนครัวเปิดห้องนั่งเล่นติดระเบียง ห้องนอนกั้นด้วยผนังทึบประตูบานเปิด ห้องน้ำเข้าออกทางห้องนอนมีการแยกส่วนเปียกส่วนแห้งให้เรียบร้อย
Type E C01 ขนาด 72 ตร.ม. แบบ 2 ห้องนอน 2 ห้องน้ำ 1 ห้องนั่งเล่น โดยเมื่อเข้าห้องมาจะเจอกับห้องนั่งเล่น พื้นที่รับประทานอาหารขนาด 6 ที่นั่ง และชุดครัวเต็มความกว้างผนังติดระเบียง โดยจะมีประตูแยกไปที่ห้องนอนใหญ่และห้องนอนเล็ก โดยแบ่งเป็นห้องนอนเล็กที่วางเตียงคู่ได้สบายๆ ใช้ห้องน้ำร่วมกับห้องนั่งเล่นส่วนกลาง และห้องนอนใหญ่ที่มีห้องน้ำในตัวพร้อมห้องอาบน้ำและอ่างอาบน้ำด้วย
Type E C08 ขนาด 76 ตร.ม. แบบ 2 ห้องนอน 2 ห้องน้ำ 1 ห้องนั่งเล่น โดยเมื่อเข้าห้องมาจะเจอกับห้องนั่งเล่น พื้นที่รับประทานอาหารขนาด 6 ที่นั่ง และครัวปิด โดยจะมีประตูแยกไปที่ห้องนอนใหญ่และห้องนอนเล็ก โดยแบ่งเป็นห้องนอนเล็กที่วางเตียงคู่ได้สบายๆ ใช้ห้องน้ำร่วมกับห้องนั่งเล่นส่วนกลาง และห้องนอนใหญ่ที่มีห้องน้ำในตัวพร้อมห้องอาบน้ำและอ่างอาบน้ำด้วย
:: ห้องตัวอย่าง ::
สำหรับแบบห้องตัวอย่าง ที่เราจะพาไปชม มีทั้งหมด 2 แบบ คือ
โดยทางโครงการขายห้องให้แบบ Fully Fitted สิ่งที่ลูกค้าจะได้รับ คือ ตู้เสื้อผ้าบิวท์อิน, เคาน์เตอร์ครัว เตาเซรามิค 2 หัว + เครื่องดูดควัน + เตาไมโครเวผ + ซิงค์ล้างจาน ของ FRANKE, สุขภัณฑ์ภายในห้องน้ำของ Kohler และ Cristina พื้นห้องลามิเนต หนา 8 มม. ผนังห้อง และฝ้าฉาบเรียบทาสีขาว ไฟภายในห้องแบบดาวน์ไลท์ พร้อมติดตั้งเครื่องปรับอากาศแบบ Wall Type ของ Mitsubishi ให้ครบทุกยูนิตค่ะ
:: ตัวอย่างประตูห้องพัก ::
ประตูห้องไม้สำเร็จรูป ลายไม้สีน้ำตาลอ่อน วงกบไม้เนื้อแข็ง กลอนประตู Digital Door Lock BY Yale แบบ 2 ระบบ (แบบแตะคีย์การ์ด + กดรหัสผ่าน) มือจับประตูก้านโยกฝังล็อคใช้งานสะดวก
ห้องตัวอย่างแบบ Studio ขนาด 24.00 ตร.ม. เปิดประตูห้องพักเข้ามา ขวามือจะเป็นเคาน์เตอร์ครัว ซ้ายมือจะเป็นห้องน้ำ ซึ่งก็เป็นข้อดีของการจัดผังแบบ Interlock ของโครงการนะคะ เพราะส่วนพื้นที่ห้องน้ำจะแยกออกมาจากพื้นที่ห้องใหญ่ จากที่ทั่วไปยูนิต Studio จะเป็นผังสี่เหลี่ยมผืนผ้า ที่มีห้องน้ำรวมอยู่ด้านในเลย
ข้อดีคือสามารถใช้ประโยชน์จากพื้นที่ภายในห้องสี่เหลี่ยมได้อย่างเต็มที่ ได้พื้นที่ส่วนครัวเพิ่มขึ้น ได้ระยะดูทีวีเพิ่มขึ้น สามารถวางจอทีวีได้ใหญ่ขึ้น จากลักษณะผังห้อง Studio แบบปกตินะคะ
ถัดมาจะเป็นส่วนห้องนอน พร้อมพื้นที่ด้านข้าง ที่เป็นห้องนั่งเล่นไปในตัว มุมห้องมีประตูเปิดออกไประเบียงได้ แต่จากผังจะเห็นว่าระเบียงมีขนาดไม่ใหญ่ เหมือนเอาไว้ใช้วางแอร์คอมเพรสเซอร์ และตากผ้ามากกว่าค่ะ
เปิดประตูห้องพักเข้ามา ขวามือเป็นมุมครัว ซ้ายมือหลังประตูเป็นห้องน้ำ ต่อเนื่องไปเป็นห้องนอน พื้นห้องชุดปูไม้ลามิเนตสีอ่อน หนา 8 มม. เดินสบายเท้า ทนต่อรอยขีดข่วนได้ดี ดูแลรักษาได้ง่าย ความสูงพื้น-เพดาน 2.6 เมตร ผนังห้องมาตรฐานฉาบเรียบทาสีพื้น ฝ้าเพดานฉาบเรียบ ไฟภายในห้องแบบดาวน์ไลท์ทรงกลมทั้งหมดค่ะ
มองย้อนกลับมาทางฝั่งประตูห้องพักให้ดู ซ้ายมือเป็นเห็นเป็นมุมครัว ส่วนขวามือเป็นทางเข้าห้องน้ำ
โครงการบิวท์อินเคาน์เตอร์ครัว ขนาด 1.50 x 0.60 เมตร ให้แบบในภาพ ติดกันเป็นพื้นสำหรับวางตู้เย็น ความกว้าง 70 ซม. รองรับตู้เย็นขนาด 7-12 คิว กำลังพอดี
Top ครัวหินสังเคราะห์สีขาว แข็งแรง ทนต่อน้ำ-ทนความร้อนได้ดี ผนังครัวมี Backsplash กระจกนิรภัยกันเปื้อนไว้ให้ เช็ดล้างทำความสะอาดได้ง่าย
ฝังซิงค์ล้างจานสแตนเลสหลุมเดี่ยว ก๊อกน้ำล้างจานโครเมียมทรงสูง ปรับโยกซ้าย-ขวาได้ ช่วยให้ล้างจาน, ล้างผัก, ผลไม้ได้สะดวก
เตาเซรามิค 2 หัว + เครื่องดูดควันของ FRANKE
ด้านล่างเคาน์เตอร์ แบ่งเป็นลิ้นชักเก็บช้อน-ส้อม ตู้เก็บของใช้ ให้พร้อมไมโครเวฟของ FRANKE ตรงกลางเป็นพื้นที่สำหรับวางเครื่องซักผ้าแบบฝาหน้า ขนาด 7 กก. ด้านหลังเดินงานระบบประปา + ไฟฟ้าให้พร้อมใช้งาน ส่วนใต้ซิงค์มีตู้เก็บของบานเปิด บานปิดผิวลามิเนต ติดตั้งถังขยะแบบมีฝาปิดให้เรียบร้อย โดยตู้เก็บของทั้งหมด จะเป็นแบบ Soft Close เพื่อการใช้งานได้ยาวนานขึ้น
ตู้เก็บของด้านบน เป็นแบบบานเปิด บานปิดผิวลามิเนต แบ่งชั้นให้วางของครบทุกตู้ สามารถเก็บของใช้ พวกจาน-ชาม-ถ้วย หรือเครื่องปรุง ได้เยอะพอสมควร
ติดกับมุมครัว ตกแต่งเป็นมุมพักผ่อน วางโซฟา Love Seat ขนาด 2 ที่นั่ง + โต๊ะกลางทรงสูงเว้าขา ที่สามารถนั่งทานอาหารได้สบายๆ ระยะใช้งานกว้าง ใช้งานได้สะดวกดีค่ะ
ตรงข้ามมุมครัวและมุมพักผ่อน เป็นห้องน้ำ และตู้เสื้อผ้า
ประตูห้องน้ำกระจกฝ้าบานเลื่อน กรอบอลูมิเนียม Powder Coat สีเทา ขนาด 1.50 x 2.10 เมตร ธรณีสูง 15 ซม. ป้องกันน้ำออกมายังส่วนห้องพักค่ะ
เปิดประตูเข้ามาด้านใน ห้องน้ำปูพื้นและผนังกระเบื้องแกรนิตโต้สีดำเงา ผนังบางส่วนตกแต่งด้วยกระเบื้องสีเงิน ดูเรียบหรู ซ้ายมือเป็นส่วนแห้ง ฝั่งขวามือเป็นส่วนอาบน้ำ สุขภัณฑ์ภายในห้องน้ำของ Cristina และ Kohler ค่ะ
ซ้ายมือวางโถสุขภัณฑ์แบบ 2 Piece 2 ปุ่มกดแบบ Dual Flush ของ Kohler ฝาเปิด-ปิด และฝารองนั่งเป็นแบบ Soft Close ช่วยลดแรงกระแทกขณะเปิด-ปิด ป้องกันฝาปิดกระแทกทับมือเด็กเล็ก พร้อมติดตั้งสายชำระโครเมียม + ที่ใส่กระดาษทิชชู่ไว้ให้ครบชุดค่ะ
เหนือโถสุขภัณฑ์ขึ้นไป ติดตั้งชั้นวางของโครเมียม พร้อมราวแขวนผ้าขนหนูให้ 1 ชุด
ตรงกลางติดตั้งอ่างล้างหน้าทรงกลมของ Cristina ฝังก๊อกน้ำโครเมียมก้านโยก หน้าอ่างวางของใช้ได้เล็กน้อย ผนังด้านหลังอ่างติดตั้งกระจกเงาบานใหญ่ + เต้าเสียบปลั๊กไฟแบบกันน้ำเอาไว้ให้ด้วย
ฝั่งขวามือเป็นส่วนอาบน้ำ ทางโครงการกั้นฉากอาบน้ำกระจกนิรภัย ประตูบานสวิง มือจับโครเมียมตัว U แขวนผ้าเช็ดตัวได้ ยกธรณีสูง 5 ซม. เพื่อกั้นระหว่างพื้นส่วนอาบน้ำ และส่วนแห้ง ติดตั้งฝักบัวโครเมียมแบบ Rain Shower + Hand Shower ผนังมีชั้นวางอุปกรณ์อาบน้ำ + ที่วางสบู่ พร้อมเดินงานระบบรองรับการติดตั้งเครื่องทำอุ่นไว้ให้ พร้อมใช้งานได้เลย
พื้นส่วนอาบน้ำปูกระเบื้องเซรามิคสีดำกันลื่น 60×60 ซม. ส่วนพื้นที่ใช้งาน ขนาด 1.10 x 1.20 เมตร ยืนอาบน้ำได้สบายๆ ไม่อึดอัด
จากส่วนอาบน้ำมองย้อนกลับออกมาค่ะ
จากหน้าห้องน้ำมองออกมา จะเจอกับมุมพักผ่อน และ มุมครัวแบบนี้
ติดกับห้องน้ำเป็นตู้เสื้อผ้าที่ทางโครงการบิวท์อินไว้ให้ เป็นตู้เสื้อผ้าแบบ 3 บานเปิด หน้าบานกระจกเงา ความกว้าง 1.2 เมตร ความสูงจรดฝ้าเพดาน ภายในแบ่งราวแขวนผ้า + ชั้นวางของ และ ตู้เก็บของไว้ให้ ส่วนด้านล้างมีลิ้นชักเก็บของให้อีก 2 ช่อง เก็บของใช้ได้เยอะทีเดียว
มาดูส่วนห้องนอนกันต่อค่ะ ห้องตัวอย่างวางเตียงขนาด 5 ฟุต มาให้ดูเป็นไอเดีย
ข้างเตียงนอนฝั่งซ้ายมือ ติดกับหน้าต่าง ตกแต่งเป็นมุมทำงาน วางโต๊ะทำงานความกว้าง 2.00 เมตร พอดีผนัง
ระยะห่างข้างเตียงฝั่งนี้ กว้างประมาณ 70 ซม. วางเก้าอี้เข้าไปแล้ว ยังสามารถเลื่อนเข้า-ออกได้สะดวกค่ะ
ด้านหลังโต๊ะทำงาน เป็นหน้าต่างกระจกเขียวตัดแสงบานใหญ่ กรอบอลูมิเนียม Powder Coat สีเทา แบ่งเป็นแบบบาน Fix และ บานกระทุ้ง เปิดรับแสงในช่วงตอนกลางวันได้ดี นอนดูวิวกลางคืนได้สบายๆ รวมถึงจะเปิดตัวบานกระทุ้ง เพื่อระบายอากาศก็ได้เหมือนกัน
ปลายเตียงนอน ห้องมาตรฐานจะเป็นผนังเปล่า รองรับตู้วางทีวีขนาดไม่เกิน 1 เมตร ผนังเดินงานระบบไฟฟ้า เต้าเสียบปลั๊กไฟ + ช่องสายเคเบิลทีวีให้พร้อมใช้งาน เหนือชุดวางทีวีขึ้นไป ทางโครงการติดตั้งเครื่องปรับอากาศ Wall Type ของ Mitsubishi ให้ 1 เครื่อง
ส่วนระยะใช้งานปลายเตียง – เฟอร์นิเจอร์ กว้างประมาณ 1.00 เมตร เดินเข้า-ออกไปส่วนอื่นๆ และ ลุกขึ้น-ลงเตียงนอนได้สะดวกเลยค่ะ
ติดกับมุมทำงาน เป็นระเบียงซักล้าง กั้นประตูกระจกเขียวตัดแสง กรอบอลูมิเนียม Powder Coat สีเทา ขนาด 1.10 x 2.10 เมตร บานประตูเลื่อนเปิดได้ทั้งสองฝั่ง ยกธรณีสูงประมาณ 15 ซม. กันน้ำฝน และสิ่งสกปรกพัดเข้าสู่ห้องพัก
ระเบียงซักล้างแบบกะทัดรัด ปูกระเบื้องเซรามิคกันลื่น 30 x 30 ซม. พื้นที่ใช้งาน ขนาด 1.20 x 0.6 เมตร ติดตั้งก๊อกสนาม + ท่อน้ำทิ้งให้ครบ ส่วนราวระเบียงเป็นเหล็กเส้นสีเทา (ทาสีน้ำมัน + กันสนิม) ความสูงประมาณ 1.10 เมตร
ด้านบนแขวนคอมเพรสเซอร์แอร์ 1 เครื่อง ปล่อยลมร้อนออกสู่นอกอาคาร ผนังติดตั้งไฟกิ่งให้แสงสว่าง 1 ดวงค่ะ
มองย้อนกลับเข้ามาภายในห้องพัก ให้เห็นบรรยากาศภาพรวมค่ะ
** หมายเหตุ ห้องแบบ Combine ไม่มีแปลนรูปภาพให้ดูนะคะ **
มาต่อกันที่ห้องพักแบบ Combine ขนาด 48.00 ตร.ม. ที่รวมห้องพักแบบ Studio ขนาด 24.00 ตร.ม. เข้าด้วยกัน แบ่งฟังก์ชั่นการใช้งานไว้เป็น 3 ส่วนหลักๆ เปิดประตูเข้ามาตรงกลาง จะเจอกับมุมทานอาหาร, มุมพักผ่อน และ ระเบียงซักล้าง ซ้ายมือเป็นห้องครัวแบบปิด ขวามือเป็นห้องนอนขนาดใหญ่ พร้อมห้องน้ำในตัวค่ะ เดี๋ยวเราพาไปดูรายละเอียดในแต่ละส่วนกัน 🙂
ภาพรวมฝั่งซ้ายมือ ประกอบไปด้วยมุมทานอาหาร, ห้องครัวแบบปิด, มุมนั่งเล่น และ ระเบียงซักล้าง
ส่วนภาพรวมฝั่งขวามือ เป็นห้องนอนขนาดใหญ่ พร้อมห้องน้ำในตัวค่ะ
เริ่มกันที่มุมทานอาหารกันก่อน ตรงนี้สามารถวางโต๊ะทานข้าว ขนาด 4 ที่นั่งได้สบายๆ
ติดกันเป็นห้องครัวแบบปิด กั้นประตูกระจกบานเลื่อน กรอบอลูมิเนียม Powder Coat สีเทา ขนาด 2.10 x 2.20 เมตร
ภายในห้องครัว ปูพื้นกระเบื้องแกรนิตโต้สีครีม 60 x 60 ซม. โครงการบิวท์อินเคาน์เตอร์ครัว ขนาด 2.10 x 0.60 เมตร ให้แบบในภาพ ด้านล่างเคาน์เตอร์ แบ่งเป็นลิ้นชักเก็บช้อน-ส้อม ให้ไมโครเวฟของ FRANKE 1 เครื่อง ติดกันเป็นพื้นที่วางเครื่องซักผ้าแบบฝาหน้า ขนาด 7 กก. เดินงานระบบให้พร้อม ส่วนใต้ซิงค์มีตู้เก็บของบานเปิด บานปิดผิวลามิเนต ฝังถังขยะแบบมีฝาปิดให้เรียบร้อย โดยตู้เก็บของทั้งหมด จะเป็นแบบ Soft Close ค่ะ
หน้า Top ครัวหินสังเคราะห์สีขาว แข็งแรง ทนต่อน้ำ-ทนความร้อนได้ดี ผนังครัวมี Backsplash กระจกนิรภัยกันเปื้อนไว้ให้ เช็ดล้างทำความสะอาดได้ง่าย
หน้า Top ครัวฝังเตาเซรามิค 2 หัว พร้อมเครื่องดูดควัน + ซิงค์ล้างจานสแตนเลสหลุมเดี่ยว ก๊อกน้ำล้างจานทรงสูงของ FRANKE
ตู้เก็บของด้านบนแบบ 4 บานเปิด ภายในแบ่งชั้นลอย เก็บของใช้ในครัวเรือนได้เยอะเลยค่ะ
ติดกับเคาน์เตอร์ครัว บริเวณมุมของห้องครัว เป็นพื้นที่สำหรับวางตู้เย็น ความกว้างประมาณ 90 ซม. รองรับตู้เย็นขนาด 7-12 คิว เหนือตู้เย็นขึ้นไป มีตู้เก็บของแบบบานเปิด แบ่งชั้นลอยไว้ให้ครบ เก็บของใช้ได้อย่างเป็นระเบียบ
ออกจากห้องครัวมา ไปต่อกันที่มุมพักผ่อน ระยะใช้งานกำลังดี สามารถเดินเข้า-ออกไปส่วนอื่นๆของห้องพักได้สะดวกค่ะ
โครงการวางโซฟาขนาด 2 ที่นั่ง + สตูลวางเท้าให้ดูเป็นไอเดีย
ตรงข้ามกับโซฟา ห้องมาตรฐานจะเป็นผนังเปล่า รองรับตู้วางทีวีขนาดไม่เกิน 1.8 เมตร ผนังเดินงานระบบไฟฟ้า เต้าเสียบปลั๊กไฟ + ช่องสายเคเบิลทีวีให้พร้อมใช้ ผนังด้านบนติดตั้งเครื่องปรับอากาศ Wall Type ของ Mitsubishi ให้ 1 เครื่องค่ะ
ติดกับโซฟา บิวท์อินโต๊ะทำงานให้ดูเป็นแนวทางค่ะ ด้านหลังมีหน้าต่างกระจกเขียวตัดแสงบานใหญ่ กรอบอลูมิเนียม Powder Coat สีเทา แบ่งเป็นแบบบาน Fix และ บานกระทุ้ง เปิดรับแสงในช่วงตอนกลางวันได้ดี นั่งดูวิวเมืองตอนกลางคืนได้สบายๆ ติดกันเป็นระเบียงซักล้าง
ติดกันเป็นระเบียงซักล้าง กั้นประตูกระจกเขียวตัดแสง กรอบอลูมิเนียม Powder Coat สีเทา ขนาด 1.10 x 2.10 เมตร ยกธรณีสูง 15 ซม. ป้องกั้นสิ่งสกปรกพัดเข้าสู่ห้องพัก
ระเบียงซักล้าง ปูกระเบื้องเซรามิคกันลื่น 30 x 30 ซม. พื้นที่ใช้งาน ขนาด 1.20 x 0.6 เมตร วัสดุมาตรฐานอื่นๆ เหมือนกันกับแบบห้อง Studio ที่เราพาไปชมก่อนหน้านี้เลยค่ะ
ด้านบนติดตั้งคอมเพรสเซอร์แอร์ ปล่อยลมร้อนออกด้านนอกอาคาร มีกริลอลูมิเนียมบังให้อีกชั้น เพื่อความสวยงาม ผนังด้านข้าง ติดตั้งไฟกิ่งให้อีก 1 ดวงค่ะ
จากระเบียงมองออกมา จะได้วิวเมืองกว้างๆ สลับกับต้นไม้สีเขียว และ แนวรถไฟฟ้าแบบในภาพเลยค่ะ
มองย้อนกลับเข้ามาภายในห้องพัก เดี๋ยวพาไปดูที่ห้องนอนกันต่อค่ะ
ห้องนอนแบบปิด จะตั้งอยู่ตรงกลาง ระหว่างมุมทานอาหาร และ มุมพักผ่อน
ประตูห้องนอนไม้สำเร็จรูปสีอ่อน วงกบไม้เนื้อแข็ง มือจับประตูก้านโยก กลอนประตู Double Lock เพื่อความปลอดภัย
เปิดประตูเข้ามาด้านใน พื้นห้องปูไม้ลามิเนตสีอ่อน พื้นที่ใช้งานค่อนข้างกว้าง เปรียบเทียบขนาดก็จะเท่ากันกับห้อง Studio ขนาด 24.00 ตร.ม. 1 ห้องได้เลยนะ
ฝั่งซ้ายมือ ห้องตัวอย่างวางเตียงนอนขนาด 5 ฟุต ให้ดูเป็นไอเดีย ห้องจริงสามารถเพิ่มขนาดเป็น 6 ฟุตได้สบายๆ เหนือเตียงนอนขึ้นไป โครงการติดตั้งเครื่องปรับอากาศ Wall Type ของ Mitsubishi ให้อีก 1 เครื่อง
ปลายเตียงเป็นผนังเปล่าค่ะ ความกว้าง ประมาณ 2 เมตร โครงการแขวนทีวีให้ดูเป็นไอเดีย ผนังด้านหลังทีวี เดินงานระบบไฟฟ้า + ช่องเสียบสายเคเบิลให้พร้อมใช้งาน
ระยะห่างปลายเตียง-ผนังห้อง กว้างประมาณ 1.40 เมตร เดินเข้า-ออกไปได้สะดวก
ด้านในสุดมีหน้าต่างกระจกเขียวตัดแสงบานใหญ่ กรอบอลูมิเนียม Powder Coat สีเทา แบบบาน Fix และ บานกระทุ้ง ติดกันเป็นระเบียงซักล้าง ขนาดหน้าต่างและประตูระเบียงมาตรฐานเดียวกันกับห้อง Studio ค่ะ
ระเบียงซักล้าง ปูพื้นกระเบื้องเซรามิคมาตรฐานเดียวกัน พื้นที่ใช้งาน 1.2 x 0.6 เมตร ราวระเบียงเหล็กทาสีเทากันสนิม ความสูง 1.10 เมตร
ผนังด้านบนแขวนคอมเพรสเซอร์แอร์ 1 เครื่อง ปล่อยลมร้อนออกนอกอาคาร มีกรลอลูมิเนียมกั้นให้เช่นเดียวกัน ผนังด้านข้างติดไฟกิ่งให้ 1 ดวง
มองออกไปด้านนอก จะได้วิวบ้านพักอาศัยโซนสุขุมวิท และ แนวรถไฟฟ้า เหมือนกันกับระเบียงตรงโซนพักผ่อน
มองย้อนกลับเข้ามาภายในห้องนอน ให้เห็นภาพรวมค่ะ
โครงการบิวท์อินตู้เสื้อผ้าแบบบานเลื่อน หน้าบานกระจกเงา ความกว้าง 2.10 เมตร ไว้ให้ด้วยนะ ภายในแบ่งราวแขวนผ้า + ชั้นวางของให้ครบ ติดกันโครงการบิวท์อินชั้นวางของ ความกว้าง 1.2 เมตร ให้ดูเป็นไอเดีย ห้องจริงจะวางชั้นแบบลอยตัวก็ได้ค่ะ
ประตูห้องน้ำกระจกฝ้าบานเลื่อน กรอบอลูมิเนียม Powder Coat สีเทา ความกว้างประมาณ 80 ซม. ยกธรณีสูง 15 ซม. ป้องกันน้ำออกมายังส่วนห้องพักค่ะ
เข้ามาด้านในห้องน้ำ ตกแต่งโทนสีดำเหมือนกันทั้งโครงการ ฟังก์ชั่นมาตรฐานแยกส่วนแห้ง + ส่วนอาบน้ำให้เหมือนกันกับห้อง Stuido เลยค่ะ โดยตรงกลางห้องน้ำ ติดตั้งอ่างล้างหน้าทรงกลมของ Cristina ฝังก๊อกโครเมียมก้านโยก หน้าอ่างวางของใช้ได้เล็กน้อย ผนังติดตั้งกระจกเงาให้ 1 บาน
ขวามือวางโถสุขภัณฑ์ 2 Piece ระบบ Dual Flush ของ Kohler ฝาเปิด-ปิด และ ฝารองนั่งแบบ Solf Close เช่นเดียวกัน พร้อมติดตั้งสายชำระโครเมียม + ที่ใส่กระดาษทิชชู่ไว้ให้ครบชุดค่ะ
เหนือโถสุขภัณฑ์ ติดตั้งชั้นวางของ + ราวแขวนผ้าขนหนูโครเมียมให้ 1 ชุด
ซ้ายมือเป็นส่วนอาบน้ำค่ะ ทางโครงการกั้นฉากอาบน้ำกระจกนิรภัย มือจับโครเมียมตัว U แขวนผ้าเช็ดตัวได้ ยกธรณีสูง 5 ซม. พร้อมติดตั้งฝักบัว โครเมียมแบบ Rain Shower + Hand Shower ของ Kohler ผนังมีชั้นวางของให้ 1 จุด พร้อมเดินงานระบบ รองรับการติดตั้งเครื่องทำน้ำอุ่นให้เรียบร้อยค่ะ
พื้นที่ส่วนอาบน้ำ ปูกระเบื้องเซรามิคสีดำกันลื่น 60 x 60 ซม. พื้นที่ใช้งานขนาด 1.20 x 1.10 เมตร ยืนอาบน้ำได้สบายๆ
จากส่วนอาบน้ำมองย้อนกลับออกมาทางฝั่งส่วนแห้งค่ะ
จากหน้าห้องน้ำ มองกลับเข้ามาภายในห้องนอน
: ราคา (พ.ย.59) ::
**ห้องขายแบบ Fully Fitted พร้อมชุดครัวและเฟอร์นิเจอร์ Built in พร้อมเครื่องปรับอากาศ
ค่าส่วนกลาง : 55 บาท/ตร.ม./เดือน (เก็บล่วงหน้า 1 ปี)
ค่ากองทุน : 500 บาท/ตร.ม. (ชำระครั้งเดียว ณ วันโอน)
:: บทสรุปโครงการ ::
⇒ ทำเลที่ตั้งโครงการ : โครงการ Rhythm Sukhumvit 36-38 เป็นโครงการที่พูดได้ว่าสะดวกทั้งคนใช้รถและไม่ใช้รถค่ะ เพราะอยู่ติดถนนใหญ่สุขุมวิทโซน CBD แบบพีคๆอย่างทองหล่อ ในระยะที่เดินไปขึ้นรถไฟฟ้า BTS สถานี ทองหล่อ 350 – 500 ม. เท่านั้น ภายในซอยสุขุมวิท 36-38 ที่เป็นโซนที่พักอาศัยที่เงียบสงบ มีทางเท้าที่กว้าง ไม่เปลี่ยว เดินไปได้สบายๆ นอกจากนี้ยังใกล้จุดขึ้น-ลง ทางด่วนรามอินทราอาจณรงค์ ที่ทำให้คนขับรถมีความสะดวกสบายเข้าเมือง ออกเมืองได้สะดวก
⇒ ความอุดมสมบูรณ์ : รอบๆโครงการ ร้านอาหาร ของกิน แหล่งช๊อปปิ้งมีให้เลือกหลากหลายค่ะ ทั้งห้างหรูอย่างเอ็มโพเรียม เอ็มควอเทียร์ หรือพื้นที่สีเขียวไว้เดินเล่นอย่างสวนสาธารณะเบญจสิริ โรงหนังอย่างเมเจอร์ ไปดูดาวที่ท้องฟ้าจำลอง หรือแหล่งรวมร้านอาหารดีๆอย่าง Rain Hill หรือซุปเปอร์มาเก็ตอย่าง Tops ร้านอาหารสองฝั่งถนนใหญ่สุขุมวิทโซนนี้ก็มีร้านคุณภาพดีๆและมีคอนเซ็ปต์ร้านเก๋ๆเยอะทีเดียว
หรือจะเข้าไปในทองหล่อ เอกมัย ก็มีชื่อเสียงอยู่แล้วเรื่องผับ บาร์ และร้านอาหารอีกเป็นร้อยร้าน เปิดทั้งกลางวันกลางคืน มีทั้งโรงพยาบาล,โรงหนัง, วัด, ห้างสรรพสินค้า, Community mall ผุดขึ้นมามากมาย นอกจากสาธารณูปโภคเหล่านี้ก็ยังมี ปั๊มน้ำมัน อู่ซ่อมรถอยู่อีกด้วย หรือโซนพร้อมพงษ์อย่างซอยสุขุมวิท 24, 39 ก็ล้วนแต่เป็นย่านหรูที่เต็มไปด้วยแหล่งอาหารการกินที่มีชื่อเสียง
แต่ทั้งนี้ทั้งนั้นก็ต้องมีเงินในกระเป๋าที่หนักพอสมควรค่ะสำหรับการอยู่ในย่านที่ค่าครองชีพสูง ซึ่งเราว่ามันก็น่าจะตอบโจทย์กับไลฟ์สไตล์ของกลุ่มคนซื้อหรือเช่าคอนโดราคาระดับนี้นะคะ เนื่องจากย่านนี้ (พร้อมพงษ์-ทองหล่อ) ร้านอาหารส่วนมากราคาเฉลี่ยอยู่ที่ประมาณ 200- 500 บาทต่อคนค่ะ
แต่ก็จะมีร้านข้างทางริมถนนใหญ่สุขุมวิทฝั่งโครงการ โดยเฉพาะช่วงต้นซอยสุขุมวิท 36, 38 ที่เป็นวอยโครงการเอง และแผงขายอาหารข้างทางมากมายระหว่างทางเท้าที่เดินจากโครงการไปพร้อมพงษ์ ที่ราคาอาหารเฉลี่ยอยู่ที่ 30-50 บาทต่อคนเท่านั้น ก็ถือว่ามีทางเลือกหลากหลายนะคะ
⇒ การเดินทางด้วยรถยนต์ส่วนตัว : สำหรับคนขับรถ โครงการอยู่ในซอยสุขุมวิท 36-38 ที่เชื่อมถนนใหญ่สุขุมวิทและถนนพระราม 4 ซึ่งก็ถือว่าเป็นถนน CBD โซนใน โดยถนนสุขุมวิทช่วงนี้จะเป็นจุดที่มีการจราจรหนาแน่นทั้งฝั่งเลขคู่และเลขคี่เลยค่ะ เนื่องจากเป็นจุดที่คนใช้เดินทางไป-มาระหว่างถนนสุขุมวิท ถนนพระรามสี่ และถนนเพชรบุรี ผ่านซอยน้อยใหญ่ต่างๆ ซึ่งรถแน่นทุกเส้น เพราะทั้งสามเส้นเป็นถนนสายหลัก บวกกับการที่โลเคชั่นอยู่ใจกลางเมือง ห้างเยอะ คอนโดเยอะ ออฟฟิศอาคารสำนักงานเยอะ คนใช้รถใช้ถนนจึงเยอะไปด้วย
ทำเลตรงนี้มีจุดขึ้นทางด่วนกระจายตัวอยู่รอบๆ ทั้ง ทางด่วนเพลินจิต, พระราม 4, เอกมัย – รามอินทรา, สุขุมวิท 50 ฯลฯ แต่เนื่องจากย่านนี้รถค่อนข้างติดค่ะ เพราะทุกเส้นอยู่ในตัวเมืองทั้งนั้น ทำให้การเดินทางโดย “เลี่ยงเมือง” ทำไม่ได้ แต่โดยรวมการเดินทางก็สะดวกอยู่แล้ว เพราะอย่างที่กล่าวไปข้างต้นว่าทำเลอยู่ในตัวเมืองอยู่แล้วด้วย
⇒ การเดินทางด้วยรถสาธารณะ : แถวนี้คนไม่ขับรถไปไหนมาไหนง่ายมากค่ะ ถือเป็นจุดเด่นของโครงการนี้เลยก็ว่าได้นอกจากอยู่ห่างจาก BTS ทองหล่อ ในระยะเดินไปได้แล้ว โซนนี้มีทั้งแท๊กซี่ วินมอเตอร์ไซค์ แทบจะ 24 ชั่วโมงนะคะ หน้าซอย 36 ใกล้ทางขึ้น BTS ทองหล่อก็มีป้ายรถเมล์ ปากซอยก็มีพี่วินมอเตอร์ไซค์อยู่ จะไปไหนก็ไว รถติดก็มีทางเลี่ยงเยอะแยะ เพราะอยู่ใจกลางเมืองในแหล่งห้างสรรพสินค้าอยู่แล้ว อยากไปช๊อปปิ้ง สามารถขึ้นรถไฟฟ้าไปได้ทั้ง เอ็มโพเรียม เอ็มควอเทียร์ เทอมินอล 21 ไม่ต้องรถติด ทั้งใกล้ และสะดวก
⇒ การออกแบบโครงการและวัสดุ : การออกแบบโครงการมีความใส่ใจรายละเอียด ทั้งในแง่ของการดีไซน์ภาพรวม ที่ดึงเอาธรรมชาติเข้ามาในคอนเซ็ปต์แบบญี่ปุ่น แต่ภาพลักษณ์กลับทำออกมาค่อนข้างแหวกแนว ไม่ว่าจะเป็นสวนหมากรุกข้างล็อบบี้ที่เป็นผืนน้ำสลับผืนหญ้า หรือสระว่ายน้ำของโครงการที่ชั้น 6 ที่ใช้กระเบื้องสระสีม่วงไม่เหมือนใคร เป็นต้น
แบบห้อง มีมาให้เลือกหลายแบบตั้งแต่ห้องแบบ Studio, 1 Bedroom, 2 Bedrooms ซึ่งปรับแบบมาให้ลงตัวและมีห้องน้ำที่มีขนาดสบายๆ ใช้งานได้ไม่อึดอัด ตัวห้องขายแบบ Fully Fitted คือมีชุดครัว และชุดเฟอร์นิเจอร์ Built in มาให้ ซึ่งสเปคมาสวย เพิ่มที่เก็บของได้เยอะดี โดยชุดครัวเป็นหน้าบานปิดผิวสีเทา ท๊อปเป็นหินสังเคราะห์สีขาว เตาไฟฟ้า 2 หัวและเครื่องดูดควันพร้อมอ่างล้างจานสแตนเลสจาก FRANKE
ชุดสุขภัณฑ์ได้ของ Kohler ดูดี อ่างล้างหน้าทรงกลมของ Cristina มีฉากกั้นห้องน้ำเป็นกระจกเทมเปอร์พร้อมฝักบัวและ Rain Shower มาให้ ฝ้าเพดานห้องสูง 2.6 เมตร พื้นเป็นไม้ลามิเนต 8 มม.กับพื้นห้องน้ำและระเบียงเป็นกระเบื้องเซรามิค 60 x 60 ซม. ประตูทางเข้าออกห้องมี Digital Door lock มาให้
⇒ สิ่งอำนวยความสะดวก – พื้นที่ส่วนกลางชั้น 1 คือสวนและล็อบบี้ และส่วนกลางหลักๆจะอยู่ที่ชั้น 6 โดยมีสระว่ายน้ำและห้อง Steam แยกชายหญิง และส่วนกลางที่ชั้นดาดฟ้าชั้น 25 เป็นห้องฟิตเนสที่ขนาดใหญ่ และสวนพักผ่อน พร้อมระบบรักษาความปลอดภัยทั้ง รปภ.24 ชั่วโมง, CCTV, เข้าออกด้วย Access Card Control
ลิฟท์โดยสาร 4 ตัวถือว่ากำลังพอดีๆกับที่พักอาศัย 496 ยูนิต ลิฟท์ขนของหรือลิฟท์ Service อีกหนึ่งตัวทางเข้าออกแยกไม่ปะปนกัน และที่จอดรถ 213 คัน ไม่รวมจอดซ้อนคันคิดเป็นประมาณ 48% ของยูนิตทั้งหมด
:: คะแนน ::
| ทำเลที่ตั้งโครงการ | 8.0 | คอนโดใหม่พร้อมอยู่ ในซอยสุขุมวิท 36-38 ห่างจากถนนใหญ่สุขุมวิท CBD โซนในอย่างทองหล่อเพียง 400 เมตร และเชื่อมต่อไปออกได้หลายทาง มีตัวเลือกในการเดินทางเยอะ |
| การเดินทาง ใช้รถ | 8.0 | เดินทางสะดวกใกล้ทางด่วน ไปไหนมาไหนง่าย แต่ต้องระวังรถติด |
| การเดินทาง ไม่ใช้รถ | 8.0 | สะดวกมาก ใกล้ BTS สถานีใจกลางเมืองอย่างทองหล่อในระยะเดิน 500 เมตร รอบๆโครงการมีแท็กซี่เยอะ วินมอเตอร์ไซค์เยอะ ใช้เลี่ยงรถติดได้ดี ทางเดินเท้ากว้างและดูไม่เปลี่ยว เดินไปไหนมาไหนได้สบายๆ |
| ห้องและวัสดุ | 8.0 | แปลนห้องแบ่งได้เป็นสัดส่วนลงตัว ขายแบบ Fully Fitted วัสดุและเฟอร์นิเจอร์ที่ได้มีความใส่ใจรายละเอียดดี |
| สิ่งอำนวยความสะดวก | 8.0 | มีให้ครบครันและออกแบบได้น่าใช้งาน |
| ความคุ้มค่ากับราคา | 8.0 | ราคาเริ่มต้นตอนนี้อยู่ที่ประมาณ 154,000 บาท/ตร.ม. ได้ทำเลทองหล่อ ใกล้รถไฟฟ้า, ใกล้ทางด่วน ใกล้ห้าง และคอนโดที่มีการออกแบบมาอย่างละเอียด และดีไซน์ไม่เหมือนใคร ส่วนที่มีมูลค่าสูงของโครงการคือทำเลที่ดินย่านนี้ที่เริ่มหายากและมีความอุดมสมบูรณ์ และสะดวกสบายสูง |
| คะแนนรวมเฉลี่ย | 8.0 | ดีมาก |
หากต้องการเลือกคอนโดเพื่
โดย BC เป็นที่ปรึกษาด้านการลงทุน ทั้งการแนะนำเรื่องซื้อ-เช่า และรับฝากขาย-ปล่อยเช่าอสังหาริ
โดยเฉพาะพื้นที่ใจกลางธุรกิจ ซึ่งปัจจุบันมีมูลค่ารวมมากกว่า 20,000 ล้านบาท หากลูกค้าใช้บริการกับทาง BC มั่นใจได้ว่า จะได้ทุกสิ่งตามที่ลูกค้าต้
ลงทะเบียนรับโปรโมชั่นพิเศษ คลิกที่นี่
เงื่อนไขการรรับโปรโมชั่น
และลูกค้าที่จองภายในวันที่ 26 พ.ย. – 25 ธ.ค. 2559 ต้องดำเนินการโอนกรรมสิทธิ์ห้องชุดภายใน 29 ธ.ค. 2559
สอบรามละเอียดเพิ่มเติมได้ที่
TEL : 02-661-8999
WEBSITE : http://www.bkkcitismart.com/
หากเพื่อนๆเห็นว่ารีวิวนี้มีประโยชน์ ช่วยกด Like เพื่อเป็นกำลังใจให้ทีมงาน ขอบคุณค่ะ
และมีความคิดเห็นหรือข้อมูลเพิ่มเติมเกี่ยวกับตัวโครงการ สามารถ Comment ได้ที่ด้านล่างของรีวิวค่ะ