EP.026 รีวิว คอนโด โนเบิล รีมิกซ์ ทองหล่อ NOBLE REMIX THONGLOR
NOBLE REMIX THONGLOR | NOBLE REMIX SUKHUMVIT 36
สวัสดีค่ะผู้อ่าน Homenayoo ทุกคน วันนี้เราจะพาไปชมทำเล คอนโด Noble Remix ทองหล่อ จาก โนเบิล ดีเวลลอปเมนท์ ตั้งอยู่บนถนนสุขุมวิท ปากซอยสุขุมวิท 36 แขวงคลองเตยเหนือ เขตวัฒนา กรุงเทพฯ
ติดรถไฟฟ้า BTS สถานีทองหล่อ เป็นจุดเชื่อมต่อรถไฟฟ้าสายสีเทา (รางเดียว) ในอนาคต ใกล้ EM District และโรงพยาบาลสมิติเวช
โนเบิล รีมิกซ์ ทองหล่อ คอนโด High-Rise 2 อาคาร สูง 11 ชั้น และ 33 ชั้น บนพื้นที่โครงการขนาด 5-0-0 ไร่ จำนวนห้องพักอาศัย 152 ยูนิต และ 504 ยูนิต มีห้องพักให้เลือก 4 แบบ ได้แก่ Studio, 1 ห้องนอน, 2 ห้องนอน และ 3 ห้องนอน ขนาด 30 – 249.36 ตร.ม. เป็นโครงการสร้างเสร็จพร้อมอยู่
สิ่งอำนวยความสะดวกภายในโครงการครบครัน อาทิ ประกอบด้วย สระว่ายน้ำ, ฟิตเนส, ห้องสตีม, สวนหย่อม, ที่จอดรถ และระบบรักษาความปลอดภัยตลอด 24 ชม. ประกอบด้วย รปภ., กล้องวงจรปิดโครงการ และประตู Key Card ราคา Resales ปัจจุบันเริ่มต้นประมาณ 5.7 ล้านบาท (177,639 บาท/ตร.ม.) (2561)
คอนโดใกล้ BTS ทองหล่อ ติดถนนสุขุมวิท ใกล้ BTS ทองหล่อ

| ชื่อโครงการ | โนเบิล รีมิกซ์ สุขุมวิท 36 / NOBLE REMIX สุขุมวิท 36 |
| เจ้าของโครงการ | โนเบิล ดีเวลลอปเมนท์ / Noble Development |
| ลักษณะห้องและขนาดห้อง | Studio, 1 Bed, 2 Bed, 3 Bed / ตั้งแต่ 36.00 ตร.ม. |
| เนื้อที่ทั้งหมด | 5 ไร่เศษ |
| จำนวนตึก | 2 อาคาร |
| จำนวนชั้น | 11 ชั้น และ 33 ชั้น |
| จำนวนห้อง | 152 ยูนิต และ 504 ยูนิต |
| ที่จอดรถทั้งหมด | n/a |
| โซน | สุขุมวิทช่วงกลาง 25-71, ทองหล่อ, เอกมัย, พระโขนง |
| ขนส่งสาธารณะ | รถไฟฟ้า BTS สถานีทองหล่อ (50 ม.) |
| รถโดยสารที่ผ่าน | n/a |
| ที่ตั้ง | 772/662 ถนนสุขุมวิท แขวงคลองตัน เขตคลองเตย กรุงเทพฯ 10110 |
| กำหนดการ | n/a |
| ปีที่สร้างเสร็จ | พ.ศ. 2553 |
| ราคา | เริ่มต้น 5,700,000 บาท (ราคา resales ปี 2561) |
| ราคาเฉลี่ยต่อ ตร.ม | เริ่มต้น 177,639 บาท/ตร.ม. |
| สถานที่สำคัญใกล้เคียง |
|
| สิ่งอำนวยความสะดวก |
|
| จุดเด่นของโครงการ | – ติดBTSทองหล่อ พร้อมทางเชื่อมเข้าตรงอาคาร – ตัวอาคารเน้นความโปร่งโล่งสบายด้วย บานกระจกลามิเนตแบบนิรภัย 2 ชั้นบานกว้างสูงถึง 3 เมตร – ห้องพักอาศัย บรรยากาศโปร่งสบาย |
คอนโดใกล้ BTS ทองหล่อ ติดถนนสุขุมวิท ใกล้ BTS ทองหล่อ
:::ที่ตั้งโครงการ:::
772/662 ถนนสุขุมวิท แขวงคลองตัน เขตคลองเตย กรุงเทพฯ 10110
จากแผนที่ของทางโครงการ Noble Remix ทองหล่อ ตั้งอยู่บนถนนสุขุมวิท ใจกลางเมือง ติด BTS ทองหล่อ และ ซ.สุขุมวิท 36 อยู่ในทำเลศูนย์กลางความเจริญของสังคมเมือง มีระบบสาธารณูประโภค – ขนส่งสาธารณะ ที่สะดวกสบาย ครบครัน ใกล้ศูนย์กลางธุรกิจ – สำนักงาน ย่านพร้อมพงษ์, อโศก, เพลินจิต, ชิดลม มีเส้นทางเชื่อมต่อไปยัง สีลม – สาทร ใกล้รถไฟฟ้า MRT สถานีสุขุมวิท, รถไฟฟ้า ARL สถานีรามคำแหง และรถไฟฟ้าสายสีเทาในอนาคต การเดินทางโดยรถส่วนตัวนอกจากเส้นสุขุมวิท ก็สามารถใช้เส้นเพชรบุรีตัดใหม่ และพระราม 4 ใกล้ทางด่วนศรีรัช, รามอินทรา-อาจณรงค์ และเฉลิมมหานคร

:::การเดินทางโดยรถยนต์::: โครงการ Noble Remix ทองหล่อ ตั้งอยู่บนถนนสุขุมวิท ปากซอย สุขุมวิท 36 ย่านทองหล่อ ถนนหน้า แหล่งพบปะสังสรรระบนที่คงไม่มีใครไม่รู้จัก มีถนนเส้นสำคัญรอบๆโครงการ ดังนี้
– ถนนสุขุมวิท ถนนหน้าโครงการ เป็นเส้นเลือดใหญ่เส้นหนึ่งของกรุงเทพฯฝั่งตะวันออก ที่เชื่อมศูนย์กลางเศรฐกิจของกรุงเทพฯสู่ศูนย์กลางการผลิตและข่นส่งสินค้า จากสมุทรปราการไปถึงชลบุรี มีระบบขนส่งสาธารณะหลากหลาย ทั้งรถประจำทาง, Taxi, รถไฟฟ้า BTS, MRT และรถไฟรางเดียวในอนาคต (สายสีเทา) การเดินทางโดยรถยนต์มีการจราจรที่หนาแน่นเกือบ 24 ชม. และติดขัดเป็นพิเศษในช่วงเวลาเข้า-ออกงาน
– ถนนเพชรบุรีตัดใหม่ เป็นถนนใหญ่อีกเส้นที่ใกล้กับโครงการ มีเส้นทางเชื่อมระหว่างถนนพัฒนาการและถนนพิษณุโลกที่แยกอุรุพงษ์ มีการใช้งานเป็นถนนเส้นรองเพื่อเดินทางระหว่างย่านอโศก, ทองหล่อ, เอกมัย และพัฒนาการ
– ถนนเอกมัย หรือสุขุมวิท 69 เป็นถนนที่มีบรรยากาศคล้ายเส้นทองหล่อ มีเส้นทางยาวต่อเนื่องไปถึงเส้นรามคำแหง มีการใช้งานที่หลากหลาย ใช้เป็นถนนทางผ่านและเป็นจุดหมายของการเดินทาง มีความหนาแน่นในยามค่ำคืนเนื่องจากเป็นแหล่งรวมความบันเทิงยามค่ำคืนอีกแห่ง
– ถนนพระราม 4 ใช้เป็นเส้นทางเพื่อเข้าสู่ย่านสาทร-สีลม มีเส้นทางเชื่อมกับถนนพระราม 3 และสุขุมวิทบริเวณพระโขนง มีการจราจรที่คล่องตัวกว่าเส้นสุขุมวิท เนื่องจากเป็นถนนสายรองของย่าน สามารถใช้เส้นทางลัดจากซอยสุขุมวิทต่างๆ เพื่อเข้าสู่เส้นพระราม 4 ได้หลายเส้นทาง

จุดขึ้นทางด่วนที่ใกล้ที่สุด คือทางด่วนเฉลิมมหานคร จุดขึ้นทางด่วนอยู่บริเวณ มีระยะทางจากโครงการประมาณ 3.6 กม. ใช้เวลาประมาณ 10 นาที โดยใช้ทางออกโครงการที่ซอยสุขุมวิท 36 (ซอยแสนสวย) เข้าสู่เส้นพระราม 4 บริเวณโรงพยาบาลเทพธารินทร์ เลี้ยวขวาไปยังถนนอาจนรงค์ ผ่านทางถนนกล้วยน้ำไทย เพื่อไปยังจุดขึ้นทางด่วน

เส้นทางออกนอกเมือง สามารถใช้ทางด่วนเฉลิมมหานคร เชื่อมไปทางฝั่งธนบุรี บูรพาวิถีฝั่งตะวันออก หรือเข้าสู่ทางด่วนศรีรีช เพื่อไปยังดอนเมือง รังสิต และนนทบุรี

การเข้าสู่โครงการสามารถเข้ามีเส้นทางหลักจากสุขุมวิท ทั้งทางรถยนต์ส่วนบุคคล และ รถไฟฟ้าสายสีเขียว (BTS) สถานีทองหล่อ มีทางเชื่อมจากสถานีเข้าสู่ตัวอาคารที่ชั้น 2

รถไฟฟ้าสายสีเทา หรือรถไฟฟ้ารางเดียว ที่มีกำหนดการเปิดใช้ในปี 2572 ที่มีเส้นทางผ่านถนนทองหล่อไปถึงวัชรพล สถานีที่ใกล้โครงการมากที่สุดคือ สถานีทองหล่อ ที่บริเวณแยกทองหล่อ (สุขุมวิท 55) ระยะทางจากโครงการประมาณ 350 เมตร

แยกและถนนที่สำคัญ

:::ความอุดมสมบูรณ์::: ทองหล่อเป็นย่านที่มีความอุดมสมบูรณ์มากภายในย่าน ทั้งร้านอาหาร และแหล่งบรรเทิงหลากหลาย อีกทั้งยังรายล้อมไปด้วยเอกมัย, พร้อมพงษ์ และอโศก จึงเป็นย่านที่อยู่อาศัยระดับ Hi-end
โครงการตั้งอยู่บนถนนสุขุมวิท ติดรถไฟฟ้า มี 7-11 ภายในโครงการ ห้างใหญ่ๆในระแวกใกล้เคียง ได้แก่ ดิเอ็มโพเรียม, เอ็มควาเทีย ที่พร้อมพงษ์ และเทอมินอล 21 ที่อโศก อีกทั้งชุมชนชาวญี่ปุ่นในย่านพร้อมพงษ์ก็ขึ้นชื่อด้านอาหาร และ บริการ ทางอโศกก็เป็นแหล่งรวมร้านอาหารนานาชาติที่หลากหลาย
ตัวโครงการติดซอยแสนสบาย สุขุมวิท 36 ภายในซอยมีร้านอาหารตั้งอยู่เป็นช่วงๆ ยาวไปจนทะลุออกเส้นพระราม 4 ที่นับว่าเป็นแหล่งรวมร้านดัง และร้านเก่าแก่ในตำนาน ไปทางขวาก็มี K village, Big C, Lotus และ A square คอมมูนิตี้มอลแห่งใหม่ หรือจะไปซ้ายก็มีสวนเพลินมาร์เก็ตที่รวมร้านอาหารฮิตๆเอาไว้อีกเพียบ
แต่ถ้าไม่อยากไปไกล นอกจากในซอยทองหล่อแล้ว ถัดไปอีกนิดก็คือเอกมัย มีเกตเวย์เอกมัยเป็นจุดนัดพบติดกับบีทีเอสโดยตรง หรือจะดูหนังก็เดินย้อนมาสักหน่อยที่เมเจอร์เอกมัย
ด้านสิ่งอำนวยความสะดวกสำหรับครอบครัวในย่านนี้ก็เต็มไปด้วยโรงเรียนนานาชาติ โรงเรียนชื่อดัง และสถาบันอุดมศึกษา เรื่องสุขภาพก็ไม่ต้องเป็นห่วง เพราะมีโรงพยาบาลชั้นนำอยู่ใกล้ๆอีกหลายโรง

สถานที่สำคัญ
:::การเดินทาง:::

สรุปการเดินทาง สี่แยกอโศก(สุขุมวิท) > ถนน สุขุมวิท > กลับรถ > โนเบิล รีมิกซ์ ทองหล่อ

เริ่มเดินทางจาก สี่แยกอโศก ใช้เส้นทางสุขุมวิท ขับไปทางบางนา

ผ่านสถานี BTS พร้อมพงษ์ ที่ตั้งของ EmDistrict ซ้ายมือเป็น EmQuartier ขวามือเป็น Emporium

เลยสถานีรถไฟฟ้ามาหน่อย ก็จะเจอ Miracle Mall มี Tops market และร้านอาหาร

ผ่านสถานี BTS ทองหล่อ

ผ่านแยก เตรียมกลับรถที่จุดกลับรถแรก

จุดกลับรถอยู่บริเวณหน้าธนาคารกสิกรไทย (สีเขียว) เป็น 3 แยกเข้าซอยสุขุมวิท 40 พอดี

กลับรถมาแล้วให้มุงหน้ากลับไปทางสยาม อีกประมาณ 150 เมตร

ผ่านสถานี BTS ทองหล่ออีกครั้ง ที่ซอยสุขุมวิท 38 ช่วงเย็นถึงดึก จะมีร้านอาหารสไตล์สตรีทฟู๊ด ราคาเบาๆ เปิดกันคึกคัก

ผ่าน 7-11 และ ที่ทำการไปรษณีย์ไทย ใต้สถานี

สุดสถานีก็จะเข้าซอยแสนสบาย สุขุมวิท 36 ก็ชิดซ้ายเตรียมเข้าโครงการได้เลย

เลี้ยวซ้ายเข้าโครงการที่บันไดทางเชื่อมสถานีจุดสุดท้ายพอดี

ถึงแล้วค่ะ โครงการ โนเบิล รีมิกซ์ ทองหล่อ นอกจากการเดินทางโดยรถยนต์ส่วนบุคคลจะง่ายมากๆแล้ว การเดินทางโดยรถไฟฟ้า BTS ก็สะดวกมากเช่นกัน เพราะโครงการตั้งอยู่ตรงสถานีทองหล่อพอดี มีบันไดลงหน้าโครงการ และ ทางเชื่อมเข้าสู่ชั้น 2 โดยตรง
การเดินทางโดย BTS
การเดินทางโดยระบบขนส่งสาธารณะที่แสนสะดวกสบายอย่างรถไฟฟ้า BTS ก็ง่ายดาย โดยโครงการตั้งอยู่ที่สถานีทองหล่อ

ตัวโครงการมีทางเชื่อมโดยตรงจากสถานีรถไฟฟ้า เข้าสู่โครงการที่ชั้น 2

ภาพทางออก 1, 2 โดยทางที่เราจะใช้เดินทางไปยังโครงการในวันนี้ คือ ทางออกที่ 2 (ทางซ้ายมือของภาพ)

ออกมาก็จะเห็น Tommy Ice อยู่ทางขวามือ ปกติแล้วขายชาไข่มุก แต่สาขานี้จัดเต็มขายครบแทบทุกอย่าง ทั้งกาแฟสด เบเกอรี่ ขนมขบเคี้ยว อาจเพราะเป็นเพราะทางออกฝั่งนี้มีร้านนี้อยู่ร้านเดียว

อย่าเพิ่งหิวค่ะ กลับหลังหันมาทางซ้ายมือก่อน ฝั่งนี้เป็นทางออก 2 โดยจะมีบันไดอยู่ด้านซ้าย และทางไปลิฟท์อยู่ด้านขวา เดินตามทางไปลิฟท์ได้เลยค่ะ

ทางไปลิฟท์ก็จะยาวๆหน่อยแบบนี้ จะเห็นตึกม่วงๆทางซ้ายมือ นั่นแหละโครงการ โนเบล รีมิกซ์ ทองหล่อ จุดหมายของเรา

เมื่อเดินมาถึงหน้าลิฟท์ก็เลี้ยวขวาตามทางไปต่อ

เดินตามทางมาอีกนิดก็จะเจอทางแยก โครงการอยู่ทางซ้าย

เมื่อเลี้ยวซ้ายมาก็จะเป็นทางเชื่อมเอาโครงการ โดยขวามือเป็นบันไดทางลง

ถ้าไม่ลงก็ไปซ้าย สามารถเข้าโครงการที่ชั้น 2 ได้เลย

ภาพรวมของอาคาร โนเบิล รีมิกซ์ ทองหล่อ จากทางเชื่อม BTS
:::บริเวณโครงการ:::

ภาพมุมสูงของโครงการ ฝั่งตรงข้ามเป็น รร.นานาชาติ Bangkok Prep ตะวันออกเป็นโครงการเพื่อนบ้าน The ESSE ที่กำลังก่อสร้าง ฝั่งตะวันตกติดกับ Keyne by Sansiri โครงการเพื่อนบ้านอีกเช่นกัน ทิศใต้ติดกับร้านอาหารครัวเวียงจันทร์ ด้านหลังของโครงการฝั่งตะวันตก ส่วนใหญ่เป็นบ้านพักอาศัย 2 ชั้น

โรงเรียนนานาชาติ Bangkok Prep ตรงข้ามกับโครงการฝั่งถนนสุขุมวิท

บรรยากาศฝั่งตะวันตกของโครงการบนถนนสุขุมวิทมุ่งหน้าไปทางอโศก

ติดกับโครงการเลยคือ Keyne by Sansiri

ถัดไปเป็น The Crest ที่ติดกับซอยสุขุมวิท 34

ปากซอยสุขุมวิท 34 มีวินมอเตอร์ไซค์ และป้ายรถเมล์

ภายในซอยมีทั้งร้านอาหารรถเข็น เปิดตอนกลางคืน กลางวันก็มีร้านราเมน และร้านกาแฟอยู่ใกล้ๆปากซอย

ด้านซ้ายของโครงการเป็นซอยสุขุมวิท 34 (ซอยแสนสบาย) สุดซอยทะลุออกพระราม 4

ปากซอยมีวินมอเตอร์ไซค์ เป็นวินใหญ่พอสมควร

ตัวโครงการมีทางออกที่ซอยแสนสบายด้วย ทำให้การเดินทางสะดวกยิ่งขึ้น และด้านหลังของโครงการติดกับร้านอาหาร ครัวเวียงจันทร์

และซอยนภาศัพท์ 1 เป็นซอยตัน มีบ้านเดียวอยู่ภายในซอย

จากซอยนภาศัพท์ 1 จะสามารถเข้าไปยังซอยด้านขวามือของโครงการได้ เป็นซอยตันที่ไม่ทะลุออกสุขุมวิท เป็นที่ตั้งของคริสตจักรในกรุงเทพฯ และร้านอาหารตามสั่ง

เดินเข้าซอยนภาศัพท์ 1 มาอีกนิดก็มีร้านกาแฟ Blue Dye Cafe ในบรรยากาศเงียบสงบ

กลับมาที่เส้นสุขุมวิท ข้ามซอย 36 มาทาง BTS ก็จะพบกับโครงการ The ESSE ที่กำลังก่อสร้าง
ขึ้นมาที่ทางเชื่อมเข้าสถานี ฝั่งทางออก 3, 4 ทางออกซอยทองหล่อ ฝั่งนี้จะมีร้านค้าคึกคักกว่ามาก ทั้งร้านกาแฟ, ร้านตัดผม, ร้านเครื่องสำอาง, ร้านขนม และร้านชาไข่มุก
:::ภายในโครงการ:::

โนเบิล รีมิกซ์ ทองหล่อ เป็นโครงการเชิงพานิชย์ค่อนข้างใหญ่กว่าทั่วๆไป เนื่องจากติดถนนใหญ่และสถานีรถไฟฟ้า จึงเป็นที่ตั้งของสำนักงานขายที่ดูแลหลายๆโครงการในเครือ พื้นที่สำนักงานให้เช่า ร้านค้า และบริการ

เริ่มจากชั้น Ground เพียงเดินเข้ามาจากทางเข้าหลักของโครงการ จะพบกับ 7-11 ด้านในอาคาร

เมื่อขึ้นมาที่ชั้น 2 จากทางเชื่อม BTS จะเจอกับสำนักงาน LEGACY ขนาดใหญ่ มีทั้งร้านค้าสำหรับสมาชิก สำนักงาน และพื้นที่ Co-working Space

ร้าน FaB Hair Relation ร้านทำผมสัญชาติญี่ปุ่นครบวงจร ด้วยผลิตภัณฑ์ และ เทคนิคการทำผมที่ส่งตรงมาจากแดนอาทิตย์อุทัย

และด้านในสุดของชั้น 2 คือ พื้นที่ออกกำลังกายสุดชิคที่สายรักสุขภาพน้อยคนนักจะไม่รู้จัก เพราะเหล่าดารา และ ฟิตเนสไอดอลแทบทุกคนล้วนเคยแวะเวียนไปฟิตหุ่นกันที่นี่ กับ BASE Bangkok Gym สาขาทองหล่อ
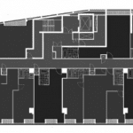
แปลนอาคาร
ผังอาคาร 11 ชั้น

ผัง Lobby ของโครงการ

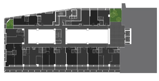
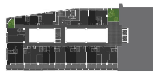
ผังชั้น 5 ของอาคาร 11 ชั้น เป็นส่วนพักอาศัย และพิ้นที่ส่วนกลาง ประกอบด้วย สระว่ายน้ำ และห้องพักแบบ Duplex รวมทั้งหมด 9 ยูนิต

ผังชั้น 6 ของอาคาร 11 ชั้น เป็นส่วนพักอาศัยทั้งหมด 12 ยูนิต แบ่งเป็น 1 Bedroom จำนวน 7 ยูนิต, 2 Bedroom 4 จำนวน ยูนิต และ 3 Bedroom จำนวน 1 ยูนิต

ผังชั้น 7/9/11 ของอาคาร 11 ชั้น เป็นส่วนพักอาศัยทั้งหมด 12 ยูนิต แบ่งเป็น 1 Bedroom จำนวน 7 ยูนิต, 2 Bedroom 4 จำนวน ยูนิต และ 3 Bedroom จำนวน 1 ยูนิต

ผังชั้น 8/10 ของอาคาร 11 ชั้น เป็นส่วนพักอาศัยทั้งหมด 12 ยูนิต แบ่งเป็น 1 Bedroom จำนวน 7 ยูนิต, 2 Bedroom 4 จำนวน ยูนิต และ 3 Bedroom จำนวน 1 ยูนิต
ผังอาคาร 33 ชั้น
X Floor North / X Floor South / Y Floor North / Y Floor South
5th Floor / 6th Floor / 7th, 9th, 11th Floor / 8th, 10th Floor
แบบห้อง
Noble Remix ทองหล่อ มีแบบห้อง 4 แบบ หลายขนาด แบ่งเป็น Studio, 1 Bedroom, 2 Bedroom และ 3 Bedroom ดังนี้
แปลนห้อง 1 ห้องนอน
แปลนห้อง 2 ห้องนอน
แปลนห้อง 3 ห้องนอน
::: Gallery :::

ภาพถ่ายทางเข้าอาคารที่เชื่อมกับ BTS จากโครงการ

ภาพถ่าย Sky Court พื้นส่วนกลางภายนอกอาคาร จากโครงการ

ภาพถ่าย Fitness Room จากโครงการ

ภาพถ่ายบริเวณสระว่ายน้ำที่ชั้น 5 ของอาคาร 11 ชั้น จากโครงการ เป็นสระน้ำล้น 2 ด้านหันเข้าหาอาคาร

ภาพถ่ายภายในห้องตัวอย่างจากโครงการ แสดงความกว้างของห้องที่ออกแบบมาพอดีกับการใช้งาน

ภาพถ่ายภายในห้องอย่าง บริเวณห้องนั่งเล่นมองออกไปยังประตูทางเข้าห้อง จากทางโครงการ

ภาพถ่ายห้องตัวอย่าง บริเวณห้องครัว และห้องนั่งเล่น มองออกมาจากห้องนอนของห้อง 1 Bedroom จากโครงการ ให้เห็ความเชื่อมต่อของพื้นที่ และความลงตัวของฟังก์ชั่น

จบรีวิวไปด้วยภาพถ่ายโดยรวมของห้องตัวอย่าง ภายในห้องนอน มองออกไปยังระเบียง จากโครงการ
ราคา Resales (ก.ค. 61)
เนื่องจากโครงการนี้ได้ SOLD OUT หมดนานแล้ว ดังนั้นห้องที่ปล่อยขายในปัจจุบันจึงเป็นแบบ Resales หรือให้เช่า ซึ่งราคาจะขึ้นอยู่กับ ชั้น สภาพภายในห้อง และการตกแต่งเพิ่มเติมของเจ้าของห้อง หรือผู้เช่าเดิม หากสนใจสามารถติดต่อตัวแทน หรือเจ้าของห้องเพื่อตกลงราคาได้ โดยราคาที่นำเสนอด้านล่างเป็นเพียงการเก็บข้อมูลเท่านั้น
ค่าส่วนกลาง 40 บาท/ตร.ม. : ค่ากองทุน 600 บาท/ตร.ม.
***รายละเอียดอื่นๆกรุณาสอบถามทางโครงการ
หากเพื่อนๆเห็นว่ารีวิวนี้มีประโยชน์ ช่วยกด Like เพื่อเป็นกำลังใจให้ทีมงาน ขอบคุณค่ะ
และมีความคิดเห็นหรือข้อมูลเพิ่มเติมเกี่ยวกับตัวโครงการ สามารถ Comment ได้ที่ด้านล่างของรีวิวค่ะ