
EP.024 รีวิว คอนโด สิริ แอท สุขุมวิท SIRI AT SUKHUMVIT
สวัสดีค่ะผู้อ่าน Homenayoo ทุกคน วันนี้เราจะพาไปชมทำเล คอนโด SIRI AT SUKUMVIT จาก แสนสิริ ตั้งอยู่บนถนนสุขุมวิท ระหว่างซอยสุขุมวิท 38 และ 40 แขวงคลองเตยเหนือ เขตวัฒนา กรุงเทพฯ ใกล้รถไฟฟ้า BTS สถานีทองหล่อ จุดเชื่อมต่อรถไฟฟ้าสายสีเทา(รางเดียว) ในอนาคต ใกล้ EM District และโรงพยาบาลสมิติเวช
สิริ แอท สุขุมวิท เป็นคอนโด High-Rise 34 ชั้น บนพื้นที่โครงการขนาด 3-3-53 ไร่ จำนวนห้องพักอาศัย 460 ยูนิต มีห้องพักให้เลือก 3 แบบ ได้แก่ 1 ห้องนอน, 2 ห้องนอน และ 3 ห้องนอน ขนาด 48.97 – 145.42 ตร.ม. เป็นโครงการสร้างเสร็จพร้อมอยู่
สิ่งอำนวยความสะดวกภายในโครงการครบครัน อาทิ ประกอบด้วย สระว่ายน้ำ, ฟิตเนส, ห้องซาวน่า, สวนหย่อม, ที่จอดรถ, Wifi ส่วนกลาง และระบบรักษาความปลอดภัยตลอด 24 ชม. ประกอบด้วย รปภ., กล้องวงจรปิดโครงการ และประตู Key Card ราคา Resales ปัจจุบันเริ่มต้นประมาณ 7.42 ล้านบาท (เฉลี่ย 202,182 บาท/ตร.ม.) (2561)

| ชื่อโครงการ | สิริ แอท สุขุมวิท SIRI AT SUKHUMVIT |
| เจ้าของโครงการ | แสนสิริ / Sansiri |
| ลักษณะห้องและขนาดห้อง | 1 Bed / 48.97 ตร.ม. 2 Bed / 60 – 94 ตร.ม. 3 Bed / 145.42 ตร.ม. |
| เนื้อที่ทั้งหมด | 3 ไร่ 3 งาน 53 ตร.ว. |
| จำนวนตึก | 1 อาคาร |
| จำนวนชั้น | 34 ชั้น |
| จำนวนห้อง | 460 ยูนิต |
| ที่จอดรถทั้งหมด | ประมาณ 300 คัน |
| โซน | สุขุมวิทช่วงกลาง 25-71, ทองหล่อ, เอกมัย, พระโขนง |
| ขนส่งสาธารณะ | รถไฟฟ้า BTS สถานีทองหล่อ (150 ม.) |
| รถโดยสารที่ผ่าน | n/a |
| ที่ตั้ง | ถ.สุขุมวิท (ระหว่าง สุขุมวิท ซ.38 และ 40) เขตคลองเตย กรุงเทพฯ |
| กำหนดการ | n/a |
| ปีที่สร้างเสร็จ | พ.ศ. 2556 |
| ราคา | เริ่มต้น 7,420,000 บาท (Resales ก.ค. 61) |
| ราคาเฉลี่ยต่อ ตร.ม | เริ่มต้น 202,182 บาท/ตร.ม. |
| สถานที่สำคัญใกล้เคียง |
|
| สิ่งอำนวยความสะดวก | – สระว่ายน้ำ – ฟิตเนส – ซาวน่า – เจ้าหน้าที่รักษาความปลอดภัย – กล้องวงจรปิดโครงการ – ประตู Key Card – สวนหย่อม – ลิฟท์ 6 ตัว – Wi-Fi Internet บริเวณส่วนกลาง |
| จุดเด่นของโครงการ | คอนโดมิเนียมระดับพรีเมี่ยมของแสนสิริ ที่มีจุดเด่นในด้านทำเลที่ตั้ง เนื่องจากอยู่ติดถนนสุขุมวิท ซึ่งเป็น Prime Area ใจกลางย่านธุรกิจการค้าที่สำคัญของเมืองไทยและอยู่ห่างจากทางขึ้น BTS ทองหล่อเพียง 10 เมตร เท่านั้น |
คอนโดใกล้ BTS ทองหล่อ ติดถนนสุขุมวิท ใกล้ BTS ทองหล่อ
:::ที่ตั้งโครงการ:::
ถ.สุขุมวิท (ระหว่าง สุขุมวิท ซ.38 และ 40) เขตคลองเตย กรุงเทพฯ
จากแผนที่ของทางโครงการ Siri @สุขุมวิท ตั้งอยู่บนถนนสุขุมวิทฝั่งซอยเลขคู่ ระหว่าง ซ.สุขุมวิท 38 และ 40 ใกล้รถไฟฟ้า BTS ใกล้ ซ.ทองหล่อ และ Major เอกมัย ตั้งอยู่บนถนนเส้นหลัก มีการเดินทางที่สะดวก อุดมสมบูรณ์ เต็มไปด้วยร้านอาหาร และ สถานที่ท่องเที่ยว ทำกิจกรรม

:::การเดินทางโดยรถยนต์::: โครงการ Siri @สุขุมวิท ตั้งอยู่บนถนนสุขุมวิท ระหว่าง ซ.สุขุมวิท 38 และ 40 ย่านทองหล่อ ก่อนถึงแยกทองหล่อ จึงได้เปรียบด้านการเดินทางโดยรถยนต์ ในการเดินทางเข้าโครงการก็ง่ายเพราะมีจุดกลับรถอยู่ที่ซอย 40 ใกล้กลับโครงการพอดี มีถนนเส้นสำคัญรอบๆโครงการ ดังนี้
– ถนนสุขุมวิท ถนนหน้าโครงการ มีเส้นทางเชื่อมศูนย์กลางธุรกิจย่านเพลินจิต – ชิดลม เข้ากับย่านอุตสาหกรรมฝั่งตะวันออก ตั้งแต่บางนา สมุทรปราการ ไปจนถึงชลบุรี
– ถนนเพชรบุรีตัดใหม่ เป็นถนนคู่ขนานระหว่าง สุขุมวิท และ พระราม 9 มีเส้นทางเชื่อมพัฒนาการไปถึงเขตพระนคร ที่แยกอุรุพงษ์ มีการใช้งานเป็นเส้นทางเข้า – ออกเมือง ย่านเอกมัย ทองหล่อ อโศก เพลินจิต และ ชิดลม
– ถนนเอกมัย หรือสุขุมวิท 69 มีเส้นทางเชื่อมสุขมวิทกับเพชรบุรีเช่นเดียวกับทองหล่อ แต่มีเส้นทางยาวข้ามแยกเอกมัยเหนือไปต่อกับเส้นอื่นๆ ผ่านลาดพร้าว รามอินทรา จนถึงสายไหม
– ถนนพระราม 4 เชื่อมต่อกับโครงการผ่านซอยสุขุมวิท 40 มีเส้นทางเชื่อมสุขุมวิทย่านพระโขนง ผ่านสาทร – สีลม ไปจนถึงหัวลำโพง

จุดขึ้นทางด่วนที่ใกล้ที่สุด คือทางด่วนเฉลิมมหานคร มีเส้นทางเชื่อมไปทางฝั่งธนบุรี บูรพาวิถีฝั่งตะวันออก จุดขึ้นทางด่วนห่างจากโครงการประมาณ 4.2 กม. ใช้เวลาประมาณ 8 นาที

นอกจากนี้ก็ยังสามารถใช้ทางด่วนศรีรีช เพื่อไปยังดอนเมือง รังสิต และนนทบุรี จุดขึ้นทางด่วนห่างจากโครงการประมาณ 4.1 นาที ระยะทางประมาณ 10 กม.

การเดินทางโดยรถไฟฟ้าสายสีเขียว (BTS) สถานีทองหล่อ ห่างจากโครงการเพียง 150 เมตร ห่างจากห้างระดับสูงย่านพร้อมพงษ์เพียง 1 สถานี เชื่อมต่อกับใต้ดิน (MRT) ได้ที่สถานีอโศกเพียง 2 สถานี และมีเส้นทางวิ่งต่อเดียวไปจนถึง สยาม และ จักตรุจักร

รถไฟฟ้าสายสีเทา หรือรถไฟฟ้ารางเดียว ในอนาคต มีกำหนดการเปิดใช้ในปี 2572 ที่มีเส้นทางผ่านถนนทองหล่อไปถึงวัชรพล สถานีที่ใกล้โครงการมากที่สุดคือ สถานีทองหล่อ ที่บริเวณแยกทองหล่อ ระยะทางจากโครงการประมาณ 150 เมตร

แยกและถนนที่สำคัญ

:::ความอุดมสมบูรณ์::: โครงการตั้งอยู่ระหว่างซอยสุขุมวิท 38 และ 40 ก่อนถึงแยกทองหล่อ ทำให้การเดินทางเข้าซอยทองหล่อ แหล่งรวมร้านอาหาร 24 ชม. สะดวก
บนเส้นสุขุมวิทเองในระยะเดินเท้ารอบๆโครงการก็มีร้านอาหารตลอดเส้นทางไปจนถึงสถานีรถไฟฟ้า ทั้งริมสุขุมวิททั้ง 2 ฝั่ง และในซอย 38 ที่มีทางเข้า – ออกจากโครงการโดยตรงอีกทาง จากโครงการด้วยรถไฟฟ้าเพียง 1 สถานีก็ถึงเอกมัยที่มีทั้ง Gateway เอกมัย และ Major เอกมัย หรือจะไปฝั่งพร้อมพงษ์ก็มีห้างหรูอย่าง Emporium และ EmQuartier 2 สถานีถึง Terminal21 และ Korean town ที่สถานีอโศก นอกจากนี้ยังต่อเดียวถึงเพลินจิต ชิดลม สยาม และหมอชิต (จักตรุจักร)
ทางเส้นพระราม 4 เองก็เต็มไปด้วยร้านเก่าแก่บรรยากาศชิลๆบ้านๆ มีทั้ง BigC, Tesco Lotus, K-village และ A square สามารถไปออกสีลม และเยาวราชได้
นอกจากแหล่งของกินแล้ว สำหรับคนใส่ใจสุขภาพ ทั้งพระราม 4 และ ทองหล่อ ก็ยังมีสตูดิโอสำหรับออกกำลังกายหลายแห่ง มีโรงพยาลชื่อดังระดับนานชาติอย่างสมิติเวช และ กล้วยน้ำไทย ด้านการศึกษาก็มีทั้งโรงเรียนนานาชาติ และมหาวิทยาลัย

สถานที่สำคัญ

สรุปการเดินทาง สี่แยกอโศก(สุขุมวิท) > ถนน สุขุมวิท > กลับรถหน้า ซ.สุขุมวิท 40 > สิริ แอท สุขุมวิท

เริ่มต้นการเดินทางจาก สี่แยกอโศก ใช้เส้นทางผ่าน ถ.สุขุมวิท มุ่งหน้าไปทางบางนา ต่อเดียวถึง

ผ่านสถานี BTS พร้อมพงษ์ ที่ตั้งของ EmQuartier และ Emporium

เลยสถานีพร้อมพงษ์มาหน่อย ก็จะเจอ Miracle Mall มี Tops market และร้านอาหาร

ผ่านสถานี BTS ทองหล่อ

ผ่านแยกทองหล่อไปก็ชิดขวา จุดกลับ หน้าซอยสุขมวิท 40 อยู่ถัดไปข้างหน้า

จุดกลับรถอยู่บริเวณหน้าธนาคารกสิกรไทย (สีเขียว)

จุดกลับรถเป็น 3 แยกเข้า ซ.สุขุมวิท 40 พอดี ปากซอยเป็น T-One อาคารสำนักงานที่กำลังก่อสร้าง ถัดไปเป็น สิริ แอท สถขถมวิท

กลับรถมาให้ชิดซ้ายไว้เลย เพราะโครงการอยู่ข้างหน้านี้เอง

เลี้ยวซ้ายเข้าโครงการ
ถึงแล้วค่ะ โครงการ สิริ แอท สุขุมวิท

ตัวอาคารโครงการ สิริ แอท สุขุมวิท
การเดินทางโดย BTS

การเดินทางด้วยรถไฟฟ้า BTS เริ่มที่สถานีทองหล่อ สถานีที่ใกล้กับโครงการมากที่สุด มีระยะเดินเท้าเพียง 150 ม.

ใช้ทางออกที่ 4 เพื่อลงไปยังสุขุมวิทฝั่งเลขคู่ บริเวณหน้าซอยสุขุมวิท 38 ตรงข้ามซอยทองหล่อ (สุขุมวิท 55)

ออกจากสถานีมาจะเจอร้านค้ามากมาย ทางออกที่ 4 อยู่ทางขวามือ

ลงบันไดมาก็เดินตรงไปทางซอยสุขุมวิท 40 ไปทางเอกมัย ด้านหลังบันได้คือซอยสุขุมวิท 38

ด้านหน้าบันไดมีป้อมตำรวจ และแยกทองหล่อ

เลยป้อมตำรวจมาที่แยกทองหล่อ มีทางม้าลายให้ข้ามไปซอยทองหล่อได้เลย ไม่ต้องเดินอ้อมขึ้นทางเชื่อม BTS

เดินตรงไปจะผ่านร้านค้าตลอดทางก่อนถึงโครงการ ตั้งแต่ร้านขายยา, ร้านตัดผม, ร้านนวดไทย, ร้านหูฉลามสุขุมวิท, คลินิกทันตกรรม และ ร้านสะดวกซื้อที่ใกล้กับโครงการมากที่สุด JP minimart ภายในอาคาร SK tower แมนชั่น 8 ชั้นก่อนถึงโครงการ

ผ่าน SK ทาวเวอร์ มาจะเป็นโชว์รูมเฟอร์นิเจอร์ ที่มีร้านกาแฟเล็กๆตั้งอยู่ติดกับโครงการ

เลยโชว์รูมมาก็เลี้ยวซ้ายเข้าโครงการได้เลย

ถึงแล้ว Siri @ สุขุมวิท

ภาพถ่ายโครงการจากบนสถานีรถไฟฟ้า BTS
:::บริเวณโครงการ:::

สิริ แอท สุขุมวิท ตั้งอยู่ระหว่างซอยสุขุมวิท 38 และ 40 ทิศเหนือติดถนนสุขุมวิท ฝั่งตรงข้ามคือซอยสุขุมวิท 57 และ โรงแรม Marriott ทิศตะวันออกติดกับโครงการ T-One อาคารสำนักงานที่กำลังก่อสร้าง และ Condo One ด้านหลังติดกับโรงงานเสื้อยืด ทิศตะวันตกมีทางออกสู่ซอย 38 ติดกับ โชว์รูมเฟอร์นิเจอร์ และ SK ทาวเวอร์ แมนชั่น 8 ชั้น ที่ด้านหน้า ด้านข้างติดกับ hostel และ สปา ฝั่งซอย 38

ตรงข้ามโครงการเป็นซอยสุขุมวิท 57 ที่ตั้งของ Bangkok Marriott Hotel Sukumvit

ลองข้ามถนนมาที่ซอยสุขุมวิท 57 กันก่อน โรงแรม Marriott ที่เห็นสูงตระง่านคู่กับโครงการจากบนสถานี ตั้งอยู่หัวมุมปากซอย

ตรงข้ามโรงแรมเป็นร้านอาหารญี่ปุ่นสไตล์ Izagaya หลายร้านติดกันเป็นเวิ้ง ตอนเช้าเปิดเป็นตลาดสด

เดินย้อนกลับไปทางสถานีเพื่อสำรวจทำเลฝั่งเลขคี่กันเสียหน่อย เมื่อข้ามทางม้าลายหน้าแยกทองหล่อมาก็มีร้านอาหารตลอดทางยาวไปจนถึงสุขุมวิท 57

เริ่มจากบะหมี่คนแซ่ลีเจ้าดัง เปิดตั้งแต่สายๆถึงดึก, ห้าสิบห้าโภชณา ที่เปิดตอนกลางคืน, ก๋วยเตี๋ยวลูกชิ้นปลาแซว เปิดตั้งแต่เช้า ขายทั้งก๋วยเตี๋ยว ข้าวต้ม โจ๊ก และ ขนมเค้ก ถัดไปเป็นร้านราเมนนานาเซะที่มีสาขาทั้ง Gateway เอกมัย, BTS อ่อนนุช และ อโศก เปิดตั้งแต่มื้อกลางวันเป็นต้นไป

สุดท้ายหัวมุมซอยสุขุมวิท 57 มี 7-11 ที่ใกล้โครงการมากที่สุด การข้ามถนนในช่วงนี้ก็ไม่ยาก และ มีทางม้าลายที่หน้าซอย 40 ด้วย

ข้ามกลับมาที่ฝั่งเลขคู่ ตรงข้ามซอยทองหล่อคือ ซอยสุขุมวิท 38 เป็นซอยตัน แต่มีซอยย่อยเชื่อมไปสุขุมวิท 36 และ 40 ได้ และมีทางเข้า – ออกโครงการทางที่ 2 อยู่ด้วย

ปากซอย 38 มีโรงรับจำนำ และวินมอเตอร์ไซค์

เดินเข้ามาในซอยอีกนิดมีโรงอาอาหารใต้อาคารสุทธีแมนชั่น (Suti mansion) เปิดตั้งแต่มื้อเย็นเป็นต้นไป มีอาหารแทบทุกประเภท
แปลนอาคาร

ผังแม่บทอาคารโดยรวมของโครงการ : สิริ แอท สุขุมวิท มีทางเข้า – ออก 2 ทาง คือ ทางถนนสุขุมวิท และ ซอยสุขุมวิท 38

ผังอาคารชั้น 5th : พื้นที่พักอาศัยเริ่มที่ชั้น 5 จำนวน 8 ยูนิต แบ่งเป็นห้องขนาด 1 Bedroom 6 ยูนิต และ 2 Bedroom 2 ยูนิต โดยชั้น 1 – 4 เป็น Lobby ของโครงการ และ ที่จอดรถตั้งแต่ชั้น 1 – 5

ผังอาคารชั้น 6th : เป็นพื้นที่ส่วนกลาง และ ห้องพักอาศัย ประกอบด้วย สระว่ายน้ำ, สวนหย่อม, ห้องออกกำลังกาย, และ Jacuzzi ห้องพักอาศัยจำนวน 18 ยูนิต แบ่งเป็นห้องขนาด 1 Bedroom 11 ยูนิต, 2 Bedroom 6 ยูนิต และ 3 Bedroom 1 ยูนิต

ผังอาคารชั้น 7th – 23rd : เป็นห้องพักอาศัยจำนวน 18 ยูนิต/ชั้น แบ่งเป็นห้องขนาด 1 Bedroom 11 ยูนิต, 2 Bedroom 6 ยูนิต และ 3 Bedroom 1 ยูนิต

ผังอาคารชั้น 25th – 28th : เป็นห้องพักอาศัยจำนวน 16 ยูนิต/ชั้น แบ่งเป็นห้องขนาด 1 Bedroom 9 ยูนิต, 2 Bedroom 6 ยูนิต และ 3 Bedroom 1 ยูนิต

ผังอาคารชั้น 29th – 30th : เป็นห้องพักอาศัยจำนวน 14 ยูนิต/ชั้น แบ่งเป็นห้องขนาด 1 Bedroom 9 ยูนิต, 2 Bedroom 4 ยูนิต และ 3 Bedroom 1 ยูนิต

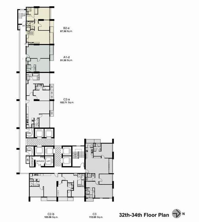
ผังอาคารชั้น 32nd – 34th : เป็นห้องพักอาศัยจำนวน 5 ยูนิต/ชั้น แบ่งเป็นห้องขนาด 1 Bedroom 1 ยูนิต, 2 Bedroom 1 ยูนิต และ 3 Bedroom 3 ยูนิต
แบบห้อง
Siri @ Sukumvit มีแบบห้อง 3 แบบ หลายขนาด แบ่งเป็น 1 Bedroom 2 Bedroom และ 3 Bedroom ดังนี้

แปลนห้อง 1 Bedroom : TYPE A

แปลนห้อง 2 Bedroom : TYPE B1

แปลนห้อง 2 Bedroom : TYPE B2

แปลนห้อง 2 Bedroom : TYPE B3

แปลนห้อง 2 Bedroom : TYPE B4

แปลนห้อง 3 Bedroom : TYPE C1

แปลนห้อง 3 Bedroom : TYPE C2

แปลนห้อง 3 Bedroom : TYPE C3
:::GALLERY:::

ภาพถ่ายภายใน Lobby ที่ชั้น 1 จากทางโครงการ

ภาพถ่ายภายใน Lobby ที่ชั้นบน จากทางโครงการ

ภาพถ่ายบริเวณสระว่ายน้ำที่ชั้น 6 จากทางโครงการ มองไปทาง Fitness room

ภาพถ่ายบริเวณสระว่ายน้ำที่ชั้น 6 จากทางโครงการ มองไปออกไปนอกอาคาร

ภาพถ่ายภายในห้องฟิตเนส จากทางโครงการ มองไปออกไปนอกอาคาร

ภาพถ่ายภายในห้องนั่งเล่นของห้อง resales ขนาด 1 Bedroom จากทางโครงการ


ภาพถ่ายภายในห้องนั่งเล่นของห้อง resales ขนาด 2 Bedroom จากทางโครงการ

ภาพถ่ายภายในห้องครัว และ ห้องรับประทานอาหารของห้อง resales ขนาด 2 Bedroom จากทางโครงการ

ภาพถ่ายภายในห้องครัวของห้อง resales ขนาด 2 Bedroom จากทางโครงการ

ภาพถ่ายภายในห้องนอนหลักของห้อง resales ขนาด 2 Bedroom จากทางโครงการ

ภาพถ่ายภายในห้องคนอนรองของห้อง resales ขนาด 2 Bedroom จากทางโครงการ

ภาพถ่ายภายในห้องน้ำของห้อง resales ขนาด 2 Bedroom จากทางโครงการ มองออกไทางห้องนั่งเล่นได้ผ่านหน้าต่างกระจกเข้ามุม

ภาพถ่ายภายในห้องน้ำส่วน Shower ของห้อง resales ขนาด 2 Bedroom จากทางโครงการ

ภาพถ่ายภายในห้องนั่งเล่นของห้อง resales ขนาด 3 Bedroom จากทางโครงการ



ภาพถ่ายภายในห้องครัว และห้องทานข้าวของห้อง resales ขนาด 3 Bedroom จากทางโครงการ




ภาพถ่ายภายในห้องนอน 1, 2 และ 3 ของห้อง resales ขนาด 3 Bedroom จากทางโครงการ



ภาพถ่ายภายในห้องน้ำของห้อง resales ขนาด 3 Bedroom จากทางโครงการ
ปิดรีวิวในวันนี้ด้วยภาพจำรองอาคารภายนอกโดยรวมของโครงการ สิริ แอท สุขุมวิท จากทางโครงการ
ราคา Resales (ก.ค. 61)
เนื่องจากโครงการนี้ได้ SOLD OUT ขายหมดนานแล้ว ดังนั้นห้องที่ปล่อยขายในปัจจุบันจึงเป็นแบบ Resales หรือให้เช่า ซึ่งราคาจะขึ้นอยู่กับ ชั้น สภาพภายในห้อง และการตกแต่งเพิ่มเติมของเจ้าของห้อง หรือผู้เช่าเดิม หากสนใจสามารถติดต่อตัวแทน หรือเจ้าของห้อง เพื่อตกลงราคาได้ โดยราคาที่นำเสนอด้านล่าง เป็นเพียงการเก็บข้อมูลเท่านั้น
ค่าส่วนกลาง 40 บาท/ตร.ม./เดือน : ค่ากองทุน 500 บาท/ตร.ม.
***รายละเอียดอื่นๆกรุณาสอบถามทางโครงการ
สรุป
ทำเลที่ตั้งโครงการ – Siri @สุขมวิท ตั้งอยู่บนถนนสุขุมวิท ฝั่งเลขคู่ ใกล้ปากซอยสุขุมวิท 40 มีบรรยากาศชุมชนจากเส้นพระราม 4 ใกล้ซอยทองหล่อ ปัจจุบันมีคอนโดเพื่อนบ้านบนเส้นสุขุมวิทหลายโครงการ สะดวกสบายใกล้รถไฟฟ้า BTS มีร้านค้า, ร้านอาหาร และแหล่งพักผ่อน ผลัดเปลี่ยนตอลด 24 ชม.
หากเพื่อนๆเห็นว่ารีวิวนี้มีประโยชน์ ช่วยกด Like เพื่อเป็นกำลังใจให้ทีมงาน ขอบคุณค่ะ
และมีความคิดเห็นหรือข้อมูลเพิ่มเติมเกี่ยวกับตัวโครงการ สามารถ Comment ได้ที่ด้านล่างของรีวิวค่ะ