
คอนโด เวีย โบทานี สุขุมวิท 47 VIA BOTANI ใกล้รถไฟฟ้า BTS ทองหล่อ
VIA BOTANI สุขุมวิท 47 จาก แสนสิริ ตั้งอยู่ในซอยสุขุมวิท 47 ถนนสุขุมวิท แขวงคลองตันเหนือ เขตวัฒนา กทม. ใกล้รถไฟฟ้า BTS ทองหล่อ, Emporium, EmQuatier, Terminal 21, K Village, Gateway เอกมัย, สวนเบญจสิริ, รพ.สมิติเวช สุขุมวิท, รพ.เทพธารินทร์ และ รพ.สุขุมวิท
เวีย โบทานี สุขุมวิท 47 เป็นคอนโด Low Rise 8 ชั้น 1 อาคาร พื้นที่โครงการขนาด 2-0-16 ไร่ ห้องพักอาศัยจำนวน 137 ยูนิต มีห้องพักให้เลือกแบบ 1 ห้องนอน, 2 ห้องนอน, 3 ห้องนอน ขนาดเริ่มต้น 33.00-126.50 ตร.ม. ขึ้นไป สร้างเสร็จพร้อมอยู่ปี 2555
สิ่งอำนวยความสะดวกภายในโครงการครบครัน อาทิ โถงต้อนรับ, ห้องจดหมาย, สระว่ายน้ำ, ฟิตเนส, ซาวน่า, สวนพักผ่อน, ลิฟท์โดยสาร, ประตูคีย์การ์ด, ที่จอดรถ, กล้องวงจรปิด และ รปภ.24 ชม. ราคาเริ่มต้น 4.41 ล้านบาท*

| ชื่อโครงการ | เวีย โบทานี VIA BOTANI |
| เจ้าของโครงการ | แสนสิริ – SANSIRI |
| ลักษณะห้องและขนาดห้อง | – 1 Bed / 33-55 .50 ตารางเมตร – 2 Bed / 70.50-75 ตารางเมตร – 3 Bed / 126.50 ตารางเมตร |
| เนื้อที่ทั้งหมด | 2 ไร่ 16.00 ตร.ว. |
| จำนวนตึก | 1 อาคาร |
| จำนวนชั้น | 8 ชั้น |
| จำนวนห้อง | 137 ยูนิต |
| ที่จอดรถทั้งหมด | n/a |
| โซน | สุขุมวิทช่วงกลาง 25-71, ทองหล่อ, เอกมัย, พระโขนง |
| ขนส่งสาธารณะ | รถไฟฟ้า BTS ทองหล่อ 500 เมตร |
| รถโดยสารที่ผ่าน | n/a |
| ที่ตั้ง | ซอยสุขุมวิท 47 ถนนสุขุมวิท แขวงคลองเตยเหนือ เขตวัฒนา กรุงเทพมหานคร |
| กำหนดการ | n/a |
| ปีที่สร้างเสร็จ | พ.ศ. 2555 |
| ราคา | 4,410,000 – 37,800,000 บาท (ณ. วันที่ 24 ตค. 55) |
| ราคาเฉลี่ยต่อ ตร.ม | เริ่มต้น 133,000 บ./ตร.ม. |
| สถานที่สำคัญใกล้เคียง | 1. วิลล่า มาร์เก็ต 2. โรงพยาบาล สมิติเวช 3. ห้่างสรรพสินค้า ดิ เอ็มโพเรี่ยม 4. เจ-อเวนิว |
| สิ่งอำนวยความสะดวก | – สระว่ายน้ำ, ฟิตเนส – รปภ., กล้องวงจรปิดโครงการ, ประตู Key Card – ร้านค้า – สวนหย่อม – Wi-Fi Internet บริเวณ Lobby (และสระว่ายน้ำ) |
| จุดเด่นของโครงการ | ด้วยรูปแบบสถาปัตยกรรมที่มีลูกเล่น ในการสร้างโอบล้อมต้นไม้ใหญ่ แบ่งแยกส่วนที่เป็นพื้นที่จอดรถลงใต้ดิน เพิ่มมุมมองที่แตกต่างด้วย Open Space ช่วยสร้างบรรยากาศการใช้ชีวิตให้รายล้อมไปด้วยพื้นที่สีเขียวอันร่มรื่น และอีกหนึ่งความพิเศษเฉพาะตัว คือ การเป็น Low Rise Condominium ซึ่งเป็นคุณสมบัติที่เกิดขึ้นได้ยากมาก สำหรับคอนโดมิเนียมใจกลางเมือง เพราะด้วยความสูงที่พอเหมาะ ผสานการออกแบบที่ให้ความรู้สึก เหมือนคุณได้ใช้ชีวิตอย่างมีความสุข อยู่ภายในสถาปัตยกรรมชิ้นเอกที่ซ่อนตัวอยู่ในความรื่นรมย์ และได้ความสงบเป็นส่วนตัวมากยิ่งขึ้นอีกระดับ |
คอนโดใกล้ BTS พร้อมพงษ์ ซอยสุขุมวิท 24 ที่ตั้งโครงการ
ซอยสุขุมวิท 47 ถนนสุขุมวิท แขวงคลองเตยเหนือ เขตวัฒนา กรุงเทพมหานคร
คลิก เพื่อดูแผนที่ขนาดใหญ่
:: ภาพประกอบการเดินทาง ::
พิกัด Google : 13.731409, 100.574733
การเดินทางโดยรถยนต์ส่วนตัว เริ่มจากแยกอโศกมนตรี ถนนสุขุมวิท ⇒ BTS อโศก ⇒ BTS พร้อมพงษ์ ⇒ ซอยสุขุมวิท 47 ตรงไป 400 เมตรถึงโครงการ Via Botani สุขุมวิท 47

ภาพประกอบการเดิน เริ่มจากแยกอโศกฯ ผ่าน BTS อโศกมุ่งหน้าไปพร้อมพงษ์ จากแยกตรงไปประมาณ 1.7 กิโลเมตร ถึงซอยสุขุมวิท 47 ค่ะ

ผ่านแยกสวัสดิี

ผ่าน BTS พร้อมพงษ์ ,Em Quartier และEm Porium
พอเจอ Rain Hill ให้ชิดซ้าย แล้วเลี้ยวเข้าซอยสุขุมวิท 47 ตรงไปอีก 400 เมตรถึงโครงการค่ะ
ถึงโครงการ Via Botani สุขุมวิท 47
:: บริเวณโครงการ ::
ศูนย์การค้า และอื่นๆ
ศูนย์การแพทย์
สถานศึกษา
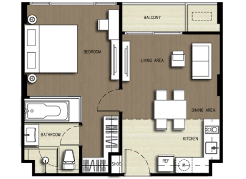
แปลนห้อง
Type : 1B / 1C / 1D / 1E / 1E-1





Type : 1F / 1F’ / 1F-1 / 1G / 1G-1





Type : 1G’ / 1H / 1I / 1I-1 / 1I’
แกลเลอรี่
สนใจติดต่อรายละเอียดเพิ่มเติมได้ที่
Call Center : 1685
E-mail : viabotani@sansiri.com
Website : http://www.sansiri.com/th/project/viabotani/th/