logo

EP.1707 รีวิว THE LINE พหลฯ-ประดิพัทธ์ คอนโดพร้อมอยู่ ใกล้ BTS สะพานควาย เพียง 550 เมตร เริ่ม 4.29 ล้าน*

โพสโดย : pure / วันที่ : 5 June 2020

EP.1707 รีวิว คอนโด เดอะ ไลน์ พหลฯ-ประดิพัทธ์ THE LINE Phahol-Pradipat ใกล้รถไฟฟ้า BTS สะพานควาย เพียง 550 เมตร เริ่ม 4.29 ล้าน*

The Line Pdp-Cover

สวัสดีผู้อ่านชาว Homenayoo ทุกท่านค่ะ วันนี้จะพามาอัปเดตโครงการสร้างเสร็จพร้อมอยู่ กับโครงการ The Line พหลฯ-ประดิพัทธ์ จาก แสนสิริ ร่วมกับ BTS ที่ตั้งโครงการอยู่ติดถนนประดิพัทธ์ ใกล้ BTS สะพานควาย เพียง 550 ม.

ใกล้ทางด่วนศรีรัช, ตลาดนัดจตุจักร, ตลาดอตก., สวนจตุจักร, สวนรถไฟ, Central ลาดพร้าว, Union Mall, Big C สะพานควาย และ โรงพยาบาล เปาโลเมมโมเรียล

เดอะ ไลน์ พหลฯ-ประดิพัทธ์ เป็นคอนโด High Rise 46 ชั้น 1 อาคาร และอาคารส่วนกลางสูง 2 ชั้น มีทั้งหมด 981 ยูนิต + ยูนิตร้านค้า 1 ยูนิต บนที่ดินประมาณ 5 ไร่

มีแบบห้องให้เลือกหลากหลาย ทั้ง 1 Bedroom ขนาด 26.25 – 40.75 ตร.ม., 2 Bedrooms ขนาด 51.50 – 67.00 ตร.ม. และ 3 Bedrooms : 79.00 – 111.50 ตร.ม. ขายแบบ Fully Fitted ความสูงฝ้าเพดาน 2.7 ม.โครงการสร้างเสร็จพร้อมอยู่

สิ่งอำนวยความสะดวกในโครงการครบครัน อาทิ Lobby, Mailbox, สระว่ายน้ำ infinity Edge Pool ระบบเกลือ, สระว่ายน้ำเด็ก, Stream & Sauna, Jacuzzi, Lap Pool, ห้องออกกำลังกาย, สวนพักผ่อน, Co-Kitchen, Co-Working Space, Outdoor Dining, Kid’s Yard,

ระบบรักษาความปลอดภัย Face Scan, Access Card Control, CCTV พร้อมเจ้าหน้าที่รักษาความปลอดภัยตลอด 24 ชม. ในราคาเริ่มต้น 4.29 ล้านบาท

Screen Shot 2563-05-29 at 23.43.01

ลงทะเบียนรับสิทธิพิเศษ คลิก www.sansiri.com/condominium/theline-phahon-pradipat/th/


คอนโด The Line ทำเลอื่นๆ ที่น่าสนใจ…
The Line สาทร
The Line ราชเทวี
The Line พหล-ประดิพัทธ์
The Line พหลโยธิน พาร์ค
The Line จตุจักร-หมอชิต
The Line พระราม 9
The Line อโศก-รัชดา
The Line สุขุมวิท 71
The Line สุขุมวิท 101
The Line วงศ์สว่าง




ชื่อโครงการ เดอะ ไลน์ พหลฯ-ประดิพัทธ์ THE LINE Phahol-Pradipat
เจ้าของโครงการ
  • บริษัท แสนสิริ จำกัด (มหาชน)
  • บริษัท บีทีเอส กรุ๊ป โฮลดิ้งส์ จำกัด (มหาชน)
เนื้อที่ทั้งหมด ประมาณ 5 ไร่
จำนวนตึก อาคารพักอาศัย 1 อาคาร, อาคาร Club House สูง 2 ชั้น 1 อาคาร
จำนวนชั้น 46 ชั้น
จำนวนห้อง 981 + 1 ยูนิตร้านค้า
ลักษณะห้องและขนาดห้อง
  • 1 Bedroom : 26.25 – 40.75 ตร.ม.
  • 2 Bedrooms : 51.50 – 67.00 ตร.ม.
  • 3 Bedrooms : 79.00 – 111.50 ตร.ม.
ที่จอดรถทั้งหมด 50% รวมจอดซ้อนคัน
จำนวนลิฟท์ 6 ตัว
โซน ประดิพัทธ์, สะพานควาย
ขนส่งสาธารณะ
  • รถไฟฟ้า BTS สะพานควาย 550 เมตร
  • ใกล้ทางด่วน
รถโดยสารที่ผ่าน รถเมล์สาย 3, 9, 97, 117
ที่ตั้ง ซอยประดิพัทธ์ 21 แขวงสามเสนใน เขตพญาไท กทม.
กำหนดการ สร้างเสร็จพร้อมอยู่
ปีที่สร้างเสร็จ สร้างเสร็จพร้อมอยู่
ราคา เริ่มต้น 4.29 ล้านบาท
ราคาเฉลี่ยต่อ ตร.ม ประมาณ 155,000 บาท/ ตร.ม.
ค่าส่วนกลางและกองทุน
  • ค่าส่วนกลาง 52 บาท/ตร.ม./เดือน (ตั้งแต่ปี 2565)
  • ค่ากองทุน 500 บาท/ตร.ม
สถานที่สำคัญใกล้เคียง ตลาดและห้างสรรพสินค้า

  • Aqua 400 ม.
  • Big C สะพานควาย 450 ม.
  • Tesco Lotus Express 600 ม.
  • La Villa Aree 1.4 กม.
  • JJ Mall 2 กม.
  • ตลาดนัดจตุจักร 2 กม.
  • Union Mall 3.3 กม.
  • Central ลาดพร้าว 3.7 กม.

สถานพยาบาล

  • รพ.เปาโล เมโมเรียล 550 ม.
  • รพ.ประสานมิตร 850 ม.
  • รพ.พญาไท 2 2.6 กม.

อื่นๆ

  • สวนจตุจักร 2 กม.
  • สวนสมเด็จพระนางเจ้าสิริกิติ์ 2.4 กม.
  • สวนวชิรเบญจทัศ 3.6 กม.
สิ่งอำนวยความสะดวก
  • Lobby
  • Mailbox
  • สระว่ายน้ำ
  • สระว่ายน้ำเด็ก
  • Stream & Sauna
  • Jacuzzi
  • Lap Pool
  • ห้องออกกำลังกาย
  • สวนพักผ่อน
  • Co-Kitchen
  • Co-Working Space
  • Outdoor Dining
  • Kid’s Yard
  • Game Room
  • Access Card Control
  • CCTV
  • ระบบรักษาความปลอดภัยตลอด 24 ชม.
จุดเด่นของโครงการ The Line พหลฯ-ประดิพัทธ์ คอนโดใหม่ อบอุ่นเหมือนอยู่บ้าน บนทำเลศักยภาพ เดินทางสะดวกสบาย ใกล้ทางด่วน และ รถไฟฟ้า BTS สะพานควาย 550 เมตร เพียง 1 สถานี ถึง MRT จตุจักร ให้คุณเข้าถึงใจกลางเมืองได้รวดเร็ว พร้อมพื้นที่ส่วนกลางขนาดใหญ่ ครบ จัดเต็ม กว่าใคร เริ่ม 4.29 ล้านบาท*

คอนโด BTS สะพานควาย / คอนโดติดรถไฟฟ้า BTS สะพานควาย คอนโดโดยรอบ BTS สะพานควาย


ที่ตั้งโครงการ

ซอยประดิพัทธ์ 21 แขวงสามเสนใน เขตพญาไท กทม.

พิกัด : 13.790541, 100.546102

Master

โครงการ The Line พหลฯ – ประดิพัทธ์ ตั้งอยู่บนถนนประดิพัทธ์ฝั่งมุ่งหน้าแยกสะพานควายระหว่างซอย 19-21 สภาพแวดล้อมโดยรวมคึกคักเพราะเป็นย่านชุมชนเก่า จุดเด่นของโครงการนอกจากจะตั้งอยู่ติดถนนใหญ่แล้วยังสร้างขึ้นมาตามรถไฟฟ้าสะพานควาย โดยมีระยะทางจากตัวสถานีถึงโครงการประมาณ 550 เมตร ซึ่งเกินระยะเดินสบายไปหน่อยแต่ก็ยังพอเดินได้เพราะตลอดทางจะเป็นฟุตบาทที่เดินค่อนข้างสะดวก แต่อาจจะมีคนเดินเยอะในช่วงเช้าและเย็น ประกอบกับริมฟุตบาทจะมีร้านอาหารมาตั้งขายเป็นวงกว้างจึงอาจจะเร่งฝีเท้าได้ไม่เท่าไหร่นะคะ

BTS2

การเดินทางด้วยรถสาธารณะ เป็นการเดินทางที่สะดวกที่สุดสำหรับโครงการนี้ และแน่นอนเส้นทางที่สะดวกที่สุดคือการเดินทางด้วยรถไฟฟ้า สถานีที่ใกล้ที่สุดคือ BTS สะพานควาย มีระยะห่างจากโครงการประมาณ 550 เมตร เกินระยะเดินสบายไปหน่อยแต่ก็ยังเดินได้อยู่ และสามารถนั่งไปเปลี่ยนเป็นรถไฟฟ้าใต้ดินได้ที่ BTS สถานีหมอชิต 1 สถานีจาก BTS สะพานควาย

นอกจาก BTS แล้วก็สามารถเรียก Taxi ที่หน้าโครงการได้ มีวิ่งผ่านไปมาตลอดค่ะ หรือถ้าจะไปใกล้ๆ ก็มีคิวพี่วินอยู่บริเวณจ้นซอยประดิพัทธ์ 21 (เดินจากโครงการไปไม่ถึง 100 เมตร) นอกจากนั้นยังมีป้ายรถเมล์ที่อยู่ห่างจากโครงการไปประมาณ 65 เมตร โดยจะมีรถเมล์สาย 3, 9, 97, 117 ค่ะ

การเดินทางด้วยรถยนต์ส่วนตัว ก็สะดวกค่ะ เนื่องจากตัวโครงการเกาะอยู่กับถนนประดิพัทธ์ ที่สามารถใช้วิ่งยาวไปเชื่อมกับถนนทหารและถนนสามเสน สามารถใช้ลัดไปถนนราชวิถีเพื่อไปฝั่งธนฯได้โดยไม่ต้องรถติดแถวสวนสัตว์ดุสิตหรืออนุสาวรีย์ชัยสมรภูมิค่ะ นอกจากนั้นถนนประดิพัทธ์จะยังใช้ไปถนนพระราม 6 , ถนนเทอดดำริ, ถนนพระราม 5 ที่สามารถใช้เชื่อมไปถนนประชาชื่นใช้วิ่งยาวผ่านรัชดาภิเษกไปจนถึงแจ้งวัฒนะ หลักสี่ได้ค่ะ และถ้าดูจาก Map แล้วจะเห็นว่ามีถนนเส้นหลักๆอีก 2 เส้นที่สามารถใช้เดินทางได้คือ

  • ถนนพหลโยธิน สามารถใช้ขึ้นไปทางทิศเหนือไป หลักสี่ ดอนเมือง ยาวไปจนถึงรังสิต หรือใช้เส้นพหลลงทางทิศใต้ก็จะสามารถวิ่งตรงไปอนุสาวรีย์ เชื่อมกับพญาไทได้ค่ะ นอกจากเส้นพหลที่วิ่งขึ้นเหนือลงใต้โดยตรงแล้วยังมีถนนอีก 2 เส้นหลักๆที่อยู่ใกล้โครงการและสามารถใช้ได้สะดวกค่ะ คือ ถนนประดิพัทธ์ และถนนสุทธิสารวินิจฉัย

  • ถนนสุทธิสารวินิจฉัย สามารถใช้วิ่งไปเชื่อมกับถนนวิภาวดีรังสิต, รัชดาภิเษก และลาดพร้าวได้(ลาดพร้าว 64) แต่รถเส้นนี้จะติดหน่อยและการใช้ถนนจะแตกต่างกันไปในแต่ละช่วงเวลา เช่น ช่วงเช้า – กลางวัน รถจะสามารถวิ่งขาออกไปเส้นวิภาวดีได้ 2 เลน พอเป็นช่วงค่ำๆก็จะสลับเป็นวิ่งเข้าเส้นพหลได้ 2 เลน เป็นต้นค่ะ

  • ถนนพระราม 6 สามารถใช้วิ่งไปพระราม 4, หัวลำโพง หรือวิ่งขึ้นทางเหนือไปบางเขนได้ค่ะ

ด่วนศรี2

ส่วนทางด่วนรอบๆ มีให้เลือกใช้ใกล้ๆ 2 เส้น คือทางด่วนดอนเมืองโทลเวย์ และทางด่วนศรีรัช โดยจุดขึ้นทางด่วนที่ใกล้โครงการที่สุดจะเป็นจุดขึ้นทางด่วนศรีรัชฝั่งขึ้นไปทางทิศเหนือ สามารถใช้วิ่งไปบางเขน, ปากเกร็ดได้ โดยจุดขึ้นทางด่วนนี้จะมีระยะทางจากโครงการประมาณ 2.6 กม. ใช้เวลาประมาณ 10 นาทีค่ะ

ด่วนศรี1

และจุดขึ้นทางด่วนศรีรัชฝั่งมุ่งหน้าลงทิศใต้ที่ใช้วิ่งเข้าผ่านเมืองช่วงอนุสาวรีย์ชัยสมรภูมิ ลงไปถึงเจริญราษฎร์และใช้เชื่อมกับทางด่วนเฉลิมมหานครใช้วิ่งไปพระราม 2 , พระโขนงได้ โดยจุดขึ้นทางด่วนนี้จะมีระยะทางจากโครงการประมาณ 2.3 กม. ใช้เวลาเดินทางประมาณ 8 – 15 นาทีค่ะ

ดอนเมือง

ส่วนจุดขึ้นทางด่วนดอนเมืองโทล์เวย์ฝั่งลงทิศใต้ที่ใช้วิ่งลงมาเข้าราชเทวีได้ จะมีระยะทางจากโครงการประมาณ 4 กม. ใช้เวลาเดินทางประมาณ 10 – 20 นาทีค่ะ

ดอนเมือง2

จุดขึ้นทางด่วนดอนเมืองโทลเวย์ฝั่งมุ่งหน้าขึ้นทางเหนือ สามารถใช้วิ่งไปดอนเมือง, รังสิตได้ โดยจุดขึ้นทางด่วนนี้จะมีระยะทางจากโครงการประมาณ 3.3 กม. ใช้เวลาเดินทางประมาณ 10 – 15 นาที

ถนนและแยกที่สำคัญรอบๆโครงการ

  • ถนนประดิพัทธ์ 30 ม.
  • ถนนพหลโยธิน 250 ม.
  • แยกสะพานควาย 220 ม.
  • ถนนสุทธิสาร 300 ม.
  • แยกสะพานสุทธิสาร 1.7 กม.

Surround

คาแร็คเตอร์ที่เด่นๆของย่านนี้ที่เราจะเห็นว่าค่อนข้างแปลกกว่าทำเลในเมืองย่านอื่นๆ คือแถวนี้จะเป็นถิ่นของร้านเก่าๆ โดยเฉพาะร้านพระเครื่องจะไม่ได้มีเฉพาะพระเครื่องเท่านั้น แต่พวกของเก่าอย่างเหรียญ นิตยสารเก่าๆ หรือเครื่องประดับเก่าๆ ก็มีมาวางขายเป็นในลักษณะของการตั้งร้านริมฟุตบาท มีทุกวันตั้งแต่เช้าถึงเย็น

ความอุดมสมบูรณ์โดยรอบโครงการค่อนข้างสูง หน้าโครงการจะมีร้านอาหารให้เลือกเยอะทั้งในเวลากลางวันและกลางคือ โดยบริเวณหน้าโครงการที่เป็นเส้นประดิพัทธ์ช่วงแยกสะพานควายเป็นอีกหนึ่งแหล่งความอุดมสมบูรณ์ที่มีชื่อเสียงแบบเงียบๆมานาน จะมีร้านอาหารทั้งคาวหวานที่เปิดตั้งแต่ช่วงเย็นจนถึงดึกค่ะ

นอกจากนั้นพวก Hyper Market ตัวหลักใหญ่ๆจะมี Big C รองลงมาเป็น Tesco Lotus Express (เปิด 24 ชม.) มีร้านค้า ร้านอาหารย่อยๆอยู่ทั่วไป ทั้งที่เปิดเป็นร้านแบบจริงจังและร้านข้างทางถือว่ามีความอุดมสมบูรณ์สูงเลยทีเดียวค่ะ

ถัดมาอีกหน่อยจะเป็นโซนใกล้เคียงอย่างอารีย์ซึ่งเป็นที่รู้กันว่ามีร้านคาเฟ่น่ารักๆเพียบ และยังมี Villa Aree เป็น Community Mall ที่มีร้านอาหารชื่อดังด้านอยู่เยอะเลยค่ะ เช่น After You, กับข้าวกับปลา, Starbucks เป็นต้น นอกจากนั้นยังมีซอย Aqua ที่เพิ่งเปิดมาได้ไม่นานมานี้ เป็นซอยสั้นๆ แต่อัดแน่นไปด้วยร้านอาหารดีๆหลายร้าน และยังมีร้านเช่าชุดราตรี และ Fitness ด้วยค่ะ

สถานที่สำคัญรอบๆโครงการ

ตลาดและห้างสรรพสินค้า

  • Aqua 400 ม.
  • Big C สะพานควาย 450 ม.
  • Tesco Lotus Express 600 ม.
  • La Villa Aree 1.4 กม.
  • JJ Mall 2 กม.
  • ตลาดนัดจตุจักร 2 กม.
  • Union Mall 3.3 กม.
  • Central ลาดพร้าว 3.7 กม.

สถานพยาบาล

  • รพ.เปาโล เมโมเรียล 550 ม.
  • รพ.ประสานมิตร 850 ม.
  • รพ.พญาไท 2 2.6 กม.

อื่นๆ

  • สวนจตุจักร 2 กม.
  • สวนสมเด็จพระนางเจ้าสิริกิติ์ 2.4 กม.
  • สวนวชิรเบญจทัศ 3.6 กม.

การเดินทาง

1

การเดินทางวันนี้เราจะเริ่มต้นบนถนนพหลโยธินฝั่งมุ่งหน้าจตุจักร บริเวณ BTS อารีย์ ขับตรงไปเรื่อยๆ ถึงแยกสะพานควายเลี้ยวซ้ายเข้าถนนประดิพัทธ์ ขับตรงไปอีกประมาณ 240 เมตร จะเห็นตัวโครงการ THE LINE พหลฯ – ประดิพัทธ์ ทางขวามือค่าา

สรุปการเดินทาง ถนนพหลโยธิน(ฝั่งมุ่งหน้าจตุจักร) > แยกสะพานควาย > ถนนประดิพัทธ์ > THE LINE พหลฯ – ประดิพัทธ์

R Line-1

เริ่มต้นการเดินทางบนถนนพหลโยธิน ฝั่งมุ่งหน้าจตุจักร ผ่าน BTS อารีย์ไปนะคะ

R Line-2

ผ่าน BTS อารีย์มาหน่อยเดียวจะเห็นซอยอารีย์ทางซ้ายมือ ในซอยนี้มีร้านอาหารเพียบค่ะ ราคาตั้งแต่ถูกจนถึงแบบดีๆหน่อย สามารถแวะหาอาหารทานกันได้

R Line-3

ขับตรงมาเรื่อยๆเราจะถึงแยกสะพานควาย สำหรับแยกนี้ถ้าเราเลี้ยวซ้ายจะสามารถเข้าเส้นสุทธิสารได้ แต่วันนี้เราจะเลี้ยวซ้ายเพื่อเข้าถนนประดิพัทธ์นะคะ

R Line-4

เลี้ยวซ้ายเข้าถนนประดิพัทธ์มาแล้วตรงมาประมาณ 240 เมตร เราจะเห็นโครงการ THE LINE พหลฯ – ประดิพัทธ์ ทางขวามือค่าา

 

รอบๆโครงการ

SR1

สภาพแวดล้อมรอบๆโครงการจะเห็นว่าลักษณะของตัวที่ดินจะมีหน้าตาเกือบๆ C Shape

  • ทิศเหนือโครงการจะติดกับซอยย่อยประดิพัทธ์ 21 , สปาและที่อยู่อาศัยเตี้ยๆ
  • ทิศใต้หรือหน้าโครงการติดกับถนนประดิพัทธ์ ฝั่งตรงข้ามถนนเป็นอาคารพาณิชย์ซะส่วนใหญ่ 
  • ทิศตะวันตกติดกับที่ติดบ้านเดี่ยวและโบสถ์คริสต์ สูง 1 – 2 ชั้น จะเห็นว่ารอบๆโครงการเกือบทั้งหมดจะเป็นอาคารพาณิชย์หรือตึกแถวที่สูง 2 – 5 ชั้น ยกเว้นทาง
  • ทิศตะวันออกบริเวณส่วนเว้าของตัว C ที่จะเป็นคอนโดรุ่นเก่า สูง 8 ชั้น แทรกเข้ามา

เรื่องวิวของโครงการนี้ค่อนข้างโปร่ง ไม่มีอาคารหรือคอนโดสูงๆในระยะประชิด โดยจะมีคอนโดเพื่อนบ้านรายล้อมอยู่รอบๆบ้าง แต่มีระยะที่ค่อนข้างห่างออกไปพอสมควรจึงทำให้ไม่มีผลเมื่ออยู่ในชั้นสูงๆของตึกเท่าไหร่ค่ะ

The Line Pdp-PJRE-1

หน้าโครงการติดกับถนนประดิพัทธ์ ฝั่งตรงข้ามเป็นอาคารพาณิชย์และอาคารธนาคารกรุงเทพ

The Line Pdp-PJRE-2

มองไปด้านหลังเป็นคอนโด Rhythm

The Line Pdp-PJRE-3

ฝั่งขวามือจะเป็นตึกแถวของชาวบ้านแถวนี้ยาวไปตลอดทาง

The Line Pdp-PJRE-4

โดยตึกแถวก็จะมีการเปิดธุรกิจต่างๆ เช่น ร้านเกมส์

The Line Pdp-PJRE-5

ร้านอาหารแถวรี้ก็มีเยอะค่ะ ในระยะเดินใกล้ๆฝั่งนี้จะมีร้านก๋วยเตี๋ยวหมูรสเด็ด

The Line Pdp-PJRE-6

ถัดมาเป็นร้านลูกชิ้นปลานายโจว

The Line Pdp-PJRE-7

และร้านกาแฟ Moka Mania

The Line Pdp-PJRE-8

เดินต่อมาอีกนิดก็จะมี 7-11 อีก 1 สาขา

The Line Pdp-PJRE-9

ถัดจากตรงนี้ไปก็จะเป็นตึกแถวยาวตลอดทาง มีร้านอาหารชื่อดังดั้งเดิมอีกหลายร้าน เช่น ร้านระฆังทอง, ครัวประดิพัทธ์ เป็นต้น

The Line Pdp-PJRE-10

กลับมาที่หน้าโครงการทางฝั่งซ้ายจะติดกับถนนประดิพัทธ์ฝั่งมุ่งหน้าแยกสะพานควาย

The Line Pdp-PJRE-11

หน้าโครงการมี 7-11 ทำกรอบด้านหน้าสวย เข้ากับตัวโครงการ โดยสาขานี้ ลูกบ้านสามารถเดินเข้าร้านได้จากทางเข้าด้านในคลับเฮ้าส์ได้ด้วยค่ะ

The Line Pdp-PJRE-12

ในช่วงเย็นๆ ค่ำๆ จะมีร้านอาหารรถเข็นเปิดหน้าโครงการหลายร้าน ยาวไปจนถึงแยกสะพานควายเลย คึกคักมากๆค่ะ

The Line พหล-ประดิพัท-SRR-10

ภายในซอยจะเป็นตึกแถวที่อยู่ของชาวบ้านแถวนี้ ส่วนต้นๆซอยจะมีคิวพี่วินที่อยู่ใกล้โครงการที่สุด

The Line พหล-ประดิพัท-SRR-11

อัตราค่าโดยสารของพี่วินเค้าค่ะ

The Line พหล-ประดิพัท-SRR-9

เดินมาเรื่อยๆถึงซอยประดิพัทธ์ 21

The Line พหล-ประดิพัท-SRR-15

และมีร้านสะดวกซื้ออยู่ไม่ไกล

The Line พหล-ประดิพัท-SRR-12The Line พหล-ประดิพัท-SRR-13

เดินต่อมา แถวนี้จะมีร้านแลกเงินและร้านขายยาเยอะค่ะ

The Line พหล-ประดิพัท-walk-16 The Line พหล-ประดิพัท-walk-17 The Line พหล-ประดิพัท-walk-19 The Line พหล-ประดิพัท-walk-20

ซึ่งภายในซอยจะมีตลาดสดเจ้าใหญ่อยู่ สามารถมาซื้อของทำอาหารได้ และถ้าเดินเข้าไปลึกๆจะมีหอพัก และอพาร์ทเมนท์มากมายหลายตึกเลยค่ะ

ตัวโครงการ

The-Line 6

The-Line 1

The-Line 2

The-Line 3

The-Line 4

The-Line 5

The Line Pdp-Cover

โครงการ The Line พหลฯ – ประดิพัทธ์ เป็นคอนโด High Rise สูง 46 ชั้น ตัวโครงการติดถนนประดิพัทธ์ มีแนวคิดการออกแบบที่คำนึงถึงความกลมกลืน และสอดคล้องไปกับธรรมชาติ Concept การออกแบบที่ออกแบบมาที่ต้องการให้ผู้อยู่อาศัยรู้สึกเหมือนอยู่ในบ้านหลังใหญ่ บ้านที่ถูกโอบกอดด้วยธรรมชาติ และมีพื้นที่สำหรับทุกช่วงวัย ทุกไลฟ์สไตล์ โดยจะมีส่วนกลางให้ครบครัน

ส่วนการออกแบบสถาปัตยกรรม จะออกแบบตัวอาคารโดยรอบให้กลมกลืน กับธรรมชาติ ด้วยการบิดองศาของผนังของห้องเพื่อสร้างมุมมองภายในที่ไม่น่าเบื่อ และยังสามารถสัมผัสกับบรรยากาศของแสงและเงาที่แตกต่างกันในแต่ละช่วงเวลาได้ และตัวอาคารใช้การไล่เฉดสี EARTH TONE เพื่อเน้นให้กลมกลืนกับแสงธรรมชาติ และรู้สึกอบอุ่นเมื่อมองมาที่ตัวอาคารค่ะ

ภายในที่ดินจะแบ่งย่อยออกเป็น 2 อาคาร คืออาคารสำหรับพักอาศัย เป็นอาคารหลักสูง 46 ชั้น และอาคารส่วนกลาง ( Facility ) หรือ Co-Living Space สูง 2 ชั้น ซึ่งถึงจะมีการทำตัวอาคาร Facility แยกออกมาแล้ว แต่ทางโครงการก็ยังใส่ส่วนกลางอื่นๆไว้ในอาคารหลักด้วยค่ะ เช่น Lobby, สระว่ายน้ำ, สนามเด็กเล่น และ Rooftop Garden และเป็น Indoor Parking ในส่วนด้านหลังของอาคาร ชั้น 2 – 8

โดยตัวอาคารหลักจะแบ่งเป็นอาคารส่วนด้านหน้าสูง 35 ชั้น และอาคารด้านหลังสูง 46 ชั้น

floorplan-1

มาดู Master Plan กันต่อ จากแปลนจะเห็นว่าทางเข้าออกโครงการจะมี 2 ทาง คือถ้าเดินเท้ามาโครงการก็สามารถเข้าได้จากทางสวน Secret Garden ติดกับอาคาร Co-Living Space ส่วนถ้าใครขับรถมาก็สามารถใช้ทางเข้าหลักจากถนนประดิพัทธ์ เมื่อเข้ามาในโครงการจากทางเข้าหลักจะต้องผ่านป้อม รปภ. และเข้ามายังพื้นที่ Drop Off จากนั้นก็สามารถวิ่งรถได้รอบอาคาร โดยถ้าออกไปทางซ้ายจะเจอกับที่จอดรถ Outdoor Parking ก่อน และไปเข้า indoor Parking ทางฝั่งตะวันออก

เมื่อเข้ามาในตัวอาคารส่วนแรกจะเจอกับ Lobby ฝ้าเพดานสูงโปร่งประมาณ 9.2 เมตร ถัดมาจาก Lobby จะเป็นโถงลิฟต์ภายในมีลิฟต์ทั้งหมด 6 ตัว เฉลี่ยลิฟต์ต่อห้องพักอาศัยประมาณ 1 : 163 ถือว่าค่อนข้างแน่นอาจจะต้องรอนานหน่อยในช่วงเวลาเร่งด่วน

The Line Pdp-PJRE-17

มาดูบรรยากาศจริงของโครงการกันต่อค่ะ เริ่มจากหน้าโครงการเป็นป้ายชื่อโครงการ เห็นชัดเจน

The Line Pdp-PJRE-19

ทางเข้าโครงการจะอยู่ติดถนนประดิพัทธ์ มีป้อมรปภ. รักษาความปลอดภัย 24 ชม.

The Line Pdp-PJRE-20

เข้ามาภายในโครงการเจอถนนหลัก ตรงไปจะเข้าที่จอดรถภายในตัวอาคาร ซ้ายมือเป็นอาคารหลัก และขวามือเป็นคลับเฮ้าส์

The Line Pdp-PJRE-22

เรามาดูตัวคลับเฮ้าส์กันก่อนค่ะ ตัว Facade จะใช้วัสดุสีทองแดฉลุเพิ่มมิติ และลูกเล่นให้กับตัวอาคาร

The Line Pdp-PJRE-23

บริเวณโซนแรกของคลับเฮ้าส์จะเป็นพื้นที่ Semi Outdoor ด้านหน้ามีบ่อบัวตกแต่งให้ความรู้สึกเย็นๆ

The Line Pdp-PJRE-24

ขวามือเป็นทางเข้า 7-11 โดยจะต้องใช้คีย์การ์ดแตะเพื่อเข้าร้านด้วยค่ะ

The Line Pdp-PJRE-25

หันมาดูฝั่งซ้ายมือจะเห็นบันไดวนเสมือนลอยอยู่บนบ่อน้ำ โดยตัวบันไดจะเชื่อมขึ้นชั้น 2

The Line Pdp-PJRE-26

ติดกับบันไดเป็นลิฟต์โดยสาร สำหรับผู้ที่ใช้วีลแชร์ก็ยังสามารถขึ้นไปใช้ส่วนกลางชั้นบนได้สะดวก

The Line Pdp-PJRE-27

ติดกับลิฟต์โดยสาร ฝั่งขวามือ จะมีห้องน้ำแยกชาย – หญิง และ Co – Kitchen + BBQ Lawn

The Line Pdp-PJRE-28.1

ภายในห้องน้ำหญิงเปิดเข้าไปจะเจออ่างล้างมือพร้อมกระจกเงา 2 ชุด สไตล์มินิมอล และอีกฝั่งเป็นห้องน้ำ 2 ห้อง ผนังเป็นกระจกเงาสามารถส่องเพื่อเช็คความเรียบร้อยได้

The Line Pdp-PJRE-30.1

ภายในห้องน้ำชายทำออกมาเหมือนกันกับห้องน้ำหญิงค่ะ

The Line Pdp-PJRE-36

นอกจากนั้นก็ยังมีห้องน้ำสำหรับผู้ที่ใช้วีลแชร์มารองรับด้วย

The Line Pdp-PJRE-33

ภายใน Co – Kitchen ทำออกมาน่าใช้งานเลยค่ะ ได้พื้นที่ครัวกว้างๆ ผนังฝั่งส่วนเปิดเป็นกระจกเต็มๆ บรรยากาศดีมาก

The Line Pdp-PJRE-34.1

อุปกรณ์ที่จัดมาให้ใช้งานครบครันมากๆ ทั้งเคาน์เตอร์ครัว และชุดเตาอบต่างๆ สามารถจองห้องไว้จัดปาร์ตี้ได้ หรือถ้าใครอยากถ่ายคลิปทำอาหารสวยๆก็เหมาะเลยค่ะ

The Line Pdp-PJRE-43

ส่วนพื้นที่ด้านนอกจะมีชุดโต๊ะทานอาหาร สามารถนั่งทานอาหารไป ชมวิวสวนไปได้ด้วย

The Line Pdp-PJRE-37

จากพื้นที่ด้านในตัวคลับเฮ้าส์ จะมีโซน Secret Garden ซึ่งเป็นอีกหนึ่งไฮไลท์ของโครงการนี้ โดยพื้นที่ตรงนี้จะมีตัวฉากกั้นที่สามารถเปิดปิดได้บานใหญ่ๆ ลักษณะบานเป็นระแนง ช่วยให้ได้เอฟเฟกต์ของแสงเงาภายในสวน

The Line Pdp-PJRE-38.1

เข้ามาภายในสวนจะมีชุดเก้าอี้ และโต๊ะ นั่งพักผ่อน จะเห็นว่าพื้นที่ตรงนี้ได้เงาจากตัวระแนงและ Facade ที่ฉลุด้านบน เวลานั่งก็จะไม่ร้อนมากค่ะ

The Line Pdp-PJRE-40.1

บรรยากาศภายในสวนจะลมต้นไม้มาให้ร่มรื่นมากๆ พร้อมโซนบ่อน้ำเล่นระดับ ให้ความสดชื่นภายในโครงการ

The Line Pdp-PJRE-42.1

นอกจากนั้นก็จะมี BBQ Lawn มุมบาร์บีคิวในสวน ที่จัดอุปกรณ์มาให้ครบ พร้อมโต๊ะยาว พร้อมนั่งทานใต้ร่มไม้ได้เลย

The Line Pdp-PJRE-46

ขึ้นมาที่ชั้น 2 จะเจอพื้นที่เปิดโล่ง มีม้านั่งตัวยาวไว้ให้นั่งพักผ่อน ฟังก์ชั่นหลักๆชั้นนี้ส่วนแรกคือ Co – Working Space

The Line Pdp-PJRE-47

เข้ามาด้านในจะได้บรรยากาศ Cozy มากๆ ด้วยวัสดุที่คุมมาในโทนไม้ทั้งห้อง พร้อมเฟอร์นิเจอร์สีอ่อน และปลูกต้นไม้จริง เป็น Green Chanderia ขนาดใหญ่

The Line Pdp-PJRE-49.1

ภายในห้องนอกจากพื้นที่นั่งทำงานแล้ว ยังมีเครื่องพิมพ์เอกสารไว้ให้ใช้งานด่วนอีกด้วย โดยเป็นการสั่งงานผ่าน Application ค่ะ

The Line Pdp-PJRE-52.1

พื้นที่ทำงานจะแบ่งเป็น 2 ฝั่ง ในภาพเป็นฝั่งขวามือ จัดเป็นโซนที่แยกกัน หลายๆชุด รองรับคนที่เข้ามาใช้งานหลากหลายรูปแบบ ไม่ว่าจะมาคนเดียว, มาคู่ หรือมาเป็นกลุ่มเล็กๆ

The Line Pdp-PJRE-54

อีกฝั่งจะมีประตูบานสวิงที่สามารถปิดกั้นเพื่อความเป็นส่วนตัวได้

The Line Pdp-PJRE-55.1

ภายในจัดเป็นชุดเก้าอี้ยาว 2 ชุด เหมาะกับการมานั่งประชุมในบรรยากาศสบายๆ

The Line Pdp-PJRE-57

ส่วนฟังก์ชั่นอีกอย่างบนคลับเฮ้าส์ชั้น 2 นี้ จะเป็นห้อง Cinema Mania

The Line Pdp-PJRE-58

ภายในจัดโซฟาชุดใหญ่ ตัวยาว เหมาะกับการนั่งดูหนังแบบเป็นส่วนตัว ผนังบุกันเสียงรอบห้อง

The Line Pdp-PJRE-59.1

โดยทางโครงการจะมีทีวีขนาดใหญ่มาให้ แบบนี้เลย

The Line Pdp-PJRE-61

ขึ้นมาที่ชั้น Rooftop ส่วนแรกเป็นม้านั่งยาว ขึ้นมานั่งเล่นชิลล์ๆได้

The Line Pdp-PJRE-62The Line Pdp-PJRE-65

เดินขึ้นมาอีกหน่อยจะมีทางเดิน และม้านั่งจัดมาให้ ในพื้นที่เปิดโล่ง

The Line Pdp-PJRE-63

เดินมาสุดทางจะมีมุมเก้าอี้ลูกฟูก ขึ้นมานั่งเล่นตอนเย็นๆ น่าจะชิลล์ดีค่ะ

The Line Pdp-PJRE-64

ม้านั่งอีกฝั่ง จะเห็นว่ามีการจัดมุมที่นั่งกระจายไว้หลายจุด ทำให้ลูกบ้านสามารถขึ้นมาใช้งานได้พร้อมๆกันโดยไม่เสียความเป็นส่วนตัวมากนัก

The Line Pdp-PJRE-66The Line Pdp-PJRE-67

หลังผ่านป้อม รปภ. มาแล้ว ฝั่งซ้ายมือจะมีสวนหย่อม ลงต้นไม้ให้บรรยากาศในโครงการร่มรื่น และดูเป็นส่วนตัวมากขึ้น

The Line Pdp-PJRE-68

มีศาลาเล็กๆให้นั่งพักในสวน

The Line Pdp-PJRE-76.1

ถัดเข้ามาจะเป็นที่จอดรถ Visitor บริเวณข้างอาคาร และด้านหลังสวนหย่อม เราจะเห็นเสาสีขาวๆตรงที่จอดรถ อันนั้นคือ Omni Light ที่ช่วยผลิตกระแสไฟฟ้ามาใช้ในพื้นที่ส่วนกลาง ช่วยประหยัดค่าไฟฟ้าส่วนกลางได้บางส่วน

The Line Pdp-PJRE-69

ส่วนที่จอดรถ จะอยู่ถัดเข้าไปด้านในค่ะ ถ้าเราขับผ่านรปภ.มาแล้วก็ขับตรงตามถนนไปเลย

The Line Pdp-PJRE-70

ด้านในจะมีระบบรักษาความปลอดภัยเป็นรั้วกั้นไม้กระดก ตรงนี้ต้องใช้คีย์การ์ดเพื่อเข้าไปจอดรถบนอาคาร

The Line Pdp-PJRE-71

ที่จอดรถรับความสูงรถได้สูงสุด 2.10 ม. ภายในมีที่จอดรองรับ 50% รวมจอดซ้อนคัน พร้อมจุดชาร์จที่จอดรถพลังงานไฟฟ้า Smart Moveโดยห้อง 1 Bedroom ได้สิทธิ์จอด 1 คัน, 2 Bedroom 2 คัน ไม่ฟิกซ์ที่จอด

The Line Pdp-PJRE-72

ด้านบนมีปลูกไม้เลื้อยตามแนว Facade ทำให้ตัวอาคารจอดรถดูกลมกลืนกับส่วนอื่นๆของโครงการ

The Line Pdp-PJRE-75

กลับมาที่ตัวอาคารหลัก พื้นที่ด้านหน้าจะเป็นจุด Drop Off มีหลังคาคลุม เวลาจอดรับส่งก็สามารถบังแดดบังฝนได้

The Line Pdp-PJRE-78.1

ประตูทางเข้าอาคารทำผนังเป็นกระจกสูง โปร่งโล่ง

The Line Pdp-PJRE-80

การเข้าอาคารจะมีระบบรักษาความปลอดภัยอีกชั้น ด้วยระบบสแกนใบหน้า

The Line Pdp-PJRE-81

เข้ามาภายในส่วน Lobby จะเจอเคาน์เตอร์เจ้าหน้าที่ทางขวามือ ช่วงนี้ถ้าใครอยากเข้าชมโครงการก็สามารถติดต่อเจ้าหน้าที่ตรงนี้ได้เลย

The Line Pdp-PJRE-86

Lobby ดีไซน์โปร่ง โล่งเปิดรับลม ด้วยดีไซน์แบบ Triple Volume Lobby สูงถึง 9.2 เมตร รอบๆเป็นผนังกระจกสูง ยาวขึ้นไปถึงฝ้า และมีบานเปิดที่สามารถเปิดรับลมได้เต็มที่ ไม่ต้องพึ่งพาพลังงานไฟฟ้าตลอดเวลา

The Line Pdp-PJRE-83.1

ในส่วนของการตกแต่ง Lobby จะใช้วัสดุที่เป็นธรรมชาติ ทั้ง หินอ่อน ไม้ รวมถึงใช้ผ้าในโทนสีที่ให้ความอบอุ่น ดูเป็นผู้ใหญ่ๆหน่อยค่ะ ช่วยให้รู้สึกผ่อนคลาย ส่วนของการจัดวางเฟอร์นิเจอร์ มีการจัดวางให้มีรูปแบบที่แตกต่างกันไปในแต่ละมุม ให้ความรู้สึกเหมือนอยู่ในบ้านหลังใหญ่ มองออกไปด้านนอกก็จะเจอสวนร่มรื่นรอบๆบ้าน

The Line Pdp-PJRE-87

เข้ามาด้านในจะเป็นโถงทางเดินสูงโปร่ง เชื่อมไปยังโถงลิฟต์

The Line Pdp-PJRE-88

โดยตลอดโถงทางเดินตรงนี้ก็จะมีช่องแสงขนาดใหญ่ ที่จัดวางฟังก์ชั่นการใช้งานเป็นมุมนั่งพักที่เป็นส่วนตัวแยกไว้ให้ ได้บรรยากาศที่สงบ เป็นส่วนตัวมากขึ้น

The Line Pdp-PJRE-91

เข้ามาสุดโถงทางเดินจะเห็นผนังกระจกเงาบานใหญ่ มองเผินๆจะนึกว่าเป็นงานตกแต่งเรียบๆ แต่จริงจะมีประตูที่เชื่อมออกไปที่จอดรถ และห้องน้ำรับรองของ Lobby ด้วย

The Line Pdp-PJRE-98

เข้ามาภายในโถงลิฟต์ใช้วัสดุตกแต่งเป็นกระเบื้องลายหินอ่อน ส่วนบริเวณกรอบลิฟต์แต่ละตัวจะใช้เป็นวัสดุแนวๆไม้ๆสีเข้ม ให้ความรู้สึกอบอุ่น โดยที่นี่จะมีลิฟต์โดยสารทั้งหมด 6 ตัว และ Service Lift 1 ตัว

The Line Pdp-PJRE-181.1

ลิฟต์โดยสารของที่นี้ใช้ Mitsubishi แบบล็อคชั้น ใช้คีย์การ์ด หรือการสแกนใบหน้า รับน้ำหนักได้ 1,050 กก. หรือประมาณ 14 คน

The Line Pdp-PJRE-92

จากโถงลิฟต์เข้ามาด้านในจะมีโถงทางเดินอีกจุด ที่เป็นส่วนของ Mail Room, Laundry Room และ ตู้ iBOX ของไปรษณีย์ไทย

The Line Pdp-PJRE-93

มาดูภายใน Mail Room กันก่อนค่ะ ทำออกมาสวยเลยทีเดียว

The Line Pdp-PJRE-94.1

ด้านในจะทำออกมาในสีโทนเข้มๆหน่อย ดูเป็นส่วนตัวมากๆ พื้นเป็นหินอ่อนสีดำ Black Marquina Marble ส่วนตู้จดหมายทั้งหมดใช้ไม้สีเข้ม แบ่งเป็นช่องๆตามเลขที่ห้อง และมีถังขยะไว้ให้ทิ้งเอกสารหรือหีบห่อที่ไม่ใช้แล้วด้วย

The Line Pdp-PJRE-96.1

ถัดเข้ามาจาก Mail Room จะเป็นโถงทางเดินเชื่อมมาที่ห้อง Laundry Room โดยบริเวณหน้าห้องจะมี iBOX เป็นบริการรับฝากของ ที่อำนวยความสะดวกให้ลูกบ้าน มารับพัสดุได้ด้วยตัวเอง ตลอด 24 ชม.

The Line Pdp-PJRE-89.1

 

ภายในห้อง Laundry Room จะมีลงเครื่องซักผ้า, ตู้อบผ้า และตู้กดน้ำดื่ม หยอดเหรียญไว้อำนวยความสะดวก โดยลูกบ้านสามารถใช้ Sansiri Home Application ในส่วนของ Trendy Wash ไว้เช็คการทำงานของเครื่องซักผ้าได้

floorplan-5 floorplan-6 floorplan-7

ขึ้นมาที่ชั้น 6, 7 และ 8 อาคารฝั่งหน้าจะเป็นส่วนพักอาศัยและอาคารฝั่งหลังจะเป็น Indoor Parking ค่ะ

floorplan-8

ชั้น 9 จะเป็นส่วนพักอาศัย และมีส่วน Facility ขนาดใหญ่ ประกอบด้วย สระว่ายน้ำแบบ Outdoor ขนาด 30 x 24 เมตร แยกสระเด็ก – สระผู้ใหญ่ พร้อม Pool Terrace ข้างสระ สำหรับนั่งพักผ่อน

ส่วนในตัวอาคารรอบๆ สระว่ายน้ำ จะมีห้องน้ำแยกชาย – หญิง พร้อมห้อง Sauna & Stream ที่ผนังภายในห้อง Sauna จะใช้หินเกลือผลึก Himalayan Salt ที่เชื่อกันว่าสามารถใช้เป็นหินบำบัดได้, ห้อง Multi Area, ฟิตเนสขนาดใหญ่ แยกห้อง Free Weight

The Line Pdp-PJRE-101

มาดูของจริงกันเลย พอเราออกมาจากโถงลิฟต์ ก็จะเจอทางเดิน เชื่อมไปยังส่วนกลางจุดต่างๆ บรรยากาศเหมือนอยู่ในสวนเปิดโล่ง

The Line Pdp-PJRE-102.1

ขวามือเป็นพื้นที่สวน ที่มีม้านั่งไว้ให้นั่งพักหลายจุด ตรงนี้ตอนกลางวันก็ยังมานั่งได้ค่ะ เพราะได้ร่มเงาจากต้นไม้ และเงาจากตัวอาคารเองบางส่วน ทำให้ไม่ร้อนแดด

The Line Pdp-PJRE-104

เข้ามาส่วนแรกเราจะผ่านห้องน้ำ ฝั่งซ้ายเป็นห้องน้ำชาย ขวามือเป็นห้องน้ำหญิง

The Line Pdp-PJRE-105

ทางเข้าห้องน้ำจะมีทางเดินลึกเข้าไป เพื่อให้เกิดการแยกพื้นที่เป็นสัดส่วนมากขึ้น

The Line Pdp-PJRE-106

ภายในห้องน้ำตกแต่งด้วยกระเบื้องลายหินอ่อน และวัสดุระแนงไม้ ได้บรรยากาศสปาๆ

The Line Pdp-PJRE-107.1

ขนาดพื้นที่ใช้สอยกว้างขวางเลย มีแบ่งโซนเป็นห้อง Sauna, Steam, โถปัสสาวะชาย 2 จุด, ห้องน้ำ และห้องอาบน้ำอย่างละ 1 ห้อง

The Line Pdp-PJRE-110.1

ภายในห้องอาบน้ำและห้องน้ำ

The Line Pdp-PJRE-113.1

ภายในห้อง Sauna พื้นที่ในห้องก็มีขนาดกว้างขวาง ชอบที่ทำบานกระจกฝั่งนึงเปิดโล่ง เห็นวิวสวน (สวนเป็นพื้นที่ปิด ไม่มีคนเดินผ่านไปมานะ) เพราะเวลาใช้งานจริงส่วนใหญ่เราจะต้องนั่งอยู่เฉยๆ ถ้ามีวิวให้มองออกไปแบบนี้ก็สบายตาดีค่ะ

The Line Pdp-PJRE-115

ผนังกรุด้วยเกลือ Himalayan Salt ที่จะมีไอระเหย ช่วยผ่อนคลาย เหมือนได้ทำสปาดีๆเลยค่ะ

The Line Pdp-PJRE-112

ภายในห้อง Steam จะมีขนาดไม่ใหญ่มาก ได้วิวสวนส่วนตัวเหมือนกันค่ะ

The Line Pdp-PJRE-109

นอกจากนั้นก็จะมีล็อคเกอร์ให้ใช้งาน 16 ช่อง

The Line Pdp-PJRE-116

อีกฝั่งเป็นห้องน้ำหญิง

The Line Pdp-PJRE-117

มีห้องน้ำสำหรับผู้ที่ใช้วีลแชรืให้บริการด้วย พื้นที่กว้างๆ ใช้งานได้จริง

The Line Pdp-PJRE-118

ภายในห้องน้ำหญิงจะเหมือนกับห้องน้ำชายค่ะ แต่จะลดส่วนโถปัสสาวะชายค่ะ

The Line Pdp-PJRE-119.1

ด้านในแบ่งเป็นล็อคเกอร์, ห้องน้ำ และห้องอาบน้ำ ตรงกลางเป็นอ่างล้างมือ 2 จุด

The Line Pdp-PJRE-121

ถัดเข้ามาทางฝั่งซ้ายมือเป็น Multifunction Room และ Boxing Room ส่วนขวามือเป็นสระว่ายน้ำค่ะ

The Line Pdp-PJRE-122

เรามาดูในห้อง Multifunction Room กันก่อน

The Line Pdp-PJRE-123.1

เข้ามาส่วนแรกเป็น Boxing Area จัดเป้าซ้อมมาให้ 2 ชุด วิวในห้องโล่งๆ ผนังเป็นกระจก 2 ฝั่ง และบนฝ้ามีทำเป็นกระจกเงาช่วยสะท้อนให้ห้องดูกว้างขึ้น

The Line Pdp-PJRE-124

มีอุปกรณ์ซ้อมมาให้เป็นนวม Med Ball และเสื่อ

The Line Pdp-PJRE-126.1

อีกห้องที่กั้นแยกกั้นจะเป็น Multifunction Room มีอุปกรณ์สำหรับ Functional Training มาครบชุดเลย โดยห้องนี้สามารถจองส่วนตัว และให้เทรนเนอร์เข้ามาสอนออกกำลังกายได้ค่ะ

The Line Pdp-PJRE-128.1

อุปกรณ์ที่ให้มามีสเตชั่นเก็บอุปกรณ์สำหรับ Functional Training และ เครื่อง Nexersys ที่มีติดตั้งเป็นที่แรกของแสนสิริ เป็นเครื่องคาร์ดิโอแบบ Full Body สามารถเลือกโปรแกรมออกกำลังกายได้หลากหลาย

The Line Pdp-PJRE-131

นอกจากนั้นก็ยังมีทีวี ไว้เปิดวิดีโอออกกำลังไว้ดูด้วยก็ได้

The Line Pdp-PJRE-133

ถัดมาเป็นห้องฟิตเนส

The Line Pdp-PJRE-134.1

ฟิตเนสจัดมาให้ใหญ่เลยทีเดียวค่ะ แยกเป็น 2 โซน อุปกรณ์เพียงพอสำหรับคนที่ออกกำลังกายจริงจังขึ้นมาระดับนึงเลย

The Line Pdp-PJRE-136.1

โดยโซนแรกจะมีอุปกรณ์ที่จัดมาให้มีลู่วิ่งไฟฟ้า 3 ตัว, เครื่องบริหารกล้ามเนื้ออก/ไหล่, เครื่องบริหารกล้ามเนื้อขา และเครื่องบริหารกล้ามเนื้อหลัง

The Line Pdp-PJRE-140

อีกโซนจะเป็นโซน Free Weight และ คาดิโอ

The Line Pdp-PJRE-141.1

มุม Free Weight จัดดัมเบลคละน้ำหนักมา 20 ชิ้น พร้อมเบาะปรับระดับได้มาให้ 3 ตัว

The Line Pdp-PJRE-143.1

อุปกรณ์คาดิโอ มีจักรยานไฟฟ้า 2 ตัว และ Elliptical 1 ตัว

The Line Pdp-PJRE-146

ระหว่างทั้ง 2 โซน จะมีตู้กดน้ำและถังขยะไว้ให้บริการด้วย ไม่ต้องพกน้ำมาเองค่ะ แต่ควรจะมีขวดน้ำส่วนตัวติดมาด้วยนะ

The Line Pdp-PJRE-132

กลับออกมาด้านนอก ตัวสระว่ายน้ำเป็นสระระบบเกลือ แบบ Infinity Edge Pool ขนาด 30 x 24 เมตร

20121010_111114064_iOS 4

ตัวสระยาว 30 ม. เป็นสระรูปตัว L โดยจะมีโซน Lap Pool  ที่สามารถว่ายออกกำลังกายได้

20121010_111114064_iOS 2

และโซน Jacuzzi ขนาดใหญ่พอสมควร

The Line Pdp-PJRE-147.1

เดินถัดมาจะเป็นพื้นที่ในสวน มีทางเดินเลาะสระว่ายน้ำ พร้อมพื้นที่นั่งพักผ่อน บรรยากาศร่มรื่นดีค่ะ ลงต้นไม้มาให้เยอะมากๆ ทั้งแบบพุ่มและไม้ยืนต้นที่ให้ร่มเงา

 

floorplan-9 floorplan-10 floorplan-11 floorplan-12 floorplan-13 floorplan-14 floorplan-15 floorplan-16 floorplan-17 floorplan-18 floorplan-19 floorplan-20

ชั้น 10 – 34 จะเป็นส่วนของยูนิตพักอาศัยล้วนๆ โดยในอาคารจะมี Pocket Garden แทรกอยู่ในชั้น 12, 15, 18, 24, 30 ค่ะ

The Line Pdp-PJRE-179.1

โถงลิฟต์ในชั้นพักอาศัย Typical Floor

The Line Pdp-PJRE-183

บรรยากาศในโถงทางเดิน

 

floorplan-21

ชั้น 35 จะเป็นส่วน Play Ground หรือ Kid’s Yard ด้านหน้า และยูนิตพักอาศัยด้านหลัง

The Line Pdp-PJRE-149

บรรยากาศในโถงลิฟต์ชั้นพักอาศัยจะทำมาเรียบๆ แยกโซนพักอาศัยโดยใช้ระบบคีย์การ์ดค่ะ

The Line Pdp-PJRE-150

ส่วนสนามเด็กเล่นจะมีประตูออกอีกฝั่ง

The Line Pdp-PJRE-151.1

Kid’s Yard (Play Ground) สนามเด็กเล่น มีเนินดินสำหรับปีนป่าย และมีเครื่องเล่นต่างๆ แทรกตัวอยู่ พื้นปูพื้นยางกันกระแทกเพื่อความปลอดภัย พร้อมด้วยที่นั่งรูปทรงสี่เหลี่ยมหลากสีสัน ที่กระจายตัวอยู่บนพื้นที่สีเขียว ช่วยสร้างบรรยากาศให้ดูสนุกสนาน รอบๆก็จะมีลงต้นไม้ทำให้บรรยากาศร่มรื่น

The Line Pdp-PJRE-152.1

โซนด้านในก็จะมีเครื่องเล่นสีสันสดใส ให้เด็กเลือกเล่นได้ค่ะ

floorplan-30

ชั้น 46 เป็นชั้นยูนิตพักอาศัยเช่นกัน แต่จะพิเศษตรงที่มีห้อง Sky Lounge มาให้นั่งพักผ่อนชมวิวเมืองค่ะ

The Line Pdp-PJRE-155

ออกมาจากโถงลิฟต์ก็จะเจอ Sky Lounge เลยค่ะ

The Line Pdp-PJRE-174The Line Pdp-PJRE-156

ด้านในแบ่งโซนเป็นพื้นที่นั่งทำงาน พักผ่อน โดยจุดแรกที่เราเข้ามาจะเป็นโถงแบบฝ้าเพดานสูง 5 ม.

The Line Pdp-PJRE-158

มีบันไดเชื่อมขึ้นไปชั้น Rooftop

The Line Pdp-PJRE-159The Line Pdp-PJRE-160

อีกฝั่งจะมีกั้นแยก มีทางเดินเชื่อมไปห้องน้ำ และโซน Sky Lounge ที่มีฟังก์ชั่นคล้าย Library Room

The Line Pdp-PJRE-161

เข้ามาด้านในเจอผนังกระจกเปิดโล่ง  ตอนเย็นๆเปิดมู่ลี่จะเห็นวิวเมืองสวยเลย แต่ช่วงกลางวันก็ต้องปิดกันแดดหน่อย เพื่อรักษาเฟอร์นิเจอร์ให้ใช้งานได้นานๆ

The Line Pdp-PJRE-162The Line Pdp-PJRE-165

มีจัดชุดโซฟาใหญ่ๆมาให้ 2 ชุด

The Line Pdp-PJRE-166

ผนังฝั่งในทำเป็นตาราง ใช้วางหนังสือได้

The Line Pdp-PJRE-164

นอกจากนั้นยังมี Ipad ให้ใช้งานอีกด้วย

The Line Pdp-PJRE-168

ส่วนห้องน้ำก็เป็นไฮไลท์ไม่แพ้กันค่ะ เปิดเช้ามาเจอวิวเต็มๆตาแบบนี้เลย ใครไม่มั่นใจกก็ไม่ต้องกังวลนะ เค้ามีมู่ลี่ติดมาให้ด้วยค่ะ

The Line Pdp-PJRE-169

สุขภัณฑ์มีติดตั้งมาให้ตามมาตรฐาน

The Line Pdp-PJRE-170

วิวจากห้องน้ำค่ะ มองเห็นเพื่อนบ้านใกล้ๆ Rhythm นั่นเอง

The Line Pdp-PJRE-171

หมุนมาฝั่งซ้ายเป็นแถวๆ แยกสะพานควาย

The Line Pdp-PJRE-172

ฝั่งขวามือก็เป็นเส้นพระราม 6 โล่งๆเลย

The Line Pdp-PJRE-175

ต่อเนื่องขึ้นมาที่ชั้น Rooftop ส่วนแรกเป็นพื้นที่ลานโล่ง มีศาลานั่งพักผ่อน 2 จุด ตอนเย็นๆ มาออกกำลังกายกลางแจ้งได้เลย

The Line Pdp-PJRE-176.1

ถัดเข้ามาด้านในจะมี Sansiri Backyard ผักสวนครัวปลอดสารพิษ ที่ลูกบ้านสามารถมาเก็บไปประกอบอาหารกันได้

The Line Pdp-PJRE-178

วิวจากชั้น Rooftop ค่ะ


แบบห้อง

สำหรับแบบห้องในโครงการจะมีมากมายกว่า 39 แบบเลยค่ะ แต่สามารถแบ่งตามขนาดห้องได้ดังนี้

  • 1 Bedroom 1 ห้องนอน 1 ห้องน้ำ ขนาดตั้งแต่ 26.25 – 40.75 ตร.ม.
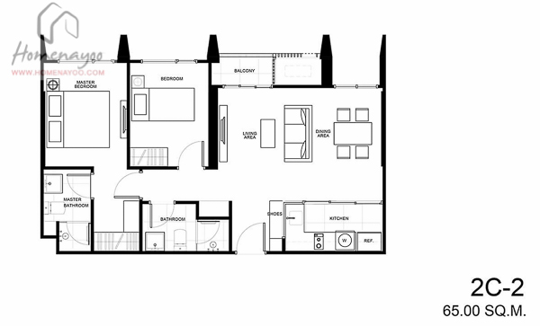
  • 2 Bedroom 2 ห้องนอน 1 ห้องน้ำ ขนาดตั้งแต่ 51.50 – 67.00 ตร.ม.
  • 3 Bedroom 3 ห้องนอน 2 ห้องน้ำ ขนาดตั้งแต่ 79.00 – 111.50 ตร.ม.

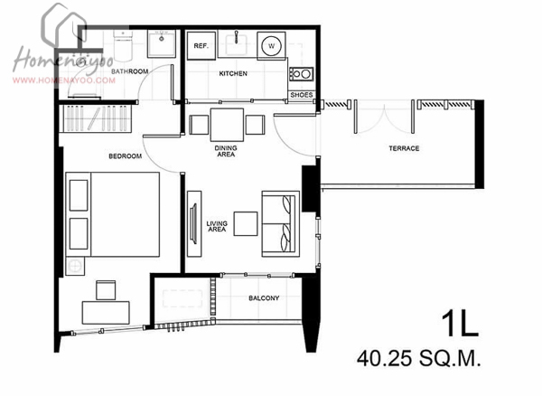
The Line พหล-ประดิพัท-UP-1The Line พหล-ประดิพัท-UP-23 The Line พหล-ประดิพัท-UP-2 The Line พหล-ประดิพัท-UP-3 The Line พหล-ประดิพัท-UP-4 The Line พหล-ประดิพัท-UP-5 The Line พหล-ประดิพัท-UP-6 The Line พหล-ประดิพัท-UP-7 The Line พหล-ประดิพัท-UP-8 The Line พหล-ประดิพัท-UP-9 The Line พหล-ประดิพัท-UP-10 The Line พหล-ประดิพัท-UP-11 The Line พหล-ประดิพัท-UP-12 The Line พหล-ประดิพัท-UP-13 The Line พหล-ประดิพัท-UP-14 The Line พหล-ประดิพัท-UP-15 The Line พหล-ประดิพัท-UP-16 The Line พหล-ประดิพัท-UP-17 The Line พหล-ประดิพัท-UP-18The Line พหล-ประดิพัท-UP-36The Line พหล-ประดิพัท-UP-37The Line พหล-ประดิพัท-UP-38The Line พหล-ประดิพัท-UP-39The Line พหล-ประดิพัท-UP-40The Line พหล-ประดิพัท-UP-34

  • ห้องแบบ 1 Bedroom 1 ห้องนอน 1 ห้องน้ำ เป็นแบบที่มีเยอะที่สุดในโครงการ มีขนาดตั้งแต่ 26.25 – 40.75 ตร.ม. ส่วนลักษณะการจัดวางฟังก์ชั่นในแต่ละห้องจะแตกต่างกันไปตามขนาดและตำแหน่งของห้องในอาคารค่ะ

The Line พหล-ประดิพัท-UP-19 The Line พหล-ประดิพัท-UP-20 The Line พหล-ประดิพัท-UP-21 The Line พหล-ประดิพัท-UP-22

  • ห้องแบบ 2 Bedroom 2 ห้องนอน 1 ห้องน้ำ ขนาดตั้งแต่ 51.50 – 51.75 ตร.ม.

The Line พหล-ประดิพัท-UP-24 The Line พหล-ประดิพัท-UP-25 The Line พหล-ประดิพัท-UP-26 The Line พหล-ประดิพัท-UP-27 The Line พหล-ประดิพัท-UP-28 The Line พหล-ประดิพัท-UP-29 The Line พหล-ประดิพัท-UP-30

  • ห้องแบบ 2 Bedroom 2 ห้องนอน 2 ห้องน้ำ ขนาดตั้งแต่ 54.00 – 67.00 ตร.ม.

The Line พหล-ประดิพัท-UP-31 The Line พหล-ประดิพัท-UP-32 The Line พหล-ประดิพัท-UP-33 The Line พหล-ประดิพัท-UP-35

  • ห้องแบบ 3 Bedroom 3 ห้องนอน 2 ห้องน้ำ ขนาดตั้งแต่ 79.00 – 111.50 ตร.ม.

ห้องตัวอย่าง

วันนี้เราจะพาชมห้องตัวอย่าง 2 แบบ คือ

  • 1 Bedroom ขนาด 33 ตร.ม.
  • 2 Bedroom ขนาด 52 ตร.ม.

โดยห้องของโครงการจะขายแบบ Fully Fitted อุปกรณ์มาตรฐานที่ติดตั้งมาให้จะมีเคาน์เตอร์ครัว พร้อม Hob & Hood, ตู้เสื้อผ้า Built – in, สุขภัณฑ์ในห้องน้ำ ยี่ห้อ Cotto พร้อมฉากกั้นอาบน้ำ

The Line Pdp-RoomRE-1

มาดูห้องตัวอย่างห้องแรก เป็นห้อง 1 Bedroom ขนาด 33 ตร.ม. ประตูทางเข้าห้องเป็นบานสำเร็จ ปิดผิวลามิเนตลายไม้ พร้อมติดตั้งป้ายเลขที่ห้อง, ตาแมว และกริ่งหน้าห้อง

The Line Pdp-RoomRE-2.1

ติดตั้ง Digital Door Lock ยี่ห้อ Yale ใช้ได้ทั้งระบบ Password, Key Card, กุญแจ และ ใช้ Bluetooth จากโทรศัพท์มือถือค่ะ

The Line Pdp-RoomRE-4.1

พื้นระหว่างโถงทางเดินและห้องพัก จะมียกขอบธรณีขึ้นด้วยแกรนิต ช่วยกันฝุ่นและแมลงเข้ามาในห้อง ส่วนด้านหลังบานประตูในห้องจะมีตัว Stopper ติดตั้งมาให้เพื่อป้องกันประตูกระแทกกับตู้ด้านหลัง

The Line Pdp-RoomRE-6

เข้ามาในห้องส่วนแรกจะเป็นพื้นที่ครัวเปิด เชื่อมต่อยาวไปถึงห้องนั่งเล่น ได้ช่อแสงหลักเป็นประตูระเบียง ความสูงฝ้าเพดาน 2.7 ม.

The Line Pdp-RoomRE-7

เข้ามาในห้อง ถ่ายย้อนมาให้ดูพื้นที่ส่วนครัว จะเห็นว่ามีการจัดพื้นที่มาให้เป็นสัดส่วนดี เราสามารถกั้นห้องเพิ่มได้ ถ้ากังวลเรื่องของกลิ่นและควันที่จะไปรบกวนส่วนอื่นๆของห้อง แต่จริงๆห้องในโครงการนี้ก็มี Layout 1 Bedroom ที่กั้นครัวแยกมาอยู่แล้วนะ สำหรับ Type นี้จะเหมาะกับคนที่ไม่ค่อยได้ทำอาหารทานเองมากกว่า

The Line Pdp-RoomRE-8

โดยเคาน์เตอร์ครัวจะได้มาตามนี้ ครบชุด ทั้งเคาน์เตอร์ตัวล่าง และตู้เก็บของด้านบน หน้าตาสวย ดูดีเลยค่ะ

The Line Pdp-RoomRE-9

ขนาดเคาน์เตอร์ครัวกว้างพอสมควรนะ ใช้เตรียมอาหารเล็กๆน้อยได้สะดวกทีเดียว ติดตั้งซิ้งค์ล้างจานและเตาไฟฟ้า 2 หัว โดย Top ใช้ Porlain Slap มียกขอบขึ้นมาให้ด้วย ช่วยให้ล้างทำความสะอาดได้ง่ายขึ้น โดยตัววัสดุชนิดนี้จะมีความทนสูง เป็นรอยยาก ทำให้ดูแลรักษาได้ง่ายในระยะยาว

ส่วนด้านหลังจะติด Backsplash กระจกดำ ให้ทั้งความสวยงามและทำความสะอาดง่าย พร้อมราวแขวนก็ได้มาครบชุด ตามนี้เลย

The Line Pdp-RoomRE-10

อุปกรณ์ที่ติดตั้งมาให้จะมีซิ้งค์ล้างจานทรงสี่เหลี่ยม ยี่ห้อ MEX ขนาดไม่กว้างมาก แต่มีความลึกพอสมควร ติดตั้งมาพร้อมก๊อกน้ำเย็น

The Line Pdp-RoomRE-13.1

ตู้เก็บของด้านล่างจะแบ่งเป็นช่องๆตามนี้ ซึ่งจะมีทั้งลิ้นชัก, ตู้ที่แบ่งเป็นชั้นๆเพื่อความเป็นระเบียบในการจัดเก็บ และช่องวางไมโครเวฟ โดยหน้าบานดูปิดผิวเมลามีนค่ะ

The Line Pdp-RoomRE-15.1

ลิ้นชักมีช่องแบ่งเก็บช้อนส้อมมาให้ด้วย ส่วนลิ้นชักล่างมีแกนไม้ที่ให้เราจัดแจงพื้นที่ได้ตามขนาดของอุปกรณ์ที่เราจะจัดเก็บ ซึ่งตรงนี้เป็นอีกดีเทลเล็กๆที่ทำมาให้ในหลายๆโครงการแล้ว น่ารักดีค่ะ

The Line Pdp-RoomRE-17.1

ตู้เก็บของด้านบนหน้าบานเป็นกระจกซาติน สีแชมเปญ ความพิเศษคือ เวลาเราใช้งานก็จะไม่มีรอยนิ้วมือติดหน้าบาน ทำให้ดูสวยสะอาดอยู่ตลอด ส่วนภายในตู้จะแบ่งชั้นวางมาให้ตามภาพเลย โดยจะมีหลายช่อง โดยช่องล่างสุดซ้ายมือ มีก้านสำหรับใส่กระดาษทิชชู่ใช้งานในครัว สามารถดึงมาใช้งานได้เลย สะดวกดีค่ะ

The Line Pdp-RoomRE-19

เคาน์เตอร์ครัวอีกฝั่งได้สเปกเดียวกันเลย แต่ฝั่งนี้จะเป็นเคาน์เตอร์สำหรับเตรียมอาหาร หรือวางอุปกร์เครื่อใช้ไฟฟ้าตัวเล็กๆ อย่างเครื่องต้มน้ำร้อน, เครื่องปิ้งขนมปัง เป็นต้น ส่วนพื้นที่ติดกับผนังด้านใน จะเป็นจุดวางตู้เย็น ตำแหน่งตามในภาพเลยค่ะ

The Line Pdp-RoomRE-20

ด้านหลังยังคงมี Backsplash ติดตั้งมาให้ พร้อมราวแขวน

The Line Pdp-RoomRE-21.1

ตู้ด้านล่างเป็นตู้ไซส์ใหญ่หน่อย สำหรับวางเครื่องซักผ้าฝาหน้าค่ะ

The Line Pdp-RoomRE-23.1

ด้านบนจะแบ่งเป็นช่องๆมาให้ตามนี้ เก็บของได้เยอะพอสมควร

The Line Pdp-RoomRE-25The Line Pdp-RoomRE-26

ถัดเข้ามาจากส่วนครัว เป็นห้องนั่งเล่น โดยพื้นตั้งแต่ห้องนั่งเล่น ไปจนถึงห้องนอนจะใช้ลามิเนตลายไม้ ให้ความรู้สึกอบอุ่น สบายๆ มากขึ้น

The Line Pdp-RoomRE-28

ติดกับครัว ทางโครงการจัดมาให้ดูเป็นโต๊ะทานอาหาร 2 ที่นั่ง เป็นขนาดที่กำลังเหมาะกับพื้นที่ในห้อง ใช้งานได้สบายๆ

The Line Pdp-RoomRE-29

ส่วนขนาดโซฟาที่เหมาะ จะเป็นโซฟาขนาดประมาณ 2 – 2.5 ที่นั่ง กำลังดี

The Line Pdp-RoomRE-30

ฝั่งตรงข้ามเป็นผนังโล่งๆ เราสามารถวางชั้นวางทีวี หรือถ้าใครมีของเยอะๆ ก็สามารถ Built – in เป็นตู้เก็บของหรือชั้นวางโชว์ของสูงๆได้ เป็นการใช้ประโยชน์จากความสูงฝ้าเพดานได้เต็มที่ขึ้นอีกด้วย

The Line Pdp-RoomRE-31

ติดกับห้องนั่งเล่นจะเป็นส่วนระเบียง โดยประตูได้เป็นบานสไลด์ 3 ตอน สามารถเปิดใช้งานได้กว้างกว่าแบบ 2 บาน บานกรอบเป็นอลูมิเนียม สีดำ กระจกเขียวตัดแสง

The Line Pdp-RoomRE-32

พื้นที่ระเบียงมีขนาดไม่ใหญ่มาก ได้พอให้วางราวตากผ้าได้สบายๆค่ะ หรือใครอยากปลูกต้นไม้ จัดสวนเล็กๆริมระเบียงก็ได้

The Line Pdp-RoomRE-33.1

พื้นที่ตรงระเบียงมีติดเค้าเสียบ ปลั๊กไฟ พร้อมฝาครอบกันน้ำมาให้ 1 จุด

The Line Pdp-RoomRE-34

ส่วนตัว Compressor จะติดตั้งแบบแขวน จำนวนขึ้นอยู่กับขนาดห้องค่ะ โดยจะมีห้องแยกเป็นสัดส่วน พร้อมกริลล์บังสายตา ทำให้ภาพรวมของตัวอาคารดูเรียบร้อย สวยงาม

The Line Pdp-RoomRE-36

กลับเข้ามาในห้อง ให้ดูภาพรวมย้อนจากห้องนั่งเล่นไปยังห้องครัว

The Line Pdp-RoomRE-37

เราเข้าไปดูภายในห้องนอนกันต่อ

The Line Pdp-RoomRE-39

ภายในห้องนอนจัดพื้นที่มาได้กำลังดีเลยค่ะ มีพื้นที่วางเตียงขนาดควีนไซส์ได้กำลังดี และยังมีมุมสำหรับวางโต๊ะทำงานมาให้ด้วย เหมาะกับไลฟ์สไตล์ทุกวันนี้ ที่คนส่วนใหญ่จะต้องมีงานกลับมาทำต่อที่บ้าน

The Line Pdp-RoomRE-40

ลองดูการจัดวางเตียงควีนไซส์ จะเห็นว่ามีพื้นที่ข้างเตียงเหลือให้วางโต๊ะหัวเตียงได้

The Line Pdp-RoomRE-41.1

ปลายเตียงมีระยะให้เดินผ่านได้สะดวก ถ้าใครชอบดูทีวีก่อนนอนก็สามารถติดทีวีแบบแขวนได้ โดยทางโครงการเดินช่องสัญญาณมาให้เรียบร้อยค่ะ

The Line Pdp-RoomRE-43

ติดกับเตียงนอน อีกฝั่งเป็นมุมนั่งทำงานริมหน้าต่างบานใหญ่

The Line Pdp-RoomRE-44

พื้นที่การใช้งานตรงนี้เป็นมุมนั่งทำงานที่มีขนาดกำลังดีเลยนะ สำหรับคนที่มีงานกลับมาทำที่บ้านเป็นประจำ คือมีพื้นที่ให้วางโต๊ะไซส์กลางๆ ได้

The Line Pdp-RoomRE-45

ด้านหลังโต๊ะมีพื้นที่ให้เลื่อนเก้าอี้เข้า – ออกได้ และยังมีพื้นที่เหลืออีกนิดหน่อย เผื่อวางอุปกรณ์ที่ใช้ทำงานเล็กๆน้อยๆ

The Line Pdp-RoomRE-46

นอกจากมีพื้นที่ใช้งานที่กำลังดีแล้ว ยังได้วิวจากหน้าต่างบานใหญ่ด้วยค่ะ ซึ่งตรงนี้ก็จะเป็นช่องแสงที่รับแสงธรรมชาติเข้ามาในตัวห้องได้เยอะ และเป็นจุดที่ทำให้ห้องดูโปร่งโล่งมากขึ้น เพราะความสูงบานจรดฝ้าเลย

The Line Pdp-RoomRE-47

มีบานกระทุ้งที่เปิดระบายอากาศได้ด้วย

 

The Line Pdp-RoomRE-48

ส่วนอีกฝั่งของห้อง จะเป็นมุมตู้เสื้อผ้า และห้องน้ำ

The Line Pdp-RoomRE-49

ตู้เสื้อผ้าจะได้ตามนี้เลยค่ะ หน้าบานฝั่งนึงเป็นกระจกดำ

The Line Pdp-RoomRE-50.1

ภายในตู้แบ่งช่องให้ตามนี้ มีทั้งราวแขวน, ชั้นวางของ และลิ้นชัก นอกจากนั้นบริเวณด้านข้างตู้ยังมีช่องสำหรับเก็บพวกเครื่องประดับที่ต้องแขวน หรือกระเป๋าถือใบเล็กๆได้ โดยตรงนี้จะมีกระจกเงามาให้ด้วย

The Line Pdp-RoomRE-53

ส่วนห้องน้ำ จะได้ตามนี้เลย ทำออกมาดูดี เรียบๆ ใช้กระเบื้องสีพื้น กับกระเบื้องสีออกน้ำตาลๆ ให้ความรู้สึกสบายตา

The Line Pdp-RoomRE-54

สุขภัณฑ์ที่ติดตั้งมาให้ ใช้ของ Cotto โดยอ่างล้างมือได้เป็นอ่างแบบฝังเคาน์เตอร์ ขนาดกำลังดี ติดตั้งมาพร้อมก๊อกน้ำเย็น

The Line Pdp-RoomRE-55.1

ใต้อ่างมีตู้ที่สามารถใช้เก็บอุปกรณ์ต่างๆได้

The Line Pdp-RoomRE-57.1

เหนืออ่างติดตั้งตู้กระจกเงา ด้านในแบ่งเป็นช่องเก็บของ และด้านล่างจะมีไฟซ่อนสวยๆ มาให้ตามนี้ ส่วนด้านข้างมีเต้าเสียบ ปลั๊กไฟ พร้อมฝาครอบกันน้ำ

The Line Pdp-RoomRE-59

ติดกันเป็นโถสุขภัณฑ์แบบ Dual Flush ติดตั้งมาพร้อมสายชำระและที่วางกระดาษชำระ

The Line Pdp-RoomRE-60

สำหรับห้องอาบน้ำจะมี Shower Box ติดตั้งมาให้เป็นสัดส่วน ประตูเป็นบานผลักเข้าด้านใน

The Line Pdp-RoomRE-61

มือจับก้านยาว สามารถวางพาดผ้าขนหนูได้

The Line Pdp-RoomRE-62.1

ภายในห้องน้ำติดตั้งฝักบัวขนาดใหญ่ ปรับขนาดหยดน้ำได้พร้อม Rain Shower และชั้นวางสบู่

The Line Pdp-RoomRE-64

ขนาดห้องอาบน้ำพอให้ยืนอาบได้สบายๆ

The Line พหล-ประดิพัท-UP-19

ห้องตัวอย่างแบบถัดมา เราจะมาดู ห้องแบบ 2 Bedroom ขนาด 52 ตร.ม ฟังก์ชั่นในห้องเมื่อเข้ามาจะเจอกับพื้นที่โถงกว้างๆ แบ่งพื้นที่เป็นห้องทานอาหาร เชื่อมต่อไปยังห้องนั่งเล่นและระเบียงภายนอก ส่วนห้องครัวเมื่อเข้าห้องมาจะอยู่ทางซ้ายมือ ได้เป็นครัวปิด มีระเบียงภายนอก ส่วนทางขวามือจะเป็นห้องน้ำ ซึ่งจะมีเพียงห้องเดียว สามารถเข้าถึงได้ 2 ทาง จากทางห้องทานอาหารและห้อง Master Bedroom

ส่วนห้องนอนจะสามารถเข้าได้จากบริเวณห้องนั่งเล่น ฝั่งซ้ายเป็นห้องนอนรอง และฝั่งขวาเป็นห้อง Master Bedroom มีพื้นที่ Walk – in Closet และมีทางเข้าห้องน้ำด้วยค่ะ

The Line Pdp-RoomRE-68

เมื่อเข้ามาในห้องจะเจอกับพื้นที่ทานอาหารก่อน มองตรงไปเป็นส่วนของห้องนั่งเล่น ส่วนแสงธรรมชาติที่ได้ภายในห้องนี้จะมาจากประตูเชื่อมระเบียงภายนอก ความสูงฝ้าเพดาน 2.7 เมตร

The Line Pdp-RoomRE-69.1

มองย้อนกลับไปทางประตู ติดกับประตูเจะได้ตู้เก็บของ ชั้นล่างเป็นชั้นวางรองเท้า

The Line Pdp-RoomRE-71

พื้นที่ห้องทานอาหารสามารถวางโต๊ะทานอาหารขนาดประมาณ 3 – 4 ที่นั่งได้

The Line Pdp-RoomRE-72

จากห้องทานอาหารเราไปดูห้องครัวทางซ้ายมือ

The Line Pdp-RoomRE-73

โดยครัวที่ได้จะได้เป็นครัวปิด ประตูบานเลื่อนคู่ บานกรอบอลูมิเนียมกระจกใส ช่วยให้ห้องไม่ทึบ ภายในห้องครัวได้เคาน์เตอร์ครัว 2 ฝั่ง ตามในห้องตัวอย่างเลย

The Line Pdp-RoomRE-74

โดยชุดเคาน์เตอร์ครัวที่ได้จะมี Spec เหมือนๆกับห้องตัวอย่างห้องที่แล้ว เพียงแต่จะได้ขนาดและฟังก์ชั่นเพิ่มเติมบางจุด โดยเคาน์เตอร์ฝั่งขวามือจะติดตั้งเตาไฟฟ้า 2 หัว พร้อมเครื่องดูดควัน

 

 

 

The Line Pdp-RoomRE-84

ตู้และเคาน์เตอร์ฝั่งซ้าย ติดตั้งซิ้งค์ล้างจาน และมีพื้นที่วางตู้เย็นค่ะ

The Line Pdp-RoomRE-86

ระยะทำครัวประมาณ 90 ซม. พอให้ยืนทำครัวคนเดียวได้สบาย แต่ถ้ามีคนมาช่วยอาจจะแน่นๆหน่อยนึง

The Line Pdp-RoomRE-85

จากห้องครัวจะมีพื้นที่เชื่อมออกไปยังระเบียงภายนอกด้วยประตูบานเลื่อนคู่

The Line Pdp-RoomRE-87

ระเบียงภายนอกพื้นลดระดับลงไปประมาณ 10 ซม. ปูด้วยกระเบื้องเซรามิคขนาด 60 x 60 ซม.

The Line Pdp-RoomRE-88

ติดโคมไฟติดผนังมาให้ 1 ดวง พร้อมเต้าเสียบปลั๊กไฟ ติดฝาครอบกันน้ำ

The Line Pdp-RoomRE-89.1

Facade บานเลื่อนเราสามารถเลือกได้ว่าจะเลื่อนเปิดปิดแบบไหน แต่จะมีมาให้ในบางห้องนะคะ

The Line Pdp-RoomRE-95The Line Pdp-RoomRE-96

ถัดมาเราจะไปดูในส่วนของห้องนั่งเล่นกันต่อ

The Line Pdp-RoomRE-97

พื้นที่ห้องนั่งเล่นวางโซฟาขนาด 3 ที่นั่ง ได้ระยะการใช้งานที่พอดี เหมาะสมกับระยะของกำแพงที่เหลือ

The Line Pdp-RoomRE-98.1

ฝั่งตรงข้ามจะเป็นที่วางทีวี เราสามารถ Built – in เป็นตู้เก็บของสูงๆก็ได้ จะได้มีพื้นที่เก็บของเยอะขึ้น ระยะดูทีวีเหลือประมาณ 1.6 เมตร สามารถวางทีวีขนาดประมาณ 26″ – 42″ ค่ะ

The Line Pdp-RoomRE-100

จากห้องนั่งเล่นสามารถเชื่อมต่อออกไปยังพื้นที่ระเบียงภายนอกได้ โดยระหว่างพื้นที่จะถูกกั้นด้วยประตูบานเลื่อน 3 ตอน

The Line Pdp-RoomRE-101

พื้นระเบียงลดระดับลงไปประมาณ 10 ซม. ระเบียงค่อนข้างกว้าง พอให้วางราวตากผ้าได้ หรือใครจะวางโต๊ะกาแฟเล็กๆ/ไม้กระถางขนาดเล็กๆก็พอได้อยู่ค่ะ

The Line Pdp-RoomRE-102.1

มีตะแกรงกั้นเป็นห้องสำหรับวางแอร์คอมเพรสเซอร์แยกไว้เป็นสัดส่วน อีกด้านจะติดโคมไฟมาให้ 1 ดวง

 

The Line Pdp-RoomRE-105

กลับเข้ามาในห้องนั่งเล่น มองย้อนไปทางห้องทานอาหาร

The Line Pdp-RoomRE-113

ต่อมาเราจะไปดูส่วนของห้อง Master Bedroom ต่อด้วยห้องน้ำห้องเดียวของห้องนี้กันต่อ

The Line Pdp-RoomRE-115The Line Pdp-RoomRE-116

เข้ามาในห้องนอนจะเห็นว่าพื้นที่จะถูกแบ่งเป็น 2 ส่วน คือส่วน Walk – in Closet และ พื้นที่ห้องนอน

The Line Pdp-RoomRE-117.1

ตู้เสื้อผ้าได้เป็นบานเปิดคู่ ด้านในแบ่งเป็นราวแขวนเสื้อ 2 ช่อง, 2 ลิ้นชัก เก็บของและ 1 รางเลื่อนสำหรับพาดกางเกง ส่วนด้านบนก็แบ่งช่องไว้ให้สำหรับเก็บพวกผ้าขนหนู หรืออื่นๆ

The Line Pdp-RoomRE-118

ติดกับตู้เสื้อผ้าเป็นโต๊ะเครื่องแป้ง ด้านล่างมีลิ้นชักเก็บของให้ 1 ช่อง ระยะใช้งานส่วน Walk – in Closet ประมาณ 1 เมตร

The Line Pdp-RoomRE-122

ในส่วนของห้องนอนจะได้ช่องแสงบานใหญ่ ความสูงเกือบจรดฝ้ามาด้วย ทำให้ห้องนี้ดูโปร่งมาก

The Line Pdp-RoomRE-127.1

โดยชุดช่องแสงบานใหญ่ที่ได้ จะได้เป็นหน้าต่างบานกระทุ้ง ผสมบานฟิกซ์

The Line Pdp-RoomRE-123

เมื่อวางเตียงขนาดควีนไซส์ลงไปแล้วจะเหลือระยะข้างเตียง พอให้วางโต๊ะหัวเตียงได้ทั้ง 2 ด้านเลยค่ะ

The Line Pdp-RoomRE-124

ส่วนปลายเตียงพอให้เดินผ่านได้สะดวก มีเดินช่องรับสัญญาณ และเต้าเสียบปลั๊กไฟมาพร้อมใช้งาน

The Line Pdp-RoomRE-125

มองย้อนไปฝั่ง Walk – in Closet

The Line Pdp-RoomRE-126

ตู้เสื้อผ้าฝั่งห้องนอนจะเปิดได้ 1 บาน เป็นช่องวางของเชื่อมอยู่กับฝั่งโต๊ะเครื่องแป้งนั่นเองค่ะ

The Line Pdp-RoomRE-107

ภายในห้องน้ำมีทางเข้าออก 2 ทาง คือจากทางฝั่งห้องทานอาหารด้านนอกและจากห้องนอน Master Bedroom

The Line Pdp-RoomRE-108

ส่วนฟังก์ชั่นในห้องน้ำนี้จะมีแยกส่วนแห้งและส่วนเปียกมาเรียบร้อย

The Line Pdp-RoomRE-109

อ่างล้างมือที่ได้จะได้อ่างล้างมือทรงสี่เหลี่ยมแบบหลุม และโถสุขภัณฑ์ ยี่ห้อ Cotto ผนังข้างโถสุขภัณฑ์จะเว้าเข้าไปช่วยให้มีที่วางของเพิ่มขึ้น

The Line Pdp-RoomRE-110.1

อีกด้านเป็น Shower Box บานเปิดแบบผลักเข้าด้านใน ภายในห้องอาบน้ำติดตั้งฝักบัวแบบ Rain Shower และ Hand Shower ขนาดค่อนข้างใหญ่ ยี่ห้อ Cotto

The Line Pdp-RoomRE-112

พื้นห้องน้ำมีธรณีก่อสูงขึ้นมาประมาณ 5 ซม. ขนาดห้องอาบน้ำ พอให้ยืนอาบได้สบายๆ

The Line Pdp-RoomRE-129

ออกมาจากห้อง Master Bedroom ถัดมาเราไปดูในห้องนอนรองกันต่อ

The Line Pdp-RoomRE-130.1

ภายในห้องนอนรองทางโครงการจะจัดเป็นห้องนอนเด็ก จะเห็นว่าการจัดวางเตียงในห้องนี้จะมีระยะที่พอดีๆ เหลือพื้นที่ข้างเตียงค่อนข้างเยอะ สามารถวางโต๊ะหัวเตียงได้

The Line Pdp-RoomRE-132

ส่วนตู้เสื้อผ้าที่ได้แถมมาจะมี Spec เหมือนห้องอื่นๆทุกห้อง

The Line Pdp-RoomRE-133

ภายในตู้ค่ะ


ราคา (พ.ค.63)

  • เริ่มต้น 4.29 ล้านบาท
  • จอง 5,000 บาท
  • ค่าส่วนกลาง 52 บาท/ตร.ม./เดือน (ตั้งแต่ปี 2565)
  • ค่ากองทุน 500 บาท/ตร.ม

ลงทะเบียนรับสิทธิพิเศษ คลิก* www.sansiri.com/condominium/theline-phahon-pradipat/th/

Screen Shot 2563-05-29 at 23.43.01


สรุป

ทำเลที่ตั้งโครงการ : The Line พหลฯ – ประดิพัทธ์ ตั้งอยู่ติดถนนประดิพัทธ์ฝั่งมุ่งหน้าแยกสะพานควาย จุดเด่นของโครงการนี้คือตั้งอยู่เกาะเส้น BTS ในระยะทางประมาณ 550 เมตร ที่ถึงแม้ว่าจะเกินระยะเดินสบายไปหน่อยแต่เส้นทางจาก BTS จนมาถึงตัวโครงการจะมีฟุตบาทตลอดทาง ทำให้การเดินเท้ามาโครงการยังพอรับได้อยู่ แต่เนื่องจากย่านนี้มีคนอาศัยอยู่เยอะ ทำให้เวลาเดินช่วงเช้าหรือเย็นๆจะมีคนค่อนข้างแน่น อาจจะต้องเผื่อเวลากันนิดนึงเพราะเราเร่งฝีเท้าไม่ค่อยได้ ต้องเดินตามสเต็ปไปค่ะ

จุดเด่นอีกอย่างของทำเลที่ตั้งโครงการคือความอุดมสมบูรณ์โดยรอบที่มีค่อนข้างเยอะ ออกมาหน้าโครงการก็มีร้านให้เลือกหลายร้านทั้งกลางวันและกลางคืน โดยจะเป็นร้านในราคาที่สามารถจับจ่ายในชีวิตประจำวันได้สบายๆค่ะ

การเดินทางด้วยรถยนต์ส่วนตัว : สะดวกค่ะ ตัวโครงการติดถนนถนนประดิพัทธ์ ที่สามารถเชื่อมกับถนนเส้นหลักๆอย่างพหลโยธินและถนนสุทธิสารวินิจฉัยได้ นอกจากนั้นตัวถนนประดิพัทธ์เองยังใช้วิ่งยาวไปเชื่อมกับถนนทหารและถนนสามเสน ใช้ลัดไปถนนราชวิถีเพื่อไปฝั่งธนฯได้ นอกจากนั้นยังใช้ไปถนนพระราม 6 , ถนนเทอดดำริ, ถนนพระราม 5 ที่สามารถใช้เชื่อมไปถนนประชาชื่นใช้วิ่งยาวผ่านรัชดาภิเษกไปจนถึงแจ้งวัฒนะ หลักสี่ได้ค่ะ

การเดินทางด้วยรถสาธารณะ : มีให้เลือกใช้หลายเส้นทาง โดยจุดเด่นของโครงการอยู่ที่ห่างจาก BTS สะพานควายประมาณ 550 ม. มีฟุตบาทตลอดทางจากโครงการถึงตัวสถานีจึงทำให้เดินได้สะดวกแต่จำนวนคนใช้ฟุตบาทจะเยอะหน่อย ทำให้ในเวลาเร่งด่วนอาจจะเร่งฝีเท้าไม่ค่อยได้ จึงต้องเผื่อเวลาเดินทางให้ดีค่ะ

นอกจากนั้นยังมีป้ายรถเมล์อยู่เยื้องจากหน้าโครงการ และพี่วินมอเตอร์ไซค์อยู่ตรงปากซอยประดิพัทธ์ 21 ที่ติดกับพื้นที่ของโครงการเลย ส่วน Taxi เรียกหน้าโครงการได้เลย ภาพรวมถือว่าสะดวกไม่มีรถส่วนตัวก็อยู่โครงการนี้ได้อย่างไม่ลำบากค่ะ

การออกแบบโครงการและวัสดุ : โครงการออกแบบมา 1 อาคารพักอาศัย สูง 46 ชั้น และ 1 อาคารส่วนกลางสูง 2 ชั้น บนพื้นที่ดินขนาดประมาณ 5 ไร่ มีแนวคิดการออกแบบที่คำนึงถึงความกลมกลืน และสอดคล้องไปกับธรรมชาติ Concept การออกแบบที่ออกแบบมาที่ต้องการให้ผู้อยู่อาศัยรู้สึกเหมือนอยู่ในบ้านหลังใหญ่ที่ถูกโอบกอดด้วยธรรมชาติ

การออกแบบห้องพักอาศัยที่นี่มีให้เลือกมากถึง 39 แบบ แต่แยกเป็นแบบหลักๆได้ตามจำนวนห้องนอน คือ 1 Bedroom มีขนาดตั้งแต่ 26.25 – 40.75 ตร.ม. , 2 Bedroom ขนาดตั้งแต่ 51.50 – 67.00 ตร.ม. , 3 Bedroom ขนาดตั้งแต่ 79.00 – 111.50 ตร.ม.

โดยทุกแบบจะถูกออกแบบมาให้ดูโปร่งไม่อึดอัดด้วยความสูงฝ้า 2.7 ม. กระจกภายในห้องให้มาใหญ่ สูงจากพื้นจนเกือบถึงฝ้าเลย ช่วยในเรื่องแสงที่เข้าถึงในห้องได้ดี การจัดฟังก์ชั่นในห้องจากที่ได้ดูในห้องตัวอย่างก็ลงตัว ไม่มีจุดไหนที่ใช้งานแล้วรู้สึกติดขัด

โครงการขายแบบ Fully Fitted เฟอร์นิเจอร์ตัวมาตรฐานหลักที่จะมีมาให้ทุกห้อง เป็นแบบ Built – in คือเคาน์เตอร์ครัว Top เป็น Porcelain Slab อ่างล้างจานฝังท็อป และ Hob & Hood ของ Mex และตู้เสื้อผ้าบานกระจกสีดำ

พื้นครัว, ระเบียงและห้องน้ำใช้กระเบื้อง ส่วนห้องนอนและห้องนั่งเล่นพื้นปูลามิเนต, ประตูทางเข้าห้องได้ Digital Door Lock จาก Yale และสุขภัณฑ์ครบชุดจาก Cotto ทั้งหมด พร้อม Shower Box กระจกนิรภัย

สิ่งอำนวยความสะดวก : Facilities เป็นอีกจุดเด่นของโครงการ โดยรวมทำออกมาได้สวยน่าใช้ตามสไตล์แสนสิริ จะมีส่วนกลางมาตรฐานในอาคารหลักคือ Lobby สูง 9.2 เมตร ที่ชั้น 1, สระว่ายน้ำแยกสระเด็กสระผู้ใหญ่ ขนาด 30 x 7 เมตร พร้อม Pool Terrace, Play Ground, Rooftop Garden, Sky Lounge, Fitness, Sauna & Stream

และอาคารส่วนกลางแยกจากอาคารหลัก มี Secret Garden, Co-Kitchen, Co-Working Space, Outdoor Dinning, Theatre Room

ลิฟต์โดยสารมีให้ 6 ตัว อัตราส่วนอยู่ที่ 163 ต่อลิฟต์ 1 ตัว ที่จอดรถจอดได้ที่ชั้น 2 – 8 และรอบๆอาคาร ทั้งโครงการจอดได้ 50% รวมซ้อนคัน

สอบถามรายละเอียดเพิ่มเติมได้ที่

Tel : 1685

Website : http://www.sansiri.com

หากเพื่อนๆเห็นว่ารีวิวนี้มีประโยชน์ ช่วยกด Like เพื่อเป็นกำลังใจให้ทีมงาน ขอบคุณค่ะ

และมีความคิดเห็นหรือข้อมูลเพิ่มเติมเกี่ยวกับตัวโครงการ สามารถ Comment ได้ที่ด้านล่างของรีวิวค่ะ

อ่านเพิ่มเติม


สนใจลงโฆษณากับทาง Homenayoo ติดต่อสอบถามรายละเอียดได้ที่
คุณวันเฉลิม  086-1290293 
LINE ID : 123456786205
Email : wanchalearm.t@gmail.com
ทางเราเป็นเว็บไซต์ให้ข้อมูล ไม่ใช่เจ้าของโครงการนะครับ