
EP.975 รีวิว บ้านเดี่ยว มัณฑนา ศรีนครินทร์ – บางนา Mantana Srinakarin – Bangna
สวัสดีผู้อ่าน Homenayoo ที่รักทุกคนค่ะ วันนี้เราจะขอพาไปชมโครงการ มัณฑนา ศรีนครินทร์ – บางนา จาก แลนด์ แอนด์ เฮ้าส์ บ้าน เดี่ยว 2 ชั้นบนถนนวัดหนามแดงซึ่งเชื่อมต่อกับถนนศรีนครินทร์และถนนกาญจนาภิเษก ซึ่งเป็นทำเลที่เข้าออกเมืองได้สะดวก บริเวณรอบๆโครงการมีสิ่งอำนวยความสะดวกหลากหลาย ทั้ง Central บางนา, Big C, SB Design Square, Mega บางนา และ IKEA นอกจากนี้บนถนนศรีนครินทร์ในอนาคตจะมีรถไฟฟ้าสายสีเหลืองวิ่งผ่าน โดยสถานีที่ใกล้โครงการที่สุดคือ สถานีศรีด่าน
โครงการ มัณฑนา ศรีนครินทร์ – บางนา เป็นโครงการบ้านเดี่ยว 2 ชั้น สไตล์ Modern พร้อมสัญญาณกันขโมยและ LH Smart Home แผงควบคุมระบบแอร์พลัส ระบายอากาศภายในตัวบ้าน ทำงานอัตโนมัติ 24 ชั่วโมง จากพลังงานโซลาเซลล์ มีแบบบ้านให้เลือกทั้งหมด 7 แบบ พื้นที่ใช้สอย 142 – 279 ตร.ม. บนที่ดิน 50 – 130 ตร.ว. ราคาเริ่มต้น 8-18.6 ล้านบาท (มิ.ย.61)
สิ่งอำนวยความสะดวกครบครัน เน้นพื้นที่สีเขียวภายในโครงการ และสิ่งอำนวยความสะดวกอื่นๆ อาทิ Clubhouse, ห้องพักผ่อน, สระว่ายน้ำระบบน้ำเกลือพร้อมสระ Jacuzzi, ห้องฟิตเนส พร้อมทะเลสาบและสวนสาธารณะขนาดใหญ่ รวมไปถึงระบบรักษาความปลอดภัยในโครงการ 24 ชั่วโมง
โครงการจะเป็นอย่างไร เราไปดูรายละเอียดกันต่อด้านล่างกันค่ะ

| ชื่อโครงการ | มัณฑนา ศรีนครินทร์ – บางนา Mantana Srinakarin – Bangna |
| เจ้าของโครงการ | แลนด์แอนด์เฮ้าส์ Land&Houses |
| ลักษณะโครงการ | บ้านเดี่ยว |
| พื้นที่โครงการ | 99 ไร่ |
| จำนวนบ้าน | 414 หลัง |
| พื้นที่ใช้สอย | เริ่มตั้งแต่ 142 – 279 ตร.ม. |
| เนื้อที่บ้าน | เริ่มตั้งแต่ 50 – 130 ตร.ว. |
| จำนวนห้อง | 3 – 4 ห้องนอน 3 – 5 ห้องน้ำ |
| ที่จอดรถทั้งหมด | 2 คัน |
| โซน | สมุทรปราการ |
| ขนส่งสาธารณะ |
|
| รถโดยสารที่ผ่าน | n/a |
| ที่ตั้ง | ซอยวัดหนามแดง ต.บางแก้ว อ.บางพลี จ.สมุทรปราการ |
| กำหนดการ | เปิดขายปลายปี 2557 |
| ปีที่สร้างเสร็จ | กำหนดเสร็จทั้งโครงการปลายปี 2561 |
| ราคา | เริ่มต้น 8 ล้านบาท |
| ค่าส่วนกลางและกองทุน | ค่าส่วนกลาง 30 บาท/ตร.ว. |
| สถานที่สำคัญใกล้เคียง |
|
| สิ่งอำนวยความสะดวก | – สระว่ายน้ำ, สระว่ายน้ำในร่ม พร้อมจากุซซี่ – ฟิตเนส แบบ Panorama – ซาวน่า และ สตีม – สนามเด็กเล่น – สวนส่วนกลาง – มุมผ่อนคลายริมสวนน้ำ – ลู่วิ่งจ๊อกกิ้ง – มุมพักผ่อนรอบสวนน้ำ |
| จุดเด่นของโครงการ | บ้านเดี่ยวใหม่ จาก แลนด์แอนด์เฮ้าส์…ภายใต้คอนเซ็ปต์ “The Green Carpet Rest” จะดีแค่ไหน ถ้ามีธรรมชาติเขียวขจี คอยรองรับทุกการใช้ชีวิตของลูก มีแบบบ้านให้เลือกทั้งหมด 7 แบบ พร้อมสิ่งอำนวยความสะดวกครบครัน |
โครงการโดยรอบ
ที่ตั้งโครงการ
ซอยวัดหนามแดง ต.บางแก้ว อ.บางพลี จ.สมุทรปราการ
พิกัด : 13.622081, 100.649120
แผนที่จากทางโครงการค่ะ
โครงการ มัณฑนา ศรีนครินทร์ – บางนา ตั้งอยู่ในซอยวัดหนามแดง ห่างจากถนนศรีนครินทร์ประมาณ 2.4 กิโลเมตร สภาพแวดล้อมบนถนนหนามแดงส่วนใหญ่จะเป็นลักษณะชุมชน มีทั้งวัดและโรงเรียนวัดหนามแดง, โครงการแนวราบทั้งทาวน์โฮม และบ้านเดี่ยว มีร้านอาหารบ้างประปราย
สำหรับการการเดินทางด้วยรถยนต์ส่วนตัว สามารถไปได้หลายทางค่อนข้างสะดวก จัดว่าเป็นทำเลที่เหมาะกับคนใช้รถ สามารถใช้วิ่งเข้าออกเมืองได้สะดวกทั้งเส้นศรีนครินทร์, บางนาและถนนกาญนาภิเษกเลย เนื่องจากย่านนี้มีโรงเรียน โรงพยาบาลอยู่เยอะค่ะ
แต่โครงการอยู่ในซอยวัดหนามแดงซึ่งห่างจากโซนติดหนักอย่างสุขุมวิท บางนา ออกมาพอสมควร เพราะเส้นศรีนครินทร์และกาญจนาภิเษกในภาพรวมการจราจรคล่องตัวดีเป็นส่วนใหญ่ค่ะ จะมีติดๆบ้างในตัวซอยวัดหนามแดงเองเนื่องจากเป็นซอยสองเลนและมีหมู่บ้านในซอยเยอะ ปริมาณรถจึงเยอะตามไปด้วย แต่ในอนาคตจะมีการขยายถนนเป็น 4 เลน ก็จะช่วยให้การจราจรคล่องตัวมากขึ้นค่ะ
โดยจากซอยวัดหนามแดง จะสามารถเชื่อมกับเส้นทางหลักๆ อย่างถนนศรีนครินทร์ ซึ่งเป็นถนนสายหลักที่สามารถเชื่อมไปในเมืองอย่าง ถนนรามคำแหง, พัฒนาการ, อ่อนนุชได้ และถนนเทพารักษ์ ที่เชื่อมเข้าสู่ถนนสายหลักอย่างสุขุมวิท ที่สามารถพาเราเข้าและออกเมืองได้สะดวก
สำหรับทางด่วนที่ใกล้โครงการที่สุด จะเป็นวงแหวนรอบนอก ที่จุดขึ้นลงทางด่วนเทพารักษ์ ซึ่งจุดนี้สามารถใช้ได้ทั้งขาเข้า และขาออกเลยค่ะ ระยะทางจากโครงการมาที่จุดขึ้นทางด่วนนี้ ก็จะอยู่ที่ประมาณ 6.5 กม. ใช้เวลาประมาณ 10 – 20 นาทีค่ะ
และสำหรับคนใช้รถที่ใช้วงแหวนรอบนอกกาญนาภิเษกเป็นเส้นทางหลักในการเดินทางมายังโครงการ จะมีจุดทางด่วนลงวงแหวนรอบนอกอยู่ที่เส้นถนนเทพารักษ์ค่ะ โดยเมื่อเข้าถนนเทพารักษ์แล้วให้เลี้ยวซ้ายเข้าซอยบุญธรรมอนุสรณ์ เพื่อเข้าซอยวัดหนามแดง 
การเดินทางด้วยรถสาธารณะ จากหน้าโครงการเลยก็มีตัวเลือกไม่มากคือสามารถใช้รถสองแถวและ Taxi ได้ ส่วนรถไฟฟ้าจะต้องออกไปไกลหน่อย สำหรับปัจจุบันสถานีที่ใกล้โครงการที่สุดคือ BTS สถานีสำโรง และสถานีแบริ่ง ซึ่งมีระยะห่างจากโครงการประมาณ 8 กม. เท่าๆกัน
นอกจากนั้นในอนาคต ก็จะมีโครงการรถไฟฟ้าสายสีเหลือง (ลาดพร้าว-สำโรง) ซึ่งเป็นเส้นทางเชื่อมต่อจากลาดพร้าวมาถึงสำโรง โดยรถไฟฟ้าสายสีเหลืองนี้ จะสามารถเชื่อมต่อระหว่างรถไฟฟ้าสายสีน้ำเงิน, รถไฟฟ้าสายสีเทา, รถไฟฟ้าสายสีส้มและ Airport Rail Link โดยวิ่งมาตามเส้นลาดพร้าว, ถนนศรีนครินทร์ และสิ้นสุดที่สถานีสำโรง รวมทั้งสิ้น 23 สถานี และจะมีสถานีศรีด่าน ที่อยู่ใกล้กับโครงการมากที่สุด ทำให้การเดินทางสะดวกสบายมากขึ้นค่ะ (กำหนดการเสร็จปี 2562)
ความอุดมสมบูรณ์รอบๆโครงการ ถือว่ามีพอให้พึ่งพาพอสมควร เนื่องจากซอยนี้เป็นซอยที่มีหมู่บ้านอยู่เยอะ ทำให้รอบๆโครงการในระยะเดินมีความอุดมสมบูรณ์หาของกินง่าย มี 7 – 11 มีร้านก๋วยเตี๋ยว ร้านอาหารตามสั่ง ของกินและสิ่งอำนวยความสะดวกต่างๆในซอยก็มีพอสมควร เช่น Mini BigC ค่ะ
ส่วนถ้าใครอยากจะเดินตลาดใหญ่ๆหน่อยก็ต้องขึ้นไปตลาด Number One Plaza ที่มีทั้งตลาดสด และตลาดนัดเลยค่ะ ส่วนแหล่ง Shopping จะต้องไปช่วงถนนบางนาเลยค่ะ ซึ่งจะมี Mega Bangna, Ikea และ Central บางนาหรือจะขึ้นไปทางโซนศรีครินทร์ ซึ่งก็จะมี Paradise Park และ Seacon Square ที่นับเป็นแหล่งช้อปปิ้งหลักของย่านศรีนครินทร์ค่ะ
การเดินทาง
สำหรับการเดินทางในวันนี้ เราจะเริ่มต้นที่แยกลาซาล ตรงไปบนถนนศรีนครินทร์เรื่อยๆ จนถึงบริเวณแยกวัดด่านสำโรง เลี้ยวซ้ายเข้าถนนหนามแดง – บางพลี ตรงไปบนถนนเรื่อยๆประมาณ 2.4 กิโลเมตร จะถึงโครงการ มัณฑนา ศรีนครินทร์ – บางนา ค่ะ
สรุปการเดินทาง ถนนศรีนครินทร์ > แยกลาซาล > ซอยวัดหนามแดง > โครงการ มัณฑนา ศรีนครินทร์ – บางนา
ลงจากสะพานข้ามแยกมาสักพักจะเจอ แม็คโคร และ Big C ทางซ้ายมือ
ผ่าน Teso Lotus Express
ขับมาอีกสักพักจะเจอ FoodLand ใครหิวแวะทานอาหารก่อนได้นะ
ชิดเลนซ้ายมาเรื่อยๆ เราจะตรงเข้าแยกวัดด่านสำโรง ส่วนสะพานทางขวา คือสะพานข้ามแยกเทพารักษ์ ซึ่งถ้าจะมาโครงการแล้วเผลอชิดขวาขึ้นสะพานไป นี่ต้องกลับรถไกลเลยนะคะ สังเกตุกันให้ดีๆ ตรงมาอีกนิดจะเห็นป้ายบอกทางเข้าถนนหนามแดงแล้ว
เลี้ยวซ้ายเข้าถนนหนามแดง – บางพลีค่ะ
เลี้ยวเข้าซอยมาแล้วเราขับตรงต่อไปอีกประมาณ 2.4 กม.
เข้ามาในซอยวัดหนามแดงจะเป็นถนน 2 เลน ที่รถค่อนข้างติด เป็นผลมาจากโรงเรียนสารสาสน์วิเทศ ซึ่งกำลังจะมีการขยายถนนให้กว้างขึ้นเป็นถนน 4 เลน ก็จะช่วยให้การจราจรสะดวกขึ้นได้ค่ะ
เข้าเขต อบต.บางแก้วค่ะ
สภาพแวดล้อมบนถนนหนามแดง – บางพลี ส่วนใหญ่จะเป็นทาวน์โฮม มีร้านอาหารหลายร้าน และตลาดสด ช่วงต้นๆซอย แต่ปลายซอยจะเงียบหน่อยค่ะ
ผ่าน Mini BigC ซึ่งเป็น Hyper Market ที่ใกล้โครงการที่สุดค่ะ
และ 7-11 ที่ใกล้โครงการที่สุดอีก 1 จุด
ขับตรงมาอีกหน่อยจะเห็นตัวโครงการทางซ้ายมือแล้วค่ะ
แยกและถนนใกล้เคียงโครงการ
สิ่งอำนวยความความสะดวกใกล้โครงการ
รอบๆโครงการ
รอบๆโครงการส่วนใหญ่จะเป็นที่ที่อยู่อาศัยแนวราบและที่ดินเปล่าข้างเคียง
เราออกมาดูบรยากาศรอบๆกันบ้าง เริ่มจากหน้าโครงการจะเป็นเพิงขายของ มีร้านอาหารตามสั่ง
ติดกับเพิงเป็นร้านก๋วยเตี๋ยว
ถัดมาเป็นศูนย์ฮอนด้า ขายมอเตอร์ไซค์
นอกจากนั้นก็ร้านอื่นๆ เช่น ร้านผ้าม่าน, อู่ซ่อมรถ, จานดาวเทียม เป็นต้น
กลับมาดูบรรยากาศทางฝั่งโครงการกันบ้าง ติดกับโครงการทางซ้ายมือเป็นร้านก๋วยเตี๋ยวเรืออยุธยา
ถัดมามี 7 – 11 ใกล้กับโครงการเลยค่ะ
เดินต่อมาอีกหน่อยเป็นร้านก๋วยเตี๋ยวรถเข็นโกเด้ง
และร้านฮานน้ำ ขายอาหารเหนือจำพวกข้าวซอย, ขนมจีน และอาหารเหนือพื้นบ้านอื่นๆ
ฝั่งตรงข้ามร้านฮานน้ำจะเป็นวัดหนามแดงและโรงเรียนค่ะ
ตัวโครงการ
โครงการมัณฑนา ศรีนครินทร์ – บางนา เป็นโครงการบ้านเดี่ยว 2 ชั้น บนพื้นที่ 99 ไร่ ตัวโครงการตั้งอยู่ติดถนนซอยหนามแดง โดยจะมีถนนทางเข้าเชื่อมจากซอยวัดหนามแดง เข้ามาประมาณ 180 เมตร จะถึงซุ้มทางเข้าหลัก จากซุ้มทางเข้าหลักเข้าไปจะเจอถนนหลักโครงการ กว้าง 16 เมตร และจะเริ่มมีบ้านพักอาศัยตั้งแต่ต้นโครงการ ติดกับถนนหลักทางซ้ายมือ
เมื่อเข้ามาถึงพื้นที่ช่วงกลางโครงการจะเจอวงเวียน จากวงเวียนจะมีถนนแยกซ้ายและขวา และสามารถมองเห็นส่วนกลางได้ชัดเจน ถือเป็นพื้นที่เปิดโล่งขนาดใหญ่ของโครงการเลยค่ะ โดยภายในส่วนกลางจะมีทะเลสาบขนาดใหญ่ ล้อมรอบด้วยสวนสาธารณะ, Clubhouse, สระว่ายน้ำ, โถงพักผ่อนและ Fitness
ถัดขเาไปช่วงครึ่งหลังของโครงการจะแบ่งเป็นถนนเส้นหลัก 2 ฝั่ง ความกว้างถนน 12 เมตร และแยกเป็นถนนซอยย่อย โดยถนนซอยย่อยจะมีความกกว้าง 8 เมตร
มาดูขอจริงกันบ้าง เริ่มจากด้านหน้าโครงการ จะเห็นป้ายโครงการ มัณฑณา ศรีนครินทร์ – บางนา และป้ายบิลบอร์ดของโครงการบอกทางและโปรโมชั่นโครงการด้านบน
ส่วนป้ายหลักโครงการที่จะยังอยู่หลังโครงการขายหมดแล้วจะเป็นป้ายด้านหลัง พร้อมพุ่มต้นไม้และน้ำพุตกแต่ง
ถนนทางเข้าเป็นถนนคอนกรีตสองเลนมีทางเดินเท้าทั้งสองฝั่ง และปลูกต้นไม้ทั้งไม้ยืนต้นและรั้วไม้พุ่มเอาไว้เป็นแนวดูเรียบร้อยดี รถเข้าโครงการฝั่งซ้าย ออกโครงการฝั่งขวา
เข้ามาประมาณ 180 เมตร จะเจอวงเวียนและซุ้มทางเข้าหลัก
แยกทางเข้าออก โดยครึ่งฝั่งขาเข้าทางซ้ายมือจะมีหลังคากันแดดกันฝนมาให้
ตัวอาคารทางซ้ายมือที่เราเห็นจะเป็น Service Center เปิดให้บริการ 9.00 – 17.30 น.
ทางเข้าและออกของซุ้มโครงการจะแบ่งย่อยออกเป็นฝั่งละสองช่องค่ะ อย่างที่เห็นคือฝั่งทางเข้าโครงการ จะแบ่งเป็นช่องลูกบ้าน และ ช่องผู้มาติดต่อ พื้นส่วนซุ้มทางเข้าออกโครงการจะเป็นคอนกรีตสแตมป์นะคะ
ช่องซ้ายลูกบ้านจะเข้าออกผ่านรั้วไม้กระดกด้วย Access card แบบแตะ ส่วนช่องขวาใกล้ป้อมรปภ. ตรงกลางเป็นช่องของผู้มาติดต่อ ซึ่งรปภ. จะได้สอบถาม ขอแลกบัตร และจดบันทึกได้ง่าย พร้อมกล้อง CCTV ที่ซุ้มทางเข้าออกเพื่อบันทึกภาพหน้าคนขับและป้ายทะเบียน นอกจากนั้นจะมีการตรวจท้ายรถทั้งขาเข้า – ออก เพื่อความปลอดภัย
เข้ามาภายในโครงการ ฝั่งซ้ายมือเป็นที่จอดรถของอาคาร Service Center
เข้ามาจะเป็นถนนโครงการกว้าง 16 เมตร เป็นถนนคอนกรีต ฝั่งขวามือเป็นรั้วโครงการสูง 3.6 เมตร เป็นรั้วกันปีน พร้อมรปภ.ตระเวนตรวจสอบความปลอดภัยทุก 1 ชั่วโมง
มีบ้านโซนแรกอยู่ทางฝั่งซ้ายมือยาวไปเป็นแนว
เข้ามาอีกหน่อยจะมีซอยแยกทางซ้ายและขวามือ
ภายในซอยเป็นถนนกว้าง 8 เมตร
บรรยากาศโดยรวมสะอาดเรียบร้อย การจัดวางบ้านจะหันหน้าเข้าหากัน 2 ฝั่งถนน
เข้ามาถึงวงเวียนใหญ่ตรงกลางจะจเอพื้นที่เปิดโล่ง
มองตรงไปเป็นทะเลสาบและสวนสาธารณะขนาดใหญ่
จากวงเวียนมองไปทางขวามือจะมีถนนแยกเป็นซอยย่อยและถนนหลักเชื่อมไปด้านในโครงการ โดยถนนจะกว้าง 12 เมตร และถนนซอยกว้าง 8 เมตร
วิวทะเลสาบและสวนสาธารณะมองจากถนนหลังทางขวามือ
จากวงเวียนไปทางฝั่งซ้ายจะแยกเป็นถนนหลักเชื่อมไปยังพื้นที่ด้านหลังโครงการเช่นกัน
ให้ดูบรรยากาศภายในโครงการจะเห็นว่าลงต้นไม้ใหญ่ไว้ให้ค่อนข้างเยอะ ดูร่มรื่น
ช่วงครึ่งหลังของโครงการจะมีวงเวียนเล็กแบบนี้ทั้ง 2 ฝั่ง
บรรยากาศถนนหลักด้านในร่มรื่นมาก ต้นไม้เพียบเลยค่ะ
เราชมบรรยากาศรอบๆโครงการกันไปแล้ว ถัดมาเราจะไปดูส่วนกลางกันบ้าง โดยทางเข้าส่วนกลางจะอยู่บนถนนด้านหลังอาคาร Clubhouse ค่ะ
ทางเข้าอาคาร Clubhouse จะมีทางเข้า 2 ทาง คือทางเข้าหลักที่จะเชื่อมไปยังสวนและทะเลสาบ ส่วนทางเข้าอีกทางคือทางเข้าเล็กที่จะเข้าไปยังส่วนสระว่ายน้ำและฟิตเนสค่ะ
เราเข้าไปดูส่วนกลางโดยเริ่มจากทางเข้าหลักก่อน เข้ามาจะเจอซ้ายและขวา จอดได้ประมาณ 7 คัน
เข้ามาอีกหน่อยจะเห็นบันไดทางขึ้น Clubhouse ส่วนทางขวาเป็นทางเดินไปยังสวนสาธารณะ
เรามาเดินชมสวนด้านนอกกันก่อน
สวนสาธารณะออกแบบด้วย Concept: Green Carpet Rest ที่ให้ความรู้สึกร่มรื่น ผ่อนคลายและเป็นธรรมชาติ โดยออกแบบกิจกรรมในสวนสาธารณะเช่น ลู่วิ่งรอบสวน, สนามเด็กเล่น, ศาลานั่งเล่นริมน้ำ, ลานอเนกประสงค์ เน้นการเข้าถึงธรรมชาติ
พื้นที่ลานหญ้าสีเขียวขนาดใหญ่ เหมือน Green Carpet ตาม Concept เป๊ะ
ภายในสวนจะมีทางเดินรอบ สามารถใช้เป็น Jogging Track ได้
ฝั่งติดกับทะเลสาบจะมีบ่อน้ำ + สวนหินจักตกแต่งไว้ให้
วิวจากสวนมองเห็นทะเลสาบกว้างไกล
ระหว่างทางเดินในสวนจะมีเก้าอี้นั่งพักผ่อนไว้ให้ตามทาง
มีสนามเด็กเล่น จัดของเล่นชิ้นใหญ่ไว้ให้ 1 ชุด พื้นเป็นแบบกันกระแทก ช่วยป้องกันการบาดเจ็บของเด็กๆ
และเครื่องออกกำลังกายกลางแจ้ง 4 ชิ้น
กลับมาที่ตัวอาคาร Clubhouse ส่วนแรกที่ขึ้นมาเจอจะเป็นศาลาชมวิว ที่สามารถเห็นวิวสวนและทะเลสาบได้โดยรอบ
ด้านในจัดเก้าอี้นั่งพักผ่อนชมวิวมาให้ 2 ชุด
วิวจากศาลามองไปเห็นทะเลสาบ
และสวนสาธารณะ
จากส่วนศาลาจะมีทางเชื่อมไปยังห้องพักผ่อนและสำนักงานขาย
เข้ามาภายในจะเจอโถงขนาดใหญ่ จากโถงนี้สามารถมองเห็นวิวทะเลสาบและสามารถเชื่อมออกไปส่วนกลางอื่นๆคือ ฟิตเนสและสระว่ายน้ำ ส่วนโถงนี้ลูกบ้านสามารถเข้ามานั่งพักผ่อนได้ และปัจจุบันยังคงเป็นสำนักงานขายร่วมด้วยค่ะ
กลับออกมาที่ทางเข้ารองที่เราบอกไปก่อนหน้านี้ จะเป็นทางเข้าตรงเข้าสู่ส่วนสระว่ายน้ำ และฟิตเนสค่ะ
เข้ามาด้านในจะเจอพื้นที่พักผ่อนใต้อาคาร และบันไดขึ้นชั้น 2 พร้อมเจ้าหน้าที่คอยดูแลความเรียบร้อย
ส่วนแรกจะเป็นพื้นที่นั่งพักกึ่ง Outdoor ลมโกรกดีมากค่ะ
ติดกันเป็นจุดล้างตัวก่อนลงสระ
ส่วนทางฝั่งขวามือจะมีที่นั่งอีกจุด และห้องน้ำข้างสระ
ที่นั่งฝั่งนี้จัดโซฟายาวไว้ให้ 2 ตัว พร้อมโต๊ะวางของ
เราไปดูส่วนห้องน้ำข้างสระกันต่อ ภายในมีห้อง Sauna, Steam โดยแยกมาให้ทั้งห้องน้ำชายและห้องน้ำหญิง
เราพาเข้ามาดูในห้องน้ำชายกันก่อนนะคะ ภายในห้องน้ำมีขนาดกว้าง ใส่ฟังก์ชั่นไว้ครบเป็นสัดส่วน
เข้ามาจะเจอล็อกเกอร์เก็บของทางฝั่งซ้ายมือ มีทั้งหมด 8 ช่อง
ทางขวามือเป็นโซนโถสุขภัณฑ์และห้องอาบน้ำ โดยจะมีโถปัสสาวะมาให้ 4 โถ และห้องอาบน้ำ 3 ห้อง
ภายในห้องอาบน้ำค่ะ
ส่วนอ่างล้างมือติดตั้งมาให้ 3 อ่าง
ฝั่งตรงข้ามเป็นห้องน้ำ 3 ห้อง
ภายในห้องน้ำติดตั้งโถสุขภัณฑ์แบบอัตโนมัติ
ถัดเข้ามาด้านในจะมีแบ่งโซนเป้นห้อง Steam และ Sauna โดยจะมีตกแต่งพื้นหินเพื่อตัดบรรยากาศ
ภายในห้อง Sauna
ภายในห้อง Steam ค่ะ
ถัดมาเราเข้าไปดูในห้องนำ้หญิงกันต่อ
เข้ามาด้านในจะแบ่งเป็นโซนซ้าย และขวา
ทางซ้ายจะเป็นส่วนห้องน้ำ มีทั้งหมด 4 ห้อง
ทางขวาจะเป็นส่วน Locker, อ่างล้างมือ และห้องอาบน้ำ 4 ห้อง
ด้านในแบ่งโซนห้อง Steam & Sauna เหมือนในห้องน้ำชายค่ะ
กลับมาที่โซนสระว่ายน้ำ ทางซ้ายมือจะมีสระว่ายน้ำระบบเกลือขนาดใหญ่ แยกสระผู้ใหญ่ 1 สระ, บ่อ Jacuzzi 1 จุด และสระว่ายน้ำเด็ก 2 สระ
สระว่ายน้ำเด็กจะเป็นสระแบบ Indoor บางส่วน
อีกฝั่งนึงของสระว่ายน้ำจะมีศาลาพร้อมอ่างจากุซซี่มาให้ โดยตัวอ่างจากุซซี่มีที่นั่งรูปตัว U มาให้นั่งแช่น้ำกันได้สบายๆไม่อึดอัด
ส่วนสระว่ายน้ำเด็กอีกสระจะอยู่ในร่มแบบนี้ คุณแม่มาเล่นกับเด็กๆได้ สบายๆ
อีกฝั่งนึงของสระว่ายน้ำ จะมีลานพักผ่อนริมสระว่ายน้ำพร้อมเก้าอี้เอนริมสระมาให้หลายตัว
พื้นสระว่ายน้ำรอบๆปูกระเบื้องเซรามิกผิวด้านมาให้พร้อมทำทางเดินมาให้เดินเล่นได้โดยรอบ
ภาพรวมของอาคาร Clubhouse และสระว่ายน้ำจากอีกมุมค่ะ จะเห็นว่ามีส่วนสระในร่มและที่นั่งริมสระแบบโซฟาในร่มอยู่ด้วย กรณีต้องการหลบแดดนะคะ
ติดกับสระว่ายน้ำอีกด้านจะมีห้องนั่งพักผ่อนอยู่อีกห้อง ทางเข้าจะเป็นประตูกระจก ที่เวลาอากาศดีสามารถเปิดรับลมได้ทั้งหมด ด้านหน้าห้องพักผ่อนมีชุดโต๊ะเก้าอี้มาให้ 2 ฝั่ง
ภายในห้องพักผ่อนมีที่นั่งเตรียมไว้ให้หลายจุดค่ะ ทั้งสตูลข้างชั้นหนังสือและชุดโซฟา
อีกมุมของห้อง
ออกมาจกาห้องพักผ่อนจะเห็นวิวสระว่ายน้ำแบบนี้
ต่อมาเราขึ้นไปดูบนชั้น 2 กันต่อ
ขึ้นมาจะเจอระเบียงพักผ่อนกลางแจ้ง
วิวจากระเบียงจะเห็นสระว่ายน้ำด้านล่างและทะเลสาบ
ฝั่งขวามือจะเป็นทางเข้าโถงพักผ่อนใหญ่ ที่เราเข้าไปดูกันตอนต้น (โถงของสำนักงานขายปัจจุบัน)
ส่วนทางซ้ายมือจะเป็นห้องฟิตเนส
ห้องฟิตเนสโครงการวางชุดเครื่องเล่นมาให้ประมาณ 8 ชุดค่ะ พื้นห้องปูกระเบื้องยางลายไม้ ผนังฝั่งนึงเป็นกระจกเงา อีกฝั่งเป็นกระจกใสหันไปทางวิวสระว่ายน้ำและทะเลสาบของโครงการ
อีกฝั่งของห้องมีผนังเป็นกระจกเงา
มีลู่วิ่งไฟฟ้ามาให้ 2 เครื่อง หันหน้าออกไปทางวิวสระน้ำและทะเลสาบแบบนี้
เครื่อง Eliptical 1 เครื่อง
และมีเครื่องปั่นจักรยานมาให้ 3 เครื่อง หันหน้าออกไปทางวิวสระน้ำและทะเลสาบเช่นกัน
มีเครื่องเพาะกายมาให้อีก 1 ชุด ด้านข้างมีชุดที่นั่งมาให้นั่งพักผ่อนได้
และมีเบาะซิทอัพ 1 เบาะ
พร้อมชุดบาร์ยกน้ำหนักมาให้อีก 1 ชุด
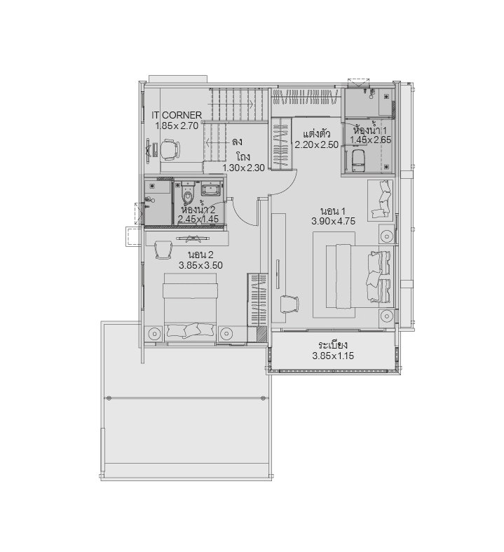
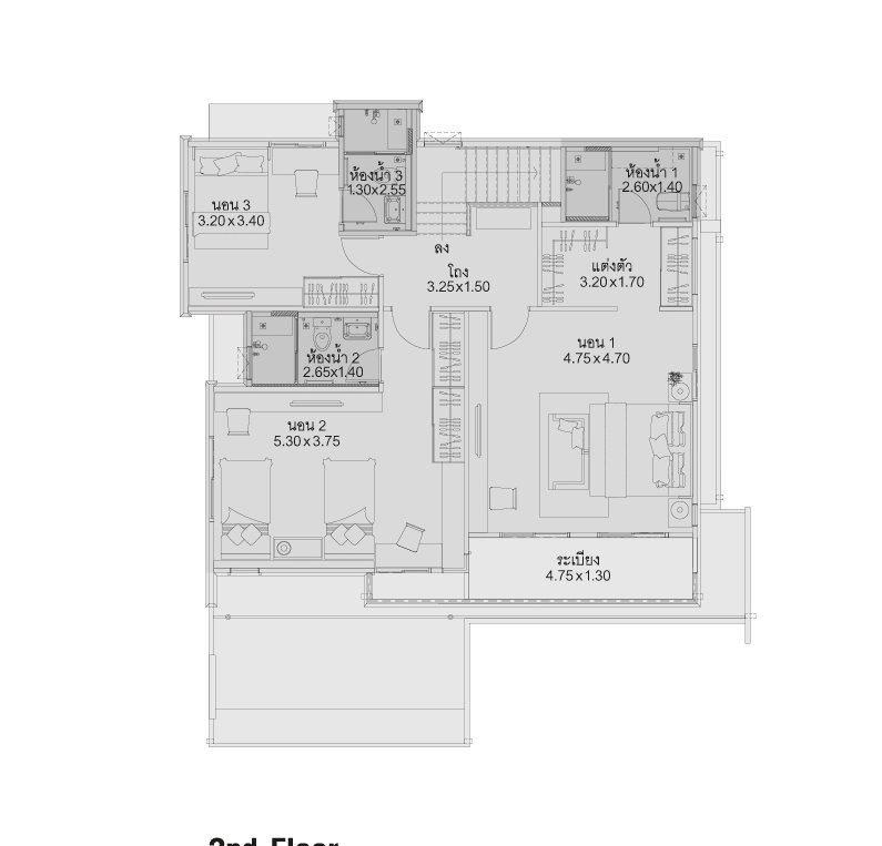
แบบบ้าน
แบบบ้านที่นี่จะมี 7 แบบด้วยกันนะคะ พื้นที่ใช้สอยแต่ละหลังเริ่มตั้งแต่ 142 – 279 ตารางเมตร โดยไล่จากขนาดเล็กสุดไปใหญ่สุดตั้งแต่แบบ Greatly, Servere, Ample, Multiplec, Amplio, Immenso และขนาดใหญ่สุดคือ Massivo
แบบบ้าน : Greatly
พื้นที่ใช้สอย : 142 ตร.ม.
3 ห้องนอน 3 ห้องน้ำ ที่จอดรถ 2 คัน
แบบบ้าน : Servere
พื้นที่ใช้สอย : 158 ตร.ม.
3 ห้องนอน 3 ห้องน้ำ ที่จอดรถ 2 คัน
แบบบ้าน : Ample
พื้นที่ใช้สอย : 184 ตร.ม.
4 ห้องนอน 4 ห้องน้ำ ที่จอดรถ 2 คัน
แบบบ้าน : Multiplec
พื้นที่ใช้สอย : 222 ตร.ม.
4 ห้องนอน 5 ห้องน้ำ 1 มุมพระ 1 ห้องแม่บ้าน ที่จอดรถ 2 คัน
แบบบ้าน : Amplio
พื้นที่ใช้สอย : 183 ตร.ม. เนื้อที่ดิน : 99 ตร.วา
4 ห้องนอน 3 ห้องน้ำ ที่จอดรถ 2 คัน
ชั้นล่าง
แบบบ้าน : Immenso
พื้นที่ใช้สอย : 236 ตร.ม. เนื้อที่ดิน : 81 ตร.วา
4 ห้องนอน 4 ห้องน้ำ ที่จอดรถ 2 คัน
ชั้นล่าง
แบบบ้าน : Massivo
พื้นที่ใช้สอย : 279 ตร.ม. เนื้อที่ดิน : 106 ตร.วา
4 ห้องนอน 4 ห้องน้ำ ที่จอดรถ 2 คัน
ชั้นล่าง

ชั้นบน
บ้านตัวอย่าง
บ้านตัวอย่างที่เราจะพาไปชมกันในวันนี้จะเป็นบ้านแบบขนาดใหญ่สุดของโครงการคือบ้านแบบ
มาเริ่มกันที่ห้องแบบแรกกันค่ะ เป็นบ้านแบบ Massivo พื้นที่ 279 ตร.ม. ซึ่งหลังนี้จะขายพร้อมเฟอร์นิเจอร์ตามภาพที่เราพาชมกันเลยค่ะ
หน้าตาตัวบ้านสไตล์โมเดิร์น ใช้สีโทนขาวและเทาเข้มเป็นหลัก และมีการตกแต่งระแนงเหล็กที่ระเบียงชั้นบนช่วยเพิ่มมิติให้กันตัวบ้านมากขึ้น 
มาดูรายละเอียดของตัวบ้านกันต่อ เริ่มจากประตูรั้วจะเป็นโครงเหล็กโปร่งทาสีดำ แบบรางเลื่อน
ด้านข้างมีประตูเล็กสำหรับเดินเข้าแยกจากประตูเลื่อนหลัก
จะมีกล่องจดหมายและติดเลขที่บ้านไว้ ข้างประตู
พร้อมไฟกำแพงและกริ่งเรียกหน้าประตูติดมาให้เรียบร้อย
ที่กำแพงหน้าบ้านอีกฝั่งจะมีจุดเก็บขยะ และจุดทิ้งขยะภายในบ้านมีฝาปิดซึ่งเราไม่ต้องเปิดประตูรั้วออกไปทิ้งนอกบ้าน แต่สามารถเปิดทิ้งในบ้านได้เลย แล้วคนเก็บขยะจะมาเก็บไปจากด้านนอกเองค่ะ
ส่วนแรกเมื่อเข้ามาในตัวบ้านจะเป็นที่จอดรถขนาด 4 จอด พื้นส่วนลานจอดรถเป็นผิวทรายล้างสลับสี แยกโครงสร้างกับตัวบ้านนะคะ ในระยะยาวจึงไม่ต้องกังวลว่าจะมีรอยร้าวหรือรอยแยกออกมาจากตัวบ้าน ส่วนเพดานลานจอดรถติดไฟดาวน์ไลท์มาให้
ทางขวามือจะเป็นสวนหน้าบ้านและทางเข้าหลักของตัวบ้าน พื้นที่ด้านหน้าบ้านมีระยะห่างมากพอที่จะปลูกไม้พุ่มหรือไม้ยืนต้นเพิ่มอีกได้พอสมควรเลยนะคะ ถ้าใครอยากทำมุมนั่งเล่นเพิ่ม ก็มีพื้นที่พอให้วางม้านั่ง หรือชุดโต๊ะเก้าอี้ได้อยู่
ก่อนจะเข้าไปในตัวบ้าน เราไปจะไปเดินดูรอบๆบ้านกันก่อน เริ่มจากทางฝั่งที่จอดรถข้างบ้าน กำแพงรั้วระหว่างบ้านมีความสูงประมาณ 1.4 – 1.5 เมตร พื้นจะจัดเป็นสวนโดยที่ของจริงโครงการมีจัดสวนมาให้ได้ตามนี้เลยค่ะ คือปูสนามหญ้าปลูกไม้พุ่มริมรั้วมาให้
ส่วนข้างบ้านด้านหลังจะมีประตูทางเข้าห้องครัว, ห้องพักแม่บ้าน และห้องน้ำแม่บ้าน
ด้านนอกจะมีลานซักล้างพร้อมซิงค์ล้างจานติดตั้งมาให้
โดยพื้นลานซักล้างจะปูด้วยกระเบื้องเซรามิค ความกว้างพอให้ใช้งานได้สะดวก และมีโรยกรวดระหว่างพื้นบ้านและลานซักล้างเพื่อระบายน้ำ 
ภายในห้องแม่บ้านมีขนาดพอพักผ่อนได้
และถ้าเราเข้าครัวจากทางฝั่งหลังบ้านก็จะเข้ามาเจอส่วนเคาน์เตอร์ครัวก่อน และถัดไปจะเป็น Pantry ด้านหน้า
ติดกับลานซักล้างจะเป็นแท็งค์น้ำ ซึ่งทางโครงการจะติดตั้งมาให้ทุกหลัง
ที่สวนข้างบ้านอีกฝั่งจะมีเฉลียงที่เชื่อมอยู่กับห้องนั่งเล่นและห้องนอนผู้สูงอายุด้านใน
เฉลียงค่อนข้างกว้าง และมีประตูทางออกจากห้องนอนผู้สูงอายุด้านในด้วยค่ะ
กลับมาที่ส่วนหน้าบ้าน จะมีประตูทางเข้า – ออก 2 ทางคือประตูทางเข้าจากลานจอดรถแลัประตูทางเข้าหลักของบ้าน
โดยประตูทางเข้าจากลานจอดรถจะสามารถเข้าไปส่วนครัวหรือขึ้นบันไดไปข้างบนได้ โดยไม่ต้องผ่านส่วนห้องนั่งเล่น ข้อดีคือเวลาฝนตกก็สามารถขนของเข้าไปเก็บในครัวจากลานจอดรถได้เลย มีบันไดขึ้นไป ช่วยกันความชื้นและฝุ่นจากภายนอก
เราเข้าไปดูในตัวบ้านกันต่อ โดยทางเข้าหลักของบ้านจะมีเฉลียงในร่ม ซึ่งสามารถทะลุไปลานจอดรถได้ด้วยค่ะ
มือจับประตูเป็นสแตนเลส ด้านนอกมีช่องเสียบกุญแจ ด้านในมีตัวบิดล็อก
เข้ามาในตัวบานส่วนแรกจะเจอกับ Foyer เล็กๆ เป็นพื้นที่เปลี่ยนรองเท้า หรือนั่งพักรอก่อนเข้า – ออกบ้าน โดยพื้นส่วนนี้จะลดระดับลงจากตัวพื้นบ้านชั้น 1 อยู่ประมาณ 5 cm. ช่วยกันความชื้นและฝุ่นจากภายนอก
ตัว Foyer นี้จะมีช่องแสงบานใหญ่แบบเข้ามุมติดตั้งมาด้วย ช่วยให้โถงส่วนนี้สว่างได้ในเวลากลางวัน โดยไม่ต้องเปิดไฟ
เข้ามาด้านในจะเป็นส่วนห้องทานอาหารติดระเบียงและทางเข้าครัว
ฝั่งขวามือจะเป็นส่วนของห้องนั่งเล่น ถัดไปเป็นห้องนอนชั้นล่างและโถงเล็กๆหน้าห้อง
มาดูที่ส่วนห้องนั่งเล่นกันก่อน ห้องนี้จะตั้งอยู่ทางฝั่งด้านหน้าบ้าน สามารถต่อเติมทำฉากเลื่อนกั้นเวลาเปิดแอร์เฉพาะห้องนั่งเล่นได้ง่าย
ช่องแสงในห้องนั่งเล่นให้มาเป็นหน้าต่างบานเลื่อนและบานฟิกซ์ บานใหญ่ สามารถรับแสงธรรมชาติเข้ามาได้เยอะและมีหน้าต่างเข้ามุมมาให้ด้วย ก็จะเห็นวิวสวนในมุมที่กว้างขึ้น ขนาดห้องนี้สามารถวางโซฟาตัวใหญ่ๆ ขนาด 4 – 6 ที่นั่งได้เลยค่ะ
ฝั่งตรงข้ามโซฟาเป็นที่ติดตั้งทีวี มีชั้นวางของ Built – in ทำมาให้ดูเป็นตัวอย่าง ระยะห่างจากโซฟากับชั้นวางทีวีอยู่ที่ประมาณ 2.8 เมตร วางทีวีขนาด 50 – 60″ ได้สบายๆ
จากห้องนั่งเล่นเรามาดูทางฝั่งห้องนอนชั้นล่างกันต่อ โดยพื้นที่หน้าห้องจะเป็นโถงเล็กๆ ซึ่งสามารถทำเป็นมุมนั่งพักผ่อน หรือโต๊ะทำงานได้ พร้อม Take View สวนข้างบ้านได้
อีกฝั่งของโถงจะเป็นประตูเข้าไปยังส่วนห้องนอนชั้นล่าง
เข้าไปดูส่วนห้องนอนชั้นล่างกันต่อเลยค่ะ
พื้นในห้องนอนจะได้เป็นพื้นลามิเนต สีน้ำตาลเข้ม มีตัวจบติดตั้งมาให้เรียบร้อย
หลังบานประตูจะติดตัว Stopper มาให้ทุกบาน
ห้องนอนชั้นล่างนี้จะเหมาะกับผู้สูงอายุค่ะ เพราะไม่ต้องเดินขึ้นลงบันได และสามารถใช้งานส่วนอื่นๆของบ้านได้สะดวก หรือจะเปลี่ยนเป็นห้องอื่นๆก็ได้ เพราะห้องนี้จริงๆแล้วคือห้องอเนกประสงค์ที่สามารถปรับเปลี่ยนได้ตามรูปแบบการใช้งานของแต่ละคนค่ะ
สำหรับห้องนี้จะมีช่องแสงมาให้ 2 จุด คือหน้าต่างบานเลื่อนฝั่งหน้าบ้านและข้างบ้าน สำหรับระบบระบายอากาศในห้องนี้จะติดช่องระบายอากาศมาให้ที่หน้าต่างฝั่งหน้าบ้าน 
ห้องนอนชั้นล่างจะมีห้องน้ำในตัว และวางเตียงคิงไซส์ 6 ฟุตได้และยังเหลือพื้นที่ข้างเตียงพอวางโต๊ะข้างได้สบายๆ 
ส่วนฝั่งปลายเตียงจะมีพื้นที่เหลือกว้าง พอให้จัดวางโต๊ะทำงานได้
เราเข้าไปดูในห้องน้ำกันต่อค่ะ
ภายในห้องน้ำจะติดตั้งฟังก์ชั่นมาให้ครบ แยกส่วนแห้งส่วนเปียก สุขภัณฑ์เป็นของ American Standard พื้นห้องน้ำปูกระเบื้องเซรามิกขนาด 60 x 60 cm. พื้นห้องลดระดับลงต่ำกว่าส่วนห้องนอนประมาณ 5 เซนติเมตร
อ่างล้างมือได้เป็นอ่างแบบลอยตัว ขนาดค่อนข้างกว้าง หลังอ่างล้างมือกับโถสุขภัณฑ์ทำ Low Wall ท้อปหินอ่อนมาให้วางของเพิ่มได้
โถสุขภัณฑ์ติดตั้งมาข้างอ่างล้างมือ มีระยะการใช้งานพอดีๆ
สายชำระหน้าตามาตรฐาน ขนาดพอดีมือ
ส่วนอาบน้ำพร้อมมีฉากกั้นกระจกเทมเปอร์กั้นส่วนเปียกส่วนแห้งมาให้ ภายในห้องอาบน้ำติดตั้งฝักบัวแบบ Hand Shower, ชั้นวางของและม้านั่ง มีเตรียมงานระบบสำหรับทำเครื่องทำน้ำอุ่นมาให้เรียบร้อย
ขนาดฝักบัวพอดีมือ
ช่องแสงในห้องน้ำได้เป็นบานกระทุ้ง กระจกฝ้าและมุ้งกันแมลง
ขนาดห้องอาบน้ำกว้างประมาณ 0.80 x 1.70 เมตร ค่อนข้างกว้าง สามารถอาบน้ำได้สะดวก
กลับออกมาที่ส่วนห้องทานอาหารและห้องครัว
ขนาดห้องทานอาหารมีขนาดกว้าง สามารถที่จะวางโต๊ะทานอาหารตัวใหญ่ๆ ขนาด 8 – 10 ท่ีนั่งได้
นอกจากนั้น จากส่วนห้องทานอาหารจะมีประตูเชื่อมออกไปยังเฉลียงด้านนอกได้ ซึ่งเราสามารถเปิดเพื่อเพิ่มพื้นที่การใช้งาน อาจจะไว้จัด Party ในสวนวันหยุดได้
ตัวล็อคประตูบานเลื่อนแบบเกลียวก้นหอย ต้องปลดล็อกจากด้านในเท่านั้น บานกรอบอลูมิเนียมทำสีเบจลูกฟักกระจกเขียวตัดแสง มือจับเซาะร่องมาตรฐาน
จากส่วนห้องทานอาหาร เราไปดูในส่วนของห้องครัวกันต่อ โดยห้องครัวจะอยู่ติดกับห้องทานอาหารและโถงบันไดค่ะ
ตัวห้องครัวจะมีผนังเป็นกระจกเข้ามุม เป็นกระจกบานสูงให้ความรู้สึกโปร่ง ดึงแสงธรรมชาติเข้ามาได้มาก ไม่อับทึบ
มีประตูทางเป็นบานเลื่อนลูกฟักกระจกกรอบอลูมิเนียม
ภายในห้องครัวจะได้เป็นครัวแบบ Hybrid หรือครัวแบบผสมค่ะ คือจะรวมทั้งครัวไทยแบบปิดและครัวฝรั่งแบบ Pantry เข้าด้วยกัน เพื่อให้ตอบโจทย์การใช้งานมากที่สุด เดี๋ยวเราพาไล่ดูกันไปทีละส่วนนะคะ ตัวพื้นปูกระเบื้องแกรนิตโต้ 60 x 60 ซม.
ส่วนแรกจะเป็นเคาน์เตอร์ครัวรูปตัว U ได้ตามแบบเลยค่ะ พร้อมชั้นเก็บของ Built – in ทั้งบนและล่าง ส่วนนี้จะเป็นครัวแนว Pantry ค่ะ คือปรุงอาหารเบาๆหรือเตรียมอาหาร คลุกสลัด ยำ หรืออุ่นอาหารง่ายๆ เราเปิดบานตู้ให้เห็นระยะใช้งานนะคะ จะเห็นว่ามีลิ้นชักเก็บช้อนส้อมมาให้ด้วย ของจริงได้ตามนี้
เคาน์เตอร์ครัวจะได้เป็นหน้าบานปิดผิวลายไม้ Top เป็นหินแกรนิตสีดำ มีที่วางไมโครเวฟมาให้
ตู้เก็บของด้านบนเป็นบานเปิดแบบ Soft Closed พร้อมช่องเก็บของด้านล่าง
ทางฝั่งขวามือจะมีพื้นที่ให้วางตู้เย็นและมีเตรียมงานระบบสำหรับเครื่องซักผ้ามาให้ ส่วนบ้านหลังนี้จะขายพร้อมเฟอร์นิเจอร์และเครื่องใช้ไฟฟ้า
ถัดเข้าไปด้านในจะเป็นพื้นที่ของครัวไทย
พื้นที่ส่วนครัวด้านหลังนี้จะมีช่องแสงมาให้ 2 จุด, ประตูเชื่อมออกลานซักล้างด้านหลัง และพัดลมระบายอากาศ
เคาน์เตอร์ครัวไทยได้ Top หินแกรนิต หน้าบานปิดผิวลายไม้ ตัวเคาน์เตอร์ฝั่งขวาติดตั้งซิงค์ล้างจาน พร้อมตู้เก็บของใต้เคาน์เตอร์
ส่วนเคาน์เตอร์ฝั่งซ้ายติดเตาไฟมาให้ พร้อมตู้เก็บของใต้เคาน์เตอร์
ส่วนด้านบนจะติดเครื่องดูดควันมาให้ด้วยค่ะ
ภาพรวมของครัวมองย้อนไปทางห้องทานอาหาร
ออกมาจากห้องครัวเราจะขึ้นไปดูบนชั้น 2 กันต่อ โดยบริเวณโถงบันไดจะมีห้องน้ำรับรองมาให้ 1 ห้อง
ภายในห้องน้ำรับรองจะมีเฉพาะส่วนแห้ง และมีช่องแสงมาให้ 2 บาน เป็นหน้าต่างบานเลื่อน สามารถเปิดเพื่อระบายอากาศได้
สุขภัณฑ์ที่ได้ของ American Standard ส่วนโถสุขภัณฑ์จะได้แบบ Washless หรือระบบล้างอัตโนมัติ มีแผงระบบติดอยู่ที่ผนังข้างโถสุขภัณฑ์
ต่อมาเราจะขึ้นไปดูบนชั้น 2 กันต่อ ลูกตั้งลูกนอนของตัวบันไดจะเป็นไม้มะค่า
ช่องแสงในโถงบันไดจะได้เป็นบานยาว และบานกระทุ้งเล็กด้านล่าง พร้อมมุ้งลวดให้สามารถเปิดทิ้งไว้เพื่อระบายอากาศได้
พื้นที่บนชั้น 2 จะมีห้องนอน 3 ห้อง และโถงเอนกประสงค์ บรรยากาศเมื่อขึ้นมาจะรู้สึกถึงโถงที่โปร่งโล่งเพราะลักษณะการวางโถงเอนกประสงค์จะเชื่อมกับโถงบันได และโถงทางเดิน รวมถึงมีช่องแสงที่เชื่อมออกไปยังเบียงจึงทำให้การระบายอากาศของโถงด้านนอกดีค่ะ
พื้นชั้น 2 ทั้งชั้นปูด้วยลามิเนตขนาดใหญ่ หนา 12 มิลลิเมตร
ภาพรวมของโถงบันไดจากชั้น 2
ก่อนจะเข้าไปดูในห้องนอน เราไปดูในโถงเอนกประสงค์กันก่อน พื้นที่โถงนี้สามารถที่จะใช้เป็นพื้นที่พักผ่อนรวมของครอบครัว หรือจะจัดเป็นห้องทำงานก็ได้ค่ะ โดยจะมีช่องแสงมาให้ 2 จุด เป็นหน้าต่างบานเลื่อนและประตูบานเลื่อนเชื่อมระเบียงด้านนอก
เราออกไปดูพื้นที่ระเบียงด้านนอกกันต่อ
พื้นที่ระเบียงด้านนอกค่อนข้างกว้าง ประมาณ 1.4 ม. ราวกันตกกระจกใส
กลับเข้ามาภายในบ้าน เราจะไปดูในส่วนของห้องนอนกันต่อ
เรามาเริ่มที่ห้องนอน Master Bedroom กันก่อน
ที่หน้าห้องเราจะเห็นแผงควบคุมสัญญาณกันขโมยแบบ Magnetic Censor ทั้งหลัง ช่วยเพิ่มความปลอดภัยไปอีกระดับ และแผงควบคุมระบบแอร์พลัสที่เรียกว่า LH Smart Home
ซึ่งระบบ LH Smart นี้จะทำงานอัตโนมัติ 24 ชั่วโมงจากพลังงานโซลาเซลล์ เป็นระบบถ่ายเทอากาศโดยภายในบ้านจะมีท่อพัดลมดูดอากาศภายในห้องผ่านทางท่อลมออกสู่ชายคาภายนอกบ้าน ช่วนลดการสะสมความร้อนและความชื้นภายในบ้าน ลดกลิ่นอับ เชื้อรา และช่วยฟื้นฟูสุขภาพคนในบ้านได้อีกทางนึงด้วย 
เข้ามาภายในห้อง Master Bedroom จะเป็นห้องขนาดใหญ่สุดของบ้าน สามารถวางเตียงคิงส์ไซส์ได้สบายๆ และยังมีพื้นที่เหลือสำหรับวางตู้หัวเตียง ตัวห้องตั้งอยู่ทางฝั่งหน้าบ้าน มีช่องแสง 2 จุด เป็นประตูบานเลื่อนออกไปยังระเบียงภายนอก และชุดหน้าต่างบานเลื่อนฝั่งหัวเตียง
ตำแหน่งการวางเตียงในห้องจะพอดีกับช่องแสงด้านหลังแบบนี้ค่ะ
ส่วนพื้นที่ฝั่งปลายเตียงจะเป็นส่วน Walk – in Closet
เรามาดูระเบียงด้านนอกกันก่อน
พื้นที่ระเบียงด้านนอกมีขนาดกว้าง และมีความเป็นส่วนตัวเพราะได้ Facade ช่วยบังสายตาจากภายนอก จึงสามารถที่จะออกมานั่งพักผ่อนได้ค่ะ
กลับเข้ามาในห้องเราเข้าไปดูในส่วน Walk – in Closet
เข้ามาภายในส่วนห้องแต่งตัว ฝั่งขวามือเป็นส่วนของห้องน้ำ
พื้นที่ห้องแต่งตัวกว้างเลยค่ะ สามารถติดตั้งตู้เสื้อผ้าได้หลายหลัง และมีพื้นที่ยืนแต่งตัวได้สบายๆ
กลับมาดูที่ห้องน้ำกันต่อ
ห้องน้ำของ Master Bedroom จะมีขนาดกว้างมาก และมีระเบียงเล็กๆด้านนอกไว้เปิดระบายอากาศด้วยค่ะ
สำหรับสุขภัณฑ์ภายในห้องน้ำจะได้อ่างล้างมือแบบฝังเคาน์เตอร์ มีพื้นที่เหนืออ่างเหลือกว้างพอให้วางของได้เยอะเลยค่ะ
ตัวโถสุขภัณฑ์ได้แบบ Washless
ติดกับโถสุขภัณฑ์เป็นประตูออกไปยังระเบียงเล็กๆด้านนอก
ตัวระเบียงนี้ทำมาเป็นแบบปิดรอบด้าน ทำให้เราสามารถที่จะเปิดประตูเพื่อระบายอากาศในห้องน้ำได้สบายๆ
สำหรับพื้นที่ส่วนเปียกจะมีห้องอาบน้ำและอ่างอาบน้ำติดตั้งมาให้
โดยตัวอ่างจะเป็นแบบลอยตัวพร้อมฝักบัวและก๊อกน้ำ
ส่วนห้องอาบน้ำติดตั้ง Shower Box กระจกนิรภัยมาให้
ด้านในมีช่องแสงบานใหญ่ 1 บาน ติดตั้งฝักบัวแบบ Hand Shower ส่วนผนังเจาะเป็นที่วางของและมีม้านั่งอาบน้ำมาให้ด้วยค่ะ
ขนาดห้องอาบน้ำประมาณ 1 x 1.2 เมตร
กลับออกมาที่โถงด้านนอก เราไปดูห้องนอนรองอีก 2 ห้องกันต่อ
เริ่มจากห้องนอนรองทางซ้ายมือ
เข้ามาภายในห้อง จะตกแต่งมาแบบสดใส มีช่องแสงมาให้ 3 บาน
ขนาดเตียงสามารถวางเตียง 3.5 ฟุต หรือควีนไซส์ได้
สำหรับห้องที่จัดเตียงขนาด 3.5 ฟุต ก็จะมีพื้นที่เหลือข้างเตียงสำหรับวางโต๊ะหัวเตียงและตู้เสื้อผ้า
ส่วนพื้นที่ปลายเตียงก้สามารถจัดโต๊ะเขียนหนังสือได้ 1 ตัว
เราไปดูห้องน้ำของห้องนอนรองห้องนี้กันต่อค่ะ
ภายในห้องน้ำแยกส่วนแห้งส่วนเปียก ติดตั้งสุขภัณฑ์มาตรฐาน ยี่ห้อ American Standard
อ่างล้างมือและโถสุขภัณฑ์มีระยะการใช้งานเหมาะสม พร้อม Low Wall ด้านหลัง สำหรับวางของ
ภายในห้องอาบน้ำติดตั้งฝักบัวและมีช่องเก็บของด้านหลัง
ขนาดห้องอาบน้ำประมาณ 0.9 x 1.30 เมตร
ถัดมาเรามาดูห้องนอนรองห้องสุดท้ายกันต่อ
เข้ามาในห้องจะเจอกับส่วน Walk – in Closet ฝั่งซ้ายมือคือห้องน้ำ
พื้นที่ Walk – in Closet พอให้ใช้งานได้สะดวก
เข้ามาดูในห้องน้ำกันก่อน
ภายในห้องน้ำแยกส่วนแห้งส่วนเปียก มีช่องแสงเป็นหน้าต่างบานเลื่อน 1 บาน
ระยะการใช้งานของอ่างล้างมือและโถสุขภัณฑ์พอให้ใช้งานได้สะดวก
ภายในห้องอาบน้ำติดตั้งฝักบัวแบบ Hand Shower พร้อมที่วางของด้านหลัง
ขนาดห้องอาบน้ำประมาณ 1.3 x 0.9 เมตร
ถัดมาเราเข้ามาดูในส่วนห้องนอนกันต่อ สำหรับพื้นที่ห้องนอนของห้องนี้จะกว้างกว่าห้องที่แล้วพอสมควร มีช่องแสง 2 บาน
สามารถวางเตียงขนาดคิงส์ไซส์ได้สบายๆ
พื้นที่ปลายเตียงเหลือให้วางโต๊ะทำงานเพิ่ม และเหลือที่ทางให้เดินได้สะดวกค่ะ
มาดูบ้านตัวอย่างแบบที่ 2 กันต่อ โดยหลังนี้จะเป็นบ้านแบบ Immenso พื้นที่ใช้สอย 236 ตร.ม. บ้านแบบนี้จะเป็นบ้านไซส์ที่ใหญ่รองลงมาจากบ้านแบบที่แล้ว หน้าตาบ้านโดยรวมจะเหมือนกับบ้านแบบที่แล้ว ใช้วัสดุและโทนสีเดียวกันค่ะ
ประตูรั้วจะเป็นโครงเหล็กโปร่งทาสีดำ แบบรางเลื่อน ด้านข้างมีประตูเล็กสำหรับเดินเข้าแยก พร้อมกล่องจดหมาย, กริ่ง, หลอดไฟและติดเลขที่บ้านไว้ ข้างประตู
เข้ามาในตัวบ้านจะเป็นที่จอดรถขนาด 2 จอด พื้นส่วนลานจอดรถเป็นผิวทรายล้างสลับสี แยกโครงสร้างกับตัวบ้าน ส่วนเพดานลานจอดรถติดไฟดาวน์ไลท์มาให้
ทางซ้ายมือจะเป็นสวนหน้าบ้านและทางเข้าหลักของตัวบ้าน พื้นที่สวนหน้าบ้านเหลือค่อนข้างกว้าง
จากลานจอดรถมองไปทางขวามือจะเห็นเป็นรั้วโครงการด้านข้างมีจัดสวนเอาไว้ให้ ของจริงได้ตามนี้
จากสวนด้านข้างมองไปทางหลังบ้านจะเห็นลานซักล้าง ห้องแม่บ้านและห้องน้ำมีทางเข้าออกอยู่ข้างบ้าน
พื้นที่หลังบ้านจะมีสวนกว้างอีกจุดที่เชื่อมต่ออยู่กับห้องทานอาหารด้านใน
กลับมาที่ทางเข้าหลักหน้าบ้าน จะมีเฉลียงในร่มหน้าบ้านขนาดกว้าง สามารถใช้เป็นพื้นที่วางชั้นวางรองเท้าหรือเป็นที่นั่งเปลี่ยนรองเท้าได้
เข้ามาดูในตัวบ้าน ส่วนแรกของบ้านจะเป็นห้องนั่งเล่นถัดไปเป็นห้องทานอาหารและห้องครัว
พื้นที่ส่วนห้องนั่งเล่นจะมีขนาดค่อนข้างกว้าง สามารถจัดชุดโซฟาขนาด 4 – 6 ที่นั่งได้
ได้ช่องแสงบานใหญ่แบบเข้ามุม ช่วยเพิ่มมุมมองด้านนอกและทำให้ตัวห้องดูโปร่งมากขึ้น และรับแสงธรรมชาติเข้ามาทำให้ห้องไม่มืด
ฝั่งตรงข้ามเป็นพื้นที่สำหรับวางทีวี ซึ่งเราจะเห็นทางเข้าห้องนอนชั้นล่างอยู่ด้านข้าง
ตัวทางเข้าห้องนอนชั้นล่างจะมีโถงเล็กๆหน้าห้อง
เข้ามาจะเจอประตูทางเข้า
ภายในห้องมีช่องแสง 2 บาน พร้อมช่องระบายอากาศด้านล่าง ขนาดห้องกว้าง จัดวางเฟอร์นิเจอร์ได้ครบโดยสามารถใช้เตียงขนาดคิงส์ไซส์และยังเหลือพื้นที่สำหรับวางโซฟาพักผ่อนข้างเตียงได้
อีกฝั่งของห้องจะเป็นห้องน้ำในตัว
ภายในห้องน้ำจะติดตั้งฟังก์ชั่นมาให้ครบ แยกส่วนแห้งส่วนเปียก สุขภัณฑ์เป็นของ American Standard พื้นและผนังห้องน้ำปูกระเบื้องลายหินอ่อน พื้นห้องลดระดับลงต่ำกว่าส่วนห้องนอนประมาณ 5 เซนติเมตร
ส่วนอาบน้ำพร้อมมีฉากกั้นกระจกเทมเปอร์กั้นส่วนเปียกส่วนแห้งมาให้ ภายในห้องอาบน้ำติดตั้งฝักบัวแบบ Hand Shower, ชั้นวางของและม้านั่ง มีเตรียมงานระบบสำหรับทำเครื่องทำน้ำอุ่นมาให้เรียบร้อย
ขนาดห้องอาบน้ำกว้างประมาณ 0.80 x 1.70 เมตร ค่อนข้างกว้าง สามารถอาบน้ำได้สะดวก
กลับออกมาที่ส่วนห้องทานอาหารและห้องครัว
จากส่วนห้องทานอาหารจะมีประตูเชื่อมออกไปยังสวนด้านนอกได้ ซึ่งเราสามารถเปิดเพื่อเพิ่มพื้นที่การใช้งานห้องทานอาหารให้ต่อเนื่องออกไปยังสวนได้
ขนาดห้องทานอาหารมีขนาดกว้าง สามารถที่จะวางโต๊ะทานอาหารตัวใหญ่ๆ ขนาด 6 – 8 ท่ีนั่งได้
จากส่วนห้องทานอาหาร เราไปดูในส่วนของห้องครัวกันต่อ โดยห้องครัวจะอยู่ติดกับห้องทานอาหาร, โถงบันได และห้องน้ำรับรองค่ะ
ตัวห้องครัวจะมีผนังเป็นกระจกเข้ามุม เป็นกระจกบานสูงให้ความรู้สึกโปร่ง เหมือนบ้านแบบที่แล้ว
ภายในห้องครัวจะได้เป็นครัวแบบผสมเช่นกัน มีแยกส่วนทั้งครัวไทยแบบปิดและ Pantry มาให้ พร้อมเคาน์เตอร์ครัวครบ
เราขึ้นไปดูบนชั้น 2 กันต่อ โดยบริเวณโถงบันไดจะเห็นประตูห้องน้ำรับรอง และประตูเชื่อมออกไปลานจอดรถด้านนอก
ภายในห้องน้ำรับรองจะมีเฉพาะส่วนแห้ง และมีช่องแสงมาให้ 2 บาน เป็นหน้าต่างบานเลื่อน สามารถเปิดเพื่อระบายอากาศได้
ต่อมาเราจะขึ้นไปดูบนชั้น 2 กันต่อ ที่ชานพักบันไดมีช่องแสงบานยาว และบานกระทุ้งเล็กด้านล่าง พร้อมมุ้งลวดให้สามารถเปิดทิ้งไว้เพื่อระบายอากาศได้
พื้นที่บนชั้น 2 จะมีห้องนอน 3 ห้อง และโถงเอนกประสงค์
ห้องโถงเอนกประสงค์ของบ้านแบบนี้จะมีขนาดเล็กกว่าบ้านแบบที่แล้วอยู่หน่อย แต่ยังได้ช่องแสงมาเพียงพอเหมือนเดิม คือหน้าต่างบานเลื่อนข้างบ้านและประตูเชื่อมระเบียงด้านนอก
พื้นที่ระเบียงด้านนอกค่อนข้างกว้าง ประมาณ 1.4 ม. ราวกันตกกระจกใส
กลับเข้ามาภายในบ้าน เราจะไปดูในส่วนของห้องนอนกันต่อ
มาที่ส่วนโถงทางเดินหน้าห้องนอนจะเป้นโถงยาวเชื่อมห้องนอนทั้ง 3 ห้อง และห้องน้ำ 1 ห้อง
เรามาสำรวจห้องนอนกันต่อ โดยเร่ิมจากห้องทางซ้ายมือ
ห้องนี้เป็นห้อง Master Bedroom เป็นห้องขนาดใหญ่สุดของบ้าน สามารถวางเตียงคิงส์ไซส์ได้สบายๆ และยังมีพื้นที่เหลือสำหรับวางตู้หัวเตียง มีช่องแสง 2 จุด เป็นประตูบานเลื่อนออกไปยังระเบียงภายนอก และชุดหน้าต่างบานเลื่อนฝั่งหัวเตียง
อีกด้านของห้องสามารถที่จะจัดเป็นส่วนห้องทำงานหรือพื้นที่พักผ่อน ขนาดกลางๆได้
เรามาดูระเบียงด้านนอกกันต่อ
พื้นที่ระเบียงด้านนอกมีขนาดกว้าง ประมาณ 1.8 เมตร เลยค่ะ ส่วนตัวราวกันตกเป็นแบบทึบและมีบางส่วนเป็น Facade ช่วยบังสายตาจากภายนอก จึงสามารถที่จะออกมานั่งพักผ่อนได้ค่ะ
กลับเข้ามาในห้อง เราจะไปดูในส่วน Walk – in Closet และห้องน้ำในตัวกันต่อ
โดยส่วนห้อง Walk – in Closet จะอยู่ทางฝั่งปลายเตียง
ด้านในมีขนาดค่อนข้างกว้าง จัดตู้เสื้อผ้าได้หลายหลัง พร้อมมีพื้นที่ยืนแต่งตัวเป็นสัดส่วน
ส่วนห้องน้ำจะอยู่ทางซ้ายมือ
เราเข้าไปดูในส่วนห้องน้ำกันต่อ
ห้องน้ำของ Master Bedroom จะมีขนาดค่อนข้างกว้าง แต่ไม่เท่าบ้านแบบที่แล้ว มีระเบียงเล็กๆด้านนอกไว้เปิดระบายอากาศด้วยเช่นกันค่ะ
สำหรับสุขภัณฑ์ภายในห้องน้ำจะได้อ่างล้างมือแบบฝังเคาน์เตอร์ มีพื้นที่เหนืออ่างเหลือกว้างพอให้วางของได้เยอะเลยค่ะ ติดกันเป็นตัวโถสุขภัณฑ์ได้แบบ Washless
ด้านในมีช่องแสงบานใหญ่ 1 บาน ติดตั้งฝักบัวแบบ Hand Shower ส่วนผนังเจาะเป็นที่วางของและมีม้านั่งอาบน้ำมาให้ด้วยค่ะ
ภายในห้องาอาบน้ำมีประตูออกไปยังระเบียงเล็กๆด้านนอก ที่สามารถเปิดประตูเพื่อระบายอากาศในห้องน้ำได้สบายๆ
ขนาดห้องอาบน้ำประมาณ 1 x 1.8 เมตร
กลับออกมาที่โถงด้านนอก เราไปดูส่วนห้องนอนรอง 2 ห้องและห้องน้ำที่ทั้ง 2 ห้องใช้ร่วมกันต่อค่ะ
ไปดูห้องนอนรองห้องแรกทางซ้ายมือกันก่อน
ภายในห้องมีช่องแสง 2 บาน เป็นหน้าต่างบานเลื่อน ขนาดห้องกว้างพอใช้งานได้สะดวก สามารถวางเตียงขนาดคิงส์ไซส์ได้
ส่วนพื้นที่เหลือข้างเตียงก็ยังมีพื้นที่สำหรับ Walk – in Closet เล็กๆ
กลับมาที่โถงทางเดิน เข้ามาดูในห้องน้ำกันต่อ
ภายในห้องน้ำแยกส่วนแห้งส่วนเปียก มีช่องแสงเป็นหน้าต่างบานเลื่อน 1 บาน
ภายในห้องอาบน้ำติดตั้งฝักบัวแบบ Hand Shower พร้อมที่วางของด้านหลัง
ขนาดห้องอาบน้ำประมาณ 1.3 x 0.9 เมตร
ถัดมาเรามาดูห้องนอนรองห้องสุดท้ายกันต่อ
ภายในห้องตกแต่งโทนสีชมพูหวาน ขนาดห้องพอให้จัดวางเฟอร์นิเจอร์ได้ครบถ้วนแบบสบายๆ
เตียงที่จัดมาให้ดูเป็นเตียงขนาด 3.5 ฟุต วางแบบติดผนัง ซึ่งจากขนาดห้องสามารถที่จะเปลี่ยนเป็นควีนไซส์ได้ค่ะ
พื้นที่เหลือข้างเตียงค่อนข้างกว้าง สามารถจัดโต๊ะทำการบ้านได้อีก 1 ชุด
ราคาเริ่มต้น 8 – 18.69 ล้านบาท
สรุป
ทำเลที่ตั้งโครงการ :โครงการ มัณฑนา ศรีนครินทร์ – บางนา ตั้งอยู่ในซอยวัดหนามแดง หรือถนนหนามแดง – บางพลี เข้าซอยมาจากถนนศรีนครินทร์ประมาณ 2.4 กิโลเมตร สภาพแวดล้อมใกล้โครงการส่วนมากจะเป็นบ้านพักอาศัยแนวราบและที่ดินเปล่า มีร้านสะดวกซื้อและร้านอาหารราคาไม่แพงใกล้ๆโครงการให้เลือกหลากหลายพอสมควร บรรยากาศในวงกว้างมีทั้งโรงงานและโกดังเก็บของ ส่วนสภาพแวดล้อมบนถนนหนามแดงส่วนใหญ่จะเป็นลักษณะชุมชน มีทั้งวัดและโรงเรียนวัดหนามแดง, โครงการแนวราบทั้งทาวน์โฮม และบ้านเดี่ยว มีร้านอาหารบ้างประปราย
ส่วนแหล่งช้อปปิ้งและห้างใหญ่ๆจะกระจุกตัวกันอยู่บนเส้นบางนา และศรีนครินทร์ซะเป็นส่วนใหญ่ค่ะ ไม่ว่าจะเป็น Central บางนา, Big C, ร.พ.ไทยนครินทร์, SB Design Square หรือห้างใหญ่ของคนย่านนี้อย่าง Mega Bangna และ IKEA ที่อยู่ในระยะขับรถแค่ประมาณ 10 กว่านาทีก็ถึง ถือว่าสะดวกทีเดียว
การเดินทางโดยรถยนต์ส่วนตัว : จัดว่าเป็นทำเลที่เหมาะกับคนใช้รถ สามารถใช้วิ่งเข้าออกเมืองได้สะดวกแต่รถติด เพราะอยู่ในละแวกชุมชน และทั้งเส้นศรีนครินทร์, บางนาและถนนกาญนาภิเษกเลย เนื่องจากย่านนี้มีโรงเรียน โรงพยาบาลอยู่เยอะค่ะ
โดยจากซอยวัดหนามแดง จะสามารถเชื่อมกับเส้นทางหลักๆ อย่างถนนศรีนครินทร์ ซึ่งเป็นถนนสายหลักที่สามารถเชื่อมไปในเมืองอย่าง ถนนรามคำแหง, พัฒนาการ, อ่อนนุชได้ และถนนเทพารักษ์ ที่เชื่อมเข้าสู่ถนนสายหลักอย่างสุขุมวิท ที่สามารถพาเราเข้าและออกเมืองได้สะดวก
การเดินทางโดยรถสาธารณะ : จากหน้าโครงการสามารถใช้รถสองแถวและ Taxi ได้ ส่วนรถไฟฟ้าจะจะมีสถานีที่ใกล้โครงการที่สุดคือ BTS สถานีสำโรง และสถานีแบริ่ง ซึ่งมีระยะห่างจากโครงการประมาณ 8 กม.
แต่ในอนาคตการเดินทางจะสะดวกขึ้นเพราะจะมีรถไฟฟ้าสายสีเหลือง (ลาดพร้าว-สำโรง) วิ่งผ่าน เป็นเส้นทางเชื่อมต่อจากลาดพร้าวมาถึงสำโรง โดยรถไฟฟ้าสายสีเหลืองนี้ จะสามารถเชื่อมต่อระหว่างรถไฟฟ้าสายสีน้ำเงิน, รถไฟฟ้าสายสีเทา, รถไฟฟ้าสายสีส้มและ Airport Rail Link และจะมีสถานีศรีด่าน ที่อยู่ใกล้กับโครงการมากที่สุด ทำให้การเดินทางสะดวกสบายมากขึ้นค่ะ (กำหนดการเสร็จปี 2562) ห่างจากโครงการเพียง 2.5 กม.
บ้านและวัสดุ : โครงการนี้เป็นโครงการบ้านเดี่ยวสไตล์ Modern รูปแบบภายนอกบ้านดูทันสมัย ใช้โทนสีเทา ขาว วัสดุที่ให้มาก็อยู่ในระดับดีสมราคา
จุดเด่นคือเทคโนโลยีการประหยัดพลังงานและรักษาคุณภาพบ้านในระยะยาว โดยจะมีการติดตั้งระบบ LH Smart Home นวัตกรรมใหม่จาก แลนด์ แอนด์ เฮ้าส์ ที่ติดมาให้ในบ้านทุกหลัง ซึ่งระบบนี้จะทำงานอัตโนมัติ 24 ชั่วโมงจากพลังงานโซลาเซลล์ เป็นระบบถ่ายเทอากาศโดยภายในบ้านจะมีท่อพัดลมดูดอากาศภายในห้องผ่านทางท่อลมออกสู่ชายคาภายนอกบ้าน ช่วยลดการสะสมความร้อนและความชื้นภายในบ้าน ลดกลิ่นอับ เชื้อรา และช่วยฟื้นฟูสุขภาพคนในบ้านได้อีกทางนึงด้วย
พื้นที่ใช้งานแต่ละส่วนมีความลงตัวดีมากเมื่อเทียบกับโครงการอื่นๆ คือเป็นระยะใช้งานสบายๆ ไม่อึดอัด และออกแบบมาค่อนข้างตอบรับกับวิถีชีวิตปัจจุบันมากขึ้น อย่างเช่นบ้านแต่ละหลังจะมี IT Corner ซึ่งอยู่ใกล้ๆกับโซนห้องนั่งเล่น เป็นต้น
โดยบ้านที่ทางโครงการขาย ปัจจุบันจะมีทั้งบ้านมาตรฐาน (บ้านเปล่า) และบ้านตกแต่งเสร็จ หรือบ้านตัวอย่างแบบ Massivo โดยบ้านมาตรฐานจะได้บ้านเปล่า + เคาน์เตอร์ครัว โดยบ้านไซส์ทั่วไปจะได้เฉพาะส่วนครัวไทย ผนังฉาบปูเรียบทาสีขาว พื้นลามิเนตหนา 8 มม.
แต่บ้านไซส์ใหญ่สุดกับรองลงมา คือบ้านแบบ Immenso + Massivo จะได้ครัวแบบ Hybrid ที่ทำ Built – in มาให้ครบชุดทั้งครัวไทยและ Pantry ผนังบ้านใหญ่ติดวอลเปเปอร์และพื้นห้องนอน บันได และชั้นบนจะเป็นไม้ลามิเนตหนา 12 มม.ค่ะ
ส่วนวัสดุอย่างอื่นจะเป็นมาตรฐานคล้ายๆกัน คือฝ้าเพดานยิปซั่มฉาบเรียบทาสีขาว, ไฟดาวน์ไลท์ทั้งหลัง, ลานจอดรถเป็นทรายล้าง, เฉลียงหน้าบ้านและลานหลังบ้านปูกระเบื้องเซรามิก 30 x 30 ซม. พื้นบ้านชั้นล่างปูแกรนิตโต้ ขนาด 60×60 ซม. สุขภัณฑ์ภายในห้องน้ำของ American Standard มีการนำโถสุขภัณฑ์แบบ Washlet มาใช้หลายห้อง และมีทำ Low Wall มาให้วางของเพิ่มได้ พร้อมเจาะที่วางของในส่วนอาบน้ำมาให้ ซึ่งอันนี้เพิ่มความสะดวกสบายให้ผู้ใช้งานได้ดีค่ะ
ประตูและหน้าต่างภายในบ้านบานใหญ่ กรอบเป็นอลูมิเนียมทำสีพิเศษ กระจกเขียวตัดแสง ติดมาหลายบาน ทำให้บ้านมีความสว่าง โปร่งและไม่อับทึบ เรื่องการระบายอากาศก็เตรียมมาให้ดีมากด้วยระบบ LH Smart ที่อธิบายไปข้างต้น เราถือว่าเป็นนวัตกรรมที่แสดงถึงความใส่ใจ และในระดับราคาเดียวกันโครงการอื่นๆก็หาคุณภาพบ้านขนาดนี้ค่อนข้างยากค่ะ
สิ่งอำนวยความสะดวก :โครงการนี้มีส่วนกลางขนาดใหญ่เลยค่ะ โดยจะมีขนาดพื้นที่ส่วนกลางรวมประมาณ 6 ไร่ ซึ่งจะประกอบไปด้วยสวนสาธาณะ Clubhouse และทะเลสาบขนาดใหญ่ ออกแบบมาใน Concept : Green Carpet Rest มีพื้นที่สีเขียวเยอะ ลงต้นไม้ใหญ่โดยรอบ มีความร่มรื่นทั้งส่วนสวนธารณะจนถึงถนนหลักในโครงการก็ร่มรื่นตลอดทางค่ะ สำหรับในสวนสาธารณะจะมีลู่วิ่งรอบสวน, สนามเด็กเล่น, ศาลานั่งเล่นริมน้ำ, ลานอเนกประสงค์ เน้นการเข้าถึงธรรมชาติ
บรรยากาศรอบๆ Club House ลงต้นไม้ใหญ่ เล็ก ให้ความร่มรื่นค่อนข้างเยอะ คือเน้นรักษาภูมิทัศน์ภายในโครงการ และรอบๆโครงการได้ดีค่ะ ถนนในโครงการมีปลูกต้นไม้ข้างทาง มีแนวพุ่มไม้ข้างรั้วตัดแต่งเป็นระเบียบ ทางเท้าปูหญ้าและวางแผ่นหินสำหรับเดินให้เรียบร้อย
ส่วนอาคาร Club House เป็นอาคารใหญ่ จะมีโถงพักผ่อนขนาดใหญ่ มองเห็นวิวสระว่ายน้ำและวิวทะเลสาบ ส่วนฟังก์ชั่นอื่นๆใน Clubhouse จะมีสระว่ายน้ำ, ห้องฟิตเนส และห้องพักผ่อนมาให้ ตัวสระว่ายน้ำเป็นสระระบบเกลือขนาด 25 x 12.5 เมตร แยกเป็นสระเด็ก 2 สระ และมีสระที่เป็นระบบ Jacuzzi ด้วย นอกจากนั้นก็จะมีห้อง Steam & Sauna ไว้ให้บริการพร้อมค่ะ
ระบบรักษาความปลอดภัย แบบ Double Security เข้า-ออกโครงการด้วย Key Card Access ระยะใกล้ และกล้อง CCTV จับภาพป้ายทะเบียน และคนขับฝั่งละ 2 ตัว รั้วกั้นไม้กระดกอัตโนมัติ พร้อมประตูรั้วบานเลื่อนอีกชั้น เพื่อความปลอดภัย รั้วรอบโครงการเป็นรั้วแบบกันปีนสูง 3.6 เมตร และเจ้าหน้าที่รักษาความปลอดภัยตลอด 24 ชม.ค่ะ
ส่วนตัวบ้านมีสัญญาณกันขโมยติดแบบ Magnetic Sensor ให้ทุกหลัง เพิ่มความปลอดภัยไปอีกระดับ
สอบถามรายละเอียดโครงการเพิ่มเติมได้ที่
สำนักงานขาย : 02-105-3743-4
TEL : 1198
WEBSITE : www.lh.co.th
หากท่านเห็นว่ารีวิวนี้มีประโยชน์ โปรดกด Like เพื่อเป็นกำลังใจให้ทีมงาน ขอบคุณค่ะ
หากท่านมีความคิดเห็นหรือข้อมูลเพิ่มเติมเกี่ยวกับตัวโครงการ สามารถ Comment ได้ที่ด้านล่างของรีวิวค่ะ
บ้านเดี่ยว สมุทรปราการ ทำเลอื่นๆ ที่น่าสนใจ…
Arena Garden บางนา-สุวรรณภูมิ เริ่ม 7.8 ล้าน
บ้านเดี่ยว บุราสิริ บางนา
บ้าน แลนซิโอ คริป เทพารักษ์-กิ่งแก้ว
ศุภาลัย เบลล่า เทพารักษ์
บ้านสินทวี แกรนด์วิลล์
แลนซีโอ คริป ประชาอุทิศ-สุขสวัสดิ์
บ้านเดี่ยว ชวนชื่น ไพร์ม บางนา กม.29
บ้านเดี่ยว มัณฑนา ศรีนครินทร์-บางนา
มัณฑนา บางนา กม.7 เริ่ม 12 ล้าน
บ้านเดี่ยว บริทาเนีย ศรีนครินทร์ เริ่ม 4.65 ล้าน
ภัสสร เทพารักษ์-บางนา เริ่ม 3.59 ล้าน