
EP.972 รีวิว บ้านเดี่ยว มัณฑนา บางนา กม.7 Mantana Bangna Km.7
สวัสดีค่าท่านผู้อ่านชาว Homenayoo ที่น่ารักทุกคน วันนี้เรามีโครงการบ้านเดี่ยวคุณภาพมาฝากกัน นั่นก็คือ โครงการ มัณฑนา บางนา กม.7 จาก Land & Houses ในโซนบางนา ตั้งอยู่บนถนนบางนา-ตราด ต.บางแก้ว อ.บางพลี จ.สมุทรปราการ อยู่ใกล้แหล่ง Shopping ชั้นนำขนาดใหญ่อย่าง MEGA บางนา และ IKEA บางนา เพียง 2 นาที เดินทางสะดวกใกล้ ถนนบางนา-ตราด, วงแหวนบางปะอิน และ ทางด่วนบางนา
มัณฑนา บางนา กม.7 มีเนื้อที่โครงการ 81 ไร่ จำนวน 229 ยูนิต เป็นบ้านเดี่ยวสูง 2 ชั้น จากแนวคิด “Where the future was born อนาคตที่ดีที่สุด เพื่อลูกของคุณ” กับแบบบ้าน REBEL เป็นบ้านแนวคิดใหม่ที่ได้รับแรงบันดาลใจ มาจากการใช้ชีวิตที่แท้จริง ฟังก์ชั่นขนาด 4 ห้องนอน, 5 ห้องน้ำ, 1 ห้องแม่บ้าน, 1 มุมห้องพระ/ห้องพระ , IT Corner และที่จอดรถ 2-6 คัน พิเศษด้วยห้องน้ำในตัวห้องนอนทุกห้อง, พื้นที่เตรียมอาหารต่อเนื่องจากครัวไทย, บันได L Shape เพิ่มพื้นที่ในบ้านให้โปร่งโล่งมากขึ้น, Private Verandah เฉลียงส่วนตัวชมสวนสวย ขนาดเริ่มต้นที่ 83 ตร.วา สร้างเสร็จพร้อมอยู่ คาดว่าจะแล้วเสร็จทั้งโครงการในไตรมาสที่ 1 ปี 2561
สิ่งอำนวยความสะดวก ภายในโครงการจะเน้นเป็นพิเศษ ทั้ง คลับเฮ้าส์, สระว่ายน้ำระบบเกลือขนาดใหญ่ แยกสระเด็ก สระผู้ใหญ่ พร้อมจากุซซี่ และสระในร่ม, ฟิตเนส รับวิวแบบ Panorama, สตีมและห้องซาวน่า, สนามเด็กเล่น ท่ามกลางสวนส่วนกลางขนาดใหญ่ และมุมผ่อนคลายริมสวนน้ำ, ลู่จ๊อกกิ้ง และลานออกกำลังกายกลางแจ้ง, ระบบ Magnetic สัญญาณกันขโมยครบทุกยูนิต, ระบบ Air Plus บ้านหายใจได้, CCTV ด้านหน้าโครงการ และ เข้า-ออกด้วยระบบ Key Card ในราคาเริ่มต้นที่ 12 ล้านบาท
โดยรายละเอียดที่เราจะพาท่านไปชมก็จะมีทำเลที่ตั้งโครงการ, สภาพแวดล้อม, ข้อมูลโครงการ และบ้านตัวอย่างแบบเจาะลึก เชิญติดตามอ่านที่ด้านล่างนี้ได้เลยค่า

| ชื่อโครงการ | มัณฑนา บางนา กม.7 Mantana Bangna Km.7 |
| เจ้าของโครงการ | แลนด์แอนด์เฮ้าส์ Land & Houses |
| ลักษณะโครงการ | บ้านเดี่ยว 2 ชั้น |
| พื้นที่โครงการ | 81 ไร่ |
| จำนวนบ้าน | 229 หลัง |
| พื้นที่ใช้สอย | เริ่มต้น 222 ตร.ม. ขึ้นไป |
| เนื้อที่บ้าน | เริ่มต้น 83 ตร.วา ขึ้นไป |
| จำนวนห้อง | 4 ห้องนอน, 5 ห้องน้ำ, 1 ห้องแม่บ้าน, 1 มุมห้องพระ/ห้องพระ และ IT Corner |
| ที่จอดรถทั้งหมด | 2-6 คัน |
| โซน | บางนา |
| ขนส่งสาธารณะ |
|
| รถโดยสารที่ผ่าน | n/a |
| ที่ตั้ง | ถนนบางนา-ตราด ต.บางแก้ว อ.บางพลี จ.สมุทรปราการ |
| กำหนดการ | Pre-Sale พ.ย. 58 |
| ปีที่สร้างเสร็จ | คาดว่าจะแล้วเสร็จ ในไตรมาสที่ 1 ปี 2561 |
| ราคา | เริ่มต้น 12 ล้านบาท |
| ค่าส่วนกลางและกองทุน | เดือนละ 28 บาท/ตร.ม. |
| สถานที่สำคัญใกล้เคียง (ระยะทางโดยประมาณ) | ห้างสรรพสินค้า
สถานศึกษา
ศูนย์การแพทย์
ศาสนสถาน
สถานที่ราชการและหน่วยงานอื่นๆ
|
| สิ่งอำนวยความสะดวก |
|
| จุดเด่นของโครงการ | มัณฑนา บางนา กม.7 บ้านเดี่ยวสำหรับครอบครัวที่เตรียมความพร้อมไว้รองรับอนาคตที่ดีที่สุดของลูก ด้วยสังคมคุณภาพ ในบรรยากาศอุโมงค์ต้นไม้ใหญ่ ร่มรื่นด้วยการออกแบบให้ใกล้ชิดธรรมชาติ ที่จะวางรากฐานการเติบโตของลูกได้ตั้งแต่วันนี้ เริ่ม 12-20 ล้านบาท |
โครงการโดยรอบ
:::: ที่ตั้งโครงการ ::::
ถนนบางนา-ตราด ต.บางแก้ว อ.บางพลี จ.สมุทรปราการ
พิกัด : 13.641948, 100.667338
แผนที่จากทางโครงการ
ทำเลที่ตั้ง โครงการ มัณฑนา บางนา กม.7 ตั้งอยู่ในซอยเมืองแก้ว (ราชวินิต) เข้ามาจากถนนบางนา-ตราดประมาณ 2.6 กม.ฝั่งขาเข้าค่ะ จุดเด่นในย่านนี้คือเป็นทำเลฝั่งตะวันออกซึ่งมีความอุดมสมบูรณ์สูงและถือเป็น New Central Business District ส่วนต่อขยายของตัวเมืองกรุงเทพฯอีกแห่งหนึ่ง อยู่ใกล้ทางพิเศษบูรพาวิถี, ทางพิเศษเฉลิมมหานคร และวงแหวงกาญจนาฯ ซึ่งสามารถเดินทางเข้า-ออก ตัวเมืองกรุงเทพฯได้สะดวก
ข้อดีของทำเลที่ตั้งโครงการคือสามารถเข้าและออกได้หลายเส้นทางจึงถือเป็นทำเลที่ดีสำหรับคนที่หาที่อยู่ในย่านบางนา พื้นที่ส่วนใหญ่โดยรอบจะเป็นโครงการที่อยู่อาศัยในแนวราบที่กำลังพัฒนา ซึ่งมีแนวโน้มว่าในอนาคต ความคึกคักในย่านนี้จะมีมากขึ้นตามไปด้วย
เส้นทางหลักในการเดินทาง นับว่าเป็นทำเลที่สะดวกมากเลยค่ะ จากถนนบางนา-ตราด เข้ามาทางซอยเมืองแก้ว (ราชวินิต) เป็นระยะทาง 2.6 กม.
นอกจากนี้ จากตัวโครงการยังมีซอยลัดเข้า MEGA&IKEA บางนา จากทางซอยเมืองแก้ว (ราชวินิต) เพียง 2 กม.ถึงเลยตามเส้นสีเลือดหมู ถ้าเลี้ยวซ้ายตามเส้นสีทอง จะสามารถขึ้นทางด่วนบูรพาวิถีเพื่อเข้าเมืองได้ ในระยะ 3.5 กม.จากหน้าโครงการ แต่ถ้าเลี้ยวขวาไปตามเส้นสีฟ้า ไปกลับรถใต้ถนนกาญจนาภิเษก จะสามารถขึ้นวงแหวนกาญจนาภิเษก เพื่อมุ่งหน้าไปพระราม 2 ได้ ระยะทางจากหน้าโครงการประมาณ 6 กม.ค่ะ
การเดินทางด้วยรถยนต์ เส้นการเดินทางหลักๆเลยก็จะเป็นถนนบางนา-ตราด ถือว่าเป็นเส้นที่เดินทางได้สะดวกเพราะเป็นถนนใหญ่ขนาด 8-14 ช่องจราจร เป็นเส้นที่เชื่อมไปยังถนนกิ่งแก้วและถนนตำหรุ-บางพลี ซึ่งเป็นถนนเส้นอุตสาหกรรมเหมือนกัน จึงมีโรงงานและอาคารของบริษัทเอกชนอยู่เป็นระยะๆ ดังนั้นบนถนนเส้นนี้จะมีรถบรรทุกและรถใหญ่วิ่งกันค่อนข้างเยอะ
โดยถนนบางนา-ตราดจะเป็นถนนเส้นที่ขนานกับแกนตะวันออก-ตะวันตก จะวิ่งไปตัดกับถนนสายสำคัญอีกหลายสายอย่างถนนกาญจนาภิเษกช่วงฝั่งใต้ เป็นเส้นที่มีความคล่องตัวสูง สามารถเดินทางไปยังพระราม 2-บางปะอินได้สะดวก, ถนนศรีนครินทร์ที่วิ่งไปตัดกับเส้นเทพารักษ์และอุดมสุข สามารถขึ้นไปถึงเส้นอ่อนนุช, รามคำแหง และลาดพร้าวได้ ถัดจากศรีนครินทร์ไปก็จะไปเชื่อมกับถนนสุขุมวิทวิ่งขึ้นไปยังแถบปทุมวันจนถึงอโศกได้เลย ส่วนอีกด้านหนึ่งทางทิศตะวันออก ถนนบางนา-ตราดจะวิ่งไปผ่านฉะเชิงเทราไปถึงชลบุรีเลยค่ะ ตรงนั้นจะไปบรรจบกับถนนสุขุมวิทที่ทางแยกต่างระดับหนองไม้แดงเรียกได้ว่าที่ตั้งโครงการนั้นสามารถเดินทางได้หลายเส้นทาง แต่จะต้องรู้ช่วงเวลาด้วยว่าช่วงไหนรถติดตรงไหน เพื่อที่จะได้หลบหลีกเส้นทางเอาค่ะ
ทางด่วน นอกจากทางลัดขึ้นทางด่วนบูรพาวิถี และกาญจนาภิเษก ที่ได้กล่าวถึงไปเมื่อสักครู่แล้ว ก็ยังมีจุดขึ้นทางพิเศษเฉลิมมหานครอยู่ห่างออกไปเพียง 8.8 กม. จากหน้าโครงการให้เลี้ยวเข้าซอยเมืองแก้ว (ราชวินิต) เพื่อไปออกถนนบางนา-ตราด วิ่งตรงไปเรื่อยๆผ่านศรีนครินทร์ ก็จะเจอทางแยกจุดขึ้นทางด่วนค่ะ
ความอุดมสมบูรณ์ ภายในซอยเมืองแก้ว (ราชวินิต) จะเป็นย่านที่พักอาศัยค่ะ มีโครงการบ้านจัดสรรในแนวราบใหม่ๆเกิดขึ้นอย่างต่อเนื่อง พอจะหาร้านอาหารหรือร้านสะดวกซื้อได้อยู่บ้าง ในซอยมี 7-Eleven และ Family Mart ห่างออกไป 1.6 กม. ฝั่งตรงข้ามกับ รร.ราชวินิติบางแก้ว พอดี ไม่ใกล้ขนาดระยะเดินแต่ก็พอจะปั่นจักรยานไปถึงได้ไม่เกิน 10 นาที แต่ในระยะเดินจากตัวโครงการจะเป็นโครงการบ้านจัดสรรทั้งหมดค่ะ
ออกมาในวงที่กว้างขึ้น ส่วนที่น่าสนใจที่สุดในย่านนี้เลยก็จะเป็นแอเรียบริเวณ Mega บางนา ห่างออกไปเพียง 2 กม. ที่เรียกได้ว่าเป็นศูนย์การค้าแนวราบที่ใหญ่ที่สุดในอาเซียนแล้ว และตอนนี้ยังมีประกาศเดินหน้าโครงการ Mega city ซึ่งเป็นโปรเจคอสังหาฯแบบมิกซ์ยูส ครอบคลุมตั้งแต่พื้นที่สำหรับอยู่อาศัย, ออฟฟิศสำนักงาน, แหล่งช้อปปิ้ง, ร้านอาหารชื่อดัง และสถานที่ให้ได้ใช้ชีวิตตามไลฟ์สไตล์อันหลากหลายอย่างครบวงจร ซึ่งคาดว่าจะสามารถเปิดให้บริการได้ในปลายปีนี้แล้ว
บนเส้นบางนา-ตราดก็จะมีเซ็นทรัลบางนา และ Index living mall ในอนาคตจะมี Bangkok mall มาเปิดตรงแยกบางนาอีกด้วย มี Hypermarket อย่าง Makro และ Tesco Lotus ออกไปทางถนนศรีนครินทร์ มีทั้ง Lotus, Jas Urban เป็นศูนย์การค้า, Foodland, Big C, Makro ผ่านแยกบางนา-ศรีนครินทร์ขึ้นไปก็มี Paradise Park, Seacon Square และตลาดนัดรถไฟ ขายของสไตล์วินเทจ ส่วนบนเส้นสุขุมวิทก็จะมีทั้งตลาดสด, Big C สำโรง และอิมพีเรียลสำโรง
นอกจากนี้ตัวโครงการยังอยู่ใกล้กับสถานศึกษา ทั้ง รร.ไทย และ รร.นานาชาติ รวมถึงโรงพยาบาลอีกหลายแห่ง ป่วยไข้สบายใจ เพราะขับรถไปเพียงไม่กี่กิโลก็ถึงค่ะ
การเดินทางด้วยรถสาธารณะ สำหรับการเดินทางโดยรถสาธารณะนั้นอาจจะยังไม่สะดวกเท่าการมีรถยนต์ส่วนตัวนะ เพราะในซอยเมืองแก้ว (ราชวินิต) จะเป็นซอยตัน และภายในซอยส่วนมากจะเป็นหมู่บ้านที่กำลังพัฒนาอยู่ จึงไม่มีรถสาธารณะวิ่งผ่าน แต่ถนนหน้าโครงการจะยังพอมีเห็นรถแท็กซี่ขับผ่านบ่อยๆนะ เพราะถนนหน้าโครงการเป็นทางเชื่อมลัดหนีการจราจรไปยังถนนเส้นอื่นๆได้ ส่วนมอเตอร์ไซค์รับจ้าง สามารถติดต่อให้เข้ามารับ-ส่งถึงหน้าโครงการได้ นอกจากนี้ก็จะมี Shuttle Bus ของ MEGA บางนา ที่บริการวิ่งไปส่งถึง BTS เพื่อเข้าเมืองอีกทางค่ะ
ในอนาคตปี 2563 บนเส้น บางนา-ตราด จะมี รถไฟฟ้าสายสีเขียว วิ่งผ่าน ช่วง บางนา-สุวรรณภูมิ สถานีที่ใกล้ที่สุดก็คือ สถานีบางแก้ว อยู่ห่างจากหน้าโครงการออกไปประมาณ 2.6 กม. และเส้น ศรีนครินทร์ จะมีรถไฟฟ้าสายสีเหลือง วิ่งผ่าน ช่วง พัฒนาการ-สำโรง สถานีที่ใกล้ที่สุดก็คือ สถานีศรีลาซาล ตรงแยกพอดี อยู่ห่างจากหน้าโครงการออกไปประมาณ 3.7 กม. ทั้งนี้ทั้งนั้นจะต้องรอทำถนนต่อจากบัวนครินทร์ ทะลุซอยคลองหนองบัวเพื่อออกที่ 4 แยกศรีลาซาลก่อนนะ
:::: การเดินทางสู่โครงการ ::::
วันนี้ทางทีมงาน Homenayoo มีภาพการเดินทางไปสู่ตัวโครงการ มัณฑนา บางนา กม.7 โดยใช้รถยนต์ส่วนตัวมาฝากกันค่ะ โดยเราจะเริ่มการเดินทางจาก
ถนนกาญจนาภิเษก > ทางคู่ขนานบางนา-ตราด > ซอยเมืองแก้ว (ราชวินิต) > ถนนทางเข้าโครงการ (ถนนภาระจำยอม) > โครงการ มัณฑนา บางนา กม.7
เราจะเริ่มต้นการเดินทางจากวงแหวนกาญจนาภิเษก ใช้เวลาไปถึงโครงการไม่เกิน 15 นาทีค่ะ ให้เราสังเกตป้ายชลบุรี-บางนาเอาไว้นะ
วิ่งตามป้าย ชลบุรี-บางนา ชิดซ้ายเอาไว้ เพื่อออกซ้ายตรงทางแยก
เมื่อออกซ้ายมาแล้วให้เราชิดขวาวิ่งตามป้ายบางนาไปค่ะ
ชิดขวาขึ้นสะพานยกระดับไปนะคะ จะไปลงถนนบางนา-ตราดฝั่งขาเข้าตัวเมือง ถ้าออกฝั่งซ้ายจะเป็นขาออกนอกตัวเมืองนะ
จากสะพานยกระดับจะมาลงที่ทางคู่ขนานบางนา-ตราด ฝั่งซ้ายมือเราจะเห็น MEGA บางนาค่ะ
เรายังวิ่งบนทางคู่ขนานไปเรื่อยๆนะ ให้เราสังเกตป้ายบางนาเอาไว้แล้วชิดซ้าย
ขับเลยป้ายมาสักครู่ให้เลี้ยวซ้ายเข้าซอยเมืองแก้ว (ราชวินิต) จะเลยทางขึ้นทางด่วนไปนิดนึงค่ะ
จากถนนบางนา-ตราด เข้ามาในซอยเมืองแก้ว (ราชวินิต) เข้าไปประมาณ 1.5 กม. จะเห็นถนนทางเข้าโครงการฝั่งขวามือ ให้เลี้ยวเข้าไป จากนั้นให้ขับรถไปตามป้ายโครงการ มัณฑนา บางนา กม.7 ก็จะถึงโครงการ เป็นระยะ 2.6 กม.จากหน้าปากซอยค่ะ
เข้ามาในซอยซอยเมืองแก้ว (ราชวินิต) เป็นถนนขนาด 4 เลน วิ่งได้สะดวก ฝั่งขวามือจะเห็นสถานีตำรวจภูธรบางแก้ว
จากหน้าปากซอยเข้ามาประมาณ 700 เมตร ก็จะเห็นรร.ราชวินิตบางแก้วอยู่ทางฝั่งขวามือ ส่วนทางซ้ายมือจะมี Family Mart และ 7-Eleven ค่ะ
ขับเลยเข้าไปอีก 800 เมตร หรือ 1.5 กม.จากหน้าปากซอยจะเห็นถนนทางเข้าโครงการอยู่ฝั่งขวามือ มีป้ายบอกเส้นทางติดเอาไว้อย่างชัดเจน
เมื่อเลี้ยวขวาเข้ามาแล้วจะเจอทาง 3 แยก ให้เลี้ยวขวาอีกครั้งค่ะ
จากนั้นให้เลี้ยวซ้ายอีกครั้ง
และเลี้ยวซ้ายอีกครั้งนึงค่ะ สังเกตว่าจะมีป้ายโครงการบอกทางอยู่ตลอด
จากนั้นให้ตรงเข้าไปเรื่อยๆ ก็จะเห็นทางเข้าโครงการอยู่ทางด้านซ้ายมือแล้วค่า
ซุ้มทางเข้าโครงการแบบชัดๆ
สวนน้ำและป้ายหน้าโครงการ
สรุปแยก และ ถนนสำคัญรอบโครงการ
สรุปสถานที่สำคัญรอบโครงการ
ห้างสรรพสินค้า
สถานศึกษา
ศูนย์การแพทย์
ศาสนสถาน
สถานที่ราชการและหน่วยงานอื่นๆ
:::: สภาพแวดล้อมรอบโครงการ ::::
ถนนทางเข้าโครงการเป็นถนนเส้นขนาด 4 เลน เป็นถนนภาระจำยอมที่ใช้ร่วมกับโครงการอื่น สามารถเชื่อมไปยังถนนใหญ่สายต่างๆโดยรอบได้ บนถนนเส้นนี้จะเป็นแหล่งที่อยู่อาศัยในแนวราบ โดยรอบของโครงการเป็นบ้านพักอาศัยเป็นโครงการบ้านจัดสรร ทั้งทาวน์โฮมและบ้านเดี่ยว พื้นที่บ้านส่วนบนถนนเส้นนี้ก็ยังไม่ได้พัฒนาค่ะ ยังมีผืนที่ดินเปล่าอยู่เยอะพอสมควร ทำให้การอยู่อาศัยในบริเวณนี้จะรู้สึกค่อนข้างเป็นส่วนตัวและยังไม่แออัด

เดี๋ยวเราจะเดินสำรวจบริเวณใกล้เคียงกับตัวโครงการกันนะคะ จะได้รู้ว่ามีอะไรอยู่แถวนี้บ้าง ?
เริ่มจากฝั่งตรงข้ามกับโครงการคือโครงการ Indy บางนา กม.7 เป็นทาวน์โฮมสูง 2 ชั้น จาก แลนด์แอนด์เฮ้าส์ เช่นกัน
มองไปทางขวามือคือทางที่เราใช้เดินทางเข้ามาเมื่อสักครู่
มองไปทางฝั่งซ้ายมือ ถนนหน้าโครงการจะตรงยาวไปเชื่อมกับถนนบัวนครินทร์ สามารถออกสู่ถนนใหญ่ได้หลายเส้น
ทางเข้าโครงการ Indy บางนา กม.7
:::: ตัวโครงการ ::::
โครงการ มัณฑนา บางนา กม.7 เป็นโครงการบ้านเดี่ยวสูง 2 ชั้น จำนวน 229 ยูนิต บนที่ดิน 81 ไร่ จากแนวคิด “Where the future was born อนาคตที่ดีที่สุด เพื่อลูกของคุณ” คุณภาพชีวิตที่ดี และสังคมคุณภาพ ภายใต้ความร่มรื่นของต้นจามจุรี ใกล้ชิดกับธรรมชาติ พร้อมบ้าน Premium Spec ก่อนที่จะพาเข้าไปดูภาพภายในโครงการจะขออธิบายผังโครงการคร่าวๆ เพื่อความเข้าใจกันก่อนนะคะ
ทางเข้า-ออกของโครงการหลักจะมีเพียงทางเดียวคือจากซุ้มทางเข้าโครงการบนถนนหน้าโครงการ โดยจะต้องผ่านรปภ. ประกอบด้วย ป้อมยาม, เครื่องจับสัญญาณ Key Card, กล้อง CCTV และ รั้วไม้กระดก เมื่อผ่านเข้ามาภายในตัวโครงการแล้วจะเจอถนนเมนกว้าง 16 เมตรยาวเข้าไปแล้วแจกเป็นถนนซอยกว้าง 8-9 เมตร
เมื่อเข้ามาภายในตัวโครงการแล้วจะเจอสวนหย่อมอยู่ทางฝั่งซ้าย เลยเข้าไปจะมีสวนน้ำด้านหน้าคลับเฮ้าส์ ภายในประกอบด้วย สระว่ายน้ำระบบเกลือ แบ่งสระเด็ก-สระผู้ใหญ่, จากุซซี่ และสระในร่ม, ฟิตเนส วิว Panorama, ห้องสตีมและซาวน่า รวมถึง Lounge พักผ่อน ด้านหลังคลับเฮ้าส์จะเป็นสวนสาธารณะขนาดใหญ่ มีสนามเด็กเล่น, มุมผ่อนคลายริมสวนน้ำ, ลู่จ๊อกกิ้ง และลานออกกำลังกายกลางแจ้ง ถัดเข้าไปด้านหลังโครงการก็จะมีสวนสาธารณะให้อีก 1 จุดค่ะ
ความพิเศษของการวางผังโครงการนี้ก็คือ เป็นผังในแนวยาว ภาพรวมของโครงการดูโปร่งและไม่แออัด อีกทั้งยังวางหน้าบ้านไปในแกนทิศเหนือ-ใต้ ทำให้ตัวบ้านไม่ร้อน และสามารถรับลมได้ตลอดทั้งปีค่ะ
:::: แบบบ้านของโครงการ ::::
จากแนวคิด “Where the future was born อนาคตที่ดีที่สุด เพื่อลูกของคุณ” ปัจจุบันทางโครงการได้ออกแบบบ้าน Series ใหม่ “REBEL” เป็นการปฏิวัติความคิด ได้บ้านที่ได้รับแรงบันดาลใจมาจากการใช้ชีวิตที่แท้จริง ทั้งการ Re-Design : Wider/Flexible/Private/Fit in Lifestyle แรงบันดาลใจจาก Singapore House Style เป็นแบบบ้าน Tropical Modern ผสานกับวัสดุเลียนแบบธรรมชาติ สร้างมิติให้กับตัวบ้าน, Re-Plan : ปรับ/เพิ่ม/เพื่อเติมเต็ม ด้วย Concept Linear Layout จัดเรียงฟังก์ชั่นชั้นล่างให้ทอดยาวไปตามตัวบ้าน เพื่อให้ทุกส่วนได้รับแสงธรรมชาติ และวิวหน้าบ้านได้เต็มที่, Re-Space : REBEL-Room ห้องพิเศษชั้นล่างที่สามารถปรับเปลี่ยนฟังก์ชั่นได้ตามใจต้องการ และ Re-Fresh : Garden-Lodge สวนส่วนตัวให้ใกล้ชิดกับธรรมชาติ
นอกจากนี้ ภายในตัวบ้านยังมีนวัตกรรม “บ้านหายใจได้” จากแลนด์แอนด์เฮ้าส์ เรียกว่า ระบบ Air Plus ช่วยให้ถ่ายเทอากาศภายในบ้านได้เป็นอย่างดี
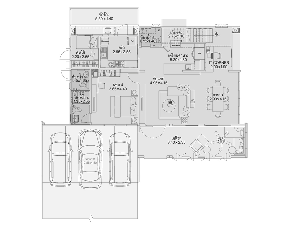
แบบบ้าน REBEL Series ที่ มัณฑนา บางนา กม.7 จะมีทั้งหมดด้วยกัน 2 แบบ นั่นก็คือ แบบบ้าน Multiplec ขนาด 222 ตร.ม. มี 4 ห้องนอน 5 ห้องน้ำ ที่จอดรถ 2 คัน และ แบบบ้าน Veridio ขนาด 286 ตร.ม. มี 4 ห้องนอน 5 ห้องน้ำ ที่จอดรถ 3-6 คัน ไปดูแปลนบ้านด้วยกันเลยค่ะ
::: แบบบ้าน Multiplec ขนาด 222 ตร.ม. :::
ทัศนียภาพจำลอง
แปลนบ้านชั้นที่ 1 ประกอบด้วย
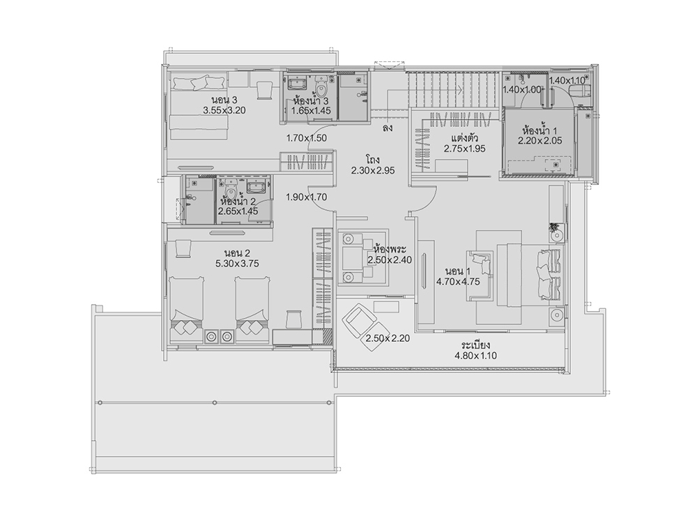
แปลนชั้นที่ 2 ประกอบด้วย
::: แบบบ้าน Veridio ขนาด 286 ตร.ม. :::
ทัศนียภาพจำลอง
แปลนบ้านชั้นที่ 1 ประกอบด้วย
แปลนชั้นที่ 2 ประกอบด้วย
:::: บริเวณภายในโครงการ ::::
::: ทางเข้าโครงการ :::
ได้ชมรายละเอียดกันไปหมดแล้ว คราวนี้เรามาดูบรรยากาศภายในโครงการของจริงกันบ้างค่ะ
เริ่มต้นจากบริเวณซุ้มทางเข้าโครงการ ดีไซน์ตัวซุ้มเป็นสไตล์โมเดิร์น ดูอบอุ่นด้วยวัสดุคล้ายไม้เป็นหลักตัดด้วย Cladding สีเทาเข้ม
การเข้า-ออกตัวโครงการจะต้องผ่านรปภ.ประกอบด้วย ป้อมยาม, ระบบ Access Card, กล้อง CCTV และรั้วไม้กระดก
ช่องฝั่งซ้ายจะเป็นของ Resident ส่วนฝั่งขวาจะเป็นของ Visitor ที่แบ่งช่องก็เพื่อไม่ให้เป็นการเสียเวลาลูกบ้านนั่นเอง เพราะลูกบ้านสามารถใช้ Key Card เปิดรั้วไม้กระดกผ่านเข้าไปได้เลย ส่วน Visitor พี่รปภ.จะต้องสอบถาม, แลกบัตร และจดบันทึก พร้อมกล้อง CCTV ที่ซุ้มทางเข้าออก เพื่อบันทึกภาพหน้าคนขับและป้ายทะเบียนรถ
ฝั่งซ้ายคือรูปเครื่องจับสัญญาณ Key Card ของช่อง Resident ส่วนฝั่งขวาคือ CCTV ของช่อง Visitor ติดเอาไว้ตรงป้อมยามค่ะ
มุมมองย้อนกลับไปที่ซุ้มทางเข้าโครงการ
::: บริเวณภายในโครงการ :::
เข้ามาภายในโครงการจะเจอถนนเมนกว้าง 16 เมตร ทอดยาวเข้าไปภายในโครงการ
ฝั่งซ้ายมือคือส่วนหย่อมหน้าโครงการค่ะ ตรงกลางเป็นสนามหญ้า ล้อมสวนด้วยไม้พุ่มตกแต่งและต้นไม้ให้ร่มเงา
ด้านในมีศาลาพักผ่อน สามารถมานั่งเล่นพักผ่อนได้
วิวจากศาลาออกไปที่สนามหญ้า และสวนน้ำหน้าคลับเฮ้าส์

สวนน้ำใจกลางโครงการ
มองผ่านสวนน้ำเข้าไปเห็นคลับเฮ้าส์ของโครงการ

เรากลับมาที่ถนนหลักกันค่ะ เดินต่อไปเรื่อยๆทางฝั่งซ้ายมือคือทางเข้าคลับเฮ้าส์
ซึ่งในตอนนี้คลับเฮ้าส์ถูกใช้เป็นสำนักงานขายด้วยค่ะ เราจะกลับมาดูรายละเอียดกันในหัวข้อถัดไปนะ
เดินผ่านคลับเฮ้าส์มาแล้วฝั่งซ้ายมือคือสวนสาธารณะของโครงการ
เดินมาจนถึงวงเวียนแรก จะวนตามเข็มนาฬิกานะคะ แตกถนนย่อยกว้าง 9 เมตร ออกไปทางซ้ายและขวา
มองไปทางฝั่งซ้ายมือ
ตรงนี้จะติดกับสวนสาธารณะและลานออกกำลังกายกลางแจ้งนะคะ
มองไปทางฝั่งขวามือ จะเป็นบริเวณแนวรั้วโครงการค่ะ สูง 3.6 เมตร เป็นรั้วแบบกันปีน
แต่ถ้าตรงไปจะเป็นเส้นของถนนเมน เหลือกว้าง 14 เมตร
ตลอด 2 ข้างทางของถนนเมนจะปลูกต้นไม้เป็นร่มเงาตลอดทั้งเส้นเลยนะ บรรยากาศร่มรื่นมากๆ
บรรยากาศภายในซอยแบบบ้าน Veridio ขนาด 286 ตร.ม.

และบรรยากาศภายในซอยแบบบ้าน Multiplec
:::: พื้นที่ส่วนกลางของโครงการ ::::
จากเมื่อสักครู่เราได้เดินชมบรรยากาศภายในโครงการกันแล้ว เดี๋ยวเราจะมาดู คลับเฮ้าส์ และ สวนสาธารณะ ซึ่งเป็นพื้นที่ส่วนกลางของโครงการกันต่อเลยค่ะ
::: คลับเฮ้าส์ :::
คลับเฮ้าส์ของโครงการเป็นอาคารสูง 2 ชั้นริมสวนน้ำ ได้บรรยากาศสไตล์ Tropical Modern น่าพักผ่อนหย่อนใจ
เราจะเข้าไปชมภายในอาคารพร้อมๆกันเลยค่ะ
บริเวณหน้าคลับเฮ้าส์จะมีพื้นที่ให้จอดรถได้ประมาณ 5 คัน
ทางเข้าหลักของตัวอาคารจะต้องเดินขึ้นบันไดไปที่ชั้น 2
ขึ้นมาแล้วก็จะเจอทางเข้าตัวอาคารค่ะ ซึ่งจะเป็นส่วนของสำนักงานขาย เปิดทุกวันตั้งแต่ 9 โมงเช้าถึง 5 โมงครึ่งตอนเย็นนะ
เข้ามาภายในตัวอาคารจะเป็นห้องรับรองของสำนักงานขาย สำหรับไว้รับรองลูกค้า จัดเป็นโซนที่นั่งพักผ่อนที่เตรียมชุดที่นั่งรับรองไว้หลายชุด และมีเจ้าหน้าที่ฝ่ายขายคอยบริการให้ข้อมูลและพาชมโครงการ ภายหลังการขาย ทางนิติบุคคลจะเป็นผู้ตัดสินใจอีกทีว่าจะใช้ประโยชน์จากพื้นที่ในส่วนนี้เป็นอะไรดี
บรรยากาศภายในห้องรับรอง จัดเฟอร์นิเจอร์และตกแต่งให้ดู Symmetry ทำให้ดู Grand มากขึ้น
ด้านในจัดเป็นพื้นที่นั่งเล่นริมหน้าต่าง ได้วิวของสวนน้ำและแลนสเคปภายในโครงการ
จากห้องรับรองออกไปยังโถงทางเดินภายนอก จะเชื่อมไปยังห้องฟิตเนสค่ะ
ระหว่างทางเดินเชื่อมไปยังห้องฟิตเนส จะมีเทอเรสเป็นส่วนนั่งเล่นพักผ่อนอยู่ฝั่งซ้ายมือ
ในส่วนของเทอเรส จะเป็นระเบียงขนาดใหญ่ พร้อมชุดม้านั่งชมทิวทัศน์ภายในโครงการ
บรรยากาศแบบสบายๆ รับลม ช่วงเย็นๆหน่อยจะได้บรรยากาศดีมากเลย
จัดม้านั่งเบาะและโต๊ะแบบสบายๆให้ 2 ชุดทั้งฝั่งซ้ายและขวา
มองออกไปก็จะได้วิวของสระว่ายน้ำ เชื่อมต่อกับสวนน้ำ และแลนสเคปโดยรอบโครงการค่ะ

เราเดินเข้าไปดูในห้องฟิตเนสกันต่อ ฝั่งขวามือคือบันไดทางลงไปยังชั้น 1
ห้องฟิตเนสโครงการวางชุดเครื่องเล่นมาให้ประมาณ 7 ชุดค่ะ พื้นห้องปูกระเบื้องยางลายไม้ ผนังฝั่งหนึ่งติดกระจกเงา อีกฝั่งเป็นกระจกใสหันไปทางวิวสระว่ายน้ำและสวนน้ำของโครงการ
ฝั่งติดริมกระจกจัดเป็นโซนคาร์ดิโอ มีลู่วิ่งไฟฟ้า, เครื่องเดินวงรี และจักรยานไฟฟ้า จัดให้หันหน้าออกไปทางฝั่งสวนน้ำ
ส่วนฝั่งที่ติดกระจกเงาจัดเป็นโซนเวทเทรนนิ่ง มีเครื่องออกกำลังกล้ามเนื้อแบบครบเซ็ตมาให้ 1 ชุด, ม้านั่งราบ และชุดดัมเบลอีก 1 ชุด
มุมด้านในสุดของห้องจัดให้เป็นพื้นที่นั่งพักคอยค่ะ

ลงมาที่ชั้นล่างของคลับเฮ้าส์
จะมีลานนั่งเล่นทอดยาวออกไป รับลมชมวิวสวนน้ำได้

ไปดูส่วนสระว่ายน้ำชั้นล่างกันต่อค่ะ

สระว่ายน้ำเป็นสระระบบเกลือขนาด 25 x 12 เมตร


ฝั่งนึงจัดเป็น Pool Deck พื้นไม้เทียม วาง Day Bed ให้นอนอาบแดดได้ 4 ตัว

มองไปอีกฝั่ง จะเป็นส่วนของจากุซซี่
ฝั่งขวาใต้ร่มอาคารจัดเป็นชุดโซฟานั่งเล่นพักผ่อน
มองออกไปเหลือเป็นพื้นที่สระในร่มแบบ Semi-Outdoor เวลากลางวันใครไม่อยากโดน UV จังๆก็มาว่ายเล่นในนี้ได้

ทางเดินข้ามฝั่งจะทำเป็นทางเดินบนสระว่ายน้ำให้เดินได้แบบนี้

เวลาเดินก็ต้องระวังหน่อยนะคะเดี๋ยวตกร่อง พื้นทางเดินบนสระจะเป็นกระเบื้องแบบกันลื่นค่ะ ปลอดภัย แต่ยังไงก็ต้องระวังอยู่ดีนะ ส่วนพื้นสระเป็นกระเบื้องโมเสกโทนสีฟ้าค่ะ เวลาโดนแดดก็จะเป็นประกายวิบวับสวยดีนะ

อ่างจากุซซี่ก็จะทำเชื่อมกับพื้นที่ของสระผู้ใหญ่ โดยจะทำหลังคาเป็นระแนงให้ ทำให้ได้ความรู้สึกเหมือนอยู่ในใต้ร่มอาคารแบบ Semi-Outdoor

ทำเป็นที่นั่งรูปตัว U แบบนี้ มีขนาดค่อนข้างใหญ่ทีเดียว มาให้นั่งแช่น้ำกันได้สบายๆไม่อึดอัด

วิวจากอ่างจากุซซี่มองออกไปฝั่ง Pool Deck

มองผ่านจากุซซี่ไปที่อาคารชั้น 1 จะเป็นห้อง Lounge ค่ะ ทางเข้าจะเป็นประตูบานเฟี้ยมกระจก ที่เวลาอากาศดีสามารถเปิดรับลมได้ทั้งหมด ด้านหน้าห้องพักผ่อนมีชุดโต๊ะเก้าอี้มาให้ 2 ฝั่ง

บริเวณหน้าห้องจัดเป็นชุดโต๊ะเก้าอี้หวาย ชิมบรรยากาศแบบ Semi-Outdoor

เข้าไปภายในห้อง มีขนาดที่กว้างขวาง จัดมุมพักผ่อนเอาไว้ห่างๆกันเพื่อให้ได้ความเป็นส่วนตัว

ทั้งสตูลข้างชั้นหนังสือและชุดโซฟาทั้ง 2 ฝั่งของห้อง

มุมมองจากภายใน Lounge ออกไปที่สระว่ายน้ำ
ติดกับ Lounge จะเป็นพื้นที่สระเด็ก
ด้านในมีชุดโซฟาสำหรับบรรดาแม่ๆคอยมานั่งดูแลลูกเล่นน้ำ

ซึ่งบริเวณด้านข้างสระเด็กจะมีจุดล้างตัวก่อนลงสระ 1 จุด
สระเด็กจะเป็นแบบ Semi-Outdoor นะคะ ว่ายอยู่ในร่มตอนกลางวันก็สบายๆไม่ร้อน
มองไปอีกฝั่งจะเป็นทางออกสู่ส่วนสาธารณะ และโถงทางเดินเข้าสู่ห้องน้ำ
เราเข้าไปดูภายในห้องน้ำกันต่อค่ะ ฝั่งซ้ายมือคือห้องน้ำชาย ส่วนตรงกลางคือห้องน้ำหญิง ภายในมีห้องซาวน่าและสตีมให้
เข้ามาภายในห้องน้ำ จะเจอโถงกลางแยกไปซ้าย-ขวา
ฝั่งซ้ายจะเป็นบริเวณตู้ล็อกเกอร์, อ่างล้างมือ และห้องอาบน้ำ
ตู้ล็อกเกอร์วางเอาไว้ตำแหน่งหน้าสุด
ฝั่งซ้ายมือคืออ่างล้างมือ มีให้ 4 อ่าง
ฝั่งขวาเป็นห้องอาบน้ำค่ะ มีทั้งหมด 4 ห้อง
ด้านในสุดจะเป็นห้องซาวน่าและสตีม บริเวณช่วงนี้จะทำหลังคาแบบโปร่งแสง ทำให้บรรยากาศภายในห้องน้ำดูโปร่งโล่งน่าใช้งานขึ้นเยอะ
จากโถงมายังฝั่งขวามือจะเป็นห้องน้ำค่ะ โถสุขภัณฑ์ภายในติดตั้งรองนั่งแบบ Washlet
จากนี้เราจะออกไปดูสวนสาธารณะที่อยู่ด้านหลังคลับเฮ้าส์กันต่อค่ะ
เมื่อเดินออกมาจากคลับเฮ้าส์แล้วจะเจอสวนสาธารณะขนาดใหญ่ ล้อมรอบด้วยต้นจามจุรี ออกแบบด้วยคอนเซ็ปต์ Green Carpet Rest ที่ให้ความรู้สึกร่มรื่น ผ่อนคลายและเป็นธรรมชาติ โดยออกแบบกิจกรรมในสวนสาธารณะเช่น ลู่วิ่งรอบสวน, สนามเด็กเล่น, ศาลานั่งเล่นริมน้ำ, ลานออกกำลังกายกลางแจ้ง เน้นการเข้าถึงธรรมชาติ โซนแรกที่เห็นเลยก็คือสนามเด็กเล่น

เป็นจุดสำหรับเด็กเล็กให้รู้จักเข้าสังคมด้วยการแบ่งปันเครื่องเล่นด้วยกัน พื้นปูด้วยพื้นยาง ช่วยซับแรงกระแทกและกันการถลอกเวลาที่หกล้มได้ดี
ถัดจากสนามเด็กเล่นมาจะเป็นสนามหญ้า ล้อมรอบด้วยลู่วิ่งจ๊อกกิ้ง
จะเป็นพื้นปูนปาดเรียบ ให้วิ่งไปรอบๆสวนเป็นวงรี

รอบๆปลูกต้นจามจุรีโดยตลอดสร้างร่มเงาและทิวทัศน์ที่เขียวชะอุ่มได้เป็นอย่างดี
ลานสนามหญ้าตรงกลางจะใช้ตีแบตมินตัน หรือเป็นสนามวิ่งเล่นของเด็กก็ได้เช่นกัน
อีกฝั่งนึงของสวนจะเป็นลานออกกำลังกายกลางแจ้ง
ภายในก็มีเครื่องออกกำลังกายให้อยู่หลายชิ้นเลย
บรรยากาศโดยรอบจัดแลนสเคปเอาไว้อย่างสวยงาม ตามแนวความคิดเพื่อที่ให้การใช้ชีวิตใกล้ชิดกับธรรมชาติมากขึ้น
ตามมุมสวนได้ทำที่นั่งพักผ่อนใต้ร่มเงาไม้ได้ ในวันพักผ่อนที่อากาศดี จะมานอนเล่น นั่งอ่านหนังสือเล่มโปรด ก็เป็นความคิดที่ไม่เลวเลย

มุมมองย้อนกลับจากฝั่งลานออกกำลังกายกลางแจ้ง
เดินย้อนกลับจากลานออกกำลังกายกลางแจ้งไปยังคลับเฮ้าส์
:::: บ้านตัวอย่าง ::::
วันนี้ทางทีมงาน Homenayoo จะพาท่านผู้อ่านของเราไปชมบ้านตัวอย่างทั้ง 2 หลังด้วยกัน ลำดับเป็นแบบบ้าน Multiplec ขนาด 222 ตร.ม. และตามด้วยแบบบ้าน Veridio ขนาด 286 ตร.ม. ไปชมกันเลยค่า ?
::: แบบบ้าน Multiplec ขนาด 222 ตร.ม. :::
บ้านออกแบบมาด้วยหน้าตาสไตล์ Tropical Modern ภายนอกทาสีขาวเป็นพื้นตัวบ้าน ส่วนกำแพงและผนังบ้านภายนอกบางส่วนด้วยสีน้ำตาลและเทาเข้ม เราจะพาไล่ดูกันไปทีละส่วนๆนะคะ

ประตูรั้วจะเป็นโครงเหล็กโปร่งทาสีดำ แบบรางเลื่อน ควบคุมด้วยรีโมทคอนโทรล

ฝั่งซ้ายมือของประตูรั้ว มีประตูเล็กสำหรับเดินเข้าแยกจากประตูเลื่อนเพื่อเข้าไปในพื้นที่ของบ้าน จะมีกล่องจดหมายและติดเลขที่บ้านไว้ให้ข้างประตู พร้อมไฟกำแพงและกริ่งออดติดมาให้เรียบร้อย
ส่วนฝั่งขวามือของประตูรั้วเป็นจุดเก็บขยะค่ะ ภาพขวามือเป็นจุดทิ้งขยะภายในบ้านมีฝาปิดซึ่งเราไม่ต้องเปิดประตูรั้วออกไปทิ้งนอกบ้าน แต่สามารถเปิดทิ้งในบ้านได้เลย ทางส่วนกลางจะมาเก็บไปจากด้านนอกเอง
เข้ามาภายในบ้านจะเป็นพื้นที่ลานจอดรถ ตามมาตรฐานของบ้านแบบ Multiplec ตกแต่งทรายล้าง และ กระเบื้อง จอดรถได้ 2 คัน แต่พื้นที่ของบ้านหลังนี้สามารถจอดรถได้ 3 คันเลยค่ะ เป็นจอดในร่ม 2 คัน และกลางแจ้งอีก 1 คัน
พื้นส่วนลานจอดรถเป็นผิวทรายล้างและตกแต่งกระเบื้อง บนโครงสร้าง ON BEAM ในส่วนร่ม และ ON PILE ( 6 เมตร) ในส่วนด้านหน้า ส่วนเพดานลานจอดรถติดไฟดาวน์ไลท์พร้อม Photo Cell Switch เปิด-ปิดไฟอัตโนมัติ มาให้ 1 ดวง
จากลานจอดรถสามารถเดินเชื่อมสู่เฉลียงบ้านได้เลย โดยจะมีหลังคาปกคลุมตลอด ไม่มีปัญหาแน่นอนเวลาที่ฝนตก

ส่วนฝั่งซ้ายมือของบ้านทางโครงการจะจัดสวนและลงต้นไม้เอาไว้ให้แบบนี้เลยค่ะ ต้นไม้พุ่มเนี่ย สามารถสร้างความเป็นส่วนตัวให้พื้นที่บ้านได้เป็นอย่างดีเลยนะ
มาดูในส่วนของเฉลียงทางเข้าบ้านกันบ้าง
พื้นจะยกระดับขึ้นมาจากพื้นสวนประมาณ 10 ซม.ค่ะ พื้นปูด้วยกระเบื้องหินเทียมผิวด้านหลายขนาด วางให้เกิดแพทเทิร์นที่ดูเรียบๆแต่มีลูกเล่น
จะเห็นว่าพื้นที่เฉลียงนั้นจะค่อนข้างกว้างขวาง สามารถวางชุดม้านั่งนั่งไว้นั่งเล่นหน้าบ้านได้เลยค่ะ จะเห็นว่าทางโครงการได้ทำ Shading ตรงเฉลียงให้ซึ่งสามารถหมุนได้ตามภาพ เราสามารถหมุนเปิดเพื่อรับแสง หรือหมุนปิดเพื่อความเป็นส่วนตัวก็ได้เช่นกัน
เราเข้าไปดูภายในตัวบ้านกันต่อค่ะ ประตูหน้าบ้านเป็นประตูบานไม้ทึบ
มือจับแบบสเตนเลสของ COLT รูปตัว U ด้านนอกมีช่องสำหรับเสียบกุญแจ และด้านในมีตัวบิดล็อก
พื้นบ้านจะยกระดับจากพื้นเฉลียงขึ้นมาอีก 10 ซม. พื้นบ้านปูด้วยกระเบื้องขนาด 80 x 80 ซม. สีครีมดูขาวสะอาด
เปิดประตูเข้ามาด้านในจะเป็นส่วนห้องรับแขกต่อเนื่องไปเข้าไปถึงห้องอาหารค่ะ บ้านตัวอย่างจัดเฟอร์นิเจอร์มาให้เห็นความลงตัวและระยะการใช้งาน ผนังของบ้านจะติดวอลเปเปอร์มาให้เรียบร้อยแล้ว

ตามบ้านตัวอย่างได้ทำฝ้าหลุม และทำรางม่านเพิ่ม ซึ่งตรงนี้บ้านเปล่าจะไม่มีนะคะ จะเป็นฝ้าฉาบเรียบติดดวงโคมดาวน์ไลท์ให้ ซึ่งที่ชั้น 1 ฝ้าจะสูง 2.7 เมตร มีพื้นที่เหลือพอในการดรอปฝ้าเพิ่มเติมได้ค่ะ
เรามาเริ่มจากห้องรับแขกกันก่อนเลย

ทางโครงการได้จัดโซฟาแบบ L Shape พร้อมโต๊ะกาแฟตัวใหญ่มาให้ดูระยะการใช้งาน ดูสบายๆไม่อึดอัดค่ะ
บริเวณด้านหลังโซฟา จะติดหน้าต่างบานเลื่อนและบานติดตายมาให้ทั้ง 2 ด้าน เป็นบาน UPVC ติดกระจกเขียวตัดแสง ช่วยกรองแสงแดดก่อนเข้าสู่ตัวบ้าน 1 ชั้น
ประตูและหน้าต่างทุกบานจะติดมุ้งลวดมาให้ทั้งหลัง อีกทั้งยังติดตั้งระบบ Magnetic ป้องกันขโมยให้เรียบร้อยด้วย เป็นมาตรฐานของบ้านมัณฑนาเลยค่ะ
มุมมองไปที่ฝั่งชั้นวางทีวีบ้าง บ้านตัวอย่างทำเป็นผนังบิลด์อินมาให้ดูเป็นไอเดีย ช่วยเพิ่มพื้นที่ใช้สอยและตกแต่งบ้านได้ดี ระยะดูทีวีอยู่ที่ 3 เมตรเลยค่ะ เหมาะกับทีวีจอใหญ่ขนาด 70 นิ้วขึ้นไป ฝั่งซ้ายมือคือประตูห้องนอน 4
เราจะเข้าไปดูภายในห้องนอน 4 กันก่อนเลยค่ะ ประตูเป็นบานทึบ
ติดมือจับประตูแบบก้านโยกสแตนเลสของ COLT เช่นกัน
บริเวณบานประตูจะมี Air Pass ส่วนนึงของระบบ AirPlus เพื่อรับอากาศจากโถงนอกห้อง หรือจะเลื่อนปิดเพื่อกันแอร์ออกจากห้องก็ได้ค่ะ

พอเข้ามาในพื้นที่ของห้องนอน พื้นจะปูด้วยลามิเนตหนา 8 มม. นำเข้าจากเยอรมัน โดยให้ผิวสัมผัสเหมือนไม้ธรรมชาติมากค่ะ
ภายในห้องนอน 4 จริงๆแล้วก็คือห้องอเนกประสงค์นั่นเองค่ะ เราสามารถปรับเปลี่ยนฟังก์ชั่นได้ตามใจชอบเลย ถ้าบ้านเรามีแม่ลูกอ่อน ก็สามารถปรับเปลี่ยนห้องนี้ให้เป็นห้องเลี้ยงเด็กได้ ถ้ามีผู้สูงอายุ ก็สะดวกสบายมากค่ะ ไม่ต้องเดินขึ้น-ลงบันได หรือจะจัดเป็นห้องโฮมเธียร์เตอร์ หรือห้องทำงานก็รองรับได้ทั้งนั้น เพราะห้องมีขนาดกำลังดี ไม่เล็กไม่ใหญ่จนเกินไปทำให้สามารถจัดห้องได้ง่าย
ฝ้าเพดานภายในห้องเป็นฝ้าฉาบเรียบติดดวงโคมดาวน์ไลท์ให้เหมือนกัน
บริเวณฝ้าห้องนอนจะมีพัดลมดูดอากาศ ทำงานด้วยพลังงานแสงอาทิตย์ นวัตกรรมใหม่จาก Land and Houses ทำให้เกิดการหมุนเวียนของอากาศภายในบ้านค่ะ
ทางบ้านตัวอย่างได้จัดห้องนี้ให้เป็นห้องนอน เป็นตัวอย่างเพื่อดูระยะการใช้งานของห้อง
ซึ่งตรงนี้จะเป็นเตียงขนาด 5 ฟุต กำลังเหมาะกับขนาดพื้นที่ของห้อง โดยยังเหลือพื้นที่ฝั่งซ้ายขวา ให้สามารถเดินผ่านและเปลี่ยนผ้าปูเตียงได้สะดวก

พื้นที่ปลายเตียงก็ยังเหลือแบบสบายๆค่ะ สามารถวางลิ้นชักเก็บของได้อีกตัว
ช่องแสงของห้องนอนจะเป็นหน้าต่างบานเลื่อน UPVC ติดกระจกเขียวตัดแสง ซึ่งจะอยู่บริเวณลานจอดรถพอดีค่ะ ตรงนี้เราสามารถติดม่านเพิ่มเติมได้เพื่อความเป็นส่วนตัว
มือจับบานหน้าต่างแบบเซาะร่อง
มาดูที่อีกฝั่งนึงของห้อง จะเป็นส่วนของ Walk-in Closet และห้องน้ำในตัว ซึ่งเราสามารถทำประตูบานเลื่อนกั้นโซนตามอย่างบ้านตัวอย่างได้นะคะ เพื่อห้องจะได้เป็นสัดส่วนมากยิ่งขึ้น
ภายใน Walk-in Closet ทางโครงการได้จัดเตรียม ตู้เสื้อผ้า Built-in และชุดอ่างล้างหน้าไว้ให้เรียบร้อยแล้วค่ะ
สุขภัณฑ์ภายในห้องน้ำทุกชิ้นจะเป็นของ American Standard ทั้งหมดนะคะ อ่างล้างมือและก๊อกน้ำก็เช่นกัน อ่างล้างมือมีขนาดกำลังดีเลย ใช้งานได้สะดวก ตัวอ่างถูกออกแบบมาให้มีพื้นที่วางของใช้มาเรียบร้อย
ก๊อกน้ำทรงเหลี่ยม ขนาดจับใช้งานได้สะดวก
ส่วนฝั่งขวามือของ Walk-in Closet จะเป็นห้องน้ำค่ะ
ซึ่งพื้นจะลดระดับลงจากพื้นห้องนอนเล็กน้อย ปูด้วยกระเบื้องขนาด 60 x 60 ซม.
ภายในห้องน้ำก็จะมีโถสุขภัณฑ์และโซนอาบน้ำค่ะ ผนังกรุด้วยกระเบื้องแบบเดียวกัน
โถสุขภัณฑ์เป็นรุ่นที่นั่งได้สบาย ด้านหลังโถก่อ Lower Wall ขึ้นมา สามารถวางหนังสือได้สำหรับคนที่ชอบทำธุระในห้องน้ำนานๆ

ติดตั้งมาพร้อมกับ Accessories ประกอบการใช้งานให้เรียบร้อย

ผนังด้านข้างโถสุขภัณฑ์ติดตั้งราวแขวนผ้าเช็ดตัวมาให้ด้วยเช่นกันค่ะ
มาดูในส่วนของโซนอาบน้ำกันต่อ ทางโครงการได้ติดตั้งกระจกบานเลื่อนกั้นอาบน้ำให้เรียบร้อย ซึ่งเป็นกระจกนิรภัยด้วยนะคะ
ภายในมีขนาดพื้นที่อาบน้ำกำลังดีเลยค่ะ ไม่แคบจนเกินไป
ภายในโซนอาบน้ำเจาะช่องที่กำแพงให้ สำหรับวางพวกขวดสบู่และแชมพู รวมถึงก่อเก้าอี้นั่งอาบน้ำให้ด้วย ผิวเก้าอี้ใช้เป็นกระเบื้องแบบเดียวกัน ส่วนชุดฝักบัวจะเป็นแบบมีราวปรับระดับมาให้ หัวฝักบัวมีขนาดใหญ่กำลังดี สามารถปรับรูปแบบของสายน้ำได้ โดยห้องน้ำห้องนี้จะมีช่องแสงเป็นหน้าต่างบานกระทุ้งให้เหนือโซนอาบน้ำค่ะ
บริเวณเก้าอี้นั่งอาบน้ำและชั้นวางสบู่
ส่วนฝ้าเพดานเป็นฝ้าฉาบเรียบ ติดดวงโคมดาวน์ไลท์มาให้เช่นกัน
มุมมองออกมาจากห้องนอน 4
เราจะไปดูห้องอาหารกันต่อค่ะ
สำหรับโต๊ะอาหารในบ้านตัวอย่างได้จัดวางเอาไว้สำหรับ 6 ที่นั่ง ซึ่งกำลังเหมาะสมกับพื้นที่ค่ะ แต่ถ้าวันไหนมีแขกมาบ้านเยอะ อาจจะต่อเก้าอี้หัวท้ายได้ถึง 8 ที่นั่งเลยทีเดียว
ห้องรับประทานอาหาร เชื่อมต่อกับสวนภายนอกด้วยประตูกระจกขนาดใหญ่ เปิดรับวิวธรรมชาติ
พื้นทางเดินออกจากสวนจัดกระเบื้องและหินกรวดแม่น้ำมาให้สวยงามตามภาพเลย
มองออกไปยังสวนข้างบ้าน ยังเหลือพื้นที่สวนให้เราจัดเพิ่มได้อีกเยอะเลยค่ะ
มองย้อนกลับเข้ามาภายในตัวบ้าน
มาดูในส่วนเตรียมอาหารกันต่อ ซึ่งจะเชื่อมกับครัวไทยด้านหลัง


ทางโครงการจะให้เคาน์เตอร์ Built-in แบบ U Shape มาให้เลยค่ะ แต่รูปแบบและสีอาจจะต่างกันเล็กน้อยนะ ระยะการใช้สอยตรงกลางกว้างประมาณ 1.05 เมตร
ใต้เคาน์เตอร์มีช่องเก็บของให้เยอะมาก ทั้งหมดเป็นบานเปิดและลิ้นชักแบบ Soft-closed
ชั้นลอยก็ตามภาพเลยค่ะ เป็นบานเปิดแบบ Soft-closed เช่นกัน
ทางฝั่งซ้ายมือข้างส่วนเตรียมอาหารจะเป็นห้องน้ำแขก และครัวไทยค่ะ
เรามาดูที่ห้องน้ำแขกกันก่อน ประตูห้องน้ำเป็นประตูบานทึบ มือจับก้านโยกสแตนเลสเช่นกัน
พื้นห้องน้ำลดระดับลงไปเล็กน้อย พื้นและผนังใช้กระเบื้องขนาด 60 x 60 ซม.
ห้องน้ำแขกจะเป็นแบบ Powder room คือจะมีเฉพาะอ่างล้างมือและโถสุขภัณฑ์ ไม่มีโซนอาบน้ำด้วย ฝั่งขวามือจะเป็นอ่างล้างมือ ทั้งอ่างและก๊อกใช้แบบเดียวกันกับห้องน้ำ 4 ใต้อ่างทำเป็นตู้เก็บของ เผื่อใส่พวกกระดาษชำระ, ผ้าเช็ดมือสำรอง และอื่นๆ
ฝั่งซ้ายมือวางโถสุขภัณฑ์ ใช้รุ่นเดิมค่ะ
เข้าไปดูห้องครัวกันต่อ จะติดตั้งประตูบานเลื่อนกั้นส่วนมาให้แบบนี้
ที่พื้นลดระดับลงไปประมาณ 10 ซม. พื้นปูด้วยกระเบื้องขนาด 60 x 60 ซม.
ในส่วนของครัวไทย จะเป็นจุดที่ใช้ทำอาหารหนักและมีกลิ่นแรง ออกแบบมาให้มีพื้นที่ค่อนข้างใหญ่ สามารถใช้งานได้สะดวก
ภายในครัวทางโครงการจะติดตั้งเคาน์เตอร์ครัวและชั้นลอยมาให้พร้อมใช้งานเลยค่ะ ซึ่งตรงนี้จะเหลือระยะการใช้งานตรงกลางกว้างประมาณ 1.35 เมตร เป็นระยะที่สามารถใช้งานได้สะดวก ยืนปรุงอาหารด้วยกัน 2 คนก็ยังสะดวก
ใต้เคาน์เตอร์ฝั่งอ่างล้างจานมีช่องเก็บของมาให้พอประมาณ ตัวเคาน์เตอร์นี้ทางโครงการใช้ของ Starmark ค่ะ

อ่างล้างจานติดตั้งตรงช่องแสงพอดี ถือเป็นตำแหน่งที่ดีเลยค่ะ

เหนือเคาเตอร์ให้ชั้นลอยมาด้วย สามารถจัดเก็บของได้เยอะอยู่นะ แต่จะเก็บของพวกที่ไม่ได้ใช้ทุกวัน เพราะจะเปิดหยิบก็ไม่ง่ายเท่าลิ้นชักล่าง
อีกฝั่งหนึ่งเป็นเคาน์เตอร์ทำลดระดับลงไป 10 ซม.เพื่อวางเตาไฟฟ้า แต่เตาไม่ได้ให้มาด้วยนะ ถ้าใครชอบใช้เตาแก๊ส ตรงเคาน์เตอร์ก็มีเจาะช่องสำหรับสายแก๊สให้เรียบร้อย โดยตรงนี้จะติดตั้งมาพร้อมกับฮู้ดดูดควันค่ะ
ใต้เคาน์เตอร์ก็สามารถเก็บของได้เยอะทีเดียว บานเปิดฝั่งขวามือสุดจะเป็นบริเวณที่ให้วางถังแก๊สค่ะ
จากห้องครัวจะเชื่อมต่อกับลานซักล้างหลังบ้าน เป็นประตูบานทึบติดลูกฟักกระจกให้ห้องได้รับแสงจากภายนอกมากขึ้น เหนือประตูติดตั้งพัดลมดูดอากาศมาให้ด้วยอีกตัว
พื้นลานซักล้างจะทำเป็นพื้นซีเมนต์ปาดเรียบให้แบบนี้ โครงสร้างแยกจากตัวบ้านนะ และยังลงเสาเข็มลึก 4 เมตร เพื่อชะลอการทรุดตัวด้วยนะคะ
ในส่วนของลานซักล้างจะทำเคาน์เตอร์ภายนอกไว้ให้อีกจุด สำหรับการซักล้าง หรือการเตรียมล้างอาหารหนักๆ เช่น ปลา และ อาหารทะเล กำแพงรอบบ้านจะเป็นกำแพงสูง 1.2 ม. ฉาบปูนเรียบทาสีน้ำตาลเข้ม และมีลานคอนกรีตพร้อมแท็งน้ำติดตั้งมาให้พร้อมปั๊มน้ำเรียบร้อย
บนเคาน์เตอร์กรุกระเบื้องขนาด 40 x 40 ซม.ให้ ข้อดีก็คือสามารถเช็ดล้างทำความสะอาดได้ง่าย บนเคาน์เตอร์วางอ่างล้างมือมาให้พร้อมก๊อกน้ำทรงสูง มีขนาดใหญ่ ใช้งานได้ถนัด
บริเวณนี้จะติดตั้งก๊อกสนามมาให้ด้วยค่ะ
บริเวณข้างบ้านอีกฝั่งจะเป็นห้องของแม่บ้าน
ฝั่งซ้ายประตูบานทึบเป็นห้องนอน ส่วนฝั่งขวาประตูบานทึบติดเกล็ดระบายอากาศเป็นห้องให้จบเรียบร้อย
ภายในห้องแม่บ้านปูด้วยกระเบื้องขนาด 40 x 40 ซม. ผนังฉาบเรียบทาสี มีหน้าต่างบานเลื่อนและบานเกล็ดเป็นช่องแสงและทางระบายอากาศ
ส่วนห้องน้ำก็ใช้กระเบื้องชนิดเดียวกันกับห้องนอนปูทั้งพื้นและผนัง ภายในติดตั้งสุขภัณฑ์ของ American Standard ทั้งหมด
ย้อนกลับเข้ามาภายในตัวบ้าน เดี๋ยวเราจะขึ้นไปดูที่ชั้น 2 กันต่อ
ทางขึ้นชั้น 2 จะเป็นโถงบันไดอยู่ข้างหลังห้องอาหาร
ส่วนนี้จะเป็นโถง มีหน้าต่างบานเลื่อนเป็นช่องแสง
สังเกตที่ใต้หน้าต่าง จะเป็นช่องเปิดที่รับอากาศบริสุทธิ์จากสวนนอกบ้านให้หมุนเวียนเข้ามาในบ้าน ส่วนพัดลมดูดอากาศ (แบบที่ถ่ายให้ดูบนฝ้าเพดานของห้องนอน 4) จะดูดอากาศเก่าภายในห้องให้ระบายออกไปภายนอกบ้านค่ะ
ขึ้นไปดูที่ชั้น 2 กันต่อ ตัวโถงบันไดกว้าง 1.1 เมตร บันไดทั้งลูกตั้งและลูกนอนปิดผิวด้วยไม้ประสาน โครงสร้างคอนกรีตเสริมเหล็ก เป็นบันไดแบบทึบรูปตัว L ทำให้พื้นที่บ้านดูกว้างขวางมากขึ้น
ราวจับบันไดเป็นโครงเหล็กฝังผนัง มือจับใช้ไม้จริงสีเข้ากับพื้นบันได
มุมมองขึ้นไปยังโถงบันไดชั้น 2
บันไดหักขึ้นมาเป็นรูปตัว L แบบนี้

มองย้อนกลับลงไปที่ชานพักบันได
ขึ้นมายังโถงบันไดชั้น 2 จะเป็นโถงทางแยกสู่ห้องนอนทั้ง 3 ห้อง พื้นชั้น 2 ทั้งหมดปูด้วยลามิเนตแบบเดียวกับห้องนอนชั้นล่าง ผนังติดวอลเปเปอร์ต่อเนื่องขึ้นมาให้ ส่วนฝ้าเพดานจะสูงอยู่ที่ 2.8 เมตร
มุมมองย้อนกลับไปที่โถงบันได ตรงมุมราวกันตกจะเป็นมุมสำหรับใช้วางหิ้งพระได้

ภายในโถงบันไดจะติดตั้งแผงควบคุม สัญญาณกันขโมยระบบ Magnetic และ แผงควบคุมระบบ Air Plus ที่เรียกว่า LH Smart Home เป็นระบบที่แสดงถึงความเอาใจใส่ในด้านการอยู่อาศัยในระยะยาวของลูกบ้านอย่างแท้จริงจากแลนด์แอนด์เฮ้าส์
โดยระบบ LH Smart นี้จะทำงานอัตโนมัติ จากพลังงานโซลาเซลล์ เป็นระบบถ่ายเทอากาศโดยภายในบ้านจะมีท่อพัดลมดูดอากาศ แล้วผ่านทางท่อลมออกสู่ชายคาภายนอกบ้าน (ตามภาพที่ถ่ายให้ดูในส่วนของชั้นล่าง) ช่วยลดความร้อน-ความชื้น, กลิ่นอับ ภายในบ้าน รวมถึงเป็นการช่วยถ่ายเทอากาศเก่าออกไป และดึงอากาศบริสุทธิ์เข้ามาภายในบ้าน
เราจะเข้าไปดูภายในห้องนอนทั้ง 3 ห้องกัน ฝั่งซ้ายสุดไล่มาทางขวา คือห้องนอน 3, ห้องนอน 2 และห้องนอน 1
เราเข้าไปดูภายในห้องนอน 1 หรือห้องมาสเตอร์เบดรูมกันก่อนเลย
ภายในห้องนอนมีขนาดใหญ่และกว้างขวาง สามารถใช้งานได้อย่างเต็มประสิทธิภาพ สังเกตว่าห้องนอนมีความสว่างและโปร่งโล่งมากเพราะมีช่องแสงให้รอบห้องเลย ภายในห้องนอนใหญ่จะมีห้องน้ำ, ระเบียง และ Walk-in Closet ในตัวด้วยนะคะ
ภายในห้องสามารถวางเตียงคิงไซส์ได้สบายๆเลยค่ะ โดยจะยังเหลือพื้นที่โดยรอบเตียงนอนอีกเหลือเฟือ

ฝั่งขวามือจะจัดให้เหลือพื้นที่กว้างกว่า สามารถวางโต๊ะทำงานได้อีกตัวนึง

พื้นที่ปลายเตียงก็เหลืออีกเยอะนะ สามารถวางสตูลปลายเตียงขนาดใหญ่และชั้นวางของได้อีกฝั่งด้วย

ผนังฝั่งหัวเตียงจะมีหน้าต่างมาให้ทั้ง 2 ฝั่ง แต่ว่าทางโครงการได้ทำบานเลื่อนทึบเอาไว้ให้กันแสง ใช้งานได้ดีทีเดียวค่ะ

ผนังฝั่งปลายเตียงทำ Built-in เป็นชั้นวางของมาให้ดูเป็นตัวอย่าง ทั้งสวยงาม และสามารถใช้งานได้ดีเลย
ภายในห้องนอนใหญ่จะมีระเบียงส่วนตัว เชื่อมด้วยประตูบานเลื่อน 2 บาน
พื้นระเบียงปูด้วยกระเบื้องแบบเดียวกันกับพื้นเฉลียงทางเข้าบ้าน ลดระดับลงจากพื้นห้องนอนเล็กน้อย มีเดินระบบระบายน้ำที่พื้นและติดไฟผนังไว้ให้เรียบร้อย
ราวกันตกเป็นกระจกเทมเปอร์กรอบอลูมิเนียม ทำให้หน้าตาบ้านดูสะอาด พื้นเฉลียงมีพื้นที่ที่ค่อนข้างกว้างขวางทีเดียว สามารถวางชุดเก้าอี้หวายเพื่อนั่งชมสวนภายนอกบ้านได้
มองย้อนกลับเข้ามาภายในห้องนอน
ช่องประตูฝั่งซ้ายมือคือ Walk-in Closet และห้องน้ำในตัวค่ะ
ภายในนี้จริงๆแล้วจะเป็นห้องเปล่านะคะ ทางโครงการทำตู้ Built-in ขึ้นมาเพื่อให้ดูเป็นไอเดียค่ะ
ไอเดียการออกแบบตู้เสื้อผ้า แบบนี้สามารถใช้งานได้ดีทีเดียวนะ
เราจะเข้าไปดูภายในห้องน้ำกันต่อเลยค่ะ
ห้องน้ำในห้องนอนใหญ่ จะพิเศษกว่าห้องน้ำห้องอื่นๆในบ้านตรงที่มีโถสุขภัณฑ์แบบ Washlet ให้ ยังคงใช้สุขภัณฑ์ของ American Standard ทั้งหมด ภายในห้องน้ำใช้กระเบื้องเซรามิกขนาด 60 x 60 ซม.ปูพื้นและกรุผนังทั้งหมด
อ่างล้างมือแบบเดียวกันกับห้องน้ำชั้นล่าง
ฝั่งซ้ายวางโถสุขภัณฑ์แบบ Washlet
ติดตั้งแผงควบคุมให้ข้างผนัง
อีกฝั่งเป็นโซนอาบน้ำ ติดฉากบานเลื่อนกั้นอาบน้ำให้เรียบร้อย ภายในก็เหมือนกับห้องน้ำชั้นล่างค่ะ มีช่องวางสบู่, ก่อม้านั่งอาบน้ำให้ และติดตั้งฝักบัวพร้อมราวปรับระดับ
เข้าไปดูในส่วนของห้องนอน 2 และ 3 กันต่อ

เริ่มต้นจากห้องนอน 2 ทางเป็นโถงทางเดินเข้าห้องแบบนี้ ซ้ายมือคือห้องน้ำในตัว ส่วนขวามือสามารถวางตู้เสื้อผ้าได้ยาวตลอดผนัง
ภายในห้องน้ำก็จะใช้สุขภัณฑ์จาก American Standard เหมือนเดิมทุกประการค่ะ ส่วนพื้นละผนังก็จะมีการเปลี่ยนสีและลายกระเบื้องไปบ้าง
สิ่งที่เปลี่ยนไปก็จะมีอ่างล้างมือเพียงอย่างเดียวค่ะ ที่เหลือยังคงเป็นเหมือนเดิมทุกประการ
เดินต่อเข้ามาภายในห้อง จะเห็นว่ามีพื้นที่ห้องที่กว้างขวางเช่นกัน ภายในห้องสว่างด้วยช่องแสงขนาดใหญ่รอบห้อง

ภายในห้องสามารถวางเตียงคิงไซส์ได้เช่นกัน
ฝั่งหัวเตียงมีการทำบานเลื่อนกันแสงจากหน้าต่างให้เหมือนกับห้องนอนใหญ่

พื้นที่ปลายเตียงระยะก็ยังเหลือแบบสบายๆเลยนะ
ผนังฝั่งตรงข้ามเตียงนอนเราสามารถทำชั้น Built-in ได้ทั้งผนังเลยนะ จะเป็นการช่วยจัดเก็บของได้เป็นอย่างดี
ผนังอีกฝั่งวางตู้เสื้อผ้า, โต๊ะทำงานหรือโต๊ะเครื่องแป้ง และยังเหลือพื้นที่สำหรับวางชั้นวางของ หรือจะวางกระจกเงาแบบนี้ก็ช่วยทำให้ห้องดูกว้างขึ้นไปอีก
มาถึงห้องนอนเล็กกันแล้วค่ะ ทางเดินเข้าห้องจะเป็นโถงเข้าไปแบบนี้ ฝั่งขวาวางตู้เสื้อผ้า
ขนาดห้องนอนเล็กก็ยังมีพื้นที่ที่กว้างใช้ได้อยู่นะ ภายในห้องวางเตียงขนาดซิงเกิ้ลเบดแต่รวม Built-in ก็มีขนาด 1.4 เมตร เกือบเท่าเตียงควีนไซส์แล้ว
ถ้าจะวางเป็นเตียงควีนไซส์แทนก็ได้นะคะ ขนาดจะกำลังพอดีกับตัวห้องเลย จะกินพื้นที่วางโต๊ะข้างหัวเตียงมาอีกประมาณ 10 ซม. แต่ให้วางเตียงชิดริมหน้าต่างนะ จะได้เหลือพื้นที่ห้องเยอะหน่อย
ข้างหัวเตียงยังเหลือที่พอสำหรับโต๊ะทำงานและโต๊ะข้างหัวเตียงอย่างละตัวด้วยค่ะ

พื้นที่ปลายเตียงก็ยังเหลือแบบสบายๆนะ สามารถวางชั้นวางของได้อีกตัวแทน Built-in เลย
มองไปอีกฝั่งนึงของห้อง จากประตูทางเข้าห้องนอนมาจัดเป็นตู้เสื้อผ้าและชั้นวางของให้เห็นเป็นไอเดีย ส่วนประตูฝั่งขวามือคือห้องน้ำในตัวค่ะ
ห้องน้ำภายในห้องนอนเล็กจะเหมือนกับห้องนอนกลางทุกประการ เพียงแต่จะเปลี่ยนสีกระเบื้องภายในห้องให้ดูไม่น่าเบื่อ
::: แบบบ้าน Veridio ขนาด 286 ตร.ม. :::
มาดูบ้านขนาดใหญ่กันต่อค่ะ คือแบบบ้าน Veridio ขนาด 286 ตร.ม. มีความพิเศษมากยิ่งขึ้นจากบ้านหลังที่แล้ว ในรายละเอียดจะเป็นอย่างไรนั้นไปชมกันเลยค่า ในส่วนของรั้วบ้านจะเหมือนกับบ้านหลังที่แล้วทุกประการนะ
มุมมองผ่านประตูรั้วเลื่อนเข้าไปภายในตัวบ้าน
แบบบ้าน Veridio มาตรฐานจะสามารถจอดรถได้ 3 คัน แต่เนื้อที่บ้านหลังนี้สามารถจอดเพิ่มได้ถึง 6 คันเลยนะ จะเป็นจอดในร่ม 3 คัน และจอดกลางแจ้งอีก 3 คันค่ะ

พื้นที่ส่วนลานจอดรถ เหมือนแบบบ้าน Multiplec เลยค่ะ แต่ขนาดใหญ่กว่า
อีกฝั่งเป็นพื้นที่สนามหญ้า พื้นที่หน้าบ้านแปลงนี้จะค่อนข้างกว้างค่ะ แลกกับพื้นที่สวนข้างบ้านที่น้อยลง
มาดูในส่วนของเฉลียงทางเข้าบ้านกันบ้าง

วัสดุของพื้นเฉลียงยังใช้เหมือนเดิมค่ะ มีแพทเทิร์นการวางที่เหมือนกัน
จะเห็นว่าพื้นที่เฉลียงหน้าบ้านหลังนี้จะมีขนาดที่กว้างขวางขึ้น พัดลมตัวบนฝ้าก็ได้มากับตัวบ้านด้วยนะ
พื้นที่เฉลียงของบ้านหลังนี้จะเชื่อมต่อกับพื้นที่ภายในบ้านด้วยประตูบานเลื่อนทั้ง 2 บาน เอื้อประโยชน์เวลามีการจัดงานปาร์ตี้ หรืองานบุญต่างๆ
เราเข้าไปดูภายในตัวบ้านกันต่อค่ะ ประตูหน้าบ้านเป็นประตูบานไม้ทึบสเป็กเดิม เพิ่มเติมคือกระจกติดตายข้างประตู ช่วยให้แสงเข้าสู่ตัวบ้านมากยิ่งขึ้น
มองตรงเข้าไปภายในบ้านจะเจอห้องรับแขกก่อน
ถัดเข้าไปด้านในคือห้องอาหาร ฝั่งขวามือคือส่วนเตรียมอาหาร เชื่อมต่อกับครัวไทย สเป็ควัสดุภายในบ้านเหมือนเดิมค่ะ พื้นบ้านปูด้วยกระเบื้องขนาด 80 x 80 ซม. ผนังของบ้านจะติดวอลเปเปอร์ ส่วนฝ้าเพดานเป็นฝ้าฉาบเรียบ ติดดวงโคมดาวน์ไลท์ สูง 2.7 เมตร
เรามาเริ่มดูรายละเอียดจากห้องรับแขกกันก่อนเลย
ทางโครงการได้จัดโซฟาแบบ L Shape พร้อมโต๊ะกาแฟตัวใหญ่มาให้ดูระยะการใช้งาน ดูสบายๆ เหมาะสมกับพื้นที่
ฝั่งชั้นวางทีวีบ้าง บ้านตัวอย่างทำเป็นผนัง Built-in มาให้ดูเป็นไอเดีย ช่วยเพิ่มพื้นที่ใช้สอยและตกแต่งบ้านได้ดี ระยะดูทีวีก็พอๆกับบ้านหลังที่แล้วนะ ฝั่งซ้ายมือคือประตูห้องนอน 4
เราจะเข้าไปดูภายในห้องนอน 4 กันก่อนเลยค่ะ ประตูเป็นบานทึบ ติดช่องระบายอากาศมาให้เหมือนเดิม
พื้นห้องนอนปูด้วยลามิเนตหนา 12 มม. บ้านตัวอย่างได้จัดห้องนี้ให้เป็นห้องนอนอีกห้องเพื่อให้ดูระยะการใช้สอย แต่สามารถปรับเป็นห้องเลี้ยงลูก หรือห้องทำงานได้เลยค่ะ
ขนาดห้องนอนก็พอๆกับบ้านหลังที่แล้วนะ จะมีขนาดใหญ่กว่าเล็กน้อย

การจัดวางเฟอร์นิเจอร์ก็ทำได้เหมือนๆกัน แต่เตียงนอนจะวางเป็นขนาดคิงไซส์ก็ยังพอไหวนะ
พื้นที่ปลายเตียงก็ยังเหลือระยะให้เดินผ่านได้สบายๆ

อีกฝั่งนึงของห้องจะสามารถจัดเป็นตู้เสื้อผ้าและชั้นวางของได้ทั้งผนัง
ผนังฝั่งตรงข้ามกับเตียงนอน ขวามือคือประตูห้องน้ำในตัวค่ะ
ภายในห้องน้ำจะเหมือนกับห้องน้ำของห้องนอนกลางและห้องนอนเล็กของบ้านหลังที่แล้วทุกประการ จะขอข้ามไปเลยนะคะ
ออกมาจากห้องนอน 4 กลับมาที่ห้องโถงใหญ่
ถัดจากห้องรับแขกไปก็จะเป็นห้องอาหารค่ะ
ในบ้านตัวอย่างได้จัดวางเอาไว้สำหรับ 6 ที่นั่ง ซึ่งกำลังเหมาะสมกับพื้นที่พอดี

สังเกตว่าประตูบานเลื่อนทั้ง 2 ที่เชื่อมกับพื้นที่เฉลียงนอกบ้าน บานนึงจะตรงกับห้องรับแขก และอีกบานจะตรงกับห้องอาหารพอดี

มองกลับไปอีกฝั่งเป็นส่วนของพื้นที่เตรียมอาหาร
ชั้น Built-in ฝั่งซ้ายมือ ทางโครงการได้ทำบานเปิดเป็นตู้เก็บของมาให้ตามภาพเลยค่ะ แต่จะได้เฉพาะช่วงล่างที่เปิดให้ดูนะ ช่วงบนจะเป็นผนังฉาบเรียบติดวอลเปเปอร์ให้ธรรมดา
ในส่วนของพื้นที่เตรียมอาหารก็มีขนาดที่กว้างขวางมากขึ้น สามารถใช้งานได้สะดวก
มีระยะการใช้งานแบบสบายๆเลยนะ จะเดินสวนด้านหลังกันตรงนี้ก็ไม่มีปัญหา
ใต้เคาน์เตอร์ทำเป็นลิ้นชักเก็บของและบานเปิดเอาไว้ให้อย่างเหลือเฟือ
ชั้นลอยก็มีอยู่ 2 ตู้ค่ะ เก็บของได้เพียงพอทีเดียว
ในส่วนของบนเคาน์เตอร์ก็เตรียมอ่างล้างจานมาให้แบบนี้ ล้างพวกแก้วน้ำ หรือผลไม้ได้สะดวกอยู่
ข้างๆเคาน์เตอร์จะทำเป็นบานเปิด ภายในเป็นห้องเก็บของค่ะ
ถัดจากพื้นที่เตรียมอาหารเข้าไปก็จะเป็นห้องน้ำแขก และครัวไทย
ห้องน้ำแขกจะเป็นแบบ Powder room เหมือนบ้านหลังที่แล้วทุกประการ แค่จะมีการวางเลเอ้าท์ต่างกันเล็กน้อย
เข้ามาภายในห้องครัว เราก็จะได้เคาน์เตอร์ครัวท็อปหินแกรนิต, ชั้นลอย และฮู้ดดูดควันมากับตัวบ้านเหมือนเดิม
เคาน์เตอร์ที่ได้เป็นแบบ L Shape มีขนาดค่อนข้างใหญ่ เพียงพอต่อการเตรียมอาหารและปรุงอาหาร
ฝั่งอ่างล้างจานก็จะได้ช่องเก็บของใต้เคาน์เตอร์ และชั้นลอยมาตามนี้เลย ฝั่งซ้ายมือเหลือพื้นที่ให้สามารถวางเครื่องซักผ้าได้ 1 เครื่อง
อีกฝั่งหนึ่งเป็นเคาน์เตอร์ทำลดระดับลงไป 10 ซม.เพื่อวางเตาไฟฟ้าหรือเตาแก๊ส ได้มาพร้อมกับฮู้ดดูดควันค่ะ
ฮู้ดที่ได้มาจะเป็นของ Teka นะคะ
จากห้องครัวจะเชื่อมต่อกับลานซักล้างหลังบ้าน เป็นประตูบานทึบติดลูกฟักกระจกให้ห้องได้รับแสงจากภายนอกมากขึ้น เหนือประตูติดตั้งพัดลมดูดอากาศมาให้ด้วยอีกตัว ฝั่งซ้ายเหลือพื้นที่เอาไว้สามารถวางตู้เย็นได้อีกเครื่อง
พื้นลานซักล้างโครงสร้างจะแยกกับตัวบ้าน ปูด้วยกระเบื้องขนาด 40 x 40 ซม.ทั้งหมด
พื้นที่ลานซักล้างมีขนาดที่กว้างขวางมากขึ้นเยอะเลยนะ และทำเคาน์เตอร์ภายนอกไว้ให้อีกจุด เหมือนบ้านหลังที่แล้วค่ะ
ส่วนบริเวณข้างบ้านอีกฝั่งจะเป็นห้องของแม่บ้าน เหมือนเดิมทุกประการค่ะ
กลับเข้ามาภายในบ้าน เราจะไปดูในส่วนของ IT Corner และขึ้นไปดูที่ชั้น 2 กันต่อเลย
ในส่วนของ IT Corner จะอยู่ในบริเวณโถงบันไดพอดี

สามารถจัดเป็นมุมทำงาน และมุมนั่งเล่นที่เป็นส่วนตัวได้อีก 1 มุมเลยนะ
ฝั่งตรงข้ามเป็นประตูบานเลื่อนกระจก สามารถเปิดออกสู่สวนข้างบ้านได้
เราขึ้นบันไดไปดูที่ชั้น 2 กันต่อเลย วัสดุบันไดเหมือนเดิมทุกประการค่ะ

มองย้อนกลับลงไปที่ชานพักบันได
ขึ้นมาถึงชั้น 2 จะเป็นโถงทางแยกสู่ห้องนอนทั้ง 3 ห้อง และห้องอเนกประสงค์อีก 1 ห้อง พื้นชั้น 2 ทั้งหมดปูด้วยลามิเนตหนา 12 มม. ผนังติดวอลเปเปอร์ต่อเนื่องขึ้นมาให้ ส่วนฝ้าเพดานจะสูงอยู่ที่ 2.8 เมตร เหมือนเดิมทุกประการค่ะ

มุมมองย้อนกลับไปที่โถงบันได ตรงนั้นจะมีช่องแสงอยู่ 1 จุด ทำให้ภายในโถงบันไดดูสว่างและโปร่งโล่ง

ตรงกลางโถงบันไดคือห้องอเนกประสงค์ ฝั่งซ้ายมือคือห้องนอน 2 และฝั่งขวามือคือห้องนอน 1
ห้องอเนกประสงค์จะมีขนาดกระทัดรัด เหมาะสำหรับการจัดเป็นห้องพระ, ห้องออกกำลังกาย-เล่นโยคะ หรือมุมทำงาน ก็ได้เช่นกัน
จากนี้เราจะเข้าไปดูห้องนอนกันต่อ เริ่มจากห้องนอน 1 เป็นห้องมาสเตอร์เบดรูม ภายในห้องนอนมีขนาดใหญ่และกว้างขวางพอๆกับบ้านหลังที่แล้ว ภายในห้องนอนใหญ่จะมีห้องน้ำ, ระเบียง และ Walk-in Closet ในตัวด้วยนะคะ
ภายในห้องสามารถวางเตียงคิงไซส์ได้สบายๆเลยค่ะ โดยจะยังเหลือพื้นที่โดยรอบเตียงนอนอีกเหลือเฟือ ผนังฝั่งหัวเตียงทำบานเลื่อนทึบเอาไว้กันแสงจากหน้าต่างให้เหมือนเดิม
พื้นที่ปลายเตียงก็เหลืออีกเยอะค่ะ วางสตูลปลายเตียงอีกตัวได้สบายๆ
ผนังฝั่งปลายเตียงทำ Built-in เป็นชั้นวางของมาให้ดูเป็นตัวอย่าง ทั้งสวยงาม และสามารถใช้งานได้ดี
ภายในห้องนอนใหญ่จะมีระเบียงส่วนตัว เชื่อมด้วยประตูบานเลื่อน
พื้นเฉลียงมีพื้นที่ที่ค่อนข้างกว้างขวางทีเดียว วัสดุเหมือนกับบ้านหลังที่แล้วทุกประการ สามารถวาง Day Bed เพื่อนั่งชมสวนภายนอกบ้านได้ เป็นมุมนั่งเล่นอ่านหนังสือที่น่าสนใจอีกมุมเลย
มองย้อนกลับเข้ามาภายในห้องนอน
จะเห็นช่องประตูเข้าไปในส่วนของ Walk-in Closet และห้องน้ำในตัว
ภายในนี้จริงๆแล้วจะเป็นห้องเปล่านะคะ ทางโครงการทำตู้ Built-in ขึ้นมาเพื่อให้ดูเป็นไอเดียค่ะ
เราจะเข้าไปดูภายในห้องน้ำกันต่อเลย ตรงนี้จะใช้เป็นประตูบานเลื่อนกระจก ทำให้ห้องดูต่อเนื่องและโปร่งโล่งมากกว่าการปิดทึบ
ห้องน้ำของมาสเตอร์เบดรูมจะมีลักษณะที่พิเศษกว่าห้องอื่นๆก็คือ จะมีขนาดที่ใหญ่มากขึ้น และถูกจัดแบ่งให้เป็นสัดส่วนมากกว่าเดิม
ฝั่งซ้ายมือวางอ่างล้างมือขนาดใหญ่
ใต้อ่างทำเป็นช่องเก็บของได้อีก 4 ช่อง
ส่วนฝั่งขวามือจะทำฉากกั้น แยกส่วนระหว่างโถสุขภัณฑ์และโซนอาบน้ำเรียบร้อย
ภายในโซนอาบน้ำยังคงเหมือนเดิมทุกประการค่ะ ส่วนโถสุขภัณฑ์ใช้แบบ Washlet เหมือนบ้านหลังที่แล้วทุกประการ
จุดที่พิเศษอีกหนึ่งจุดของห้องน้ำนี้ก็คือ การทำช่องแสงขนาดใหญ่เป็นประตูบานเลื่อนกระจก เพื่อให้ห้องน้ำสว่างและระบายอากาศได้ดี
โดยจะทำเป็นพื้นยื่นออกไปเล็กน้อยและผนังกั้นเพื่อความเป็นส่วนตัว จะรับแสงแดดจากช่องด้านบนซึ่งก็ถือว่าเกินคำว่าเพียงพอเลยนะ
จากห้องนอนใหญ่ เราไปดูห้องนอน 2 ฝั่งขวามือ และตามด้วยห้องนอน 3 ฝั่งซ้ายมือเป็นลำดับสุดท้าย
เข้าไปภายในห้องนอน 2 จะเป็นโถงทางเดินแบบนี้ ฝั่งซ้ายมือสามารถวางชั้นวางของได้ ข้างหน้าคือห้องน้ำในตัว

ชั้นวางของตรงโถงทางเข้าห้องนอน
ซึ่งภายในก็จะเหมือนเดิมทุกประการค่ะ
เข้ามาในส่วนของเตียงนอน ภายในห้องมีขนาดที่กว้างขวางมากพอๆกับห้องนอนใหญ่เลยนะ
ทางบ้านตัวอย่างวางเตียงขนาดควีนไซส์มาค่ะ แต่จะเห็นว่าจะวางเป็นเตียงคิงไซส์ก็ยังเหลือมากพอ
ซึ่งตอนนี้พื้นที่ฝั่งซ้ายมือก็ยังเหลือ สามารถวางชุดโซฟานั่งได้เพิ่มได้อีก 1 ชุด
ผนังอีกฝั่งวางตู้เสื้อผ้า, โต๊ะทำงานหรือโต๊ะเครื่องแป้ง ได้แบบสบายๆ

พื้นที่ฝั่งปลายเตียงก็เหลือแบบสบายๆรวมการวางชั้นวางของด้วยแล้ว

เห็นว่าระยะเดินยังเหลือแบบสบายๆเลยค่ะ
มาถึงห้องนอน 3 เป็นห้องนอนเล็กที่สุดของบ้าน ทางเข้าจะเป็นโถงทางเดินแบบนี้ ซ้ายมือคือห้องน้ำในตัว ส่วนขวามือสามารถวางตู้เสื้อผ้าได้ยาวตลอดผนัง

ตู้เสื้อผ้าบริเวณโถงทางเดินเข้าห้อง
ภายในห้องน้ำก็เหมือนเดิมทุกประการค่ะ
ห้องนอนเล็กของบ้านหลังนี้ก็ถือว่ามีขนาดที่ใหญ่พอตัวนะ ขนาดห้องสามารถวางเตียงควีนไซส์ได้พอดี

เมื่อวางเตียงแล้ว ดูระยะรอบๆห้องก็ยังเหลืออยู่

ฝั่งซ้ายมือสามารถวางโต๊ะทำงานได้อีกตัวนึง

พื้นที่ฝั่งปลายเตียงสามารถทำชั้น Built-in เพื่อเก็บของได้ จะใช้ไอเดียจากบ้านตัวอย่างก็ได้นะคะ
ระยะเดินก็จะเหลือแบบสบายๆ
นอกจากนี้สวิตช์และปลั๊กไฟภายในบ้านจะใช้ของ Legrand
ส่วนตู้ Load Center จะใช้ของ Siemens ค่ะ
:::: สรุปรายการวัสดุ และสิ่งที่โครงการให้ (พ.ย. 2560) ::::
วัสดุโดยรวม
ห้องน้ำ และสุขาภิบาล
งานไฟฟ้า
เฟอร์นิเจอร์ และสิ่งที่ได้มากับตัวบ้าน
***รายละเอียด Spec ของวัสดุ อาจมีการเปลี่ยนแปลงเป็นรุ่นที่เทียบเท่า สามารถสอบถามที่โครงการเพิ่มเติมได้ค่ะ
:::: ราคา (พ.ย. 2560) ::::
แบบบ้าน Multiplec ขนาด 222 ตร.ม.
4 ห้องนอน 5 ห้องน้ำ ที่จอดรถ 2 คัน
– แปลงเริ่มต้นขนาด 83 ตร.วา
– ราคา 12,990,000 บาท
แบบบ้าน Veridio ขนาด 286 ตร.ม.
4 ห้องนอน 5 ห้องน้ำ ที่จอดรถ 3 คัน
– แปลงเริ่มต้นขนาด 105 ตร.วา
– ราคา 17,990,000 บาท
***ข้อมูลราคา และโปรโมชั่นอาจมีการเปลี่ยนแปลง โปรดติดต่อสำนักงานขายเพื่อสอบถามรายละเอียดเพิ่มเติม
:::: สรุป ::::
ทำเลที่ตั้งโครงการ โครงการตั้งอยู่ในซอยเมืองแก้ว (ราชวินิต) เข้ามาจากถนนบางนา-ตราดประมาณ 2.6 กม.ฝั่งขาเข้า ซึ่งเป็นพื้นที่อยู่อาศัยในแนวราบ จุดเด่นในย่านนี้คือเป็นทำเลฝั่งตะวันออกซึ่งมีความอุดมสมบูรณ์สูงและถือเป็น New Central Business District ส่วนต่อขยายของตัวเมืองกรุงเทพฯอีกแห่งหนึ่ง อยู่ใกล้ทางพิเศษบูรพาวิถี, ทางพิเศษเฉลิมมหานคร และวงแหวงกาญจนาฯซึ่งสามารถเดินทางเข้า-ออก ตัวเมืองกรุงเทพฯได้สะดวก จึงถือเป็นทำเลที่ดีสำหรับคนที่หาที่อยู่ในย่านบางนา ซึ่งในอนาคตจะเจาะทางเชื่อมจากถนนบัวนครินทร์ไปถึงแยกลาซาลด้วย
ภายในซอยเมืองแก้ว (ราชวินิต) จะเป็นย่านที่พักอาศัยค่ะ มีโครงการบ้านจัดสรรในแนวราบใหม่ๆเกิดขึ้นอย่างต่อเนื่อง พอจะหาร้านอาหารหรือร้านสะดวกซื้อได้อยู่บ้าง ในซอยมี 7-Eleven และ Family Mart ห่างออกไป 1.6 กม. ฝั่งตรงข้ามกับ รร.ราชวินิติบางแก้ว พอดี ไม่ใกล้ขนาดระยะเดินแต่ก็พอจะปั่นจักรยานไปถึงได้ไม่เกิน 10 นาที แต่ในระยะเดินจากตัวโครงการจะเป็นโครงการบ้านจัดสรรทั้งหมดค่ะ
ออกมาในวงที่กว้างขึ้น ส่วนที่น่าสนใจที่สุดในย่านนี้เลยก็จะเป็นแอเรียบริเวณ Mega บางนา ห่างออกไปเพียง 2 กม. ที่เรียกได้ว่าเป็นศูนย์การค้าแนวราบที่ใหญ่ที่สุดในอาเซียนแล้ว และตอนนี้ยังมีประกาศเดินหน้าโครงการ Mega city ซึ่งเป็นโปรเจคอสังหาฯแบบมิกซ์ยูส บนถนนเส้นอื่นๆใกล้เคียงก็มีห้างเด่นๆที่อยู่ไม่ไกลอีกด้วย อาทิ เซ็นทรัลบางนา, Index Living Mall และอื่นๆอีกมากมาย
นอกจากนี้ตัวโครงการยังอยู่ใกล้กับสถานศึกษา ทั้ง รร.ไทย และ รร.นานาชาติ รวมถึงโรงพยาบาลอีกหลายแห่ง ป่วยไข้สบายใจ เพราะขับรถไปเพียงไม่กี่กิโลก็ถึงค่ะ
การเดินทางโดยรถยนต์ส่วนตัว ถือว่าสะดวกสบายเพราะสามารถเข้าออกได้หลายเส้นทางจากถนนใหญ่ถึง 5 เส้นทาง นับว่ามีทางหนีทีไล่พอสมควร ทั้งเส้นบางนา – ตราด, เส้นศรีนครินทร์ และเส้นเทพารักษ์ เส้นการเดินทางหลักๆเลยก็จะเป็นถนนบางนา – ตราด เป็นถนนใหญ่ขนาด 8 – 14 ช่องจราจร เป็นเส้นที่เชื่อมไปยังถนนกิ่งแก้วและถนนตำหรุบางพลี ขนานกับแกนตะวันออก – ตะวันตก จะวิ่งไปตัดกับถนนสายสำคัญอีกหลายสายอย่างถนนศรีนครินทร์ที่วิ่งไปตัดกับเส้นเทพารักษ์และอุดมสุข สามารถขึ้นไปถึงเส้นอ่อนนุช, รามคำแหง และลาดพร้าวได้
ถัดจากศรีนครินทร์ไปก็จะไปเชื่อมกับถนนสุขุมวิทวิ่งขึ้นไปยังแถบปทุมวันจนถึงอโศกได้เลย ส่วนอีกด้านหนึ่งทางทิศตะวันออก ถนนบางนา – ตราดจะวิ่งไปผ่านฉะเชิงเทราไปถึงชลบุรีเลยค่ะ ตรงนั้นจะไปบรรจบกับถนนสุขุมวิทที่ทางแยกต่างระดับหนองไม้แดง สามารถเดินทางได้หลายเส้นทางทีเดียว นอกจากนั้นยังอยู่ใกล้กับทางพิเศษบูรพาวิถี, ทางพิเศษเฉลิมมหานคร และวงแหวนกาญจนาภิเษก ซึ่งเป็นตัวช่วยสำคัญในการหลีกเลี่ยงการจราจรที่ติดขัดได้
การเดินทางโดยรถสาธารณะ สำหรับการเดินทางโดยรถสาธารณะนั้นจะยังไม่สะดวกเท่าการมีรถยนต์ส่วนตัว เพราะในซอยเมืองแก้ว (ราชวินิต) จะเป็นซอยตัน จึงไม่มีรถสาธารณะวิ่งผ่าน แนะนำให้ขอเบอร์พี่วินมอเตอร์ไซค์รับจ้างไว้ ให้เข้ามารับ-ส่งถึงหน้าโครงการได้ หรืือถ้าไปไกลใช้ Grab Car ก็สะดวกดีค่ะ นอกจากนี้ก็จะมี Shuttle Bus ของ MEGA บางนา ที่บริการวิ่งไปส่งถึง BTS เพื่อเข้าเมืองอีกทางค่ะ
ในอนาคตปี 2563 บนเส้น บางนา-ตราด จะมี รถไฟฟ้าสายสีเขียว วิ่งผ่าน ช่วง บางนา-สุวรรณภูมิสถานีที่ใกล้ที่สุดก็คือ สถานีบางแก้ว อยู่ห่างจากหน้าโครงการออกไปประมาณ 2.6 กม. และเส้น ศรีนครินทร์ จะมีรถไฟฟ้าสายสีเหลือง วิ่งผ่าน ช่วง พัฒนาการ-สำโรง สถานีที่ใกล้ที่สุดก็คือ สถานีศรีลาซาล ตรงแยกพอดี อยู่ห่างจากหน้าโครงการออกไปประมาณ 3.7 กม. ทั้งนี้ทั้งนั้นจะต้องรอทำถนนต่อจากบัวนครินทร์ ทะลุซอยคลองหนองบัวเพื่อออกที่ 4 แยกศรีลาซาลก่อนนะ ซึ่งตรงนี้จะเป็นตัวช่วยให้การเดินทางสะดวกมากขึ้นอีกเยอะค่ะ
การออกแบบโครงการ และวัสดุ รูปแบบภายนอกบ้านดูทันสมัย ด้วยวัสดุเลียนแบบธรรมชาติ ใช้โทนสีเทา-น้ำตาล หลายเฉดที่ดูลงตัวกันดี วัสดุที่ให้มาก็อยู่ในระดับดีสมราคา และออกแบบฟังก์ชั่นมาแบบใส่ใจรายละเอียดทั้งการประหยัดพลังงานและคุณภาพบ้านในระยะยาว โดยจะมีการติดตั้งระบบ LH Smart Home ให้ในตัวบ้านทุกหลัง ซึ่งระบบนี้จะทำงานอัตโนมัติตลอด 24 ชั่วโมงจากพลังงานโซลาเซลล์ เป็นระบบถ่ายเทอากาศโดยภายในบ้านจะมีท่อพัดลมดูดอากาศภายในห้องผ่านทางท่อลมออกสู่ชายคาภายนอกบ้าน
พื้นที่ใช้งานแต่ละส่วนมีความลงตัวดีเมื่อเทียบกับโครงการอื่นๆ คือเป็นระยะใช้งานสบายๆ ไม่อึดอัด และออกแบบมาค่อนข้างตอบรับกับวิถีชีวิตปัจจุบันมากขึ้น อย่างเช่นบ้านแต่ละหลังจะมี IT Corner ซึ่งอยู่ใกล้ๆกับโซนห้องนั่งเล่น เป็นต้น
ส่วนวัสดุที่ใช้ก็สวยงามได้มาตรฐานตามราคา สุขภัณฑ์ภายในห้องน้ำของ American Standard มีการนำโถสุขภัณฑ์แบบ Washlet มาใช้ในห้องน้ำของห้องนอนใหญ่ โดยบ้านที่ทางโครงการขาย จะเป็นบ้านมาตรฐาน (บ้านเปล่า) + เคาน์เตอร์ครัวไทย และเคาน์เตอร์ตรงส่วนเตรียมอาหาร
ภายในบ้านดูสว่างและโปร่งโล่งด้วย ประตูและหน้าต่างบานใหญ่ กรอบเป็น UPVC กระจกเขียวตัดแสง เรื่องการระบายอากาศก็เตรียมมาให้ดีมากด้วยระบบ LH Smart ที่อธิบายไปข้างต้น เราถือว่าเป็นนวัตกรรมที่แสดงถึงความใส่ใจของทางโครงการต่อลูกบ้าน ในระดับราคาเดียวกันเทียบกัลโครงการอื่นๆก็หาคุณภาพบ้านขนาดนี้ค่อนข้างยากนะ
สิ่งอำนวยความสะดวก และระบบรักษาความปลอดภัย โครงการมีขนาดพื้นที่ส่วนกลางขนาดใหญ่ สวนสาธารณะออกแบบด้วยคอนเซ็ปต์ Green Carpet Rest ที่ให้ความรู้สึกร่มรื่น ผ่อนคลายและเป็นธรรมชาติ โดยออกแบบกิจกรรมในสวนสาธารณะเช่น ลู่จ๊อกกิ้ง, สนามเด็กเล่น และ ลานออกกำลังกายกลางแจ้ง เน้นการเข้าถึงธรรมชาติ
คลับเฮ้าส์มีสระว่ายน้ำขนาดใหญ่ เป็นสระระบบเกลือขนาด 25 x 12 เมตร แยกสระเด็กสระผู้ใหญ่ มีห้องฟิตเนส, Lounge, ห้องซาวน่าและสตีม แยกชายหญิง บริเวณหน้าคลับเฮ้าส์จะติดกับสวนน้ำของโครงการพอดี ได้บรรยากาศของการพักผ่อนอย่างเต็มที่ ภายในโครงการจะปลูกต้นจามจุรีซึ่งให้ความร่มรื่นค่อนข้างเยอะ เน้นรักษาภูมิทัศน์ภายในโครงการ และรอบๆโครงการได้ดีค่ะ ถนนในโครงการมีปลูกต้นไม้ข้างทาง มีแนวพุ่มไม้ข้างรั้วตัดแต่งเป็นระเบียบ
ส่วนระบบรักษาความปลอดภัยก็ได้มาตรฐานดีค่ะ เข้า-ออกโครงการด้วย Key Card ระยะใกล้ + CCTV จับภาพป้ายทะเบียน แยกเป็นฝั่ง Resident และ Visitor รั้วรอบโครงการเป็นรั้วแบบกันปีนสูง 3.6 เมตร และเจ้าหน้าที่รักษาความปลอดภัยตลอด 24 ชม. ส่วนตัวบ้านมีสัญญาณกันขโมยติดแบบ Magnetic Sensor ให้ทุกหลัง เพิ่มความปลอดภัยในอีกระดับ
:::: สอบถามรายละเอียดเพิ่มเติมได้ที่ ::::
CALL CENTER : 1198
WEBSITE : www.lh.co.th
หากท่านเห็นว่ารีวิวนี้มีประโยชน์ โปรดกด Like เพื่อเป็นกำลังใจให้ทีมงาน ขอบคุณค่ะ
หากท่านมีความคิดเห็นหรือข้อมูลเพิ่มเติมเกี่ยวกับตัวโครงการ สามารถ Comment ได้ที่ด้านล่างของรีวิวค่ะ
บ้านเดี่ยว สมุทรปราการ ทำเลอื่นๆ ที่น่าสนใจ…
Arena Garden บางนา-สุวรรณภูมิ เริ่ม 7.8 ล้าน
บ้านเดี่ยว บุราสิริ บางนา
บ้าน แลนซิโอ คริป เทพารักษ์-กิ่งแก้ว
ศุภาลัย เบลล่า เทพารักษ์
บ้านสินทวี แกรนด์วิลล์
แลนซีโอ คริป ประชาอุทิศ-สุขสวัสดิ์
บ้านเดี่ยว ชวนชื่น ไพร์ม บางนา กม.29
บ้านเดี่ยว มัณฑนา ศรีนครินทร์-บางนา
มัณฑนา บางนา กม.7 เริ่ม 12 ล้าน
บ้านเดี่ยว บริทาเนีย ศรีนครินทร์ เริ่ม 4.65 ล้าน
ภัสสร เทพารักษ์-บางนา เริ่ม 3.59 ล้าน