
บ้านเดี่ยว ชัยพฤกษ์ บางนา กม. 7 Chaiyaphruek Bangna Km.7 เริ่มต้นชีวิตให้เหนือกว่า เริ่ม 6-8 ล้านบาท
Chaiyaphruek บางนา-กม.7 จาก Land & Houses ตั้งอยู่บน ซอยโรงเรียนราชวินิต บางแก้ว ถนนบางนา-ตราด ตำบล บางแก้ว บางพลี สมุทรปราการ เดินทางสะดวกสบาย ใกล้ถนนบางนา-ตราด, ถนนวงแหวนรอบนอกฯ, ทางด่วนบูรพาวิถี และ สนามบินสุวรรณภูมิ ใกล้ MEGA & IKEA บางนา, เซ็นทรัล บางนา, รพ.จุฬารัตน์, รร.ราชวินิตบางแก้ว และ รร.นานาชาติคอนคอร์เดียน
ชัยพฤกษ์ บางนา กม. 7 เป็นโครงการบ้านเดี่ยว 2 ชั้น พื้นที่โครงการขนาด 28.9 ไร่ จำนวนบ้าน 118 ยูนิต ที่ดินบ้าน เริ่มต้น 51 ตร.ว. ขึ้นไป พื้นที่ใช้สอย เริ่มต้น 136 ตร.ม. ขนาด 3 ห้องนอน, 3-4 ห้องน้ำ, ที่จอดรถ 2 คัน โครงการสร้างเสร็จพร้อมอยู่
สิ่งอำนวยความสะดวกภายในโครงการครบครัน อาทิ คลับเฮ้าส์, สระว่ายน้ำ, ฟิตเนส, สวนสาธารณะ, กล้องวงจรปิด, Auto Access Control และ ระบบรักษาความปลอดภัยตลอด 24 ชม. ราคาเริ่มต้น 6 ล้านบาท*

| ชื่อโครงการ | ชัยพฤกษ์ บางนา กม. 7 Chaiyaphruek Bangna Km.7 |
| เจ้าของโครงการ | แลนด์แอนด์เฮ้าส์ Land & Houses |
| ลักษณะโครงการ | บ้านเดี่ยว 2 ชั้น |
| พื้นที่โครงการ | 28.9 ไร่ |
| จำนวนบ้าน | 118 หลัง |
| พื้นที่ใช้สอย | เริ่มต้น 136 ตร.ม. |
| เนื้อที่บ้าน | เริ่มต้น 51 ตร.วา ขึ้นไป |
| จำนวนห้อง | 3 ห้องนอน, 3-4 ห้องน้ำ |
| ที่จอดรถทั้งหมด | 2 คัน |
| โซน | บางนา |
| ขนส่งสาธารณะ | – ใกล้ทางด่วนบางนา – ใกล้วงแหวนอุตสาหกรรม |
| รถโดยสารที่ผ่าน | n/a |
| ที่ตั้ง | ซอยโรงเรียนราชวินิต บางแก้ว ถนนบางนา-ตราด ต.บางแก้ว อ.บางพลี จ.สมุทรปราการ |
| กำหนดการ | Pre-Sale 22-23 พ.ย. 58 |
| ปีที่สร้างเสร็จ | n/a |
| ราคา | เริ่มต้น 6 ล้านบาท |
| ค่าส่วนกลางและกองทุน | n/a |
| สถานที่สำคัญใกล้เคียง |
|
| สิ่งอำนวยความสะดวก | – คลับเฮ้าส์ – สระว่ายระบบเกลือ – ฟิตเนส – สวนสาธารณะ – Auto Access Control – CCTV – รปภ. 24 ชม. |
| จุดเด่นของโครงการ | ชัยพฤกษ์ บางนา กม. 7 : Lift up Your Living “เริ่มต้นชีวิตให้เหนือกว่า” ราคาเริ่มต้น 6-8 ล้านบาท |
โครงการโดยรอบ
ที่ตั้งโครงการ
ซอยโรงเรียนราชวินิต บางแก้ว ถนนบางนา-ตราด ต.บางแก้ว อ.บางพลี จ.สมุทรปราการ
พิกัด 13.636070, 100.674969
คลิกที่รูป เพื่อดูแผนที่ขนาดใหญ่
การเดินทาง
พิกัด Google : 13.637250, 100.675689
การเดินทาง เริ่มจาก ถ.บางนา -ตราด > กลับรถ (ทางเข้า เมกา บางนา) > ซ.บางนา – ตราด 66 >—1.8 กม.—> บ้านชัยพฤกษ์ บางนา กม.7 *ติดร.ร.นานาชาติ คอนคอร์เดียนและ สนามกอล์ฟ เมืองแก้ว
การเดินทาง เราเริ่มจาก ถ.บางนา – ตราด วิ่งตามทางคู่ขนาน พอเห็น เทสโก้โลตัส ซ้ายมือให้ขึ้นสะพานกลับรถ ที่เป็นทางเดียวกับ ทางเข้า เมกา บางนา
พอขึ้นสะพานกลับรถ จะมีทางแยกเข้า เมกา บางนา เรากลับรถไป บางนา นะค่ะ
ผ่าน ไทวัสดุ ตรงไปอีกประมาณ 350 ม. ให้เลี้ยวเข้า ซ.บางนา – ตราด 66
จะมีป้ายบอกไป สภ.บางแก้ว ,ร.ร.ราชวินิต บางแก้ว ,ร.ร.นานาชาติ คอนคอร์เดียน และสนามกอล์ฟ เมืองแก้ว อยู่ค่ะ
เลี้ยวเข้าซอยมาแล้ว ผ่านสภ.บางแก้ว ตรงไป
ผ่าน ซ.เมืองแก้ว 1 ทางไปโครงการ บ้านนันทวัน บางนา กม.7
ผ่าน ร.ร.ราชวินิต บางแก้ว
ผ่านซอยที่ไปโครงการ บ้านมัณฑนา บางนา กม.7 และทาวน์โฮม อินดี้ บางนา กม.7
พอผ่าน โครงการ Magnolias บางนา กม.7 ขวามือ และร.ร.นานาชาติ คอนคอร์เดียน ถัดไปก็ถึง ซอยทางไปโครงการ บ้านชัยพฤกษ์ บางนา กม.7
เลี้ยวซ้ายไป โครงการ บ้านชัยพฤกษ์ บางนา กม.7 ส่วนตรงไป สนามกอล์ฟ เมืองแก้ว

บริเวณโดยรอบโครงการ
สถานที่สำคัญใกล้เคียง
– Big C ศรีนครินทร์
– Makro ศรีนครินทร์
– Lotus ศรีนครินทร์
– วัดคลองปลัดเปรียง
– โรงพยาบาลศิครินทร์
– โรงพยาบาลปิยะมินทร์
– โรงพยาบาลไทยนครินทร์
– โรงเรียนราชวินิตบางแก้ว
– โรงเรียนนานาชาติคอนคอร์เดียน
– มหาวิทยาลัยรามคำแหง 2
– Ikea บางนา
– Mega บางนา
– ชิค รีพับบริค
– อินเด็กซ์ ลิฟวิ่งมอลล์
– เอส บี ดีไซด์ สแควร์
– ราม 2 ไนท์บาร์ซาร์
:: HOUSE TYPE ::
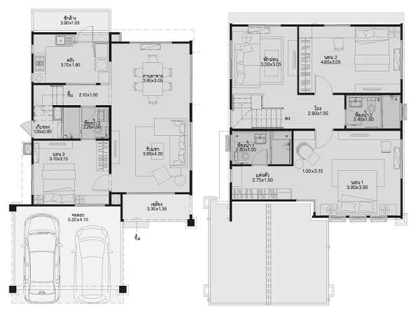
แปลนบ้านชั้น 1 | แปลนบ้านชั้น 2
แปลนบ้านชั้น 1 | แปลนบ้านชั้น 2
แปลนบ้านชั้น 1
แปลนบ้านชั้น 2
:: GALLERY ::
สอบถามรายละเอียดเพิ่มเติมได้ที่
TEL : 086-977-5522
Email : C7@lh.co.th
WEBSITE : http://www.lh.co.th/
บ้านเดี่ยว สมุทรปราการ ทำเลอื่นๆ ที่น่าสนใจ…
ลลิลทาวน์ แลนซีโอ คริป ลาดกระบัง-สุวรรณภูมิ
เทียรา วงแหวนฯ-เทพารักษ์
บ้านสุขนิเวศน์ สุขสวัสดิ์ 39
บ้านเดี่ยว เศรษฐสิริ บางนา-วงแหวน
บ้านเดี่ยว ลัดดารมย์ บางนา
บ้านเดี่ยว เดอะ ซิตี้ บางนา-กม.7
บ้านเดี่ยว ชัยพฤกษ์ บางนา กม. 7
บ้านเดี่ยว มัณฑนา 2 บางนา กม.7
บ้านเดี่ยว พฤกษาปูริ บางนา กม.5
บ้านเดี่ยว สิวารมณ์ ปาร์ค สุขุมวิท-บางปู
บีทีเอ็น เรสซิเดนซ์ นนทบุรี