รีวิว คอนโด ลุมพินี เพลส พระราม 9-รัชดา (เฟส 1) Lumpini Place Rama 9-Ratchada Phase 1
สวัสดีค่ะผู้อ่านชาว HOMENAYOO ที่รักทุกคน วันนี้เราจะพาทุกท่านไปชมคอนโด LUMPINI PLACE พระราม 9-รัชดา ซึ่งเป็นคอนโด High rise จาก LPN กันค่ะ
ตัวโครงการตั้งอยู่บนทำเลทองใจกลาง NEW CBD บน ถ.พระรามเก้า แขวงดินแดง เขตดินแดง กทม. จากแยกพระราม 9 เพียง 650 เมตร
รายล้อมด้วยอาคารสำนักงานขนาดใหญ่ ทั้ง Super Tower และ G Tower และห้างใหญ่ชั้นนำ ทั้งเซ็นทรัลพระราม 9, Fortune Town, Show DC เชื่อมเข้าสู่ย่าน CBD ชั้นในอย่างอโศกและสุขุมวิทได้สะดวก ใกล้ MRT สถานีพระราม 9 เพียง 700 เมตร เพียง 1 สถานี ถึง Airport Link สถานีมักกะสัน และ ใกล้จุดขึ้น-ลงทางด่วนศรีรัช
ลุมพินี เพลส พระราม 9-รัชดา เป็น High rise Condominium มีอาคารชุดพักอาศัย 4 อาคาร อาคาร A สูง 25 ชั้น, อาคาร B สูง 30 ชั้น, อาคาร C สูง 29 ชั้น และอาคาร D สูง 24 ชั้น รวมทั้งหมด จำนวน 2,330 ยูนิต บนเนื้อที่ประมาณ 15 ไร่ มีห้อง 2 แบบหลักๆ คือ 1 Bedroom และ 2 Bedrooms ขนาดเริ่มต้นที่ 33.50 – 72.00 ตร.ม. จากแนวคิด “LPN Green” อนุรักษ์พลังงานและสิ่งแวดล้อม ซึ่งโครงการนี้สร้างเสร็จพร้อมอยู่ตั้งแต่ปี 2553 แล้วค่ะ
สิ่งอำนวยความสะดวก ภายในโครงการมีมาให้อย่างครบครัน อาทิ ล็อบบี้, สระว่ายน้ำ, ฟิตเนส, ซาวน่า, สวนหย่อม, ห้องอเนกประสงค์, สนามเด็กเล่น, สนามบาสเก็ตบอล, ลานออกกำลังกายกลางแจ้ง, ลิฟท์โดยสาร, Access Card Control, CCTV และ รปภ. 24 ชม. ราคา Resales ปัจจุบันราคาเริ่มต้นประมาณ 2.99 ล้านบาท (เฉลี่ย 89,000 บาท/ตร.ม.) (2561)
ส่วนรายละเอียดอื่นๆ จะเป็นอย่างไร อ่านต่อด้านล่างได้เลยค่ะ
คอนโด Lumpini Place ทำเลอื่นๆ ที่น่าสนใจ…
Lumpini Place พหล-สะพานควาย
Lumpini Place รัชโยธิน
Lumpini Place พระราม 9-รัชดา
Lumpini Place ศรีนครินทร์–หัวหมาก สเตชั่น
Lumpini Place บางนา กม.3
Lumpini Place รามอินทรา-หลักสี่
Lumpini Place เตาปูน-อินเตอร์เชนจ์
Lumpini Place บรมราชชนนี-ปิ่นเกล้า
Lumpini Place ปิ่นเกล้า
Lumpini Place ปิ่นเกล้า 2
Lumpini Place พระราม 8
Lumpini Place นราธิวาส-เจ้าพระยา
| ชื่อโครงการ | ลุมพินี เพลส พระราม 9 – รัชดา (เฟส 1) Lumpini Place Rama 9-Ratchada Phase 1 |
| เจ้าของโครงการ | ลุมพินี – LPN Development |
| เนื้อที่ทั้งหมด | 15 ไร่ 1 งาน |
| จำนวนตึก | 4 อาคาร |
| จำนวนชั้น |
|
| จำนวนห้อง | ประมาณ 2,330 ยูนิต |
| ลักษณะห้องและขนาดห้อง |
|
| ที่จอดรถทั้งหมด | n/a |
| จำนวนลิฟต์โดยสาร |
|
| โซน | รัชดา, ห้วยขวาง, พระราม 9, เพชรบุรี |
| ขนส่งสาธารณะ |
|
| รถโดยสารที่ผ่าน |
|
| ที่ตั้ง | ถนนพระราม 9 แขวงห้วยขวาง เขตห้วยขวาง กทม. |
| กำหนดการ | โครงการพร้อมอยู่ |
| ปีที่สร้างเสร็จ | พ.ศ. 2553 |
| ราคา | เริ่มต้นประมาณ 2.99 ล้านบาท (มิ.ย. 2561) |
| ราคาเฉลี่ยต่อ ตร.ม | ประมาณ 89,000 บาท/ตร.ม. (มิ.ย. 2561) |
| ค่าส่วนกลางและกองทุน |
|
| สถานที่สำคัญใกล้เคียง | ห้างสรรพสินค้าและตลาด
สถานศึกษา
ศูนย์การแพทย์
ศาสนสถานและอื่นๆ
สถานที่ราชการและอาคารสำนักงาน
|
| สิ่งอำนวยความสะดวก |
|
| จุดเด่นของโครงการ | คอนโดมิเนียมใจกลางเมือง ออกแบบภายใต้คอนเซ็ปต์ “LPN Green” อนุรักษ์พลังงานและสิ่งแวดล้อม เดินทางสะดวกสบาย ติดถนนใหญ่พระราม 9 ใกล้จุดขึ้นลงทางด่วน, ใกล้ MRT สถานีพระราม 9 และ ใกล้ Airport Link มักกะสัน |
คอนโดโดยรอบ MRT พระราม 9 :::: ที่ตั้งโครงการ ::::
ถนนพระราม 9 แขวงห้วยขวาง เขตห้วยขวาง กทม.
พิกัด : 13.755765, 100.571044

แผนที่จากทางโครงการ
ทำเลที่ตั้ง โครงการ LUMPINI PLACE พระราม 9 – รัชดา ตั้งอยู่ติด ถ.พระราม 9 ตรงหัวมุมระหว่าง ถ.พระราม 9 กับ ถ.วัฒนธรรม โดยอยู่ฝั่งขาออกจากแยกพระราม 9 เพียง 650 เมตรเ ทำเลนี้เป็นย่านที่อยู่อาศัย และเป็นทำเลทองที่กลายเป็น New Central Business District ติดถนนใหญ่จะเป็นอาคารสูง ทั้งอาคารสำนักงานขนาดใหญ่, คอนโดมิเนียม, แหล่งช้อปปิ้งขนาดใหญ่ และแหล่งการศึกษา เชื่อมต่อ CBD ชั้นในอย่างอโศกได้สะดวก เพียง 3 กม.ถึง ถ.อโศกมนตรีค่ะ
นอกจากจะเป็นทำเลที่เป็นศูนย์รวมของอาคารสำนักงานใหญ่แล้ว โครงการยังอยู่ใกล้กับเมกะโปรเจ็คอย่าง เดอะ แกรนด์ พระราม 9 และทำเลนี้ยังเป็นศูนย์รวมด้านการคมนาคมที่สำคัญของกรุงเทพฯ เพราะมีการเชื่อมต่อถนนสายหลัก ทั้ง เพชรบุรี, สุขุมวิท, ดินแดง, รัชดาภิเษก, วิภาวดี-รังสิต ฯลฯ รวมถึงเป็นจุดที่เชื่อมต่อโครงข่ายรถไฟฟ้าทั้ง BTS, MRT และ Airport Link อีกด้วย จากตัวโครงการสามารถเดินไปถึง MRT สถานีพระราม 9 ได้เลยนะคะ เพียง 700 เมตรเท่านั้น
การเดินทางด้วยรถยนต์ การเดินทางเส้นหลักๆ จากโครงการต้องเป็น ถ.พระราม 9 แน่นอน ซึ่งสามารถเชื่อมต่อไปยังถนนสายหลักอื่นๆ ได้ทั้ง รัชดาภิเษก, ดินแดง, อโศก-ดินแดง, เพชรบุรี, อโศกมนตรี, สุขุมวิท, วิภาวดี-รังสิต, พหลโยธิน, ลาดพร้าว, ประดิษฐ์มนูธรรม ฯลฯ ซึ่งแต่ละเส้นที่เชื่อมไปจะเป็นถนนขนาดใหญ่ วิ่งได้สะดวก แต่การจราจรนั้นก็ค่อนข้างจะหนาแน่นอยู่ตลอดเวลานะคะ เพราะตรงนี้เป็นชุดเชื่อมต่อระหว่าง NCBD กับ CBD ชั้นในค่ะ
ขาเข้าเมือง จาก ถ.พระราม 9 ไปกลับรถมาฝั่งมุ่งหน้าไปแยกพระราม 9 เลี้ยวซ้ายผ่านตลอดที่แยกพระราม 9 ก็เข้าสู่ ถ.อโศก-ดินแดงแล้วค่ะ จะสามารถเชื่อมต่อไปยัง ถ.อโศกมนตรีเพียง 3 กม.เท่านั้น และยิงยาวเข้า ถ.สุขุมวิทได้เลยค่ะ และจาก ถ.อโศก-ดินแดง สามารถเลี้ยวซ้ายเพื่อเข้า ถ.เพชรบุรี เชื่อมไปยังย่านแห่งการสังสรรค์สุดชิคอย่าง ทองหล่อ-เอกมัย ได้ง่ายด้วย
ส่วนขาออกนอกเมือง จากแยกพระราม 9 จะสามารถเชื่อมสู่ ถ.ดินแดง ต่อไปยัง พหลโยธิน, วิภาวดี-รังสิต, ลาดพร้าว หรือไปทาง ถ.ประดิษฐ์มนูธรรม, รามคำแหง สามารถไปถึง ห้าแยกลาดพร้าว, ประชาชื่น หรือบางกะปิได้ไม่ยาก ซึ่งแต่ละเส้นที่เชื่อมไปจะเป็นถนนขนาดใหญ่ค่ะ วิ่งได้สะดวก
ทางด่วน โชคดีมากที่ตัวโครงการตั้งอยู่ใกล้จุดขึ้น-ลงทางพิเศษศรีรัชถึง 2 ด่าน ทำให้การเดินทางสะดวกรวดเร็วมาก ถึงแม้ว่าตัวโครงการจะอยู่ใจกลางเมืองในช่วงที่รถติดก็ตามที สำหรับจุดลงทางด่วนจากทางพิเศษศรีรัช ฝั่งขาไปชลบุรี (ตรงด่านอโศก 2) สามารถลงที่ ถ.เพชรอุทัย เข้า ถ.พระราม 9 ถึงตัวโครงการในเวลาเพียง 3 นาทีเท่านั้นค่ะ
จากทางพิเศษศรีรัช ฝั่งขาไปอนุสาวรีย์ชัย (ตรงด่านพระราม 9) สามารถลงที่ ถ.พระราม 9 ถึงตัวโครงการในเวลาเพียง 5 นาที
ส่วนจุดขึ้นทางด่วนฝั่งทางตะวันออกคือด่านอโศก 1 ซึ่งจากจุดนี้จะสามารถเชื่อมต่อไปยัง ทางพิเศษเฉลิมมหานคร และทางยกระดับอุตราภิมุข หรือ ดอนเมืองโทลล์เวย์ ไปได้ทั้งทาง ปากเกร็ด, รังสิต และ โซนพระราม 2 ได้สะดวก
และฝั่งตะวันตกคือด่านพระราม 9 สามารถเชื่อมต่อไปยัง ทางด่วนรามอินทรา-อาจณรงค์, ทางพิเศษบูรพาวิถี และ มอเตอร์เวย์ (กรุงเทพ-ชลบุรี สายใหม่) ไปทางรามอินทรา, บางนา หรือวิ่งออกชลบุรี ได้สะดวกอีกเช่นกันค่ะ
ความอุดมสมบูรณ์ จุดเด่นของทำเลนี้ก็คือ มีความอุดมสมบูรณ์ที่สามารถรองรับไลฟ์สไตล์ที่หลากหลาย ไม่ว่าจะเป็นในเรื่องของการใช้ชีวิต, แสงสีเสียง, แหล่งช้อปปิ้ง และอาหารการกิน ก็มีอยู่หลายรูปแบบให้เลือก เนื่องจากต้องคอยรองรับทั้งพนักงานออฟฟิศ, ผู้คนที่อาศัยอยู่ในคอนโดมิเนียม, บ้านส่วนตัว และแหล่งชุมชนขนาดใหญ่ในละแวกนั้น ซึ่งก็ต่างมีรูปแบบการใช้ชีวิตที่แตกต่างกันออกไป
ใกล้แยกพระราม 9 ถือเป็น Prime Zone ของย่านนี้เลยค่ะ เพราะจะเป็นที่ตั้งของโรงแรม, ห้างใหญ่ และอาคารสำนักงาน เพราะเป็นย่าน NCBD ที่เชื่อมต่อกับ CBD ชั้นในอย่างอโศกและสุขุมวิท ไม่ว่าจะเป็น Fortune Town, เซ็นทรัลพระราม 9, RS Tower, AIA, SET, True Tower, อาคารไทยประกันชีวิต, สถานฑูตจีน ซึ่งในอนาคตจะมี เมกะโปรเจ็กท์ Bangkok Midtown อยู่ทั้ง 2 ฝั่งถนนรัชดาภิเษก เชื่อมกันด้วย Sky Walk อยู่ใกล้ MRT ศูนย์วัฒนธรรม อีกทั้ง G Tower, The Nine Tower, Unilever ซึ่งในอนาคตจะมีเมกะโปรเจ็คท์ The Grand Rama IX เป็นโครงการมิกซ์ยูส Landmark สูงอันดับ 1 ในอาเซียนอีกด้วยค่ะ
มองบนเส้นรัชดาภิเษกก็มีห้างใหญ่ๆ อยู่หลายห้างแล้ว ทั้งแบบที่เป็น Life Style เฉพาะตัวอย่าง The Street ภายในมีร้านค้าที่เปิดตลอด 24 ชม. ข้างๆ กันมี Big C Extra เป็น Hypermarket เหมาะสำหรับซื้อของเข้าบ้าน ตรงข้ามกับ MRT สถานีศูนย์วัฒนธรรมมี Esplanade และตลาดนัดรถไฟ อีกทั้งยังโดดเด่นด้วยสถานบังเทิง และอยู่ไม่ไกลจากโรงพยาบาล, สถานศึกษา อีกทั้งศูนย์วัฒนธรรมแห่งประเทศไทย ซึ่งอยู่ข้างๆ กันกับ ศูนย์วัฒนธรรมแห่งประเทศจีน รวมถึงวัดพระราม 9 เรียกว่าในทำเลเดียวครอบคลุมครบทุกด้านเลยค่ะ

The Grand Rama 9 เป็นเมกะโปรเจ็คท์ซึ่งอยู่ฝั่งตรงข้ามกับตัวโครงการ ที่จะทำให้ย่านพระราม 9 นี้กลายเป็น New CBD ของกทม.นั่นเองค่ะ โดยจะมีตึกที่สูงที่สุดในประเทศและในอาเซียนหรือ Super Tower อยู่ที่นี่ด้วย เป็นโครงการมิกซ์ยูสที่มีทั้งอาคารสำนักงาน, ห้างสรรพสินค้า, โรงแรม และคอนโดมิเนียมสำหรับพักอาศัย ซึ่งตอนนี้ก็ได้เริ่มการก่อสร้างกันแล้ว
โครงการตั้งอยู่บนพื้นที่ 73 ไร่ มีพื้นที่ใช้สอยทั้งหมด 1.2 ล้าน ตารางเมตร ทำให้รองรับคนได้สูงถึง 2-3 แสนคนต่อวัน โดยมีมูลค่าโครงการรวมกว่า 100,000 ล้านบาท ประกอบไปด้วยรูปแบบโครงการต่างๆ ได้แก่ ที่พักอาศัย (เบ็ล แกรนด์ พระราม 9), อาคารสำนักงาน (จีแลนด์ ทาวเวอร์ – เดอะ ไนน์ ทาวเวอร์ส – สำนักงานใหญ่ของยูนิลิเวอร์), ศูนย์ประชุมและห้องจัดเลี้ยง, ช็อปปิ้งอาเขต (เซ็นทรัล พลาซ่า แกรนด์ พระราม 9 – เดอะ ช็อปปส์ แกรนด์ พระราม 9) และ โรงแรมหรู โดยจีแลนด์บริหารและพัฒนาโครงการต่างๆ ดังกล่าว จึงทำให้เกิดเงินหมุนเวียนในระบบ จากนั้นจีแลนด์จึงนำเม็ดเงินส่วนนี้มาพัฒนาโครงการ The Super Tower ซึ่งจะกลายเป็นแลนด์มาร์คใหม่ของประเทศไทย ที่เป็นทั้งศูนย์กลางธุรกิจชั้นนำและสถานที่ท่องเที่ยวระดับโลกที่ทุกคนจะต้องมาสัมผัสสักครั้งในชีวิต อ่านข้อมูลเพิ่มเติมได้ที่นี่

และในอนาคตอันใกล้นี้ พื้นที่สีเขียวแปลงใหญ่บริเวณ แอร์พอร์ตลิงก์มักกะสัน 497 ไร่ กำลังจะเกิดการเปลี่ยนแปลงครั้งใหญ่ เรียกว่าโครงการยักษ์ระดับประเทศที่เคยพับเอาไว้ได้ถูกรื้อกลับมาอีกครั้งกับโครงการ “มักกะสันคอมเพล็กซ์” ที่คราวนี้มาในเวอร์ชั่นของ คสช. (ซึ่งกลุ่มนายทุนมาริน่าเบย์แซนด์ที่ทำคาสิโนยักษ์ที่สิงคโปร์ก็อยากได้ที่ดินตรงนี้เช่นกัน อ่านรายละเอียดเพิ่มได้ ที่นี่ ), ขอบคุณภาพประกอบจาก Realist
โดยจะแบ่งที่ดินมักกะสันเป็น พิพิธภัณฑ์ 30 ไร่ สวนสาธารณะ 150 ไร่ พื้นที่ในการพัฒนาเชิงพาณิชย์ 140 ไร่ ส่วนที่เหลืออีก 177 ไร่ จะมีการพัฒนาเชิงพาณิชย์ในอนาคตนะคะ ก็คือยังไงฝั่งตรงข้ามนี่มีสวนสาธารณะ พิพิธภัณฑ์ และอาคารเชิงพาณิชย์มากมายแน่นอน ก็ถือว่าเป็นทำเลที่เหมาะจะเก็งกำไรในการขายและอยู่อาศัยเองที่มีศักยภาพและหาได้ยากทีเดียว เพราะที่ดินย่านนี้โดยรอบก็ถูกจับจองเกือบหมดแล้ว และราคาก็พุ่งสูงขึ้นเรื่อยๆ ค่ะ เพราะในอนาคตจะมีสวนสาธารณะมักกะสันซึ่งมีความน่าจะเป็นว่าเป็นแลนด์มาร์คอีกจุดหนึ่งของกรุงเทพฯ ในอนาคตอยู่นั่นเอง โดยที่ดินมักกะสันติดแอร์พอร์ตลิงก์มักกะสันนี้อยู่ห่างจากโครงการประมาณ 700 เมตรเท่านั้น

อีกจุดนึงติดแยกเพชรบุรี ห่างโครงการไปประมาณ 3 กม. จะมีโครงการ สิงห์ คอมเพล็กซ์ (Singha Complex) ซึ่งเป็น Community Mall + Office Mix Use ขนาดยักษ์ที่มูลค่าลงทุนกว่า 10,000 ล้าน บาท ภายในประกอบด้วย อาคารสำนักงาน, พื้นที่คอนเสิร์ตฮอลล์, Shopping mall, โรงแรม และ คอนโดมิเนียมภายในตัว โครงการมีแผนจะสร้างเสร็จในอีกประมาณ 1-2 ปีต่อจากนี้ เมื่อสร้างเสร็จแล้วก็จะเป็นแหล่งทำงานขนาดใหญ่อีกแหล่ง จากตัวโครงการไปก็ง่ายนิดเดียว
การเดินทางด้วยรถสาธารณะ เนื่องจากทำเลนี้เป็นศูนย์รวมด้านการคมนาคมของกรุงเทพฯ มีการเชื่อมต่อถนนสายหลักหลายเส้น จึงทำให้มีรถสาธารณะหลายสายวิ่งผ่านตลอดทั้งวันเช่นกัน อีกทั้งยังเป็นจุดที่เชื่อมต่อโครงข่ายรถไฟฟ้าทั้ง BTS, MRT และ Airport Link จากภาพกราฟฟิคจะเห็นว่าโดยรอบทำเลนี้จะมีรถไฟฟ้าอีก 4 สายวิ่งผ่าน ทั้งรถไฟฟ้าสายสีส้ม ช่วง มีนบุรี-ตลิ่งชัน, รถไฟฟ้าสายสีเหลือง ช่วง ลาดพร้าว-สำโรง, รถไฟฟ้าสายสีเทา ช่วง วัชรพล- ทองหล่อ และ รถไฟฟ้าสายสีแดงอ่อน ที่วิ่งขนานกับ Airport Link ช่วง บางซื่อ-หัวหมาก อีกด้วย
จากตัวโครงการที่ใกล้ที่สุดก็คือ MRT สถานีพระราม 9 ซึ่งนั่งไปเพียงสถานีเดียวก็ถึง Airport Link สถานีมักกะสัน และ 2 สถานีถึง MRT สุขุมวิท Interchange กับ BTS สถานีอโศก
นอกจากนี้บริเวณหน้าโครงการยังอยู่ใกล้กับป้ายรถเมล์และคิววินมอเตอร์ไซค์อีกด้วยนะ
จากตัวโครงการเราสามารถเดินไปยังสถานีพระราม 9 ด้วยระยะเดินเพียง 700 เมตรเท่านั้น ตรงนี้วัดจากบริเวณหน้าทางเข้าโครงการนะ ที่ใกล้ที่สุดคือทางออก 3 ซึ่งอยู่ตรงหน้า G Tower ค่ะ
:::: การเดินทางสู่โครงการ ::::
วันนี้ทางทีมงานมีภาพการเดินทางไปสู่ตัวโครงการ LUMPINI PLACE พระราม 9 – รัชดา โดยใช้รถยนต์ส่วนตัวมาฝากกันค่ะ โดยเราจะเริ่มการเดินทางจาก
ทางพิเศษฉลองรัช > ถ.ประดิษฐ์มนูธรรม > แยกประดิษฐ์มนูธรรม > ถ.พระราม 9 > แยกผังเมือง > แยกอสมท. > กลับรถ > LUMPINI PLACE พระราม 9 – รัชดา
เราเริ่มต้นการเดินทางจากทางพิเศษฉลองรัชค่ะ เป็นจุดลงทางด่วนอีกทางที่อยู่ใกล้กับตัวโครงการมากๆ นอกเหนือจากจุดขึ้น-ลงทางด่วนที่ได้กล่าวไปแล้ว ให้เรามุ่งหน้าไปทาง ถ.พระราม 9 นะ
เตรียมชิดซ้ายลงสู่ ถ.ประดิษฐ์มนูธรรมค่ะ
ลงสู่ ถ.ประดิษฐ์มนูธรรมค่ะ จริงๆ แล้วถ้าเราวิ่งต่อไปบนทางด่วน ทางพิเศษฉลองรัชจะเชื่อมต่อกับทางพิเศษศรีรัช เราสามารถลงตรงด่านพระราม 9 ก็ได้ จะเป็นจุดที่ใกล้กับโครงการมากกว่าเล็กน้อย ช่วงเลี่ยงการจราจรบางช่วงได้ แต่ต้องเสียค่าทางด่วนอีก 1 ต่อนะ
จากทางด่วนลงมาสู่ ถ.ประดิษฐ์มนูธรรมค่ะ จุดลงทางด่วนตรงนี้จะติดบ้างเป็นบางเวลา และเป็นบางช่วง ผ่านจุดนี้ไปได้ก็สบายแล้ว
ให้เราสังเกตป้าย ถ.พระราม 9 เอาไว้ค่ะ ทางไปโครงการต้องชิดขวานะ
ให้เราชิดขวาและเลี้ยวขวาเข้า ถ.พระราม 9 ที่แยกประดิษฐ์มนูธรรมได้เลยค่ะ
พอเลี้ยวขวามาแล้วเราจะเห็นสวนพรรณภิรมย์อยู่ทางซ้ายมือ
ให้เราขับตรงไปเรื่อยๆ ค่ะ ไปทางแยก อสมท. และ แยกผังเมือง
เราจะขับผ่านแยกผังเมืองก่อน
ผ่านแยกผังเมืองมา จะเห็นตลาดทรัพย์เจริญอยู่ทางฝั่งซ้ายมือค่ะ เป็นตลาดที่ขายทุกอย่าง ตั้งแต่อาหาร, เสื้อผ้าแฟชั่น ยันเฟอร์นิเจอร์
และพอถึงแยก อสมท.ให้เราชิดขวาเพื่อกลับรถเลยค่ะ
พอกลับรถที่แยก อสมท.แล้ว วิ่งตรงไปอีก 140 เมตร เราก็จะเห็นโครงการอยู่ทางด้านซ้ายมือของเราแล้วค่า
สรุปแยก และ ถนนสำคัญรอบโครงการ
สรุปสถานที่สำคัญรอบโครงการ
ห้างสรรพสินค้าและตลาด
สถานศึกษา
ศูนย์การแพทย์
ศาสนสถานและอื่นๆ
สถานที่ราชการและอาคารสำนักงาน
:::: สภาพแวดล้อมรอบโครงการ ::::
ที่ดินโครงการ LUMPINI PLACE พระราม 9 – รัชดา อยู่ติด ถ.พระราม 9 ระหว่างหัวมุม ถ.พระราม 9 และ ถ.วัฒนธรรม โดยโครงการจะอยู่ฝั่งขาออกจากแยกพระราม 9 ค่ะ โครงการล้อมรอบด้วย อาคารสูง ไม่ว่าจะเป็นคอนโดมิเนียม หรืออาคารสำนักงาน พอเข้าซอยลึกหน่อยก็จะเห็นบ้านพักอาศัยในแนวราบอยู่บ้าง ทั้งบ้านเดี่ยวและทาวน์โฮมค่ะ
เรามาดูภาพในมุมสูงของบริเวณโดยรอบโครงการกันบ้างค่ะ จะเห็นว่าตัวโครงการนั้นถูกรายล้อมด้วยอาคารสูง ไม่ว่าจะเป็นอาคารสำนักงาน หรือคอนโดมิเนียมด้วยกันเอง
ภายในโครงการมีทั้งหมด 4 อาคาร เรียงเข้าไปตามแนวยาวของที่ดิน
ภาพจากมุม Top View ตัวอาคารอยู่ระหว่างหัวมุมของ ถ.พระราม 9 และ ถ.วัฒนธรรม มีทางเข้า – ออกจากถนนทั้ง 2 เส้นเลย แต่ทางหลักจะอยู่บน ถ.พระราม 9 นะ
อีกฝั่งนึงของ ถ.วัฒนธรรมจะเป็นพื้นที่ของการขนส่งมวลชนประเทศไทยค่ะ เราจะเห็นจุดตัดระหว่าง ถ.พระราม 9 กับ ถ.วัฒนธรรม นั่นก็คือแยกผังเมืองค่ะ
ตอนนี้เราอยู่ที่หน้าทางเข้าหลักของโครงการบน ถ.พระราม 9 กันแล้ว เดี๋ยวเราจะเดินสำรวจทำเลโดยรอบโครงการด้วยกันเลยค่ะ
ฝั่งทิศเหนือของตัวโครงการ หรือติดกับทางเข้า – ออกก็คือ ถ.พระราม 9 นั่นเอง
เดินมุ่งหน้าไปทางฝั่งซ้ายมือหรือทางแยกผังเมือง
ข้างๆ โครงการริมคลองจะมีคิววินมอเตอร์ไซค์ด้วยค่ะ จะเดินทางไปไหนใกล้ๆ ก็สะดวก
ติดกับหน้าโครงการเป็นอาคารสูง 2 ชั้น แต่ก่อนเคยเป็น Showroom ของ Kawasaki
ถัดมาเป็นอาคารกลอรี่ เฮ้าส์ สูง 5 ชั้น ด้านหลังคือ Big Co-working บริการพื้นที่ทำงานแบบ Co-working Space รวมถึงบริการห้องจัดประชุมทั้งขนาดเล็ก – ใหญ่ค่ะ
ติดๆ กันเป็นซุ้มของ ไทย สมาร์ทคาร์ พลาซ่า เก่าค่ะ
ฝั่งตรงข้ามคือตลาดทรัพย์เจริญ ขายตั้งแต่ อาหาร, ขนม, เสื้อผ้าแฟชั่น และ เฟอร์นิเจอร์
กลับมาที่หน้าโครงการ เราจะเดินไปทางฝั่งขวามือกันต่อ หรือมุ่งหน้าไปแยกพระราม 9 ค่ะ
ติดกับทางเข้าโครงการเป็นโชว์รูมรถนำเข้า TOPMOST สูง 5 ชั้นครึ่ง
ติดๆ กันคืออาคารสำนักงานไชโย สูง 12 ชั้น
มองไปที่ฝั่งตรงข้าม จะมีธนาคารไทยพาณิชย์อยู่เยื้องๆ กันค่ะ
เดินตรงไปข้างหน้า เราต้องเดินข้ามทางม้าลายข้ามแยก อสมท.
ข้ามแยกมาเราจะเจอโชว์รูม SMP Super Car
ติดกันเลยคืออาคารสำนักงานพณิชพลาซ่า
คอนโด PG2 สูง8 ชั้น
และ อาคารสำนักงานชำนาญเพ็ญชาติค่ะ
เดินเลยมาหน่อยบริเวณหน้าโชว์รูมเฟอร์นิเจอร์ Alno และ Kvik จะมีป้ายรถเมล์ค่ะ สายที่ผ่านก็มีสาย 74, 137, 168, 517 และ 555
เลยไปอีกไม่ไกลเราจะเดินผ่าน Unilever House
มองไปข้างหน้าเห็น G Tower อยู่ไม่ไกล
ซึ่งส่วนนี้ทั้งหมดจะเป็นที่ตั้งของโครงการ The Grand Rama 9 ประกอบด้วย The Super Tower, Unilever House, The 9th Towers, Belle Condominium, G Tower รวมถึงร้านค้าและร้านอาหารค่ะ
ตอนนี้เราเดินมาถึงแยกพระราม 9 แล้วค่ะ
ที่ฝั่งตรงข้ามกับเราก็คือโรงแรม Grand Mecure และ Fortune Town
ซึ่งจุดที่เรายืนอยู่ก็คือหน้าทางออก 3 ของ MRT สถานีพระราม 9 ซึ่งอยู่ตรงหน้าอาคาร G Tower พอดี จากโครงการเดินมาเพียง 700 เมตรเท่านั้น
จุดนี้เป็นจุดที่มีป้ายรถเมล์ที่มีคิววินมอเตอร์ไซค์ และรถแท็กซี่จอดรออยู่
ติดกับ G Tower ก็คือเซ็นทรัลพระราม 9 แหล่งช็อปปิ้งขนาดใหญ่ของย่านนี้
บริเวณหน้าเซ็นทรัลพระราม 9 ก็จะมีทางออก 2 ของ MRT สถานีพระราม 9 อีก 1 จุดในระยะใกล้ๆ กันเลยค่ะ
จาก MRT สถานีพระราม 9 เรานั่งรถไฟฟ้ามาเพียง 1 สถานีก็ถึงสถานีเพชรบุรี ซึ่งเป็นสถานี Interchange กับ Airport Link สถานีมักกะสันค่ะ
โดยให้เราออกที่ทางออก 1 นะ
จะมีทางเดินเชื่อมต่อไปยัง Airport Link สถานีมักกะสันค่ะ
เห็นทางเดินเชื่อมไหมคะ จะขึ้นไปถึงที่ตัวสถานีเลย สะดวกมากๆ
:::: ตัวโครงการ ::::
LUMPINI PLACE พระราม 9 – รัชดา เป็น High rise Condominium บนเนื้อที่ดิน 15 ไร่ มีอาคารชุดพักอาศัย 4 อาคาร แบ่งเป็น 2 เฟส คือ Phase 1 อาคาร A สูง 25 ชั้น และ อาคาร B สูง 30 ชั้น และเฟส 2 อาคาร C สูง 29 ชั้น และอาคาร D สูง 24 ชั้น รวมทั้งหมด จำนวน 2,330 ยูนิต มีห้อง 2 แบบหลักๆ คือ 1 Bedroom และ 2 Bedrooms ขนาดเริ่มต้นที่ 33.50 ตร.ม. จากแนวคิด “LPN Green” อนุรักษ์พลังงานและสิ่งแวดล้อม เดี๋ยวเราจะไปดูแปลนอาคารพร้อมๆ กันเลยค่ะ
Master Plan เริ่มจากผังรวมของอาคารกันก่อน จะเห็นว่าตัวโครงการมีทางเข้า – ออก 2 ทาง ทางหลักอยู่บน ถ.พระราม 9 ส่วนทางรองอยู่บน ถ.วัฒนธรรมค่ะ ที่ทางเข้าโครงการจะมีซุ้มรปภ. เป็นระบบ Access Card Control ลูกบ้านสามารถใช้บัตรแตะรั้วไม้กระดกผ่านเข้ามาในโครงการได้เลย ส่วนบุคคลภายนอกจะต้องแลกบัตรและแจ้งหมายเลขห้องค่ะ
เมื่อเข้ามาแล้วจะเจอวงเวียน ให้วนผ่าน Drop-off และวนเข้าลานจอดรถ หรือวนออกกลับไปทางเข้า – ออกเดิมก็ได้ พอวนเข้าไปด้านในโครงการจะขับผ่าน Phase 1 และ Phase 2 คือ อาคาร A, B, C และ D ตามลำดับ ตรงกลางระหว่าง Phase 1 และ 2 จะมีสวนสาธารณะและสนามเด็กเล่นให้ ในส่วนนี้จะมี Cover Way เป็นทางเดินเชื่อมระหว่างเฟสให้ด้วยค่ะ ถ้าเลยไปตรงหน้าทางเข้า – ออกฝั่งถนนวัฒนธรรม ตรงนั้นจะมีลานออกกำลังกายกลางแจ้งกับสนามบาสเก็ตบอลให้อีกจุด
เมื่อเข้าไปภายในตัวอาคารจะเจอโถง Lobby ก่อน จากโถง Lobby จะสามารถเชื่อมสู่โถงลิฟท์เพื่อขึ้นสู่ชั้นพักอาศัยและชั้นที่มี Facilities ได้ โดยการเข้า – ออกโถงลิฟท์จะต้องใช้ Key Card ในการเปิดประตูทุกครั้งค่ะ ระหว่าง Lobby A – B และ C – D จะเป็นส่วนของร้านค้า มีทั้งร้านอาหาร, ร้านสะดวกซื้อ, ร้านทำผม, ร้านซักรีด และ 7-Eleven เอาไว้บริการลูกบ้านอีกด้วย
::: PHASE 1 :::
ชั้นที่ 2-5 จะเป็นส่วนของที่จอดรถของ Phase 1 ทั้งหมดค่ะ
ชั้นที่ 6 จะเป็นส่วนของ Main Facilities ที่แชร์ระหว่างอาคาร A และ B ในส่วน Outdoor จะประกอบด้วย สระว่ายน้ำระบบคลอรีน ขนาด 8 x 24 x 1.2 เมตร ขนาดถือว่าใหญ่ดีทีเดียวค่ะ สามารถว่ายออกกำลังกายได้สบายๆ ข้างๆ กันเป็นสวนหย่อม ส่วน Indoor จะมี ฟิตเนส และห้องซาวน่าค่ะ ส่วนพื้นที่อาคารที่เป็น Tower จะเป็นส่วนของ Residential ทั้งหมด วางห้องแบบ Double Corridor จะเห็นว่าอาคารเป็นรูปตัว Z ค่ะ ทั้งอาคาร A และ B มีจำนวน 24 ยูนิต/ชั้น เท่ากัน อาคาร A จะมีลิฟท์โดยสาร 2 ตัว ส่วนอาคาร B มี 3 ตัว รวมแล้วทั้ง 2 อาคารมีจำนวนยูนิตถึง 1,165 ยูนิต ถือว่ามีอัตราการใช้ลิฟท์ค่อนข้างสูงทีเดียว
ชั้นที่ 7-22 การวางแปลนในส่วนของ Tower จะเหมือนเดิมทุกประการค่ะ ทั้งอาคาร A และ B มีจำนวน 26 ยูนิต/ชั้น เท่ากัน
ชั้นที่ 23-25 อาคาร A จะเหลือ 24 ยูนิต ส่วนอาคาร B มี 26 ยูนิตเท่าเดิม
ชั้นที่ 26-27 จะเป็นส่วนของอาคาร B ค่ะ มี 26 ยูนิตเท่าเดิม
ชั้นที่ 28-30 อาคาร B เหลือ 24 ยูนิต
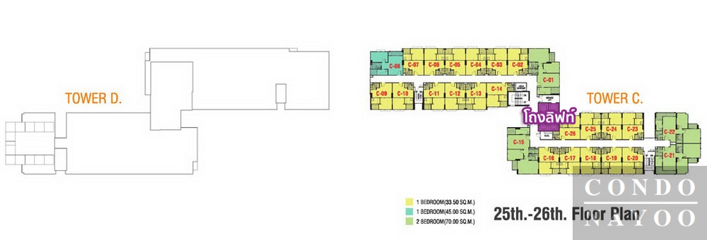
::: PHASE 2 :::
ชั้นที่ 5 จะเป็นส่วนของ Main Facilities ที่แชร์ระหว่างอาคาร C และ D เหมือนกับ Phase 1 ทุกประการ คือประกอบด้วย สระว่ายน้ำ, สวนหย่อม, ฟิตเนส และซาวน่าค่ะ ในส่วนของตัว Tower มีการวางผังเหมือน Phase 1 ทั้งอาคาร C และ D มีจำนวน 24 ยูนิต/ชั้น เท่ากัน รวมทั้งหมด 1,165 ยูนิตโดยอาคาร C จะมีลิฟท์โดยสาร 3 ตัว และอาคาร D มีลิฟท์โดยสาร 2 ตัว
ชั้นที่ 6-21 ทั้ง 2 อาคารมีจำนวน 26 ยูนิต/ชั้นเท่ากันค่ะ
ชั้นที่ 22-24 อาคาร C มี 26 ยูนิตเท่าเดิม ส่วนอาคาร D เหลือ 24 ยูนิต
ชั้นที่ 25-26 จะเป็นส่วนของอาคาร C ค่ะ มี 26 ยูนิตเท่าเดิม
ชั้นที่ 27-29 อาคาร C เหลือ 24 ยูนิต
:::: แบบห้องของโครงการ ::::
ห้องของที่นี่หลักๆ จะแบ่งออกเป็น 2 แบบด้วยกัน คือ
แต่เดิมทางโครงการขายห้องแบบ Full Fitted ตามมาตรฐานปกติของ LPN ฝ้าเพดานสูง 2.4 เมตร ไปดูแปลนห้องกันต่อเลยค่ะ
::: แปลนห้อง PHASE 1 :::
1 Bedroom ขนาด 37.00 ตรม.
ภายในห้องจะแบ่งออกเป็น 7 ส่วนหลักๆ เข้ามาภายในห้องจะเจอห้องนั่งเล่นก่อน เป็นโถง Living ขนาดใหญ่เชื่อมกับพื้นที่นั่งทำงาน และห้องรับประทานอาหาร จากโถงหลักจะเชื่อมสู่ ห้องน้ำ, ห้องครัว และห้องนอน โดยจะได้เป็นครัวปิด ซึ่งจะเชื่อมกับระเบียงซักล้าง เป็นข้อดีที่ทำให้กลิ่นไม่ฟุ้งกระจายไปทั่วห้องเวลาปรุงอาหาร แถมยังสามารถระบายกลิ่นได้ดีผ่านทางระเบียงอีกด้วย ส่วนห้องนอนจะกั้นส่วนจาก Living Area ด้วยประตูบานเลื่อนกระจก ทำให้ห้องดูโปร่งโล่ง แถมยังมีระเบียงในห้องนอนส่วนตัวให้อีกด้วย จากแปลนจะเห็นว่าในห้องนอนมีพื้นที่กำลังดีค่ะ สามารถเตียงนอนขนาด 5 ฟุต และวางเฟอร์นิเจอร์หลักๆ ได้ครบ
ห้องได้แบบ Fully Fitted เป็นเฟอร์นิเจอร์ Built-in ตามมาตรฐานของ LPN ส่วน Living Area และห้องครัวปูด้วยกระเบื้องแกรนิตโต้, ห้องน้ำและระเบียง ปูกระเบื้องเซรามิกขนาด 30 x 30 ซม. ส่วนห้องนอนปูด้วยไม้ลามิเนตหนา 8 มม. ผนังฉาบเรียบทาสี และฝ้าเพดานสูง 2.4 เมตร ติดดวงโคมดาวน์ไลท์ให้ทั้งหมด
1 Bedroom ขนาด 45.00 ตรม.
เป็นห้องแบบ 1 Bedroom เหมือนกัน แต่มีพื้นที่ที่กว้างขวางมากขึ้น ภายในห้องแบ่งออกเป็น 7 ส่วนค่ะ เข้ามาถึงจะเป็นส่วน Living Area มีห้องรับประทานอาหารเชื่อมต่อกับห้องนั่งเล่นขนาดใหญ่ สามารถวางโซฟาเบดได้เลย จาก Living Area จะเชื่อมต่อกับ ห้องครัว, ห้องน้ำ และห้องนอน ห้องครัวได้เป็นครัวปิดที่เชื่อมกับระเบียงซักล้าง ห้องนอนจะกั้นส่วนด้วยผนังทึบ มีขนาดใหญ่ขึ้น (ทางยาว) สามารถวางเตียงนอนขนาด 5 ฟุตและเฟอร์นิเจอร์ได้เหมือนเดิม จุดที่ดีขึ้นมาจากห้องที่แล้วก็คือ ส่วน Living Area ไม่ต้องอาศัยช่องแสงผ่านทางห้องนอนแล้วค่ะ
2 Bedrooms ขนาด 45.00 ตรม.
มาดูห้อง 2 Bedrooms ขนาด 70.00 ตร.ม.กันต่อ เป็นห้องแบบ 2 Bed 2 Bath ห้องแบ่งออกเป็น 8 ส่วน ได้พื้นที่ Living Area ขนาดใหญ่ พื้นที่ส่วนห้องรับประทานอาหารสามารถรองรับได้ถึง 4 คน ห้องนั่งเล่นสามารถจัดชุดโซฟาเบดขนาดใหญ่ได้ ในห้องจะได้ครัวปิดเชื่อมกับลานซักล้างเหมือนเดิม ภายในห้องนอนเล็กจะเหมาะสำหรับเตียงขนาด 3-3.5 ฟุต ส่วนห้องนอนใหญ่จะสามารถวางเตียงขนาด 6 ฟุตได้เลย
2 Bedrooms ขนาด 71.00 ตรม.
ห้อง 2 Bed 2 Bath ขนาด 71.00 ตร.ม.ห้องนี้จะมีการแบ่งส่วนแทบไม่ต่างจากห้องขนาด 70.00 ตร.ม.เลยค่ะ ที่ต่างออกไปก็คือจะย้ายห้องน้ำแบบ Shower มาไว้อีกฝั่งนึงติดกับอีกห้องเลย แต่ห้องน้ำอีกห้องที่มีอ่างอาบน้ำจะเป็นห้องน้ำในตัวของห้องนอนใหญ่แทน
2 Bedrooms ขนาด 72.00 ตรม.
ห้อง 2 Bed 2 Bath ขนาด 72.00 ตร.ม.มีการแบ่งส่วนแทบไม่ต่างจากห้องขนาด 70.00 ตร.ม.เช่นกัน แต่ห้องน้ำที่มีอ่างอาบน้ำจะเป็นห้องน้ำในตัวของห้องนอนใหญ่แทนเหมือนห้องขนาด 71.00 ตร.ม.
::: แปลนห้อง PHASE 2 :::
1 Bedroom ขนาด 37.00 ตรม.
มีการวางแปลนห้องเหมือนกับ 1 Bedroom ขนาด 37.00 ตร.ม.ของเฟส 1 เลยค่ะ แต่ตัดพื้นที่ของระเบียงในห้องนอนออกไป ส่วนของวัสดุแทบจะเหมือนกันเฟส 1 เลยนะคะ ที่ต่างออกไปก็คือส่วน Living Area ปูพื้นด้วยลามิเนตทั้งหมด และห้องครัวปูด้วยกระเบื้องเซรามิกขนาด 30 x 30 ซม.ค่ะ
1 Bedroom ขนาด 45.00 ตรม.
มีการวางแปลนห้องเหมือนกับ 1 Bedroom ขนาด 45.00 ตร.ม.ของเฟส 1 ทุกประการค่ะ
2 Bedrooms ขนาด 70.00 ตรม.
มีการวางแปลนห้องเหมือนกับ 2 Bedrooms ขนาด 71.00 ตร.ม.ของเฟส 1 ทุกประการค่ะ
:::: ราคา (มิถุนายน 2561) ::::
เนื่องจากโครงการนี้ได้ SOLD OUT หมดนานแล้ว ดังนั้นห้องที่ปล่อยขายหลังจากนี้จึงจะเป็นลักษณะ Resales หรือปล่อยเช่า ซึ่งราคาจะขึ้นอยู่กับสภาพภายในห้อง และ การตกแต่งของเจ้าของห้อง หรือผู้เช่าเดิม หากผู้สนใจสามารถติดต่อเอเจนซี่ หรือเจ้าของห้อง เพื่อตกลงราคาซื้อขายกันต่อไปได้ค่ะ ซึ่งราคาที่เรานำเสนอด้านล่างนั้น เป็นเพียงการเก็บข้อมูลของผู้เขียนเท่านั้นนะคะ
ขนาดห้อง 33.50-72.00 ตร.ม. ราคาเริ่มต้นประมาณ 2.99 ล้านบาท
:::: สอบถามรายละเอียดเพิ่มเติมได้ที่ ::::
WEBSITE : http://www.lpn.co.th/
หากเพื่อนๆเห็นว่ารีวิวนี้มีประโยชน์ ช่วยกด Like เพื่อเป็นกำลังใจให้ทีมงาน ขอบคุณค่ะ
และมีความคิดเห็นหรือข้อมูลเพิ่มเติมเกี่ยวกับตัวโครงการ สามารถ Comment ได้ที่ด้านล่างของรีวิวค่ะ