
EP.15 รีวิว คอนโด ไอดีโอ โมบิ สาทร IDEO MOBI SATHORN
IDEO MOBI สาทร จาก บมจ.อนันดา ดีเวลลอปเม้นท์ ตั้งอยู่บนถนนกรุงธนบุรี แขวงบางลำภูล่าง เขตคลองสาน กทม.
เพียง 80 เมตร จากรถไฟฟ้า BTS กรุงธนบุรี ใกล้คลองสาน, วงเวียนใหญ่, เดอะมอลล์ ท่าพระ, รพ.ตากสิน และ สะพานตากสิน
ไอดีโอ โมบิ สาทร เป็นคอนโด High Rise 31 ชั้น 1 อาคาร พื้นที่โครงการ 2-2-5.5 ไร่ ห้องพักอาศัย 530 ยูนิต มีห้องพักให้เลือกแบบสตูดิโอ, 1 ห้องนอน, 2 ห้องนอน และ Duplex ขนาดเริ่มต้น 21.18-51.69 ตร.ม. สร้างเสร็จพร้อมอยู่ปี 2557
สิ่งอำนวยความสะดวกภายในโครงการครบครัน อาทิ Lobby, สระว่ายน้ำ, สระเด็ก, ฟิตเนส, ซาวน่า, สวนพักผ่อน, ร้านค้า, ลิฟท์โดยสาร, ที่จอดรถ, ประตูคีย์การ์ด และ รปภ. 24 ชม. เริ่มต้น 1 ล้านบาท (วันเปิดตัว)
คอนโด Ideo Mobi ทำเลอื่นๆที่น่าสนใจ…
Ideo Mobi วงศ์สว่าง อินเตอร์เชนจ์
Ideo Mobi บางซื่อ แกรนด์ อินเตอร์เชนจ์
Ideo Mobi พระราม 9
Ideo Mobi อโศก
Ideo Mobi สุขุมวิท
Ideo Mobi สุขุมวิท 40
Ideo Mobi สุขุมวิท 66
Ideo Mobi สุขุมวิท อีสท์เกต
Ideo Mobi สุขุมวิท อีสต์พอยท์
Ideo Mobi รางน้ำ
Ideo Mobi พญาไท
Ideo Mobi สาทร
Ideo Mobi พระราม 4
Ideo Mobi จรัญ อินเตอร์เชนจ์

| ชื่อโครงการ | ไอดีโอ โมบิ สาทร / IDEO MOBI SATHORN |
| เจ้าของโครงการ | อนันดา ดีเวลลอปเม้นท์ – Ananda Development |
| ลักษณะห้องและขนาดห้อง | Studio / 21.18 – 25.18 ตร.ม. 1 Bed Room / 29.34 – 30.30 ตร.ม. 2 Bed Room / 51.69 – 42.14 ตร.ม. Duplex |
| เนื้อที่ทั้งหมด | 2 ไร่ 2งาน 5.50 ตร.ว. |
| จำนวนตึก | 1 อาคาร |
| จำนวนชั้น | 31 ชั้น |
| จำนวนห้อง | 530 ยูนิต |
| ที่จอดรถทั้งหมด | 209 คัน |
| โซน | คลองสาน, เจริญนคร, รัชดา-ท่าพระ, เพชรเกษม |
| ขนส่งสาธารณะ | รถไฟฟ้า BTS สถานีกรุงธนบุรี ประมาณ 80 เมตร |
| รถโดยสารที่ผ่าน | n/a |
| ที่ตั้ง | ถนนกรุงธนบุรี แขวงบางลำภูล่าง เขตคลองสาน กรุงเทพมหานคร |
| กำหนดการ | n/a |
| ปีที่สร้างเสร็จ | พ.ศ.2557 |
| ราคา | เริ่มต้น1,000,000 – 5,480,000 บาท (ณ วันที่ 12 ต.ค. 55) |
| ราคาเฉลี่ยต่อ ตร.ม. | เริ่มต้น 89,000 บาท |
| สถานที่สำคัญใกล้เคียง | 1. รถไฟฟ้า BTS สถานีกรุงธนบุรี ประมาณ 80 เมตร 2. รถไฟฟ้า BTS สถานีวงเวียนใหญ่ 3. สะพานตากสิน 4. ถนนสาทร 5. อาคารสาทรซิตี้ทาวเวอร์ 6. วงเวียนใหญ่ |
| สิ่งอำนวยความสะดวก | – สระว่ายน้ำ – ฟิตเนส – รปภ. – กล้องวงจรปิด – ประตู Key Card – ร้านค้า – ร้าน ซัก อบ รีด – สวนหย่อม – ห้องสมุด |
| จุดเด่นโครงการ | คอนโดมีเนียมที่ทำให้คุณเข้าสู่ศูนย์กลางธุรกิจ และสถาบันการศึกษาชั้นนำได้เพียงไม่กี่นาที ใกล้ BTS สถานีกรุงธนบุรีเพียง 80 เมตร |
คอนโดติดรถไฟฟ้า BTS กรุงธนบุรี
ที่ตั้งโครงการ
ถนนกรุงธนบุรี แขวงบางลำภูล่าง เขตคลองสาน กรุงเทพมหานคร
การเดินทาง
เส้นทางที่เราจะใช้เดินทางในวันนี้มาจากถนนสาทรวิ่งขึ้นสะพานตากสินเพื่อมายังฝั่งธนบุรีครับ
Google Map คร่าวๆ แสดงให้เห็นว่าพอลงสะพานแล้วเราต้องเบี่ยงออกซ้ายเพื่อไปกลับรถครับ ส่วนรายละเอียดเชิญชมต่อจากนี้ได้เลยครับ
ผมมาจากทางถนนสาทร มุ่งหน้าขึ้นสะพานตากสิน
ขับผ่าน BTS ตากสินที่อยู่ด้านขวามือ
ขณะอยู่บนสะพานให้อยู่เลนซ้ายครับ เพราะพอถึงทางลงสะพานเราจะวิ่งออกซ้ายตามป้ายเจริญนคร
เลี้ยวซ้ายครับตรงบริเวณตีนสะพาน
วิ่งมาตามทางโค้ง
หลังจากลงสะพานมาให้เราชิดขวาไว้เพราะเราจะต้องกลับรถที่เกาะกลางถนนนี้ครับ
หลังจากกลับรถมา เราจะมุ่งหน้าเพือกลับไปทางถนนธนบุรีอีกครั้งหนึ่ง ให้เราวิ่งเข้าช่องซ้ายครับเพื่อวิ่งไปตามทางคู่ขนาน
อยู่ในถนนคู่ขนานครับ เพราะถ้าวิ่งถนนเส้นหลักจะเข้าตัวโครงการไม่ได้ ติดเกาะกลางถนน
ถึงแล้วครับ โครงการ ไอดีโอ โมบิ สาทร
จะเห็นว่าถ้าเราไม่วิ่งมาจากทางคู่ขนาน เราจะเข้าตัวโครงการไม่ทันครับ
บริเวณโครงการ
ป้ายโครงการ
หน้าตาอาคาร
บริเวณสวนหน้าโครงการที่อยู่ริมฟุตบาท
ภาพมองจากถนนเข้าไปยังตัวโครงการ
คลองที่อยู่ด้านข้างโครงการ เดินทะลุไปได้ไกลถึงถนนเจริญนคร
โครงการพี่ Ideo สาทร-ตากสิน อยู่ติดกันโดยมีคลองเมื่อสักครู่คั่นกลางครับ
เดินต่อมาอีกนิดจะเป็นทางขึ้นลิฟต์รถไฟฟ้า
และตรงบริเวณบันไดทางขึ้นสถานี จะมีอาคารไทยศรี ประกันภัย
ทางเข้าอาคาร
ธนาคาร SCB
เซเว่น-อีเลฟเว่น ที่ใกล้ที่สุดครับ
บันไดทางขึ้นสถานีกรุงธนบุรี
มีปั๊มบางจาก ติดกับอาคารไทยศรี
ร้านกาแฟ อินทนิล ในปั๊ม
ติดกับปั๊มมีร้านส้มตำไก่ย่าง ข้าวราดแกง และอาหารตามสั่ง
เลยไปนิด ก็จะมี ร้านกาแฟอีกร้าน Pet Friendly
พร้อมด้วยคลินิกสัตว์เลี้ยง แต่ไม่เปิด 24 ชม.นะ
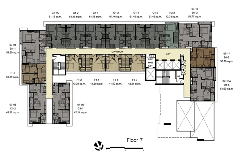
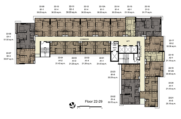
แปลนอาคาร
Ground Floor
6th Floor
7th Floor
8th – 20th Floor
22th – 29th Floor
30th Floor
31th Floor
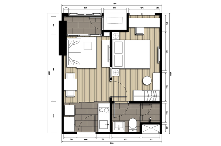
แปลนห้อง





Studio Room : A1-1, A1-2, A1-3, A1-4, A1-5, A2-1
1 Bedroom : B1-1, B1-2, B1-2A, B1-3, B1-4, B1-5, B1-6
2 Bedroom : C1-1, C1-2, D1-1, D1-3, D1-4, D1-5
Duplex Room : F1-1, F1-2, G1-1, G1-1C, G1-2, H1-1, H1-2, H2-2, I1-1, I1-2, I1-3, I1-3M, I1-3C, I1-5, I1-5C, L1-6
แกลเลอรี