
รีวิว คอนโด ไอดีโอ โมบิ พญาไท Ideo Mobi Phayathai ใกล้รถไฟฟ้า BTS พญาไท
สวัสดีค่ะผู้อ่าน Homenayoo ที่รักทุกคน วันนี้เราจะพาไปชมคอนโดมิเนียมโครงการ Ideo Mobi พญาไท จาก Ananda Development บนถนนศรีอยุธยา แขวงพญาไท เขตราชเทวี กทม.
อยู่ในย่านชุมชน ไม่ไกลจากสถานศึกษา, สถานที่ราชการ ไปยังห้างสรรพสินค้า, ตลาดสดได้สะดวก ใกล้รถไฟฟ้า BTS พญาไท และ Airport Link พญาไท
ไอดีโอ โมบิ พญาไท เป็นคอนโด High rise สูง 24 ชั้น 1 อาคาร พื้นที่โครงการ 1-2-77 ไร่ ยูนิตพักอาศัย 317 ยูนิต มีให้เลือก 4 แบบ Studio, 1 – 2 Bedroom และ Duplex โดยขนาดพื้นที่ใช้สอยจะเริ่มตั้งแต่ 20.78 – 60.74 ตร.ม. สร้างเสร็จพร้อมอยู่
สิ่งอำนวยความสะดวกภายในโครงการมีให้ครบครัน โดยจะมี ห้องสมุด, ฟิตเนส, สระว่ายน้ำพร้อมพื้นที่นั่งเล่นริมสระ, พื้นที่นั่งเล่นภายในอาคาร และ Roof Garden , รปภ.ประจำอยู่ตลอด 24 ชั่วโมง และ CCTV ภายในโครงการ ราคา Resale ปัจจุบันราคาเริ่มต้นประมาณ 6.75 ล้านบาท (เฉลี่ย 135,000-150,000 บาท/ตร.ม.) (ม.ค.2561)
วันนี้เราจะพาท่านผู้อ่านไปสำรวจสถานที่ วิเคราะห์ทำเล และชมห้องตัวอย่างของโครงการว่าเป็นอย่างไร
คอนโด Ideo Mobi ทำเลอื่นๆที่น่าสนใจ…
Ideo Mobi วงศ์สว่าง อินเตอร์เชนจ์
Ideo Mobi บางซื่อ แกรนด์ อินเตอร์เชนจ์
Ideo Mobi พระราม 9
Ideo Mobi อโศก
Ideo Mobi สุขุมวิท
Ideo Mobi สุขุมวิท 40
Ideo Mobi สุขุมวิท 66
Ideo Mobi สุขุมวิท อีสท์เกต
Ideo Mobi สุขุมวิท อีสต์พอยท์
Ideo Mobi รางน้ำ
Ideo Mobi พญาไท
Ideo Mobi สาทร
Ideo Mobi พระราม 4
Ideo Mobi จรัญ อินเตอร์เชนจ์

| ชื่อโครงการ | ไอดีโอ โมบิ พญาไท IDEO MOBI PHAYATHAI |
| เจ้าของโครงการ | อนันดา ดีเวลลอปเม้นท์ – Ananda Development |
| ลักษณะห้องและขนาดห้อง | – Studio / 20.78 – 23.51 ตร.ม. – 1 Bedroom / 29.90 – 30.53 ตร.ม. – 2 bedroom / 41.85 – 51.83 ตร.ม. – Duplex / 42.60 – 60.74 ตร.ม. |
| เนื้อที่ทั้งหมด | 1 ไร่ 2 งาน 77 ตร.ว. |
| จำนวนตึก | 1 อาคาร |
| จำนวนชั้น | 24 ชั้น |
| จำนวนห้อง | 317 ยูนิต |
| ที่จอดรถทั้งหมด | 129 คัน |
| โซน | พญาไท |
| ขนส่งสาธารณะ | รถไฟฟ้า BTS พญาไท 180 เมตร |
| รถโดยสารที่ผ่าน | n/a |
| ที่ตั้ง | ถนนศรีอยุธยา แขวงพญาไท เขตราชเทวี กทม. |
| กำหนดการ | สร้างเสร็จพร้อมอยู่ |
| ปีที่สร้างเสร็จ | ปี 2558 |
| ราคา | ราคา Resale เริ่มต้น 6.75 ล้านบาท (ม.ค.2561) |
| ราคาเฉลี่ยต่อ ตร.ม | เริ่มต้น 135,000-150,000 บาท / ตร.ม. |
| สถานที่สำคัญใกล้เคียง |
|
| สิ่งอำนวยความสะดวก |
|
| จุดเด่นของโครงการ | เพียง 180 เมตร จาก BTS สถานีพญาไท ที่อยู่อาศัยใจกลางเมือง ท่ามกลางสถานศึกษาและศูนย์รวมความรู้ ความบันเทิงที่ เป็นที่สุดของ Lifestyle คนกรุงเทพ ทั้งยังใกล้ Airport Link และจุดขึ้นลงทางด่วน ให้การเดินทางทั้งในและนอกเมืองเป็นเรื่องแสนสะดวกสำหรับคนเมือง |
คอนโดใกล้ BTS พญาไท *Interchange Airport Rail Link พญาไท ที่ตั้งโครงการ
พิกัด google map: 13.758762, 100.532826
ถนนศรีอยุธยา แขวงพญาไท เขตราชเทวี กทม.
โครงการ Ideo Mobi พญาไท ตั้งอยู่บนถนนศรีอยุธยา เป็นถนนที่เชื่อมไปยังถนนใหญ่อย่างถนนพญาไท และเป็นถนนที่เชื่อมกับถนนหลักๆหลายสาย ลัดเลาะได้หลายเส้นทาง ไม่ไกลจากสถานที่สำคัญต่างๆทั้งโรงพยาบาล, โรงเรียน, สถานที่ราชการ ใกล้ห้างสรรพสินค้า, ตลาดสดและร้านสะดวกซื้อ
ที่ตั้งโครงการ อยู่บนศรีอยุธยาไม่ไกลจากแยกพญาไทซึ่งเป็นแยกที่เชื่อมระหว่างถนนศรีอยุธยา ถนนพญาไท และถนนจตุรทิศ จากที่ตั้งโครงการสามารถลัดเลาะไปได้หลายเส้นทาง อยู่ใกล้ถนนใหญ่หลายๆสาย มีความอุดมสมบูรณ์โดยรอบทั้งร้านค้า ร้านอาหาร ห้างสรรพสินค้า รวมถึงสถานศึกษาและสถานที่ราชการก็เดินทางไปได้ไม่ยาก
การเดินทางด้วยรถยนต์ส่วนตัว ถือว่าสะดวกเพราะที่ตั้งโครงการอยู่บนถนนศรีอยุธยา ซึ่งเป็นถนนที่เชื่อมกับถนนหลายสายและไปยังถนนหลักได้ไม่ยากทั้งพญาไท พระราม1, ราชวิถี, ดินแดง, เพชรบุรี สำหรับถนนศรีอยุธยาเป็นเส้นที่มุ่งตรงไปยังสามเสน วิ่งเชื่อมถนนพระราม 5 และพระราม 6 ได้ดังนั้นจึงเดินทางไปยังเส้นอื่นๆได้อีกหลากหลาย โดยตรงแยกศรีอยุธยาจะเชื่อมกับถนนพระราม 6 และใกล้กับจุดขึ้น-ลงทางด่วนศรีรัช
หรือถ้ามุ่งหน้าไปยังแยกพญาไทก็จะเป็นจุดที่เชื่อมกับถนนพญาไทและถนนจตุรทิศ สำหรับถนนจุตรทิศสามารถมุ่งหน้าตรงไปเชื่อมถนนพระราม 9 และเพชรบุรีตัดใหม่ ส่วนถนนพญาไทเป็นถนนเส้นยาวที่ตรงไปเชื่อมกับถนนราชวิถีและถนนพหลโยธินที่อนุสาวรีย์ชัยสมรภูมิ ซึ่งเส้นราชวิถีตรงข้ามแม่น้ำเจ้าพระยาไปยังฝั่งธน ตรงเข้าถนนจรัญสนิทวงศ์ มุ่งหน้าไปถนนบรมราชชนนีได้ ส่วนถนนพหลโยธินก็เป็นถนนหลักเส้นยาวที่ตรงไปจตุจักร, ดอนเมือง, ไปรังสิตและตรงไปยังจังหวัดพระนครศรีอยุธยาได้ค่ะ
และถนนพญาไทนั้นยังตรงเข้าเชื่อมกับถนนเพชรบุรีซึ่งเป็นถนนที่ตรงไปยังถนนพัฒนาการ เข้าสวนหลวงวิ่งเชื่อมกับถนนศรีนครินทร์ เมื่อตรงจากถนนพญาไทก็จะไปยังถนนพระราม 1 ซึ่งเป็นถนนตรงไปยังเขตพระนครได้ และตรงไปยังถนนสุขุมวิทซึ่งเส้นนี้เป็นย่านธุรกิจ ที่มีทั้งอาคารสำนักงานใหญ่ๆ ร้านค้าร้านอาหารดังๆ ห้างสรรพสินค้าใหญ่หลายแห่ง ทำให้เส้นนี้การจราจรจึงคึกคักพอสมควร และช่วงเวลาเร่งด่วนรถจะติดดังนั้นจะเดินทางก็เช็คช่วงเวลากันดีๆนะคะว่าช่วงไหนควรเลี่ยงเส้นไหน หรือควรลัดเลาะไปทางไหน
ทางด่วน สำหรับจุดขึ้นทางด่วนศรีรัชใกล้ที่สุดอยู่ห่างจากโครงการประมาณ 2.0 กม. โดยอยู่ใกล้แยกศรีอยุธยาวิ่งเส้นพระราม 6 เพื่อขึ้นทางด่วนศรีรัชได้เลย
การเดินทางด้วยรถสาธารณะ ถือว่าสะดวกมากทีเดียว หน้าโครงการมีรถประจำทางวิ่งผ่านหลายสาย แท็กซี่ก็เรียกได้ไม่ยาก ในปัจจุบันรถไฟฟ้าที่ใกล้ที่สุดคือรถไฟฟ้าสายสีเขียว BTS สถานีพญาไท อยู่ในระยะที่เดินไปได้ อีกทั้งสถานีนี้ก็เป็นจุดเชื่อมต่อกับ Airport link พญาไท ทำให้เดินทางไปยังสนามบินสุวรรณภูมิและเส้นลาดกระบังได้สะดวก
การเดินทางด้วยรถไฟฟ้า สถานีที่ใกล้ที่สุดคือสถานีพญาไท อยู่ห่างจากโครงการเพียง 180 ม. สามารถเดินได้สะดวกแต่จะต้องข้ามถนนใหญ่หลายช่วง ดังนั้นถ้าใครจะนั่งวินมอเตอร์ไซค์ก็เพียง 20 บาทเท่านั้นค่ะ
การเดินทางด้วยเรือ อีกทั้งที่ตั้งโครงการอยู่ไม่ไกลจากคลองแสนแสบ จึงสามารถใช้บริการเรือโดยสารได้ค่ะ สำหรับท่าเรือที่ใกล้และสะดวกต่อการเดินทางคือท่าเรือสะพานหัวช้าง ห่างจากโครงการประมาณ 2.3 กม.

ความอุดมสมบูรณ์โดยรอบ ที่ตั้งโครงการอยู่ในย่านพักอาศัย อาคารพาณิชย์, อาคารสำนักงานและสถานที่ราชการ ดังนั้นสองข้างทางจึงมีร้านค้า ร้านอาหารและแหล่งขายอาหาร ฝั่งตรงข้ามเยื้องๆโครงการไปไม่ไกลจะมี CP Tower เป็นอาคารสำนักงานใกล้ BTS พญาไทซึ่งมีร้านค้าและร้านอาหารมากมาย อีกทั้งในตัวโครงการเองนั้นยังมี MaxValu ซึ่งเป็นมินิมาร์ทที่มีอาหารปรุงสุก, อาหารแช่แข็ง,อาหารสด ผัก ผลไม้และของใช้ต่างๆมากมายให้เลือกจับจ่าย อาคารติดกับโครงการก็มีร้านอาหาร, คาเฟ่และร้าน 7/11
โดยถ้าไปยังถนนพระราม 1 มีห้างสรรพสินค้าทั้ง เกษรพลาซ่า, อัมรินทร์พลาซ่า, บิ๊กซี ราชดำริ, Central World, Siam Paragon, Siam Center, Siam Discovery, Siam Square One และ MBK Center เรียกได้ว่ามีห้างมากมาย เลือกเดินไม่ถูกกันเลยทีเดียว และตรงสยามก็จะมีร้านค้าเล็กๆ ที่มีทั้งแบรนด์ไทย และแบรนด์ต่างชาติ ร้านอาหารและคาเฟ่ หรือถ้าจะตรงไปอีกหน่อยสำหรับเส้นสุขุมวิทมีให้เลือกทั้ง Central Embassy, Robinson สุขุมวิทและ Terminal 21, Korean Town อยู่ไม่ไกล มีร้านอาหารเกาหลีให้เลือกทั้งแบบปิ้งย่าง ร้านอาหารคาว อาหารหวาน ร้านขนมปังหรือร้านขายพวกเครื่องปรุงอาหารแห้งก็มีให้ครบ
อีกทั้งโดยรอบทำเลนี้จะมีทั้งสวนสาธารณะที่อยู่ในระยะที่เดินทางไปได้ไม่ยาก โรงเรียนต่างๆอย่างรร.สันติราษฎร์, รร.พญาไท, รร.วัฒนาวิทยาลัย, โรงเรียนเซนต์ดอมินิก, โรงเรียนสาธิต มศว หรือจะเป็นมหาลัยทั้งมหาลัยศรีนครินทรวิโรฒ (มศว) และถ้าเลยไปทางเขตปทุมวันก็จะมี จุฬาและเตรียมอุดม ส่วนอาคารสำนักงานและสถานีที่ราชการก็มีทั้งกระทรวงต่างๆ อาคารสำนักงานป.ป.ส., สน.พญาไท, กรมกิจการเด็กและเยาวชน สำหรับโรงพยาบาลก็อยู่ไม่ไกลเลยค่ะทั้งรพ.รามา, รพ.ราชวิถี, รพ.โรคไต, รพ.พระมงกุฎเกล้า
แยกและถนนสำคัญใกล้เคียง
การเดินทาง
เรามีภาพการเดินทางมาให้ชมกัน เส้นทางการเดินทางตามลูกศรแดง โดยเริ่มเดินทางจาก แยกปทุมวัน →วิ่งตรงตามถนนพญาไท→ วิ่งตรงผ่านแยกราชเทวี → วิ่งตรงผ่านแยกพญาไท → เลี้ยวซ้ายเข้าซอยโยธี → เลี้ยวซ้ายเข้าถนนพระราม 6 → เลี้ยวซ้ายเข้าถนนศรีอยุธยา→ ตรงมาประมาณ 850 ม. ก็จะเจอพื้นที่โครงการ Ideo Mobi พญาไท แล้วค่ะ
จากแยกปทุมวันจะตัดผ่านถนนพระราม 1 ให้ตรงไปตามถนนพญาไท
วิ่งผ่านรถไฟฟ้าสายสีเขียว BTS สถานีราชเทวี
จากแยกราชเทวีถนนพญาไทจะตัดกับถนนเพชรบุรี ให้วิ่งตรงไปตามถนนพญาไท
ผ่าน BTS พญาไทแสดงว่าใกล้ถึงโครงการแล้วค่ะ
ถ้าเลี้ยวซ้ายจะเข้าถนนศรีอยุธยาซึ่งเป็นถนนหน้าโครงการแต่จะต้องไปกลับรถไกล ดังนั้นให้ตรงไปผ่านแยกพญาไทเพื่ออ้อมไปทางถนนด้านหลังที่ขนานกับถนนศรีอยุธยา ซึ่งรถจะไม่ค่อยหนาแน่นนัก
ตรงผ่านแยกพญาไทด้านซ้ายมือจะผ่านกรมแพทย์ทหารบก
เลี้ยวซ้ายซอยแรกเข้าซอยโยธี
วิ่งตรงมาผ่านกรมการสารวัตรทหารบก
สุดซอยจะเจอกับถนนพระราม 6 ด้านบนคือทางด่วนศรีรัช ให้เลี้ยวซ้ายวิ่งเข้าพระราม 6
วิ่งตรงไปผ่านกระทรวงอุตสาหกรรม
เจอแยกศรีอยุธยาให้เลี้ยวซ้ายเข้าถนนศรีอยุธยา
วิ่งตรงผ่านคณะเภสัชศาสตร์ ม.มหิดลทางซ้ายมือ
ตรงไปเรื่อยๆจะเห็นทางยกระดับข้ามแยกพญาไท ให้วิ่งชิดซ้ายไว้นะคะจากตรงนี้ก็จะห่างโครงการเพียง 400 ม.
ทางเข้า-ออกโครงการอยู่ติดกับถนนศรีอยุธยาให้เลี้ยวซ้ายเข้าไปได้เลยค่ะ

สถานที่สำคัญ
บริเวณโดยรอบโครงการ
โครงการ Ideo Mobi พญาไท โดยรอบเป็นย่านพักอาศัย และอาคารสำนักงานหลายแห่งทั้งของเอกชนและราชการ ตรงข้ามเป็นสถานศึกษา จึงทำให้โดยรอบมีร้านค้าและร้านอาหารอยู่ในระยะที่เดินไปจับจ่ายใช้สอยได้ จากโครงการก็ไม่ไกลจากรถไฟฟ้าสายสีเขียวสถานีพญาไท หน้าโครงการก็มีป้ายรถประจำทางทำให้เดินทางสะดวก
หน้าโครงการคือถนนศรีอยุธยา ทางยกระดับที่เห็นเป็นทางยกระดับข้ามแยกพญาไท ตรงข้ามเป็นโรงเรียนสันติราษฎ์วิทยาลัย
ด้านขวาถ้าตรงไปตามถนนศรีอยุธยาจะเป็นถนนเส้นตรงที่เชื่อมกับถนนราชดำเนิน ตรงไปยังถนนสามเสนได้
ตรงนี้หน้าโครงการจะมีป้ายรถโดยสารประจำทาง ซึ่งถ้าใครเดินทางด้วยรถสาธารณะก็ถือว่าสะดวกมาเลยค่ะ
ด้านซ้ายตรงไปยังแยกพญาไท ซึ่งเป็นเส้นที่เชื่อมกับถนนพญาไทและตรงไปยังถนนจตุรทิศ อีกทั้งยังเป็นเส้นทางที่ตรงไปยัง BTS สถานีพญาไท
ด้านซ้ายของโครงการมีร้านอาหาร และคาเฟ่ที่มีทั้งอาหารคาว-หวานและเครื่องดื่ม
ติดกันนั้นมีร้านกาแฟเล็กๆ ซึ่งน่าจะอร่อยเพราะลูกค้าเต็มร้านเชียวค่ะ
ถัดไปไม่ไกลมีร้านอาหารตามสั่ง
ตรงนี้ก็มีร้านสะดวกซื้อ
แยกพญาไท ด้านขวามือจะเป็นที่ตั้งของ BTS สายสีเขียวสถานีพญาไท
เมื่อข้ามถนนมาตรงกลางใต้ทางยกระดับก็จะเห็น BTS สายสีเขียวสถานีพญาไทและอาคาร CP Tower3
BTS สายสีเขียวสถานีพญาไท ทางขึ้น-ลงจะอยู่ตรงนี้และจะมีวินมอเตอร์ไซค์
ราคาค่าโดยสาร ถ้าจากตรงนี้ไปยังโครงการจะประมาณ 20 บาท แต่ถ้าไม่รีบมากก็เดินไปโครงการได้ไม่ไกลเลย
อาคาร CP Tower3 เป็นอาคารสำนักงานที่ภายในมีร้านอาหาร ดังนั้นจากโครงการก็เดินมาฝากท้องยังร้านต่างๆได้ค่ะ
โครงการ
โครงการ Ideo Mobi พญาไท เป็นคอนโดมิเนียม High rise สูง 24 ชั้น ซึ่งทางเข้า-ออกโครงการอยู่ติดกับถนนศรีอยุธยาโดยรอบเป็นอาคารพักอาศัยและอาคารพาณิชย์ Low Rise ทำให้ไม่โดนบังวิวค่ะ โดยยูนิตที่อยู่ติดกับถนนจะหันหน้าไปทางทิศใต้
วิวจากยูนิตที่หันหน้าไปทางทิศใต้ หรือยูนิตที่ติดกับถนนศรีอยุธยา
หน้าตาอาคารด้านข้างที่หันไปทางทิศตะวันตก มุมนี้จะเห็นพื้นที่ส่วนกลางที่ชั้น 8 เป็นสระว่ายน้ำ
วิวจากยูนิตที่หันหน้าไปทางทิศตะวันตก อาคารใกล้เคียงส่วนใหญ่เป็นอาคาร Low rise ส่วนอาคาร High rise นั้นก็อยู่ในระยะไกลทำให้ไม่โดนบังวิว
หน้าตาอาคารที่หันไปทางทิศเหนือ ด้านนี้จะเป็นด้านหลังของอาคาร
วิวจากยูนิตที่หันหน้าไปทางทิศเหนือ ด้านหลังเป็นอาคาร Low rise จะเห็นว่าไม่โดนบังวิว
หน้าตาอาคารที่หันไปทางทิศตะวันออก หันไปเห็นแยกพญาไท จะมีอาคาร Low rise อยู่ติดกันในระดับความสูงเดียวกับชั้นจอดรถทำให้ยูนิตพักอาศัยที่หันไปทางด้านนี้ไม่โดนบังวิวค่ะ
วิวจากยูนิตที่หันหน้าไปทางทิศตะวันออกค่ะ
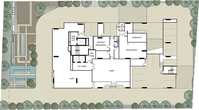
ผังอาคารชั้น 1 เป็นสี่เหลี่ยมผืนผ้า ด้านหน้าที่ติดกับถนนศรีอยุธยาเป็นพื้นที่สวน ภายในอาคารยูนิตด้านหน้าเป็นยูนิตร้านค้า ทางเข้าจะอยู่ด้านข้างเป็นพื้นที่ Lobby , ห้องนิติบุคคลและห้องเครื่องงานระบบภายในอาคาร มีพื้นที่จอดรถใต้อาคารและโดยรอบ ทางเดินรถเป็นการเดินรถทางเดียว ลิฟต์โดยสารจะมี 2 ตัว
ทางเข้า-ออกโครงการอยู่ติดกับถนนศรีอยุธยา ด้านขวาติดกับกำแพงจะมีป้ายชื่อโครงการและป้อมรปภ.
ตัวอาคารเป็นอาคารสูง 24 ชั้น 1 อาคาร โดยชั้น 1-7 เป็นชั้นจอดรถ และชั้นพักอาศัยก็จะเริ่มตั้งแต่ชั้น 3 เป็นต้นไป ซึ่งชั้น 1 นั้นจะมียูนิตร้านค้าสามารถเห็นได้จากด้านหน้าโครงการ
ยูนิตร้านค้าจะเป็น MaxValu ซึ่งเป็นร้านมินิมาร์ทที่มีครบครันทั้งอุปโภค บริโภค อาคารคาว หวานและของใช้ต่างๆมากมาย
ด้านในจะเห็นว่ามีอาหารปรุงสุกที่ไม่ใช่อาหารแช่แข็งขายด้วยนะคะ ดังนั้นถือว่าสะดวกมากทีเดียว อีกทั้งราคาไม่แพงและเปิดตลอด 24 ชั่วโมง
ตรงเข้ามาถนนในโครงการจะเป็นถนนเดินรถทางเดียว
ตรงเข้ามาไม่ไกลด้านซ้ายจะเป็นทางเข้าอาคาร
ติดกันนั้นจะเป็นพื้นที่สำหรับจอดรถจักรยานยนต์และพื้นที่จอดรถ สำหรับแขกที่มายังโครงการ
ตรงไปอ้อมด้านหลังจะเป็นทางไปยังพื้นที่จอดรถในอาคาร
ด้านหลังอาคารนี้ก็จะมีพื้นที่จอดรถด้วยค่ะ
อ้อมมาอีกด้านของอาคารจะเป็นทางขึ้น-ลงพื้นที่จอดรถภายในอาคาร ซึ่งจะเป็นพื้นที่จอดสำหรับลูกบ้านเท่านั้นที่จะจอดภายในอาคารได้ เนื่องจากต้องใช้คีย์การ์ดในการเปิดใช้งาน
ตรงมาเรื่อยๆก็จะผ่านด้านหน้าโครงการที่มีมินิมาร์ท เพื่อจะออกทางเข้า-ออกที่ติดกับถนนศรีอยุธยา
ด้านหน้าโครงการนี้ก็จะมีพื้นที่สวนเล็กๆ
สำหรับทางเข้า-ออกอาคาร จะมีจุดรับ-ส่งรถด้านบนมีหลังคาทำให้ถ้าฝนตกแล้วนั่งแท็กซี่มาก็เดินเข้าอาคารโดยไม่ต้องกลัวเปียก ทางเข้าตรงประตูนี้ต้องใช้การ์ดในการเข้านะคะ สำหรับแขกจะมีรปภ.ด้านในเปิดประตูให้
ด้านในเป็นพื้นที่ Lobby ใต้อาคาร
มีพื้นที่รับรองโดยเป็นโซฟาหลายจุด พร้อมตกแต่งด้วยต้นไม้ทำให้ดูร่มรื่น
ส่วนด้านนี้ประตูกระจกที่เห็นคือประตูเข้าไปยังส่วนด้านในพื้นที่พักอาศัย ซึ่งจะต้องใช้คีย์การ์ดในการเปิด ตรงนี้ทางรปภ.จะไม่เปิดให้สำหรับแขกนะคะ
ประตูเปิดเข้า-ออกส่วนพักอาศัย ตอนออกก็เพียงกดปุ่มทางด้านซ้ายไม่จำเป็นต้องใช้คีย์การ์ด
ด้านในเป็นลิฟต์โดยสาร 2 ตัวโดยลิฟต์เป็นแบบล็อคชั้น คือต้องใช้คีย์การ์ดซึ่งจะเปิดเพียงชั้นจอดรถ ชั้นส่วนกลางและชั้นพักอาศัยของตัวเองเท่านั้น ส่วนอีกห้องที่อยู่ติดกับลิฟต์คือ Mail Room
ภายใน Mail Room ก็จะเป็นตู้จดหมายสำหรับทุกห้อง
ผังอาคารชั้น 3 เป็นพื้นที่จอดรถและเริ่มมียูนิตพักอาศัย โดยส่วนพักอาศัยจะอยู่ด้านหน้า ส่วนฝั่งด้านหลังจะเป็นพื้นที่จอดรถ
ผังอาคารชั้น 4 เป็นพื้นที่จอดรถและยูนิตพักอาศัย โดยส่วนพักอาศัยจะอยู่ด้านหน้า ส่วนฝั่งด้านหลังจะเป็นพื้นที่จอดรถ
ผังอาคารชั้น 8 เป็นชั้นพักอาศัยและพื้นที่ส่วนกลาง โดยจะมีห้องสมุด, ห้องซักผ้า, ฟิตเนส และสระว่ายน้ำพร้อมพื้นที่นั่งเล่น
ขึ้นมาชั้น 8 จะเป็นชั้นส่วนกลาง ชั้นนี้จะมีห้องพักอาศัยด้วยค่ะ
ห้องแรกคือห้องสมุดด้านหน้าจะมีป้ายบอกชื่อห้องชัดเจน
ภายในมีพื้นที่สำหรับนั่งอ่านหนังสือ นั่งทำงานโดยเป็นชุดโต๊ะโซฟานั่งสบายๆ และชุดโต๊ะทำงานหลายจุด
มุมนี้ก็ยังมีชั้นหนังสือที่มีลูกบ้านสามารถมาหยิบไปอ่านได้นะคะ
ถัดไปเป็นห้อง Laundry
ภายในจะมีเครื่องซักผ้าหยอดเหรียญ เครื่องอบผ้าหยอดเหรียญและเครื่องกดน้ำค่ะ
ห้องน้ำแยกชาย-หญิง
ด้านในห้องน้ำจะมีห้องส้วม, ห้องอาบน้ำ และตู้ล็อคเกอร์ให้
ติดกันนั้นคือฟิตเนส
ภายในมีอุปกรณ์หลากหลายและพื้นที่นั่งพักผ่อนด้านใน ผนังเป็นกระจกทำให้ได้เห็นวิวตัวเมืองและวิวสระว่ายน้ำ
มุมนี้มีดัมเบล, ลูกบอลสำหรับออกกำลังกาย และเก้าอี้ปรับระดับสำหรับออกกำลังกาย
ลูกบอล 2 ลูก, เก้าอี้ 2 ตัวและชุดดัมเบล 1 ชุด
เครื่องวิ่งวงรี 1 เครื่อง
ลู่วิ่ง 2 เครื่อง
จักรยาน 2 เครื่องโดยมีทั้งแบบมีพนักพิงและไม่มี
เครื่องสำหรับเวทเทรนนิ่ง
ด้านในสุดจะเป็นสระว่ายน้ำขนาด 3.45 x 20 เมตร โดยมีพื้นที่นั่งเล่นริมสระทั้งในร่มและกลางแจ้ง ตรงนี้ก็จะเห็นบางห้องที่เป็นห้องพักอาศัยนะคะ
ติดกับทางเดินนั้นจะเป็นจุดล้างตัว
มุมของสระว่ายน้ำและวิวที่ได้ เนื่องจากมุมนี้ไม่มีอาคารสูงอยู่ในระยะใกล้ ทำให้ไม่โดยบังวิวหรือรู้สึกอึดอัด
ด้านนี้จะเป็นบ่อ Jacuzzi สามารถมานั่งเล่น นั่งผ่อนคลายในสระได้
อีกมุมนึงของสระค่ะ สระเป็นสระไม่กว้างนักแต่ยาว ดังนั้นสามารถว่ายออกกำลังกายได้
อีกมุมของสระว่ายน้ำ
ติดกับสระจะเป็นพื้นที่นั่งเล่นในร่ม มีมุมเก้าอี้และโซฟาหลายตัว สามารถมานั่งอ่านหนังสือ นั่งพักผ่อนตรงนี้ได้
ผังอาคารชั้น 9 เป็นชั้นที่มียูนิตพักอาศัยทั้งหมด บันไดหนีไฟมีทั้งหมด 2 จุด รูปทรงอาคารจะเป็นตัว U
ผังอาคารชั้น 10-21 เป็นชั้นที่มียูนิตพักอาศัยทั้งหมด บันไดหนีไฟมีทั้งหมด 2 จุด รูปทรงอาคารจะเป็นตัว U
ผังอาคารชั้น 22 เป็นชั้นที่มียูนิตพักอาศัยทั้งหมด บันไดหนีไฟมีทั้งหมด 2 จุด รูปทรงอาคารจะเป็นตัว U
ผังอาคารชั้น 23 เป็นชั้นที่มียูนิตพักอาศัยทั้งหมด บันไดหนีไฟมีทั้งหมด 2 จุด รูปทรงอาคารจะเป็นตัว U
โถงด้านหน้าลิฟต์สำหรับชั้นพักอาศัย ด้านหน้าจะมีตัวเลขของแต่ละชั้นให้เห็นได้ชัดเจน
โถงทางเดินภายในจะเป็นพื้นแกรนิตโต้สีขาว ผนังสีขาวทำให้ภายในดูสว่างไม่ทึบ
ผังอาคารชั้น 24 ซึ่งเป็นชั้นบนสุด เป็นชั้นที่มียูนิตพักอาศัยทั้งหมด บันไดหนีไฟมีทั้งหมด 2 จุด รูปทรงอาคารจะเป็นตัว U
แบบห้อง
โครงการมีห้องทั้งหมด 35 แบบ คือ
Room Type : Studio
Room Type : Studio
Room Type : 1 Bedroom
Room Type : 2 Bedroom
Room Type : Duplex
ห้องตัวอย่าง
โครงการ Ideo Mobi พญาไท เป็นคอนโดสร้างเสร็จพร้อมอยู่ วันนี้ทีมงานจะมีห้องพร้อมอยู่ให้ชม 1 ห้องค่ะ
H1-2 : Duplex ขนาด 41.96 ตร.ม. เป็นห้องแบบ 1 ห้องนอนที่มี 2 ชั้น พื้นที่การออกแบบแยกเป็นสัดส่วนชั้น 1 เมื่อเปิดไปจะเป็นส่วนของห้องนั่งเล่นมีพื้นที่กว้างและสว่าง ด้านขวาคือพื้นที่ครัวขนาดไม่ใหญ่นัก แต่ก็เพียงพอสำหรับคนที่ทำอาหารไม่หนักนัก และมีพื้นที่กว้างพอให้วางโต๊ะทานอาหารสำหรับ 2 ที่นั่ง ด้านใต้บันไดก็จะเป็นห้องเก็บของและพื้นที่สำหรับวางเครื่องซักผ้า ส่วนพื้นที่ระเบียงนั้นจะเป็นประตูและหน้าต่างแบบ 2 ชั้นคือมีประตูระเบียง และระเบียงก็จะมีหน้าต่างกระจกจึงทำให้สามารถตากผ้ารับแดด แต่เปิดหน้าต่างไม่กว้างเพื่อรับอากาศโดยไม่ต้องกลัวว่าถ้าฝนตกผ้าจะเปียกค่ะ
ส่วนชั้น 2 นั้นจะเป็นห้องน้ำและห้องนอน โดยห้องน้ำนั้นจะมีประตู 2 บานคือเปิดจากโถงบันไดได้เลยและเปิดได้จากในห้องนอน สำหรับห้องนอนพื้นที่จะกว้างและสว่าง พื้นที่เพียงพอวางเตียง 5-6 ฟุต ตู้เสื้อผ้าและชั้นวางทีวีหรือโต๊ะทำงาน
*สำหรับห้องพร้อมอยู่ที่พาชม เมื่อเปิดเข้าไปจะเป็นห้องนั่งเล่น และย้ายตำแหน่งโต๊ะทานอาหารจากแปลนห้อง ไปไว้ใกล้ห้องครัวค่ะ
ประตูห้องเป็นเป็นประตูโทนสีน้ำตาลอ่อน มือจับเป็นแบบก้านโยก หมายเลขห้องจะอยู่ด้านบนเหนือประตู
ทุกห้องจะมี Digital door lock ให้ ด้านข้างเป็นกริ่งประตู
ซึ่งด้านในจะหน้าตาแบบนี้ค่ะ สามารถเปิดล็อคได้ไม่ยาก อีกทั้งยังมีตัวล็อค 2 ชั้นคือมีอีกตัวด้านล่าง
พื้นสูงกว่าพื้นโถงทางเดินเล็กน้อย ทำให้กันฝุ่นจากโถงทางเดินได้ พื้นในห้องเป็นลามิเนตโทนสีน้ำตาลอ่อนหนา 8 มม.
ภายในห้องจะดูสว่างและกว้าง เพราะผนังส่วนที่ติดกับภายนอกนั้นเป็นหน้าต่างกระจกทั้งหมด พื้นที่แต่ละส่วนดูจัดเป็นสัดส่วนและแบ่งพื้นที่การใช้งาน
หันมาดูตรงประตูห้อง จะเห็นด้านบนประตูเป็นระบบที่สามารถเปิดประตูค้างไว้แบบ 90 องศา และถ้าปล่อยประตูหลุดมือตอนลมพัดประตูก็จะไม่กระแทกเสียงดังเพราะระบบจะค่อยๆปิดให้เบาๆค่ะ
ด้านข้างประตูเป็นห้องเก็บของใต้บันได พื้นห้องเป็นกระเบื่องเซรามิคขนาด 30×30 ซม. ผนังฉาบเรียบทาสีขาว ด้านในแบ่งเป็นพื้นที่สำหรับวางเครื่องซักผ้า ด้านบนถ้าติดตั้งชั้นวางของเพิ่มก็สามารถวางอุปกรณ์ซักผ้า และของใช้ต่างๆได้ ส่วนอีกด้านก็เป็นพื้นที่ห้องเก็บของขนาดกว้างทีเดียว สามารถเก็บของชิ้นใหญ่อย่างกระเป๋าเดินทางได้นะคะ
ถัดไปเป็นพื้นที่ของส่วนนั่งเล่น จะมีพื้นที่เพียงพอสำหรับวางโซฟาและชั้นวางทีวีด้านหลังทีวีจะเป็นบันไดขึ้นไปยังชั้นบน พื้นที่ส่วนนี้สว่างเพราะผนังเป็นกระจกทั้งหมด โดยมีบานเปิด 2 บานเป็นบานกระทุ้ง กรอบเป็นอลูมิเนียมสีดำ กระจกเขียวตัดแสง
โซฟาสำหรับ 2 ที่นั่ง ด้านข้างสามารถวางโต๊ะเล็กได้ หรือถ้าอยากวางโซฟาตัวใหญ่กว่านี้แบบ 3 ที่นั่งก็วางได้สะดวกนะคะ
ด้านข้างที่เป็นโต๊ะเล็กนั้นจะวางขนาดประมาณ 60 ซม.ได้ ดังนั้นอาจพอเหมาะสำหรับวางโต๊ะทำงานเล็กๆ
ด้านตรงข้ามเป็นชั้นวางทีวี ด้านล่างเป็นช่องวางของและตู้เก็บของ ทีวีสามารถวางจอใหญ่กว่านี้ได้
ถัดไปด้านหลังมุมนั่งเล่นจะเป็นครัวและมุมทานอาหาร ที่จะอยู่ติดกับระเบียงห้อง
พื้นที่ตรงครัวจะเป็นกระเบื้องเซรามิคขนาด 20×40 ซม. สีขาวทำให้ทำความสะอาดและดูแลรักษาง่าย
ครัวเป็นครัวแนวยาวขนาดไม่ใหญ่นักแต่มีเคาน์เตอร์พร้อมตู้เก็บของทั้งด้านบนและด้านล่าง
ขนาดเคาน์เตอร์ไม่กว้างนัก เมื่อวางเตาและอ่างล้างจานไปแล้วก็เหลือพื้นที่ให้เตรียมอาหารได้เล็กน้อย ตรงนี้ในห้องจะมีฝาปิดอ่างล้างจานให้ ดังนั้นถ้าตอนเตรียมอาหารไม่ได้ใช้อ่างล้างจานก็ปิดฝาไว้เพื่อให้มีพื้นที่สำหรับเตรียมอาหารได้มากขึ้น เหนือเคาน์เตอร์เป็นกระเบื้องเซรามิคที่ง่ายต่อการทำความสะอาด เหนือเตามีเครื่องดูดควันให้
ด้านบนเป็นชั้นวางของ ชั้นวางไมโครเวฟและตู้เก็บของค่ะ
ด้านล่างเป็นตู้เก็บของและตู้ล่างอ่างล้างจานจะมีถังขยะเล็กๆให้
ด้านข้างเคาน์เตอร์ครัวจะเป็นตำแหน่งวางตู้เย็น สามารถวางตู้เย็นตัวใหญ่แบบนี้ได้ พื้นที่ด้านข้างตู้เย็นจะวางชั้นแนวแคบเพื่อเพิ่มพื้นที่วางของได้นะคะ
ติดกันนั้นเป็นโต๊ะทานอาหารสำหรับ 2 ที่นั่ง จะเห็นว่าพื้นที่ใช้สอยสามารถใช้งานได้สะดวก สามารถเดินผ่านโต๊ะไปยังระเบียงได้ไม่ยาก
ประตูระเบียงเป็นประตูกระจกบานเลื่อนแบบ 3 ตอนทำให้เปิดได้กว้างขึ้น กรอบเป็นอลูมิเนียมสีดำ กระจกเขียวตัดแสง
พื้นเป็นกระเบื้องเซรามิคสีขาว ลดระดับลงไปเล็กน้อย
ระเบียงจะมีหน้าต่างอีกชั้น พร้อมราวกันตกทำให้เมื่อเปิดหน้าต่างที่เป็นหน้าต่างแนวยาวก็ยังมีความปลอดภัย หน้าต่างตรงนี้ทำให้เมื่อตากผ้าช่วงหน้าฝน สามารถเปิดแง้มให้มีอากาศถ่ายเท เมื่อฝนตกก็จะไม่สาดเข้ามาตรงระเบียงมากนัก ดังนั้นผ้าก็จะไม่ตากฝนแต่ก็ยังได้รับแสงจากระเบียงได้เต็มที่
ส่วนถัดไปที่จะพาชมคือชั้น 2 ค่ะ ชั้นบนนี้จะขึ้นบันไดที่อยู่ติดกับทีวี เป็นบันไดปูด้วยไม้ยางประสานสีน้ำตาลอ่อน ราวกันตกเป็นระแนงเหล็กสีเทาเข้ม
บันไดมีราวจับให้ตลอดแนว ชานพักมีทั้งแบบสามเหลี่ยมและสี่เหลี่ยม เนื่องจากชานพักด้านล่างได้แสงธรรมชาติจากหน้าต่างห้อง ทำให้ตอนกลางวันจะไม่ค่อยมืดมากนัก
ด้านบนขึ้นมาจะเป็นโถงบันไดแบบนี้ พื้นเป็นลามิเนตแบบเดียวกับห้องนั่งเล่น มีไฟตรงโถงบันไดและประตูที่เปิดไปยังอีกชั้นได้ เช่นห้องนี้อยู่ชั้น 23 เปิดเข้ามาจะเป็นห้องนั่งเล่น แต่ถ้าขึ้นไปชั้น 24 เข้ามาจะเป็นห้องนอนเลย ก็ถือว่าสะดวกถ้ากลับมาจากทำงานดึกๆ อยากตรงเข้ามาอาบน้ำแล้วนอน ก็ไม่ต้องเดินขึ้นบันไดให้เหนื่อยค่ะ
ประตูห้องน้ำเป็นประตูสีเทาอ่อน มือจับเป็นก้านโยก
พื้นระดับเดียวกับพื้นด้านนอก แต่มีธรณีประตูกั้นขึ้นมาดังนั้นไม่ต้องห่วงเวลาล้างห้องน้ำจะมีน้ำเลอะเทอะออกมาด้านนอก พื้นเป็นกระเบื้องเซรามิคสีเทาขนาด 20×40 ซม.
ภายในแบ่งโซนแห้งและเปียดชัดเจนด้วยฉากก้นอาบน้ำ ผนังตกแต่งด้วยโทนสีเทาและขาวทำให้ห้องดูสะอาดแต่ไม่ดูเรียบจนเกินไป
ประตูห้องน้ำจะมี 2 บานคือเปิดจากโถงบันได ส่วนประตูทางขวามือที่เห็นคือบานที่เปิดได้จากห้องนอนค่ะ
ติดกับประตูเป็นอ่างล้างหน้า ขอบอ่างมีพื้นที่ให้วางของได้เล็กน้อย ด้านล่างเป็นตู้เก็บของ สามารถเก็บอุปกรณ์ทำความสะอาดหรือเครื่องใช้สำรองต่างๆในห้องน้ำ
ติดกันนั้นเป็นโถสุขภัณฑ์ของ Cotto ค่ะ พร้อมสายชำระและที่ใส่ทิชชู่
เหนืออ่างล้างหน้าและโถสุขภัณฑ์เป็นกระจกเงาบานใหญ่
ด้านในสุดเป็นส่วนอาบน้ำซึ่งแยกโซนด้วยฉากกั้นอาบน้ำ
พื้นระดับเดียวกับโซนแห้งแต่มีขอบปูนกั้นขึ้นมาทำให้ไม่ต้องกลัวว่าจะมีน้ำไหลออกมาด้านนอก และยังมีฉากกั้นที่กันน้ำกระเด็นดังนั้นแยกสองโซนได้ชัดเจน
ฝักบัวและที่วางสบู่ด้านใน ตรงนี้อาจติดตั้งชั้นวางของเพิ่มเพื่อจะได้วางของได้มากขึ้น
ติดกับห้องน้ำจะเป็นห้องนอน ประตูเป็นสีเทาอ่อนมือจับเป็นก้านโยก
พื้นเป็นลามิเนตแบบเดียวกับโถงบันได ตัวจบเป็นลามิเนต
ภายในห้องจะดูสว่างและกว้างเพราะผนังที่ติดกับภายนอกเป็นผนังหน้าต่างกระจกทั้งหมด
เตียงสามารถวางขนาด 5-6 ฟุตได้ ถ้าวางเตียง 5 ฟุตแบบนี้ก็มีพื้นที่ด้านข้างเตียงเหลือให้เดินผ่านได้สะดวก
หัวเตียงทั้งสองด้านมีพื้นที่เหลือพอให้วางโต๊ะหัวเตียงและโคมไฟเล็กๆได้
ด้านข้างนี้จะเห็นประตูห้องน้ำทางซ้าย ด้านขวาคือประตูห้อง
ปลายเตียงวางตู้เสื้อผ้าและชั้นวางทีวี ถ้าใครจะวางโต๊ะทำงานแทนทีวีก็สามารถวางโต๊ะตัวใหญ่ได้เลยค่ะ
ตู้เสื้อผ้าหน้าบานเป็นกระจกเงาบานใหญ่ สะดวกเวลาแต่งตัว ด้านในแบ่งเป็นช่องและชั้นเก็บของหลากหลาย
ด้านนี้เป็นผนังกระจกทั้งหมด โดยมีหน้าต่างบานเปิดเป็นบานกระทุ้งสองบานตรงกลาง กรอบเป็นอลูมิเนียมสีดำ กระจกเขียวตัดแสง
ราคา (ม.ค.2561)
เนื่องจากโครงการนี้ได้ SOLD OUT หมดนานแล้ว ดังนั้นห้องที่ปล่อยขายหลังจากนี้จึงจะเป็นลักษณะ Resales หรือปล่อยเช่าค่ะ ซึ่งราคาจะขึ้นอยู่กับสภาพภายในห้อง และ การตกแต่งของเจ้าของห้อง หรือผู้เช่าเดิม หากผู้สนใจสามารถติดต่อเอเจนซี่ หรือเจ้าของห้อง เพื่อตกลงราคาซื้อขายกันต่อไปได้ค่ะ ซึ่งราคาที่เรานำเสนอด้านล่างนั้น เป็นเพียงการเก็บข้อมูลของผู้เขียนเท่านั้นนะคะ
ค่าส่วนกลาง : 48 บาท/ตร.ม./เดือน
สอบถามราคาเพิ่มเติมกรุณาติดต่อสำนักงานนิติบุคคลเพื่อข้อมูลที่อัพเดตที่สุดค่ะ*
บทสรุปโครงการ
ทำเลที่ตั้งโครงการ – ที่ตั้งโครงการ Ideo Mobi พญาไท อยู่บนศรีอยุธยาไม่ไกลจากแยกพญาไทซึ่งเป็นแยกที่เชื่อมระหว่างถนนศรีอยุธยา ถนนพญาไท และถนนจตุรทิศ จากที่ตั้งโครงการสามารถลัดเลาะไปได้หลายเส้นทาง อยู่ใกล้ถนนใหญ่หลายๆสาย มีความอุดมสมบูรณ์โดยรอบทั้งร้านค้า ร้านอาหาร ห้างสรรพสินค้า รวมถึงสถานศึกษาและสถานที่ราชการก็เดินทางไปได้ไม่ยาก
ความอุดมสมบูรณ์ – ที่ตั้งโครงการอยู่ในย่านพักอาศัย อาคารพาณิชย์, อาคารสำนักงานและสถานที่ราชการ ดังนั้นสองข้างทางจึงมีร้านค้า ร้านอาหารและแหล่งขายอาหาร ฝั่งตรงข้ามเยื้องๆโครงการไปไม่ไกลจะมี CP Tower เป็นอาคารสำนักงานใกล้ BTS พญาไทซึ่งมีร้านค้าและร้านอาหารมากมาย อีกทั้งในตัวโครงการเองนั้นยังมี MaxValu ซึ่งเป็นมินิมาร์ทที่มีอาหารปรุงสุก, อาหารแช่แข็ง,อาหารสด ผัก ผลไม้และของใช้ต่างๆมากมายให้เลือกจับจ่าย อาคารติดกับโครงการก็มีร้านอาหาร, คาเฟ่และร้าน 7/11
โดยถ้าไปยังถนนพระราม 1 มีห้างสรรพสินค้าทั้ง เกษรพลาซ่า, อัมรินทร์พลาซ่า, บิ๊กซี ราชดำริ, Central World, Siam Paragon, Siam Center, Siam Discovery, Siam Square One และ MBK Center เรียกได้ว่ามีห้างมากมาย เลือกเดินไม่ถูกกันเลยทีเดียว และตรงสยามก็จะมีร้านค้าเล็กๆ ที่มีทั้งแบรนด์ไทย และแบรนด์ต่างชาติ ร้านอาหารและคาเฟ่ หรือถ้าจะตรงไปอีกหน่อยสำหรับเส้นสุขุมวิทมีให้เลือกทั้ง Central Embassy, Robinson สุขุมวิทและ Terminal 21, Korean Town อยู่ไม่ไกล มีร้านอาหารเกาหลีให้เลือกทั้งแบบปิ้งย่าง ร้านอาหารคาว อาหารหวาน ร้านขนมปังหรือร้านขายพวกเครื่องปรุงอาหารแห้งก็มีให้ครบ
อีกทั้งโดยรอบทำเลนี้จะมีทั้งสวนสาธารณะที่อยู่ในระยะที่เดินทางไปได้ไม่ยาก โรงเรียนต่างๆอย่างรร.สันติราษฎร์, รร.พญาไท, รร.วัฒนาวิทยาลัย, โรงเรียนเซนต์ดอมินิก, โรงเรียนสาธิต มศว หรือจะเป็นมหาลัยทั้งมหาลัยศรีนครินทรวิโรฒ (มศว) และถ้าเลยไปทางเขตปทุมวันก็จะมี จุฬาและเตรียมอุดม ส่วนอาคารสำนักงานและสถานีที่ราชการก็มีทั้งกระทรวงต่างๆ อาคารสำนักงานป.ป.ส., สน.พญาไท, กรมกิจการเด็กและเยาวชน สำหรับโรงพยาบาลก็อยู่ไม่ไกลเลยค่ะทั้งรพ.รามา, รพ.ราชวิถี, รพ.โรคไต, รพ.พระมงกุฎเกล้า
การเดินทางด้วยรถยนต์ส่วนตัว – สำหรับคนขับรถ ถือว่าสะดวกมากทีเดียว เพราะที่ตั้งโครงการอยู่บนถนนศรีอยุธยา ซึ่งเป็นถนนที่เชื่อมกับถนนหลายสายและไปยังถนนหลักได้ไม่ยากทั้งพญาไท พระราม1, ราชวิถี, ดินแดง, เพชรบุรี สำหรับถนนศรีอยุธยาเป็นเส้นที่มุ่งตรงไปยังสามเสน วิ่งเชื่อมถนนพระราม 5 และพระราม 6 ได้ดังนั้นจึงเดินทางไปยังเส้นอื่นๆได้อีกหลากหลาย โดยตรงแยกศรีอยุธยาจะเชื่อมกับถนนพระราม 6 และใกล้กับจุดขึ้น-ลงทางด่วนศรีรัช
หรือถ้ามุ่งหน้าไปยังแยกพญาไทก็จะเป็นจุดที่เชื่อมกับถนนพญาไทและถนนจตุรทิศ สำหรับถนนจุตรทิศสามารถมุ่งหน้าตรงไปเชื่อมถนนพระราม 9 และเพชรบุรีตัดใหม่ ส่วนถนนพญาไทเป็นถนนเส้นยาวที่ตรงไปเชื่อมกับถนนราชวิถีและถนนพหลโยธินที่อนุสาวรีย์ชัยสมรภูมิ ซึ่งเส้นราชวิถีตรงข้ามแม่น้ำเจ้าพระยาไปยังฝั่งธน ตรงเข้าถนนจรัญสนิทวงศ์ มุ่งหน้าไปถนนบรมราชชนนีได้ ส่วนถนนพหลโยธินก็เป็นถนนหลักเส้นยาวที่ตรงไปจตุจักร, ดอนเมือง, ไปรังสิตและตรงไปยังจังหวัดพระนครศรีอยุธยาได้ค่ะ
และถนนพญาไทนั้นยังตรงเข้าเชื่อมกับถนนเพชรบุรีซึ่งเป็นถนนที่ตรงไปยังถนนพัฒนาการ เข้าสวนหลวงวิ่งเชื่อมกับถนนศรีนครินทร์ เมื่อตรงจากถนนพญาไทก็จะไปยังถนนพระราม 1 ซึ่งเป็นถนนตรงไปยังเขตพระนครได้ และตรงไปยังถนนสุขุมวิทซึ่งเส้นนี้เป็นย่านธุรกิจ ที่มีทั้งอาคารสำนักงานใหญ่ๆ ร้านค้าร้านอาหารดังๆ ห้างสรรพสินค้าใหญ่หลายแห่ง ทำให้เส้นนี้การจราจรจึงคึกคักพอสมควร และช่วงเวลาเร่งด่วนรถจะติดดังนั้นจะเดินทางก็เช็คช่วงเวลากันดีๆนะคะว่าช่วงไหนควรเลี่ยงเส้นไหน หรือควรลัดเลาะไปทางไหน
การเดินทางด้วยรถสาธารณะ – ถือว่าสะดวกมากค่ะ หน้าโครงการมีรถประจำทางวิ่งผ่านหลายสาย แท็กซี่ก็เรียกได้ไม่ยาก ในปัจจุบันรถไฟฟ้าที่ใกล้ที่สุดคือรถไฟฟ้าสายสีเขียว BTS สถานีพญาไท อยู่ในระยะที่เดินไปได้ อีกทั้งสถานีนี้ก็เป็นจุดเชื่อมต่อกับ Airport link พญาไท ทำให้เดินทางไปยังสนามบินสุวรรณภูมิและเส้นลาดกระบังได้สะดวก
อีกทั้งที่ตั้งโครงการอยู่ไม่ไกลจากคลองแสนแสบ จึงสามารถใช้บริการเรือโดยสารได้ค่ะ สำหรับท่าเรือที่ใกล้และสะดวกต่อการเดินทางคือท่าเรือสะพานหัวช้าง ห่างจากโครงการประมาณ 2.3 กม.
การออกแบบโครงการ – สำหรับการออกแบบโครงการ มี 1 อาคาร ชั้นล่างมียูนิตร้านค้าขนาดใหญ่มี่เป็นร้าน MaxValu ซึ่งเป็นร้านมินิมาร์ทที่มีทั้งอาคารสด อาหารปรุงสุกและข้าวของเครื่องใช้ ทำให้สะดวกต่อผู้พักอาศัย ถนนเป็นการเดินรถทางเดียวมีที่จอดรถสำหรับแขกโดยรอบอาคาร ส่วนลูกบ้านจะขึ้นไปจอดในอาคาร ตัวอาคารโดยรอบไม่มีตึกสูงอยู่ใกล้บังวิว แต่ละห้องจึงได้วิวตัวเมืองกรุงเทพ
การออกแบบห้องแบ่งเป็นสัดส่วนเหมาะสำหรับพักอาศัย 1-3 คน เพราะส่วนใหญ่ย่านนั้นเป็นย่านสถานศึกษา และย่านที่ทำงานออฟฟิศและสถานที่ราชการ จึงมีขนาดห้องตั้งแต่ Studio – 2ห้องนอน และแบบ Duplex เหมาะสำหรับนักศึกษา, ผู้ที่เพิ่งเริ่มทำงาน หรือเริ่มสร้างครอบครัวเป็นครอบครัวขนาดเล็ก
วัสดุ – พื้นห้องที่ให้เป็นลามิเนตหนา 8 มม. ส่วนกรอบประตูหน้าต่างอลูมิเนียมเคลือบสีดำ กระจกสีเขียวตัดแสง พื้นห้องน้ำเป็นกระเบื้องขนาด 20×60 ซม. พื้นระเบียงเป็นกระเบื้องแกรนิตโต้ขนาด 30×60 สำหรับชุดอุปกรณ์ในห้องน้ำมีให้ครบและโถสุขภัณฑ์ ส่วนครัวก็มีเคาน์เตอร์ครัวให้สามารถเก็บของได้พร้อมอ่างล้างจาน, เตาไฟฟ้าและเครื่องดูดควัน มีห้องเก็บของไว้วางเครื่องซักผ้าและของใช้ต่างๆได้
สิ่งอำนวยความสะดวก – มีให้ครบครันโดยจะมี ห้องสมุด, ฟิตเนส, สระว่ายน้ำพร้อมพื้นที่นั่งเล่นริมสระ, พื้นที่นั่งเล่นภายในอาคาร และ Roof Garden , ลิฟต์โดยสาร 2 ตัว, รปภ.ประจำอยู่ตลอด 24 ชั่วโมง และ CCTV ภายในโครงการ
คะแนน
| ทำเลที่ตั้งโครงการ | 8.0 | อยู่บนถนนศรีอยุธยา เป็นย่านพักอาศัยไม่ไกลจากสถานศึกษา, โรงพยาบาล, สำนักงานและสถานที่ราชการ ไปยังร้านอาหาร ห้างสรรพสินค้าไม่ยาก ใกล้รถไฟฟ้า BTS และ Airport link |
| การเดินทาง ใช้รถ | 8.0 | เดินทางสะดวกเชื่อมต่อออกไปได้หลายเส้นทางทั้งพญาไท, พระราม1, ราชวิถี, ดินแดง, เพชรบุรี และไม่ไกลจากทางด่วน |
| การเดินทาง ไม่ใช้รถ | 7.75 | หน้าโครงการมีรถโดยสารประจำทางวิ่งผ่านเป็นระยะ เรียก TAXI ได้ไม่ยาก วินมอเตอร์ไซค์ก็อยู่ไม่ไกล และเดินไปยังสถานีรถไฟฟ้าได้ง่าย |
| ห้องและวัสดุ | 7.5 | ห้องพร้อมอยู่ ได้เคาน์เตอร์ครัวพร้อมอ่างล้างจาน แปลนห้องแบ่งได้เป็นสัดส่วนลงตัว ห้องสว่างและโปร่ง |
| สิ่งอำนวยความสะดวก | 7.5 | ห้องสมุด, ฟิตเนส, สระว่ายน้ำพร้อมพื้นที่นั่งเล่นริมสระ, พื้นที่นั่งเล่น และ Roof Garden และยูนิตร้านค้าที่ชั้น 1 |
| ความคุ้มค่ากับราคา | 7.5 | ราคาResale ปัจจุบันราคาเริ่มต้นเฉลี่ย 135,000-150,000 บาท/ตร.ม.ได้ทำเลใกล้รถไฟฟ้า, ไม่ไกลโรงเรียน, ห้างสรรพสินค้า สถานที่ราชการและตลาด |
| คะแนนรวมเฉลี่ย | 7.70 | ดี |
สนใจติดต่อรายละเอียดเพิ่มเติมได้ที่
Tel : 02-317 1155, 02-317 1671-5
Website : https://www.ananda.co.th/condo/ideomobi/phayathai/
หากเพื่อนๆเห็นว่ารีวิวนี้มีประโยชน์ ช่วยกด Like เพื่อเป็นกำลังใจให้ทีมงาน ขอบคุณค่ะ
และมีความคิดเห็นหรือข้อมูลเพิ่มเติมเกี่ยวกับตัวโครงการ สามารถ Comment ได้ที่ด้านล่างของรีวิวค่ะ