logo

EP.1039 รีวิว Walden อโศก คอนโด Low Rise ระดับ Luxury ใกล้ BTS อโศก และ MRT สุขุมวิท จาก Habitat Group

โพสโดย : pure / วันที่ : 22 March 2018

EP.1039 รีวิว Walden อโศก คอนโด Low Rise ระดับ Luxury ใกล้ BTS อโศก และ MRT สุขุมวิท จาก Habitat Group

Walden-ModelRE-13

สวัสดีผู้อ่านชาว HOMENAYOO ทุกคนค่ะ วันนี้ทีมงานจะขอพาชมโครงการ Walden อโศก คอนโด Low-Rise ระดับ Luxury จาก Habitat Group บนทำเลศักยภาพใจกลางเมือง ในซอยสุขุมวิท 23 เดินทางสะดวก ใกล้ BTS อโศก และ MRT สุขุมวิท ในระยะ 700 เมตร

ความอุดมสมบูรณ์โดยรอบสูง มีร้านอาหาร, ร้านสะดวกซื้อในระยะเดินถึง และใกล้ห้างใหญ่และแหล่งความสะดวกอื่นๆ เช่น Terminal 21, Villa Market, EmQuatier, Emporium เป็นต้น

วาลเด้น อโศก เป็นโครงการคอนโด Low Rise สูง 8 ชั้น เป็นส่วนตัวเพียง 83 ยูนิต บนพื้นที่โครงการ 0 – 2 – 20 ไร่ มีห้องให้เลือกทั้งหมด 7 แบบ คือ 1 Bedroom, 1 Bedroom Plus, 1 Bedroom Simplex, 1 Bedroom Plus Garden, 1 Bedroom Loft, 1 Bedroom Plus Loft และ 2 Bedroom Loft ขนาดพื้นที่ใช้สอย 31.10 – 65.43 ตร.ม. โครงการคาดว่าจะแล้วเสร็จ ปี 2563

สิ่งอำนวยความสะดวกภายในโครงการสไตล์ญี่ปุ่นครบครัน ได้แก่ Lobby, Mail Room, ห้องสมุด, ฟิตเนส, สระว่ายน้ำ แยกสระเด็ก – สระผู้ใหญ่และพื้นที่พักผ่อนข้างสระ, Sunken Jacuzzi, Hot and Cold Spa, Vichy Corner, Sky Pavilion, Sky Garden, Dining Space & BBQ, Relaxation Lawn, Kid’s Zone, Multi-Purposed Area, Playground, Sunken Party Space, ที่จอดรถ ทั้งหมด 40 คัน หรือคิดเป็น 48% ของพื้นที่จอดรถทั้งหมด, Access Card Control, กล้องวงจรปิด และระบบรักษาความปลอดภัยตลอด 24 ชม.ราคาเริ่มต้น 1 ห้องนอน 5.9 ล้านบาท 2 ห้องนอน 7.79 ล้านบาท (มี.ค. 2561)

Walden Asoke

ลงทะเบียนรับสิทธิพิเศษ คลิก : https://goo.gl/gnqXCd



ชื่อโครงการ วาลเด้น อโศก Walden Asoke จาก Habitat Group
เจ้าของโครงการ ฮาบิแทท กรุ๊ป Habitat Group
เนื้อที่ทั้งหมด 0-2-20 ไร่
จำนวนตึก 1 อาคาร
จำนวนชั้น 8 ชั้น (จอดรถใต้ดิน 2 ชั้น)
จำนวนห้อง 83 ยูนิต
ลักษณะห้องและขนาดห้อง
  • 1 Bedroom (A1-A6) : 31.10-35.31 ตร.ม.
  • 1 Bedroom Plus (B1-B6) : 37.72-42.58 ตร.ม.
  • 1 Bedroom Simplex (C1-C2) : 31.24-37.11 ตร.ม.
  • 1 Bedroom Plus Garden (G1-G2) : 42.12-46.80 ตร.ม.
  • 1 Bedroom Loft (D5) : 58.52 ตร.ม.
  • 1 Bedroom Plus Loft (D1-D4, D6-D7) : 54.14-64.11 ตร.ม.
  • 2 Bedroom Loft (D8-D9) : 64.61-65.43 ตร.ม.
ที่จอดรถทั้งหมด ที่จอดรถ ทั้งหมด 40 คัน หรือคิดเป็น 48% ของพื้นที่จอดรถทั้งหมด
จำนวนลิฟต์ 2 ตัว
โซน สุขุมวิท
ขนส่งสาธารณะ
  • รถไฟฟ้า BTS อโศก 700 เมตร
  • รถไฟฟ้า MRT สุขุมวิท 700 เมตร
รถโดยสารที่ผ่าน รถเมล์ สาย 2, 25, 38, 40, 48, 98, 501, 508 และ 511
ที่ตั้ง ซอยสุขุมวิท 23 แขวงคลองเตยเหนือ เขตวัฒนา กทม. 10110
กำหนดการ เริ่มก่อสร้าง ไตรมาส 4/2561
ปีที่สร้างเสร็จ คาดว่าแล้วเสร็จ ไตรมาส 3/2563
ราคา 5.9 – 11.2 ล้านบาท
ราคาเฉลี่ยต่อ ตร.ม เฉลี่ยประมาณ 190,000 บาท/ตร.ม.
ค่าส่วนกลางและกองทุน
  • ค่าส่วนกลาง 70 บาท/ตร.ม./เดือน
  • เงินกองทุนส่วนกลาง 700 บาท/ตร.ม.
สถานที่สำคัญใกล้เคียง
  • 7-11 240 ม.
  • Terminal 21 850 ม.
  • วิลล่า มาร์เก็ต 1.3 กม.
  • เอ็มควอเทียร์ 1.5 กม.
  • Emsphere 1.7 กม.
  • เอ็มโพเรียม 1.7 กม.
  • Rain Hill 2.1 กม.
  • Lotus พระราม 4 3.1 กม.
  • K Village 3.2 กม.
  • Big C พระราม 4 3.3 กม.
  • Fortune Town 3.8 กม.
  • Gateway เอกมัย 4.9 กม.
  • Central พระราม 9 5.5 กม.
  • รพ.สมิติเวชสุขุมวิท 2.8 กม.
  • รพ.บำรุงราษฏร์ 3 กม.
  • รพ.สุขุมวิท 3.9 กม.
  • รพ.พระราม 9 4.7 กม.
  • มหาวิทยาลัยศรีนครินทรวิโรฒ ประสานมิตร 700 ม.
  • รร.สายน้ำผึ้ง 1.7 กม.
  • รร.วัฒนาวิทยาลัย 2.2 กม.
  • Bangkok Prep International School 2.7 กม.
  • Wells International School 2.7 กม.
  • ปณ.ประสานมิตร 400 ม.
  • สวนเบญจสิริ 1.9 กม.
  • ศูนย์ประชุมแห่งชาติสิริกิติ์ 3.1 กม.
  • สน.ทองหล่อ 4.1 กม.
สิ่งอำนวยความสะดวก
  • Automated Car Parking System
  • Double-Volume Lobby and Reception
  • Feature Library
  • Fitness and Changing Room
  • Swimming Pool with Shallow Water Lounge Area
  • Sunken Jacuzzi
  • Kid’s Pool
  • Hot and Cold Spa
  • Vichy Corner
  • Sky Pavilion
  • Sky Garden
  • Dining Space & BBQ
  • Relaxation Lawn
  • Sun Deck
  • Kid’s Zone
  • Multi-Purposed Area
  • Playground
  • Sunken Party Space
จุดเด่นของโครงการ Walden อโศก คอนโด Low-Rise ระดับ Luxury เป็นส่วนตัวเพียง 83 ยูนิต บนทำเลศักยภาพใจกลางเมือง ในซอยสุขุมวิท 23 เดินทางสะดวก ใกล้ BTS อโศก และ MRT สุขุมวิท ราคาเริ่มต้น 5.9-11 ล้านบาท

คอนโด BTS อโศก & MRT สุขุมวิท / คอนโดติดรถไฟฟ้า MRT สุขุมวิท & BTS สุขุมวิท

คอนโดโดยรอบ BTS อโศก & MRT สุขุมวิท
Sukhumvit Interchange – Asoke Interchange

ถนนอโศกมนตรี (ถนนสุขุมวิท 21)

ซอยสุขุมวิท 19 (ซอยวัฒนา)

ซอยสุขุมวิท 14 (ซอยแพรกสามัคคี)

ซอยสุขุมวิท 12 (ซอยสุขใจ)

ซอยสุขุมวิท 10 (ซอยแสนสำราญ)

ซอยสุขุมวิท 23 (ซอยประสานมิตร)

ซอยสุขุมวิท 27 (ซอยประภัทรศร)

ซอยสุขุมวิท 16 (ซอยสามมิตร)

ซอยสุขุมวิท 18 (ซอยพิชิต)

ซอยสุขุมวิท 22 (ซอยสายน้ำทิพย์)


ที่ตั้งโครงการ

ซอยสุขุมวิท 23 แขวงคลองเตยเหนือ เขตวัฒนา กทม. 10110

พิกัด : 13.738702, 100.565218

Map

แผนที่จากทางโครงการ แสดงที่ตั้งโครงการในซอยสุขุมวิท 23 และสถานที่สำคัญโดยรอบ

Master

โครงการ Walden Asoke ตั้งอยู่ในซอยสุขุมวิท 23 เข้ามาจากปากซอยฝั่งถนนสุขุมวิทประมาณ 600 เมตร สภาพแวดล้อมโดยรอบจะมีทั้งที่อยู่อาศัยและความอุดมสมบูรณ์หลากหลายตลอดทั้งซอย บรรยากาศโดยรวมค่อนข้างคึกคักตั้งแต่ต้นซอยเลย เพราะมีร้านค้าร้านอาหารหลากหลาย ทั้งยังอยู่ใกล้อาคารสำนักงานบนเส้นอโศกมากมาย และยังเป็นซอยที่เชื่อมกับซอยประสานมิตร

แต่เมื่อเข้ามาในซอยทางฝั่งโครงการบรรยากาศจะสงบกว่าช่วงต้นซอยพอสมควร รอบๆจะมีที่อยู่อาศัยหลากหลายมากขึ้น ทั้งบ้านเดี่ยว, อพาร์ทเม้นท์และคอนโด โดยผู้อยู่อาศัยในซอยส่วนใหญ่จะเป็นชาวต่างชาติ ถ้าเราเข้าไปลองเดินๆดูจะเจอคนญี่ปุ่นเยอะพอสมควรค่ะ

การเดินทางด้วยรถสาธารณะ สำหรับโครงการนี้จะอยู่ไม่ไกลจาก BTS อโศก และ MRT สุขุมวิท โดยจะอยู่ห่างจากโครงการ ประมาณ 700 เมตร ถ้าขยันเดินหน่อยก็สามารถเดินจากตัวโครงการได้ ในซอยมีฟุตบาทตลอดทางช่วยให้เดินได้ปลอดภัยค่ะ

แต่ถ้าวันไหนแดดร้อนไม่อยากเดิน จากตัวโครงการสามารถเรียกพี่วินหรือ Taxi ที่ผ่านไปมาได้ มีวิ่งผ่านในซอยค่อนข้างถี่ หรือจะเดินต่อมาในซอยอีกหน่อย ประมาณ 160 เมตร ก็จะมีคิวพี่วินให้ใช้บริการค่ะ

ส่วนป้ายรถเมล์จะอยู่บนถนนสุขุมวิท เดินจากหน้าปากซอยมาทางอโศก ประมาณ 75 เมตร จะมีรถเมล์ สาย 2, 25, 38, 40, 48, 98, 501, 508 และ 511 วิ่งผ่านค่ะ

ทางลัด1

การเดินทางด้วยรถยนต์ส่วนตัว โครงการนี้นอกจากใช้ถนนสุขุมวิทเส้นหลัก ที่สามารถเชื่อมไปยังถนนสายหลักอื่นๆได้อีก ทั้งถนนรัชดาภิเษก, ถนนพระราม 1, ถนนอ่อนนุช, ถนนพระราม 4 ยาวไปถึงถนนบางนา-ตราด, อุดมสุข และอื่นๆอีกหลายเส้นทาง และยังมีเส้นทางให้ลัดเลาะเลี่ยงรถติดได้อีกหลากหลาย เช่น ตัวซอย 23 จะเชื่อมกับซอยสุขุมวิท 21 ที่เชื่อมออกถนนอโศกฝั่งมุ่งหน้ารัชดาภิเษก หรือจะใช้ซอยพร้อมจิตร และซอยสวัสดีที่สามารถใช้เชื่อมไปซอยย่อยอื่นๆ เช่น ซอยสุขุมวิท 39, ซอยสุขุมวิท 49 ลัดไปออกสุขุมวิทเลี่ยงรถติดได้นิดหน่อย และซอยสุขุมวิท 49/11 เชื่อมไปออกทองหล่อและซอยสุขุมวิท 38/1 ไปออกถนนเพชรบุรีได้

ส่วนการจราจรบนถนนสุขุมวิท อโศก ทองหล่อ นั้นก็เป็นที่รู้กันดีอยู่แล้วว่าหนาแน่นมากเนื่องจากเป็นจุดเชื่อมให้คนใช้เดินทางไป-มา ระหว่างถนนสุขุมวิท ถนนพระรามสี่ และถนนเพชรบุรี เพราะฉะนั้นก่อนจะเดินทางก็ต้องวางแผนหาทางหนีทีไล่กันดีๆ ซึ่งรอบๆโครงการก็จะมีทางด่วนให้เลือกใช้หลายจุดตามความสะดวกค่ะ

ด่วน

ถึงแม้จะเป็นทำเลกลางเมืองที่การเดินทางสะดวกทั้งรถยนต์ส่วนตัวและรถสาธารณะ แต่ก็ใช่ว่าจะไม่มีข้อเสียเลยนะ จากที่บอกข้างต้นว่าการจราจรแถวนี้ค่อนข้างหนาแน่น ทำให้บางทีที่อยากจะออกนอกเมือง ก็ต้องหาทางเลี่ยงรถติดอย่างการใช้ทางด่วนบ้าง ซึ่งจุดขึ้นทางด่วนรอบๆก็มีให้เลือกมากมายค่ะ แต่ข้อเสียคือเข้าถึงค่อนข้างยากหน่อย ด้วยระยะทางอาจจะดูไม่ไกลเท่าไหร่ แต่ถ้าต้องฝ่ารถติดไปขึ้นนี่ก็เสียเวลาพอสมควรเหมือนกันค่ะ

สำหรับจุดขึ้นทางด่วนที่ใกล้โครงการที่สุดจะเป็นจุดขึ้นทางด่วนเฉลิมมหานครฝั่งขาออก ขึ้นไปดอนเมือง รังสิตได้ค่ะ โดยระยะทางจากโครงการถึงจุดขึ้นทางด่วนนี้จะอยู่ที่ประมาณ 2.9 กม. ใช้เวลาเดินทางในช่วงเวลาปกติ ประมาณ 10 -25 นาที

ด่วน1

มีจุดขึ้นทางด่วนฝั่งขึ้นไปทางทิศเหนือแล้วก็ต้องมีเส้นที่ลงทิศใต้บ้าง โดยเส้นทางนี้จะสามารถไปบางนา, พระราม 3 ได้ มีระยะทางจากโครงการถึงจุดขึ้นทางด่วนประมาณ 4.7 กม. ใช้เวลาเดินทางประมาณ 10 – 25 นาที

ด่วน2

นอกจากนั้นก็ยังมีทางด่วนอีกเส้นที่อยู่ไม่ไกลจากโครงการนัก คือทางด่วนรามอินทรา – อาจณรงค์ โดยจุดขึ้นทางด่วนฝั่งมุ่งหน้าไปทางทิศใต้จะสามารถไปเชื่อมกับทางด่วนเฉลิมมหานคร มุ่งหน้าไปบางนาได้ โดยจุดขึ้นทางด่วนมีระยะห่างจากโครงการประมาณ 6 กม. ใช้เวลาเดินทางประมาณ 10 – 20 นาที

ด่วน3

และจุดขึ้นทางด่วนรามอินทรา – อาจณรงค์ ฝั่งมุ่งหน้าขึ้นทิศเหนือที่สามารถไปเชื่อมกับทางด่วนกาญจนาภิเษกวิ่งยาวไปออกปทุมธานีได้ โดยจุดขึ้นทางด่วนนี้จะมีระยะห่างจากโครงการประมาณ 6.4 กม. ใช้เวลาเดินทางประมาณ 10 – 25 นาที

**เวลาที่ใช้ในการเดินทางขึ้นทางด่วนข้างต้นเป็นเพียงการกะเวลาคร่าวๆ ในช่วงเวลาที่รถไม่ติดเพื่อให้ได้ค่าเฉลี่ยเวลาเดินทางตามระยะทางจริง แต่ในเวลาปกติรถอาจจะหนาแน่นกว่านี้ และต้องบวกเวลาเพิ่มไปอีกซึ่งก็ต้องวางแผนกะเวลาเดินทางกันให้ดีๆนะคะ

อุดม

ความอุดมสมบูรณ์ ของโครงการนี้มีเพียงพอแน่นอน เฉพาะในซอยเองก็มีร้านให้เลือกมากมาย ทั้งร้านอาหารและบริการต่างๆ แค่ในระยะเดินใกล้ๆโครงการก็มีร้านอาหารให้เลือกหลากหลาย แค่ในระยะเดินจากโครงการ 250 เมตร ก็จะมี ทั้งร้านอาหารญี่ปุ่น, ร้านกาแฟ, ร้านก๋วยเตี๋ยว, ร้านเบเกอรี่, พิซซ่า/แฮมเบอร์เกอร์ และคลับ ส่วนร้านสะดวกซื้อ 7-11 ที่ใกล้โครงการที่สุดจะอยู่ในซอยสวัสดี ระยะเดินประมาณ 240 เมตร นอกจากร้านอาหารแล้วยังมีร้านขายของตกแต่งบ้านนำเข้าที่มีสไตล์หลายร้านอีกด้วยค่ะ

ส่วนความอุดมสมบูรณ์ในวงกว้างของโครงการนี้ก็อุดมสมบูรณ์สมกับทำเลกลางเมือง ความอุดมสมบูรณ์โดยรอบจึงรายล้อมไปด้วยห้างใหญ่ ห้างหรูหลายแห่ง ที่ใกล้โครงการจนเดินมาได้เลยคือ Teminal 21 แหล่ง Shop ที่มีทั้งร้านในส่วนพลาซ่า และแบรนด์ต่างๆ แม้แต่ร้านอาหารก็มีตั้งแต่ราคาถูกจนถึงร้านขึ้นห้าง โดยเฉพาะ Food Court ของที่นี่ก็ขึ้นชื่อเรื่องความถูกและอร่อย

Around 33-SRRE-68 Around 33-SRRE-70

ขยับออกไปหน่อยก็เป็นทางฝั่งทองหล่อ พร้อมพงษ์ มีห้างใหญ่และหรูในเครือ Tha Mall คือ ห้างตระกูล Em ทั้งหลาย (Emquatier, Emporium และ Emsphere ในอนาคต) หรือมาทางฝั่งสยามก็ไม่ไกล นั่งรถไฟฟ้า 3 – 4 สถานีก็ถึงแล้ว มี Central World, Siam Discovery, Paragon, Siam Square เป็นต้น

ส่วนสถานศึกษาใกล้ๆโครงการก็มีหลายแห่ง โดยเฉพาะโรงเรียนนานาชาติ เช่น วิทยาลัยนานาชาติ The Regent’s (RIC), ร.ร.บางกอกทวิวิทย์, ร.ร.นานาชาติ NIS, ร.ร.นานาชาติ Anglo Campus 31, ร.ร.นานาชาติ Australian-ISB, ร.ร.นานาชาติ MISB, ร.ร.นานาชาติ ASB, รร. เซนต์ดอมินิก, รร.วัฒนาวิทยาลัย, ร.ร.สาธิต มศว.ประสานมิตร และ มศว.ประสานมิตร

และโรงพยาบาลชั้นนำใกล้โครงการจะมี ทั้ง ร.พ.พระราม 9, ร.พ.ปิยะเวท, รพ.กรุงเทพ, รพ.บำรุงราษฎร์, รพ.สมิติเวช สุขุมวิท, รพ.คามิลเลียน, รพ.จักษุ รัตนิน และ รพ.ผิวหนังอโศก อยู่ในระยะที่สามารถไปถึงได้รวดเร็วค่ะ

การเดินทาง

R

การเดินทางในวันนี้ เราจะเริ่มต้นกันบนถนนสุขุมวิทฝั่งมุ่งหน้าพระโขนง บริเวณแยกอโศกมนตรี ขับตรงผ่านแยก เมื่อถึงปั๊ม Caltex ให้ชิดซ้าย เลี้ยวเข้าซอยสุขุมวิท 23 ขับตรงเข้าซอยประมาณ 300 เมตร แล้วเลี้ยวขวา ขับตรงต่อไปเรื่อยๆจนสุดทางแล้วเลี้ยวซ็าย ขับตรงต่อไปประมาณ​ 60 เมตร จะเห็นที่ตั้งโครงการทางซ้ายมือ เมื่อถึงที่ตั้งโครงการแล้วก็สามารถนำรถเข้าไปจอดด้านในได้เลย แล้วจะมีเจ้าหน้าที่ขับรถกอล์ฟไปส่งที่ Sale Office ที่อยู่ถัดไปอีกประมาณ 50 เมตรค่ะ

สรุปการเดินทาง ถนนสุขุมวิท > แยกอโศกมนตรี > ซอยสุขุมวิท 23 > โครงการ Walden อโศก

Walden-RRE-1

เริ่มการเดินทางกันบนถนนสุขุมวิท ฝั่งุม่งหน้าพระโขนง ช่อวงก่อนถึงแยกอโศก เราจะขับผ่านห้างใหญ่ที่ใกล้โครงการที่สุด คือ Terminal 21 ทางซ้ายมือ

Walden-RRE-2

ขับตรงผ่านแยกอโศกมนตรี จากแยกนี้เราสามารถเลี้ยวซ้ายเข้าถนนอโศกมนตรี หรือเลี้ยวขวาเข้าถนนรัชดาภิเษกได้

Walden-RRE-4

ขับตรงผ่านแยกมาแล้วให้สังเกตปั๊ม Shell ทางซ้ายมือ ให้ขับชิดซ้าย

Walden-RRE-5

ถึงซอยสุขุมวิท 23 เราเลี้ยวเข้าซอยเลยค่ะ หน้าปากซอยจะเป็น Jasmin City ด้านในมีร้านอาหารแบรนด์ต่างๆ หลายร้าน

Walden-RRE-6

เข้าซอยมาแล้วเราจะผ่านทางเข้าอาคาร Jusmin City ทางขวามือ ถ้าจะแวะทานอาหารก็สามารถเข้าไปจอดก่อนได้

Walden-RRE-7

ภายในซอยจะมีคิวพี่วินให้ใช้บริการ สามารถนั่งเข้าไปยังโครงการได้

Walden-RRE-8

ขับต่อมาอีกหน่อย ผ่านไปรษณีย์ ประสานมิตร ทางขวามือ

Walden-RRE-9

เมื่อเราถึงทางเลี้ยวแรก ให้เราเลี้ยวขวาเข้าซอยต่อไปเลยค่ะ

Walden-RRE-10

ขับตามทางมาเรื่อยๆจนสุดทางเลี้ยวซ้าย จะเห็น NARZ ที่ภายในจะมีร้านอาหารและคลับ

Walden-RRE-11

ขับตรงต่อมาประมาณ 60 เมตร จะถึงที่ตั้งโครงการ Walden อโศก ทางซ้ายมือค่ะ

Walden-Srre-24Walden-Srre-1

เมื่อเราขับรถเข้าไปจอดภายในที่ดินโครงการแล้ว เจ้าหน้าที่ก็จะพาเรามาส่งที่สำนักงานขายอีกที ซึ่งจะอยู่ถัดจากที่ตั้งโครงการประมาณ 50 เมตร (สำหรับการเดินทางมาสำนักงานขายไม่แนะนำให้ขับรถมาเองนะคะ เพราะตัวสำนักงานขายจะอยู่ติดถนนในซอย ไม่มีที่จอดรถด้านหน้าค่ะ)

Walden-Srre-2

เข้ามาดูภายในสำนักงานขายจะมีขนาดไม่ใหญ่มาก แต่ตกแต่งได้อบอุ่นด้วยโทนไม้และหินอ่อน

Walden-Srre-3

พื้นที่ภายในจะมีเคาน์เตอร์ของเจ้าหน้าที่, พื้นที่จัดแสดงโมเดล ส่วนห้องตัวอย่าง จะอยู่บนชั้น 3 ค่ะ

Master

ถนนและแยกที่สำคัญรอบโครงการ

  • ถนนสุขุมวิท 600 ม.
  • ถนนอโศกมนตรี 650 ม.
  • แยกอโศก 1.1 กม.
  • ถนนเพชรบุรี 1.8 กม.
  • ถนนทองหล่อ 3 กม.
  • ถนนพระราม 4 3 กม.
  • แยกพระราม 4 3 กม.
  • แยกเอกมัย 5.4 กม.

อุดม

สถานที่สำคัญรอบๆโครงการ

  • 7-11 240 ม.
  • Terminal 21 850 ม.
  • วิลล่า มาร์เก็ต 1.3 กม.
  • เอ็มควอเทียร์ 1.5 กม.
  • Emsphere 1.7 กม.
  • เอ็มโพเรียม 1.7 กม.
  • Rain Hill 2.1 กม.
  • Lotus พระราม 4 3.1 กม.
  • K Village 3.2 กม.
  • Big C พระราม 4 3.3 กม.
  • Fortune Town 3.8 กม.
  • Gateway เอกมัย 4.9 กม.
  • Central พระราม 9 5.5 กม.
  • รพ.สมิติเวชสุขุมวิท 2.8 กม.
  • รพ.บำรุงราษฏร์ 3 กม.
  • รพ.สุขุมวิท 3.9 กม.
  • รพ.พระราม 9 4.7 กม.
  • มหาวิทยาลัยศรีนครินทรวิโรฒ ประสานมิตร 700 ม.
  • รร.สายน้ำผึ้ง 1.7 กม.
  • รร.วัฒนาวิทยาลัย 2.2 กม.
  • Bangkok Prep International School 2.7 กม.
  • Wells International School 2.7 กม.
  • ปณ.ประสานมิตร 400 ม.
  • สวนเบญจสิริ 1.9 กม.
  • ศูนย์ประชุมแห่งชาติสิริกิติ์ 3.1 กม.
  • สน.ทองหล่อ 4.1 กม.

รอบๆโครงการ

SR

สภาพแวดล้อมโดยรอบโครงการจะค่อนข้างหลากหลาย มีปนๆกันทั้งอาคารแนวราบและอาคารสูง โดยจะมีทั้งบ้านเดี่ยว, อาคารพาณิชย์, อพาร์ทเม้นท์, คอนโดค่ะ และเนื่องจากตัวโครงการเป็นคอนโด Low Rise จึงคาดหวังวิวโล่งได้เป็นบางทิศเท่านั้น ดังนี้ค่ะ

  • ทิศเหนือ ติดกับบ้านเดี่ยว
  • ทิศตะวันออก ติดกับถนนซฮยสุขุมวิท 23 ฝั่งตรงข้ามเป็นอาคารพาณิชย์ สูง 3 – 4 ชั้น
  • ทิศตะวันตก ติดกับบ้านเดี่ยว ถัดไปเป็นคอนโด สูง 8 ชั้น
  • ทิศใต้ ติดกับอาคาร สูง 3 ชั้น และคอนโด สูง 12 ชั้น

Walden-Srre-4

มาลองเดินดูบรรยากาศรอบๆกันบ้างค่ะ เริ่มจากหน้าโครงการ จะติดกับถนนซอยสุขุมวิท 23 ด้านหน้าเป็นอาคารพาณิชย์ สูง 3 – 4 ชั้น ปัจจุบันเป็นอาคารว่างให้เช่า และที่สอนโยคะ

Walden-Srre-5

ติดกันเป็นอาคารพาณิชย์เช่นกัน โดยจะมีเปิดเป็น Hostel, ร้านกาแฟ และที่ปรึกษาและบริการทำวีซ่า

Walden-Srre-7

ส่วนพื้นที่ติดกับโครงการทางฝั่งขวามือ เป็นร้านอาหารกึ่งคาเฟ่ชื่อดัง It’s happened to be a closet บรรยากาศเก๋ ร่มรื่น อาหารอร่อย

Walden-Srre-8

ถัดมาเป็นคลับ ชื่อ Lemon Club

Walden-Srre-10

ถัดมาตรงทางโค้งฝั่งตรงข้าม จะเป็น Narz ที่จะรวมร้านอาหารไว้ภายในหลายร้าน เช่น ร้านอาหารอีสาน รวมถึง Narz Club ด้วยค่ะ

Walden-Srre-12

กลับมาที่ตัวโครงการ พื้นที่ติดกับโครงการทางซ้ายมือจะเป็นบ้านเดี่ยวค่ะ

Walden-Srre-13

ฝั่งตรงข้ามเป็นร้านล้างรถ

Walden-Srre-14

เดินไปดูภายในซอยกันต่ออีกหน่อย ทางเดินจะมีฟุตบาทให้เดินได้อย่างปลอดภัยตลอดทาง และทั้ง 2 ข้างทางก็จะเป็นอาคารพาณิชย์ติดถนนทั้ง 2 ฝั่ง

Walden-Srre-15

ร้านอาหารร้านแรกที่เราเจอ เป็นร้านอาหารญี่ปุ่น

Walden-Srre-16

ถัดมาก็เป็นร้านบาร์บีคิวสไตล์ฮอกไกโด

Walden-Srre-18

และร้านอาหารญี่ปุ่นอีก 1 ร้าน

Walden-Srre-23

ถัดมาก็จะเป็นอาคารพาณิชย์ทั้งแถว และ Sale Office ของโครงการ

Walden-Srre-26

ถัดไปก็จะเป็นอาคารพาณิชย์ มีร้านกาแฟและคาเฟ่ 2 ร้าน ร้านแรกคือ Tattoo Cafe ป้ายสีดำ – แดง ในภาพ

Walden-Srre-28

อีกร้านคือ Outer Room

Walden-Srre-29

ถัดมาเป็นร้านคาราโอเกะ

Walden-Srre-19

ฝั่งตรงข้ามจะเป็นร้านอาหารทิเบต, ร้านนวด, ร้าน Snack ญี่ปุ่น และร้านขายของตกแต่งบ้านนำเข้าใกล้ๆกัน 2 – 3 ร้านค่ะ

Walden-Srre-20 Walden-Srre-21Walden-Srre-22

ร้านของแต่งบ้านที่บอกข้างต้น จะมีร้าน Unforgetable, Incredible และ Eligible

Walden-Srre-17

เดินต่อมาเรื่อยๆจะผ่านร้านอาหารญี่ปุ่นอีก 1 – 2 ร้าน จนมาถึงทางเชื่อมเข้าซอยสวัสดีทางขวามือ

Walden-Srre-31

หน้าปากซอยจะมีคิวพี่วินให้เรียกใช้บริการ

Walden-Srre-32

ติดกันเป็นอาคารของ Young Place Plaza ภายในจะมีร้านต่างๆเปิดหลายร้าน

Walden-Srre-35Walden-Srre-36

ข้ามไปดูทางฝั่งซอยสวัสดีจะมีร้านก๋วยเตี๋ยวจุฑารส

Walden-Srre-37

เข้ามาในซอยอีกหน่อยจะเจอ สวัสดี พลาซ่าและสีลมวิลเลจ จะมีทั้งร้านอาหาร, โรงเรียนสอนดนตรี และอื่นๆ ด้านในมีที่จอดรถรองรับด้วยค่ะ

Walden-Srre-38 Walden-Srre-39Walden-Srre-40 Walden-Srre-42

ซึ่งจะมีทั้งร้านอาหาร ร้านขนม ร้านสะดวกซื้อและร้านพิซซ่า/สเต็ก ติดถนนในซอย

Walden-Srre-41

ฝั่งตรงข้ามก็จะมีคอนโด Royce สูง 39 ชั้น

ตัวโครงการ

EXT_Overall_Final

โครงการ Walden อโศก ตั้งอยู่ในซอยสุขุมวิท 26 บนทำเลที่มีความสงบใจกลางเมือง เป็นโครงการคอนโด Low Rise สูง 8 ชั้น จาก Habitat ที่เชี่ยวชาญการทำโครงการระดับกลางถึง Luxury ที่เน้นการซื้อเพื่อการลงทุนปล่อยเช่า สำหรับ Walden อโศก เป็นโครงการขนาดเล็ก แต่ให้ Facility ครบครัน และมีความเป็นส่วนตัวสูง ด้วยยูนิตพักอาศัยเพียง 83 ยูนิตเท่านั้น บนที่ดิน 0 – 2 – 20 ไร่ ที่เน้นกลุ่มลูกค้าผู้เช่าชาวต่างชาติโดยเฉพาะชาวญี่ปุ่น จึงมีการออกแบบด้วยแนวคิด” Sense of Japanese Garden” เน้นบรรยากาศและสวนกลางแบบญี่ปุ่น

EXT_Front View_Final

การออกแบบหน้าตาโดยรวมจะเป็นสไตล์โมเดิร์น ด้านหน้าเน้นพื้นผิวกระจก

EXT_Left View_Final

ด้านข้างตกแต่งด้วย Facade ระแนงไม้

Walden-ModelRE-12

มาดูที่ภาพรวมตัวโมเดลเราจะเห็นตัว Facade เป็นไม้เข้ากับการตกแต่งที่สวนชั้นล่างด้วยต้นไม้และรั้วพุ่มไม้สีเขียว

final.Walden - Plan and Unit Booklet20180206.indd

มาดูกันที่แปลนอาคารชั้น 1 กันบ้าง จะเห็นว่าตัวอาคารจะตั้งอยู่เต็มพื้นที่ดินเลยค่ะ โดยทางเข้าอาคารจะอยู่ติดกับถนนซอยสุขุมวิท 23 หน้าโครงการมีป้อมรปภ. รักษาความปลอดภัย 24 ชม.เมื่อเข้ามาภายในอาคารจะเจอถนนเส้นสั้นๆ กว้างขนาดให้รถวิ่งสวนกันได้ ผ่านจุด Drop Off และตรงเข้าไปในส่วนที่จอดรถอัตโนมัติซึ่งจะมี 2 จุด ซึ่งจะนำรถของลูกบ้านลงไปจอดที่ชั้นใต้ดิน 2 ชั้น รวมจอดได้ 40 คัน หรือ 48%

สำหรับประตูทางเข้า จะต้องใช้ Access Card ในการเข้าตัวโครงการ เมื่อเข้ามาภายในอาคาร ส่วนแรกจะเจอกับ Lounge และโถงลิฟท์ ภายในมีลิฟท์โดยสาร 2 ตัว เป็นลิฟท์แบบล็อคชั้น ถัดเข้าไปเป็น Lobby สูง 7 เมตร จาก Lobby จะมีโถงทางเดินเชื่อมเข้ามาจนถึงห้องฟิตเนส

final.Walden - Plan and Unit Booklet20180206.indd

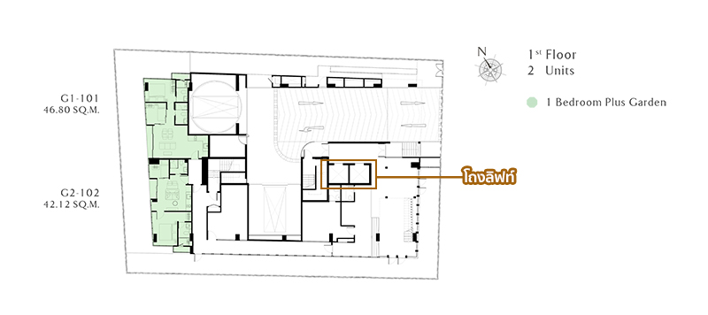
นอกจากนั้นที่ชั้นนี้จะมียูนิตพิเศษ 2 ยูนิต ด้านหลังเป็นห้องแบบ 1 Bedroom Plus ยูนิตที่จะได้สวนส่วนตัวด้านหลังที่จำกัดการเข้าใช้ได้เฉพาะเจ้าของห้อง แต่ก็จะมีการบำรุงรักษาให้โดยส่วนกลางโครงการตามปกติค่ะ

EXT_Entrance_Final ภาพจำลองบรรยากาศของตัวโครงการด้านหน้าอาคาร แต่ของจริงจะมีรั้วด้านหน้านะคะ

171220_CARPARK_FINAL

เข้ามาภายในโครงการ โถงทางเข้าส่วนแรกตกแต่งด้วยหินอ่อนสีขาวเต็มผนัง ไปจนถึงลิฟท์ที่จอดรถอัตโนมัติ

INT_Lobby_view_001_FINAL_Hi-res

เมื่อเข้ามาภายในอาคาร ส่วนแรกจะเจอ Lounge เป็นพื้นที่นั่งรับรอง เฟอร์นิเจอร์ใช้ลักษณะคล้ายๆเบาะนั่งพื้นแบบญี่ปุ่น

INT_Lobby_view_002_FINAL_Hi-res

เข้ามาในส่วน Lobby ฝ้าเพดานสูง 7 เมตร แบ่งเป็น 2 ชั้น

INT_Lobby_view_003_FINAL_Hi-res

ชั้นบนตกแต่งเป็นห้องนั่งพักผ่อน, ทำงาน และอ่านหนังสือ ผนังกระจะรับแสงธรรมชาติ

INT_Fitness_Final

ภายในส่วนห้องฟิตเนสตกแต่งผนังด้วยไม้และกระจกเงารอบห้องช่วยให้ห้องดูกว้างขึ้น และได้บรรยากาศอบอุ่น

final.Walden - Plan and Unit Booklet20180206.indd

แปลนชั้น 2 เป็นยูนิตพักอาศัยทั้งชั้น มียูนิตต่อชั้น 11 ห้อง เป็นห้องแบบ Loft 9 ยูนิต และ Simplex 2 ยูนิต

final.Walden - Plan and Unit Booklet20180206.indd

โดยตัวห้องแบบ Loft จะมี 2 ชั้น ที่ชั้น 2 จะจัดเป็นห้องนอน รวมความสูงฝ้าเพดานทั้งห้อง สูง 4.5 เมตร

final.Walden - Plan and Unit Booklet20180206.indd

แปลนชั้น 3 – 7 เป็นชั้นพักอาศัยแบบ 1 Bedroom และ 1 Bedroom Plus ความสูงฝ้าเพดาน 2.47 เมตร มี 12 ยูนิตต่อชั้น

final.Walden - Plan and Unit Booklet20180206.indd

แปลนชั้น 8 จะเหมือนกับที่ชั้น 3 – 7 เพียงแต่จะไม่มีห้องทางฝั่งทิศตะวันตก 2 ห้อง เพราะเป็นพื้นที่รองรับส่วนสระว่ายน้ำค่ะ

final.Walden - Plan and Unit Booklet20180206.indd

แปลนชั้น Rooftop เป็นส่วนกลางหลักของโครงการ ประกอบด้วย สระว่ายน้ำแยก สระเด็ก สระผู้ใหญ่, บ่อจากุชชี่, พื้นที่บาร์บีคิว , สนามเด็กเล่น, สวนหย่อมรอบๆ และส่วนกลางพิเศษเพิ่มเติม ภาพรวมจะเน้นทำออกมาให้ได้กลิ่นอายญี่ปุ่น เช่น Hot & Cold Spa, Bamboo Way, Vichy Corner, Sunken Party Space, Relaxation Lawn และ Roof Pavillion

EXT_Pool_day_Final

ภาพจำลองบรรยากาศส่วนสระว่ายน้ำ ต่อเนื่องกับ Water Cascading และ Pool Deck ตกแต่งด้วยต้นไม้ที่มีรูปทรงเป็นฟอร์มชัดเจน

Pool_night_Final

ข้างสระโรยด้วยกรวดใหญ่ตกแต่ง และมีมุมนั่งพักผ่อนสงบๆข้างสระ

EXT_Bath_Final

Vichy Corner เป็นเหมือนม่านน้ำฝนและมีที่นั่งพักผ่อน บนพื้นหินกรวดแบบ Zen ช่วยผ่อนคลายกล้ามเนื้อและจิตใจ

EXT_Onsen_Final

Hot & Cold Spa แยกบ่อน้ำร้อนและน้ำเย็นช่วยผ่อนคลายกล้ามเนื้อที่เหนื่อยล้าจากการทำงานมาทั้งวัน

EXT_Rooftop_BBQ_Final

บรรยากาศส่วนพื้นที่บาร์บีคิว, สนามเด็กเล่น และ Kid’s Zone

EXT_Rooftop_pavillion_Final

ชั้นบนส่วน Roof Pavillion มองเห็นวิวรอบๆโครงการ

Walden-ModelRE-1

ภาพรวมด้านหน้าโครงการ

Walden-ModelRE-3

ทางเข้าติดถนนซอยสุขุมวิท 23

Walden-ModelRE-4

ภาพรวมอาคารทางฝั่งทิศเหนือ

Walden-ModelRE-5

ภาพรวมอาคารทางฝั่งทิศใต้

Walden-ModelRE-11

ภาพรวมอาคารทางฝั่งทิศตะวันตก หรือหลังโครงการ

Walden-ModelRE-10

สวนของห้องพิเศษของ 2 ยูนิตด้านหลัง

Walden-ModelRE-7

ส่วนกลางบนชั้น Rooftop

Walden-ModelRE-8

ส่วน Roof Pavillion 2 ชั้น

Walden-ModelRE-9

ส่วน Hot & Cold Spa และ Vichy Corner มีระแนงไม้บังแดดด้านบน

แบบห้อง

แบบห้องในโครงการจะมีหลายแบบหลายขนาดค่ะ โดยถ้าแยกตามจำนวนห้องนอนหลักๆ จะมี 1 Bedroom, 1 Bedroom Plus และ 2 Bedrooms ส่วนประเภทย่อยอื่นๆ จะมีดังนี้ค่ะ

  • 1 Bedroom (A1-A6) : 31.10-35.31 ตร.ม. ความสูงฝ้าเพดาน 2.47 เมตร
  • 1 Bedroom Plus (B1-B6) : 37.72-42.58 ตร.ม. ความสูงฝ้าเพดาน 2.47 เมตร
  • 1 Bedroom Simplex (C1-C2) : 31.24-37.11 ตร.ม. ความสูงฝ้าเพดาน 3 เมตร
  • 1 Bedroom Plus Garden (G1-G2) : 42.12-46.80 ตร.ม. ความสูงฝ้าเพดาน 2.47 เมตร
  • 1 Bedroom Loft (D5) : 58.52 ตร.ม. ความสูงฝ้าเพดาน 4.5 เมตร
  • 1 Bedroom Plus Loft (D1-D4, D6-D7) : 54.14-64.11 ตร.ม. ความสูงฝ้าเพดาน 4.5 เมตร
  • 2 Bedroom Loft (D8-D9) : 64.61-65.43 ตร.ม. ความสูงฝ้าเพดาน 4.5 เมตร

final.Walden - Plan and Unit Booklet20180206.indd

แปลนห้อง 1 Bedroom (A1,A2) : 31.10-35.31 ตร.ม. ความสูงฝ้าเพดาน 2.47 เมตร

final.Walden - Plan and Unit Booklet20180206.indd

แปลนห้อง 1 Bedroom (A3,A4) : 31.10-35.31 ตร.ม. ความสูงฝ้าเพดาน 2.47 เมตร

final.Walden - Plan and Unit Booklet20180206.indd

แปลนห้อง 1 Bedroom (A5,A6) : 31.10-35.31 ตร.ม. ความสูงฝ้าเพดาน 2.47 เมตร

INT_1bedA_Final

ภาพบรรยากาศจำลองห้องพัก TYPE A แบบ 1 ห้องนอน

171127_2bedA_final_

ภาพบรรยากาศจำลองห้องพัก TYPE A แบบ 2 ห้องนอน

final.Walden - Plan and Unit Booklet20180206.indd

แปลนห้อง 1 Bedroom Plus (B1,B2) : 37.72-42.58 ตร.ม. ความสูงฝ้าเพดาน 2.47 เมตร

final.Walden - Plan and Unit Booklet20180206.indd

แปลนห้อง 1 Bedroom Plus (B3,B4) : 37.72-42.58 ตร.ม. ความสูงฝ้าเพดาน 2.47 เมตร

final.Walden - Plan and Unit Booklet20180206.indd

แปลนห้อง 1 Bedroom Plus (B5,B6) : 37.72-42.58 ตร.ม. ความสูงฝ้าเพดาน 2.47 เมตร

INT_1bedB_Final

ภาพบรรยากาศจำลองห้องพัก TYPE B แบบ 1 ห้องนอน

171127_2bedB_final_

ภาพบรรยากาศจำลองห้องพัก TYPE B แบบ 2 ห้องนอน

final.Walden - Plan and Unit Booklet20180206.indd

แปลนห้อง 1 Bedroom Simplex (C1-C2) : 31.24-37.11 ตร.ม. ความสูงฝ้าเพดาน 3 เมตร

final.Walden - Plan and Unit Booklet20180206.indd

แปลนห้องแบบ 1 Bedroom Plus Loft Type D1 : 54.14 ตร.ม. ความสูงฝ้าเพดาน 4.5 เมตร

final.Walden - Plan and Unit Booklet20180206.indd

แปลนห้องแบบ 1 Bedroom Plus Loft Type D2 : 54.78 ตร.ม. ความสูงฝ้าเพดาน 4.5 เมตร

final.Walden - Plan and Unit Booklet20180206.indd

แปลนห้องแบบ 1 Bedroom Plus Loft Type D3 : 55.70 ตร.ม. ความสูงฝ้าเพดาน 4.5 เมตร

final.Walden - Plan and Unit Booklet20180206.indd

แปลนห้องแบบ 1 Bedroom Plus Loft Type D4 : 56.06 ตร.ม. ความสูงฝ้าเพดาน 4.5 เมตร

final.Walden - Plan and Unit Booklet20180206.indd

แปลนห้องแบบ 1 Bedroom Plus Loft Type D5 : 58.52 ตร.ม. ความสูงฝ้าเพดาน 4.5 เมตร

final.Walden - Plan and Unit Booklet20180206.indd

แปลนห้องแบบ 1 Bedroom Plus Loft Type D6 : 63.89 ตร.ม. ความสูงฝ้าเพดาน 4.5 เมตร

final.Walden - Plan and Unit Booklet20180206.indd

แปลนห้องแบบ 1 Bedroom Plus Loft Type D7 : 64.11 ตร.ม. ความสูงฝ้าเพดาน 4.5 เมตร

final.Walden - Plan and Unit Booklet20180206.indd

แปลนห้องแบบ 1 Bedroom Plus Loft Type D8 : 64.61 ตร.ม. ความสูงฝ้าเพดาน 4.5 เมตร

final.Walden - Plan and Unit Booklet20180206.indd

แปลนห้องแบบ 1 Bedroom Plus Loft Type D9 : 65.43 ตร.ม. ความสูงฝ้าเพดาน 4.5 เมตร

171127_Duplex Cam_A_final

ภาพบรรยากาศจำลองห้องพัก TYPE D แบบ Loft

171127_Duplex Cam_B_final

ภาพบรรยากาศจำลองห้องพัก TYPE D แบบ Loft

final.Walden - Plan and Unit Booklet20180206.indd

แปลนห้อง 1 Bedroom Plus Garden (G1-G2) : 42.12-46.80 ตร.ม. ความสูงฝ้าเพดาน 2.47 เมตร

EXT_Gardenview_Final

ภาพบรรยากาศจำลองสวนของห้องพัก TYPE G

ห้องตัวอย่าง

สำหรับห้องตัวอย่างจะมีให้ชม 1 แบบ เป็นห้อง 1 Bedroom ขนาด 33 ตร.ม. ความสูงฝ้าเพดาน 2.47 เมตร ห้องมาตรฐานขายแบบ Fully Fitted จะได้เฟอร์นิเจอร์ Built – in คือ ตู้รองเท้า, โต๊ะทานอาหาร, ตู้เสื้อผ้า, โต๊ะทำงานพร้อมตู้เก็บของด้านข้าง, ชั้นวางทีวี, สุขภัณฑ์ครบชุดพร้อมเครื่องทำน้ำร้อน, ชุดเคาน์เตอร์ครัว พร้อมเตาไฟฟ้า + เครื่องดูดควัน + เตาไฟฟ้า + เตาไมโครเวฟ และ แอร์ค่ะ

ส่วนโปรโมชั่นของโครงการตอนนี้จนถึงสิ้นเดือนมีนาคม 2561 จะเป็นห้องแบบ Fully Furnished ได้เฟอร์นิเจอร์ครบชุด พร้อมเข้าอยู่เลยค่ะ

Walden-หตยRE-1.1

เรามาดูของจริงกันต่อเลย เริ่มจากประตูทางเข้าห้องจะได้ Digital Door Lock ยี่ห้อ Yale

Walden-หตยRE-3

เข้ามาภายในห้อง ส่วนแรกจะเป็นพื้นที่ครัวเปิด ต่อเนื่องไปยังห้องนั่งเล่น ความสูงฝ้าเพดาน 2.47 เมตร สำหรับในห้องที่ได้จะไม่มีเสากลางห้องแบบในภาพ จะได้เป็นพื้นที่โล่งๆต่อเนื่องกันไปเลยนะคะ

Walden-หตยRE-4

พื้นห้องจะปูด้วยกระเบื้องพอร์ซเลน ลายหินอ่อน ขนาด 60 x 60 ซม.

Walden-หตยRE-5

ภาพรวมส่วนครัว จะรวมอยู่กับพื้นที่ทานอาหาร

Walden-หตยRE-7

ติดกับประตูทางเข้าจะติดตั้งตู้เก็บรองเท้าแบบ Built – in

Walden-หตยRE-9

และข้างประตูจะมี Nasket Scan ติดตั้งมาให้ เป็นอุปกรณ์ที่ช่วยอำนวยความสะดวกในการสั่งซื้อสินค้าอุปโภคบริโภคจาก Super Market, หาช่างซ่อม แม่บ้าน, สั่งอาหาร หรือชำระบิลต่างๆ ด้วยการสแกนบาร์โค้ด และชำระได้ทั้งเงินสดและบัตรเครดิต ช่วยอำนวยความสะดวกให้ลูกบ้านสุดๆ ไม่ต้องเสียเวลาออกไปข้างนอกเลยค่ะ

Walden-หตยRE-10.1

ชุดตู้เก็บรองเท้าชั้นล่างจะมีชั้นวางกว้างๆ 2 ชั้น บานเปิด Soft Closed

Walden-หตยRE-12.1

ตู้เก็บของด้านบนแบ่งเป็น 2 ชั้น

Walden-หตยRE-21

ติดกับตู้เก็บรองเท้าจะเป็นโต๊ะทานอาหาร 2 ที่นั่ง ขนาดกำลังใช้งานได้สบายๆ

Walden-หตยRE-6

อีกฝั่งของห้องครัวติดตั้งชุดเคาน์เตอร์ครัว พร้อมอุปกรณ์ครบชุด

Walden-หตยRE-14

หน้าตาเคาน์เตอร์โดยรวมทำออกมาเรียบๆ ดูดี

Walden-หตยRE-15

บนเคาน์เตอร์ติดตั้งซิงค์ล้างจาน FRANK และเตาไฟฟ้า มีพื้นที่เหลือเตรียมอาหารนิดหน่อย ด้านหลังติด Backsplash ไว้ให้ช่วยให้ทำความสะอาดง่าย

Walden-หตยRE-16.1

ใต้เคาน์เตอร์จะมีช่องเก็บของ 2 ช่อง ใต้ซิงค์ล้างจานจะมีถังขยะติดตั้งมาให้ด้วย

Walden-หตยRE-18.1

ตู้เก็บของด้านบนแบ่งเป็นตู้เก็บของ 3 ตู้ พร้อมติดตั้งเครื่องดูดควัน, และช่องวางเตาไมโครเวฟ พร้อมไมโครเวฟติดตั้งมาให้

Walden-หตยRE-22

ระยะเหลือสำหรับยืนทำครัว ประมาณ 0.9 เมตร พอให้ยืนเตรียมอาหารได้สะดวก

Walden-หตยRE-25

ถักจากส่วนห้องครัวจะเป็นพื้นที่ห้องนั่งเล่น

Walden-หตยRE-23

ติดกับห้องนั่งเล่นทางขวามือจะเป็นห้องนอนค่ะ

Walden-หตยRE-24

ที่ห้องนั่งเล่นจะมีแอร์ติดตั้งมาให้ 1 ตัวนะคะ

Walden-หตยRE-26

ขนาดพื้นที่ใช้สอยในห้องนั่งเล่นนี้จะสามารถวางโซฟาขนาด 2 – 3 ที่นั่งได้พอดีๆ

Walden-หตยRE-27

ฝั่งตรงข้ามโซฟาจะมีชั้นวางทีวีแบบ Built – in ติดตั้งมาให้

Walden-หตยRE-28.1

โดยชั้นวางทีวีนี้จะมีช่องเก็บของ 1 ช่อง และตู้พร้อมบานปิด เปิดอีก 2 ช่อง พร้อมช่องสัญญาณและเต้าเสียบ

Walden-หตยRE-30

ระยะดูทีวีที่เหลือ ประมาณ 1.3 เมตร สามารถวางทีวีขนาด 26″ – 32″ จะได้ระยะดูทีวีที่เหมาะสม

Walden-หตยRE-32.1

จากห้องนั่งเล่นจะเชื่อมออกไปยังระเบียงภายนอกได้ด้วย โดยบานประตูจะได้เป็นบานเลื่อนกระจก 3 ตอน บานกรอบอลูมิเนียมสีเทา โดยประตูระเบียงนี้จะเป็นช่องแสงบานหลักของในส่วนห้องนั่งเล่น ยาวไปจนถึงห้องครัวค่ะ

Walden-หตยRE-35.1

มือจับประตูแบบเซาะร่อง พร้อมตัวล็อคมาตรฐาน

Walden-หตยRE-38

พื้นระเบียงภายนอกปูด้วยกระเบื้องพอร์ซเลน ผิวด้าน สีเทา ขนาด 30 x 30 ซม.

Walden-หตยRE-31

กลับเข้ามาภายในห้อง ให้ดูภาพรวมจากส่วนห้องนั่งเล่น ย้อนไปยังห้องครัว

Walden-หตยRE-39.1

ถัดมาเรามาดูในส่วนของห้องนอนกันต่อ โดยส่วนห้องนอนนี้เราสามารถเลือกได้ว่าจะเปิดให้เชื่อมกับห้องนั่งเล่น หรือจะปิดแยกให้เป็นสัดส่วนก็ได้ ด้วยประตูกระจกใสบานใหญ่ เป็นบานเลื่อน 3 ตอน ซึ่งการที่ใช้เป็นประตูกระจกแบบนี้จะช่วยให้การปิดแยกห้องสามารถปิดกั้นเสียงหรือกลิ่นที่จะเข้าไปในห้องนอนได้ โดยที่ยังทำให้ห้องดูไม่แคบลงค่ะ และถ้าอยากให้เป็นสัดส่วนมากขึ้นก็สามารถติดตั้งม่านกั้นเพิ่มเติมได้

Walden-หตยRE-37

มือจับบานประตูจะเป็นแผ่นเรียบยื่นออกมาพอให้จับได้

Walden-หตยRE-41

เข้ามาภายในห้องนอน จะเน้นหน้ากว้างของห้อง ทำให้ภายในห้องดูกว้างขวาง จัดวางเฟอร์นิดเจอร์ได้ลงตัว

Walden-หตยRE-42

สำหรับเตียงที่ทางโครงการจัดมาให้ดูจะเป็นเตียงขนาดคิงส์ไซส์ค่ะ จะเห็นว่ามีที่ว่างเหลือข้างเตียงให้วางตู้เก็บของข้างเตียงได้สบายๆ

Walden-หตยRE-43

ช่องแสงในห้องนอนนี้จะได้เป็นหน้าต่างบานกระทุ้งและบานฟิกแบบเต็มผนังเลยค่ะ ภายในห้องจึงสามารถรับแสงธรรมชาติได้เต็มที่ และสามารถเปิดเพื่อระบายอากาศได้ดี

Walden-หตยRE-44

ข้างเตียงฝั่งขวามือจะ Built – in โต๊ะทำงานมาให้พร้อมตู้เก็บของด้านข้าง ได้แบบนี้ในห้องมาตรฐานทุกห้องเลยนะคะ

Walden-หตยRE-45

ระยะการใช้งานก็สามารถใช้งานได้สะดวกเลย มีระยะให้เลื่อนเก้าอี้เข้าออก

Walden-หตยRE-46

อีกฝั่งของห้องเป็นส่วน Walk – in Closet มี Built – in ตู้เสื้อผ้าให้ 2 ตู้ ถัดไปเป็นห้องน้ำ

Walden-หตยRE-47.1

ตู้เสื้อผ้าที่ได้เป็นตู้ขนาดไม่ใหญ่มากค่ะ บานเปิดตู้เป็นบานสไลด์กระจกสีเข้ม ภายในตู้แบ่งเป็นช่องเก็บของ 3 ช่องและราวแขวน

Walden-หตยRE-50

อีกฝั่งก็จะติดตั้งตู้เสื้อผ้าแบบเดียวกันมาให้ค่ะ

Walden-หตยRE-51

ระยะที่เหลือให้พื้นแต่งตัวมีพอสมควร ให้งานได้สะดวก

Walden-หตยRE-69

มุมมองจากฝั่ง Walk – in Closet มองย้อนไปทางห้องนอนค่ะ

Walden-หตยRE-52

ถัดมาเราจะเข้าไปดูภายในห้องน้ำกันต่อ

Walden-หตยRE-53

พื้นห้องน้ำจะปูด้วยกระเบื้องพอร์ซเลน ลายหินอ่อนแบบเดียวกับในห้องนอน

Walden-หตยRE-54

เข้ามาภายในห้องน้ำตกแต่งเป็นสีขาวหินอ่อนทั้งห้องเข้ากันกับชุดตู้เคาน์เตอร์ไม้สีอ่อนด้านล่าง ดูสวย สะอาดเลยค่ะ

Walden-หตยRE-55

อ่างล้างมือจะได้เป็นแบบฝังเคาน์เตอร์ ตัวเคาน์เตอร์กว้าง มีพื้นที่ให้วางอุปกรณ์อาบน้ำแต่งตัวต่างๆ

Walden-หตยRE-56

อ่างล้างมือทรงสี่เหลี่ยม ขนาดพอดีๆ ติดตั้งมาพร้อมก๊อกน้ำ ยี่ห้อ Kohler

Walden-หตยRE-57.1

ใต้อ่างล้างมือมีตู้เก็บของ และช่องเก็บผ้าขนหนู

Walden-หตยRE-59.1

ส่วนชุดกระจกเงาจะได้บานใหญ่ กว้างเท่าเคาน์เตอร์อ่างล้างมือเลย ด้านหลังก็จะซ่อนชั้นเก็บของไว้ให้ สามารถใช้เก็บของได้เยอะเลยค่ะ

Walden-หตยRE-61

ติดกับอ่างล้างมือเป็นโถสุขภัณฑ์ ยี่ห้อ Kohler พร้อมอุปกรณ์ครบชุด ระยะการใช้งานเหมาะสม

Walden-หตยRE-62

สายชำระแบบโมเดิร์น ขนาดพอดีมือ

Walden-หตยRE-63

อีกฝั่งจะเป็นพื้นที่อาบน้ำ แบ่งเป็นสัดส่วนพร้อมอ่างอาบน้ำขนาดกระทัดรัด และฉากกั้นอาบน้ำ

Walden-หตยRE-64.1

ภายในพื้นที่อาบน้ำติดตั้งฝักบัวแบบ Rain Shower และ Hand Shower มาให้ พร้อมเครื่องทำน้ำร้อน ขนาดฝักบัวค่อนข้างใหญ่ค่ะ

Walden-หตยRE-68

อ่างอาบน้ำ ยี่ห้อ Lavenz จะถูกสั่งทำมาเฉพาะให้พอดีกับพื้นที่ในห้องอาบน้ำ เป็นขนาดที่เราอาจจะไม่ค่อยเห็นโครงการอื่นๆที่มีพื้นที่จำกัดใช้ แต่โครงการนี้ติดตั้งมาให้ทุกห้อง ถือเป็นความใส่ใจในการออกแบบอีกจุดนึงของ Habitat ค่ะ


ราคา

  • ห้อง Type A2 1 Bedroom พื้นที่ใช้สอย 33.34 ตร.ม. ราคา 6,522,270 บาท หรือ 195,628 บาท/ตร.ม.
    • เงินจอง 50,000 บาท/ทำสัญญา 10%
  • ห้อง Type B2 2 Bedroom Plus พื้นที่ใช้สอย 37.72 ตร.ม. ราคา 7,340,427 บาท หรือ 194,603 บาท/ตร.ม.
    • เงินจอง 50,000 บาท/ทำสัญญา 10%
  • ห้อง Type C2 1 Bedroom Simplex พื้นที่ใช้สอย 37.11 ตร.ม. ราคา 7,280,116 บาท หรือ 196,176 บาท/ตร.ม.
    • เงินจอง 50,000 บาท/ทำสัญญา 10%
  • ห้อง Type D2 1 Bedroom Loft พื้นที่ใช้สอย 38.50 ตร.ม. ราคา 10,531,296 บาท หรือ 179,960 บาท/ตร.ม.
    • เงินจอง 100,000 บาท/ทำสัญญา 10%
  • ค่าส่วนกลาง 70 บาท/ตร.ม./เดือน
  • เงินกองทุนส่วนกลาง 700 บาท/ตร.ม.
  • ค่าธรรมเนียมการโอน 2%

Promotion

  • ฟรีเฟอร์นิเจอร์แพ็คเกจ
  • ชุดเครื่องนอนและผ้าม่าน

สรุป

ทำเลที่ตั้งโครงการ : โครงการ Walden อโศก ตั้งอยู่ในซอยสุขุมวิท 23 บนทำเลใจกลางเมือง ย่านสุขุมวิทตอนต้น โดยตัวโครงการต้องเข้าซอยมาประมาณ 600 เมตร จุดเด่นของทำเลโครงการนี้คือการเป็นโครงการกลางเมืองที่มีสภาพแวดล้อมค่อนข้างสงบ เดินทางสะดวกทั้งรถยนต์ส่วนตัวและรถสาธารณะ ใกล้ BTS อโศก (ในระยะเดินถึงทางขึ้นสถานีประมาณ 700 เมตร) สภาพแวดล้อมช่วงต้นซอยจะคึกคัก เพราะใกล้แหล่งงานและมีร้านรวงต่างๆหลายร้าน ทั้งร้านอาหารและบริการต่างๆ ส่วนช่วงใกล้ๆโครงการจะเป็นพื้นที่อยู่อาศัยมากขึ้น ทั้งคอนโดและอพาร์ทเม้นท์ จึงทำให้บรรยากาศเงียบสงบกว่าช่วงต้นซอยพอสมควรค่ะ

การเดินทางโดยรถยนต์ส่วนตัว : ภายในซอยมีทางลัดเลาะเลี่ยงรถติดได้หลายเส้นทาง เช่น จากซอยสุขุมวิท 23 ก็จะเชื่อมกัยซอยสุขุมวิท 21 ออกถนนอโศกมนตรีได้ และยังมีซอยพร้อมจิตร และซอยสวัสดีที่สามารถใช้เชื่อมไปซอยย่อยอื่นๆ เช่น ซอยสุขุมวิท 21, ซอยสุขุมวิท 39, ซอยสุขุมวิท 49 ลัดไปออกสุขุมวิทเลี่ยงรถติดได้นิดหน่อย และซอยสุขุมวิท 49/11 เชื่อมไปออกทองหล่อและซอยสุขุมวิท 38/1 ไปออกถนนเพชรบุรี และมีจุดขึ้นทางด่วนอยู่ไม่ไกล

ส่วนถนนสุขุมวิทเส้นหลักเองก็สามารถใช้เชื่อมไปถนนเส้นอื่นๆได้ ทั้งถนนรัชดาภิเษก, ถนนพระราม 1, ถนนอ่อนนุช, ถนนพระราม 4 ยาวไปถึงถนนบางนา – ตราด, อุดมสุข และอื่นๆอีกหลายเส้นทางค่ะ และเนื่องจากเป็นทำเลกลางเมืองสุดๆ การจราจรจึงหนาแน่นพอตัว ทั้งบนเส้นหลักและในซอยบางช่วง จึงต้องกะเวลาในการเดินทางกันพอสมควรค่ะ

การเดินทางโดยรถสาธารณะ : สะดวกค่ะ โดยตัวโครงการอยู่ห่างจากทางขึ้นทางเชื่อมสถานี BTS อโศก เป็นระยะ 700 เมตร ซึ่งถือว่ากลางๆ พอเดินถึง หรือจะเรียกพี่วินก็มีวิ่งผ่านไปมาหน้าโครงการบ่อยๆค่ะ หรือขาเข้าโครงการจากปากซอย ก็มีพี่วินที่หน้าปากซอยค่ะ นอกจากนั้นจะมีป้ายรถเมล์ 75 เมตร จากหน้าปากซอย ซึ่งจะมีรถเมล์สาย 2, 25, 38, 40, 48, 98, 501, 508 และ 511 วิ่วงผ่าน นอกจากนั้นก็สามารถเรียก Taxi หน้าโครงการได้ มีวิ่งผ่านไปมาตลอดค่ะ

การออกแบบโครงการและวัสดุ : โครงการนี้เป็นโครงการจาก Habitat ที่ถนัด Luxury Project อยู่แล้ว โดยส่วนใหญ่จะเน้นกลุ่มลูกค้าที่ต้องการซื้อเพื่อลงทุนปล่อยเช่า ซึ่งโครงการนี้ก็เช่นกัน ที่ทำออกมาเน้นลูกค้าชาวต่างชาติโดยเฉพาะชาวญี่ปุ่นที่อาศัยอยู่ในประเทศไทย ตัวโครงการโดยรวมจึงออกแบบมาให้มีบรรยากาศ และฟังก์ชั่นส่วนกลางต่างๆที่เน้นรายละเอียด และมีกลิ่นอายญี่ปุ่นอยู่เยอะพอสมควร

โดยที่ตัวอาคารยังคงเป็นสไตล์โมเดิร์นที่ดูอบอุ่น ด้วยวัสดุหินและไม้ หน้าตาอาคารโดยรวมเป็นกระจกและมี Facade ไม้ ตัวโครงการเป็นคอนโด Low Rise ยูนิตพักอาศัยเพียง 83 ยูนิตเท่านั้น บนที่ดิน 0-2-20 ไร่ ที่จอดรถ Automatic Parking ทั้งหมด 40 คัน หรือคิดเป็น 48% ของพื้นที่จอดรถทั้งหมด โดยจะเป็นที่จอดรถชั้นใต้ดิน 2 ชั้นค่ะ

แบบห้องในโครงการจะมีหลายแบบ แต่ห้องส่วนใหญ่จะเป็น 1 Bedroom(31.10 – 35.31 ตร.ม.) และ 1 Bedroom Plus (37.72 – 42.58 ตร.ม.) ความสูงฝ้าเพดาน 2.47 เมตร ส่วนห้องแบบอื่นๆในโครงการจะเป็นห้องแบบ Loft (ซึ่งจะมีทั้งขนาด 1 Bedroom Loft (58.52 ตร.ม.), 1 Bedroom Plus Loft (54.60 – 64.11) และ 2 Bedroom Loft (64.61 – 65.43 ตร.ม.) ซึ่งจะเป็นห้องฝ้าเพดานสูง 4.5 เมตร มีทั้งหมด 9 ยูนิต และแบบ Simplex 2 Bedroom (31.24 – 37.11 ตร.ม.) 2 ยูนิต และยูนิตพิเศษ ที่มีสวนส่วนตัว 2 ยูนิต เป็นห้องขนาด 1 Bedroom Plus Garden ที่ชั้น 1 ค่ะ

จุดเด่นของห้องในโครงการคือการจัดแปลนในห้องที่ทำออกมาได้ลงตัว จากที่ดูในห้องตัวอย่าง 1 Bedroom ขนาด 33.00 ตร.ม. ที่เป็นห้องแบบเริ่มต้นของโครงการ ก็ยังสามารถจัดแปลนให้มีฟังก์ชั่นการใช้งานครบและดูโปร่งไม่อึดอัดได้ พร้อมทั้ง Walk – in Closet, พื้นที่ครัวและห้องทานอาหารได้ครบ ฟังก์ชั่นห้องโดยรวมครบค่ะ

ส่วนวัสดุได้ของค่อนข้างดี ความสูงฝ้าเพดาน 2.47 เมตร ในห้องได้ Fully Fitted แต่ถือว่าให้มาเยอะเหมือนกัน คือจะได้เฟอร์นิเจอร์ Built – in คือ ตู้เก็บรองเท้า, โต๊ะทานอาหาร, ตู้เสื้อผ้า, โต๊ะทำงานพร้อมตู้เก็บของด้านข้าง, ชั้นวางทีวี, สุขภัณฑ์ครบชุดพร้อมเครื่องทำน้ำร้อน, ชุดเคาน์เตอร์ครัว พร้อมเตาไฟฟ้า + เครื่องดูดควัน + เตาไฟฟ้า + เตาไมโครเวฟ และ แอร์ค่ะ ส่วนวัสดุอื่นๆมี ประตู Digital Door Lock,พื้นห้องครัว, ห้องน้ำ และระเบียง ปูด้วยกระเบื้องพอร์ซเลน ลายหินอ่อน ส่วนห้องนอนและห้องนั่งเล่นเป็น ลามิเนต หนา 14 มม., สุขภัณฑ์ในห้องน้ำใช้ของ Kohler และได้อ่างอาบน้ำพร้อม ฉากกั้นมาในทุกห้อง, ประตูบานกระจกได้แบบ Full Height, และติดตั้งระบบ Nasket Scan เพื่อความสะดวกในชีวิตประจำวันมาให้พร้อมค่ะ

สาธารณูปโภค : ถึงจะเป็นโครงการขนาดไม่ใหญ่แต่ก็ถือว่าจัดมาให้ครบและหลากหลาย รองรับได้เหลือๆสำหรับจำนวน 83 ยูนิตค่ะ และมี Concept ดีเน้นสไตล์ญี่ปุ่นตาม Concept รวมของโครงการ โดยส่วนกลางหลักที่ชั้น 1 จะมี Lounge, Lobby 2 ชั้น, Mailbox, ฟิตเนส, โถงลิฟท์ มีลิฟท์โดยสาร 2 ตัว อัตราส่วนยูนิตต่อจำนวนลิฟท์ประมาณ 1 : 41 ใช้กันสบายๆ

และส่วนกลางบนชั้น Rooftop มีสระว่ายน้ำแยก สระเด็ก สระผู้ใหญ่, บ่อจากุชชี่, พื้นที่บาร์บีคิว , สนามเด็กเล่น, สวนหย่อมรอบๆ และส่วนกลางพิเศษกลิ่นอายญี่ปุ่น เช่น Hot & Cold Spa, Bamboo Way, Vichy Corner, Sunken Party Space, Relaxation Lawn และ Roof Pavillion

ระบบรักษาความปลอดภัยมีป้อมรปภ. มีเจ้าหน้าที่ประจำ 24 ชม. หน้าโครงการ ส่วนทางเข้าอาคารต้องใช้คีย์การ์ดแตะ และลิฟท์แบบล็อคชั้น พร้อมกล้อง CCTV ทั่วโครงการค่ะ

คะแนน

ทำเลที่ตั้งโครงการ 8.5 ในซอยสุขุมวิท 23 ระยะทาง 350 เมตร จากถนนสุขุมวิท ใกล้ BTS อโศก ความอุดมสมบูรณ์พร้อมทั้งในระยะเดินและในวงกว้าง ใกล้ Terminal 21 และ The District M
การเดินทาง ใช้รถ 8.0 เดินทางสะดวก มีซอยลัดเลาะ แต่รถจะติดหนักบ้างช่วงเวลาเร่งด่วน
การเดินทาง ไม่ใช้รถ 7.9 หน้าโครงการมีพี่วินและ Taxi ผ่านไปมาตลอด หรือจะเดินจากโครงการประมาณ 700 เมตร จะถึงทางเชื่อม BTS อโศก
ห้องและวัสดุ 8.5 แปลนห้องแบ่งได้เป็นสัดส่วนลงตัว ดูโปร่งและได้ฟังก์ชั่นครบ ขายแบบ Fully Fitted ให้ของมาครบดี วัสดุ และอุปกรณ์ที่ได้มีคุณภาพดี ตอนนี้มีโปร Fully Furnished ด้วย
สิ่งอำนวยความสะดวก 8.5 มีมาให้แบบเหลือๆ และหลากหลาย มีส่วนพิเศษเพิ่มเติมมากมาย เช่น บ่อสปา น้ำร้อนน้ำเย็น, Vichy Water เป็นต้น
ความคุ้มค่ากับราคา 8.0 คอนโดทำเลกลางเมือง ในซอยสุขุมวิท 23 เดินทางสะดวก ใกล้ BTS อโศก มีความอุดมสมบูรณ์และห้างใหญ่ล้อมรอบตัวโครงการออกแบบหรูดูดี เหมาะทั้งอยู่อาศัยเองและซื้อเพื่อลงทุน เน้นลูกค้าชาวต่างชาติ โดยเฉพาะชาวญี่ปุ่น
คะแนนรวมเฉลี่ย 8.23 ดีมาก

สอบถามรายละเอียดเพิ่มเติมได้ที่

Tel : 083-190-7777

Website : https://goo.gl/gnqXCd

อ่านเพิ่มเติม


สนใจลงโฆษณากับทาง Homenayoo ติดต่อสอบถามรายละเอียดได้ที่
คุณวันเฉลิม  086-1290293 
LINE ID : 123456786205
Email : wanchalearm.t@gmail.com
ทางเราเป็นเว็บไซต์ให้ข้อมูล ไม่ใช่เจ้าของโครงการนะครับ