
คอนโด มิราจ สุขุมวิท 27 / MIRAGE SUKHUMVIT 27
Mirage สุขุมวิท 27 จาก มิราจ พร็อพเพอร์ตี้ พลัส ตั้งอยู่บนถนนสุขุมวิท 27 แขวงคลองเตยเหนือ เขตวัฒนา กทม. ใกล้แยกอโศก, BTS อโศก และ MRT สุขุมวิท ใกล้ Terminal 21, Robinson สุขุมวิท, ม.ศ.ว., อาคาร GMM และ รพ.สมิติเวช สุขุมวิท
เดอะ รูม สุขุมวิท 21 เป็นคอนโด Low-Rise 8 ชั้น 1 อาคาร ห้องพักอาศัยจำนวน 117 ยูนิต มีห้องพักให้เลือกแบบ 1 Bedroom และ 2 Bedroom ขนาดเริ่มต้น ประมาณ 35-80 ตร.ม. โครงการสร้างเสร็จพร้อมอยู่ปี 2557
สิ่งอำนวยความสะดวกภายในโครงการครบครัน อาทิ โถงต้อนรับ, ห้องจดหมาย, สระว่ายน้ำ, ฟิตเนส, สวนพักผ่อน, ลิฟต์โดยสาร, ประตูคีย์การ์ด, ที่จอดรถ 66 คัน, กล้องวงจรปิด และ รปภ.24 ชม. ราคาเริ่มต้น ประมาณ 3.45 ล้านบาท* (ช่วงเปิดโครงการ)

| ชื่อโครงการ | มิราจ สุขุมวิท 27 / MIRAGE SUKHUMVIT 27 |
| เจ้าของโครงการ | มิราจ พร็อพเพอร์ตี้ พลัส |
| ลักษณะห้องและขนาดห้อง | 1 Bed / 35.00 – 54.25 ตร.ม. 2 Bed / 55.00 – 80.00 ตร.ม. |
| เนื้อที่ทั้งหมด | n/a |
| จำนวนตึก | 1 อาคาร |
| จำนวนชั้น | 8 ชั้น |
| จำนวนห้อง | 117 ยูนิต |
| ที่จอดรถทั้งหมด | 66 คัน |
| โซน | สุขุมวิท, อโศก, เพชรบุรี |
| ขนส่งสาธารณะ | – รถไฟฟ้าใต้ดิน MRT สถานีสุขุมวิท – รถไฟฟ้า BTS สถานีอโศก |
| รถโดยสารที่ผ่าน | n/a |
| ที่ตั้ง | ซอยสุขุมวิท 27 (ซอยประภัสสร) ถนนสุขุมวิท แขวงคลองตันเหนือ เขตวัฒนา กรุงเทพมหานคร |
| กำหนดการ | พ.ศ.2557 |
| ปีที่สร้างเสร็จ | n/a |
| ราคา | เริ่มต้น 3,450,000 บาท (ณ วันเปิดตัว) |
| ราคาเฉลี่ยต่อ ตร.ม | เริ่มต้น 98,600 บ./ตร.ม. |
| สถานที่สำคัญใกล้เคียง | 1. โรงแรมพาร์คพลาซ่าสุขุมวิท 2. รถไฟฟ้า BTS อโศก และ พร้อมพงษ์ 3. รถไฟฟ้าใต้ดิน MRT สุขุมวิท 4. ห้างสรรพสินค้าเทอร์มินอล 21 5. วิลล่าซุปเปอร์มาเก็ต |
| สิ่งอำนวยความสะดวก | – สระว่ายน้ำ – ห้องออกกำลังกาย – ห้องสมุด – สวนหย่อม – ลิฟท์โดยสาร 2 ตัว – ที่จอดรถ – ระบบ CCTV / Access Card |
| จุดเด่นของโครงการ | – สะดวกสบาย ใกล้กับBTS อโศก และ MRT สุขุมวิท |
ที่ตั้งโครงการ
ซอยสุขุมวิท 27 (ซอยประภัสสร) ถนนสุขุมวิท แขวงคลองตันเหนือ เขตวัฒนา กรุงเทพมหานคร
การเดินทาง
คลิกที่รูป เพื่อดูแผนที่ขนาดใหญ่
การเดินทาง เริ่มจาก แยกอโศก > ถนนสุขุมวิท > ซอยสุขุมวิท 27 > Mirage สุขุมวิท 27 *ใกล้ ถนนสุขุมวิท และใกล้โรงแรม Radisson Blu Plaza Bangkok
การเดินทางเราเริ่มจาก แยกอโศก ที่มาจาก ศูนย์ประชุมแห่งชาติสิริกิติ์ ถนนรัชดาภิเษก จากนั้นให้ชิดขวาเพื่อเลี้ยวไป เอกมัย ตามป้ายค่ะ ถ้าตรงไป เพชรบุรี ซ้ายไป เพลินจิต
พอเข้าสู่ ถนนสุขุมวิท มาแล้วให้ขับตรงไป ประมาณ 350 เมตร สังเกตจะมี โรงแรมRadisson Blu Plaza Bangkok อยู่ปาก ซอยสุขุมวิท 27 เราจะเลี้ยวเข้าซอยนี้กันคะ
ถึงโครงการ Mirage สุขุมวิท 27
บริเวณด้านหน้าโครงการ Mirage สุขุมวิท 27
ตัวโครงการ Mirage สุขุมวิท 27
คลิกที่รูป เพื่อดูแผนที่ขนาดใหญ่
สถานที่สำคัญ
– BTS อโศก
– MRT สุขุมวิท
– Airport Link มักกะสัน
– ทางพิเศษเฉลิมมหานคร
– Terminal 21 Shopping Mall
– Robinson สุขุมวิท
– สวนเบญจสิริ
– สวนเบญจกิตติ
– ศูนย์ประชุมแห่งชาติสิริกิติ์
– ตึก GMM.
– The EmQuartier
– The Emporium
– The Emsphere
– ประสานมิตร พลาซ่า
– โรงพยาบาลพร้อมมิตร
– โรงพยาบาลสมิติเวช สุขุมวิท
– โรงพยาบาลบำรุงราษฎร์
– โรงพยาบาลจักษุรัตนิน
– โรงเรียนนานาชาติอเมริกัน กรุงเทพ
– โรงเรียนนานาชาติโมเดิร์น
– โรงเรียนนานาชาติ NIST
– โรงเรียนวัฒนาวิทยาลัย
– โรงเรียนสาธิต มหาวิทยาลัยศรีนครินทรวิโรฒ ประสานมิตร
– โรงเรียนสายน้ำผึ้ง
– โรงเรียนสายน้ำทิพย์
– มหาวิทยาลัยศรีนครินทรวิโรฒ ประสานมิตร
แปลนอาคาร
Basement Floor / Ground Floor / 2nd Floor / 3rd-7th Floor / 8th Floor
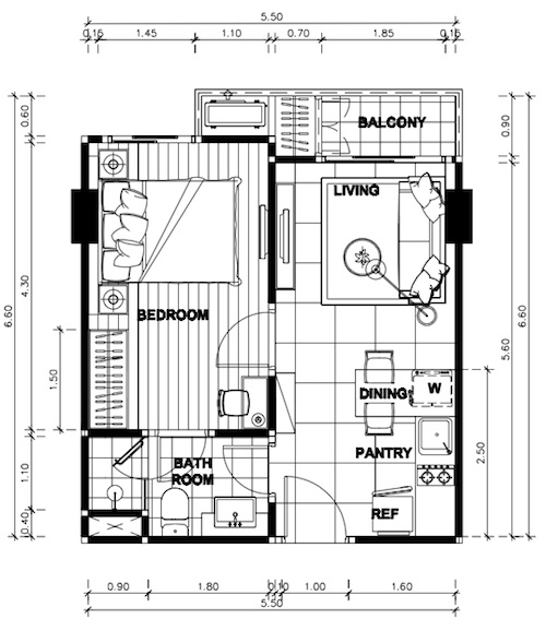
แปลนห้อง
Type 1 Bed A / Type 1Bed B / Type 2 Bed
แกลลอรี
สนใจติดต่อรายละเอียดเพิ่มเติมได้ที่
Tel. 02-661 6206-8
Website : https://th-th.facebook.com/m.mirage27