
โฮมออฟฟิศ เดอะ มาสเตอร์ @บีทีเอส อ่อนนุช 2 The Master @BTS Onnut 2 ใกล้ BTS ศรีนุช เพียง 400 ม.*
The Master @BTS อ่อนนุช 2 โครงการจาก บริษัท สยาม มาสเตอร์พีช แอสเส็ท จำกัด ที่ตั้งโครงการอยู่บนถนนอ่อนนุช (สุขุมวิท 77) แขวงสวนหลวง เขตสวนหลวง กทม. บนทำเลใจกลางสุขุมวิท ติดถนนใหญ่ ใกล้ทางด่วนและรถไฟฟ้า 2 สาย ทั้ง BTS สายสีเขียว อ่อนนุช และ MRT สายสีเหลือง สถานีศรีนุช เพียง 400 ม.*
เดอะ มาสเตอร์ @บีทีเอส อ่อนนุช 2 เป็นโครงการโฮมออฟฟิศและอาคารพาณิชย์ 4.5 ชั้น ตั้งอยู่บนพื้นที่โครงการ 2-3-67.7 ไร่ จำนวนทั้งหมด 28 ยูนิต ฟังก์ชันบ้าน 1-4 ห้องนอน, 3-4 พื้นที่อเนกประสงค์, 4 ห้องน้ำ, 2-5 ที่จอดรถ พร้อมลิฟต์โดยสารส่วนตัวทุกยูนิต

| ชื่อโครงการ | เดอะ มาสเตอร์ @บีทีเอส อ่อนนุช 2 / The Master @BTS Onnut 2 |
| เจ้าของโครงการ | บริษัท สยาม มาสเตอร์พีช แอสเส็ท จำกัด / Siam Masterpiece |
| ลักษณะโครงการ |
|
| พื้นที่โครงการ | 2-3-67.7 ไร่ |
| จำนวนบ้าน | 28 หลัง |
| เนื้อที่บ้าน | รอข้อมูลจากทางโครงการ |
| พื้นที่ใช้สอย | รอข้อมูลจากทางโครงการ |
| จำนวนห้อง | 1-4 ห้องนอน, 3-4 พื้นที่อเนกประสงค์, 4 ห้องน้ำ |
| ที่จอดรถทั้งหมด | 2-5 คัน |
| โซน | อ่อนนุช |
| เส้นทางคมนาคม |
|
| ที่ตั้ง | ถนนอ่อนนุช (สุขุมวิท 77) แขวงสวนหลวง เขตสวนหลวง กทม. 10250 |
| กำหนดการ | ขายหมดแล้ว |
| ปีที่สร้างเสร็จ | สร้างเสร็จพร้อมอยู่ |
| ราคา | รอข้อมูลจากทางโครงการ |
| ค่าส่วนกลาง | รอข้อมูลจากทางโครงการ |
| สถานที่สำคัญใกล้เคียง | ห้างสรรพสินค้า / ตลาดสด
สถานศึกษา
สถานพยาบาล
|
| สิ่งอำนวยความสะดวก |
|
| Tel | 082-315-9999 |
| Line | https://line.me/ti/p/~@siammasterpiece |
| Website | https://www.siammasterpiece.com/ |
ที่ตั้งโครงการ
ถนนอ่อนนุช (สุขุมวิท 77) แขวงสวนหลวง เขตสวนหลวง กทม. 10250
พิกัดโครงการ : https://maps.app.goo.gl/fUPeK7Du5WUwaG5H7
**หมายเหตุ : ข้อมูลอาจมีการเปลี่ยนแปลง เนื่องจากโครงการยังไม่เปิดตัวอย่างเป็นทางการค่ะ**
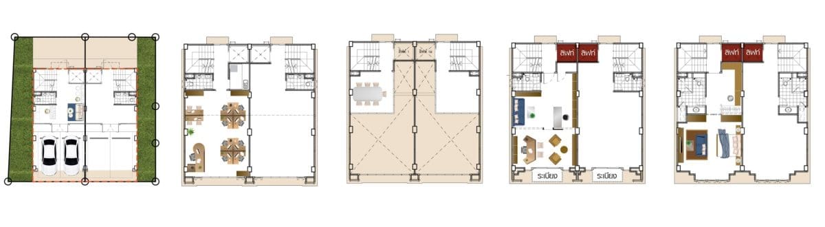
HOUSE TYPE
โครงการ The Master @BTS อ่อนนุช 2 มีอาคารพาณิชย์ให้เลือก 2 แบบ และโฮมออฟฟิศ 2 แบบ ดังนี้
แปลนบ้านชั้น 1 | แปลนบ้านชั้นลอย | แปลนบ้านชั้น 2 | แปลนบ้านชั้น 3 | แปลนบ้านชั้น 4
แปลนบ้านชั้น 1 | แปลนบ้านชั้น 2 | แปลนบ้านชั้นลอย | แปลนบ้านชั้น 3 | แปลนบ้านชั้น 4
แปลนบ้านชั้น 1 | แปลนบ้านชั้น 2 | แปลนบ้านชั้นลอย | แปลนบ้านชั้น 3 | แปลนบ้านชั้น 4
GALLERY
ภาพและบรรยากาศจำลองโครงการ The Master @BTS อ่อนนุช 2
ภาพและบรรยากาศจำลองโครงการ The Master @BTS อ่อนนุช 2
ภาพและบรรยากาศจำลองโครงการ The Master @BTS อ่อนนุช 2
ภาพและบรรยากาศจำลองโครงการ The Master @BTS อ่อนนุช 2
ภาพและบรรยากาศจำลองโครงการ The Master @BTS อ่อนนุช 2
สอบถามรายละเอียดเพิ่มเติมได้ที่
Tel : 082-315-9999
Website : https://www.siammasterpiece.com/
ทาวน์โฮม ทำเลอื่นๆ ที่น่าสนใจ…
ไอลีฟ ไพร์ม พระราม 2 กม.14 เริ่ม 2.19-7.5 ล้าน*
โฮมออฟฟิศ ชญาดา บิซ เพลส ศรีนครินทร์-อ่อนนุช เริ่ม 14 ล้าน*
คอร์ อุดมสุข โฮมออฟฟิศ 6 ชั้น พร้อมลิฟต์ส่วนตัว เริ่ม 68 ล้าน*
โฮมออฟฟิศ เดอะ มาสเตอร์ @บีทีเอส อ่อนนุช 2
ทาวน์โฮม ภิรมย์ ปทุม-สามโคก เริ่ม 2 ล้าน*
สุริยา วิลเลจ สุขุมวิท-บางปู เริ่ม 2.49 ล้าน*
ทาวน์โฮม พราว แพรกษา-เทพารักษ์ เริ่ม 1.69 ล้าน*
ทาวน์โฮม เอสแฮปปี้โฮม บางพลี
ทาวน์โฮม เดอะ บริคโก้ ทาวน์ เทพารักษ์-บางพลี เริ่ม 1.79 ล้าน*
ทาวน์โฮม นิรันดร์ วิลล์ บางนา-ตราด กม.29 เริ่ม 2.49 ล้าน*
นิรันดร์ วิลล์ เทพารักษ์ 66