
รีวิว บ้านเดี่ยว เพอร์เฟค เพลส สุขุมวิท 77 – สุวรรณภูมิ Perfect Place Sukhumvit 77 – Suvannabhumi
สวัสดีค่ะ ผู้อ่าน Homenayoo ที่รักทุกคน วันนี้เราจะพาไปชมโครงการบ้านเดี่ยวย่านลาดกระบัง กับโครงการ Perfect Place สุขุมวิท 77 – สุวรรณภูมิ จาก Property Perfect
เป็นโครงการที่มีบ้าน 5 แบบให้เลือก ขนาดพื้นที่ใช้สอย 104-204 ตร.ม. ขนาดที่ดินเริ่มต้นที่ 54.0 ตร.วา โดยจะเป็นบ้านที่มีพื้นที่สวนโดยรอบ สิ่งอำนวยความสะดวกในโครงการมีครบครัน ทั้งสวนสาธารณะที่อยู่รอบทะเลสาบ, Club House ที่มีสระว่ายน้ำ 2 สระ,ฟิตเนส พร้อมอุปกรณ์หลากหลาย,ห้องโยคะ และห้องแอโรบิค มีร้านค้าและร้านอาหารในโครงการ ราคาเริ่มต้นที่ 5.39 ล้านบาท*
โครงการตั้งอยู่บนถนนลาดกระบัง ซึ่งเป็นถนนที่เชื่อมทั้งถนนสุขุมวิท 77 หรือถนนอ่อนนุช, พัฒนาการ, , ถนนกิ่งแก้ว, ศรีนครินทร์ และกาญจนาภิเษก ไม่ไกลจากทางด่วนและ Airport Rail Link โดยรอบเป็นย่านพักอาศัย มีร้านค้า ร้านอาหาร ตลาดสด และคอมมูนิตี้มอลอยู่ไม่ไกล ใกล้สถานศึกษา และสถานที่ราชการ
วันนี้เราจะพาท่านผู้อ่านไปสำรวจสถานที่ วิเคราะห์ทำเล และดูบ้านตัวอย่างกันค่ะ ว่าโครงการนี้เป็นอย่างไร : )
บ้านเดี่ยว Perfect Place ทำเลอื่นๆ ที่น่าสนใจ…
เพอร์เฟค เพลส รามอินทรา – วงแหวน
เพอร์เฟค เพลส รามคำแหง – สุวรรณภูมิ 3
เพอร์เฟค เพลส แจ้งวัฒนะ 2
เพอร์เฟค เพลส รังสิต – ทางด่วนบางพูน
เพอร์เฟค เพลส สุขุมวิท 77 – สุวรรณภูมิ
เพอร์เฟค เพลส วงแหวน – รามคำแหง
เพอร์เฟค เพลส รัตนาธิเบศร์ – สถานีไทรม้า
เพอร์เฟค เพลส พระราม 9 – กรุงเทพกรีฑา
เพอร์เฟค เพลส เมืองเชียงใหม่
บ้านเดี่ยว Perfect Park ทำเลอื่นๆ ที่น่าสนใจ…
เพอร์เฟค พาร์ค เวสต์เกต
เพอร์เฟค พาร์ค ชัยพฤกษ์
เพอร์เฟค พาร์ค ราชพฤกษ์-ปทุมธานี
เพอร์เฟค พาร์ค พระราม 5-บางใหญ่

| ชื่อโครงการ | เพอร์เฟค เพลส สุขุมวิท 77 – สุวรรณภูมิ / PERFECT PLACE SUKHUMVIT 77 – SUVANNABHUMI |
| เจ้าของโครงการ | พร็อพเพอร์ตี้เพอร์เฟค Property perfect |
| ลักษณะโครงการ | บ้านเดี่ยว / 5 แบบ |
| พื้นที่โครงการ | 51 ไร่ 2 งาน 29.38 ตร.ว. |
| จำนวนบ้าน | 237 (เฉพาะเฟส 6 ที่เปิดขาย) 1,100 (รวมทั้งโครงการใน Lake Avenue ) |
| พื้นที่ใช้สอย | 106.0 – 240.0 ตร.ม. |
| จำนวนห้อง | 3-4 ห้องนอน / 2 -3 ห้องน้ำ |
| ที่จอดรถทั้งหมด | 2 คัน |
| โซน | ลาดกระบัง, บางพลี, สมุทรปราการ |
| ขนส่งสาธารณะ | เดินทางสู่จุดหมายได้ด้วยรถไฟฟ้า Airport Link |
| รถโดยสารที่ผ่าน | 11, 92ร, 133ร, 207ร, 517 |
| ที่ตั้ง | ถนนลาดกระบัง ตำบลคลองราชาเทวะ อำเภอบางพลี จังหวัดสมุทรปราการ |
| กำหนดการ | เฟสแรกเริ่มก่อสร้าง 2547 |
| ปีที่สร้างเสร็จ | ปลายปี 2561 (เฟส 6 ที่เปิดขาย) |
| ราคา | เริ่มต้น 5.39 บาท (ก.ค.2560) *ราคาเริ่มต้นแล้วแต่แบบบ้าน |
| สถานที่สำคัญใกล้เคียง |
|
| สิ่งอำนวยความสะดวก |
|
| จุดเด่นของโครงการ | ท่ามกลางบรรยากาศทะเลสาบกว้าง 20 ไร่ และพื้นที่พักผ่อนรอบทะเลสาบ ครบทุกความต้องการสำหรับชีวิตทันสมัย ทั้ง Master Club ริมทะเลสาบ สระว่ายน้ำแบบ Infinity Feeling ฟิตเนส และซาวน่า |
ที่ตั้งโครงการ
พิกัด google map: 13°43’18.2″N 100°43’33.3″E
ถนนลาดกระบัง ตำบลคลองราชาเทวะ อำเภอบางพลี จังหวัดสมุทรปราการ

โครงการ Perfect Place สุขุมวิท 77 – สุวรรณภูมิ ตั้งอยู่บนถนนลาดกระบัง เป็นถนนเส้นใหญ่ที่เชื่อมกับถนนและทางด่วนหลายสาย ทำให้เดินทางได้หลากหลายเส้นทาง เชื่อมทั้งถนนสุขุมวิท 77 หรือถนนอ่อนนุช, ถนนพัฒนาการ, ถนนร่มเกล้า, วงแหวนรอบนอกกาญจนาและกรุงเทพ-ชลบุรีสายใหม่ ไม่ไกลจากแอร์พอร์ตลิงค์ ห้างสรรพสินค้า, คอมมูนิตี้มอล, ร้านค้า และตลาดสด
ที่ตั้งโครงการ ตั้งอยู่ถนนลาดกระบัง เป็นถนนเส้นใหญ่ที่เชื่อมกับถนนหลายสาย คือเชื่อมทั้งถนนสุขุมวิท 77 หรือถนนอ่อนนุช, ถนนพัฒนาการ, ถนนร่มเกล้า, ถนนกิ่งแก้ว, ถนนสุวรรณภูมิ และถนนฉลองกรุง ทำให้เดินทางได้หลากหลายเส้นทาง และเมื่อรู้ช่วงเวลา หรือเส้นทางไว้ลัดเลาะเพื่อไปยังถนนต่างๆก็จะสะดวกยิ่งขึ้นค่ะ โดยสองข้างทางจะมีร้านค้า ร้านอาหาร ตลาดสดไม่ไกลจากห้างสรรพสินค้าและคอมมูนิตี้มอล
การเดินทางด้วยรถยนต์ส่วนตัว ถือว่าสะดวกทีเดียวเนื่องจากถนนหน้าโครงการสามารถลัดเลาะไปยังถนนได้หลายสาย สำหรับถนนลาดกระบัง สามารถตรงไปยังฉะเชิงเทรา หรือไปเชื่อมถนนมุ่งสู่ชลบุรีได้ โดยไปยังเส้นทางกรุงเทพ-ชลบุรี หรือถ้าตรงมายังทางตัวเมืองกรุงเทพก็จะเชื่อมกับถนนอ่อนนุชหรือสุขุมวิท 77 ซึ่งเส้นนี้ก็เชื่อมกับหลายสายเช่นกันเริ่มจากวงแหวนรอบนอกกาญจนา สามารถตรงไปเข้า-ออกตัวเมืองและต่างจังหวัด โดยรอบกรุงเทพได้ไม่ยาก ถัดไปก็จะเชื่อมกับถนนพัฒนาการ ซึ่งเชื่อมกับถนนเพชรบุรีและรามคำแหง ตรงไปยังรามคำแหงและพระราม 9 ได้
ถนนศรีนครินทร์ ตรงมายังบางนา-ตราด, ถนนแบริ่ง และเทพารักษ์ เส้นนี้ก็จะตรงมายังย่านอุตสาหกรรมได้สะดวก และสามารถไปยังลาดพร้าว, รามคำแหง, นวมินทร์ก็ได้ค่ะ เรียกได้ว่าจะทั้งเข้าและออกตัวเมืองกรุงเทพ ย่านเศรษฐกิจ ย่านพักอาศัยก็สะดวก
ปากซอยถนนอ่อนนุชหรือสุขุมวิท 77 จะเชื่อมกับถนนรัชดาภิเษก สำหรับเส้นนี้ตรงยาวไปถึงย่านบางปู หรือจะตรงเข้าเมืองกรุงเทพได้เลยค่ะ เส้นนี้ถือว่าเป็นถนนเส้นหลักที่สามารถตรงไปยังย่านคลองตัน, ปทุมวัน ยาวไปจนถึงถนนพระราม 1
ทางด่วน อีกทั้งที่ตั้งโครงการนั้นยังอยู่ไม่ไกลกับจุดขึ้น-ลงทางด่วน สำหรับทางด่วนโดยรอบโครงการนั้น ก็จะเป็นทางด่วนที่เชื่อมต่อกัน ทำให้เดินทางได้สะดวกมากยิ่งขึ้น เลือกได้ว่าจะขึ้นหรือลงจุดไหนเพื่อจะทำธุระโดยรอบก่อนก็ได้ อย่างจุดที่ใกล้คือจุดขึ้น-ลงวงแหวนรอบนอกกาญจนา เส้นนี้ก็ทำให้ไปยังพื้นที่โดยรอบเขตกรุงเทพได้ไม่ยาก ตัวเมืองและปริมณฑลโดยรอบสามารถใช้เส้นนี้ได้
หรือจะไปยังชลบุรี ก็วิ่งบางนา-ตราดหรือกรุงเทพ-ชลบุรีสายใหม่ สำหรับเส้นบางนา – ตราดก็ไปเชื่อมกับทางด่วนเฉลิมมหานครได้อีกทางค่ะเส้นนั้นตรงไปยังตัวเมืองเขตปทุมวัน เชื่อมไปถึงทางยกระดับอุตรภิมุขตรงไปยังจตุจักร, ดอนเมือง และยังตรงยาวไปยังพระราม 2 ได้
สำหรับเส้นกรุงเทพ-ชลบุรีสายใหม่ ก็เชื่อมกับทางด่วนศรีรัชวิ่งไปบางซื่อ ไปนนทบุรี และตรงไปยังปทุมธานีได้ เรียกได้ว่าที่ตั้งโครงการนั้นสะดวกทั้งถนนแนวราบและทางด่วนค่ะ ดังนั้นเรื่องการเดินทางถ้ารู้จักเส้นทางและรู้ว่าเส้นไหนเชื่อมต่อตรงไหนบ้าง หรือควรเลี่ยงรถติดช่วงเวลาไหน ก็จะทำให้เดินทางได้สะดวกมากยิ่งขึ้น
การเดินทางด้วยรถสาธารณะ สำหรับโครงการ Perfect Place สุขุมวิท 77 – สุวรรณภูมิ จะอยู่ในโครงการ Lake Avenue ซึ่งเป็นโครงการที่ถนนด้านหน้านั้นมีรถโดยสารสาธารณะวิ่งผ่าน ซึ่งป้ายรถประจำทางก็อยู่ไม่ไกลจากหน้าโครงการ Lake Avenue ในระยะที่เดินไปได้ค่ะ ดังนั้นถ้าจะใช้บริการก็สามารถปั่นจักรยานออกมาแล้วมาจอดไว้หลังทางเข้า-ออกตรงซุ้มประตูได้เลย
อีกทั้งเส้นลาดกระบังนี้ยังมีทั้งรถสองแถว, รถตู้ และถือว่าไม่ไกลจาก Airport Rail Link โดยสถานีที่ใกล้ที่สุดคือสถานีลาดกระบัง สำหรับ Airport Rail Link นั้นสามารถเชื่อมกับทั้ง BTS สายสีเขียวตรงสถานีพญาไท และ MRT สายสีน้ำเงินตรงสถานีมักกะสัน ส่วนที่เส้นทางหนึ่งที่สามารถไปได้ถ้าอยากเดินทางด้วยรถไฟฟ้าสายสีเขียวโดยตรง สถานีที่ใกล้ที่สุดคือสถานีอ่อนนุชค่ะ สำหรับรถไฟฟ้าเส้นนี้จะวิ่งปลายทางคือแบริ่ง และตรงยาวไปจนถึงจตุจักร หรืออีกเส้นสีเขียวเข้มก็ไปยังฝั่งธนที่สถานีบางหว้าได้
ความอุดมสมบูรณ์ เนื่องจากที่ตั้งโครงการอยู่ในย่านพักอาศัย มีหลายหมู่บ้าน พื้นที่ใกล้เคียงเป็นที่ดินเปล่าหรือทุ่งนาบ้างเล็กน้อย แต่ส่วนใหญ่เป็นที่พักอาศัย และบริษัทเอกชน จะมีทั้งจึงทำให้บริเวณใกล้เคียงมีความอุดมสมบูรณ์มากทีเดียวค่ะ สองข้างทางมีร้านค้า, ร้านอาหาร, ตลาดสด และใกล้กับโครงการในระยะที่ปั่นจักรยานหรือเดินจากหน้าโครงการไปได้เลยจะมีคอมมูนิตี้มอลที่ชื่อว่า The Paseo Mall ตรงนั้นมีทั้งร้านค้า,ร้านอาหาร ให้สามารถไปจับจ่ายใช้สอยได้สะดวก วันไหนเบื่อๆอยากเดินเล่นหาอาหารนอกบ้านทาน ก็เพียงออกมาตรงถนนหน้าหมู่บ้านก็สามารถไปทานได้แล้ว
โดยรอบโครงการจะมีสถานศึกษาทั้งประถมไปจนถึงระดับมหาวิทยาลัย ไม่ว่าจะเป็นโรงเรียนเทพศิรินทร์ ร่มเกล้า, โรงเรียนนานาชาติร่วมฤดี ถนนร่มเกล้า, โรงเรียนเตรียมอุดมพัฒนาการและมหาวิทยาลัยเกษมบัณฑิต ถนนพัฒนาการ, และมหาวิทยาลัยหัวเฉียว ถนนบางนา-ตราด
สำหรับตลาดสดก็มีทั้งตลาดลานบุญ ถนนลาดกระบังและตลาดเอี่ยมสมบัติ ตรงถนนอ่อนนุช หรือถ้าจะไปห้างสรรพสินค้าใหญ่ๆก็จะมีบิ๊กซีและโลตัสตรงถนนอ่อนนุช สำหรับห้างสรรพสินค้าใหญ่แหล่งอื่นที่อยู่ไม่ไกล จะอยู่เส้นบางนา-ตราดค่ะ นั่นคือ Index บางนา, Central บางนา , Mega บางนา และ Ikea เรียกได้ว่าจะอยากไปจับจ่ายแบบไหนก็เลือกได้สะดวก จะเดินเล่น หาอะไรทาน หรือซื้อของสดมาทำกับข้าวที่บ้านก็ไม่ยาก
แยกและถนนสำคัญใกล้เคียง
การเดินทาง
เรามีภาพการเดินทางโดยรถมาให้ชมกัน เส้นทางการเดินทางตามลูกศรแดง โดยเริ่มเดินทางจาก จากกาญจนาภิเษก → วิ่งเข้าวงแหวนรอบนอกกาญจนา → เลี้ยวซ้ายเข้าสุขาภิบาล 2 →เลี้ยวขวาเพื่อเข้าถนนลาดกระบัง→ ตรงเข้าไปประมาณ 2.8 กม. ก็จะเจอพื้นที่โครงการ Perfect Place สุขุมวิท 77 – สุวรรณภูมิ แล้วค่ะ
จากถนนกาญจนาภิเษก
เส้นนี้ที่พอไปจะเป็นวงแหวนรอบนอกกาญจนานะคะ จะเห็นว่ามีทั้งป้ายไปยังสุวรรณภูมิ และตรงไปยังลาดกระบัง
ให้เราตามลูกศรตรงไปถนนอ่อนนุช
ทางไปยังอ่อนนุชและลาดกระบังจะเป็นทางเดียวกัน ให้ไปตามป้ายบอกทาง
ลงจากวงแหวนรอบนอกกาญจนา จะต้องเลี้ยวเข้าไปถนนสุขาภิบาล 2 เพื่อกลับรถ
ถนนสุขาภิบาล 2 ก็เลี้ยวขวาเข้าถนนลาดกระบัง
ถนนลาดกระบังเป็นถนน 8 เลนมีเกาะกลางแบ่งเขตถนนชัดเจน
สองข้างทางมีร้านค้า ร้านอาหาร อาคารพานิชย์ ด้านซ้ายมือจะผ่านตลาดลานบุญ
ตรงมาเรื่อยๆจะเจอจุดกลับ สังเกตได้จากป้าย Toyota ถ้าเห็นป้ายแสดงว่าไม่ไกลจากจุดกลับรถแล้วค่ะ
เลี้ยวกลับมา จะเยื้องกับ The Paseo Mall ซึ่งเป็นคอมมูนิตี้มอลที่ใกล้โครงการในระยะที่เดินมาได้เลย
เลี้ยวซ้ายเข้าโครงการค่ะ ป้ายด้านหน้าที่เห็นชัดคือ Lake Avenue และจะเห็นป้ายของโครงการ Perfect Place สุขุมวิท 77 – สุวรรณภูมิ เป็นป้ายสีขาวสูง สังเกตได้ไม่ยาก
บริเวณโดยรอบโครงการ

โครงการ Perfect Place สุขุมวิท 77 – สุวรรณภูมิ จะอยู่ในโครงการ Lake Avenue ดั้งนั้นพื้นที่โดยรวมจากแผนที่ ที่เห็นเป็นกรอบสีขาวคือพื้นที่ทั้งหมดของโครงการ Lake Avenue ส่วนโครงการ Perfect Place สุขุมวิท 77 – สุวรรณภูมิ ที่วันนี้ทีมงานจะพาไปชมคือเฟส 6 ภายแผนที่ด้านบนคือส่วนพื้นที่สีฟ้า
พื้นที่ภายใน Lake Avenue เป็นโครงการขนาดใหญ่ มีประตูทางเข้า-ออก ด้านหน้าติดกับถนนลาดกระบัง ภายในโครงการมีสวนส่วนกลางล้อมทะเลสาบ ใกล้ Club House ส่วนในพื้นที่แต่ละเฟสก็จะมีสวนเล็กๆของตัวเองให้ต่างหากด้วย พื้นที่โดยรอบโครงการเป็นบ้านพักอาศัย ทั้งเป็นบ้านพักส่วนตัวและเป็นแบบหมู่บ้าน ติดถนนลาดกระบังจะมีร้านค้า, ร้านอาหาร, บริษัทเอกชนต่างๆ ไม่ไกลจากโครงการมีคอมมูนิตี้มอลชื่อ The Paseo Mall พื้นที่โดยรอบบางส่วนยังมีที่ดินเปล่าอยู่บ้างค่ะ
หน้าโครงการคือถนนลาดกระบังเป็นถนน 8 เลนมีเกาะกลางถนน
ด้านซ้ายมุ่งตรงไปยังถนนอ่อนนุชซึ่งเชื่อมกับถนนสุขุมวิท
ด้านขวาจะตรงไปยังถนนหลวงแพ่ง มุ่งหน้าไปยังฉะเชิงเทราและชลบุรีได้
ด้านขวามือถ้าเดินตรงมาไม่ถึง 50 ม.ก็จะเป็นป้ายรถโดยสารประจำทาง และจะมีวินมอเตอร์ไซค์อยู่ตรงนี้ค่ะ
ทางเข้าโครงการที่อยู่ติดกับถนนลาดกระบังจะเป็นป้ายโครงการ Lake Avenue สำหรับโครงการ Perfect Place สุขุมวิท 77 – สุวรรณภูมิ ให้ตรงเข้าไปด้านในเลยค่ะ

สถานที่สำคัญใกล้เคียง
บริเวณโครงการ
โครงการ Perfect Place สุขุมวิท 77 – สุวรรณภูมิ เป็นหนึ่งในโครงการที่อยู่ในพื้นที่ของ Lake Avenue ดังนั้นป้ายด้านหน้าตรงประตูทางเข้าหลักจะเป็นชื่อของ Lake Avenue นะคะ ภายในมีโครงการประมาณ 10 โครงการด้วยกัน
ประตูทางเข้า-ออก เป็นซุ้มประตูขนาดใหญ่ ใช้โทนสีเทาคาดน้ำเงิน มีการตกแต่งให้ผนังซุ้มมีลายเส้นในตัวผนัง และมีลายที่นูนออกมา ทางเข้า-ออก แบ่งกันชัดเจนโดยมีป้อม รปภ.กั้นตรงกลาง
ทางเข้า-ออกกั้นด้วยไม้กระดก เป็นระบบ Auto access มี CCTV ประตูมีไม้กระดกกั้น โดยจะมีสองช่องทางคือด้านขวาที่ติดกับป้อม รปภ.จะเป็นทางเข้าของแขกที่มาเยี่ยมชม ส่วนด้านซ้ายคือของลูกบ้านค่ะโดยสามารถใช้บัตร Pass Card แตะเพื่อเข้าโครงการได้เลย
ตรงกลางเป็นป้อม รปภ. จุดนี้จะมี รปภ.อยู่ตลอด 24 ชั่วโมง ด้านหน้าป้อมมีไม้พุ่มตกแต่ง
เข้ามาด้านในจะเป็นถนนหลักที่ตรงเข้าไปในโครงการ ถนนช่วงด้านหน้านี้จะมีเกาะกลาง สองข้างทางและเกาะกลางมีต้นไม้, ไม้พุ่มเป็นระยะ ทำให้โครงการดูร่มรื่น
ติดกับประตูทางเข้าโครงการหลักจะมีจุดจอดจักรยานและจักรยานยนต์ สะดวกเวลาจะนั่งรถโดยสารหรือสองแถวจากหน้าโครงการค่ะ
ถนนในโครงการมีความร่มรื่น สองข้างทางมีต้นไม่และไม้พุ่มตลอดทาง ด้านข้างมีเลนสำหรับจักรยานให้ด้วยค่ะ ถ้าตรงไปเรื่อยๆก็จะผ่านหน้าโครงการย่อยอื่นๆค่ะ
ตรงมาเรื่อยๆจะเจอกับทะเลสาบของโครงการ โดยตรงนี้จะมีสำนักงานขาย มีพื้นที่รอบทะเลสาบและ Club House
พื้นที่สวนส่วนกลางขนาดใหญ่ มีต้นไม้ใหญ่ ไม้พุ่มและทางเดินเล่นรอบสวน
พื้นที่นั่งพักผ่อนริมทะเลสาบ
ศาลานั่งเล่นในทะเลสาบ และพื้นที่เดินเล่นรอบสวน
จากมุมนี้จะเห็นไปถึงอาคาร Club House
ตรงมาเรื่อยๆผ่านโครงการ Perfect Masterpiece สองข้างทางมีไม้พุ่มและไมใหญ่ให้ความร่มรื่น
ตรงมาเรื่อยๆมาถึง Club House
สำหรับโครงการ Perfect Place สุขุมวิท 77 – สุวรรณภูมิ ให้เลี้ยวขวาหน้า Club House
ตรงมาเรื่อยๆ สองข้างทางยังมีไม้ใหญ่อยู่ตลอดข้างทาง
ใกล้ถึงโครงการจะมีพื้นที่สวนเล็กๆอีกจุดค่ะ
พื้นที่สวนที่มีไม้พุ่มและไม้ใหญ่
ตรงมาจะผ่านโครงการ Perfect Place สุขุมวิท 77 – สุวรรณภูมิ เฟส 4
Perfect Place สุขุมวิท 77 – สุวรรณภูมิ เฟส 6 ซึ่งจะเป็นเฟสที่เราพามาชมในวันนี้จะอยู่ด้านในสุด
แต่ละเฟสจะมีประตู้เข้าแยกต่างหากอีกครั้ง โดยจุดนี้ก็จะมีป้อม รปภ.
ปทางเข้า-ออกกั้นด้วยไม้กระดก เป็นระบบ Auto access มี CCTV ประตูมีไม้กระดกกั้น
เข้ามาด้านในจะเป็นพื้นที่ของเฟส 6 ถนนหลัก กว้างประมาณ 12 ม.สองข้างทางมีฟุตบาทให้เดินได้สะดวก มีความร่มรื่นจะไม้พุ่ม และต้นไม้ใหญ่ของโครงการ
ถนนซอยกว้าง 9 ม. มีฟุตบาทให้ตลอดแนวเช่นเดียวกัน
ในแต่ละเฟสจะมีพื้นที่สวนของตัวเองต่างหาก โดยสวนของโครงการจะอยู่ไม่ไกลจากประตูทางเข้านัก
พื้นที่สวนมีสระน้ำ ไม้ใหญ่ ไม้พุ่ม พื้นที่นั่งเล่น
มีเก้าอี้นั่งเล่นข้างสระน้ำ และทางเดินรอบสวน สามารถเอาไว้เดินออกกำลังกายตอนเย็นได้ค่ะ
ความนี้กลับมาดูส่วน Club House ของโครงการกันบ้าง เป็นอาคารขนาดใหญ่มีสองอาคารค่ะ เรามาดูอาหารแรกกันก่อน
ด้านหน้าประตูทางเข้าก็มีพื้นที่สวนและต้นไม้ใหญ่
ภายในเป็นสวนนั่งเล่น มีเจ้าหน้าที่ดูแลจุดนี้อยู่ค่ะ
พื้นที่นั่งเล่น นั่งพักผ่อน
ด้านนี้จะเป็นฟิตเนสขนาดใหญ่ของโครงการ
ายในมีอุปกรณ์มากมายหลากหลายค่ะ อีกทั้งยังมีเทรนเนอร์ที่สามารถให้คำแนะนำและวิธีการเล่นเครื่องเล่นต่างๆได้ เรียกได้ว่าเป็นฟิตเนสที่มีอุปกรณ์เยอะมากจริงๆ ถ้าใครชอบออกกำลังกายคงจะชอบเพราะไม่จำเป็นต้องไปสมัครฟิตเนสที่ไหนเพิ่มเลย
ราคาของเทรนเนอร์ส่วนตัว (ณ เดือนธันวาคม 2559)
เข้ามาด้านในด้านซ้ายมือจะเป็นมุมนั่งพัก และเครื่องออกกำลังกาย
ชุดดัมเบลชุดใหญ่พร้อมเครื่องออกกำลังกาย มีกระจกให้ดูท่าที่เล่นด้วยค่ะ
เครื่อง Weight Lifting
เครื่อง Weight Lifting ต่างๆ สำหรับวิวของห้องฟิตเนสจะเป็นวิวสวนและวิวทะเลสาบค่ะ ทำให้สบายตาได้ความร่มรื่น
บาร์เบล 1 9ัว
บาร์เบล 1 ตัว
บาร์เบลอีก 1 ตัว โดยแต่ละตัววิธีเล่นจะคนละส่วน
เครื่องออกกำลังกาย 2 เครื่อง
เครื่อง Weight Lifting
จักรยาน 4 เครื่อง
เครื่องสำหรับยืดกล้ามเนื้อ 2 เครื่อง
ลู่วิ่ง 10 เครื่อง
เครื่องออกกำลังกายแบบเดิน 7 เครื่อง
เครื่อง Weight Lifting
เครื่อง Weight Lifting แต่ละส่วนอย่างละ 1 เครื่อง
เครื่อง Weight Lifting
เครื่อง Weight Lifting
เครื่อง Weight Lifting
เครื่อง Weight Lifting 2 เครื่อง
เครื่อง Weight Lifting
เครื่อง Weight Lifting
ชั้นบนของอาคารจะเป็นสระว่ายน้ำค่ะ
ขึ้นมาจะมีประตูก่อนเข้าสระและพื้นที่นั่งเล่น
สระจะยกระดับจากพื้นชั้น 2 พอประมาณ
ห้องน้ำจะอยู่ทางฝั่งซ้ายและขวาของบันได
ในห้องน้ำมีตู้ล็อคเกอร์, ห้องอาบน้ำ, ซาวน่า และสตรีม
ซาวน่า และสตรีมค่ะ จะมีทั้งในห้องน้ำหญิงและห้องน้ำชาย
ขึ้นมาจะเป็นสระที่มีพื้นที่นั่งเล่นยื่นออกไปแบบนี้ ช่วงเวลาไหนแดดส่องมาตรงที่นั่งเล่นก็สามารถอาบแดดได้
พื้นที่นั่งเล่นริมสระค่ะ
วิวสระที่ได้จะเป็นวิวทะเลสาบและสวนในโครงการ ทำให้ร่มรื่นสบายตา จะเห็นต้นไม้ที่ให้ความร่มรื่นในโครงการทุกมุมสวน
อีกอาคารจะเป็นอาคารฟิตเนสเดิม แต่เนื่องจากมีการขยับขยายพื้นที่ ด้านบนจึงเป็นห้องกิจกรรม ห้องออกกำลังกายแทนค่ะ ด้านล่างมีร้านค้า, ร้านอาหารและสระว่ายน้ำ
ใต้อาคารจะมีทางเข้าสระ ร้านค้าจะอยู่ด้านข้าง
ร้านค้าใต้อาคาร และร้านอาหาร
สระว่ายน้ำส่วนนี้จะมีแยกส่วนสระผู้ใหญ่และสระเด็กชัดเจน สระเด็กก็จะมีเครื่องเล่นเล็กๆให้
วิวที่ได้จะเป็นวิวทะเลสาบและสวนในโครงการ ทำให้สระดูกว้างมากขึ้น
พื้นที่ข้างสระมีที่นั่งเล่นและเก้าอี้อาบแดด
มุมนี้จะเป็นห้องน้ำแยกชาย หญิง
ภายในห้องน้ำค่ะ
อาคารนี้มีชั้นบนเป็นห้องกิจกรรม
ขึ้นมาด้านบนจะมีพื้นที่นั่งเล่น ด้านขวามือคือห้องออกกำลังกาย ทั้งแอโรบิค และกิจกรรมออกกำลังกายอื่นๆ โดยจะหมุนเวียนผลัดเปลี่ยนไป
ภายในห้องจะเห็นว่ามีอุปกรณ์หลากหลาย
ทั้งกระสอบทราย, นวม, โต๊ะปิงปอง
มุมนี้มีบอลสำหรับออกกำลังกายและอุปกรณ์อื่นๆอีกค่ะ
ห้องตรงข้ามเป็นห้องโยคะ
ภายในห้องโยคะ
วิวที่ได้จากห้องโยคะเป็นวิวธรรมชาติในโครงการ เหมาะสำหรับการผ่อนคลายค่ะ
ตรงข้ามกับอาคาร Club House จะเป็นสนามกีฬา ซึ่งจะมีทั้งหมด 2 สนามด้วยกัน
สนามนี้เป็นสนามบอลและบาส
อีกอันจะเป็นสนามเทนนิส
เดินตรงมาจาก Club House เพื่อเดินวนรอบทะเลสาบดูพื้นที่สวนในโครงการ จะผ่านโครงการ Perfect Place เฟสอื่นๆ
สวนริมทะเลสาบ สามารถมานั่งเล่นริมทะเลสาบตอนเย็นๆเพื่อพักผ่อนได้ มีศาลาริมทะเลสาบด้วยค่ะ
เดินตรงมาอีกจะมีสนามเด็กเล่น มีเครื่องเล่นให้เด็กๆอยู่หลายเครื่องค่ะ
ถัดไปนั้นเป็นมุมออกกำลังกายกลางแจ้ง เผื่อใครอยากสูดอากาศธรรมชาติ ก็มาออกกำลังกายตรงนี้ก็ได้นะคะ
มุมออกกำลังกายอีกจุดค่ะ
เดินไปเรื่อยๆก็จะไปบรรจบกับอาคารสำนักงานขาย
แบบบ้าน
บ้านในโครงการมี 5 แบบค่ะ คือ
บ้านตัวอย่าง
บ้านในโครงการมี 2 แบบ
Venosa เป็นบ้านเดี่ยว 2 ชั้น พื้นที่ใช้สอย 160 ตร.ม. 3 ห้องนอน, 3 ห้องน้ำ, 2 ที่จอดรถ มีพื้นที่สวนรอบบ้าน ทั้งด้านหน้าตรงหน้าประตูทางเข้าบ้านและด้านข้างบ้าน ชั้นล่างเปิดเข้าไปเป็นห้องนั่งเล่น อยู่ติดกับโต๊ะทานอาหาร โดยแบบนี้จะมีพื้นที่ Pantry สามารถเตรียมอาหารง่ายๆ หรือทำเป็นบาร์เครื่องดื่มได้ พื้นที่แต่ละส่วนสามารถวางเฟอร์นิเจอร์พอสำหรับ 4-5 คนได้ เหมาะสมสำหรับครอบครัวขนาดกลาง
พื้นที่ครัวมีให้แยกต่างหากและเป็นครัวปิด พื้นที่ใช้สอยขนาดพอเหมาะสำหรับการใช้งาน โดยเมื่อวางเตาไฟฟ้าและอ่างล้างจานก็เหลือพื้นที่เตรียมอาหารพอสมควร จึงทำให้ไม่จำเป็นต้องต่อเติมครัวไทยเพิ่มเพียงแต่ติดตั้งเครื่องดูดควันเท่านั้น ด้านข้างบ้านมีพื้นที่ส่วนซักล้างเป็นสัดส่วน และมีพื้นที่เหลือให้เป็นสวนทั้งด้านข้างและหลังบ้าน
ชั้นบนเป็นห้องนอนทั้งหมดมี 3 ห้องนอนและ 2 ห้องน้ำ โดยห้องนอนใหญ่จะกินพื้นที่ครึ่งนึงของชั้นบนทำให้ห้องนอนใหญ่หรือ Master bedroom นั้นกว้างได้แสงธรรมชาติ และดูโปร่งเพราะมีระเบียงส่วนตัวและหน้าต่างกระจกหลายจุดค่ะ ห้องนอน 2-3 ขนาดพื้นที่ใช้สอยใกล้เคียงกัน ซึ่งเพียงพอให้วางเฟอร์นิเจอร์หลักๆ อย่างเตียง ตู้เสื้อผ้า และโต๊ะทำงานได้
ตัวบ้านใช้สีโทนเรียบสามสีคือมีสีเข้ม สีอ่อน และสีขาว สีเข้มก็จะมีทั้งสีเหลืองเข้มหรือสีน้ำตาล มีการเพิ่มมิติและสีสันด้วยเฉดสีและระแนงบังคอมเพลสเซอร์แอร์ โครงการได้ออกแบบให้ตัวบ้านมีหน้าต่างและประตูกระจกบานใหญ่ เพื่อให้มีแสงธรรมชาติเข้าไปข้างใน ทำให้บ้านดูไม่ทึบ มีความโปร่งและถ่ายเทอากาศได้ดีค่ะ
พื้นที่ภายในบ้านจะกว้าง พื้นที่จอดรถสามารถจอดรถในร่มได้ 2 คัน และถ้าหลังไหนพื้นที่ดินกว้างก็จะสามารถจอดกลางแจ้งได้ และจะเป็นพื้นที่สวนเยอะขึ้นทำให้บ้านร่มรื่นค่ะ โดยตรงพื้นที่จอดรถจะมีประตูเปิดเข้าไปยังตัวบ้านได้โดยตรงเลย
พื้นที่ด้านข้างมีส่วนซักล้างและเป็นพื้นที่สวนโดยโครงการจะลงหญ้า ต้นไม้ใหญ่และไม้พุ่มให้
ด้านหน้าประตูทางเข้าบ้านจะเป็นพื้นที่สวน มีทั้งไม้พุ่มและไม้ใหญ่ ทำให้บ้านดูร่มรื่นและสดชื่นเพราะประตูบ้านเป็นกระจกบานใหญ่ทำให้สามารถมองเห็นวิวสวนหน้าบ้านได้นั่นเองค่ะ
ทางเดินจากพื้นที่จอดรถไปยังประตูหน้าบ้านจะไม่มีหลังคานะคะ ดังนั้นถ้าวันไหนฝนตกก็เข้าทางประตูที่ติดกับที่จอดรถจะสะดวกกว่า
ด้านข้างบ้านก็ยังมีพื้นที่สวนให้ค่ะ
ประตูบ้านเป็นประตูกระจกบานเลื่อน กรอบเป็นอลูมิเนียมสีเทา กระจกเป็นกระจกเขียวตัดแสง มีเฉลียงปูด้วยกระเบื้องสีเทาขนาด 30×30 ซม. ยกระดับจากพื้นดิน พื้นภายในบ้านก็จะยกระดับจากพื้นเฉลียงอีกทีค่ะ
เข้าไปในบ้านส่วนแรกที่เจอคือห้องนั่งเล่น จากตรงนี้จะเห็นไปถึงโต๊ะทานอาหารที่อยู่หลังบ้าน แสงธรรมชาติเข้าจากประตูกระจกบานใหญ่ และด้านข้างบ้านจะมีหน้าต่างกระจกที่ได้วิวสวนข้างบ้าน ทำให้บ้านดูสว่างและโปร่ง
ด้านนี้จะเป็นตำแหน่งวางโซฟา สามารถวางโซฟาตัวใหญ่เป็นชุดใหญ่หรือ L-shape สำหรับ 4-5 ที่นั่งได้ มีพื้นที่ว่างด้านข้างให้วางโต๊ะกาแฟเล็กๆ หรือโคมไฟ ด้านหลังโซฟาจะมีหน้าต่างบานใหญ่ ทำให้บ้านดูสว่าง และระบายอากาศได้ดี
ด้านตรงข้ามเป็นตำแหน่งวางทีวี จะทำเป็นชั้นวางทีวีเพื่อวางทีวีตัวใหญ่ได้เพราะระยะห่างระหว่างทีวีกับโซฟา สามารถวางขนาดใหญ่ พื้นที่ด้านบนและด้านล่างก็ยังทำเป็นชั้นวางของ หรือจะทำเป็นตู้เก็บของ ชั้นหนังสือตรงนี้ก็ได้ค่ะ
หันกลับไปดูหน้าบ้าน จะเห็นว่าได้วิวสวนหน้าบ้าน และจะเห็นระยะห่างระหว่างทีวีกับโซฟาว่ามีพื้นที่เหลือให้เดินผ่านได้สะดวก สามารถวางโซฟาชุดหรือจะวางโซฟา L-shape ให้นอนดูทีวีแบบสบายๆก็ได้ ส่วนด้านหน้าโซฟาถ้าวางโต๊ะกาแฟก็ยังเดินผ่าน และใช้งานได้สะดวก
ติดกันนั้นเป็นโต๊ะทานอาหาร ด้านขวามือจะเป็นห้องน้ำ, ครัว และบันไดขึ้นไปยังชั้นบน โดยตรงหน้าครัวจะเป็นพื้นที่ ที่สามารถทำเป็น Pamtry ได้
มุมนี้จะได้แสงธรรมชาติจากหน้าต่างกระจกบานใหญ่ด้านข้าง ทำให้ช่วยระบายอากาศได้ดีและอยู่ติดกับสวนข้างบ้าน ก็ได้วิวสวนอีกด้วยค่ะ
ส่วนทานอาหารสามารถวางโต๊ะสำหรับ 6 ที่นั่งได้ และสามารถเลื่อนเก้าอี้เข้า-ออก ใช้งานได้สะดวก หรือจะทำเป็นโต๊ะใหญ่กว่านี้ก็สามารถวางได้
อีกด้านของบ้านจะเป็นส่วนของพื้นที่อเนกประสงค์ ห้องครัว ห้องน้ำและบันได
พื้นที่หน้าห้องครัวตรงนี้จะกั้นพื้นที่เอาไว้เป็นห้องทำงานก็ได้ หรือจะทำเป็น Pantry ไว้ทำอาหารเช้าง่ายๆโดยไม่ต้องเดินเข้าไปในครัว ก็จะสะดวกต่อการใช้งาน หรือเวลาเร่งรีบตอนเช้าๆ
ด้านซ้ายคือประตูห้องครัว ตรงกลางคือประตูห้องน้ำ ด้านขวาเป็นพื้นที่ที่สามารถทำเป็นตู้เก็บของได้ค่ะ
ติดกับตู้เก็บของจะเป็นประตูเปิดไปยังพื้นที่จอดรถหน้าบ้าน เป็นประตูบาน HDF สีขาวมือจับเป็นแบบคันโยก
เปิดออกมาจะเป็นพื้นที่จอดรถ โดยจะมีบันไดขึ้น-ลงจากประตู เพราะพื้นบ้านจะยกระดับจากพื้นภายนอก
ห้องน้ำประตู UPVC สีขาวมือจับเป็นแบบคันโยก
พื้นห้องน้ำลดระดับจากพื้นห้องลงไปเล็กน้อยค่ะ พื้นปูด้วยกระเบื้องโทนสีครีมขนาด 30×30 ซม.
ภายในห้องน้ำนี้จะมีส่วนอาบน้ำ และมีหน้าต่างบานเลื่อนเล็กๆเหนือส่วนอาบน้ำเพื่อให้มีแสงส่งเข้ามาและช่วยระบายอากาศ
อ่างล้างหน้าของ Cotto เหนืออ่างล้างหน้าพอมีพื้นที่ให้วางของได้เล็กน้อย และจะมีกระจกเงาให้
โถสุขภัณฑ์ของ Cotto พร้อมสายชำระ
ส่วนอาบน้ำจะอยู่ติดกับโถสุขภัณฑ์ มีผนังปูนกั้นเล็กน้อย ส่วนพื้นจะลดระดับลงไปอีก ดังนั้นเวลาอาบน้ำอาจมีน้ำกระเด็นมาส่วนแห้งบ้างแต่ไม่มากนัก มีหน้าต่างกระจกบานเลื่อนช่วยระบายอากาศ
ห้องถัดไปคือห้องครัวค่ะ ประตู MDF สีขาว มือจับเป็นแบบคันโยก
พื้นลดระดับจากพื้นห้องด้านนอกลงไปเล็กน้อยค่ะ พื้นปูด้วยกระเบื้องโทนสีครีมขนาด 30×30 ซม.
ภายในห้องครัวจะเป็นครัวกว้าง พื้นที่ใช้สอยเพียงพอทั้งสำหรับบ้านที่ไม่ค่อยทำกับข้าว หรือบ้านที่ชอบทำกับข้าว มีหน้าต่างกระจกทำให้สว่าง และมีประตูที่เชื่อมตรงไปยังส่วนซักล้างหลังบ้าน
เคาน์เตอร์สามารถทำเป็นตัว L ได้ มีพื้นที่ใช้สอยเยอะ เมื่อวางเตา 4 หัวและอ่างล้างจานก็ยังเหลือพื้นที่ให้เตรียมอาหารอีกเยอะค่ะ ด้านล่างและบนเคาน์เตอร์ถ้าทำเป็นตู้เก็บของก็สามารถทำได้หลายใบ
ด้านที่ติดกับประตูเข้าห้องครัวก็ทำเป็นชั้นวางของ และเป็นมุมวางตู้เย็น, เครื่องซักผ้าได้
เปิดออกไปเป็นส่วนซักล้างซึ่งจะอยู่ด้านข้างบ้าน มีสวนให้ตรงนี้ด้วย
อ้อมไปหลังบ้านก็จะมีพื้นที่สวนหลังบ้านให้เช่นกันค่ะ
บันไดขึ้นชั้นบนจะอยู่ระหว่างประตูที่จอดรถกับครัว ด้านขวามือจะเป็นห้องเก็บของ บันไดมีหน้าต่างตรงชานพัก เพื่อให้บันไดไม่ทึบจนเกินไป ลูกนอนเป็นไม้ยางประสาน
ห้องเก็บของใต้บันได พื้นจะเป็นแกรนิตโต้แบบเดียวกับด้านนอกห้องค่ะ
บันไดพื้นลูกนอนและราวจับเป็นไม้สีน้ำตาลอ่อนค่ะ มีราวจับให้ตลอดแนวและชานพักเป็นสี่เหลี่ยมทำให้ใช้งานได้สะดวก เหนือชานพักมีหน้าต่างกระจกบานยาว ทำให้มีแสงเข้ามาตรงบันได ไม่จำเป็นต้องเปิดไฟในตอนกลางวันก็มีแสงส่องเข้ามาได้เพียงพอ
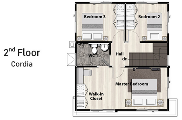
ชั้นบนเป็นห้องนอน 3 ห้อง และห้องน้ำ 2 ห้อง พื้นเป็นลามิเนตโทนสีน้ำตาล ด้านซ้ายคือ Master Bedroom, ตรงกลางเป็นห้องน้ำที่ห้องนอน 2-3 ใช้ร่วมกัน, ขวามือเป็นห้องนอน 2-3
ขึ้นมาจากบันไดจะเป็นห้องนอน 2 พื้นห้องเป็นลามิเนตแบบเดียวกับด้านนอกปูต่อเนื่องเข้าไปเลย
ภายในมีหน้าต่างกระจกให้ 2 บานทำให้ห้องสว่างและโปร่ง ถ้าเปิดหน้าต่างก็มีลมพัดเข้ามาเย็นสบายค่ะ ภายในห้องกว้างสามารถวางเฟอร์นิเจอร์หลักๆได้ครบครัน แต่ก็ยังใช้งานสะดวก ไม่อึดอัด
ภายในวางเตียงขนาด 3.5 ฟุตได้ค่ะ จะทำให้มีพื้นที่เหลือวางเฟอร์นิเจอร์อื่นๆได้ โดยรอบเตียงมีพื้นที่ให้เดินใช้งานได้สะดวก
วางเตียง 3.5 ฟุต ก็มีพื้นที่ด้านข้างเหลือให้วางโต๊ะตัวเตียง หรือถ้าวางเตียง 5 ฟุตก็สามารถทำได้เช่นกัน ด้านบนทำเป็นชั้นวางหนังสือหรือชั้นวางของ
ปลายเตียงวางโต๊ะวางทีวี หรือโต๊ะทำงานก็ได้ค่ะ ด้านข้างจะมีหน้าต่างกระจกทำให้มีแสงเข้ามาในห้อง
ข้างเตียงวางตู้เสื้อผ้าใบใหญ่ ติดกันนั้นทำเป็นโต๊ะทำงาน หรือจะทำเป็นโต๊ะเครื่องแป้งก็วางได้สะดวก
ห้องที่อยู่ติดกันนั้นคือห้องนอน 3
พื้นเป็นลามิเนตเช่นเดียวกันปูต่อเนื่องไปเลย ภายในมีหน้าต่างกระจกให้ 2 บานทำให้ห้องสว่างและโปร่ง ถ่ายเทอากาศได้ดี ขนาดพื้นที่ใช้สอยใกล้เคียงกับห้องนอน 2 ค่ะ
ภายในวางเตียงขนาด 5 ฟุตได้ค่ะ และยังมีพื้นที่เหลือวางโต๊ะหัวเตียงทั้งสองด้าน โดยรอบเตียงมีพื้นที่ให้เดินใช้งานได้สะดวก
วางเตียง 5 ฟุต ก็มีพื้นที่ด้านข้างเหลือให้วางโต๊ะตัวเตียงได้ทั้งสองฝั่ง และยังมีพื้นที่เหลือ ถ้าวางเตียงชิดผนังอีกด้านก็สามารถวางโต๊ะทำงานข้างหัวเตียงได้เลยค่ะ
ข้างเตียงด้านนี้มีหน้าต่างกระจกบานเลื่อน กรอบอลูมิเนียมสีเทา กระจกเขียวตัดแสง
ปลายเตียงวางโต๊ะทำงานพร้อมชั้นวางของได้ เหนือโต๊ะทำงานมีหน้าต่างกระจกบานเลื่อน กรอบอลูมิเนียมสีเทา กระจกเขียวตัดแสง
พื้นที่ระหว่างโต๊ะทำงานกับปลายเตียง มีเหลือให้เดินผ่านใช้สอยได้สะดวก
อีกด้านของห้องจะเป็นมุมวางโต๊ะเครื่องแป้งและตู้เสื้อผ้าใบใหญ่
ติดกับห้องนอน 3 จะเป็นห้องน้ำ ซึ่งห้องนี้จะเป็นห้องที่ห้องนอน 2-3 ใช้งานร่วมกัน
ภายในห้องมีหน้าต่างกระจกบานเลื่อนเล็กๆตรงเหนือส่วนอาบน้ำ ทำให้มีแสงเข้ามาและช่วยระบายอากาศ พื้นห้องน้ำลดระดับจากพื้นห้องลงไปเล็กน้อย พื้นปูด้วยกระเบื้องโทนสีครีมขนาด 30×30 ซม.
อ่างล้างหน้าและโถสุขภัณฑ์ของ Cotto เหนืออ่างล้างหน้าพอมีพื้นที่ให้วางของได้เล็กน้อย
เหนืออ่างและโถสุขภัณฑ์มีขอบปูนทำให้วางของเพิ่มตรงนี้ได้ และจะมีกระจกเงาให้ค่ะ
ส่วนอาบน้ำจะอยู่ติดกับโถสุขภัณฑ์ มีผนังปูนกั้นเล็กน้อย ส่วนพื้นจะลดระดับลงไปอีก ดังนั้นเวลาอาบน้ำอาจมีน้ำกระเด็นมาส่วนแห้งบ้างแต่ไม่มากนัก มีหน้าต่างกระจกบานเลื่อนช่วยระบายอากาศ
ฝักบัว, ที่วางสบู่และก๊อกล่าง ข้างฝักบัวจะมีการเดินระบบไฟไว้สำหรับเครื่องทำน้ำอุ่น
ห้องสุดท้ายที่จะพาไปชมคือห้องนอนใหญ่หรือ Master Bedroom ค่ะ
ห้องนี้จะสว่างและมีพื้นที่ใช้สอยเยอะ เพราะกินพื้นที่ครึ่งนึงของชั้นนี้ มีหน้าต่างกระจกบาน, ห้องน้ำและระเบียงส่วนตัว
เข้ามาในห้องด้านซ้ายมือจะเป็นตำแหน่งเตียงนอน ซึ่งจะอยู่ติดกับระเบียงห้อง ทำให้มุมนี้สว่างและถ่ายเทอากาศได้ดี
เตียงสามารถวางขนาด 5-6 ฟุตได้สบาย มีพื้นที่เดินรอบเตียงได้สะดวก
ถ้าวางเตียงขนาด 5 ฟุต สองข้างเตียงจะสามารถวางโต๊ะหัวเตียงได้ หรืออีกด้านจะวางเป็นมุมโซฟานั่งเล่น พื้นที่ก็มีเหลือให้ใช้สอย
ปลายเตียงสามารถวางชั้นวางทีวี หรือชั้นวางของ และยังมีพื้นที่แบ่งทำเป็นโต๊ะทำงานด้านข้างได้เช่นกัน
ติดกันนั้นเป็นระเบียงส่วนตัว ซึ่งประตูระเบียงเป็นประตูกระจกบานเลื่อน กรอบอลูมิเนียมสีเทา กระจกเขียวตัดแสง
พื้นลดระดับจากพื้นห้องเล็กน้อย โดยพื้นที่ระเบียงจะกว้าง สามารถวางเก้าอี้นั่งเล่นได้ ราวกันตกเป็นกระจกใสทำให้ระเบียงดูกว้างมากขึ้น
อีกฝั่งของห้องจะเป็นมุมแต่งตัวและห้องน้ำ โดยห้องน้ำจะอยู่ทางซ้ายมือ ตรงนี้สามารถกั้นประตูหรือทำฉากกั้นเพื่อให้ห้องเป็นสัดส่วนได้นะคะ
ด้านหน้าส่วนแต่งตัวจะมีพื้นที่ ทำเป็นมุมโต๊ะทำงาน หรือจะทำเป็นมุมนั่งเล่นส่วนตัว วางโซฟาเล็กๆสำหรับ 2 ที่นั่งพร้อมโต๊ะกาแฟตรงนี้
ส่วนแต่งตัวและห้องน้ำ ส่วนนี้สามารถกั้นฉากหรือผนังเพื่อทำให้ห้องดูเป็นสัดส่วนได้ค่ะ
เข้ามาจะมีพื้นที่วางตู้เสื้อผ้าใบใหญ่สองใบวางขนานกัน ตรงกลางก็เป็นมุมโต๊ะเครื่องแป้งได้
พื้นห้องน้ำลดระดับจากพื้นห้องลงไปเล็กน้อยค่ะ พื้นปูด้วยกระเบื้องโทนสีครีมขนาด 30×30 ซม.
ห้องน้ำห้องนี้จะมีฉากกั้นอาบน้ำ และมีหน้าต่างบานเลื่อนเล็กๆเพื่อให้มีแสงและช่วยถ่ายเทอากาศ
อ่างล้างหน้าและโถสุขภัณฑ์ของ Cotto เหนืออ่างล้างหน้าพอมีพื้นที่ให้วางของได้เล็กน้อย
ด้านบนมีขอบปูนทำให้วางของได้มากขึ้น เหนืออ่างล้างหน้ามีกระจกเงาให้
ห้องนี้ส่วนแห้งและเปียกจะแยกส่วนได้ชัดเจนเพราะมีฉากกั้นอาบน้ำ พื้นลดระดับลงไปเล็กน้อย ขนาดพื้นที่กว้างสำหรับส่วนอาบน้ำทำให้ใช้งานสะดวก
ฝักบัว, ที่วางสบู่ และหน้าต่างกระจกบานเลื่อน เผื่อช่วยในการระบายอากาศ
Verbena เป็นบ้านเดี่ยว 2 ชั้น พื้นที่ใช้สอย 175 ตร.ม. 4 ห้องนอน, 3 ห้องน้ำ, 2 ที่จอดรถ มีพื้นที่สวนรอบบ้าน ทั้งด้านหน้าตรงหน้าประตูทางเข้าบ้านและด้านข้างบ้าน ชั้นล่างเปิดเข้าไปเป็นห้องนั่งเล่น ติดกับส่วนนั่งเล่นจะเป็นโต๊ะทานอาหาร และชั้นี้จะมีห้องนอน 4 ซึ่งจะเป็นห้องนอนชั้นล่าง ทำเป็นห้องนอนแขกหรือห้องทำงานก็ได้ค่ะ พื้นที่แต่ละส่วนสามารถวางเฟอร์นิเจอร์พอสำหรับ 4-5 คนได้ เหมาะสมสำหรับครอบครัวขนาดกลาง และพร้อมที่จะรองรับแขก
พื้นที่ครัวมีให้แยกต่างหากและสามารถทำเป็นครัวปิด พื้นที่ใช้สอยขนาดพอเหมาะสำหรับการใช้งาน โดยเมื่อวางเตาไฟฟ้าและอ่างล้างจานก็เหลือพื้นที่เตรียมอาหารพอสมควร จึงทำให้ไม่จำเป็นต้องต่อเติมครัวไทยเพิ่มเพียงแต่ติดตั้งเครื่องดูดควันเท่านั้น ด้านหลังบ้านมีพื้นที่ส่วนซักล้างเป็นสัดส่วน และมีพื้นที่เหลือให้เป็นสวนหลังบ้านด้วยค่ะ
ชั้นบนเป็นห้องนอนทั้งหมดมี 3 ห้องนอน, 2 ห้องน้ำ และ 1 พื้นที่อเนกประสงค์ โดยห้องนอนใหญ่จะอยู่ส่วนด้านหน้าทำให้ห้องนอนใหญ่หรือ Master bedroom นั้นได้แสงธรรมชาติและดูโปร่งเพราะมีหน้าต่างกระจกบานใหญ่ค่ะ ห้องนี้จะมีห้องน้ำส่วนตัว ห้องนอน 2-3 ขนาดพื้นที่ใช้สอยใกล้เคียงกัน ซึ่งเพียงพอให้วางเฟอร์นิเจอร์หลักๆ อย่างเตียง ตู้เสื้อผ้า และโต๊ะทำงานได้ สำหรับพื้นที่อเนกประสงค์สามารถทำเป็นห้องนั่งเล่นส่วนตัวของครอบครัว, พื้นที่ทำงาน หรือมุมอ่านหนังสือได้ค่ะ
ตัวบ้านใช้สีโทนเรียบคือมีสีเข้ม สีอ่อน และสีขาว มีการเพิ่มมิติและสีสันด้วยเฉดสี ที่มีความเข้มต่างกันโครงการได้ออกแบบให้ตัวบ้านมีหน้าต่างและประตูกระจกบานใหญ่ เพื่อให้มีแสงธรรมชาติเข้าไปข้างใน ทำให้บ้านดูไม่ทึบ มีความโปร่งและถ่ายเทอากาศได้ดีค่ะ ระเบียงห้องราวกันตกก็จะเป็นกระจกทำให้บ้านดูโปร่งและระเบียงดูกว้างขึ้น
บ้านจริงที่ได้ประตูเป็นประตูเหล็กสีดำรางเลื่อน ด้านข้างมีประตูคนเข้าให้แยกต่างหาก
พื้นที่ภายในบ้านจะกว้าง พื้นที่จอดรถสามารถจอดรถในร่มได้ 2 คัน และถ้าหลังไหนพื้นที่ดินกว้างก็จะสามารถจอดกลางแจ้งได้อีก ด้านหน้าตรงประตูทางเข้าและด้านข้างเป็นพื้นที่สวนทำให้บ้านร่มรื่นค่ะ โดยตรงพื้นที่จอดรถจะมีประตูห้องเก็บของใต้บันได
ด้านข้างบ้านจะเป็นพื้นที่สวน
บ้านจริงที่ได้จะมีช่องทิ้งขยะเพื่อความเป็นระเบียงค่ะ
ด้านหน้าประตูทางเข้าบ้านจะเป็นพื้นที่สวน มีทั้งไม้พุ่มและไม้ใหญ่ ทำให้บ้านดูร่มรื่นและสดชื่นเพราะประตูบ้านเป็นกระจกบานใหญ่ทำให้สามารถมองเห็นวิวสวนหน้าบ้านได้นั่นเองค่ะ
ด้านข้างอีกด้านจะเป็นพื้นที่สวน และจะเห็นห้องนอน 4 ซึ่งเป็นห้องที่ได้วิวสวนในบ้านค่ะ
ทางเดินจากพื้นที่จอดรถไปยังประตูหน้าบ้านจะมีหลังคา ทำให้เดินเข้ามาใช้งานเวลาฝนตกก็สามารถเข้า-ออกได้สะดวก ประตูบ้านเป็นประตูกระจกบานเลื่อน กรอบเป็นอลูมิเนียมสีเทา กระจกเป็นกระจกเขียวตัดแสง มีเฉลียงปูด้วยกระเบื้องสีเทาขนาด 30×30 ซม. ยกระดับจากพื้นดิน พื้นภายในบ้านก็จะยกระดับจากพื้นเฉลียงอีกทีค่ะ
เข้าไปในบ้านส่วนแรกที่เจอคือห้องนั่งเล่น จากตรงนี้จะเห็นไปถึงโต๊ะทานอาหารที่อยู่หลังบ้าน แสงธรรมชาติเข้าจากประตูกระจกบานใหญ่ และด้านหลังบ้านจะมีหน้าต่างกระจกทำให้บ้านดูสว่างและโปร่ง
ด้านนี้จะเป็นตำแหน่งวางโซฟา สามารถวางโซฟาตัวใหญ่เป็นชุดใหญ่หรือ L-shape สำหรับ 4-5 ที่นั่งได้ มีพื้นที่ว่างด้านข้างให้วางโต๊ะกาแฟเล็กๆ, โคมไฟ หรือทำเป็นชั้นวางของแบบนี้ ด้านหลังโซฟาจะมีหน้าต่างบานใหญ่ ทำให้มุมนี้ดูสว่าง และถ่ายเทอากาศได้ดี
ด้านตรงข้ามเป็นตำแหน่งวางทีวี จะทำเป็นชั้นวางทีวีเพื่อวางทีวีตัวใหญ่ได้เพราะระยะห่างระหว่างทีวีกับโซฟา สามารถวางขนาดใหญ่ได้ พื้นที่ด้านบนและด้านล่างก็ยังทำเป็นชั้นวางของได้ หรือจะทำเป็นชั้นวางของด้านข้างยาวแบบนี้ก็ได้ค่ะ
หันกลับไปดูหน้าบ้าน จะเห็นว่าได้วิวสวนหน้าบ้าน และจะเห็นระยะห่างระหว่างทีวีกับโซฟาว่ามีพื้นที่เหลือให้เดินผ่านได้สะดวก สามารถวางโซฟาชุดหรือจะวางโซฟา L-shape ให้นอนดูทีวีแบบสบายๆก็ได้ ส่วนด้านหน้าโซฟาถ้าวางโต๊ะกาแฟก็ยังเดินผ่าน และใช้งานได้สะดวก
ติดกันนั้นเป็นพื้นที่หลังบ้าน บ้านจริงที่ได้จะไม่มีประตูกั้นพื้นที่นะคะ จะเป็นพื้นที่เปิดโล่ไปเลย
เข้ามาส่วนนี้จะเป็นส่วนทานอาหาร ด้านซ้ายคือครัวและบันไดขึ้นไปยังชั้นบน ด้านขวาเป็นห้องนอน 4 และห้องน้ำ
มุมนี้จะได้แสงธรรมชาติจากหน้าต่างกระจกบานใหญ่ด้านข้าง ทำให้ช่วยระบายอากาศได้ดีและอยู่ติดกับสวนข้างบ้าน ก็ได้วิวสวนอีกด้วยค่ะ ส่วนทานอาหารสามารถวางโต๊ะสำหรับ 4-6 ที่นั่งได้ และสามารถเลื่อนเก้าอี้เข้า-ออก ใช้งานได้สะดวก
ด้านขวาของส่วนนี้จะเป็นห้องน้ำและห้องนอน 4
ตรงด้านหน้าคือประตูห้องนอน 4 ด้านซ้ายมือประตูสีขาวที่เห็นคือห้องน้ำค่ะ
ภายในห้องน้ำนี้จะมีส่วนอาบน้ำ และมีหน้าต่างบานเลื่อนเล็กๆเหนือส่วนอาบน้ำเพื่อให้มีแสงส่งเข้ามาและช่วยระบายอากาศ
พื้นห้องน้ำลดระดับจากพื้นห้องลงไปเล็กน้อยค่ะ พื้นปูด้วยกระเบื้องโทนสีครีมขนาด 30×30 ซม.
อ่างล้างหน้าและโถสุขภัณฑ์ของ Cotto เหนืออ่างล้างหน้าพอมีพื้นที่ให้วางของได้เล็กน้อย
ด้านบนมีขอบปูนทำให้สามารถวางของเพิ่มตรงนี้ได้อีก เหนือ่อ่างล้างหน้าจะมีกระจกเงาบานยาวให้
ส่วนอาบน้ำจะอยู่ติดกับโถสุขภัณฑ์ มีผนังปูนกั้นเล็กน้อย ส่วนพื้นจะลดระดับลงไปอีก ดังนั้นเวลาอาบน้ำอาจมีน้ำกระเด็นมาส่วนแห้งบ้างแต่ไม่มากนัก
ฝักบัวและที่วางสบู่ เหนือส่วนอาบน้ำจะมีหน้าต่างกระจกบานเลื่อนช่วยระบายอากาศ
ห้องถัดไปคือห้องครัวค่ะ ประตู MDF สีลายไม้ มือจับเป็นแบบคันโยก
ภายในจะสว่างเพราะมีหน้าต่างกระจกบานใหญ่สองจุด ขนาดห้องเหมาะสำหรับห้องนอนแขกหรือห้องผู้สูงอายุ สามารถวางเฟอร์นิเจอร์ได้ครบ หรือถ้าจะทำเป็นห้องทำงานก็จะสะดวกค่ะ เพราะเป็นสัดเป็นส่วน ขนาดห้องไม่ใหญ่หรือเล็กเกินไปที่จะทำเป็นห้องทำงาน วางโต๊ะทำงานได้หลายตัว
เตียงสามารถวางขนาด 3.5 ฟุตได้ ด้านข้างมีพื้นที่เหลือให้วางโต๊ะหัวเตียงเล็กๆได้ ด้านข้างเดินผ่านใช้งานสะดวก
ด้านข้างมุมนี้วางตู้เสื้อผ้าและโต๊ะทำงานได้ค่ะ หรือถ้าวางอีกทางก็ทำเป็นตู้เสื้อผ้าบานเลื่อน ก็จะวางใบใหญ่ได้มากกว่านี้
ปลายเตียงวางเป็นโต๊ะทีวีหรือโต๊ะทำงานได้ค่ะ
อีกด้านของห้องยังมีพื้นที่เหลือจะวางโต๊ะทำงานไว้มุมนี้ข้างโต๊ะวางทีวี และยังมีประตูกระจกบานใหญ่เปิดไปเจอสวนหน้าบ้าน ทำให้ห้องนี้ได้วิวสวน ดูร่มรื่นสบายตา ถ้าทำเป็นห้องทำงานก็มีมุมให้พักสายตาด้วยนะคะ
ด้านตรงข้ามของห้องนอน ออกมาจะเป็นบันไดขึ้นไปชั้นบนและห้องครัว หน้าห้องครัวมีพื้นที่ให้วางตู้ หรือชั้นเก็บของ ประตูครัวเป็นประตู MDF สีขาว มือจับเป็นแบบคันโยก
พื้นลดระดับจากพื้นห้องด้านนอกลงไปเล็กน้อยค่ะ พื้นปูด้วยกระเบื้องโทนสีครีมขนาด 30×30 ซม.
ภายในห้องครัวจะเป็นครัวกว้าง พื้นที่ใช้สอยเพียงพอทั้งสำหรับบ้านที่ไม่ค่อยทำกับข้าว หรือบ้านที่ชอบทำกับข้าว มีหน้าต่างกระจกทำให้สว่าง และมีประตูที่เชื่อมตรงไปยังส่วนซักล้างหลังบ้าน
เคาน์เตอร์สามารถทำเป็นตัว L ได้ มีพื้นที่ใช้สอยเยอะ เมื่อวางเตา 4 หัวและอ่างล้างจานก็ยังเหลือพื้นที่ให้เตรียมอาหารอีกเยอะค่ะ ด้านล่างและบนเคาน์เตอร์ถ้าทำเป็นตู้เก็บของก็สามารถทำได้หลายใบ
ห้องครัวจะมีประตูเปิดไปยังส่วนซักล้างหลังบ้าน ประตูเป็น HDF มือจับเป็นลูกบิด
เปิดออกไปเป็นส่วนซักล้างซึ่งจะอยู่ด้านหลังบ้าน มีสวนให้ตรงนี้ด้วย
บันไดขึ้นไปยังชั้นบน จะมีหน้าต่างตรงชานพัก เพื่อให้มีแสงธรรมชาติส่องเข้ามาตรงบันได ลูกนอนเป็นไม้ยางประสาน มีราวจับตลอดแนว
ขึ้นมาจะเป็นชานพักระดับแรกค่ะ ด้านซ้ายเป็นพื้นที่อเนกประสงค์ ด้านขวาเป็นบันไดอีกระดับที่จะขึ้นไปยังห้องนอนชั้น 2
พื้นที่อเนกประสงค์จะเหมือนเป็นชั้นลอยเพราะระดับอยู่ต่ำกว่าพื้นชั้น 2 พอประมาณ พื้นส่วนนี้ยกระดับจากพื้นชานพัก ปูด้วยลามิเนตลายไม้หนา 8 มม.
มุมนี้ทำเป็นห้องนั่งเล่นส่วนตัวของครอบครัว ก็สามารถวางโซฟาชุดสำหรับ 3-4 ที่นั่งได้ หรือจะทำเป็นมุมทำงาน, มุมอ่านหนังสือ, มุมทำการบ้านของเด็กๆก็ได้ค่ะ
ด้านตรงข้ามโซฟามีหน้าต่างกระจกบานใหญ่ 2 บาน เป็นกระจกบานเลื่อน กรอบอลูมิเนียมสีเทา กระจกเขียวตัดแสง มุมนี้เอาไว้วางชั้นวางทีวีด้านข้างเหลือให้วางโต๊ะทำงานได้
ติดกันนั้นมีระเบียง ซึ่งประตูระเบียงเป็นประตูกระจกบานเลื่อนบานใหญ่ กรอบอลูมิเนียมสีเทา กระจกเขียวตัดแสง
พื้นที่ระเบียงกว้างพอให้วางเก้าอี้ตัวเล็กๆนั่งเล่น รับลมในวันที่อากาศดีๆ
อีกด้านถ้าขั้นจากบันไดจะเป็นบันไดอีกช่วงที่จะขึ้นไปยังพื้นที่ชั้น 2 ของบ้านค่ะ
ชั้นบนเป็นห้องนอน 3 ห้อง และห้องน้ำ 2 ห้อง พื้นเป็นลามิเนตโทนสีน้ำตาล ด้านขวาคือ Master Bedroom, ขวามือเป็นห้องนอน 3, ถัดไปเป็นห้องน้ำที่ห้องนอน 2-3 ใช้ร่วมกัน ส่วนประตูตรงกลางที่เห็นคือประตูห้องนอน 2
ขึ้นมาจากบันไดจะเป็นห้องนอน 3 พื้นห้องเป็นลามิเนตแบบเดียวกับด้านนอกปูต่อเนื่องเข้าไปเลย ประตูเป็น MDF สีลายไม้น้ำตาล มือจับเป็นแบบคันโยก
ภายในมีหน้าต่างกระจกให้ 2 บานทำให้ห้องสว่างและโปร่ง ถ้าเปิดหน้าต่างก็มีลมพัดเข้ามาเย็นสบายค่ะ ภายในห้องกว้างสามารถวางเฟอร์นิเจอร์หลักๆได้ครบครัน แต่ก็ยังใช้งานสะดวก ไม่อึดอัด
ภายในวางเตียงขนาด 3.5 ฟุตได้ค่ะ จะทำให้มีพื้นที่เหลือวางเฟอร์นิเจอร์อื่นๆได้ เมื่อวางเตียงชิดผนังด้านหนึ่ง ทำให้พื้นที่อีกด้านเหลือไว้ใช้งานได้เยอะขึ้น
วางเตียง 3.5 ฟุต ก็มีพื้นที่ด้านข้างเหลือให้วางโต๊ะตัวเตียง ถัดไปทำเป็นโต๊ะทำงานตัวยาวตลอดแนวผนัง หัวเตียงมีหน้าต่างกระจกบานเลื่อน กรอบอลูมิเนียมสีเทา กระจกเขียวตัดแสง
มุมโต๊ะทำงานตัวยาว มีพื้นที่ด้านหลังเก้าอี้กับเตียงใช้งานได้สะดวก ข้างโต๊ะทำเป็นชั้นหนังสือ หรือตู้เก็บของ
ปลายเตียงเป็นตำแหน่งวางตู้เสื้อผ้าใบใหญ่ ด้านข้างแบ่งให้เป็นโต๊ะเครื่องแป้ง เหนือโต๊ะเครื่องแป้งก็ทำเป็นชั้นวางของ ก็จะได้ใช้พื้นที่ให้คุ้มค่าค่ะ
ติดห้องนอน 3 จะเป็นห้องน้ำ
ภายในห้องมีหน้าต่างกระจกบานเลื่อนเล็กๆตรงเหนือส่วนอาบน้ำ ทำให้มีแสงเข้ามาและช่วยระบายอากาศ
พื้นห้องน้ำลดระดับจากพื้นห้องลงไปเล็กน้อย พื้นปูด้วยกระเบื้องโทนสีครีมขนาด 30×30 ซม.
อ่างล้างหน้าและโถสุขภัณฑ์ของ Cotto เหนืออ่างล้างหน้าพอมีพื้นที่ให้วางของได้เล็กน้อย
เหนืออ่างล้างหน้าจะมีกระจกเงาให้ค่ะ
ส่วนอาบน้ำจะอยู่ติดกับโถสุขภัณฑ์ มีผนังปูนกั้นเล็กน้อย ส่วนพื้นจะลดระดับลงไปอีก ดังนั้นเวลาอาบน้ำอาจมีน้ำกระเด็นมาส่วนแห้งบ้างแต่ไม่มากนัก มีหน้าต่างกระจกบานเลื่อนช่วยระบายอากาศ
ฝักบัว, ที่วางสบู่และก๊อกล่าง ข้างฝักบัวจะมีการเดินระบบไฟไว้สำหรับเครื่องทำน้ำอุ่น
ติดกันนั้นเป็นห้องนอน 2 ค่ะ
พื้นเป็นลามิเนตเช่นเดียวกันปูต่อเนื่องไปเลย ภายในมีหน้าต่างกระจกให้ 1 บานเพื่อให้มีแสงธรรมชาติเข้ามาในห้องและช่วยถ่ายเทอากาศได้ดี ขนาดพื้นที่ใช้สอยใหญ่กว่าห้องนอน 3
เข้ามาจะเป็นส่วนหน้าประตู สามารถทำชั้นวางของตื้นๆได้เพื่อให้เปิดประตูมาได้สะดวก
ภายในวางเตียงขนาด 3.5 ฟุตค่ะ และยังมีพื้นที่เหลือวางโต๊ะหัวเตียง ถ้าวางเตียงชิดผนังด้านหนึ่ง จะทำให้มีพื้นที่ใช้สอยในห้องเพิ่มมากขึ้น
วางเตียง 3.5 ฟุต ด้านข้างสามารถวางโต๊ะทำงานพร้อมพื้นที่วางโคมไฟ
ข้างเตียงเป็นตำแหน่งของหน้าต่างกระจกบานเลื่อน กรอบอลูมิเนียมสีเทา กระจกเขียวตัดแสง
ปลายเตียงพื้นที่มีไม่มากนัก ทำเป็นชั้นวางทีวีตื้นๆได้ หรือแนะนำให้ติดตั้งทีวีแขวนก็เดินผ่านใช้งานสะดวกกว่าค่ะ
อีกด้านของห้องเป็นตำแหน่งตู้เสื้อผ้าใบใหญ่ แบ่งพื้นที่ส่วนที่ติดกับโต๊ะทำงานให้เป็นชั้นวางของ หรือจะวางพวกเครื่องสำอางค์ก็ได้เช่นกัน
ห้องสุดท้ายที่จะพาไปชมคือห้องนอนใหญ่หรือ Master Bedroom ค่ะ
ห้องนี้จะสว่างและมีพื้นที่ใช้สอยเยอะ เพราะเป็นส่วนหน้าบ้าน มีหน้าต่างกระจกบานใหญ่ทำให้ได้วิวสวนหน้าบ้าน
เข้ามาในห้องด้านซ้ายมือจะเป็นตำแหน่งเตียงนอน ซึ่งจะอยู่ติดกับหน้าต่างบ่านใหญ่ ทำให้มุมนี้สว่างและถ่ายเทอากาศได้ดี
เตียงสามารถวางขนาด 5-6 ฟุตได้สบาย มีพื้นที่เดินรอบเตียงได้สะดวก
ถ้าวางเตียงขนาด 5 ฟุต สองข้างเตียงจะสามารถวางโต๊ะหัวเตียงได้ทั้งสองข้าง ตรงนี้จะมีหน้าต่างบานเปิดให้ 2 บาน กรอบอลูมิเนียมสีเทา กระจกเขียวตัดแสง
ข้างเตียงอีกด้านมีหน้าต่างบานเลื่อน กรอบอลูมิเนียมสีเทา กระจกเขียวตัดแสง
ปลายเตียงเป็นตำแหน่งวางตู้เสื้อผ้า สามารถกั้นฉากกั้นเพื่อให้สามารถวางทีวีปลายเตียงและช่วยให้ห้องเป็นสัดส่วนในการใช้งาน
ติดกับประตูทางเข้าห้องนั้นจะเป็นห้องน้ำค่ะ หน้าห้องน้ำมีพื้นที่สามารถวางโต๊ะเครื่องแป้งมุมนี้ได้
ห้องน้ำห้องนี้จะมีฉากกั้นอาบน้ำ และมีหน้าต่างเพื่อให้มีแสงและช่วยถ่ายเทอากาศ
พื้นห้องน้ำลดระดับจากพื้นห้องลงไปเล็กน้อยค่ะ พื้นปูด้วยกระเบื้องโทนสีครีมขนาด 30×30 ซม.
อ่างล้างหน้าและโถสุขภัณฑ์ของ Cotto เหนืออ่างล้างหน้าพอมีพื้นที่ให้วางของได้เล็กน้อย
ด้านบนมีขอบปูนทำให้วางของได้มากขึ้น เหนืออ่างล้างหน้ามีกระจกเงาให้
ห้องนี้ส่วนแห้งและเปียกจะแยกส่วนได้ชัดเจนเพราะมีฉากกั้นอาบน้ำ พื้นลดระดับลงไปเล็กน้อย ขนาดพื้นที่กว้างสำหรับส่วนอาบน้ำทำให้ใช้งานสะดวก
ฝักบัว, ที่วางสบู่ และก็อกล่าง
ราคา (ธ.ค.59)
จอง 30,000 – 50,000 บาท ,ทำสัญญา 70,000 – 100,000 บาท (แล้วแต่แบบบ้าน)
ค่าส่วนกลาง : 25 บาท/ตร.วา/เดือน (เก็บล่วงหน้า 1 ปี ค่าส่วนกลางนี้ไม่ได้รวมกับค่าใช้บริการ Club House)
สอบถามราคาเพิ่มเติมกรุณาติดต่อสำนักงานขายเพื่อข้อมูลที่อัพเดตที่สุดค่ะ*
บทสรุปโครงการ
ทำเลที่ตั้งโครงการ – โครงการ Perfect Place รัตนาธิเบศร์e สุขุมวิท 77 – สุวรรณภูมิ ตั้งอยู่ในพื้นที่ของ Lake Avenue ซึ่งด้านหน้าเป็นถนนลาดกระบัง เป็นถนนเส้นใหญ่ที่เชื่อมกับถนนและทางด่วนหลายสาย ทำให้เดินทางได้หลากหลายเส้นทาง เชื่อมทั้งถนนสุขุมวิท 77 หรือถนนอ่อนนุช, ถนนพัฒนาการ, ถนนร่มเกล้า, วงแหวนรอบนอกกาญจนาและกรุงเทพ-ชลบุรีสายใหม่ ไม่ไกลจากแอร์พอร์ตลิงค์, ห้างสรรพสินค้า, คอมมูนิตี้มอล, ร้านค้า และตลาดสด อยู่ไม่ไกลจากสนามบินสุวรรณภูมิ ดังนั้นจะได้ยินเสียงเครื่องบินเป็นระยะนะคะ
ความอุดมสมบูรณ์ – ที่ตั้งโครงการอยู่ในย่านพักอาศัย ทำให้โดยรอบพอที่จะมีร้านค้า ร้านอาหารอยู่บ้าน มากมาย เรียกได้ว่ามีความอุดมสมบูรณ์โดยรอบ ใกล้กับโครงการในระยะที่ปั่นจักรยานหรือเดินจากหน้าโครงการไปได้เลยจะมีคอมมูนิตี้มอลที่ชื่อว่า The Paseo Mall ตรงนั้นมีทั้งร้านค้า,ร้านอาหาร ให้สามารถไปจับจ่ายใช้สอยได้สะดวก
โดยรอบโครงการจะมีสถานศึกษาทั้งประถมไปจนถึงระดับมหาวิทยาลัย ไม่ว่าจะเป็นโรงเรียนเทพศิรินทร์ ร่มเกล้า, โรงเรียนนานาชาติร่วมฤดี ถนนร่มเกล้า, โรงเรียนเตรียมอุดมพัฒนาการและมหาวิทยาลัยเกษมบัณฑิต ถนนพัฒนาการ, และมหาวิทยาลัยหัวเฉียว ถนนบางนา-ตราด
สำหรับตลาดสดก็มีทั้งตลาดลานบุญ ถนนลาดกระบัง และตลาดเอี่ยมสมบัติ ตรงถนนอ่อนนุช หรือถ้าจะไปห้างสรรพสินค้าใหญ่ๆก็จะมีบิ๊กซีและโลตัสตรงถนนอ่อนนุช สำหรับห้างสรรพสินค้าใหญ่แหล่งอื่นที่อยู่ไม่ไกล จะอยู่เส้นบางนา-ตราดค่ะ นั่นคือ Index บางนา, Central บางนา , Mega บางนา และ Ikea
การเดินทางด้วยรถยนต์ส่วนตัว – สำหรับคนขับรถ ถือว่าสะดวกเพราะเชื่อมต่อกับถนนหลายสาย ทั้งถนนสุขุมวิท 77 หรือถนนอ่อนนุช, ถนนพัฒนาการ, ถนนร่มเกล้า, ถนนกิ่งแก้ว, ถนนสุวรรณภูมิ, ถนนฉลองกรุง และไม่ไกลจากทางด่วน
สำหรับถนนลาดกระบัง สามารถตรงไปยังฉะเชิงเทรา หรือถ้าตรงมายังทางตัวเมืองกรุงเทพก็จะเชื่อมกับถนนอ่อนนุชหรือสุขุมวิท 77 ซึ่งเส้นนี้ก็เชื่อมกับหลายสายเช่นกันเริ่มจากวงแหวนรอบนอกกาญจนา สามารถตรงไปเข้า-ออกตัวเมืองและต่างจังหวัด โดยรอบกรุงเทพได้ไม่ยาก ถัดไปก็จะเชื่อมกับถนนพัฒนาการ ซึ่งเชื่อมกับถนนเพชรบุรีและรามคำแหง ตรงไปยังรามคำแหงและพระราม 9 ได้
เชื่อมกับถนนศรีนครินทร์ ตรงมายังบางนา-ตราด, ถนนแบริ่ง และเทพารักษ์ หรือจะไปยังลาดพร้าว, รามคำแหง, นวมินทร์ก็ได้ค่ะ จากปากซอยถนนอ่อนนุชหรือสุขุมวิท 77 จะเชื่อมกับถนนรัชดาภิเษก สำหรับเส้นนี้ตรงยาวไปถึงย่านบางปู หรือจะตรงเข้าเมืองกรุงเทพได้เลย
อีกทั้งที่ตั้งโครงการนั้นยังอยู่ไม่ไกลกับจุดขึ้น-ลงทางด่วน สำหรับทางด่วนโดยรอบโครงการนั้น ก็จะเป็นทางด่วนที่เชื่อมต่อกัน ทำให้เดินทางได้สะดวกมากยิ่งขึ้น อย่างจุดที่ใกล้คือจุดขึ้น-ลงวงแหวนรอบนอกกาญจนา เส้นนี้ก็ทำให้ไปยังพื้นที่โดยรอบเขตกรุงเทพได้ไม่ยาก
ถ้าจะไปยังชลบุรี ก็วิ่งบางนา-ตราดหรือกรุงเทพ-ชลบุรีสายใหม่, ทางด่วนเฉลิมมหานครตรงไปยังตัวเมืองเขตปทุมวัน เชื่อมไปถึงทางยกระดับอุตรภิมุขตรงไปยังจตุจักร, ดอนเมือง และยังตรงยาวไปยังพระราม 2 ได้ ส่วนเส้นกรุงเทพ-ชลบุรีสายใหม่ ก็เชื่อมกับทางด่วนศรีรัชวิ่งไปบางซื่อ ไปนนทบุรี และตรงไปยังปทุมธานีได้
การเดินทางด้วยรถสาธารณะ –การเดินทางโดยไม่ใช้รถ ที่ตั้งโครงการเหมาะสำหรับผู้ที่มีรถยนต์ส่วนตัวหรืออาจต้องมีจักรยาน,มอเตอรไซค์ เพื่อมายังหน้าโครงการ Lake Avenue ซึ่งถนนด้านหน้าเป็นถนนลาดกระบัง ถือว่าเดินทางด้วยรถสาธารณะได้สะดวก เพราะด้านหน้าโครงการมีทั้งป้ายรถโดยสารประจำทาง, มีรถสองแถวและแท็กซี่เป็นระยะ
อีกทั้งเส้นลาดกระบังถือว่าไม่ไกลจาก Airport Rail Link โดยสถานีที่ใกล้ที่สุดคือสถานีลาดกระบัง สำหรับ Airport Rail Link นั้นสามารถเชื่อมกับทั้ง BTS สายสีเขียวตรงสถานีพญาไท และ MRT สายสีน้ำเงินตรงสถานีมักกะสัน
สำหรับ BTS ที่ใกล้ที่สุดจะเป็นสถานีอ่อนนุช สำหรับรถไฟฟ้าเส้นนี้จะวิ่งปลายทางคือแบริ่ง และตรงยาวไปจนถึงจตุจักร หรืออีกเส้นสีเขียวเข้มก็ไปยังฝั่งธนที่สถานีบางหว้าได้
การออกแบบโครงการและวัสดุ – การออกแบบสำหรับภายนอกนั้นในเรื่องความสวยงามอาจขอข้ามนะคะ เพราะความชอบไม่เหมือนกัน โดยตัวบ้านใช้สีโทนเรียบคือใช้เพียง 2-3สี มีสีเข้มและสีขาว เพิ่มมิติและสีสันด้วยเฉดที่อ่อนกว่าและเส้นสาย หรือบางหลังก็จะมีสีอื่นนอกจากสีเทาเขาเพิ่มเข้ามา โครงการได้ออกแบบให้ตัวบ้านมีหน้าต่างและประตูกระจกบานใหญ่ เพื่อให้มีแสงธรรมชาติเข้าไปข้างใน ทำให้บ้านดูไม่ทึบ มีความโปร่งและถ่ายเทอากาศได้ดีค่ะ
การออกแบบฟังก์ชั่นภายในถือว่าครบครัน พอเหมาะสำหรับครอบครัวขนาดกลางประมาณ 4- 5 คน( หรือมากกว่านั้นแล้วแต่แบบบ้าน) พื้นที่นั่งเล่นกว้างเดินใช้งานได้สะดวก ด้านข้างและด้านหน้ามีที่ให้วางโต๊ะกาแฟ สามารถวางโซฟาชุดได้ ถัดไปเป็นโต๊ะทานอาหารวางโต๊ะใหญ่สำหรับ 4-6 ที่นั่ง
พื้นที่ครัวมีให้แยกต่างหากและเป็นครัวปิด บางหลังจะมีพื้นที่สำหรับเป็น Pantry พื้นที่ครัวขนาดพอเหมาะสำหรับประกอบอาหารจึงทำให้ไม่ต้องต่อเติมเพิ่ม ด้านหลังบ้านมีพื้นที่ส่วนซักล้างเป็นสัดส่วน บางแบบก็จะมีห้องแม่บ้านให้ด้วยค่ะ
สำหรับส่วนที่เป็นห้องนอน ฟังก์ชั่นก็สะดวกต่อการใช้งานค่ะ ห้องนอนใหญ่หรือ Master bedroom ก็กว้าง วางเตียง 5-6 ฟุตได้ มีพื้นที่เหลือให้วางโต๊ะทำงาน ส่วนแต่งตัวก็สามารถจัดเป็นสัดส่วน สำหรับห้องนอน 2-3 ขนาดพื้นที่ใช้สอย ก็พอเหมาะ วางเฟอร์นิเจอร์หลักๆอย่างเตียงนอน, โต๊ะทำงาน, และตู้เสื้อผ้าได้ พื้นที่ใช้สอยก็เดินใช้ได้สะดวกไม่อึดอัด ในห้องมีหน้าต่างให้หลายจุด อากาศถ่ายเทได้ดี
วัสดุ – วัสดุถือว่าให้มามาตรฐาน พื้นชั้นล่างเป็นแกรนิตโต้ ชั้นบนเป็นลามิเนตหนา 8 มม., พื้นห้องน้ำเป็นกระเบื้องเซรามิคขนาด 30×30 ซม., กระจกเขียวตัดแสง ,ไฟโคมซาลาเปา, กรอบประตูทางเข้าบ้านและหน้าต่างเป็นกรอบอลูมิเนียมสีขาวหรือสีเทา ,สุขภัณฑ์ Cotto และให้ Wallpaper ทุกหลังยกเว้นในห้องครัวและห้องแม่บ้าน
สิ่งอำนวยความสะดวก – มีอาคาร Club House ซึ่งจะมีสระว่ายน้ำแยกสระเด็ก สระผู้ใหญ่ มีพื้นที่นั่งเล่นริมสระ 2 สระ และฟิตเนสขนาดใหญ่ มีเครื่องออกกำลังกายครบครันพร้อมมีเทรนเนอร์คอยให้คำแนะนำ และมีห้องโยคะ ห้องกิจกรรมให้ทั้งห้องแอโรบิค และห้องโยคะ
โครงการจะมีสวนสาธารณะให้ 11 จุดค่ะ จุดใหญ่คืออยู่รอบทะเลสาบ Club House ก็จะอยู่ตรงนั้น จะเป็นสวนใหญ่เป็นวงกลมล้อมทะเลสาบ มีสนามเด็กเล่นและมุมออกกำลังกายให้ และจะมีสนามเทนนิสกับสนามฟุตบอล สำหรับ 10 จุดที่เหลือคือ แต่ละโครงการ(เฟสแต่ละเฟส)จะมีพื้นที่สวนเล็กๆส่วนตัวด้านใน ถ้าอยากนั่งเล่น พักผ่อนก็ไม่ต้องมาตรงสวนใหญ่ หน้าโครงการตรงประตูทางเข้า -ออกติดตั้ง CCTV ประตูทางเข้า-ออกมีไม้กระดกกั้น มีระบบรักษาความปลอดภัยตลอด 24 ชม.
ข้อดีของการมาเยี่ยมชมโครงการที่สร้างเสร็จพร้อมขาย และมีเฟสที่มีผู้พักอาศัยอยู่เต็มแล้วทำให้เห็นบรรยากาศภายในว่าพื้นที่ในโครงการเป็นอย่างไร ความสะอาด ความเป็นระเบียบเรียบร้อย และการทำงานของเจ้าหน้าที่หรือพนักงานดูแล พนักงานทำความสะอาด
*สำหรับโครงการ Perfect Place สุขุมวิท 77 – สุวรรณภูมิ อยู่ในพื้นที่ของ Lake Avenue โดยพื้นที่ที่เปิดขายตอนนี้คือเฟส 6 ค่ะ
คะแนน
| ทำเลที่ตั้งโครงการ | 8.5 | อยู่บนถนนลาดกระบัง เชื่อมต่อกับถนนอ่อนนุช, พัฒนาการ, ร่มเกล้า, ศรีนครินทร์ ไม่ไกลทางด่วน โดยรอบมีร้านค้า ร้านอาหาร ตลาดสด ไม่ไกลจากห้างสรรพสินค้า สถานศึกษา สถานที่ราชการและโรงพยาบาล |
| การเดินทาง ใช้รถ | 8.5 | เดินทางสะดวกเชื่อมต่อออกไปได้หลายเส้นทางเพราะเชื่อมต่อกับถนนหลักหลายสาย อีกทั้งยังไม่ไกลจากทางขึ้น-ลงทางด่วนหลายจุด |
| การเดินทาง ไม่ใช้รถ | 7.75 | หน้าโครงการมีรถโดยสารประจำทางผ่าน,สองแถว, แท็กซี่มีเป็นระยะ ไม่ไกลจาก Airport Rail Link สถานีลาดกระบัง และ BTS สายสีเขียวสถานีอ่อนนุช |
| ห้องและวัสดุ | 8.0 | แปลนบ้านมีฟังก์ชั่นทุกอย่างครบครัน ห้องครัวแยกเป็นสัดส่วน ไม่จำเป็นต้องต่อเติมเพิ่ม พื้นที่ส่วนต่างๆใช้งานได้สะดวก ห้องนอนวางเฟอร์นิเจอร์หลักได้ครบครัน วัสดุถือว่ามาตรฐานสำหรับราคานี้ พื้นที่รอบบ้านกว้าง มีพื้นที่ทำสวนซึ่งโครงการจัดสวนให้ |
| สิ่งอำนวยความสะดวก | 9.0 | Club House ซึ่งจะมีสระว่ายน้ำ 2 สระใหญ่, พื้นที่นั่งเล่นริมสระ และฟิตเนสขนาดใหญ่ สวนสาธารณะ 11 จุด มีสวนใหญ่กว้างพร้อมทะเลสาบ มีสนามเด็กเล่นและสนามเทนนิส หน้าโครงการมี CCTV และป้อมรปภ.ระบบรักษาความปลอดภัยตลอด 24 ชั่วโมง ค่าบริการ Club House ต้องเสียค่าสมาชิกในการใช้บริการ |
| ความคุ้มค่ากับราคา | 8.0 | ราคาเริ่มต้นตอนนี้อยู่ที่ประมาณ 88,703/ตร.วา บ้านเดี่ยว 2 ชั้น 3 ห้องนอน,2ห้องน้ำ, 2 ที่จอดรถ พื้นทีดินกว้าง มีสวนรอบบ้าน พื้นที่จอดรถได้ 2 คันทั้ง พร้อมส่วนกลางของโครงการที่มีอย่างครบครัน |
| คะแนนรวมเฉลี่ย | 8.3 | ดี |
สนใจติดต่อสอบถามเพิ่มเติมได้ที่
Tel : 1375
Website : http://www.pf.co.th/th/single-house/perfect-place/sukhumvit77-suvarnabhumi
หากเพื่อนๆเห็นว่ารีวิวนี้มีประโยชน์ ช่วยกด Like เพื่อเป็นกำลังใจให้ทีมงาน ขอบคุณค่ะ
และมีความคิดเห็นหรือข้อมูลเพิ่มเติมเกี่ยวกับตัวโครงการ สามารถ Comment ได้ที่ด้านล่างของรีวิวค่ะ
บ้านเดี่ยว สมุทรปราการ ทำเลอื่นๆ ที่น่าสนใจ…
บ้านแฝด J Villa สุขุมวิท – แพรกษา เริ่ม 3.49 ล้าน
บ้านแฝด สุขสำราญ คาแนล ประชาอุทิศ 90
วิเศษสุขนคร 16-ประชาอุทิศ 90
ไลโอ นอฟ บางนา-สุวรรณภูมิ
บ้านเดี่ยว Perfect Place สุขุมวิท 77 – สุวรรณภูมิ
เรสท์ วิลเลจ บาย ไพโรจน์กิจจา (บางนา) เริ่ม 3.99 ล้าน*
บ้านชัยพฤกษ์ ศรีนครินทร์ เริ่ม 5.59 ล้าน
เพอร์เฟค พาร์ค บางนา
ศุภาลัย วิลล์ เทพารักษ์ เริ่ม 2 ล้านกว่าๆ
บ้านเดี่ยว THE PLANT ศรีนครินทร์ – หนามแดง เริ่ม 4 – 6 ล้าน
บ้านเดี่ยวและบ้านแฝด บ้านร็อคการ์เด้น สุวรรณภูมิ เฟส 2