
มณีรินทร์ โฮมออฟฟิศ สุขุมวิท-บางพระ Maneerin Home Office Sukhumvit-Bang Phra
Maneerin Home Office สุขุมวิท-บางพระ โฮมออฟฟิศใหม่ สไตล์โมเดิร์นทันสมัย โครงการจาก บริษัท มณีรินทร์ พร็อพเพอร์ตี้ จำกัด ตั้งอยู่บนถนนสุขุมวิท ต.บางพระ อ.ศรีราชา ชลบุรี
เดินทางสะดวก ใกล้ถนนสุขุมวิท เชื่อมต่อไปพัทยา และ ตัวเมืองชลบุรีได้ง่าย ใกล้บายพาส และ มอเตอร์เวย์ วิ่งตรงสู่ กทม. ได้อย่างรวดเร็ว
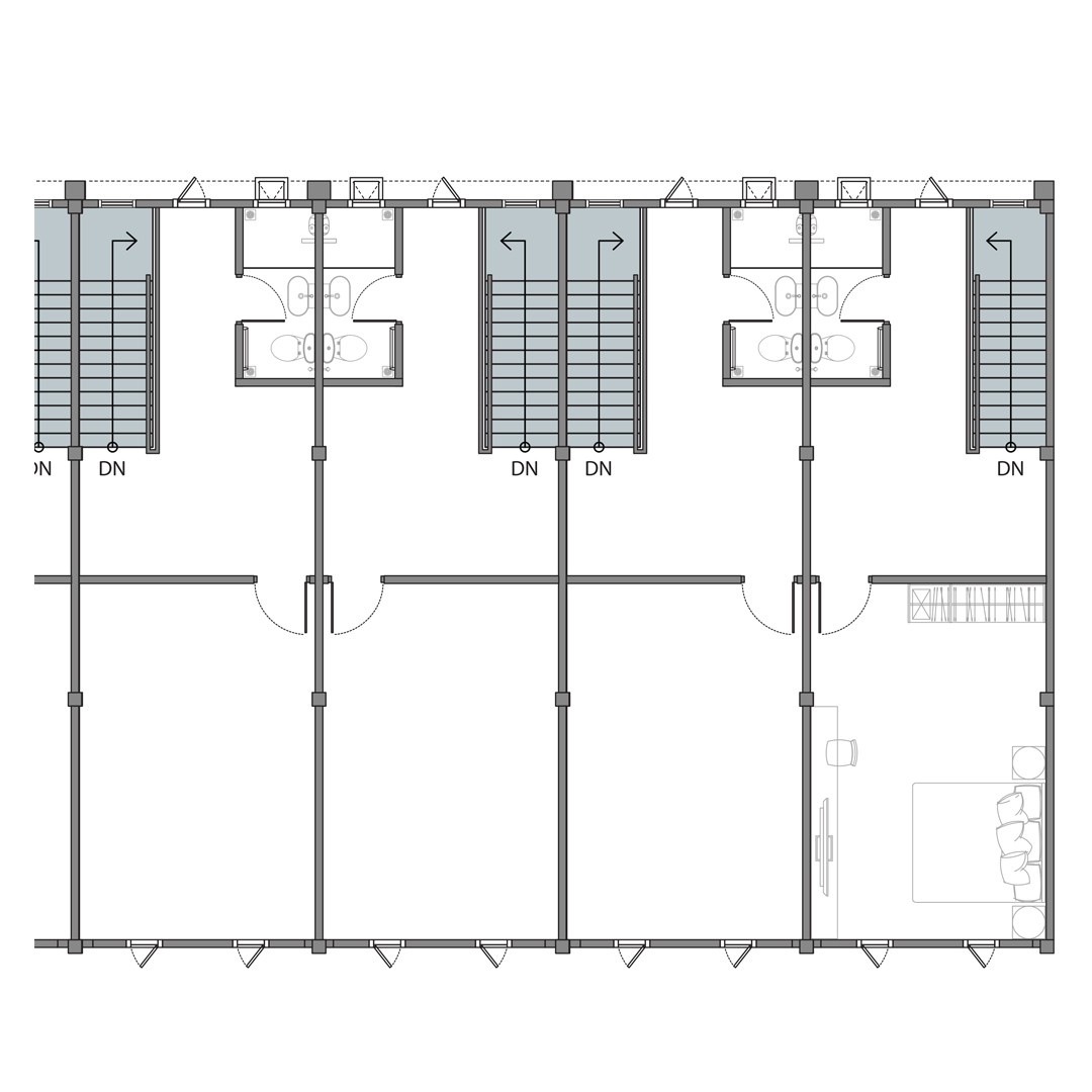
มณีรินทร์ โฮมออฟฟิศ สุขุมวิท-บางพระ เป็นโครงการโฮมออฟฟิศ 2 ชั้น จำนวนบ้าน 20 ยูนิต เหมาะแก่การทำธุรกิจการค้า ฟังก์ชันขนาด 1 พื้นที่ทำงาน, 1 ห้องนอน, 2 ห้องน้ำ พร้อมที่จอดรถส่วนกลางด้านหน้าอาคาร ราคาเริ่มต้น 2.29 ล้านบาท* (ก.พ.64)

| ชื่อโครงการ | มณีรินทร์ โฮมออฟฟิศ สุขุมวิท-บางพระ / Maneerin Home Office Sukhumvit-Bang Phra |
| เจ้าของโครงการ | บริษัท มณีรินทร์ พร็อพเพอร์ตี้ จำกัด / Maneerin Property |
| ลักษณะโครงการ | โฮมออฟฟิศ 2 ชั้น |
| พื้นที่โครงการ | รอข้อมูลจากทางโครงการ |
| จำนวนบ้าน | รอข้อมูลจากทางโครงการ |
| เนื้อที่บ้าน | รอข้อมูลจากทางโครงการ |
| พื้นที่ใช้สอย | รอข้อมูลจากทางโครงการ |
| จำนวนห้อง | 1 พื้นที่ทำงาน, 1 ห้องนอน, 2 ห้องน้ำ |
| ที่จอดรถทั้งหมด | ด้านหน้าอาคาร |
| โซน | ศรีราชา-ชลบุรี |
| เส้นทางคมนาคม |
|
| ที่ตั้ง | ถนนสุขุมวิท ต.บางพระ อ.ศรีราชา ชลบุรี |
| กำหนดการ | n/a |
| ปีที่สร้างเสร็จ | บ้านพร้อมอยู่* |
| ราคา | เริ่มต้น 2.29 ล้านบาท* (ก.พ.64) |
| ค่าส่วนกลาง | n/a |
| สถานที่สำคัญใกล้เคียง |
|
| สิ่งอำนวยความสะดวก | ที่จอดรถด้านหน้าอาคาร |
| จุดเด่นของโครงการ | โฮมออฟฟิศ ใจกลางเมืองบางพระ ด้วยดีไซน์สวยทันสมัย เหมาะแก่การทำธุรกิจการค้า เดินทางสะดวกใกล้ถนนสุขุมวิท-บางพระ |
ที่ตั้งโครงการ
ถนนสุขุมวิท ต.บางพระ อ.ศรีราชา ชลบุรี
HOUSE TYPE
แปลนพื้นบ้านชั้น 1
แปลนพื้นบ้านชั้น 2
สอบถามรายละเอียดเพิ่มเติมได้ที่
Tel : 089-405-3666
Website : https://www.maneerin.co.th/en/project2-detail2-project/25
ทาวน์โฮม ชลบุรี ทำเลอื่นๆ ที่น่าสนใจ…
พี วิลเลจ หนองชาก
ทาวน์โฮม เดอะ เกรท ทาวน์ หนองข้างคอก-ชลบุรี
ทาวน์โฮม เอช ลีฟวิ่ง สเปซ เครือสหพัฒน์-แหลมฉบัง
ทาวน์โฮม ภัททา ทาวน์ พัทยา
ทาวน์โฮม ภัสสร วิลล์ พัทยา
ทาวน์โฮม โกลเด้น ทาวน์ อ่างศิลา-สุขุมวิท
ทาวน์โฮม เอส สิริภัสสร 2 บางพระ-ชลบุรี
มณีรินทร์ โฮมออฟฟิศ สุขุมวิท-บางพระ
ทาวน์โฮม เดอะ คอทเทจ อ่างศิลา-ชลบุรี
มิดทาวน์ หนองมน (ชลบุรี)
ทาวน์โฮม มณีรินทร์ โมเดิร์นโฮม บางพระ