
EP.860 รีวิว คอนโด ลิสส์ รัชโยธิน LYSS Ratchayothin
สวัสดีผู้อ่าน Homenayoo ทุกคนครับ วันนี้ผมจะพามาชมโครงการ Lyss รัชโยธิน จาก Able Asset Group ตั้งอยู่ในซอยพหลโยธิน 27 ห่างจากปากซอยถนนพหลโยธินเข้ามาประมาณ 200 ม. ใกล้รถไฟฟ้า BTS พหลโยธิน 24 ห่างจาก Avenue และเมเจอร์รัชโยธินประมาณ 600 ม.
ลิสส์ รัชโยธิน เป็นคอนโด Low Rise 1 อาคาร สูง 8 ชั้น บนที่ดิน 1-1-44.9 ไร่ ห้องพักอาศัยมีทั้งหมด 171 ยูนิต มีห้องให้เลือกแบบ 1 ห้องนอน , 2 ห้องนอน , ดูเพล็กซ์ ขนาดห้องเริ่มต้นที่ 28.20-108.54 ตร.ม. คาดว่าสร้างเสร็จพร้อมอยู่ในปี 2562
สิ่งอำนวยความสะดวก ภายในโครงการมีให้ครบครัน ทั้งที่จอดรถ, โถงต้อนรับ, สระว่ายน้ำ, ฟิตเนส, สวนหย่อม, ลิฟท์โดยสาร, Access Card Control, กล้องวงจรปิดภายในโครงการ ที่จอดรถ ประมาณ 40% ไม่รวมซ้อนคัน และ รปภ.ตลอด 24 ชั่วโมงในราคาเริ่มต้น 2.59 ล้านบาท
ส่วนรายละเอียดอื่นๆจะเป็นอย่างไรอ่านต่อด้านล่างได้เลยครับ
| ชื่อโครงการ | ลิสส์ รัชโยธิน LYSS Ratchayothin |
| เจ้าของโครงการ | บริษัท เอเบิ้ล แอสเสท กรุ๊ป จำกัด – Able Asset Group |
| เนื้อที่ทั้งหมด | 1 – 1 – 44.9 ไร่ |
| จำนวนตึก | 1 อาคาร |
| จำนวนชั้น | 8 ชั้น + ที่จอดรถชั้นใต้ดิน |
| จำนวนห้อง |
|
| ลักษณะห้องและขนาดห้อง |
|
| ที่จอดรถทั้งหมด | 40% (ไม่รวมซ้อนคัน) |
| จำนวนลิฟท์ | ลิฟท์โดยสาร 2 ตัว |
| โซน | พหลโยธิน (แยกรัชโยธิน) |
| ขนส่งสาธารณะ |
|
| รถโดยสารที่ผ่าน | 24, 39, 59, 63, 503, 524 |
| ที่ตั้ง | ซอยพหลโยธิน27 ถนนพหลโยธิน แขวงจอมพล เขตจตุจักร กรุงเทพ 10900 |
| กำหนดการ | เริ่มก่อสร้างกลางปี 2560 |
| ปีที่สร้างเสร็จ | ปี 2562 |
| ราคา | เริ่มต้น 2.59 ล้านบาท |
| ราคาเฉลี่ยต่อ ตร.ม | 105,000 บาท/ตร.ม. |
| ค่าส่วนกลางและกองทุน |
|
| สถานที่สำคัญใกล้เคียง |
|
| สิ่งอำนวยความสะดวก |
|
| จุดเด่นของโครงการ | LYSS รัชโยธิน คอนโดใหม่ ใกล้รถไฟฟ้าสายสีเขียว ส่วนต่อขยาย สถานีพหลโยธิน 24 เพียง 200 เมตร บนทำเลศักยภาพ ทำเลใจกลางเมือง เดินทางสะดวก ไม่ว่าจะเป็นรถสาธารณะ หรือรถส่วนตัว ใกล้ห้างสรรพสินค้า, สถานศึกษา, โรงพยาบาล, สถานีตำรวจ ราคาเริ่มต้น 2.59 ล้านบาท* |
คอนโดโดยรอบ BTS พหลโยธิน 24 *อนาคตเชื่อมต่อรถไฟฟ้าสายสีเหลือง (ส่วนต่อขยาย) ที่ตั้งโครงการ
ซอยพหลโยธิน 27 ถนนพหลโยธิน แขวงจอมพล เขตจตุจักร กรุงเทพ 10900

พิกัด Google โดยประมาณ : 13.824785, 100.564835
ที่ตั้งโครงการ Lyss รัชโยธิน ตั้งอยู่ในซอยพหลโยธิน 27 ห่างจากปากซอยเข้ามาประมาณ 200 ม. ซอยนี้เป็นซอยตันเข้าออกได้ทางเดียว การเดินทางหลักๆก็ใช้เส้นพหลโยธิน จากซอยโครงการอยู่ห่างจากแยกรัชโยธินประมาณ 300 ม. ซึ่งเป็นจุดตัดระหว่างถนนพหลโยธินกับถนนรัชดาภิเษก ใช้เดินทางเข้าออกเมืองได้ทั้งสองเส้น
การเดินทางเข้าเมือง ปากซอยเป็นถนนพหลโยธิน และตรงปากซอยตอนนี้เลี้ยวซ้ายไปทางแยกรัชโยธินได้อย่างเดียว แต่เมื่อการก่อสร้างรถไฟฟ้าแล้วเสร็จ จะขึ้นอยู่กับตำรวจจราจรอีกทีครับ ตรงแยกรัชโยธินจะตัดกับถนนรัชดาภิเษก ไปได้ทั้งฝั่งถนนวิภาวดีรังสิตที่สามารถวิ่งเข้าเมืองได้ จะไปผ่านห้าแยกลาดพร้าว เข้าจตุจักร สะพานควาย ยาวไปอนุสาวรีย์ชัยฯได้เลย หรือจะใช้เส้นวิภาวดีรังสิตตรงไปดินแดงเข้าอนุสาวรีย์ชัยฯได้เช่นกันมีทางด่วนให้ขึ้นตรงเส้นนี้ด้วย จากแยกรัชโยธินสามารถไปได้อีกทางคือจะไปฝั่งพระรามเก้า โดยจะผ่านแยกรัชดา-ลาดพร้าววิ่งตามแนวรถไฟฟ้า MRT ตรงไปสุทธิสาร ห้วยขวาง แยกพระรามเก้า ตรงข้ามไปเข้าอโศกดินแดง มีทางแยกไปเข้าจตุรทิศได้ หรือตรงไปแยกอโศก-เพชรบุรี ตัดเข้าเพชรบุรีหรือตรงไปเข้าอโศกมนตรีได้เลย ผ่านแยกอโศกก็เป็นเส้นสุขุมวิทแล้ว จะไปฝั่งพร้อมพงษ์ ทองหล่อ เอกมัย หรือไปฝั่งนานา เพลินจิต ชิดลมสยามได้ หรือถ้าข้ามแยกอโศกไป จะเชื่อมออกถนนพระรามสี่ได้ครับ
การเดินทางออกนอกเมือง ถ้าใช้เส้นพหลโยธิน ตรงไปผ่านแยกเกษตร สามารถแยกไปเกษตรนวมินทร์ และงามวงศ์วานได้ หรือตรงไปอีกจะผ่านวงเวียนหลักสี่ตัดเข้ารามอินทรา และแจ้งวัฒนะได้ หรือตรงเลยไปอีกจะไปผ่านสะพานใหม่ยาวไปออกรังสิตได้เลย เส้นรัชดาภิเษกไปวนเข้าวิภาวดีรังสิตขาออกเมืองได้ หรือตรงไปวงศ์สว่าง พระราม 7 จรัญสนิทวงศ์ ปิ่นเกล้าได้ครับ เส้นรัชดาภิเษกอีกฝั่งวิ่งไปเข้าถนนพระรามเก้ายิงยาวออกไปทางแยกรามคำแหง ตัดเข้าศรีนครินทร์ได้ หรือออกมอเตอร์เวย์ ยาวไปชลบุรี พัทยาได้เลยสะดวกดี
การเดินทางโดยสาธารณะ จุดเด่นของโครงการตรงปากซอยพหลโยธิน 27 จะอยู่ใกล้กับ BTS สถานีพหลโยธิน 24 เป็นรถไฟฟ้าส่วนต่อขยายสายสีเขียวหมอชิต-สะพานใหม่-คูคต ที่กำลังก่อสร้างกันอยู่ตอนนี้ครับแต่น่าจะเสร็จหลังจากโครงการ สามารถนั่งไปลงสถานีห้าแยกลาดพร้าวเพื่อเปลี่ยนเป็นรถไฟฟ้าใต้ดินได้เพียงสถานีเดียว นอกจากนี้ยังมีวินมอเตอร์ไซค์ และป้ายรถเมล์อยู่ตรงปากซอยเลยทั้งฝั่งขาเข้าและออกเมือง มีรถวิ่งเกือบตลอดทั้งคืน เส้นนี้มีรถตู้วิ่งด้วยครับเส้นทางตั้งแต่อนุสาวรีย์ จตุจักร รัชโยธิน เกษตร สะพานใหม่ รังสิต โบกเรียกตรงปากซอยได้เลย Taxi ก็เรียกปากซอยได้สะดวกครับมีวิ่งผ่านเยอะเลย อยู่ที่นี่ไม่ต้องมีรถส่วนตัวก็สบายครับ

จากภาพถ่ายดาวเทียมจะเห็นว่าพื้นที่รอบๆโครงการส่วนใหญ่จะเป็นบ้านพักอาศัยโดยส่วนใหญ่จะเป็นทาวน์เฮ้าส์ 2-3 ชั้น และมีหอพักบ้างแต่ก็ไม่ได้เยอะมาก Lyss รัชโยธิน เป็นโครงการแรกที่ตั้งอยู่ในซอยนี้ครับ ในอนาคตจะมีแนวรถไฟฟ้าสายสีเหลืองตัดผ่านเส้นรัชดาภิเษกเป็นส่วนต่อขยายมาจากสถานีรัชดา ตรงแยกรัชดา-ลาดพร้าว จะมาตัดกับสายสีเขียวตรงแยกรัชโยธิน แต่คงต้องรอกันอีกสักพักครับ ถ้าเปิดใช้บริการเมื่อไหร่คงจะสะดวกมากขึ้นไปอีกครับ

การเดินทางวันนี้เริ่มจากถนนวิภาวดีรังสิตมุ่งหน้าไปลาดพร้าว จากนั้นเลี้ยวเข้าถนนพหลโยธินตรงห้าแยกลาดพร้าว ขับมุ่งหน้าไปทางรัชโยธิน และเลี้ยวเข้าซอยพหลโยธิน 27 เข้าไปประมาณ 200 ม. โครงการจะอยู่ทางขวามือครับ
สรุปการเดินทาง ถนนวิภาวดีรังสิต > ถนนพหลโยธิน > ซอยพหลโยธิน 27 > Lyss รัชโยธิน
เริ่มจากถนนวิภาวดีรังสิตมุ่งหน้าไปทางลาดพร้าว
จะวิ่งเส้นคู่ขนาน หรือเส้นในก็ได้ครับ ตามป้ายลาดพร้าวไป
ถ้าวิ่งเส้นในมาจะเจอทางเบี่ยงออกซ้ายมือ ตามป้ายลาดพร้าวครับ
เบี่ยงซ้ายออกมาตรงตามป้ายรัชโยธินไปอีกครับ
ขึ้นสะพานลอยไปต่อครับ
ลงสะพานมาจะเจอถนนพหลโยธิน
จากนั้นก็ตรงไปทางบางเขนครับ ขวามือที่เห็นก่อสร้างอยู่คือแนวรถไฟฟ้าส่วนต่อขยายสายสีเขียวช่วงหมอชิต-สะพานใหม่-คูคต
จากนั้นจะเจอ Central ลาดพร้าวซ้ายมือ ขวามือเป็น Union Mall ถัดไปเป็นโครงการ M ลาดพร้าว
ผ่าน Central ลาดพร้าวมา ซ้ายมือเป็นโรงเรียนหอวัง ขวามือเป็น Tesco Lotus
ช่วงนี้จะเห็นแนวเสารถไฟฟ้าแล้วครับ
ถัดมาจะเจอ Rasa Tower ซ้ายมือ
เลยมาอีกจะเจอ 7-11 ซ้ายมือ ขวามือมีปั๊ม Susco ถัดไปอีกเป็นตึกช้างครับ
ถัดมาจะเป็นซอยพหลโยธิน 25 ตรงปากซอยมีวิมอเตอร์ไซค์
เลยมาอีกจะเป็นป้ายรถเมล์ ติดกันจะเป็นซอยพหลโยธิน 27 ซึ่งเป็นซอยทางเข้าโครงการครับ
ฝั่งตรงข้ามหน้าปากซอยพหลโยธิน 27 เป็นซอยพหลโยธิน 26 มี 7-11 ตรงปากซอย
มองไปฝั่งซ้ายจะเห็นตึกช้าง
ฝั่งขวาจะเห็นแบบนี้ ช่วงซอยพหลโยธิน 24 จะเป็นที่ตั้งของสถานี BTS พหลโยธิน 24
จากนั้นเราจะเลี้ยวเข้าซอยพหลโยธิน 27 ตรงเข้าไปอีกประมาณ 200 ม. โครงการจะอยู่ทางขวามือครับ
เลี้ยวซ้ายเข้าซอยพหลโยธิน 27 ต่อครับ
ซอยพหลโยธิน 27 เป็นซอยตันเข้าออกได้ทางเดียว มีถนนขนาด 2 เลนรถวิ่งสวนกันได้
ฝั่งขวาเป็นบริษัท OTTO BOCK
ฝั่งซ้ายเป็นพื้นที่ว่างเปล่าอยู่ครับ
เดินเข้าซอยไปอีกครับ ริมทางจะมีรถจอดเป็นระยะๆครับ
ภายในซอยส่วนใหญ่จะเป็นบ้านพักอาศัย และมีหอพักบ้าง
ซ้ายมือเป็นหอพักสูง 5 ชั้น
เลยเข้ามาอีกจะเป็นบ้านทาวน์เฮ้าส์ 2-3 ชั้น
ถัดเข้ามาอีกจะเจอซอยพหลโยธิน 27 แยก 2 ขวามือ
ช่วงนี้เป็นทาวน์เฮ้าส์ทั้งสองฝั่งเลย
เข้ามาอีกจะเจอซอยพหลโยธิน 27 แยก 4 ขวามือ
ตรงเข้ามาอีกเป็นบ้านทาวน์เฮ้าส์ 3 ชั้น
และจะถึงพื้นที่โครงการขวามือครับ ด้านหน้าโครงการอยู่ติดกับถนนซอยพหลโยธิน 27 เลย
สุดซอยจะเป็นซอยตันครับ เป็นบ้านพักอาศัยด้านใน

พื้นที่โครงการทิศเหนือหรือด้านหลังโครงการติดกับบ้านพักอาศัย ทิศใต้ด้านหน้าโครงการติดกับซอยพหลโยธิน 27 ทิศตะวันตกติดกับบ้านพักอาศัยเป็นบ้านทรงไทย และทิศตะวันออกติดกับทาวน์เฮ้าส์ 2-3 ชั้น
พื้นที่ด้านหน้าโครงการติดซอยพหลโยธิน 27
ด้านข้างโครงการทิศตะวันออกติดกับบ้าน 3 ชั้น
มองจากด้านข้างโครงการอีกฝั่ง
พื้นที่ด้านข้างโครงการฝั่งทิศตะวันตกติดกับบ้านพักอาศัย
พื้นที่ด้านในโครงการแต่เดิมเป็นบ้านพักอาศัย ตอนนี้พื้นที่อยู่ในช่วงวางแผนรื้อถอน ด้านหลังโครงการจะติดกับบ้านพักอาศัย ถัดออกไปจะเห็นอาคาร SCB สำนักงานใหญ่
ฝั่งตรงข้ามด้านหน้าโครงการเป็นทาวน์เฮ้าส์ 2 ชั้น
มองไปทางขวาจะเห็นอาคาร 4 ชั้น
มองไปทางซ้ายเป็นทาวน์เฮ้าส์ 2-4 ชั้น
กลับออกมาที่ปากซอยพหลโยธิน 27 เดี๋ยวผมพาเดินไปเมเจอร์รัชโยธิน มีทางเท้าเดินไปถึงเลย จากโครงการถึงเมเจอร์รัชโยธินระยะทางประมาณ 600 ม.
ริมทางถนนพหลโยธินมีทางเท้าเดินสะดวก
เลยมาหน่อยจะเจอทางม้าลายขวามือ
ถ้าเดินข้ามไปจะไปตึกช้างได้พอดีครับ
ถัดมาจะเจอซอยพหลโยธิน 29
ถัดมาซ้ายมือจะเจอธนพรคลินิก
เดินเลยมาตรงหน้าจะเป็นแยกรัชโยธิน
แยกรัชโยธินตอนนี้รื้อสะพานข้ามแยกออกไปแล้วเพื่อทำรถไฟฟ้าครับ ตอนนี้ทำเป็นวงเวียนไว้ชั่วคราว
มีทางสำหรับคนเดินข้ามแยกไว้ให้
เดินข้ามแยกไปครับ
เดินข้ามแยกไปตรงหน้าจะเป็นร้านคาเฟ่ ข้ามฝั่งไปแล้วเราจะเดินไปทางซ้ายเพื่อไปเข้า Avenue รัชโยธิน ได้ หรือจะเดินตรงริมถนนพหลโยธินไปเมเจอร์รัชโยธินก็ได้ครับ เพราะพื้นที่ด้านในจะเชื่อมต่อกัน
ผมพาเดินริมถนนพหลโยธินต่อนะครับ
ซ้ายมือมีร้านอาหารตามสั่ง
ถัดมาจะเป็นพื้นที่ของเมเจอร์ ที่เป็นตลาดนัด เราเดินเข้าซ้ายมือได้เลย
มีทางเท้าเดินเข้าสะดวก
เดินเข้ามาซ้ายมือเป็น 7-11 ขวามือเป็นร้านตัดผม Neversay Cutz
เดินเข้ามาจะเป็นพื้นที่ตลาดนัดที่จะเป็นช่วงเย็น มีทั้งเสื้อผ้า เครื่องสำอางค์ ของกิน ของใช้
ถัดมาขวามือเป็นร้านอาหารตำแหล
ติดกันเป็นร้าน Waft Me ตรงหน้าก็เป็นทางเข้าเมเจอร์รัชโยธิน เดินมาดูหนังได้สบายๆครับ
มีทางเดิจเชื่อมเข้าไปด้านในเป็น Avenue รัชโยธิน
Avenue รัชโยธินก็จะมีร้านค้า ร้านอาหารอร่อยๆหลายร้านเลยครับ

ความอุดมสมบูรณ์รอบๆโครงการภายในซอยจะไม่มีร้านค้านะครับต้องออกมาปากซอย เดินข้ามถนนไปปากซอยพหลโยธิน 26 มี 7-11 หรือจะเดินไปทางแยกรัชโยธินมีทางเท้าเดินสะดวก จากโครงการประมาณ 600 ม. จะเจอเมเจอร์รัชโยธิน และ Avenue รัชโยธิน มีทั้งโรงหนัง ร้านค้า ร้านอาหารอร่อยๆหลายร้านเลย รวมไปถึงตลาดนัดข้างๆเมเจอร์ มีทั้งเสื้อผ้า ของใช้แฟชั่นต่างๆ และอาหารขายด้วยครับ ถ้าเดินไปฝั่งห้าแยกลาดพร้าวประมาณ 950 ม. จะมี Central ลาดพร้าว , Tesco Lotus , Union Mall ข้ามห้าแยกลาดพร้าวไปก็เป็นจตุจักรแล้วครับเดินช้อปกันได้เลย นอกนั้นก็นั่ง BTS เข้าเมืองไปได้เลยสะดวกดี
สถานที่สำคัญใกล้เคียง
แยกและถนนสำคัญใกล้เคียง
Sale Gallery
ตัวสำนักงานขายตั้งอยู่ติดกับถนนรัชดาภิเษก ฝั่งมุ่งหน้ามาทางพระรามเก้า ห่างจากแยกรัชโยธินมาประมาณ 200 ม. พิกัด Google Maps 13.826411, 100.570093
ด้านหน้าสำนักงานขาย ตกแต่งมาให้ดูแบบนี้ครับ บนหลังคามีป้ายชื่อโครงการมองเห็นชัดเจน
เดินขึ้นมาจะเห็นห้องกระจกรอบด้าน ด้านหน้าปลูกต้นไม้
ผนังอีกฝั่งเป็นต้นไม้แบบนี้
เดินเข้ามาดูด้านใน จะเจอเคาน์เตอร์ต้อนรับ มีโมเดลให้ดู
ฝั่งด้านหน้าจัดเป็นชุดโซฟา
ไฟตกแต่งบนฝ้าเพดาน เป็นลูกกลมๆห้อยลงมาเล่นระดับสูงต่ำต่างกัน
มองเข้าไปด้านใน มีทางเดินเข้าไปยังห้องตัวอย่าง
ด้านในแบ่งเป็นห้องตัวอย่าง 2 ห้อง
Model
Lyss รัชโยธิน ตั้งอยู่ในซอยพหลโยธิน 27 บนที่ดินขนาด 1-1-44.9 ไร่ ตัวอาคารออกแบบมาเป็นรูปสี่เหลี่ยมมองจากฝั่งด้านข้างจะเหมือนตัว U ตรงกลางจะเป็นส่วนกลาง ชั้นพักอาศัยจะเริ่มที่ชั้น 1-8 สีภายนอกอาคารใช้โทนเทาและน้ำตาลอ่อน เฟรมกระจกสีดำ
ภาพจำลองโครงการ Lyss รัชโยธิน มุมมองจากฝั่งด้านข้างทิศตะวันออก จะเห็นอาคารเป็นตัว U ตรงกลางเป็น Facility
ฝั่งด้านหน้าโครงการอยู่ติดกับถนนซอยพหลโยธิน 27 ทางเข้าออกจะลอดใต้อาคารเข้าไปครับ ที่ชั้น 1-2 ฝั่งด้านหน้าจะมียูนิตพิเศษ 4 ยูนิต ฝั่งขวาเป็นร้านค้า 1 ร้าน ฝั่งซ้ายจะเป็นห้อง Duplex 3 ยูนิต
ซูมตรงทางเข้าออกโครงการลอดใต้อาคารเข้าไป ตกแต่งเป็นระแนงสีน้ำตาล มีป้ายโครงการติดไว้ชัดเจน
ส่วนของร้านค้า 1 ร้าน
ตรงส่วนยูนิต Duplex 3 ยูนิต ที่ชั้น 1 จะมีแนวรั้วกั้น ทางเข้าห้อง Duplex สามารถเดินเข้าห้องได้จากชั้น 1 และชั้น 2

ด้านหน้าทางเข้าโครงการติดซอยพหลโยธิน 27 ทางเข้าทำเป็นเหมือนอุโมงค์ ฝั่งซ้ายที่ชั้น 1 จะเป็นห้องแบบ Duplex
มาต่อกันที่ฝั่งด้านข้าง ทิศตะวันออกฝั่งนี้ติดกับทาวน์เฮ้าส์ 2-3 ชั้น มองจากฝั่งนี้จะเห็นตัวอาคารเป็นตัว U ตรงกลางจะเป็นส่วนกลางที่ชั้น 2 ครับ ที่ชั้น 1 มีที่จอดรถใต้อาคาร และมีทางลงไปจอดรถใต้ดิน 1 ชั้น ฝั่งด้านในมี Lobby และห้องฟิตเนส
มองจากด้านบนลงมาที่ส่วนกลางชั้น 2 พื้นที่ชั้นนี้จะไม่ได้ทึบหมดมีเจาะช่องให้แสงลงไปถึงชั้น 1 ซึ่งตรงกับจุด Drop Off พอดี ติดกันเป็นทางเข้า Lobby ที่ชั้น 2 จะมีสระว่ายน้ำขนาด 14 x 4 ม. ระบบเกลือ ฝั่งด้านข้างมี Pavilion ไว้ให้นั่งนอนเล่น ได้ มีทางเดินรอบๆ
มองจากมุมบนอีกฝั่งจะเห็นแบบนี้ครับ
ซูมตรงประตูทางเข้า Lobby ที่ชั้น 1
ด้านหน้าทางเข้า Lobby

ภาพจำลองภายใน Lobby ตกแต่งมาสีโทนเดียวกับตัวอาคาร
ภาพจำลองห้องฟิตเนสที่ชั้น 1 ติดกับ Lobby

สระว่ายน้ำที่ชั้น 2 เป็นแบบน้ำล้น

ติดกับสระว่ายน้ำจะเป็น Pavilion จะวางเตียงนอนริมสระไว้ และเป็นทางเดินไปสระว่ายน้ำครับ
ยูนิตที่ชั้น 2 บางยูนิตจะมีระเบียงเป็นประตูเปิดออกมาที่ส่วนกลางได้เลย
ภาพจำลองชั้น 2 มีสระว่ายน้ำ และเตียงนอนริมสระ มีสวนรอบๆ
มองจากฝั่งสวนนั่งพักผ่อนอีกฝั่ง
ด้านหลังโครงการพื้นที่ติดกับบ้านพักอาศัย ที่ชั้น 1 จะเป็นห้องฟิตเนส
มองลงมาพื้นที่ด้านหลังที่ติดกับห้องฟิตเนสจะจัดเป็นสวนหย่อม
ด้านข้างโครงการอีกฝั่งทิศตะวันตก ฝั่งนี้ติดกับบ้านพักอาศัยครับ รอบริมรั้วโครงการจะมีแนวต้นไม้ใหญ่ปลูกไว้
Floor Plan
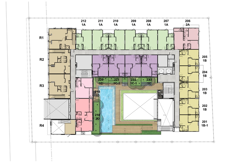
แปลนอาคารชั้น 1 จะเห็นว่าฝั่งด้านหน้าโครงการจะมียูนิต Duplex 4 ยูนิตเป็น Type R1 , R2 , R3 , R4 ยูนิต R4 จะเป็นร้านค้าครับ เข้ามาด้านในโครงการจะเริ่มจอดรถได้เลย จากนั้นจะเจอจุด Drop Off หรือวนเข้าไปด้านใน มีทางลงที่จอดรถใต้ดิน 1 ชั้น ทั้งโครงการจอดได้ประมาณ 40% ไม่รวมจอดซ้อนคัน จากจุด Drop Off เดินเข้า Lobby ได้เลย ตัว Lobby ฝ้าสูงถึงชั้นสอง เชื่อมกับห้องฟิตเนส และบันไดเดินขึ้นชั้นสองมายังส่วนกลาง ลิฟท์โดยสารมี 2 ตัว

แปลนอาคารชั้น 2 จะมียูนิตพักอาศัยจำนวน 18 ยูนิต และเป็นชั้น 2 ของห้อง Duplex ที่ชั้น 1 ครับ บันไดหนีไฟมี 2 จุด ตรงกลางระหว่างขาของอาคารจะเป็นส่วนของ Facility เข้าได้จากชั้น 2 ตรงโถงลิฟท์ และบันไดที่เดินขึ้นมาจากชั้น 1 จะมีสระว่ายน้ำ และสวนนั่งพักผ่อน

แปลนอาคารชั้น 3 – 8 จะเหมือนกันครับ นับได้ทั้งหมด 25 ยูนิต แบ่งเป็นห้อง 2 Bedroom 4 ยูนิตที่ตำแหน่ง 06 , 13 , 17 , 18 ที่เหลือจะเป็นห้อง 1 Bedroom ทั้งหมดครับ
Units Type
โครงการมีห้องให้เลือกดังนี้

TYPE 1 A : 28.20 ตร.ม.

TYPE 1 B : 29.70 ตร.ม.
TYPE 1 B-1 : 29.85 ตร.ม.

TYPE 1 C : 32.00 ตร.ม.

TYPE 1 C-1 : 33.20 ตร.ม.
TYPE 1 D : 32.35 ตร.ม.
TYPE 2 A : 49.50 ตร.ม.

TYPE 2B : 59.00 ตร.ม.
TYPE 2C : 59.45 ตร.ม.

TYPE 2D : 51.10 ตร.ม.

TYPE R1 : 103.24 ตร.ม.

TYPE R2 : 108.39 ตร.ม.

TYPE R3 : 108.54 ตร.ม.

TYPE R4 : 54.00 ตร.ม.
ห้องตัวอย่าง
ห้องตัวอย่างที่จะพามาชมวันนี้มี 2 แบบ

แบบแรกที่จะพามาชมเป็น 1 Bedroom ขนาด 29.85 ตร.ม. เดินเข้าห้องมาเจอส่วนห้องนั่งเล่นก่อน ฝั่งขวาเป็นห้องน้ำ ภายในห้องน้ำมีพื้นที่ส่วนเปียกส่วนแห้ง ถัดไปเป็นห้องนอน ภายในห้องนอนมีพื้นที่วางโต๊ะ ตู้ เตียง ห้องครัวอยู่อีกฝั่ง ได้เป็นครัวปิดมีฉากกั้นบานเลื่อนให้ พื้นที่ภายในห้องครัวแบ่งฝั่งส่วนที่เป็นเคาน์เตอร์และโต๊ะรับประทานอาหารเข้ามุม ถัดจากครัวจะเป็นระเบียงหลังห้อง

ประตูห้องไม่มีให้ชมนะครับ แต่จะได้เป็นระบบ Digital Door Lock พร้อมมือจับคันโยกของ Hafele
เดินเข้าห้องมาจะเจอส่วนห้องนั่งเล่นก่อนเลย ด้านในสุดเป็นห้องครัวได้เป็นครัวปิดมีฉากกั้นบานเลื่อนให้ ด้านในสุดจากครัวเป็นระเบียง ติดกับครัวเป็นห้องนอน ขวามือเป็นห้องน้ำ พื้นห้องนั่งเล่นและห้องนอนเป็นไม้ลามิเนตหนา 8 มม. ฝ้าสูง 2.6 ม. ผนังจะได้ฉาบเรียบทาสีท้ังห้องครับ ไฟได้แบบดาวน์ไลท์
เดินเข้ามาแล้วมองกลับไปที่ประตูทางเข้า จะเห็นแบบนี้ครับ

ติดกับประตูห้องจะมีระบบ Door Phone สำหรับผู้มาติดต่อสามารถติดต่อเจ้าของห้องได้เลย
พื้นที่ส่วนห้องนั่งเล่นขนาดประมาณ 2.6 x 3.3 ม. แอร์ตรงห้องนั่งเล่นติดเหนือผนังประตูส่วนครัว 1 ตัว
ได้ชุดโซฟาขนาด 2 ที่นั่งพร้อมโต๊ะกลาง พื้นที่สามารถวางโซฟาตัว L ได้ครับ พื้นที่เหลือวางโต๊ะทำงาน หรือชั้นวางของได้อีกหน่อย
ระยะดูทีวีประมาณ 3.3 ม. ได้เฉพาะชั้นวางทีวีด้านล่างครับ ซ้ายมือเป็นห้องนอนและห้องน้ำ
ชั้นวางทีวีที่ได้เป็นลิ้นชัก 3 ชั้น หน้าท็อปไม่ได้เป็นกระจกเหมือนห้องตัวอย่างนะครับ
ภายในห้องน้ำ แบ่งพื้นที่ส่วนเปียกส่วนแห้ง

ชุดอ่างล้างหน้า มีตู้กระจกบานเปิด และตู้ใต้อ่างล้างหน้าไว้เก็บของได้
อ่างล้างหน้าทรงสี่เหลี่ยมได้ของ Mogen ผนังด้านในทำ Low Wall ไว้ให้วางของได้
ติดกับอ่างล้างหน้าเป็นโถสุขภัณฑ์ของ Mogen
ฝั่งด้านในเป็นพื้นที่ส่วนเปียกได้ฉากกั้นอาบน้ำแบบบานเปิด
ด้านในติดฝักบัวมาให้ฝั่งนี้
หน้าตาฝักบัวที่ได้ทรงเหลี่ยมๆขนาดพอดีมือของ
พื้นที่ส่วนเปียกขนาด 1.89 x 0.90 ม.
ธรณีส่วนเปียกทำมาสูงพอประมาณ กันน้ำเลอะเทอะด้านนอก
ถัดจากห้องนั่งเล่นมาซ้ายมือเป็นห้องครัว ขวามือเป็นห้องนอน
เข้ามาดูห้องนอนกันก่อนครับ ของที่ได้จะได้เตียงนอน ตู้เสื้อผ้า และชั้นวางของปลายเตียง
ได้เตียงนอนขนาด 5 ฟุต
พื้นที่ข้างเตียงเหลือประมาณ 1.3 ม.
ปลายเตียงเหลือพื้นที่ประมาณ 58 ซม.
พื้นที่ข้างเตียงริมหน้าต่างเหลือประมาณ 36 ซม.
ระยะดูทีวีปลายเตียงประมาณ 2.5 ม.
ชั้นวางของปลายเตียงเป็นลิ้นชัก 3 ช่อง หน้าท็อปไม่ได้เป็นกระจกเหมือนห้องตัวอย่างนะครับ
หน้าต่างในห้องนอนฝั่งขวาเป็นบานเลื่อน 2 บาน ฝั่งซ้ายเป็นบานกระทุ้ง 1 บานที่เหลือเป็นบาน Fixed
ฝั่งด้านในวางตู้เสื้อผ้า ได้แอร์ 1 ตัวติดผนังเหนือประตูห้องนอน
ตู้เสื้อผ้าที่ได้เป็นแบบบานเลื่อน 2 บาน หน้าบานของจริงจะเป็นบานทึบนะครับ ห้องตัวอย่างแต่งเป็นบานกระจกให้ดู
ออกจากห้องนอนมา ไปดูส่วนครัวกันต่อ ครัวได้เป็นครัวปิดมีบานเลื่อน 3 ตอนให้
ภายในห้องครัวแบ่งฟังก์ชั่นเป็น 2 ฝั่ง เว้นทางเดินตรงกลางกว้างประมาณ 1.31 ม. ในสุดเป็นประตูออกไปยังระเบียง พื้นห้องครัวเป็นกระเบื้องแกรนิตโต้
ฝั่งนี้ได้โต๊ะรับประทานอาหารแบบเคาน์เตอร์บาร์
โต๊ะรับประทานอาหารได้พร้อมเก้าอี้ 2 ตัวตามนี้เลย
อีกฝั่งเป็นชุดเคาน์เตอร์ครัว และพื้นที่วางตู้เย็น
ชุดตู้ด้านบนเป็นบานเปิด 5 บาน ทุกบานมี Soft Close ให้
ตู้ด้านล่างเป็นบานเปิด 2 บาน และลิ้นชัก 2 ชั้น
อ่างล้างจานได้แบบหลุมเดียวไม่มีที่พักจานของ Teka ฝังท็อปหินแกรนิตมาเรียบร้อยดี
ได้เตาไฟฟ้าหน้าเซรามิกแบบ 2 หัว พร้อมเครื่องดูดควันของ Teka ผนังด้านในกรุกระเบื้องมาให้ทำความสะอาดง่าย ผนังฝั่งขวาน่าจะทำมาให้ด้วยเลย
ด้านในสุดมีประตูกระจกบานเปิด 1 บาน
มือจับประตูเป็นแบบคันโยก
เปิดออกมาจะเจอระเบียงขนาด 1.89 x 0.90 ม.
มีพื้นที่วางเครื่องซักผ้าได้
ด้านบนแขวนคอมเพลสเซอร์แอร์ 2 ตัว โครงการจะติดกริลเป่าลมออกด้านนอกให้ครับ
มองกลับเข้ามาด้านในครัวจะเห็นแบบนี้ครับ
มาต่อกันอีกแบบ 2 Bedroom ขนาด 59.45 ตร.ม. เดินเข้ามาจะเจอส่วนห้องนั่งเล่นก่อน เชื่อมกับส่วนรับประทานอาหารพื้นที่จะอยู่ติดกับระเบียงห้องเลย ติดกับประตูห้องจะเป็นส่วนครัวได้เป็นครัวปิด ถัดเข้าจะมีทางเดินมายังห้องนอนเล็ก ฝั่งตรงข้ามเป็นห้องน้ำ ด้านในสุดเป็นห้อง Master Bedroom หน้าต่างในห้องนอนเป็นแบบ Bay Windows มีห้องน้ำในตัว ในห้องน้ำจะมีอ่างอาบน้ำมาให้ด้วย
เดินเข้าห้องมาจะเป็นทางเดิน เข้าไปห้องนั่งเล่น ซ้ายมือเป็นห้องครัวได้เป็นห้องกระจก ถัดเข้าไปด้านในจะเป็นห้องนอนทั้ง 2 ห้อง พื้นห้องเป็นไม้ลามิเนตหนา 8 มม. ผนังได้เป็นฉาบเรียบทาสีทั้งห้อง ฝ้าสูง 2.6 ม.
เดินเข้ามาแล้วมองกลับไปที่ประตู้ทางเข้าจะเห็นแบบนี้ครับ ขวามือเป็นห้องครัว
เดินเข้ามาจะมีตู้เก็บรองเท้า และตู้วางเครื่องซักผ้า เป็นบานเปิด 4 บาน
ถัดเข้ามาเป็นห้องนั่งเล่น และส่วนรับประทานอาหารใช้พื้นที่ร่วมกันได้ ส่วนตำแหน่งการจัดวางก็แล้วแต่ความชอบเลยครับ
ได้โซฟาตัว L พร้อมโต๊ะกลาง
ระยะดูทีวีประมาณ 2.34 ม.
ได้ชั้นวางทีวีเป็นลิ้นชัก 4 ช่อง หน้าท็อปไม่ได้เป็นกระจกเหมือนห้องตัวอย่างนะครับ
ติดกับโซฟาเป็นส่วนรับประทานอาหาร
ได้ชุดโต๊ะรับประทานอาหารขนาด 4 ที่นั่ง ได้เป็นม้านั่งยาว 1 ตัว และเก้าอี้ 2 ตัว
ระยะดูทีวีจากโต๊ะรับประทานอาหารประมาณ 4 ม.
ติดกับส่วนรับประทานอาหารเป็นระเบียง มีประตูกระจกบานเลื่อน 2 บาน
เปิดออกมาจะเจอระเบียงขนาด 2.94 x 0.91
ด้านข้างมีพื้นที่วางคอมเพลสเซอร์แอร์ 3 ตัว มีประตูระแนงบังสายตามาให้
มองกลับเข้ามาด้านใน ฝั่งตรงข้ามเป็นห้องครัว
ครัวจะได้เป็นครัวปิด ผนังห้องเป็นกระจกเข้ามุม และมีประตูกระจกบานเลื่อน 2 บาน แสงส่องเข้าถึงด้านในได้ทุกส่วน
เปิดเข้ามาจะเจอพื้นที่ยืนในห้องครัวขนาด 1.18 x 1.1 ม. พื้นปูกระเบื้องแกรนิตโต้ ชุดเคาน์เตอร์ครัวเป็นตัว U ท็อปเป็นหินแกรนิตสีดำ

ตู้เป็นบาน 4 บานและลิ้นชัก 2 ชั้น
ตู้ด้านบนเป็นบานเปิด 7 บาน ทุกบานมี Soft Close ให้
ได้เตาไฟฟ้าหน้าเซรามิก 2 หัวพร้อมเครื่องดูดควันของ Teka
อ่างล้างจานได้แบบหลุมเดียวฝังท็อปของ Teka
ออกจากห้องครัวมาจะมีทางเดินเข้าไปยังห้องนอนต่อ
เดินตรงเข้ามาขวามือจะมีตู้เก็บของ โดยโครงการจะทำตู้บานทึบให้ ถัดไปซ้ายมือเป็นห้องน้ำ ขวามือเป็นห้องนอนเล็ก ในสุดเป็น Master Bedroom
ภายในห้องน้ำมีพื้นที่ส่วนเปียกส่วนแห้ง
ชุดตู้อ่างล้างหน้าเป็นบานเปิด
สุขภัณฑ์เป็นของ Mogen
อีกฝั่งเป็นพื้นที่ส่วนเปียก มีฉากกั้นอาบน้ำให้เป็นบานเปิด 1 บาน
ด้านในมีฝักบัวพร้อม Rain Shower ก๊อกน้ำแบบผสมน้ำร้อนน้ำเย็น
หน้าตาฝักบัวที่ได้ของ Mogen
พื้นที่ส่วนเปียกขนาด 1.27 x 0.67 ม.
ออกจากห้องน้ำมาฝั่งตรงข้ามจะเป็นห้องนอนเล็ก ซ้ายมือเป็น Master Bedroom
ภายในห้องนอนเล็ก
ได้เตียงเดี่ยว วางติดผนังด้านใน ปลายเตียงเหลือพื้นที่ประมาณ 46 ซม.

พื้นที่ข้างเตียงเหลือประมาณ 1.21 ม. สามารถวางโต๊ะทำงานได้ แอร์ติดผนัง 1 ตัว
เป็นลิ้นชัก 2 ช่อง
ระยะดูทีวีประมาณ 2.4 ม.
ติดกับประตูห้องได้ตู้เสื้อผ้าแบบบานเลื่อน 2 บาน ของจริงหน้าบานตู้จะเป็นบานทึบ
มาต่อกันที่ Master Bedroom ในห้องมีพื้นที่มาพอสมควร มีห้องน้ำในห้อง
ได้เตียงนอนขนาด 5 ฟุต
ข้างเตียงเหลือพื้นที่ประมาณ 86 ซม.
ข้างเตียงอีกฝั่งเหลือประมาณ 1.78 ม.
ปลายเตียงเหลือพื้นที่ประมาณ 50 ซม.
ระยะดูทีวีปลายเตียงประมาณ 2.5 ม. ได้ชั้นวางทีวีมาให้เลย
หน้าต่างในห้องนอนเป็นบานเลื่อน 4 บาน มีส่วนที่เป็นบาน Fixed เข้ามุม
ฝั่งด้านในเป็นห้องน้ำ และพื้นที่วางตู้เสื้อผ้า ได้ตู้เสื้อผ้าบานเลื่อน 2 บาน ของจริงหน้าบานตู้จะเป็นบานทึบ แอร์ติดผนังฝั่งนี้ 1 ตัว
ภายในห้องน้ำเข้ามาจะเจอชุดอ่างล้างหน้า
อ่างล้างหน้าทรงสี่เหลี่ยมของ Mogen มีพื้นที่วางของรอบอ่าง
ติดกันวางโถสุขภัณฑ์ของ Mogen
ฝั่งด้านนอกวางอ่างอาบน้ำมาให้ มีหน้าต่างบานเลื่อน 2 บาน ต้องติดม่านบังตาเพิ่มเองนะครับ หรือติดฟิลม์ขุ่นก็ได้
อ่างอาบน้ำของ Mogen
ฝักบัวตรงอ่างอาบน้ำทรงกลมของ Mogen
ฝั่งด้านในเป็นพื้นที่ส่วนเปียก มีฉากกั้นบานเปิดมาให้
ด้านในมีฝักบัวพร้อม Rain Shower ก๊อกน้ำแบบผสมน้ำร้อนน้ำเย็น
พื้นที่ส่วนเปียกขนาด 1.05 x 0.80 ม.
ธรณีส่วนเปียกทำมาสูงพอประมาณ กันน้ำเลอะเทอะด้านนอกได้
ราคา (พ.ค.60)
***ค่าส่วนกลาง 45 บาท/ตร.ม. : ค่ากองทุน 500 บาท/ตร.ม
***เงินจอง 20,000 บาท ทำสัญญา 90,000 – 180,000 บาท
***รายละเอียดอื่นๆโปรดสอบถามทางโครงการครับ
สรุป
ทำเลที่ตั้งโครงการ – Lyss รัชโยธิน ตั้งอยู่ในซอยพหลโยธิน 27 เป็นซอยตัน รอบๆโครงการส่วนใหญ่เป็นบ้านพักอาศัย และหอพัก ความอุดมสมบูรณ์ในซอยไม่มีร้านค้า ต้องออกมาเส้นพหลโยธิน 7-11 อยู่ปากซอยพหลโยธิน 26 หรือจากโครงการไปเมเจอร์รัชโยธิน และ Avenue รัชโยธินประมาณ 600 ม. ทั้งโรงหนัง ร้านค้า ร้านอาหารอร่อยๆหลายร้านเลย รวมไปถึงตลาดนัดข้างๆเมเจอร์ มีทั้งเสื้อผ้า ของใช้แฟชั่นต่างๆ และอาหารขายด้วยครับ ถ้าเดินไปฝั่งห้าแยกลาดพร้าวประมาณ 950 ม. ถ้าชอบเดินก็ได้หรือจะนั่งรถไปก็ได้ จะมี Central ลาดพร้าว , Tesco Lotus , Union Mall ข้ามห้าแยกลาดพร้าวไปก็เป็นจตุจักรแล้วครับเดินช้อปกันได้เลย นอกนั้นก็นั่ง BTS เข้าเมืองไปได้เลยสะดวกดี
การเดินทางด้วยรถยนต์ส่วนตัว – ออกจากซอยพหลโยธิน 27 มาจะเป็นถนนพหลโยธิน ตอนนี้เลี้ยวซ้ายได้อย่างเดียว แต่เมื่อการก่อสร้างรถไฟฟ้าแล้วเสร็จ จะขึ้นอยู่กับตำรวจจราจรอีกทีครับ ตรงแยกรัชโยธินจะตัดกับถนนรัชดาภิเษก ไปได้ทั้งฝั่งถนนวิภาวดีรังสิตที่สามารถวิ่งเข้าเมืองได้ จะไปผ่านห้าแยกลาดพร้าว เข้าจตุจักร สะพานควาย ยาวไปอนุสาวรีย์ชัยฯได้เลย หรือจะใช้เส้นวิภาวดีรังสิตตรงไปดินแดงเข้าอนุสาวรีย์ชัยฯได้เช่นกันมีทางด่วนให้ขึ้น หรืออีกทางไปโซนพระรามเก้า เข้าเพชรบุรี อโศก สุขุมวิทได้ ถ้าจะออกนอกเมือง เส้นพหลโยธิน ตรงไปผ่านแยกเกษตร สามารถแยกไปเกษตรนวมินทร์ และงามวงศ์วานได้ หรือตรงไปอีกจะผ่านวงเวียนหลักสี่ตัดเข้ารามอินทรา และแจ้งวัฒนะได้ หรือตรงเลยไปอีกจะไปผ่านสะพานใหม่ยาวไปออกรังสิตได้เลย เส้นรัชดาภิเษกไปวนเข้าวิภาวดีรังสิตขาออกเมืองได้ หรือตรงไปวงศ์สว่าง พระราม 7 จรัญสนิทวงศ์ ปิ่นเกล้าได้ครับ
การเดินทางด้วยรถสาธารณะ – จุดเด่นของโครงการคืออยู่ใกล้รถไฟฟ้า BTS พหลโยธิน 24 เป็นส่วนต่อขยายสายสีเขียวช่วงหมอชิต-สะพานใหม่-คูคต ซึ่งตัวสถานีจะอยู่ใกล้ๆกับปากซอยพหลโยธิน 27 ตอนนี้กำลังก่อสร้างกันอยู่แต่น่าจะเสร็จหลังจากโครงการ ถ้าเปิดใช้งานสามารถนั่งไปลงสถานีห้าแยกลาดพร้าวเพื่อเปลี่ยนเป็นรถไฟฟ้าใต้ดินได้เพียงสถานีเดียว นอกจากนี้ยังมีวินมอเตอร์ไซค์ และป้ายรถเมล์อยู่ตรงปากซอยเลยทั้งฝั่งขาเข้าและออกเมือง มีรถวิ่งเกือบตลอดทั้งคืน เส้นนี้มีรถตู้วิ่งด้วยครับเส้นทางตั้งแต่อนุสาวรีย์ จตุจักร รัชโยธิน เกษตร สะพานใหม่ รังสิต โบกเรียกตรงปากซอยได้เลย Taxi ก็เรียกปากซอยได้สะดวกครับมีวิ่งผ่านเยอะเลย อยู่ที่นี่ไม่ต้องมีรถส่วนตัวก็สบายครับ
การออกแบบโครงการและวัสดุ – โครงการออกแบบมา 1 อาคาร สูง 8 ชั้น บนพื้นที่ดินขนาด 1 – 1 – 44.9 ไร่ อาคารรูปทรงสี่เหลี่ยมเป็นตัว U ตรงกลางเป็นส่วนกลาง ออกแบบมาเต็มพื้นที่ สีภายนอกใช้โทนเทาและน้ำตาล ที่ชั้น 1 และลงไปใต้ดินอีก 1 ชั้น เป็นชั้นจอดรถ ชั้นพักอาศัยจะเริ่มที่ชั้น 1 – 8 ส่วนกลางหลักๆอยู่ที่ชั้น 1 และ 2
การออกแบบห้องพักอาศัยที่นี่มีให้เลือก 3 แบบหลักๆ คือ 1 Bed ขนาดเริ่ม 28.20-33.20 ตร.ม. , 2 Bed ขนาด 49.50-59.45 ตร.ม. , Duplex ขนาด 103.24-108.54 ตร.ม. ห้องออกแบบมาดูโปร่งไม่อึดอัด ฝ้าสูง 2.6 ม. โครงการขายแบบ Fully Furnished ของที่ได้จะมี ชุดโซฟาพร้อมโต๊ะกลาง ชั้นวางทีวี ชุดครัว อ่างล้างจาน และ Hob & Hood ของ Teka โต๊ะรับประทานอาหารพร้อมเก้าอี้ ในห้องนอนได้เตียงนอน ตู้เสื้อผ้า ชั้นวางทีวี สุขภัณฑ์ภายในห้องน้ำของ Mogen พร้อมฉากกั้นส่วนเปียก แอร์ได้แบบติดผนังตรงห้องนั่งเล่นและทุกห้องนอน ประตูห้องได้ Digital Door Lock ของ Hafele ทุกห้องจะได้ระบบ Door Phone
สิ่งอำนวยความสะดวก – Facility หลักๆของโครงการอยู่ที่ชั้น 1 และ 2 ที่ชั้น 1 มี Lobby ติดกับ Lobby เป็นห้องฟิตเนส ที่ชั้น 2 มีสระว่ายน้ำระบบเกลือขนาด 14 x 8 ม. มี Pavilion พร้อมเตียงนอนริมสระ รอบๆสระมีจัดตกแต่งสวนและพื้นที่นั่งพักผ่อน ลิฟต์โดยสารมีให้ 2 ตัว ที่จอดรถจอดได้ที่ชั้น 1 และชั้นใต้ดิน 1 ชั้น ทั้งโครงการจอดได้ 40% ไม่รวมซ้อนคัน ระบบรักษาความปลอดภัยมีรปภ. มี CCTV และผ่านเข้าออกด้วยระบบ Key Card Access
คะแนน
| ทำเลที่ตั้งโครงการ | 7.5 | อยู่ในซอยพหลโยธิน 27 ห่างจากปากซอยประมาณ 200 ม. ทำเลรอบๆเป็นบ้านพักอาศัยและหอพัก |
| การเดินทาง ใช้รถ | 8.0 | เชื่อมออกได้หลายเส้นทาง เข้าและออกเมืองสะดวก |
| การเดินทาง ไม่ใช้รถ | 8.0 | ใกล้ BTS พหลโยธิน 24 รถเมล์ รถตู้ วินมอเตอร์ไซค์ Taxi |
| ห้องและวัสดุ | 8.0 | ออกแบบมาดีเป็นสัดส่วน วัสดุที่ใช้อยู่ในระดับมาตรฐาน ขายแบบ Fully Furnished หิ้วกระเป๋าเข้าอยู่ได้เลย |
| สิ่งอำนวยความสะดวก | 7.5 | Facility มาตรฐาน Low Rise มี Lobby , สวนหย่อม , ฟิตเนส , สระว่ายน้ำ |
| ความคุ้มค่ากับราคา | 7.5 | เหมาะกับคนที่อยากได้ที่อยู่อาศัยใกล้รถไฟฟ้า เดินทางเข้าออกเมืองสะดวก แต่ก็มีตัวเลือกอีกหลายที่ในทำเลที่ใกล้เคียงกัน และราคาที่ไม่ต่างกัน |
| คะแนนรวมเฉลี่ย | 7.75 | ดี |
สอบถามรายละเอียดเพิ่มเติมได้ที่
Tel : 087-774-2727, 087-775-2828
Website : www.lysscondo.com
Facebook : https://www.facebook.com/Lyss-ratchayothin