
วิลเลจจิโอ รังสิต-คลอง 3 Villaggio Rangsit-Klong 3 บ้านเดี่ยว และทาวน์โฮมใหม่ รูปแบบชีวิตที่สวย โดดเด่น แตกต่างและน่าอยู่ที่สุดในรังสิต

Villaggio รังสิต-คลอง 3 จาก Land & Houses ตั้งอยู่บนถนนรังสิต-คลอง 3 ตำบลคลองสาม อำเภอคลองหลวง จ.ปทุมธานี เดินทางสะดวก ใกล้ถนนกาญจนาภิเษก, ดอนเมืองโทลล์เวย์, รถไฟฟ้าสายสีเขียว และ รถไฟฟ้าสายสีแดง
รายล้อมด้วยสิ่งอำนวยความสะดวกมากมาย อาทิ ฟิวเจอร์พาร์ค รังสิต, เมเจอร์ รังสิต, รร.โชคชัยรังสิต, รร.แย้มสะอาด, รร.นานาชาติสยาม, ม.นอร์ทกรุงเทพ และ รพ.ปทุมเวช
วิลเลจจิโอ รังสิต-คลอง 3 โครงการทาวน์โฮม 2 ชั้น และ บ้านเดี่ยว 2 ชั้น พื้นที่โครงการขนาด 43 ไร่ จำนวนบ้าน 326 ยูนิต ที่ดินบ้าน เริ่มต้น 18 ตร.ว. ขึ้นไป พื้นที่ใช้สอย เริ่มต้น 89 ตร.ม. ขึ้นไป ขนาด 3 ห้องนอน 2-3 ห้องน้ำ ที่จอดรถ 1-2 คัน โครงการสร้างเสร็จพร้อมอยู่
สิ่งอำนวยความสะดวกภายในโครงการครบครัน อาทิ คลับเฮ้าส์, สระว่ายน้ำ, ห้องออกกำลังกาย, สวนสาธารณะ, เข้า-ออกระบบ Access Card Control, กล้องวงจรปิด CCTV และ รปภ. 24 ชม. ราคาเริ่มต้น 2 ล้านบาท* (ณ.วันที่เปิดตัว)

| ชื่อโครงการ | วิลเลจจิโอ รังสิต-คลอง 3 Villaggio Rangsit-Klong 3 |
| เจ้าของโครงการ | บริษัท แลนด์ แอนด์ เฮ้าส์ จำกัด (มหาชน) Land & Houses |
| ลักษณะโครงการ | – บ้านเดี่ยว 2 ชั้น – ทาวน์โฮม 2 ชั้น |
| พื้นที่โครงการ | ประมาณ 43 ไร่ |
| จำนวนบ้าน | 326 ยูนิต |
| พื้นที่ใช้สอย | เริ่มต้น 89.00 ตร.ม. |
| เนื้อที่บ้าน | เริ่มต้น 18.00 ตร.วา. |
| จำนวนห้อง | 3 ห้องนอน, 2-3 ห้องน้ำ |
| ที่จอดรถทั้งหมด | 1-2 คัน |
| โซน | รังสิต-คลอง 3 |
| ขนส่งสาธารณะ | – ใกล้ถนนกาญจนาภิเษก (วงแหวนรอบนอกฝั่งตะวันออก) – ใกล้ดอนเมืองโทลล์เวย์ – ใกล้รถไฟฟ้าสายสีเขียว – ใกล้รถไฟฟ้าสายสีแดง |
| รถโดยสารที่ผ่าน | n/a |
| ที่ตั้ง | ถนนรังสิต-คลอง 3 ตำบลคลองสาม อำเภอคลองหลวง จ.ปทุมธานี 12120 |
| กำหนดการ | เปิดตัวโครงการ ส.ค. 2559 |
| ปีที่สร้างเสร็จ | รอข้อมูลจากโครงการ |
| ราคา | – ทาวน์โฮม เริ่มต้น 2 ล้านบาท – บ้านเดี่ยว เริ่มต้น 3.9 ล้านบาท |
| ค่าส่วนกลางและกองทุน | รอข้อมูลจากโครงการ |
| สถานที่สำคัญใกล้เคียง |
|
| สิ่งอำนวยความสะดวก |
|
| จุดเด่นของโครงการ | บ้านเดี่ยว และทาวน์โฮม โครงการใหม่ “Villaggio รังสิต คลอง 3” รูปแบบชีวิตที่สวย โดดเด่น แตกต่างและน่าอยู่ที่สุดในรังสิต |
โครงการโดยรอบ
ที่ตั้งโครงการ
ถนนรังสิต-คลอง 3 ตำบลคลองสาม อำเภอคลองหลวง จ.ปทุมธานี 12120
โครงการตั้งอยู่บนทำเลสุดสะดวก เข้าออกได้ 2 เส้นทางหลัก คือ ถนนลำลูกกา และถนนรังสิต-นครนายก เชื่อมสู่เมืองด้วยถนนพหลโยธิน, ถนนวิภาวดี, และถนนวงแหวนรอบนอก อีกทั้งยังใกล้รถไฟฟ้าสายสีเขียว และสายสีแดงในอนาคต ใกล้สนามบินดอนเมือง
การเดินทาง
การเดินทาง ผมเริ่มจาก ถนนรังสิต – นครนายก มุ่งหน้าไปทาง ตะวันออกเฉียงเหนือ (หน้า โรงพยาบาลบางปะกอก-รังสิต 2) ⇒ กลับรถ ⇒ วิลเลจจิโอ รังสิต-คลอง 3 *โครงการอยู่ภายใน ถนนรังสิต คลอง 3
พิกัด GOOGLE MAP : 13.965824, 100.664481

ผมเริ่มจาก ถนนรังสิต – นครนายก มุ่งหน้าไปทาง ตะวันออกเฉียงเหนือ หน้า โรงพยาบาลบางปะกอก-รังสิต 2

จากนั้นผ่านซ้ายมือ โรงพยาบาลสัตว์บ้านฟ้า

จาก โรงพยาบาลสัตว์บ้านฟ้า ระยะทางอีก 900 เมตร ให้สังเกตขวามือจะมองเห็น สะพานข้ามคลองรังสิต เพื่อเข้าสู่ ถนนรังสิต คลอง 3

จากนั้น 820 เมตร ให้กลับรถที่หน้า มหาวิทยาลัยนอร์ท กรุงเทพ เขตรังสิต

จากนั้นวิ่งตรงตาม ถนนรังสิต – นครนายก ระยะทางอีก 790 เมตร เลี้ยวซ้ายเข้าสู่ สะพานข้ามคลองรังสิต เพื่อเข้าสู่ ถนนรังสิต คลอง 3

จากนั้นวิ่งตรงตาม ถนนรังสิตคลอง 3 ผ่านซ้ายมือ บ้านฟ้า กรีนพาร์ค รังสิต – คลอง 3

จากนั้นระยะทางอีก 980 เมตร ผ่านซ้ายมือ บ้านวรางกูล คลอง 3

จากนั้นระยะทากอีก 1.4 กิโลเมตร เลี้ยวซ้ายเข้าโครงการ วิลเลจจิโอ รังสิต-คลอง 3 ถึงโครงการแล้วครับ

สถานที่สำคัญรอบโครงการ
ห้างสรรพสินค้า/สนามกีฬา/สวนสนุก
– เทสโก้ โลตัส รังสิต นครนายก
– สนามบางกอกกล๊าส
– สวนสนุกครีมเวิลด์
โรงพยาบาล
– โรงพยาบาลบางปะกอก – รังสิต 2
– โรงพยาบาลธัญบุรี
สถานศึกษา
– โรงเรียนอุดมวิทยา
– โรงเรียนอนุบาลฟ้าสิรินทร์
– โรงเรียนประสานมิตร
– โรงเรียนวนิษา
– โรงเรียนโชคชัยวิทยา
– มหาวิทยาลัยนอร์ทกรุงเทพ วิทยาเขตรังสิต
– มหาวิทยาลัยอีสเทิร์นเอเชีย
– วิทยาลัยการปกครองธัญบุรี
สถานที่ราชการ
– สำนักงานเทศบาลเมืองบึงยี่โถ
– ศาลธัญบุรี
ศาสนสถาน
– วัดเขียนเขต
– วัดมุลจินดาราม
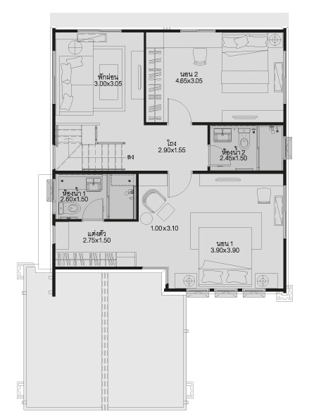
:: HOUSE TYPE ::
แปลนบ้านชั้น 1 | แปลนบ้านชั้น 2
แปลนบ้านชั้น 1
แปลนบ้านชั้น 2
แปลนบ้านชั้น 1
แปลนบ้านชั้น 2
แปลนบ้านชั้น 1
แปลนบ้านชั้น 2
:: GALLERY ::
สอบถามรายละเอียดเพิ่มเติมได้ที่
Tel : 1198
Website : www.lh.co.th/home/projects/บ้านVillaggio-รังสิต-คลอง-3
ทาวน์โฮม ปทุมธานี ทำเลอื่นๆ ที่น่าสนใจ…
ชีวาโฮม วงแหวน-ลำลูกกา เริ่ม 2.9 ล้าน
ทาวน์โฮม ไลโอ บลิสซ์ ลำลูกกา-คลอง 2 เริ่ม 2.099 ล้าน
ทาวน์โฮม บ้านสวนธนาการ์เด้น นนทบุรี-บางบัวทอง
ทาวน์โฮม บ้านชลิดา รังสิต-คลอง 3
อาคารพาณิชย์ ภานิช อีสวิลล์ รังสิต-คลอง 8
ทาวน์โฮม เดอะ พาเลต รังสิต-คลอง 2
วิลเลจจิโอ รังสิต-คลอง 3
สิริ เพลส ราชพฤกษ์ 345 เริ่ม 1.99 ล้าน
ทาวน์โฮม ดีญ่า ทาวน์ ลำลูกกา-คลอง 5
ชวนชื่น ทาวน์ รังสิต-คลอง 1 เริ่ม 3.09 ล้าน*
ทาวน์โฮม ไนน์ คาแนล รังสิต-คลอง 8