
บ้านเดี่ยว บ้านสวน ร่มเกล้า – สุวรรณภูมิ BAANSUAN ROMKLAO
บ้าน…ไม่ได้เป็นเพียงแค่ที่อยู่อาศัยเท่านั้น บ้านยังเป็นสถานที่ให้ความสุข ความอบอุ่น และความสมบูรณ์ของการเป็นครอบครัว บ้านสวน ร่มเกล้า – สุวรรณภูมิ พร้อมเป็นส่วนหนึ่งของความหมายว่า “บ้าน” ไปกับคุณ ด้วยการมอบบ้านคุณภาพในแบบที่คุณพึงพอใจ
เพราะเรารู้…และเข้าใจ ความต้องการผู้อยู่อาศัยอย่างแท้จริง จึงออกแบบบ้านด้วยความคิด ให้ทุกๆพื้นที่ได้รับการใช้งานเพื่อประโยชน์สูงสุด โดยเฉพาะห้องนอน และห้องน้ำที่กว้างขวาง แยกสัดส่วนแต่ละพื้นที่เด่นชัด เพื่อการใช้งานอย่างลงตัว บรรจงสร้างสรรค์ด้วยความเข้าใจทุกความต้องการ เช่นพื้นที่ครัวไทย ห้องแม่บ้าน ห้องเอนกประสงค์ เป็นต้น
ด้วยการดึงธรรมชาติเข้ามาเป็นส่วนหนึ่งในการดำเนินชีวิต โดยการออกแบบบ้านให้มีมุมสวนภายในห้องน้ำ นอกจากนี้คลองธรรมชาติรอบโครงการ เพิ่มความเย็นสบาย ร่มรื่นแก่ผู้อยู่อาศัย พร้อมสวนสาธารณะในโครงการ
บ้านสวน ร่มเกล้า – สุวรรณภูมิ โครงการบ้านเดี่ยวติดถนนร่มเกล้า ทำเลทองที่มีมูลค่าเพิ่มขึ้นอย่างต่อเนื่อง โครงการคุณภาพจาก บริษัท วี.เอ.แลนด์ จำกัด ภายใต้การบริหารโดย คุณเสนิส เวชพันธุ์ กรรมการผู้จัดการ และทีมบริหารมืออาชีพที่มีประสบการณ์ ในการพัฒนาโครงการที่พักอาศัยมากกว่า 30 ปี ทีมงานที่เข้าใจถึงความต้องการที่แท้จริงของผู้อยู่อาศัย และยึดหลัก “คุณภาพ” ในการดำเนินงาน โดยสร้างสรรค์แบบบ้านด้วยแนวคิดที่ว่า…
– ออกแบบและจัดสรรพื้นที่ภายในบ้านเพื่อประโยชน์สูงสุด
– ใช้วัสดุคุณภาพควบคู่ไปกับการควบคุมงานก่อสร้าง เพื่อให้ได้ผลงานที่มาตรฐาน เป็นที่ไว้ใจแก่ผู้อยู่อาศัย
– ให้ความสำคัญส่วนบริการหลังการขายเพื่อเป็นหลักประกันให้ผู้อยู่อาศัยได้รับการดูแลเอาใจใส่เป็นอย่างดี

| ชื่อโครงการ | บ้านสวน ร่มเกล้า – สุวรรณภูมิ BAANSUAN ROMKLAO |
| เจ้าของโครงการ | บริษัท วี.เอ. แลนด์ จำกัด |
| ลักษณะโครงการ | บ้านเดี่ยว |
| พื้นที่โครงการ | 50 ไร่ |
| จำนวนบ้าน | 222 หลัง |
| พื้นที่ใช้สอย | 133 – 272 ตร.ม. |
| เนื้อที่บ้าน | 51 – 105 ตร.ว. |
| โซน | มีนบุรี |
| ขนส่งสาธารณะ | n/a |
| รถโดยสารที่ผ่าน | n/a |
| ที่ตั้ง | ถนนร่มเกล้า แขวงมีนบุรี เขตมีนบุรี กทม. 10510 |
| กำหนดการ | n/a |
| ปีที่สร้างเสร็จ | ธันวาคม พ.ศ. 2553 |
| ราคา | เริ่มต้น 4 ล้านบาท |
| สถานที่สำคัญใกล้เคียง | 1. มหาวิทยาลัยเกษมบัณฑิ๖ 2. โรงเรียนเตรียมอุดมศึกษาน้อมเกล้า 3. โรงเรียนสารสาสน์ 4. Big C 5. คาร์ฟูร์ 6. เทสโก้ โลตัส 7. สนามบินสุวรรณภูมิ 8. โรงพยาบาลเกษมราษฎร์ |
| สิ่งอำนวยความสะดวก | – สวนสาธารณะ – สระว่ายน้ำ – สโมสร |
| จุดเด่นของโครงการ | – ออกแบบและจัดสรรพื้นที่ภายในบ้านเพื่อประโยชน์สูงสุด – ใช้วัสดุคุณภาพควบคู่ไปกับการควบคุมงานก่อสร้าง เพื่อให้ได้ผลงานที่มาตรฐาน เป็นที่ไว้ใจแก่ผู้อยู่อาศัย – ให้ความสำคัญส่วนบริการหลังการขายเพื่อเป็นหลักประกันให้ผู้อยู่อาศัยได้รับการดูแลเอาใจใส่เป็นอย่างดี |
คอนโด ถนนร่มเกล้า
บ้านและทาวน์โฮม ถนนร่มเกล้า
ที่ตั้งโครงการ
ถนนร่มเกล้า แขวงมีนบุรี เขตมีนบุรี กทม. 10510
คลิก เพื่อดูแผนที่ขนาดใหญ่
การเดินทาง
คลิก เพื่อดูแผนที่ขนาดใหญ่
การเดินทาง ผมเริ่มจาก ถนนร่มเกล้า (หน้าหมวดการทางมีนบุรี) > บ้านเดี่ยว บ้านสวน ร่มเกล้า-สุวรรณภูมิ *โครงการอยู่ระหว่าง ซอยร่มเกล้า 4 – ซอยร่มเกล้า 2

ผมเริ่มจาก ถนนร่มเกล้า (หน้าหมวดการทางมีนบุรี ที่ 1)

จากนั้นวิ่งตรงตาม ถนนร่มเกล้า ผ่านซ้ายมือ ซอยร่มเกล้า 30

จากนั้นวิ่งตรงตาม ถนนร่มเกล้า ผ่านแยกเคหะร่มเกล้า ผ่านซ้ายมือ ถนนเคหะร่มเกล้า

จากนั้นวิ่งตรงตาม ถนนร่มเกล้า ผ่านซ้ายมือ ซอยร่มเกล้า 14

จากนั้นวิ่งตรงตาม ถนนร่มเกล้า ผ่านซ้ายมือ ซอยร่มเกล้า 6

จากนั้นวิ่งตรงตาม ถนนร่มเกล้า ผ่านซ้ายมือ ซอยร่มเกล้า 4

จากหน้าปากทาง ซอยร่มเกล้า 4 ระยะทางอีก 90 เมตร เลี้ยวซ้ายเข้าโครงการ บ้านสวน ร่มเกล้า-สุวรรณภูมิ ถึงโครงการแล้วครับ
คลิก เพื่อดูแผนที่ขนาดใหญ่
สถานที่สำคัญรอบโครงการ
ห้างสรรพสินค้า
-บิ๊กซี สุวินทวงศ์
-บิ๊กซี มาร์เก็ต เคหะร่มเกล้า
-โลตัส มีนบุรี
-ไทวัสดุ สุขาภิบาล 3
มหาวิทยาลัย
-มหาวิทยาลัยเกษมบัณฑิต วิทยาเขต ร่มเกล้า
โรงพยาบาล
-โรงพยาบาลยวมินทร์ 9
โรงเรียน
-โรงเรียนสารสาสน์วิเทศมีนบุรี
-โรงเรียนปัญจทรัพย์ มีนบุรี
-โรงเรียนร่วมฤดีวิเทศศึกษา
-โรงเรียนรัตนโกสินทร์สมโภชลาดกระบัง
-โรเรียนสารสาสน์วิเทศร่มเกล้า
-โรงเรียนเทพศิรินทร์ร่มเกล้า
สถานที่ราชการ/สนามกีฬา
-สถานีตำรวจนครบาลมีนบุรี
-ศาลจังหวัดมีนบุรี
-สถานีตำรวจนครบาลร่มเกล้า
-หมวดการทางมีนบุรี
แบบบ้าน


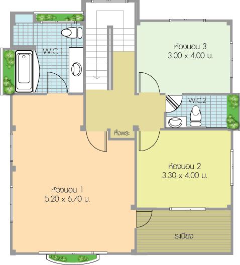
พื้นที่ใช้สอย 212 ตร.ม. 3 ห้องนอน 3 ห้องน้ำ 2 ที่จอดรถ ครัวไทย ห้องแม่บ้านพร้อมห้องน้ำในตัว
ชั้น 1
– เคาเตอร์ครัวไทย แยกส่วนอยู่นอกบ้าน ลดปัญหาเรื่องกลิ่นรบกวน
– แยกสัดส่วนพื้นที่ใช้งานชัดเจน
ชั้น 2
– ห้องนอน 1 กว้างขวาง สามารถตกแต่งเพิ่มเป็นห้องแต่งตัว พร้อมห้องน้ำเป็นส่วนตัวขนาดใหญ่ ฟังก์ชั่นครบด้วยอ่างอาบน้ำ และห้องอาบน้ำ
– ห้องน้ำรอง สามารถเข้าออกได้ 2 ทางเพื่อความสะดวกในการใช้งาน
แกลเลอรี่
บ้านสวน G Family XL


พื้นที่ใช้สอย 272 ตร.ม. 3 ห้องนอน 3 ห้องน้ำ 3 ที่จอดรถ ครัวไทย ห้องแม่บ้านพร้อมห้องน้ำในตัว
ชั้น 1
– สะดวกและเป็นสัดส่วนโดยแยกประตูทางเข้า 3 ทาง
– กว้างขวาง แยกสัดส่วนพื้นที่ใช้งานชัดเจน
– เพิ่มความเป็นส่วนตัว ด้วยการแยกห้องแม่บ้าน และห้องน้ำอยู่นอกบ้าน
– เพิ่มพื้นที่จอดรถ เพื่อรองรับถึง 3 คัน
ชั้น 2
– ห้องนอน 1 กว้างใหญ่ ขนาด 46 ตร.ม. สามารถตกแต่งมุมพักผ่อนและห้องแต่งตัวได้สบาย ออกแบบให้ห้องน้ำมีฟังก์ชั่นสมบูรณ์ด้วย 2 อ่างล้างหน้า อ่างอาบน้ำ ห้องอายน้ำ และระเบียง
แกลเลอรี่


พื้นที่ใช้สอย 186 ตร.ม. 3 ห้องนอน 3 ห้องน้ำ 2 ที่จอดรถ ครัวไทย
ชั้น 1
– แยกสัดส่วนการใช้งานชัดเจน แยกครัวไทยออกจากตัวบ้าน
– ออกแบบให้เพดานสูง ให้ความโปร่งสบาย
– ประตูและหน้าต่างกระจกบานใหญ่พิเศษ และ bay window ให้ความสว่าง โล่ง ไม่อึดอัด
– ฟังก์ชั่นครบสมบูรณ์ด้วยครัวไทย และพื้นที่ซักล้างด้านนอก
ชั้น 2
– ห้องนอน 1 กว้าง สามรถตกแต่งเพิ่มเป็นห้องแต่งตัว พร้อมห้องน้ำในตัว ฟังก์ชั่นครบด้วยอ่างอาบน้ำและห้องอาบน้ำ
แกลเลอรี่


พื้นที่ใช้สอย 155 ตร.ม. 3 ห้องนอน 3 ห้องน้ำ 2 ที่จอดรถ ครัวไทย
ชั้น 1
– ออกแบบโดยคำนึงถึงพื้นที่การใช้เพื่อประโยชน์สูงสุด เน้นการใช้งานจริง เช่น ห้องเอนกประสงค์
– เพิ่มความสมบูรณ์ของบ้านด้วยครัวไทย เป็นสัดส่วน
ชั้น 2
– ห้องนอน 1 กว้างขวาง พร้อมห้องน้ำเป็นส่วนตัว ที่ครบครันด้วยอ่างอาบน้ำ และห้องอาบน้ำ
– ออกแบบห้องนอนให้โล่ง โปร่ง สว่าง ให้ความรู้สึกสบาย
– พร้อมระเบียงทั้ง 2 ฝั่งห้องนอน
แกลเลอรี่
สนใจติดต่อรายละเอียดเพิ่มเติมได้ที่
สำนักงานขาย โทร : 02-543-6571-3
Website : http://www.baansuan-romklao.com