
EP.524 รีวิว คอนโด VIO Khaerai 2 (ไวโอ แคราย 2)
สวัสดีค่ะผู้อ่านชาว Homenayoo วันนี้เราจะพาไปชมโครงการ Vio แคราย จาก Adamas Real Estate ตั้งอยู่ใน ซ.รัตนาธิเบศร์ 3 หรือ ซ.เรวดี 14 ถนนรัตนาธิเบศร์ ต.บางกระสอ อ.เมืองนนทบุรี จ.นนทบุรี ใกล้รถไฟฟ้า MRT ศูนย์ราชการนนทบุรี ใกล้ทางด่วนขั้นที่ 2, Esplanade แคราย, Lotus’s แคราย, Big C ติวานนท์, The Mall งามวงศ์วาน, กระทรวงสาธารณสุข, ศูนย์ราชการนนทบุรี, รพ.ทรวงอก และ รพ.นนทเวช
ไวโอ แคราย 2 เป็นคอนโด Low-Rise 8 ชั้น 1 อาคาร พื้นที่โครงการขนาด 0-3-10 ไร่ ห้องพักอาศัยจำนวน 12 ยูนิต มีห้องพักให้เลือกแบบ 1 Bedroom และ 2 Bedroom ขนาดเริ่มต้น 26-49.67 ตร.ม. โครงการสร้างเสร็จพร้อมอยู่
สิ่งอำนวยความสะดวกภายในโครงการครบครัน อาทิ Lobby, Mailbox, ฟิตเนส, สระว่ายน้ำ, ซาวน่า, สวนพักผ่อน, ลิฟต์โดยสาร, ที่จอดรถ, ระบบ Key Card Access, กล้องวงจรปิด CCTV พร้อมระบบรักษาความปลอดภัยตลอด 24 ชม. และ Shuttle Bus ราคาเริ่มต้น 1.49 ล้านบาท* (ช่วงเปิดโครงการ)
รายละเอียดจะเป็นอย่างไรเลื่อนไปชมด้านล่างกันเลยค่า

| ชื่อโครงการ | Vio Khaerai 2 (ไวโอ แคราย 2) |
| เจ้าของโครงการ | Adamas Real Estate Co.,Ltd. (บริษัท อดามัส เรียล เอสเตท จำกัด) |
| ลักษณะโครงการ | คอนโด Low Rise 1 อาคาร สูง 8 ชั้น |
| พื้นที่โครงการ | 0-3-10 ไร่ |
| จำนวนยูนิต | 122 ยูนิต |
| พื้นที่ใช้สอย | 26-49.67 ตร.ม. ฝ้าเพดานสูง 2.4 เมตร |
| ที่จอดรถ และลิฟท์ | จอดรถ 30 คัน (รวมจอดซ้อนคันประมาณ 40%) |
| โซน | รัตนาธิเบศร์, แคราย |
| ขนส่งสาธารณะ | วินมอเตอร์ไซค์ปากซอยทั้งสองฝั่ง รถเมล์ รถตู้ และรถสองแถว |
| รถโดยสารที่ผ่าน | 18,134,191,177,203,388, 528 |
| ที่ตั้ง | ซ.รัตนาธิเบศร์ 3 (ซ.เรวดี 14) ถ.รัตนาธิเบศร์ ต.บางกะสอ อ.เมืองนนทบุรี จ.นนทบุรี |
| กำหนดการ | n/a |
| ปีที่สร้างเสร็จ | สร้างเสร็จพร้อมอยู่ |
| ราคา | เริ่มต้น 1.49 ล้านบาท |
| สถานที่สำคัญใกล้เคียง |
|
| สิ่งอำนวยความสะดวก | – Lobby – ห้อง Mail Box – สระว่ายน้ำ ขนาด 6.25×12 เมตร ลึก 1.8 เมตร ระบบเกลือ – ฟิตเนส – สวนลอยฟ้า – ตู้ซักผ้าหยอดเหรียญ – CCTV – รปภ.24 ชม. – Access Control Card – Shuttle Bus |
| จุดเด่นของโครงการ | ไวโอ แคราย 2 Visualize your dream แนวคิดทันสมัยสำหรับคนรุ่นใหม่ที่มีฝัน คอนโดหรูโครงการใหม่ตกแต่งครบครัน ราคาเริ่มต้น 1.49 ล้านบาท |
คอนโด MRT ศูนย์ราชการนนทบุรี พาชมโครงการ ไวโอ แคราย 1 และ 2 ค่ะ
:::: ที่ตั้งโครงการ ::::
ซ.รัตนาธิเบศร์ 3 (ซ.เรวดี 14) ตำบลตลาดขวัญ อำเภอเมือง จ.นนทบุรี
พิกัด GOOGLE MAPS : 13.856791,100.512141
แผนที่จากทางโครงการ

โครงการ Vio แคราย 2 ตั้งอยู่ภายใน ซ.รัตนาธิเบศร์ 3 หรือ ซ.เรวดี 14 ค่ะ (เดิมคือซอยเรวดี11 เปลี่ยนเนื่องจากมีการปรับผังเมืองใหม่) ซึ่งหากใครติดตามโครงการของบริษัท Adamas Real Estate อยู่ในละแวกติวานนท์นี้ก็จะทราบว่าโครงการนี้ เป็นโครงการต่อเนื่องจาก Vio แคราย โครงการแรก ที่ตั้งอยู่บริเวณปากซอยรัตนาธิเบศร์ 10 ฝั่งตรงข้ามที่ประสบความสำเร็จมาก่อนหน้าค่ะ
จากแผนที่ด้านบนจะเห็นว่า ตัวโครงการทั้งสองอยู่ในทำเลเกาะแนวรถไฟฟ้าสายสีม่วง จุดเด่นเรื่องทำเลของทั้งสองโครงการก็จะคล้ายๆกันค่ะ เพียงแค่ตัวโครงการ Vio แคราย 2 นั้นจะอยู่ลึกเข้ามาในซอยประมาณ 370 เมตร ต่างจากโครงการแรกที่อยู่ปากซอยติดกับทางขึ้น-ลงรถไฟฟ้า MRT ศูนย์ราชการนนทบุรี ซึ่งตำแหน่งทำเลมีผลกับราคาที่ดินค่ะ ทำให้โครงการไวโอแคราย 2 นี้มีราคาเฉลี่ยต่อตารางเมตรถูกกว่าโครงการแรกพอสมควรอยู่ เพียงแค่ต้องเข้าซอยลึกขึ้นเท่านั้นค่ะ แต่ก็ไม่ได้ลำบากอะไรมากเพราะมีวินมอเตอร์ไซค์อยู่บริเวณปากซอยทั้งฝั่ง ถ.รัตนาธิเบศร์หน้าเซเว่น และฝั่งถ.เรวดี ซึ่งก็มีคอนโดและอพาร์ทเมนท์อยู่หลายแห่งเช่นเดียวกัน
สำนักงานขายโครงการจะอยู่คนละที่กันกับโครงการนะคะ ตั้งอยู่บริเวณแยกติวานนท์ ฝั่งรพ.ศรีธัญญา ซึ่งสามารถวิ่งจากแยกแครายมา โครงการจะอยู่ซ้ายมือก่อนถึงแยกติวานนท์

โครงการอยู่ลึกจากปาก ซอยรัตนาธิเบศร์ 3 ประมาณ 370 เมตร ซึ่งตำแหน่งของซอยอยู่ตรงข้ามกั บศาลากลางจ.นนทบุรีค่ะ หากมาจากม.เกษตร มุ่งหน้าแยกพงษ์เพชร ขึ้นสะพานข้ามแยกแคราย ลงสะพานมาสามารถชิดซ้าย เพื่อเลี้ยวเข้าซ.รัตนาธิเบศร์ 3 ได้เลย ส่วนหากมาจากสะพานพระนั่งเกล้า ก็สามารถกลับรถได้ที่ใต้สะพานข้ามแยกแคราย และเนื่องจากซอยรัตนาธิเบศร์ 3 หรือ ซ.เรวดี14 นั้นคือซอยเดียวกันค่ะ แต่ตัวโครงการอยู่ใกล้กับปากซอยฝั่ง ถ.เรวดีมากกว่า ประมาณ 215 เมตร หากวิ่งมาทางแยกพระราม5-แยกติวานนท์ เลี้ยวซ้ายเข้า ถ.เรวดีแล้วเข้า ซ.เรวดี 14 จะสะดวกมากกว่าค่ะ และถนนเรวดียังเป็นถนนเส้นรอง ที่สามารถวิ่งออกถ.เลี่ยงเมืองนนท์-สะพานนนทบุรี1 สู่ย่านท่าน้ำนนท์ได้
การเดินทางในย่านนี้สะดวกสบายด้วยถนนเส้นหลักหลายสายค่ะ เช่น ถ.ติวานนท์ ซึ่งสามารถวิ่งมาจากปทุมธานี หรือนครอินทร์ได้ จากโครงการหากต้องการวิ่งไปบางใหญ่-บางบัวทอง ก็สามารถใช้เส้นรัตนาธิเบศร์ ได้ในเวลา 10 นาทีเท่านั้น อีกทั้งยังอยู่ไม่ไกลจากทางพิเศษศรีรัช ด่านงามวงศ์วาน ซึ่งสามารถวิ่งไปบางปะอินหรือดาวคะนองได้ค่ะ หรือหากต้องการวิ่งไปย่านตลิ่งชัน จากแผนที่จะเห็นว่าทางด่วนศรีรัช-วงแหวนรอบนอกสร้างเสร็จเปิดให้บริการแล้ว สามารถใช้เส้นนั้นได้ค่ะ แต่หากไม่ต้องการเสียค่าผ่านทาง จากโครงการวิ่งออกติวานนท์ ข้ามสะพานพระราม 5 ใช้เส้นราชพฤกษ์ก็สะดวกและระยะทางสั้นกว่าด้วยค่ะ แต่อาจรถติดนิดหน่อยในเวลาเร่งด่วน ถึงแม้จะเดินทางสะดวก แต่เนื่องจากตัวโครงการอยู่ใกล้กับแยกแครายซึ่งขึ้นชื่อเรื่องรถติดมากๆก็คงต้องเผื่อเวลาเดินทางกันสักหน่อยนะคะ
สาธารณูปโภคบริเวณโครงการนั้นครบครันเลยทีเดียว เนื่องจากตัวโครงการอยู่เกาะแนวรถไฟฟ้าสายสีม่วง สถานีศูนย์ราชการนนทบุรี และในอนาคต สถานีนี้ก็จะเป็นจุด Interchange ของรถไฟฟ้าสายสีชมพูเช่นกัน จุดนี้ก็จะกลายเป็น Hub จุดเปลี่ยนการเดินทางโดยรถไฟฟ้าของ จ.นนทบุรีในอนาคตค่ะ ตัวโครงการอยู่ตรงข้ามกับศาลากลาง จ.นนทบุรี และสวนสาธารณะอุทยานมกุฏรมยสราญ ซึ่งถือว่าเป็นสวนสาธารณะที่ใกล้โครงการมากๆ โดยปกติแล้วหากใครชอบวิ่งหรือออกกำลังกายในสวนคงจะต้องขับรถเพื่อไปสวนแต่นี่ไม่จำเป็นเลยค่ะ เดินข้ามไปก็ถึง หากขยันหน่อย ก็สามารถเดินไปถึง Esplanade และ Tesco Lotus แครายได้เลย ระยะเดินจากโครงการ 1 กม. ฝั่งตรงข้าม Esplanade ก็มีห้างสรรพสินค้าขนาดใหญ่อีกแห่งคือ Hobby Lobby ค่ะ หรือต้องการไป Central รัตนาธิเบศร์ หรือ The Mall งามวงศ์วานก็ระยะทางพอๆกันเช่นกัน สามารถวิ่งเส้นรัตนาธิเบศร์ไปได้เลย ในละแวกโครงการก็มีโรงพยาบาลขนาดใหญ่ อย่างรพ.ทรวงอก, สถาบันบำราศนราดูร , รพ.พระนั่งเกล้า, หรือใครอยากทำสวยก็ไป รพ.เลอลักษณ์ ค่ะที่นี่ดังมากเรื่องศัลยกรรม จากต่างจังหวัดขับมาทำกันเยอะเลย จากโครงการก็สามารถวิ่งไป รพ.วิภาวดี บริเวณแยกเกษตรได้นะคะ ไม่ไกล แต่อาจจะรถติดสักหน่อย
เนื่องจากภายในซอยเป็นแหล่งที่อยู่อาศัยทั้งบ้านเดี่ยว อาคารพาณิชย์ คอนโด และอพาร์ทเมนท์หลายแห่ง สาธารณูปโภคก็จะรองรับผู้อยู่อาศัยภายในซอยค่ะ ถึงจะไม่เยอะมากเท่าปากซอยแต่ก็เพียงพอ มีร้านอาหารและร้านขายของชำพอจะฝากท้องได้ หน้าปากซอยมี 7-11 และวินมอเตอร์ไซค์อยู่ทั้งสองฝั่ง แต่จากโครงการเดินไปเรียกวินฝั่ง ถ.เรวดีจะใกล้กว่านะคะ ประมาณ 215 เมตร ฝั่งตรงข้ามโครงการเป็นอาคารพาณิชย์มีร้านซักรีด ร้านเสริมสวย หากเดินไปที่ปากซอยฝั่งเรวดีก็จะเยอะขึ้นค่ะ เป็นอาคารพาณิชย์และร้านค้าเรียงรายทั้งสองฝั่ง มีทั้งร้านอาหาร ร้านรับซ่อมจักรยานยนต์ คลินิคเสริมสวย โรงเรียนสอนพิเศษ ร้านขายยา คลีนิครักษาสัตว์ ร้านคาราโอเกะก็มีค่ะ
โครงการอยู่ลึกจากปากซอยฝั่ง ถ.รัตนาธิเบศร์ 370 เมตร และฝั่ง ถ.เรวดี 215 เมตร สามารถเดินไปขึ้นรถไฟฟ้าสายสีม่วงจากปากซอยรัตนาธิเบศร์ 3 เลี้ยวขวาจะใกล้กว่าค่ะ ระยะเดินจากปากซอย 125 เมตร

::: สรุปแยกและถนนสำคัญใกล้เคียง :::
:::: การเดินทางสู่โครงการ ::::
วันนี้ทีมงาน Homenayoo มีภาพการเดินทางโดยรถยนต์ส่วนตัวมาให้ชมกันค่ะ เส้นทางการเดินทางตาม ลูกศรแดง โดยเริ่มเดินทางจาก
ทางพิเศษศรีรัช ด่านประชาชื่น > ถ.งามวงศ์วาน > แยกแคราย > ถ.รัตนาธิเบศร์ > ซ.รัตนาธิเบศร์ 3 > Vio แคราย 2
การเดินทางเริ่มต้นจากทางพิเศษศรีรัช ด่านประชาชื่น
ให้ใช้ทางออก น.2-09 ป้ายถ.งามวงศ์วาน แคราย-กระทรวงสาธารณสุข ชิดซ้ายเลยค่ะ
เมื่อลงมาแล้วก็จะเจอป้ายบอกทางแยก ให้ออก ถ.งามวงศ์วาน (แคราย) ด้านซ้ายมือ
ตอนนี้เราอยู่บน ถ.งามวงศ์วานค่ะ ให้ชิดขวาและขึ้นสะพานข้ามแยกแคราย ตามป้ายบางบัวทอง
จากสะพานข้ามแยกแครายมองไปจะเห็น Esplanade งามวงศ์วาน ด้านขวามือ
เมื่อลงสะพานมา ให้ชิดขวา เพื่อวิ่งทางคู่ขนาน ถ.รัตนาธิเบศร์ค่ะ จะเห็นสถานีรถไฟฟ้าสายสีม่วงศูนย์ราชการนนทบุรีอยู่ตรงกลาง และสถานีดาวเทียมไทยคม ด้านซ้ายมือ
ถัดจากสถานีดาวเทียมไทยคม ก็จะเป็น สน.นนทบุรี มีป้ายรถเมล์อยู่บริเวณนี้ด้วย ห่างจากปากซอยโครงการประมาณ 74 เมตร
เลี้ยวซ้ายเข้า ซ.รัตนาธิเบศร์ 3 หน้าปากซอยจะมี 7-11 ค่ะ
จากแผนที่ โครงการอยู่ลึกจากปากซอยฝั่ง ถ.รัตนาธิเบศร์ ตามลูกศรสีแดง ประมาณ 370 เมตร
เมื่อเลี้ยวเข้ามาแล้วก็จะเจอกับวินมอเตอร์ไซค์หน้าปากซอย
บรรยากาศภายในซอยเป็นถนนรถสวนกันสองเลนค่ะ มีอพาร์ทเมนท์ คอนโด ร้านค้าอาคารพาณิชย์และสำนักงานเรียงรายตลอดทาง
K Line Mansion บริเวณปากซอย
ถัดไปจะเป็นทางโค้งเล็กน้อยค่ะ ด้านหน้าเป็นอาคาร Crystal Condo
ด้านขวามือเป็นร้าน สุชาติ ซาวด์
จาก Crystal Condo มองตรงไปจะเห็น Vio แคราย 2 อยู่ไกลๆ
ก่อนถึงโครงการ ก็จะเจอกับอาคารสำนักงาน บริษัท Neo Rex Group ด้านซ้ายมือ
ภาพอาคารบริษัท Neo Rex กรุ๊ป
เลย Neo Rex กรุ๊ปมาด้านขวามือก็จะเป็นร้านครัวบ้านสวนอาหารตามสั่ง
ถึงแล้วค่ะ โครงการ Vio แคราย 2 เลี้ยวซ้ายเข้าไปเลยค่า
ภาพอาคาร Vio แคราย 2 และทางเข้า
::: จุดขับรถขึ้นทางด่วน :::

จากโครงการสามารถขับรถไปขึ้นทางด่วนบริเวณด่านงามวงศ์วานได้ค่ะ ระยะทางประมาณ 3.5 กม. จากโครงการ โดยสามารถวิ่งไปบางปะอิน หรือดาวคะนองได้เลย อยู่ด้านซ้ายมือ ทางขึ้นดาวคะนองจะเลยทางขึ้นบางปะอินไปเล็กน้อยค่ะ
::: การเดินทางโดยรถไฟฟ้า :::
โครงการ Vio แคราย 2 เป็นโครงการเกาะแนวรถไฟฟ้า อยู่ใกล้กับ สถานีศูนย์ราชการนนทบุรี ห่างจากโครงการประมาณ 500 เมตร ซึ่งเป็นสถานีจุดเปลี่ยนของรถไฟฟ้า 2 สายด้วยกัน นั่นก็คือ รถไฟฟ้าสายสีม่วง (ช่วงเตาปูน-บางใหญ่) ซึ่งเปิดให้บริการแล้วในปัจจุบันค่ะ และ รถไฟฟ้าสายสีชมพู (ช่วงแคราย-มีนบุรี) เปิดให้บริการปี 2563 ซึ่งจากโครงการสามารถนั่งสายสีม่วงไปจุด Interchange รถไฟฟ้าสายสีแดงอ่อน สถานีบางซ่อน ได้ค่ะ ซึ่งปัจจุบันสายสีแดงช่วงบางซื่อ-ตลิ่งชัน สร้างเสร็จแล้ว แต่ยังไม่เปิดให้บริการ
::: การเดินทางโดยรถประจำทาง :::
หากไม่มีรถส่วนตัวก็เดินทางสะดวกสบายค่ะ มีวินมอเตอร์ไซค์อยู่หน้าปากซอยทั้งฝั่งรัตนาธิเบศร์และเรวดี จากโครงการเดินไปฝั่งเรวดีจะใกล้กว่า ประมาณ 215 เมตร และมีป้ายรถเมล์อยู่บริเวณ ถ.รัตนาธิเบศร์ หน้า สน.นนทบุรี และมีรถสองแถวผ่านตลอด

อัตราค่าโดยสารวินปากซอยเรวดี 14 (ซ.11 คือหมายเลขซอยเก่าที่ยังไม่ได้ปรับผังเมืองค่ะ)
และค่าบริการวินนิวเวิลด์ปากซอยรัตนาธิเบศร์ 3 บริเวณ 7-11
:: รถเมล์สายที่ผ่าน ::
18,134,191,177,203,388, 528
:::: สถานที่สำคัญใกล้เคียง ::::
– Esplanade แคราย : 1 กม. (ระยะเดิน)
– Tesco Lotus แคราย : 1 กม. (ระยะเดิน)
– Hobby Lobby : 1 กม. (ระยะเดิน)
– The Mall งามวงศ์วาน : 3.6 กม.
– Central รัตนาธิเบศร์ : 4.6 กม.
– Pantip Plaza งามวงศ์วาน : 3.8 กม.
– สน.นนทบุรี : 450 เมตร
– ศูนย์ราชการนนทบุรี, สวนสาธารณะ : 750 เมตร
– กระทรวงสาธารณสุข : 4.2 กม.
– รพ.ศรีธัญญา : 2.3 กม.
– สถาบันบำราศนาดูร : 2 กม.
– สถาบันทรวงอก : 1.8 กม.
– วิทยาลัยพยาบาลบรมราชชนนี : 2.4 กม.
– โรงพยาบาลนนทเวช : 4.4 กม.
– รพ.วิภาวดี : 7 กม.
– รพ.เลอลักษณ์ : 2.8 กม.
– รพ.พระนั่งเกล้า : 4.6 กม.
– ม.ธุรกิจบัณฑิตย์ : 6.5 กม.
– ม.เกษตรศาสตร์ : 8.3 กม.
– ม.เทคโนโลยีราชมงคลสุวรรณภูมิ วิทยาเขตนนทบุรี : 5.3 กม.
– ม.เทคโนโลยีพระจอมเกล้าพระนครเหนือ : 6.6 กม.
– รร.อนุราชประสิทธิ์ : 4 กม.
– รร.นนทบุรีพิทยาคม : 3.1 กม.
– รร.วัดลานนาบุญ : 2.8 กม.
– รร.สตรีนนทบุรี : 6 กม.
**ระยะทางวัดจากการเดินทางจากรถยนต์ สู่จุดหมาย โดยถนนที่ใกล้ที่สุด**
::: บริเวณรอบโครงการ :::
เนื่องจากเราพาไปชมทำเลภายในซอยจาก ถ.รัตนาธิเบศร์กันมาแล้วนะคะ คราวนี้เราจะพาไปชมบริเวณ ซ.เรวดีกันบ้างค่ะ ภาพด้านบนคือภาพเพื่อให้เห็นทำเลจากปากซอยถ.รัตนาธิเบศร์มายังโครงการแบบคร่าวๆกันอีกสักรอบ เห็นอาคาร Vio แคราย(1) อยู่ไกลๆด้วยค่ะ
จากทางเข้าโครงการมองไปด้านขวามือ ขามาจาก ถ.รัตนาธิเบศร์
วิวจากห้องพักโครงการฝั่งทิศเหนือก็จะได้ประมาณนี้ค่ะ เห็นอาคาร NEO REX อยู่ไกลๆ และ MRT ศูนย์ราชการนนทบุรี

ฝั่งตรงข้ามโครงการเป็นบ้านพักอาศัยมีรั้วกั้น
ภาพมุมสูงจากโครงการมองไปฝั่งตรงข้าม ทางทิศตะวันตกค่ะ จะเห็น Condo Aspire และ Big C รัตนาธิเบศร์อยู่ไกลๆ
จากหน้าโครงการมองไปฝั่ง ถ.เรวดี
ภาพมุมสูงจากโครงการ มองไปฝั่ง ถ.เรวดี
ตรงข้ามโครงการเป็นอาคารพาณิชย์ สูง 5 ชั้นครึ่งค่ะ

อาคารพาณิชย์ก็จะมีร้านซักรีดอยู่ด้านล่างด้วยสามารถมาใช้บริการได้
ส่วนฝั่งพื้นที่ติดโครงการมีร้านอาหารตามสั่ง
ถัดจากร้านอาหารตามสั่งไปก็จะเป็นอาคารเยาวมาลย์อพาร์ทเมนท์สีส้มสองอาคารด้านหลัง สูง 7 ชั้น

ภาพมุมสูงซูมเข้ามาสักหน่อยค่ะ จะเห็นว่าถัดจากเยาวมาลย์อพาร์ทเมนท์ไปก็จะเจอกับอพาร์ทเมนท์อาคารสูงอีก 2 อาคารด้านหน้า
สองข้างทางเดินออกสู่ถ.เรวดีก็จะเป็นอาคารพาณิชย์ สลับบ้านพักอาศัยทั้งสองฝั่งทางค่ะ
ด้านขวามือมีอาคารสีเหลือง ลาวัณย์อพาร์ทเมนท์สังเกตได้แต่ไกล มีวินมอเตอร์ไซค์อยู่หน้าอพาร์ทเมนท์
ถึงปากซอยเรวดีแล้วค่ะ
จากปากซอยมองไปด้านซ้ายมือ ทางออกสู่ ถ.ติวานนท์
จากปากซอยมองไปด้านขวามือ ฝั่งทางออกสู่ ถ.เลี่ยงเมืองนนทบุรี สองข้างทางเป็นอาคารพาณิชย์และร้านอาหาร ร้านขายยาและอีกมากมายค่ะ
ภาพมุมมองจากโครงการไปทางทิศตะวันออก เห็นด้านหน้าอาคารติดซ.รัตนาธิเบศร์ 3 ด้านหลังไกลๆจะเห็นถ.ติวานนท์, รางรถไฟสายสีม่วงที่วิ่งจากรัตนาธิเบศร์ไปยังเส้นติวานนท์ และ The Esplanade อยู่ไกลๆ
พื้นที่ข้างเคียงโครงการฝั่งทิศตะวันออกเป็นบ้านพักอาศัย และอาคารพาณิชย์ ติดซ.เรวดี 12 ค่ะ
:::: ตัวโครงการ Vio แคราย 2 ::::
โครงการ Vio แคราย 2 เป็นคอนโด Low Rise สูง 8 ชั้น 1 อาคาร บนที่ดินขนาด 0-3-10 ไร่ จำนวนทั้งหมด 122 ยูนิตค่ะ มีพื้นที่ข้างเคียงดังนี้
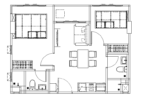
โดยที่ชั้นล่างของอาคารจะเป็นลานจอดรถทั้งหมด ที่จอดรถสามารถจอดได้ประมาณ 30 คัน (คิดเป็น 40%) และพื้นที่ส่วนกลางของอาคารจะอยู่ที่ชั้น 7-8 ค่ะ ชั้น 8 จะเป็นสระว่ายน้ำ, Fitness ส่วนชั้นดาดฟ้าจะเป็นสวนสาธารณะลอยฟ้า และ ห้องเครื่องซักผ้าหยอดเหรียญ เราจะพาไปชมผังพื้นกันนะคะ
แปลนอาคารชั้น 1 : เป็นที่จอดรถทั้งหมดค่ะ มีเว้นช่องเป็นที่จอดมอเตอร์ไซค์ และจุดจอด Shuttle Bus ของโครงการที่จะพาไปส่งบริเวณรถไฟฟ้า ถนนสวนกันกว้าง 6 เมตร ทางเข้า Lobby จะอยู่ตรงกลาง บันไดหนีไฟจะอยู่สองจุด คือบริเวณข้างโถงลิฟท์ซึ่งใช้เป็นทางขึ้น-ลงอาคารด้วยหากไม่ต้องการใช้ลิฟท์ และฝั่งปลายอาคาร
แปลนอาคารชั้น 2-7 : เป็น Typical Floor Plan ยูนิตพักอาศัยทั้งหมดค่ะ โดยชั้น 7 ด้านหน้าจะยุบเข้ามาเล็กน้อย ห้องมุมสีเขียวอ่อนในผังจะเป็นห้อง 2 Bedroom ทั้งหมด Corridor กว้าง 1.5 เมตรเดินสบายค่ะ
แปลนอาคารชั้น 8 : ชั้น 8 จะเป็นยูนิตพักอาศัย และส่วนกลางของอาคารค่ะ ประกอบด้วยฟิตเนส และสระว่ายน้ำวิว 180 องศา และห้องน้ำห้องอาบน้ำ ยูนิตพักอาศัยแบบ Two Bedroo จะมีห้องเดียวบริเวณมุมขวามือทางด้านทิศเหนือ
แปลนอาคารชั้นหลังคา : การชั้นมาชั้นหลังคาจะต้องเดินขึ้นผ่านบันไดหนีไฟค่ะ เมื่อขึ้นมาก็จะเจอกับห้องซักรีด ซึ่งในอนาคตจะมีเครื่องซักผ้าหยอดเหรียญมาติดตั้งไว้ให้ พื้นที่ทั้งหมดของหลังคาจะเป็นลานสวนสาธารณะลอยฟ้า ส่วนโซนด้านหลังจะเป็นถังเก็บน้ำและห้อง Pump
ในเรื่องของทิศทางแดด ห้องทางฝั่งทิศใต้ และฝั่งติด ซ.รัตนาธิเบศร์ 3 จะร้อนที่สุดค่ะ เนื่องจากได้แดดช่วงบ่ายเต็มๆ แต่ฝั่งทิศตะวันออกเฉียงใต้ ยูนิตชั้นล่างๆอาจจะร้อนน้อยลงไปบ้างเพราะมีอาคารเยาวมาลย์อพาร์ทเมนท์สูง 7 ชั้นช่วงบังแดดให้ แต่ก็จะเสียเรื่องวิวไปด้วยเหมือนกัน สรุปคือห้องทางฝั่งทิศเหนือ ชั้น 3 ขึ้นไปจะวิวดีและอากาศดีที่สุดค่ะ
::: แบบห้องทั้งหมด ของโครงการ :::
จริงๆแล้วโครงการมีห้องหลายขนาดค่ะ ประมาณ 10 ขนาดได้ แต่มีรูปแบบผังพื้นจัดเป็น Type ใหญ่ๆได้ดังนี้
ห้องจะขายแบบ Fully Furnished มีเฟอร์นิเจอร์ และชุดครัวให้เรียบร้อย ไม่มีฟูกและผ้าม่าน ห้อง One Bed จะมีแอร์ให้ 2 ตัวค่ะ ส่วน Two Bed จะได้แอร์ 3 ตัว ติดที่ห้องนอนและห้องนั่งเล่น ส่วนเครื่องใช้ไฟฟ้าจะมีเตาไฟฟ้า เครื่องดูดควัน และเครื่องทำน้ำอุ่นให้ค่ะ ประตูทางเข้าห้องเป็นแบบ Digital Door Lock ส่วนเพิ่มเติมจากนี้อาจจะมีโปรโมชั่นอะไรอีก ต้องสอบถามจากโครงการเอานะคะ
:: แปลนห้อง 1 Bedroom : 26 ตร.ม. ::
แบบห้อง 26 ตร.ม. : การจัดผังพื้นของห้องขนาดเล็กสุดเปิดประตูเข้าไปจะเจอกับโซนห้องนั่งเล่น ห้องทานอาหาร และห้องครัวแบบ Open ถึงกัน ระเบียงจะอยู่บริเวณห้องครัวค่ะ โดยประตูทางเข้าห้องน้ำ จะอยู่ด้านหลังจุดวางโซฟาข้างประตูห้องนอน ซึ่งก็สะดวกสบายดีเวลาอาบน้ำเสร็จแล้วต้องการแต่งตัว ภายในห้องน้ำแยกส่วนเปียกส่วนแห้ง
:: แปลนห้อง 1 Bedroom : 34.20 ตร.ม. ::
แบบห้อง 34.2 ตร.ม. : เป็นห้อง One Bedroom ที่ขนาดกว้างขวางค่ะ จะแตกต่างจากห้องที่แล้วคือโซนนั่งเล่นจะอยู่ติดกับระเบียงแทน สามารถนั่งเล่นไปชมวิวไปได้ ส่วนโซนห้องครัวและ Pantry จะอยู่หน้าห้องน้ำ ตรงข้ามกับประตูทางเข้าห้องนอน เฟอร์นิเจอร์ที่ได้จะเหมือนกันกับห้อง One Bed ส่วนโต๊ะทานอาหารจะได้ขนาดใหญ่ขึ้นค่ะสามารถนั่งได้ 3-4 คน
:: แปลนห้อง 2 Bedroom : 43-44 ตร.ม. ::
แบบห้อง 43-44 ตร.ม. : เป็นห้องขนาด 2 Bed ที่ขนาดกะทัดรัดค่ะ การจัดผังจะคล้ายๆกับห้อง One Bed 34.2 ตร.ม. แต่ห้องนอนจะขนาดเล็กลง และเพิ่มห้องนอน Master เข้าไปด้านขวามือ โดยภายในจะเป็นห้องนอนเตียงคู่ และอีกห้องจะเป็นเตียงเดี่ยว ห้อง Master มีห้องน้ำในตัวและแบ่งโซน Walk-in Closet ให้เรียบร้อย
:: แปลนห้อง 2 Bedroom : 48.3-49.67 ตร.ม. ::
แบบห้อง 48.3-49.67 ตร.ม. : ห้องนี้เป็นห้องขนาด 2 Bedroom ที่ขนาดใหญ่ที่สุดค่ะ โดยห้องนอนทั้ง 2 ห้องจะเป็นห้องนอนเตียงคู่ทั้งหมด
สังเกตว่าถึงแม้ขนาดห้องจะต่างกัน แต่ขนาดของห้องน้ำจะเท่ากัน และแยกส่วนเปียกส่วนแห้ง มีโซน Shower ให้ทุกห้อง
:::: บริเวณภายในโครงการ ::::
::: หน้าโครงการ และป้อมยาม :::
ชมรายละเอียดกันไปครบแล้ว เรามาชมภาพถ่ายภายในโครงการกันนะคะ
เริ่มจากทางเข้าโครงการกันเลยค่ะ ซุ้มประตูทางเข้าตีระแนงเกล็ดสีน้ำตาล ด้านซ้ายมือจะเป็นซุ้มป้อมยาม
เข้า-ออกโครงการด้วยระบบรั้วกั้นไม้กระดกและ Access Control Card
จากทางเข้ามองไปด้านข้างของป้อมยามค่ะ
ทางเข้าของซุ้มป้อมยามจะอยู่ด้านหลัง
::: ที่จอดรถ :::

พื้นถนนเป็นคอนกรีตแสตมป์ลายยาวจนถึงหน้า Lobby
ด้านหน้าป้อมยามสามารถจอดรถได้ 2 คัน
โซนที่จอดรถฝั่งด้านซ้ายมือจะยื่นออกไปนอกอาคารหน่อยนะคะ ไม่กันแดดกันฝน
มีโซนเว้นสำหรับจอดรถจักรยานยนต์อยู่ 2-3 จุด
รถ Shuttle Bus สำหรับรับ-ส่งผู้อยู่อาศัยไปยังสถานีรถไฟฟ้า BTS ค่ะ ออกจะเป็น Shuttle ตุ๊กๆมากกว่านะคะ เท่ดีสีม่วงอย่างเด่นเลย
ด้านหลังสุดของที่จอดรถมีศาลพระภูมิตั้งอยู่ และส่วนหย่อมเล็กน้อย
ภาพจากด้านหลังสุดของลานจอดรถ มองออกไปบริเวณหน้าป้อมยาม หากได้จอดรถฝั่ง Lobby จะดีกว่านะคะ อยู่ใต้อาคารพอดี ไม่เปียกฝน
::: พื้นที่ส่วนกลาง :::
มาชมพื้นที่ส่วนกลางของโครงการกันนะคะ ซึ่งจะแบ่งตามชั้นดังนี้
พร้อม Free WiFi พื้นที่ส่วนกลาง และระบบ CCTV 24 ช.ม. เข้าออกโครงการด้วยระบบ Access Control Card ประตูทางเข้าห้องพักเป็นแบบ Digital Door Lock
:: Lobby. โถงลิฟท์ และห้อง Mail Box ::
ทางเข้าสู่ Lobby ที่ชั้น 1 จากลานจอดรถค่ะ สามารถใส่รองเท้าเข้าไปได้เลยนะคะ ด้านซ้ายมือจะเป็นสำนักงานนิติบุคคล
บริเวณ Lobby พักผ่อนตกแต่งสวยงามมีสวนหย่อมสีเขียวอยู่ด้านหลัง พร้อม Free Wifi ให้บริการ
ด้านหน้าทางเข้าโถงลิฟท์ก็มีโต๊ะพักผ่อนให้บริการค่ะ
ประตูทางเข้าโถงลิฟท์ค่ะ ต้องใช้ Key-Card ในการเข้า-ออก
เครื่องสแกนคีย์การ์ดบริเวณข้างขวาของประตู
เข้าไปภายในโถงลิฟท์ด้านขวามือจะเป็นโซน Mail Box สามารถมาเปิดรับจดหมายได้ที่นี่ ส่วนตรงไปจะเป็นบันไดหนีไฟค่ะ ซึ่งหากอาศัยอยู่ชั้น 2-3 ก็สามารถเดินขึ้นจากจุดนี้ก็ได้
ภาพกล่อง Mail box
ลิฟท์ที่นี่เป็นลิฟท์โดยสารมีทั้งหมด 2 ตัวด้วยกัน ระบบ Lock ชั้น อัตราส่วนลิฟท์รวมทั้งโครงการ 61 : 1
มีจอ LCD บอกชั้นบริเวณปุ่มลิฟท์
ภายในลิฟท์ค่ะ ลิฟท์ยี่ห้อ Otis ความจุ 10 คน Capacity 800 กก.
เราพาขึ้นมาที่ชั้น 8 เลยนะคะ เพื่อจะไปชมส่วนกลางของโครงการบริเวณฟิตเนส สระว่ายน้ำ และสวนลอยฟ้ากันก่อนจะไปชมห้องตัวอย่างกันค่ะ นี่คือภาพโถงลิฟท์บริเวณชั้น 8 มีหมายเลขชั้นแสตนเลสติดอยู่
:: ห้อง Fitness ::
ห้องฟิตเนสจะอยู่ทางด้านขวามือจากโถงลิฟท์ค่ะ ซึ่งถัดจากห้องฟิตเนสไป จะเป็นยูนิตพักอาศัยที่ต้องใช้ Key Card ในการเข้า
ระเบียบการใช้ห้องออกกำลังกาย
ภายในห้องฟิตเนสมีเครื่องเล่นอยู่ 4 เครื่องด้วยกัน สามารถมองออกไปชมวิวฝั่งทิศเหนือของโครงการได้
มีชุดม้าราบฝึกดัมเบลล์ให้
เครื่องปั่นจักรยานไฟฟ้า 1 เครื่อง
และลู่วิ่งไฟฟ้า 2 เครื่องค่ะ
:: ห้องน้ำ ::
ห้องน้ำจะอยู่บริเวณก่อนถึงบันไดทางเดินขึ้นไปยังสระว่ายน้ำค่ะ
ซึ่งห้องน้ำนี้เป็นห้องน้ำรวมนะคะ ไม่ได้แยกชาย-หญิงแต่อย่างใด ฝั่งซ้ายมือจะเป็นห้องส้วม โถสุขภัณฑ์ ส่วนขวามือเป็นห้องอาบน้ำอย่างละห้อง ด้านขวามือสุดเป็นบันไดทางขึ้นสระว่ายน้ำค่ะ
ภายในห้องน้ำ และห้องอาบน้ำค่ะ โซนอาบน้ำเป็น Rain Shower และมีฉากกั้น
:: สระว่ายน้ำ ::
สระว่ายน้ำของโครงการจะอยู่บนหลังคาค่ะ สามารถมองวิวได้ 180 องศาเลย มีโซนพักผ่อน Day Bed ให้ 2 ตัว
มุม Top View ค่ะ ด้านซ้ายมือคือบันไดทางขึ้นสู่สระว่ายน้ำ ซึ่งภายในสระจะเป็นบันไดคอนกรีตปูกระเบื้องทำเป็นขั้นลงไปภายใน ไม่ใช่บันไดแสตนเลสค่ะ ข้างกระถางต้นไม้มีม้านั่งสามารถนั่งว่ายน้ำไปชมวิวไปบริเวณนี้ได้ แต่ไม่สามารถนำเบียร์ขึ้นมาทานได้นะคะ และห้ามสูบบุหรี่ เพื่อความสงบเรียบร้อยของส่วนรวมค่ะ ซึ่งก็น่าเสียดายน้าา สระว่ายน้ำ Roof Top นี่น่าชิลเบียร์มากๆเลย
เมื่อขึ้นมาก็จะเจอกับโซนพักผ่อน Day Bed 2 ตัว พื้นปูกระเบื้องลายไม้ และเห็นป้าย Vio คอนโดสวยงามค่ะ
ภาพถ่ายบันไดทางขึ้น และทางลงสระว่ายน้ำซึ่งเชื่อมต่อกัน ราวกันตกเป็นกระจก Tempered ทั้งหมดค่ะ ทำให้เปิดมุมมองสามารถชมวิวได้กว้างรอบสระ
ภาพถ่ายม้านั่งบริเวณข้างกระถางต้นไม้
ภาพ Panorama วิวที่ได้จากสระว่ายน้ำทั้งหมดค่ะ จะได้วิวฝั่งทิศตะวันตก
จากสระว่ายน้ำมองไปด้านหลัง Day Bed เป็นสวนลอยฟ้าค่ะ ซึ่งทางขึ้นไปยังสวนต้องขึ้นจากบันไดหนีไฟ ชั้น 8 เดี๋ยวเราจะพาไปกันนะคะ
:: สวนสาธารณะลอยฟ้า ::
สวนสาธารณะลอยฟ้าจะอยู่ที่ชั้นหลังคาค่ะ
ซึ่งทางขึ้นสู่ดาดฟ้า จะอยู่บริเวณบันไดหนีไฟ ข้างโถงลิฟท์ชั้น 8
เปิดประตูเข้าไปก็จะเจอบันไดแบบนี้
ขึ้นมาที่สวนลอยฟ้าแล้วค่ะ ด้านซ้ายมือจะเป็นห้องซักรีด
ภายในห้องซักรีดค่ะ ในอนาคตจะมีเครื่องซักผ้าหยอดเหรียญให้บริการ
บรรยากาศบนสวนลอยฟ้าพื้นสวนปูด้วยหญ้าเทียม และกระถางต้นไม้ ปลูกต้นไม้ซึ่งในอนาคตจะเติบโตให้ร่มเงาสามารถมานั่งพักผ่อนได้โดยไม่ร้อน ค่ะ
โซนนั่งเล่นจะมีกระถางต้นไม้แบ่งกั้นโซนไว้ค่ะ
พื้นส่วนที่ไม่ได้ปูหญ้า จะปูกระเบื้องลายไม้สีอ่อน ส่วนม้านั่งปูนดีไซน์โมเดิร์นปูด้วยกระเบื้องลายไม้สีเข้ม
พื้นที่สุดปลายสวนปูด้วยกระเบื้องลายไม้สีเทาซึ่งเป็นลานเอนกประสงค์ ด้านหลังเป็นระแนงตกแต่งค่ะ
หากร้อนก็สามารถมาหลบแดดบริเวณนี้ได้
ภาพจากปลายสุดของสวน มองย้อนกลับไปบริเวณทางเข้าสวน

มองภาพรวมของสวนกันอีกสักรอบค่ะ
:::: ห้องตัวอย่าง โครงการ Vio แคราย 2 ::::
มาถึงห้องตัวอย่างกันแล้วนะคะ วันนี้เราจะพาไปชมห้องทั้งหมด 2 แบบด้วยกันค่ะ คือ
ไปชมกันเลยค่ะ
::: แบบห้อง 1 Bedroom : 26 ตร.ม. :::
ประตูทางเข้าห้องเป็นไม้ HDF เคลือบผิวลามิเนตสีขาวค่ะ
เข้า-ออกห้องด้วยระบบ Digital Door Lock
มีอุปกรณ์ตาแมวติดให้ที่ประตูด้วย

บริเวณประตูมีอุปกรณ์ Door Stopper ติดให้ที่พื้น เพื่อไม่ให้เปิดประตูไปชนกับตู้วางทีวีด้านหลังนั่นเอง

อุปกรณ์สวิตช์ไฟ ติดอยู่ด้านข้างประตูค่ะ สีดำข้างๆเป็นที่ใส่รีโมทแอร์ยี่ห้อ York
เปิดเข้ามาก็จะเจอห้องนั่งเล่น ตรงสุดเป็นห้องครัว ห้องทานอาหาร และระเบียง ขวามือเป็นห้องน้ำ และห้องนอนค่ะ ฝ้าเพดานสูง 2.4 เมตร
มองย้อนกลับไปบริเวณโซนนั่งเล่นกันสักหน่อย พื้นห้องนอนปูด้วยลามิเนต หนา 8 มม.
ประตูห้องนอนและห้องน้ำจะอยู่ด้านข้างโซฟาพอดีเลยค่ะ
โซฟาที่ได้จะเป็นแบบ Sofa Bed 2ที่นั่ง สามารถกางออกมานอนเล่นได้แบบนี้
ชุดอุปกรณ์ตู้วางทีวีเป็นแบบ Build-in ลอยจากพื้นเล็กน้อยค่ะ ทีวีสามารถติดขนาด 32-40 นิ้วได้ ระยะดูทีวีประมาณ 3 เมตร
มือจับตู้ทั้งหมดเป็นแบบ Soft Closed กันกระแทก
มือจับบานเปิดจับจากด้านบนเป็นมุมปาด
เหนือตู้เก็บของเป็นจุดติดตั้งตู้ Load Center ของ Schneider Electric

และแอร์ยี่ห้อ YORK ขนาด 9000 BTU ได้แบบนี้เลย

ไฟภายในห้องเป็น Down Light 11 W ทั้งหมด
โต๊ะน้ำชาไม้สังเคราะห์สไตล์โมเดิร์น Top กระจก แยกสองชิ้น
เข้ามาชมที่โซนทานอาหารและห้องครัวกันบ้าง
โต๊ะทานอาหารทรงโมเดิร์นสี่เหลี่ยมจตุรัสสองที่นั่ง หากเป็นห้อง 2 bed จะได้เป็นสีเหลี่ยมผืนผ้าแบบยาวขึ้นค่ะ สังเกตที่พื้นในโซนห้องนั่งเล่น และโซนห้องครัว-ห้องทานอาหารจะแตกต่างกันแล้ว โซนห้องครัวจะเป็นพื้นแกรนิตโตขนาด 60×60 ซม.ค่ะ ซึ่งหากใครกลัวเรื่องกลิ่นเวลาทำอาหารก็สามารถกั้นเป็นครัวปิดแยกได้เลย
ฝั่งตรงข้ามโต๊ะทานอาหารเป็นชุด Pantry ครัว เหลือทางเดินระหว่างกลางประมาณ 60 ซม.
ชุดเคาน์เตอร์ครัวเป็นแบบ Build-in มีซิงค์ล้างจานและเตาไฟฟ้าให้เรียบร้อย เปิดออกมาภายในจะเป็นแบบนี้ มีลิ้นชักเก็บแยกช้อนส้อมให้ด้วย และสามารถวางตู้เย็นด้านซ้ายมือได้

ซิงค์ล้างจาน และก๊อกน้ำ ยี่ห้อ Hafele ค่ะ
ใต้ซิ้งค์อ่างล้างจานเป็นแบบนี้
เตาไฟฟ้าสองหัวยี่ห้อ MEX
ตู้เก็บของลอยเหนือชุดครัวค่ะ ด้านซ้ายมือสามารถวางเตาไมโครเวฟได้ มีปลั๊กไฟที่ผนังด้านบนให้ด้วย
มีเครื่องดูดควันยี่ห้อ MEX ติดให้ด้วย
ประตูทางออกสู่ระเบียงเป็นบานเลื่อน 3 ตอนค่ะ เนื่องจากห้องครัวหน้ากว้างไม่เยอะ การใช้ประตูหน้ากว้าง 3 ตอนทำให้สามารถเดินออกระเบียงได้สะดวกขึ้น
ประตูบานอลูมิเนียมสีขาว กระจกสีเขียวตัดแสง มือจับเซาะร่องมาตรฐานแบบนี้
พื้นระเบียงปูด้วยกระเบื้องเซรามิกขนาด 30×30 ซม. สีครีม
ราวกันตกเหล็กทาสีน้ำมันสีดำ
มีเดินก๊อกน้ำสำหรับซักล้าง และปลั๊กไฟแบบมีฝาครอบให้ด้วยค่ะ
ปลั๊กไฟแบบมีฝาครอบกันน้ำ
ส่วน Coil ร้อนแอร์จะติดตั้งแบบลอยเพื่อเพิ่มพื้นที่การใช้งานบริเวณระเบียงให้กว้างขึ้น
ไฟระเบียงที่ได้จะเป็นโคมดาวน์ไลท์โมเดิร์นสีดำแบบนี้
ออกจากห้องครัว ไปชมห้องน้ำและห้องนอนกันค่ะ ประตูบานมาตรฐานHDF ปิดผิวลามิเนตเหมือนกันกับทางเข้าเลย

การจบขอบประตูห้องนอน และห้องน้ำ
ภายในห้องน้ำ ของโครงการ Vio แคราย 2 ไม่ว่าจะห้องพื้นที่ใช้สอยเยอะขนาดไหน ห้องน้ำก็จะขนาดเท่ากันและหน้าตาเหมือนกันค่ะ แยกส่วนเปียกส่วนแห้งทุกห้อง

พื้นห้องน้ำปูด้วยกระเบื้องเซรามิก ลายไม้สีอ่อนสวยดีค่ะ ลดระดับลงจากพื้นห้องลามิเนตเล็กน้อย
เหนือประตูห้องน้ำภายในติด Door Stopper ให้ด้วย
ชุดอ่างล้างมือมีกระจกขนาด 60×90 ซม. ติดให้เหนืออ่าง
อ่างล้างมือยี่ห้อ American Standard
ก๊อกน้ำอ่างล้างมือก็ยี่ห้อ American Standard เช่นเดียวกันค่ะ
ใต้อ่างมีตู้เก็บของ ยี่ห้อ American Standard มาให้ด้วยค่ะ ซึ่งเป็นตู้ลอยไม่ต้องกลัวเปียก สามารถเก็บของอุปกรณ์ล้างห้องน้ำได้พอสมควร
โถสุขภัณฑ์ยี่ห้อ American Standard ดีไซน์โมเดิร์น แยก 2 ชิ้น

ด้านบนโถสุขภัณฑ์เป็นแบบ Dual Flush Valve เลือกความแรงของน้ำได้ค่ะ
สายชำระ และที่วางกระดาษทิชชู่สแตนเลสยี่ห้อ American Standard ส่วนตัวแล้วชอบที่วางกระดาษทิชชู่แบบนี้นะคะ เหมาะสำหรับคนขี้เกียจแกะแกนใส่กระดาษ แค่เสียบลงไป แล้วดึงปื้ดๆใช้ได้เลย สบาย
ห้องอาบน้ำมีฉากกั้นแยกส่วนเปียกส่วนแห้งให้เรียบร้อย ยี่ห้อ Bathroom Design
มีชั้นเก็บของกระจกไว้ให้ด้วยค่ะ โดยสามารถเปิดหยิบของได้จากภายใน Shower Box นะคะ แต่สามารถเห็นจากภายนอกได้ด้วย ซึ่งก็จะทำให้ห้องน้ำดูโปร่งมากขึ้น แต่อย่าทำรกนะฮ่าๆ
พื้นห้องน้ำเป็นธรณีแยกส่วนเปียกส่วนแห้งยกขึ้นมาประมาณ 8 ซม.แบบนี้เลยค่ะ
ชุดฝักบัวยี่ห้อ American Standard แบบมีโครงปรับระดับ มีเครื่องทำน้ำอุ่นยี่ห้อ MEX ติดให้ด้วย
จุดวางสบู่บริเวณชุดปรับระดับฝักบัว
หัวฝักบัวขนาดกลางค่ะ ซึ่งกำลังดีเลย บางคนอาจไม่ชอบฝักบัวขนาดใหญ่เกินไปเพราะมันหนัก

เหนือเพดานห้องน้ำเป็นไฟดาวน์ไลท์ทั้งหมดค่ะ มีเครื่องระบายอากาศติดให้ด้วย เพราะห้องน้ำห้องนี้ไม่อยู่ติดกับภายนอกอาคาร ไม่มีหน้าต่างระบายอากาศ ซึ่งก็เป็นปกติของคอนโดอยู่แล้ว
ภาพมุมมองจากภายใน Shower Box ออกไปยังทางเข้าห้องน้ำ
เข้ามาชมภายในห้องนอนกันค่ะ ห้องนอนนี้จะได้เตียงขนาด Queen Size ไม่มีฟูกให้นะคะ เป็นแค่โครงเตียงเฉยๆ

โดยที่ใต้เตียงมีลิ้นชักสำหรับเก็บของให้ด้วย
ภาพจากปลายเตียงไปยังหัวเตียงค่ะ
พื้นที่ข้างเตียงเหลือประมาณ 30 ซม. ส่วนขวามือเหลือประมาณ 40-85 ซม. ค่ะ

มีตู้เสื้อผ้าบานเลื่อนติดให้ปลายเตียง มีกระจกในตัว


ภายในตู้มีลิ้นชักเก็บของ สามารถเก็บได้เยอะเหมือนกันค่ะ มือจับตู้เสื้อผ้าเป็นแบบเซาะร่อง

มีหลอดไฟฟลูออเรสเซนส์ติดภายในให้ด้วย ซึ่งจะเปิด-ปิดอัตโนมัติ เวลาเลื่อนเปิดบานตู้
ข้างเตียงเป็นหน้าต่างช่องแสงแบบเต็มผนังค่ะ บานเลื่อนคู่ 2 ตอน ลูกฟักกระจกด้านล่าง
ภาพจากหัวเตียงไปยังปลายเตียง สามารถติดตั้งทีวีแบบแขวนได้นะคะแต่อาจจะไม่สามารถวางตู้วางทีวีได้เนื่องจากปลายเตียงเหลือพื้นที่ไม่มากนัก แอร์ที่ได้ยี่ห้อ YORK เหมือนข้างนอก ขนาด 9000 BTU
ไฟเพดานดาวน์ไลท์ 2 จุด มีเครื่อง Heat Detector ติดไว้กันเพลิงไหม้ด้วย
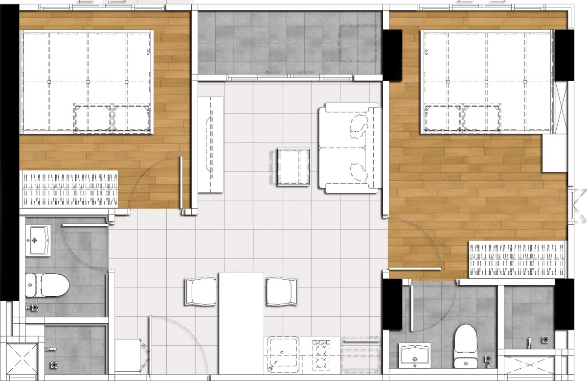
::: แบบห้อง 2 Bedroom : 48 ตร.ม. :::
มาถึงห้อง 2 Bedroom ขนาด 48 ตร.ม. กันค่า ห้องนี้ที่เราพามาชมจะเป็นห้องมาตรฐานส่งมอบนะคะ เราจะได้เห็นเฟอร์นิเจอร์ตามจริงที่ได้กันแบบนี้เลย
ภายในห้องนี้จะแตกต่างกันกับห้อง 1 Bedค่ะ เปิดเข้ามาจะเจอกับประตูห้องนอน อยู่ฝั่งตรงข้ามเลย และห้องน้ำอยู่ขวามือ
ซึ่งโซนนั่งเล่นของห้อง 2 Bed จะไปอยู่บริเวณระเบียงค่ะ ทำให้สามารถนั่งชิลไป ชมวิวไปได้ด้วย
แต่โซน Pantry จะถูกย้ายมาอยู่ฝั่งติดผนังประตูทางเข้าแทน โดยมีโต๊ะทานข้าวขนาดใหญ่กั้น ประตูห้อง Master Bed จะอยู่ข้างโซฟา
ด้านข้างประตูทางเข้ามีตู้เก็บของติดตั้งแบบลอยให้เหมือนกับห้อง 1 Bed ซึ่งสามารถใช้เก็บรองเท้าก่อนเข้าห้องได้ค่ะ และมี Door Stopper ติดไว้ให้กันประตูเปิดแล้วไปกระแทกตู้ เหนือตู้ก็จะมีตู้ไฟยี่ห้อ Schneider Electric ติดให้เช่นเดียวกัน
โซน Pantry จะอยู่ที่ผนังฝั่งข้างประตูโดยมีโต๊ะทานข้าวกั้นค่ะ
โต๊ะทานข้าวตัวยาว ซึ่งยาวเป็นสองเท่ากว่าของห้อง 1 bed เมื่อสักครู่ได้ มีเก้าอี้ให้ 2 ตัว หากต้องการนั่ง 3 ที่นั่งก็ไปหาซื้อมาเพิ่มกันนะคะ
ตู้ Pantry ครัวเหมือนกับห้อง One Bed ทุกประการค่ะ
ด้านข้าง Pantry สามารถวางตู้เย็น หรือเครื่องซักผ้าได้ค่ะ มีเดินท่อน้ำก๊อกน้ำไว้ให้ด้วย
มาชมบริเวณโซนนั่งเล่นกัน
โซฟาที่ได้ก็จะเป็นโซฟา Bed เหมือนกับห้องที่แล้ว
ชุดโต๊ะน้ำชา เหมือนกับห้อง 1 Bed ค่ะ แต่โต๊ะวางทีวีแบบ Build in จะยาวขึ้นหน่อย ด้านข้างเป็นบานเปิดคู่ มีชั้นวางของติดด้านบน ระยะดูทีวีประมาณ 3 เมตร สามารถติดทีวีขนาด 40-70 นิ้วได้เลย
ประตูออกสู่ระเบียงเป็นบานเลื่อนเปิดคู่ 2 ตอน อลูมิเนียมสีขาว กระจกสีเขียวตัดแสง มือจับแบบเซาะร่อง
พื้นระเบียงปูด้วยกระเบื้องเซรามิกขนาด 30×30 ซม.สีครีม ลดระดับลงจากพื้นห้องเล็กน้อยค่ะ
ระเบียงของห้อง Type นี้ค่อนข้างกว้าง สามารถออกไปนั่งชิลได้นะคะ ด้านขวามือติด Coil ร้อนแอร์ 3 ตัวเรียงกัน ส่วนซ้ายมือเป็นจุดวางเครื่องซักผ้าและก๊อกน้ำซักล้าง และปลั๊กไฟแบบมีฝาครอบกันน้ำ
เข้ามาชมภายในห้องนอน Master Bedroom ที่ประตูทางเข้าอยู่ข้างโซฟากันค่ะ ห้องนอนนี้จะมีห้องน้ำส่วนตัวนะคะ
เตียงที่ได้จะได้เป็นโครงเตียงเปล่า ไม่มีฟูกให้ มีตู้วางโคมไฟข้างเตียงแบบ Build in ให้ด้วย สามารถเก็บของใต้เตียงได้
พื้นที่ข้างเตียงด้านซ้ายมือกว้างขวางดีค่ะ ส่วนขวามือเหลือประมาณ 40 ซม. พอเป็นทางเดินให้เข้าไปทำเตียงได้
ปลายเตียงจะติดโครงสร้างของเสาอาคารแบบนี้ ซึ่งสามารถ Build ตู้เก็บของที่ผนังข้างเสาใต้แอร์ได้นะคะหากต้องการ มีเดินปลัํกไฟ สำหรับติดทีวีแขวนไว้ให้ด้วย
จุดเด่นของห้องนอนนี้ เนื่องจากห้อง 2 Bedroom ทุกห้องจะเป็นห้องมุมอาคารค่ะ หน้าต่างที่ได้ก็จะเป็นหน้าต่างแบบเข้ามุม Corner Window บาน Fix ข้าง, Fix ล่าง และบานเลื่อน 2 ตอนตรงกลาง ทำให้สามารถชมวิวได้กว้างขวางจริงๆ
ห้องนอนนี้มีห้องน้ำในตัวค่ะ ผนังข้างประตูห้องน้ำเป็นตู้เสื้อผ้า แบบห้อง 1 Bed
หน้าต่างข้างเตียงเป็นหน้าต่างบานกระทุ้งอลูมิเนียมสีขาว กระจกสีเขียวตัดแสง
ภายในห้องน้ำเหมือนกันกับห้อง One Bed ทุกประการค่ะ แต่จะได้เรื่องหน้าต่างช่องแสงระบายอากาศมาด้วย เนื่องจากห้องนี้อยู่ติดกับภายนอกของอาคารค่ะ
หน้าต่างบานกระทุ้งจะอยู่บริเวณ Shower Box พอดี
ถัดไปเราไปชมห้องนอนขนาดเล็กกันนะคะ อยู่ตรงข้ามกับประตูทางเข้าห้องที่เราเข้ามากันเมื่อสักครู่นี้เลย
ภายในห้องนอนเล็กนี้ได้เตียงขนาดเท่ากับห้อง Master ค่ะ เป็นเตียง QueenSize ขนาดห้องนอนเท่าๆกับห้อง One Bed เลย มีตู้เสื้อผ้าให้เหมือนกัน
ภายในห้องน้ำก็เหมือนกับห้อง One Bedroom ทุกประการค่ะ
:::: ราคา (สิงหาคม 2559) ::::
ราคาเริ่มต้น 1.49 ล้านบาท
ห้องขนาด 1 Bedroom พื้นที่ใช้สอย 25.97 ตร.ม. ชั้น 2
ราคา 1,490,000 บาท
ห้องขนาด 1 Bedroom พื้นที่ใช้สอย 48.27 ตร.ม. ชั้น 7
ราคา 2,989,280 บาท
ห้องขนาด 2 Bedroom พื้นที่ใช้สอย 25.97 ตร.ม. ชั้น 4
ราคา 1,689,990 บาท
– ค่ายส่วนกลาง 40 บาท/ตร.ม. (ชำระล่วงหน้า 1 ปี ณ วันโอนกรรมสิทธิ์)
– ค่ากองทุนส่วนกลางอาคาร 500 บาท/ตร.ม. ชำระครั้งเดียว ณ วันโอนกรรมสิทธิ์
– ค่าจดจำนอง 1% ของวงเงินกู้ชำระให้ธนาคารที่ยื่นกู้ ผู้ซื้อเป็นผู้ชำระ
*ขายแบบ Fully Furnished ตกแต่งครบ พร้อมเข้าอยู่
*PROMOTION : วอลล์เปเปอร์ ผ้าม่าน แถมเฉพาะตำแหน่งที่ทางโครงการกำหนดเท่านั้น
**ข้อมูลราคาและ โปรโมชั่นอาจมีการเปลี่ยนแปลง โปรดติดต่อสำนักงานขายเพื่อสอบถามรายละเอียดเพิ่มเติม
:::: สรุป ::::
• ทำเลที่ตั้งโครงการ โครงการเกาะแนวรถไฟฟ้าสายสีม่วงสถานี MRT ศูนย์ราชการนนทบุรี ตัวอาคารตั้งอยู่ภายในซ.รัตนาธิเบศร์ 3 หรือ ซ.เรวดี 14 ลึกจากปากซอยฝั่งรัตนาธิเบศร์ 370 เมตร และ ซ.เรวดี 14 215 เมตร สาธารณูปโภคภายในซอยจะน้อยค่ะ แต่ก็พอมีร้านอาหารและร้านค้าอาคารพาณิชย์ จากโครงการหากเดินไปใกล้ๆก็คงจะไปพึ่งพาฝั่ง ถ.เรวดีซะมากกว่า เนื่องจากเดินไปใกล้กว่าเยอะอยู่ค่ะ ส่วนสาธารณูปโภคบริเวณปากซอยรัตนาธิเบศร์นั้นจะครบครันและเป็นตัวเมืองมากขึ้นค่ะ หน้าปากซอยมี 7-11 เนื่องจากซอยโครงการอยู่ข้างกับสน.นนทบุรี และตรงข้ามศูนย์ราชการนนทบุรีรวมถึงสวนสาธารณะ และ Esplanade แครายอยู่ไม่ไกล รวมถึงห้างสรรพสินค้าแหล่งชอปปิ้งบริเวณเส้นรัตนาธิเบศร์ก็มีหลายห้าง ใกล้ๆโครงการนอกจาก Esplanade ก็มี Hobby Lobby Central รัตนาธิเบศร์, The Mall งามวงศ์วานสามารถเดินทางไปได้ไม่ไกล
• การเดินทางโดยรถยนต์ส่วนตัว การเดินทางโดยรถยนต์สะดวกสบายด้วยถนนหลายสายด้วยกันค่ะ เนื่องจากโครงการอยู่ใกล้แยกแคราย ซึ่งแยกนี้ขึ้นชื่อเรื่องจราจรติดขัดเป็นอย่างมาก แต่ก็ยังมีทางเลี่ยงสามารถออกทางซ.เรวดีได้อยู่ ตัวโครงการสามารถเดินทางเข้า-ออก นนทบุรี-ปทุมธานี-กรุงเทพได้สะดวกค่ะ สามารถขึ้นทางพิเศษศรีรัชได้ที่ด่านงามวงศ์วาน ระยะทางประมาณ 3.5 กม. หรือวิ่งข้ามสะพานพระนั่งเกล้า ไปยังบางใหญ่ก็ใช้เวลาแค่ 10 นาทีเท่านั้น จากโครงการก็สามารถใช้ถ.เรวดี ออกเลี่ยงเมืองนนทบุรี และใช้สะพานนนทบุรี 1, สะพานพระราม 5 เพื่อเดินทางสู่ย่านท่าน้ำนนท์, ถ.ราชพฤกษ์ หรือใช้ราชพฤกษ์วิ่งสู่ย่านตลิ่งชัน-บรมราชชนนีก็สะดวกค่ะ
• การเดินทางโดยรถสาธารณะ การเดินทางโดยรถสาธารณะบริเวณจุดนี้ถือเป็น Hub การเดินทางด้วยรถไฟฟ้าในอนาคตของ จ.นนทบุรีเลยค่ะ เนื่องจาก MRT สถานีศูนย์ราชการนนทบุรี ในอนาคตจะเป็นจุด Interchange ของสถานีรถไฟฟ้าสายสีชมพูด้วยเช่นกันที่จะเปิดให้บริการในปี 2563 ส่วนรถสาธารณะจะต้องขึ้นที่ โซนรัตนาธิเบศร์เป็นหลักค่ะ มีป้ายรถเมล์อยู่บริเวณหน้าสน.นนทบุรี มีรถประจำทางผ่านหลายสาย ทั้งรถเมล์ รถแทกซี่ และรถตู้ ไปบางใหญ่ บางบัวทอง ท่าน้ำนนท์ งามวงศ์วาน ม.เกษตร ปากเกร็ด แจ้งวัฒนะ เมืองทอง จตุจัตร ส่วนมอเตอร์ไซค์จะอยู่ที่ปากซอยทั้งฝั่งรัตนาธิเบศร์ และ ฝั่งซ.เรวดีทั้งสองฝั่งเลย แต่เดินไปฝั่งเรวดีจะใกล้กว่าค่ะ แค่ 200 เมตรเท่านั้น แต่เดินระวังรถหน่อยนะคะเพราะในซอยเป็นถนนสวนกันสองเลนแบบไม่มีทางเท้าให้หลบรถ
• การออกแบบโครงการและวัสดุ โครงการเป็นคอนโด Low Rise สูง 8 ชั้น 1 อาคาร โดยมี Facality ส่วนกลางอยู่ชั้น7 และชั้นดาดฟ้าทั้งหมด ชั้น 1 เป็นที่จอดรถทั้งหมดค่ะ แบบห้องมีแบบ One Bed และ 2 Bed วัสดุอุปกรณ์ที่ได้ถือว่าคุ้มค่าและได้ของดี เมื่อเทียบกับราคานะคะ ฝ้าเพดานสูง 2.4 เมตร วัสดุพื้นห้องลามิเนต 8 มม. ห้องครัวเป็นแกรนิตโต ห้องน้ำเป็นกระเบื้องเซรามิกลายไม้สีอ่อน ไฟเป็นดาวน์ไลท์ทั้งหมด เฟอร์นิเจอร์ได้ครบทุกชิ้นแบบ Build-in Fully Furnished ภายในห้องน้ำสุขภัณฑ์ และ Accessories ยี่ห้อ American Standard ทั้งหมด ฉากกั้นอาบน้ำ Bathroom Design มีเครื่องทำน้ำอุ่นยี่ห้อ MEX ให้ด้วย ส่วนชุดเครื่องครัวที่ได้เตาไฟฟ้า และเครื่องดูดควันยี่ห้อ MEX เช่นกันค่ะ อ่างล้างจานยี่ห้อ Hafele หน้าต่างช่องแสงที่ได้กว้างเกือบเต็มผนังค่ะ อาจจะติดเรื่องห้องครัวซักหน่อยสำหรับห้อง 2 Bed อาจไม่เหมาะสำหรับผู้ที่ชอบประกอบอาหารหนักๆ แต่ก็สามารถย้าย Pantry มาไว้แทนที่ห้องนั่งเล่นที่ติดระเบียงแล้วกั้นเพื่อกันกลิ่นแทนกันได้อยู่ค่ะ
• สิ่งอำนวยความสะดวกและระบบรักษาความปลอดภัย สิ่งอำนวยความสะดวกของโครงการถือว่าทำมาได้ดีเลยนะคะในระดับคอนโด Low Rise 8 ชั้น 1 อาคารที่มี Facility เป็นสวนลอยฟ้าและสระว่ายน้ำลอยฟ้า บางที่มีหลายอาคารก็ยังไม่มีสระว่ายน้ำให้เลยค่ะ ฟิตเนสอาจจะขนาดเล็กสักหน่อย จำนวน 4 เครื่องเล่นและห้องน้ำ ห้องอาบน้ำที่ไม่ได้แยกชาย-หญิง แต่ก็อยู่บริเวณโถงที่ไม่ได้เป็นมุมอับ ไม่อันตรายค่ะ มี CCTV ส่องถึงจากบริเวณโถงลิฟท์ด้วย ระบบรักษาความปลอดภัยถือดีค่ะ มีรปภ. 24 ชม. CCTV ติดที่โถงลิฟท์ทุกชั้น เข้า-ออกโครงการด้วยระบบ Key Card รวมถึงพื้นที่ส่วนกลาง และห้องฟิตเนสสระว่ายน้ำด้วย ประตูเข้าห้องเป็นระบบ Digital Door Lock
:::: คะแนน ::::
| ทำเลที่ตั้งโครงการ | 8.4 | ทำเลดี อยู่ในตัวเมือง ไม่ไกลจากปากซอยรัตนาธิเบศร์ 3 และเรวดี14 สอดคล้องกับการขยายของเมืองในอนาคต |
| การเดินทางโดยรถยนต์ส่วนตัว | 8 | สะดวกสบายด้วยถนนเส้นหลักหลายสาย แต่อาจรถติดสักหน่อย |
| การเดินทางโดยรถสาธารณะ | 9 | ใกล้รถไฟฟ้าสายสีม่วง สถานีศูนย์ราชการนนทบุรีซึ่งเป็นจุด Intechange สายสีชมพูในอนาคต ปากซอยทั้งสองฝั่งมีวินมอเตอร์ไซค์ และมีรถตู้ รถเมล์วิ่งผ่านเส้นรัตนาธิเบศร์ตลอด |
| บ้านและวัสดุ | 8.9 | โครงการขายแบบ Fully Furnished ตกแต่งพร้อมอยู่ที่ได้อุปกรณ์ภายในค่อนข้างครบครันค่ะ เฟอร์นิเจอร์ครบ มีแอร์ให้ 2 ตัว สุขภัณฑ์ American Standard แต่ไม่มีฟูกและผ้าม่านให้เท่านั้น |
| สิ่งอำนวยความสะดวก | 7.5 | ถือเป็นคอนโด Low Rise ที่สิ่งอำนวยความสะดวกครบครันและบรรยากาศดี Take View ชั้นสูงๆของอาคาร |
| ความคุ้มค่ากับราคา | 8.4 | โครงการเหมาะสำหรับผู้ต้องการหาที่อยู่อาศัย, ทำงาน หรือลงทุนในโซนรถไฟฟ้าสายสีม่วง เส้นรัตนาธิเบศร์ เดินทางด้วยรถสาธารณะเป็นหลัก |
| คะแนนรวมเฉลี่ย | 8.36 | 0 |
:::: สอบถามรายละเอียดเพิ่มเติมได้ที่ ::::
สำนักงานขาย : 02-526-8181-2
WEBSITE : http://viocondo.com/KhaeRai2/index.php
หากท่านเห็นว่ารีวิวนี้มีประโยชน์ โปรดกด Like เพื่อเป็นกำลังใจให้ทีมงาน ขอบคุณค่ะ
หากท่านมีความคิดเห็นหรือข้อมูลเพิ่มเติมเกี่ยวกับตัวโครงการ สามารถ Comment ได้ที่ด้านล่างของรีวิวค่ะ