
EP.1222 รีวิว คอนโด HYDE สุขุมวิท 11 คอนโดพร้อมอยู่ ใกล้ BTS นานา 450 เมตร
สวัสดีผู้อ่าน Homenayoo ที่รักทุกคนค่ะ วันนี้เราจะพาไปอัพเดตตึกเสร็จโครงการ HYDE สุขุมวิท 11 จาก Grande Asset Hotels and Property Company Limited โครงการมีที่ตั้งอยู่ในซอยสุขุมวิท 11 ในซอยมีร้านค้าร้านอาหารมากมายและไม่ไกลจากสถานีรถไฟฟ้า BTS สถานีนานา ทำให้สะดวกในการเดินทางมากยิ่งขึ้นค่ะ ความอุดมสมบูรณ์โดยรอบสูง ไม่ไกลจากห้างใหญ่และแหล่งความสะดวกอื่นๆ เช่น Terminal 21, Villa Market, EmQuatier, Emporium เป็นต้น
HYDE สุขุมวิท 11 มีทั้งหมด 2 อาคาร ประกอบไปด้วย คอนโด High Rise 39 ชั้น 1 อาคาร ห้องพักจำนวน 478 ยูนิต โดยเป็นชั้นพักอาศัย 1 อาคาร และ อีกอาคารจะเป็นร้านค้า และที่จอดรถแบบ Automatic Parking + ชั้นพักอาศัย 2 ชั้น สูง 9 ชั้นค่ะ โครงการมีห้องให้เลือก 6 แบบคือแบบ Studio ขนาด 27.00 – 28.00 ตร.ม., 1-3 Bedrooms ขนาด 33.00 – 88.00 ตร.ม., Duplex ขนาด 60.00 ตร.ม. และ Duplex Penthouse ขนาด 132.00 – 160.00 ตร.ม. ราคาเริ่มต้นอยู่ที่ 5.9 ล้านบาท (กันยายน พ.ศ.2561)
สิ่งอำนวยความสะดวกในโครงการครบครับ อาทิ Double Volume Lobby + WIFI Internet, สระว่ายน้ำ ระบบเกลือแยกสระเด็ก (ทั้งในร่ม-กลางแจ้ง พร้อมจากุชชี), Sauna + Steam, ฟิตเนส, ห้องอเนกประสงค์, ห้องสมุด, Game Room, Golf Simulation Room, Ultra Space Theatre Room, Kid’s Room, Meeting Room, สวนหย่อม, รปภ. ตลอด 24 ชั่วโมง, กล้องวงจรปิดรอบโครงการ, ลิฟต์ล็อคชั้น โครงการสร้างเสร็จพร้อมอยู่ (พ.ศ.2561)
วันนี้เราจะพาท่านผู้อ่านไปเดินสำรวจสถานที่ วิเคราะห์ทำเล และดูห้องตัวอย่างกันค่ะ ว่าโครงการนี้เป็นอย่างไร : )
ลงทะเบียนเพื่อรับสิทธิพิเศษ คลิก : www.hyde11.com

| ชื่อโครงการ | ไฮด์ สุขุมวิท 11 / HYDE SUKHUMVIT 11 |
| เจ้าของโครงการ | แกรนด์ แอสเสท โฮเทลส์ แอนด์ พรอพเพอร์ตี้ / Grande Asset Hotels and Property Company Limited |
| ลักษณะห้องและขนาดห้อง |
|
| เนื้อที่ทั้งหมด | 2 – 1 – 58 ไร่ |
| จำนวนตึก |
|
| จำนวนชั้น |
|
| จำนวนห้อง | 478 ยูนิต (อาคาร A : 453 ยูนิต อาคาร B : 25 ยูนิต) |
| ที่จอดรถทั้งหมด | ประมาณ 276 คัน (คิดเป็น 57% ไม่รวมจอดซ้อนคัน) |
| โซน | สุขุมวิท, นานา, อโศก |
| ขนส่งสาธารณะ |
|
| รถโดยสารที่ผ่าน | n/a |
| ที่ตั้ง | ซอยสุขุมวิท11 ถนนสุขุมวิท แขวงคลองเตยเหนือ เขตวัฒนากรุงเทพมหานคร |
| กำหนดการ | เริ่มก่อสร้าง 2558 |
| ปีที่สร้างเสร็จ | สร้างเสร็จพร้อมอยู่ |
| ราคา | เริ่มต้น 5.9 ล้านบาท |
| ราคาเฉลี่ยต่อ ตร.ม. | 180,000 – 200,000 บาท/ตร.ม. |
| สถานที่สำคัญใกล้เคียง |
|
| สิ่งอำนวยความสะดวก |
|
| จุดเด่นโครงการ | หรูหราใจกลางเมือง เพียบพร้อมไปด้วยความสะดวกสบาย อยู่ใกล้รถไฟฟ้า BTS ถึง 2 สถานี(นานา / อโศก) อยู่ใกล้รถไฟฟ้าใต้ดิน MRT สุขุมวิท และอยู่ท่ามกลางศูนย์การค้าและแหล่งธุรกิจที่สำคัญ |
คอนโด BTS นานา 2021-2022 / คอนโดติดรถไฟฟ้า BTS นานา
ซอยนานา-ถนนเพชรบุรี
ซอยสุขุมวิท 5 และซอยสุขุมวิท 7
ซอยสุขุมวิท 8
ซอยสุขุมวิท 11
ซอยสุขุมวิท 10 (ใกล้ BTS นานา และ BTS อโศก)
ซอยสุขุมวิท 13
ซอยสุขุมวิท 15
ที่ตั้งโครงการ
ซอยสุขุมวิท 11 ถนนสุขุมวิท แขวงคลองเตยเหนือ เขตวัฒนา กรุงเทพมหานคร
พิกัด google map: 13°44’36.5″N 100°33’23.5″E
แผนที่จากทางโครงการค่ะ

โครงการ Hyde สุขุมวิท 11 ตั้งอยู่ในซอยสุขุมวิท 11 สภาพแวดล้อมในซอยจะมีโรงแรม ร้านสะดวกซื้อ, ร้านอาหารและบาร์อยู่มากมาย บรรยากาศคึกคักตลอดทั้งวัน มีชาวต่างชาติอยู่เยอะ เพราะฉะนั้นถ้าจะซื้อไว้เพื่อปล่อยเช่าก็เป็นตัวเลือกที่น่าสนใจอีกหนึ่งโครงการค่ะ
การเดินทางด้วยรถยนต์ส่วนตัว เป็นทำเลใจกลางเมือง เพราะฉะนั้นการเดินทางย่อมสะดวกสบายแน่นอนค่ะ แต่ก็ต้องแลกมาด้วยปริมาณรถที่ค่อนข้างเยอะตลอดวันด้วยนะ ยิ่งช่วงเวลาเร่งด่วนรถจะติดช่วงแยกอโศก เพราะว่าจากแยกอโศกนั้นไปยังปทุมวัน ,สุขุมวิทช่วงปลาย หรือจะไปทางพระราม 9 ก็ได้ จึงทำให้มีรถมาใช้เส้นนี้กันเยอะจึงอาจจะต้องเลี่ยงไปใช้รถสาธารณะกันบ้าง ซึ่งจะพูดถึงในหัวข้อถัดไปนะ
สำหรับคนใช้รถตัวซอยที่ตั้งโครงการจะเชื่อมกับถนนเส้นหลักอย่างถนนสุขุมวิท ซึ่งเป็นถนนเส้นหลักที่เชื่อมต่อกับถนนหลายสาย ทำให้ไปได้หลายเส้นทางค่ะ นอกจากนั้นตัวซอยเองยังสามารถใช้ลัดเลาะไปตามซอยข้างเคียงได้ อย่างสุขุมวิท 13 ซึ่งสามารถวิ่งลัดไปยังถนนอโศกมนตรีโดยไม่ต้องผ่านแยกอโศกค่ะ และอีกซอยที่สามารถเชื่อมถึงกันได้คือกับซอยสุขุมวิท 3 หรือซอยนานา ซึ่งเป็นซอยที่ติดกับถนนเพชรบุรีโดยตรง ดังนั้นเส้นนี้จึงถือว่าเป็นทางที่คนมักใช้สอยกันเยอะค่ะ เพราะฉะนั้นก่อนจะเดินทางก็ต้องวางแผนหาทางหนีทีไล่กันดีๆ ซึ่งรอบๆโครงการก็จะมีทางด่วนให้เลือกใช้หลายจุดตามความสะดวกค่ะ
สำหรับจุดขึ้นทางด่วนที่ใกล้โครงการที่สุด จะเป็นจุดขึ้นทางด่วนศรีรัชฝั่งมุ่งหน้าดอนเมือง มีระยะห่างจากโครงการประมาณ 1.6 กม. ใช้เวลาขับรถไปประมาณ 8 – 15 นาที โดยสามารถใช้ทางลัดเข้าซอยนานาเพื่อไปขึ้นทางด่วนได้ แต่ขาลงทางด่วนจะต้องวิ่งเข้าทางซอยอื่นเพราะนานาเป็นวันเวย์ วิ่งสวนทางเดิมไม่ได้ค่ะ
และจุดขึ้นทางด่วนศรีรัชฝั่งมุ่งหน้าอนุสาวรีย์ชัยสมรภูมิ จะอยู่ห่างจากโครงการประมาณ 4 กม. ใช้เวลาเดินทางประมาณ 14 – 20 นาที
การเดินทางด้วยรถสาธารณะ อย่างที่บอกไปว่าปริมาณรถจะหนาในแน่นมากในบางช่วงเวลา จึงต้องหาทางหนีทีไล่ด้วยรถสาธารณะ ซึ่งจากโครงการเดินทางได้สะดวกมากค่ะ เราจะเดินจากตัวโครงการไปถึง BTS นานา แค่ประมาณ 450 เมตร เท่านั้น หรือถ้ารีบมากๆ ก็มีรถตุ๊กๆ, พี่วิน, Taxi วิ่งผ่านตลอด และคิวพี่วินก็อยู่ไม่ไกลจากโครงการด้วย นั่งไป BTS ได้เลย สะดวกรวดเร็วค่ะ หรือขาเข้ามายังตัวโครงการ หน้าปากซอยก็มีคิวพี่วินใหญ่ๆอยู่ นั่งมาตัวโครงการได้สะดวกค่ะ จาก BTS นานา นั่งไปสถานีเดียวก็ถึง BTS อโศก ต่อใต้ดิน MRT สุขุมวิทได้ค่ะ

ความอุดมสมบูรณ์รอบโครงการสูงมาก หาของกินของใช้ง่ายหายห่วงเลยค่ะ ในซอยเองจะมีร้านค้า ร้านอาหาร ร้านสะดวกซื้อมากมายค่ะ ใกล้สุดจะเป็น Villa Market ห่างจากโครงการประมาณ 250 ม. ในซอยจะมีร้านอาหารทั้งไทยและเทศ เพราะย่านนี้ถือว่าเป็นย่านต่างชาติ กลางคืนก็คึกคักเพราะมีบาร์ ผับอยู่ในซอยนี้หลายร้านค่ะ
ส่วนความอุดมสมบูรณ์ในวงกว้างของโครงการนี้ก็อุดมสมบูรณ์สมกับทำเลกลางเมือง โดยรอบรายล้อมไปด้วยห้างใหญ่ ห้างหรูหลายแห่ง ที่ใกล้โครงการที่สุดคือ Teminal 21 สามารถนั่ง BtS มา 1 สถานี หรือจะนั่งพี่วินมาเลยก็ได้ ก็จะถึงแหล่ง Shop ที่มีทั้งร้านในส่วนพลาซ่า และแบรนด์ต่างๆ แม้แต่ร้านอาหารก็มีตั้งแต่ราคาถูกจนถึงร้านขึ้นห้าง โดยเฉพาะ Food Court ของที่นี่ก็ขึ้นชื่อเรื่องความถูกและอร่อย
ขยับออกไปหน่อยก็เป็นทางฝั่งทองหล่อ พร้อมพงษ์ มีห้างใหญ่และหรูในเครือ Tha Mall คือ ห้างตระกูล Em ทั้งหลาย (Emquatier, Emporium และ Emsphere ในอนาคต) หรือมาทางฝั่งสยามก็ไม่ไกล นั่งรถไฟฟ้า 3 – 4 สถานีก็ถึงแล้ว มี Central World, Siam Discovery, Paragon, Siam Square เป็นต้น
ส่วนสถานศึกษาใกล้ๆโครงการก็มีหลายแห่ง เช่น วิทยาลัยนานาชาติ The Regent’s (RIC), ร.ร.บางกอกทวิวิทย์, ร.ร.นานาชาติ NIS, ร.ร.นานาชาติ Anglo Campus 31, ร.ร.นานาชาติ Australian-ISB, ร.ร.นานาชาติ MISB, ร.ร.นานาชาติ ASB, รร. เซนต์ดอมินิก, รร.วัฒนาวิทยาลัย, ร.ร.สาธิต มศว.ประสานมิตร และ มศว.ประสานมิตร
และโรงพยาบาลชั้นนำใกล้โครงการจะมี ทั้ง ร.พ.พระราม 9, ร.พ.ปิยะเวท, รพ.กรุงเทพ, รพ.บำรุงราษฎร์, รพ.สมิติเวช สุขุมวิท, รพ.คามิลเลียน, รพ.จักษุ รัตนิน และ รพ.ผิวหนังอโศก อยู่ในระยะที่สามารถไปถึงได้รวดเร็วค่ะ
การเดินทาง
การเดินทางในวันนี้ เราจะเริ่มต้นกันบนถนนพระราม 1 ฝั่งมุ่งหน้าถนนสุขุมวิท ขับตรงไปจนถึงแยกตัดถนนวิทยุแล้วเลี้ยวซ้าย(เส้นทางบังคับเลี้ยว) เข้าถนนวิทยุ ขับตรงไปจนเชื่อมถนนเพชรบุรี แล้วเลี้ยวขวาขับตรงไปเรื่อยๆจนถึงซอยสุขุมวิท 3 หรือซอยนานาเหนือแล้วเลี้ยวขวาเข้าซอยเพื่อขับลัดตรงไปจนถึงถนนสุขุมวิท แล้วเลี้ยวซ้ายเข้าซอยสุขุมวิท 11 ขับตรงไปประมาณ 350 เมตร จะถึงโครงการ Hyde สุขุมวิท 11 ทางซ้ายมือ (สำนักงานขายอยู่ทางขวามือ ตรงข้ามที่ตั้งโครงการค่ะ)
สรุปการเดินทาง ถนนพระราม 1 > ถนนวิทยุ > ถนนเพชรบุรี > ซอยสุขุมวิท 3 (นานาเหนือ) > ถนนสุขุมวิท > ซอยสุขุมวิท 11 > โครงการ Hyde สุขุมวิท 11
เริ่มการเดินทางกันบนถนนพระราม 1 ฝั่งมุ่งหน้าถนนสุขุมวิท ผ่าน Central Embassy ทางซ้ายมือ
ขับตรงต่อมาจะถึงแยกตัดถนนวิทยุ ที่เป็นจุดบังคับเลี้ยว เราเลี้ยวซ้ายเข้าถนนวิทยุไปค่ะ
เข้ามาบนถนนวิทยุแล้วเราขับตรงต่อไปเรื่อยๆ
ขับมาจนสุดทางถนนวิทยุจะเชื่อมกับถนนเพชรบุรี ให้เราเลี้ยวขวาออกถนนเพชรบุรีฝั่งมุ่งหน้าพัฒนาการ
ออกมาบนถนนเพชรบุรีแล้วเราขับตรงต่อไปเรื่อยๆ ถึงแยกมิตรสัมพันธ์ แล้วเลี้ยวขวาเข้าซอยสุขุมวิท 3 หรือซอยนานาเหนือ
เข้าซอยสุขุมวิท 3 มาแล้วเราขับตรงไปเรื่อยๆ
ภายในซอยนี้จะมีความอุดมสมบูรณ์สูง เราสามารถจอดแวะทานอาหารสไตล์อินเดียได้ มีร้านให้เลือกหลากหลาย
ขับตรงมาจนถึงถนนสุขุมวิท เราเลี้ยวซ้าย
ออกมาบนถนนสุขุมวิทแล้วเราขับตรงกันไปเรื่อยๆ
ผ่าน BTS นานา
จาก BTS สถานีนานาเพียง 100 ม.เดินตรงมาจะเจอกับซอยสุขุมวิท 11 หรือซอยนานาค่ะ ให้เลี้ยวซ้ายเข้าไปเลย
จากปากซอย เราขับตรงต่อไปประมาณ 350 เมตรจะถึงที่ตั้งโครงการทางซ้ายมือค่ะ ส่วนสำนักงานขายจะอยู่ทางขวามือนะคะ
ใครที่ใช้ BTS แล้วไม่อยากเดินก็สามารถใช้บริการพี่วินได้ อยู่หน้าปากซอยเลยค่ะ
ค่าโดยสารค่ะ
ในซอยมีร้านค้า ร้านอาหาร อาคารสำนักงานมากมาย มีฟุตบาทให้เดินบางช่วงค่ะ
ในซอยมีร้านค้า ร้านอาหารทั้งไทยและเทศให้เลือกมากมายค่ะ ด้านซ้ายมือที่เห็นก็คือ Villa Market ค่ะ
ตรงไปเรื่อยๆจะผ่านโรงแรง Ambassador ด้านหน้าโรงแรมจะมีร้านอาหาร ร้านกาแฟ ผ่านโรงแรมไปก็สามารถเดินลัดไปซอยสุขุวิท 13 ได้ค่ะ
ร้านอาหารหน้าโรงแรมค่ะ
ตรงไปในซอย จะเห็นว่ามีชาวต่างชาติมายมายให้เห็นเพราะตรงนี้ถือว่าเป็นแหล่งต่างชาติเลยค่ะ
ช่วงใกล้ถึงโครงการจะผ่านโรงแรม Mercure Bangkok ทางขวามือ ส่วนทางซ้ายมือจะเป็นอาคารพาณิชย์ สูง 3 – 4 ชั้นค่ะ
ขับตรงต่อมาอีกนิดก็จะถึงสำนักงานขายทางขวามือแล้วค่ะ ส่วนที่ตึกเสร็จของโครงการจะอยู่ทางซ้ายมือนะคะ
ด้านหน้าสำนักงานขายจะมีทางคนเดินเข้าและทางเข้ารถยนต์แยก 2 ทาง มีที่จอดรถรองรับ 4 – 6 คัน
เข้ามาด้านในจะเจออาคารสำนักงานขายสีทอง
ด้านในสำนักงานขายตกแต่งด้วยสีทองดูหรูหรา
ฝั่งซ้ายและขวาแบ่งเป็นที่นั่งรับรองลูกค้าที่เข้ามาชมโครงการ
ด้านในพื้นที่ส่วนรับรอง และโมเดลตัวอาคารค่ะ

แยกและถนนสำคัญใกล้เคียง

สถานที่สำคัญ
ตัวโครงการ
โครงการ Hyde สุขุมวิท 11 เป็นโครงการคอนโดที่มีทั้งหมด 2 อาคารด้วยกัน คืออาคาร A และ B โดยอาคาร A จะเป็นพื้นที่ส่วนพักอาศัยทั้งหมด ส่วนอาคาร B เป็นอาคารจอดรถ+ห้องพักและ Retail Shop ความสูง 8 ชั้น เป็นอาคารที่อยู่ด้านหน้าติดกับซอยสุขุมวิท 11 จะเป็นอาคารที่มีร้านค้า 2 ยูนิต และเป็นอาคารจอดรถที่ชั้น 2 – 7 ซึ่งจะเป็นที่จอดรถระบบ Automatic + ชั้นใต้ดิน 3 ชั้น เป็นลานจดอรถแบบปกติ ส่วนชั้นบนสุด 2 ชั้นจะเป็นส่วนพักอาศัยค่ะ
สำหรับอาคาร A เป็นอาคารสูง 39 ชั้น อยู่ถัดเข้ามาจากอาคาร B โดยเริ่มเป็นชั้นพักอาศัยตั้งแต่ชั้น 2 ขึ้นไป ดังนั้นชั้นล่างๆตั้งแต่ชั้น 2 – 8 ด้านที่ติดกับอาคาร B จะโดนบังวิวแต่จะได้วิวสวนส่วนกลางที่อยู่ระหว่างสองอาคารแทน

มาเริ่มดูรายละเอียดตัวอาคารกันต่อ โดยเริ่มที่ Master Plan อย่างที่บอกว่าโครงการนี้มี 2 อาคาร คืออาคาร A และ B โดยอาคาร A จะอยู่ด้านใน เป็นพื้นที่ส่วนพักอาศัยทั้งหมด และอาคาร B อยู่ด้านหน้า ติดกับถนน ทั้งสองอาคารแยกส่วนกันชัดเจนโดยจะมีสวนส่วนกลางกั้นระหว่างอาคาร ช่วยปรับอารมณ์จากความวุ่นวายบนถนนด้านหน้า
สำหรับอาคาร B เป็นอาคาร 8 ชั้นอยู่ติดกับถนนสุขุมวิท 11 จึงจะเป็นอาคารที่มียูนิตร้านค้า 2 ยูนิตอยู่ด้านหน้าติดถนน และส่วนพักอาศัยอยู่ชั้นบนสุดแต่ตอนนี้ส่วนพักอาศัยของอาคาร B ยังไม่เปิดขาย ดังนั้นวันนี้ทีมงานจะขอพูดถึงอาคาร A เป็นหลักนะคะ
ตัวอาคารตอนนี้สร้างเสร็จเรียบร้อยแล้วนะคะ มองจากด้านหน้าโครงการจะเห็นอาคาร B ด้านในเป็นอาคาร A
รูปของจริงจะเห็นภาพไม่ค่อยชัด จริงๆตัวอาคารเค้าออกแบบมาสวยเลยค่ะ มาดูโมเดลจำลองโครงการแทนนะคะ ด้านนี้เป็นด้านหน้าอาคารส่วนที่ติดกับซอยสุขุมวิท 11 ค่ะ
อาคารด้านที่ติดกับ The Prime 11 ห้องด้านนี้จะโดนบังวิวนะคะ
ส่วนด้านหลังอาคารที่จะหันไปทาง ถนนราชดำริค่ะ
ด้านอาคารที่หันไปทางถนนสุขุมวิทค่ะ ห้องด้านชั้นสูงๆจะไม่โดนบังวิวค่ะ
ส่วนของอาคาร B ที่อยู่ด้านหน้าและอยู่ติดกับถนนสุขุมวิท 11 ค่ะ ด้านล่างเป็นยูนิตร้านค้า ชั้น 2-7 เป็นชั้นจอดรถ ส่วนชั้น 8 เป็นชั้นพักอาศัยค่ะ โดยดาดฟ้าจะมีสวนส่วนกลางให้ด้วย
ถนนทางเข้าโครงการปูด้วยคอนกรีตสแตมป์ ด้านหลังป้ายโครงการเป็นป้อมรปภ. คอยประจำการรักษาความปลอดภัย 24 ชม.
ฝั่งซ้ายมือเป็นส่วนของอาคาร B เดี๋ยวเราเข้าไปดูด้านในกันซักหน่อยนะคะ
เข้ามาด้านในจะเจอส่วนโถงทางเดินเชื่อมไปยังห้องน้ำรับรอง ส่วนขวามือจะเป็นห้อง Lobby ของยูนิตพักอาศัยในอาคารนี้
ภายใน Lobby ตกแต่งด้วยโทนสีขาวและทอง ดูหรูหรา มีลิฟต์โดยสาร 2 ตัว ด้านข้างลิฟต์เป็นส่วนของ Mail Box แยกเป็นแต่ละห้อง
ห้องน้ำรับรองในสุดโถงทางเดินแยกชาย – หญิง
ภายในห้องน้ำติดตั้งสุขภัณฑ์มาให้พร้อมใช้งาน
กลับมาที่ทางเข้าหลักของตัวอาคาร ติดกับป้ายชื่อโครงการด้านหน้าจัดเป็นไม้พุ่มเล็กๆให้บรรยากาศตัวโครงการไม่ดูแห้งแล้งจนเกินไป เพราะเป็นโครงการติดถนนที่รถวิ่งผ่านไปมาตลอดค่ะ
ระบบรักษาความปลอดภัยนอกจากพี่ๆรปภ.แล้วก็จะใช้รั้วกั้นไม้กระดก แยกทางเข้า – ออก
สำหรับลูกบ้านเข้าโครงการได้ด้วย Access Card
เข้ามาด้านในโครงการแล้ว จะเจอพื้นที่สวนหย่อมและ Vertical Garden ทางขวามือ ปรับบรรยากาศในโครงการให้ดูร่มรื่นขึ้น
ถนนในโครงการจะตรงเข้าไป ผ่านทางเข้าที่จอดรถทางซ้ายมือ ถัดไปเป็นสวน สุดทางเป็นจุด Drop Off หน้า Lobby
ทางเข้าที่จอดรถแยกลานจอดรถใต้ดินทางซ้าย ส่วน Automatic Parking ทางขวามือจะเป็นจุดรับรถขาออกจากโครงการนะคะ
ติดกับที่จอดรถจะมีทางเดินเชื่อมไปยังจุดจอดรถ Automatic Parking ด้านหลัง ถัดมาจะเป็นทางเดินเชื่อมไปยังบริเวณหน้า Lobby และด้านหลังระแนงสีดำที่เราเห็นจะเป็นสวนหย่อมที่คั่นอยู่ระหว่าง 2 อาคารค่ะ
ภายในสวนหย่อมลงต้นไม้ไว้ให้ร่มรื่น ช่วงบ่ายแก่ๆได้เงาจากอาคาร A ทำให้ในสวนไม่ร้อน ลงมานั่งเล่นได้ค่ะ
ตัวสวนมีเล่นระดับนิดหน่อย โดยการยกระดับขึ้นไปประมาณ 4 ชั้น
พื้นส่วนที่ยกตัวขึ้นมาก็จะจัดเป็นที่นั่งในสวนไว้ให้ 2 ชุด 8 ที่นั่ง
จากสวนนี้จะมีประตูเชื่อมต่อกับ Lobby ด้วย และภายใน Lobby ก็สามารถเทควิวสวนด้านนอกได้ สบายตาค่ะ
มุมจากด้านหลังสวนมองย้อนไปทางอาคาร B
กลับมาที่ถนนหลัก ฝั่งซ็ายมือจะเป็นจุด Drop Off เมื่อส่งผู้โดยสารเสร็จก็วนออกทางขวามือได้เลย
ด้านหน้าพื้นที่ Drop Off เชื่อมต่อกับประตูทางเข้าสู่ส่วน Lobby ซึ่งเป็นประตูกระจก สูงถึงฝ้าเลย ดูดีเชียวค่ะ
ถัดเข้ามาที่ถนนด้านในจะมีรั้วกั้นไม้กระดกอีกจุด สำหรับลูกบ้านที่จะขับรถเข้าไปจอดในช่องจอด Automatic Parking ด้านหลัง
ถนนด้านหลังโครงการตอนนี้เพิ่งสร้างเสร็จอาจจะมีเลอะๆบ้าง แต่เดี๋ยวตอนเก็บงานเสร็จน่าจะเรียบร้อยตามมาตรฐานค่ะ
เข้ามาที่ถนนข้างโครงการอีกฝั่ง เชื่อมตรงไปยังที่จอดรถ Automatic
เข้ามาด้านในที่จอดรถแบบ Automatic มี 2 สล็อต พร้อมรั้วกั้นเพื่อความปลอดภัย
ฝั่งซ้ายมือจะมีจุดแตะคีย์การ์ดและโถงทางเดินที่เชื่อมไปออกถนนอีกฝั่ง ที่สามารถเดินไปด้านหน้า Lobby ได้

เข้ามาที่รายละเอียดชั้น 1 ของอาคาร A ด้านในอาคารส่วนแรกจะเป็น Reception และ Lobby ขนาดใหญ่ ซึ่งตัว Lobby จะเชื่อมไปยังโถงลิฟต์ ที่มีลิฟต์โดยสารใช้ได้ทั้งหมด 5 ตัว คิดเป็น 96 : 1 ก็ถือว่าพอดีๆไม่แออัดมาก (แต่จริงๆลิฟต์ตัวนึงจะเป็นลิฟต์ของแม่บ้านนะ แต่ลูกบ้านก็ใช้ได้เหมือนกัน)และจาก Lobby ก็จะเชื่อมขึ้นไปบนชั้นลอย ที่จะมีส่วนกลางอื่นๆที่สามารถใช้ได้เช่นกันค่ะ
แปลนชั้นลอยบนชั้น 1 เป็นห้องส่วนกลาง จะมีห้องประชุมกับ Kid’s Room สำนักงานนิติบุคคล แต่ตำแหน่งห้องของจริงจะไม่เหมือนในแปลนนะคะ มีการปรับเปลี่ยนนิดหน่อยคือตำแหน่งของห้องนิติในภาพ จะเปลี่ยนเป็น Kid’s Room ส่วนห้อง Kid’s Room ในภาพ ปรับเป็นห้อง Meeting Room และด้านในสุดที่เป็น Meeting Room ปรับเป็นห้องนิติค่ะ
เข้ามาดูบรรยากาศของจริงกันต่อเลยค่ะ บรรยากาศในห้องส่วนแรกจะเจอ Reception ทางขวามือ มีข้อมูลหรือมีพัสดุก็จะมาฝากได้ที่ตรงนี้
ตัว Lobby เป็น Double Volume ฝ้าเพดานสูงนะคะ ทำให้ห้องดูโปร่งกว้างขวางมากๆ
ตัว Lobby จะโล่งๆค่ะ มี Sunken Seat และช่องแสงบานใหญ่รอบๆเลยเวลามานั่งพักคอยหรือนั่งพักผ่อนก็สบายตา และวันไหนแดดแรงๆเค้าก็จะปิดม่านลงมาบังแดดให้ค่ะ
ใครที่จอดรถใน Automatic Parking ก็สามารถรอรับรถได้ที่ Lobby โดยจะมีจอแสดงผลว่ารถเราตอนนี้ลงมาใกล้ถึงรึยังค่ะ
ติดกับจอรับรถจะเป็นส่วนโถงลิฟต์ ใช้กรอบประตูลิฟต์เป็นสีทองเงาวับ
ฝั่งซ้ายมือเป็นลิฟต์โดยสาร 3 ตัว
ฝั่งขวามือ 2 ตัว
ภายในลิฟต์มีกล้อง CCTV 1 ตัว
ปุ่มกดลิฟต์จะมีสูงสุดถึงแค่เลข 12A ถ้าใครจะไปชั้นสูงกว่านี้ก็จะต้องกดเลขเป็นคู่ค่ะ อย่างเวลาเราจะขึ้นไปชั้น 20 ก็ต้องกดเลข 2 กับเลข 0 ช่วงแรกๆอาจจะใช้งานยากนิดนึงเพราะไม่ค่อยชิน แต่ใช้ไปบ่อยๆก็จะเร็วขึ้นค่ะ
วิวจาก Lobby มองออกไปเห็นสวนด้านนอกแบบนี้
ตัว Sunken Seat จะแยกเป็น 2 จุด จัดที่นั่งยาวมาให้ นั่งได้หลายคนเลย
ฝ้าเพดานเหนือพื้นที่นั่งจะเป็นส่วนที่ไม่โดนพื้นชั้นลอยบัง
ขยับเข้ามาด้านในจะมีบันไดขึ้นชั้นลอย และด้านหลังบันไดจะเป็นห้องจดหมายกับห้องน้ำรับรองค่ะ
ห้องจดหมายกั้นแยกไว้เป็นสัดส่วนแบบนี้
ด้านในห้องจดหมายค่ะ ตัวหล่องจดหมายใช้สีทองเข้ากับภาพรวมของโครงการ
เข้ามาด้านในสุดเป็นส่วนห้องน้ำ แยกชาย – หญิง
การตกแต่งภายในห้องน้ำเรียบๆแต่ดูดีแบบนี้ทั้งห้องน้ำชายและหญิงนะคะ
ด้านในห้องน้ำ
กลับมาที่ Lobby เราขึ้นไปดูบนชั้นลอยด้านบนกันต่อ
ขึ้นมาปุ๊ปจะเจอโถงทางเดิน รามกันตกกระจกใสแบบนี้
ส่วนแรกจะเป็นห้อง Kid’s Room
ด้านในห้องมีของเล่นให้เด็กๆประมาณนึง
ขยับมาจะเป็นห้อง Meeting Room
ภายในห้องจัดโต๊ะประชุม 8 ที่นั่งมาให้ สามารถใช้คุยงานเป็นทางการได้ มีความเป็นส่วนตัวพอสมควร

แต่ละชั้นจะมียูนิตพักอาศัยมากที่สุดเพียง 9 ยูนิตเท่านั้น โดยจะเริ่มตั้งแต่ชั้น 2 ขึ้นไปค่ะ และอาคารมีลิฟต์โดยสาร 5 ตัวอยู่ตรงกลางอาคาร ทำให้แต่ละห้องไม่ต้องเดินไกลมากนัก
โถงลิฟต์ในชั้นพักอาศัยจะดูเรียบๆกว่าในชั้น Lobby และส่วนกลาง
บรรยากาศในโถงทางเดิน เป็นห้องพักแบบ Single Corridor
ชั้น 33 เป็นชั้นพักอาศัยและมีพื้นที่ของสวนส่วนกลางค่ะ
ชั้น 35 เป็นชั้นพักอาศัยและมีพื้นที่ของสวนส่วนกลางค่ะ
ชั้น 36 เป็นชั้นพักอาศัยและมีพื้นที่ของสวนส่วนกลางค่ะ
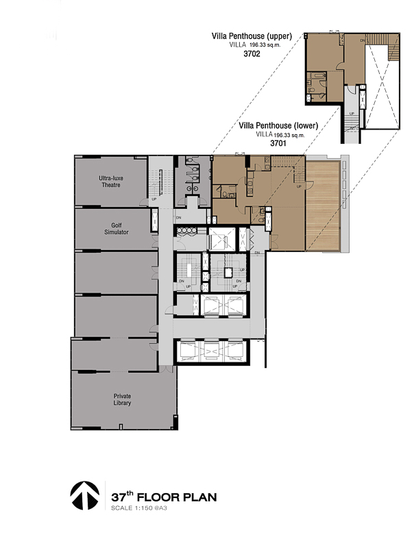
ชั้น 37 เป็นชั้นพักอาศัยจำนวน 1 ยูนิตและมีพื้นที่ส่วนกลางที่จะเป็นห้องสมุด ห้องดูหนังและห้องสันทนาการต่างๆค่ะ
โถงลิฟต์ในชั้นส่วนกลางจะตกแต่งมาเต็มที่กว่าที่ชั้นพักอาศัยประมาณนี้ โดยพื้นและผนังจะปูกระเบื้องลายหินแบบเดียวกันทำให้ดูต่อเนื่อง 
จากโถงลิฟต์จะเชื่อมกับส่วนกลางทั้งหมด
มีช่องแสงใหญ่ติดกับโถงลิฟต์ 1 บาน โดยโทางทางเดินทางฝั่งนี้จะเชื่อมไปยังยูนิตพักอาศัย Villa Penthouse ในชั้นนี้นะคะ
ยูนิตพักอาศัยในชั้นนี้จะแยกออกมาเป็นสัดส่วนเลยค่ะ คือถ้าใครไม่ได้อยู่ยูนิตนี้ก็ไม่มีความจำเป็นจะต้องมาเดินผ่านเลย
เดินมาทางฝั่งห้อง Facilities ต่างๆ ห้องแรกติดับโถงลิฟต์เป็นห้องอเนกประสงค์
ซ้ายมือเป็นห้องสมุด
และทางขวามือเป็นห้อง Golf Simulator และ Ultra Space Theatre
เข้ามาดูในห้องอเนกประสงค์กันก่อนค่ะ พื้นที่ในห้องจะเป็นห้องโถงกว้างๆ ห้องนี้นั่งทานอาหารได้ ผนังด้านนอกเป็นกระจก Full Height รับแสงธรรมชาติเข้ามาเต็มๆ ห้องสว่าง และได้วิวเมือง
ฝั่งขวามือจะมีครัวและส่วนบาร์ให้สามารถมาใช้งานได้
ฝั่งซ้ายมือมีโต๊ะทานอาหารตัวยาวมาให้ เวลาใครมีเพื่อนๆมาปาร์ตี้ก็สามารถจองใช้ห้องได้ค่ะ
ห้องนี้จะมีผนังส่วนนึงเป็นฉากกั้นกระจกที่สามารถเปิด – ปิด เชื่อมกับห้องสมุดที่อยู่ติดกันได้
เรามาดูในส่วนของห้องสมุดกันต่อ
ภายในห้องสมุดนี้สามารถใช้เป็นห้อง Co – Working Space หรือจะมานั่งอ่างหนังสือสงบๆ ชมวิวเมืองรอบๆไปด้วยก็ได้ โดยทางโครงการเค้าจัดที่นั่งรับรองมาให้หลายชุดเลยค่ะ มีกั้นแบ่งเป็น 3 โซน ส่วนแรกเป็นโต๊ะยาว นั่งคุยงานได้
ตรงกลางเป็นชุดโซฟานั่งพักผ่อนสบายๆ
ตรงนี้จะเป็นจุดที่เปิดเชื่อมกับห้องอเนกประสงค์ได้
และอีกส่วนจะเป็นมุมนั่งชมวิวเมือง
ถัดมาเป็นห้อง Golf Simulator ห้องจะมืดๆนิดนึง มีอุปกรณ์มาให้ 1 ชุด
ข้างๆมีชุดที่นั่งรับรองไว้นั่งพักเหนื่อย หรือให้เพื่อนๆมารอตีแข่งกัน
ถัดเป็นเป็นห้อง Game Room บรรยากาศชิลๆ จัดโต๊ะพูลมาให้ 1 โต๊ะ และชุดที่นั่งรับรอง 2 ชุด 6 ที่นั่ง
ภายในห้องตกแต่งด้วยชั้นวางของ
ถัดจากห้องเกมส์มาจะเป็นโถงทางเดินเชื่อมไปยังส่วนห้องน้ำ
ห้องน้ำแยกชาย – หญิง เข้ามุมหลบจากโถงทางเดินมาแบบนี้
ภายในห้องน้ำหญิง จัดอ่างล้างมือ 1 จุด
ห้องน้ำแบบนี้ 2 ห้อง
ภายในห้องน้ำชาย ตกแต่งมาเหมือนๆกัน มีอ่างล้างมือ 1 จุด และ ห้องน้ำ 1 ห้อง
เพิ่มเติมเป็นโถปัสสาวะชาย 2 โถ
และห้องส่วนกลางสุดท้ายในชั้นนี้ จะอยู่ติดบันไดค่ะ
เป็นห้อง Ultra Space Theatre ส่วนตัวชอบห้องนี้ที่สุดเลยค่ะ จัดห้องดูหนังมาแบบน่าใช้ มีเก้าอี้ดูหนังหลายตัวด้วย ชวนเพื่อนๆมาจอยกันได้หลายคนเลย
หน้าจอดูหนังก็ใหญ่พอสมควร
ชั้น 38 จะเป็นชั้น Facilities ทั้งชั้นค่ะ โดยชั้นนี้จะเป็นสระว่ายน้ำและห้องน้ำ สระจะเป็นสระยาวสี่เหลี่ยมผืนผ้า เหมาะสำหรับว่ายออกกำลังกาย ข้างสระก็จะมี Pool Deck และ Day Bed ให้นั่งเล่น นักพักผ่อนริมสระ ในห้องน้ำก็จะมีซาวน่า และห้องอบไอน้ำให้ค่ะ
สระว่ายน้ำของโครงการนี้จะมีทั้งส่วน Outdoor และ Semi Outdoor นะคะ เป็นสระระบบเกลือ แยกสระเด็กและมีส่วนจากุชชี่ด้วย ขนาดสระประมาณ 22.5 x 5.5 เมตร ลึก 1.2 เมตร โดยส่วน Outdoor ก็จะไม่ได้ร้อนเปรี้ยงซะทีเดียวเพราะมักจะมีเงาของตัวอาคารหรือตัว Facade เป็นเส้นๆที่เค้าใช้ตกแต่งพาดมาเป็นช่วงๆ
ชั้นบนเหนือสระว่ายน้ำเป็นห้องฟิตเนส
ข้างสระมี Pool Terrace จัด Sun Bed มาให้ 8 ตัว
พื้นที่สระส่วน Semi Outdoor จะเป็นสระจากุชชี่และสระเด็ก
พื้นที่ส่วนจากุชชี่มีที่นั่งไล่ระดับแบบนี้ ด้านหลังเป็นท่อพ่นน้ำนวดออกมา
สระเด็กจะอยู่ด้านในสุดเลย มีที่นั่งให้ผู้ปกครองคอยดูแลเด็กๆด้วย
ภาพรวมสระจากชั้นบน ตรงบันไดเดินขึ้นไปชั้นฟิตเนสนะคะ
ติดกับบันไดทางขึ้นชั้นฟิตเนส จะมีมุมห้องน้ำ แยกทางเข้าให้เป็นสัดส่วน
ห้องน้ำแยกชาย – หญิง
ภายในห้องน้ำหญิง ขนาดห้องน้ำที่ชั้นนี้ค่อนข้างใหญ่เลยค่ะ ไว้รองรับคนที่มาใช้งานสระว่ายน้ำได้อย่างเพียงพอ
มีล็อคเกอร์ขนาดใหญ่ให้บริการ 8 ช่อง
ด้านในมีห้องน้ำและห้องอาบน้ำอย่างละ 2 ห้อง ห้องซาวน่าและห้องอบไอน้ำ อย่างละ 1 ห้อง
ภายในห้องอบไอน้ำ
ห้องซาวน่า
มาดูด้านในห้องน้ำชายกันต่อค่ะ จะตกแต่งมาเหมือนๆกับห้องน้ำหญิง
มีล็อคเกอร์ 12 ช่อง
ด้านในเป็นห้องน้ำ 2 ห้อง ห้องอาบน้ำ 2 ห้อง และห้องซาวน่ากับสตรีมอย่างละ 1 ห้อง
มีโถปัสสาวะชายด้วย 2 โถ
ชั้น 39 จะมีส่วน Facilities คือฟิตเนส ค่ะห้องนี้จะได้วิวสระว่ายน้ำและเป็นห้องที่ได้วิวมุมไกลเนื่องจากอยู่ชั้นบนสุดค่ะ เหมาะสำหรับออกกำลังกายและชมวิวกรุงเทพไปในตัว
ฟิตเนสเค้าให้มาห้องใหญ่เลยค่ะ พวกเครื่องเล่นก็หลากหลายค่อนข้างครบครันเลย
วิวรอบๆห้องก็เป็นกระจกบายเต็ม มองวิวรอบเมืองสบายๆ เวลาออกกำลังกายจะไม่รู้สึกอึดอัด
อุปกรณ์ที่ทางโครงการจัดมาให้มี Multi Press 1 เครื่อง เครื่องนี้ไว้เล่นอกกับไล่นะ
เครื่อง Lat Pulldown & Low Row เครื่องนี้ไว้เล่นกล้ามเนื้อหลังค่ะ
เครื่องนี้คือ Seated Leg Curl บริหารกลามเนื้อขาได้หลายส่วน
เครื่อง Leg Extension ไว้เล่นกล้ามขาด้านบน เป็นกล้ามเนื้อมัดใหญ่ที่สุดของร่างกาย
เครื่อง Pec Fly & Rear Delt บริหารกล้ามเนื้อ อก แขน และไหล่
ลู่วิ่งไฟฟ้าจัดมาให้ 3 ลู่
วิวจากลู่วิ่งมองออกไปเห็นวิวเมืองโล่งๆเลย วิ่งกันไปเพลินๆ
เบาะซิทอัพ 1 เบาะ
เบาะปรับระดับ 1 เบาะ
และเบาะระดับปกติ 1 เบาะ
จักรยานไฟฟ้า 1 เครื่อง
จักรยานไฟฟ้าแบบมีพนักพิง 1 เครื่อง
Eliptical 2 เครื่อง
ดัมเบลคละน้ำหนัก 20 ชิ้น และบอลโยคะด้านหลัง 5 ลูก
เสื่อยางโยคะ 5 ฝืน และเครื่องชั่งน้ำหนัก 1 เครื่อง
แบบห้อง
แบบห้องในโครงการจะมีทั้งหมด 6 แบบ คือ
ห้องตัวอย่าง
ห้องตัวอย่างที่เราจะพาชมกันวันนี้จะมี 2 แบบ นะคะ คือ
ห้องตัวอย่างแบบแรกที่เราจะพามาชมกันเป็นห้อง 1 Bedroom Type 1D พื้นที่ใช้สอย 34.53 ตร.ม. ห้องนี้ขายแบบ Fully Furnished มาพร้อมเฟอร์นิเจอร์แบบลอยตัวและ Built – in และเครื่องปรับอากาศค่ะ
ฟังก์ชั่นภายในห้องส่วนแรกเป็นพื้นที่ครัวเปิด ติดกับครัวเป็นห้องน้ำ ซึ่งสามารถเข้าได้ทั้งจากห้องครัวและห้องนอน
ถัดจากห้องครัวเป็นส่วนห้องนั่งเล่น และพื้นที่ทานอาหารติดกับช่องแสงขนาดใหญ่ และพื้นที่ห้องนอนจะเชื่อมต่ออยู่กับบริเวณห้องนั่งเล่นโดยมีประตูบานเลื่อนกระจกขนาดใหญ่กั้นแบ่งพื้นที่ ส่วนภายในห้องนอนจะแบ่งเป็น Walk – in Closet และประตูทางเข้าห้องน้ำค่ะ
ห้องตัวอย่างแบบแรกที่เราจะพามาชมเป็นห้อง 1 Bedroom ขนาด 34 ตร.ม. ประตูหน้าห้องได้เป็นบานสำเร็จปิดผิวลายไม้ ติดตั้ง Digital Door Lock และตาแมว
Digital Door Lock ยี่ห้อ Kaba
พื้นห้องภายในปูด้วยแกรนิตโต้ลายหินอ่อนขนาด 60×60 ซม.
ในห้องเมื่อเข้ามาด้านซ้ายมือจะมี Intercom ให้ทุกห้องค่ะ ซึ่งสะดวกสำหรับลูกค้าเวลามีคนมาติดต่อก็สามารถ call จากด้านล่างขึ้นมาตรงนี้ได้เลย ผนังห้องจริงที่ได้จะเป็นฉาบเรียบทาสีนะคะ
เข้ามาในห้อง พื้นที่ส่วนแรกจะเป็นครัวเปิด ความสูงฝ้าเพดาน 2.7 เมตร มี Built – in เคาน์เตอร์ครัวตลอดฝั่งขวามือ ส่วนซ้ายมือเป็นห้องน้ำและ Built – in ตู้เก็บของหน้าบานเป็น Hi-Gloss และติดตั้ง Soft Close ทุกบาน
ติดกับประตูทางเข้าจะมีตู้เก็บรองเท้าติดตั้งมาให้
ภาพรวมในพื้นที่ส่วนครัว จะเห็นว่าค่อนข้างเป็นสัดส่วน สามารถกั้นห้องเองเป็นครัวปิดได้เลย
ทางโครงการจะมีครัวพร้อมตู้บน และตู้ล่างให้ ซึ่งแบ่งเป็นช่องเก็บของชัดเจนทำให้สามารถเก็บของได้เยอะ ตรงนี้เครื่องใช้ไฟฟ้าที่ได้จะมีเตาไฟฟ้า ไมโครเวฟ อ่างล้างจาน และเครื่องดูดควัน
เคาน์เตอร์เมื่อวางเตาและอ่างล้างจานแล้วยังเหลือที่สำหรับเตรียมอาหารได้สะดวก ด้านหลังเเคาน์เตอร์จะติดตั้ง Back Splash ให้แบบนี้ ทำให้ง่ายต่อการทำความสะอาดค่ะ
ซิงค์ล้างจานได้เป็นแบบฝังทรงสี่เหลี่ยม ขนาดค่อนข้างใหญ่ และเตาไฟฟ้าได้แบบ 2 หัว ของ Electrolux
ใต้เคาน์เตอร์มีช่องเก็บของและถังขยะ ใต้เตาไฟฟ้าจะมีช่องเก็บจานและช่องเก็บช้อนส้อมให้แบบนี้ค่ะ
ชุดตู้เก็บของด้านบนก็ Built – in มาให้เป็นสีขาวล้วน ด้านในจุของได้เยอะ
ระยะยืนทำครัวกว้างขวาง สามารถยืนทำครัว 2 คนได้สบายๆค่ะ
ฝั่งตรงข้ามเคาน์เตอร์ครัวก็มีตู้เก็บของ และไมโครเวฟ Built – in ให้เรียบร้อย
ติดกับส่วนห้องครัวจะเป็นห้องน้ำค่ะ
พื้นห้องน้ำเป็นแกรนิตโต้แบบเดียวกับพื้นโถงทางเดินด้านนอก
ภายในห้องน้ำจะตกแต่งห้องด้วยโทนสีขาว ครีม พื้นที่อาบน้ำแยกเป็นสัดส่วน
บอกก่อนว่าห้องน้ำห้องนี้จะสามารถเข้า – ออกได้ 2 ฝั่ง คือจากห้องครัว และห้องนอนนะคะ โดยจากในรูป เรายืนอยู่ในห้องอาบน้ำ ประตูทางซ้ายมือเป็นประตูเชื่อมออกไปห้องนอน และทางขวามือออกไปทางห้องครัวค่ะ
อ่างล้างหน้าของ Kohler พื้นที่วางตรงอ่างมีให้วางของได้พอสมควรค่ะ Top อ่างเป็นหินสังเคราะห์สีขาวครีม
ใต้อ่างมีตู้เก็บอุปกรณ์อาบน้ำได้พอสมควร
เหนืออ่างล้างมือเป็นกระจกเงาบานใหญ่ ด้านหลังเป็นตู้เก็บของซ่อนเพิ่มพื้นที่เก็บของกระจุกกระจิกค่ะ
ติดกับอ่างล้างมือเป็นโถสุขภัณฑ์ ยี่ห้อ Kohler ติดตั้งมาพร้อมที่วางกระดาษชำระและสายชำระ
ตัวสายชำระขนาดพอดีมือ หน้าตาโมเดิร์น
ส่วนอาบน้ำจะมีฉากกั้นอาบน้ำให้ มีขอบตรงธรณีประตูขึ้นมาเล็กน้อย ทำให้ส่วนแห้งและเปียกในห้องน้ำแยกกันชัดเจนค่ะ
ภายในห้องอาบน้ำติดตั้งฝักบัวและ Rain shower พร้อมถาดวางสบู่มาให้ ขนาดฝักบัวค่อนข้างใหญ่ค่ะ อาบได้สบายๆเลย ด้านหลังผนังก็มีเจาะช่องให้ใช้วางของได้เพิ่มอีกนิดหน่อย
ขนาดห้องาอบน้ำประมาณ 0.9 x .0.8 พอให้ยืนอาบได้สะดวก
กลับออกมาที่ห้องนั่งเล่น จะเป็นพื้นที่โถงเปิดโล่งเชื่อมกับห้องครัว ลักษณะห้องเป็นแนวลึก ระยะดูทีวีเลยค่อนข้างแคบนิดนึง ไม่เหมาะกับติดตั้งตั้งทีวีจอใหญ่ๆค่ะ
ภาพรวมในส่วนห้องนั่งเล่น จะมีพื้นที่เชื่อมกับห้องนอนด้านหลัง โดยจะมีประตูบานเลื่อนกระจกสามารถปิดกั้นแยกพื้นที่ได้ค่ะ
โซฟาได้เป็นโซฟาผ้า ขนาด 2 ที่นั่ง
ตรงกลางเป็นโต๊ะกลมลายหินอ่อน ตัวนี้ทางโครงการก็แถมมาให้ในชุดเฟอร์นิเจอร์ค่ะ ระยะดูทีวีประมาณ 1.40 เมตร สามารถติดตั้งทีวีขนาดประมาณ 26″ – 32″ ได้ระยะดูทีวีที่พอดีกับสายตาค่ะ
ถัดมาจากพื้นที่ห้องนั่งเล่นจะเป็นมุมนั่งพักผ่อนอีกส่วน โดยชุดเฟอร์นิเจอร์ตรงนี้จะได้โซฟาสีขาวด้านหลัง และโต๊ะกลมตรงกลาง ส่วนเก้าอี้เหลี่ยมทางซ้ายมือเค้าตกแต่งมาให้ดูเฉยๆนะ
โซฟาที่ให้เป็นขนาด 2 ที่นั่ง
จุดเด่นห้องนี้เป็นมุมนั่งเล่นตรงนี้เลยค่ะ เพราะจะมีกระจกเต็มบานทั้ง 2 ฝั่งผนัง และมีบานกระทุ้ง 1 บาน สามารถเปิดระบายอากาศได้ ส่วนด้านบนจะมี Drop ฝ้าติดตั้งรางผ้าม่านมาให้ด้วย
จากพื้นที่มุมนั่งเล่น มองย้อนกลับไปดูภาพรวมภายในห้อง
เราไปดูในส่วนห้องนอนกันต่อ โดยห้องนี้จะมีประตูบานเลื่อนกระจกใสบานใหญ่กั้น สามารถเลื่อนเปิดปิด เพื่อเชื่อมต่อพื้นที่ได้แบบนี้ค่ะ
ภายในส่วนห้องนอนจะมีแยกห้อง Walk – in Closet ทางซ้ายมือ
พื้นที่มุมที่ใช้จัดวางที่นอนมีพื้นที่กว้างพอให้วางเตียงควีนไซส์ ได้เหมาะกับพื้นที่ หรือถ้าอยากขยายเป็นคิงส์ไซส์ก็ยังไหวอยู่ค่ะ แต่อาจจะแน่นๆนิดนึง
จากในห้องตัวอย่างที่ให้เตียงขนาดควีนไซส์มา จะเห็นว่ายังเหลือพื้นที่ข้างเตียงพอให้วางโต๊ะหัวเตียงตัวเล็กๆได้
ส่วนพื้นที่ปลายเตียงจะมีระยะเหลือให้เดินนิดหน่อย แต่ถ้าเราปิดประตูเลื่อนตรงส่วนนี้ก็จะแคบลงประมาณครึ่งนึงค่ะ
ช่องแสงในห้องนอนอจะเป็นหน้าต่างบานฟิกซ์ และบานกระทุ้ง กรอบอลูมิเนียมสีธรรมชาติ
ด้านนอกมีระเบียงซึ่งตรงนี้จะไม่มีอยู่ในแปลน เป็นพื้นที่ ที่ได้เพิ่มขึ้นมาฟรีๆค่ะ แต่ถ้าจะออกไปใช้ต้องเปลี่ยนหน้าต่างตรงนี้ให้สามารถเปิดออกไปใช้ได้ค่ะ
จากห้องนอนเราไปดูในส่วน Walk – in Closet กันต่อ
พื้นที่ห้องส่วน Walk – in Closet มีระยะยืนแต่งตัวค่อนข้างกว้างเลย ส่วนตู้เสื้อผ้าก็จะมี Built – in มาให้ตามภาพ
ติดกับห้อง Walk – in Closet จะเป็นห้องน้ำค่ะ
ซึ่งห้องน้ำห้องนี้ก็เป็นห้องเดียวกันกับที่เราเข้ามาจากห้องครัวนั่นเองค่ะ
ห้องตัวอย่างแบบที่ 2 เป็นห้อง 2 Bedroom Type 2C ขนาด 63.8 ตร.ม. ความสูงฝ้าเพดาน 2.7 เมตร ขายแบบ Fully Fitted ฟังก์ชั่นภายในห้องส่วนแรกเป็นพื้นที่ครัวเปิดและห้องทานอาหาร ถัดเข้าไปเป็นส่วนห้องนั่งเล่นที่สามารถเปิดออกไประเบียงภายนอกได้
ส่วนพื้นที่ห้องนอนและห้องน้ำจะมีโถงเล็กๆแแจกไปยังห้องต่างๆ โดยห้องนอนรองจะอยู่ฝั่งซ้ายมือ และห้องน้ำอยู่ทางขวามือ ซึ่งจะเป็นห้องน้ำที่ใช้ร่วมกันระหว่างห้องนั่งเล่นและห้องนอนรองค่ะ ส่วนห้อง Master Bedroom จะอยู่ด้านใน มีห้องน้ำขนาดใหญ่ในตัว
เปิดประตูเข้ามาในห้องจะเจอพื้นที่โถงโล่งกว้าง
หลังประตูทางเข้ามีตู้เก็บของ Built – in มาให้
ด้านในเดินระบบท่อสำหรับติดตั้งเครื่องซักผ้ามาให้เรียบร้อย ส่วนชั้นวางของด้านบนก็สามารถใช้เก็บอุปกรณ์ซักผ้าหรือพวกผ้าที่ซักแล้วบางส่วน
มีชั้นวางของด้านข้างเพิ่มด้วย
เข้ามาดูฟังก์ชั่นการใช้งานในห้องกันต่อค่ะ พื้นที่ส่วนแรกเป็นห้องทานอาหารและห้องครัว
โดยครัวที่ได้เป็นครัวเปิด Built – in ติดผนังทางฝั่งขวามือ
เคาน์เตอร์ครัวได้ซิงค์ล้างจาน, เตาไฟฟ้า, เครื่องดูดควัน และไมโครเวฟ และตู้ใต้เคาน์เตอร์ + ตู้เหนือเคาน์เตอร์ เป็นบาน Hi – Gloss บานปิด Soft Closed ทั้งหมด
พื้นที่วางเตรียมอาหารบนเคาน์เตอร์จะพอๆกับห้องที่แล้ว แต่จะได้เตาไฟฟ้าขนาดใหญ่ขึ้น เป็น 4 หัวค่ะ
โต๊ะทานอาหารสามารถวางสำหรับ 4 ที่นั่งได้ค่ะ
ระยะที่เหลือทำครัวพอให้ยืนทำครัวได้สะดวก
ติดห้องครัวจะเป็นห้องนั่งเล่น ห้องนั่งเล่นจะติดกับระเบียงของห้องนี้ด้วยนะคะ ดังนั้นส่วนนี้จะสว่างและได้แสงธรรมชาติเข้ามาในห้องค่อนข้างเยอะ
สามารถวางโซฟาขนาดสำหรับ 2 – 3 ที่นั่งได้ หรือจะเพิ่มเป็น 4 ที่นั่งด้วยโซฟาทรง L – Shape แบบห้องตัวอย่างก็พอไหวอยู่ค่ะ แต่ทางเดินก็จะแคบลงนิดหน่อย
ฝั่งตรงข้ามโซฟาเป็นพื้นที่สำหรับวางทีวี สามารถวางชั้นวางสวยๆแต่ขนาดไม่ใหญ่มากได้ หรือจะติดเป็นทีวีติดผนังก็เหมาะค่ะ
ให้ดูระยะที่เหลือระหว่างโซฟากับทีวี ประมาณ 1.6 เมตร เหมาะจะวางทีวีขนาดจอประมาณ 32″ – 42″
ติดกับห้องนั่งเล่นเป็นประตูบานเลื่อนเชื่อมออกไปยังระเบียงภายนอก โดยตัวบานประตูจะเป็นแบบเปิดสลับได้ 2 ด้าน
มือจับแบบเซาะร่อง ส่วนล็อคภายในห้องจะมีล็อคมาตรฐานที่มือจับและตัวล็อคแบบก้นหอย
ระเบียงพื้นที่กว้างใช้งานได้จริงค่ะ พื้นเป็นแกรนิตโต้แบบเดียวกับในห้อง ราวกันตกเป็นกระจกใสทำให้ห้องนี้จะได้วิวภายนอกแบบไม่มีอะไรมาบัง
ขนาดระเบียงจะสามารถวางราวตากผ้า หรือจะปลูกไม้กระถางเพิ่มพื้นที่สีเขียวในห้องก็ได้ค่ะ
มุมจากระเบียงมองย้อนกลับเข้ามาในห้องจะเห็นส่วนห้องนั่งเล่น ต่อเนื่องไปยังห้องทานอาหารและห้องครัว
กลับเข้ามาในห้อง เราไปดูในส่วนของห้องนอนกับห้องน้ำกันต่อ โดยโถงทางเดินเล็กที่เชื่อมไปส่วนห้องนอนจะอยู่ข้างทีวีค่ะ
โถงทางเดินที่แยกออกมาเล็กๆแบบนี้ทำให้พื้นที่ส่วนห้องนอนเหมือนได้แยกฟังก์ชั่นออกมาจากพื้นที่ส่วนรวมด้านนอก ทำให้มีความเป็นส่วนตัวเพิ่มขึ้นอีกหน่อยค่ะ
ห้องแรกที่เราจะเข้าไปดูกัน เป็นห้องนอนรองทางขวามือ
พื้นเป็น Engineering Wood ไม่มีตัวจบประตูให้เดินสะดุด
ภายในห้องนอนรองจะมีจุดเด่นที่ช่องแสงที่สูงจรดฝ้าเลย ทำให้ห้องดูโปร่งโล่งและสว่างด้วยแสงธรรมชาติ
ขนาดเตียงที่เหมาะในห้องนี้จะเป็นเตียงขนาด 3.5 ฟุตนะคะ
อย่างในห้องตัวอย่างที่ทางโครงการลองจัดเตียง 3.5 ฟุตมาให้ดูระยะใช้งานจะยังเหลือระยะให้เดินเข้าไปเปลี่ยนผ้าปูที่นอนได้สะดวก
พื้นที่ฝั่งปลายเตียงสามารถที่จะติดทีวีแบบแขวนผนังได้ มีเดินช่องสัญญาณและเต้าเสียบมาให้เรียบร้อยค่ะ
ฝั่งข้างเตียงทางโครงการจะมี Built – in ตู้เสื้อผ้ามาให้
ตัวตู้เสื้อผ้าเป็นบานเลื่อน ช่วนประหยัดพื้นที่การใช้งาน และได้หน้าบาน Hi – Gloss
ระยะการใช้งาน พอให้ใช้งานได้สะดวก
ห้องนอนทุกห้องจะได้แอร์แบบฝังฝ้าแบบนี้มาด้วยนะคะ
ออกมาจากห้องนอนรอง ฝั่งตรงข้ามจะเป็นส่วนห้องน้ำ ซึ่งเป้นห้องที่แชร์กันระหว่างห้องนอนกับห้องนั่งเล่นค่ะ
ภายในห้องน้ำแยกส่วนแห้ง ส่วนเปียก พื้นและผนังใช้กระเบื้องลายหินอ่อนสีขาวเทา
สุขภัณฑ์ติดตั้งมาให้พร้อมใช้งาน โดยอ่างล้างมือจะมีตู้เก็บของใต้อ่างด้วย และโถสุขภัณฑ์ด้านข้างก็สามารถใช้งานได้สะดวก
กระจกเงาที่ติดตั้งมาให้ก็ได้แบบมีชั้นเก็บของซ่อนอยู่ด้านในด้วย
ส่วนห้องอาบน้ำจะมีฉากกั้นมาให้ ภายในห้องอาบน้ำติดตั้งฝักบัวแบบ Hand Shower และ Rain Shower พร้อมเจาะช่องเก็บของที่ผนังด้านหลังมาให้วางอุปกรณ์อาบน้ำเพิ่มด้วย
ขนาดห้องอาบน้ำพอให้ยืนอาบได้สะดวก
ถัดมาเราไปดูในห้อง Master Bedroom กันต่อค่ะ
เข้ามาในห้องจะเห็นส่วนห้องนอนทางขวามือ ส่วนฝั่งซ้ายเป็นห้องน้ำในตัวค่ะ
เข้ามาดูทางฝั่งห้องนอนกันก่อน ห้องนี้ได้ช่องแสงบานใหญ่มาด้วย ทำให้ห้องโปร่งและสว่าง ถ้าอยู่ชั้นสูงๆก็สามารถมองเห็นวิวเมืองจากห้องนอนได้เลย
พื้นที่ห้องนอนสามารถวางเตียงขนาด ควีนไปจนถึงคิงส์ไซส์ได้ โดยถ้าวางเตียงขนาดควีนไซส์จะมีพื้นที่ด้านข้างเตียงเหลือให้วางโต๊ะหัวเตียงเล็กๆแบบในห้องตัวอย่างทั้งสองด้านค่ะ
ติดกับพื้นที่ข้างเตียงอีกฝั่งเป็นตู้เสื้อผ้าแบบ Built – in และห้องน้ำ
ตัวตู้เป็นบานสไลด์ค่ะ ด้านในมีราวแขวนและลิ้นชักแบ่งไว้ให้ตามภาพ
ระยะการใช้งานพื้นที่ยืนแต่งตัวเหลือพอให้แต่งตัวได้สะดวก
ส่วนปลายเตียงสามารถติดตั้งทีวีแบบแขวนได้ค่ะ
เราไปดูภายในห้องน้ำกันต่อ
ภายในห้องน้ำของ Master Bedroom จะได้ห้องน้ำขนาดใหญ่เลยค่ะ ตกแต่งเป็นโทนสีขาว ครีม ผนังใช้กระเบื้องแกรนิตโต้ลายหินอ่อนบางส่วนแบบเดียวกับพื้นห้อง
อ่าล้างมือและโถสุขภัณฑ์ของ Kohler ค่ะ ห้องจริงที่ได้จะมีสายฉีดชำระและที่ใส่ทิชชู่ให้นะคะ
ส่วนอาบน้ำจะมีฉากกั้นอาบน้ำให้ มีขอบตรงธรณีประตูขึ้นมาเล็กน้อย ภายในห้องอาบน้ำติดตั้งฝักบัวแบบ Hand Shower และ Rain Shower และมีช่องแสงบานยาว 1 บาน สามารถเปิดระบายอากาศได้ค่ะ
หน้าต่างเปิดออกมาจะเจอกับพื้นที่วางคอมเพรสเซอร์แอร์ มีกริลบังสายตาด้านนอกด้วยค่ะ
ขนาดห้องอาบน้ำกว้างพอให้ยืนอาบได้สบายๆเลยค่ะ
อีกฝั่งของห้องน้ำมีอ่างอาบน้ำติดตั้งมาให้ด้วย
ขนาดอ่างมาตรฐาน ประมาณ 1.60 x 0.7 เมตร พอให้ลงไปนอนแช่ได้สบายๆ แต่ถ้าคนตัวใหญ่อาจจะแน่นๆหน่อยค่ะ
ชุดฝักบัวที่ติดตั้งมาให้จะมีทั้งแบบหัวก๊อกและฝักบัวที่ยกออกมาได้ค่ะ
ราคา (ก.ย.2561)
โครงการขายแบบ Fully Furnished และ Fully Fitted พร้อมชุดครัว และเครื่องปรับอากาศ
ค่าส่วนกลาง : 60 บาท/ตร.ม./เดือน (เก็บล่วงหน้า 1 ปี)
ค่ากองทุน : 600 บาท/ตร.ม. (ชำระครั้งเดียว ณ วันโอน)
สอบถามราคาเพิ่มเติมกรุณาติดต่อสำนักงานขายเพื่อข้อมูลที่อัพเดตที่สุดค่ะ*
สรุป
ทำเลที่ตั้งโครงการ :โครงการ Hyde สุขุมวิท 11 ตั้งอยู่ในซอยสุขุมวิท 11 ในซอยจะมีร้านค้า ร้านอาหาร ร้านสะดวกซื้อต่างๆมากมาย ไม่ไกลจาก BTS สถานีนานา ทำให้เดินทางทั้งทางรถยนต์และรถสาธารณะสะดวก โดยรอบมีร้านค้า ร้านอาหาร ไม่ไกลจากห้างสรรพสินค้าใหญ่ๆในระยะที่เดินไปได้ ถือว่าเป็นทำเลใจกลางย่านธุรกิจที่สะดวกในหลายๆด้านค่ะ
ความอุดมสมบูรณ์ – ที่ตั้งโครงการอยู่ในซอยสุขุมวิท 11 ในซอยจะมีร้านค้า ร้านอาหารมากมายค่ะ ใกล้สุดจะเป็น Villa Market ห่างจากโครงการประมาณ 250 ม. ในซอยจะมีร้านอาหารทั้งไทยและเทศ เพราะย่านนี้ถือว่าเป็นย่านต่างชาติ กลางคืนก็คึกคักเพราะมีบาร์ ผับอยู่ในซอยนี้ค่ะ
ส่วนความอุดมสมบูรณ์จะอยู่ตลอดแนวถนนสุขุมวิทค่ะ โดยจะมีทั้งร้านค้า, ร้านอาหาร, ร้านสะดวกซื้อตลอด 24 ชั่วโมง,ห้างสรรพสินค้าใหญ่ๆไม่ไกลจากซึ่งจะมีทั้ง Central Embassy, Robinson และ Terminal 21 ไปได้ด้วยการเดินเท้าหรือจะนั่ง BTS ไปก็สะดวกห่างจากโครงการเพียง 1 สถานีเท่านั้น หรือจะไปยัง Grand 5 ตรงนั้นก็จะมี Food land ซึ่งเปิดตลอด 24 ชั่วโมง หรือถ้าอยากชอบอาหารเกาหลีก็มีแหล่งเกาหลีหรือที่เรียกว่า Korean Town อยู่ไม่ไกลจากสถานีอโศกค่ะ ตลอดเส้นนั้นยังมีห้างใหญ่ๆอย่าง Emporium , EmQuartier หรือไปทางสยามก็มีทั้ง สยามเซ็นเตอร์,สยามพารากอน,เซ็นทรัลเวิลด์ และร้านค้าในสยามค่ะ
การเดินทางด้วยรถยนต์ส่วนตัว : สำหรับคนขับรถ โครงการอยู่ห่างจากสุขุมวิทเพียง 350 ม.เท่านั้น ซึ่งถนนสุขุมวิทนั้นถือว่าเป็นถนนเส้นหลักเส้นหนึ่งจึงทำให้การเดินทางไปยังที่ต่างๆได้สะดวกเพราะเชื่อมต่อกับถนนหลายสาย ไปได้หลายเส้นทาง ซึ่งเส้นนี้สามารถตรงไปยังเพลินจิต ชิดลม สยาม ยาวไปจนถึงพระราม 1 ,หรือถ้าไปอีกทางก็จะเป็นสุขุมวิทช่วงปลาย ทองหล่อ เอกมัย อ่อนนุช ยาวเชื่อมไปจนถึงเส้นบางนา-ตราดค่ะ และถ้าจากแยกอโศกก็จะไปทางพระราม 9 หรือมุ่งไปยังพระราม 4 ก็ได้ ดังนั้นเท่าที่กล่าวมาแต่ละเส้นนั้นถือเป็นถนนเส้นหลักๆทั้งสิ้น จึงทำให้มีรถมาใช้เส้นนี้กันเยอะค่ะ
และเนื่องจากย่านนี้ถือว่าเป็นย่านธุรกิจที่คึกคักทำให้ช่วงแยกอโศกนั้นรถติดหนักพอสมควรเลยค่ะ ดังนั้นสำหรับคนที่อาศัยอยู่ในเส้นนี้ต้องรู้จักทางลัดเลาะเพื่อให้เดินทางได้สะดวกมากขึ้น
การเดินทางด้วยรถสาธารณะ : การเดินทางโดยไม่ใช้รถ เรื่องการขนส่งสาธารณะถือว่าสะดวกมาก เพราะเนื่องจากตรงถนนสุขุมวิทจะมีทั้งรถประจำทาง วินมอเตอร์ไซค์ แท็กซี่ให้เรียกไม่ขาดสาย ไม่ไกลจากโครงการก็จะมี BTS นานา ประมาณ 450 ม. และยังมี Shuttle Bus ของโครงการคอยรับส่งด้วย ซึ่งถือว่าสะดวกต่อการเดินทางมาก ถ้าจะไปเส้น MRT ก็ไปยังสถานีอโศกห่างจากโครงการเพียงแค่สถานีเดียวเท่านั้นค่ะ
การออกแบบโครงการและวัสดุ :โครงการขายห้องแบบ Fully Furnished และ Fully Fitted โดยในห้อง Studio และ 1 Bedroom จะได้เป็นห้อง Fully Furnished ส่วนห้อง 2 Bedroom ขึ้นไปจะเป็นห้องแบบ Fully Fitted ค่ะ
โดยรวมในห้อง Studio และ 1 Bedroom ที่ได้เป็น Fully Furnished นั้นถือว่าคุ้มค่าเลยทีเดียว เพราะพวกเครื่องใช้ไฟฟ้าในครัวก็ติดตั้งมาให้ครบพร้อมใช้งาน และหน้าตาดีด้วย ส่วนพื้นที่การจัดฟังก์ชั่นภายในห้องตัวอย่างที่เราได้พาไปชม ในส่วนของห้อง 1 Bedroom ตัวห้องมีลักษณะเป็นแนวลึก จึงทำให้ส่วนห้องนั่งเล่นกับมุมทานอาหารอาจจะดูแน่นๆหน่อย แต่ห้องครัวที่ได้ขนาดใหญ่ดี เหมาะกับคนที่ชอบทำอาหาร แต่เนื่องจากเป็นครัวเปิดถ้ารักจะทำครัวจริงจังก็แนะนำให้กั้นห้องแยกค่ะ
ส่วนห้อง 2 Bedroom มีการจัดฟังก์ชั่นได้เป็นสัดส่วน เน้นพื้นที่ส่วนครัวและห้องทานอาหาร ส่วนห้องนั่งเล่นจะมีขนาดค่อนข้างกระทัดรัดเมื่อเทียบกับส่วนอื่นๆ และพื้นที่ส่วนห้องนอนก็แยกเป็นสัดส่วนดีค่ะ มีตู้เสื้อผ้าและแอร์ให้ทั้ง 2 ห้อง ได้ห้อง Master Bedroom ที่มีห้องน้ำในตัวขนาดใหญ่ พร้อมอ่างอาบน้ำ
วัสดุมาตรฐานภายในจะเหมือนกันทั้ง 2 แบบ คือพื้นแกรนิตโต้ลายหินอ่อน พื้นห้องนอนเป็น Engineering Wood ห้องน้ำเป็นแกรนิตโต้ลายหินอ่อน สุขภัณฑ์เป็น Kohler สำหรับห้องครัวจะได้ตู้เย็น เตาไฟฟ้า เครื่องดูดควัน และอ่างล้างจานค่ะ ตู้เก็บของหน้าบานเป็น Hi-Gloss และติดตั้ง Soft Close ทุกบาน ไฟในห้องเป็นดาวน์ไลท์ ส่วนแอร์เป็นแอร์แบบฝังค่ะ
สิ่งอำนวยความสะดวก : ถือว่าให้แบบครบครันค่ะ ห้องต่างๆก็มีให้ทั้งห้องเล่นเด็ก ห้องสมุด ห้องดูหนัง และฟิตเนสในห้องน้ำก็มีทั้งซาวน่า อบไอน้ำ เรียกได้ว่าครบครันเลย ใครเบื่ออยู่ในห้องก็มานั่งเล่นตรงส่วนกลางได้เพราะมีที่นั่งเยอะและมีให้เลือกหลายมุมด้วยกันค่ะ พื้นที่สวนก็มีแยกให้หลายชั้น
และมีสวนส่วนกลางระหว่างอาคาร A และอาคาร B เป็นพื้นที่พักผ่อนอีกจุดค่ะ ด้านล่างอาคาร B จะมียูนิตร้านค้าตรงนี้ก็จะสะดวกสำหรับลูกบ้านด้วยค่ะ อีกทั้งอาคาร B จะเป็น Automatic Parking สูง 8 ชั้นค่ะ
คะแนน
| ทำเลที่ตั้งโครงการ | 8.0 | อยู่ในซอยสุขุมวิท 11 ใกล้ถนนสุขุมวิทและ BTS สถานีนานา ใกล้แหล่งการศึกษาและโรงพยาบาล ทำให้มีสิ่งอำนวยความสะดวกรอบๆ ร้านค้า ร้านอาหาร ห้างสรรพสินค้ามีให้เลือกมากมาย |
| การเดินทาง ใช้รถ | 7.5 | เดินทางสะดวกเชื่อมต่อออกไปได้หลายเส้นทาง แต่ต้องระวังรถติดตอนเช้าและเย็นตรงแยกอโศก ถ้าช่วงรถไม่ติดสามารถบวกคะแนนเพิ่มได้เลยค่ะ |
| การเดินทาง ไม่ใช้รถ | 8.5 | โครงการมี Shuttle Bus รับส่งรอบๆโครงการ ไปถึง BTS นานา ซึ่งสะดวกต่อการเดินทางอย่างมาก นั่งไปไม่กี่สถานีก็ต่อใต้ดินได้สะดวกดีค่ะ |
| ห้องและวัสดุ | 7.5 | แปลนห้องแบ่งได้เป็นสัดส่วนลงตัว ห้องครัวขนาดใหญ่ แต่เหมือนไม่ค่อยเน้นส่วนห้องนั่งเล่นเท่าไหร่เลยมีขนาดย่อมลงมาหน่อย ขายแบบ Fully Furnishedและ Fully Fitted วัสดุและเฟอร์นิเจอร์ที่ได้มีความใส่ใจรายละเอียดดี |
| สิ่งอำนวยความสะดวก | 8.5 | มีให้ครบครันและออกแบบได้สวยน่าใช้งาน หลากหลายฟังก์ชั่น รองรับได้ทุกวัยค่ะ |
| ความคุ้มค่ากับราคา | 7.75 | ราคาเริ่มต้นตอนนี้ 5.9 ล้านบาท และราคาเฉลี่ยประมาณ 180,000 – 200,000 บาท/ตร.ม. ราคาสูงแต่ได้ทำเลใกล้รถไฟฟ้า, ใกล้โรงเรียน มหาวิทยาลัย และสำนักงาน ไปไหนมาไหนสะดวก มีขายทั้งแบบ Fully Furnished และ Fully Fitted |
| คะแนนรวมเฉลี่ย | 7.95 | ดี |
ลงทะเบียนเพื่อรับสิทธิพิเศษ คลิก : www.hyde11.com
สนใจติดต่อสอบถามเพิ่มเติมได้ที่
Tel : 094 – 405 – 1111
Website : www.hyde11.com
หากเพื่อนๆเห็นว่ารีวิวนี้มีประโยชน์ ช่วยกด Like เพื่อเป็นกำลังใจให้ทีมงาน ขอบคุณค่ะ
และมีความคิดเห็นหรือข้อมูลเพิ่มเติมเกี่ยวกับตัวโครงการ สามารถ Comment ได้ที่ด้านล่างของรีวิวค่ะ