EP.225 รีวิว คอนโด แชปเตอร์วัน เดอะ แคมปัส เกษตร Chapter One The Campus
สวัสดีครับเพื่อน ๆ วันนี้ผมจะพาชมโครงการ Chapter One The Campus เกษตร คอนโดพร้อมอยู่จาก บมจ.พฤกษา เรียลเอสเตท
ตั้งอยู่บนถนนพหลโยธิน แขวงลาดยาว เขตจตุจักร กทม. เดินทางสะดวกสบาย ใกล้ BTS เสนานิคม, ถนนพหลโยธิน, ถนนรัชดาภิเษก, ถนนลาดพร้าว และ ถนนวิภาวดีรังสิต
รายล้อมด้วยแหล่งอำนวยความสะดวกมากมาย ใกล้ เมเจอร์ รัชโยธิน, ดิ อเวนิว รัชโยธิน, เซ็นทรัล ลาดพร้าว, ยูเนี่ยนมอลล์, ม.เกษตรศาสตร์, ธกส., SCB PARK และ รพ.เปาโล เกษตร เป็นต้น
แชปเตอร์วัน เดอะ แคมปัส เกษตร เป็นหมู่คอนโด Low-Rise 8 ชั้น 7 อาคาร พื้นที่โครงการขนาด 7-3-60 ไร่ จำนวนห้อง 783 ยูนิต มีห้องพักให้เลือกแบบ Studio, 1 Bedroom และ 2 Bedrooms ขนาดเริ่มต้น 23.00-46.24 โครงการสร้างเสร็จพร้อมอยู่
สิ่งอำนวยความสะดวกภายในโครงการครบครัน อาทิ Lobby, Mailbox, Library, สระว่ายน้ำ, ฟิตเนส, ห้องโยคะ, สวนหย่อม, ระบบ Access Card Control, กล้องวงจรปิด CCTV พร้อม รปภ. 24 ชม. ราคาเริ่มต้น 2.19 ล้านบาท* (ปี 2557)
| ชื่อโครงการ | แชปเตอร์วัน เดอะ แคมปัส เกษตร / CHAPTER ONE : THE CAMPUS |
| เจ้าของโครงการ | พฤกษา / Pruksa |
| ลักษณะห้องและขนาดห้อง | Studio / 23 – 26.85 ตร.ม. ราคาเริ่มต้น 2.19 ล้านบาท 1 Bed / 28.86 ตร.ม. ราคาเริ่มต้น 2.79 ล้านบาท 2 Bed / 46.24 ตร.ม. ราคาเริ่มต้น 4.62 ล้านบาท |
| เนื้อที่ทั้งหมด | 7-3-60 ไร่ |
| จำนวนตึก | 7 อาคาร |
| จำนวนชั้น | 8 ชั้น |
| จำนวนห้อง | 783 |
| ที่จอดรถทั้งหมด | 55% รวมซ้อนคัน |
| โซน | รัชโยธิน, ลาดพร้าว, จตุจักร |
| ขนส่งสาธารณะ | รถไฟฟ้า BTS ส่วนต่อขยาย (สถานี ม.เกษตร และ สถานีเสนานิคม) |
| รถโดยสารที่ผ่าน | n/a |
| ที่ตั้ง | ถ.พหลโยธิน แขวงลาดยาว เขตจตุจักร กรุงเทพฯ |
| กำหนดการ | n/a |
| ปีที่สร้างเสร็จ | 2558 |
| ราคา | เริ่มต้น 2.19 ล้านบาท |
| ราคาเฉลี่ยต่อ ตร.ม | 95,000 บาท / ตร.ม. |
| สถานที่สำคัญใกล้เคียง |
|
| สิ่งอำนวยความสะดวก | – สระว่ายน้ำ – ฟิตเนส – Steam – ห้องโยคะ – สวนหย่อม – Wifi – Library – Lounge – เจ้าหน้าที่รักษาความปลอดภัย และ กล้องวงจรปิด |
| จุดเด่นของโครงการ | เริ่มต้นบทใหม่ของชีวิตที่ แชปเตอร์วัน เดอะ แคมปัส คอนโด Low Rise บนถนนพหลโยธิน เพียง 150 เมตร จาก ม.เกษตรศาสตร์ ติดแนวรถไฟฟ้าสายสีเขียวเข้ม ครบทุกความต้องการของชีวิตด้วยแนวคิดแบบ Knowledge Community พร้อม Fully-Furnished อย่างมีสไตล์แบบ Soft Loft พร้อม Facility ครบครัน |
คอนโดโดยรอบ BTS เสนานิคม ที่ตั้งโครงการ
แผนที่จากโครงการ
การเดินทาง

Chapter One The Campus ตั้งอยู่ติดกับถนนพหลโยธินขาออกก่อนถึง ม.เกษตร การเดินทางจึงทำได้สะดวกเพราะอยู่ติดถนนใหญ่ ถ้าจะเข้าเมืองออกมาหน้าโครงการเลี้ยวซ้าย เข้าถนนงามวงศ์วานออกวิภาวดีก็ตรงอยางเดียวครับ มีทางด่วนโทลเวย์ให้ขึ้นด้วย
แต่ถ้าจะใช้เส้นพหลโยธินไปจตุจักรต้องไปกลับรถซึ่งค่อนข้างห่างจากโครงการพอสมควรมี 3 ที่คือ
– ตรงเส้นงามวงศ์วานบริเวณจุดตัดกับวิภาวดี
– ตรงเส้นพหลโยธินบริเวณหน้ากรมป่าไม้
– ตรงถนนประเสริฐมนูกิจ ซึ่งระยะทางทั้ง 3 จุดพอๆกันครับ
ถ้าจะออกนอกเมืองก็ใช้เส้นพหลโยธินผ่านเกษตรไปสะพานใหม่ รังสิต ลำลูกกาได้ หรือใช้เส้นวิภาดีก็ไปรังสิต เส้นงามวงศ์วานไปปากเกร็ด นนทบุรี เส้นประเสริฐมนูกิจไปรามอินทรา มีนบุรี มีทางด่วนรามอินทราอาจณรงค์อยู่
การเดินทางมาโครงการถ้ามาจากห้าแยกลาดพร้าวถึงโครงการก็เลี้ยวซ้ายเข้าได้เลย แต่ถ้ามาจากฝั่งเกษตรต้องไปกลับรถหน้ากรมพัฒนาที่ดินครับแล้วก็ชิดซ้ายเข้าโครงการได้ปกติ
การเดินทางวันนี้ เริ่มตรงห้าแยกลาดพร้าวมุ่งหน้าไปเกษตร ผ่านแยกรัชโยธิน ผ่านแยกเสนานิคม พอถึงกรมพัฒนาที่ดินก็ชิดซ้ายได้เลย โครงการจะถึงก่อนแยกเกษตรครับ

การเดินทางโดยรถสาธารณะ หน้าโครงการมีรถเมล์ รถตู้วิ่งผ่านหลายสาย ไปสะพานใหม่ รังสิต งามวงศ์วาน โดยป้ายรถเมล์ห่างจากโครงการประมาณ 20 ม. หรือจะเข้าเมืองต้องเดินขึ้นสะพานลอยหน้าโครงการข้ามไปอีกฝั่งก็มีป้ายรถเมล์ครับ มีวินมอเตอร์ไซค์ และ Taxi วิ่งผ่านไปมาตลอดขึ้นที่หน้าโครงการได้เลย
นอกจากนี้ยังมีระบบขนส่งรถไฟฟ้า BTS สายสีเขียวส่วนต่อขยายหมอชิต-คูคต ซึ่งตอนนี้กำลังก่อสร้างอยู่ สถานีที่ใกล้โครงการสุดคือสถานีเสนานิคมจะอยู่ใกล้ๆแยกเสนานิคมครับ แต่คงต้องรออีกหลายปีเลย ตอนนี้ถ้าอยากใช้ต้องไปจตุจักรครับมีทั้ง BTS และ MRT ให้เลือก หรือมาขึ้น MRT ตรงห้าแยกลาดพร้าวก็ได้ครับท่ีสถานีพหลโยธิน
เริ่มตรงห้าแยกลาดพร้าว มีห้างสรรพสินค้ายอดฮิตย่านนี้เลย เราจะมุ่งหน้าไปเกษตรกันครับ
จากนั้นจะเจอ Lotus ขวามือ
จากนั้นจะเจอตึกช้าง
ตามป้ายเกษตรไปครับ
ผ่านแยกรัชโยธินมาจะเจอ เมเจอร์รัชโยธินซ้ายมือ
ตอนนี้เส้นพหลโยธินตรงสะพานข้ามแยกเกษตรปิดเพื่อสร้าง BTS สายสีเขียวส่วนต่อขยาย หมอชิต-คูคต การจราจรจะค่อนข้างติดขัดเกือบทั้งวันครับ
ถนนสี่เลนเบี่ยงเหลือสองเลนครับ ขวามือคือสะพานข้ามแยกเกษตรที่ปิดให้บริการแล้ว
จากนั้นจะเจอแยกเสนานิคม เลี้ยวขวาไปซอยเสนานิคม 1 แต่เราตรงไปนะครับ
ตรงไปต่อครับ สังเกตซ้ายมือจะมีป้ายโครงการตามทางเป็นระยะ
จากนั้นจะเจอกรมพัฒนาที่ดินซ้ายมือ ซึ่งอยู่ตรงกับจุดกลับรถ ถ้ามาจากฝั่งเกษตรต้องมากลับรถตรงนี้ครับเพื่อไปโครงการ
ป้ายโครงการจะมีลูกศรบอกครับ
จากนั้นจะเจอป้ายโครงการให้เตรียมชิดซ้ายได้เลย
จากนั้นจะเจอป้ายรถเมล์ หน้าร้านขายยา
และจะเจอ 7-11 ห่างจากโครงการเพียง 10 ม.
จากนั้นจะเจอร้านขายอาหารครับ
และก็จะถึงทางเข้าโครงการมีป้ายบอกทางเข้า หรือสังเกตร้านเป็ดพะโล้ซ้ายมือ ตรงหน้ามีสะพานลอยข้ามไปอีกฝั่งครับ
ถึงทางเข้า-ออกโครงการแล้วครับ จากห้าแยกลาดพร้าวถึงโครงการประมาณ 3.2 กม.
ความอุดมสมบูรณ์รอบๆโครงการ ย่านนี้ของดินเยอะแยะครับ เนื่องจากด้วยทำเลที่ใกล้มหาวิทยาลัย และเป็นแหล่งชุมชน จึงมีทั้งร้านค้า ร้านอาหารต่างๆ ให้เลือกมากมาย หน้าโครงการมีร้านรถเข็น ร้านเป็ดพะโล้ 7-11 ฯลฯ หรือจะเดินไปตลาดอมรพันธ์ก็เยอะครับน้องๆนิสิตก็มาใช้บริการกันเยอะครับ หรือเดินข้ามสะพานลอยไปอีกฝั่งก็มีของกินบ้าง แต่ส่วนใหญ่เป็นร้านขายของ ร้านเสริมสวย มากกว่า ไม่ก็เดินเข้าไปใน ม.เกษตรก็มีโรงอาหารของมหาลัย มีร้านอร่อยๆเยอะเหมือนกันครับ และที่สำคัญอย่าลืมกินน้ำใบเตยนะครับของอร่อยที่นี่เลย ส่วนห้างสรรพสินค้าใกล้ๆก็มีเมเจอร์รัชโยธิน โลตัส เซ็นทรัลลาดพร้าว และยูเนี่ยนมอลล์
สถานที่สำคัญ
โครงการ

Master Plan โครงการ ทางเข้าจะอยู่ฝั่งขวาครับ เข้ามาจะเจอ Drop Off มีน้ำพุอยู่ตรงกลาง ทั้งโครงการมี 7 ตึกแบ่งเป็น A, B, C, D, E, F, G ถนนจะวนรอบโครงการแบบวันเวย์ใช้ Key Card เพื่อเข้าพื้นที่จอดรถ จอดได้ทั้งกลางแจ้งและใต้ตึกครับ มีทางวนรถผ่านส่วนที่เป็น Shop ใต้ตึก A ได้ต้องใช้ Key Card เช่นกัน Facility โครงการนี้หลักๆอยู่ที่ชั้น 1 ถูกล้อมรอบไปด้วยทั้ง 7 ตึก Lobby แยกตึกกัน ไล่ตั้งแต่ตึก A เข้าไปมีสนามหญ้า, สวนนั่งพักผ่อน, ห้องสมุดที่ตึก C, ห้องฟิตเนสที่ตึก D, ห้องโยคะที่ตึก E, สระว่ายน้ำพร้อมสนามหญ้า, Steam ที่ตึก F, Lounge ที่ตึก G
เริ่มจากหน้าโครงการ ป้อมยามอยู่ซ้ายมือ มี รปภ. 24 ชั่วโมง ซุ้มตรงประตูมีตราของโครงการอยู่
ถ่ายป้อมยามให้ดูครับ
ผ่านเข้ามาจะเจอ Drop Off อยุ่หน้าตึก A มีน้ำพุอยู่ตรงกลาง ผู้ที่มาติดต่อมาส่งเพื่อนเข้าถึงได้ส่วนนี้และวนออกครับ หรือจอดรถซ้ายมือซึ่งเป็นส่วนของผู้ที่มาติดต่อ
ผมจะพาเดินวนรอบโครงการก่อนนะครับ โดยตรงเข้าไปผ่าน Drop Off
ขวามือเป็นทางเข้าสำหรับลูกบ้านต้องใช้ Key Card วนไปด้านข้างได้ เดี๋ยวพาเข้าไปนะครับ
เราจะเดินตรงไปก่อนครับ ไปดูที่จอดรถรอบๆอาคารกัน
ทางเข้ามีไม้กระดกกั้นอยู่ต้องใช้ Key Card
ผ่านเข้ามาทั้งซ้ายและขวาสามารถจอดรถได้เลย ถนนจะเป็นแบบ One Way
แต่ละอาคารก็จะมีทางเดินเข้าแบบนี้ครับ ต้องใช้ Key Card เช่นกัน
ตรงส่วนที่เว้นแต่ละอาคารจะมีต้นไม้ มองเข้าไปเห็นพื้นที่ส่วนกลาง แต่เข้าจากทางนี้ไม่ได้นะครับ
เดินมาจนสุดจะบังคับเลี้ยวขวาไปด้านหลังช่วงตึก F และ G
ถ่ายมุมกลับให้ดูครับ เราเดินมาจากทางขวาครับ ตึกที่เห็นตรงหน้าคือตึก F
เดินมาด้านหลังก็มีที่จอดรถให้เหมือนกัน
เดินมาจนสุดก็เลี้ยวขวาอีกที รั้วโครงการจะเห็นว่ามีทั้งรั้วทึบ และรั้วโปร่งครับ
ถ่ายมุมกลับให้ดูอีกรูป
ด้านข้างอีกฝั่ง ฝั่งนี้จะเป็นตึก G, E, C, และวนไปสิ้นสุดที่ตึก A ด้านหน้า
ช่วงระหว่างตึก C และ A จะมีทางที่วนมาจาก Drop Off ด้านหน้าที่ต้องใช้ Key Card
ถ่ายมุมตรงให้ดูจะมองเห็นตรงไม้กระดก
กลับมาเดินต่อปลายสุดซ้ายมือจะมีศาลตั้งอยู่ครับ
ตอนนี้อยู่ตรงตึก A ถ่ายมุมกลับให้ดู
มีที่จอดรถมอเตอร์ไซค์ซ้ายมือ ใกล้กับทางเข้าออกโครงการเลย
ทางออกก็จะต้องใช้ Key Card เช่นกันครับ
ผ่านออกมาก็จะเจอส่วนจอดรถ Visitor และประตูทางเข้าออกโครงการครับ
กลับมาเริ่มตรง Drop Off จพะมีทางที่จะเข้าไปยังส่วนกลาง และร้านค้าครับครับ
ต้องใช้ Key Card ตรงไปก็ไปทะลุออกตรงอาคาร C และ A ก่อนถึงศาลที่พาไปชมข้างต้น
ชั้น 1 ของตึก A จะเป็นร้านค้า, สำนักงานขาย, นิติบุคล
อีกฝั่งก็จะเป็นสวนหย่อมมีสนามหญ้า พุ่มไม้และที่นั่งพัก และมีทางเดินเข้าไปยังส่วนกลางครับ ที่ชั้น 1 ใต้ตึก B และ C ก็จะมีร้านค้าอีกครับ รวมทั้งหมด 15 ร้าน

ทางตรงกลางเป็นบล็อกปูหญ้า เดินเข้าไปยังส่วนกลางทั้งหมด
ขวามือมีที่จอดจักรยาน
เดินตรงเข้ามาจะเจอซุ้มประตูเหมือนด้านหน้าโครงการครับ อยู่ระหว่างตึก B และ C มีประตูคนเดินซ้ายมือ หลักๆก็จะใช้แค่ประตูคนเดินอย่างเดียวครับรถเข้าไปไม่ได้อาจจะทำเผื่อไว้กรณีฉุกเฉินมากกว่า
ประตูคนเดินต้องใช้ Key Card ในการเข้า และกดปุ่มออกจากด้านใน เพื่อกันไม่ให้คนนอกเข้ามาได้ครับ
ผ่านประตูเข้ามาก็จะเห็นแบบนี้ ไล่ตึกไปจะเป็นคู่ๆ เว้นช่องตรงกลางไว้เป็นพื้นที่ส่วนกลางครับ ตามลำดับในภาพคือ B กับ C / D กับ E / F กับ G
มองมาทางซ้ายจะเห็นสวนเล็กๆ มีที่นั่งตรงกลาง
กลางพุ่มไม้ทำที่นั่งเอาไว้ครับ
ฝั่งตรงข้ามก็มีเช่นกันครับ ตอนนี้ขวามือคือตึก C มีห้องสมุดอยู่ที่ชั้น 1 ขวามือในรูปครับ
ด้านหน้าทางเข้าห้องสมุด
เปิดเข้ามาจะเจอที่นั่งอ่านหนังสือเป็นจุดๆ ด้านในมีประตูเข้าไปอีกชั้นครับ
เดินเข้ามาด้านในแล้วมองกลับไปยังประตูทางเข้า มีน้องๆนิสิตนั่งจับกลุ่มอ่านหนังสืออยู่
ประตูด้านในเป็นแบบสองบาน
เปิดเข้ามาจะเจอแบบนี้ ผนังเป็นกระจกมองทะลุด้านนอกได้
ห้องนี้จะเป็นแบบ Double Volume ครับ
ด้านในมีชั้นวางหนังสือ พร้อมกับหนังสือที่น่าอ่านเต็มไปหมด
มุม Private เผื่อใครต้องการสมาธินั่งคนเดียว
อีกมุมหันเข้าเสา
ออกมาด้านนอกต่อ ซ้ายมือเป็นตึก D มีห้องฟิตเนสที่ชั้น 1 ขวาคือตึก E มีห้องโยคะที่ชั้น 1
ด้านหน้าทางเข้าห้องโยคะ
เดินเข้ามาเจอชุดโต๊ะแบะเก้าอี้ ตรงไปเป็นห้องโยคะ มีห้องน้ำซ้ายมือ
มุมนั่งพักจัดมาให้แบบนี้
ก่อนเข้าห้องโยคะ ซ้ายมือจะมีทางเดินเข้าไปยังห้องน้ำ
ฝั่งขวาจะมีตู้ Locker ไว้เก็บของได้ ฝั่งซ้ายเป็นห้องน้ำแยกชาย – หญิง
ภายในห้องน้ำชายมีอ่างล้างหน้า
มีโถปัสสาวะ ในสุดเป็นห้องน้ำ มีช่องแสงระบายอากาศได้
ภายในห้องน้ำหญิง
กลับมาตรงทางเข้าห้องโยคะ จะมีประตูกระจกบานเลื่อน 2 บานแบบนี้
เปิดเข้ามาจะเห็นเป็นห้องโล่งๆ ผนังเป็นบานกระจกเลื่อนเปิดปิดได้ มีแอร์ติดให้เรียบร้อย
ถ่ายย้อนกลับให้ดูอีกมุมครับ
มาดูห้องฟิตเนสกันต่ออยู่ชั้น 1 ตึก D จะอยู่หน้าสระว่ายน้ำครับ
เดินเข้ามาเจอที่นั่งพักก่อน ด้านในเป็นตู้ Locker เก็บของได้
เลี้ยวซ้ายมาจะเจออุปกรณ์ออกกำลังกาย มีเครื่องวิ่งออกกำลังกายซ้ายมือ
เครื่องปั่นจักรยาน ผนังส่วนใหญ่เป็นกระจก
เดินเข้ามาอีกจะเห็นเครื่องยกน้ำหนัก และเครื่องบริหารกล้ามเนื้อขาและแขนครับ
ออกมาด้านนอกกั้นต่อ ซ้ายมือเป็นตึก F ขวาเป็น G ครับ สระว่ายน้ำอยู่ซ้ายมือ และมีสวนหย่อมขวามือ ตรงกลางมีเนินหญ้าขึ้นไปครับ
ด้านหน้าสระว่ายน้ำจะมีน้ำพุอยู่ ตรงส่วนนี้จะเป็นสระเด็กครับ
อีกฝั่งเป็นสนามหญ้าโล่งๆแบบนี้มีมุมให้นั่งเล่นได้
เดินขึ้นมา จะเห็นกำแพง
มุมนั่งเล่นบนสนามหญ้า
เดินขึ้นมาบนเนิน ซ้ายเป็นทางเข้าสระว่ายน้ำ ขวาเป็นสนามหญ้า
มองเข้าไปตรงส่วนกำแพง
อีกฝั่งตรงสระว่ายน้ำมีชุดโต๊ะสนามตั้งไว้อยู่
เดินเข้ามาจะเห็นสระว่ายน้ำระบบเกลือขนาด 5 x 20 ม. มีทางเดินริมสระซ้ายมือ
เดินมาปลายสระจะแบ่งสระเด็กไว้ มีทางเดินกั้นเอาไว้ครับ
ยืนตรงทางเดินแล้วมองย้อนกลับไป ด้านข้างสระจะมีทางเดินอยู่ สระเป็นแบบน้ำล้น
กลับมาตรงสนามหญ้าต่อ ปลายสุดจะมีบันไดเดินลงไปยังตึก F และ G
ฝั่งตึก F ชั้น 1 มีห้องน้ำหญิงและชาย
ตรงทางขึ้นบันไดมีจุดล้างตัวอยู่
ฝั่งตรงข้ามเป็นทางเข้าห้องน้ำ แยกเป็นสองฝั่งชาย หญิง ตรงกลางเป็นห้องเก็บของ
ภายในห้องน้ำชาย เดินเข้าไปจะเจอตู้ Locker หน้าห้องน้ำ
ทางเข้าห้องน้ำอยู่อีกฝั่ง
เดินเข้ามาจะเป็นแบบนี้ครับ มีห้องน้ำ 2 ห้องขวามือ มีห้อง Steam และห้องอาบน้ำ
ฝั่งนี้มีชุดอ่างล้างหน้า 2 ชุด พร้อมกระจกบานใหญ่
มีโถปัสสาวะ 2 โถ
ห้องอาบน้ำอยู่ซ้ายมือ ประตูกระจกขวามือคือห้อง Steam
ภายในห้องอาบน้ำ
ภายในห้อง Steam
ออกมาดูฝั่งตึก G ที่ชั้น 1 มี Lounge อยู่
ทางเข้า Lounge
เปิดเข้ามาจะเจอที่นั่ง แยกจุดไว้
ด้านในมีที่นั่งแบบโซฟา
ในสุดมีมุม Private ซ้ายมือ ฝั่งขวามีเคาน์เตอร์ไว้วางอาหาร เครื่องดื่มได้
มุม Private มีชั้นหนังสือมาให้แบบนี้
ส่วนเคาน์เตอร์ มีตู้ใต้เคาน์เตอร์
มี Sink ล้างจานมาให้ด้วยครับ
มองกลับไปด้านนอกจะเห็นแบบนี้
กลับมาด้านหน้าตึก A จะพาเข้าไปดู Lobby และสวนบนดาดฟ้าครับ
ด้านหน้าทางเข้าตึก A เป็นกระจก
ต้องใช้ Key Card ในการเข้าออกทุกตึกครับ
เปิดประตูเข้ามาจะเจอโถง Lobby ในสุดเป็นลิฟท์ ซ้ายมือเป็นที่เก็บรถเข็นของ
ฝั่งซ้ายมีมุมนั่ง และเป็นส่วนของ Mail Box
เดินเข้ามาจะเห็น Mail Box เรียงเป็นแถว
ฝั่งหน้าลิฟท์จะเป็นชุดโซฟาแบบนี้
ลิฟท์แต่ละตึกจะมีให้ 2 ตัว
ปุ่มกดเป็นแบบสัมผัส
ภายในลิฟท์ตกแต่งมาแบบนี้
ปุ่มกดในลิฟท์แบบสัมผัส ต้องใช้ Key Card เพื่อขึ้นไปชั้นของตัวเอง
ขึ้นมาที่ชั้น 8 หน้าลิฟท์จะมีแถบน้ำเงินและตัวเลขบอกทุกชั้น
ทางเดินส่วนพักอาศัยปูกระเบื้องเซรามิกสีเทา บนชั้น 8 ตึก A มีสวนครับทางขึ้นอยู่ตรงบันไดหนีไฟ
เปิดประตูมาจะเห็นบันไดหนีไฟแบบนี้
เดินขึ้นไปจะมีประตูอีกที
เปิดออกมาจะเจอสวนดาดฟ้าขึ้นมาชมวิวได้ แต่จะได้เฉพาะลูกบ้านตึก A ครับ และอาจจะได้เฉพาะชั้น 8 ด้วยเพราะลิฟท์ล็อคชั้นเอาไว้
ตรงประตูจะมีเขียนบอกเวลาเปิด 9.00 น. ปิด 19.00 น.
มองไปฝั่งขวาจะเห็นพุ่มไม้ เสียดายมองวิวด้านนอกไม่ได้ เพราะมีกำแพงกั้นไว้
อีกฝั่งมีที่ให้นั่งด้วยครับ
รอบๆโครงการส่วนใหญ่ล้อมรอบไปด้วยอาคารพาณิชย์ ซึ่งมีทั้งเป็นที่อยู่อาศัยอย่างเดียว และเป็นร้านค้าด้วยก็มีครับ โดยทิศเหนือติดกับ ตึกแถว 3-5 ชั้น ฝั่งตลาดอมรพันธ์ ทิศใต้ติดกับกรมพัฒนาที่ดิน มีตึก 8 ชั้นอยู่ติดกับตึก F เลย ฝั่งนี้ก็จะโดน Block วิวหมด และมีตึกแถว 3-5 ชั้นตรงโซนหน้าโครงการ ทิศตะวันตกติดกับพื้นที่ของกรมพัฒนาที่ดินระยะประชิดไม่มีตึกสูงแต่มีอาคารพักอาศัย 5 ชั้นถัดออกไป และทิศตะวันออกติดกับตึกแถว 3-5 ชั้น ฝั่งนี้ติดกับถนนพหลโยธินครับ
ผมเก็บวิวมาฝากครับ ฝั่งนี้เป็นทิศเหนือมองไปฝั่ง ม.เกษตรฯ จะเห็นตึกแถวจำนวนมากสูงตั้งแต่ 3-5 ชั้น ที่เห็นซ้ายมือสูงๆเป็นคอนโด Premio Vetro ครับ รูปนี้ถ่ายจากตึก G
ฝั่งทิศเหนือแต่ผมมองไปยังถนนประเสริฐมนูกิจ จะเห็นว่าตึกแถวอยู่ติดกับร้ัวโครงการเลย

ฝั่งทิศตะวันตกหรือด้านหลังโครงการ วิวฝั่งนี้จะโล่งสุดครับเพราะติดกับกรมพัฒนาที่ดิน มองเห็นต้นไม้เขียวเยอะหน่อย แต่ก็มีอาคารพักอาศัย 5 ชั้นอยู่ในระยะถัดออกไป
ฝั่งทิศใต้ติดกับตึกแถว 3-5 ชั้น และกรมพัฒนาที่ดินซึ่งมีตึกสูง 8 ชั้นอยู่ Block วิวตึก F พอดี
ทิศตะวันออกหน้าโครงการติดกับถนนพหลโยธิน อนาคตก็จะเห็นแนวรถไฟฟ้าส่วนต่อขยาย หมอชิต-คูคต ที่กำลังก่อสร้างอยู่ครับ ฝั่งนู้นก็จะมีตึกแถว 3-5 ชั้น
มองไปทางขวาก็จะมีตึกแถว 5 ชั้น สังเกตดีๆจะเห็นตึกช้างครับ
มองมาทางซ้ายมองเห็นถนนประเสริฐมนูกิจ ติดกับโครงการมีตึกแถว 3-5 ชั้น ครับ
ปิดท้ายด้วยสวนและสระว่ายน้ำส่วนกลางครับ
Unit Type
โครงการนี้มีห้องทั้งหมด 4 แบบ

Studio-A ขนาด 23 ตร.ม.

Studio-B 26.86 ตร.ม.
1 Bedroom ขนาด 28.86 – 29.11 ตร.ม.
2 Bedroom ขนาด 46.25 – 46.76 ตร.ม.
ห้องตัวอย่าง
โครงการนี้เปิดขายเมื่อปี 2013 ตั้งแต่โครงการยังไม่สร้าง และตอนนี้สร้างเสร็จพร้อมเข้าอยู่ ห้องแบบ Studio และ 1 Bedroom ขายไปหมดแล้วครับ ถ้าอยากได้ต้องหาแบบ Resale ครับ ตอนนี้ทางโครงการเหลือแต่แบบ 2 Bedroom ครับ ทุกห้องขายแบบ Fully Furnished จะได้แบบที่เห็นในห้องตัวอย่างครับ ส่วนเครื่องใช้ไฟฟ้าจะได้ตามโปรโมชั่น

ห้องตัวอย่างที่พามาชมวันนี้มี 2 แบบครับห้องแรกเป็นแบบ Studio ขนาด 23 ตร.ม. เดินเข้ามาเจอส่วนครัวก่อนเป็นครัวเปิดเชื่อมกับส่วนห้องนอนเลย ห้องน้ำอยู่ติดกับครัวแบ่งพื้นที่ส่วแห้งและเปียก ส่วนนั่งเล่นใช้งานฟังก์ชั่นร่วมกันคือทั้งนั่งทำงาน รับประทานอาหาร และนั่งเล่น แต่จะดูทีวีไม่ได้ต้องมานั่งที่เตียงนอนแทน
ประตูเข้าห้องเป็นสีเทาอ่อนๆ มีเลขห้องอยู่ขวามือ
มือจับเป็นคันโยก
เปิดประตูเข้ามาจะเจอส่วนครัวก่อน ขวามือเป็นห้องน้ำ ถัดไปเป็นส่วนห้องนอน และห้องนั่งเล่นครับ พื้นเป็นไม้ลามิเนตหนา 8 มม. ทั้งห้อง ฝ้าสูง 2.6 ม. ไฟได้แบบโคมซาลาเปา
ส่วนครัวได้ชุดตู้และเคาน์เตอร์ ส่วนเครื่องใช้ไฟฟ้าจะอยู่ในโปรโมชั่นต้องสอบถามโครงการอีกทีครับ
ตู้เป็นบานเปิด ระบบไฟซ่อนไว้ด้านบน
ชุดตู้ด้านบน
ตู้ใต้เคาน์เตอร์มีลิ้นชัก 3 ชั้น
Top เป็นหินแกรนิต ได้ Sink ล้างจานแบบหลุมเดียว ไม่มีเตาให้ต้องซื้อเพิ่มเอง
ติดกันมีพื้นที่สำหรับวางตู้เย็นครับ
ฝั่งตรงข้ามมีตู้เก็บของอีก
เปิดออกมาจะเห็นว่าแบ่งช่องมาให้ ชั้นล่างไว้เก็บรองเท้า
ตรงข้ามเคาน์เตอร์ครัวมีห้องน้ำ ในห้องแบ่งส่วนเปียกส่วนแห้ง แต่ไม่ได้แถมฉากกั้นมาให้ครับ
ได้ชุดอ่างล้างหน้าแบบนี้
ตู้ใต้อ่างล้างหน้าเป็นบานเปิด 2 บาน
อ่างล้างหน้ามีพื้นที่วางของรอบๆ
โถสุขภัณฑ์พร้อมสายชำระของ Cotto
มุมด้านในเป็นพื้นที่ส่วนเปียก ฝักบัวปรับระดับสูงต่ำได้ ฉากกั้นไม่มีให้ต้องติดเพิ่มเองครับ
ฝักบัวขนาดพอเหมาะมือ
พื้นที่ส่วนเปียกขนาด 0.75 x 0.86 ม.
ธรณีประตูกั้นมาสูงพอประมาณ
ออกจากห้องน้ำมาเจอส่วนห้องนอนครับ มีโซฟาและโต๊ะด้านในสุด ได้แอร์ Samsung 1 ตัว
ตรงส่วนนี้ใช้ทั้งนั่งเล่น นั่งทำงาน นั่งทานข้าวได้ มีหน้าต่างเป็นบานเลื่อนสูงเกือบถึงฝ้าทำให้แสงเข้าห้องมาได้เยอะดี
โซฟานั่ง 2 คนกำลังดี ตัวนี้เลื่อนได้นะครับไม่ได้ Built-in
เลื่อนออกมาจะเห็นราวกันตก ไม่มีระเบียงให้นะครับ
ได้เตียงนอนขนาด 5 ฟุต พื้นที่ข้างเตียงเหลือประมาณ 35 ซม. พื้นที่ปลายเตียงเหลือประมาณ 1.35 ม.
ปลายเตียงมีลิ้นชักเก็บของได้
พื้นที่ข้างเตียงอีกฝั่งเหลือประมาณ 40 ซม.
ระยะดูทีวีปลายเตียงประมาณ 3.3 ม. ได้ตู้เก็บของซ้ายมือ และชั้นวางทีวี
ตู้วางทีวีเป็นบานเปิด 3 บาน
ตู้เสื้อผ้าอยู่ข้างเตียงด้านใน
เลื่อนตู้ออกมามีที่แขวน และชั้นด้านบน
ระเบียงมีประตูกระจกบานเลื่อน 2 บาน
เปิดออกมาจะเจอระเบียง
พื้นที่ระเบียงขนาด 1.9 x 1.08 ม.
ด้านข้างมีพื้นที่สำหรับวางเครื่องซักผ้าได้ มีท่อน้ำทิ้ง และปลั๊กไฟพร้อมฝาครอบ
ด้านบนแขวนคอมเพลสเซอร์แอร์มา 1 ตัว พร้อมติดกริลเป่าลมออกด้านนอกไว้ให้แล้ว
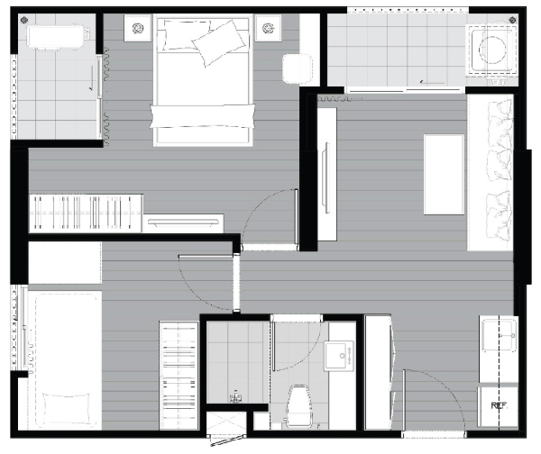
ห้องตัวอย่างห้องที่สองเป็นแบบ 2 Bedroom ครับ เดินเข้าห้องมาเจอส่วนครัวก่อนได้เป็นครัวเปิด เชื่อมกับส่วนนั่งเล่น และระเบียง ฝั่งซ้ายเป็นส่วนห้องนอน ห้อง Master Bedroom พื้นที่วางเตียง 5 ฟุตได้ และมีระเบียงมาให้ในห้อง ห้องนอนเล็กวางเตียงเดี่ยวกำลังดี มีหน้าต่างมาให้ในห้อง ส่วนห้องน้ำอยู่ตรงข้ามกับ Master Bedroom พื้นที่ค่อนข้างกว้างครับ
เปิดประตูเข้าห้องมาเจอส่วนห้องครัวก่อน เชื่อมกับห้องนั่งเล่น และระเบียง ซ้ายมือมีทางเดินเข้าห้องนอน และห้องน้ำ
ถ่ายย้อนกลับให้ดูส่วนครัวได้ตู้ทั้งสองฝั่ง
ฝั่งนี้คล้ายๆกับห้องแรก ไม่มีเตาไฟฟ้าให้ต้องติดเพิ่มเอง
ชุดตู้ด้านบนเป็นบานเปิด ระบบไฟอยู่ขวามือ
ชุดตู้ด้านล่างมีลิ้นชักสามชั้น และบานเปิด 1 บาน
ตู้อีกฝั่งแบ่งเป็นชั้นบน และล่างพร้อม Pantry
ชุดตู้ด้านบนแบ่งชั้นมาให้เก็บของได้เยอะดี
ชุดตู้ด้านล่างก็เป็นบานเปิดเช่นกันครับ ฝั่งซ้ายทำมาให้เก็บรองเท้า
ถัดจากครัวเป็นส่วนนั่งเล่น
ได้โซฟาเหมือนห้องแรกแต่ยาวกว่าหน่อย โต๊ะก็ได้ครับ
ระยะดูทีวีประมาณ 2.7 ม. ได้ชั้นวางทีวีแบบนี้เลย
ตู้เป็นบานเปิด 4 บานเก็บของจุกจิกได้
ประตูกระจกบานเลื่อน 2 บานตรงระเบียง แอร์ Samsung ติดตรงส่วนนี้เลย
ระเบียงขนาด 2.85 x 1.09 ม.
คอมเพลสเซอร์แอร์ 2 ตัวแขวนด้านข้างติดกริลเป่าลมออกนอกอาคาร
มองกลับเข้ามาด้านใน ขวามือจะมีทางเดินไปห้องนอนทั้ง 2 ห้อง และห้องน้ำ
ซ้ายมือเป็นห้องน้ำ ขวามือเป็น Master Bedroom ตรงกลางเป็นห้องนอนเล็ก
ภายในห้องน้ำได้พื้นที่กว้างกว่าห้องแรก
เคาน์เตอร์อ่างล้างหน้าให้มาใหญ่ดีวางของได้เยอะ พร้อมชั้นวางของ
โถสุขภัณฑ์ของ Cotto
ด้านข้างโถสุขภัณฑ์มีช่องเล็ก และทำชั้นวางของมาให้อีก
อีกฝั่งเป็นพื้นที่ส่วนเปียก ไม่มีฉากกั้นให้ต้องติดเพิ่มเอง
พื้นที่ส่วนเปียกขนาด 0.80 x 1.2 ม.
ธรณีประตูสูงดีกั้นน้ำเลอะด้านนอก
เข้ามาดู Master Bedroom อยู่ฝั่งตรงข้ามห้องน้ำ
ได้เตียงขนาด 5 ฟุต พื้นที่ข้างเตียงขวามือเหลือประมาณ 74 ซม.
พื้นที่ปลายเตียงเหลือประมาณ 84 ซม.
พื้นที่ข้างเตียงอีกฝั่งเหลือ 70 ซม.
ระยะดูทีวีปลายเตียงประมาณ 3 ม.
ชั้นวางทีวีได้ตู้เก็บของเป็นบานเปิด
ติดกับทีวีเป็นตู้เสื้อผ้า Built-in มาให้
ได้โต๊ะเครื่องแป้งพร้อมกระจกวางไว้ซ้ายมือ แอร์ Samsung ติดเหนือโต๊ะเครื่องแป้ง
โต๊ะเครื่องแป้งมีลิ้นชักให้
ฝั่งตรงข้ามมีประตูกระจกบานเลื่อน 2 บาน
เปิดออกมามีระเบียงให้ พื้นที่ขนาด 1.1 x 1.9 ม.
ด้านบนแขวนคอมเพลสเซอร์แอร์ 1 ตัว ไฟตรงระเบียงเป็นกล่องดาวน์ไลท์
มาดูห้องนอนเล็กกันต่อ
ได้เตียงเดี่ยวครับห้องนี้
พื้นที่ปลายเตียงเหลือประมาณ 80 ซม. โต๊ะปลายเตียงที่เห็นสามารถพับลงมาได้นะครับ ถ้ากางออกแบบนี้เป็นโต๊ะทำงานได้
พื้นที่ข้างเตียงเหลือประมาณ 50 ซม.
ข้างเตียงมีลิ้นชักมาให้ 3 อัน
ระยะดูทีวีปลายเตียงประมาณ 2.8 ม. แอร์ Samsung ติดปลายเตียง
ด้านข้างมีกระจกบานเลื่อน 2 บาน และมีราวกันตกไม่มีระเบียง ซ้ายมือมีชั้นวางของให้
ชั้นวางของมี 2 ชั้น ไว้วางหนังสือ และของจุกจิกได้
ข้างเตียงอีกฝั่งได้ตู้เสื้อผ้าบานเลื่อน 2 บาน
ราคา
จอง 10,000 ทำสัญญา 20,000 บาท
***โปรโมชั่นฟรีค่าใช้จ่ายวันโอน, ฟรีเครื่องใช้ไฟฟ้าตู้เย็น ทีวี ไมโครเวฟ, ลงทะเบียนในเว็บไซต์ได้ส่วนลดเพิ่ม 10,000 บาท
ค่าส่วนกลาง 55 บาท/ตร.ม. : ค่ากองทุน 500 บาท/ตร.ม
***รายละเอียดอื่นๆโปรดสอบถามทางโครงการครับ
สรุป
ทำเลที่ตั้งโครงการ – Chapter One The Campus ตั้งอยู่ในย่านที่มีชุมชนคึกคัก อยู่ติดถนนใหญ่ ใกล้มหาวิทยาลัยชื่อดังห่างไม่เกิน 300 ม. ใกล้ตลาดอมรพันธ์ และตลาดบางเขน และสถานที่ราชการอย่างกรมพัฒนาที่ดิน กรมป่าไม้ โรงพยาบาลเมโย โรงพยาบาลวิภาวดี และห่างจากสนามบินดอนเมืองประมาณ 17 กม. ย่านนี้มีความอุดมสมบูรณ์ค่อนข้างสูงครับเลือกกินได้สบายๆ ตั้งแต่ร้านข้างทาง และในห้างสรรพสินค้า อยู่แถวนี้ไม่อดตายแน่นอนครับ
การเดินทางด้วยรถยนต์ส่วนตัว – ตัวโครงการตั้งอยู่ติดถนนพหลโยธินเลยทำให้เดินทางเข้าออกโครงการสะดวก แต่ทางเข้า-ออกจะหลบมุมไปหน่อยไม่มีป้ายโครงการติดด้านหน้าต้องสังเกตดีๆครับ การเดินทางเข้าและออกเมือง เส้นหลักๆที่จำเป็นคือ พหลโยธินสามารถไปได้จนถึงอนุสาวรีย์ และไปสะพานใหม่ รังสิต ยาวไปถึงอยุธยาได้ เส้นงามวงศ์วานก็จำเป็นครับเพราะไปเชื่อมออกวิภาวดี มีทางด่วนให้ขึ้นอีกด้วย และอีกเส้นคือประเสริฐมนูกิจสามารถไปรามอินทรา มีนบุรี และมีทางด่วนรามอินทรา-อาจณรงค์ที่เส้นนี้ด้วยครับ ถือว่ามีตัวเลือกเยอะดี แต่ก็ต้องเผื่อเวลากันด้วยเพราะแถวนี้รถติดหนักมากในช่วงเวลาเร่งด่วน และยิ่งตอนนี้มีการก่อสร้างรถไฟฟ้าส่วนต่อขยายยิ่งลำบากหน่อยครับ
การเดินทางด้วยรถสาธารณะ – สะดวกมากครับไม่ต้องมีรถส่วนตัวก็อยู่ที่นี่ได้สบายๆ มีทั้งรถเมล์ รถตู้ วิ่งผ่านหลายสายเช่นไปงามวงศ์วาน ปากเกร็ด จตุจักร อนุสาวรีย์ชัยฯ ประตูน้ำ สยาม มาบุญครอง Taxi วินมอเตอร์ไซค์ โบกขึ้นหน้าโครงการได้เลย และอนาคตจะมีรถไฟฟ้า BTS ส่วนต่อขยาย หมอชิต-คูคต ผ่านหน้าโครงการ โดยสถานีที่ใกล้สุดคือสถานีเสนานิคมเป็นระยะที่เดินได้ ถ้าสร้างเสร็จพร้อมใช้งานก็จะสบายขึ้นแน่นอนครับ แต่ก็ต้องรออีกหลายปีเลย ตอนนี้ก็ใช้ MRT ตรงห้าแยกลาดพร้าวไปก่อนครับ หรือมาตรงจตุจักรมีให้เลือกทั้ง BTS และ MRT เลย
การออกแบบโครงการและวัสดุ – ตัวอาคารออกแบบมาเป็นทรงเหลี่ยม Facade ก็เป็นเหลี่ยมๆตามตัวอาคาร ใช้โทนสีเทาเข้มและอ่อน ตัวตึกทั้ง 7 ตึกออกแบบมาให้ล้อมรอบ Facility ทั้งหมด และกระจาย Facility ไปทุกๆตึกลูกบ้านสามารถเข้าถึงได้ทุกตึก แต่จะแค่เฉพาะส่วนกลางเท่านั้น ทำให้การเข้าถึงพื้นที่ส่วนกลางนั้นจะกระจายกันออกในแต่ละส่วน ไม่ได้มารวมอยู่จุดเดียว
รูปแบบห้องพักออกแบบมาขนาดไม่ใหญ่มากเน้นซอยห้องย่อยๆมากกว่า ห้อง Studio มีจำนวนมากสุด และ 1 Bedroom ซึ่งก็ขายดีจนหมดเกลี้ยง เหลือแต่ห้อง 2 Bedroom ที่โครงการขายอยู่ตอนนี้ ออกแบบมาให้ใช้พื้นที่คุ้มค่า ครบทุกฟังก์ชั่นการใช้งาน แต่ละส่วนจะพยายามดึงแสงจากด้านนอกเข้ามา เช่น บานหน้าต่างกระจกก็ให้มาใหญ่ดี ระเบียงห้องก็สามารถใช้งานได้จริงทั้งวางเครื่องซักผ้า และตากผ้าครับ ส่วนวัสดุก็ได้มาแบบจัดเต็มตามราคา มีชุดครัว ได้ Sink ล้างจาน ห้องน้ำแบ่งส่วนแห้งส่วนเปียกแต่ต้องติดฉากกั้นเพิ่มเอง ตู้ เตียง โต๊ะ โซฟามีมาให้ครบ ถือกระเป๋ามาใบเดียวก็เข้าอยู่ได้เลยครับ ส่วนพื้นได้ลามิเนตหนา 8 มม. ฝ้าสูง 2.6 ม.
สิ่งอำนวยความสะดวก – มีมาหลากหลายฟังก์ชั่นเลยแต่ขนาดก็ไม่ได้ใหญ่มากครับ และจะอยู่ที่ชั้นล่างทั้งหมด ตั้งแต่ Lobby แยกทุกตึก/ Shop 15 ร้านตรงตึก A และ B,C /ห้องสมุดตรงตึก C /ห้องฟิตเนสที่ตึก D / ห้องโยคะที่ตึก E / ห้อง Steam ที่ตึก F / Lounge ที่ตึก G / สระว่ายน้ำอยู่ตรงระหว่างตึก F กับ G และสวนข้างสระว่ายน้ำ พร้อมกับสวนหย่อมตามช่องว่างระหว่างตึก ส่วนที่จอดรถก็จะอยู่รอบนอกตัวตึกประมาณ 55% (รวมซอนคัน) ลิฟท์แต่ละตึกมี 2 ตัว อัตราส่วนอยู่ที่ 1:50 – 1:60 มีรปภ. 24 ชั่วโมง CCTV และผ่านเข้าออกด้วยระบบ Key Card Access
คะแนน
| ทำเลที่ตั้งโครงการ | 8.5 | ติดถนนพหลโยธิน ใกล้ม.เกษตร |
| การเดินทาง ใช้รถ | 7.5 | ใกล้ถนนสำคัญๆเข้าออกเมืองง่าย ใกล้ทางด่วน แต่จุดกลับรถไกลถ้าจะไปห้าแยกลาดพร้าวโดยใช้เส้นพหลโยธิน |
| การเดินทาง ไม่ใช้รถ | 8.0 | มีป้ายรถเมล์หน้าโครงการ รถเมล์ รถตู้วิ่งว่านหลายสาย ใกล้ BTS ส่วนต่อขยายหมอชิต-คูคต |
| ห้องและวัสดุ | 7.5 | วัสดุที่ใช้อยู่ในระดับมาตรฐาน ได้เฟอร์นิเจอร์ครบชุด หิ้วกระเป๋าเข้าอยู่ได้เลย |
| สิ่งอำนวยความสะดวก | 7.5 | Facility มีหลากหลาย |
| ความคุ้มค่ากับราคา | 7.0 | ถ้าชอบทำเลย่านนี้ก็ใช้ได้ อนาคตติดรถไฟฟ้าราคาอาจจะโดดไปอีกพอประมาณ |
| คะแนนรวมเฉลี่ย | 7.66 | ดี |
สอบถามเพิ่มเติมได้ที่
Call Center : 1739
Website : http://www.pruksa.com
หากเพื่อนๆเห็นว่ารีวิวนี้มีประโยชน์ ช่วยกด Like เพื่อเป็นกำลังใจให้ทีมงาน ขอบคุณครับ
และมีความคิดเห็นหรือข้อมูลเพิ่มเติมเกี่ยวกับตัวโครงการ สามารถ Comment ได้ที่ด้านล่างของรีวิวครับ