EP.2335 รีวิว คาซ่า วาคานซ่า เขาใหญ่ Casa Vacanza khao Yai บ้านพักตากอากาศพร้อม Private Pool ใจกลางเขาใหญ่ ล้อมรอบด้วยวิวทิวเขาแบบ Panoramic 360 องศา เริ่ม 13.9 ล้านบาท*
Written by : THAnATH
สวัสดีผู้อ่านชาว Homenayoo ทุกคน วันนี้ผมพามาชมบ้านพักตากอากาศโครงการ Casa Vacanza Khaoyai จาก บริษัท เคพีเอ็น เรสซิเดนซ์ จำกัด ติดถนนบ้านหนองกรวด ใกล้ถนนโยธาธิการ 2213, ถนน 3052, ถนน 2311, ถนน 1016, ถนนธนะรัชต์ และถนนมิตรภาพ
ใกล้แนวทางด่วนมอเตอร์เวย์ บางปะอิน-นครราชสีมา (ด่านปากช่อง) ใกล้อุทยานแห่งชาติเขาใหญ่ รายล้อมไปด้วยร้านอาหาร โรงแรม และสถานที่ท่องเที่ยวหลายแห่ง
คาซ่า วาคานซ่า เขาใหญ่ กับแนวคิด “Nature is the Art of Life” คฤหาสน์หรู ใจกลางเขาใหญ่ ล้อมรอบด้วยวิวทิวเขาแบบ Panoramic 360 องศา รูปแบบโครงการเป็นบ้านพักตากอากาศ บ้านเดี่ยว 1 ชั้น สไตล์ Mediterranean ที่ดินโครงการขนาด 38-0-18 ไร่ มีความเป็นส่วนตัวสูงด้วยจำนวนยูนิตทั้งหมดเพียง 43 ยูนิต
มีแบบบ้านให้เลือก 3 แบบ ขนาดที่ดินบ้านเริ่มที่ 115-474 ตร.ว. พื้นที่ใช้สอย 201-575 ตร.ม. ฟังก์ชันบ้าน 2-4 ห้องนอน, 3-5 ห้องน้ำ, 1 ห้องอเนกประสงค์, 1 ห้องแม่บ้าน, Grand Terrace, Outdoor Jacuzzi*, Private Pool* ที่จอดรถ 2-3 คัน รองรับการติดตั้ง Ev Charger บ้านทุกหลังตกแต่งแบบ Fully Furnished*
สิ่งอำนวยความสะดวกมาตรฐานภายในโครงการครบครัน อาทิ Clubhouse, Lobby, Business Lounge, Fitness Room, ห้องน้ำแยกชายหญิง, Sauna Room และสระว่ายน้ำระบบเกลือยาว 25 ม., สวนขนาดใหญ่ 2 จุด, Pavilion, สนามเด็กเล่น, Jogging Track, ระบบสายไฟลงใต้ดิน ส่วนระบบรักษาความปลอดภัย ประตูเข้า-ออกโครงการใช้ระบบ Pass Card Access Control มี รปภ. ตลอด 24 ชม. และติดตั้ง CCTV ทั้งโครงการ ในราคาเริ่มต้น 13.9 ล้านบาท* (พ.ย. 66)
ลงทะเบียนรับสิทธิพิเศษ คลิก : https://casa-vacanza.casa/
สำหรับรายละเอียดต่าง ๆ ของโครงการนี้จะมีความน่าสนใจอย่างไรบ้าง ไปติดตามกันต่อด้านล่างได้เลยครับ
| ชื่อโครงการ | คาซ่า วาคานซ่า เขาใหญ่ / Casa Vacanza Khao Yai |
| เจ้าของโครงการ | บริษัท เคพีเอ็น เรสซิเดนซ์ จำกัด / KPN RESIDENCE |
| ลักษณะโครงการ | บ้านพักตากอากาศ (บ้านเดี่ยว 1 ชั้น) |
| พื้นที่โครงการ | 38-0-18 ไร่ |
| จำนวนบ้าน | 43 ยูนิต |
| เนื้อที่บ้าน | เริ่ม 115-474 ตร.ว. |
| พื้นที่ใช้สอย | 201, 313, 575 ตร.ม. |
| จำนวนห้อง | 2-4 ห้องนอน, 3-5 ห้องน้ำ, 1 ห้องอเนกประสงค์, 1 ห้องแม่บ้าน, Grand Terrace, Outdoor Jacuzzi, Private Pool |
| ที่จอดรถทั้งหมด | 2-3 คัน |
| โซน | ปากช่อง-เขาใหญ่ |
| เส้นทางคมนาคม |
|
| ที่ตั้ง | หมู่ 10 ตำบลโป่งตาลอง อ.ปากช่อง จ.นครราชสีมา 30130 |
| กำหนดการ | เปิดชมบ้านตัวอย่าง ปี 66 |
| ปีที่สร้างเสร็จ | แล้วเสร็จทั้งโครงการ ปี 68 |
| ราคา | เริ่ม 13.9 ล้านบาท* (พ.ย. 66) |
| ค่าส่วนกลาง | 35 บ./ตร.ว./ด. |
| สถานที่สำคัญใกล้เคียง | ศูนย์การค้า
ตลาด ร้านสะดวกซื้อและอื่น ๆ
สถานศึกษา
ศูนย์การแพทย์
อาคารสำนักงานและหน่วยงานอื่น ๆ
**ระยะทางวัดจากการเดินทางสู่จุดหมาย โดยถนนที่ใกล้ที่สุด** |
| สิ่งอำนวยความสะดวก |
|
| Tel | 099-593-9998 |
| Line | @casavacanza |
| Website | https://casa-vacanza.casa/ |
ที่ตั้งโครงการ
หมู่ 10 ตำบลโป่งตาลอง อ.ปากช่อง จ.นครราชสีมา 30130
พิกัด Google โดยประมาณ : 14.538812, 101.527088

Casa Vacanza Khaoyai เป็นบ้านพักตากอากาศที่ตั้งอยู่ในอำเภอปากช่อง ใกล้อุทยานแห่งชาติเขาใหญ่ ซึ่งเป็นแหล่งท่องเที่ยวสำคัญแห่งหนึ่งของประเทศ มีนักท่องเที่ยวตลอดทั้งปี เนื่องจากเดินทางมาง่ายเพียงไม่กี่ชั่วโมงจากกรุงเทพฯ ช่วงวันหยุดยาว หรือเทศกาลสำคัญ โรงแรม รีสอร์ตแถวนี้จะถูกจับจองกันจนเต็มหลายที่
ส่วนโครงการพักอาศัยตากอากาศ ก็มีทั้งคอนโดมิเนียม และบ้าน หลายแบรนด์ที่เข้ามาพัฒนาโครงการ ซึ่ง Casa Vacanza Khaoyai ก็เป็นหนึ่งในนั้นครับ เหมาะกับครอบครัวที่จะซื้อเก็บไว้เป็นบ้านพักตากอากาศในช่วงวันหยุด ไม่ต้องไปจองที่พักแข่งกับคนอื่นและไม่มีความเป็นส่วนตัว หรืออาจจะเก็บไว้เป็นบ้านพักหลังเกษียณอายุก็เป็นตัวเลือกที่ดีเลยครับ
ตัวโครงการอยู่ติดถนนบ้านหนองกรวด ใกล้ถนนโยธาธิการ 2213, ถนน 3052, ถนน 2311, ถนน 1016, ถนนธนะรัชต์ และถนนมิตรภาพ และใกล้แนวทางด่วนมอเตอร์เวย์ บางปะอิน-นครราชสีมา (ด่านปากช่อง) รายล้อมไปด้วยร้านค้า ร้านอาหาร โรงแรม และสถานที่ท่องเที่ยวหลายแห่ง
การเดินทางโดยรถส่วนตัว สะดวกเชื่อมต่อได้หลายเส้นทาง จากโครงการใช้ถนนบ้านหนองกรวดมาออกถนนโยธาธิการ 2213 จากนั้นเชื่อมมาออกถนน 3052 ใช้เดินทางมาออกถนนธนะรัชต์ไปเชื่อมออกถนนมิตรภาพได้ และเส้นนี้ในอนาคตจะมีจุดขึ้นลงทางด่วนมอเตอร์เวย์ บางปะอิน-นครราชสีมา (ด่านปากช่อง) ตอนนี้อยู่ในช่วงก่อสร้าง
จากถนนมิตรภาพใช้เดินทางเชื่อมไปทางจังหวัดสระบุรี และไปเข้าถนนพหลโยธินเชื่อมต่อไปทางจังหวัดพระนครศรีอยุธา วิ่งยาวเชื่อมต่อไปเข้าจังหวัดปทุมธานี จากนั้นก็มุ่งหน้าต่อเข้ากรุงเทพฯ ได้เลย ใช้เวลาเดินทางจากโครงการ ประมาณ 2 ชม.* ก็เข้าเขตกรุงเทพฯ แล้วครับ หรือจากถนนพหลโยธินตรงช่วงจังหวัดพระนครศรีอยุธยา จะตัดเข้าทางด่วนกาญจนาภิเษก วงแหวนรอบนอก เชื่อมต่อเข้ากรุงเทพฯ ได้เช่นกัน
จากถนนธนะรัชต์ถ้าวิ่งขึ้นอุทยานแห่งชาติเขาใหญ่ ไปเชื่อมเข้าถนน 3077 สามารถเชื่อมไปลงอีกฝั่งของเขาใหญ่ที่จังหวัดปราจีนบุรี และจังหวัดนครนายกได้
จากถนนมิตรภาพถ้าวิ่งไปอีกฝั่งจะเชื่อมไปเข้าตัวจังหวัดนครราชสีมา เชื่อมต่อไปโซนภาคอีสานได้ทั้ง ขอนแก่น, ชัยภูมิ, บุรีรัมย์ เป็นต้น จากถนน 3052 ถ้าวิ่งมาอีกฝั่งจะมาเชื่อมออกถนน 304 ใช้วิ่งไปตัวจังหวัดนครราชสีมาได้อีกทาง หรือจะวิ่งลงมาทางจังหวัดปราจีนบุรี เชื่อมต่อไปจังหวัดสระแก้ว จังหวัดฉะเชิงเทราได้
ภาพจากกรมทางหลวง
ทางด่วน ที่อยู่ใกล้โครงการคือ ทางด่วนมอเตอร์เวย์ บางปะอิน-นครราชสีมา ตอนนี้อยู่ในช่วงก่อสร้างจะแล้วเสร็จทั้งโครงการประมาณปี 2568 มีจุดเริ่มต้นเชื่อมต่อกับถนนกาญจนาภิเษก วงแหวนรอบนอกกรุงเทพฯ ที่อำเภอบางปะอิน จังหวัดพระนครศรีอยุธยา ผ่านจังหวัดสระบุรี และไปสิ้นสุดที่บริเวณทางเลี่ยงเมืองจังหวัดนครราชสีมาด้านตะวันตก อำเภอเมือง จังหวัดนครราชสีมา
โดยตัวโครงการจะอยู่ใกล้จุดขึ้นลงทางด่วน ด่านปากช่อง ซึ่งถ้าเปิดให้ใช้บริการเมื่อไหร่จะช่วยให้การเดินทางเชื่อมต่อเข้าออกกรุงเทพฯ ได้สะดวกและรวดเร็วมากขึ้นครับ
ภาพจากเว็บไซต์ https://mgronline.com/
นอกจากนี้ในอนาคตยังมีโครงการ ทางด่วนสายฉลองรัช-นครนายก-สระบุรี ซึ่งใช้เป็นเส้นทางในการเดินทางไปยังโครงการได้อีกทาง โดยจุดเริ่มต้นจะเชื่อมต่อจากทางด่วนฉลองรัช (ด่านจตุโชติ) ในเขตกรุงเทพฯ ตัดผ่านถนนกาญจนาภิเษก และไปผ่านจังหวัดปทุมธานี จังหวัดนครนายก และไปสิ้นสุดที่จังหวัดสระบุรีเชื่อมกับถนนมิตรภาพ
โดยจะมีจุดตัดกับ ทางด่วนมอเตอร์เวย์ บางปะอิน-นครราชสีมา อีกด้วย ถ้าเปิดใช้งานก็จะมีตัวเลือกในการเดินทางเชื่อมต่อกรุงเทพฯ และจังหวัดใกล้เคียงได้สะดวกมากขึ้นไปอีกครับ
ถนนและแยกสำคัญใกล้เคียง
**ระยะทางวัดจากการเดินทางสู่จุดหมาย โดยถนนที่ใกล้ที่สุด**
ความอุดมสมบูรณ์ เนื่องจากเป็นพื้นที่ในแหล่งท่องเที่ยว และเป็นพื้นที่ชุมชนพักอาศัย จะมีทั้งตลาด ร้านค้า ร้านอาหาร ร้านสะดวกซื้อ เป็นระยะ ๆ มีโรงแรมหลายแห่งที่สามารถเข้าไปใช้บริการในส่วนร้านอาหาร คาเฟ่ และสนามกอล์ฟได้ ที่สำคัญเลยคือใกล้กับอุทยานแห่งชาติเขาใหญ่ เป็นแหล่งท่องเที่ยวที่สำคัญเลยก็ว่าได้ มีนักท่องเที่ยวเดินทางมาตลอดทั้งปี เนื่องจากเป็นสถานีที่ท่องเที่ยวธรรมชาติที่สวยงาม เดินทางจากกรุงเทพฯ มาได้ง่ายเพียงไม่กี่ชั่วโมง
ส่วนแหล่งอำนวยความสะดวก ห้างสรรพสินค้าจะอยู่ตามถนนธนะรัชต์ และถนนมิตรภาพ มีทั้ง Makro ปากช่อง-เขาใหญ่, ไทวัสดุ, Premium Outlet เขาใหญ่, HomePro ปากช่อง-เขาใหญ่, Lotus’s ปากช่อง-เขาใหญ่, Big C ปากช่อง-เขาใหญ่
สถานศึกษาใกล้เคียง มีทั้ง รร.สระน้ำใสวิทยา, รร.พฤกษาวิทยา, รร.บ้านหนองจอก, รร.บ้านหนองขวางวิทยา, รร.บ้านเขาจันทน์หอม, รร.เขาใหญ่พิทยาคม, รร.บ้านคลองดินดำ, รร.ทหารพรานกองทัพบก, รร.บ้านหนองตะกู, รร.นิคมสร้างตนเองลำตะคอง 4, St.Stephen’s International School
โรงพยาบาลใกล้เคียง มีทั้ง รพ.สต.หนองขวาง, รพ.มกุฏคีรีวัน, รพ.สต.ท่าช้าง, รพ.ปากช่องนานา 2, รพ.ปากช่องนานา, รพ.กรุงเทพ ปากช่อง
ศูนย์การค้า
ตลาด ร้านสะดวกซื้อและอื่น ๆ
สถานศึกษา
ศูนย์การแพทย์
อาคารสำนักงานและหน่วยงานอื่น ๆ
**ระยะทางวัดจากการเดินทางสู่จุดหมาย โดยถนนที่ใกล้ที่สุด**
ภาพประกอบการเดินทาง
วันนี้ทางทีมงาน Homenayoo มีภาพการเดินทางไปสู่ตัวโครงการโดยใช้รถยนต์ส่วนตัวมาฝากกันครับ โดยเราจะเริ่มการเดินทางจาก
ถนนธนะรัชต์ > ถนน 3052 > ถนนโยธาธิการ 2213 > ถนนบ้านหนองกรวด > Casa Vacanza Khaoyai
เริ่มจากถนนธนะรัชต์ และเลี้ยวซ้ายเข้าถนน 3052 ตรงหน้าจะเป็นด่านทางขึ้นอุทยานแห่งชาติเขาใหญ่
เลี้ยวมาเข้าถนน 3052 จากนั้นขับตรงไปตามทาง
ตามทางจะผ่านโรงแรม และคอนโดตากอากาศหลายโครงการ
ขับมาสักพักจะมีป้ายโครงการตามริมทางบอกเป็นระยะ ๆ
ขับมาตามทางก็จะผ่าน ร้านค้า ร้านอาหารต่าง ๆ หลายร้าน มีปั๊มน้ำมันเป็นระยะ ๆ
จากนั้นขวามือจะผ่าน Toscana Valley
และจะเจอป้ายโครงการให้เตรียมเลี้ยวซ้ายข้างหน้า
จากนั้นจะเจอทางแยก ให้เลี้ยวซ้ายเข้าถนนโยธาธิการ 2213
เลี้ยวซ้ายมาเข้าถนนโยธาธิการ 2213 ขับไปตามทางอีกประมาณ 2 กม.*
เส้นนี้จะมีปั๊มน้ำมันอยู่ด้วย
จากนั้นจะเจอทางแยกให้เลี้ยวซ้ายเข้าถนนบ้านหนองกรวด ปากทางเป็นที่ตั้ง Sale Gallery ของโครงการ
เลี้ยวซ้ายเข้าถนนบ้านหนองกรวด ขวามือเป็น Sale Gallery ตรงเข้าไปตามทางอีกครับ
จากปากทางเข้ามาประมาณ 1 กม.* จะเจอทางเข้าโครงการซ้ายมือ
เลี้ยวเข้ามาจะเจอพื้นที่โครงการพอดี วันที่เข้าไปถ่ายรีวิวด้านหน้าโครงการยังอยู่ในช่วงก่อสร้างครับ
ภาพมุมสูงที่ดินโครงการ
จากภาพถ่ายดาวเทียมจะเห็นว่าพื้นที่รอบๆโครงการส่วนใหญ่จะเป็นพื้นที่ว่างเปล่า และบ้านพักอาศัย บรรยากาศโดยรอบค่อนข้างเงียบสงบ มีความเป็นส่วนตัวสูง เหมาะกับการเป็นบ้านพักตากอากาศ
รอบโครงการ
ตัวโครงการ
Casa Vacanza Khaoyai กับแนวคิด “Nature is the Art of Life” คฤหาสน์หรู ใจกลางเขาใหญ่ ล้อมรอบด้วยวิวทิวเขาแบบ Panoramic 360 องศา รูปแบบโครงการเป็นบ้านพักตากอากาศหรู 1 ชั้น สไตล์ Mediterranean ตัวโครงการตั้งอยู่บนที่ดินขนาด 38-0-18 ไร่ มีความเป็นส่วนตัวสูงด้วยจำนวนยูนิตทั้งหมดเพียง 43 ยูนิต
จากด้านหน้าโครงการจะมีประตูกั้นใช้ระบบ Pass Card Access Control ส่วนผู้ที่มาติดต่อต้องแลกบัตรก่อนทุกครั้ง ผ่านเข้ามาจะมีจุด Drop Off ที่เชื่อมต่อกับสวนพักผ่อนด้านหน้า ถนนหลักจะยาวเชื่อมเข้ามาด้านในและจะแบ่งซอยย่อยฝั่งทิศตะวันตกทั้งหมด เพื่อเชื่อมกับส่วนพักอาศัย
มีพื้นที่ส่วนกลางอีกจุดอยู่ด้านหลังโครงการ เป็น Clubhouse และสวนพักผ่อน ระบบสายไฟในโครงการลงใต้ดินทั้งหมด พร้อมระบบรักษาความปลอดภัย CCTV รปภ. 24 ชม.
วันที่เข้าไปถ่ายรีวิว ตัวโครงการยังอยู่ในช่วงก่อสร้าง มีภาพมาให้ชมได้บางส่วนเท่านั้นครับ เริ่มจากตรงส่วน Drop Off หน้าโครงการ เป็นวงเวียนต้นไม้ รถสามารถวนออกได้เลย ตรงหน้าจะเห็นแนวกำแพงขนาดใหญ่โค้งตามแนววงเวียน เป็นเหมือนจุดต้อนรับของโครงการ ดีไซน์มาในสไตล์ Mediterranean มีชื่อโครงการมองเห็นได้ชัดเจน
แนวกำแพงจะมีส่วนที่เป็นซุ้มโค้ง มองเห็นเชื่อมต่อสวนด้านใน เป็นพื้นที่สวนส่วนกลางจุดแรกหน้าโครงการ
เดินเข้าไปดูด้านในสวนกันครับ ทางเข้าเหมือนเดินผ่านอุโมงค์เข้าไป
ด้านในจะเป็นพื้นที่สวนขนาดใหญ่
ตรงกลางสวนจะมีพื้นที่ให้นั่งพักผ่อนได้
มองกลับไปฝั่งแนวกำแพงจะเห็นแบบนี้
ภายในสวนตกแต่งมาได้ร่มรื่น มีทั้งต้นไม้ใหญ่ ไม้พุ่ม และไม้ดอก
วิวจากสวนมองออกไปนอกโครงการจะเห็นแนวภูเขา วิวสวยมากครับ
ถัดมาส่วนนี้จะเป็นพื้นที่นั่งพักผ่อนจะมีชุดโต๊ะนั่งมาให้
มีพื้นที่สนามหญ้าโล่ง ๆ ไว้ให้ทำกิจกรรมต่าง ๆ ได้
มองจากมุมปลายสวนฝั่งด้านใน
เดินเชื่อมมาอีกฝั่งจะเป็นที่ตั้งของศาลพระพรหมโครงการ
ภาพจำลองบรรยากาศภายในโครงการ เลือกใช้ระบบสายไฟฟ้าใต้ดินเพื่อให้ลูกบ้านได้ชมความสวยงามของทัศนียภาพได้อย่างเต็มที่
ภาพจำลองอาคาร Clubhouse แรงบันดาลใจจากโบสถ์ Abbaye de Senanque เมือง Gordes ประเทศฝรั่งเศส ตัวอาคารดูสวยโดดเด่นมาก ๆ ภายในจะมีทั้ง Lobby, Business Lounge, Fitness Room, ห้องน้ำแยกชายหญิง, Sauna Room และสระว่ายน้ำระบบเกลือยาว 25 ม.
ภาพจำลองห้องฟิตเนส มีเครื่องออกกำลังกายมาให้ครบครัน
ภาพจำลองห้องฟิตเนส
ภาพจำลองภายในห้องน้ำชาย
ภาพจำลองพื้นที่สวนขนาดใหญ่ติดกับ Clubhouse ตกแต่งมาในสไตล์ Mediterranean มีแนวลำธารยาวกว่า 400 ม. พร้อมทางเดิน และ Jogging Track ยาวกว่า 1 กม.
ภาพในสวนอีกโซนมี Pavilion ไว้นั่งพักผ่อน และสนามเด็กเล่น
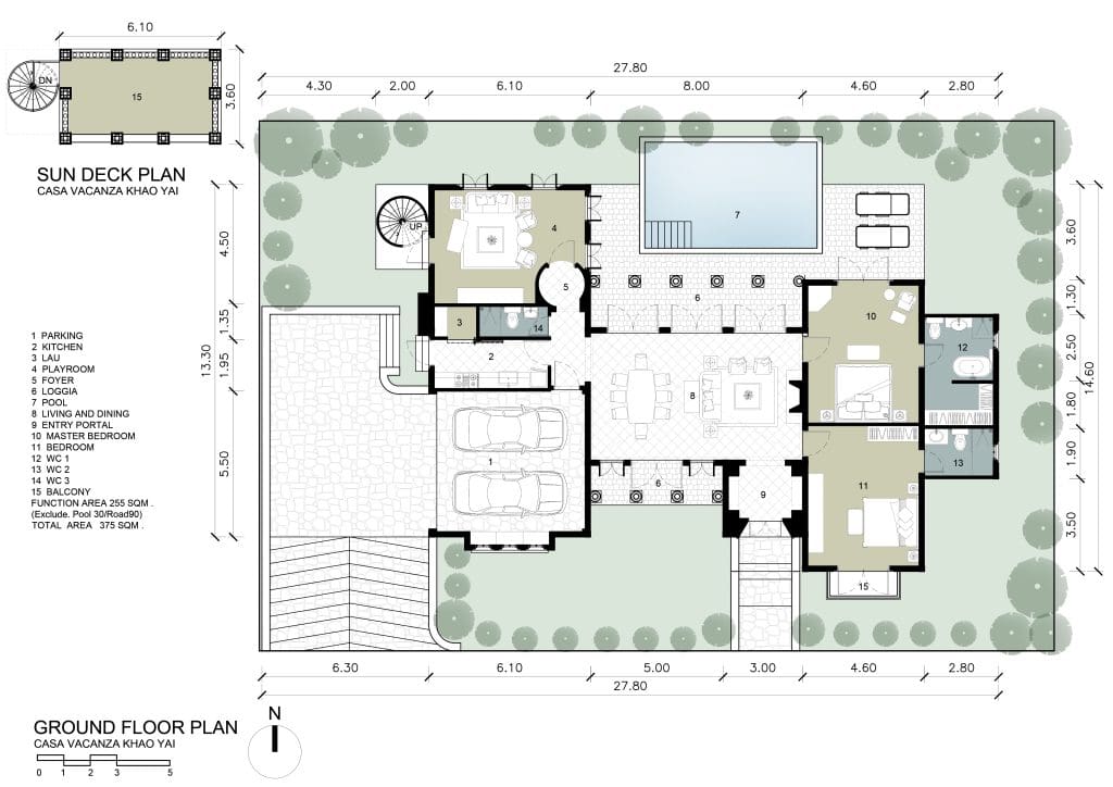
แบบบ้าน
โครงการ Casa Vacanza Khaoyai มีแบบบ้านให้เลือก 3 แบบดังนี้
แปลนบ้านชั้น 1
แปลนบ้านชั้น 1
แปลนบ้านชั้น 1
บ้านตัวอย่าง
วันนี้เรามีบ้านตัวอย่างให้ชม 2 แบบ เป็นแบบ
จุดเด่นของบ้านโครงการ Casa Vacanza Khaoyai ที่น่าสนใจ
บ้านตัวอย่าง แบบบ้าน Delfinio เดฟินิโอ พื้นที่ใช้สอย 201 ตร.ม.
เริ่มกันที่บ้านตัวอย่าง แบบบ้าน Delfinio เดฟินิโอ (Type C) บ้านพักตากอากาศ 1 ชั้น ที่ดินเริ่ม 115-126 ตร.ว. พื้นที่ใช้สอย 201 ตร.ม. ฟังก์ชัน 2 ห้องนอน, 3 ห้องน้ำ, 1 ห้องอเนกประสงค์, Grand Terrace, Outdoor Jacuzzi, 2 ที่จอดรถ
เป็นแบบบ้านขนาดเริ่มต้นของโครงการ ภายนอกบ้านตกแต่งมาในสไตล์ Mediterranean หลังคาทรงจั่ว ตกแต่ง facade มาได้สวย มีส่วนที่เป็นซุ้มโค้ง ดูโดดเด่นเป็นเอกลักษณ์ โทนสีภายนอกเลือกใช้โทนสีเบจดูอบอุ่นกลมกลืนไปกับธรรมชาติ
ตัวบ้านก่อด้วยอิฐมวลเบา 2 ชั้น ความหนาถึง 20 ซม. มีช่องว่างประมาณ 5 ซม. ซึ่งจะช่วยให้ผนังบ้านมีความเย็นสบายกว่าอิฐมอญ 4-8 เท่า และยังกันเสียงได้ดี รวมทั้งมีน้ำหนักเบาแต่ยังคงความแข็งแรง กันความร้อนได้ดี ช่วยประหยัดค่าไฟฟ้าได้กว่า 30% และทนไฟได้นานกว่า 4 ชั่วโมง
การฉาบผนังทั้งภายนอกและภายในบ้าน ใช้วัสดุตกแต่งผนังแบบ World Premium Decorate Material จาก Suzuka ซึ่งเป็นผู้นำด้านนวัตกรรมการผลิตวัสดุตกแต่งผนังระดับเอเชียตะวันออกเฉียงใต้ ประตูบ้านเป็นบานไม้จริง ส่วนประตูและหน้าต่างกระจก เป็นกระจกใสเขียวตัดแสง เฟรมอลูมิเนียม
แปลนบ้านเริ่มจากด้านหน้ามีที่จอดรถในร่ม 2 คัน ดีไซน์ให้เป็นเหมือนโรงจอดรถ Garage จากที่จอดรถมีประตูเชื่อมเข้าในบ้านได้ ส่วนประตูหลักเข้าบ้านจะอยู่ตรงหมายเลข 4 เดินเข้าบ้านไปจะเจอห้องนั่งเล่น ออกแบบให้พื้นที่เปิดโล่งยาวเชื่อมต่อกับส่วนรับประทานอาหารและส่วนครัว มีห้องน้ำไว้รองรับฟังก์ชันครบทั้งส่วนเปียกส่วนแห้ง จากส่วนห้องนั่งเล่นจะมีประตูเปิดเชื่อมออกไปยังพื้นที่หลังบ้านเป็นระเบียงในร่ม (Loggia) และจะเป็นส่วนของ Jacuzzi เดินวนมามุมหลังบ้านจะมีบันไดวนเดินเชื่อมขึ้นไปยังระเบียงลอยฟ้าได้
กลับเข้ามาในบ้านมุมหลังบ้านมีห้องอเนกประสงค์ ทำเป็นห้องพักผ่อนหรือห้องนอนอีกห้องได้ อีกฝั่งของบ้านมุมด้านหน้าจะเป็นห้อง Master Bedrooom มีพื้นที่กว้างวางเตียง King Size ได้พร้อมโต๊ะข้างเตียง โซฟาปลายเตียง มีพื้นที่ให้วางโซฟา หรือทำพื้นที่แต่งตัวก็ได้ มีห้องน้ำในห้องนอนพร้อมอ่างอาบน้ำ และส่วน Walk-in closet ติดกันมุมหลังบ้านเป็นห้องนอน 2 ภายในมีพื้นที่มาให้พอสมควร วางเตียง 5 ฟุตได้ มีห้องน้ำในห้องนอน
มาต่อกันที่บ้านตัวอย่าง ด้านหน้าบ้านตกแต่งสวนมาให้ดู
ทางเข้าบ้านพื้นจะเป็น Copper Stone ลงเสาเข็มมาให้เท่าตัวบ้าน
ตรงเข้ามาฝั่งซ้ายจะเป็นที่จอดรถในร่ม 2 คัน มีประตูเชื่อมเข้าบ้านจากที่จอดรถได้
ที่จอดรถเป็นการเข้าจอดแบบด้านข้างมีผนัง และหน้าต่างให้เป็นโรงจอดรถแบบ Garage จะทำประตูเปิด-ปิดอัตโนมัติ เพิ่มอีกก็ได้ครับ ระบบไฟบ้าน 3 เฟส ขนาด 30/100 แอมป์ รองรับการติดตั้ง EV Charger
เดินไปดูรอบ ๆ บ้านกันต่อ หน้าบ้านมีพื้นที่เหลือ ตกแต่งเป็นสวนน้ำพุมาให้ดู
มองไปฝั่งตัวบ้านจะเป็นระเบียงของห้องนอน Master Bedroom ที่ยื่นออกมาเชื่อมต่อกับสวน
ข้างบ้านมีพื้นที่เหลือให้จัดสวนได้เช่นกัน
เดินมาฝั่งหลังบ้าน มีพื้นที่ให้จัดสวนได้อีกเช่นกัน มุมนี้จะเป็นระเบียงของห้องนอน 2
เดินถัดมาจะเจอกับ Jacuzzi ตั้งไว้กลางแจ้งหลังบ้านขนาดนอนแช่พร้อมกัน 2 คน ติดตั้งมาให้เลย นอนแช่ตัวพร้อมชมวิวเขาได้
พื้นที่หลังบ้านจะเชื่อมต่อกับระเบียงทางเดินขนาดใหญ่ (Loggia) เป็นพื้นที่แบบ Semi-Outdoor เราจะเอาชุดโต๊ะนั่งมาวางเพิ่มก็ได้ มีประตูเชื่อมเข้าในบ้านได้ พื้นปูกระเบื้องขนาด 30 x 30 ซม.
เดินมาข้างบ้านอีกฝั่งมีพื้นที่ให้จัดสวนเช่นกัน และมุมด้านหลังจะมีบันไดวนเดินเชื่อมขึ้นไปได้
เดินขึ้นบันไดมาจะเจอกับระเบียงลอยฟ้า ขึ้นมารับลมชมวิวเขาได้ 360 องศา หรือดูดาวตอนกลางขึ้นก็ได้
วิวจากระเบียงชั้นบนมองไปฝั่งหลังบ้าน
มองลงมาจะเห็นสวน Jacuzzi ชั้นล่างพอดี
วิวมาหน้าบ้านอีกฝั่ง
กลับมาที่หน้าประตูบ้าน
ประตูบ้านไม้จริง เป็นแบบบานเปิด 2 บาน ด้านบนประตูเป็นทรงโค้งตามแนวซุ้มประตู
ฝั่งด้านในติดกับประตูบ้านจะเป็นส่วน Foyer ไว้ถอดรองเท้า วางตู้เก็บรองเท้าเพิ่มได้
ถัดเข้ามาในบ้านจะเห็นได้ถึงความโปร่ง โล่ง จัดวางฟังก์ชันแบบ Open Plan ได้พื้นกว้างเชื่อมต่อกันทั้งส่วนห้องนั่งเล่น ส่วนรับประทานอาหาร และส่วนครัว พื้นบ้านเป็นกระเบื้อง Terracootta Kenzai Florence tile หรือเทียบเท่า ปูแบบลายก้างปลา ฝ้าเพดานสูงกว่า 5 ม. ผนังใช้วัสดุตกแต่งแบบ World Premium Decorate Material จาก Suzuka
มองกลับไปอีกฝั่ง
เงยหน้ามองบนฝ้า ตกแต่งด้วยคานไม้ทรงจั่วแบบนี้เลย พร้อม Chandelier ทรงคลาสสิค ได้อารมณ์บ้านสไตล์ Mediterranean และยังมีช่องแสงหรือ Clerestory Window ทำให้ห้องดูโปร่ง เปิดโล่ง และโออ่า
ส่วนห้องนั่งเล่นได้พื้นที่กว้าง จะได้ชุดโซฟาตามนี้เลย พร้อมอาร์มแชร์และโต๊ะกลาง ส่วนของตกแต่งจะไม่ได้แถมให้นะครับ
ด้านหลังโซฟามีโต๊ะ Console ไว้ให้วางของได้อีก
ระยะดูทีวีให้มากว้าง ติดทีวีจอขนาด 50 นิ้วได้เลย ขวามือเป็น Master Bedroom ซ้ายมือเป็นห้องนอน 2
ฝั่งด้านหลังมีประตูกระจกเปิดเชื่อมออกไปยังระเบียงหลังบ้าน และส่วน Jacuzzi นั่นเอง
ภายในบ้านดูโปร่ง ออกแบบให้มีช่องแสง 2 ฝั่ง เป็นกระตูกระจกเปิดพร้อมกันช่วยให้ลมพัดผ่านได้สะดวกอีกด้วย ส่วนห้องนั่งเล่นจะได้แอร์แบบฝัง ดูเรียบร้อย
ถัดมาเป็นส่วนรับประทานอาหาร พื้นที่เปิดโล่งเชื่อมต่อกัน
ได้ชุดโต๊ะรับประทานอาหารขนาด 6 ที่นั่ง วางแล้วยังมีพื้นที่เหลือให้เดินได้รอบด้าน สังเกตชุดเฟอร์ที่แถมให้จะคุมโทนสีเดียวกันทั้งหมด ช่วยทำให้บ้านดูสวยเหมือนเราไปพักตามรีสอร์ต โรงแรม
จากโต๊ะรับประทานอาหารมองไปฝั่งห้องนั่งเล่น ใช้งานทีวีร่วมกันได้เลย
ถัดไปอีกจะเป็นส่วนครัว ได้เป็นครัวเปิดขนาดใหญ่ ซ้ายมือจะเป็นห้องน้ำ ขวามือเป็นห้องอเนกประสงค์
ชุดเคาน์เตอร์ครัวจะได้ตามนี้เลยครับ เป็นไม้ทั้งหมด ตู้ทุกบานมี Soft close ให้ เครื่องใช้ไฟฟ้าไม่ได้แถมให้นะครับ ตรงครัวจะมีหน้าต่างให้เปิดระบายอากาศได้อีกด้วย
ได้อ่างล้างจานไซส์ใหญ่สีขาวของ Metrix ฝังท็อปเคาน์เตอร์มาให้เรียบร้อย ก๊อกน้ำสามารถดึงหัวก๊อกออกมาได้ใช้งานสะดวก
ติดกันได้เตาไฟฟ้าหน้าเซรามิกแบบ 3 หัว ของ Mex พร้อมเครื่องดูดควันของ Eve ท็อปเคาน์เตอร์เป็นหินสังเคราะห์ ส่วน Backsplash กรุกระเบื้องมาให้ ทำความสะอาดได้ง่าย
มองไปฝั่งนี้ซ้ายมือเป็นประตูเชื่อมออกที่จอดรถ ขวามือเป็นห้องน้ำ
ภายในห้องน้ำแบ่งส่วนเปียกส่วนแห้ง พื้นและผนังตกแต่งด้วยกระเบื้องโทนสีเบจดูสบายตา ติดตั้งพัดลมดูดอากาศมาให้ช่วยให้อากาศไหลเวียนได้ดี ชุดสุชภัณฑ์ภายในห้องน้ำเป็นของ Kohler หรือเทียบเท่า ห้องน้ำตกแต่งมาในสไตล์ Classic ให้เข้ากับตัวบ้าน
อ่างล้างมือวางบนเคาน์เตอร์ มีพื้นที่วางของรอบ ๆ อ่าง และพื้นที่เก็บของใต้อ่าง ก๊อกน้ำสีทองเหลืองแบบผสมน้ำร้อนน้ำเย็น
ติดกันวางโถสุขภัณฑ์ พร้อมสายฉีดชำระ และที่ใส่กระดาษทิชชู่สีทองเหลือง
ด้านในเป็นพื้นที่ส่วนเปียกติดตั้งฉากกั้นอาบน้ำเพิ่มเองได้ ติดตั้งชุด Rain Shower & Hand Shower พร้อมก๊อกน้ำแบบผสมน้ำร้อนน้ำเย็นสีทองเหลือง ในห้องน้ำมีช่องแสงเป็นบานกระทุ้ง 1 บาน สามารถเปิดระบายอากาศได้
กลับออกมาด้านนอก มองไปอีกฝั่งจะเป็นห้องอเนกประสงค์ ประตูห้องเป็นกระจกบานเปิด
ภายในห้องอเนกประสงค์มีพื้นที่มาให้พอสมควร ทำเป็นห้องพักผ่อน หรือเป็นห้องนอนอีกห้องก็ได้ ในห้องจะได้แอร์ติดผนัง 1 ตัว
ได้ชุดโซฟา 2 ตัวตามนี้เลย
กลับออกมาด้านนอกไปดูห้องนอนกันต่อ ขวามือเป็นห้อง Master Bedroom ซ้ายมือเป็นห้องนอน 2
Master Bedroom ตำแหน่งห้องอยู่โซนหน้าบ้าน มีพื้นที่มาให้เยอะพอสมควร พร้อมห้องน้ำในห้องนอน ในห้องจะได้แอร์ติดผนัง 1 ตัว
ได้เตียงนอน King Size พร้อมโต๊ะข้างเตียง
โต๊ะข้างเตียงเป็นลิ้นชักไว้ให้เก็บของ ติดกันวางโต๊ะเครื่องแป้งมาให้อีกชุด
ระยะดูทีวีปลายเตียงให้มากว้างติดทีวีขนาด 55 นิ้วได้เลย ได้ตู้วางทีวีตามนี้เลยครับ
ตู้วางทีวีเป็นลิ้นชักไว้เก็บของและตู้บานเปิด 2 บาน
ฝั่งด้านหน้าเป็นระเบียงมีประตูกระจกทรงโค้งเปิดเชื่อมออกไปได้ จะมองเห็นสวนหน้าบ้านพอดีนั่นเองครับ
ฝั่งด้านในเป็นห้องน้ำในห้องนอน
ภายในห้องน้ำแบ่งส่วนเปียกส่วนแห้งมาให้ พื้นและผนังตกแต่งด้วยกระเบื้องโทนสีเบจดูสบายตา มีช่องแสงขนาดใหญ่ทำให้ดูสว่าง และยังเปิดระบายอากาศได้ พร้อมติดตั้งพัดลมดูดอากาศมาให้อีกด้วย
สุขภัฑณ์ภายในห้องน้ำของ Kohler หรือเทียบเท่า
ชุดอ่างล้างมือฝังบนเคาน์เตอร์ มีตู้เก็บของใต้อ่าง และเป็นตำแหน่งติดตั้งเครื่องทำน้ำร้อน
ติดกันวางโถสุขภัณฑ์พร้อมสายฉีดชำระและที่ใส่กระดาษทิชชู่
มุมด้านในเป็นอ่างอาบน้ำแบบลอยตัว พร้อมชุดก๊อกน้ำและฝักบัว
อีกฝั่งเป็นเหมือน Walk-in closet
ด้านในมีตู้เสื้อผ้าขนาด 4 บานเปิด พร้อมไฟซ่อนในตู้มาให้แบบนี้เลย เก็บเสื้อผ้าได้เยอะดี
ถัดมาเป็นห้องนอน 2 ตำแหน่งอยู่โซนหลังบ้าน ภายในให้พื้นที่มาพอสมควรพร้อมห้องน้ำในห้องนอน ในห้องจะได้แอร์ติดผนัง 1 ตัว
ได้เตียงนอน 5 ฟุต แบบ 4 เสา พร้อมโต๊ะข้างเตียง
ฝั่งปลายเตียงมีพื้นที่ให้วางทีวีได้อีก
ในห้องมีช่องแสงขนาดใหญ่ 2 ฝั่ง ซ้ายมือเปิดเชื่อมออกไปตรงระเบียงหลังบ้านได้ ขวามือเป็นประตูเปิดเชื่อมระเบียงหลังห้องได้
ฝั่งด้านในเป็นห้องน้ำ และพื้นที่วางตู้เสื้อผ้า
ได้ตู้เสื้อผ้าขนาดบานเปิด 4 บาน พร้อมไฟซ่อนในตู้ตามนี้เลย
ภายในห้องน้ำแบ่งส่วนเปียกส่วนแห้งมาให้ พื้นและผนังตกแต่งด้วยกระเบื้องโทนสีเบจ มีช่องแสงขนาดใหญ่ทำให้ดูสว่าง และยังเปิดระบายอากาศได้ พร้อมติดตั้งพัดลมดูดอากาศมาให้อีกด้วย ตกแต่งมาเหมือนห้องน้ำด้านนอก สุขภัณฑ์ที่ได้ของ Kohler หรือเทียบเท่า
ด้านในเป็นพื้นที่ส่วนเปียกติดตั้งฉากกั้นอาบน้ำเพิ่มเองได้ ติดตั้งชุด Rain Shower & Hand Shower พร้อมก๊อกน้ำแบบผสมน้ำร้อนน้ำเย็นสีทองเหลือง
บ้านตัวอย่าง แบบบ้าน Gladiolo กลาดิโอโล พื้นที่ใช้สอย 575 ตร.ม.
แบบบ้าน Gladiolo กลาดิโอโล (Type A) บ้านพักตากอากาศ 1 ชั้น ที่ดินเริ่ม 350-474 ตร.ว. พื้นที่ใช้สอย 575 ตร.ม. ฟังก์ชัน 4 ห้องนอน, 5 ห้องน้ำ, 1 ห้องอเนกประสงค์, 1 ห้องแม่บ้าน, Grand Terrace, Private Pool, 3 ที่จอดรถ
เป็นแบบบ้านขนาดใหญ่สุดของโครงการ ภายนอกบ้านตกแต่งมาในสไตล์ Mediterranean หลังคาทรงจั่ว ตกแต่ง facade มาได้สวย ดูโดดเด่นเป็นเอกลักษณ์ โทนสีภายนอกเลือกใช้โทนสีเบจดูอบอุ่นกลมกลืนไปกับธรรมชาติ
ตัวบ้านก่อด้วยอิฐมวลเบา 2 ชั้น ความหนาถึง 20 ซม. การฉาบผนังทั้งภายนอกและภายในบ้าน ใช้วัสดุตกแต่งผนังแบบ World Premium Decorate Material จาก Suzuka ประตูบ้านเป็นบานไม้จริง ส่วนประตูและหน้าต่างกระจก เป็นกระจกใสเขียวตัดแสง เฟรมอลูมิเนียม
แปลนบ้านเริ่มจากฝั่งด้านหน้า มีทางเข้าออกรถแยกกับทางเดินเข้าหน้าบ้าน ที่จอดรถจอดได้ 3 คัน เป็นการเข้าจอดแบบด้านข้างมีผนังและหน้าต่าง เป็นโรงจอดรถแบบ Garage มีประตูเชื่อมเข้าบ้านจากที่จอดรถได้ ติดกับที่จอดรถจะเป็นห้องแม่บ้านพร้อมห้องน้ำในตัว ฝั่งหน้าบ้านเดินเข้าไปจะผ่านส่วน Entry Portal เหมือนเป็น Foyer ก่อนเข้าไปโซนด้านในบ้าน
ผ่านเข้าไปด้านในจะมี Courtyard กลางบ้าน และจะแบ่งพื้นที่ฝั่งด้านหน้าเป็นห้องนอน 4 มีห้องน้ำในห้องนอน ด้านบนห้องนอน 4 จะเป็นส่วนของระเบียงลอยฟ้า ส่วนฝั่งข้างบ้านอีกฝั่งมุมหน้าบ้านจะเป็นห้อง 2 ได้พื้นที่กว้างมีห้องน้ำในห้องนอนพร้อมอ่างอาบน้ำ ติดกันจะเป็นห้องนอน 3 ขนาดพื้นที่วางเตียง 5 ฟุตได้ มีห้องน้ำในห้องนอน
ส่วนฝั่งด้านในสุดของ Courtyard จะเป็นส่วนห้องนั่งเล่นได้พื้นที่กว้างเปิดโล่งเชื่อมต่อกับส่วนทานอาหาร มีประตูเชื่อมออกหลังบ้านเป็นพื้นที่ของสระว่ายน้ำกลางแจ้ง มุมหลังบ้านจะเป็นห้อง Master Bedroom ได้พื้นที่ขนาดใหญ่ วางเตียง King Size ชุดโซฟา อาร์มแชร์ได้ มีพื้นที่สำหรับ Walk-in closet และห้องน้ำในห้องนอนพร้อมอ่างอาบน้ำ จากในห้องนอนมีประตูเชื่อมออกไปสระว่ายน้ำหลังบ้านได้เลย
มุมหลังบ้านอีกฝั่งจะเป็นห้องอเนกประสงค์ ได้พื้นที่กว้างทำเป็นห้องพักผ่อน หรือห้องนอนอีกห้องก็ได้ มีประตูเชื่อมออกไปสระว่ายน้ำได้ ติดกับห้องอเนกประสงค์จะเป็นห้องครัว ได้เป็นครัวปิดขนาดใหญ่
มาดูบ้านตัวอย่างกันต่อ รอบ ๆ บ้านมีพื้นที่มาให้พอสมควร จัดตกแต่งสวนได้ตามต้องการ บ้านดูน่าอยู่มาก ๆ ครับ
มุมหน้าบ้านอีกฝั่ง ตัวบ้านดีไซน์มาได้สวยดูมีมิติไม่ว่าจะมองจากมุมไหนก็ตาม
ข้างบ้านฝั่งนี้จะเป็นทางเข้าที่จอดรถ พื้นจะเป็น Copper Stone ลงเสาเข็มมาให้เท่าตัวบ้าน
ที่จอดรถเป็นการเข้าจอดแบบด้านข้างมีผนัง และหน้าต่างให้เป็นโรงจอดรถแบบ Garage จะทำประตูเปิด-ปิดอัตโนมัติ เพิ่มอีกก็ได้ครับ ระบบไฟบ้าน 3 เฟส ขนาด 30/100 แอมป์ รองรับการติดตั้ง EV Charger จากที่จอดรถจะมีประตูเชื่อมเข้าในบ้านได้
บริเวณพื้นที่กลางแจ้งส่วนนี้ยังสามารถจอดรถได้อีกครับ
ข้างบ้านมีพื้นที่เหลือให้จัดสวนได้อีก ติดกับที่จอดรถซ้ายมือจะเป็นห้องแม่บ้านพร้อมห้องน้ำในตัว เวลาเรามาพักวันหยุดแล้วพาแม่บ้านมาด้วยก็ให้นอนพักที่ห้องนี้ได้เลย ไม่ต้องรบกวนพื้นที่ในบ้าน
พื้นที่หลังบ้านจะจัดสวนเพิ่มอีกก็ได้ มีประตูเชื่อมเข้าพื้นที่ในบ้านได้หลายส่วน
หลังบ้านจะได้สระว่ายน้ำกลางแจ้งขนาด 9.6 x 5.4 ม. ลึก 1.2 ม. เป็นระบบ Heat Pump สามารถปรับอุณภูมิเป็นน้ำอุ่นได้ ใช้งานส่วนตัวได้ตลอดทั้งวัน
มองไปฝั่งด้านในริมสระจะเชื่อมกับส่วนทางเดินเข้าในบ้านได้
มองออกไปด้านนอกจะเห็นวิวภูเขาไกล ๆ วิวดีมากครับ ปลายสระเราสามารถวางเป็น Daybed เพิ่มเองได้ หรือใครจะจัด Pool Party ก็ได้นะครับมีพื้นที่เหลือสบาย ๆ
กลับมาที่หน้าบ้าน ทางเดินเข้าบ้านและประตูหน้าบ้านออกแบบมาได้ดู Grand มาก ๆ
หน้าบ้านมีพื้นที่ให้จัดสวนตกแต่ง เราจะวางเป็น Pavilion ไว้นั่งพักผ่อนก็ได้ครับ
เดินเข้ามาส่วนแรกจะเป็น Entry Portal เหมือนเป็น Foyer ก่อนเข้าไปโซนด้านในบ้าน
ฝ้าเพดานสูงโปร่งพร้อม Chandelier ทรงคลาสสิค
ส่วนนี้จะได้โต๊ะวางของ และม้านั่งพักคอย เราจะวางชั้นวางรองเท้าเพิ่มอีกก็ได้ ถัดไปจะเป็นประตูบ้าน บานไม้จริง เป็นแบบบานเปิด 2 บาน ทรงโค้งตามแนวซุ้มประตู
เดินถัดเข้ามาด้านในจะเจอกับ Courtyard กลางบ้าน มีทางเดินเชื่อมต่อรอบ Courtyard เพื่อเชื่อมไปยังส่วนต่าง ๆ ของบ้าน
Courtyard กลางบ้าน จะเป็นพื้นที่กลางแจ้งไม่มีหลังคาปกคลุม แต่จะถูกล้อมรอบด้วยฟังก์ชันต่าง ๆ ของบ้าน ทำให้ได้ความเป็นส่วนตัว เราสามารถเอาชุดโต๊ะนั่งขนาดใหญ่มาวางได้เลย หรือจะปลูกต้นไม้ใหญ่ให้กิ่งก้านแผ่ร่มเงาก็ได้ครับ ผมชอบแปลนบ้านหลังนี้นะ ออกแบบมาได้ดีเลยครับ
จาก Courtyard มุมด้านในจะมีบันไดเดินเชื่อมขึ้นไปยังระเบียงด้านบนได้
เดินขึ้นมาจะเจอกับพื้นที่ระเบียงขนาดใหญ่ เป็นพื้นที่แบบ Semi-Outdoor เอาชุดโต๊ะนั่งมาวางได้ ขึ้นมารับลมชมวิวภูเขาได้เลย
วิวจากบ้านตัวอย่างฝั่งหน้าบ้านจะเห็นสวนหน้าโครงการพอดี ถัดออกไปจะเห็นแนวภูเขาดูเป็นธรรมชาติมาก ๆ ครับ
มองลงมาจะเห็นสวนน้ำพุหน้าบ้านพอดี
จากระเบียงมองไปอีกฝั่งจะเห็นส่วน Courtyard กลางบ้านพอดี
พื้นที่ใต้ระเบียง ชั้นล่างจะเป็นห้องนอน 4 ประตูทางเข้าเป็นกระจกบานเปิด
ภายในห้องนอน 4 มีพื้นที่มาให้พอสมควรขนาดพื้นที่วางเตียง 3-5 ฟุตได้ มีห้องน้ำในห้องนอน บ้านตัวอย่างจัดไว้ให้เป็นห้องทำงาน
ในห้องนี้จะได้ชุดโต๊ะทำงาน และตู้วางของด้านหลังตามนี้เลย หรือใครทำซื้อเตียงนอนมาเพิ่มเองก็ได้ครับ
มองไปฝั่งด้านในจะเห็นส่วน Courtyard กลางบ้านพอดี
ฝั่งด้านในจะเป็นห้องน้ำ ขวามือจะเป็นตู้เสื้อผ้า ในห้องจะได้แอร์ติดผนัง 1 ตัว
ตู้เสื้อผ้าจะได้แบบบานเปิด 2 บาน พร้อมไฟซ่อน
ภายในห้องน้ำแบ่งส่วนเปียกส่วนแห้ง พื้นและผนังตกแต่งด้วยกระเบื้องโทนสีเบจดูสบายตา ติดตั้งพัดลมดูดอากาศมาให้ช่วยให้อากาศไหลเวียนได้ดี ชุดสุชภัณฑ์ภายในห้องน้ำเป็นของ Kohler หรือเทียบเท่า ในห้องน้ำมีช่องแสงเป็นบานกระทุ้ง 1 บาน สามารถเปิดระบายอากาศได้
ออกมาตรง Courtyard ฝั่งด้านข้างจะเป็นห้องนอน 2 และห้องนอน 3
ห้องนอน 2 ตำแหน่งอยู่โซนหน้าบ้าน ภายในมีพื้นที่มาให้เยอะมีห้องน้ำในห้องนอน เหมือนเป็น Master Bedroom อีกห้อง ในห้องจะได้แอร์ติดผนัง 1 ตัว
ได้เตียงนอน 5 ฟุต พร้อมโต๊ะข้างเตียง และโซฟาปลายเตียง
ระยะดูทีวีก็กว้าง ติดทีวีจอขนาด 55 นิ้วได้เลย
ฝั่งด้านหน้าจะเป็นระเบียงมีประตูกระจกเปิดเชื่อมออกไปได้ จะเห็นสวนหน้าบ้านพอดี
ฝั่งด้านในเป็นห้องน้ำ ซ้ายมือเป็นพื้นที่วางตู้เสื้อผ้า
ตู้เสื้อผ้าได้ขนาด 4 บานเปิด พร้อมไฟซ่อนในตู้มาให้แบบนี้เลย
ภายในห้องน้ำแบ่งส่วนเปียกส่วนแห้งมาให้ พื้นและผนังตกแต่งด้วยกระเบื้องโทนสีเบจ มีช่องแสงขนาดใหญ่ทำให้ดูสว่าง และยังเปิดระบายอากาศได้ พร้อมติดตั้งพัดลมดูดอากาศมาให้อีกด้วย สุขภัฑณ์ภายในห้องน้ำของ Kohler หรือเทียบเท่า
ชุดอ่างล้างมือฝังบนเคาน์เตอร์ มีตู้เก็บของใต้อ่าง
ติดกันวางโถสุขภัณฑ์พร้อมสายฉีดชำระและที่ใส่กระดาษทิชชู่
อีกฝั่งเป็นพื้นที่ส่วนเปียก มีทั้งส่วนยืนอาบน้ำ และอ่างอาบน้ำ
ได้อ่างอาบน้ำแบบลอยตัว พร้อมชุดก๊อกน้ำและฝักบัว
พื้นที่ส่วนเปียกติดตั้งชุด Rain Shower & Hand Shower พร้อมก๊อกน้ำแบบผสมน้ำร้อนน้ำเย็นสีทองเหลือง
ถัดมาห้องนอน 3 ภายในให้พื้นที่มาพอสมควรพร้อมห้องน้ำในห้องนอน ในห้องจะได้แอร์ติดผนัง 1 ตัว
ได้เตียงนอน 5 ฟุต พร้อมโต๊ะข้างเตียง และโซฟาปลายเตียง
ฝั่งปลายเตียงได้ระยะดูทีวีกว้าง ติดทีวีจอขนาด 55 นิ้วได้
ฝั่งด้านในเป็นห้องน้ำ และพื้นที่วางตู้เสื้อผ้า
ได้ตู้เสื้อผ้าขนาดบานเปิด 3 บาน พร้อมไฟซ่อนในตู้ตามนี้เลย
ภายในห้องน้ำแบ่งส่วนเปียกส่วนแห้งมาให้ พื้นและผนังตกแต่งด้วยกระเบื้องโทนสีเบจ มีช่องแสงขนาดใหญ่ทำให้ดูสว่าง และยังเปิดระบายอากาศได้ พร้อมติดตั้งพัดลมดูดอากาศมาให้อีกด้วย สุขภัณฑ์ที่ได้ของ Kohler หรือเทียบเท่า
ออกมาตรง Courtyard ฝั่งด้านในจะเป็นส่วน Common Area และห้องนอน Master Bedroom ประตูทางเข้าจะเป็นกระจกบานเปิด 6 บาน
เดินเข้ามาด้านในจะเจอกับส่วน Common Area ก่อน จัดวางแบบ Open Plan ได้พื้นที่กว้างเปิดโล่งเชื่อมต่อกัน ระว่างส่วนห้องนั่งเล่นและส่วนทานอาหาร ฝ้าเพดานสูงกว่า 5 ม. พร้อมช่องแสงขนาดใหญ่สองฝั่ง เพิ่มความโปร่งในบ้านได้ดี พื้นเป็นกระเบื้อง Terracootta Kenzai Florence tile หรือเทียบเท่า ปูแบบลายก้างปลา
ส่วนฝ้าตกแต่งด้วยคานไม้ทรงจั่ว พร้อม Chandelier ทรงคลาสสิค ได้อารมณ์บ้านสไตล์ Mediterranean และยังมีช่องแสงหรือ Clerestory Window ทำให้ห้องดูโออ่า
ตรงส่วนห้องนั่งเล่นจะได้ชุดโซฟาขนาดใหญ่พร้อมโต๊ะกลาง นั่งได้ 6-7 ที่นั่ง
ด้านหลังโซฟามีโต๊ะ Console ไว้ให้วางของตกแต่งได้
ะยะดูทีวีให้มากว้าง ติดทีวีจอขนาด 50 นิ้วได้เลย ขวามือเป็นทางเข้าห้อง Master Bedroom
ถัดมาเป็นส่วนรับประทานอาหาร พื้นที่เปิดโล่งเชื่อมต่อกัน
ได้ชุดโต๊ะรับประทานอาหารขนาด 8 ที่นั่ง มีพื้นที่เหลือให้เดินได้รอบด้าน ห้องนี้จะได้แอร์แบบฝัง
มองไปฝั่งห้องนั่งเล่นจะเห็นแบบนี้
ฝั่งด้านหลังมีประตูกระจกเปิดเชื่อมออกไปยังสระว่ายน้ำหลังบ้านได้
เปิดออกมาจะเจอระเบียงทางเดินที่เชื่อมต่อกับสระว่ายน้ำนั่นเองครับ
มองกลับเข้ามาในบ้าน มองไปอีกฝั่งจะเห็นส่วน Courtyard กลางบ้าน
เดินเข้าไปดูห้อง Master Bedroom กันต่อ จะมีทางเดินแยกโซนไว้
ทางเดินจะโค้งวนเข้ามาเป็นส่วนตัว และจะเจอประตูห้องนอน Master Bedroom
Master Bedroom ตำแหน่งห้องจะอยู่มุมหลังบ้าน ภายในมีพื้นที่มาให้เยอะดี จัดวางฟังก์ชันได้ตามต้องการ
ได้เตียงนอน King Size พร้อมโต๊ะข้างเตียง และโซฟาปลายเตียง
ระยะดูทีวีปลายเตียงให้มากว้างติดทีวีขนาด 55 นิ้วได้เลย
ข้างเตียงด้านในจะได้เป็นมุมโต๊ะทำงาน
ข้างเตียงอีกฝั่งวางอาร์มแชร์มาให้ 1 ตัว จะวางเป็นโซฟาเบดก็ได้ครับ
ฝั่งด้านหลังจะมีประตูกระจกเปิดเชื่อมออกไปยังสระว่ายน้ำหลังบ้านได้พอดีครับ
มองกลับไปด้านในห้อง จะเป็นพื้นที่ส่วนแต่งตัว และทางเดินเข้าห้องน้ำ
มุมโต๊ะเครื่องแป้ง ได้ชุดโต๊ะเครื่องแป้งตามนี้เลย
มีลิ้นชักไว้ให้เก็บของได้เยอะดี
ถัดมาเป็นส่วน Walk-in closet ได้ตู้เสื้อผ้าขนาดใหญ่ ซ้ายมือเป็นห้องน้ำ
ตู้เสื้อผ้าขนาดใหญ่ได้แบบบานเปิด 6 บานพร้อมไฟซ่อน
ภายในห้องน้ำแบ่งส่วนเปียกส่วนแห้งมาให้ พื้นและผนังตกแต่งด้วยกระเบื้องโทนสีเบจดูสบายตา มีช่องแสงขนาดใหญ่ทำให้ดูสว่าง และยังเปิดระบายอากาศได้ พร้อมติดตั้งพัดลมดูดอากาศมาให้อีก 1 ตัว สุขภัฑณ์ภายในห้องน้ำของ Kohler หรือเทียบเท่า ห้องน้ำตกแต่งมาในสไตล์ Classic ให้เข้ากับตัวบ้าน
อ่างล้างมือจะได้แบบ His & Her ฝังบนเคาน์เตอร์ พร้อมตู้เก็บของใต้อ่าง
ก๊อกน้ำแบบผสมน้ำร้อนน้ำเย็นสีทองเหลือง
มุมนี้วางโถสุขภัณฑ์พร้อมสายฉีดชำระและที่ใส่กระดาษทิชชู่
ด้านในเป็นอ่างอาบน้ำแบบลอยตัว พร้อมชุดก๊อกน้ำและฝักบัว
ด้านในเป็นพื้นที่ส่วนเปียก ติดตั้งชุด Rain Shower & Hand Shower พร้อมก๊อกน้ำแบบผสมน้ำร้อนน้ำเย็นสีทองเหลือง
ขนาดฝักบัวจับพอดีมือ น้ำหนักเบาใช้งานสะดวก
กลับออกมาด้านนอก เดินไปอีกฝั่งขวามือจะเป็นห้องอเนกประสงค์ ซ้ายมือเป็นทางเดินเชื่อมออกที่จอดรถ ตรงกลางจะเป็นห้องครัวปิด
ห้องอเนกประสงค์ตำแหน่งจะอยู่มุมหลังบ้านอีกฝั่ง ภายในได้พื้นที่กว้าง จัดไว้เป็นห้องพักผ่อนส่วนตัว หรือจะทำเป็นห้องนอนอีกห้องก็ได้ ห้องนี้จะได้ชุดโซฟาขนาดใหญ่พร้อมโต๊ะกลาง
ระยะดูทีวีกว้าง ติดทีวีจอขนาด 55 นิ้วได้เลย ได้ตู้วางทีวีตามนี้เลยครับ
ในห้องจะได้แอร์ติดผนัง 1 ตัว และจะได้ช่องแสงทุกฝั่งเพิ่มความโปร่งให้กับห้อง
ฝั่งนี้จะมีพื้นที่ไว้ให้เก็บของได้
ภายในมีพื้นที่มาให้พอสมควร
ถัดมาเป็นห้องครัว ได้เป็นครัวปิดแยกเป็นสัดส่วน พร้อมชุดเคาน์เตอร์ครัวขนาดใหญ่ตามนี้เลย พร้อมเตาไฟฟ้า เครื่องดูดควัน และอ่างล้างจาน ในครัวจะได้แอร์ฝังฝ้า 1 ตัว
ชุดครัวจะเป็นตู้บานเปิดและลิ้นชัก หน้าบานตู้มี Soft closet ให้ทั้งหมด มีช่องเก็บของมาให้เยอะดีครับ
อีกฝั่งก็มีตู้เก็บของ และทำตู้ไว้สำหรับซ่อนตู้เย็นมาให้อีกด้วย
กลับออกมาด้านหน้าครัว เดินถัดไปอีกจะมีประตูเชื่อมออกไปที่จอดรถได้ ซ้ายมือจะเป็นห้องน้ำ
ห้องน้ำห้องนี้เป็นแบบ Powder Room คือไม่มีพื้นที่ส่วนเปียกนั่นเอง ภายในจะมีชุดเคาน์เตอร์อ่างล้างมือพร้อมกระจกเงาบานใหญ่ และอีกฝั่งวางโถสุขภัณฑ์ ในห้องน้ำติดตั้งพัดลมดูดอากาศมาให้ 1 ตัว
ราคา (พ.ย. 66)
ลงทะเบียนรับสิทธิพิเศษ คลิก : https://casa-vacanza.casa/
*หมายเหตุ : ข้อมูลราคาและโปรโมชันอาจมีการเปลี่ยนแปลง โปรดติดต่อสำนักงานขายเพื่อสอบถามรายละเอียดเพิ่มเติม*
สรุป
ทำเลที่ตั้งโครงการ : Casa Vacanza Khaoyai ตั้งอยู่ในย่านแหล่งท่องเที่ยวเขาใหญ่ ทำเลค่อนข้างเงียบสงบ เป็นส่วนตัว อากาศดี มีความอุดมสมบูรณ์พอสมควรมีทั้งตลาด ร้านค้า ร้านอาหาร ร้านสะดวกซื้อ เป็นระยะ ๆ ใกล้โรงแรม สนามกอล์ฟ และสถานที่ท่องเที่ยวหลายแห่ง ที่สำคัญเลยคือใกล้อุทยานแห่งชาติเขาใหญ่
ห้างสรรพสินค้าส่วนใหญ่จะอยู่ตรงถนนธนะรัชต์ และถนนมิตรภาพ มีทั้ง Makro ปากช่อง-เขาใหญ่, ไทวัสดุ, Premium Outlet เขาใหญ่, HomePro ปากช่อง-เขาใหญ่, Lotus’s ปากช่อง-เขาใหญ่, Big C ปากช่อง-เขาใหญ่ และยังใกล้กับโรงพยาบาล สถานศึกษาหลายแห่ง
การเดินทางโดยรถส่วนตัว : เชื่อมต่อได้หลายเส้นทาง ใกล้ถนนโยธาธิการ 2213, ถนน 3052, ถนน 2311, ถนน 1016, ถนนธนะรัชต์ และถนนมิตรภาพ ที่สำคัญเลยคือใกล้ทางด่วนมอเตอร์เวย์ บางปะอิน-นครราชสีมา (ด่านปากช่อง) ทำให้การเดินทางเชื่อมต่อเข้าออกกรุงเทพฯ ได้สะดวกและรวดเร็วมากขึ้น
ถนนมิตรภาพใช้เดินทางเชื่อมไปทางจังหวัดสระบุรี และไปเข้าถนนพหลโยธินเชื่อมต่อไปทางจังหวัดพระนครศรีอยุธา วิ่งยาวเชื่อมต่อไปเข้าจังหวัดปทุมธานี จากนั้นก็มุ่งหน้าต่อเข้ากรุงเทพฯ ได้เลย ถนนมิตรภาพถ้าวิ่งไปอีกฝั่งจะเชื่อมไปเข้าตัวจังหวัดนครราชสีมา เชื่อมต่อไปโซนภาคอีสานจังหวัดอื่น ๆ ได้
ถนน 3052 ถ้าวิ่งมาอีกฝั่งจะมาเชื่อมออกถนน 304 ใช้วิ่งลงมาทางจังหวัดปราจีนบุรี เชื่อมต่อไปจังหวัดสระแก้ว จังหวัดฉะเชิงเทราได้ และถนนธนะรัชต์ถ้าวิ่งขึ้นอุทยานแห่งชาติเขาใหญ่ ไปเข้าถนน 3077 สามารถเชื่อมไปลงอีกฝั่งของเขาใหญ่ที่จังหวัดปราจีนบุรี และจังหวัดนครนายกได้
การออกแบบโครงการ, แบบบ้านและวัสดุ : บ้านภายในโครงการเป็นบ้านพักตากอากาศ แบบบ้านเดี่ยว 1 ชั้น สไตล์ Mediterranean ออกแบบมาได้สวยดีไซน์โดดเด่นเป็นเอกลักษณ์ ดูกลมกลืนไปกับธรรมชาติ พื้นที่ในบ้านออกแบบมาได้ดี มีการคิดฟังก์ชันการใช้งานในส่วนต่าง ๆ เพื่อให้รองรับกับทุกไลฟ์สไตล์ในการพักผ่อน
ตัวบ้านเน้นช่องแสงเข้าถึงแต่ละส่วนภายในบ้านได้เยอะ แต่ละส่วนของบ้านแบ่งพื้นที่มาได้กว้างไม่อึดอัด เน้นความโปร่งโล่ง ฝ้าเพดานสูงกว่า 5 ม. พื้นที่ในบ้านสามารถปรับเปลี่ยนได้ตามความต้องการของผู้อาศัย รอบ ๆ บ้านมีพื้นที่ให้จัดสวนได้อีก
แบบบ้าน Delfinio ถึงแม้จะเป็นแบบบ้านเริ่มต้น แต่มีพื้นที่ใช้สอยมากถึง 201 ตร.ม. มีที่จอดรถแบบ Garage หลังบ้านมี Jacuzzi ไว้ให้ และระเบียงลอยฟ้า ภายในบ้านพื้นที่กว้าง ห้องนั่งเล่นออกแบบให้พื้นที่เปิดโล่งยาวเชื่อมต่อกับส่วนรับประทานอาหารและส่วนครัว
ห้อง Master Bedroom วางเตียง King Size ได้พร้อมโต๊ะข้างเตียง มีพื้นที่ให้วางโซฟา หรือทำพื้นที่แต่งตัวก็ได้ มีห้องน้ำในห้องนอนพร้อมอ่างอาบน้ำ และส่วน Walk-in closet ห้องนอน 2 วางเตียง 5 ฟุต พร้อมห้องน้ำในห้องนอน และมีห้องอเนกประสงค์ทำเป็นห้องพักผ่อน หรือห้องนอนอีกห้องได้
แบบบ้าน Gladiolo มีพื้นที่ใช้สอยมากถึง 575 ตร.ม. จัดแปลนบ้านมาได้ดีมากฟังก์ชันการใช้งานลงตัว มีที่จอดรถแบบ Garage รองรับ 3 คัน และมีลานจอดกลางแจ้งได้อีก มีสระว่ายน้ำส่วนตัวพร้อมวิวภูเขา ทางเข้าบ้านดูโอ่อ่า ภายในบ้านแยกโซนชัดเจนโดยมี Courtyard กลางบ้านแบ่งส่วนเชื่อมต่อโซนต่าง ๆ มีระเบียงลอยฟ้าได้พื้นที่แบบ Semi-Outdoor
ห้องนั่งเล่นได้พื้นที่กว้างเปิดโล่งเชื่อมต่อกับส่วนทานอาหาร มีประตู 2 ฝั่งเปิดเชื่อมออกส่วน Courtyard และสระว่ายน้ำหลังบ้านได้ ส่วนครัวขนาดใหญ่ได้เป็นครัวปิด มีห้องแม่บ้านไว้รองรับ
ห้อง Master Bedroom ได้พื้นที่ขนาดใหญ่ วางเตียง King Size ชุดโซฟา อาร์มแชร์ได้ มีพื้นที่สำหรับ Walk-in closet และห้องน้ำในห้องนอนพร้อมอ่างอาบน้ำ ห้องนอน 2 ฟังก์ชันเทียบเท่า Master Bedroom วางเตียง King Size ได้ มีห้องน้ำในห้องนอนพร้อมอ่างอาบน้ำ ห้องนอน 3, 4 วางเตียง 5 ฟุตได้ พร้อมห้องน้ำในตัว มีห้องอเนกประสงค์ขนาดใหญ่ ทำเป็นห้องนอนได้อีกห้อง
ส่วนวัสดุภายในบ้านได้ของดีมีคุณภาพ เริ่มตั้งแต่ประตูหน้าบ้านใช้ไม้จริง ส่วนประตูและหน้าต่างกระจก เป็นกระจกใสเขียวตัดแสง เฟรมอลูมิเนียม การฉาบผนังทั้งภายนอกและภายในบ้าน ใช้วัสดุตกแต่งผนังแบบ World Premium Decorate Material จาก Suzuka พื้นบ้านเป็นกระเบื้อง Terracootta Kenzai Florence tile หรือเทียบเท่า
บ้านที่นี่จะขายแบบ Fully Furnished* (ตามเงื่อนไขโครงการ) หิ้วกระเป๋าเข้าอยู่ได้เลย ได้ชุดเฟอร์นิเจอร์แบบลอยตัวครบชุด และชุดเคาน์เตอร์ครัว แบบบ้านตัวอย่างทั้งหมด สุขภัณฑ์ในห้องน้ำของ Kohler หรือเทียบเท่า ติดตั้งแอร์แบบฝังตรงห้องนั่งเล่น ส่วนห้องนอนเป็นแอร์ติดผนัง
สิ่งอำนวยความสะดวกและระบบรักษาความปลอดภัย : ส่วนกลางที่นี่ออกแบบมาได้สวยน่าใช้งานตกแต่งมาในสไตล์ Mediterranean ตั้งแต่ด้านหน้าโครงการและภายในโครงการ มี Clubhouse ที่ได้แรงบันดาลใจจากโบสถ์ Abbaye de Senanque เมือง Gordes ประเทศฝรั่งเศส ภายในจะมีทั้ง Lobby, Business Lounge, Fitness Room, ห้องน้ำแยกชายหญิง, Sauna Room และสระว่ายน้ำระบบเกลือยาว 25 ม.
สวนขนาดใหญ่ 2 จุด คือ ตรงด้านหน้าโครงการ ตกแต่งมาได้ร่มรื่นเน้นเป็นพื้นที่พักผ่อน และอีกจุดอยู่ติด Clubhouse ในสวนตกแต่งมาได้ร่มรื่นเช่นกัน จะมี Pavilion ไว้นั่งพักผ่อน, สนามเด็กเล่น, แนวลำธารยาวกว่า 400 ม. พร้อมทางเดิน และ Jogging Track ยาวกว่า 1 กม.
ถนนหลักโครงการกว้าง 12 ม. ถนนซอยกว้าง 8 ม. ระบบสายไฟลงใต้ดินทั้งหมด ภายในโครงการดูเรียบร้อยสะอาดตา ส่วนระบบรักษาความปลอดภัย ประตูเข้า-ออกโครงการใช้ระบบ Pass Card Access Control มี รปภ. ตลอด 24 ชม. และติดตั้ง CCTV เพื่อความปลอดภัยของลูกบ้าน
สอบถามรายละเอียดเพิ่มเติมได้ที่
Tel : 099-593-9998
LINE : @casavacanza
Website : https://casa-vacanza.casa/
หากเพื่อน ๆ เห็นว่ารีวิวนี้มีประโยชน์ ช่วยกด Like เพื่อเป็นกำลังใจให้ทีมงาน ขอบคุณครับ
และมีความคิดเห็นหรือข้อมูลเพิ่มเติมเกี่ยวกับตัวโครงการ สามารถ Comment ได้ที่ด้านล่างของรีวิวครับ
บ้านเดี่ยว นครราชสีมา ทำเลอื่นๆ ที่น่าสนใจ…
แกรนดิโอ โคราช-เทอร์มินอล เริ่ม 8-20 ล้าน*
มาเวอริค เขาใหญ่ เริ่ม 11.9 ล้าน*
บ้านเดี่ยว โดดเด่น ลา วิสต้า นครราชสีมา เริ่ม 2.59 ล้าน*
เอวาน่า หัวทะเล-หนองระเวียง โคราช เริ่ม 2.xx ล้าน*
Casa Vacanza Khaoyai เริ่ม 13.9 ล้าน*
บ้านเดี่ยว โฮมแลนด์ 4 บายพาส-มอเตอร์เวย์ เริ่ม 2.7 ล้าน*
บ้านเดี่ยว พรีเว่ บายพาส-จอหอ นครราชสีมา เริ่ม 2.4x ล้าน*
ศุภาลัย ปาล์มสปริงส์ นครราชสีมา เริ่ม 3 ล้านกว่า*
โฮมออฟฟิศ เดอะ เวิร์กสเปซ ใกล้ Terminal 21 โคราช เริ่ม 3.29 ล้าน*
แมกโนเลียส์ เฟรนซ์ คันทรี เขาใหญ่ เริ่ม 15 ล้าน*
บ้านเดี่ยว เดอะ มิวส์ ท่าอ่าง-ด่านเกวียน เริ่ม 1.19 ล้าน*