
EP.853 รีวิว คอนโด บี รีพับบลิค สุขุมวิท 101/1 B REPUBLIC CONDO SUKHUMVIT 101/1
สวัสดีค่ะ คุณผู้อ่าน วันนี้ Homenayoo ขอพาทุกท่านไปชมโครงการคอนโด B Republic สุขุมวิท 101/1 จาก ออริจิ้น พร็อพเพอร์ตี้
โครงการนี้ตั้งอยู่บนถนนสุขุมวิท 101/1 หรือซอยวชิรธรรมสาธิต ใกล้ BTS ปุณณวิถี มีเส้นทางเชื่อมต่อไปยังถนนศรีนครินทร์, อ่อนนุช และอุดมสุข ซึ่งเป็นถนนสายสำคัญที่เชื่อต่อสุขุมวิท-สวนหลวง
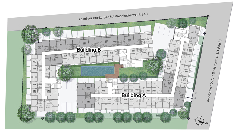
บี รีพับบลิค สุขุมวิท 101/1 คอนโด Low-Rise 8 ชั้น จำนวน 2 อาคาร พื้นที่โครงการ 2-0-69 ไร่ ห้องพักอาศัยทั้งหมด 347 ยูนิต มีให้เลือกด้วยกัน 2 แบบ คือ 1 Bedroom ขนาด 25.15 – 30.5 ตร.ม. และ 2 Bedroom ขนาด 37.7 – 50.84 ตร.ม. เป็นโครงการสร้างเสร็จพร้อมเข้าอยู่
สิ่งอำนวยความสะดวกในโครงการ ได้แก่ Lobby, Library, Meeting room, สวนหย่อม, สระว่ายน้ำ, Fitness, Stream room และ Sky Lounge, ที่จอดรถ 150 คัน (คิดเป็น 43%) พร้อมระบบรักษาความปลอดภัย 24 ชม. ด้วยกล้องวงจรปิด และคีย์การ์ด ราคาเริ่มต้น 1.99 ล้านบาท (พ.ค. 2560)

| ชื่อโครงการ | บี รีพับบลิค คอนโด สุขุมวิท 101/1 / B REPUBLIC CONDO |
| เจ้าของโครงการ | ออริจิ้น พร็อพเพอร์ตี้ |
| ลักษณะห้องและขนาดห้อง |
|
| เนื้อที่ทั้งหมด | 2-0-69 ไร่ |
| จำนวนตึก | 2 อาคาร |
| จำนวนชั้น | 8 ชั้น |
| จำนวนห้อง | 347 ยูนิต |
| ที่จอดรถทั้งหมด | 150 คัน |
| โซน | ประเวศ, พระโขนง, สวนหลวง |
| ขนส่งสาธารณะ |
|
| รถโดยสารที่ผ่าน |
|
| ที่ตั้ง | ซอยวชิรธรรม 34 ถนนสุขุมวิท 101/1 แขวงบางจาก เขตพระโขนง กรุงเทพฯ |
| กำหนดการ | พร้อมเข้าอยู่ |
| ปีที่สร้างเสร็จ | พ.ศ. 2559 |
| ราคา | เริ่มต้น 1.99 บาท (พ.ค. 2560) |
| ราคาเฉลี่ยต่อ ตร.ม | เริ่มต้น 84,700 บาท/ตร.ม. |
| สถานที่สำคัญใกล้เคียง |
|
| สิ่งอำนวยความสะดวก |
|
| จุดเด่นของโครงการ | อาณาจักรแห่งความทันสมัย กับคอนโดมิเนี่ยมแบบ Low Rise สูง 8 ชั้น ที่ตั้งอยู่บนทำเลสุดชิคแห่งใหม่อย่างสุขุมวิท 101/1 ให้คุณสะดวกกับการเดินทางเข้า-ออกเมือง ที่เลือกได้ทั้งการเดินทางด้วยรถไฟฟ้า BTS สถานีปุณณวิถี หรือเลือกเชื่อมต่อจากถนนสุขุมวิทมุ่งสู่ถนนศรีนครินทร์, บางนา ด้วยทางด่วนบูรพาวิถีในระยะทางที่ไม่ไกลจนเกินไป |
คอนโดใกล้ BTS อุดมสุข
:::ที่ตั้งโครงการ:::
วชิรธรรมสาธิต 34 สุขุมวิท 101/1 แขวงบางจาก เขตพระโขนง กรุงเทพฯ 10260
พิกัด : 13.684460, 100.625021
จากแผนที่ของทางโครงการ ที่ตั้งโครงการอยู่ในทำเลที่เป็นจุดเชื่อมต่อระหว่างสุขุมวิทและสวนหลวง มีเส้นทางการเข้า-ออกหลักทางซอยวชิรธรรมสาธิต หรือสุขุมวิท 101/1 อยู่ระหว่างสถานีรถไฟฟ้า BTS สายสีเขียว สถานีปุณณวิถีและสถานีอุดมสุข มีเส้นทางลัดเชื่อมต่อถนนสุขุมวิทเข้ากับเส้นอ่อนนุช-ลาดกระบัง (สุขุมวิท 77), อุดมสุข (สุขุมวิท 103) และถนนศรีนคริทร์ที่เป็นถนนเส้นใหญ่ตัดผ่านเขตสวนหลวงเชื่อมไปยังบางกะปิและสมุทรปราการ
เป็นแหล่งความเจริญของกรุงเทพฯชั้นนอกฝั่งบางนา-สมุทรปราการ มีสถานีรถไฟฟ้าในระยะ 2 กม. มีร้านค้าอาคารพาณิชย์เรียงรายอยู่เป็นจำนวนมาก มีศูนย์การค้าปิยรมย์เพลสทางฝั่งสุขุมวิท ใกล้ตลาดอุดมสุข, Bankok mall (โครงการในอนาคต), โรงเรียนนานาชาติเบิร์คลีย์ และ Central บางนาบนถนนบางนา-ตราด หรือจะใช้ทางลัดออกสู่ถนนศรีนครินทร์ได้ทางบริเวณ Secon Square, ตลาดนัดรถไฟศรีนครินทร์ และ Paradise Park ทางด้านหลัง
นับว่าเป็นทำเลที่อยู่อาศัยที่ใกล้ศูนย์กลางความเจริญของย่านสวนหลวง-บางนา บนถนนสุขุมวิทถนนสายหลักของกรุงเทพฝั่งใต้ สภาพแวดล้อมรอบๆโครงการมีบรรยาการศที่สงบร่มรื่นไม่วุ่นวาย มีแหล่งอาหารและสถานที่พักผ่อนหย่อนใจที่สามรถเข้าถึงได้สะดวก ใกล้สถานีรถไฟฟ้า 2 สถานี ใกล้ทางด่วนทั้งขาเข้าและขาออก เป็นทำเลที่เหมาะกับคนที่ชื่นชอบความสงบแต่ไม่ห่างไกลความเจริญ
:::การเดินทางโดยรถยนต์:::
โครงการ B Republic สุขุมวิท 101/1 ตั้งอยู่ในซอยวชิรธรรมสาธิตหรือสุขุมวิท 101/1 เป็นเส้นทางลัดเชื่อมต่อถนนสายสำคัญในย่านสุขุมวิท-สวนหลวงสายอื่นๆ ดังนี้
– ถนนสุขุมวิท เป็นถนนเส้นหลักที่ใช้ในการเข้า-ออกโครงการผ่านทางสุขขุมวิท 101/1 หรือซอยวชิรธรรมสาธิตที่มีเส้นทางลัดไปสู่เส้นอ่อนนุช, อุดมสุข และศรีนครินทร์ นอกจากจะเป็นเส้นทางหลักที่ตัดเข้าสู้ถนนหน้าโครงการแล้ว ถนนสุขุมวิทยังเป็นถนนเส้นหลักที่เชื่อมเข้ากับกรุงเทพฯชั้นใน, ทางด่วนเฉลิมมหานคร, ทางด่วนรามอินทรา-อาจณรงค์ และเชื่อมกับสมุทรปราการลงไปทางสำโรง
– ถนนอ่อนนุช-ลาดกระบัง หรือสุขุมวิท 77 เป็นถนนเส้นสำคัญที่เชื่อมสุขุมวิทไปยังเขตลาดกระบัง ที่ตั้งของสนามบินนานาชาติสุวรรณภูมิ ถนนอ่อนนุชเต็มไปด้วยแหล่งความอุดมสมบูรณ์ทั้งตลาด, ซุปเปอร์มาเก็ต ไปจนถึงคอมมูนิตี้มอล เป็นที่ตั้งของคอนโดและที่อยู่อาศัยจำนวนมาก รวมถึงสำนักงานและห้างร้านทั้งขนาดเล็กและใหญ่
– ถนนอุดมสุข เป็นถนนเส้นหลักอีกเส้นที่เชื่อมต่อสุขุมวิทเข้ากับศรีนครินทร์ที่แยกศรีอุดม หรือหากข้ามแยกไปก็จะเป็นถนนเฉลิมพระเกียรติ ถนนตัดใหม่ที่วิ่งผ่านสวนหลวง ร.9 สวนสาธารณะขนาดใหญ่ในย่านสวนหลวง เข้าสู่พัฒนาการ
– ถนนศรีนคริทร์ ถนนเส้นใหญ่ที่เชื่อมสมุทรปราการกับบางกะปิ มีแยกที่ตัดผ่านถนนสำคัญหลายสาย เป็นถนนที่มีการใช้งานคึกคักตลอดทั้งวัน เนื่องจากเป็นถนนเส้นยาวที่เชื่อมต่อกับหมู่บ้านขนาดใหญ่จำนวนมาก บริษัทและศูนย์การค้าขนาดใหญ่ของกรุงเทพฯชั้นนอก
– ถนนบางนา-ตราด เป็นถนนเส้นใหญ่กว้าง 8-14 เลน เป็นถนนที่มีความเร็วค่อนข้างสูงเนื่องจากเป็นเส้นหลักที่ใช้ในการออกนอกเมืองไปทางฝังตะวันออก เป็นเส้นคู่ขนานกับทางด่วนบูรพาวิถี มีห้างสรรพสินค้าและโกดังสินค้าขนาดใหญ่หลายแห่ง สามารถตัดเข้าไปยังสนามบินสุวรรณภูมิได้
– ทางด่วนเฉลิมมหานคร เป็นทางด่วนที่เริ่มจากบริเวณแยกบางนามุ่งหน้าไปยังสาทรที่เส้นพระราม 3 จากโครงการสามารถขึ้นทางด่วนได้ทั้งจากบริเวณแยกบางนา และทางสุขุมวิท 62 โดยวิ่งขึ้นเหนือย้อนไปทางพระโขนงเล็กน้อย
– ทางด่วนรามอินทรา-อาจณรงค์ หรือทางพิเศษฉลองรัชฝั่งทางด่วนตะวันออก เป็นทางด่วนที่เชื่อมเขตพระโขนงเข้ากับลาดพร้าว-รามอินทราผ่านทางพระราม 9 มีเส้นทางที่เชื่อมต่อกับทางด่วยเฉลิมมหานครที่บริเวณท่าเรื่อคลองเตย
การเข้าสู่โครงการจากถนนสุขุมวิท 101/1 (ถนนวชิรธรรมสาธิต) ใช้เวลาประมาณ 4 นาที ระยะทางประมาณ 1.5 กม. ปากซอยมีป้ายวัดวชิรธรรมสาธิตเป็นซุ้มทางเข้า มี 7ELEVEn หน้าปากซอย และวินมอเตอร์ไซค์จากปากซอย 50 เมตร ถนนเส้นนี้เป็นถนน 4 เลน ใช้เป็นทางลัดเชื่อมต่อสุขุมวิทกับสวนหลวงได้หลายเส้นทาง มีเส้นทางหลักๆ ดังนี้
เส้นทางสู่ถนนอุดมสุข (สุขุมวิท 103) ใช้เวลาประมาณ 3 นาที ระยะทางประมาณ 900 เมตร จากโครงการผ่านทางซอยวชิรธรรมสาธิต 32 ออกสู่เส้นอุดมสุขทางซอยอุดมสุข 29
เส้นทางสู่ถนนศรีนครินทร์ ใช้เวลาประมาณ 7 นาที ระยะทางประมาณ 3 กม. ผ่านทางซอยวชิรธรรมสาธิต 70 เข้าสู่เลียบคลองเคล็ด ออกสู่ถนนศรีนครินทร์ทางซอยศรีนครินทร์ 42 บริเวณหน้าตลาดนัดรถไฟศรีนครินทร์
เส้นทางสู่ถนนอ่อนนุช ใช้เวลาประมาณ 10 นาที ระยะทางประมาณ 4 กม. ทางซอยวชิรธรรมสาธิต 57 เชื่อมต่อกับซอยอ่อนนุช 44

ทางด่วนที่ใกล้ที่สุด คือทางด่วนเฉลิมมหานคร ระยะทางจากโครงการประมาณ 4.1 กม. ใช้เวลาประมาณ 9 นาที ผ่านทางเส้นสุขุมวิท 62
ทางด่วนรามอินทรา-อาจณรงค์ เส้นทางสู่กรุงเทพฯฝั่งเหนือ โดยจุดขึ้นทางด่วนที่ใกล้กับโครงการมีระยะทางประมาณ 6.3 กม. ใช้เวลาประมาณ 11 นาที ทางสุขุมวิท 50 ซอยข้าง Tesco Lotus อ่อนนุช
ทางด่วนบูรพาวิถี เป็นเส้นทางสู่ภาคตะวันออก มีระยะทางประมาณ 4.8 กม. จากโครงการใช้เวลาประมาณ 9 นาที ผ่านทางซอยอุดมสุข 24 ไปออกถนนบางนาที่ซอยบางนา-ตราด ข้างโรงเรียนนานาชาติเบิร์คลีย์แล้วจึงขึ้นทางด่วนบริเวณหน้า Central บางนา
รถไฟฟ้าสายสีเขียว สถานีที่ใกล้ที่สุดคือสถานี BTS ปุณณวิถี และ BTS อุดมสุขระยะทางประมาณ 2 กม. จากโครงการใช้เวลาประมาณ 6 นาที
แยกและถนนที่สำคัญ
:::ความอุดมสมบูรณ์::: ในย่านนี้จัดได้ว่าเยอะทีเดียว โดยจะขออธิบายเป็นย่านต่างๆ ดังนี้
สถานที่สำคัญบริเวณโครงการ
:::การเดินทาง:::
การเดินทางในวันนี้ เราจะมาเริ่มกันจากเส้นบางนา-ตราดบริเวณหน้า BITEC บางนาแล้วเลี้ยวขวาที่สี่แยกบางนาเข้าสู่ถนนสุขุมวิทมุ่งหน้าไปทางพระโขนงก่อนจะกลับรถเพื่อเข้าซอยสุขุมวิท 101/1 หรือถนนวชิรธรรมสาธิต โครงการอยู่ห่างจากปากซอย 1.5 กม. หัวมุมซอยวชิรธรรมสาธิต 34
สรุปการเดินทาง : ถนนบางนา-ตราด > สุขุมวิท > สุขุมวิท 101/1 > B Republic สุขุมวิท 101/1
เริ่มต้นการเดินทางกันที่ถนนบางนา-ตราดบริเวณหน้า BITEC บางนา มุ่งหน้าไปทางสุขุมวิทเพื่อเลี้ยวขวาที่สี่แยกบางนา
เมื่อมาถึงสี่แยกบางนาให้เลี้ยวขวาเข้าสู่ถนนสุขุมวิทมุ่งหน้าไปทางพระโขนง

ตอนนี้เราอยู่บนเส้นสุขุมวิทกันแล้วให้ขับตรงไปทางพระโขนง เพื่อเข้าสู่ถนนวชิรธรรมสาธิตที่อยู่ระหว่างสถานีรถไฟฟ้า BTS อุดมสุขและปุณณวิถี
มาถึง BTS อุดมสุขบริเวณสุขุมวิท 103 หรือแยกอุดมสุข ก็จะถึงสุขุมวิท 101/1 (วชิรธรรมสาธิต) ซึ่งเป็นที่ตั้งของโครงการในอีกประมาณ 500 เมตร ที่แยกทุ่งสาธิต
แต่วันนี้เราจะเลยไปกลับรถห่างจากแยกทุ่งสาธิตอีกประมาณ 300 เมตร เพื่อสำรวจสภาพแวดล้อมบริเวณหน้าปากซอยสุขุมวิท 101/1 เมื่อเห็นศูนย์รถยนต์ Chevrolet ทางด้านซ้ายมือก็จะเห็นป้ายบอกทางกลับรถในอีก 100 เมตรก็ชิดขวาเตรียมตัวกลับรถได้เลย
เมื่อมาถึงจุดกลับรถก็จะเห็นศูนย์รถยนต์ TOYOTA อยู่ทางขวามือให้กลับรถมุ่งหน้าไปทางสี่แยกบางนา เพื่อไปยังซอยสุขุมวิท 101/1 ถนนที่ตั้งของโครงการในวันนี้

เมื่อกลับรถมาแล้วจะเจอกับศูนย์การค้าปิยรมย์เพลสทางซ้ายมือไม่ไกลจากจุดกลับรถ ซึ่งเป็นอีกแหล่งความอุดมสมบูรณ์บริเวณปากซอยสุขุมวิท 101/1

แล้วเราก็มาถึงแยกทุ่งสาธิตกันแล้วให้เลี้ยวซ้ายเข้าสุขุมวิท 101/1 ปากทางเข้ามีซุ้มป้ายชื่อวัดวชิรธรรมสาธิตมองเห็นได้ชัดเจน

เข้ามาในซอยวชิรธรรมสาธิตจะมีวินมอเตอร์ไซค์อยู่ห่างจากปากซอยเพียง 50 เมตร บริเวณหน้าร้านพิษนุโลกเบเกอรี่

เข้าซอยมาประมาณ 500 เมตรก็จะเจอกับโครงการ Pause คอนโดซึ่งเป็นโครงการจาก ออริจิ้น พร็อพเพอร์ตี้ เช่นเดียวกันกับโครงการที่เราจะไปชมกันในวันนี้
หลังจากขับรถเข้ามาประมาณ 1.4 กม. ก็จะถึงซอยวชิรธรรมสาธิต 29 ทางซ้ายมือ และทางขวามือคือ 7ELEVEn ที่ใกล้กับโครงการมากที่สุด เพียง 100 เมตร

แล้วเราก็มาถึงโครงการ B Republic สุขุมวิท 101/1 เป้าหมายของเราในวันนี้กันแล้วค่ะ
และนี่คือภาพถ่ายทางเข้าที่จอดรถจากด้านหน้าโครงการที่เป็นทางเข้าโดยรถส่วนตัวทางเข้าเดียวของโครงการ ซึ่งทางเข้าโดยการเดินเท้าหรือรถสาธารณะจะอยู่ที่ Lobby ถัดไปทางขวามือที่หัวมุมอาคารที่เราผ่านมาแล้ว
:::บริเวณโครงการ:::
ภาพมุมสูงของโครงการ เริ่มจากทิศตะวันออกของโครงการติดกับบ้านเดี่ยว 2 ชั้นและหอพัก 4 ชั้น ด้านหลังของโครงการติดกับบ้านเดี่ยว 2 ชั้นทางทิศใต้ ทิศตะวันตกติดกับบ้านเดี่ยว 2 ชั้นและที่ดินว่างเปล่าทางซอยวชิรธรรมสาธิต 34 ซึ่งเป็นที่ตั้งของวินมอเตอร์ไซค์ ด้านหน้าของโครงการเป็นถนนวชิรธรรมสาธิตหรือสุขุมวิท 101/1 ฝั่งตรงข้ามเป็นโรงพยาบาลสัตว์พันธพัฒน์ ที่ดินอื่นๆบนถนนสุขุมวิท 101/1 ส่วนใหญ่เป็นบ้านพักอาศัยและอาคารพาณิชย์สูงไม่เกิน 15 เมตร
ก่อนจะไปชมด้านในโครงการเราไปสำรวจบริเวณรอบๆโครงการในระยะ 100 เมตรกันก่อนดีกว่า
เริ่มจากภาพถ่ายทางด้านทิศตะวันออกของโครงการบนถนนวชิรธรรมสาธิตมุ่งหน้าไปทางอุดมสุข
ที่ดินที่ติดกับทิศตะวันออกของโครงการคือบ้านเดี่ยว 2 ชั้นที่มีบริเวณและต้นไม้หนาแน่น
เดินลึกเข้าไปในซอยอีกประมาณ 100 เมตรก็จะเจอกับอาคารพาณิชย์บริเวณตรงข้ามกับซอยวชิรธรรมสาธิต 29/2
เป็นที่ตั้งของร้านลาวาชาบูร้านอาหารที่ใกล้กับโครงการในระยะที่เดินถึง และร้านค้าอื่นๆ เช่นร้านซ่อมคอมพิวเตอร์และร้านทำผมเป็นต้น
ฝั่งตรงข้ามของโครงการเป็นโรงพยาบาลสัตว์พันธพัฒน์ ที่เป็นอาคาร 2 ชั้นมีลานจอดรถเป็นลานกว้าง (ปั๊มน้ำมัน PT เก่า)
มองย้อนกลับไปตามถนนสุขุมวิท 101/1 มุ่งหน้าไปทางสุขุมวิท ซึ่งเป็นทิศตะวันตกของโครงการ
มีวินมอเตอร์ไซค์อยู่หน้าปากซอยวชิรธรรมสาธิต 34 ติดกับโครงการทางฝั่งทิศตะวันตก หรือ Lobby ของโครงการมีมอเตอร์ไซค์รับจ้างไว้บริการประมาณ 10 คัน
มีป้ายอัตราค่าบริการติดตั้งไว้อย่างชัดเจน โดยค่าบริการไปหน้าปากซอย 101/1 อยู่ 15 บาท ไป BTS อุดมสุข 25 บาทและ BTS ปุณณวิถี 30 บาทเนื่องจากต้องกลับรถ
ซอยวชิรธรรมสาธิต 34 เป็นซอยตันกว้างประมาณ 6 เมตรลึกประมาณ 600 เมตร ด้านในซอยเป็นชุมชนขนาดเล็กมีบ้านพักอาศัยประเภทบ้านเดี่ยวและห้องแถว ส่วนใหญ่เป็นอาคารไม้ชั้นเดียว
ภาพถ่ายโครงการจากทิศตะวันตกบริเวณที่ตั้งของวินมอเตอร์ไซค์ สามารถมองเห็นตัวโครงการได้อย่างชัดเจนเนื่องจากเป็นที่ดินว่างเปล่า
เดินออกมาทางหน้าปากซอยเลยวินมอเตอร์ไซค์อีกนิดจะมีป้ายรถประจำทางที่ไม่ได้ใช้งานแล้ว สามารถใช้เป็นที่นั่งรอวินมอเตอร์ไซค์หรือแท็กซี่ได้
ฝั่งตรงข้ามเป็นซอยวชิรธรรมสาธิต 29/1 เป็นถนนส่วนบุคคลสั้นๆ
ด้านในเป็นร้านอาหาร ที่มีทางอาหารตามสั่งและอาหารอีสาน ถัดไปเป็นร้านทำความสะอาดรถยนต์
มุ่งหน้าไปทางสุขุมวิทห่างจากโครงการประมาณ 100 เมตรก็จะเจอกับรวมหมอพลาซ่าที่มีร้านหมอหลายแขนงเช่น ร้านขายยา, ร้านหมอฟัน และร้านนวดแผนไทย
และยังเป็นที่ตั้งของ 7 ELEVEn ที่ใกล้กลับโครงการมากที่สุดที่เราได้ขับรถผ่านมาแล้วในช่วงการเดินทางเข้าสู่โครงการ
ด้านหลังของ 7ELEVEn เป็นร้านทำผมสีชมพูเด่นเห็นชัด
ฝั่งตรงข้ามเป็นซอยวชิรธรรมสาธิต 29 หัวมุมมีร้านก๋วยเตี๋ยวตั้งอยู่ 2 ร้าน
ได้แก่ ร้านก๋วยเตี๋ยวที่มีตั้งแต่น้ำใส, ต้มยำไปจนถึงเย็นตาโฟ และร้านบะหมี่เกี๊ยวหมูแดง ซึ่งทางทีมงานได้มาฝากท้องกันในวันนี้ถือว่ารสชาติอร่อยและราคาสบายกระเป๋า ท่านใดมาเยี่ยมชมโครงการก็ลองแวะมาชิมกันดูค่ะ
:::ผังโครงการ:::
เมื่อชมบริเวณรอบโครงการกันไปแล้วก็กลับมาที่ตัวโครงการกันค่ะ ทางเข้าที่จอดรถของโครงการเป็นทางเข้า-ออกจุดเดียวกว้าง 8 เมตร แบ่งเป็นช่องทางเข้า 4 เมตร และทางออก 4 เมตร
ก่อนจะเข้าไปด้านในเรามาดูผังโครงการกันแบบคร่าวๆ เริ่มจากทิศทางการเดินรถภายในโครงการ แม้ว่าจะใช้ทางเข้าออกทางเดียวแต่การเดินรถในโครงการก็เป็นแบบ One way มีการหมุนรถแบบวนขวาตามเข็มนาฬิกาดังภาพ
ทางขึ้นอาคารมีทั้งหมด 4 จุด ขอแบ่งเป็นอาคาร A และอาคาร B อาคารละ 2 จุด ซึ่งเดี๋ยวเราจะได้เห็นกันต่อไปในภาพถ่ายบริเวณชั้น 1 ของโครงการ
ด้านซ้ายมือฝั่งทางเข้าเป็นป้อมยามที่ทำหน้าที่เป็นป้ายชื่อโครงการไปด้วยในตัว
ผ่านป้อมยามมาก็จะเจอกับไม้กระดกที่ใช้ระบบคีย์การ์ดในการเปิด-ปิดทั้งทางเข้าและทางออก
ไม้กระดกบริเวณทางเข้า-ออกเป็นแบบ 2 ท่อนพับให้สั้นลงได้
ผ่านไม้กระดกเข้ามาก็จะเป็นที่จอดรถภายในโครงการที่มีทิศทางการเดินรถแบบทางเดียว ถนนภายในโครงการมีความกว้าง 8 เมตร สามารถจอดรถแบบ 90 องศาได้ทั้งสองฝั่งของถนน
ขับเข้ามาด้านในก็จะเจอกับ Court ที่เป็นลานโล่งระหว่างอาคาร A กับ B
มีพื้นที่ด้านข้างตามยาวของตัวอาคารเป็นพื้นที่ส่วนกลาง ที่ประกอบไปด้วยสระว่ายน้ำและสวนหิน
ผ่านลานโล่งที่เชื่อมทั้งสองอาคารเข้าด้วยกันก็จะเป็นถนนด้านหลังของโครงการที่มีลักษณะเป็นตัว U วนไปทางทิศตะวันตกของโครงการ
มีทางขึ้นทางที่ 2 นับจากทางเข้าเป็นทางขึ้นของอาคาร B ซึ่งก็คือทางขึ้น B2 ตามผังทางเข้าอาคาร
มุมทางด้านซ้ายมือตรงไปจะไปยังทางออกที่ด้านหน้าของโครงการ ทางขวามือคือทางที่วิ่งมาจากทางเข้า
ที่จอดรถใต้อาคาร B ฝั่งตะวันตกของโครงการยังคงเป็นถนนกว้าง 8 เมตรและจอดรถ 90 องศาทั้งสองฝั่งของถนน
โดยฝั่งซ้ายมือที่ติดกับรั้วโครงการทิศตะวันตกจะเป็นที่จอดรถกลางแจ้ง มีระยะล่นจากเขตที่ดินประมาณ 1.5 เมตรโดยทางโครงการได้ปลูกต้นไม้และลงหญ้าโดยรอบเพื่อเพิ่มพื้นที่สีเขียวให้กับโครงการ
ที่ปลายอาคาร B ทางทิศตะวันตกมีทางขึ้นอาคารทางที่ 3 นับจากเข้าโครงการมาคือทางขึ้น B1 ตามผังทางขึ้นอาคาร
เมื่อสิ้นสุดอาคาร B ก็จะเจอกับลานโล่งที่เป็นจุดเชื่อมต่อจุดที่ 2 ของอาคาร A และ B ที่ผังอาคารเป็นรูปตัว L ประกบกันเป็นวงสี่เหลี่ยมตามสัญลักษณ์ ออริจิ้น
โดยบริเวณจุดเชื่อมต่อจุดที่ 2 นี้เป็นที่ตั้งของศาลพระภูมิของโครงการ
มีทั้งศาลเจ้าที่และศาลตายาย อีกทั้งยังมีตะเกียงน้ำมันไว้สำหรับจุดธูปเทียนติดตั้งไว้ด้วย

เมื่อมองย้อนกลับไปยังฝั่งตรงข้ามของศาลพระภูมิก็จะมองเห็น Space ระหว่างอาคารและคอร์ทตรงกลางที่เป็นพื้นที่ของส่วนกลางที่เชื่ยมต่อทั้ง 2 อาคารเข้าด้วยกัน
วนกลับมาใต้อาคาร A อีกครั้งเพื่อมุ่งหน้าตรงไปยังทางออก
ที่มุมของอาคารคือทางขึ้นอาคารทางที่ 4 เป็นทางขึ้นอาคาร A1 ตามภาพผังทางขึ้นอาคารซึ่งทางเข้านี้เชื่อมต่อกับ Lobby ของโครงการ
ด้านข้างทางขึ้น A1 เป็นที่จอดรถจักรยานยนต์สามารถจอดได้ประมาณ 30 คัน
ก่อนจะถึงทางออกของโครงการเราก็จะผ่านสระว่ายน้ำซึ่งเป็น Court ตรงกลางระหว่างอาคารยาวตลอดความยาวของโครงการ แต่ไม่สามารถเข้าออกจากที่จอดรถได้ต้องใช้คีย์การ์ดเพื่อเข้าออกผ่านทางขึ้นอาคาร B1 เท่านั้น
แล้วเราก็วนมาถึงทางออกโครงการที่อยู่ในจุดเดียวกับทางเข้าซึ่งในส่วนของทางออกก็ต้องใช้คีย์การ์ดในการยกไม่กระดกเช่นกัน
หลังจากชมที่จอดรถของโครงการไปแล้วก็ขออนุญาตพาไปชมพื้นที่ส่วนกลางของโครงการเริ่มจาก Lobby ที่ชั้น 1 ของโครงการ
มาดูผังคร่าวๆกัน ส่วนกลางที่ชั้นล่างประกอบด้วย Lobby, Library และ Meeting room ที่เข้าได้จากถนนด้านหน้าโครงการ ด้านในมีคอร์ทกลางแจ้งบริเวณกึ่งกลางของโครงการ สามารถเข้าได้จากชั้น 2 ของอาคาร B ประกอบด้วย Fitness, Stream room, ห้องอาบน้ำ, สวนหย่อม, สระว่ายน้ำ และสวนหินที่ด้านในสุด
Lobby ของโครงการตั้งอยู่ที่หัวมุมด้านหน้าฝั่งทิศตะวันตก ถ้าเข้ามาจากทางสุขุมวิทก็จะถึง Lobby ก่อนทางเข้าที่จอดรถ
Lobby เป็น Double space 2 ชั้น สามารถมองเห็นได้ชัดเจนจากภายนอกเนื่องจากเป็นกระจกโดยรอบ และสามารถเข้าออกได้ 2 ทางคือจากทางด้านหน้าบนถนนสุขุมวิท 101/1 และจากทางขึ้นอาคาร A1 ด้านในของโครงการ
เมื่อเข้ามาด้านในทางด้านซ้ายมือก็จะเจอกับพื้นที่รับรองลูกค้าที่สามารถเชื่อมต่อไปยังทางขึ้นอาคาร A1 ได้ทางซ้ายมือของประตูทางเข้า
ตรงข้ามกับชุดโซฟาของพื้นที่รับรองมีป้ายชื่อโครงการขนาดใหญ่เต็มผนัง
พื้นที่รับรองลูกค้าถูกจัดไว้เป็นชุดโซฟา มีพื้นที่กว้างขวางและสีของวัสดุที่ใช้เป็นโทนสีธรรมชาติ ตามแนวคิดการออกแบบของโครงการสไตล์ Modern Scandinevian ที่เน้นวัสดุสีขาว, เอิร์ทโทน และวัสดุผิวไม้ ให้ความรู้สึกใกล้ชิดธรรมชาติและเรียบง่าย
ลองมาดูทางเข้า Lobby จากทางขึ้นอาคาร A1 กันสักหน่อย ซึ่งคนที่จะใช้ทางเข้า-ออกนี้ได้จะต้องมีคีย์การ์ดเท่านั้น
ชม Lobby ในส่วนของชั้น 1 กันไปแล้ว เราก็ขึ้นบันไดไปชม Library และ Meeting room กันต่อที่ชั้น 2
ซึ่งในส่วนของโถงบันไดนี้เองที่เป็นพื้นที่แบบ Double Space ที่เชื่อมต่อไปยังชั้นลอย ช่วยสร้างความโดดเด่นน่าประทับใจให้กับทางเข้าได้เป็นอย่างดี
ขึ้นมาที่ชั้น 2 ก็จะเจอกับพื้นที่อ่านหนังสือหรือ Library ซึ่งเป็นพื้นที่ส่วนชั้นลอย มีทั้งเคาน์เตอร์บาร์ที่สามารถมองลงไปยังชั้น 1 และชุดเก้าอี้อาร์มแชร์ให้นั่งคุยกันสบายๆ 4 ตัว
ด้านหลังของพื้นที่อ่านหนังสือคือทางเข้าอาคาร A ในส่วนของที่พักอาศัยซึ่งต้องใช้คีย์การ์ดในการเข้า-ออก
ด้านซ้ายมือของโถงทางขึ้นอาคาร A เป็นทางเข้าของ Meeting room
พื้นที่หน้า Meeting room เป็นตู้จดหมาย และที่สุดปลายทางเดินเป็นห้องน้ำรวมสำหรับส่วน Lobby
ตู้จดหมายเป็นแบบติดผังลอยขึ้นมาจากพื้นเต็มพื้นที่ผนังทั้ง 3 ฝั่ง มีลูกเล่นเป็นชั้นที่มีความสูงต่ำเหลื่อมกันเป็นคลื่น
ตรงข้ามกับตู้จดหมายคือทางเข้าห้องประชุมหรือ Meeting room มีประตูบานเลื่อนแบบเปิดออกจากตรงกลางเพื่อความเป็นส่วนตัวในการใช้งาน
ภายในมีโต๊ะประชุมขนาดเล็กพร้อมเก้าอี้ 6 ที่นั่ง และผนังกระจกที่ใช้เป็นกระดานได้
อีกฝั่งของห้องประชุมเป็นเคาน์เตอร์เล็กๆสำหรับเขียนหนังสือที่ติดกับระเบียงทางขวามือ มีประตูกระจกบานเลื่อนสลับสามารถเปิดออกไปยังระเบียงได้ และนำแสงธรรมชาติเข้าสู่ภายใน
มองย้อนกลับไปยังพื้นที่อ่านหนังสือ Library อีกครั้งก็จะเห็นภาพรวมของชั้น 2 คือขึ้นบันไดจากชั้น 1 มาที่ชั้นลอยซึ่งเป็นส่วนอ่านหนังสือ แล้วเดินตรงเข้ามาก็จะเจอกับตูจดหมายทางซ้ายมือของภาพและห้องประชุมทางขวามือ
จาก Lobby ที่อาคาร A แล้วก็จะไปชมส่วนกลางกันต่อที่ชั้น 2 ของอาคาร B ผ่านที่ทางขึ้นอาคาร B1 เมื่อขึ้นมายังชั้น 2 ก็จะเจอกับทางเข้าส่วนพักอาศัยที่ต้องใช้คีย์การ์ดและทางเข้าส่วนกลางทางด้านขวามือ
ส่วนกลางห้องแรกคือห้องออกกำลังกายหรือห้องฟิตเนส ทางเข้าเป็นประตูบานเปิดกระจกมีป้ายชื่อห้องติดไว้ด้านข้างประตูชัดเจน
เข้ามาก็จะเจอกับพื้นที่พักคอยเป็นอย่างแรก มีม้านั่งและนิตยสารไว้บริการติดกับมานั่งคือล็อกเกอร์
ภายในห้องออกกำลังกายมีพื้นที่ไม่กว้างนักแต่ก็มีเครื่องออกกำลังกายหลากหลายเต็มพื้นที่
มีกระจกเงาเต็มผนังไว้เช็คท่าออกกำลังกายให้ถูกต้อง และช่วยให้ห้องดูกว้างขึ้น ผนังภายนอกเป็นผนังกระจกโดยรอบทำให้สามารถเพลิดเพลินกับทัศนียภาพภายนอกอาคารในระหว่างออกกำลังกายได้
ลูกบ้านท่านได้ไม่ชอบออกกำลังกายอบบเงียบๆเหงาๆก็มีโทรทัศน์ไว้สร้างความบันเทิงระหว่างออกกำลังกาย โดยเครื่องออกกำลังกายที่ทางโครงการมีให้ได้แก่
Upright bike หรือจักรยานที่คนเข้าฟิตเนสคุ้นตากันดี, Elliptical trainer อุปกรณ์ออกกำลังกายที่เผาผลาญได้ดีติด 5 อันดับเครื่องออกกำลังกายที่เบิร์นเยอะที่สุด,
ลู่วิ่งที่เป็นอุปกรณ์ยอดฮิตประจำฟิตเนสจำนวน 2 ตัว หันหน้าออกสู่สวนที่คอร์ทกลางของโครงการที่อยู่ในระหว่างการปรับปรุง
เครื่องบริหารกล้ามเนื้อหน้าอกและแขน Seated Straight Arm Clip Chest สำหรับผู้ที่อยากสร้างกล้ามหน้าอก หรือสาวๆที่ต้องการกระชับต้นแขน
และชุด Dumbbell weight 2.5 – 12.5 kg. พร้อมม้านั่ง
ลองมองมุมกลับย้อนไปยังทางเข้าห้องออกกำลังกายดูภาพรวมของห้องกันอีกสักภาพก่อนออกไปชมส่วนถัดไป
ออกจากห้องฟิสเนตมาก็จะมีทางเดินกว้างประมาณ 1.2 เมตร นำไปสู่ Court กลางของโครงกลางที่ด้านนอก
ระหว่างทางเดินมีตู้จดหมายของอาคาร B ติดตั้งไว้เต็มผนัง
ฝั่งตรงข้ามของตู้จหมายคือห้องอบไอน้ำหรือ Steam Room ขออนุญาตไม่พาเข้าไปด้านในนะคะ เนื่องจากวันนี้มีลูกบ้านกำลังใช้บริการ
เดินมาสุดทางเดินก็จะเป็นห้องน้ำและห้องอาบน้ำแยกชาย-หญิงสำหรับผู้มาใช้งานส่วนกลางในชั้นนี้ที่เป็นกิจกรรมที่ต้องชำระล้างร่างกายก่อนหรือหลังทำกิจกรรม เป็นการอำนวยความสะดวกให้แก่ลูกบ้านอีกอย่างหนึ่ง
ภาพบรรยากาศภายในห้องน้ำชายประกอบด้วยห้องส้วม, ห้องอาบน้ำ, โถปัสสาวะชายและอ่างล้างมือ
ในส่วนของห้องน้ำหญิงก็ประกอบด้วยห้องส้วม, ห้องอาบน้ำและอ่างล้างมือ
คอร์ทกลางของโครงการประกอบด้วยสระว่ายน้ำและสวนหย่อมที่กำลังอยู่ในการปรับปรุง วันนี้เราจึงจะไปชมกันเฉพาะในส่วนของสะว่ายน้ำกัน
สระว่ายน้ำของโครงการเป็นสระยาวมีขนาด 4 × 15 เมตร โดยแบ่งเป็นสระเด็กขนาดประมาณ 2 × 2.5 เมตร
ด้านหน้าของสระว่ายน้ำเป็น Pool Deck พื้นไม้เทียม มีเก้าอี้อาบแดดหวายเทียม 3 ตัว และชุดโต๊ะเก้าอี้หวายเทียม 2 ที่นั่งอีก 2 ชุด โดยชุดหนึ่งเป็นชุดโต๊ะกาแฟและอีกชุดเป็นชุดรับประทานอาหาร
ถัดจาก Pool Deck เป็นทางลงสระว่ายน้ำที่ไล่ลงไปเป็นขั้นบันไดจากลานตื้นๆไปสู่สระเด็กแล้วลงสู่สระผู้ใหญ่ต่อไป
ด้านข้างของสระว่ายน้ำเป็นทางเดินริมสระสำหรับการดูแลรักษากว้างประมาณ 50 ซม. มีรางน้ำโรยหินไว้รองรับน้ำจากสระที่เป็นระบบน้ำล้นเพื่อเข้าสู่ระบบบำบัดและหมุนเวียนกลับไปยังสระอีกครั้ง

เมื่อเดินมาจนสุดปลายสระว่ายน้ำแล้วมองย้อนกลับไปที่ Pool deck ก็จะเป็นว่าสระว่ายน้ำของโครงการเปรียบเสมือนโอเอซิสที่แอบบซ่อนตัวอยู่ภายใน แม้ว่าจะถูกล้อมรอบไปด้วยอาคาร A และ B แต่ก็มีความร่มรื่นของต้นไม่โดยรอบ และเย็นตาด้วยพื้นที่ส่วนใหญ่ที่เป็นน้ำ ให้บรรยากาศที่เงียบสงบและผ่อนคลายเป็นอย่างยิ่ง
ที่ปลายสุดของสระว่ายน้ำมีสวนหินที่เป็นที่ตั้งของปติมากรรมรูปกวางในรูปแบบของจิ๊กซอว์ 3 มิติ เป็นจุดนำสายตา และเพิ่ม Concept ของความเป็นธรรมชาติของแถบสแกนดิเนเวียให้กับโครงการ
จากนี้เราจะขึ้นลิฟท์ไปชมส่วนกลางที่เหลือในชั้น 8 ลิฟท์ในโครงการเป็นของ Schneider ใช้ระบบปลดล็อกชั้นด้วยคีย์การ์ด
ส่วนกลางในชั้นดาดฟ้าของโครงการแบ่งเป็น 2 อาคาร อารคารละ 1 จุด ประกอบไปด้วย Roof grden และ Sky lounge โดยวันนี้เราจะขึ้นไปดูแค่ที่ดาดฟ้าของอาคาร B
มาถึงชั้น 8 กันแล้ว ส่วนกลางที่เราจะไปชมกันเป็นจุดสุดท้ายอยู่บนชั้นดาดฟ้า
โดยเราจะเดินขึ้นบันไดทางหนีไฟจากชั้น 8 เนื่องจากลิฟท์จะสิ้นสุดแค่ที่ชั้นนี้
ออกจากบันไดหนีไฟมาที่ดาดฟ้าก็จะเจอกับ Sky Lounge เป็นสนามหญ้าสำหรับนั่งเล่นพักผ่อนชมวิวมุมสูงจากดาดฟ้าของอาคาร หรือจะจัดปาร์ตี้กันเบาๆในยามค่ำคืนก็น่าสนใจ
มีชุดโต๊ะเก้าอี้หวายเทียมขนาด 4 ที่นั่งไว้คอยบริการ 2 ชุด แยกเป็น 2 ฝั่งเพื่อการใช้งานที่เป็นส่วนตัว
ลองเดินผ่านซุ้มทางเข้าที่เป็นปล่องบันไดหนีไฟต่อเติมเป็นหลังคายื่นออกมาเป็นทางเข้าอาคาร เชื่อต่อกับผนังโครงสร้างเหล็กโปร่งตาลายตารางที่แบ่งสัดส่วนให้กับพื้นที่อย่างชัดเจนแต่ไม่ตัดขาดออกจากการกัน
อีกด้านหนึ่งของดาดฟ้านอกจากจะมีชุดโต๊ะเก้าอี้แบบเดียวกันกับชุดแรกที่เห็นกันไปแล้ว การจัดภูมิทัศน์ยังเพิ่มพื้นที่นั่งเล่นด้วยขึ้นบันได ที่ไม่ว่าจะเอนตัวชมดาด หรือนั่งจิบเบียร์เย็นๆในคืนชิลๆกับเพื่อนก็เพลิดเพลินได้ไม่แพ้กัน
ก่อนจะกลับเข้าสู้ด้านในอาคารและจบการชมส่วนกลางที่บริเวณ Sky Lounge บนดาดฟ้า เราก็มามองย้อนดูภาพรวมของดาดฟ้ากันอีกสักภาพ จะเห็นว่าแม้จะไม่ใช่พื้นที่ขนาดใหญ่แต่ก็มีการออกแบบที่ใส่ใจถึงการใช้งานและความสวยงาม เป็นพื้นที่ที่ร่มรื่นและเงียบสงบน่าใช้งานไม่แพ้กับส่วนอื่นๆ
ชมส่วนกลางของโครงการกันครบแล้วจากนี้ก็ถึงคิวของส่วนพักอาศัยที่เป็นหัวใจของการรีวิว เริ่มต้นกันที่โถงลิฟท์กันเลย
จากโถงลิฟท์จะมีประตูที่ควบคุมด้วยระบบคีย์การ์ดอีกชั้น 1 เรียกว่ามีระบบรักษาความปลอดภัยที่ค่อนข้างหนาแน่น
ผ่านประตูจากโถงลิฟท์เข้ามาก็จะเป็นทางเดินแบบ Double Corridor ที่มีทางเดินอยู่ตรงกลางแจกเข้าสู่ห้องพักทั้ง 2 ฝั่งของทางเดิน
:::ผังอาคาร:::
ผังอาคารชั้น 3-8
:::แบบห้อง:::
B Republic สุขุมวิท 101/1 มีแบบบ้านให้เลือกด้วยกัน 14 แบบ แบ่งเป็น 1 ห้องนอน 9 แบบ และ 2 ห้องนอน 5 แบบ ดังนี้
แบ่งเป็นอาคาร A และ B อาคารละ 8 ชั้น รวม 374 ยูนิต
แปลนห้อง Type A1
แปลนห้อง Type A2
แปลนห้อง Type B1
แปลนห้อง Type B2
แปลนห้อง Type B3
แปลนห้อง Type B4
แปลนห้อง Type B5
แปลนห้อง Type B6
แปลนห้อง Type C1
แปลนห้อง Type C
แปลนห้อง Type E1
แปลนห้อง Type E2
แปลนห้อง Type E3
แปลนห้อง Type E4
:::ห้องตัวอย่าง:::
ห้องตัวอย่างที่เราจะไปชมกันในวันนี้มี 2 แบบ ดังนี้ค่ะ
ห้องตัวอย่างห้องที่ 1
แปลนห้อง Type B6
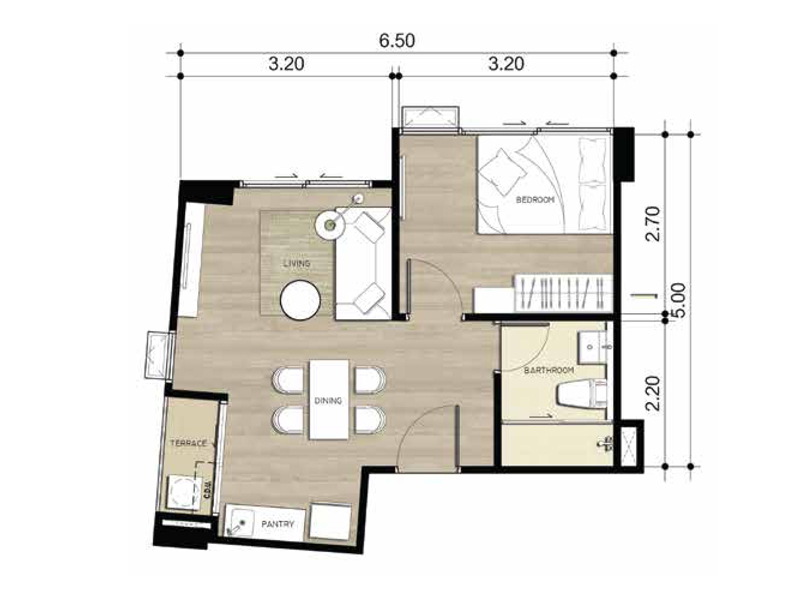
ตัวอย่างที่เราจะมาชมกันเป็นห้องแรกคือห้องแบบ 1 ห้องนอน Type B6 มีพื้นที่ใช้สอย 31.89 ตร.ม. จากประตูทางเข้าด้านซ้ายเป็นห้องนั่งเล่นและห้องครัวที่เปิดออกสู่ระเบียง ด้านขวาเป็นห้องน้ำและห้องนอน
เริ่มจากประตูทางเข้า บานประตูเป็นประตูไม้ผิวลามิเนต ข้างประตูมีป้ายหมายเลขห้องติดตั้งไว้ชัดเจน

มือจับประตูทางเข้าเป็นก้านโยกระบบดิจิตอลที่ใช้คีย์การ์ดในการเปิด-ปิดเพื่อความปลอดภัย, สะดวกรวดเร็วในการใช้งานและทันสมัย
ประตูเข้ามาจะสามารถมองเห็นพื้นที่ภายในห้องโดยรวมได้เกือบครบ พื้นห้องทั้งหมดเป็นพื้นไม้ลามิเนตหนา 8 มม. ความสูงของห้องระหว่างพื้นถึงเพดานอยู่ที่ 2.45 เมตร
เพดานห้องเป็นฝ้าฉาบเรียบไฟแสงสว่างที่ให้เป็นดวงโคมดาวน์ไลท์สี่เหลี่ยมเหมือนกันทั้งห้อง
ผนังห้องเป็นผนังปูนฉาบเรียบทาสีภายในสีขาว สวิตไฟเป็นแบบสี่เหลี่ยมผืนผ้าสีขาวยี่ห้อ Schneider
เครื่องใช้ไฟฟ้าที่ให้คือเครื่องปรับอากาศยี่ห้อ Daikin 19,000 BPU จำนวน 2 เครื่องคือในห้องนั่งเล่นและในห้องนอน
ที่ด้านซ้ายมือของประตูทางเข้าเป็นพื้นที่ของห้องครัวและห้องนั่งเล่นโดยทางซ้ายจะเป็นห้องครัวและโต๊ะกินข้าวที่มีทางออกสู่ระเบียง ส่วนทางขวาจะเป็นห้องนั่งเล่น
พื้นที่ห้องครัวประกอบด้วยเคาน์เตอร์ครัวและโต๊ะกินข้าว
พื้นที่ครัวเป็นพื้นที่ถัดจากประตูทางเข้าและต่อเนื่องออกไปยังระเบียง
โต๊ะกินข้าวที่ทางโครงการให้เป็นโต๊ะ 4 ที่นั่งขนาด 0.8 × 1.2 เมตรของ Index ขาโต๊ะเป็นขาเหล็ก ท็อปโต๊ะเป็นไม้ MDF ปิดผิว PVC สีดำ เก้าอี้ที่ให้เป็นเก้าอี้พร้อมพนักพิงพลาสติคสีดำขาไม้จำนวน 4 ตัว
ถัดจากโต๊ะกินข้าวเข้าไปด้านในเป็นเคาน์เตอร์ครัวแบบบิวท์อินติดผนังสูงจากพื้นประมาณ 15 ซม. สีขาวขนาดประมาณ 0.6 × 1 เมตร
เคาน์เตอร์ครัวเป็นตู้ประตูบานเปิด 2 บาน ด่านในแบ่งเป็นชั้นย่อยอีกสองชั้นสำหรับเก็บเครื่องครัวหรืออุปกรณ์ทำอาหาร และลิ้นชัก 1 ลิ้นชักพร้อมถาดที่มีช่องสำหรับจัดเก็บช้อนส้อม
ด้านบนเคาน์เตอร์เป็นฉันติดผนังแบบบิวท์อินเช่นกัน ไม่วางของได้ 3 ชั้น
ที่เคาน์เตอร์มีซิงค์ล้างจานแบบหนึ่งหลุมพร้อมพื้นที่คว่ำจานและก๊อกล้างจานแบบการโยก ผนังเหนือเคาน์เตอร์เป็นผนังปูนฉาบเรียบทาสีภายในธรรมดาดังนั้นเพื่ออายุการใช้งานที่ยาวนานแนะนำให้กรุเป็นผนังกระเบื้องเพิ่มหรือหาวัสดุกันเปื้อนมาติดตั้ง
ถัดจากห้องครัวเป็นประตูกระจกบานเลื่อนสลับกรอบอะลูมิเนียมสีดำ เป็นทางออกสู่ระเบียง
พื้นระเบียงเป็นกระเบื้องเซรามิกสีเทาขนาด 30 × 30 ซม. พื้นที่ระเบียงมีขนาดประมาณ 0.7 × 1.65 เมตร
ประตูทางออกระเบียงติดตั้งบนเขิบสูงจากพื้นห้องประมาณ 15 ซม.
ผนังระเบียงฝั่งหนึ่งมีก๊อกสนามและท่อที่เดินขึ้นมาจากพื้นไว้สำหรับติดตั้งเครื่องซักผ้า พร้อมเต้ารับแบบมีฝาปิดกันน้ำสำหรับใช้ภายนอก
เหนือประตูบานเลื่อนเป็นที่วางคอมเพรสเซอร์แอร์ติดตั้งเป็นโครงเหล็กยึดกับผนังและเพดาน มีดวงโคมซาลาเปา สำหรับให้ความสว่างภายนอก 1 ดวง
เข้ามาสู่พื้นที่ภายในอีกด้านหนึ่งของห้องครัวก็คือห้องนั่งเล่นโดยทางโครงการ ให้เป็นตู้วางทีวี 1 ตัว,โซฟาและโต๊ะกาแฟ
ระยะห่างระหว่างโซฟากับตู้วางทีวีมีระยะประมาณ 2 เมตรสามารถวางทีวีขนาด 55″-70″ ได้ในระยะการดูที่เหมาะสม
ที่ผนัง ฝั่งตู้วางทีวีมีความกว้างประมาณ 3 เมตร ด้านข้างมีช่องแสงสูงจากพื้นประมาณ 5 ซม. ขนาดประมาณ 0.6 × 2 เมตร
ช่องแสงเป็นบานกระจกติดตายที่ครึ่งล่างส่วน ส่วนครึ่งบนเป็นบานกระทุ้งมีม่านพับสีเทาเข้มติดตั้งให้เรียบร้อย
ตู้วางทีวีที่โครงการให้มาเป็นเฟอร์นิเจอร์แบบลอยตัวเป็นตู้ไม้มีประตูปิด 2 บานที่ด้านข้าง ชั้นนวางของเปิดโล่ง 2 ชั้นที่ตรงกลาง
กลับมาทางฝั่งของโซฟาที่ผนังด้านข้างโซฟาฝั่งซ้ายมือในภาพเป็นหน้าต่างบานเลื่อนสลับลูกฟักกระจกบานกรอบอะลูมิเนียมสีดำติดตั้งสูงจากพื้นประมาณ 1 เมตร
โซฟาที่โครงการให้มาเป็นโซฟาขนาด 3 ที่นั่ง ขาเหล็กเบาะผ้าสีเทา-ดำ แต่หมอนอิงจำนวน 6 ใบน่าจะเป็นเพียงของตกแต่งเท่านั้น
มองเลยโซฟาไปด้านหลังก็จะเป็นพื้นที่บริเวณทางเข้าซึ่งเป็นส่วนของห้องนอนและห้องน้ำ
ที่บริเวณทางเข้ามีขนาดประมาณ 1.5 × 2 เมตร ด้านซ้ายของภาพตรงข้ามกับประตูทางเข้าคือห้องนอน ด้านหลังประตูทางเข้าเป็นห้องน้ำ
พื้นที่ด้านหน้าห้องน้ำมีชั้นวางของสำเร็จรูปไม้ MDF สีดำให้ 2 ชั้น ประมาณ 0.6 × 2 เมตรซอยเป็นชั้นด้านในจำนวน 5 ชั้น สามารถใช้วางรองเท้าและเก็บของที่ต้องพกติดตัวออกนอกบ้าน เช่นกุญแจรถ, หมวกกันน็อคหรือกระเป๋าก็สะดวกดี
ถัดจากชั้นวางของมาคือประตูทางเข้าห้องน้ำที่อยู่ด้านหลัง บานประตูเป็นประตูไม้ HDF ติดบานเกร็ดระบายอากาศครึ่งบาน
พื้นห้องน้ำเป็นพื้นกระเบื้องเซรามิกสีเทาเข้มขนาด 40 × 40 ซม. ผนังห้องน้ำเป็นกระเบื้องเซรามิกสีขาวลายเซาะร่องตามนอนขนาด 15 × 40 ซม. ติดตั้งเต็มความสูงผนัง
พื้นห้องน้ำลดระดับจากพื้นห้องประมาณ 2-3 ซม.
เพดานห้องน้ำเป็นฝ้าฉาบเรียบสีขาว มีพัดลมระบายอากาศและโคมดาวน์ไลท์ติดตั้งไว้ให้
ด้านหลังประตูมีราวอลูมิเนียมสำหรับแขวนผ้าเช็ดตัวความยาว 80 ซม. ติดตั้งไว้ให้ที่ผนัง
ผนังด้านหลังอ่างล้างหน้าและโถ่สุขภัณฑ์ก่อเป็นผนัง 2 ชั้นขึ้นมาเป็นบ่าสำหรับวางของและเพื่อความสะดวกต่อการเดินท่อ ด้านบนปิดผิวด้วยหินแกรนิตสีดำหนา 2 ซม. เพื่อความแข็งแรง
อ่างล้างหน้าที่โครงการเลือกเป็นของ Cotto เป็นอ่างครึ่งวงกลมสีขาวแบบลอยตัวติดตั้งกับผนัง
ถัดจากอ่างล้างหน้าประมาณ 20 ซม.คือโถสุขภัณฑ์แบบ Flush tank แยกชิ้นรุ่นประหยัดน้ำของ Cotto ด้านข้างมีสายชำระและที่ใส่กระดาษชำระสแตนเลสยี่ห้อ Cotto
ด้านในสุดของห้องน้ำคือพื้นที่ส่วนเปียกที่แบบสัดส่วนด้วยบานเลื่อนกระจกสำเร็จรูปสำหรับห้องน้ำแบบ 3 ตอนติดตั้งลงบนพื้นห้องน้ำมีบานกรอบสูงจากพื้นประมาณ 5 ซม.
พื้นที่ส่วนอาบน้ำมีขนาดประมาณ 0.8 × 1.6 เมตร
ฝักบัวที่ให้มาเป็นฝักบัวสายอ่อน หัวฝักบัวเป็นพลาสติกชุบโครเมี่ยมขนาดเส้นผ่านศูนย์กลางประมาณ 10 ซม. เป็นหัวฝักบัวแบบปรับระดับน้ำได้ ก๊อกฝักบัวเป็นแบบก้านโยก ด้านขวามือมีตะแกรงวางสบู่ติดตั้งให้ที่ผนัง อุปกรณ์ทุกอย่างเป็นของ Cotto
ไปกันต่อที่ห้องนอนตรงข้ามกับประตูทางเข้า ประตูห้องนอนเป็นวัสดุชนิดเดียวกันกับประตูทางเข้าต่างกันที่มือจับเป็นลูกบิด
เมื่อเปิดประตูเข้ามาจะเจอกับโต๊ะเครื่องแป้งทางขวามือติดกับประตูทางเข้า ถัดไปคือเตียงนอนและหน้าต่างขนาดเต็มผนังพร้อมม่านจีบยาวเต็มความสูงผนัง
เมื่อมองไปทางหัวเตียงจะเห็นว่ามีตู้เสื้อผ้าอยู่ทางขวามือไม่ห่างจากเตียงนอน
ที่ปลายเตียงเป็นผนังเปล่า สามารถติดตั้งทีวีแบบติดผนังหรือจะซื้อโต๊ะทีวีมาวางเพิ่มก็ทำได้เพราะทางโครงการได้เตรียมช่องสำหรับเสียบสายเคเบิ้ลและเต้ารับไว้ให้แล้ว
พื้นที่ปลายเตียงมีระยะเหลือประมาณ 80 ซม. สามารถวางตู้วางทีวีหรือตู้เก็บของที่มีความลึก 25-50 ซม. ได้ขึ้นอยู่กับความถนัดในการใช้สอย
พื้นที่ข้างเตียงบริเวณหน้าโต๊ะเครื่องแป้งมีพื้นที่ค่อนข้างจำกัดทางโครงการจึงได้ทำบิวท์อินเป็นชั้นและกระจกติดผนังขนาดพอใช้งานได้ไว้ให้ ซึ่งอาจจะเล็กไปสักหน่อยสำหรับคุณผู้หญิงแต่ก็ยังมีพื้นที่เหลือพอที่จะซื้อชั้นวางของหรือโต๊ะที่หน้าไม่ลึกมาวางเพิ่มได้
ในส่วนของตู้เสื้อผ้าเนื่องจากมีพื้นที่เหลือบริเวณหน้าตู้เสื้อผ้าเพียง 30 ซม. ทางโครงการจึงบิวท์อินตู้เสื้อผ้าเป็นประตูบานเลื่อนสลับเพื่อให้เหมาะสมกับพื้นที่การใช้งานที่จำกัด
อีกด้านหนึ่งของเตียงนอน เป็นหน้าต่างบานกระจก 3 ตอน แบ่งเป็นบานเลื่อนสลับ 2 บาน สูงจากพื้นประมาณ 80 ซม. และหน้าต่างบานกระทุ้ง 1 บาน
โดยหน้าต่างบานกระทุ้ง 1 ช่องเปิดที่ปลายเตียงมีด้านล่างเป็นหน้าต่างบานกระจกติดตายสูงจากพื้น 10 ซม.
ห้องตัวอย่างห้องที่ 2
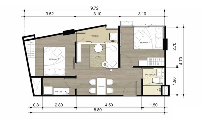
แปลนห้อง Type E4
พื้นที่ใช้สอย 50.84 ตร.ม. เป็นห้องแบบ 2 ห้องนอนเปิดประตูเข้ามาจะเจอกับห้องนอน 2 และห้องน้ำทางขวามือด้านหลังประตู ด้านซ้ายมือเป็นห้องครัว, ห้องนั่งเล่นที่เชื่อมไปยังระเบียง และห้องนอนหลัก (ห้องนอน 1) พร้อมห้องน้ำในตัวที่ด้านในสุด
ประตูทางเข้าห้องมีขนาด 0.8 × 2 เมตร เป็นประตูไม้ HDF ผิวลามิเนตพร้อมมือจับระบบดิจิตอลเหมือนกับในห้องตัวอย่างแบบ 1 ห้อนนอน
พื้นห้องเป็นไม้ลามิเนตหนา 8 มม. และผนังฉาบปูนเรียบทาสีภายในสีขาว ฝ้าเพดานฉาบเรียบทาสีขาวสูง 2.4 เมตร เปิดประตูเข้ามาก็จะเจอกับห้องนอน 2 ทางขวามมือตรงข้ามกับประตูทางเข้า ถัดไปทางซ้ายมือติดกับห้องนอนคือห้องนั่งเล่นที่ต่อเนื่องกับห้องครัว และมีห้องนอนหลักอยู่ด้านในสุด
เต้ารับและช่องเสียบสายเคเบิ้ลเป็นของ Schneider สีขาวเช่นเดียวกับสวิตช์ไฟที่เห็นกันไปแล้วในห้องตัวอย่างห้องแรก
โดยเราจะเริ่มการชมห้องตัวอย่างห้องที่ 2 ห้องนี้กันที่พื้นที่ทางขวามือของประตูทางเข้าก่อน
ด้านหลังประตูเป็นห้องน้ำที่มีชั้นไม้ MDF สีดำขนาด 0.6 × 2 เมตร จำนวน 2 ชั้นวางไว้ด้านหน้าห้องน้ำเช่นเดียวกับในห้อง 1 Bedroom ที่ได้ชมกันไป
พื้นที่ภายในห้องน้ำมีการแบ่งส่วนเปียก-ส่วนแห้งด้วยประตูบานเลื่อนกระจก 3 ตอนสำหรับห้องน้ำ และใช้วัสดุพื้น, ผนัง, สุขภัณฑ์ทุกอย่างเหมือนกันกับห้องน้ำในห้องตัวอย่างที่ชมกันไปแล้วทุกประการ
ไปกันต่อที่ห้องนอน 2 ที่อยู่ตรงข้ามกับประตูทางเข้า
ขนาดพื้นที่และลักษณะการจัดวางเฟอร์นิเจอร์ภายในห้องนี้เป็นแบบเดียวกันกับห้องนอนของห้องแบบ 1 Bedroom ที่ผ่านมา คือเปิดประตูเข้ามาจะเจอกับโต๊ะเครื่องแป้งทางขวามมือ ต่อด้วยเตียนนอนและหน้าต่างที่ด้านในสุด
ไฟแสงสว่างในห้องแบบ 2 Bedroom นี้ก็ยังคงเป็นโคมดาวน์ไลท์สี่เหลี่ยม
แต่เมื่อมองไปทางหัวเตียงจะรู้สึกว่ามีระยะห่างระหว่างเตียงนอนกับตู้เสื้อผ้าที่กว้างขึ้น เนื่องจากเตียงที่ให้ในห้องนี้มีขนาดเล็กกว่า คือเป็นเตียงแบบ Single bed ขนาด 1.05 × 1.5 เมตร หรือ 3.5 × 5 ฟุต

มาดูพื้นที่ข้างเตียงที่เหลือกัน จะเห็นว่าที่จริงแล้วมีพื้นที่ทางเดินระหว่างตู้เสื้อผ้ากับเตียงนอนกว้างเท่าเดิม แต่ได้พื้นที่ข้างเตียงฝั่งหน้าต่างเพิ่มขึ้นอีกประมาณ 25 ซม. ซึ่งเราสามารถดันเตียงเข้าไปชิดกับหน้าต่างมากกว่านี้ได้ ก็จะช่วยเพิ่มพื้นที่หน้าตู้เสื้อผ้าให้กว้างขึ้น ทำให้การใช้งานสะดวกยิ่งขึ้น
ตู้เสื้อผ้าที่ให้ก็ยังเป็นขนาดเดียวกัน คือ 0.6 × 1.2 เมตร และเป็นประตูบานเลื่อนสลับเหมือนกัน
กระจกและชั้นติดผนังก็เป็นขนาดเดียวกันประมาณ 30 × 30 ซม. ซึ่งถ้าเทียบกับพื้นที่ที่กว้างขึ้นจากขนาดเตียงที่เล็กลงก็จะมีข้อดีตรงที่สามารถใช้งานได้สะดวกยิ่งขึ้น
มองย้อนกลับไปทางปลายเตียงคือผนังเปล่าพร้อมเต้ารับและช่องต่อสายเคเบิ้ลเหมือนกับห้อง 1 Bedroom

พื้นที่ปลายเตียงที่เหลือประมาณ 60 ซม. ก็ยังคงเพียงพอสำหรับการวางตู้วางทีวีหรือชั้นวางของขนาด 25-30 ซม. ได้อยู่

หน้าต่างในห้องนอนห้องที่ 1 ห้องนี้ก็ยังเป็นบานกระจกกรอบอลูมิเนียมสีดำแบ่งเป็น 2 ช่วง 3 ตอน คือบานเลื่อนสลับ 2 บานสูงจากพื้น 80 ซม. และบานติดตาย 1 บานสูงจากพื้น 10 ซม. ขึ้นไปเป็นบานกระทุ้งที่ระดับเดียวกับบานเลื่อน
ภาพรวมของห้องนอน 2 ในห้องตัวอย่างห้องที่ 2 นี้ เมื่อมองย้อนกลับไปทางประตูก็จะเห็นภาพรวมของห้องนอนที่ประกอบด้วยเตียงนอน, ตู้เสื้อผ้าบานเลื่อน, กระจกติดผนังไล่ไปหาประตูห้องนอน
ชมพื้นที่ฝั่งขวามมือของประตูทางเข้าห้องกันไปเป็นที่เรียบร้อยแล้ว เราก็มาชมพื้นที่ทางซ้ายมือกันต่อ ซึ่งพื้นที่ส่วนนี้ก็คือห้องครัว, ห้องนั่งเล่น และห้อนนอนหลักหรือห้องนอน 1 ตามในแปลน
เริ่มจากห้องครัวกันก่อน พื้นที่ในส่วนของห้องครัวโต๊ะรับประทานอาหารทางด้านซ้ายมือของภาพที่ส่วนถัดจากประตูทางเข้าไล่ไปทางขวามือจึงเป็นเคาน์เตอร์ครัวที่บิวท์อินเข้ามุมที่ด้านใน
โต๊ะทานอาหารเป็นชุดเฟอร์นิเจอร์ห้องทานอาหารสีดำของ Index เช่นเดียวกับที่ให้ในห้อง 1 Bedroom แต่ในห้องนี้จะมีพื้นที่และเส้นทางการสัญจรภายในห้องที่เป็นสัดส่วนยิ่งขึ้น
ต่อไปเป็นส่วนของบิวท์อินครัวที่ทางโครงการทำไว้ให้เป็นแบบเข้ามุม อาจจะดูมีพื้นที่หน้าเคาน์เตอร์ที่เล็ก แต่ในด้านการใช้งานเราก็ยังได้พื้นที่ในส่วนของมุมตู้สามารถวางอุปกรณ์ได้เช่นกัน แต่จากพื้นที่ด้านข้างที่เป็นส่วนรับประทานอาหารที่เหลืออยู่ก็สามารถหาโต๊ะ, ตู้หรือเคาน์เตอร์มาตั้งเพิ่มได้
ตัวเคาน์เตอร์ครัวเป็น MDF ผิว PVC สีขาว ฝั่งหนึ่งเป็นตู้บานเปิดและลิ้นชักพร้อมถาดวางช้อนส้อม อีกฝังหนึ่งเป็นบานปิดใต้ซิงค์ล้างจาน
ด้านบนของเคาน์เตอร์มีชั้นวางของติดผนังและตู้ติดผนังที่บิวท์อินเป็นแบบเข้ามุมเช่นเดียวกันกับตัวเคาน์เตอร์
ซิงค์ล้างจานที่ติดตั้งมาให้เป็นแบบ 1 หลุมพร้อมพื้นที่คว่ำจานด้านข้างของ Hafele เหมือนกันกับห้อง 1 Bedroom
ก๊อกล้างจานที่ให้เป็นแบบก้านโยกฝังในซิงค์ สะดวกต่อการใช้งาน เปิด-ปิดง่าย
ที่เคาน์เตอร์อีกฝั่งเป็นพื้นที่ที่เตรียมไว้ให้สำหรับการทำอาหารเนื่องจากมีตัวดูดควันติดตั้งไว้ให้ที่ด้านล่างของตู้ติดผนังเหนือเคาน์เตอร์ แต่ไม่มี Hob หรือเตาให้ ซึ่งลูกบ้านอาจซื้อเป็นกระทะไฟฟ้า หรือเตาไฟฟ้า ไปจนถึงเตาแก๊ซปิ๊กนิคก็มีให้เลือกหลากหลาย
จากห้องครัวเราก็หันหลังกลับไปที่อีกด้านของห้องซึ่งเป็นพื้นที่ในส่วนของห้องนั่งเล่นกัน พื้นที่ในส่วนนี้จะแบ่งออกเป็นห้องนั่งเล่นทางขวามือ และโต๊ะทำงานทางซ้ายมือ โดยพื้นที่ทั้ง 2 ฝั่งมีประตูบานเลื่อนสลับที่สามารถเปิดออกสู่ระเบียงได้ทั้ง 2 ฝั่ง
มาเริ่มกันจากห้องนั่งเล่นทางขวามือ เฟอร์นิเจอร์ที่ทางโครงการให้มาเป็นแบบลอยตัวของ Index เหมือนกับห้อง 1 Bedroom คือมีโซฟาบุผ้าขาเหล็กสีเทา-ดำ, โต๊ะกาแฟขาเหล็กท๊อฟ MDF สีดำ และตู้วางทีวีไม้ มีระยะห่างระหว่างโซฟากับตู้วางทีวี ประมาณ 1.5 เมตร เป็นระยะที่สามารถวางทีวีขนาด 32-42 นิ้วได้
ตู้วางทีวีที่ทางโครงการให้มาเป็นตู้ไม้ขนาด 0.4 × 1.2 เมตร มีประตูเปิด-ปิดตู้ 2 บานที่ด้านข้าง และชั้นเปิดโล่ง 2 ชั้นที่ตรงการเหมือนกับที่ให้ในห้อง 1 Bedroom
โซฟาที่ให้ก้เป็นแบบเดียวกัน คือ ขนาด 3 ที่นั่ง 0.6 × 1.8 เมตร เบาะผ้าสีเทา-ดำตกแต่งด้วยหมอนอิง 6ใบ
ด้านหลังโซฟาคือส่วนของโต๊ะทำงาน มีพื้นที่ประมาณ 1.2 × 1.5 เมตร วางโต๊ะขนาด 0.6 × 1.2 เมตรได้ 1 ตัว พร้อมเก้าอี้แบบเดียวกับที่ให้ในห้องรับประทานอาหาร
เมื่อลองเลื่อนเก้าอี้ออกมาก็จะสามารถมองเห็นระยะการใช้งานได้ชัดขึ้น ซึ่งก็ถือว่าไม่ใช่ระยะที่กว้างขวางขนาดเดินสวนกันไปมาได้ แต่ก็ไม่ใช่ระยะที่แคบจนน่าอึดอัด เป็นระยะที่พอดีสำหรับการใช้งาน 1 คน
ชมพื้นที่ห้องนั่งเล่นและห้องทำงานกันไปเรียบร้อยแล้วก็ออกไปดูระเบียงด้านนอกกันบ้าง ตามที่ได้กล่าวไปแล้วว่าสามารถออกสู่ระเบียงได้ทั้งจากทางห้องนั่งเล่น และโต๊ะทำงาน
โดยเราจะมาดูระเบียงที่ฝั่งของห้องนั่งเล่นกันก่อน ประตูทางออกเป็นประตูกระจกบานเลื่อนสลับกรอบอลูมิเนียมสีดำเหมือนประตู-หน้าต่างภายนอกทั่วไปของโครงการ
วงกบประตูติดตั้งลงบนเขิบปูนที่สูงจากพื้นห้อง 10 ซม.
พื้นที่ระเบียง ฝั่งที่ติดกับห้องนั่งเล่นมีขนาด 0.7 × 1.8 เมตร พื้นระเบียงเป็นกระเบื้องเซรามิกขนาด 30 × 30 ซม. สีเทาเข้มเหมือนกันกับห้องตัวอย่างห้องแรก
ผนังด้านหนึ่งของระเบียง เป็นพื้นที่ของลานซักล้างมีก๊อกสนาม, ท่อสำหรับต่อกับเครื่องซักผ้าและเต้ารับแบบมีฝาปิดกันน้ำสำหรับใช้ภายนอก
ด้านบนของประตูบานเลื่อนเป็นที่วางคอมเพรสเซอร์แอร์ 2 ตัวที่ทำจากโครงเหล็ก
ออกไปดูระเบียงฝั่งโต๊ะทำงานกันบ้างประตูทางออกที่ระเบียงฝั่งนี้เป็นประตูบานเลื่อนสลับแบบเดียวกันกับฝั่งแรก พื้นที่ด้านนอกของระเบียงก็มีฝั่งหนึ่งเป็นพื้นที่สำหรับซักล้างมีก๊อกและท่อสำหรับเดินซิงค์ล้างจานหรือเครื่องซักผ้าเช่นกัน และที่ด้านบนเหนือประตูบานเลื่อนก็เป็นพื้นที่สำหรับวางคอมเพรสเซอร์แอร์ด้วย
ชมพื้นที่ส่วนห้องครัวและห้องนั่งเล่นกันไปเป็นที่เรียบร้อยแล้วก็มาถึงห้องสุดท้ายด้านในสุดของห้องก็คือห้องนอนหลัก (ห้องนอน 1) ประตูทางเข้าอยู่ตรงกลางระหว่างห้องนั่งเล่นและห้องครัว
เมื่อเปิดประตูเข้ามาในห้องนอน 1 ก็จะเห็นพื้นที่ของเตียงนอนอยู่ทางขวามือและห้องน้ำภายในห้องอยู่ตรงข้ามกับประตูทางเข้า
พื้นที่ในส่วนของเตียงนอนมีขนาดประมาณ 2.5 × 2.5 เมตร เตียงนอนที่ทางโครงการให้มาเป็นเตียงไม้ขนาด 1.5 × 1.8 เมตรหรือควีนไซส์ 5 × 6 ฟุต
เมื่อวางเตียงนอนเข้ามุมทำให้เหลือพื้นที่ปลายเตียงและด้านข้างเตียงประมาณ 0.8-1 เมตร
ทางด้านหัวเตียงมีเสาพอกขึ้นมาจากผนังซึ่งหากจัดวางเฟอร์นิเจอร์ไม่ดีก็อาจจะมีซอกเป็นที่เก็บฝุ่นได้ แต่ในทางกลับกันก็สามารถทำบิวอินเพิ่มเติมเป็นชั้นวางของในระดับเดียวกับเสาก็จะทำให้ได้พื้นที่เก็บของเพิ่มเติม
มองย้อนกลับไปทางปลายเตียงก็จะเป็นผนังเปล่า มีเต้ารับและช่องต่อสายเคเบิ้ลทีวีติดตั้งไว้ที่ผนังเหมือนกับในห้องแรก
ก่อนที่จะไปต่อกันในส่วนของห้องน้ำแล้วก็มาดูรายละเอียดของหน้าต่างกันอีกสักนิด
หน้าต่างที่ด้านในสุดของห้องนอนหลักเป็นหน้าต่าง 3 ตอนแบบเดียวกับในห้องนอน 2 ที่ได้ชมกันไป
โดยหน้าต่างตอนแรกทางปลายเตียงเป็นหน้าต่างติดตายสูงขึ้นมาจากพื้น 10 ซม. แล้วจึงเป็นหน้าต่างบานกระทุ้งที่ระดับ 80 ซม.

แล้วจึงต่อเนื่องที่ระดับเดิมไปเป็นหน้าต่างบานเลื่อนสลับอีก 2 บาน เหมือนกันกับหน้าต่างในห้องนอนห้องอื่นๆทั้งในห้อง 1 Bedroom และ 2 Bedroom
หันกลับมามองที่อีกด้านหนึ่งของห้องก็จะเห็นว่าเป็นพื้นที่ของส่วนแต่งตัวที่อยู่ถัดจากห้องน้ำทางด้านหลังของประตูทางเข้าห้องนอน ประกอบด้วยตู้เสื้อผ้าบิวท์อินและกระจกติดผนัง
ตู้เสื้อผ้าในห้องนอน 1 มีขนาดและรูปแบบใกล้เคียงกับตู้เสื้อผ้าในห้องนอนอื่นๆ แต่ประตูตู้แตกต่างออกไปคือบานหนึ่งเป็นประตูไม้แต่อีกบานหนึ่งเป็นประตูกระจก
แล้วเราก็มาถึงห้องสุดท้ายของห้องตัวอย่างห้องที่ 2 กันแล้วค่ะ นั่นก็คือห้องน้ำภายในห้องนอน 1 นั่นเอง
โดยรวมแล้วห้องน้ำภายในห้องนี้ก็มีรายละเอียดใกล้เคียงกันกับห้องน้ำในห้องอื่นๆ มีขนาดประมาณ 1.4 × 2.1 เมตร พื้นกระเบื้องเซรามิกสีเทาเข้มขนาด 40 × 40 ซม.
มีการแบ่งส่วนเปียกส่วนแห้งด้วยประตูบานเลื่อนกระจกสำเร็จรูปสำหรับติดตั้งภายในห้องน้ำ และใช้สุขภัณฑ์และอุปกรณ์ต่างๆภายในห้องน้ำเป็นรุ่นและยี่ห้อเดียวกันกับที่ใช้ในห้องอื่นๆ
พื้นห้องน้ำลดระดับลงมาจากพื้นห้องนอนประมาณ 2-3 ซม.
ผนังด้านหลังอ่างล้างหน้าและโถสุขภัณฑ์ก่อผนังเพิ่มเป็นบ่าสำหรับวางของปิดผิวด้วยหินแกรนิตสีดำเพื่อความแข็งแรง
อ่างล้างหน้าครึ่งวงกลมสีขาวแบบลอยตัวติดตั้งเข้ากับผนังของ Cotto เดียวกับในห้องแรก
โถสุขภัณฑ์แบบ Flush tank แยกชิ้นก็เป็นของ Cotto รุ่นเดียวกันกับในห้องอื่นๆ
ผนังกระจกที่ใช้แบ่งส่วนเปียก-ส่วนแห้งก็เป็นแบบบานเลื่อน 3 ตอนเช่นเดียวกับในห้องตัวอย่างห้องที่ 1
พื้นที่อาบน้ำภายในห้องนี้มีขนาดประมาณ 0.8 × 1.3 เมตร
ฝักบัวที่ใช้ในห้องนี้ก็เหมือนกับในห้องตัวอย่างห้องแรกคือเป็นฝักบัวสายอ่อนหัวฝักบัวเป็นพลาสติกชุบโครเมี่ยมแบบปรับระดับน้ำได้ พร้อมก๊อกฝักบัวแบบก้านโยกและตะแกรงวางสบู่ติดตั้งที่ผนัง
:::สรุปรายการวัสดุมาตรฐาน (พ.ค. 60):::
วัสดุโดยรวม
ห้องน้ำ
งานไฟฟ้า
เฟอร์นิเจอร์
***รายละเอียด Spec ของวัสดุ อาจมีการเปลี่ยนแปลงเป็นรุ่นที่เทียบเท่า***
:::ราคา::: (พฤษภาคม 2560)
***ราคานี้เป็นราคาโปรโมชั่น สอบถามข้อมูลโดยตรงกับทางโครงการ***
:::บทสรุปโครงการ:::
ทำเลที่ตั้งโครงการ : B Republic สุขุมวิท 101/1 ตั้งอยู่บนถนนวชิรธรรมสาธิต หรือสุขุมวิท 101/1 เป็นถนนที่อยู่ระหว่างสถานนีรถไฟฟ้า BTS ปุณณวิถี (สุขุมวิท 101) และอุดมสุข (สุขุมวิท 103) เป็นเส้นทางลัดจากถนนสุขุมวิทสู่อ่อนนุช-ลาดกระบัง และศรีนครินทร์ มีซอยย่อยเชื่อมต่อกับถนนปุณณวิถีและอุดมสุขได้หลายช่วง ตัวโครงการอยู่ห่างจากแยกทุ่งสาธิตจุดตัดระหว่างสุขุมวิทและวชิรธรรมสาธิต 1.5 กม. เป็นที่ตั้งที่ล้อมรอบไปด้วยตลาด, ซุปเปอร์มาเก็ต, ห้างสรรพสินค้า และโรงเรียนนานาชาติในระยะ 5 กม.
ความอุดมสมบูรณ์ : มี 7ELEVEn ที่ใกล้ที่สุดห่างจากโครงการเพียง 50 เมตร มีร้านอาหาร, ร้านค้า และตลาดนัดห่างจากโครงการในระยะ 200 เมตร มีคอมมูนิตี้มอลล์ในระยะ 2 กม. บนเส้นสุขุมวิท และมีห้างสรรพสินค้าชั้นนำในระยะ 5 กม. บนเส้นศรีนครินทร์, บางนา และสุขุมวิท
การเดินทางด้วยรถยนต์ส่วนตัว : ถนนเส้นหลักในย่านนี้คือถนนสุขุมวิท, อุดมสุข, ศรีนครินทร์ และบางนา-ตราด ซึ่งล้วนเป็นถนนที่มีเส้นทางลัดเขื่อมต่อกับวชิรธรรมสาธิต (สุขุมวิท 101/1) ถนนที่ตั้งของโครงการ สามารถขึ้นทางด่วนได้ทั้งขาเข้าและขาออกตัวเมืองกรุงเทพฯจากถนนสุขุมวิท ทั้งทางด่วนเฉลิมมหานครเพื่อเข้าสู่สาทร, ทางด่วนรามอินทรา-อาจนรงค์เพื่อไปยังพระราม 9-ลาดหร้าว และทางด่วนบูรพาวิถีบนเส้นบางนา-ตราดเพื่อมุ่งหน้าสู่ปริมาณฑลและและภาคตะวันออก
การเดินทางด้วยรถสาธารณะ : ติดกับโครงการมีวินมอเตอร์ไซค์เพื่อออกไปยังถนนสุขุมวิท แล้วสามารถต่อรถประจำทางขาเข้าที่ป้ายรถประจำทางซอยวัดทุ่งสาธิตฝั่งตรงข้ามห่างจากแยกทุงสาธิต (ปางทางถนนวชิรธรรมสาธิต) 100 เมตร, ขาออกที่ป้ายซอยปิยบุตร 2 บริเวณหน้าปิยรมย์เพลสห่างจากแยกทุ่งสาธิต 170 เมตร หรือรถไฟฟ้า BTS ที่สถานีปุณณวิถีและและอุดมสุขห่างจากแยกทางเข้าโครงการ 600 เมตร สำหรับขาเข้าโครงการก็มีวินมอร์เตอร์ไซค์อยู่ห่างจากปากทางเข้าเพียง 100 เมตร
การออกแบบโครงการและวัสดุ : โครงการ B Republic สุขุมวิท 101/1 เป็นโครงการคอนโดสไตล์โมเดิร์นบนที่ดิน 2-0-69 ไร่ จำนวน 2 อาคาร อาคารละ 8 ชั้น มีห้องพักอาศัยรวมทั้งหมด 347 ยูนิต 14 Type แบ่งเป็นแบบ 1 Bedroom ขนาด 23.5-30.5 ตร.ม. และ 2 Bedroom ขนาด 37.7-50.84 ตร.ม.
ซึ่งเราก็ได้ชมห้องตัวอย่างกันไปแล้วทั้งแบบ 1 Bedroom : Type B6 ขนาด 33.2 ตร.ม. และ 2 Bedroom : Type E4 ขนาด 50.84 ตร.ม. ด้านการออกแบบทางโครงการใช้แนวคิดแบบโมเดิร์นสแกนดิเนเวียน ที่มีที่มาจากกลุ่มประเทศในแถวอากาศหนาว มีความสงบและใกล้ชิดธรรมชาติ บรรยากาศที่เกิดขึ้นในโครงการจึงมีความร่มรื่น สงบ และสบายตา เน้นการออกแบบที่เรียบง่ายอบอุ่นแต่เย็นตาด้วยวัสดุสีเอิร์ทโทน
วัสดุที่ใช้ในส่วนของเฟอร์นิเจอร์ส่วนใหญ่เป็นวัสดุสีขาวหรือไม้เพื่อให้ได้บรรยายกาศตามแนวคิดการออกแบบ พื้น, ผนัง และสุขภัณฑ์เป็นวัสดุที่ได้คุณภาพตามมาตรฐานทั่วไป คือพื้นไม้ลามิเนตหนา 8 มม. ผนังฉาบเรียบทาสีภายใน สุขภัณฑ์และอุปกรณ์ภายในห้องน้ำของ Cotto ด้านประตู-หน้าต่าง ภายในเป็นไม้ HDF ปิดผิวลามิเนต ประตูทางเข้ามีมือจับระบบดิจิตอล และภายนอกเป็บานกระจกกรอบอลูมิเนียมสีดำทั้งหมด สุดท้ายเครื่อใช้ไฟฟ้าที่ทางโครงการให้มาด้านคุณภาพเป็นไปตามมาตรฐาน แต่ขาดเตาสำหรับทำอาหาร
สิ่งอำนวยความสะดวก : ส่วนกลางของโครงการประกอบด้วยสวนหย่อม, Lobby, Library, Meeting room, Stream room, ฟิตเนส, สระว่ายน้ำ และ Sky Lounge ที่ชั้นดาดฟ้า มีสิ่งอำนวยความสะดวกที่หลากหลาย แต่มีขนาดเล็กและมีบางส่วนที่ต้องใช้ร่วมกัน 2 อาคาร ทำให้ขาดความสะดวกและอาจะไม่เพียงพอต่อการใช้งานในช่วงที่มีการใช้งานหนาแน่น
ระบบรักษาความปลอดภัยเป็นการรักษาความปลอดภัย 24 ชม. ประกอบด้วย 4 ระบบ ได้แก่ กล้องวงจรปิด CCTV, คีย์การ์ดที่เป็นแบบล็อคชั้น (ใช้กับประตูทางเข้าอาคาร, ลิฟท์และประตูห้อง) , ไม้กระดก และพนักงานรักษาความปลอดภัยค่ะ
:::คะแนน:::
| ทำเลที่ตั้งโครงการ | 7.0 | โครงการติดถนนสุขุมวิท 101/1 ห่างจากสุขุมวิท 1.5 กม. อยู่ระหว่างสถานีรถไฟฟ้า BTS อุดมสุข และปุณณวิถี ห่างจากโครงการ 2.2 กม. สภาพแวดล้อมรอบโครงการมีความสงบ และอุดมสมบูรณ์ มี 7ELEVEn ในระยะเดินถึงเพียง 50 เมตร และร้านค้า-ร้านอาหาร และตลาดนัดในระยะ 50-200 เมตร |
| การเดินทาง ใช้รถ | 8.0 | โครงการตั้งอยู่บนถนนที่เป็นทางลัดเชื่อมกับถนนเส้นหลักในเขตสวนหลวง-สุขุมวิทได้หลายเส้นทาง ทั้งอุดมสุข, ศรีนครินทร์, อ่อนนุช-ลาดกระบัง และบางนา-ตราด ใกล้ทางด่วนเฉลิมมหานคร, รามอินทรา-อาจณรงค์ และบูรพาวิถี |
| การเดินทาง ไม่ใช้รถ | 7.5 | มีวินมอเตอร์ไซค์ทั้งจากปากทางวชิรธรรมสาธิตและจากโครงการ มีแท็กซี่ผ่านหน้าโครงการเป็นระยะ สามารถออกสู่สุขุมวิทเพื่อต่อรถประจำทาง หรือรถไฟฟ้า BTS ได้ หรือสองแถวที่ศรีนครินทร์ |
| ห้องและวัสดุ | 7.5 | แบบห้องมีการจัดการพื้นที่ที่ลงตัว ไม่อึดอัด แต่มีฟังก์ชั่นครบ วัสดุที่ใช้มีความเรียบง่ายและได้คุณภาพเหมาะกับยุคสมัย มีทั้งความสวยงามและการใช้งานตามมาตรฐาน |
| สิ่งอำนวยความสะดวก | 7.0 | มีความหลากหลายของประเภทการใช้ แต่มีจุดให้บริการและขนาดที่ไม่ค่อยพอเพียงกับจำนวนยูนิต ด้านคุณภาพแม้ว่าจะมีขนาดเล็กแต่มีความสะอาดสวยงาม เป็นส่วนตัว |
| ความคุ้มค่ากับราคา | 7.2 | เหมาะสำหรับครอบครัวขนาดเล็ก 1-3 คน เพราะมีทั้งแบบ 1 และ 2 ห้องนอน แต่ขนาดไม่ใหญ่มาก ที่ตั้งโครงการและตัวโครงการมีความสงบร่มรื่น เหมาะแก่การอยู่อาศัยที่ไม่เร่งรีบแต่สามารถเข้าถึงแหล่งความเจิรญได้ไม่ยาก |
| คะแนนรวมเฉลี่ย | 7.36 | ดี |
สอบถามรายละเอียดเพิ่มเติมได้ที่
Tel : 084-902-0009,084-902-0099
Website : http://brepublic.origin.co.th/sukhumvit101-1/gallery.php
หากท่านเห็นว่ารีวิวนี้มีประโยชน์ โปรดกด Like เพื่อเป็นกำลังใจให้ทีมงาน ขอบคุณค่ะ
หากท่านมีความคิดเห็นหรือข้อมูลเพิ่มเติมเกี่ยวกับตัวโครงการ สามารถ Comment ได้ที่ด้านล่างของรีวิวค่ะ