logo

EP.1149 รีวิว คอนโด Yuu คอนโดริมหาดศรีราชา จาก SFC Venture Sriracha ในเครือแสงฟ้าก่อสร้าง

โพสโดย : pure / วันที่ : 15 August 2018

EP.1149 รีวิว คอนโด Yuu คอนโดริมหาดศรีราชา จาก SFC Venture Sriracha ในเครือแสงฟ้าก่อสร้าง

Yuu sriracha

Written by : THAnATH

สวัสดีผู้อ่านชาว Homenayoo ทุกคนครับ วันนี้ผมพามาชมโครงการ Yuu จาก SFC Venture Sriracha (บริษัทในเครือบริษัทแสงฟ้า ก่อสร้าง จำกัด) ตั้งอยู่ติดทะเลในอำเภอศรีราชา จังหวัดชลบุรี ใกล้รถไฟความเร็วสูงที่เชื่อมระหว่าง 3 สนามบิน รายล้อมไปด้วยแหล่งอำนวยความสะดวกต่างๆ

Yuu เป็นคอนโด High Rise 29 ชั้น จำนวน 1 อาคาร บนที่ดิน 2-1-25.6 ไร่ ตัวโครงการออกแบบในในสไตล์ญี่ปุ่น ห้องพักอาศัยมีทั้งหมด 285 ยูนิต และร้านค้า 6 ยูนิต มีห้องให้เลือกแบบ 1 ห้องนอน, 2 ห้องนอน ขนาดห้องเริ่มต้นที่ 33.5 – 71.5 ตร.ม. ทุกยูนิตจะได้ระบบ Smart Home Automation เพื่อความสะดวกสบายของลูกบ้าน คาดว่าสร้างเสร็จพร้อมอยู่ในปี 2562

สิ่งอำนวยความสะดวกภายในโครงการมีให้ครบครัน อาทิ Lobby, Swimming Pool, Co-working space, Fitness, Indoor & Outdoor Onsen , Japanese Tatami room, Beach Patio and Pier, Zen Garden, Kids’ Kingdom, Key Card , กล้องวงจรปิด พร้อม รปภ. 24 ชม. ราคาเริ่มต้น 3.9 ล้านบาท



ชื่อโครงการ   ยู / Yuu
เจ้าของโครงการ   SFC Venture Sriracha Co., Ltd. บริษัทในเครือของ บริษัท แสงฟ้าก่อสร้าง จำกัด
เนื้อที่ทั้งหมด  2-1-25.6 ไร่
จำนวนตึก  1 อาคาร
จำนวนชั้น  29 ชั้น
จำนวนห้อง
  • ยูนิตพักอาศัย 285 ยูนิต
  • ยูนิตร้านค้า 6 ยูนิต
ลักษณะห้องและขนาดห้อง
  • 1 Bedroom ขนาด 33.5 – 41.5 ตร.ม.
  • 2 Bedroom ขนาด 57 – 71.5 ตร.ม.
ที่จอดรถทั้งหมด   125 คัน หรือคิดเป็น 44% ไม่รวมซ้อนคัน
จำนวนลิฟต์
  • ลิฟต์โดยสาร 3 ตัว
  • ลิฟต์บริการ 1 ตัว
โซน  ศรีราชา ชลบุรี
ขนส่งสาธารณะ
  • ถนนสุขุมวิท
  • รถไฟความเร็วสูง
รถโดยสารที่ผ่าน  n/a
ที่ตั้ง  ถนนสุขุมวิท ต.บางพระ อ.ศรีราชา จ.ชลบุรี
กำหนดการ  เริ่มก่อสร้าง ต.ค. 2560
ปีที่สร้างเสร็จ  ไตรมาส 3 ปี 2562
ราคา  เริ่มต้น 3.9 ล้านบาท
ราคาเฉลี่ยต่อ ตร.ม   130,000 บาท/ตร.ม.
ค่าส่วนกลางและกองทุน
  • ค่าส่วนกลาง* : 60 บาท/ตร.ม./เดือน
  • ค่ากองทุน* : 500 บาท/ตร.ม.
สถานที่สำคัญใกล้เคียง
  • AEON Sriracha Shopping Mall : 4 กม.
  • ตึกคอม ศรีราชา : 4.4 กม.
  • The Best Buy : 4.4 กม.
  • Robinson @Pacific Park ศรีราชา : 4.4 กม.
  • Tree Box Market : 4.5 กม.
  • ตลาดศรีราชา : 4.6 กม.
  • ตลาดวรกิจ : 5.6 กม.
  • BSC Driving Range ศรีราชา : 9.2 กม.
  • ตลาดโต้รุ่งอ่าวอุดม : 10.3 กม.
  • J-Park Nihon Mura : 10.4 กม.
  • Easy Point 2 : 10.4 กม.
  • Homepro ศรีราชา : 10.7 กม.
  • Portobello Mall (Origin District) : 11.2 กม.
  • ไทวัสดุ ศรีราชา : 11.3 กม.
  • Hardware House ศรีราชา : 11.4 กม.
  • Porto Market : 12 กม.
  • FN Factory Outlet ศรีราชา : 12.3  กม.
  • Harbor Mall แหลมฉบัง : 14.6 กม.
  • Makro แหลมฉบัง : 14.7 กม.
  • Central ชลบุรี : 17.5 กม.
  • บมจ.ไทยออยล์ : 10.9 กม.
  • Kerry Siam Seaport : 11 กม.
  • นิคมอุตสาหกรรมปิ่นทอง : 13 กม.
  • สวนอุตสาหกรรมเครือสหพัฒน์ : 14.6 กม.
  • สนามบินสหพัฒน์ (ศรีราชา) : 15.4 กม.
  • นิคมอุตสาหกรรมแหลมฉบัง : 16 กม.
  • สนามบินหนองค้อ : 19.5 กม.
  • นิคมอุตสาหกรรมปิ่นทอง (โครงการ 3, 4 และ 5) : 21 กม.
  • วัดเขาบางพระ : 2.9 กม.
  • ที่ว่าการ อ.ศรีราชา : 3.2 กม.
  • ค่ายลูกเสือวชิราวุธ : 3.6 กม.
  • เกาะลอย : 4.2 กม.
  • ท่าเรือจรินทร์ (ท่าเรือเกาะลอย-เกาะสีชัง) : 4.6 กม.
  • อ่างเก็บน้ำบางพระ : 7 กม.
  • ท่าเรือศรีราชาฮาร์เบอร์ (ท่าเรือน้ำลึก) : 8 กม.
  • สะพานปลาอ่าวอุดม : 10.3 กม.
  • สวนเสือศรีราชา : 12.5 กม.
  • วัดเขาดินวนาราม : 12.9 กม.
  • GISTDA : 13.9 กม.
  • สำนักงานขนส่งศรีราชา : 13.9 กม.
  • อ่างเก็บน้ำหนองค้อ : 16 กม.
  • สวนสัตว์เปิดเขาเขียว : 20 กม.
  • รพ.สมิติเวชศรีราชา : 3.3 กม.
  • ศูนย์เทพรัตน์การุญ สภากาชาดไทย : 4 กม.
  • รพ.พญาไทศรีราชา : 4.3 กม.
  • รพ.สมเด็จพระบรมราชเทวี ณ ศรีราชา สภากาชาดไทย : 5.2 กม.
  • รพ.แหลมฉบัง : 10.6 กม.
  • รพ.วิภารามแหลมฉบัง : 13.5 กม.
  • รร.ดาราสมุทร : 2.2 กม.
  • รร.ศรีราชา : 3 กม.
  • รร.อัสสัมชัญศรีราชา : 4.7 กม.
  • รร.เซนต์ปอลคอนแวนต์ : 4.7 กม.
  • รร.สมาคมไทย-ญี่ปุ่น ศรีราชา : 9.9 กม.
  • ม.เกษตรฯ ศรีราชา : 11.3 กม.
สิ่งอำนวยความสะดวก
  • Lobby
  • Infinity Edge Pool
  • Co-Working Space & Lounge
  • Sky Fitness
  • Indoor & Outdoor Onsen
  • Japanese Tatami room
  • Beach Patio and Pier
  • Zen Garden
  • Kids’ Kingdom
  • Steam Room
  • Putting Green
จุดเด่นของโครงการ  Yuu คอนโดเหนือระดับริมหาดศรีราชา ติดถนนสุขุมวิท พร้อมให้คุณได้สัมผัสความเป็นส่วนตัวและการพักผ่อนอย่างมีระดับ ด้วยรูปแบบดีไซน์สไตล์ Zen ที่มีเอกลักษณ์เฉพาะและทุกห้องมาพร้อมด้วยระบบ Smart Home Automation นอกจากนี้ยังมีฟังก์ชั่นของ Facilities ที่หลากหลาย ตอบสนองทุกความต้องการของชีวิต บนทำเลที่ดีที่สุด

ที่ตั้งโครงการ

ถนนสุขุมวิท ต.บางพระ อ.ศรีราชา จ.ชลบุรี

พิกัด Google โดยประมาณ : 13.191479, 100.934025

ที่ตั้งโครงการ Yuu ตั้งอยู่ในตำบลบางพระ อำเภอศรีราชา จังหวัดชลบุรี ตัวโครงการอยู่ติดกับถนนสุขุมวิทฝั่งมุ่งหน้าไปทางอำเภอเมืองชลบุรี หรืออยู่ฝั่งที่ติดกับทะเลอ่าวไทยนั่นเองครับ ตัวถนนสุขุมวิทเป็นเส้นหลักในย่านนี้เลย เป็นเส้นที่ตัดมาจากกรุงเทพฯมาผ่านจังหวัดฉะเชิงเทรา และมาเข้าชลบุรี ผ่านหน้าโครงการไปพัทยา ไประยอง จันทบุรี และไปสิ้นสุดที่จังหวัดตราด

การเดินทางเข้าเมือง ใช้เส้นสุขุมวิทถ้าจะไปตัวอำเภอศรีราชาก็ต้องไปกลับรถ ซึ่งจุดกลับรถห่างจากโครงการประมาณ 450 ม. จากนั้นก็ตรงเข้าไปประมาณ 2.5 กม. ก็จะถึงตัวอำเภอแล้วเป็นระยะที่ไม่ได้ไกลจากโครงการ หรือถ้าเลยไปอีกจะมาเทศบาลนครแหลมฉบังซึ่งเป็นแหล่งนิคมอุตสาหกรรมสำคัญของที่นี่ หรือเลยมาอีกหน่อยก็จะเข้าพัทยาครับเป็นสถานที่ท่องเที่ยวที่มีทั้งชาวไทยและต่างชาติเข้ามาตลอดทั้งปี จากโครงการถ้าจะไปตัวเมืองชลบุรีออกจากโครงการก็ขับตรงมุ่งหน้าไปตามถนนสุขุมวิทก็จะไปเข้าตัวเมืองชลุรี หรือเลยไปเข้ากรุงเทพฯได้เลย หรือจะขึ้นทางด่วนบูรพาวิถีวิ่งยาวเข้ากรุงเทพได้เลยสะดวกดี จากเส้นสุขุมวิทสามารถตัดเข้ามอเตอร์เวย์วิ่งเข้ากรุงเทพฯได้อีกทาง

การเดินทางออกนอกเมือง เส้นสุขุมวิทวิ่งผ่านพัทยาไปเข้าจังหวัดระยอง เลยไปจันทบุรี และตราดได้เลย เส้นมอเตอร์เวย์สามารถวิ่งมาออกจังหวัดระยองได้ ไม่ต้องใช้เส้นสุขุมวิทผ่านเมืองพัทยา ถนนทางหลวง 3214 เป็นเส้นไปเชื่อมเข้ามอเตอร์เวย์ได้ หรือวิ่งยาวไปออกทางหลวง 331 (สัตหีบ-พนมสารคาม) ใช้วิ่งไปฉะเชิงเทราและปราจีนบุรีได้

การเดินทางโดยสาธารณะ ด้านหน้าทางเข้าโครงการตรงเส้นสุขุมวิทมีรถประจำทางวิ่งเข้าออกกรุงเทพไปชลบุรี พัทยา ระยอง จันทบุรี ตราด มีรถสองแถววิ่งผ่านไปมาตั้งแต่โรบินสันศรีราชาถึงตลาดหนองมน มีรถตู้วิ่งตั้งแต่กรุงเทพฯไปจนถึงพัทยา ระยอง จันทบุรี ตราด ซึ่งสามารถโบกขึ้นที่หน้าโครงการได้เลย แต่ถ้าจะข้ามถนนจะลำบากหน่อยเพราะไม่มีสะพานลอยต้องเดินข้ามถนน 6 เลน และรถค่อนข้างจะวิ่งเร็ว ควรมีรถส่วนตัวจะสะดวกกว่าซึ่งเป็นเป็นปกติของการเดินทางในต่างจังหวัด นอกจากนี้ในอนาคตจะมีโครงการรถไฟความเร็วสูงเชื่อม 3 สนามบิน คือสุวรรณภูมิ ดอนเมือง และอู่ตะเภา โดยตัวโครงการจะอยู่ใกล้กับสถานีศรีราชาแต่คงต้องรอกันอีกสักพักครับ ส่วนตำแหน่งที่ตั้งสถานีต้องรอดูอีกทีว่าจะอยู่ตรงไหน แต่ถ้าเปิดใช้งานเมื่อไหร่คงจะเพิ่มความสะดวกสบายในการเดินทางมากขึ้นแน่นอนครับ

จากภาพถ่ายดาวเทียมจะเห็นว่าพื้นที่รอบๆโครงการส่วนใหญ่จะเป็นพื้นที่ว่างเปล่า สลับกับบ้านพักอาศัย ตามริมทางจะเป็นอาคารพาณิชย์ ส่วนโครงการคอนโดมิเนียมก็พอมีบ้างแต่ยังไม่เยอะมาก ส่วนใหญ่จะอยู่ไปทางตัวอำเภอศรีราชามากกว่า ทำเลย่านนี้ค่อนข้างเงียบสงบเหมาะแก่การพักอาศัย อีกทั้งยังสามารถเดินทางไปยังนิคมอุตสาหกรรมต่างในชลบุรีได้สะดวกครับ

การเดินทางวันนี้เริ่มจากกรุงเทพฯโดยขึ้นทางด่วนบูรพาวิถีวิ่งมุ่งหน้าไปชลบุรี ลงทางด่วนมาจะเข้าถนนสุขุมวิท วิ่งตามป้ายศรีราชาไปเรื่อยๆก่อนเข้าตัวอำเภอศรีราชาสังเกตทางขวามือจะเห็นทางเข้าโครงการ จากนั้นชิดขวาเพื่อกลับรถและเลี้ยวเข้าโครงการครับ

สรุปการเดินทาง ทางด่วนบูรพาวิถี > ถนนสุขุมวิท > Yuu

เริ่มจากทางด่วนบูรพาวิถี มุ่งหน้าชลบุรี

ขับตามทางมาจนลงทางด่วน

ลงทางด่วนมาจะเป็นถนนสุขุมวิท และจะเข้าสู่จังหวัดชลบุรี

ซ้ายมือจะเจอ Plus Mall อมตะนคร

ขวามือเป็น ม.ศรีปทุมวิทยาเขตชลบุรี

ถัดมาซ้ายมือเป็นสถาบันการพลศึกษา

และจะเจอโรงเรียนชลบุรีสุขบท

ถัดมาซ้ายมือเป็นค่ายนวมินทราชินี กรมทหารราบที่ 21 รักษาพระองค์

และจะเจอแยกเฉลิมไทย ตรงไปครับ

ช่วงนี้สองฝั่งทางจะเป็นอาคารพาณิชย์ มีร้านค้าต่างๆ

ถัดมาจะเจอโรงพยาบาลชลบุรี

จากนั้นขวามือจะเจอโรงพยาบาลสมิติเวช

ถัดมาเป็นตึกคอม

เลยมาหน่อยเป็น Tesco Lotus

และจะเจอ Central ชลบุรี

จากนั้นตามป้ายศรีราชาไปครับ

ซ้ายมือเป็น Big C Extra ชลบุรี

ขวามือเป็น Marko ชลบุรี

ถัดมาเป็น Big C ชลบุรี 2

จากนั้นจะเจอตลาดหนองมน

ถัดมาอีกจะเจอตลาดบางพระขวามือ

และจะเห็นโครงการ The Zea ขวามือ

และจะเห็นทางเข้าโครงการขวามือ ให้เราเตรียมกลับรถข้างหน้าได้เลย ชิดขวาไว้

และจะเจอจุดกลับรถ

กลับรถมาซ้ายมือมีป้ายโครงการบอกอีก 100 ม. เราชิดซ้ายได้เลยครับ

และจะเจอทางเข้าโครงการซ้ายมือ

ทางเข้าพื้นที่โครงการ

เลี้ยวเข้ามาจะเป็นทางลาดลงไปครับ

ลงมาก็จะเห็นตัวโครงการพอดี

พื้นที่โครงการทางทิศเหนือจะติดกับถนนภาระจำยอม ทิศใต้ติดกับซอยด้านข้างโครงการฝั่งตรงข้ามจะเป็นบ้านพักอาศัยและพื้นที่ว่างเปล่า ทิศตะวันออกติดกับถนนภาระจำยอมฝั่งตรงข้ามโครงการเป็นแนวอาคารพาณิชย์ ทิศตะวันตกติดกับพื้นที่โครงการในอนาคตซึ่งเป็นอาคารสูงครับระยะห่างระหว่างอาคารอยู่ที่ประมาณ 23 ม. วิวที่ได้จากยูนิตฝั่งนี้จะเห็นแบบแนวทแยงมุม

ฝั่งด้านหน้าพื้นที่โครงการติดกับถนนภาระจำยอม

ฝั่งตรงข้ามเป็นแนวอาคารพาณิชย์

 

เดินถัดมาจะเจอทางแยก ซ้ายมือเป็นทางเข้าออกโครงการจากถนนสุขุมวิทได้อีกทาง ขวามือเป็นซอยด้านข้างโครงการไปร้านอาหาร ถ้าตรงไปจะเป็นบ้านพักอาศัย

มองไปฝั่งปากซอยถนนสุขุมวิท เป็นทางเข้าออกโครงการได้อีกทาง

มองกลับไปพื้นที่โครงการ

ซอยด้านข้างโครงการจะเป็นซอยไม่ใหญ่มาก รถวิ่งสวนกันไม่ได้ ซ้ายมือจะเป็นบ้านพักอาศัย

ถัดเข้ามาซ้ายมือจะเป็นพื้นที่ว่างเปล่า

ถัดเข้ามาจะเป็นศรีราชาเบย์คอนโด

ศรีราชาเบย์คอนโดรั้วจะติดกับพื้นที่โครงการในอนาคต

มองไปยังพื้นที่โครงการจะติดกับพื้นที่โครงการในอนาคต

ลงมาด้านล่างจะเจอร้านอาหารริมหาดซีฟู้ด เดินมาใช้บริการกันได้ครับ

มองจากรั้วด้านข้างโครงการศรีราชาเบย์คอนโด จะเห็นพื้นที่นั่งพักผ่อนริมหาด โดยทางโครงการจะทำเป็นเหมือนขั้นบันไดไว้นั่งชมวิว จะมีทางเดินเชื่อมมาจากโครงการ

มองออกไปด้านหน้าจะเป็นชายหาดซึ่งทางโครงการจะมีการถมทรายเพื่อให้ดูสวยงามครับ บริเวณทะเลโซนนี้จะไม่เหมาะกับการเล่นน้ำเท่าไหร่เพราะจะมีทั้งหิน เปลือกหอย ค่อนข้างเยอะ

กลับมาฝั่งด้านข้างโครงการอีกฝั่ง ตรงมุมนี้จะเป็นทางเข้าออกโครงการครับ ตัวโครงการตอนนี้เริ่มเห็นโครงสร้างแล้ว คาดว่าจะแล้วเสร็จประมาณไตรมาส 3 ปี 2562

เดินเข้ามาด้านในจะเป็นสำนักงานขายขวามืออยู่ริมทะเลเลย

มองกลับไปที่พื้นที่โครงการ จะเห็นตัวโครการ และพื้นที่โครงการในอนาคต

พื้นที่ด้านในรั้วจะเห็นแบบนี้

ถัดเข้ามาด้านในพื้นที่ส่วนนี้ในอนาคตจะเป็นทางเดินเชื่อมลงไปยังพื้นที่ริมหาด

สำนักงานขายตั้งอยู่ริมหาด

เดินเข้ามามีระเบียงกว้างๆไว้ให้ชมวิว

มองออกไปที่ทะเลจะเห็นแบบนี้

มองไปทางซ้ายจะเห็นศรีราชาเบย์คอนโด และร้านอาหารริมหาดซีฟู้ด ที่ผมพาเดินไปดูมาแล้ว

มองไปทางขวา

ด้านในสำนักงานขาย เข้ามาจะมีเคาน์เตอร์พนักงาน

ผนังฝั่งด้านหน้าจะเป็นกระจกสูงมองเห็นวิวทะเล มีโมเดลจำลองโครงการ พร้อมที่นั่ง ตกแต่งมาในสไตล์ญี่ปุ่น

อีกฝั่งมีบันไดเดินขึ้นไปเป็นห้องตัวอย่าง 2 แบบ

ด้านในทำเป็นเหมือนกล่องกระจก มีต้นไม้อยู่ตรงกลาง

วิวฝั่งทิศเหนือประมาณชั้น 27 มองไปทางตัวเมืองชลบุรี ระยะประมาณ 200 ม. จะเป็นโครงการ The Zea สูง 39 ชั้น นอกนั้นก็ยังโล่งๆอยู่

ฝั่งทิศใต้ ประมาณชั้น 27 มองไปทางตัวอำเภอศรีราชา วิวค่อนข้างโล่งยาวเลย

ฝั่งทิศตะวันตกจะมองออกไปยังทะเล แต่ถ้ามีโครงการขึ้นในอนาคตฝั่งนี้จะเห็นวิวแบบทแยงมุม วิวจะไม่ได้แบบ 180 องศานั่นเอง

ฝั่งทิศตะวันออกมองออกไปทางถนนสุขุมวิทด้านหน้า วิวจะเห็นภูเขาเขียวๆแบบนี้

ความอุดมสมบูรณ์รอบๆโครงการ ในโครงการจะมีร้านค้า 6 ร้าน แต่ยังไม่รู้ว่าจะเปิดเป็นอะไรบ้าง หน้าปากซอยริมถนนสุขุมวิทมีร้านอาหาร 2-3 ร้าน ตรงฝั่งด้านข้างโครงการตรงริมหาดมีร้านอาหารทะเลเดินมาใช้บริการกันได้ ถ้าจะคึกคักหน่อยให้มาแถวๆตัวเมืองศรีราชาซึ่งอยู่ไม่ไกลจากโครงการ จะมีทั้งสถานที่ราชการ โรงเรียน สวนสาธารณะ ห้างสรรพสินค้า และมีร้านอาหารให้เลือกหลายร้านเลย หรือจะไปฝั่งชลบุรีมีตลาดบางพระ ตลาดหนองมนที่เป็นตลาดชื่อดังย่านนี้เลยนักท่องเที่ยวชอบแวะซื้อของฝากกันบ่อยๆ ใกล้ๆโครงการมีสถานที่เที่ยวสไตล์ญี่ปุ่นอย่าง J park ส่วนห้างสรรพสินค้าใกล้ๆ มีทั้ง AEON Shopping Mall, Robinson, The Best Buy, ตึกคอม ตรงเส้นมอเตอร์เวย์จะมีไทวัสดุ, Home Pro, FN Factory Outlet ตรงเส้นสุขุมวิทมีทั้ง Big C, Makro, Tesco Lotus, Central นอกจากนี้ตัวโครงการยังอยู่ไม่ไกลจากแหล่งงานนิคมอุตสาหกรรมต่างๆ สถานศึกษาชื่อดัง และสถานที่ท่องเที่ยวอีกด้วย

สถานที่สำคัญใกล้เคียง

  • AEON Sriracha Shopping Mall : 4 กม.
  • ตึกคอม ศรีราชา : 4.4 กม.
  • The Best Buy : 4.4 กม.
  • Robinson @Pacific Park ศรีราชา : 4.4 กม.
  • Tree Box Market : 4.5 กม.
  • ตลาดศรีราชา : 4.6 กม.
  • ตลาดวรกิจ : 5.6 กม.
  • BSC Driving Range ศรีราชา : 9.2 กม.
  • ตลาดโต้รุ่งอ่าวอุดม : 10.3 กม.
  • J-Park Nihon Mura : 10.4 กม.
  • Easy Point 2 : 10.4 กม.
  • Homepro ศรีราชา : 10.7 กม.
  • Portobello Mall (Origin District) : 11.2 กม.
  • ไทวัสดุ ศรีราชา : 11.3 กม.
  • Hardware House ศรีราชา : 11.4 กม.
  • Porto Market : 12 กม.
  • FN Factory Outlet ศรีราชา : 12.3  กม.
  • Harbor Mall แหลมฉบัง : 14.6 กม.
  • Makro แหลมฉบัง : 14.7 กม.
  • Central ชลบุรี : 17.5 กม.
  • บมจ.ไทยออยล์ : 10.9 กม.
  • Kerry Siam Seaport : 11 กม.
  • นิคมอุตสาหกรรมปิ่นทอง : 13 กม.
  • สวนอุตสาหกรรมเครือสหพัฒน์ : 14.6 กม.
  • สนามบินสหพัฒน์ (ศรีราชา) : 15.4 กม.
  • นิคมอุตสาหกรรมแหลมฉบัง : 16 กม.
  • สนามบินหนองค้อ : 19.5 กม.
  • นิคมอุตสาหกรรมปิ่นทอง (โครงการ 3, 4 และ 5) : 21 กม.
  • วัดเขาบางพระ : 2.9 กม.
  • ที่ว่าการ อ.ศรีราชา : 3.2 กม.
  • ค่ายลูกเสือวชิราวุธ : 3.6 กม.
  • เกาะลอย : 4.2 กม.
  • ท่าเรือจรินทร์ (ท่าเรือเกาะลอย-เกาะสีชัง) : 4.6 กม.
  • อ่างเก็บน้ำบางพระ : 7 กม.
  • ท่าเรือศรีราชาฮาร์เบอร์ (ท่าเรือน้ำลึก) : 8 กม.
  • สะพานปลาอ่าวอุดม : 10.3 กม.
  • สวนเสือศรีราชา : 12.5 กม.
  • วัดเขาดินวนาราม : 12.9 กม.
  • GISTDA : 13.9 กม.
  • สำนักงานขนส่งศรีราชา : 13.9 กม.
  • อ่างเก็บน้ำหนองค้อ : 16 กม.
  • สวนสัตว์เปิดเขาเขียว : 20 กม.
  • รพ.สมิติเวชศรีราชา : 3.3 กม.
  • ศูนย์เทพรัตน์การุญ สภากาชาดไทย : 4 กม.
  • รพ.พญาไทศรีราชา : 4.3 กม.
  • รพ.สมเด็จพระบรมราชเทวี ณ ศรีราชา สภากาชาดไทย : 5.2 กม.
  • รพ.แหลมฉบัง : 10.6 กม.
  • รพ.วิภารามแหลมฉบัง : 13.5 กม.
  • รร.ดาราสมุทร : 2.2 กม.
  • รร.ศรีราชา : 3 กม.
  • รร.อัสสัมชัญศรีราชา : 4.7 กม.
  • รร.เซนต์ปอลคอนแวนต์ : 4.7 กม.
  • รร.สมาคมไทย-ญี่ปุ่น ศรีราชา : 9.9 กม.
  • ม.เกษตรฯ ศรีราชา : 11.3 กม.

แยกและถนนสำคัญใกล้เคียง

    

  • ถนนอัสสัมชัญ : 3.8 กม.
  • ถนนเก้ากิโล : 4.3 กม.
  • ถนนศรีราชา-หนองยายบู่ : 4.4 กม.
  • ถนนหมายเลข 3241 : 4.4 ม.
  • มอเตอร์เวย์ : 13 กม.

Model

Yuu เป็นคอนโด High Rise สูง 29 ชั้น บนที่ดินขนาด 2-1-25.6 ไร่ ตัวอาคารรูปทรงสี่เหลี่ยมใช้สีโทนสีเบจ น้ำตาลและครีมโทนอบอุ่น มีลูกเล่นที่เปลือกอาคารและที่ชั้นดาดฟ้า ที่ชั้น 1-3 จะเป็นชั้นจอดรถ ทั้งโครงการจอดได้ 125 คัน หรือคิดเป็น 44% (ไม่รวมซ้อนคัน) ชั้น 4 เป็นชั้นส่วนกลางทั้งหมด ชั้น 5-29 จะเป็นชั้นพักอาศัยมีทั้งหมด 285 ยูนิต และร้านค้า 6 ยูนิต

ฝั่งทางเข้าโครงการติดกับถนนสุขุมวิท โดยทำถนนเชื่อมเข้าไปยังตัวโครงการด้านใน ฝั่งนี้เป็นทิศตะวันออก

มองจากมุมด้านบนถนนที่โครงการทำขึ้นมาและยกให้เป็นสาธารณะ มีทางเข้าออกโครงการแยกส่วนอีก

บริเวณทางเข้าออกโครงการ

ฝั่งนี้ที่ชั้น 4 จะเป็นสวนหย่อมตกแต่งในสไตล์ญี่ปุ่น มีห้อง Japanese Tatami Room ห้องจิบน้ำชานั่งพักผ่อนแบบญี่ปุ่น ในห้องจะปูเสื่อ Tatami มี Co-working space & Lounge และชั้นบนเป็นฟิตเนส

ภาพจำลองสวนชั้น 4 สไตล์ Zen

ภาพจำลองสวนชั้น 4 สไตล์ Zen มีพื้นที่ Putting Green

ภาพจำลอง Japanese Tatami Room ห้องจิบน้ำชาสไตล์ญี่ปุ่น นั่งชมวิวสวนสไตล์ Zen ด้านนอกได้

ภาพจำลอง Japanese Tatami Room ภายในห้องปูพื้นด้วยเสื่อ Tatami พร้อมวางโต๊ะนั่งแบบญี่ปุ่น

ภาพจำลอง Japanese Tatami Room

ภาพจำลองห้อง Kids’ Kingdom อยู่ติดกับ Japanese Tatami Room

ฝั่งทิศใต้ติดกับซอยด้านข้างโครงการ มีบ้านพักอาศัยและพื้นที่ว่างเปล่า

ใต้อาคารชั้น 1 มีที่สำหรับจอดรถชั่วคราวเพื่อรองรับร้านค้าในอนาคต ที่ชั้น 4 จะมีห้อง Onsen ทั้งแบบ In door, Out door แบ่งแยกชายหญิง

ภาพจำลองห้อง Onsen แบบ Indoor

ภาพจำลอง Onsen แบบ Out door

ภาพจำลองส่วนล้างตัวในห้อง Onsen แบบญี่ปุ่น

ฝั่งทิศตะวันตกติดกับพื้นที่โครงการในอนาคต ซึ่งจะเป็นอาคารสูงมีระยะห่าง 23 ม. วิวฝั่งนี้จะได้แบบทแยงมุม

ตัวกล่องใสๆคือโครงการในอนาคตครับ ฝั่งนี้จะมีทางเข้าที่จอดรถในอาคาร และจะเป็น Drop Off

บริเวณริมหาดจะทำเป็นพื้นที่นั่งพักผ่อน และมีสะพานยื่นลงมายังทะเล

ตรงที่นั่งผีกผ่อนจะทำเป็นเหมือนขั้นบันได วางเตียงนอนและร่มบังแดดไว้ให้ด้วย มีทางเดินเชื่อมมาจากโครงการ

ภาพจำลองบริเวณริมหาดที่มีการถมทราย และทำเป็นขั้นบันไดไว้สำหรับนั่งพักผ่อนชมวิว

ภาพจำลองบริเวณริมหาด มีสะพานยาวลงไปในทะเล ให้เราไปเดินเล่นชมวิวกันได้

ฝั่งด้านข้างทิศเหนือติดกับถนนภาระจำยอม

ที่ชั้น 4 ฝั่งนี้จะเป็นสระว่ายน้ำระบบเกลือยาว 27 ม. ลึก 1.2 ม. มี Co-working space & Lounge และ Sky Fitness

สระว่ายน้ำรูปตัว L แบบ Semi-Outdoor ติดกันเป็นห้อง Co-working space & Lounge มีบันไดเดินขึ้นไปยัง Sky Fitness

ภาพจำลองส่วนของ Co-working space & Lounge แบ่งที่นั่งไว้ตามมุมต่างๆ

ภาพจำลองส่วนของ Co-working space & Lounge

ภาพจำลองส่วนของ Sky Fitness ผนังเป็นกระจกชมวิวด้านนอกได้

ภาพจำลอง Infinity Edge Pool ชั้น 4 วิวมองออกไปที่ทะเลได้ มีพื้นที่นั่งเล่นริมสระ

ภาพจำลองส่วนของ Lobby

Floor Plan

Master Plan โครงการ เริ่มจากทางเข้าออกโครงการผ่านเข้ามาจะเป็นถนนในโครงการแบบ Two way วนได้รอบอาคารเลย มีสวนอยู่ติดกับทางเข้า ด้านข้างฝั่งทิศเหนือจะมีร้านค้าทั้งโครงการมี 6 ร้าน ผ่านมาจะเจอจุด Drop Off และจะเจอทางเข้าที่จอดรถในอาคาร และมีที่จอดรถใต้อาคาร ทั้งโครงการจอดได้ 125 คัน หรือคิดเป็น 44% จากจุด Drop Off เข้ามาจะเป็น Lobby และส่วนของ Mail Box Room มีห้องน้ำแยกชายหญิง ลิฟท์โดยสารมี 3 ตัว และลิฟท์ขนของ 1 ตัว

แปลนชั้น 4 จะเป็นชั้น Facility ทั้งชั้น ฝั่งทิศเหนือจะเป็นสระว่ายน้ำยาวตัว L ระบบเกลือยาว 27 ม. ลึก 1.2 ม. มีพื้นที่นั่งพักผ่อนริมสระ ติดกันจะเป็น Co-working space & Lounge มีน้ำล้อมรอบห้อง ผนังห้องเป็นกระจกชวิวด้านนอกได้  ที่ชั้นบนเหนือสระว่ายน้ำ จะเป็นห้อง Sky Fitness ผนังกระจก 3 ด้านที่สามารถมองวิวได้ 180 องศา ถัดมาจะเป็นสวนส่วนกลางตกแต่งในสไตล์ Zen แบบญี่ปุ่น ยาวเชื่อมตลอดแนวฝั่งทิศตะวันออก มีแบ่งพื้นที่ Putting Green สำหรับพัตต์กอล์ฟ มี Japnese Tatami Room หรือห้องนั่งพักผ่อน จิบน้ำชา หรือมานั่งทำงานในนี้ก็ได้ มีห้อง Kids’ Kingdom มีห้องน้ำแยกชายหญิงพร้อมห้อง Onsen ทั้งแบบ Indoor และ Outdoor

แปลนชั้น 5 – 24 จะเป็นชั้นพักอาศัยเหมือนกันทั้งหมด มีชั้นละ 12 ยูนิตเท่านั้น แบ่งเป็นห้อง 2 จำนวน 5 ยูนิต ตรงมุมอาคารที่ตำแหน่ง 01, 05, 07, 11, 12 ที่เหลือจะเป็น 1 Bed ทั้งหมด การจัดวางแปลนจะวางลิฟท์ และบันไดหนีไฟ ห้อง Service ห้องทิ้งขยะไว้ตรงกลาง ส่วนยูนิตพักอาศัยจะล้อมรอบทั้งสี่ด้านได้อารมณ์เหมือน Single corridor เวลาเปิดห้องมาจะไม่เจอห้องฝั่งตรงข้าม ค่อนข้างมีความเป็นส่วนตัว แต่น่าเสียดายตรงที่พื้นที่ถูกปิดล้อมทั้งหมดไม่มีช่องระบายอากาศ และช่องแสงเลย อาจจะทำให้ดูอึดอัดหน่อย

แปลนชั้น 26 – 29 จะเหมือนกันครับ เหลือยูนิตพักอาศัยชั้นละ 9 ยูนิต ตำแหน่งห้องจะเหมือนชั้นก่อนหน้านี้แต่ยูนิตฝั่งทิศตะวันออกจะหายไปเนื่องจากเป็นระยะร่นของอาคารนั่นเอง และตรงทางเดินฝั่งนี้จะมีช่องแสงเป็นหน้าต่างเปิดระบายอากาศได้

Units Type

โครงการมีห้องให้เลือกแบบหลักๆดังนี้

  • 1 Bedroom ขนาด 33.5 – 41.5 ตร.ม.
  • 2 Bedroom ขนาด 57 – 71.5 ตร.ม.

1 Bed ขนาด 33.5 ตร.ม.

1 Bed ขนาด 34 ตร.ม.

1 Bed ขนาด 40 ตร.ม.

1 Bed ขนาด 40 ตร.ม.

1 Bed ขนาด 41.5 ตร.ม.

1 Bed ขนาด 43 ตร.ม.

1 Bed ขนาด 44 ตร.ม.

2 Bed ขนาด 57 ตร.ม.

2 Bed ขนาด 62 ตร.ม.

2 Bed ขนาด 63.5 ตร.ม.

2 Bed ขนาด 68 ตร.ม.

2 Bed ขนาด 71.5 ตร.ม.

ห้องตัวอย่าง

ห้องตัวอย่างที่จะพามาชมวันนี้มี 2 แบบ

  • 1 Bedroom ขนาด 33.5 ตร.ม.
  • 2 Bedroom ขนาด 71.5 ตร.ม.

 

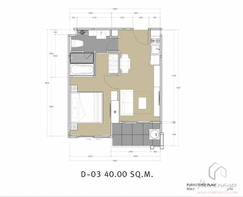
แบบแรกที่จะพามาชมเป็น 1 Bedroom ขนาด 33.5 ตร.ม. เดินเข้าห้องมาเจอส่วนครัวก่อน ได้เป็นครัวเปิดเชื่อมกับพื้นที่ส่วนรับประทานอาหารและห้องนั่งเล่นด้านใน ตรงพื้นที่ห้องนั่งเล่นตำแหน่งวางโซฟาจะไม่มี เพราะถูกยกพื้นขึ้นที่เชื่อมกับส่วนห้องนอน เราสามารถวางเบาะนั่งแบบญุ่ปุ่นตรงส่วนพื้นยกระดับและนั่งห้อยขาได้ จากพื้นห้องนั่งเล่นติดกับห้องนั่งเล่นจะเป็นระเบียง มีพื้นที่ตรงระเบียงมาให้พอสมควร ฝั่งซ้ายมือติดกับประตูห้องจะเป็นห้องน้ำ มีทางเข้าออกสองทางคือจากส่วนครัวและจากในห้องนอน ห้องน้ำแบ่งพื้นที่ส่วนเปียกส่วนแห้ง มีอ่างอาบน้ำ ผนังตรงอ่างอาบน้ำเป็นแบบ Sexy Bath คือเป็นกระจกมองเห็นในห้องนอน ช่วยดึงแสงจากตรงห้องนอนเข้ามาได้ หรือถ้าใครไม่ชอบอาจจะหามู่ลี่หรือติดฟิลม์ก็ได้ครับ ถัดเข้าไปเป็นห้องนอนห้องนี้พื้นตรงส่วนห้องนอนจะถูกยกพื้นขึ้นและวางเตียงนอนลงบนพื้นได้แบบญี่ปุ่น หน้าต่างในห้องนอนจะได้แบบเข้ามุม ชมวิวด้านนอกได้ ประตูห้องนอนจะเป็นแบบบานเฟี้ยมเปิดปิดแยกส่วนจากห้องนั่งเล่นได้

เริ่มจากประตูห้องเป็นบานทึบปิดผิวลามิเนตสีลายไม้อ่อนๆ

ได้ Digital Door Lock พร้อมมือจับแบบคันโยก ใช้งานได้ 3 ระบบคือ รหัส คีย์การด์ และ Application ผ่านมือถือของเรา โดยสามารถปลดล็อคจากระยะไกลเวลามีเพื่อนมาหา หรือจะตั้งรหัสชั่วคราวก็ได้ และสามารถเช็คประวัติเข้าออกได้ทั้งหมด

เดินเข้าห้องมาจะเจอส่วนครัวก่อนเลย ยาวเชื่อมเข้าไปยังส่วนห้องนั่งเล่น พื้นห้องจะได้เป็นกระเบื้องยางไวนิล ผนังได้วอลเปเปอร์ทั้งห้อง ฝ้าสูง 2.55 ม. และมีส่วนที่ดรอปเพื่อซ่อนไฟสูง 2.7 ม. ภายในห้องจะได้ระบบ Smart Electronic Control โดยสามารถควบคุมระบบการเปิดปิดไฟ เครื่องปรับอากาศ TV ผ่านระบบ Application บนมือถือได้เลย และมี Smart Auto Light บริเวณตรงโถงทางเดินหน้าประตูห้องและในห้องน้ำเวลากลางคืน เมื่อเดินผ่านไฟจะเปิดอัตโนมัติ

เดินเข้ามาแล้วมองกลับไปที่ประตูห้อง ที่ประตูจะติดตั้งระบบ Magnetic Alarm ที่ทำหน้าที่เหมือนสัญญาณกันขโมย ถ้ามีผู้บุกรุกจะส่งสัญญาณเตือนไปที่ Application บนมือถือเราได้

ชุดเคาน์เตอร์ครัวที่ได้ตามนี้เลย เป็นบานเปิด 5 บาน และลิ้นชัก 2 ชั้น บานตู้ทุกบานมี Soft close ให้

ตู้ใต้อ่างล้างจานมีพื้นที่สำหรับใส่ถังขยะ และเก็บของได้

ด้านในตู้ใต้อ่างล้างจานจะมีระบบ Smart Flood Sensor ช่วยเตือนเมื่อมีน้ำรั่วไหลไปโดนตัวเซ็นเซอร์จะแจ้งเตือนผ่าน Application ในมือถือของเราครับ

ได้เตาไฟฟ้าหน้าเซรามิกแบบ 2 หัว พร้อมเครื่องดูดควันของ Electrolux ผนังด้านในกรุกระเบื้องทำความสะอาดง่าย

อ่างล้างจานทรงสี่เหลี่ยมของ Mex ท็อปเคาน์เตอร์เป็นหินเทียม

ฝั่งตรงข้ามเคาน์เตอร์ครัวเป็นห้องน้ำ ติดกับประตูห้องมีตู้เก็บของ

ติดประตูป็นตู้เก็บของ หรือเก็บรองเท้าก็ได้

ภายในห้องน้ำแบ่งพื้นที่ส่วนเปียกส่วนแห้ง

ฝั่งนี้จัดเป็นเคาน์เตอร์อ่างล้างหน้าพร้อมกระจกเงา ไฟซ่อนจะได้ตามนี้เลย

อ่างล้างหน้าทรงสี่เหลี่ยมของ Toto ฝังเคาน์เตอร์มาให้เรียบร้อย มีพื้นที่ให้วางของได้รอบๆอ่าง

ด้านในเป็นโถสุขภัณฑ์ของ Toto

ฝั่งตรงข้ามเคาน์เตอร์อ่างล้างหน้าจะเป็นประตูเข้าออกจากในห้องนอน และพื้นที่ส่วนเปียก โดยของจริงจะมีประตูกระจกบานเปิดกั้นส่วนเปียกให้อีกบาน

ภายในพื้นที่ส่วนเปียกจะแบ่งเป็นพื้นที่ยืนอาบน้ำ และอ่างอาบน้ำ ผนังด้านในเป็นแบบ Sexy Bath

พื้นที่ยืนอาบน้ำขนาด 1.5 x 0.72 ม. ด้านในสุดเป็นอ่างอาบน้ำ

ฝักบัวติดผนังแบบปรับระดับสูงต่ำได้

หน้าตาฝักบัวที่ได้ขนาดพอดีมือ ก๊อกน้ำได้แบบผสมน้ำร้อนน้ำเย็น

ผนังห้องน้ำเป็นกระจก มองออกไปจะเห็นส่วนห้องนอนพอดี ได้แสงเข้ามาถึงในห้องน้ำเลย แต่ถ้าใครไม่ชอบโล่งๆก็ติดมู่ลี่หรือฟิลม์ก็ได้ครับ

ห้องน้ำจะมีทางเข้าออก 2 ทางคือจากห้องครัวและจากในห้องนอน

ถัดจากส่วนครัวเข้าไปจะเป็นส่วนรับประทานอาหาร

ได้โต๊ะรับประทานอาหารขนาด 2 ที่นั่งตามนี้เลย

ถัดเข้ามาอีกจะเป็นส่วนห้องนั่งเล่น โดยพื้นที่วางโซฟาพื้นจะถูกยกสูงขึ้นเชื่อมกับพื้นห้องนอนด้านใน อารมณ์แบบสไตล์ญี่ปุ่น

โซฟาจะได้เป็นเก้าอี้แบบมีผนังพร้อมเบาะวางบนพื้น 2 ตัว นั่งห้อยขาได้ ส่วนที่ยกพื้นขึ้นทำเป็นลิ้นชักเก็บของมาให้ 4 ช่อง

ระยะดูทีวีประมาณ 2.35 ม. ได้แอร์ติดผนัง 1 ตัว TV โครงการแถมมาให้ขนาด 43 นิ้ว

ได้ชั้นวางทีวีตามนี้เลย มีลิ้นชักให้เก็บของ 3 ช่อง

ถัดไปจะเป็นระเบียงมีประตูกระจกบานเลื่อน 2 บาน

เปิดออกมาจะเจอระเบียงขนาด 1.1 x 2.23 ม. วางชุดโต๊ะเล็กๆไว้นั่งจิบกาแฟชมวิวยามเช้าได้

ราวกันตกระเบียงจะเป็นกระจกไม่บดบังวิวด้านนอก

ด้านข้างแขวนคอมเพลสเซอร์แอร์ 2 ตัว

มองกลับเข้ามาในห้องจะเห็นแบบนี้

ถัดไปเป็นส่วนห้องนอนซึ่งตัวพื้นห้องจะถูกยกสูงขึ้นจากพื้นห้องนั่งเล่น ประตูห้องจะเป็นแบบบานเฟี้ยมเปิดปิดแยกส่วนได้

ภายในห้องนอนเราเราสามารถวางที่นอนบนพื้นได้เลย ขนาดวาง 5 ฟุตกำลังดี ฝ้าตรงส่วนห้องนอนจะสูงประมาณ 2.25 ม.

ปลายเตียงเหลือพื้นที่ประมาณ 97 ซม. ซึ่งเป็นส่วนไว้สำหรับวางที่นั่งตรงส่วนพื้นที่นั่งเล่นนั่นเองครับ

พื้นที่ข้างเตียงเหลือประมาณ 91 ซม. วางเบาะนั่งแบบญี่ปุ่นด้านข้างเตียงได้

พื้นที่ข้างเตียงอีกฝั่งเหลือประมาณ 60 ซม.

ปลายเตียงเราใช้งานทีวีร่วมกับตรงห้องนั่งเล่นได้เลย

หน้าต่างในห้องนอนเป็นแบบบานกระทุ้ง 1 บาน ที่เหลือเป็นบาน Fixed

กระจกในห้องนอนจะได้แบบเข้ามุม

มองเข้าไปฝั่งด้านในจะเห็นส่วนของห้องน้ำ และมีทางเดินเข้าห้องน้ำจากในห้องนอนได้เลย

ทางเดินเข้าห้องน้ำพื้นจะลดระดับลงไป มีบันได 1 ขั้น พร้อมซ่อนไฟไว้ใต้บันได

มองเข้าไปจะเป็นห้องน้ำได้ประตูแบบบานเลื่อน ซ้ายมือทำตู้เสื้อผ้ามาให้

ตู้เสื้อผ้าที่ได้เป็นแบบบานเลื่อน 2 บาน ด้านในแบ่งลิ้นชักและช่องมาให้เก็บเสื้อผ้า

อีกแบบที่พามาชมเป็น 2 Bedroom ขนาด 71.50 ตร.ม. เดินเข้าห้องมาจะเจอส่วนครัวก่อน ซึ่งทางโครงการจะจัดเป็นตู้เก็บของไว้ให้ยาวตั้งแต่หน้าประตูห้องถึงหน้าห้องน้ำ ได้เป็นครัวเปิดเชื่อมกับส่วนรับประทานอาหารและห้องนั่งเล่น ถัดเข้ามาจากส่วนครัวจะเป็นห้องน้ำ ภายในห้องน้ำแบ่งส่วนเปียกส่วนแห้ง ถัดไปเป็นส่วนรับประทานอาหาร อีกฝั่งเป็นห้องนอนเล็กโดยตัวพื้นห้องนอนจะยกสูงจากพื้นห้องเหมือนห้อง 1 Bed ภายในห้องมีพื้นที่มาให้พอสมควร ถัดเข้าไปอีกจะเป็นส่วนห้องนั่งเล่นติดกันเป็นระเบียง ตรงระเบียงพื้นที่ค่อนข้างกว้าง ฝั่งซ้ายจะเป็นห้อง Master Bedroom ภายในห้องนอนมีห้องน้ำในตัวพร้อมอ่างอาบน้ำ มีพื้นที่ให้ทำ Walk in closet ได้

เดินเข้าห้องมาจะเจอส่วนครัวในสุดเป็นห้องน้ำ ซ้ายมือจะเข้าไปยังส่วนอื่นๆในห้อง พื้นห้องเป็นกระเบื้องยางไวนิล ผนังจะได้วอลเปเปอร์ทั้งห้อง ฝ้าสูง 2.55 ม.

เดินเข้ามาแล้วมองกลับไปที่ประตูทางเข้าจะเห็นแบบนี้ จะมีตู้เก็บของ Built-in มาให้ทั้ง 2 ฝั่งประตูห้อง

ฝั่งนี้เป็นบานเปิด 3 บาน จะไว้เก็บรองเท้า หรือเก็บของได้ตามสะดวก

อีกฝั่งก็แบ่งชั้นใต้ตู้มาให้เก็บของได้เยอะดี

ถัดเข้ามาจะเป็นส่วนครัว ได้ชุดเคาน์เตอร์ครัวตามนี้เลย เป็นตู้บานเปิดและลิ้นชัก ตู้ทุกบานจะมี Soft close ให้

ได้เตาไฟฟ้าพร้อมเครื่องดูดควันของ Electrolux อ่างล้างจานที่ได้ของ Mex พื้นที่ตรงเคาน์เตอร์จะเยอะกว่าห้อง 1 Bed สามารถวางของจัดเตรียมอาหารได้สะดวก

ถัดเข้ามาด้านในจากส่วนครัวจะเห็นห้องน้ำ

ภายในห้องน้ำแบ่งพื้นที่ส่วนเปียกส่วนแห้งมาให้

สุขภัณฑ์ที่ได้ของ Toto

ด้านในเป็นพื้นที่ส่วนเปียก ได้ฉากกั้นอาบน้ำแบบบานเปิด

ด้านในติดฝักบัวแบบปรับระดับสูงต่ำได้ของ Toto

พื้นที่ส่วนเปียกขนาด 1.5 x 0.91 ม.

ในห้องน้ำจะมีหน้าต่างเป็นบานกระทุ้ง 1 บาน เปิดระบายอากาศได้

มองออกมาจากห้องน้ำ

ถัดไปจะเป็นส่วนรับประทานอาหาร พื้นที่ยาวเชื่อมไปจนถึงส่วนห้องนั่งเล่น จะได้โต๊ะขนาดรับประทานอาหารขนาด 4 ที่นั่ง และฝ้าส่วนนี้จะดรอปซ่อนไฟมาให้ด้วย ขวามือเป็นห้องนอนเล็ก

มองจากด้านในกลับไปที่ส่วนครัวจะเห็นแบบนี้ครับ

ตรงห้องนอนเล็กพื้นจะยกระดับสูงขึ้นเหมือนห้องนอนแบบ 1 Bed มีประตูบานเลื่อนทึบ 3 บาน เลื่อนเปิดปิดแยกส่วนได้

มีลิ้นชักไว้ให้เก็บของ 4 ช่อง

ภายในห้องนอนเล็ก จะได้ตัวชุดโต๊ะแบบญี่ปุ่นตามนี้เลย ไว้นั่งจิบชา นั่งอ่านหนังสือ

ด้านในเป็นพื้นที่วางที่นอนห้องตัวอย่างวางที่นอนขนาด 3 ฟุตให้ดู พื้นที่สามาถวางขนาด 5 ฟุตได้ แต่จะเสียพื้นที่เดินทางขวามือไป

พื้นที่ข้างเตียงฝั่งนี้เหลือประมาณ 1.55 ม.

ปลายเตียงเหลือประมาณ 1.2 ม.

ข้างเตียงอีกฝั่งเหลือประมาณ 52 ซม.

ระยะดูทีวีปลายเตียงประมาณ 2.68 ม. ได้แอร์ติดผนัง 1 ตัว

หน้าต่างในห้องนอนเป็นบานกระทุ้ง 1 บาน ที่เหลือเป็นบาน Fixed มีส่วนที่เป็นกระจกเข้ามุม ชมวิวได้กว้าง

ฝั่งห้วเตียงจะมีเสาคั่นอยู่ ระหว่างที่นอนและตู้เสื้อผ้า

ตู้เสื้อผ้าที่ได้แบบบานเปิดขนาด 2 บาน ด้านในแบ่งเป็นช่องและลิ้นชัก

ถัดเข้าไปจากส่วนรับประทานอาหารจะเป็นห้องนั่งเล่น ซ้ายมือเป็นห้อง Master Bedroom

ตรงห้องนั่งเล่นผนังจะได้กระจก 2 ฝั่งทำให้แสงส่องเข้ามาในห้องได้เยอะ ทำให้ห้องดูโปร่งโล่ง

ได้ชุดโซฟาตามนี้เลยขนาด 3 ที่นั่ง พร้อมโต๊ะกลาง

ระยะดูทีวีประมาณ 3.88 ม. แอร์ตรงส่วนนี้ติดผนังซ้ายมือ 1 ตัว ได้ทีวีขนาด 43 นิ้ว

ได้ชั้นวางทีวี มีลิ้นชักไว้เก็บของได้

ขวามือจะเป็นระเบียง มีประตูกระจกบานเลื่อน 2 บาน

เปิดออกมาจะเจอระเบียงขนาด 2.8 x 1.58 ม.

ฝั่งด้านในวางคอมเพลสเซอร์แอร์ 1 ตัว แขวน 2 ตัว

พื้นที่ระเบียงค่อนข้างกว้าง เราจะวางชุดโต๊ะนั่งเล่นไว้ชมวิวรอบๆได้

มองกลับเข้ามาในห้อง

ภายในห้อง Master Bedroom มีพื้นที่มาให้พอสมควร

ได้เตียงนอนไม่รวมที่นอน สามารถวางที่นอนขนาด 6 ฟุตได้ พื้นที่ข้างเตียงเหลือฝั่งละประมาณ 50 ซม.

ปลายเตียงเหลือพื้นที่ประมาณ 1.2 ม.

ระยะดูทีวีปลายเตียงประมาณ 3 ม. แอร์ติดผนังปลายเตียง 1 ตัว

หน้าต่างในห้องนอนเป็นแบบบานเลื่อน

ฝั่งด้านในเป็นห้องน้ำ เป็นแบบ Sexy Bathroom หน้าห้องน้ำมีพื้นที่ทำ Walk in closet

ทางเดินเข้าห้องน้ำทำเป็น ซ้ายมือจะได้เป็นตู้เสื้อผ้าตลอดแนวผนัง

ได้ตู้เสื้อผ้าแบบบานเปิด ขนาด 4 บาน แบ่งช่องมาให้เก็บของได้เยอะดี

ฝั่งขวามือเป็นประตูห้องน้ำแบบบานเลื่อน

ภายในห้องน้ำมีพื้นที่ส่วนเปียกส่วนแห้ง รูปแบบจะคล้ายๆกับห้องน้ำห้อง 1Bed แต่จะมีพื้นที่มากกว่า

เคาน์เตอร์อ่างล้างหน้าวางไว้ฝั่งนี้ พร้อมกระจกเงาทรงกลมซ่อนไฟ มีที่วางของด้านล่าง

อ่างล้างหน้าทรงสี่เหลี่ยมของ Toto ฝังเคาน์เตอร์ มีพื้นที่ให้วางของได้เยอะดี

ด้านในเป็นโถสุขภัณฑ์แบบอัตโนมัติของ Toto

อีกฝั่งเป็นพื้นที่ส่วนเปียก

ด้านในจะแบ่งเป็นพื้นที่ยืนอาบน้ำขนาด 1.59 x 0.69 ม. และอ่างอาบน้ำ

ได้ฝักบัวติดผนังของ Toto พร้อมก๊อกน้ำแบบผสมน้ำร้อนน้ำเย็น

มองออกไปจากห้องน้ำจะเห็นส่วนของห้องนอนพอดี


ราคา (ก.ค.61)

  • 1 Bedroom ขนาด 33.5-41.5 ตร.ม. ราคาเริ่ม 3.9 ล้านบาท
  • 2 Bedroom ขนาด 57-71.5 ตร.ม. ราคาเริ่ม 6.5 ล้านบาท

ค่าส่วนกลาง 60 บาท/ตร.ม. : ค่ากองทุน 600 บาท/ตร.ม

เงินจอง 50,000 บาท เงินทำสัญญา 150,000 – 200,000 บาท

***รายละเอียดอื่นๆโปรดสอบถามทางโครงการครับ


สรุป

ทำเลที่ตั้งโครงการ – Yuu เป็นโครงการในอำเภอศรีราชา จังหวัดชลบุรี ทำเลรอบๆโครงการส่วนใหญ่จะเป็นพื้นที่ว่างเปล่า และบ้านพักอาศัย บรรยากาศค่อนข้างเงียบสงบเหมาะแก่การพักอาศัย ความอุดมสมบูรณ์รอบๆโครงการพอมีร้านค้า ร้านอาหารริมทะเลในระยะ 1 กม. มีให้เลือกหลากหลายร้าน เช่น ริมหาดซีฟู้ด, ​Phutalay, Talayblue, และบ้านเคียงเล แต่ถ้าอยากได้ความคึกคักมากขึ้น ต้องขึ้นไปแถบตัวเมืองศรีราชา ส่วนห้างสรรพสินค้าใกล้ๆมี J Park, ทั้งตึกคอม, โรบินสัน, AEON Shopping Mall, The Best Buy, Big C, Tesco Lotus, Central, Makro, ไทวัสดุ, Home Pro, FN Factory Outlet นอกจากนี้ตัวโครงการยังอยู่ไม่ไกลจากแหล่งสถานศึกษาซื่อดัง และสถานที่ท่องเที่ยวอีกด้วย

การเดินทางด้วยรถยนต์ส่วนตัว – ตัวโครงการตั้งอยู่ติดถนนสุขุมวิทซึ่งเป็นถนนหลักสำคัญที่เชื่อมมาจากกรุงเทพฯจนมาถึงชลบุรี มีทางด่วนบูรพาวิถีเชื่อมมาจากบางนาจนมาถึงชลบุรีเลยสะดวกดี  นอกจากนี้เส้นสุขุมวิทยังเชื่อมออกไปยังพัทยา ระยอง จันทบุรี ตราดได้เลยโดยไม่ต้องใช้เส้นอื่นเลย แต่ก็ยังมีถนนมาตัดเชื่อมไปมอเตอร์เวย์ได้ ซึ่งเป็นอีกเส้นที่ใช้เดินทางเข้าออกกรุงเทพฯได้สะดวก เป็นเส้นที่ใช้เลี่ยงเมืองชลบุรีได้ไม่ต้องใช้เส้นสุขุมวิท ทำให้การเดินทางค่อนข้างสะดวกทั้งเข้าและออกเมือง

การเดินทางด้วยรถสาธารณะ – ตรงเส้นสุขุมวิทจะมีรถประจำทางวิ่งผ่าน มีรถตู้วิ่งผ่านไปได้ทั้งกรุงเทพฯ ชลบุรี พัทยา ระยอง จันทบุรี ตราด โบกเรียกได้เลยหรือจะโทรติดต่อไว้ให้แวะรับก็ได้ มีสองแถววิ่งระหว่างศรีราชา-หนองมน แต่ทางทีดีใช้รถส่วนตัวจะสะดวกกว่าครับ ในอนาคตจะมีโครงการรถไฟความเร็วสูงที่เชื่อมระหว่าง 3 สนามบิน โดยสถานีที่ใกล้โครงการคือสถานีศรีราชาแต่คงต้องรอกันอีกสักพักใหญ่ๆ ถ้าสร้างเสร็จเมื่อไหร่คงจะสะดวกมากขึ้นครับ

การออกแบบโครงการและวัสดุ – โครงการออกแบบมา 1 อาคาร สูง 29 ชั้น บนพื้นที่ดินขนาด 2-1-25.6 ไร่ อาคารรูปทรงสี่เหลี่ยม มีลูกเล่นที่ฟาสาด ภายนอกอาคารใช้โทนสีอบอุ่น ทำให้ดูกลมกลืนไปกับบรรยากาศรอบๆโครงการ ชั้นพักอาศัยจะเริ่มที่ชั้น 5-29 ชั้นส่วนกลางจะอยู่ที่ชั้น 1 และชั้น 4 ทั้งชั้น จอดรถได้ที่ชั้น 1-3

การออกแบบห้องพักอาศัยที่นี่มีให้เลือก 2 แบบหลักๆ คือ 1 Bedroom ขนาด 33.5 – 41.5 ตร.ม. , 2 Bedroom ขนาด 57 – 71.5 ตร.ม. ห้องออกแบบมาดูโปร่งไม่อึดอัด ฝ้าสูง 2.55 ม. มีส่วนที่ดรอปเพื่อซ่อนไฟส่วนนี้จะสูง 2.7 ม. มีการออกแบบห้องในสไตล์ญี่ปุ่นคือยกพื้นตรงส่วนของห้องนอน โครงการขายแบบ Fully Furnished ได้ของทุกอย่างเหมือนในห้องตัวอย่างยกเว้นของตกแต่งบางส่วน ของที่ได้จะมี Digital Door lock ใช้งาน 3 ระบบทั้ง Keycard, Password, และผ่าน Application ในมือถือ โดยปลดล็อคได้ในระยะไกลและตั้งรหัสชั่วคราวได้เผื่อเพื่อนมาพักหรือไว้ปล่อยเช่า ที่ประตูห้องมี Magnetic Alarm ที่ทำหน้าที่เหมือนสัญญาณกันขโมย ภายในห้องจะได้ชุดเคาน์เตอร์ครัว Hob & Hood ของ Electrolux ส่วนอ่างล้างจานของ Mex ใต้อ่างมีเซ็นเซอร์ไว้ตรวจเวลามีน้ำรั่วจะเตือนในมือถือเรา ได้โต๊ะรับประทานอาหาร ตู้เก็บของ ชั้นวางทีวี โซฟา ชุดโต๊ะนั่งแบบญี่ปุ่น ในห้องนอนจะได้เตียงพร้อมโต๊ะข้างเตียงไม่รวมฟูก ได้ตู้เสื้อผ้า สุขภัณฑ์ในห้องน้ำของ Toto มีอ่างอาบน้ำ นอกจากนี้ยังมีระบบเปิดไฟอัตโนมัติตรงทางเดินประตูห้อง และห้องน้ำ พื้นห้องเป็นกระเบื้องยางไวนิล ผนังได้วอลเปเปอร์ แอร์ได้แบบติดผนังตรงห้องนั่งเล่นและทุกห้องนอน นอกจากนี้ตัวโครงการยังรับประกันหลังการขายถึง 5 ปี เมื่อเทียบกับโครงการอื่นๆที่รับประกันเพียง 1-2 ปีเท่านั้น ซึ่งลูกบ้านน่าจะอุ่นใจได้มากขึ้นครับ

สิ่งอำนวยความสะดวก – Facility หลักๆของโครงการอยู่ที่ชั้น 1 และ 4 ที่ชั้น 1 มี Lobby มีร้านค้า 6 ยูนิต มีสวนหย่อม ที่ชั้น 4 มีสระว่ายน้ำตัว L ระบบเกลือยาว 27 ม. ลึก 1.2 ม. มีพื้นที่นั่งพักผ่อนริมสระ มี Co-working space & Lounge ที่ชั้นบนเหนือสระว่ายน้ำ จะเป็น Sky Fitness ผนังกระจก 3 ด้านที่สามารถมองวิวได้ 180 องศา มีสวนส่วนกลางตกแต่งในสไตล์ Zen แบบญี่ปุ่น ยาวเชื่อมตลอดแนวฝั่งทิศตะวันออก มีแบ่งพื้นที่ Putting Green สำหรับพัตต์กอล์ฟ มี Japanese Tatami Room มี Kids’ Kingdom ห้องน้ำแยกชายหญิงพร้อมห้อง Onsen ทั้งแบบ Indoor และ Outdoor ลิฟต์โดยสารมีให้ 3 ตัว ลิฟท์ขนของ 1 ตัว ที่จอดรถจอดได้ที่ชั้น 1 – 3 จอดได้ 125 คัน หรือติดเป็น 44% ไม่รวมซ้อนคัน ระบบรักษาความปลอดภัยมีรปภ. มี CCTV และผ่านเข้าออกด้วยระบบ Key Card Access


คะแนน

ทำเลที่ตั้งโครงการ 7.5 อยู่ติดถนนหลักและทะเล บรรยากาศเงียบสงบเหมาะแก่การพักอาศัย
การเดินทาง ใช้รถ 8.0 เชื่อมออกได้หลายเส้นทาง เดินทางสะดวก
การเดินทาง ไม่ใช้รถ 7.5 สำหรับโครงการต่างจังหวัดเหมาะกับคนที่มีรถส่วนตัวมากกว่า มีรถเมล์ สองแถว รถตู้ รถไฟความเร็วสูง
ห้องและวัสดุ 8.5 ออกแบบมาดีน่าพักอาศัย วัสดุที่ใช้อยู่ในระดับมาตรฐาน ขายแบบ Fully Furnished
สิ่งอำนวยความสะดวก 8.8 Facility มีหลากหลาย Lobby , สวนหย่อม , ฟิตเนส , สระว่ายน้ำ, Co-working space & Lounge, Japanese Tatami room, Onsen, ห้องเด็กเล่น, พื้นที่นั่งพักผ่อนริมทะเล
ความคุ้มค่ากับราคา 7.5 รูปแบบโครงการออกแบบมาเหมาะแก่การอยู่อาศัย หรือจะซื้อไว้เป็นที่พักตากอากาศก็เป็นตัวเลือกที่ดี
คะแนนรวมเฉลี่ย 7.96 ดี

สอบถามรายละเอียดเพิ่มเติมได้ที่

Tel : 038-325-888

Website : www.yuusriracha.com

หากเพื่อนๆเห็นว่ารีวิวนี้มีประโยชน์ ช่วยกด Like เพื่อเป็นกำลังใจให้ทีมงาน ขอบคุณครับ

และมีความคิดเห็นหรือข้อมูลเพิ่มเติมเกี่ยวกับตัวโครงการ สามารถ Comment ได้ที่ด้านล่างของรีวิวครับ

อ่านเพิ่มเติม


สนใจลงโฆษณากับทาง Homenayoo ติดต่อสอบถามรายละเอียดได้ที่
คุณวันเฉลิม  086-1290293 
LINE ID : 123456786205
Email : wanchalearm.t@gmail.com
ทางเราเป็นเว็บไซต์ให้ข้อมูล ไม่ใช่เจ้าของโครงการนะครับ