
รีวิว วี ราชพฤกษ์ตัดใหม่ vie New Ratchaphruek บ้านเดี่ยวหน้ากว้างสไตล์ Minimal พร้อม Private Yard พื้นที่สวนส่วนตัวหลังบ้าน เริ่ม 5.99-10 ล้านบาท*
Written by : THAnATH
สวัสดีผู้อ่านชาว Homenayoo ทุกคน วันนี้ผมพามาชมโครงการ vie ราชพฤกษ์ตัดใหม่ จาก Land & Houses ตั้งอยู่ติดถนนริมคันคลองเกาะเกรียง ซึ่งตัดผ่านระหว่างถนนราชพฤกษ์และถนน 345 ใกล้ถนนกรุงเทพ-ปทุมธานี, ถนนกาญจนาภิเษก, ถนนชัยพฤกษ์, ถนนติวานนท์, ถนนแจ้งวัฒนะ, ถนนรัตนาธิเบศร์
ใกล้ทางด่วนอุดรรัถยา และทางด่วนศรีรัช ไม่ไกลจากแนวรถไฟฟ้าสายสีชมพู, สายสีม่วง, สายสีแดง และใกล้สนามบินดอนเมือง รายล้อมไปด้วยสิ่งอำนวยความสะดวกครบครัน
วี ราชพฤกษ์ตัดใหม่ กับแนวคิด The Limitless Life เป็นไปได้ทุกการใช้ชีวิต เป็นมากกว่าบ้านแบบเดิม เป็นพื้นที่ส่วนตัวที่สามารถเป็นตัวของตัวเองได้อย่างเต็มที่ เป็นที่ปล่อยความคิดสร้างสรรค์อย่างอิสระ เป็นบ้านหน้ากว้าง ที่เปิดกว้างให้เป็นไปได้ทุกการใช้ชีวิต
รูปแบบโครงการเป็นบ้านเดี่ยวหน้ากว้าง 2 ชั้น สไตล์ Minimal ตัวโครงการตั้งอยู่บนที่ดินขนาด 90-2-41.6 ไร่ มีจำนวนยูนิตทั้งหมด 380 ยูนิต มีแบบบ้านให้เลือก 4 แบบ ขนาดที่ดินบ้านเริ่มที่ 50 ตร.ว. ขึ้นไป พื้นที่ใช้สอย 130-211 ตร.ม. ฟังก์ชันบ้าน 3-4 ห้องนอน, 3-5 ห้องน้ำ, 1 มุมทำงาน, 2-3 ที่จอดรถ บ้านทุกหลังติดตั้งสัญญาณกันขโมยระบบ Magnetic Sensor และระบบ AirPlus2 โครงการสร้างเสร็จพร้อมอยู่บางส่วน
สิ่งอำนวยความสะดวกมาตรฐานภายในโครงการครบครัน อาทิ Clubhouse 2 ชั้น ภายในมี Lobby พื้นที่นั่งพักผ่อนหรือเป็นจุดรับแขก, Co-Working Space พื้นที่นั่งทำงาน, Private Studio For Live พื้นที่สำหรับไลฟ์สดขายของออนไลน์
ห้องฟิตเนสพร้อมเครื่องออกกำลังกายครบครัน ห้องน้ำแยกชายหญิง และสระว่ายน้ำขนาดใหญ่แยกสระเด็ก พร้อมพื้นที่พักผ่อนริมสระ สวนพักผ่อนขนาดใหญ่บรรยากาศร่มรื่น มีทางเดินเชื่อมต่อรอบสวน พร้อมพื้นที่นั่งพักผ่อนกับสนามเด็กเล่น และ Water Front Park ขนาดใหญ่บรรยากาศดี
ประตูเข้าออกโครงการใช้ระบบจดจำป้ายทะเบียน ติดตั้ง CCTV รอบโครงการ พร้อมระบบรักษาความปลอดภัยแบบ Triple Security มาตรฐานจาก Land & Houses ในราคา 5.99-10 ล้านบาท* (เม.ย. 68)
สำหรับรายละเอียดต่าง ๆ ของโครงการนี้จะมีความน่าสนใจอย่างไรบ้าง ไปติดตามกันต่อด้านล่างได้เลยครับ
| ชื่อโครงการ | วี ราชพฤกษ์ตัดใหม่ / VIE New Ratchaphruek |
| เจ้าของโครงการ | บริษัท แลนด์ แอนด์ เฮ้าส์ จำกัด (มหาชน) / Land & Houses |
| ลักษณะโครงการ | บ้านเดี่ยว 2 ชั้น |
| พื้นที่โครงการ | 90-2-41.6 ไร่ |
| จำนวนบ้าน | 380 ยูนิต |
| เนื้อที่บ้าน | เริ่ม 50 ตร.ว. ขึ้นไป |
| พื้นที่ใช้สอย | 130-211 ตร.ม. |
| จำนวนห้อง | 3-4 ห้องนอน, 3-5 ห้องน้ำ, 1 มุมทำงาน |
| ที่จอดรถทั้งหมด | 2-3 คัน |
| โซน | ราชพฤกษ์ตัดใหม่ |
| เส้นทางคมนาคม |
|
| ที่ตั้ง | ถ.ริมคันคลองเกาะเกรียง ต.บางคูวัด อ.เมืองปทุมธานี จ.ปทุมธานี |
| กำหนดการ | Pre Sale ก.ย. 67 |
| ปีที่สร้างเสร็จ | n/a |
| ราคา | เริ่ม 5.99-10 ล้านบาท* (เม.ย. 68) |
| ค่าส่วนกลาง | 39 บ./ตร.ว./ด. |
| สถานที่สำคัญใกล้เคียง | ศูนย์การค้า
ตลาด ร้านสะดวกซื้อและอื่น ๆ
สถานศึกษา
ศูนย์การแพทย์
อาคารสำนักงานและหน่วยงานอื่น ๆ
**ระยะทางวัดจากการเดินทางสู่จุดหมาย โดยถนนที่ใกล้ที่สุด** |
| สิ่งอำนวยความสะดวก |
|
| Tel | 1198 |
| Line | @vie.rpt |
| Website | https://url.in.th/ohjuP |
ถ.ริมคันคลองเกาะเกรียง ต.บางคูวัด อ.เมืองปทุมธานี จ.ปทุมธานี
พิกัด Google โดยประมาณ : https://maps.app.goo.gl/YEeV85EqnEYPycAv5
vie ราชพฤกษ์ตัดใหม่ ตั้งอยู่ถนนริมคันคลองเกาะเกรียง จุดเด่นของถนนเส้นนี้คือเข้าออกได้ทั้งจากถนนราชพฤกษ์ ประมาณ 1.5 กม.* และจากถนน 345 ประมาณ 2 กม.* แต่ละเส้นใช้เชื่อมต่อเข้าออกเมืองได้สะดวก แลยังใกล้ถนนกรุงเทพ-ปทุมธานี, ถนนสะพานนนทบุรี-บางบัวทอง, ถนนกาญจนาภิเษก, ถนนชัยพฤกษ์, ถนนศรีสมาน, ถนนติวานนท์, ถนนแจ้งวัฒนะ, ถนนรัตนาธิเบศร์
ใกล้ทางด่วนอุดรรัถยา และทางด่วนศรีรัช ไม่ไกลจากแนวรถไฟฟ้าสายสีชมพู, สายสีม่วง, สายสีแดง และใกล้สนามบินดอนเมือง รายล้อมไปด้วยสิ่งอำนวยความสะดวกครบครัน
การเดินทางโดยรถส่วนตัว สะดวกอยู่ใกล้ถนนราชพฤกษ์ ใช้มุ่งหน้าเข้าเมืองไปทางบางหว้า ผ่านจุดตัดกับ ถนนชัยพฤกษ์, ถนนรัตนาธิเบศร์, ถนนนครอินทร์, ถนนบรมราชชนนี, ถนนเพชรเกษม, เชื่อมต่อเข้าถนนกรุงธนบุรีข้ามสะพานตากสิน เชื่อมเข้าสาทร สีลม ได้เลย จากนั้นจะเชื่อมต่อไปสามย่าน, พระรามสี่, สุขุมวิทก็ง่ายแล้วครับ
หรือจากโครงการมาออกถนน 345 จากนั้นไปเชื่อมเข้าถนนสะพานนนทบุรี-บางบัวทอง และไปเข้าถนนศรีสมาน จากนั้นจะเจอจุดขึ้นทางด่วนอุดรรัถยา ใช้วิ่งเข้าออกเมืองเชื่อมกับทางด่วนศรีรัชได้เลย ไปได้หลายโซนในกรุงเทพฯ
หรือจากถนนศรีสมานตรงไปเข้าถนนสรงประภาเชื่อมไปออกถนนวิภาวดีรังสิตได้ จากนั้นก็มุ่งหน้าเข้าเมืองได้เลย มีทางด่วนโทลล์เวย์ให้ขึ้นอีกด้วย หรือจากถนนสะพานนนทบุรี-บางบัวทองเลี้ยวเข้าถนนติวานนท์มาแยกปากเกร็ดเชื่อมไปแจ้งวัฒนะ หรือเลยไปแครายตัดเข้างามวงศ์วานได้
ถนนราชพฤกษ์ถ้าวิ่งไปอีกฝั่งเชื่อมไปเข้าถนนรังสิต-ปทุมธานี เชื่อมต่อไปออกถนนพหลโยธินตรงฟิวเจอร์พาร์ค เชื่อมออกต่างจังหวัดไปอยุธยา, สระบุรี, นครนายก, ปราจีนบุรี, สระแก้วได้เลย หรือจากถนนราชพฤกษ์ไปเข้าถนน 3111 เชื่อมออกพระนครศรีอยุธยาได้
ถนน 345 วิ่งออกไปเชื่อมเข้าถนนบางกรวย-กรุงเทพ และถนนบางบัวทอง-สุพรรณบุรีได้ จากนั้นเชื่อมออกสุพรรณบุรีได้เลย ถนน 345 วิ่งไปอีกฝั่งจะไปโซนรังสิตตัดเข้าเมืองเอกได้ หรือไปออกถนนปทุมธานี-รังสิต
จากโครงการเชื่อมไปออกถนนกาญจนาภิเษก ไปโซนบางบัวทอง ออกอยุธยาได้ อีกโซนวิ่งมาทางใต้คือมาทางบางแค บางขุนเทียน มาออกสมุทรปราการ ลาดกระบังได้
การเดินทางโดยรถสาธารณะ ส่วนใหญ่จะเป็น Taxi หรือจะใช้บริการผ่าน Grab ก็ได้ครับ นอกจากนี้ตัวโครงการยังอยู่ไม่ไกลจากแนวรถไฟฟ้าสายสีชมพู, สายสีม่วง, สายสีแดง และห่างจากสนามบินดอนเมืองประมาณ 18 กม.*
ทางด่วน ที่อยู่ใกล้โครงการคือทางด่วนอุดรรัถยา ประมาณ 10.6 กม.* จากโครงการเชื่อมมาออกถนน 345 และเชื่อมต่อมาเข้าถนนสะพานนนทบุรี-บางบัวทอง และมาเข้าถนนศรีสมาน จะเจอจุดขึ้นทางด่วน ใช้เดินทางเชื่อมเข้าทางด่วนศรีรัช เชื่อมต่อไปได้หลายโซนในกรุงเทพฯ
ถนนและแยกสำคัญใกล้เคียง
**ระยะทางวัดจากการเดินทางสู่จุดหมาย โดยถนนที่ใกล้ที่สุด**
ความอุดมสมบูรณ์ ใกล้ ๆ โครงการตามสองฝั่งก็จะมีร้านค้า ร้านอาหารเป็นระยะ ๆ และมี 7-11 ห่างจากโครงการประมาณ 1.3 กม.* หรือถ้าจะให้เยอะหน่อยต้องออกมาตรงถนน 345 และถนนกรุงเทพ-ปทุมธานี ตามสองฝั่งทางจะมีร้านค้า ร้านอาหารหลายร้าน รวมถึงร้านสะดวกซื้อต่าง ๆ ให้เลือกหลากหลายเกือบทั้งเส้น
และยังมีปั๊มน้ำมันขนาดใหญ่ที่ภายในจะมีทั้งร้านค้า ร้านอาหารอีกด้วย มีตลาดใกล้ ๆ ทั้ง ตลาด ส.รุ่งเรือง, ตลาดนัด Awake, ตลาดคลองเล, ตลาดพูนลาภปทุม, ตลาดสดฮ้อแสงชัย, ตลาดสดเทศบาลเมืองปทุมธานี
ห้างสรรพสินค้าและแหล่งอำนวยความสะดวกใกล้ ๆ ตรงเส้นราชพฤกษ์ จะมีทั้ง Robinson Lifestyle ราชพฤกษ์, Home Pro ชัยพฤกษ์, Lotus’s North ราชพฤกษ์, สัมมากร เพลส ราชพฤกษ์, Design Village ราชพฤกษ์, Chic Republic ราชพฤกษ์, Central WestVille ราชพฤกษ์
ตรงถนนกรุงเทพ-ปทุมธานี มี Big C ปทุมธานี มีโรงหนัง Major ในนี้ ถัดมาอีกมีไทวัสดุ และ The Tree Community Mall ถ้าไปตรงแยกปทุมวิไลจะมี Lotus’s ปทุมธานี ถัดไปอีกตรงถนน 3111 มี Makro ปทุมธานี, Global House ปทุมธานี
ตรงถนนศรีสมานมี Robinson ศรีสมาน ตรงถนนติวานนท์จะมี Lotus’s ติวานนท์, Major ปากเกร็ด, Rest go ติวานนท์, Lotus’s บางกะดี, The Nine Center ติวานนท์
ตรงเส้นแจ้งวัฒนะมีทั้ง Big C แจ้งวัฒนะ 2, Lotus’s แจ้งวัฒนะ, Central แจ้งวัฒนะ, Homepro แจ้งวัฒนะ, Makro แจ้งวัฒนะ, Big C แจ้งวัฒนะ, The Avenue, IT Square ตรงเส้นกาญจนาภิเษกมี Central WestGate, Ikea บางใหญ่
ใกล้สถานศึกษาหลายแห่งทั้ง รร.สารสาสน์วิเทศราชพฤกษ์, รร.พระแม่มารีอุปถัมภ์, รร.เตรียมอุดมศึกษาน้อมเกล้า นนทบุรี, รร.สาธิตปทุม, รร.ปทุมวิไล, รร.พระหฤทัยนนทบุรี, รร.นนทบุรีวิทยาลัย, รร.นวมินทราชินูทิศหอวังนนทบุรี, รร.สารสาสน์วิเทศบางบัวทอง
และใกล้โรงเรียนนานาชาติทั้ง Singapore International School, Global Indian International School, DBS Denla British School,Thai International School
โรงพยาบาลที่ใกล้โครงการ มีทั้ง รพ.ปากเกร็ด 2, รพ.กรุงไทยปทุม, รพ.ปทุมธานี, รพ.วิภารามปากเกร็ด, รพ.เวิลด์เมดิคอล, รพ.เกษมราษฎร์ รัตนาธิเบศร์
และยังใกล้กับแหล่งงาน, หน่วยงานราชการของจังหวัดปทุมธานีอีกมากมาย เช่น สำนักงานเทศบาลเมืองบางคูวัด, สำนักงานขนส่ง จ.ปทุมธานี, ศาลากลาง จ.ปทุมธานี, สวนอุตสาหกรรมบางกะดี และใกล้กับศูนย์แสดงสินค้าและการประชุม Impact Arena เมืองทองธานีอีกด้วย
ศูนย์การค้า
ตลาด ร้านสะดวกซื้อและอื่น ๆ
สถานศึกษา
ศูนย์การแพทย์
อาคารสำนักงานและหน่วยงานอื่น ๆ
**ระยะทางวัดจากการเดินทางสู่จุดหมาย โดยถนนที่ใกล้ที่สุด**
วันนี้ทางทีมงาน Homenayoo มีภาพการเดินทางไปสู่ตัวโครงการโดยใช้รถยนต์ส่วนตัวมาฝากกันครับ โดยเราจะเริ่มการเดินทางจาก
ถนนราชพฤกษ์ > ถนนริมคันคลองเกาะเกรียง > vie ราชพฤกษ์ตัดใหม่
เริ่มจากถนนราชพฤกษ์ขวามือเป็น Chic Republic ราชพฤกษ์ มี Villa Market อยู่ในนี้
ถัดมาอีกเป็นโรงเรียนนานาชาติเด่นหล้า (Denla British School)
ถัดมาขวามือเป็น Lotus’s North ราชพฤกษ์ และซ้ายมือเป็น Sammakorn Place ราชพฤกษ์
และจะผ่าน HomePro ชัยพฤกษ์
เลยมาอีกจะผ่าน Village Hub ราชพฤกษ์, Robinson ราชพฤกษ์ และไทวัสดุ ชัยพฤกษ์
จากนั้นขับตรงไปตามป้ายถนน 346 ไปอีกครับ
ตามทางจะมีปั๊มน้ำมันขนาดใหญ่ และมีร้านค้าร้านอาหารในนี้
จากนั้นให้เบี่ยงออกทางซ้ายตรงทางกลับรถ
ขับตรงผ่านแยกจุดกลับรถไปอีกครับ
จากนั้นเลี้ยวขวาเข้าถนนริมคันคลองเกาะเกรียง
เลี้ยวขวามาให้ขับตรงไปอีกครับ เส้นนี้สามารถเชื่อมไปออกถนน 345 ได้ ซ้ายมือมีป้ายโครงการบอก
ถัดมาซ้ายมือจะผ่าน 7-11 ซึ่งอยู่ห่างจากโครงการประมาณ 1.3 กม.*
ตรงเข้ามาจะเจอโครงการทางขวามือ
ถึงโครงการ vie ราชพฤกษ์ตัดใหม่
จากภาพถ่ายดาวเทียมจะเห็นว่าพื้นที่รอบ ๆ โครงการส่วนใหญ่จะเป็นบ้านพักอาศัยและพื้นที่ว่างเปล่า บรรยากาศโดยรอบเงียบสงบเหมาะกับการพักอาศัย
รอบโครงการ
หน้าโครงการติดกับถนนริมคันคลองเกาะเกรียง รถเลี้ยวเข้าออกได้สะดวก ด้านหน้าจะมีสะพานข้ามคลองเชื่อมเข้าไปยังพื้นที่โครงการ
มองไปทางขวาจะติดกับบ้านพักอาศัย
มองไปทางซ้ายติดกับพื้นที่ว่างเปล่า
ฝั่งตรงข้ามหน้าโครงการเป็นพื้นที่ว่างเปล่า
vie ราชพฤกษ์ตัดใหม่ กับแนวคิด The Limitless Life เป็นไปได้ทุกการใช้ชีวิต เป็นมากกว่าบ้านแบบเดิม เป็นพื้นที่ส่วนตัวที่สามารถเป็นตัวของตัวเองได้อย่างเต็มที่ เป็นที่ปล่อยความคิดสร้างสรรค์อย่างอิสระ เป็นบ้านหน้ากว้าง ที่เปิดกว้างให้เป็นไปได้ทุกการใช้ชีวิต
แบบบ้านใหม่สไตล์ Minimal กับ Santir Series บ้านเดี่ยวหน้ากว้างรูปแบบใหม่ ให้พื้นที่และฟังก์ชันที่เปิดกว้าง เพื่อตอบรับตัวตนคุณ ด้วยแนวคิด Combine Area & Open Plan Space เปิดพื้นที่กว้าง ให้เชื่อมต่อฟังก์ชันแต่ยังเป็นสัดส่วน 4 แบบ ที่รองรับไลฟ์สไตล์นิวเจน
รูปแบบโครงการเป็นบ้านเดี่ยวหน้ากว้าง 2 ชั้น ตัวโครงการตั้งอยู่บนที่ดินขนาด 90-2-41.6 ไร่ มีจำนวนยูนิตทั้งหมด 380 ยูนิต จากด้านหน้าโครงการจะมีซุ้มประตูแยกทางเข้าออก พร้อมแยกเลนสำหรับลูกบ้านและเลนสำหรับผู้ที่มาติดต่อ โดยจะมีไม้กระดกกั้น ใช้ระบบจดจำป้ายทะเบียน ส่วนผู้ที่มาติดต่อต้องแลกบัตรก่อนทุกครั้ง
ผ่านเข้าโครงการมาจะเป็นถนนหลักยาวเชื่อมเข้าไปด้านใน และจะแบ่งซอยย่อยซ้ายขวา พื้นที่ส่วนกลางจะมี Clubhouse 2 ชั้น Water Front Park และสวนขนาดใหญ่ ถนนหลักกว้าง 16 ม. ส่วนถนนซอยกว้าง 8 ม. ติดตั้ง CCTV รอบโครงการ พร้อมเจ้าหน้าที่รักษาความปลอดภัย 24 ชม.
เริ่มจากด้านหน้าโครงการ มีซุ้มประตูขนาดใหญ่ออกแบบมาในสไตล์ Modern Minimal ดูสวยโดดเด่น พร้อมสวนตกแต่งรอบ ๆ
มีป้ายชื่อโครงการมองเห็นได้ชัดเจน
ที่ทางเข้าออกแยกเลนสำหรับลูกบ้าน และเลนสำหรับผู้ที่มาติดต่อ มีไม้กระดกใช้ระบบจดจำป้ายทะเบียน ส่วนผู้ที่มาติดต่อต้องแลกบัตรก่อนทุกครั้ง
ผ่านเข้ามาเป็นถนนหลักกว้าง 16 ม. ยาวเชื่อมไปยังถนนซอยย่อยซ้ายขวา มีต้นไม้ใหญ่ตามริมทางดูร่มรื่นดีครับ
ผ่านเข้ามาจะเจอ Water Front Park ขนาดใหญ่
บริเวณผืนน้ำจะมีน้ำพุที่ช่วยสร้างเสียงของน้ำเพิ่มความเป็นธรรมชาติ
โซนนี้ทำเป็นเหมือนท่าน้ำเป็นทางเดินเชื่อมไปได้
ผืนน้ำขนาดใหญ่อีกฝั่งพร้อมสวนล้อมรอบบรรยากาศดีเลยครับ
ถัดมาจะเป็นพื้นที่สวนส่วนกลางขนาดใหญ่ที่เชื่อต่อกับอาคาร Clubhouse
ภายในสวนบรรยากาศร่มรื่น มีทั้งต้นไม้ใหญ่ ไม้พุ่ม และไม้ดอก มีทางเดินเชื่อมต่อรอบสวนไว้เดินเล่น หรือวิ่งออกกำลังกายได้
มุมสวนด้านในเน้นต้นไม้ใหญ่ดูร่มรื่น
มีพื้นที่สนามหญ้าโล่ง ๆ ให้ลูกบ้านมาทำกิจกรรมต่าง ๆ ได้
ทางเดินในสวนออกแบบให้คดเคี้ยวไปมา จัด Landscape มาได้สวยดีครับ
มุมมองจากในสวนอีกฝั่ง
มองเข้าไปด้านในจะเห็นอาคาร Clubhouse ที่ตั้งเหมือนเป็นกำแพงด้านหลัง
ฝั่งนี้จะเป็นสนามเด็กเล่น
สนามเด็กเล่นพร้อมเครื่องเล่นให้เด็ก ๆ ได้ปีนป่าย ที่พื้นจะพื้นยางสังเคราะห์ช่วยรับแรงกระแทกได้เวลาเกิดอุบัติเหตุ
มุมนี้มีสไลเดอร์ไว้ให้เล่น
มองกลับไปอีกฝั่งจะเห็นแบบนี้
ด้านข้างสนามเด็กเล่นมีที่นั่งพักผ่อนไว้รองรับ
Clubhouse จะอยู่ติดกับสวน เป็นอาคาร 2 ชั้น
พื้นที่สวนจะเชื่อมต่อกับตัวอาคารเลย ได้บรรยากาศธรรมชาติดีครับ
ทางขึ้นลง Clubhouse ออกแบบให้เป็น Universal Design มีบันได และทางลาดสำหรับวีลแชร์ใช้งานได้สะดวก รอบ ๆ ตัวอาคารจัดต้นไม้มาให้เยอะดีครับ
เดินขึ้นมาจะเจอกับสระว่ายน้ำกลางแจ้งขนาดใหญ่ด้านหน้า
ริมสระมีพื้นที่นั่งพักผ่อนแบบ Sunken
ใต้ต้นไม้มีชิงช้าให้นั่งเล่นได้
สระว่ายน้ำระบบเกลือขนาดใหญ่ทรงฟรีฟอร์ม ว่ายออกกำลังกายได้เลย
มุมมองฝั่งปลายสระ
ปลายสระฝั่งนี้จะแยกเป็นสระเด็กไว้ให้
ริมสระจะมีจุดล้างตัว และพื้นที่พักผ่อนวาง Daybed ไว้ให้ 3 ตัว
วิวจากสระว่ายน้ำมองออกไปเห็นสวนส่วนกลางพอดี
ตัวอาคาร Clubhouse ดีไซน์เป็นทรงโค้งตามแนวสระ
ในอาคารโซนแรกจะเป็น Lobby
ประตูทางเข้าเป็นกระจกบานเลื่อนอัตโนมัติ
เข้ามาด้านใน Lobby ได้พื้นที่ขนาดใหญ่ ไว้นั่งพักผ่อน หรือเป็นจุดรับแขกได้ จัดวางโซฟา โต๊ะนั่งไว้รองรับหลายมุม
ฝ้าเพดาน Lobby สูงโปร่งแบบ Double Volume
มองกลับไปฝั่งประตูทางเข้า สามารถมองเห็นเชื่อมต่อไปถึงสระว่ายน้ำ และสวนส่วนกลาง
มุมนี้วางเป็นชุดโซฟาขนาดใหญ่ไว้ให้
ออกมาด้านนอกเดินเชื่อมไปอีกฝั่ง ซ้ายมือเป็นบันไดเดินเชื่อมขึ้นไปที่ชั้น 2
เดินมาอีกฝั่งขวามือจะเป็นห้อง Co-Working Space
ภายในมีโต๊ะทำงานแยกไว้ตามมุมต่าง ๆ มานั่งทำงาน ทำการบ้านได้เลย
และมีโต๊ะโกล์ไว้ให้เล่นพักผ่อน
ถัดมาอีกจะเป็นทางเดินเชื่อมไปยังห้องน้ำด้านหลัง
ห้องน้ำแยกชายหญิง และห้องน้ำสำหรับผู้สูงอายุ
ภายในห้องน้ำชายฟังก์ชันครบ โซนแรกเป็นตู้ Locker และเคาน์เตอร์อ่างล้างมือ ฝั่งซ้ายจะเป็นห้องน้ำห้องอาบน้ำ
ด้านในเป็นโถปัสสาวะชาย
ภายในห้องอาบน้ำ และห้องน้ำที่เป็นโถสุขภัณฑ์แบบอัตโนมัติ
เดินขึ้นไปดูชั้น 2 กันต่อครับ ตัวบันไดมีที่นั่งพักผ่อนด้านข้าง พร้อมต้นไม้ตกแต่งริมสองฝั่ง
จากบนบันไดมองกลับลงไปที่สระว่ายน้ำจะเห็นแบบนี้
ขึ้นมาที่ชั้น 2 ซ้ายมือจะเป็น Private Studio For Live ฝั่งขวาจะเป็นห้องฟิตเนส
Private Studio For Live จัดไว้รองรับสำหรับคนที่ชอบไลฟ์สดขายของออนไลน์ มีอุปกรณ์ไฟ และฉากไว้ให้ สามารถจองใช้งานได้เลย
ติดกันเป็นห้องฟิตเนส ภายในพื้นที่กว้างพร้อมเครื่องออกกำลังกายครบครัน
มีลู่วิ่งไฟฟ้า, เครื่องบริหารกล้ามเนื้อ, ม้านั่งออกกำลังกาย, ชุดดัมเบล, ลูกบอลออกกำลังกาย
วิวจากห้องฟิตเนสมองออกมาจะเห็นสระว่ายน้ำและสวนที่ชั้นล่างแบบนี้ครับ
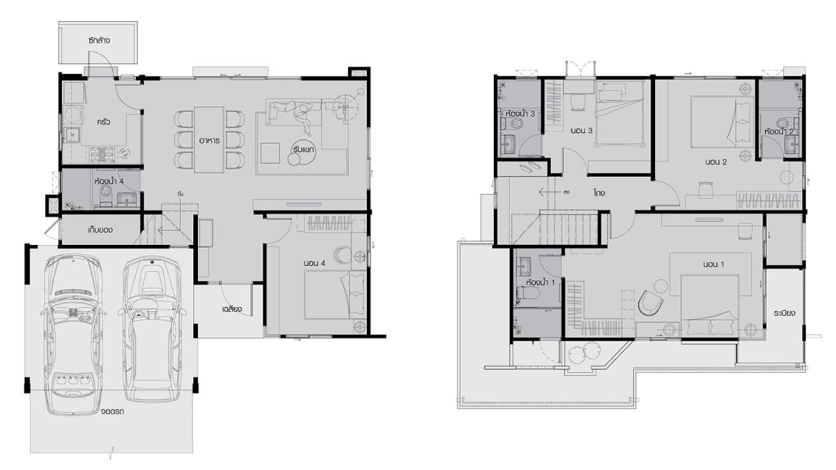
โครงการ vie ราชพฤกษ์ตัดใหม่ มีแบบบ้านให้เลือก 4 แบบดังนี้
แปลนบ้านชั้น 1 | แปลนบ้านชั้น 2
แปลนบ้านชั้น 1 | แปลนบ้านชั้น 2
แปลนบ้านชั้น 1 | แปลนบ้านชั้น 2
แปลนบ้านชั้น 1 | แปลนบ้านชั้น 2
วันนี้เรามีบ้านตัวอย่างให้ชม 2 แบบ เป็นแบบ
จุดเด่นของโครงการ vie ราชพฤกษ์ตัดใหม่
จุดเด่นของตัวบ้านที่น่าสนใจ
เริ่มกันที่บ้านตัวอย่างแบบบ้าน VIVANT ที่ดินเริ่ม 52 ตร.ว. พื้นที่ใช้สอย 153 ตร.ม. ฟังก์ชัน 3 ห้องนอน, 3 ห้องน้ำ, 1 มุมทำงาน, 2 ที่จอดรถ ภายนอกบ้านตกแต่งมาในสไตล์ Minimal มีลูกเล่นที่ Facade ทำให้บ้านดูมีมิติ โทนสีขาวดูอบอุ่นสบายตา
โครงสร้างของบ้านเป็น Precast มีความแข็งแรง แน่นหนา ไม่มีเสา ทำให้จัดวางเฟอร์นิเจอร์และตกแต่งบ้านได้ง่าย ประตู และหน้าต่างเป็นกระจกเขียวตัดแสง ป้องกันรังสี UV กรอบเป็น UPVC
บ้านทุกหลังติดตั้งสัญญาณกันขโมยระบบ Magnetic Sensor ที่บานประตู-หน้าต่างชั้นล่าง มีระบบ AirPlus2 ระบบกำจัดปลวก ติดตั้งปั๊มน้ำ+ถังสำรองน้ำบนดินให้มาตรฐานทุกหลัง และจัดสวนตามมาตรฐานโครงการ สายไฟเดินเข้าบ้านใช้ระบบร้อยท่อใต้ดินดูเรียบร้อย
แปลนบ้านชั้น 1 ด้านหน้ามีที่จอดรถ 2 คัน เดินเข้าบ้านไปจะเจอส่วน Foyer ก่อน มุมหน้าบ้านจะเป็นมุมทำงานที่อยู่ติดกับบันไดขึ้นชั้น 2 ถัดเข้าไปด้านในจะเป็น Common Area ได้พื้นที่กว้างขนาดใหญ่ ใช้งานร่วมกันทั้งส่วนห้องนั่งเล่นและส่วนรับประทานอาหาร มีประตูเชื่อมออกหลังบ้านได้ อีกฝั่งเป็นห้องน้ำใต้บันได และมุมด้านหลังเป็นห้องครัวปิด มีประตูเชื่อมออกส่วนซักล้างหลังบ้านได้
เดินขึ้นชั้น 2 มาจะเจอโถงบันไดก่อน และจะแบ่งเป็นห้องนอน 3 ห้อง ฝั่งโซนหน้าบ้านเป็น Master Bedroom พื้นที่ในห้องยาวตลอดแนวหน้ากว้างของบ้าน ภายในแบ่งพื้นที่วางเตียงนอน King Size พร้อมโต๊ะข้างเตียง, อาร์มแชร์, โต๊ะทำงาน มีห้องน้ำในห้องนอนพร้อมส่วน Walk-in closet
ห้องนอน 2 อยู่ฝั่งโซนหลังบ้านขนาดพื้นที่วางเตียง 5 ฟุตได้ พร้อมโต๊ะข้างเตียง มีมุมวางโต๊ะทำงาน กับตู้เสื้อผ้าได้อีก มุมหลังบ้านอีกฝั่งเป็นห้องนอน 3 ขนาดพื้นที่ใกล้เคียงห้องนอน 2 วางเตียง 5 ฟุตได้ ตรงกลางระหว่างห้องนอน 2 และ 3 จะเป็นห้องน้ำที่ใช้งานแชร์กัน
หน้าบ้านมีที่จอดรถในร่ม 2 คัน พื้นเทคอนกรีตขัดเรียบ เตรียมระบบไฟฟ้ารองรับการติดตั้ง EV Cherger
หน้าบ้านมีพื้นที่เหลือให้จัดสวนตกแต่งได้
หลังบ้านถูกออกแบบให้เป็น Private Yard พื้นที่สวนส่วนตัวหลังบ้าน ทำเป็นพื้นที่นั่งพักผ่อน หรือเป็นมุมสนามเด็กเล่นแบบบ้านตัวอย่างก็ได้ครับ
ตรงมุมหลังบ้านจะเป็นส่วนซักล้าง มีประตูเชื่อมเข้าส่วนครัวในบ้านได้
ข้างบ้านอีกฝั่งมีพื้นที่ไว้ให้เก็บของได้
ประตูบ้านจะเป็นแบบบานเปิดออก 1 บาน พร้อมช่องแสงด้านข้าง มือจับประตูพร้อม Digital Door Lock กรอบประตูซีลยางมาให้ช่วยเก็บเสียงได้ดี พร้อมติดตั้งโช๊คประตูเวลาเปิดปิดไม่ต้องกลัวเสียงดัง หน้าประตูมีเฉลียงแบบในร่ม ไว้วางชั้นวางรองเท้าได้
เข้ามาในบ้านจะเจอส่วน Foyer ก่อน ขวามือเป็นบันไดขึ้นชั้น 2 ด้านในจะเป็น Common Area พื้นบ้านชั้นล่างจะได้เป็นกระเบื้อง ผนังได้ฉาบเรียบทาสีขาวทั้งหลัง ไฟได้แบบ LED Panel ประหยัดพลังงาน บ้านทุกหลังติดตั้งระบบ AirPlus2 ที่ช่วยให้อากาศในบ้านไหลเวียน ช่วยประหยัดค่าไฟได้ ซึ่งใช้ในหลาย ๆ โครงการของ Land & Houses
เดินเข้ามาแล้วมองกลับไปที่ประตูหน้าบ้านจะเห็นแบบนี้
ตรงส่วน Foyer มีพื้นที่ให้วางตู้เก็บรองเท้า ตู้เก็บของ และม้านั่งได้
อีกฝั่งมุมหน้าบ้านเป็นมุมทำงาน หรือทำเป็นมุมพักผ่อน มุมสัตว์เลี้ยงก็ได้ครับ
บ้านตัวอย่างวางโต๊ะทำงานหันออกหน้าบ้าน ส่วนด้านข้างมีพื้นที่ให้วางชั้นวางของเพิ่มได้อีก
มองกลับไปอีกฝั่งจะเห็นแบบนี้
ถัดเข้ามาด้านในบ้านจะเป็น Common Area ได้พื้นที่กว้างขนาดใหญ่ ใช้งานร่วมกันระหว่างห้องนั่งเล่นและส่วนรับประทานอาหาร
มุมห้องนั่งเล่นพื้นที่กว้าง สามารถวางชุดโซฟาขนาดใหญ่ได้ทั้งแบบตัว L และตัว U หรือวางเป็นแบบอาร์มแชร์ก็ได้ครับ
ส่วนระยะดูทีวีสามารถใช้ทีวีจอใหญ่ได้เลย ส่วนที่ผนังจะทำชั้นวางของ ตู้เก็บของ เพิ่มให้เต็มผนังแบบบ้านตัวอย่างไปเลยก็ได้
มองไปอีกฝั่งจะเห็นส่วนรับประทานอาหารที่เชื่อมต่อกัน
ส่วนรับประทานอาหารวางโต๊ะขนาด 4 ที่นั่งมาให้ดู มีพื้นที่เหลือเดินได้รอบฝั่ง
มองกลับไปอีกฝั่งจะเห็นแบบนี้ พื้นที่แต่ละส่วนดูเชื่อมต่อกัน
ฝั่งด้านหลังบ้านมีช่องแสงขนาดใหญ่ เป็นกระจกบานเลื่อนเปิดเชื่อมออกไปยัง Private Yard ได้
ถัดไปซ้ายมือเป็นห้องครัว ขวามือเป็นห้องน้ำ
ห้องน้ำเป็นแบบ Powder Room คือไม่มีพื้นที่ส่วนเปียกนั่นเอง พื้นและผนังตกแต่งด้วยกระเบื้องโทนสีอ่อนดูสวยงาม ในห้องน้ำมีช่องแสงเป็นบานกระทุ้งเปิดระบายอากาศได้
อ่างล้างมือที่ได้ทรงสี่เหลี่ยม ที่ผนังด้านหลังทำเป็น Low wall ยาวตลอดแนวไว้ให้วางของได้
มุมด้านในวางโถสุขภัณฑ์แบบชิ้นเดียว พร้อมสายฉีดชำระและที่ใส่กระดาษทิชชู่
ติดกันมุมหลังบ้านเป็นห้องครัวปิด มีประตูกั้นแยกส่วน
ภายในห้องครัวมีพื้นที่มาให้พอสมควร ไม่ต้องต่อเติมครัวหลังบ้านก็ได้
ในครัวบ้านมาตรฐานจะได้เคาน์เตอร์ครัวตัว U พร้อมอ่างล้างจานแบบหลุมเดียว ส่วนตู้เก็บของสามารถทำเพิ่มเองได้ตามชอบครับ บ้านตัวอย่างตกแต่งมาให้ดูเป็นไอเดียแบบนี้ มีพื้นที่ให้วางตู้เย็น เครื่องซักผ้า เดินระบบน้ำและไฟไว้รองรับ
จากส่วนครัวจะมีประตูเปิดเชื่อมออกไปส่วนซักล้างหลังบ้านได้
ขึ้นมาที่ชั้น 2 จะเจอโถงบันไดก่อน และจะแบ่งเป็นห้องนอน 3 ห้อง และห้องน้ำตรงโถงบันได 1 ห้อง บนฝ้าเพดานจะมีช่องลม ที่เป็นส่วนหนึ่งของระบบ AirPlus2
Master Bedroom จะอยู่โซนหน้าบ้านได้พื้นที่ขนาดใหญ่ยาวตลอดแนวหน้ากว้างของบ้าน แบ่งพื้นที่วางเตียง King Size พร้อมโต๊ะข้างเตียงมาให้ดู มีพื้นที่เหลือรอบ ๆ ในห้องนอนทุกห้องจะติดตั้งช่องลมของระบบ AirPlus2 มาให้
ฝั่งปลายเตียงให้ระยะดูทีวีมากว้าง ติดทีวีจอขนาดใหญ่ได้ จะวางบนตู้วางทีวีหรือจะแขวนที่ผนังก็ได้
พื้นที่ข้างเตียงสามารถวางอาร์มแชร์เพิ่มได้อีก
ถัดไปอีกฝั่งจะเป็นห้องน้ำ และส่วน Walk-in closet
ตรง Walk-in closet ให้พื้นที่มาพอสมควร วางตู้เสื้อผ้าขนาดใหญ่ได้เลย
อีกฝั่งทำเป็นมุมโต๊ะเครื่องแป้งได้
ภายในห้องน้ำแบ่งส่วนเปียกส่วนแห้ง พื้นและผนัง ตกแต่งด้วยกระเบื้องโทนสีอ่อนดูสบายตา พร้อมกระจกเงาบานใหญ่
อ่างล้างมือที่ได้ทรงสี่เหลี่ยม ที่ผนังด้านหลังทำเป็น Low wall ไว้ให้วางของได้เยอะดี
ติดกันวางโถสุขภัณฑ์แบบอัตโนมัติ
ถัดไปเป็นพื้นที่ส่วนเปียก ด้านในติดตั้ง Hand Shower ปรับระดับสูงต่ำได้ พร้อมเดินงานระบบไฟฟ้าติด Junction Box รองรับการติดตั้งเครื่องทำน้ำอุ่นมาให้เรียบร้อย ด้านในพื้นที่ส่วนเปียกจะมีช่องแสงเป็นกระจกบานเปิดที่สามารถเดินเชื่อมออกไปได้
เปิดออกมาจะเป็นพื้นที่ระเบียง ไว้เป็นพื้นที่ตากผ้าเช็ดตัว หรือจัดสวน มีพื้นที่ให้ปลูกต้นไม้เพิ่มได้อีก และจะมีผนังก่อแบบช่องลมช่วยบังสายตาอีกชั้น
ด้านบนหลังคาส่วนนี้จะเปิดเป็นช่องแสงไว้ให้อีกด้วยครับ
ถัดมาเป็นห้องนอน 2 ตำแหน่งอยู่โซนหลังบ้าน ให้พื้นที่มาพอสมควร พื้นที่วางเตียงนอน 5 ฟุตได้สบาย ๆ
บ้านตัวอย่างวางเตียงเดี่ยวมาให้ดู พร้อมโต๊ะทำงานข้างเตียง
ฝั่งปลายเตียงมีพื้นที่ให้วางชั้นวางทีวี ชั้นวางของตกแต่งเพิ่มได้
ฝั่งด้านในมีพื้นที่ให้วางตู้เสื้อผ้าขนาดใหญ่ได้อีกครับ
ห้องนอน 3 จะอยู่อีกมุม ขนาดพื้นที่ใกล้เคียงห้องนอน 2 วางเตียง 5 ฟุตได้สบาย ๆ
บ้านตัวอย่างตกแต่งเป็นห้องพักผ่อน ห้องทำงานมาให้ดูเป็นไอเดีย
ตรงกลางระหว่างห้องนอน 2 และห้องนอน 3 จะมีห้องน้ำ 1 ห้องที่ใช้งานแชร์กัน ภายในแบ่งส่วนเปียกส่วนแห้ง พร้อมกระจกเงาบานใหญ่
ติดตั้งอ่างล้างมือ และโถสุขภัณฑ์ไว้ฝั่งเดียวกัน ที่ผนังด้านหลังทำเป็น Low wall ยาวตลอดแนวไว้ให้วางของได้
ถัดไปเป็นพื้นที่ส่วนเปียก ด้านในติดตั้ง Hand Shower ปรับระดับสูงต่ำได้ พร้อมเดินงานระบบไฟฟ้าติด Junction Box รองรับการติดตั้งเครื่องทำน้ำอุ่นมาให้เรียบร้อย ในห้องน้ำมีช่องแสงเปิดระบายอากาศได้
มาต่อกันที่แบบบ้าน AMUSANT ที่ดินเริ่ม 72 ตร.ว. พื้นที่ใช้สอย 211 ตร.ม. ฟังก์ชัน 4 ห้องนอน, 5 ห้องน้ำ, 1 มุมทำงาน, 1 มุมพักผ่อน, 3 ที่จอดรถ เป็นแบบบ้านขนาดใหญ่สุดของโครงการ ภายนอกบ้านตกแต่งมาในสไตล์ Minimal เช่นกัน ตัวบ้านจะมีหน้ากว้างกว่าแบบแรกพอสมควร
โครงสร้างของบ้านเป็น Precast มีความแข็งแรง แน่นหนา ไม่มีเสา ทำให้จัดวางเฟอร์นิเจอร์และตกแต่งบ้านได้ง่าย ประตู และหน้าต่างเป็นกระจกเขียวตัดแสง ป้องกันรังสี UV กรอบเป็น UPVC
บ้านทุกหลังติดตั้งสัญญาณกันขโมยระบบ Magnetic Sensor ที่บานประตู-หน้าต่างชั้นล่าง มีระบบ AirPlus2 ระบบกำจัดปลวก ติดตั้งปั๊มน้ำ+ถังสำรองน้ำบนดินให้มาตรฐานทุกหลัง และจัดสวนตามมาตรฐานโครงการ สายไฟเดินเข้าบ้านใช้ระบบร้อยท่อใต้ดินดูเรียบร้อย
แปลนบ้านชั้น 1 หน้าบ้านมีที่จอดรถในร่ม 3 คัน เชื่อมต่อกับเฉลียงหน้าประตูบ้าน เดินเข้าบ้านไปจะเจอส่วน Foyer ก่อน มุมด้านหน้าเป็นห้องนอน 4 พื้นที่กว้าง เหมาะจะเป็นห้องนอนผู้สูงอายุ ไม่ต้องเดินขึ้นลงบันได พร้อมห้องน้ำในตัว
ถัดเข้าไปด้านในจะเป็นส่วน Common Area ขนาดใหญ่ ใช้งานร่วมกันทั้งส่วนห้องนั่งเล่นและส่วนรับประทานอาหาร มีประตูเชื่อมออกหลังบ้านได้ ติดกันมุมหลังบ้านจะเป็นมุมทำงาน ส่วนอีกฝั่งเป็นบันไดขึ้นชั้น 2 มีห้องน้ำใต้บันได และมุมด้านหลังเป็นห้องครัวปิด มีประตูเชื่อมออกส่วนซักล้างหลังบ้านได้
ขึ้นมาที่ชั้น 2 จะเจอโถงบันไดก่อน มีมุมพักผ่อนตรงโถงบันได และจะแบ่งเป็นห้องนอน 3 ห้อง ฝั่งโซนหน้าบ้านเป็น Master Bedroom พื้นที่ในห้องยาวตลอดแนวหน้ากว้างของบ้าน ภายในแบ่งพื้นที่วางเตียงนอน King Size พร้อมโต๊ะข้างเตียง, อาร์มแชร์, โต๊ะทำงาน มีห้องน้ำในห้องนอนพร้อมส่วน Walk-in closet และระเบียงส่วนตัว
ห้องนอน 2 อยู่ฝั่งโซนหลังบ้านขนาดพื้นที่วางเตียง 5-6 ฟุตได้ พร้อมโต๊ะข้างเตียง มีมุมวางโต๊ะทำงาน กับตู้เสื้อผ้าได้ พร้อมห้องน้ำในตัว ติดกันเป็นห้องนอน 3 ขนาดวางเตียง 3-5 ฟุตได้ พร้อมห้องน้ำในตัวเช่นกัน
หน้าบ้านมีที่จอดรถในร่มได้ 3 คัน พื้นเทคอนกรีตขัดเรียบ เตรียมระบบไฟฟ้ารองรับการติดตั้ง EV Cherger
ตรงที่จอดรถจะมีตู้เก็บของไว้ให้เป็นบานเปิด 1 บาน ภายในเก็บของได้พอสมควร
หน้าบ้านมีพื้นที่เหลือไว้ให้จัดสวนตกแต่งได้
มุมหน้าบ้านตัวอย่างทำเป็นพื้นที่นั่งพักผ่อนมาให้ดูเป็นไอเดีย
มุมมองฝั่งข้างบ้าน
พื้นที่ข้างบ้านตัวอย่างเนื่องจากเป็นบ้านแปลงมุม ทำให้ได้พื้นที่ดินเยอะ สามารถจัดสวนหรือต่อเติมได้
บ้านตัวอย่างตกแต่งเป็นแปลงผักสวนครัว มาให้ดู
และแบ่งพื้นที่ทำเป็นมุมนั่งทานอาหารแบบ Outdoor ไว้จัดปาร์ตี้กันในครอบครัว
ฝั่งข้างบ้านมีประตูกระจกบานเลื่อนเปิดเชื่อมเข้าไปด้านในบ้านได้
หลังบ้านถูกออกแบบให้เป็น Private Yard พื้นที่สวนส่วนตัวหลังบ้าน ทำเป็นพื้นที่นั่งพักผ่อน จัดตกแต่งสวนได้ตามต้องการ มีประตูเปิดเชื่อมเข้าออกในบ้านได้
มุมหลังบ้านอีกฝั่งเป็นส่วนซักล้าง มีประตูเปิดเชื่อมเข้าส่วนครัวในบ้านได้
มุมทางเข้าประตูหน้าบ้านตกแต่งสวนมาให้ดูแบบนี้
ประตูบ้านจะเป็นแบบบานเปิดออก 1 บาน พร้อมช่องแสงด้านข้าง มือจับประตูพร้อม Digital Door Lock กรอบประตูซีลยางมาให้ช่วยเก็บเสียงได้ดี พร้อมติดตั้งโช๊คประตูเวลาเปิดปิดไม่ต้องกลัวเสียงดัง หน้าประตูมีเฉลียงแบบในร่มไว้วางชั้นวางรองเท้าได้
เข้ามาในบ้านจะเจอส่วน Foyer ก่อน ซ้ายมือเป็นบันไดขึ้นชั้น 2 ฝั่งขวาจะเป็นห้องนอน 4 ด้านในจะเป็น Common Area
เดินเข้ามาแล้วมองกลับไปที่ประตูหน้าบ้านจะเห็นแบบนี้ ตรงส่วน Foyer มีพื้นที่ให้วางม้านั่งพักคอย หรือไว้นั่งใส่รองเท้า ฝั่งขวามีพื้นที่ให้ทำเป็นตู้เก็บรองเท้าได้
ติดกับส่วน Foyer ซ้ายมือจะเป็นห้องนอน 4
ภายในห้องนอน 4 พื้นที่กว้างสามารถวางเตียง 5 ฟุตได้ เหมาะจะเป็นห้องนอนผู้สูงอายุ ไม่ต้องเดินขึ้นลงบันได
ฝั่งปลายเตียงติดทีวีที่ผนังได้อีก จะวางเป็นโต๊ะทำงานปลายเตียงก็ได้ครับ
ฝั่งด้านหน้าบ้านจะมีช่องแสงขนาดใหญ่ เปิดรับวิวสวนหน้าบ้านได้
ฝั่งด้านในเป็นห้องน้ำ ขวามือมีพื้นที่ให้วางตู้เสื้อผ้าขนาดใหญ่และมุมโต๊ะเครื่องแป้งได้
ภายในห้องน้ำแบ่งส่วนเปียกส่วนแห้ง พื้นและผนังตกแต่งด้วยกระเบื้องโทนสีอ่อนดูสบายตา พร้อมกระจกเงาบานใหญ่
พื้นที่ส่วนเปียก ด้านในติดตั้ง Hand Shower ปรับระดับสูงต่ำได้ พร้อมเดินงานระบบไฟฟ้าติด Junction Box รองรับการติดตั้งเครื่องทำน้ำอุ่นมาให้เรียบร้อย
ถัดเข้ามาด้านในบ้านจะเป็น Common Area ได้พื้นที่กว้างขนาดใหญ่ ใช้งานร่วมกันระหว่างห้องนั่งเล่นและส่วนรับประทานอาหาร
มุมห้องนั่งเล่นสามารถวางชุดโซฟาขนาดใหญ่ได้ทั้งแบบตัว L และตัว U หรือวางแบบอาร์มแชร์ก็ได้
ส่วนระยะดูทีวีสามารถใช้ทีวีจอใหญ่ได้ มีพื้นที่ให้ตกแต่งเป็นชั้นวางทีวีชั้นวางของได้ ซ้ายมือจะเป็นห้องทำงาน บ้านตัวอย่างทำประตูกั้นแยกส่วน
ภายในห้องทำงาน มีพื้นที่พอสมควร วางโต๊ะทำงานชั้นวางของได้ หรือจะทำเป็นมุมนั่งพักผ่อน มุมสัตว์เลี้ยงก็ได้ครับ
จากมุมห้องทำงานจะมีประตูกระจกบานเลื่อนเปิดเชื่อมออกไปสวนข้างบ้านได้
กลับออกมาตรงห้องนั่งเล่น มองไปอีกฝั่งพื้นที่จะเชื่อมต่อกับส่วนรับประทานอาหาร
ส่วนรับประทานอาหารขนาดใหญ่ วางโต๊ะขนาด 6 ที่นั่งมาให้ดู มีพื้นที่เหลือเดินได้รอบฝั่ง
จากส่วนรับประทานอาหารสามารถใช้งานทีวีร่วมกับตรงห้องนั่งเล่นได้เลย
ฝั่งหลังบ้านมีช่องแสงขนาดใหญ่เป็นกระจกบานเลื่อนเปิดเชื่อมออกไปยัง Private Yard ได้
มองกลับเข้าไปด้านในบ้านจะเห็นแบบนี้
ถัดไปอีกโซนซ้ายมือจะเป็นห้องน้ำ ขวามือเป็นห้องครัว
ห้องน้ำเป็นแบบ Powder Room คือไม่มีพื้นที่ส่วนเปียก พื้นและผนังตกแต่งด้วยกระเบื้อง
อ่างล้างมือและโถสุขภัณฑ์วางไว้ฝั่งเดียวกัน
ในห้องน้ำมีช่องแสงเป็นบานกระทุ้งเปิดระบายอากาศได้ ด้านนอกจะเป็นพื้นที่ไว้ให้จัดสวน วางกระถางต้นไม้ตกแต่งเพิ่มได้ มีแนวกำแพงช่วยบังสายตาจากด้านนอก
ด้านบนจะเปิดเป็นช่อง Void ให้แสงส่องผ่านลงมาได้
ถัดไปเป็นห้องครัวปิด มีประตูกั้นแยกส่วน
ภายในห้องครัวมีพื้นที่มาให้พอสมควร ไม่ต้องต่อเติมครัวหลังบ้านก็ได้
ในครัวบ้านมาตรฐานจะได้เคาน์เตอร์ครัวตัว U พร้อมอ่างล้างจานแบบหลุมเดียว ส่วนตู้เก็บของสามารถทำเพิ่มเองได้ตามชอบเลยครับ บ้านตัวอย่างตกแต่งมาให้ดูเป็นไอเดียแบบนี้ แบ่งฟังก์ชันการใช้งานมาได้ครบ มีพื้นที่ให้วางตู้เย็น เครื่องซักผ้า เดินระบบน้ำและไฟไว้รองรับ
จากส่วนครัวจะมีประตูเปิดเชื่อมออกไปส่วนซักล้างหลังบ้านได้
บันไดขึ้นชั้น 2 จะอยู่ติดกับส่วน Foyer ฝั่งหน้าบ้าน มีช่องแสงตรงบันไดทำให้ดูโปร่งไม่ทึบ
โถงบันไดชั้น 2 จะมีพื้นที่มุมพักผ่อน วางโซฟาเบดหรือชั้นวางของตกแต่งได้
จากโถงบันไดจะแบ่งเป็นห้องนอน 3 ห้อง บนฝ้าเพดานจะมีช่องลม ที่เป็นส่วนหนึ่งของระบบ AirPlus2
Master Bedroom จะอยู่โซนหน้าบ้านได้พื้นที่ขนาดใหญ่ยาวตามแนวหน้ากว้างของบ้าน แบ่งพื้นที่วางเตียง King Size พร้อมโต๊ะข้างเตียงมาให้ดู จะวางโซฟาปลายเตียงเพิ่มอีกก็ได้ มีพื้นที่เหลือรอบ ๆ ในห้องนอนทุกห้องจะติดตั้งช่องลมของระบบ AirPlus2 มาให้
ฝั่งปลายเตียงให้ระยะดูทีวีมากว้าง ติดทีวีจอขนาดใหญ่ได้ จะวางบนตู้วางทีวีหรือจะแขวนที่ผนังก็ได้ ฝั่งขวายังมีพื้นที่ให้วางโต๊ะทำงานได้อีก
ข้างเตียงฝั่งนี้วางอาร์มแชร์หรือโซฟาเบดได้
ฝั่งด้านนอกเป็นระเบียง มีประตูกระจกบานเลื่อนเปิดเลื่อนเปิดเชื่อมออกไปได้
ตรงระเบียงเป็นพื้นที่แบบตัว L สามาถวางกระถางต้นไม้ตกแต่งเพิ่มได้อีก ราวกันตกเป็นกระจกไม่บดบังวิว
วิวจากระเบียงห้องมองลงมาจะเห็นสวนข้างบ้านได้ครับ
กลับเข้ามาด้านใน ฝั่งด้านในจะเป็นห้องน้ำ และมีพื้นที่สำหรับ Walk-in closet
Walk-in closet สามารถกั้นพื้นที่แยกเป็นสัดส่วนได้ตามชอบ
บ้านตัวอย่างทำเป็นตู้เสื้อผ้าแบบตัว U และอีกฝั่งทำเป็นมุมโต๊ะเครื่องแป้ง
ด้านจะเชื่อมต่อกับห้องน้ำ
ภายในห้องน้ำแบ่งส่วนเปียกส่วนแห้ง พื้นและผนัง ตกแต่งด้วยกระเบื้องโทนสีอ่อนดูสบายตา พร้อมกระจกเงาบานใหญ่
ได้อ่างล้างมือทรงสี่เหลี่ยม และโถสุขภัณฑ์แบบอัตโนมัติ ที่ผนังด้านหลังทำเป็น Low wall ไว้ให้วางของได้เยอะดี
ถัดไปเป็นพื้นที่ส่วนเปียก ด้านในติดตั้ง Hand Shower ปรับระดับสูงต่ำได้ พร้อมเดินงานระบบไฟฟ้าติด Junction Box รองรับการติดตั้งเครื่องทำน้ำอุ่นมาให้เรียบร้อย ด้านในพื้นที่ส่วนเปียกจะมีช่องแสงเป็นกระจกบานเปิดที่สามารถเดินเชื่อมออกไปได้
เปิดออกมาจะเป็นพื้นที่ระเบียง ไว้เป็นพื้นที่ตากผ้าเช็ดตัว หรือจัดสวนตกแต่ง มีพื้นที่ให้ปลูกต้นไม้เพิ่มได้อีก และจะมีผนังก่อแบบช่องลมช่วยบังสายตาอีกชั้น
ด้านบนหลังคาส่วนนี้จะเปิดเป็นช่องแสงไว้ให้อีกด้วย
ห้องนอน 2 ตำแหน่งอยู่มุมหลังบ้าน ภายในให้พื้นที่มาเยอะ วางเตียง 5-6 ฟุตได้เลย และยังวางโต๊ะข้างเตียงได้อีก
ฝั่งปลายเตียงสามารถติดทีวีเพิ่มได้ หรือจะวางชั้นวางของตกแต่งก็ได้
ฝั่งด้านในมีพื้นที่ให้วางโต๊ะทำงาน หรือทำเป็นมุมแต่งตัวก็ได้ครับ
ถัดไปด้านในจะเป็นห้องน้ำและส่วนทำห้องแต่งตัว
หน้าห้องน้ำมีพื้นที่ให้วางตู้เสื้อผ้า ทำเป็นมุมห้องแต่งตัวได้
ภายในห้องน้ำแบ่งส่วนเปียกส่วนแห้ง พื้นและผนังตกแต่งด้วยกระเบื้อง พร้อมสุขภัณฑ์ครบชุด
ถัดมาเป็นห้องนอน 3 บ้านตัวอย่างวางเตียงเดี่ยวมาให้ดู มีพื้นที่เหลือรอบ ๆ
ปลายเตียงวางโต๊ะทำงานได้ จะแขวนทีวีที่ผนังก็ได้ครับ
อีกฝั่งเป็นห้องน้ำ มีพื้นที่ให้วางตู้เสื้อผ้าและทำมุมโต๊ะเครื่องแป้งได้
ภายในห้องน้ำแบ่งส่วนเปียกส่วนแห้งพร้อมสุขภัณฑ์ครบชุด พื้นและผนังตกแต่งด้วยกระเบื้องโทนสีอ่อนดูสบายตา
ถัดไปเป็นพื้นที่ส่วนเปียก ด้านในติดตั้ง Hand Shower ปรับระดับสูงต่ำได้ พร้อมเดินงานระบบไฟฟ้าติด Junction Box รองรับการติดตั้งเครื่องทำน้ำอุ่นมาให้เรียบร้อย ในห้องน้ำมีช่องแสงเปิดระบายอากาศได้
*หมายเหตุ : ข้อมูลราคาและโปรโมชันอาจมีการเปลี่ยนแปลง โปรดติดต่อสำนักงานขายเพื่อสอบถามรายละเอียดเพิ่มเติม*
ทำเลที่ตั้งโครงการ : vie ราชพฤกษ์ตัดใหม่ ตั้งอยู่ในทำเลย่านราชพฤกษ์ตัดใหม่ มีความอุดมสมบูรณ์พอสมควร ใกล้ ๆ โครงการตรงถนน 345 และถนนกรุงเทพ-ปทุมธานี ตามสองฝั่งทางจะมีร้านค้า ร้านอาหารหลายร้าน รวมถึงร้านสะดวกซื้อต่าง ๆ ให้เลือกหลากหลายเกือบทั้งเส้น และมีตลาดใกล้ ๆ หลายแห่ง
แหล่งอำนวยความสะดวกใกล้เคียงมีทั้ง Robinson Lifestyle ราชพฤกษ์, Home Pro ชัยพฤกษ์, Lotus’s North ราชพฤกษ์, สัมมากร เพลส ราชพฤกษ์, Design Village ราชพฤกษ์, Chic Republic ราชพฤกษ์, Central WestVille ราชพฤกษ์, Big C ปทุมธานี, Makro ปทุมธานี, Central แจ้งวัฒนะ, Central WestGate, Ikea บางใหญ่ และยังใกล้กับสถานศึกษา โรงพยาบาลหลายแห่ง
การเดินทางโดยรถส่วนตัว : เดินทางสะดวกเข้าออกเมืองได้ง่าย ใกล้ถนนราชพฤกษ์ ใช้มุ่งหน้าเข้าเมืองไปทางบางหว้า ผ่านจุดตัดกับ ถนนชัยพฤกษ์, ถนนรัตนาธิเบศร์, ถนนบรมราชชนนี เชื่อมต่อเข้าถนนกรุงธนบุรีข้ามสะพานตากสิน เชื่อมเข้าสาทร สีลมได้เลย ถนนราชพฤกษ์ถ้าวิ่งไปอีกฝั่งเชื่อมไปเข้าถนนรังสิต-ปทุมธานี เชื่อมต่อไปออกถนนพหลโยธิน จากนั้นเชื่อมออกต่างจังหวัดได้เลย
ถ้ามาใช้ถนน 345 ไปเชื่อมเข้าถนนสะพานนนทบุรี-บางบัวทอง และไปเข้าถนนศรีสมานจะเจอจุดขึ้นทางด่วนอุดรรัถยา ใช้วิ่งเข้าออกเมืองเชื่อมกับทางด่วนศรีรัชได้เลย ถนน 345 วิ่งออกไปเชื่อมเข้าถนนบางกรวย-กรุงเทพ และถนนบางบัวทอง-สุพรรณบุรีได้ จากนั้นเชื่อมออกสุพรรณบุรีได้ และยังใกล้ถนนกาญจนาภิเษก ใช้เดินทางไปโซนรอบนอกกรุงเทพฯ ได้หลายโซน
การเดินทางโดยสาธารณะหรือรถไฟฟ้า : ตัวเลือกส่วนใหญ่จะเป็น Taxi หรือจะใช้บริการผ่าน Grab ก็ได้ นอกจากนี้ตัวโครงการยังอยู่ไม่ไกลจากแนวรถไฟฟ้าสายสีชมพู, สายสีม่วง, สายสีแดง และสนามบินดอนเมืองอีกด้วย
การออกแบบโครงการ, แบบบ้านและวัสดุ : บ้านภายในโครงการเป็นบ้านเดี่ยว 2 ชั้นสไตล์ Minimal ใช้โทนสีขาวดูอบอุ่นน่าอยู่ พื้นที่ในบ้านออกแบบมาได้ดี คิดฟังก์ชันการใช้งานในส่วนต่าง ๆ เพื่อให้รองรับกับไลฟ์สไตล์ของผู้อาศัย
พื้นที่ในบ้านสามารถปรับเปลี่ยนได้ตามความต้องการของผู้อาศัย ตัวบ้านเน้นช่องแสงเข้าถึงแต่ละส่วนภายในบ้านได้เยอะ แต่ละส่วนของบ้านแบ่งพื้นที่มาให้ไม่อึดอัด แต่ละห้องดูโปร่งโล่ง ฝ้าเพดานสูง 2.7 ม. และมี Private Yard พื้นที่สวนส่วนตัวหลังบ้าน
แบบบ้าน VIVANT พื้นที่ใช้สอย 153 ตร.ม. ในบ้านมีส่วน Foyer เชื่อมต่อกับมุมทำงานหน้าบ้าน ด้านในมีพื้นที่ส่วน Common Area ขนาดใหญ่ เชื่อมต่อกันทั้งห้องนั่งเล่นและส่วนรับประทานอาหารเปิดรับวิวสวนหลังบ้าน ส่วนครัวได้เป็นครัวปิดพื้นที่ขนาดกำลังดี
ห้อง Master Bedroom พื้นที่ขนาดใหญ่ แบ่งพื้นที่วางเตียง King Size, โต๊ะข้างเตียง, อาร์มแชร์, โต๊ะทำงาน มีพื้นที่สำหรับ Walk-in closet พร้อมห้องน้ำในตัว ห้องนอน 2 และห้องนอน 3 วางเตียง 5 ฟุตได้
แบบบ้าน AMUSANT พื้นที่ใช้สอย 211 ตร.ม. เป็นแบบบ้านขนาดใหญ่สุดของโครงการ ในบ้านจะมีส่วน Foyer เช่นกัน และส่วน Common Area ขนาดใหญ่ ใช้งานร่วมกันทั้งห้องนั่งเล่นและส่วนรับประทานอาหาร รองรับ 6-8 ที่นั่งได้ และเปิดรับวิวสวนหลังบ้าน มีมุมทำงานเปิดรับวิวสวนข้างบ้าน ห้องครัวได้เป็นครัวปิดขนาดใหญ่กำลังดี และมีห้องนอนชั้นล่างไว้รองผู้สูงอายุพร้อมห้องน้ำในตัว
ตรงโถงบันชั้นบนมีมุมพักผ่อน ส่วนห้อง Master Bedroom พื้นที่ขนาดใหญ่ภายในแบ่งพื้นที่วางเตียงนอน King Size พร้อมโต๊ะข้างเตียง, โซฟาปลายเตียง, อาร์มแชร์, โต๊ะทำงาน มีห้องน้ำในห้องนอนพร้อมส่วน Walk-in closet และระเบียงส่วนตัว ห้องนอน 2 วางเตียง 5-6 ฟุตได้ พร้อมห้องน้ำในตัว ห้องนอน 3 วางเตียง 3-5 ฟุตได้ พร้อมห้องน้ำในตัวเช่นกัน
สิ่งอำนวยความสะดวกและระบบรักษาความปลอดภัย : ส่วนกลางที่นี่ออกแบบมาได้สวยน่าใช้งาน มี Clubhouse 2 ชั้น ภายในมี Lobby พื้นที่นั่งพักผ่อนหรือเป็นจุดรับแขก, Co-Working Space พื้นที่นั่งทำงาน
Private Studio For Live ไว้ไลฟ์สดขายของออนไลน์, ห้องฟิตเนสพร้อมเครื่องออกกำลังกายครบครันพร้อมห้องน้ำแยกชายหญิง และสระว่ายน้ำกลางแจ้งขนาดใหญ่ทรงฟรีฟอร์ม แยกสระเด็ก พร้อมพื้นที่พักผ่อนริมสระ
สวนพักผ่อนขนาดใหญ่เชื่อมต่อกับ Clubhouse ภายในสวนจัด Landscape มาได้สวย บรรยากาศร่มรื่น ภายในสวนมีทั้งต้นไม้ใหญ่ ไม้พุ่ม ไม้ดอก และมีสนามหญ้าไว้ทำกิจกรรมต่าง ๆ มีทางเดินเชื่อมต่อรอบสวน พร้อมพื้นที่นั่งพักผ่อนกับสนามเด็กเล่น และมี Water Front Park ขนาดใหญ่บรรยากาศดี
ถนนหลักโครงการกว้าง 16 ม. ถนนซอยกว้าง 8 ม. สายไฟที่เดินเข้าบ้านใช้ระบบร้อยท่อใต้ดิน ดูเรียบร้อย ระบบรักษาความปลอดภัยมี รปภ. ตลอด 24 ชม. ประตูทางเข้าออกโครงการเป็นไม้กระดกแยกทางเข้าออก แยกเลนสำหรับลูกบ้านและผู้ที่มาติดต่อ ใช้ระบบจดจำป้ายทะเบียน ติดตั้ง CCTV รอบโครงการ เพื่อความปลอดภัยของลูกบ้าน
Tel : 1198
Website : https://url.in.th/ohjuP
หากเพื่อน ๆ เห็นว่ารีวิวนี้มีประโยชน์ ช่วยกด Like เพื่อเป็นกำลังใจให้ทีมงาน ขอบคุณครับ
บ้านเดี่ยว ปทุมธานี ทำเลอื่นๆ ที่น่าสนใจ…
นันธารา รังสิต-คลอง 9 เริ่ม 4.32 ล้าน*
บางกอก บูเลอวาร์ด วิภาวดี-พหลฯ 2
เสนา วิลเลจ ติวานนท์-บางกะดี เริ่ม 3 ล้าน*
บ้านเดี่ยว นาวาร่า รังสิต-คลอง 2 เริ่ม 4.59 ล้าน*
แกรนด์ พลีโน่ วิภาวดี-รังสิต เริ่ม 5.xx ล้าน*
เวอร์โซ่ เพรสทีจ วงแหวน-ลำลูกกา เริ่ม 14.99 ล้าน*
Passorn ราชพฤกษ์-ติวานนท์ 2 เริ่ม 4.99-7.59 ล้าน*
Saransiri รังสิต 2 ราคา 7.99-20 ล้าน*
ไพร์มสแควร์ 2 รังสิต-คลอง 2 (บงกช 32) เริ่ม 6-8 ล้าน*
บ้านลลิล รังสิต-คลอง 2 เริ่ม 3.89-7 ล้าน*
Siamese Blossom พหลฯ-วิภาวดี เริ่ม 2.99 ล้าน*
วี ราชพฤกษ์ตัดใหม่ เริ่ม 5.8 ล้าน*