EP.1139 รีวิว คอนโด เดอะ ทีค สาทร-ลุมพินี The Teak Sathorn-Lumpini คอนโดใหม่แต่งครบ พร้อมระบบ Home Automation เริ่ม 3.3 ลบ.
Written by : Som Sawarose Khaisilp
สวัสดีผู้อ่าน Homenayoo ทุกคนค่ะ วันนี้เราจะพาไปชมโครงการ The Teak สาทร-ลุมพินี จากบริษัท Teak Development ทำเลโครงการบนทำเลศักยภาพในซอยศรีบำเพ็ญ ถนนพระราม 4 แขวงช่องนนทรี เขตยานนาวา กทม. เชื่อมต่อใจกลางเมืองอย่างสาทร เดินทางสะดวกสบายใกล้ถนนพระราม 4, ถนนสาทร, ถนนนางลิ้นจี่ และ ทางด่วนเฉลิมมหานคร ใกล้รถไฟฟ้าใต้ดิน MRT 2 สถานี ได้แก่ สถานีลุมพินี และ สถานีคลองเตย
เดอะ ทีค สาทร-ลุมพินี เป็นคอนโด Low-Rise 8 ชั้น พื้นที่โครงการขนาด 0-2-64 ไร่ ห้องพักอาศัย 78 ยูนิต มีห้องพักให้เลือกแบบ 1 Bedroom และ 1 Bedroom Plus ขนาดเริ่มต้น 25.1-44.3 ตร.ม. พร้อมระบบ Home Automation คาดว่าแล้วเสร็จ ธ.ค. 2562
สิ่งอำนวยความสะดวกภายในโครงการครบครัน อาทิ ล็อบบี้สองชั้น, สระว่ายน้ำชั้นดาดฟ้า, ฟิตเนส-พร้อมอุปกรณ์ครบครัน, Co-Working Space, สวนหย่อมขนาดใหญ่, Sala Chilling Lounge, กล้องวงจรปิด, Wifi-Internet, EV Charger, Smart Locker, ที่จอดรถ 30 คัน, ลิฟต์โดยสารจำนวน 2 ตัว, Access Card แบบล็อกชั้น, เจ้าหน้าที่รักษาความปลอดภัย 24 ชม. ราคาเริ่มต้นเพียง 3.3 ล้านบาท ราคาเฉลี่ย 136,000 บาท/ตร.ม.
ลงทะเบียนรับสิทธิพิเศษ คลิก : http://www.theteakcondo.com/
| ชื่อโครงการ | เดอะ ทีค สาทร-ลุมพินี The Teak Sathorn-Lumpini |
| เจ้าของโครงการ | บริษัท ทีค ดีเวลลอปเมนท์ จำกัด / Teak Development |
| เนื้อที่ทั้งหมด | 0-2-64 ไร่ (264 ตารางวา) |
| จำนวนตึก | 1 อาคาร |
| จำนวนชั้น | 8 ชั้น |
| จำนวนห้อง | 78 ยูนิต |
| ลักษณะห้องและขนาดห้อง |
|
| ที่จอดรถทั้งหมด | 30 คัน ไม่รวมจอดซ้อนคัน คิดเป็น 38% ของจำนวนยูนิตโครงการ |
| จำนวนลิฟต์ | ลิฟต์ล็อกชั้น 2 ตัว |
| โซน | เขตยานนาวา |
| ขนส่งสาธารณะ |
|
| รถโดยสารที่ผ่าน | n/a |
| ที่ตั้ง | ซอยศรีบำเพ็ญ ถนนพระราม 4 แขวงช่องนนทรี เขตยานนาวา กรุงเทพมหานคร 10120 |
| กำหนดการ |
|
| ปีที่สร้างเสร็จ | คาดว่าแล้วเสร็จ ธ.ค. 2562 |
| ราคา | เริ่มต้น 3.3 ล้านบาท* (วันเปิดตัว) |
| ราคาเฉลี่ยต่อ ตร.ม |
|
| ค่าส่วนกลางและกองทุน |
|
| สถานที่สำคัญใกล้เคียง |
โรงพยาบาล
สถานศึกษา
อาคารสูง
|
| สิ่งอำนวยความสะดวก |
|
| จุดเด่นของโครงการ | The Teak สาทร-ลุมพินี คอนโดใหม่ บนทำเลที่ดีที่สุดของถนนสาทร-ลุมพินี สิ่งอำนวยความสะดวกครบครัน ห้องพักแต่งครบ เฟอร์นิเจอร์บิวท์อิน วัสดุเกรดพรีเมี่ยม พร้อมระบบ Home Automation และ Smart Locker ตอบโจทย์คนยุคใหม่ ราคาเริ่มต้น 3.3 ล้านบาท |
ที่ตั้งโครงการ
ซอยศรีบำเพ็ญ ถนนพระราม 4 แขวงช่องนนทรี เขตยานนาวา กรุงเทพมหานคร 10120
พิกัด Google Maps : https://goo.gl/maps/8upk3oF8Pnx
พิกัด สำนักงานขาย : https://goo.gl/maps/kbiYHXJsT932
คลิกที่รูป เพื่อดูแผนที่ขนาดใหญ่
The Teak Sathorn-Lumpini ตั้งอยู่ในซอยศรีบำเพ็ญ ทำเลศักยภาพใจกลางเมือง ใกล้ถนนพระราม 4 และสาทร เดินทางได้อย่างสะดวกสบาย ใกล้ MRT สถานีลุมพินี และ คลองเตย ที่นี่จึงแวดล้อมไปด้วยทุกสิ่งที่คุณต้องการสำหรับชีวิตในเมือง ทั้งห้างสรรพสินค้า, คอมมูนิตี้มอลล์, สถานศึกษาทุกระดับชั้น, โรงพยาบาล, โรงภาพยนตร์, สถานบันเทิง และ สวนสาธารณะที่เป็นปอดของกรุงเทพฯ อย่างสวนลุมพินี ก็อยู่ไม่ไกลเกินกว่าระยะเดินสบาย ๆ ให้คุณได้สัมผัสธรรมชาติได้ง่าย และ ใกล้กว่าที่เคยสัมผัส
สำหรับคนไม่ใช้รถ โครงการ The Teak Sathorn-Lumpini อยู่ติดซอยศรีบำเพ็ญ หน้าโครงการมีทั้งรถแท็กซี่ วินมอเตอร์ไซค์ผ่านไปมาตลอดทั้งกลางวันกลางคืนค่ะ ใกล้ MRT สถานีลุมพินี (1.8 กม.จากโครงการ) และ คลองเตย (1 กม.จากโครงการ) นั่งวินมอเตอร์ไซค์เพียง 3-5 นาที ไปลงสถานีรถไฟฟ้า MRT ลุมพินี เพียงสถานีเดียวถึงจุดเชื่อมต่อของรถไฟฟ้า MRT สายสีลมกับ BTS ศาลาแดง ทำให้สามารถเดินทางไปยังใจกลางเมืองจุดต่างๆได้อย่างสะดวกง่ายดาย อย่างสยาม ชิดลม สาทร สีลม พร้อมพงษ์ ทองหล่อ เนื่องจากอยู่ในใจกลางเมืองด้วยกันอยู่แล้วนั่งไปสถานีสองสถานีก็ถึง เช่นจากBTS ศาลาแดง นั่งไปเพียง 2 สถานีก็ถึง สยามพารากอน, สยามเซ็นเตอร์ และเซ็นทรัลเวิลด์แล้วค่ะ
นอกจากนี้บนเส้นนราธิวาส ห่างจากโครงการประมาณ 2.5 กม. จะมี BRT ถนนจันทน์ ที่นั่งไปถึง BTS ช่องนนทรีได้สบายๆ ก็เรียกว่าสำหรับคนไม่ใช้รถก็มีทางเลือกในการเดินทางที่หลากหลายทีเดียว
สำหรับคนใช้รถ โครงการ The Teak Sathorn-Lumpini อยู่ติดซอยศรีบำเพ็ญ ที่สามารถเข้าออกได้หลายเส้นทาง ไม่ว่าจะมาจากทางสาทร, ซอยสวนพลู, ซอยเย็นอากาศ, ถนนนางลิ้นจี่, หรือจากถนนพระราม 4 เข้าซอยงามดูพลี แล้วเลี้ยวเข้าศรีบำเพ็ญ หรือจะเข้าจากซอยถนนเชื้อเพลิงก็ได้ ส่วนเส้นพระราม 3 จะเข้าทางถนนนางลิ้นจี่ หรือ ถนนเชื้อเพลิง ก็สะดวกเช่นเดียวกันค่ะ
ทั้งยังใกล้กับจุดขึ้น-ลงทางด่วนเฉลิมมหานคร ด่านพระราม 4 ใช้ตัดออกนอกเมืองได้อย่างรวดเร็ว เพราะถนนรอบๆจะเชื่อมต่อกันแทบทั้งหมดค่ะ ไม่ว่าจะถนนจันทน์,ถนนนราธิวาส, รัชดาภิเษก, พระราม 3, งามดูพลี, สวนพลู, สาทร, สีลม และพระราม 4 ซึ่งเชื่อมต่อเข้า CBD ชั้นในด้วยกันอย่างอโศก เพลินจิต สยาม ชิดลม อีกที
ถึงจะเป็นถนนในเมืองอยู่แล้ว วิ่งไปไหนมาไหนในเมืองส่วนใหญ่ก็เป็นระยะวิ่งรถสั้นๆก็จริง แต่เพราะเป็นใจกลางเมือง เต็มไปด้วยโรงเรียน โรงพยาบาล อาคารสำนักงานมากมาย บวกกับมีสี่แยกเยอะ ทำให้การจราจรในเวลาเข้าออกค่อนข้างแน่นอยู่ โดยเฉพาะเส้นสาทรและวิทยุตอนเย็นๆนี่ขีดเส้นใต้ไว้เลยค่ะ ถ้าขับรถออกมาเส้นพวกนี้ต้องเผื่อเวลาเดินทางกันดีๆ เพราะตอนเย็นนี่รถติดตลอด ส่วนตัวเราเวลารีบๆโซนนี้นี่ต้องพี่วินมอเตอร์ไซค์เลยค่ะ
สำหรับคนที่ทำงานโซนวงแหวนอุตสาหกรรม จากถนนพระราม 3 วิ่งข้ามแม่น้ำเจ้าพระยาไปวงแหวนอุตสาหกรรมและสมุทรปราการได้
อีกจุดเด่นของ โครงการ The Teak Sathorn-Lumpini คือการที่อยู่ห่างจากจุดขึ้นลงทางด่วนเฉลิมมหานครเพียง 550 ม. ทำให้การเดินทางมาโครงการจากทางด่วนนั้นใช้เวลาโดยประมาณเพียง 2 นาทีเท่านั้น
แยกและถนนสำคัญใกล้เคียงโครงการ
สิ่งอำนวยความสะดวก โครงการ The Teak Sathorn-Lumpini อยู่ติดซอยศรีบำเพ็ญ ที่เชื่อมต่อซอยเย็นอากาศ, สวนพลู, งามดูพลี, ซึ่งเป็นโซนที่พักอาศัยที่อุดมสมบูรณ์ที่สุดซอยนึงในโซนนี้เลยค่ะ เนื่องจากมีโรงเรียน, โรงแรม และแหล่งที่พักอาศัย เป็นซอยที่มีทั้งคนในพื้นที่และคนต่างชาติเยอะ มีร้านอาหารและสิ่งอำนวยความสะดวกใกล้ๆในระยะเดินเยอะมาก และมีความอุดมสมบูรณ์สูง หาของกินได้ทั้งกลางวันกลางคืน
ถัดออกมาที่ถนนนราธิวาส, ถนนพระราม 4 ก็มีห้างอย่าง Makro, Central พระราม 3 และ Community Mall อย่าง The Up Rama 3 ที่เต็มไปด้วยร้านอาหาร ขนมและคาเฟ่มากมาย
ออกมาถนนใหญ่สาทรและสีลม ศูนย์กลางทางธุรกิจของกรุงเทพมหานครซึ่งเต็มไปด้วยโรงแรมห้าดาวและบริษัทชั้นนำต่างชาติ สถาบันการเงิน ธนาคารพาณิชย์ต่างๆ มาเปิดสำนักงานใหญ่ที่นี่ สถานฑูต สถาบันทางวัฒนธรรม ตลอดจนศูนย์การค้าและบรรดาโรงเรียนชั้นนำของประเทศ ในแผนที่แค่ใส่ชื่อสิ่งอำนวยความสะดวก โรงแรมและอาคารสำนักงานบางส่วนมาเท่านั้นนะคะ จริงๆยังมีอาคารสำคัญๆทางประวัติศาสตร์อีกมาก
นอกจากนี้ยังเป็นถนนท่องเที่ยวที่เป็นแหล่งซื้อสินค้าและขายของที่ระลึกสำหรับนักท่องเที่ยวตามบาทวิถีในเวลากลางคืน แถมสองฝั่งถนนใหญ่สีลมก็มีร้านอาหารคุณภาพดีๆและมีคอนเซ็ปร้านเก๋ๆให้ลองไปทานกันเยอะทีเดียว
สถานที่สำคัญใกล้โครงการ
โรงพยาบาล
สถานศึกษา
อาคารสูง
การเดินทาง
วันนี้เรามีภาพการเดินทางโดยรถมาให้ชมกันก่อน เส้นทางการเดินทางตามลูกศรแดง โดยเริ่มเดินทางจาก ถนนสาทร → แยกสาทร → นราธิวาส → เลี้ยวขวาเข้าถนนนราธิวาส → เลี้ยวซ้ายเข้าถนนจันทน์ → เลี้ยวซ้ายเข้าถนนนางลิ้นจี่ → เลี้ยวขวาเข้าถนนเย็นอากาศ → เลี้ยวขวาเข้าถนนศรีบำเพ็ญ→ ตรงมาประมาณ 280 ม.จะเจอ โครงการ The Teak Sathorn-Lumpini อยู่ทางขวามือแล้วค่า
เริ่มเดินทางกันจากบนถนนสาทร มุ่งหน้าไปทางแยก สาทร – นราธิวาส สองฝั่งถนนสาทรก็จะเต็มไปด้วยอาคารสำนักงาน คอนโดมิเนียม ระดับ Luxury และบรรดาโรงแรมเรียงเป็นแถว พอใกล้ถึงแยกสาทร – นราธิวาส เราจะเจอส่วนทางเดินที่เชื่อมต่อระหว่าง BTS ช่องนนทรี กับ BRT สาทร ซึ่งเป็นจุดสังเกตของแยกสาทร – นราธิวาส นี้
เราเลี้ยวขวาเข้าถนนนราธิวาส
พอเลี้ยวเข้าถนนนราธิวาสมาจะเจอ BRT สาทร อยู่ทางขวามือ
ตรงมาผ่าน BRT อาคารสงเคราะห์
ตรงต่อมาจะเจอ BRT เทคนิคกรุงเทพ ฝั่งซ้ายมือจะเป็นรั้วมหาวิทยาลัยเทคโนโลยีราชมงคลกรุงเทพฯ
ตรงมาอีกหน่อยจะเจอ Makro อยู่ทางขวามือ ห้างนี้อยู่ห่างจากที่ตั้งโครงการประมาณ 2 กม.เท่านั้น
ถัดมาเราเลี้ยวซ้ายเข้าถนนจันทน์
ถนนจันทน์เป็นถนนที่เชื่อมต่อไปซอยเย็นอากาศไปยังถนนศรีบำเพ็ญที่ตั้งโครงการ รวมถึงถนนใหญ่เส้นสำคัญในโซนนี้อย่างถนนพระราม 4, ถนนพระราม 3 และสาทร ได้
เราตรงมาจนถึงสามแยกที่มีถนนนางลิ้นจี่ตัดผ่านแล้วเลี้ยวซ้ายไปถนนนางลิ้นจี่
บนถนนนางลิ้นจี่นี่ร้านอาหาร Community Mall และสิ่งอำนวยความสะดวกเยอะมากนะคะ เราเลี้ยวขวาเข้าถนนเย็นอากาศได้เลย จุดสังเกตคือจะมีปั๊มบางจากอยู่ที่ปากซอย ส่วน Tops Market นี่ย้ายไปนางลิ้นจี่ซอย 3 แล้วนะคะ
เราตรงไปบนถนนเย็นอากาศ เป็นถนนสองเลน ถนนเก่าแก่ของกรุงเทพที่เชื่อมต่อใจกลางเมืองอย่างสาทร , พระราม 4, ถนนใหญ่นราธิวาส, จุดขึ้นลงทางด่วนเฉลิมมหานคร ในซอยมีบ้านผู้ดีเก่าหลังใหญ่อยู่หลายหลัง พร้อมกับร้านอาหารมากมายค่ะ เป็นซอยที่อยู่ห่างจากที่ตั้งโครงการเพียง 280 เมตรเท่านั้น เรียกว่าเดินมาหาอะไรกินได้สบายๆ
ตรงไปหน่อยจะเห็นโรงเรียนนานาชาติการ์เด้นอยู่ฝั่งขวามือ
และตรงไปอีกหน่อยจะเจอร้านกาแฟทางฝั่งซ้าย
ตรงมาสุดซอยเย็นอากาศก็จะเป็นซอยศรีบำเพ็ญแล้วค่ะ เป็นซอยที่เชื่อมต่อระหว่างถนนสาทรและถนนเชื้อเพลิง ถ้าเราเลี้ยวซ้ายจะไปออกสาทร เลี้ยวขวาไปถนนเชื้อเพลิงค่ะ ส่วนเราเลี้ยวขวาไปโครงการนะคะ
ซอยศรีบำเพ็ญเป็นถนนสองเลน ภายในซอยส่วนใหญ่เป็นที่พักอาศัยประเภทบ้านเดี่ยวหลังใหญ่, อพาร์ทเม้นท์ และคอนโดมิเนียม
จากถนนเย็นอากาศเลี้ยวซ้ายมาบนซอยศรีบำเพ็ญประมาณ 280 เมตร ก็จะเจอรั้วล้อมที่ดินโครงการ The Teak สาทร-ลุมพินี อยู่ทางฝั่งขวามือแล้วค่ะ บรรยากาศรอบๆโครงการจะเป็นอย่างไร ไปดูกันเลย
รอบโครงการ
โครงการ The Teak สาทร-ลุมพินี อยู่ติดถนนซอยศรีบำเพ็ญ ซึ่งเป็นถนนสองเลน โดยโครงการจะอยู่ฝั่งขาเข้า ซึ่งเป็นฝั่งที่วิ่งตรงไปออกถนนใหญ่สาทร ส่วนอีกฝั่งจะวิ่งไปออกถนนเชื้อเพลิงค่ะ
รอบโครงการเป็นอาคารที่พักอาศัยแนวราบแทบทุกด้าน ยกเว้นทิศตะวันตกที่อยู่ติด ศรีบำเพ็ญคอนโดโฮม เป็นคอนโดสูง 12 ชั้น, ทิศใต้ติดสวนขนาดใหญ่ ฝั่งตรงข้ามโครงการทางทิศเหนือเป็นกำแพงของบ้านหลังใหญ่สี่ชั้น ที่ล้อมรอบไปด้วยสวนและต้นไม้ใหญ่ ทิศตะวันออกเฉียงเหนือหรือเยื้องๆฝั่งตรงข้ามเป็นบ้านหลังใหญ่สูง 3-4 ชั้นเช่นกัน รอบๆโครงการจะเป็นอย่างไรไปดูกันเลยค่ะ
ที่ดินโครงการ The Teak สาทร-ลุมพินี ปัจจุบันเป็นตึกแถว 4 ชั้นที่กำลังจะถูกทุบและเคลียร์พื้นที่เพื่อสร้างเป็นโครงการ โดยทางโครงการปัจจุบันได้เอารั้วมาล้อมเอาไว้เรียบร้อย
ทางเข้าออกโครงการอยู่ทางทิศเหนือ โดยโครงการอยู่ติดถนนซอยศรีบำเพ็ญ ซึ่งเป็นถนนสองเลน โดยโครงการจะอยู่ฝั่งขาเข้า ซึ่งเป็นฝั่งที่วิ่งตรงไปออกถนนใหญ่สาทร ส่วนอีกฝั่งจะวิ่งไปออกถนนเชื้อเพลิงค่ะ
ฝั่งตรงข้ามโครงการทางทิศเหนือเป็นกำแพงของบ้านหลังใหญ่สี่ชั้น ที่ล้อมรอบไปด้วยสวนและต้นไม้ใหญ่
ทิศตะวันออกเฉียงเหนือหรือเยื้องๆฝั่งตรงข้ามเป็นบ้านหลังใหญ่สูง 3-4 ชั้นเช่นกัน
ติดที่ดินโครงการทางทิศตะวันออกเป็นบ้านเดี่ยว 2 ชั้น
หน้าที่ดินโครงการจากอีกมุมค่ะ
ติดที่ดินโครงการทางทิศตะวันตก อยู่ติด ศรีบำเพ็ญคอนโดโฮม
ศรีบำเพ็ญคอนโดโฮม เป็นคอนโดสูง 12 ชั้น จะเห็นว่ามีพื้นที่ลานจอดรถคั่นตัวตึกกับโครงการ The Teak สาทร-ลุมพินี เอาไว้ ทำให้ไม่อยู่ในระยะประชิดจนเกินไป
สำนักงานขาย
สำนักงานขายของโครงการ The Teak สาทร-ลุมพินี จะอยู่ในซอยเมฆสวัสดิ์ โดยเข้ามาภายในซอยประมาณ 120 เมตร จะเจอสำนักงานขายโครงการทางฝั่งซ้ายมือ
ภายนอกสำนักงานขายโครงการ The Teak สาทร-ลุมพินี ตกแต่งมาตามคอนเซ็ปเดียวกับโครงการ ตัวอาคารใช้โทนสีเอิร์ธโทน ซึ่งเป็นโทนสีธรรมชาติอย่างสีน้ำตาลเหมือนสีของไม้เป็นหลัก และกระจกบานสูงภายใน
ภายในสำนักงานขายโครงการ จะมีเคาน์เตอร์ประชาสัมพันธ์ที่จะมีเจ้าหน้าที่ฝ่ายขายของโครงการนั่งอยู่ด้วย ผู้สนใจสามารถเข้ามาติดต่อขอข้อมูลโครงการหรือชมห้องตัวอย่างได้ทุกวัน ตั้งแต่ 9.00-18.00 น.
ภายในสำนักงานขายจัดที่นั่งรับรองมาให้เป็นชุดโซฟา และโต๊ะเก้าอี้ สามารถรับรองลูกค้าได้หลายจุด
ตัวโครงการ
เดอะ ทีค สาทร-ลุมพินี เป็นคอนโด Low-Rise 8 ชั้น พื้นที่โครงการขนาด 0-2-64 ไร่ ห้องพักอาศัย 78 ยูนิต โครงการมีห้องพักให้เลือกแบบ 1 Bedroom และ 1 Bedroom Plus ขนาดเริ่มต้น 25.1-44.3 ตร.ม. พร้อมระบบ Home Automation คาดว่าแล้วเสร็จ ธ.ค. 2562
โมเดลโครงการ เดอะ ทีค สาทร-ลุมพินี ค่ะ ตัวอาคารใช้โทนสีเอิร์ธโทน ซึ่งเป็นโทนสีธรรมชาติอย่างสีน้ำตาลเหมือนสีของไม้ สีเทา ดำ ครีม จากหิน เป็นต้น ด้านหน้าโครงการตกแต่งด้วยไม้ และกระจกกันเสียง ช่วยกันเสียงรบกวนจากถนนภายนอก

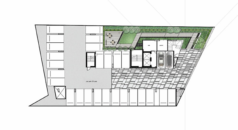
ผังชั้นล่างหรือชั้น 1 ของโครงการอยู่ติดถนนซอยศรีบำเพ็ญ เข้ามาขวามือจะเป็นสวนหย่อมพร้อมทางเดินและลานพักผ่อนในโครงการ และจะมีทางเข้าไปโถงบันไดเพื่อขึ้นไปล็อบบี้ของอาคารที่ชั้น 2 และตรงเข้ามาจะมีทางเข้าโถงลิฟต์โดยสาร 2 ตัว ขึ้นไปด้านในอาคาร ที่จอดรถอยู่ใต้อาคารชั้น 1 มี EV Charger มาให้ และสามารถจอดรถได้ 30 คัน ไม่รวมจอดซ้อนคัน คิดเป็น 38% ของจำนวนยูนิตโครงการ
ภาพจำลองบรรยากาศด้านนอกโครงการ เดอะ ทีค สาทร-ลุมพินี
ภาพจากโมเดลโครงการค่ะ ทางเข้าออกของโครงการอยู่ติดถนนศรีบำเพ็ญ จากด้านหน้าโครงการจะเห็นพื้นที่สีเขียวด้านข้างโครงการ และ Lobby ผนังกระจกใสที่ชั้น 2
ติดที่ดินโครงการทางทิศตะวันตก อยู่ติด ศรีบำเพ็ญคอนโดโฮม คอนโด 12 ชั้น จะเห็นว่าการออกแบบอาคารด้านนี้เป็นผนังทึบเป็นส่วนใหญ่ค่ะ ห้องที่อยู่ทิศนี้ส่วนใหญ่จะเป็นห้องขนาดเล็กสุด และจะจัดวิวระเบียงหันหลบเข้าด้านในและมี Set Back หรือระยะถอยร่นเข้าไป ทำให้มีระยะห่างจากคอนโดด้านข้างนั่นเอง
ติดที่ดินโครงการทางทิศตะวันออกเป็นบ้านเดี่ยว 2 ชั้น เนื่องจากวิวโล่ง ไม่มีอาคารสูงบัง จึงหันหน้าต่างและระเบียงออกมาทางทิศนี้
ส่วนด้านหลังอาคารค่ะ หันหน้าไปทางทิศใต้ซึ่งวิวโล่งเพราะติดสวนขนาดใหญ่และอาคารแนวราบ หน้าต่างและระเบียงห้องจึงเปิดออกมาทางทิศนี้เช่นกัน
ภาพจำลองบรรยากาศทางเข้าอาคารชั้น 1 ที่ด้านในจะมีบันไดโค้งขึ้นไปยังส่วนล็อบบี้ชั้น 2 และจะเห็นพื้นที่สวนและลานพักผ่อนด้านข้างอาคาร
ภาพจำลองบรรยากาศลานพักผ่อนในสวนด้านข้างอาคาร มี Pavillion หรือศาลากันแดดกันฝนพร้อมชุดเก้าอี้ให้มานั่งเล่นพักผ่อนเรียบร้อย

ผังชั้น 2 ของอาคาร ส่วนยูนิตที่พักอาศัยเริ่มที่ชั้นนี้ค่ะ โดยมีความหนาแน่นยูนิตที่ 9 ยูนิตต่อชั้น โดยจะมีประตูพร้อม Access Card ผ่านเข้าออกเพื่อความเป็นส่วนตัวของผู้พักอาศัยในชั้นนี้ค่ะ ความพิเศษของชั้น 2 คือจะมีล็อบบี้ของโครงการอยู่ โดยมีที่นั่งพักผ่อนและล็อกเกอร์สำหรับเก็บของ และมีห้องฟิตเนสอยู่ที่ชั้นนี้ด้วย
ส่วนตัวเราจะเลือกอยู่ชั้นนี้ค่ะ เพราะชอบที่ใกล้ส่วนกลางอย่างห้องฟิตเนสและล็อบบี้ ใช้บันไดขึ้นลงได้เหมือนบ้านเลย และมีความหนาแน่นยูนิตตำ่ แต่การอยู่ชั้น 2 นี้จะได้ยินเสียงรถราจากถนนมากกว่าชั้นบนๆเพราะใกล้ถนนมากกว่านั่นเอง
แต่จะเห็นจากการจัดผังว่าจัดพื้นที่ส่วนกลางอย่างล็อบบี้ไว้ด้านหน้าติดถนน และส่วนยูนิตที่พักอาศัยอยู่ถัดเข้ามาด้านใน ทำให้ห่างจากเสียงรบกวนจากถนนมาพอสมควร เรียกว่าคนที่เน้นใกล้ส่วนกลางและไม่ซีเรียสเรื่องเสียงจากถนนหรือวิวชั้น 2 ก็น่าจะชอบชั้นนี้กันค่ะ
ภาพจำลองบรรยากาศส่วนล็อบบี้ของโครงการ ตกแต่งมาอย่างหรูหราด้วยพื้นและผนังลายหินอ่อน จัดที่นั่งพักผ่อนมาหลายจุดด้วยเฟอร์นิเจอร์โทนสีเทาและเบจ จะเห็นว่าข้างโถงลิฟต์ทางฝั่งซ้ายมือของภาพจะมีส่วน Mail room หรือมุมตู้จดหมายอยู่
ภาพจำลองบรรยากาศส่วนห้องฟิตเนสของโครงการ พื้นลายไม้, ผนังกระจกเห็นวิวด้านนอก และผนังกระจกเงาทำให้ห้องดูกว้างขึ้น
ผังชั้น 3-7 เป็น Typical Floor Plan ของอาคารก็คือจัดผังแบบเดียวกันค่ะ แต่มีความหนาแน่นยูนิตเพิ่มขึ้นเป็น12 ยูนิตต่อชั้น ส่วนด้านหน้าอาคารหรือขวามือของผังด้านบนหันหน้าไปทางทิศเหนือหรือถนนซอยศรีบำเพ็ญ ใน 3 ห้องจะเห็นว่ามีห้องที่ผนังเฉียงอยู่ด้านนี้ 2 ห้อง เป็นห้องขนาดเล็กสุดของโครงการคือขนาด type A 25.1 และ type B 28.8 ตร.ม.
ทิศตะวันตกหรือห้องสีครีมด้านบน 2 ห้อง (Type E 32.35 และ Type H 35.5 ตร.ม.) จะหันหน้าไปทางคอนโดศรีบำเพ็ญซึ่งสูง 12 ชั้น ซึ่งจริงๆก็ช่วยบังแดดช่วงบ่ายทางทิศตะวันตกให้โครงการได้ดี แต่ข้อเสียคือวิวชนอาคารนั่นเอง แต่ผังห้อง Type H 35.5 ตร.ม. มีระยะห่างจากอาคารสูงอีกฝั่งค่อนข้างเยอะ และมีการจัดผังเป็นห้องหน้ากว้างที่ให้ความรู้สึกกว้างขวางดี
ทิศตะวันออก เป็นหนึ่งในทิศที่วิวไม่ชนตึกสูง เพราะเป็นอาคารแนวราบอย่างบ้านเดี่ยวและห้องแถว และได้แสงอ่อนๆตอนเช้าจากทิศตะวันออก ผังห้องเป็นห้องแบบ 1 ห้องนอน Type C 31.72 ตร.ม.
ทิศใต้ หันไปทางบ้านเดี่ยวหลังใหญ่ 2 ชั้นล้อมด้วยสวน เป็นหนึ่งในทิศที่วิวโล่งที่สุด ทำให้โครงการจัดห้องไซส์ใหญ่ไว้ที่ห้องนี้ โดยห้องใหญ่สุดและรองใหญ่สุด (Type I 44.3, Type F 34 ตร.ม.) จะหันไปทางทิศนี้ โดยมีผนังปาดเฉียงอย่างที่เห็น และจะมีห้อง Type D 31.4 ตร.ม.ที่เป็นห้องที่อยู่ห่างจากโถงลิฟต์ที่สุดอยู่ แต่ได้วิวที่เงียบสงบและเป็นห้องมุมที่มีข้อดีคืออยู่ติดห้องด้านข้างห้องเดียว
ผังชั้น 8 เป็นชั้นที่พักอาศัยชั้นสูงที่สุดของโครงการ การจัดผังยูนิตที่พักอาศัยเป็นแบบเดียวกันกับชั้น 2 ค่ะ ด้วยระยะถอยร่นอาคารทำให้เหลือยูนิตที่พักอาศัย 9 ยูนิต และมีระยะห่างจากถนนขึ้นมาด้านบน ทำให้มีความสงบและห่างจากเสียงรบกวนที่สุด ในขณะเดียวกันก็เห็นวิวไกลที่สุดและใกล้พื้นที่ส่วนกลางชั้นดาดฟ้าที่มีสวนหย่อมและสระว่ายน้ำที่สุดด้วย
ผังชั้นดาดฟ้าของโครงการจะมีสวนหย่อมและสระว่ายน้ำ พร้อมพื้นที่นั่งพักผ่อนในสวนและข้างสระมาให้โดยรอบ ข้อดีคือคนในโครงการสามารถขึ้นมาใช้งานพื้นที่ส่วนกลางพร้อมรับชมวิวจากชั้นบนสุดได้ทุกคน ต่างจากโครงการคอนโด Low Rise ทั่วไปที่มักจะเอาสระว่ายน้ำไว้ชั้นล่างๆ เพราะประหยัดค่าโครงสร้างมากกว่า นี่ถือเป็นข้อดีของโครงการอีกข้อค่ะ
โมเดลชั้นดาดฟ้าของโครงการจะมีสวนหย่อมและสระว่ายน้ำ
ภาพจำลองบรรยากาศส่วนสระว่ายน้ำชั้นดาดฟ้าและที่นั่งพักผ่อนริมสระของโครงการ

จากโมเดลจะเห็นว่าสระว่ายน้ำจะอยู่ฝั่งด้านหน้าโครงการแบบนี้
ภาพจำลองบรรยากาศส่วนสระว่ายน้ำชั้นดาดฟ้าและที่นั่งพักผ่อนริมสระของโครงการ มองเข้าไปจะเห็นส่วนที่พักผ่อนในร่มอยู่อีกจุด มีหลังคากันแดดกันฝนมาให้
ภาพจำลองบรรยากาศส่วนสระว่ายน้ำชั้นดาดฟ้าและที่นั่งพักผ่อนริมสระของโครงการ มองออกไปเห็นวิวเมืองฝั่งถนนพระราม 4 และสาทร
ภาพจำลองบรรยากาศโดยรวมส่วนสระว่ายน้ำชั้นดาดฟ้าและที่นั่งพักผ่อนริมสระของโครงการ
ภาพจำลองบรรยากาศสวนชั้นดาดฟ้าและที่นั่งพักผ่อนในสวนของโครงการ
แบบห้อง
โครงการ The Teak สาทร-ลุมพินี มีแบบห้องให้เลือก 2 แบบ ดังนี้
ผังห้องแบบ 1 ห้องนอน Type A ขนาด 25.1 ตร.ม.
ผังห้องแบบ 1 ห้องนอน Type B ขนาด 28.8 ตร.ม.
ผังห้องแบบ 1 ห้องนอน Type C ขนาด 31.72 ตร.ม.

ภาพจำลองบรรยากาศห้องแบบ 1 ห้องนอน Type C ขนาด 31.72 ตร.ม.
ผังห้องแบบ 1 ห้องนอน Type E ขนาด 32.35 ตร.ม.
ผังห้องแบบ 1 ห้องนอน Type F ขนาด 34.0 ตร.ม.
ผังห้องแบบ 1 ห้องนอน Type A ขนาด 25.1 ตร.ม.
ผังห้องแบบ 1 ห้องนอน (Plus) Type I ขนาด 44.3 ตร.ม.
ห้องตัวอย่าง
ห้องตัวอย่างที่เราพาไปชมกันห้องแรกเป็นห้อง 1 ห้องนอน Type C ขนาด 31.72 ตร.ม. เป็นแบบห้องยอดนิยมของแบรนด์ Teak ที่มีจำนวนห้องเยอะที่สุดในโครงการค่ะ ตัวห้องแยกรูปแบบการใช้งานเป็นสัดส่วน เข้าห้องมาเป็นส่วนครัวหรือมุมเตรียมอาหารแบบเปิดโล่ง ถัดเข้าไปเป็น Living Area สำหรับนั่งเล่นพักผ่อน
ส่วนห้องนอนกั้นผนังปูน มีประตูบานเปิดปิดมิดชิด เป็นส่วนตัว โดยทางฝั่งขวามือเป็น Master Bedroom ภายในห้องมี Walk in Closet และ ห้องน้ำที่แยกส่วนแห้งและส่วนอาบน้ำให้เรียบร้อย เชื่อมต่อกันกับระเบียง กั้นห้องเก็บคอมเพรสเซอร์แอร์ มีประตูปิดแยกไว้อีกฝั่ง ฟังก์ชั่นโดยรวมของห้องนี้ ตอบโจทย์การอยู่อาศัยแบบครอบครัวในเมืองได้เป็นอย่างดีค่ะ
โครงการขายแบบ Fully Furnished พร้อมโดยตัวห้องจะมาพร้อมกับเฟอร์นิเจอร์บิวท์อิน, ชุดครัว, ชุดสุขภัณฑ์, ราวบังม่าน, เฟอร์นิเจอร์ลอยตัว, ระบบ Home Automation และเครื่องปรับอากาศติดตั้งมาให้ทุกห้องค่ะ
ห้องตัวอย่างเจาะช่องเท่าขนาดประตูจริงมาให้ดูระยะใช้งาน ของจริงจะเป็นประตูบานไม้สำเร็จพร้อม Digital Door Lock ของ Samsung หรือแบรนด์เทียบเท่า ติดตั้งมาให้เรียบร้อย
เปิดประตูห้องเข้ามา จะเจอกับส่วนครัวและส่วนห้องรับประทานอาหารเป็นส่วนแรก เชื่อมต่อกับส่วนห้องนั่งเล่น

มองกลับไปที่ประตูทางเข้าห้อง จะเห็นระยะใช้งานครัวสบายๆ ความสูงเพดานอยู่ที่ 2.5 เมตร ส่วนผนังห้องพักมีโปรโมชั่นติดวอลเปเปอร์มาให้ได้ตามที่เห็น พื้นห้องเป็นไวนิลลายไม้สีอ่อน
ที่ผนังห้องใกล้ประตูทางเข้าห้อง จะมีแผงระบบ Home Automation ติดมาให้ทุกห้อง ซึ่งทำให้เราสามารถควบคุมเปิดปิด ไฟในห้องแต่ละจุด, ทีวี และเครื่องปรับอากาศจากมือถือได้ โดยสามารถปรับอุณหภูมิและเปิดปิดได้จากมือถืออย่างที่เห็น มี Option เพิ่มอีกหลายอย่าง สามารถดาวน์โหลดแอพเพิ่มได้
ติดประตูทางเข้าห้อง ทำตู้เก็บของและชั้นลอยพร้อมหน้าบานปิดสูงจรดเพดานมาให้ดูเป็นไอเดีย จะมีส่วนชั้นเก็บของด้านบนและชั้นเก็บรองเท้าด้านล่าง และเคาน์เตอร์วางของตรงกลางช่วยเพิ่มพื้นที่ใช้สอยได้ดี
ติดประตูทางเข้าห้องอีกฝั่งนึงจะเป็นชุดครัว Built in มาให้ได้ตามที่เห็นค่ะ เป็นชุดครัวพร้อมตู้เก็บของด้านบนล่าง เราเปิดตู้ให้ดูจะเห็นว่าเปิดปิดแบบบานเปิดทั้งหมด สามารถเก็บของใช้ พวกจาน-ชาม-ถ้วย หรือเครื่องปรุง ได้เยอะพอสมควร เว้นช่องให้วางตู้เย็น ความกว้างประมาณ 80 ซม.
ท้อปครัวเป็นหินสังเคราะห์สีขาว พร้อมติด Back Splash หรือผนังกันเปื้อนมาให้เรียบร้อยทำให้เช็ดล้างทำความสะอาดได้ง่าย
อ่างล้างจานเป็นอ่างสแตนเลสทรงสี่เหลี่ยม ไม่มีที่พักจานด้านข้าง เราเทียบขนาดมือให้เห็นระยะใช้งาน ก็อกน้ำเป็นโครเมียมทรงโค้งหมุนไปมาซ้ายขวาได้
เตาไฟฟ้าแบบ 2 หัว พร้อมเครื่องดูดควันของ TEKA ติดตั้งมาเรียบร้อย
ถัดจากชุดครัวมาเป็นโต๊ะรับประทานอาหารแบบเข้ามุมพร้อมเก้าอี้แบบ 2 ที่นั่ง ได้ตามที่เห็น
ถัดมาเป็นส่วนห้องนั่งเล่นติดหน้าต่าง ระยะดูทีวีจากโซฟาประมาณ 2 เมตร พร้อมมี Built in เป็นมุมทำงานมาให้
เครื่องปรับอากาศในห้องนั่งเล่นติดมาให้ได้ตามที่เห็น Sideboard เป็นชั้นไม้สีเข้ม มีช่องเก็บของพร้อมหน้าบานปิด ส่วนที่วีแขวนผนังมาให้ดูเป็นไอเดีย
วางโซฟา Love Seat ขนาด 2 ที่นั่ง บุผ้าสีเทามีพนักและที่วางแขน ไม่รวมหมอนอิงมาให้ ของจริงได้ตามที่เห็น
พิเศษคือติดหน้าต่างบานสูงแบบ Full Height พร้อมหน้าต่างบานกระทุ้งมุมซ้ายบน จะมีชุดโต๊ะทำงาน Built in มาให้เต็มความกว้างผนังพร้อมชั้นวางของด้านข้างและเพดานฝังไฟ LED ได้ตามที่เห็น ใช้วางของ นั่งทำงานหรือนั่งทำการบ้านได้ดีค่ะ ส่วนเก้าอี้ก็ใช้ได้ทั้งกับโต๊ะทำงานตัวนี้ และโต๊ะอาหารเวลารับประทานอาหาร
ที่โต๊ะมีลิ้นชักมาให้เยอะอย่างที่เห็น ใช้เก็บของได้เยอะดีค่ะ
ถัดจากห้องนั่งเล่น ส่วนห้องนอนมีประตูบานเลื่อนไม้แบบ 3 บานกั้นเป็นสัดส่วน พอเป็นบานไม้ก็ได้บรรยากาศที่เป็นสัดส่วนมากขึ้น ต่างกับฉากกั้นกระจกใสนะคะ จะเห็นว่าเป็นบานเลื่อนแบบแขวนรางบน ทำให้ที่พื้นไม่มีรางเลื่อนประตูขวาง เดินได้สบายเท้าไม่ต้องกลัวสะดุด
ภายในห้องนอนวางเตียง 5 ฟุตมาให้ ของจริงได้ฐานเตียงตามที่เห็น ไม่รวมฟูก หมอนผ้าห่ม และจะมีประตูเปิดไประเบียง และมีห้องน้ำในห้องนอน เดี๋ยวเราพาไล่ดูกันไปทีละส่วนนะคะ
ปลายเตียงพอไม่มีรางบานเลื่อนก็มีพื้นที่เดินไปมาได้สบายๆแบบนี้
จากในห้องนอนจะมีประตูบานเลื่อนเปิดออกไประเบียงได้อยู่ ตัวประตูลูกฟักเป็นกระจกเขียวตัดแสง บานเลื่อน กรอบประตูเป็นอลูมิเนียมสีดำ
ข้างเตียงฝั่งติดระเบียงมีระยะเดินไปมาประมาณ 20 cm.
พื้นระเบียงปูกระเบื้องเซรามิกผิวด้านสีเทา ราวกันตกเป็นกระจกเทมเปอร์แบบเปลือย พื้นที่ระเบียงกว้างพอยืนรับวิว-จิบกาแฟตอนเช้า, จัดเป็นมุมอ่านหนังสือ หรือจะจัดเป็นสวนเล็กๆเพิ่มพื้นที่สีเขียวให้กับห้องพักก็สามารถทำได้
ด้านมุมขวาของระเบียงห้อง แยกห้องเก็บคอมเพรสเซอร์มีประตูปิดกั้นแยกเป็นสัดส่วน และแขวนแอร์คอมเพรสเซอร์มาให้ทั้ง 2 อัน ทำให้ใช้พื้นที่ใต้แอร์คอมเพรสเซอร์ได้ และเดินท่อระบายน้ำที่ระเบียงมาให้เรียบร้อย
มองไปทางอีกฝั่งของห้องเป็นทางเดินไปห้องน้ำจากในห้องนอน ทำ Built in ตู้เสื้อผ้ามาให้ทั้งสองฝั่ง
ระหว่างเตียงกับตู้เสื้อผ้า มีพื้นที่พอวางโต๊ะข้างเตียงได้แบบกำลังดี
ตู้เสื้อผ้า Built in มาให้ 2 ฝั่ง ฝั่งนึงกว้างประมาณ 1 เมตร ทำให้ได้ตู้เสื้อผ้าความกว้างรวมประมาณ 2 เมตร ตู้เสื้อผ้าของจริงเป็นหน้าบานทึบนะคะ และตู้ฝั่งนี้ของจริงที่ได้จะเว้นส่วนลิ้นชักด้านนึงไว้ เพื่อให้สามารถแขวนชุดเดรสได้
ถัดมาจะเป็นประตูห้องน้ำในห้องนอนค่ะ เหนือประตูห้องน้ำติดเครื่องปรับอากาศมาให้ ของจริงได้ตามนี้
ห้องน้ำมีระยะใช้งานสบายๆค่ะ พื้นและผนังห้องน้ำใช้กระเบื้อง homogeneous tile ลายหินอ่อนสีขาวขีดเทาดูหรูหรา ฟังก์ชั่นห้องน้ำแยกส่วนแห้งและส่วนเปียก โดยกั้นฉากกั้นส่วนอาบน้ำเข้ามุมมาให้ครบ สุขภัณฑ์ภายในห้องน้ำของ Kohler

ผนังห้องน้ำปูกระเบื้องลายหินอ่อนมาให้จรดเพดาน ติดไฟดาวน์ไลท์
ถัดมาเป็นตำแหน่งของโถสุขภัณฑ์ ใช้ของ Kohler ติดตั้งอุปกรณ์ให้ครบชุดทั้งสายฉีดชำระ, ราวแขวนผ้าเช็ดตัวและที่แขวนทิชชู่สแตนเลส ด้านหลังโถสุขภัณฑ์มี Low Wall มาให้วางของได้
เคาน์เตอร์อ่างล้างมือทำมาให้กว้างดีค่ะ และติดเครื่องทำน้ำร้อนมาให้เรียบร้อย และติดกระจกเงามาให้ ของจริงได้ตามนี้
เทียบขนาดฝ่ามือให้เห็นระยะใช้งานอ่างล้างมือค่ะ
ส่วนพื้นที่อาบน้ำกั้นกระจกเทมเปอร์มาให้ เปิดปิดแบบบานเปิด มือจับรูปตัว U ด้านนอกใช้แขวนผ้าเช็ดตัวได้ พื้นที่อาบน้ำมีพื้นที่ใช้สอยพอยืนอาบน้ำได้สบาย ไม่อึดอัด
ชุดฝักบัวของ Kohler พร้อมมี Rain Shower มาให้ด้านบนด้วย และมีเจาะช่องที่ผนังมาให้ใช้วางสบู่แชมพูได้
ห้องตัวอย่างที่เราพาไปชมกันห้องที่สองเป็นห้อง 1 ห้องนอน (Plus) Type I ขนาด 44.3 ตร.ม.เป็นแบบห้องที่มีระเบียงวางตัวเฉียงตามฟอร์มอาคาร แต่พื้นที่ใช้สอยในห้องเป็นสี่เหลี่ยม ทำให้สามารถใช้งานได้เต็มพื้นที่ พิเศษคือมีการกั้นห้องด้วยฉากกั้นกระจกเพิ่มมาให้ สามารถใช้เป็นห้องอเนกประสงค์หรือห้องนอนเล็กได้สบายๆ
เข้าห้องมาจะเจอส่วนครัวเปิด, ห้องรับประทานอาหารและห้องนั่งเล่นติดระเบียงก่อน ถัดเข้าไปเป็นส่วนห้องอเนกประสงค์และห้องนอนที่มีประตูเปิดไปส่วนห้องน้ำได้ เป็นห้องที่มีความยืดหยุ่นสูง เหมาะสำหรับการอยู่อาศัยระยะยาวเพราะสามารถปรับใช้งานได้หลากหลายสไตล์
โครงการขายแบบ Fully Furnished พร้อมโดยตัวห้องจะมาพร้อมกับเฟอร์นิเจอร์บิวท์อิน, ชุดครัว, ชุดสุขภัณฑ์, ราวบังม่าน, เฟอร์นิเจอร์ลอยตัว, ระบบ Home Automation และเครื่องปรับอากาศติดตั้งมาให้ทุกห้องค่ะ
เปิดประตูห้องเข้ามา จะเจอกับส่วนครัวและส่วนห้องรับประทานอาหารเป็นส่วนแรก เชื่อมต่อกับส่วนห้องนั่งเล่น
มองกลับไปที่ประตูจะมีมุมที่ใช้เป็น Foyer หรือโถงทางเข้าห้องที่ใช้วางของ ส่องกระจก ใส่รองเท้าได้แบบกำลังเหมาะ
ตรงข้ามประตูทางเข้าห้อง ทำตู้เก็บของและชั้นลอยพร้อมหน้าบานปิดสูงจรดเพดานมาให้ดูเป็นไอเดีย จะมีส่วนชั้นเก็บของด้านบนและชั้นเก็บรองเท้าด้านล่าง และเคาน์เตอร์วางของตรงกลางช่วยเพิ่มพื้นที่ใช้สอยได้ดี
ติดประตูทางเข้าห้องอีกฝั่งนึงจะเป็นชุดครัว Built in รูปตัว L มาให้พร้อมชุดโต๊ะรับประทานอาหารแบบ 2 ที่นั่งได้ตามที่เห็นค่ะ
เป็นชุดครัวรูปตัว L พร้อมตู้เก็บของด้านบนล่าง เราเปิดตู้ให้ดูจะเห็นว่าเปิดปิดแบบบานเปิดทั้งหมด สามารถเก็บของใช้ พวกจาน-ชาม-ถ้วย หรือเครื่องปรุงได้เยอะพอสมควร เว้นช่องให้วางตู้เย็น ความกว้างประมาณ 80 ซม.
ท้อปครัวเป็นหินสังเคราะห์สีขาว พร้อมติด Back Splash หรือผนังกันเปื้อนมาให้เรียบร้อยทำให้เช็ดล้างทำความสะอาดได้ง่าย
อ่างล้างจานเป็นอ่างสแตนเลสทรงสี่เหลี่ยม ไม่มีที่พักจานด้านข้าง เราเทียบขนาดมือให้เห็นระยะใช้งาน ก็อกน้ำเป็นโครเมียมทรงโค้งหมุนไปมาซ้ายขวาได้
เตาไฟฟ้าแบบ 2 หัว พร้อมเครื่องดูดควันของ TEKA ติดตั้งมาเรียบร้อย
ถัดจากชุดครัวมาเป็นโต๊ะรับประทานอาหารแบบเข้ามุมพร้อมเก้าอี้แบบ 2 ที่นั่ง ได้โต๊ะเก้าอี้ตามที่เห็น ระยะถอยเข้าออกสบายๆ
ถัดมาเป็นส่วนห้องนั่งเล่นติดระเบียง ระยะดูทีวีจากโซฟาประมาณ 2.5 เมตร สามารถวางทีวีจอใหญ่ประมาณ 60-70 นิ้วได้สบายๆ
วางโซฟา 3 ที่นั่งรูปตัว L บุผ้าสีเทามีพนักและที่วางแขน ไม่รวมหมอนอิงมาให้ ของจริงได้ตามที่เห็น ผนังด้านหลังติดกระจกเงามาให้ดูเป็นไอเดียทำให้ห้องดูกว้างขึ้น ของจริงเป็นผนังติดวอลเปเปอร์ และติดเครื่องปรับอากาศมาให้ตามที่เห็น
ส่วนห้องนั่งเล่นอยู่ติดกับระเบียงค่ะ โดยตัวประตูลูกฟักเป็นกระจกเขียวตัดแสง บานเลื่อน กรอบประตูเป็นอลูมิเนียมสีดำ

พื้นระเบียงปูกระเบื้องเซรามิกผิวด้านสีเทา ราวกันตกเป็นกระจกเทมเปอร์แบบเปลือย พื้นที่ระเบียงกว้างพอยืนรับวิว-จิบกาแฟตอนเช้า, จัดเป็นมุมอ่านหนังสือ หรือจะจัดเป็นสวนเล็กๆเพิ่มพื้นที่สีเขียวให้กับห้องพักก็สามารถทำได้
ด้านมุมขวาของระเบียงห้อง แยกห้องเก็บคอมเพรสเซอร์มีประตูปิดกั้นแยกเป็นสัดส่วน และแขวนแอร์คอมเพรสเซอร์มาให้ทั้ง 2 อัน ทำให้ใช้พื้นที่ใต้แอร์คอมเพรสเซอร์ได้ และเดินท่อระบายน้ำที่ระเบียงมาให้เรียบร้อย
จากโซฟามองไปที่ Sideboard เป็นชั้นไม้สีเข้ม มีช่องเก็บของพร้อมหน้าบานปิด และวางทีวีมาให้เห็นระยะใช้งาน ด้านหลังจะเห็นทางเดินแจกไปห้องน้ำทางขวามือ, ตรงไปเป็นห้องนอน และขวามือด้านหลังชั้นวางทีวีเป็นห้องอเนกประสงค์ที่กั้นห้องกระจกมาให้เรียบร้อย
ส่วนห้องอเนกประสงค์กั้นฉากกั้นห้องลูกกระจกฟักใส กรอบอลูมิเนียมสีดำ แบบ 3 ตอน ข้อดีของประตูบานเลื่อนแบบ 3 ตอนคือสามารถเปิดช่องเปิดได้กว้างกว่าแบบ 2 ตอนนั่นเอง ในห้องมีหน้าต่างบานฟิกซ์มาให้เป็นช่องแสงธรรมชาติและมีหน้าต่างบานกระทุ้งมาให้เปิดระบายอากาศได้
ภายในห้องอเนกประสงค์จัดมาเป็นห้องทำงานโดยวางโต๊ะทำงานพร้อมเก้าอี้และม้านั่งมาให้ดูระยะใช้งาน สามารถจัดเป็นห้องนอนเดี่ยวได้นะคะ มีระยะพอ
ในห้องอเนกประสงค์นี่กั้นห้องมาให้ และวางเฟอร์นิเจอร์มาให้ดูระยะใช้งาน ของจริงในห้องนี้จะเป็นห้องโล่งนะคะ แต่ข้อดีคือติดเครื่องปรับอากาศมาให้ ได้ตามนี้ คือห้องนี้ติดเครื่องปรับอากาศมาให้ 3 ตัว ซึ่งถือว่าให้มาเยอะทีเดียว
ตรงข้ามห้องอเนกประสงค์เป็นห้องน้ำ

ภายในห้องน้ำมีประตู 2 บาน บานนึงเปิดไปโถงทางเดิน อีกบานเปิดไปห้องนอน ห้องน้ำมีระยะใช้งานสบายๆค่ะ พื้นและผนังห้องน้ำใช้กระเบื้อง homogeneous tile ลายหินอ่อนสีขาวขีดเทาดูหรูหรา
ห้องน้ำมีระยะใช้งานสบายๆค่ะ ฟังก์ชั่นห้องน้ำแยกส่วนแห้งและส่วนเปียก โดยกั้นฉากกั้นส่วนอาบน้ำเข้ามุมมาให้ครบ สุขภัณฑ์ภายในห้องน้ำของ Kohler
ผนังห้องน้ำปูกระเบื้องลายหินอ่อนมาให้จรดเพดาน ติดไฟดาวน์ไลท์
อ่างล้างมือทำเคาน์เตอร์มาให้ และติดเครื่องทำน้ำร้อนมาให้เรียบร้อย และติดกระจกเงามาให้ ของจริงได้ตามนี้
เทียบขนาดฝ่ามือให้เห็นระยะใช้งานอ่างล้างมือค่ะ
ถัดมาเป็นตำแหน่งของโถสุขภัณฑ์ ใช้ของ Kohler ติดตั้งอุปกรณ์ให้ครบชุดทั้งสายฉีดชำระ, ราวแขวนผ้าเช็ดตัวและที่แขวนทิชชู่สแตนเลส ด้านหลังโถสุขภัณฑ์มี Low Wall มาให้วางของได้
ส่วนพื้นที่อาบน้ำกั้นกระจกเทมเปอร์มาให้ เปิดปิดแบบบานเปิด มือจับรูปตัว U ด้านนอกใช้แขวนผ้าเช็ดตัวได้ พื้นที่อาบน้ำมีพื้นที่ใช้สอยพอยืนอาบน้ำได้สบาย ไม่อึดอัด
ชุดฝักบัวของ Kohler พร้อมมี Rain Shower มาให้ด้านบนด้วย และมีเจาะช่องที่ผนังมาให้ใช้วางสบู่แชมพูได้
ไปดูส่วนห้องนอนกันต่อ
ภายในห้องนอนวางเตียง 5 ฟุตมาให้ ของจริงได้ฐานเตียงตามที่เห็น ไม่รวมฟูก หมอนผ้าห่ม และมีห้องน้ำในห้องนอน เดี๋ยวเราพาไล่ดูกันไปทีละส่วนนะคะ
ปลายเตียงมีพื้นที่เหลือประมาณ 40 cm.เดินไปมาได้สบายๆ ถ้าอยากติดทีวีในห้องนอนแนะนำให้ใช้ทีวีแบบแขวนเหมือนในห้องตัวอย่าง
ข้างเตียงฝั่งติดหน้าต่างมีระยะเดินไปมาประมาณ 20 cm.
ในห้องมีหน้าต่างบานฟิกซ์มาให้เป็นช่องแสงธรรมชาติและมีหน้าต่างบานกระทุ้งมาให้เปิดระบายอากาศได้ ในห้องนอนติดเครื่องปรับอากาศมาให้เรียบร้อย
มองไปทางอีกฝั่งของห้องเป็นทางเดินไปห้องน้ำจากในห้องนอน ทำ Built in ตู้เสื้อผ้าพร้อมกับโต๊ะเครื่องแป้งมาให้
ระหว่างเตียงกับตู้เสื้อผ้า มีพื้นที่พอวางโต๊ะข้างเตียงได้แบบกำลังดี
ตู้เสื้อผ้า Built in มาให้เป็นรูปตัว L ทำให้ได้ตู้เสื้อผ้าความกว้างรวมประมาณ 2 เมตร ตู้เสื้อผ้าของจริงเป็นหน้าบานทึบนะคะ และตู้ฝั่งนี้ของจริงที่ได้จะเว้นส่วนลิ้นชักด้านนึงไว้ เพื่อให้สามารถแขวนชุดเดรสได้
หน้าทางเข้าห้องน้ำมีโต๊ะเครื่องแป้งมาให้พร้อมสตูล ของจริงได้ตามนี้
ราคา (ก.ค. 61)
โปรโมชั่นและรายละเอียดเพิ่มเติมติดต่อได้ที่สำนักงานขาย **
ลงทะเบียนรับราคาพิเศษ คลิก : http://www.theteakcondo.com/
บทสรุปโครงการ
ทำเลที่ตั้งโครงการ :The Teak Sathorn-Lumpini ตั้งอยู่ในซอยศรีบำเพ็ญ ทำเลศักยภาพใจกลางเมือง ใกล้ถนนพระราม 4 และสาทร เดินทางได้อย่างสะดวกสบาย ใกล้ MRT สถานีลุมพินี และ คลองเตย ที่นี่จึงแวดล้อมไปด้วยทุกสิ่งที่คุณต้องการสำหรับชีวิตในเมือง ทั้งห้างสรรพสินค้า, คอมมูนิตี้มอลล์, สถานศึกษาทุกระดับชั้น, โรงพยาบาล, โรงภาพยนตร์, สถานบันเทิง และ สวนสาธารณะที่เป็นปอดของกรุงเทพฯ อย่างสวนลุมพินี ก็อยู่ไม่ไกลเกินกว่าระยะเดินสบาย ๆ บรรยากาศโดยรอบโครงการ แม้เป็นซอยขนาดเล็ก แต่มีผู้คนสัญจรเข้าออกตลอดทั้งวัน แต่ช่วงเวลาหลัง 3-4 ทุ่มไปแล้ว ก็เริ่มเงียบสงบ พักผ่อนกันได้อย่างเต็มที่
ความอุดมสมบูรณ์ : โครงการอยู่ในซอยศรีบำเพ็ญ ที่เชื่อมต่อซอยเย็นอากาศ, สวนพลู, งามดูพลี, ซึ่งเป็นโซนที่พักอาศัยที่อุดมสมบูรณ์ที่สุดซอยนึงในโซนนี้เลยค่ะ เนื่องจากมีโรงเรียน, โรงแรม และแหล่งที่พักอาศัย เป็นซอยที่มีทั้งคนในพื้นที่และคนต่างชาติเยอะ มีร้านอาหารและสิ่งอำนวยความสะดวกใกล้ๆในระยะเดินเยอะมาก และมีความอุดมสมบูรณ์สูง หาของกินได้ทั้งกลางวันกลางคืน
ถัดออกมาที่ถนนนราธิวาส, ถนนพระราม 4 ก็มีห้างอย่าง Makro, Central พระราม 3 และ Community Mall อย่าง The Up Rama 3 ที่เต็มไปด้วยร้านอาหาร ขนมและคาเฟ่มากมาย
ออกมาถนนใหญ่สาทรและสีลม ศูนย์กลางทางธุรกิจของกรุงเทพมหานครซึ่งเต็มไปด้วยโรงแรมห้าดาวและบริษัทชั้นนำต่างชาติ สถาบันการเงิน ธนาคารพาณิชย์ต่างๆ มาเปิดสำนักงานใหญ่ที่นี่ สถานฑูต สถาบันทางวัฒนธรรม ตลอดจนศูนย์การค้าและบรรดาโรงเรียนชั้นนำของประเทศ ในแผนที่แค่ใส่ชื่อสิ่งอำนวยความสะดวก โรงแรมและอาคารสำนักงานบางส่วนมาเท่านั้นนะคะ จริงๆยังมีอาคารสำคัญๆทางประวัติศาสตร์อีกมาก
นอกจากนี้ยังเป็นถนนท่องเที่ยวที่เป็นแหล่งซื้อสินค้าและขายของที่ระลึกสำหรับนักท่องเที่ยวตามบาทวิถีในเวลากลางคืน แถมสองฝั่งถนนใหญ่สีลมก็มีร้านอาหารคุณภาพดีๆและมีคอนเซ็ปร้านเก๋ๆให้ลองไปทานกันเยอะทีเดียว
การเดินทางโดยรถยนต์ส่วนตัว : เดินทางได้สะดวก เชื่อมต่อถนนสายสำคัญใจกลางเมืองได้หลากหลายมาก ไม่ว่าจะเป็นถนนนางลิ้นจี่, ถนนสาทร, ถนนพระราม 3, ถนนพระราม 4 ใกล้กับโครงการยังมีทางด่วนจุดขึ้น-ลง พระราม 4 ช่วยให้การเดินทางออกนอกเมืองได้สะดวกรวดเร็ว การจราจรอาจมีติดขัดบ้าง ในช่วงเวลาเร่งด่วน อย่างช่วงเช้า คนไปทำงาน ไปโรงเรียน และช่วงเลิกงาน ที่คนกลับบ้าน แต่ภายในซอยเย็นอากาศ ก็จะมีซอยลัดเลาะเยอะแยะมากมาย สามารถใช้ซอยลัด หลีกเลี่ยงการจราจรที่ติดขัด เลือกเส้นทางกันได้ตามสะดวกค่ะ
การเดินทางโดยรถสาธารณะ : หน้าโครงการมีทั้งรถแท็กซี่ วินมอเตอร์ไซค์ผ่านไปมาตลอดทั้งกลางวันกลางคืนค่ะ ใกล้ MRT สถานีลุมพินี (1.8 กม.จากโครงการ) และ คลองเตย (1 กม.จากโครงการ) นั่งวินมอเตอร์ไซค์เพียง 3-5 นาที ไปลงสถานีรถไฟฟ้า MRT ลุมพินี เพียงสถานีเดียวถึงจุดเชื่อมต่อของรถไฟฟ้า MRT สายสีลมกับ BTS ศาลาแดง ทำให้สามารถเดินทางไปยังใจกลางเมืองจุดต่างๆได้อย่างสะดวกง่ายดาย อย่างสยาม ชิดลม สาทร สีลม พร้อมพงษ์ ทองหล่อ เนื่องจากอยู่ในใจกลางเมืองด้วยกันอยู่แล้วนั่งไปสถานีสองสถานีก็ถึง เช่นจากBTS ศาลาแดง นั่งไปเพียง 2 สถานีก็ถึง สยามพารากอน, สยามเซ็นเตอร์ และเซ็นทรัลเวิลด์แล้วค่ะ
นอกจากนี้บนเส้นนราธิวาส ห่างจากโครงการประมาณ 2.5 กม. จะมี BRT ถนนจันทน์ ที่นั่งไปถึง BTS ช่องนนทรีได้สบายๆ ก็เรียกว่าสำหรับคนไม่ใช้รถก็มีทางเลือกในการเดินทางที่หลากหลายทีเดียว
การออกแบบโครงการและวัสดุ : เป็นคอนโด Low-Rise ระดับไฮเอนด์ ส่วนมากจะมียูนิตน้อย เน้นความเป็นส่วนตัว เน้นการอยู่อาศัยแบบครอบครัวคนเมือง ไปไหนมาไหน สะดวก รวดเร็วฉับไว ในส่วนของตัวอาคาร
ตัวอาคารใช้โทนสีเอิร์ธโทน ซึ่งเป็นโทนสีธรรมชาติอย่างสีน้ำตาลเหมือนสีของไม้ สีเทา ดำ ครีม จากหิน เป็นต้น ด้านหน้าโครงการตกแต่งด้วยไม้ และกระจกกันเสียง ช่วยกันเสียงรบกวนจากถนนภายนอก
ในส่วนของห้องพักเป็นแบบ 1 ห้องนอน และ 1 ห้องนอน Plus ขนาดเริ่มต้นที่ 25.1-44.3 ตร.ม. โครงการขายแบบ Fully Furnished พร้อมโดยตัวห้องจะมาพร้อมกับเฟอร์นิเจอร์บิวท์อิน, ชุดครัว, ชุดสุขภัณฑ์, ราวบังม่าน, เฟอร์นิเจอร์ลอยตัว, ระบบ Home Automation และเครื่องปรับอากาศติดตั้งมาให้ทุกห้องค่ะ
ส่วนพื้นห้องส่วนโถงด้านนอก [ครัว-ส่วนนั่งเล่น] ปูกระเบื้องลายหินสีเทา ภายในห้องนอนปูไวนิลลายไม้ ฝ้าเพดานสูง 2.5 เมตร มีดรอปฝ้าตกแต่งบัวให้บางส่วน ภายในห้องน้ำฟังก์ชั่นครบ แยกส่วนแห้ง กั้นส่วนอาบน้ำให้เรียบร้อย สุขภัณฑ์ในห้องน้ำ Kohler ค่ะ
สิ่งอำนวยความสะดวก : มีมาให้ครบ ทั้งล็อบบี้สองชั้น, สระว่ายน้ำชั้นดาดฟ้า, ฟิตเนส-พร้อมอุปกรณ์ครบครัน, Co-Working Space, สวนหย่อมขนาดใหญ่, Sala Chilling Lounge, กล้องวงจรปิด, Wifi-Internet, EV Charger, Smart Locker, ที่จอดรถ 30 คัน, ลิฟต์โดยสารจำนวน 2 ตัว, Access Card แบบล็อกชั้น, เจ้าหน้าที่รักษาความปลอดภัย 24 ชม.
คะแนน
| ทำเลที่ตั้งโครงการ | 8.5 | คอนโดใจกลางเมืองติดถนนศรีบำเพ็ญ ใกล้แหล่งธุรกิจสำคัญ ใกล้ถนนสาทร-พระราม 4, ทางด่วน และ รถไฟฟ้า MRT สองสถานี |
| การเดินทาง ใช้รถ | 8.0 | เข้า-ออกเมืองได้สะดวก ใกล้ทางด่วนพระราม 4, ทางด่วน เชื่อมต่อถนนสายสำคัญได้หลายสาย |
| การเดินทาง ไม่ใช้รถ | 8.0 | ใกล้ MRT สถานีลุมพินี (1.8 กม.จากโครงการ) และ คลองเตย (1 กม.จากโครงการ) .Taxi และ มอเตอร์ไซค์รับจ้าง ผ่านหน้าโครงการตลอดทั้งวัน |
| บ้านและวัสดุ | 8.0 | ออกแบบมาในสไตล์เรียบหรู ดูมีระดับ เน้นห้องแบบ 1 ห้องนอน ตอบรับการอยู่อาศัยใจกลางเมือง โครงการขายห้องแบบ Fully Furnished เริ่ม 3.3 ลบ. |
| สิ่งอำนวยความสะดวก | 8.0 | ส่วนกลางครบครัน ออกแบบตอบรับไลฟ์สไตล์คนยุคใหม่ |
| ความคุ้มค่ากับราคา | 8.0 | ราคาเฉลี่ย 136,000 บาท/ ตร.ม. ได้คอนโดทำเลเชื่อมต่อสาทร ใกล้สถานีรถไฟฟ้า เหมาะกับคนที่ทำงานในเมือง อาศัยแบบครอบครัว ชอบความเงียบสงบ เดินทางได้สะดวกครอบคลุมทุกเส้นทาง |
| คะแนนรวมเฉลี่ย | 8.08 | ดีมาก |
สอบถามรายละเอียดเพิ่มเติมได้ที่
Tel : 095-746-9891, 099-231-4433
line@: c1realestate
Website : http://www.theteakcondo.com/
หากเพื่อนๆเห็นว่ารีวิวนี้มีประโยชน์ ช่วยกด Like เพื่อเป็นกำลังใจให้ทีมงาน ขอบคุณค่ะ
และมีความคิดเห็นหรือข้อมูลเพิ่มเติมเกี่ยวกับตัวโครงการ สามารถ Comment ได้ที่ด้านล่างของรีวิวค่ะ