
EP.1067 รีวิว คอนโด ศุภาลัย วิสต้า ภูเก็ต SUPALAI VISTA PHUKET
สวัสดีผู้อ่านชาว Homenayoo ทุกคนครับ วันนี้ผมพามาชมโครงการ ศุภาลัย วิสต้า ภูเก็ต จาก ศุภาลัย ในอำเภอเมืองภูเก็ตย่านเมืองเก่า ตัวโครงการอยู่ติดถนนตะกั่วป่า เป็นเส้นที่เชื่อมระหว่างถนนรัษฎา กับถนนกระและถนนพูนผล เชื่อมออกไปยังสถานที่ต่างๆได้สะดวก ใกล้สถานที่ท่องเที่ยวที่สำคัญต่างๆ อยู่ใกล้แหล่งอำนวยความสะดวกทั้ง Central Festival, Big C, Makro, Tecco Lotus, Home Pro, Big C, Homework และ Premium Outlet
ศุภาลัย วิสต้า ภูเก็ต เป็นคอนโด High Rise สูง 15 ชั้น จำนวน 1 อาคาร บนที่ดิน 2-3-46.8 ไร่ มีจำนวนยูนิตทั้งหมด 324 ยูนิต มีห้องให้เลือกแบบสตูดิโอ, 1 ห้องนอน, 2 ห้องนอน ขนาดห้องเริ่มต้นที่ 35 – 80 ตร.ม. โครงการสร้างเสร็จพร้อมอยู่ในปี 2559
สิ่งอำนวยความสะดวกภายในโครงการมีให้ครบครัน อาทิ โถงต้อนรับ, สระว่ายน้ำ, ฟิตเนส, สวนชั้นดาดฟ้าที่สามารถ Take view ได้ 360 องศา, Access Card Control, กล้องวงจรปิด พร้อม รปภ. 24 ชม. ราคาเริ่มต้น 1 ล้านกว่าบาท*
คอนโด ศุภาลัย โซนภูเก็ต โครงการที่น่าสนใจ…

| ชื่อโครงการ | ศุภาลัย วิสต้า ภูเก็ต / SUPALAI VISTA PHUKET |
| เจ้าของโครงการ | ศุภาลัย / Supalai |
| เนื้อที่ทั้งหมด | 2-3-46.8 ไร่ |
| จำนวนตึก | 1 อาคาร |
| จำนวนชั้น | 15 ชั้น |
| จำนวนห้อง |
|
| ลักษณะห้องและขนาดห้อง |
|
| ที่จอดรถทั้งหมด | 31% (รวมซ้อนคัน) |
| จำนวนลิฟท์ | ลิฟท์โดยสาร 2 ตัว |
| โซน | จังหวัดภูเก็ต |
| ขนส่งสาธารณะ | n/a |
| รถโดยสารที่ผ่าน | n/a |
| ที่ตั้ง | ถ.ตะกั่วป่า ต.ตลาดใหญ่ อ.เมืองภูเก็ต จ.ภูเก็ต |
| กำหนดการ | เริ่มก่อสร้างปี 2557 |
| ปีที่สร้างเสร็จ | แล้วเสร็จปี 2559 |
| ราคา | เริ่มต้น 1.74 ล้านบาท |
| ราคาเฉลี่ยต่อ ตร.ม | 49,000 บาท/ตร.ม. |
| ค่าส่วนกลางและกองทุน |
|
| สถานที่สำคัญใกล้เคียง | ห้างสรรพสินค้า
สถานศึกษา
ศูนย์การแพทย์
ศาสนสถาน
สถานที่ท่องเที่ยว
สถานที่ราชการและหน่วยงานอื่นๆ
|
| สิ่งอำนวยความสะดวก |
|
| จุดเด่นของโครงการ | ความสุขไม่รู้จบ กับสัดส่วนที่ลงตัว ในการใช้ชีวิต (Endless Happiness for stylish) ทำเลศักยภาพ ตั้งอยู่ใจกลางเมืองภูเก็ต ห่างจากตลาดดาวน์ทาวน์เพียง 450 ม. โอเชี่ยนช้อปปิ้งมอลล์ 900ม. และโรบินสัน 1 กม. |
ที่ตั้งโครงการ
ถ.ตะกั่วป่า ต.ตลาดใหญ่ อ.เมืองภูเก็ต จ.ภูเก็ต

พิกัด Google โดยประมาณ : 7.880271, 98.388702

จังหวัดภูเก็ต เป็นจังหวัดทางภาคใต้ของประเทศไทย เป็นเกาะที่มีขนาดใหญ่ที่สุดของประเทศไทย อยู่ในทะเลอันดามัน ทั้งเกาะล้อมรอบด้วยมหาสมุทรอินเดีย การเดินทางเข้าสู่จังหวัดภูเก็ตสามารถเดินทางเข้าได้โดยทางเรือ ทางรถยนต์ซึ่งมีเพียงเส้นเดียวคือผ่านมาจากจังหวัดพังงา โดยข้ามสะพานสารสิน และสะพานคู่ขนานคือสะพานท้าวเทพกระษัตรีและสะพานท้าวศรีสุนทร เพื่อเข้าสู่ตัวจังหวัด และอีกทางคือทางอากาศ โดยมีท่าอากาศยานนานาชาติภูเก็ตรองรับซึ่งอยู่ติดกับหาดในยางและหาดไม้ขาว
เดิมคำว่าภูเก็ตนั้นสะกดว่า ภูเก็จ ซึ่งแปลได้ว่า เมืองแก้ว จึงใช้ตราเป็นรูปภูเขา (ภู) มีประกายแก้ว (เก็จ) เปล่งออกเป็นรัศมี จากประวัติศาสตร์ไทย ภูเก็ตเป็นส่วนหนึ่งของอาณาจักรตามพรลิงก์ อาณาจักรศรีวิชัย สืบต่อมาจนถึงสมัยอาณาจักรนครศรีธรรมราชเรียกเกาะภูเก็ตว่า เมืองตะกั่วถลาง เป็นเมืองที่ 11 ใน 12 เมืองนักษัตร โดยใช้ตราเป็นรูปสุนัข จนถึงสมัยสุโขทัย เมืองถลางไปขึ้นกับเมืองตะกั่วป่า ในสมัยอยุธยา ชาวฮอลันดา ชาวโปรตุเกส และชาวฝรั่งเศส ได้สร้างสถานที่เก็บสินค้าเพื่อรับซื้อแร่ดีบุกจากเมืองภูเก็ต (ถลาง) ขอบคุณข้อมูลจากวิกิพีเดีย
ในรัชสมัยของพระบาทสมเด็จพระพุทธยอดฟ้าจุฬาโลก ได้เกิดสงครามเก้าทัพขึ้น พระเจ้าปดุง กษัตริย์ของประเทศพม่าในสมัยนั้น ได้ให้แม่ทัพยกทัพมาตีหัวเมืองปักษ์ใต้ เช่น ไชยา นครศรีธรรมราช และให้ยี่หวุ่นนำกำลังทัพเรือพล 3,000 คนเข้าตีเมืองตะกั่วป่า เมืองตะกั่วทุ่ง และเมืองถลาง ซึ่งขณะนั้นเจ้าเมืองถลาง (พญาพิมลอัยาขัน) เพิ่งถึงแก่อนิจกรรม ท่านผู้หญิงจัน ภรรยา และคุณมุก น้องสาว จึงรวบรวมกำลังต่อสู้กับพม่าจนชนะเมื่อวันที่ 13 มีนาคม พ.ศ. 2328 พระบาทสมเด็จพระพุทธยอดฟ้าจุฬาโลกมหาราชจึงทรงพระกรุณาโปรดเกล้าฯ ให้ท่านผู้หญิงจันเป็น ท้าวเทพกระษัตรี และคุณมุกเป็นท้าวศรีสุนทร
ในรัชสมัยพระบาทสมเด็จพระจุลจอมเกล้าเจ้าอยู่หัว ได้รวบรวมหัวเมืองชายทะเลตะวันตกตั้งเป็น มณฑลภูเก็ต และเมื่อปี พ.ศ. 2476 ได้ยกเลิกระบบมณฑลเทศาภิบาล เปลี่ยนมาเป็น จังหวัดภูเก็ต การปกครองในจังหวัดภูเก็ต ปัจจุบันแบ่งออกเป็น 3 อำเภอ คืออำเภอถลาง อำเภอกะทู้ และอำเภอเมืองภูเก็ต มีตำบล 17 ตำบล และ 103 หมู่บ้าน ขอบคุณข้อมูลจากวิกิพีเดีย
ที่ตั้งโครงการ ศุภาลัย วิสต้า ภูเก็ต ตั้งอยู่ในเขตอำเภอเมืองภูเก็ต ใกล้ๆย่านเมืองเก่า ติดถนนตะกั่วป่า เป็นเส้นที่เชื่อมระหว่างถนนรัษฎาและถนนกระ การเดินทางเข้าโครงการ ถ้ามาจากถนนเทพกระษัตรีก็มาเชื่อมเข้าถนนภูเก็ตและมาเลี้ยวเข้าถนนรัษฎา และมาเลี้ยวเข้าถนนตะกั่วป่าเพื่อเข้าโครงการ ถ้ามาจากถนนภูเก็ตก็มาเลี้ยวเข้าถนนตลิ่งชันเพื่อมาเข้าถนนตะกั่วป่า
การเดินทางด้วยรถส่วนตัว หลักๆก็ใช้เส้นตะกั่วป่าในการเชื่อมออกไปยังที่ต่างๆ ถ้ามาออกถนนภูเก็ตจะมาสะพานหิน หรืออีกฝั่งไปทางถนนเทพกระษัตรี ซึ่งถนนเทพกระษัตรีเป็นเส้นสำคัญของจังหวัดที่ตัดเชื่อมมาจากจังหวัดพังงา มีจุดเชื่อมต่อจังหวัดคือสะพานสารสิน เข้าสู่อำเภอถลาง และยาวเข้ามาสู่อำเภอเมืองภูเก็ต ถ้าจะไปโซนแหลมพรหมเทพก็วิ่งมาเชื่อมถนนเจ้าฟ้าตะวันออก หรือถนนเจ้าฟ้าตะวันตก วิ่งไปเชื่อมออกถนนวิเศษ จากนั้นวิ่งเลียบหาดราไวย์เชื่อมไปแหลมพรหมเทพได้เลย เป็นแหล่งท่องเที่ยวสำคัญของภูเก็ตแห่งหนึ่ง
จากถนนรัษฎาวิ่งมาเชื่อมออกถนนระนอง และมาเชื่อมออกถนนวิชิตสงคราม จะเจอแยกตัดกับถนนเจ้าฟ้าตะวันตก และถนนเฉลิมพระเกียรติ ร.9 (บายพาส) เชื่อมไปถนนพระภูเก็ตแก้ว ออกถนนบารมีมาโซนหาดอีกฝั่งของภูเก็ต ซึ่งเป็นโซนที่มีนักท่องเที่ยวค่อนข้างเยอะทั้งหาดป่าตอง หาดกะตะ หาดกะรน หาดกมลา หาดสุรินทร์ ฯลฯ ถ้าจะไปโซนอำเภอถลางก็ใช้เส้นเทพกระษัตรี วิ่งย้อนขึ้นไป
จากตัวโครงการสามารถเดินไปได้เลย ห่างจากโครงการประมาณ 300 ม. เท่านั้น เดินย้อนขึ้นมาทางถนนรัษฎาได้เลย

ตัวโครงการยังอยู่ไม่ไกลจาก Central Festival Phuket ประมาณ 3 กม. โดยใช้ถนนระนองเชื่อมมาออกถนนวิชิตสงคราม และไปเชื่อมออกถนนเฉลิมพระเกียรติ ร.9 จะอยู่ริมถนนเลยติดกับแยก และตอนนี้ทาง Central เองมีโครงการสร้าง Central Phuket ห้างสรรพสินค้าขนาดใหญ่ ที่กำลังก่อสร้างอยู่ในปัจจุบัน เนื้อที่กว่า 300,000 ตร.ม. อยู่ตรงข้ามกับ Central Festival Phuket เดิมที่เปิดให้บริการในปัจจุบัน เรียกได้ว่าเป็นอาณาจักรค้าปลีกเซ็นทรัลที่ใหญ่มากที่สุด ของจังหวัดเลยทีเดียว คาดว่าน่าจะเปิดให้บริการได้เร็วๆนี้
ภาพจำลอง Central Phuket มีทางเดินเชื่อมกับ Central Festival Phuket

การเดินทางจากโครงการไปสนามบิน ระยะทางประมาณ 32 กม. โดยใช้ถนนเทพกระษัตรี วิ่งย้อนไปทางอำเภอถลาง และไปเข้าถนนเทพกระษัตรี-ในยาง ก็ถึงแล้วครับ
ตัวโครงการอยู่ห่างจากแหลมพรหมเทพประมาณ 18 กม. ซึ่งเป็นแหล่งท่องเที่ยวสำคัญแห่งหนึ่งของภูเก็ต เป็นจุดชมวิวพระอาทิตย์ตกที่สวยงาม มีนักท่องเที่ยวมาชมกันเยอะพอสมควร การเดินทางก็ใช้ถนนเจ้าฟ้าตะวันออก และเชื่อมมาออกถนนวิเศษ จากนั้นวิ่งเรียบหาดราไวย์ จะมีทางเชื่อมไปอีกหน่อยก็ถึงพอดี

ตัวโครงการอยู่ห่างจากหาดป่าตองประมาณ 13 กม. โดยใช้ถนนระนองวิ่งมาเชื่อมออกถนนวิชิตสงคราม ไปออกถนนพระบารมี ยาวไปจนถึงริมหาดป่าตอง ซึ่งเป็นหาดที่มีชื่อเสียงมากที่สุดของภูเก็ต และเป็นที่นิยมของนักท่องเที่ยวจำนวนมาก
การเดินทางโดยสาธารณะ ตัวโครงการอยู่ในย่านที่มีระบบขนส่งสาธารณะ หน้าโครงการจะมีรถสองแถววิ่งผ่านโบกเรียกได้เลย มีท่ารถอยู่ที่ถนนระนองบริเวณตลาดสดดาวน์ทาวน์ รถสองแถวให้บริการวิ่งไปตามเส้นทางรอบๆเกาะมีตั้งแต่รอบ 6 โมงเช้าและจะหมดในช่วง 4 – 6 โมงเย็น มีอยู่หลายเส้นทางจากตัวเมืองภูเก็ตไปตามหาดต่างๆ และมีวินมอเตอร์ไซค์วิ่งผ่านไปมาเรียกหน้าโครงการได้ หรือขอเบอร์ติดต่อไว้ก็ได้ นอกจากนี้ในภูเก็ตเองยังมีรถบัสวิ่งไป-กลับสนามบิน มีรถตุ๊กๆแบบ 4 ล้อ มีรถตู้ให้บริการ มี Taxi ซึ่งมีค่าใช้จ่ายค่อนข้างสูง และมีบริการใช้เช่ารถทั้งรถยนต์ และรถมอเตอร์ไซค์ อัตราการใช้บริการก็ขึ้นอยู่กับรุ่นและขนาดเครื่องยนต์
ในอนาคตจะมี โครงการรถไฟรางเบา (Light Rail Transit ) ระบบ Tramway โดยเริ่มต้นที่สถานีท่านุ่น จังหวัดพังงา เข้าเส้นทางหลักถนนเทพกระษัตรี วิ่งผ่านสนามบิน ผ่านตัวเมืองไปจนถึง 5 แยกฉลอง มีระยะทางถึง 60 กม.กับ 20 สถานี ส่วนเรื่องตำแหน่งของสถานีไหนที่ใกล้โครงการนั้นยังไม่ทราบแน่ชัด แต่รับรองว่าการเดินทางด้วยระบบขนส่งสาธารณะจะสะดวกขึ้นเป็นอย่างมากทั้งผู้ที่อาศัยอยู่ในภูเก็ตเอง และนักท่องเที่ยวเพราะเป็นเส้นทางที่จะเชื่อมสนามบินภูเก็ตเข้าสู่ตัวเมือง รวมทั้งรองรับการเดินตามแนวเส้นทาง แต่คงต้องรอกันไปอีกสักพักใหญ่ๆครับ

จากภาพถ่ายดาวเทียมจะเห็นว่าพื้นที่รอบๆโครงการส่วนใหญ่จะเป็นบ้านพักอาศัย โรงแรม โฮสเทลต่างๆ รวมไปถึงร้านค้า ร้านอาหารซึ่งย่านนี้เป็นย่านเมืองเก่าของภูเก็ต จะมีนักท่องเที่ยวมาค่อนข้างเยอะพอสมควร

การเดินทางวันนี้เริ่มจากท่าอากาศยานภูเก็ต ออกจากสนามบินมาเลี้ยวซ้ายเข้าถนนเทพกระษัตรี-ในยาง วิ่งตามทางมาจะเจอสามแยกสนามบินเก่า ให้เลี้ยวขวาเข้าถนนเทพกระษัตรี จากนั้นก็วิ่งตามทางมุ่งหน้าตามป้ายภูเก็ต วิ่งเข้าเมืองมาจนสุดถนนเทพกระษัตรี จากนั้นเข้าถนนภูเก็ต และมาเลี้ยวขวาเข้าถนนรัษฎา จากนั้นเลี้ยวซ้ายเข้าถนนตะกั่วป่าตรงไปอีกประมาณ 300 ม. โครงการจะอยู่ทางซ้ายมือ
สรุปการเดินทาง ท่าอากาศยานภูเก็ต > ถนนเทพกระษัตรี-ในยาง > ถนนเทพกระษัตรี > ถนนภูเก็ต > ถนนรัษฎา > ถนนตะกั่วป่า > ศุภาลัย วิสต้า ภูเก็ต
วันนี้ผมพาบินลัดฟ้าจากกรุงเทพฯมาภูเก็ต เพื่อพาทุกท่านมาชมโครงการจาก ศุภาลัย ใช้เวลาเดินทางประมาณชั่วโมงกว่าๆก็ถึงภูเก็ตแล้วครับ จากนั้นก็ขับรถต่อไปยังโครงการ โดยตัวโครงการที่พามาชมวันนี้คือ ศุภาลัย วิสต้า ภูเก็ต อยู่ห่างจากสนามบินนานาชาติภูเก็ตประมาณ 32 กม.
จากนั้นขับรถออกจากสนามบินต่อครับ
ขับรถออกมาตามทางในสนามบิน จากนั้นจะเจอทางแยก ให้เลี้ยวซ้ายเข้าถนนเทพกระษัตรี-ในยาง หรือจะเลี้ยวขวาก็ได้ครับจะออกไปเชื่อมถนนเทพกระษัตรีตรงแยกหมากปรก
เลี้ยวซ้ายมาก็ขับตรงไปตามทาง
ฝั่งซ้ายมือเป็นพื้นที่ของสนามบิน
เส้นนี้ถนนอาจจะแคบหน่อยระวังรถที่สวนมาด้วย
ตรงตามทางมาจนสุด จะเจอสามแยกสนามบินเก่า ให้เลี้ยวขวาเข้าถนนเทพกระษัตรีต่อ
เลี้ยวขวามาจะเป็นถนนเทพกระษัตรี ขับตรงไปยาวๆจนถึงโครงการเลยครับ
สังเกตที่ถนน เลนซ้ายมือ 2 เลน ซ้ายสุดจะเป็นเลนไว้จอดฉุกเฉิน ติดกันจะเป็นเลนมอเตอร์ไซค์
ซ้ายมือจะเจอศูนย์วิจัยและพัฒนาการเกษตรภูเก็ต
ที่เกาะกลางถนนจะมีต้นไม้ตลอดแนว
ขับตามป้ายภูเก็ตไปครับ
จากนั้นจะเจอแยกในยาง ขวามือจะเป็นถนนเทพกระษัตรี-ในยาง ซึ่งเป็นเส้นที่เดินทางไปสนามบิน หรือจากสนามบินที่เราออกมาถ้าเลี้ยวขวาก็จะมาเชื่อมออกตรงแยกนี้ครับ
จากนั้นจะเจอป้ายบอกไปภูเก็ตอีก 17 กม.
และจะเจอที่ว่าการอำเภอถลางซ้ายมือ
ติดกันเป็นสถานีตำรวจภูธรถลาง
จากนั้นจะเริ่มเป็นตึกแถว ร้านค้า ร้านอาหารต่างๆสองฝั่งทาง
จากนั้นซ้ายมือจะเจอ รร.ถลางพระนางสร้าง
ถัดมาซ้ายมือจะเป็น Tesco Lotus ฝั่งขวาจะเป็น Makro ถลาง
เลยมาอีกหน่อยจะเจอ Home Pro ถลาง
ซ้ายมือจะเห็นตลาดแม่สมปอง คึกคักพอสมควร
ขวามือจะเป็น Quality Homemart
ถัดมาเป็นไทวัสดุ
และจะเจออนุสาวรีย์ท้าวเทพกระษัตรี ท้าวศรีสุนทร ทั้งสองท่านเป็นวีรสตรีไทย ที่ป้องกันเมืองถลางให้พ้นจากข้าศึกได้ในสงครามเก้าทัพ สมัยรัตนโกสินทร์ตอนต้น จากตรงนี้ถึงโครงการประมาณ 4.6 กม.
จากนั้นก็ขับตามป้ายภูเก็ตไปอีกครับ
และจะเจอแยกบางคู จะตัดกับถนนเฉลิมพระเกียรติ ร.9 (บายพาส) ไปเซ็นทรัลภูเก็ตได้
ข้ามแยกมาก็ตรงตามทางไปอีกครับ
ถัดมาหน่อยซ้ายมือจะเห็นโครงการศุภาลัย ลากูน ภูเก็ต
จากนั้นจะเริ่มเห็นอาคารพาณิชย์ และร้านค้าต่างๆ
ซ้ายมือจะเป็นหมวดทางหลวง ภูเก็ต
ถัดมาเป็น Big C Market ซ้ายมือ
ตามป้ายภูเก็ตไปอีกครับ
และจะเจอ รพ.มิชชั่น
และจะเห็นป้ายบอกเข้าเมือง ตรงไปอีกครับ
ขวามือจะเจอปั๊ม ESSO
ถัดมาจะเจอโรงเรียนภูเก็ตวิทยาลัย
ซ้ายมือจะเจอโรงเรียนสตรีภูเก็ต
และจะเจอทางแยก ก็ตรงไปอีกครับ
ข้ามแยกมาซ้ายมือจะเป็นปั๊ม Caltex
จากนั้นจะเจอสี่แยกราชาประดับยนต์ ตัดกับถนนดีบุก ตรงไปครับ
ถัดมาจะเริ่มเป็นร้านค้า ร้านอาหาร โรงแรม โฮสเทล ถนนช่วงนี้จะเป็น One way นะครับ
จากนั้นจะเจอแยกหลาดใหญ่ จะสิ้นสุดถนนเทพกระษัตรีที่แยกนี้ครับ จะเริ่มเข้าสู่ย่าน Old Town หรือเป็นย่านเมืองเก่าของภูเก็ต เราจะเริ่มเห็น ตึกเก่าแบบชิโน-โปรตุกีส
ข้ามแยกหลาดใหญ่มาจะเป็นถนนภูเก็ต ตรงมาจากนั้นจะเจอแยกธนาคารชาร์เตอร์ด จะสะดุดตากับหอนาฬิกาซึ่งเป็นพิพิธภัณฑ์บาบ๋าภูเก็ต

จากถนนภูเก็ตจากนั้นเลี้ยวเข้าถนนรัษฎา และเลี้ยวซ้ายเข้าถนนตะกั่วป่า ตรงไปอีกประมาณ 300 ม. โครงการจะอยู่ซ้ายมือ
ตรงมาอีกจะเจอ 3 แยก ให้เลี้ยวขวาเข้าถนนรัษฎาต่อ
เลี้ยวขวามาจะเป็นถนนรัษฎา ขับตรงไปอีกครับ
ซ้ายมือจะเห็น ธ.ไทยพาณิชย์ และ ธ.กรุงศรี ถนนรัษฎาจะเป็นแบบ One Way
จากนั้นจะเจอ ธ.กรุงไทย ให้เตรียมเลี้ยวซ้ายครับ
พอเจอแยกให้เลี้ยวซ้ายเข้าถนนตะกั่วป่า ปากทางมี Family Mart
เลี้ยวซ้ายมาเป็นถนนตะกั่วป่า
ถัดเข้ามาอีกจะเจอโรงแรมวาปาโฮเต็ล ขวามือ
เลยมาหน่อยซ้ายมือจะเจอทางเข้าโครงการ ห่างจากปากทางเข้ามาประมาณ 300 ม.

พื้นที่โครงการทางทิศเหนือ และทิศตะวันออกติดกับพื้นที่ว่างเปล่า ทิศใต้ติดกับร้านอาหาร และทิศตะวันตกติดกับแนวลำคลอง ส่วนทางเข้าออกโครงการติดกับถนนตะกั่วป่า
ทางเข้าออกโครงการอยู่ติดถนนตะกั่วป่า
ตรงทางเข้าจะเป็นสะพานข้ามคลองแบบนี้
มองไปทางซ้าย รั้วด้านหน้าโครงการจะติดแนวลำคลอง
มองไปอีกฝั่ง
ฝั่งตรงข้ามทางเข้าโครงการจะเป็นบ้านพักอาศัย มีร้านอาหาร
มองไปทางซ้าย
มองไปทางขวาจะเห็นโรงแรม
เดินเข้ามาตรงสะพานทางเข้า แบ่งเลนเข้าออก
จากบนสะพานมองมาทางซ้ายจะเห็นลำคลองที่ติดกับรั้วโครงการ
มองไปอีกฝั่ง ซ้ายมือจะเห็นป้ายโครงการ
จากบนสะพานมองไปที่ตัวอาคาร
เดี๋ยวผมพาเดินไปดูรอบๆว่ามีอะไรบ้าง เดินจากหน้าโครงการย้อนขึ้นไปครับ
เดินมาฝั่งตรงข้ามโครงการจะเห็นโรงแรมวาปาโฮเต็ล
ใกล้ๆโครงการมีร้าน T.E. Cafe
ถัดมาอีกมีร้าน Comics เป็นร้าน Cafe & Bar
ติดกันมีอาคารสีสดๆ เป็นร้านกึ่งผับกึ่งบาร์
ข้างหน้าก็เป็นปากทางที่เขื่อมกับถนนรัษฎา ซ้ายมือเป็น Family Mart
ออกมาจะปากทางจะเจอถนนรัษฎา
เลี้ยวซ้ายมา จะเห็นร้านค้าต่างๆตามสองฝั่งทาง
เราจะเห็นอาคาร แบบชิโน-โปรตุกีส
เลยมาหน่อยจะเจอวงเวียนสุริยเดช

ความอุดมสมบูรณ์รอบๆโครงการในระยะเดินตลอดสองฝั่งทางถนนตะกั่วป่า จะมีร้านค้า ร้านอาหารตามสั่ง ร้านอาหารแนวกึ่งผับกึ่งบาร์หลายร้านเลย หรือเดินมาตรงถนนนรัษฎา ถนนพังงา ถนนถลาง ถนนดีบุก ซึ่งเป็นย่านเมืองเก่าจะมีร้านอาหารอร่อยๆขึ้นชื่อหลายร้านเลย ทั้งติ่มซำ หมี่ฮกเกี้ยน ก๋วยเตี๋ยว ข้าวต้มแห้ง ขนมจีน ฯลฯ ร้านสะดวกซื้อก็มีหลายร้าน ถ้ามาตรงแถวถนนระนองเดินมาประมาณ 550 ม. จะมีตลาดสด
ส่วนห้างสรรพสินค้าใกล้ๆมี โอเชี่ยนช้อปปิ้งมอลล์ และโรบินสันห่างจากโครงการประมาณ 1 กม. ตรงถนนเยาวราชมีตลาดนัดชิลล์วาเป็นตลาดที่ได้รับความนิยมเป็นอย่างมาก แต่หากเลยออกไปแถวเส้นเฉลิมพระเกียรติ ร.9 ก็จะมีทั้ง Premium Outlet, IKEA, Big C, Home Work, Tops, Central Festival ภูเก็ต ซึ่งตอนนี้ก็กำลังทำการขยับขยายพื้นที่ออกไปอีกฝั่งพร้อมทำทางเชื่อมต่อกัน คือ Central Phuket นอกจากนี้บริเวณโดยรอบโครงการก็จะมีทั้งสถานศึกษาและโรงพยาบาลอยู่อีกหลายแห่ง รวมไปถึงสถานีตำรวจ และสถานที่ราชการต่างๆ
สถานที่สำคัญใกล้เคียง
ห้างสรรพสินค้า
สถานศึกษา
ศูนย์การแพทย์
ศาสนสถาน
สถานที่ท่องเที่ยว
สถานที่ราชการและหน่วยงานอื่นๆ
แยกและถนนสำคัญใกล้เคียง
Floor Plan

จาก Master Plan โครงการเริ่มตรงทางเข้าออกจากถนนตะกั่วป่า ทางเข้าจะเป็นไม้กระดกแยกทางเข้าออก ผ่านเข้ามาจะเป็นถนนหลักในโครงการ ออกแบบถนนเป็นแบบ One way ให้รถวิ่งวนรอบอาคาร มีที่จอดรถใต้อาคาร และที่จอดรถแบบกลางแจ้ง ทั้งโครงการจอดได้ประมาณ 31% รวมซ้อนคัน ทางเข้าออกคารจะอยู่เชื่อมกับจุด Drop Off เดินไปจะเจอสำนักงานขายหน้าทางเข้า Lobby จากส่วนของ Lobby จะมีทางเดินเชื่อมออกไปยังห้องฟิตเนส และสระว่ายน้ำ ลิฟท์โดยสารมีให้ 2 ตัว
แปลนชั้น 2-15 เหมือนกันทุกชั้น จะเป็นชั้นพักอาศัยทั้งหมด มีชั้นละ 23 ยูนิต แบ่งเป็นห้องแบบ Studio 9 ยูนิตจะอยู่ฝั่งทิศตะวันตกทั้งหมด และห้องแบบ 1 Bed 10 ยูนิต อยู่ฝั่งทิศตะวันออกทั้งหมด และที่เหลืออีก 4 ยูนิตเป็นห้อง 2 Bed ทั้งหมดจะอยู่ตรงมุมอาคารทั้ง 4 มุมตรงฝั่งทิศเหนือและใต้ ลิฟท์โดยสารจะอยู่ตรงช่วงกลางอาคาร บันไดหนีไฟจะอยู่สองฝั่ง
ที่ชั้นดาดฟ้าจะเป็นสวนส่วนกลาง เดินขึ้นบันไดหนีไฟมาจากชั้น 15 ลูกบ้านขึ้นมารับลมชมวิวกันได้
โครงการ
ศุภาลัย วิสต้า ภูเก็ต เป็นคอนโด High Rise สูง 15 ชั้น 1 อาคาร บนที่ดินขนาด 2-3-46.8 ไร่ รูปทรงอาคารเป็นตรง V แต่ขาจะกว้างมุมป้าน สีภายนอกอาคารใช้โทนขาวตัดด้วยเทาและฟ้า ชั้นพักอาศัยจะเริ่มที่ชั้น 2-15 ส่วนกลางจะอยู่ที่ชั้น 1 และชั้นดาดฟ้า
กลับมาตรงบริเวณตรงสะพานทางเข้าออกโครงการ เดินเข้ามาจะเจอไม้กระดกแยกทางเข้าออก ซ้ายมือเป็นป้อมยาม
ลูกบ้านต้องใช้ Key Card แตะในการเข้าออก

ติดกับตรงไม้กระดก จะมีป้ายชื่อโครงการ อยู่ใต้ต้นไม้
ผ่านไม้กระดกเข้ามาจะเป็นถนนหลักในโครงการ ถนนจะเป็นแบบ one way บังคับเลี้ยวซ้าย

เงยหน้าจะมองเห็นตัวอาคารแบบนี้
มองกลับไปที่ทางเข้าออก ขวามือเป็นป้อมยาม
เดินไปตามทางในโครงการ ขวามือเป็นที่จอดรถมอเตอร์ไซค์
เดินเข้ามาขวามือจะเจอทางเข้าอาคาร ซ้ายมือมี Pavilion

ด้านหน้าทางเข้าอาคาร
ฝั่งตรงข้ามเป็น Pavilion ไว้ให้นั่งเล่น รอบๆได้จัดสวนตกแต่งร่มรื่น
เดินไปดูรอบๆอาคารกันต่อ ใต้อาคารจะเป็นที่จอดรถ ซ้ายมือริมรั้วโครงการจะมีแนวพุ่มไม้ปลูกไว้
เดินมาด้านข้างอาคาร ขวามือมีที่จอดรถ
เงยหน้ามองฝั่งด้านข้างอาคาร วางแปลนด้านข้างได้ 2 ยูนิต
เดินมาด้านหลังโครงการกันต่อ ขวามือใต้อาคารเป็นที่จอดรถ
เดินเลยมาอีกจะเจอที่จอดรถกลางแจ้ง
มีทางเดินเชื่อมเข้าอาคารจากที่จอดรถกลางแจ้ง
เงยหน้ามองตัวอาคารฝั่งด้านหลัง จะเห็นเป็นแนวโค้งๆ
เดินมาจะเจอทางเลี้ยวไปด้านข้างโครงการอีกฝั่ง ซ้ายมือมีที่จอดรถมอเตอร์ไซค์
ด้านข้างฝั่งนี้จะเป็นที่จอดรถกลางแจ้ง
และจะเจอทางเข้าออกโครงการด้านหน้าพอดีครับ
เข้าไปดูในอาคารกันต่อครับ
เดินเข้ามาตรงหน้าจะเป็นสำนักงานขาย
ฝั่งด้านในเป็นทางเข้า Lobby
เดินเข้ามาใน Lobby จะชุดโต๊ะเก้าอี้จัดไว้สองฝั่ง ซ้ายมือมีหน้าต่างเปิดระบายอากาศได้
ฝั่งขวาจะติดกับห้องฟิตเนส
มองกลับไปที่ประตูทางเข้า
เดินเข้ามาด้านในจะเจอเคาน์เตอร์ตรงหน้า ซ้ายมือเป็นทางเข้าโถงลิฟท์ ขวามือเป็นทางเดินออกไปยังส่วนกลาง
เดินออกมาด้านนอก ขวามือจะเป็นห้องฟิตเนส ตรงหน้าจะเป็นสระว่ายน้ำ
ด้านหน้าทางเข้าห้องฟิตเนส ห้องนี้ต้องใช้ Finger Scan นะครับ
เดินเข้ามาในห้องฟิตเนส วางเครื่องออกกำลังกายมาให้หลายเครื่อง
ม้านั่งออกกำลังกาย
ดัมเบล
เครื่องเดิน
ลู่วิ่ง
เครื่องปั่นจักรยาน
ม้านั่งออกกำลังกาย
ผนังห้องจะเป็นกระจก และมีหน้าต่าง
วิวจากห้องฟิตเนส มองออกไปจะเห็นสระว่ายน้ำ
มองกลับไปที่ประตูทางเข้า
ออกจากห้องฟิตเนสมา ขวามือเป็นสระว่ายน้ำ ซ้ายมือเป็นทางเดินไปห้องน้ำ
เดินออกมาจะเจอสระว่ายน้ำ ขนาด 17 x 4.5 ม.

ปลายสระฝั่งนี้วางโต๊ะสนามมาให้
มองกลับไปฝั่งด้านใน จะมีทางเดินริมสระ วางเตียงริมสระมาให้ด้วย
ฝั่งด้านนอกจะมีแนวพุ่มไม้กั้นแยกส่วนจากที่จอดรถกลางแจ้งไว้
ปลายสระอีกฝั่งเป็นที่ล้างตัว
มองจากปลายสระอีกฝั่ง
เดินเข้าไปดูส่วนของห้องน้ำกันต่อ
เดินตามทางมาซ้ายมือจะเป็นทางเข้าห้องน้ำ
ทางเข้าห้องน้ำ มีห้องน้ำแยกชายหญิง
ภายในห้องน้ำชาย เดินเข้ามาจะเจอตู้ล็อคเกอร์
ด้านในเป็นอ่างล้างหน้า และเคาน์เตอร์วางของ โถปัสสาวะอยู่ฝั่งขวา
ฝั่งตรงข้ามเป็นห้องน้ำและห้องอาบน้ำอย่างละ 2 ห้อง
ภายในห้องน้ำ
ภายในห้องอาบน้ำ
ถัดจากทางเข้าห้องน้ำชายหญิงมา ซ้ายมือเป็นห้องน้ำสำหรับผู้ที่ใช้รถเข็น ถัดไปตรงหน้าจะเป็นห้องนิติบุคคล ขวามือมีทางเดินเชื่อมออกไปยังที่จอดรถกลางแจ้งด้านหลัง
กลับเข้ามาใน Lobby ตรงหน้าจะเป็นทางเข้าโถงลิฟท์ ประตูส่วนนี้ต้องใช้ Finger Scan
เปิดเข้ามาจะเจอโถงลิฟท์แบบนี้ ซ้ายมือเป็นส่วนของ Mail Box
ทางเข้า Mail Box
ด้านในแบ่งเป็นชั้นๆ
ลิฟท์โดยสารมีให้ 2 ตัว
ภายในลิฟท์โดยสาร
แผงกดลิฟท์ด้านใน
ขึ้นมาที่ชั้น 15 ออกจากลิฟท์มาแต่ละชั้น จะเจอเลขชั้นแบบนี้
ตรงโถงลิฟท์แต่ละชั้น จะมีช่องแสง และหน้าต่างบานกระทุ้ง 1 บาน เปิดระบายอากาศได้
มองกลับเข้ามาด้านใน จะเป็นทางเข้าไปยังส่วนพักอาศัย
บริเวณโถงทางเดินส่วนพักอาศัยแต่ละชั้น
จากชั้น 15 เดินขึ้นบันไดหนีไฟไปชั้นดาดฟ้าจะมีสวนส่วนกลางอยู่ครับ
เดินขึ้นบันไดหนีไฟมา จะเจอประตูออกไปยังดาดฟ้า
เปิดประตูออกมาจะเจอกับสวนส่วนกลาง
มองไปฝั่งด้านข้างจะมี Pavilion ไว้ให้นั่งพักผ่อน
มองไปอีกฝั่ง มีสนามหญ้าโล่งๆ
เดินมาช่วงกลางอาคาร จะทำเป็นเหมือนระเบียงไว้ให้ชมวิวฝั่งด้านหลังโครงการ
วิวฝั่งด้านหลังอาคารเป็นทิศตะวันออก จากระเบียงมองออกไปไกลๆเห็นทะเล
มองลงมาด้านล่างจะเห็นสระว่ายน้ำ และที่จอดรถกลางแจ้ง นอกรั้วโครงการตอนนี้ยังเป็นพื้นที่ว่างเปล่าอยู่
มองกลับไปอีกฝั่ง มีลานจอดเฮลิคอปเตอร์
มองไปปลายอาคารอีกฝั่ง
มี Pavilion อีกจุด มีต้นไม้ใหญ่และไม้พุ่มรอบๆ
มองกลับไปจะเห็นแบบนี้
จาก Pavilion มองไปทิศใต้
วิวทิศเหนือมองทางถนนรัษฎา จะเห็นอาคารบ้านเรือนต่างๆ วิวไกลๆจะเห็นภูเขา

วิวทิศตะวันออกเฉียงเหนือมองไปทางถนนภูเก็ต ฝั่งนี้จะเริ่มเห็นอาคารสูง
วิวฝั่งทิศตะวันตกฝั่งด้านหน้าหน้าโครงการ จะเห็นโรงแรมวาปา
ฝั่งทิศใต้วิวมองไปทางโซนสะพานหิน
Units Type
โครงการมีห้องให้เลือกแบบหลักๆดังนี้
2 Bedroom ขนาด 80 ตร.ม.
ห้องตัวอย่าง
ห้องตัวอย่างที่จะพามาชมวันนี้มี 2 แบบ
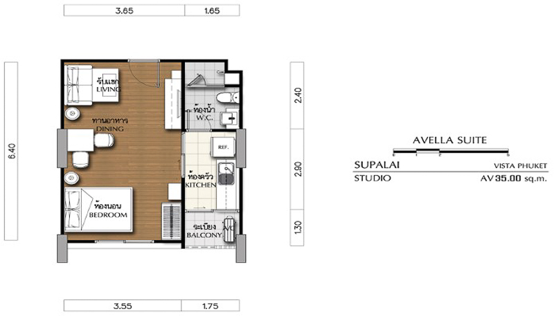
แบบแรกที่จะพามาชมเป็น Studio ขนาด 35.00 ตร.ม. เดินเข้าห้องมาเจอส่วนห้องนั่งเล่นก่อน เชื่อมกับส่วนรับประทานอาหาร และส่วนห้องนอนด้านในสุด ฝั่งซ้ายจะเป็นห้องครัว ได้เป็นครัวปิด มีทางเดินออกไปตรงระเบียง ส่วนห้องน้ำอยู่ในห้องครัว
เริ่มจากประตูหน้าห้อง ลายไม้สองสี มีกริ่งหน้าห้อง บ้านเลขที่ติดไว้ที่ประตู
มือจับประตูเป็นแบบคันโยก ใช้กุญแจล็อค
เปิดประตูเข้ามาจะเจอส่วนห้องนั่งเล่นก่อน เชื่อมกับส่วนรับประทานอาหาร ในสุดเป็นส่วนห้องนอน ขวามือเป็นห้องครัวและห้องน้ำ พื้นห้องเป็นไม้ลามิเนตหนา 8 มม. ฝ้าสูง 2.55 ม. ผนังได้ฉาบเรียบทาสีทั้งห้อง ไฟได้แบบโคมซาลาเปา
มองกลับไปที่ประตูทางเข้า
วางซาฟา และโต๊ะรับประทานอาหารไว้ฝั่งเดียวกัน
วางโซฟาขนาด 2 ที่นั่งพร้อมโต๊ะกลางให้ดู พื้นที่สามารถวางโซฟาตัว L ได้
ติดกันวางโต๊ะรับประทานอาหารขนาด 2 ที่นั่งให้ดูระยะ
ระยะดูทีวีประมาณ 3.53 ม. ซ้ายมือเป็นห้องครัว
ถัดเข้าไปด้านในเป็นส่วนของห้องนอน เราสามารถติดฉากกั้นเป็นกระจกบานเลื่อนแยกส่วนได้ครับ
วางเตียงนอน 5 ฟุตให้ดู
พื้นที่ปลายเตียงเหลือประมาณ 1.53 ม.
ข้างเตียงริมหน้าต่างเหลือประมาณ 52 ซม.
ปลายเตียงสามารถวางตู้เสื้อผ้า และโต๊ะเครื่องแป้งได้
ฝั่งด้านนอกเป็นหน้าต่างบานเลื่อน 2 บาน แอร์ติดตรงผนัง 1 ตัว
มองกลับเข้าไปด้านใน
ส่วนครัวจะได้เป็นครัวปิด มีประตูเปิดปิดบานเลื่อนให้ 2 บาน
ภายในห้องครัว ได้ชุดเคาน์เตอร์ครัวตามนี้เลย พื้นห้องครัวจะได้เป็นกระเบื้อง
ตู้ด้านบนเป็นแบบบานเปิด 2 บาน
ด้านล่างเป็นบานเปิด 3 บาน และลิ้นชัก 1 ช่อง
ได้อ่างล้างจานแบบหลุมเดียว พร้อมที่พักจานของ Mex มีพื้นที่ไว้ให้วางเตาไฟฟ้าได้
ฝั่งด้านในเป็นห้องน้ำ
มือจับประตูห้องน้ำเป็นแบบลูกบิด
ภายในห้องน้ำแบ่งพื้นที่ส่วนเปียกส่วนแห้ง
อ่างล้างหน้าได้ทรงสี่เหลี่ยมของ Kohler ซ้ายมือที่ผนังมีปลั๊กไฟพร้อมฝาครอบมาให้เรียบร้อย
ติดกันวางโถสุขภัณฑ์ของ Kohler
ด้านในเป็นพื้นที่ส่วนเปียก มีฉากกั้นอาบน้ำมาให้แบบบานเปิด เป็น Tempered Glass
ด้านในติดฝักบัวพร้อมเครื่องทำน้ำอุ่นของ Electrolux ซ้ายมือมีช่องสำหรับวางอุปกรณ์อาบน้ำ
หน้าตาฝักบัวที่มาพร้อมเครื่องทำน้ำอุ่น
พื้นที่ส่วนเปียกขนาด 1.18 x 0.85 ม.
ออกจากห้องน้ำมา มองไปฝั่งตรงข้ามห้องน้ำจะเป็นระเบียง มีประตูบานเลื่อน 2 บาน
เปิดออกมาจะเจอระเบียงขนาด 1.2 x 1.6 ม.
ด้านข้างแขวนคอมเพลสเซอร์แอร์ 1 ตัว
มีพื้นที่ไว้ให้วางเครื่องซักผ้า เดินท่อน้ำและปลั๊กไฟไว้ให้เรียบร้อย
อีกแบบที่พามาชมเป็น 1 Bedroom ขนาด 49.50 ตร.ม. เดินเข้าห้องมาจะเจอส่วนห้องนั่งเล่นก่อนมีขนาดค่อนข้างกว้าง ด้านในเป็นห้องครัวได้เป็นครัวปิด มีพื้นที่ให้วางโต๊ะรับประทานอาหารได้ อีกฝั่งเป็นห้องน้ำ มีระเบียงติดกับห้องนอน มีห้องน้ำที่มีทางเข้าออกสองทางคือจากในห้องนอนและจากห้องนั่งเล่น
เดินเข้าห้องมาจะเจอส่วนห้องนั่งเล่นก่อน พื้นที่ค่อนข้างกว้างยาวเข้าไป พื้นที่ขนาดห้องนั่งเล่นประมาณ 5.9 x 2.9 ม. ด้านในเป็นห้องครัว ฝั่งขวามือเป็นห้องนอน และห้องน้ำ พื้นห้องนั่งเล่นและห้องครัวเป็นกระเบื้อง ฝ้าสูง 2.55 ม. ผนังได้ฉาบเรียบทาสี
เดินเข้ามาแล้วมองกลับไปที่ประตูทางเข้า ซ้ายมือเป็นประตูห้องน้ำ
ติดกับประตูทางเข้ามีพื้นที่ให้วางตู้เก็บของ ตู้รองเท้า
วางโซฟาขนาด 2-3 ที่นั่ง จะวางยาวกว่านี้ก็ได้ครับ
ระยะดูทีวีประมาณ 2.8 ม. ซ้ายมือเป็นประตูห้องนอน ขวามือเป็นประตูห้องน้ำ
ถัดมาจะมีพื้นที่ให้วางโต๊ะทำงาน หรือตู้เก็บของได้ ด้านในเป็นห้องครัว แอร์ติดผนัง 1 ตัว
ส่วนครัวได้เป็นครัวปิด มีประตูบานเลื่อนให้ 2 บาน
ด้านในห้องครัวมีพื้นที่มาให้พอสมควร
ชุดเคาน์เตอร์ครัวได้ตามนี้เลย ขวามือเป็นพื้นที่วางตู้เย็น

อ่างล้างจานได้แบบหลุมเดียวพร้อมที่พักจาน
พื้นที่ครัวเหลือให้เดิน หรือวางของได้อีกประมาณ 2.2 x 2.8 ม.
ด้านในมีหน้าต่างบานเลื่อน 2 บาน วางโต๊ะรับประทานอาหาร แบบโต๊ะบาร์ให้ดู
มองกลับเข้าไปด้านใน
ออกจากห้องครัวมา ซ้ายมือเป็นประตูห้องนอน
ประตูห้องนอนเป็นบานทึบ
มือจับประตูเป็นแบบลูกบิด
เข้ามาในห้องนอน พื้นที่ค่อนข้างกว้างดีครับ พื้นห้องนอนจะเป็นไม้ลามิเนตหนา 8 มม.
วางเตียงนอนขนาด 5 ฟุตให้ดู พื้นที่ปลายเตียงเหลือประมาณ 79 ซม.
พื้นที่ข้างเตียงริมระเบียงเหลือประมาณ 8.6 ม.
ข้างเตียงอีกฝั่งเหลือประมาณ 3.39 ม.
ระยะดูทีวีปลายเตียงประมาณ 2.7 ม.
ฝั่งด้านนอกเป็นระเบียง มีประตูบานเลื่อน 2 บาน แอร์ติดผนัง 1 ตัว
เปิดประตูออกมาจะเจอระเบียงขนาด 1.2 x 2.59 ม.
ตรงระเบียงฝั่งด้านข้างจะแขวนคอมเพลสเซอร์แอร์ 2 ตัว ด้านล่างมีพื้นที่ให้วางเครื่องซักผ้า
อีกฝั่งมีไฟติดไว้
มองกลับเข้ามาด้านใน จะเป็นห้องน้ำ
ด้านหน้าห้องน้ำ มีพื้นที่ให้วางตู้เสื้อผ้า และโต๊ะเครื่องแป้ง จะทำเป็น Walk in closet ก็ได้
ภายในห้องน้ำมีพื้นที่ส่วนเปียกส่วนแห้ง
สุขภัณฑ์ในห้องน้ำเป็นของ Kohler
ฝั่งด้านในเป็นพื้นที่ส่วนเปียก มีฉากกั้นอาบน้ำมาให้เป็นแบบบานเปิด
ด้านในติดฝักบัวและเครื่องทำน้ำอุ่นมาให้ด้วย มีช่องสำหรับวางอุปกรณ์อาบน้ำ
พื้นที่ส่วนเปียกขนาด 1.08 x 0.84 ม.
ห้องน้ำมีทางเข้าออก 2 ทาง คือจากในห้องนอนและจากห้องนั่งเล่น
ราคา (ก.พ.61)
ค่าส่วนกลาง 35 บาท/ตร.ม. : ค่ากองทุน 350 บาท/ตร.ม
เงินจอง 10,000 บาท และ เงินทำสัญญา 20,000 บาท
***รายละเอียดอื่นๆโปรดสอบถามทางโครงการครับ
สรุป
ทำเลที่ตั้งโครงการ – ศุภาลัย วิสต้า ภูเก็ต ตั้งอยู่ในเขตอำเภอเมืองภูเก็ต ในย่านเมืองเก่า รายล้อมไปด้วยความอุดมสมบูรณ์ ตามริมสองฝั่งทางถนนตะกั่วป่าจะมีร้านค้า ร้านอาหารตามสั่ง ร้านอาหารแบบกึ่งผับกึ่งบาร์ ใกล้ตลาดสด และที่สำคัญคือย่านเมืองเก่าภูเก็ตจะมีร้านอาหารอร่อยๆขึ้นชื่อหลายร้านเลย เลือกทานได้ตามใจ ส่วนห้างสรรพสินค้าใกล้ๆมีโอเชี่ยนช้อปปิ้งมอลล์ โรบินสันภูเก็ต ถ้ามาตรงถนนเฉลิมพระเกียรติ ร. 9 หรือบายพาส จะมีทั้ง Premium Outlet, IKEA, Central Festival, Central Phuket, Home Work, Tops นอกจากนี้บริเวณโดยรอบโครงการก็จะมีทั้งสถานศึกษาและโรงพยาบาลอยู่อีกหลายแห่งด้วย
การเดินทางด้วยรถยนต์ส่วนตัว – ตัวโครงการอยู่ติดถนนตะกั่วป่าเป็นเส้นที่เชื่อมไปยังที่ต่างๆได้สะดวก ถ้ามาออกถนนรัษฎาเชื่อมออกถนนระนอง ถนนวิชิตสงคราม มาออกถนนพระบารมีไปหาดป่าตองได้ หาดกะรน หาดกะตะ หรือถ้ามาออกเส้นเทพกระษัตรี ใช้เดินทางเชื่อมต่อไปยังที่ต่างๆได้สะดวก ไม่ว่าจะเชื่อมออกจังหวัดพังงาตรงสะพานสารสิน ไปสนามบินภูเก็ตได้ ถนนสำคัญอีกเส้นที่ไม่ไกลจากโครงการคือถนนเฉลิมพระเกียรติ ร.9 หรือบายพาส เป็นเส้นที่เชื่อมต่อไปยังสถานที่ต่างๆ และเป็นเส้นที่มีห้างสรรพสินค้าหลายแห่งบนเส้นนี้ ในอนาคตจะมีทางพิเศษกะทู้-ป่าตอง เป็นทางด่วนเก็บค่าผ่านทาง จะทำให้การเดินทางสะดวกสบายและรวดเร็วยิ่งขึ้น
การเดินทางด้วยรถสาธารณะ – หน้าโครงการมีรถสองแถววิ่งผ่าน โดยท่ารถจะอยู่บริเวณตลาดสดดาวน์ทาวน์ โดยรถจะวิ่งบริการไปตามเส้นทางรอบๆเกาะมีตั้งแต่รอบ 6 โมงเช้าและจะหมดในช่วง 4 – 6 โมงเย็น มีอยู่หลายเส้นทางจากตัวเมืองภูเก็ตไปตามหาดต่างๆ วินมอเตอร์ไซค์ก็เรียกหน้าโครงการได้เลย มีรถบัสวิ่งไป-กลับสนามบิน มีรถตุ๊กๆแบบ 4 ล้อ มีรถตู้ให้บริการ มี Taxi ซึ่งมีค่าใช้จ่ายค่อนข้างสูง และมีบริการใช้เช่ารถทั้งรถยนต์ และรถมอเตอร์ไซค์ อัตราการใช้บริการก็ขึ้นอยู่กับรุ่นและขนาดเครื่องยนต์เป็นที่นิยมในหมู่นักท่องเที่ยว
ในอนาคตจะมี โครงการรถไฟรางเบา (LRT) โดยเริ่มต้นที่สถานีท่านุ่น จังหวัดพังงา เข้าเส้นทางหลักถนนเทพกระษัตรี วิ่งผ่านสนามบิน ผ่านตัวเมืองไปจนถึง 5 แยกฉลอง มีระยะทางถึง 60 กม.กับ 20 สถานี จะช่วยให้ระบบขนส่งสาธารณะสะดวกขึ้นเป็นอย่างมากทั้งผู้ที่อาศัยอยู่ในภูเก็ตเอง และนักท่องเที่ยวเพราะเป็นเส้นทางที่จะเชื่อมสนามบินภูเก็ตเข้าสู่ตัวเมือง รวมทั้งรองรับการเดินตามแนวเส้นทาง แต่คงต้องรอกันไปอีกสักพักใหญ่ๆครับ
การออกแบบโครงการและวัสดุ – โครงการออกแบบมา 1 อาคาร สูง 15 ชั้น บนพื้นที่ดินขนาด 2-3-46.8 ไร่ อาคารรูปทรงสี่เหลี่ยมเป็นตัว V แต่เป็นมุมป้าน สีภายนอกใช้โทนสีขาว ตัดด้วยเทาและฟ้า ชั้นพักอาศัยจะเริ่มที่ชั้น 2-15 จัดส่วนกลางไว้ที่ชั้น 1 และชั้นดาดฟ้า จอดรถได้ที่ชั้น 1
การออกแบบห้องพักอาศัยที่นี่มีให้เลือก 3 แบบหลักๆ คือ Studio ขนาด 35 ตร.ม., 1 Bedroom ขนาด 49.5-50 ตร.ม., 2 Bedroom ขนาด 61 , 80 ตร.ม. ห้องออกแบบมาดูโปร่งไม่อึดอัด ฝ้าสูง 2.55 ม. โครงการขายแบบ Fully Fitted ของที่ได้จะมี ชุดครัว อ่างล้างจานของ Mex สุขภัณฑ์ภายในห้องน้ำของ Kohler พร้อมฉากกั้นส่วนเปียก และติดตั้งเครื่องทำน้ำอุ่นให้ แอร์ได้แบบติดผนังตรงห้องนั่งเล่นและทุกห้องนอน
สิ่งอำนวยความสะดวก – Facility หลักๆของโครงการอยู่ที่ชั้น 1 และดาดฟ้า ที่ชั้น 1 มี Lobby วางชุดโต๊ะและเก้าอี้วางไว้รองรับ มีทางเดินเชื่อมไปห้องฟิตเนส และสระว่ายน้ำขนาด 17 x 4.5 ม. มีพื้นที่นั่งเล่นริมสระ มีห้องน้ำแยกชายหญิง และห้องน้ำสำหรับผู้ที่ใช้รถเข็น และที่ชั้นดาดฟ้าจะมีส่วนส่วนกลางตกแต่งด้วยไม้พุ่มไม้ใหญ่ มี Pavilion ไว้ให้ ลูกบ้านสามารถขึ้นมารับลมชมวิวรอบๆโครงการได้เลย ลิฟท์โดยสารมีให้ 2 ตัว ที่จอดรถจอดได้ที่ชั้น 1 ทั้งแบบกลางแจ้งและใต้อาคาร คิดเป็น 31% รวมซ้อนคัน ระบบรักษาความปลอดภัยมีรปภ. มี CCTV และผ่านเข้าออกด้วยระบบ Key Card Access
คะแนน
| ทำเลที่ตั้งโครงการ | 8.0 | อยู่ติดถนนตะกั่วป่า มีความอุดมสมบูรณ์ในตัว ใกล้สถานที่ท่องเที่ยว |
| การเดินทาง ใช้รถ | 8.0 | เชื่อมออกได้หลายเส้นทาง |
| การเดินทาง ไม่ใช้รถ | 8.5 | สองแถว, วินมอเตอร์ไซค์, รถเช่า, รถไฟฟ้ารางเบา |
| ห้องและวัสดุ | 7.5 | ออกแบบมาได้กว้างขวาง วัสดุที่ใช้อยู่ในระดับมาตรฐานตามราคา ขายแบบ Fully Fitted |
| สิ่งอำนวยความสะดวก | 7.5 | Facility มี Lobby , สวนหย่อม , ฟิตเนส , สระว่ายน้ำ |
| ความคุ้มค่ากับราคา | 7.5 | ตัวโครงการเหมาะกับคนที่ทำงาน หรือต้องการที่อยู่อาศัยแนวสูงในเขตอำเภอเมือง |
| คะแนนรวมเฉลี่ย | 7.83 | ดี |
สอบถามรายละเอียดเพิ่มเติมได้ที่
Tel : 076-217-777
Website : http://www.supalai.com
หากเพื่อนๆเห็นว่ารีวิวนี้มีประโยชน์ ช่วยกด Like เพื่อเป็นกำลังใจให้ทีมงาน ขอบคุณครับ
และมีความคิดเห็นหรือข้อมูลเพิ่มเติมเกี่ยวกับตัวโครงการ สามารถ Comment ได้ที่ด้านล่างของรีวิวครับ