
รีวิว คอนโด ไซมิส เอ็กซ์คลูซีฟ สุขุมวิท 31 ใกล้ BTS พร้อมพงษ์ และ MRT อโศก
สวัสดีผู้อ่าน Homenayoo ทุกคนค่ะ วันนี้เราจะพาไปชมทำเลของโครงการ Siamese Exclusive สุขุมวิท 31 จาก Siamese Asset
เป็นโครงการคอนโดมิเนียมบนซอยสุขุมวิท 31 แขวงคลองเตยเหนือ เขตวัฒนา กรุงเทพมหานคร อยู่ในย่านชุมชนโดยรอบเป็นบ้านพักอาศัย ใกล้ห้างสรรพสินค้า, ร้านค้าและร้านอาหาร ไปยังสถานีรถไฟฟ้าสายสีเขียวและสายสีน้ำเงินได้สะดวก ไม่ไกลจากจุดขึ้น-ลงทางด่วน
ไซมิส เอ็กซ์คลูซีฟ สุขุมวิท 31 คอนโดมิเนียม 21 ชั้น 1 อาคาร บนพื้นที่ 1-2-98.3 ไร่ ยูนิตพักอาศัย 193 ยูนิต มีแบบห้องให้เลือก 4 แบบคือแบบ 1-3 ห้องนอนและ Penthouse โดยขนาดพื้นที่ใช้สอยจะเริ่มตั้งแต่ 46.0-182.0 ตร.ม. คาดว่าแล้วเสร็จประมาณเมษายน 2562
สิ่งอำนวยความสะดวกภายในครบครัน มีสระว่ายน้ำ, ฟิตเนส, กล้องวงจรปิดภายในโครงการ และรปภ.ตลอด 24 ชั่วโมง ลิฟต์โดยสาร, Automatic Parking และพื้นที่จอดรถใต้อาคาร ราคาเริ่มต้น 10.5 ล้านบาท
วันนี้เราจะพาท่านผู้อ่านไปสำรวจสถานที่ วิเคราะห์ทำเล และพื้นที่รอบๆโครงการว่าเป็นอย่างไร
คอนโด Siamese ทำเลอื่นๆ ที่น่าสนใจ…
Siamese นางลิ้นจี่
Siamese สุรวงศ์
Siamese ราชครู
Siamese Exclusive รัชดา
Siamese พระราม 9
Siamese Exclusive Queens
Siamese สุขุมวิท
Siamese Exclusive สุขุมวิท 31
Siamese Exclusive สุขุมวิท 42
Siamese สุขุมวิท 39
Siamese สุขุมวิท 87

| ชื่อโครงการ | ไซมิส เอ็กซ์คลูซีฟ สุขุมวิท 31 Siamese Exclusive Sukhumvit 31 |
| เจ้าของโครงการ | ไซมิส แอสเสท Siamese Asset |
| ลักษณะห้องและขนาดห้อง |
|
| เนื้อที่ทั้งหมด | 1-2-98.3 ไร่ |
| จำนวนตึก | 1 อาคาร |
| จำนวนชั้น | 21 ชั้น |
| จำนวนห้อง |
|
| ที่จอดรถทั้งหมด | 162 คัน, Automatic Parking 86 คัน |
| โซน | เขตวัฒนา |
| ขนส่งสาธารณะ |
|
| รถโดยสารที่ผ่าน | n/a |
| ที่ตั้ง | ซอยสุขุมวิท 31 แขวงคลองตันเหนือ เขตวัฒนา กทม. |
| กำหนดการ | เริ่มก่อสร้างกลางปี 2560 |
| ปีที่สร้างเสร็จ | เมษายน 2562 |
| ราคา | เริ่มต้น 10.5 ล้านบาท |
| ราคาเฉลี่ยต่อ ตร.ม | ราคาเฉลี่ยเริ่มต้น 214,912 บาท/ ตร.ม. |
| ค่าส่วนกลางและกองทุน | n/a |
| สถานที่สำคัญใกล้เคียง |
|
| สิ่งอำนวยความสะดวก |
|
| จุดเด่นของโครงการ | Siamese Exclusive คอนโดมิเนียมใจกลางสุขุมวิท 31 สะดวกทุกเส้นทางเข้าออก ทั้งสุขุมวิท อโศก เพชรบุรีตัดใหม่และทองหล่อ รวมถึงสถานีรถไฟฟ้า BTS และ MRT ห้างสรรพสินค้า โรงเรียนสาธิตและมหาวิทยาลัยชั้นนำรวมถึงโรงพยาบาล |
โครงการใกล้เคียง

คอนโดติดถนนสุขุมวิท
คอนโดซอยสุขุมวิท 49 และซอยสุขุมวิท 51 (ใกล้รถไฟฟ้า BTS ทองหล่อ)
คอนโดซอยสุขุมวิท 41, สุขุมวิท 43 และสุขุมวิท 47
คอนโดซอยสุขุมวิท 39
คอนโดซอยสุขุมวิท 31 และสุขุมวิท 33
ที่ตั้งโครงการ
พิกัด google map : 13°44’30.8″N 100°34’00.3″E
ถนนสุขุมวิท 31 แขวงคลองเตยเหนือ เขตวัฒนา กรุงเทพมหานคร
โครงการ Siamese Exclusive สุขุมวิท 31 ตั้งอยู่บนถนนสุขุมวิท 31 โดยรอบเป็นย่านพักอาศัย ทั้งแบบบ้านเดี่ยวและคอนโดมิเนียม ไม่ไกลจากสถานศึกษา, โรงพยาบาล ในซอยมีร้านค้าและร้านอาหาร ปากซอยไม่ไกลจากห้างสรรพสินค้าใหญ่, รถไฟฟ้าสายสีเขียวและสายสีน้ำเงิน
ที่ตั้งโครงการ ตั้งอยู่บนสุขุมวิท 31 เป็นซอยที่ลัดเลาะไปยังซอยต่างๆของถนนสุขุมวิท และลัดไปยังถนนใหญ่ได้ไม่ยาก โดยรอบเป็นบ้านพักอาศัยและร้านค้า, ร้านอาหาร ปากซอยมีรถไฟฟ้าสายสีเขียวและห้างสรรพสินค้าใหญ่ จึงมีความอุดมสมบูรณ์โดยรอบ ไม่ไกลจากจุดขึ้น-ลงทางด่วน
การเดินทางด้วยรถยนต์ส่วนตัว ถือว่าสะดวกทีเดียวเนื่องจากอยู่บนซอยสุขุมวิท 31 เป็นซอยที่ลัดเลาะไปได้หลายเส้นทาง ปากซอยติดกับถนนสุขุมวิท สำหรับถนนสุขุมวิทเป็นถนนหลักจึงเดินทางไปยังถนนอื่นๆได้หลากหลายสาย ถ้าตรงไปยังสุขุมวิทตอนปลาย ผ่านแยกพระโขนงก็จะตรงไปยังบางนา ยาวไปจนถึงสมุทรปราการ หรือถ้าผ่านแยกอ่อนนุชก็เลี้ยวไปลาดกระบัง, พัฒนาการ, ศรีนครินทร์ ถ้าตรงไปยังสุขุมวิทตอนต้น และถ้าตรงไปยังสุขุมวิทตอนต้นก็จะวิ่งเข้าเมืองกรุงเทพ ไปยังอโศก, ปทุมวัน, ถนนพระราม 1 ได้ เส้นนี้ลัดเข้าเพชรบุรีและพระราม 9 ได้สะดวก
และจากโครงการไม่ไกลจากแยกอโศกที่ไปยังถนนพระราม 4 ซึ่งการเดินทางบางช่วงจะคล่องตัวกว่าถนนสุขุมวิท จึงเป็นอีกเส้นทางที่สะดวกถ้าจะวิ่งตรงไปสาทร, พญาไทและเข้าถนนพระราม 3 ได้ไม่ยาก ถ้าใครทำงานโซนนั้นก็เดินทางได้สะดวกทั้งรถส่วนตัวหรือรถสาธารณะค่ะ
สำหรับอีกเส้นทางเนื่องจากซอยสุขุมวิท 31 นั้นเป็นเส้นที่เชื่อมต่อกับซอยต่างๆของถนนสุขุมวิท จึงลัดเลาะไปยังถนนอโศกมนตรีได้ และลัดไปยังซอยสุขุมวิท 39 ที่จะวิ่งไปถนนเพชรบุรี แต่บางช่วงของถนนในซอยใกล้เคียงอย่างซอยสวัสดีช่วงที่เชื่อมระหว่างซอยสุขุมวิท 31-33-39 จะเป็นถนนเดินรถทางเดียว ดังนั้นบางช่วงเวลารถก็จะติดบ้างนะคะ
ทางด่วน อยู่ใกล้จุดขึ้น-ลงทางด่วน ห่างจากโครงการเพียง 2.6 กม. วิ่งตรงตามถนนสุขุมวิทไปยังทางด่วนเฉลิมมหานคร ซึ่งเป็นเส้นที่ไปเชื่อมกับทางด่วนศรีรัชได้ ทำให้เดินทางทั้งเข้า-ออกตัวเมืองได้สะดวก
การเดินทางด้วยรถสาธารณะ หน้าโครงการมีแท็กซี่ผ่านเป็นระยะ และมีวินมอเตอร์ไซค์อยู่ไม่ไกล อีกทั้งปากซอยสุขุมวิท 31 ก็จะมีรถไฟฟ้าสายสีเขียววิ่งผ่าน แต่ตัวโครงการนั้นอยู่ระหว่างสองสายด้วยกันนั่นคือสายสีเขียวสถานีพร้อมพงษ์ หรือสายสีน้ำเงินสถานีสุขุมวิทตรงนั้นก็ยังเป็นจุดเชื่อมระหว่างสายสีเขียวที่สถานีอโศกด้วยค่ะ ดังนั้นถ้านั่งวินมาขึ้นรถไฟฟ้าก็สามารถเลือกได้เลยว่าจะสะดวกไปสถานีไหน
หน้าปากซอยที่ติดกับถนนสุขุมวิทมีรถโดยสารประจำทางวิ่งผ่านหลายสายคือ 2, 2ส, 25, 38ร, 40ร, 48ร, 98ร, 501, 508, 511
การเดินทางไปยังรถไฟฟ้า การเดินทางจากโครงการไปยังรถไฟฟ้าถือว่าสะดวกมากทีเดียวค่ะ สำหรับสายสีเขียวหรือ BTS จะสามารถเลือกได้สองสถานีคือสถานีพร้อมพงษ์และสถานีอโศก ในแผนที่คือเดินทางตามลูกศรสีเขียว ถ้าไปสถานีพร้อมพงษ์จะห่างจากโครงการประมาณ 950 ม. ส่วนสถานีอโศกที่เชื่อมกับสายสีน้ำเงินจะห่างจากโครงการประมาณ 1.3 กม.
สำหรับรถไฟฟ้าสายสีน้ำเงินหรือ MRT จะเดินทางไปยังสถานีสุขุมวิทได้ ซึ่งตรงนั้นก็เป็นจุดเชื่อมต่อกับสายสีเขียวด้วยค่ะ โดยเดินทางตามลูกศรสีน้ำเงิน ห่างจากโครงการประมาณ 1.3 กม.ค่ะ
ความอุดมสมบูรณ์ เนื่องจากที่ตั้งโครงการอยู่ในย่านพักอาศัย โดยรอบเป็นบ้านพักอาศัยและคอนโดมิเนียมในซอยจึงมีร้านค้าและร้านอาหารอยู่เป็นระยะ ไม่ไกลก็มีร้านสะดวกซื้อที่เดินไปได้สะดวก ปากซอยมีอาคารสำนักงานใหญ่หลายอาคาร อีกทั้งไม่ไกลจากทั้งถนนสุขุมวิท, เพชรบุรี, อโศกมนตรีและพระราม 4 ซึ่งถนนเหล่านี้ก็เป็นเส้นที่มีความอุดมสมบูรณ์มากทีเดียวค่ะ
สำหรับเส้นสุขุมวิทนั้น ตรงไปหน่อยก็จะเป็น Emporium, EmQuartier, Terminal 21, Central ชิดลม จากสุขุมวิทตรงไปถึงถนนพระราม 1 ได้ตรงนั้นจะมีห้างสรรพสินค้าทั้ง เกษร, อัมรินทร์พลาซ่า, บิ๊กซี ราชดำริ, Central World, Siam Paragon, Siam Center, Siam Discovery, Siam Square One และ MBK Center หรือถ้าไปทางเอกมัยก็จะมี Gateway เอกมัย, Major Cineplex
ถนนอโศกมนตรีก็เป็นที่ตั้งของอาคารสำนักงาน, โรงพยาบาลและสถานศึกษา อย่างม.ศรีนครินทร์วิโรฒ, รร.สาธิต มศว, รร.วัฒนาวิทยาลัย, วิทยาลัยเทคโนโลยีดอนบอสโก ส่วนถนนเพชรบุรีก็เป็นมีบ้านพักอาศัย ร้านค้า, ร้านอาหาร ไม่ไกลจากโรงพยาบาลกรุงเทพ, โรงพยาบาลพระราม 9
ถนนพระราม 4 นั้นจะมีทั้งคอมมูนิตี้มอลและห้างสรรพสินค้า โดยจะมีสวนเพลินมาร์เก็ต และ K Village เป็นคอมมูนิตี้มอลที่มีร้านค้าและร้านอาหารมากมาย ส่วนห้างสรรพสินค้าก็จะมีทั้ง Lotus พระราม 4 และ Big C พระราม 4
แยกและถนนสำคัญใกล้เคียง
การเดินทาง
เรามีภาพการเดินทางโดยรถมาให้ชมกัน เส้นทางการเดินทางตามลูกศรแดง โดยเริ่มเดินทางจาก ถนนสุขุมวิท → วิ่งตรงผ่าน BTS นานา → ตรงไปผ่าน BTS อโศก → ตรงผ่านแยกอโศก→ เลี้ยวซ้ายเข้าซอยสุขุมวิท 31→ ตรงเข้ามาประมาณ 500ม.ให้เลี้ยวซ้ายที่สี่แยก → ตรงไปตามทางประมาณ 110 ม. ก็จะถึงโครงการ Siamese Exclusive สุขุมวิท 31 แล้วค่ะ
จาก BTS สถานีนานาให้ตรงไปตามถนนสุขุมวิท มุ่งหน้าผ่านแยกอโศก
ตรงไปเรื่อยๆด้านยนจะเห็นทางรถไฟฟ้าสายสีเขียว ถ้าเห็นโรบินสันสุขุมวิททางซ้ายมือแสดงว่าใกล้แยกอโศกแล้วค่ะ
ใกล้แยกอโศกจะเป็นจุดที่มีรถไฟฟ้าสองสาย ด้านบนนี้คือรถไฟฟ้าสายสีเขียวสถานีอโศก ทางด้านซ้ายคือห้างสรรพสินค้าเทอมินอล 21
แยกอโศกให้ตรงไป ตรงนี้จะเห็นรถไฟฟ้าสองสายคือสายสีเขียวด้านบน และทางเข้า-ออกสถานีของสายสีน้ำเงินที่เป็นรถไฟฟ้าใต้ดิน สำหรับตึก Interchange จะเป็นจุดที่รถรับ-ส่งของโครงการมาให้บริการตรงนี้ ทำให้สามารถเลือกใช้บริการรถไฟฟ้าได้ทั้งสองสาย
ตรงไปเรื่อยๆตามถนนสุขุมวิท
ผ่านแยกอโศกมาเพียง 650 ม.ก็จะเจอกับซอยสุขุมวิท 31 ให้เลี้ยวซ้ายเข้าไปได้เลยค่ะ
จากปากซอย 31 ก็ตรงไปเพียง 650 ม. ก็จะเจอกับที่ตั้งโครงการโดยวิ่งตามถนนสุขุมวิท 31 ไปได้เลย
ในซอยเป็นถนนไม่ใหญ่นัก มีรถจอดข้างทางบ้าง รถจะคึกคักพอสมควรค่ะ
สองข้างทางมีร้านค้า, ร้านอาหารมากมายและอาคารพักอาศัยที่เป็นแบบบ้านเดี่ยวและคอนโดมิเนียม
ตรงมาเรื่อยๆเจอแยกแรกให้เลี้ยวซ้ายค่ะ
เลี้ยวขวาตามถนนไปเลยค่ะ
เมื่อเลี้ยวมาแล้วก็จะเจอที่ตั้งโครงการอยู่ทางซ้ายมือ เป็นสำนักงานขายและพื้นที่ก่อสร้างค่ะ
บริเวณโดยรอบโครงการ
โครงการ Siamese Exclusive สุขุมวิท 31 โดยรอบเป็นอาคารพักอาศัยทั้งอาคารสูง, บ้านเดี่ยว 1-2 ชั้นและตึกแถว 4-5 ชั้น ไม่ไกลจากสถานศึกษาทั้งระดับประถม, มัธยมและอุดมศึกษา อีกทั้งปากซอยยังมีห้างสรรพสินค้า, อาคารสำนักงานมากมายทำให้ในซอยมีร้านค้าและร้านอาหาร ไม่ไกลจากโครงการมีร้านอาหารและร้านสะดวกซื้อที่เดินไปจับจ่ายได้สะดวก
หน้าโครงการคือถนนสุขุมวิท 31 ตรงข้ามเป็นบ้านพักอาศัย 1-2 ชั้น, ร้านค้า, ร้านอาหารและตึกแถว 5 ชั้น
ด้านซ้ายตรงไปเชื่อมถนนสุขุมวิท 39 ตรงเข้าถนนเพชรบุรีได้ และลัดเลาะไปยังถนนอโศกมนตรีได้ค่ะ อีกทั้งถ้าตรงไปก็ไปยังโรงเรียนสาธิต มศว.ได้เช่นกัน
ถ้าตรงไปจะมีร้านค้าและร้านอาหารทั้งร้านอาหารไทย และอาหารฝรั่งค่ะ
ด้านขวาของโครงการตรงไปยังปากซอยสุขุมวิท 31 และตรงไปเชื่อมสุขุมวิท 33 และ 39 ได้
หัวมุมถนนมีร้านอาหารและคาเฟ่ ซึ่งตรงข้ามมีวินมอเตอร์ไซค์อยู่
ราคาวินมอเตอร์ไซค์ที่อยู่ใกล้โครงการ สามารถเรียกใช้บริการได้สะดวก
ต่อไปทีมงานจะพาเดินจากปากซอยสุขุมวิท 31 นะคะเพื่อมาดูว่าจากปากซอยนั้นเป็นอย่างไร ส่วนในซอยสามารถเห็นได้จากการเดินทางที่โครงการพามาแล้วว่า สองข้างทางนั้นจะมีร้านค้าและร้านอาหารอยู่ตลอดเส้นทางเลย โดยช่วงแรกจะพาเดินจากปากซอยไปยัง BTS พร้อมพงษ์ค่ะ
ปากซอยสุขุมวิท 31 คือถนนสุขุมวิท แยกตรงนี้เรียกว่าแยกสวัสดีค่ะ ด้านบนจะเห็นรางรถไฟฟ้าสายสีเขียว
ด้านซ้ายมุ่งหน้าไปสุขุมวิทตอนปลายจะเป็นการเดินทางไปยังรถไฟฟ้าสายสีเขียวสถานีพร้อมพงษ์ หัวมุมนี้เป็นอาคาร RSU ซึ่งมีร้านค้า และร้านอาหารตรงชั้น 1
ตรงมาเรื่อยๆข้างทางถนนสุขุมวิทจะเป็นอาคารสูง ที่เป็นอาคารสำนักงาน อาคารพักอาศัยที่ตรงชั้นล่างจะมีร้านค้าและร้านอาหาร
ตรงมาเรื่อยๆก็มีร้านค้าและร้านอาหารค่ะ ตรงนี้จะเป็น Villa Market เป็นซุปเปอร์มาร์เก็ตที่สามารถซื้อของนำเข้าและอาหารสดต่างๆได้สะดวก
ตรงมาไม่ไกลก็จะเป็นบันไดขึ้น-ลงสถานีพร้อมพงษ์
ซึ่งติดกับสถานีพร้อมพงษ์นั้นจะมีห้างสรรพสินค้าใหญ่ถึง 2 แห่งด้วยกันนั่นก็คือห้าง EmQuartier
ส่วนฝั่งตรงข้ามที่เป็นซอยสุขุมวิทเลขคู่ก็จะเป็นห้าง Emporium
ต่อมาทีมงานจะพาไปชมบรรยากาศรอบๆและตลอดข้างทางจากปากซอยสุขุมวิท 31 ไปยังแยกอโศก ซึ่งเป็นจุดที่มีรถไฟฟ้าสองสายคือสายสีเขียวและสายสีน้ำเงิน
ด้านขวามือจากปากซอยสุขุมวิท 31 จะเป็นอาคาร S31
ด้านล่างอาคาร S31 ก็มีร้านค้าและร้านอาหาร ในอาคารก็มีฟิตเนสให้มาใช้บริการได้ค่ะ
ตรงมาเรื่อยๆก็ยังคงมีร้านค้าและร้านอาหารตามทาง ถือว่าเป็นย่านที่คึกคักทีเดียว
มาไม่ไกลก็มีอาคารสำนักงานที่ชั้นล่างจะมีร้านค้าและร้านอาหาร
ตรงมาจนถึงแยกอโศก ตรงนี้จะมีห้างสรรพสินค้าและรถไฟฟ้าถึงสองสาย
ห้างสรรพสินค้าที่เห็นนั่นคือ Terminal 21 ส่วนรถไฟฟ้าสายสีเขียวจะเป็นรถไฟฟ้าด้านบนสถานีอโศก ส่วนสายสีน้ำเงินเป็นรถไฟฟ้าใต้ดิน ตรงสถานีสุขุมวิท ซึ่งสะดวกต่อการเดินทางอีกทั้งโครงการยังมีรถรับ-ส่งที่จุดนี้ทำให้สามารถเลือกที่จะเดินทางรถไฟฟ้าสายไหนก็ได้ค่ะ

สถานที่สำคัญ
โครงการ
ภาพบรรยากาศจำลองอาคารโครงการ จะเห็นว่าออกแบบให้แต่ละห้องพักอาศัยมีระเบียงกว้าง เพดานสูงพอที่จะปลูกต้นไม้กระถางเพื่อความร่มรื่นได้
ภาพบรรยากาศจำลองทางเข้า-ออกโครงการที่อยู่ติดกับถนนสุขุมวิท 31 ค่ะ
ภาพบรรยากาศจำลองบริเวณ Lobby ภายในอาคารซึ่งเป็นพื้นที่ส่วนกลาง
ภาพบรรยากาศจำลองที่จะทำให้เห็นพื้นที่ส่วนกลางที่ชั้น 18 และลักษณะอาคารที่ร่นระยะเข้าไป และมองเห็นสวนบนดาดฟ้าซึ่งมีพื้นที่นั่งเล่น นั่งพักผ่อนสำหรับลูกบ้าน
ภาพบรรยากาศจำลองสระว่ายน้ำชั้น 18 ริมสระมีสวนขนาดเล็กทำให้ได้ความร่มรื่นและได้วิวมุมสูงที่มองเห็นตัวเมืองกรุงเทพ
ภาพบรรยากาศจำลองฟิตเนสภายในอาคารซึ่งจะอยู่ที่ชั้น 18 อยู่ติดกับสวนทำให้ได้วิวสวนในโครงการ
ภาพบรรยากาศจำลองพื้นที่ส่วนกลางภายในอาคาร
ภาพบรรยากาศจำลองห้องพักแต่ละชั้น ระเบียงจะมีการสลับเยื้องกันทำให้เกิดเส้นสายด้วยตัวมันเอง
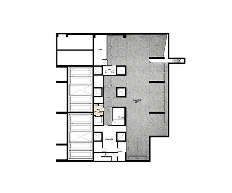
ผังอาคารชั้นใต้ดิน 3 เป็นห้องงานระบบภายในอาคาร และพื้นที่จอดรถที่จะมีทั้งแบบจอดเองและ Automatic Parking
ผังอาคารชั้นใต้ดิน 2 เป็นห้องงานระบบภายในอาคาร และพื้นที่จอดรถที่จะมีทั้งแบบจอดเองและ Automatic Parking
ผังอาคารชั้นใต้ดิน 1 เป็นห้องงานระบบภายในอาคาร และพื้นที่จอดรถที่จะมีทั้งแบบจอดเองและ Automatic Parking
ผังอาคารชั้น Ground จะมีพื้นที่สวนโดยรอบโครงการ ชั้นนี้จะเป็นส่วนของ Lobby และยูนิตร้านค้าด้านหน้า ส่วนด้านหลังเป็นทางเข้า-ออกพื้นที่จอดรถซึ่งมีแบบ Automatic Parking ด้วยค่ะ
ผังอาคารชั้น 2 จะเป็นพื้นที่จอดรถแบบ Automatic parking ด้านหลังและห้องเก็บของกับพื้นที่ส่วนกลางห้องอื่นๆ
ผังอาคารชั้น 3 ด้านหลังยังเป็นพื้นที่จอดรถแบบ Automatic parking ส่วนด้านหน้าเป็นห้องพักอาศัย โดยจะเริ่มมีห้องพักตั้งแต่ชั้น 3 เป็นต้นไป
ผังอาคารชั้น 4 ด้านหลังยังเป็นพื้นที่จอดรถแบบ Automatic parking ส่วนด้านหน้าเป็นห้องพักอาศัย
ผังอาคารชั้น 5-9 จะเป็นส่วนพักอาศัยทั้งหมด โดยมีเพียง 12 ยูนิตต่อชั้น
ผังอาคารชั้น 6-8 จะเป็นส่วนพักอาศัยทั้งหมด โดยมีเพียง 12 ยูนิตต่อชั้น
ผังอาคารชั้น 10, 12, 14, 16 จะเป็นส่วนพักอาศัยทั้งหมด โดยมีเพียง 12 ยูนิตต่อชั้น
ผังอาคารชั้น 11, 12A, 15. 17 จะเป็นส่วนพักอาศัยทั้งหมด โดยมีเพียง 12 ยูนิตต่อชั้นเท่านั้น
ผังอาคารชั้น 18 จะเป็นส่วนพักอาศัยที่มีเพียง 2 ยูนิต และชั้นนี้จะเป็นชั้นของพื้นที่ส่วนกลางที่มีสระว่ายน้ำ พร้อมพื้นที่นั่งเล่นริมสระ, สวนส่วนกลางและฟิตเนส
ผังอาคารชั้น 19 จะเป็นส่วนพักอาศัยทั้งหมด โดยมีพื้นที่ของชั้นเล็กลงดังนั้นยูนิตพักอาศัยจะน้อยลง คือมีเพียง 8 ยูนิต
ผังอาคารชั้น 20 จะเป็นส่วนพักอาศัยทั้งหมด โดยมีพื้นที่ของชั้นเล็กลงดังนั้นยูนิตพักอาศัยจะน้อยลง คือมีเพียง 8 ยูนิต
ผังอาคารชั้น 21 จะเป็นส่วนพักอาศัยทั้งหมด โดยมีพื้นที่ของชั้นเล็กลงดังนั้นยูนิตพักอาศัยจะน้อยลง คือมีเพียง 8 ยูนิต
ผังอาคารชั้นดาดฟ้า เป็นพื้นที่ส่วนกลางที่เป็นสวนแบบ Rooftop มีพื้นที่นั่งเล่นและเดินเล่นในสวนค่ะ
แบบห้อง
โครงการมีห้องทั้งหมด 4 แบบหลักๆด้วยกัน แต่จะมีต่างกันไปในแต่ละแบบด้วยขนาดหรือมุมห้องที่ทำให้มีพื้นที่มากขึ้น
1 Bedroom : 45.0-65.0 ตร.ม.
2 Bedroom : 69.0-85.0 ตร.ม.
3 Bedroom : 115.0-135.0 ตร.ม.
Penthouse : 181.0-207.0 ตร.ม.
ราคา (ม.ค.2561)
*โครงการขายเป็น Fully Fitted
สอบถามราคาเพิ่มเติมกรุณาติดต่อสำนักงานขายเพื่อข้อมูลที่อัพเดตที่สุดค่ะ
สนใจติดต่อรายละเอียดเพิ่มเติมได้ที่
Tel : 08-9202-1411 (Thai & English) 08-4427-1244 (Japanese)
Website : http://www.siameseasset.co.th/exclusive/
หากเพื่อนๆเห็นว่ารีวิวนี้มีประโยชน์ ช่วยกด Like เพื่อเป็นกำลังใจให้ทีมงาน ขอบคุณค่ะ
และมีความคิดเห็นหรือข้อมูลเพิ่มเติมเกี่ยวกับตัวโครงการ สามารถ Comment ได้ที่ด้านล่างของรีวิวค่ะ