EP.1344 รีวิว คอนโด RHYTHM EKKAMAI ESTATE คอนโดที่ให้ความรู้สึกเหมือนบ้าน ใจกลางเอกมัย-ทองหล่อ 2 นาทีถึง BTS เอกมัย เริ่ม 6.5 ล้าน*
Written by : Som Sawarose Khaisilp
สวัสดีค่ะผู้อ่าน Homenayoo ทุกท่าน สำหรับใครที่กำลังมองหาคอนโดใกล้ใจกลางเมือง ใกล้รถไฟฟ้า เพื่ออยู่อาศัยหรือเพื่อการลงทุนกันอยู่นั้น วันนี้เรามีโครงการคอนโดหรูจากบริษัท AP มาฝากกันค่ะ กับโครงการ RHYTHM EKKAMAI ESTATE คอนโดใหม่ ทำเลศักยภาพใจกลางเอกมัย-ทองหล่อ บนถนนสุขุมวิท 63 แขวงคลองตันเหนือ เขตวัฒนา กรุงเทพฯ
ใกล้ทองหล่อซอย 10 เพียง 180 ม. เท่านั้น เป็นทำเลที่ทะลุไปซอยทองหล่อได้อย่างง่ายดาย ใกล้รถไฟฟ้า BTS เอกมัย รายล้อมไปร้านอาหารนับร้อยร้าน และห้างสรรพสินค้าขนาดใหญ่มากมายทั้ง Donki ทองหล่อ, Big C เอกมัย, Gateway Ekamai, Major เอกมัย, Emporium, Emquartier, Terminal 21 ในระยะตั้งแต่เดินถึงไปจนถึงนั่ง BTS ไปเพียง 2-3 สถานีเท่านั้น
ริธึ่ม เอกมัย เอสเตท เป็นคอนโด High Rise ความสูง 32 ชั้น 1 อาคาร จำนวนยูนิตที่พักอาศัย 303 ยูนิต พร้อมยูนิตร้านค้า 1 ยูนิต ตั้งอยู่บนพื้นที่ประมาณ 2 ไร่ กำหนดเปิดตัวโครงการแบบ Exclusive Launch วันที่ 21-24 มี.ค. มีห้องให้เลือกแบบ 1-BED 35 sq.m., 1-BED PLUS 39.5-40 sq.m., 2-BED 74.5-86.5 sq.m., 2-BED DUPLEX 64-129.5 sq.m., SKY VILLA 109-121 sq.m., PENTHOUSE 100-177 sq.m.
สิ่งอำนวยความสะดวก พื้นที่ส่วนกลางของโครงการให้มาจัดเต็ม ตามคอนเซ็ป “The New Residential Experience” นิยามใหม่ของการใช้ชีวิตใจกลางเอกมัยที่ให้ความรู้สึกเหมือนอยู่บ้าน ผสานการใช้ชีวิตคนเมืองได้อย่างลงตัว สัมผัสประสบการณ์ใหม่ของการใช้ชีวิตส่วนตัวได้แล้วที่นี่
พร้อมสิ่งอำนวยความสะดวกภายในโครงการอาทิ FLOATING LOBBY, EV CHARGER 2 จุด, SKY LOUNGE, SKY LIBRARY, SKY WELLNESS SPA, FITNESS, PRIVATE FITNESS, SAUNA, YOGA, KIDS POOL, SKY POOL, ประตูคีย์การ์ด, Access Card Control, กล้องวงจรปิด พร้อม รปภ. 24 ชม. พร้อมที่จอดรถ 202 คัน คิดเป็น 67% ของจำนวนยูนิตโครงการ
โครงการ RHYTHM EKKAMAI ESTATE มีกำหนดเปิดตัวแบบ Exclusive launch ที่ชั้น 1 แฟชั่นฮอลล์ สยามพารากอน ตั้งแต่ 21 – 24 มีนาคมนี้ ราคาห้องเริ่มต้น 6.5 ล้านบาท*
ลงทะเบียนเพื่อรับสิทธิพิเศษสูงสุด 300,000 บาท > https://bit.ly/2TpCNey
ตัวโครงการจะเป็นอย่างไรไปชมกันเลยค่ะ
| ชื่อโครงการ | ริธึ่ม เอกมัย เอสเตท RHYTHM EKKAMAI ESTATE |
| เจ้าของโครงการ | เอพี ไทยแลนด์ / AP Thailand |
| เนื้อที่ทั้งหมด | ประมาณ 2 ไร่ |
| จำนวนตึก | 1 อาคาร |
| จำนวนชั้น | 32 ชั้น |
| จำนวนห้อง | 303 ยูนิต พร้อมยูนิตร้านค้า 1 ยูนิต |
| ลักษณะห้องและขนาดห้อง |
|
| ที่จอดรถทั้งหมด | ที่จอดรถ 202 คัน คิดเป็น 67% ของจำนวนยูนิตโครงการ |
| จำนวนลิฟต์ | รอข้อมูลจากทางโครงการ |
| โซน | เขตวัฒนา |
| ขนส่งสาธารณะ |
|
| รถโดยสารที่ผ่าน | n/a |
| ที่ตั้ง | |
| กำหนดการ | กำหนดเปิดตัวโครงการแบบ Exclusive Launch วันที่ 21-24 มี.ค. |
| ปีที่สร้างเสร็จ | รอข้อมูลจากทางโครงการ |
| ราคา | เริ่ม 6.5 ล้าน* |
| ราคาเฉลี่ยต่อ ตร.ม | ค่าเฉลี่ยเริ่มต้น 185,000 บาท/ตร.ม. |
| ค่าส่วนกลางและกองทุน |
|
| สถานที่สำคัญใกล้เคียง |
|
| สิ่งอำนวยความสะดวก |
|
| จุดเด่นของโครงการ | “The New Residential Experience” นิยามใหม่ของการใช้ชีวิตใจกลางเอกมัยที่ให้ความรู้สึกเหมือนอยู่บ้าน ผสานการใช้ชีวิตคนเมืองได้อย่างลงตัว สัมผัสประสบการณ์ใหม่ของการใช้ชีวิตส่วนตัวได้แล้วที่นี่RHYTHM EKKMAI ESTATE คอนโดใหม่จากเอพี ใจกลางเอกมัย-ทองหล่อ เพียง 2 นาทีถึง BTS เริ่ม 6.5 ล้านบาท |
คอนโดใกล้ BTS เอกมัย
คอนโดใกล้ BTS เอกมัย ฝั่งสุขุมวิทเลขคู่
ที่ตั้งโครงการ
พิกัด Google Maps : https://goo.gl/maps/JdwTF7HSvoB2
โครงการ RHYTHM EKKAMAI ESTATE ตั้งอยู่ในซอยเอกมัย ที่มีความสงบและสะดวกสบายสูงและมีจุดแข็งที่น่าสนใจหลายอย่าง ทั้งใกล้สถานีรถไฟฟ้า BTS สถานี เอกมัย, ใกล้จุดขึ้นลงทางด่วนทั้งรามอินทรา- อาจณรงค์และเฉลิมมหานคร และยังใกล้ห้าง เพราะรายล้อมไปด้วยห้างสรรพสินค้าขนาดใหญ่มากมายทั้ง Donki ทองหล่อ, Big C เอกมัย Gateway Ekamai, Major เอกมัย, Emporium, Emquartier, Terminal 21 ในระยะนั่ง BTS ไปไม่กี่สถานีเท่านั้น
สำหรับคนไม่ใช้รถ มีความสะดวกสบายสูง ที่ตั้งโครงการ RHYTHM EKKAMAI ESTATE ตั้งอยู่ในซอยเอกมัย ซึ่งเชื่อมต่อไปออกได้หลายทางนะคะ ไม่ว่าจะเป็นถนนสุขุมวิท, สุขุมวิท 55(ทองหล่อ), สุขุมวิท 71 และอยู่ใกล้สถานีรถไฟฟ้า BTS สถานีเอกมัย พร้อมมี Shuttle bus (บริการให้ 1 ปี) ส่งถึงสถานีแล้ว โซนนี้มีทั้งแท็กซี่ วินมอเตอร์ไซค์ ขับผ่านอยู่เรื่อยๆค่ะ จะไปไหนก็ไว รถติดก็มีทางเลี่ยงเยอะแยะ และใช้ระยะทางไปไหนมาไหนค่อนข้างสั้น เพราะอยู่ใจกลางเมืองในแหล่งห้างสรรพสินค้าอยู่แล้ว อยากไปช็อปปิ้ง ก็สามารถขึ้นรถไฟฟ้าไปได้ทั้ง เอ็มโพเรียม, เอ็มควอเทียร์, เทอมินอล 21, เซ็นทรัลเอ็มบาสซี ไปจนสยามพารากอน ไม่ต้องรถติด ทั้งใกล้และสะดวก ทั้งยังสามารถเปลี่ยนไปขึ้นรถไฟฟ้าใต้ดิน MRT สุขุมวิท จาก BTS สถานีอโศกได้
สำหรับคนที่เดินทางไปต่างประเทศหรือไปสนามบินบ่อยๆ ความสะดวกและข้อดีอีกอย่างคือโครงการอยู่ห่างจากรถไฟฟ้าแอร์พอร์ตเรลลิงก์สถานีรามคำแหงในระยะประมาณ 3.1 กม. หรือระยะขับรถมาเพียง 9 นาทีเท่านั้น เราสามารถต่อแท็กซี่มานั่งไปสนามบินสุวรรณภูมิหรือลาดกระบังได้สบายๆ
โครงการ RHYTHM EKKAMAI ESTATE อยู่ใกล้รถไฟฟ้า BTS สถานี เอกมัย ในระยะเดินประมาณ 1 กม. อาจไม่ได้อยู่ใกล้ในระยะที่เดินได้สบายๆก็จริง แต่ก็เดินมารถไฟฟ้าได้ในระยะประมาณ 13 นาทีถึง จัดเป็นโซนที่มีความสงบและสะดวกสบายสูง เดินทางสะดวกค่ะ คนชอบเดินสามารถเดินไปขึ้น BTS ได้สบายๆ ไม่ชอบเดินก็นั่งวินมอเตอร์ไซค์ไปขึ้น BTS ได้ในราคา 20 บาท 2 นาทีถึง
สำหรับคนใช้รถ โครงการ RHYTHM EKKAMAI ESTATE ตั้งอยู่ในซอยเอกมัย ซึ่งเชื่อมต่อไปออกได้หลายทางนะคะ ไม่ว่าจะเป็นถนนสุขุมวิท, ถนนเพชรบุรี, สุขุมวิท 55 (ซอยทองหล่อ), สุขุมวิท 65, สุขุมวิท 71 จัดเป็นทำเลที่คนใช้รถมีความสะดวกสบายสูง และมีทางเลือกในการเข้าออกเยอะค่ะ โครงการอยู่ติดถนนซอยเอกมัยฝั่งขาออก วิ่งไปถนนเพชรบุรีและจุดขึ้นลงทางด่วนเอกมัย-รามอินทรา หรือจะใช้วิ่งเข้าเมืองโซน CBD อย่างสุขุมวิทได้สะดวก ใกล้ทองหล่อ, พร้อมพงษ์, อโศก ในระยะขับรถเพียง 3 – 10 นาทีถึง
ทำเลตรงนี้มีจุดขึ้นทางด่วนกระจายตัวอยู่รอบๆ ทั้ง ทางด่วนเพลินจิต, พระราม 4, เอกมัย – รามอินทรา, สุขุมวิท 50 ฯลฯ แต่เนื่องจากย่านนี้รถค่อนข้างติดค่ะ เพราะทุกเส้นอยู่ในตัวเมืองทั้งนั้น ทำให้การเดินทางโดย “เลี่ยงเมือง” ทำไม่ได้ แต่โดยรวมการเดินทางก็สะดวกอยู่แล้ว เพราะอย่างที่กล่าวไปข้างต้นว่าทำเลอยู่ในตัวเมืองอยู่แล้วด้วย และจากโครงการก็มีทางลัดเลาะเลี่ยงถนนใหญ่ได้หลายทาง สามารถลัดเลาะผ่านไปทางทองหล่อ ไปอโศกได้เลยโดยไม่ต้องผ่านถนนใหญ่สุขุมวิท เป็นต้น
อีกข้อดีสำหรับคนใช้คนคือโครงการอยู่ใกล้กับจุดขึ้นลงทางด่วนหลายจุด ในระยะที่สามารถขับรถไปได้ในระยะสั้นๆ ที่ใกล้ที่สุดจะเป็นทางด่วนรามอินทรา – อาจณรงค์ ค่ะ โดยโครงการอยู่ห่างจากจุดขึ้นทางด่วนฉลองรัช เป็นระยะประมาณ 3.6 กม. หรือระยะขับรถเพียง 16 นาทีเท่านั้น
แยกและถนนสำคัญใกล้เคียง
สิ่งอำนวยความสะดวกรอบๆโครงการ RHYTHM EKKAMAI ESTATE ถือว่ามีความอุดมสมบูรณ์สูงมาก เพราะตั้งอยู่ใจกลางทองหล่อ-เอกมัย ที่มีชื่อเสียงที่สุดในกรุงเทพอยู่แล้วเรื่องผับ บาร์ และร้านอาหารอีกเป็นร้อยร้าน เปิดทั้งกลางวันกลางคืน มีทั้งโรงพยาบาล,โรงหนัง, วัด, ห้างสรรพสินค้า, Community mall ผุดขึ้นมามากมาย ใครมีไลฟ์สไตล์ชอบเที่ยว ชอบแฮงก์เอาต์นัดเจอกันร้านอาหารสวยๆก็น่าจะถูกใจกันค่ะ
RHYTHM EKKAMAI ESTATE ตั้งอยู่ในซอยเอกมัย โซนพีคของเอกมัยเลยค่ะ เป็นโซนที่มีแหล่งร้านอาหาร บาร์ ร้านกาแฟน่ารักๆเยอะมาก ร้านดังอย่าง บ้านเพื่อน เอกมัย ก็อยู่ภายในเวิ้งโบราณฝั่งตรงข้ามโครงการเลย ด้านข้างโครงการก็มีร้านสบายใจไก่ย่าง ร้านอาหารอีสานปนอาหารใต้ร้านอร่อย ข้างที่ดินโครงการอีกด้านก็มี Cub House โชว์รูมมอเตอร์ไซค์และร้านกาแฟสุดฮิปอยู่ใกล้ๆ
ถัดไปหน่อยในซอยทองหล่อ 10 ก็มีห้าง Donki ทองหล่อ Community mall สุดฮอตจากญี่ปุ่นมาเปิดห่างจากที่ตั้งโครงการเพียง 180 เมตรเท่านั้น ให้ไปช็อปกันได้แบบไม่ต้องบินไปญี่ปุ่นเลย ช่วงนี้ห้าง Donki เพิ่งเปิดตัวใหม่ก็จะมีส่วนลดดีๆเยอะเลยค่ะ แถมโครงการยังอยู่ใกล้ Big C เอกมัย เพียง 240 เมตร นอกจากนี้ 7-11 ก็มีอยู่ใกล้ๆทั้งฝั่งโครงการและตรงข้ามโครงการ
ออกมาที่สถานีรถไฟฟ้า BTS เอกมัย ห่างจากโครงการประมาณ 1 กม. ถนนเส้นหลักคือถนนใหญ่สุขุมวิท โซน CBD เลยอย่างเอกมัย ทองหล่อ ออกมาแล้วขึ้น BTS ไปไม่กี่สถานีเท่านั้นก็สามารถเข้าถึงห้างใหญ่และแหล่งช้อปปิ้งใจกลางเมืองได้มากมาย ทั้ง เอ็มโพเรียม, เอ็มควอเทียร์, เทอมินอล 21, เซ็นทรัลเอ็มบาสซี ไปจนสยามพารากอน ไม่ต้องเจอรถติด ทั้งใกล้และสะดวก ทั้งยังสามารถเปลี่ยนไปขึ้นรถไฟฟ้าใต้ดิน MRT สุขุมวิท จาก BTS สถานีอโศกได้อีกด้วย

ติด BTS เอกมัยเลยจะมี Gateway เอกมัย ที่ด้านในมีร้านอาหาร ร้านขนมและร้านค้าเยอะมาก ส่วนมากเป็นร้านอาหารญี่ปุ่นค่ะ จาก BTS เอกมัยนี่เดินไปหน่อย ฝั่งตรงข้ามซอยเอกมัยจะมีท้องฟ้าจำลองกรุงเทพ ใครอยากพาแฟนไปเดตวันเสาร์อาทิตย์ ไปดูดาวด้วยกันก็โรแมนติกดีนะคะ เช็คข้อมูลเกี่ยวกับท้องฟ้าจำลองกรุงเทพเพิ่มเติมได้ ที่นี่ ปากซอยของซอยเอกมัยจะมี เมเจอร์ ซินีเพล็กซ์ อยู่ ถือเป็นโรงหนังที่ใกล้โครงการที่สุดนะคะ ข้างในก็มีร้านอาหารและคาเฟ่อีกหลายร้านเช่นกัน

จาก BTS เอกมัย นั่งมา 2 สถานี จะถึงสถานีพร้อมพงษ์ สถานีนี้ก็มีความอุดมสมบูรณ์สูงมาก ร้านอาหาร ของกิน แหล่งช้อปปิ้งมีให้เลือกหลากหลาย ทั้งห้างหรูอย่างเอ็มโพเรียม เอ็มควอเทียร์ หรือพื้นที่สีเขียวไว้เดินเล่นอย่างสวนสาธารณะเบญจสิริ หรือแหล่งรวมร้านอาหารดีๆอย่าง Rain Hill หรือซุปเปอร์มาเกตอย่าง Tops ร้านอาหารสองฝั่งถนนใหญ่สุขุมวิทโซนนี้ก็มีร้านคุณภาพดีๆและมีคอนเซ็ปร้านเก๋ๆเยอะทีเดียว ในอนาคตจะมีห้างหรูตามมาอีกห้างในเครือเดียวกันชื่อ Emsphere ที่กำลังจะสร้างเสร็จเร็วๆนี้อีกแห่ง ซึ่งเพิ่มความอุดมสมบูรณ์ให้กับย่านพร้อมพงษ์มาขึ้นไปอีก
แนะนำเพิ่มเติมสำหรับคนชอบร้านอาหาร ชอบกิจกรรมต่างๆนะคะ ในซอยสุขุมวิท 33 และซอยสุขุมวิท 24 และ 26 มีร้านอาหารเยอะมากกค่ะ ลองหาข้อมูลหรือเดินเข้าไปดูจะไปมีร้านให้เลือกค่อนข้างเยอะเลยค่ะ กิจกรรมต่างๆโซนนั้นก็เยอะค่ะ ส่วนตัวกิจกรรมที่เราชอบและแนะนำจะมีแช่ออนเซ็นกับเล่นเซิร์ฟบอร์ดที่ A Square ค่ะ ทุกวันนี้เริ่มมีคนไปแช่ออนเซ็นเยอะมากขึ้นแล้วค่ะ เสาร์อาทิตย์นี่คนแน่นเลย แต่ใครทำงานหนักมาถ้าได้ไปแช่จะรู้สึกสบายตัวมากขึ้นจริงๆ อันนี้ถ้าสนใจต้องลองหาข้อมูลกันดูนะคะ แนะนำไปวันธรรมดาตอนกลางวันค่ะ คนน้อยกว่าตอนกลางคืนเยอะ เหมือนได้บ่อส่วนตัวเลย
สถานที่สำคัญรอบโครงการ
การเดินทาง
วันนี้เรามีภาพการเดินทางโดยรถมาให้ชมกัน เส้นทางการเดินทางตามลูกศรแดง โดยเริ่มเดินทางจาก ทางด่วนเอกมัย – รามอินทรา มุ่งหน้ามาถนนเอกมัย → ตรงไปตามทางประมาณ 2.5 กม. ก็จะเจอที่ดินโครงการ RHYTHM EKKAMAI ESTATE อยู่ทางขวามือแล้วค่า
เราเริ่มเดินทางกันจากบนทางด่วนรามอินทรา – อาจณรงค์ ลงด่านเอกมัย
พอลงมาแล้วเราตรงตามป้ายเอกมัยไปเรื่อยๆ ตรงผ่านถนนเพชรบุรีไปถนนเอกมัย สุขุมวิท
ถึงเอกมัยก็ตรงไปเรื่อยๆเลยนะคะ ซอยเอกมัยเป็นถนน 4 เลน มีทางเดินเท้าทั้ง 2 ฝั่ง 2 ข้างทางเต็มไปด้วยร้านค้า ร้านอาหารและสิ่งอำนวยความสะดวกมากมายค่ะ เป็นซอยที่ครึกครื้นทั้งกลางวันกลางคืน เนื่องจากรองรับการขยายตัว และความเจริญจากซอยทองหล่อมาอีกที
ตรงมาเราจะเจอแยกทองหล่อซอย 10 (เอกมัย ซ.5) โดยแยกนี้อยู่ห่างจากโครงการ RHYTHM EKKAMAI ESTATE เพียง 180 เมตรเท่านั้น จากแยกนี้ถ้าเราเลี้ยวขวา จะเชื่อมต่อไปซอยทองหล่อ ถ้าเราเลี้ยวซ้ายจะเชื่อมต่อไปสุขุมวิท 71 ส่วนวันนี้เราตรงไปโครงการค่ะ
ตรงมาอีกนิดเราจะเจอตึก Cub Houseโชว์รูมมอเตอร์ไซค์สุดคลาสสิกจากฮอนด้า ที่มีร้านกาแฟอยู่ด้านใน อยู่ทางขวามือ เป็นร้านกาแฟใหญ่ที่อยู่ห่างจากโครงการเพียง 80 เมตรเท่านั้น
ร้านกาแฟนี้มีชื่อว่า Greyhound Coffee คาเฟ่เปิดใหม่ที่มาพร้อมคอนเซ็ปต์ Twist หรือการผสมผสานความเป็นไทยและสากลไว้ด้วยกัน เสิร์ฟเมนูเครื่องดื่มหลากหลาย ทั้งอาหารจานหลักและของหวานให้เลือกทาน ร้านตั้งอยู่ในบรรยากาศสุดคูล พื้นที่เดียวกับ CUB House นั่นเอง
ถัดมาก็จะเจอที่ดินโครงการพร้อมสำนักงานขายซึ่งตอนนี้กำลังเก็บความเรียบร้อยหน้างานกันอยู่ค่ะ เราเลี้ยวขวาเข้าโครงการ RHYTHM EKKAMAI ESTATE ได้เลย
ที่ดินโครงการจะอยู่ติดร้านสบายใจไก่ย่างเลยค่ะก่อนไปดูรอบๆโครงการ เรามีภาพการเดินทางจากฝั่งถนนใหญ่สุขุมวิท จาก BTS เอกมัย มาให้ชมกันก่อนค่ะ
การเดินทางจาก BTS เอกมัย
วันนี้เราเริ่มเดินกันจาก BTS เอกมัย สถานีรถไฟฟ้าที่ทางขึ้นลงอยู่ติดซอยสุขุมวิท 63 หรือซอยเอกมัยกันค่ะ BTS เอกมัยนี้ เป็นอีกสถานีที่มีความอุดมสมบูรณ์สูง และมีทางเดินเชื่อมต่อเข้าห้างที่อยู่ติดสถานีอย่าง Gateway เอกมัย และ Major เอกมัย ได้ และอยู่ห่างจากที่ตั้งโครงการประมาณ 1 ก.ม. หรือระยะเดินประมาณ 13 นาที
จาก BTS เอกมัย เราลงที่ประตู 1 ที่อยู่ใกล้ที่ตั้งโครงการที่สุดค่ะ คือทางลงมาที่ปากซอยเอกมัย
จากบน Sky way ของ BTS เอกมัย มองลงไปที่ซอยเอกมัย (สุขุมวิท 63) ถ้าเราเดินลงประตู 1 มาเราจะอยู่ฝั่งขวามือของภาพ ถ้าจะขึ้นวินมอเตอร์ไซค์ให้เราข้ามทางม้าลายไปทางหน้าห้าง Major เอกมัย เพื่อไปขึ้นวินมอเตอร์ไซค์หน้าสหกรณ์ได้
วินมอเตอร์ไซค์ปากซอยเอกมัย จะตั้งอยู่หน้าร้านสหกรณ์การเกษตรและ Major เอกมัย
อัตราค่าโดยสารพี่วินค่ะ จากปากซอยไปที่ตั้งโครงการคิด 20 บาท
ตรงมาในซอยเอกมัยฝั่งต้นซอยก็มีร้านอาหาร บาร์ และแหล่งบันเทิงต่างๆครึกครื้นเช่นกันค่ะ ตรงมาหน่อยขวามือจะเห็น Big C เอกมัย ที่อยู่ห่างจากโครงการเพียง 240 เมตร
ตรงมาอีกหน่อยจะเจอร้านอาหารสบายใจไก่ย่างที่อยู่ติดซอยเอกมัย 1 ที่ติดที่ดินโครงการเลยค่ะ โดยโครงการจะอยู่ฝั่งตรงข้ามเวิ้งโบราณเลย
เราเลี้ยวซ้ายเข้าโครงการ RHYTHM EKKAMAI ESTATE ได้เลยค่ะ
ตอนนี้บนที่ดินโครงการ RHYTHM EKKAMAI ESTATE มี Sales Gallery ของโครงการตั้งอยู่บนที่ดินโครงการเลยค่ะ ปัจจุบันสร้างเสร็จและเปิดให้เข้าชมห้องตัวอย่างกันได้แล้ว ซึ่งก่อนพาไปชมห้องตัวอย่าง เราขอพาไปชมรอบๆที่ดินโครงการกันก่อนนะคะ ข้างที่ดินโครงการฝั่งทิศเหนือหรือขวามือของภาพด้านบน ติดดที่ดินโครงการจะเป็นสถาบันเสริมความงาม ถัดไปเป็นอาคาร Cub House ที่ด้านในเป็นโชว์รูมมอเตอร์ไซค์และร้านกาแฟอยู่ใกล้ๆ
ทิศใต้ของโครงการอยู่ติดซอยเอกมัย 1 ถัดไปเป็นร้านอาหารดังอีกร้านของซอยชื่อร้านสบายใจไก่ย่าง
ร้านสบายใจไก่ย่างนี่มีเมนูที่เป็นที่นิยมทั้งคนไทยและต่างชาติค่ะ ที่ดังๆก็คือไก่ย่าง ส้มตำ อาหารอิสาน อาหารใต้ จิ้มจุ่ม ไปจนถึงข้าวเหนียวมะม่วง
ภายในร้านสบายใจไก่ย่างก็มีทั้งโซน Open Air และโซนติดแอร์ สำหรับวันอากาศร้อนๆก็มานั่งกินกันได้สบายๆ
มองไปฝั่งตรงข้ามโครงการเป็นซอยเอกมัย 10 ที่ใช้วิ่งไปออกสุขุมวิท 71 และทางด่วนเฉลิมมหานครได้ ตรงข้ามโครงการเป็นเวิ้งโบราณ แหล่งรวมร้านอาหาร บาร์ และสิ่งอำนวยความสะดวกชื่อดังในซอยเอกมัยค่ะ ถัดจากเวิ้งโบราณ จะมี Health Land อยู่ ตรงนี้น่าจะถูกใจคนชอบนวดแผนโบราณกันค่ะ เพราะเป็นศูนย์ใหญ่มีบริการนวดและสปาให้เลือกหลากหลาย และมีความเป็นมืออาชีพสูง
ไปดูด้านในของ เวิ้งโบราณ แหล่งร้านอาหาร บาร์ ร้านกาแฟน่ารักๆ และร้านดังอย่าง บ้านเพื่อน เอกมัย ที่อยู่ฝั่งตรงข้ามโครงการกันค่ะ
ด้านในเวิ้งโบราณ เดินเข้ามาจะเจอที่จอดรถก่อนค่ะ รอบๆปลูกต้นไม้มาร่มรื่น
ติดทางเข้ามีวินมอเตอร์ไซค์อยู่ เป็นวินปากซอยเอกมัย 10 ซึ่งเป็นวินที่อยู่ตรงข้ามโครงการเลย เวลาเร่งด่วนใช้ลัดเลาะเลี่ยงรถติดไปไหนมาไหนได้สะดวกค่ะ
อัตราค่าโดยสารพี่วินค่ะ จากโครงการนั่งไป BTS เอกมัย ราคา 20 บาท
ภายในเวิ้งโบราณจะมีร้านกาแฟก่ออิฐน่ารักๆอยู่ ด้านในมีเสิร์ฟขนมเค้กและเมนูอาหารเช้าด้วย
ร้านกาแฟจะอยู่ติดกับร้านรองเท้าและเครื่องหนัง
ถัดมามีร้านอาหาร สังเกตว่าบรรยากาศร้านจะเป็นแนวน่ารักๆ
ถัดมาเป็นร้านตัดผม
ถัดมาอีกเป็นร้านแว็กซ์ขน ส่วนร้านสีขาวที่อยู่ติดกันเป็นร้านขนมค่ะ
ภายในเวิ้งโบราณจะมีอาคาร 2 ชั้น อัดแน่นไปด้วยร้านอาหารและบาร์ค่ะ ตอนกลางวันอาจจะเงียบๆหน่อย แต่ตอนกลางคืนคึกคักมากๆ โดยเฉพาะร้าน บ้านเพื่อน เอกมัย ชั้นบน
มีร้านอาหารญี่ปุ่น ร้านอาหารอิตาเลียน ร้านอาหารไทย และอื่นๆอีกมากมาย
มีร้านปิ้งย่างบาร์บีคิวสไตล์เกาหลีอยู่ด้วย ในเวิ้งโบราณนี้มี Pub และร้านเบียร์แบบทางเลือกอยู่ด้วยนะคะ อยู่ใกล้ร้านอาหารญี่ปุ่นที่ชั้นล่างค่ะ วันที่เราไปเก็บภาพร้านปิดอยู่นะ ปกติเปิดค่ำๆ ชื่อร้านว่า Let’s fill this town with craftbeer เป็นร้านที่กลุ่มคนรักการทำเบียร์เองมารวมตัวกันทำเบียร์ขายค่ะ อยากลองชิมคราฟท์เบียร์ยี่ห้อใหม่ๆก็มาลองชิมกันได้ค่ะ
:: Sales Gallery ::
โครงการ RHYTHM EKKAMAI ESTATE และ Sales Gallery ของโครงการตั้งอยู่บนที่ดินโครงการเลยค่ะ ปัจจุบันสร้างเสร็จและเปิดให้เข้าชมห้องตัวอย่างกันได้แล้ว โดยที่ดินโครงการและ Sales Gallery จะอยู่ติดถนนเอกมัย และติดเอกมัยซอย 1 เลย เปิดให้เข้าชมได้ทุกวัน ตั้งแต่ 9.00 – 18.00 น,
ความน่าสนใจอีกอย่างของโครงการนี้คือโครงการเก็บต้นจามจุรีขนาดใหญ่อายุถึง 50 ปี สูงประมาณตึก 6 ชั้น บนที่ดินโครงการเอาไว้ และมีแผนปลูกต้นไม้ใหญ่เพิ่มด้วย
โดยจากขอบเขตที่ดินโครงการ จะเห็นว่าเก็บต้นจามจุรีต้นใหญ่เอาไว้ถึง 3 ต้น และย้ายมาปลูกที่หน้าที่ดินโครงการ (วงกลมสีเขียวในภาพ) ที่ในอนาคตจะเป็นพื้นที่สวนด้านหน้าโครงการ ซึ่งกลมกลืนไปกับบริบทของเวิ้งโบราณ แหล่งรวมร้านอาหารและบาร์ดังๆย่านเอกมัยฝั่งตรงข้ามโครงการที่เก็บรักษาต้นไม้ใหญ่ไว้เช่นกัน ทำให้เป็นโซนที่มีความร่มรื่น มองออกไปจะเห็นต้นไม้ใหญ่ๆมากมาย
ต้นจามจุรีต้นใหญ่ที่สุดที่มีอายุ 50 ปีนั้น ถูกย้ายมาปลูกเด่นเป็นสง่าอยู่ด้านหลังป้ายโครงการ RHYTHM EKKAMAI ESTATE และอยู่ด้านข้างสำนักงานขายเลยค่ะ จะเห็นว่าลำต้นถูกพันและประคบประหงมอย่างดี ตอนนี้บรรดาต้นจามจุรีที่เก็บรักษาไว้ก็เริ่มแตกกิ่งก้านใหม่ๆเพื่อสร้างบรรยากาศที่ร่มรื่นให้โครงการกันแล้ว
ข้างทางเข้าที่จอดรถโครงการ ต้นจามจุรีใหญ่อีก 2 ต้น ถูกนำมาปลูกไว้ที่ริมที่ดินโครงการอีกฝั่งแบบนี้ และมีการปลูกต้นไม้เพิ่มเติมเป็นแนวอย่างที่เห็นค่ะ

เข้าไปดูภายในสำนักงานขายหรือ Sales Gallery ของโครงการกันต่อค่ะ สำนักงานขายออกแบบตาม Reference ของตัวอาคารจริง โดยจำลองบรรยากาศให้ใกล้เคียงกับทางเข้าสู่ล็อบบี้โครงการ โดยเป็นทางเดินผ่านสวนหย่อมสีเขียว ก่อนขึ้นไปพื้นที่ของสำนักงานขายชั้นบน
เข้ามาจะเจอส่วนเคาน์เตอร์ประชาสัมพันธ์พร้อมเจ้าหน้าที่ฝ่ายขาย คอยให้บริการข้อมูลและพาชมห้องตัวอย่างของโครงการ
ภายใน Sales Gallery ออกแบบมาโดยใช้การตกแต่งแบบเดียวกันกับ Lobby ของโครงการจริง คือใช้เพดานสูง และการตกแต่งด้วยผนังกระจก วิวสวน และ panel ที่มีลักษณะคล้ายหน้าต่างบานเกล็ดไม้ ให้ลุคที่หรูหราแต่ก็ไม่เหมือนใคร ด้วยบรรยากาศเหมือนเดินเข้ามาในบ้านสไตล์โมเดิร์น ทรอปิคอล สวยๆหลังใหญ่
และจะมีบันไดขึ้นไปห้องตัวอย่างชั้นบน ดีไซน์ของบันไดโครงการก็จะเป็นแบบเดียวกับบันไดที่ใช้ในโครงการ RHYTHM EKKAMAI ESTATE เลย มีการผสมผสานวัสดุแบบ Raw material หลายอย่าง ทั้งไม้, หิน และกระจก โดยลูกตั้งลูกนอนบันไดเป็นไม้สีอ่อน แต่งด้วยขั้นบันไดลายหินอ่อนสีดำขาว ราวกันตกเป็นกระจกเทมเปอร์ และมีแต่งไฟซ่อนระหว่างขั้น เป็นเส้นจังหวะแสงนำสายตา รวมถึงความกว้างของบันได ที่ดูกว้างขวางน่าใช้งาน
ตัวโครงการและห้องตัวอย่างจะเป็นอย่างไร เราไปชมกันต่อเลย
:: ตัวโครงการ ::
โครงการ RHYTHM EKKAMAI ESTATE เป็นโครงการคอนโดมิเนียม High Rise ความสูง 32 ชั้น 1 อาคาร จำนวนยูนิตที่พักอาศัย 303 ยูนิต พร้อมยูนิตร้านค้า 1 ยูนิต ตั้งอยู่บนพื้นที่ประมาณ 2 ไร่ พร้อมพื้นที่ส่วนกลางขนาดใหญ่ และที่จอดรถรวม 202 คัน คิดเป็น 67% ของจำนวนยูนิตโครงการ มีกำหนดเปิดตัวแบบ Exclusive launch ที่ paragon ตั้งแต่ 21 – 24 มีนาคมนี้ ที่ชั้น 1 แฟชั่นฮอลล์ สยามพารากอน ราคาเริ่มต้น 6.5 ล้านบาท*
โครงการมีจุดเด่นคือมีพื้นที่ส่วนกลางขนาดใหญ่ ตัวอาคารออกแบบด้วยคอนเซ็ป “The New Residential Experience” นิยามใหม่ของการใช้ชีวิตใจกลางเอกมัยที่ให้ความรู้สึกเหมือนอยู่บ้าน ผสานการใช้ชีวิตคนเมืองได้อย่างลงตัว สัมผัสประสบการณ์ใหม่ของการใช้ชีวิตส่วนตัวได้ที่นี่
พร้อมสิ่งอำนวยความสะดวกภายในโครงการอาทิ FLOATING LOBBY, EV CHARGER 2 จุด, SKY LOUNGE, SKY LIBRARY, SKY WELLNESS SPA, FITNESS, PRIVATE FITNESS, SAUNA, YOGA, KIDS POOL, SKY POOL, ประตูคีย์การ์ด, Access Card Control, กล้องวงจรปิด พร้อม รปภ. 24 ชม.
โครงการแบ่งพื้นที่ใช้งานแต่ละชั้นได้ดังนี้
– 1st – 7th Floor : Garden, Lobby, Facility
– 2nd -6th Floor : Parking
– 7 th Floor : Duplex
– 8th – 28th Floor : Typical Floor
– 29th Floor : Duplex
– 30th Floor : Sky Villa
– 31st Floor – Rooftop : Swimming Pool, Facility, Garden
ภาพจำลองบรรยากาศด้านหน้าโครงการ เป็นสวนพร้อมต้นจามจุรีขนาดใหญ่ 3 ต้นที่โครงการเก็บเอาไว้จากที่ดินเดิม แต่ย้ายตำแหน่งมาไว้หน้าโครงการ ตัวอาคารออกแบบโดยใช้คอนเซ็ปหลักคือ Feel like home ที่ออกแบบมาให้ความรู้สึกเหมือนบ้าน ตั้งแต่ Facade อาคารที่ลดทอนมาจากบ้านเป็นสี่เหลี่ยมหน้าจั่ว เป็นดีไซน์ที่ให้ลุคแบบโมเดิร์น แต่ภายในให้ความรู้สึกเหมือนอยู่บ้าน
ภาพจำลองบรรยากาศชั้น 1-7 ให้เห็นพื้นที่ส่วนกลางตั้งแต่ Drop off ชั้นล่าง ไปจนถึง Welcome Foyer และพื้นที่ส่วนกลางของโครงการส่วน Lobby ชั้นล่างที่ไล่ไปตั้งแต่ชั้น 1 – 7 ซึ่งเป็นพื้นที่ Lobby ที่ได้บรรยากาศไม่เหมือนที่อื่นๆ
ที่ชั้น 7 มีความพิเศษคือมียูนิตที่พักอาศัยแบบ Duplex หรือ 2 ชั้นอยู่ด้วย ส่วนชั้น 8 ขึ้นไปเป็นยูนิตแบบ Simplex หรือยูนิตแบบ 1 ชั้นที่เพดานสูง 2.8 เมตร โดยชั้น 8-28 เป็น Typical Floor คือจัดผังห้องแบบเดียวกัน
ภาพจำลองบรรยากาศด้านหน้าโครงการ สวนหน้าโครงการมีบรรยากาศร่มรื่น และมีที่นั่งพักผ่อนแบบ Sunken Seat พร้อมต้นจามจุรีขนากใหญ่สูงประมาณตึก 6 ชั้น เป็นร่มเงาให้บริเวณด้านหน้าโครงการ
ภาพจำลองบรรยากาศโซน Multi-Storey – Social zone จุดเชื่อมต่อไปยัง Lobby เพดานสูงที่ตกแต่งอย่างหรูหราของโครงการ พร้อมโคมไฟระย้าที่ออกแบบมาพิเศษจากใบต้นจามจุรี
ภาพจำลองบรรยากาศโซน Multi-Storey – Social zone จุดเชื่อมต่อไปยัง Lobby ของโครงการ ความพิเศษอีกอย่างของ Lobby โครงการคือไม่ได้อยู่ที่ชั้น 1 แต่อยู่ที่ชั้น 7 เพื่อให้ Lobby ได้วิวที่แตกต่างจากปกตินั่นเอง โดยส่วน Lobby จะออกแบบโดยใช้พื้นผิวและวัสดุที่ให้ความรู้สึกเหมือนบ้าน
ภาพจำลองบรรยากาศโซน Multi-Storey – Quiet zone จุดเชื่อมต่อไปยัง Lobby ของโครงการ ซึ่งเป็นพื้นที่เปิดโล่งมองเห็นสวนและต้นจามจุรีขนาดใหญ่ของโครงการ
โดยส่วน Lobby ของโครงการจะมีทั้งส่วนที่เรียกว่า Quiet Zone และ Social Zone ให้เหมาะกับการใช้งานของ User โดยมีการแยกสัดส่วนอย่างชัดเจน ให้มีความเป็นส่วนตัวมากขึ้น แต่ในขณะเดียวกันก็รู้สึกโปร่งโล่งเหมือนอยู่บ้าน
ภาพจำลองบรรยากาศสวนของโครงการแบบขั้นบันไดเข้าสู่ Floating Lobby ชั้น 7
ภาพจำลองบรรยากาศพื้นที่ส่วนกลางหลักๆที่ชั้นบนของโครงการอย่างสระว่ายน้ำ ห้องฟิตเนส และห้องสปา สระว่ายน้ำเป็นสระแบบ Infinity edge pool ว่ายรอบได้ 360 องศา โดย Main Lab ยาว 28 m.
ผังอาคารชั้น 31 เป็นพื้นที่สระว่ายน้ำแบบ Infinity edge pool ว่ายรอบได้ 360 องศา โดย Main Lab ยาว 28 m. จะเห็นว่ามีการลดระดับพื้นที่นั่งพักผ่อนรอบสระลงไปเพื่อไม่ให้บังวิวสระว่ายน้ำนั่นเอง
ภาพจำลองบรรยากาศพื้นที่นั่งพักผ่อนชมวิวเมืองข้างสระว่ายน้ำของโครงการ จะเห็นว่ามีทางเดินคั่นกลาง และลดระดับพื้นที่นั่งพักผ่อนลงไปเพื่อไม่ให้บังวิวสระว่ายน้ำนั่นเอง
ผังอาคารชั้น 32 เป็นชั้นส่วนกลางหลักอีกชั้นที่อยู่เหนือสระว่ายน้ำ (ชั้น 31) โดยชั้นนี้จะมีห้องฟิตเนสขนาดใหญ่สำหรับคาร์ดิโอและเวท เทรนนิ่ง และมีห้องฟิตเนสแบบ Private Zone ที่สามารถจองไว้สำหรับกิจกรรมออกกำลังกายส่วนตัวหรือกับเพื่อนๆได้ เช่น โยคะ, คอร์สเรียนเต้นรำ เป็นต้น
พิเศษกว่าโครงการอื่นๆคือมีพื้นที่สปามาให้แบบจริงจัง คือมีบ่อน้ำร้อนออนเซ็น, ห้องสตีม, ห้องซาวน่า พร้อมพื้นที่อาบน้ำแต่งตัวมาให้แบบจัดเต็มทั้งฝั่งหญิงและชายค่ะ นอกจากนี้ยังมีสกายเลาจน์ พร้อมชุดที่นั่งให้ขึ้นมานั่งพักผ่อน จิบเครื่องดื่ม กินขนม ชมวิวเมือง ที่ชั้นสูงของโครงการได้ทุกคน
ภาพจำลองบรรยากาศห้องสปาของโครงการ แยกฝั่งชายหญิง โดยจะมีฝั่งละ 2 บ่อ คือบ่อแบบ Whirlpool massage และ White Ion Bath ส่วนนี้ยังไม่เคยเห็นโครงการคอนโดที่มีบ่อออนเซ็นทำค่ะ
White Ion Bath มีไอออนของออกซิเจนสีขาวหนาๆอยู่บนผิวน้ำ ที่ดีกับผิวพรรณและสุขภาพ อันนี้จากที่เราลองเสิร์ชหาข้อมูลเพิ่มเติมดูเองนะคะ
ภาพจำลองบรรยากาศพื้นที่ส่วนกลางของโครงการส่วน Floating Lobby (Feature Grand Lobby)
ภาพจำลองบรรยากาศพื้นที่ส่วนกลางของโครงการส่วน Floating Lobby (Flexible Lobby หรือ โซนชานบ้าน)
ภาพจำลองบรรยากาศพื้นที่ส่วนกลางของโครงการส่วน Floating Lobby (Tea Pavillion)
ภาพจำลองบรรยากาศพื้นที่ส่วนกลางส่วน Floating Lobby (Tea Pavillion) ที่เปิดผนังอาคารเป็นกระจกใสเพดานสูงโปร่งและ เปิดกว้าง รับวิวเมืองแบบเต็มที่
ภาพจำลองบรรยากาศห้องฟิตเนสผนังกระจกเปิดรับวิวเมืองของโครงการ
ภาพจำลองบรรยากาศสระว่ายน้ำที่ออกแบบมาสองชั้น เกิดเป็นถ้ำที่เพดานเป็นกระจกที่มองเห็นสระว่ายน้ำด้านบน ให้บรรยากาศที่สวยงามไม่เหมือนใคร
ภาพจำลองบรรยากาศที่สระว่ายน้ำมีระเบียงที่พื้นเป็นกระจก เป็นมุมที่ใช้ถ่ายรูปตอนชมวิวเมืองได้สวยและอินเทรนด์ไปในตัว
ผังอาคารชั้น 33 เป็นสวนชั้นดาดฟ้าของโครงการที่เรียกว่า Crown Garden ค่ะ จะเห็นว่าจัด Landscape มาแบบขั้นบันได แบ่งพื้นที่เป็นส่วนต่างๆให้ขึ้นมาพักผ่อนหย่อนใจในสวนชั้นบนสุดของโครงการกันได้
ภาพจำลองบรรยากาศ Rooftop garden ของโครงการ
:: UNIT PLAN ::
โครงการ RHYTHM EKKAMAI ESTATE มีห้องให้เลือก 6 แบบ ดังนี้
โดยผังห้องมีการออกแบบให้ตอบโจทย์ผู้อยู่อาศัยมากยิ่งขึ้น โดยพัฒนาจากประสบการณ์การออกแบบห้องในโครงการที่ผ่านมา เปรียบเทียบได้ดังนี้
จะเห็นว่าผังห้องแบบ 1 ห้องนอน ขนาด 35 ตร.ม. และ 40 ตร.ม.ของโครงการ RHYTHM EKKAMAI ESTATE มีหน้ากว้าง 5.5 เมตร ซึ่งกว้างกว่าห้องขนาด 35 ตร.ม. ของโครงการ Rhythm เอกมัย และ Rhythm รางน้ำ ขณะที่มีฟังก์ชั่นในห้องมากขึ้น เช่นมีครัวปิด มีห้องน้ำแบบ Double Access มีห้องนั่งเล่นเข้ามุม และห้องแบบ 40 ตร.ม.ก็มีห้องอเนกประสงค์เพิ่มขึ้นมา เป็นต้น
มีผังห้องแบบ Double Skin ขนาด 35 ตร.ม. ซึ่งเป็นห้องที่ระเบียงมีกระจกบานเลื่อนปิดอีกชั้น ให้สามารถเปลี่ยนพื้นที่ระเบียงเป็นพื้นที่ใช้สอยภายในห้องเพิ่มได้ มีให้ในห้อง 1 ห้องนอน 35 ตร.ม. ทิศใต้ ห้อง 1 ห้องนอน พลัส 39.5-40 ตร.ม. ทิศตะวันตกและห้อง 2 ห้องนอน ในทิศตะวันตกอีกด้วย
ผังห้องแบบ One Bedroom Plus ขนาด 40 ตร.ม.
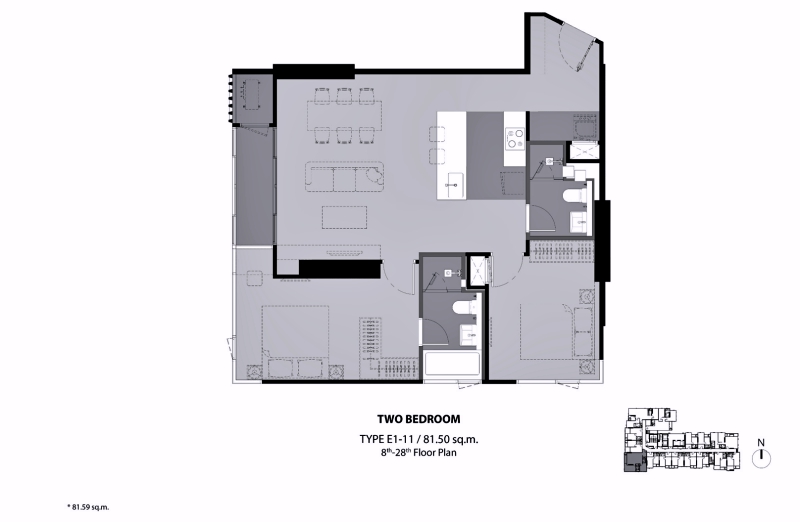
ผังห้องแบบ 2 ห้องนอนขนาด 81.5 ตร.ม. (ผังแบบเดียวกับห้องตัวอย่าง) จัดมาให้มีฟังก์ชั่นที่เหมือนอยู่บ้านมากขึ้น มีโถงทางเข้าหรือ Foyer ที่กว้างพอวางโต๊ะข้างและชั้นวางของได้สบายๆ พร้อมชุดครัว Built in และ Island เชื่อมต่อห้องนั่งเล่นและห้องรับประทานอาหาร ที่สามารถจัดโต๊ะรับประทานอาหาร 6-8 ที่นั่งได้สบายๆ ห้องนอนเข้ามุมทั้งสองห้อง นอกจากจะได้แสงธรรมชาติและมุมมองที่เปิดกว้างขึ้นแล้ว ยังสามารถถ่ายเทอากาศได้ดีอีกด้วย
ที่ชั้น 7 และชั้น 29 จะมีห้องแบบ Duplex 2 ห้องนอน หรือห้อง 2 ชั้นอยู่ จากผังห้องแบบ Duplex 2 ห้องนอนจะเห็นว่ามีห้องนอนแบบมีเตียงคู่ทั้ง 2 ห้อง และมีห้องน้ำ 2 ห้อง โดยห้องนอนใหญ่หรือ Master Bedroom มีห้องน้ำในตัว ห้องนั่งเล่น, ห้องรับทานอาหารมีเพดานสูง 5.5 เมตร และได้ครัวปิด พร้อมระเบียงแบบ Double Skin หันไปทางทิศใต้และทิศตะวันตก
จะมียูนิตที่มีทางเข้าห้องแบบพิเศษ ที่เดินผ่านสวนหย่อมส่วนตัวก่อนเข้าห้องมาให้ 4 ยูนิต และทั้งโครงการจะมียูนิตแบบ Garden Access Unit ที่เปิดออกมาที่สวนส่วนตัวได้เพียง 7 ยูนิตเท่านั้นค่ะ
ชั้นที่ 22 จะมียูนิตแบบ Garden Access Unit ที่เปิดออกมาที่สวนส่วนตัวได้ ให้บรรยากาศเหมือนอยู่บ้าน และมียูนิตที่จะมีทางเดินพิเศษผ่านสวนหย่อมก่อนเดินเข้าห้องอยู่ด้วย
:: ห้องตัวอย่าง ::
ห้องตัวอย่างของโครงการเป็นห้องแบบ 2 ห้องนอน ขนาด 81.5 ตร.ม. ประตูห้องตัวอย่างเจาะช่องขนาดเท่าบานประตูจริง ประตูทางเข้าทุกห้องติด Digital Door Lock มาให้
เข้าห้องมาจะเจอส่วน Foyer ก่อนค่ะ เป็นโถงที่กว้างกว่าทางเดินปกติ สามารถวางโต๊ะข้างตกแต่งและทำ Built in ชั้นวางรองเท้าหรือชั้นเก็บของเพิ่มได้
ห้องตัวอย่างทำ Built in ชั้นวางของสูงจรดเพดานมาให้ดูเป็นไอเดีย หน้าบานตู้เป็นกระจกเงาให้ส่องก่อนออกไปไหนมาไหนได้ด้วย เปิดด้านในให้ดูจะเห็นว่าเก็บของได้เยอะดี มีช่องให้วางเครื่องซักผ้าได้ด้วย

มองกลับไปที่ประตูทางเข้าห้องค่ะ พื้นห้องเป็นไม้ Hybrid Engineering Wood สีอ่อน
จาก Foyer จะเชื่อมต่อไปส่วนห้องครัวและห้องนั่งเล่น เพดานห้องสูง 2.8 เมตร ถือว่าให้มาสูงโปร่งเลย เมื่อเทียบกับโครงการอื่นๆ
พื้นที่ส่วนครัวเปิดและห้องนั่งเล่นติดระเบียงมีความโปร่งโล่งสบาย ให้ความรู้สึกกว้างขวางเหมือนเข้ามาในบ้าน
ชุดครัว Built in มาให้พร้อม Island เดี๋ยวเราพาไล่ดูกันไปทีละจุดนะคะ
ระยะใช้งานระหว่าง Island และชุดครัวมีระยะประมาณ 70 cm. เวลาเปิดปิดบานตู้มีระยะถอยระยะเดินสบายๆค่ะ พื้นส่วนครัวเป็นกระเบื้องแกรนิตโต้ขนาด 60 x 6o cm. ลายหินอ่อนสีขาวขีดเทา
เปิดหน้าบาน Island ให้ดูค่ะ มีชั้นวางของด้านใน ช่วยเพิ่มพื้นที่เก็บของหรือจานชามได้ดี
Top ของ Island เป็นหินสังเคราะห์สีขาว มีอ่างล้างจานแบบหลุมเดียว ไม่มีที่พักจานด้านข้างของ FRANKE ก็อกน้ำเป็นโครเมียมสีเงิน หมุนไปมาซ้ายขวาได้
ใต้อ่างล้างจานมีถังขยะพร้อมฝาปิดติดตั้งมาให้เรียบร้อย
ชุดครัว Built in พร้อมชั้นลอยมาให้ได้ตามนี้ หน้าบานเคาน์เตอร์เป็นเมลามีนปิดผิวลายไม้ ชั้นลอยด้านบนปิดผิวสีขาวครีมสบายตา และมีเว้นช่องสำหรับวางตู้เย็นมาให้เรียบร้อย
Top เคาน์เตอร์ครัวเป็นหินสังเคราะห์สีขาว ติด Back splash หรือผนังกันเปื้อนลายหินอ่อนมาให้เรียบร้อย ทำให้เช็ดล้างทำความสะอาดได้ง่าย
เตาไฟฟ้าให้มาแบบ 4 หัว พร้อมเครื่องดูดควัน ของ FRANKE เคาน์เตอร์ครัวมีระยะใช้งานสบายๆ มีพื้นที่ว่างพอวางเครื่องชงกาแฟ หรือเตรียมอาหารได้ นอกจากพื้นที่ Island ที่จัดเตรียมมาให้
ใต้เตาไฟฟ้ามีลิ้กชักพร้อมช่องแบ่งสำหรับเก็บช้อนส้อมมาให้เรียบร้อย
ถัดจากครัวเปิด เป็นส่วนห้องนั่งเล่นและห้องรับประทานอาหารติดระเบียงแบบ double skin เป็นพื้นที่ที่มีความ fliexible สามารถปรับให้เข้ากับไลฟ์สไตล์ของผู้ใช้งานที่มีความแตกต่างกันได้ดี
ส่วนรับประทานอาหารจัดชุดโต๊ะเก้าอี้สำหรับรับประทานอาหารแบบ 6 ที่นั่งมาให้ สามารถจัดโต๊ะแบบ 8 ที่นั่งได้เพราะมีระยะใช้งานพอค่ะ
ส่วนห้องนั่งเล่นมีระยะดูทีวีประมาณ 2 m. สามารถวางทีวีจอใหญ่ 60 – 70 นิ้วได้สบายๆ
ห้องตัวอย่างจัดโซฟาแบบ 3 ที่นั่ง พร้อมโต๊ะกาแฟ มาให้ดูระยะใช้งาน สามารถวางโซฟา L Shape ได้นะคะ เพราะมีระยะใช้งานพอ
มองไปทางชั้นวางทีวี ตกแต่งผนังและวางชั้นวางทีวีมาให้ดูเป็นไอเดีย ซ้ายมือของภาพเป็นประตูห้องนอนใหญ่หรือ Master Bedroom
จากห้องนั่งเล่นจะมีประตูเปิดออกไปส่วนระเบียงแบบ Double Skin หรือระเบียง 2 ชั้น ที่มีหน้าบานเลื่อนกระจกแบบ 4 บาน เปิดปิดแบบบานคู่มาให้ถึง 2 ชั้น ทำให้สามารถใช้งานระเบียงได้ทั้งแบบ Semi-outdoor ที่เป็นแบบ Open Air และแบบ Indoor ก็คือก็คือปิดบานเลื่อนกระจกด้านนอกหลังราวกันตกเอาไว้ ทำให้มีพื้นที่ใช้สอยภายในห้องเพิ่มมากขึ้น
พื้นส่วนระเบียงเป็นกระเบื้องแกรนิตโต้สีทรายขนาด 60 x 60 cm. เป็นสีที่กลมกลืนกับพื้นไม้ในห้องนั่งเล่น ทำให้พื้นที่มีโทนสีที่เชื่อมต่อกัน
ระเบียงมีความลึกประมาณ 80 cm. สามารถวางกระถางต้นไม้ มีมุมสวนหย่อมเล็กๆ หรือพอวางเก้าอี้และโต๊ะกาแฟเล็กๆสำหรับใช้นั่งดื่มชากาแฟได้
เข้าไปดูในห้องน้ำกันต่อค่ะ ประตูห้องน้ำจะอยู่ถัดจากห้องครัวเลย โดยธรณีห้องน้ำจะสูงกว่าพื้นห้องประมาณ 10 cm. พื้นธรณีประตูเป็นหินสังเคราะห์ อันนี้ดีค่ะ เพราะใช้ไปนานๆจะไม่บวมขึ้นมาแบบพื้นธรณีลามิเนตที่มีผลทำให้ประตูห้องน้ำเปิดปิดยาก
ห้องน้ำมีระยะใช้งานสบายๆ พื้นปูกระเบื้องลายแกรนิตโต้ลายหินอ่อนสีขาวเทาขนาด 60×60 cm. สุขภัณฑ์ใช้อุปกรณ์ของ kohler พร้อมมีฉากกั้นอาบน้ำและ มี Low Wall หลังอ่างล้างมือและโถสุขภัณฑ์มาให้วางของเพิ่มได้ พร้อมติดกระจกเงามาให้เรียบร้อย
ผนังปูกระเบื้องจรดเพดาน เพดานห้องน้ำสูง 2.6 เมตร และติดไฟดาวน์ไลท์มาให้เรียบร้อย
เคาน์เตอร์อ่างล้างมือเป็นอะคริลิกสีขาว มีลิ้นชักใต้อ่างพร้อมราวแขวนผ้าเช็ดมือมาให้เรียบร้อย
เทียบขนาดมือกับอ่างล้างมือมาให้เห็นระยะใช้งานค่ะ หลังอ่างล้างมือมี Low Wall มาให้วางของเพิ่มได้เยอะดี ผนังข้างอ่างติดเต้าเสียบปลั๊กไฟพร้อมฝาครอบกันน้ำมาให้้เสียบไดร์เป่าผมหรือเครื่องโกนหนวดกันได้
ชุดโถสุขภัณฑ์มาพร้อมกับสายฉีดชำระและที่แขวนกระดาษชำระสแตนเลสของ Kohler หลังโถสุขภัณฑ์มี Low Wall มาให้วางของได้
ผนังด้านข้างโถสุขภัณฑ์เจาะช่องเป็นชั้นวางของมาให้ 2 ชั้น
ฉากกั้นห้องอาบน้ำเป็นกระจกเทมเปอร์แบบบานเปิด มือจับเป็นรูปตัว U ใช้แขวนผ้าเช็ดตัวได้
ส่วนอาบน้ำมี Rain Shower พร้อมชุดฝักบัวของ Kohler มาให้ ส่วนฝักบัวมีขนาดใหญ่เหมาะมือ และสามารถปรับขนาดหยดน้ำได้ และที่ผนังมีเจาะชั้นเก็บของมาให้ 2 ชั้น
ติดห้องน้ำเป็นห้องนอนเล็ก มีประตูบานปิดเป็นสัดส่วน
ภายในห้องนอนเล็ก สามารถวางเตียงคู่ 5 ฟุตพร้อมตู้เสื้อผ้า โต๊ะเครื่องแป้ง และชั้นวางทีวี ได้สบายๆ
ในห้องนอนเล็กมีหน้าต่างชุดใหญ่มาให้ เป็นหน้าต่างบานฟิกซ์ทั้งหมด ยกเว้นบานที่สองตรงกลางซึ่งเป็นหน้าต่างบานเปิด ใข้เปิดระบายอากาศได้ ทำให้ห้องมีช่องแสงธรรมชาติที่กว้าง ทำให้สว่างและโปร่งในตอนกลางวัน และเปิดรับวิวได้เป็นมุมกว้าง
ข้างเตียงฝั่งติดหน้าต่างมีระยะใช้งานประมาณ 35 cm. สามารถวางโต๊ะข้างเล็กๆหรือโคมไฟได้ จะเห็นว่าที่หัวเตียงมีหน้าต่างเข้ามุมแบบ Bay Window มาให้ ทำให้ได้มุมมองที่กว้างขึ้น

ปลายเตียงหลังจากวางเตียงไปแล้วมีระยะเหลือประมาณ 70 cm. มีระยะพอวางชั้นวางทีวีและเหลือระยะเดินไปมาได้อยู่
ที่ผนังฝั่งติดประตูทางเข้าห้อง ทำ Built in ตู้เสื้อผ้ามาให้สูงจรดเพดาน
ตู้เสื้อผ้าหน้าบานเปิดปิดแบบบานเลื่อน ห้องตัวอย่างวางโต๊ะเครื่องแป้งพร้อมสตูลมาให้ดูระยะใช้งาน
เราไปดูห้องนอนใหญ่หรือ Master Bedroom กันต่อค่ะ
Master Bedroom จะมีห้องน้ำในตัวค่ะ และมี Walk in closet พร้อมมุมสำหรับโต๊ะเครื่องแป้ง และโต๊ะทำงานได้
ในห้องนอนแบบ Master Bedroom มีหน้าต่างชุดใหญ่มาให้ เป็นหน้าต่างบานฟิกซ์ทั้งหมด ยกเว้นบานที่สองตรงกลางซึ่งเป็นหน้าต่างบานเปิด ใข้เปิดระบายอากาศได้ ทำให้ห้องมีช่องแสงธรรมชาติที่กว้าง ทำให้สว่างและโปร่งในตอนกลางวัน และเปิดรับวิวได้เป็นมุมกว้าง
ข้างเตียงฝั่งหัวเตียง ติดหน้าต่างมีระยะใช้งานประมาณ 60 cm. สามารถวางโต๊ะข้างเล็กๆหรือโคมไฟได้ จะเห็นว่าที่หัวเตียงมีหน้าต่างเข้ามุมแบบ Bay Window มาให้ ทำให้ได้มุมมองที่กว้างขึ้น และมีเต้าเสียบปลั๊กไฟแบบฝังพื้นติดตั้งมาให้เรียบร้อย
ติดหน้าต่างฝั่งปลายเตียงมีมุมติดหน้าต่าง หันหน้าไปทางระเบียง มุมนี้วางโต๊ะทำงานพร้อมเก้าอี้มาให้
ที่ผนังฝั่งติดประตูทางเข้าห้อง ทำ Built in ตู้เสื้อผ้ามาให้สูงจรดเพดาน
ตู้เสื้อผ้าหน้าบานเปิดปิดแบบบานเลื่อน ห้องตัวอย่างวางโต๊ะเครื่องแป้งพร้อมสตูลมาให้ดูระยะใช้งาน
ตู้เสื้อผ้า Built in มาให้แบบ Walk in closet
เข้าไปดูห้องน้ำในห้องนอนใหญ่กันต่อค่ะ โดยธรณีห้องน้ำจะสูงกว่าพื้นห้องประมาณ 10 cm. พื้นธรณีประตูเป็นหินสังเคราะห์ อันนี้ดีค่ะ เพราะใช้ไปนานๆจะไม่บวมขึ้นมาแบบพื้นธรณีลามิเนตที่มีผลทำให้ประตูห้องน้ำเปิดปิดยาก
ห้องน้ำมีระยะใช้งานสบายๆ พื้นปูกระเบื้องลายแกรนิตโต้ลายหินอ่อนสีขาวเทาขนาด 60×60 cm. สุขภัณฑ์ใช้อุปกรณ์ของ kohler พร้อมมีฉากกั้นอาบน้ำและมี Low Wall หลังอ่างล้างมือและโถสุขภัณฑ์มาให้วางของเพิ่มได้ พร้อมติดกระจกเงามาให้เรียบร้อย
สเป็คโถสุขภัณฑ์และอ่างล้างมือเป็นแบบเดียวกันกับห้องน้ำอีกห้องค่ะ ชุดโถสุขภัณฑ์มาพร้อมกับสายฉีดชำระและที่แขวนกระดาษชำระสแตนเลสของ Kohler เคาน์เตอร์อ่างล้างมือเป็นอะคริลิกสีขาว มีลิ้นชักใต้อ่างพร้อมราวแขวนผ้าเช็ดมือมาให้เรียบร้อย
ผนังปูกระเบื้องจรดเพดาน เพดานห้องน้ำสูง 2.6 เมตร และติดไฟดาวน์ไลท์มาให้เรียบร้อย
มีอ่างอาบน้ำติดหน้าต่างมาให้แช่น้ำอุ่นไป ชมวิวไปด้วยได้ โดยหน้าต่างกว้างเต็มความกว้างและความสูงเพดาน บานขวาเป็นหน้าต่างบานฟิกซ์ บานซ้ายเป็นหน้าต่างบานเปิด
อ่างอาบน้ำเป็นอ่างสีขาว ทรงสี่เหลี่ยมขอบมน จะเห็นว่าพอวางของรอบๆอ่างได้
มีก๊อกน้ำร้อนน้ำเย็น และมีฝักบัวแบบปรับระดับหยดน้ำได้
ฉากกั้นห้องอาบน้ำเป็นกระจกเทมเปอร์แบบบานเปิด มือจับเป็นรูปตัว U ใช้แขวนผ้าเช็ดตัวได้
ส่วนอาบน้ำมี Rain Shower พร้อมชุดฝักบัวของ Kohler มาให้ ส่วนฝักบัวมีขนาดพอดีมือ
ราคา (มี.ค. 2562)
*สอบถามราคาเพิ่มเติมกรุณาติดต่อสำนักงานขาย
ค่าส่วนกลาง : 55 บาท/ตร.ม./เดือน (เก็บล่วงหน้า 1 ปี)
ค่ากองทุน : 500 บาท/ตร.ม. (ชำระครั้งเดียว ณ วันโอน)
เตรียมพบกับคอนโด RHYTHM EKKAMAI ESTATE คอนโดมิเนียมระดับไฮเอนด์ใจกลางเอกมัย-ทองหล่อ ใกล้สถานีรถไฟฟ้า BTS เอกมัย โครงการมีกำหนดเปิดตัวแบบ Exclusive launch ที่ paragon ตั้งแต่ 21 – 24 มีนาคมนี้ ที่ชั้น 1 แฟชั่นฮอลล์ สยามพารากอน ราคาห้องเริ่มต้น 6.5 ล้านบาท*
** หมายเหตุ : ข้อมูลอาจมีการเปลี่ยนแปลงเนื่องจากโครงการยังไม่เปิดตัวอย่างเป็นทางการค่ะ **
ลงทะเบียนเพื่อรับข้อมูลและสิทธิพิเศษ* คลิก : https://bit.ly/2TpCNey
สรุป
ทำเลที่ตั้งโครงการ – โครงการ RHYTHM EKKAMAI ESTATE เป็นคอนโดมิเนียมทำเลใจกลางเอกมัย-ทองหล่อ ที่มีความอุดมสมบูณ์และสะดวกสบายสูงและมีจุดแข็งที่น่าสนใจหลายอย่าง ด้วยที่ตั้งที่อยู่ใกล้ทองหล่อซอย 10 เพียง 180 ม. เท่านั้น เป็นทำเลที่ทะลุไปซอยทองหล่อได้อย่างง่ายดาย,ใกล้สถานีรถไฟฟ้า BTS สถานี เอกมัย, ใกล้จุดขึ้นลงทางด่วนทั้งรามอินทรา- อาจณรงค์และศรีรัช รายล้อมไปด้วยร้านอาหารนับร้อยร้านในซอยทองหล่อ เอกมัย และห้างสรรพสินค้าขนาดใหญ่มากมายทั้ง Donki ทองหล่อ, Big C เอกมัย, Gateway Ekamai, Major เอกมัย, Emporium, Emquartier, Terminal 21 ในระยะตั้งแต่เดินถึงไปจนถึงนั่ง BTS ไปเพียง 2-3 สถานีเท่านั้น
จัดเป็นโครงการที่น่าสนใจและเหมาะทั้งซื้อเพื่ออยู่อาศัยเองและเพื่อการลงทุนค่ะ ด้วยมูลค่าของทำเลโซนนี้และที่ดินโซนเอกมัย-ทองหล่อที่แทบไม่เหลือให้สร้างคอนโดได้อีกแล้ว ทำให้ที่ดินโซนนี้ทั้งหายากและราคาพุ่งสูงขึ้นเรื่อยๆ รวมถึงเป็นโครงการใน Segment ที่ AP คุ้นเคย และทำการบ้านในการออกแบบมาเป็นอย่างดี พร้อมความแข็งแกร่งด้านเงินลงทุนโครงการ ช่วยเสริมความมั่นใจให้ผู้ซื้อได้อีกระดับ
การเดินทางด้วยรถยนต์ส่วนตัว – สำหรับคนใช้รถ โครงการมีที่ตั้งอยู่ในซอยสุขุมวิท 63 หรือซอยเอกมัย กลางซอยเอกมัยเลย โดยอยู่ห่างจากทองหล่อซอย 10 เพียง 180 เมตรเท่านั้น ทำให้เชื่อมต่อไปออกได้หลายทางนะคะ ไม่ว่าจะเป็นถนนสุขุมวิท, สุขุมวิท 55 (ทองหล่อ) จัดเป็นทำเลที่คนใช้รถมีความสะดวกสบาย และมีทางเลือกในการเข้าออกเยอะค่ะ ออกซอยไปเป็นถนนใหญ่สุขุมวิทฝั่งขาออก วิ่งออกเมืองไปอ่อนนุช, บางนา, สมุทรปราการได้ หรือจุดกลับรถก็อยู่หน้าซอยสุขุมวิท 61 เลย ใช้วิ่งเข้าเมืองโซน CBD อย่างสุขุมวิทได้สะดวก ใกล้ทองหล่อ, พร้อมพงษ์, อโศก ในระยะขับรถเพียง 1 – 10 นาทีถึงเท่านั้น
ทำเลตรงนี้มีจุดขึ้นทางด่วนกระจายตัวอยู่รอบๆ ทั้ง ทางด่วนเพลินจิต, พระราม 4, เอกมัย – รามอินทรา, สุขุมวิท 50 ฯลฯ แต่เนื่องจากย่านนี้รถค่อนข้างติดค่ะ เพราะทุกเส้นอยู่ในตัวเมืองทั้งนั้น ทำให้การเดินทางโดย “เลี่ยงเมือง” ทำไม่ได้ แต่โดยรวมการเดินทางก็สะดวกอยู่แล้ว เพราะอย่างที่กล่าวไปข้างต้นว่าทำเลอยู่ในตัวเมืองอยู่แล้วด้วย และจากโครงการก็มีทางลัดเลาะเลี่ยงถนนใหญ่ได้หลายทาง สามารถลัดเลาะผ่านไปทางเอกมัย เข้าทองหล่อ ไปอโศกได้เลยโดยไม่ต้องผ่านถนนใหญ่สุขุมวิท
การเดินทางด้วยรถสาธารณะ – สำหรับคนไม่ใช้รถ นอกจากโครงการอยู่ใกล้รถไฟฟ้า BTS สถานี เอกมัย ในระยะเดินประมาณ 1 กม. ที่เดินมารถไฟฟ้าได้ในระยะประมาณ 13 นาทีถึง คนชอบเดินสามารถเดินไปขึ้น BTS ได้สบายๆ ไม่ชอบเดินก็นั่งวินมอเตอร์ไซค์ไปขึ้น BTS ได้ในราคา 20 บาท 2 นาทีถึงแล้ว โซนนี้มีทั้งแท็กซี่ วินมอเตอร์ไซค์ ขับผ่านอยู่เรื่อยๆค่ะ จะไปไหนก็ไว รถติดก็มีทางเลี่ยงเยอะแยะ และใช้ระยะทางไปไหนมาไหนค่อนข้างสั้น เพราะอยู่ใจกลางเมืองในแหล่งห้างสรรพสินค้าอยู่แล้ว อยากไปช็อปปิ้ง ก็สามารถขึ้นรถไฟฟ้าไปได้ทั้ง เอ็มโพเรียม, เอ็มควอเทียร์, เทอมินอล 21, เซ็นทรัลเอ็มบาสซี ไปจนสยามพารากอน ไม่ต้องรถติด ทั้งใกล้และสะดวก ทั้งยังสามารถเปลี่ยนไปขึ้นรถไฟฟ้าใต้ดิน MRT สุขุมวิท จาก BTS สถานีอโศกได้
สำหรับคนที่เดินทางไปต่างประเทศหรือไปสนามบินบ่อยๆ ความสะดวกและข้อดีอีกอย่างคือโครงการอยู่ห่างจากรถไฟฟ้าแอร์พอร์ตเรลลิงก์สถานีรามคำแหงในระยะประมาณ 3.1 กม. หรือระยะขับรถมาเพียง 9 นาทีเท่านั้น เราสามารถต่อแท็กซี่ไปขึ้นแอร์พอร์ตลิงก์นั่งไปสนามบินสุวรรณภูมิหรือลาดกระบังได้สบายๆ
การออกแบบโครงการและวัสดุ – โครงการออกแบบมาด้วยคอนเซ็ปต์ที่น่าสนใจ มีความทันสมัยและพยายามตอบโจทย์ชีวิตคนในปัจจุบันและกลุ่มลูกค้าของโครงการนี้ได้ดี เป็นแนวคิดที่ออกแบบให้โครงการให้ความรู้สึกเหมือนอยู่บ้าน พาเข้าสู่ความสงบร่มรื่นของธรรมชาติ โดยพื้นที่ส่วนกลางของโครงการที่ให้มากว้างขวาง ดีไซน์อาคารเป็นสไตล์โมเดิร์นแบบ Feel like home ที่เต็มไปด้วยรายละเอียดและวัสดุที่เลือกสรรมาอย่างพิถีพิถัน
สเป็คพื้นเป็น Hybrid Engineering Wood ส่วนครัวและห้องน้ำปูด้วยกระเบื้องแกรนิตโต้ 60 x 60 cm. เพดานห้องปกติสูง 2.8 เมตร, ห้องแบบ Duplex สูง 5.5 เมตร และห้องแบบ Sky Villa สูง 3 เมตร ติดไฟดาวน์ไลท์ สเป็ควัสดุภาพรวมทำออกมาได้ใส่ใจรายละเอียด สบายตา และทนทานในแง่การใช้งาน ฟังก์ชั่นการวางผังห้องพัฒนามาตอบโจทย์ผู้ใช้งานและมีความพรีเมี่ยมสมราคา
สิ่งอำนวยความสะดวก –โครงการมีจุดเด่นคือมีพื้นที่ส่วนกลางขนาดใหญ่ ตัวอาคารออกแบบด้วยคอนเซ็ป “The New Residential Experience” นิยามใหม่ของการใช้ชีวิตใจกลางเอกมัยที่ให้ความรู้สึกเหมือนอยู่บ้าน ผสานการใช้ชีวิตคนเมืองได้อย่างลงตัว สัมผัสประสบการณ์ใหม่ของการใช้ชีวิตส่วนตัวได้ที่นี่
พร้อมสิ่งอำนวยความสะดวกภายในโครงการอาทิ FLOATING LOBBY, EV CHARGER 2 จุด, SKY LOUNGE, SKY LIBRARY, SKY WELLNESS SPA, FITNESS, PRIVATE FITNESS, SAUNA, YOGA, KIDS POOL, SKY POOL, ประตูคีย์การ์ด, Access Card Control, กล้องวงจรปิด พร้อม รปภ. 24 ชม.
คะแนน
| ทำเลที่ตั้งโครงการ | 8.5 | ติดถนนเอกมัย ใกล้ถนนใหญ่สุขุมวิท ใกล้ BTS เอกมัย, ใกล้ทางด่วน, รอบๆมีสิ่งอำนวยความสะดวกมากมาย อยู่ใจกลางเอกมัย-ทองหล่อ เพียง 2 นาทีถึง BTS |
| การเดินทาง ใช้รถ | 8.5 | ติดถนนเอกมัย ห่างจากทองหล่อซอย 10 เพียง 180 เมตร เชื่อมต่อไปทองหล่อได้ง่ายดายและมีทางลัดเลาะเชื่อมต่อออกไปได้หลายเส้นทาง ทั้งเข้าเมืองและออกเมือง และยังใกล้จุดขึ้นลงทางด่วน |
| การเดินทาง ไม่ใช้รถ | 8.5 | หน้าโครงการมีวินมอเตอร์ไซค์และมีแท็กซี่ผ่านมาเรื่อยๆ และอยู่ใกล้รถไฟฟ้า BTS เอกมัย ซึ่งอยู่ห่างจากที่ตั้งโครงการเพียง 1 กม. |
| ห้องและวัสดุ | 8.5 | โครงการออกแบบและสเป็ควัสดุมาได้สวยงาม มีความพรีเมียมสมราคา และคิดถึงการใช้งานจริงมาได้ดี โดยแสดงออกมาในรายละเอียดของฟังก์ชั่น การออกแบบ และการเลือกวัสดุในส่วนต่างๆ |
| สิ่งอำนวยความสะดวก | 9.0 | มีให้ครบครันและออกแบบได้น่าใช้งาน สวนขนาดใหญ่ ออกแบบมาอย่างใส่ใจรายละเอียดทั่งในแง่มุมมอง การใช้งาน และการดูแลรักษาในอนาคต |
| ความคุ้มค่ากับราคา | 8.5 | ราคาเฉลี่ยเริ่มต้นตอนนี้อยู่ที่ประมาณ 185,000 บาท/ ตร.ม. ได้ทำเลใจกลางเอกมัย-ทองหล่อ และใกล้สถานีรถไฟฟ้า BTS เอกมัย ใกล้จุดขึ้นลงทางด่วน ใกล้โรงเรียน โรงพยาบาล และสำนักงาน ไปไหนมาไหนสะดวก และมีพื้นที่ส่วนกลางขนาดใหญ่ในโครงการ |
| คะแนนรวมเฉลี่ย | 8.5 | ดีมาก |
สอบถามรายละเอียดเพิ่มเติมได้ที่
Tel : 1623
Website : http://www.apthai.com
หากเพื่อนๆเห็นว่ารีวิวนี้มีประโยชน์ ช่วยกด Like เพื่อเป็นกำลังใจให้ทีมงาน ขอบคุณค่ะ
และมีความคิดเห็นหรือข้อมูลเพิ่มเติมเกี่ยวกับตัวโครงการ สามารถ Comment ได้ที่ด้านล่างของรีวิวค่ะ