
โฮมออฟฟิศ เมติเย่ร์ พระราม 9 METIER Rama 9 “ที่สุดแห่งทำเลใจกลางเมือง”
MÉTIER พระราม 9 โฮมออฟฟิศหรูใจกลางทำเลย่านพระราม 9 ศูนย์กลางธุรกิจของกรุงเทพ Central Business District (CBD) ตั้งอยู่ภายในซอยรามคำแหง 15 แขวงหัวหมาก เขตบางกะปิ กทม. ใกล้ทุกการเชื่อมต่อ เพียง 1 ก้าว ถึง The Mall รามคำแหง ใกล้สถานีรถไฟฟ้า MRT เพียง 150 ม.
เมติเย่ร์ พระราม 9 เป็นโครงการโฮมออฟฟิศ 5 ชั้น พื้นที่โครงการขนาด 1-0-72 ไร่ จำนวนบ้าน 8 ยูนิต ที่ดินบ้าน เริ่มต้น 46.8-50 ตร.ว. พื้นที่ใช้สอย ประมาณ 563 ตร.ม.
ขนาด 2 ห้องนอน 7 ห้องน้ำ ที่จอดรถ 6 คัน พร้อม ลิฟต์โดยสาร, ระบบ Home Automation และ ระบบรักษาความปลอดภัยภายในอาคาร ราคาเริ่มต้น 35 ล้านบาท* (มี.ค.64)

| ชื่อโครงการ | เมติเย่ร์ พระราม 9 METIER Rama 9 |
| เจ้าของโครงการ | W&W Property and Development |
| ลักษณะโครงการ | โฮมออฟฟิศ 5 ชั้น |
| พื้นที่โครงการ | 1-0-72 ไร่ |
| จำนวนบ้าน | 8 ยูนิต |
| เนื้อที่บ้าน | เริ่มต้น 46.8-50 ตร.ว. |
| พื้นที่ใช้สอย | ประมาณ 563 ตร.ม. |
| จำนวนห้อง | 2 ห้องนอน 7 ห้องน้ำ + ลิฟต์โดยสาร |
| ที่จอดรถทั้งหมด | 6 คัน |
| โซน | เขตบางกะปิ |
| เส้นทางคมนาคม |
|
| ที่ตั้ง | ซอยรามคำแหง 15 แขวงหัวหมาก เขตบางกะปิ กทม. |
| กำหนดการ | เริ่มก่อสร้าง เม.ย. 2562 |
| ปีที่สร้างเสร็จ | คาดว่าจะแล้วเสร็จ เม.ย. 2563 |
| ราคา | เริ่มต้น 35 ล้านบาท* (มี.ค.64) |
| ค่าส่วนกลาง | รอข้อมูลจากทางโครงการ |
| สถานที่สำคัญใกล้เคียง |
|
| สิ่งอำนวยความสะดวก | ระบบ Home Automation |
| จุดเด่นของโครงการ | MÉTIER พระราม 9 โฮมออฟฟิศใหม่ 5 ชั้น ระดับ Super Luxury ที่ออกแบบให้โดดเด่น หรูหรา 6 ที่จอดรถ พร้อมลิฟต์ทุกยูนิต เป็นส่วนตัวเพียง 8 ยูนิตเท่านั้น |
ที่ตั้งโครงการ
ซอยรามคำแหง 15 แขวงหัวหมาก เขตบางกะปิ กทม.
พิกัด Google Maps : https://goo.gl/maps/o5UPWwYKp4GZftKE8
FLOOR PLAN
Master Plan
แปลนบ้านชั้น 1
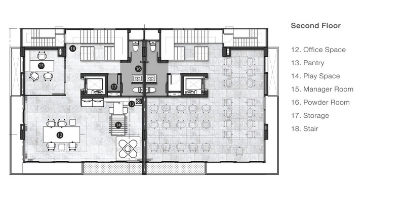
แปลนบ้านชั้น 2
แปลนบ้านชั้น 3
แปลนบ้านชั้น 4
แปลนบ้านชั้น 5
GALLERY
สอบถามรายละเอียดเพิ่มเติมได้ที่
Tel : 062-313-1000
Website : https://www.wawproperty.com/metier-rama9