
EP.487 รีวิว คิริน คอนโด ราชพฤกษ์ Kirin Condo Ratchapruek
สวัสดีค่ะผู้อ่านชาว Homenayoo วันนี้เราจะพาไปชมของหายากในทำเลราชพฤกษ์กันค่ะ นั่นก็คือโครงการ Kirin Condo ราชพฤกษ์ คอนโดราคาต่ำล้าน ที่ตอบรับวิถีชีวิตคนรุ่นใหม่แนวคิด Minimal Japanese เน้นการออกแบบพื้นที่ใช้สอย ให้เกิดประโยชน์สูงสุด
โครงการอยู่ที่ ถนนราชพฤกษ์ ภายในซอยบางขนุน 5 หรือ ซอย Gigs Town ประมาณ 300 เมตร ฝั่ง The Walk ราชพฤกษ์ เลยวงเวียนพระราม 5 มา 1.4 กม. และอยู่ตรงข้ามกับ The Crystal ราชพฤกษ์
คิริน คอนโด ราชพฤกษ์ เป็นคอนโด Low Rise สูง 8 ชั้น จำนวน 5 อาคาร พื้นที่โครงการขนาด 2-1-60 ไร่ ห้องพักอาศัยจำนวน 385 ยูนิต มีห้องแบบเดียว 2 ขนาด คือ 22.4 และ 23.5 ตร.ม. ที่จอดรถ 128 คัน (คิดเป็น 33%) รวมจอดซ้อนคัน โครงการสร้างเสร็จพร้อมอยู่ปี 2563
สิ่งอำนวยความสะดวกครบครัน อาทิ Lobby, Mailbox, สวนพักผ่อน, ระบบ Key Card Access, CCTV, รปภ. 24 ชม. ราคาเริ่มต้น 980,000 บาท* (ส.ค.59)
ส่วนรายละเอียดโครงการจะเป็นอย่างไร เลื่อนลงไปชมด้านล่างกันได้เลยค่ะ 😉

| ชื่อโครงการ | คิริน คอนโด ราชพฤกษ์ Kirin Condo RatchapruekEIA APPROVED |
| เจ้าของโครงการ | บริษัท อัยพฤกษ์ จำกัด |
| ลักษณะห้องและขนาดห้อง | – 1 Bedroom : 22.4 ตร.ม. / 23.5 ตร.ม. |
| เนื้อที่ทั้งหมด | 2-1-60 ไร่ |
| จำนวนตึก | 5 อาคาร |
| จำนวนชั้น | 8 ชั้น |
| จำนวนห้อง | 385 ยูนิตพักอาศัย และร้านค้า 2 ยูนิต (ยูนิตต่อชั้นสูงสุด 11 ยูนิต) |
| ที่จอดรถทั้งหมด | 128 คัน (คิดเป็น 33%) รวมจอดซ้อนคัน |
| โซน | ราชพฤกษ์ |
| ขนส่งสาธารณะ | – ใกล้ถนนราชพฤกษ์ – ใกล้ถนนกาญจนาภิเษก – ใกล้รถไฟฟ้าสายสีม่วง |
| รถโดยสารที่ผ่าน | 751 |
| ที่ตั้ง | ถนนราชพฤกษ์ ต.บางขนุน อ.บางกรวย จ.นนทบุรี |
| กำหนดการ | – Pre-Sale 17-18 พ.ย. 2561 |
| ปีที่สร้างเสร็จ | Phase 1 และ Phase 2 ปี 2563 |
| ราคา | เริ่มต้น 980,000 บาท |
| ราคาเฉลี่ยต่อ ตร.ม | ประมาณ 43,700-53,500 บาท/ ตร.ม. |
| ค่าส่วนกลางและกองทุน | ค่าส่วนกลาง 35 บาท/ตร.ม/เดือน ค่ากองทุน 450 บาท/ตร.ม. |
| สถานที่สำคัญใกล้เคียง | ห้างสรรพสินค้า – The Walk ราชพฤกษ์ : 1.5 กม. – Home Work : 2.2 กม. – Home Pro ราชพฤกษ์ : 2.6 กม. – The Crystal ราชพฤกษ์ : 2.8 กม. – ตลาดสดกรุงนนท์ : 3.8 กม. – Think Cafe : 5.2 กม. – ตลาดพระราม 5 : 7.7 กม. – เมเจอร์ปิ่นเกล้า : 7.7 กม. – The Circle : 8.7 กม. – Lotus Plusmall : 9.9 กม. – เซ็นทรัลรัตนาธิเบศร์ : 10.8 กม. – เซ็นทรัลปิ่นเกล้า : 11.3 กม. – เซ็นทรัลเวสต์เกตท์ : 12.1 กม.สถานศึกษา – รร.วัดซองพลู : 1.5 กม. – มหาวิทยาลัยราชพฤกษ์ : 2.5 กม. – รร.มหาสวัสดิ์ราษฏรบำรุง : 3 กม. – รร.บดินทรเดชานนทบุรี : 4.6 กม. – รร.เด่นหล้าพระราม5 : 6.1 กม. – รร.วัดน้อยใน : 6.6 กม. – รร.เตรียมอุดมศึกษาพัฒนาการนนทบุรี : 6.7 กม. – รร.เทพสิรินทร์นนทบุรี : 9.4 กม.ศูนย์การแพทย์ – รพ.ตาหูคอจมูก(EENT) : 7 กม. – รพ.เลอลักษณ์ : 9 กม. – รพ.ธนบุรี 2 : 9.9 กม. – รพ.ศรีธัญญา : 10 กม. – รพ.เจ้าพระยา : 10.5 กม. – รพ.ศิริราช : 10.9 กม. – รพ.ยันฮี : 10.9 กม. – รพ.บางใหญ่ : 12 กม.สถานที่ราชการ และอาคารสำนักงาน – สำนักงานขนส่งกรุงเทพมหานคร พื้นที่ 2 : 6 กม. – สถานีขนส่งสายใต้ใหม่ : 7.6 กม. |
| สิ่งอำนวยความสะดวก | – Lobby – สวนพักผ่อน – กล่อง Mail Box – กล้อง CCTV – เข้า-ออกระบบ Key Card – ระบบรักษาความปลอดภัยตลอด 24 ชม. |
| จุดเด่นของโครงการ | คิริน คอนโดโมเดิร์น สไตล์ญี่ปุ่น ที่ตอบรับวิถีชีวิตของคนรุ่นใหม่เน้น การออกแบบพื้นที่ใช้สอยให้เกิดประโยชน์สูงสุด เริ่มต้นเพียง 980,000 บาท ฟรีแอร์ + เฟอร์นิเจอร์ครบ |
:::: ที่ตั้งโครงการ ::::
ซอย Gigs Town (ซ.บางขนุน 5) ถนนราชพฤกษ์ ต.บางขนุน อ.บางกรวย จ.นนทบุรี
พิกัด GOOGLE MAPS โครงการ : 13.811026, 100.452174
พิกัด GOOGLE MAPS สำนักงานขาย : 13.811083,100.449806
แผนที่จากทางโครงการ
โครงการ Kirin Condo เป็นคอนโด Low Rise สูง 8 ชั้น ตั้งอยู่ในซอยไม่มีชื่อ หรืออาจเรียกว่า ซ.Gigs Town ค่ะ โดยสามารถเข้าได้จาก ซ.บางขนุน 5 เจอทางแยกแล้วเลี้ยวขวา โครงการจะอยู่ด้านซ้ายมือ ข้างทาวน์โฮม Cluster Ville 3 ปิ่นเกล้า-ราชพฤกษ์ โดยทางเข้าจะอยู่ติดรั้วโครงการคลัสเตอร์วิลล์เลยค่ะ โดยอยู่ห่างจากปากซอยบางขนุน 5 หรือ ถ.ราชพฤกษ์ 300 เมตรเท่านั้น
โครงการอยู่ใกล้กับวงเวียนราชพฤกษ์ค่ะ อยู่ฝั่งห้าง The Walk และตรงกันข้ามกับ The Crystal พอดี โดยมีสะพานลอยให้เดินข้ามไม่ไกลจากปากซอย และยังมีห้างดังอีกหลายห้าง เช่น Homepro ราชพฤกษ์, Home Work, Index Living mall ใกล้กับ มหาวิทยาลัยราชพฤกษ์ ตลาดกรุงนนท์ และตลาดพระราม 5 ด้วยค่ะ หรืออาจขับรถไปที Tesco Lotus Plus Mall บางใหญ่ บริเวณถ.กาญจนาภิเษก หรือ ห้าง Makro และ Tesco Lotus นครอินทร์ก็ไม่ไกล ซึ่งถือว่าสาธารณูปโภคครบครันทั้งของกินของใช้ในบ้านกันเลยทีเดียว การเดินทางมายังโครงการ สามารถใช้ถนนเส้นหลักๆ ได้ดังนี้ค่ะ
เนื่องจากตอนนี้ตัวโครงการยังสร้างไม่เสร็จนะคะ เพิ่งเริ่มก่อสร้างเมื่อเดือนมีนาคม 2559 แต่ก็ขายดีจนเหลือแค่ 20% เท่านั้น อาคารสำนักงานขายจึงอยู่ที่ห้องแถว หน้าโครงการติด ถ.ราชพฤกษ์ หากมาจากวงเวียนราชพฤกษ์จะอยู่ถัดจากภัตตาคารฮั่วเซ่งฮง ห้องที่ 2 ถัดจากห้องแรกซึ่งเป็นร้านรับทำกันสาด ก่อนถึง ซ.บางขนุน 5 ซึ่งเป็นซอยทางเข้าโครงการค่ะ
สาธารณูปโภคบริเวณหน้าโครงการก็มีร้านอาหาร และร้านขายน้ำอยู่ ซึ่งรองรับคนทำงานภายในซอย เนื่องจากมีบริษัท Siam O Pack อยู่ใกล้ๆกันค่ะ นอกเหนือจากนั้นก็ต้องเดินออกมาที่ถ.ราชพฤกษ์ อาคารห้องแถวบริเวณ Sale Gallery ก็มีร้านอาหารเช่นกันแต่ไม่มากนักส่วนใหญ่เป็นร้านขายอะไหล่ยนต์, ศรีสวัสดิ์เงินติดล้อ, คลีนิคทำฟัน มี 7-11 อยู่ที่อาคารพาณิชย์ฝั่งตรงข้ามค่ะ สามารถเดินข้ามถนนไปได้แต่ก็ข้ามลำบากและอันตรายหน่อยนะคะ เพราะถ.ราชพฤกษ์เป็นถนนเส้นใหญ่ และรถวิ่งมาเร็วกันมากๆ แต่จากปากซอยบางขนุน 5 เดินมาทางซ้ายมือ 100 เมตร จะเจอสะพานลอยข้ามฝั่งไป The Crystal บริเวณ Energy Reform ค่ะ ก็จะปลอดภัยกว่า ยอมเดินไกลนิดนึง
ซอยบางขนุน 5 เป็นซอยที่มีทางลัดมากมายค่ะ ไม่ใช่ซอยตัน สามารถวิ่งออกสู่ ถ.นครอินทร์ บริเวณมหาวิทยาลัยราชพฤกษ์ หรือออกสู่ ถ.บางกรวย-ไทรน้อย ไปยังสะพานพระราม 7 ซ.บางขนุน 5 หรือ อีกชื่อคือซอย สภ.บางกรวย เนื่องจากวิ่งตรงไป (เลยแยกซ.กิ๊กส์ทาวน์ที่จะเลี้ยวขวาไปยังโครงการ) ก็จะเจอกับ สภ.บางกรวยอยู่ด้านซ้ายมือค่ะ ส่วนซอยที่ตั้งโครงการเป็นซอยไม่มีชื่อ เรียกว่าซอยกิ๊กส์ทาวน์ เนื่องจากมีโรงแรมม่านรูด Gigs Town ตั้งอยู่ภายในซอยห่างจากโครงการ 300 เมตร มีป้ายขนาดใหญ่อยู่ที่ปากซอยบางขนุน 5 และสามารถเข้าได้จากฝั่งตรงข้าม Home Work ราชพฤกษ์เช่นกัน
::: สรุปแยกและถนนสำคัญใกล้เคียง :::
:::: การเดินทางสู่โครงการ ::::
วันนี้ทีมงาน Homenayoo มีภาพการเดินทางโดยรถยนต์ส่วนตัวมาให้ชมกันค่ะ เส้นทางการเดินทางตาม ลูกศรแดง โดยเริ่มเดินทางจาก
สะพานสมเด็จพระปิ่นเกล้า > ถ.สมเด็จพระปิ่นเกล้า > แยกบรมราชชนนี > ถ.บรมราชชนนี > ถ.ราชพฤกษ์ > แยกพระราม5 (วงเวียนราชพฤกษ์-นครอินทร์) > ถ.ราชพฤกษ์ > Sales Gallery > ซ.บางขนุน 5 > ซ.Gigs Town > ซ.Kirin Condo > Kirin Condo – ราชพฤกษ์
โดยเราจะเดินทางสู่โครงการ และชมทำเลบริเวณรอบโครงการ เส้น ถ.ราชพฤกษ์ และภายในซอยโครงการไปพร้อมๆกันเลยนะคะ ไปกันเลยค่ะ
การเดินทางวันนี้เริ่มต้นจากสะพานสมเด็จพระปิ่นเกล้าค่ะ ใช้เวลาเดินทางประมาณ 25 นาที
เมื่อลงสะพานพระปิ่นเกล้ามา ให้ชิดซ้ายมุ่งหน้าสู่แยกอรุณอัมรินทร์ ตามป้ายสถานีขนส่งสายใต้ รอติดไฟแดงสักครู่ แล้วตรงไปค่ะ
จากแยกอรุณอัมรินทร์ ขับมาตาม ถ.สมเด็จพระปิ่นเกล้า อีกประมาณ 650 เมตร ให้ชิดขวา ขึ้นสะพานข้ามแยกบรมราชชนนี มุ่งหน้าสู่ ถ.บรมราชชนนี
ข้ามแยกบรมราชชนนีมาสักนิดก็จะเจอ Central ปิ่นเกล้าอยู่ซ้ายมือค่ะ ให้มองป้ายบอกทางบนสะพานลอย มุ่งหน้าสายใต้ใหม่-ตลิ่งชัน
วิ่งมาสักพักก็จะเจอทางแยกค่ะ ให้ชิดขวาวิ่งขึ้นสะพานไปตามป้ายนครปฐม
วิ่งตรงมาประมาณ 2.8 กม. ให้ชิดซ้าย ออกทางคู่ขนานถ.บรมราชชนนี ตามป้าย ถ.ราชพฤกษ์ ค่ะ
ชิดขวา วิ่งขึ้นสะพาน ตามป้ายราชพฤกษ์ เลี้ยวขวามือตามทาง ออกสู่ถ.ราชพฤกษ์
ตอนนี้เราอยู่ที่ ถ.ราชพฤกษ์แล้วค่ะ ซ้ายมือจะเจอห้างขนาดใหญ่ และโชว์รูมรถหลายแห่ง อย่างเช่น Tops Market, Home Works ราชพฤกษ์
เลย Home Works มา 550 เมตร ก็จะเจอ The Crystal, SB Furniture และโชว์รูม Mitzubishi ด้านซ้ายมือ และสะพานลอยข้ามฝั่ง ซึ่งเป็นสะพานสามารถเดินข้ามจากคิรินคอนโด มายัง The Crystal ได้
โครงการจะอยู่ตรงข้าม เยื้องๆกับ The Crystal ค่ะ เราจะตรงไปกลับรถกันที่ วงเวียนพระราม5 (ราชพฤกษ์-นครอินทร์)
ตรงไป ชิดซ้ายออกทางคู่ขนานถ.ราชพฤกษ์ ตามป้าย ถ.นครอินทร์
ออกทางคู่ขนานมาแล้ว ให้ชิดขวาไว้ค่ะ เราจะใช้วงเวียนราชพฤกษ์เพื่อกลับรถ มายังโครงการกัน
ตอนนี้เราอยู่ที่วงเวียนราชพฤกษ์แล้ว ให้รอสัญญาณไฟแดงสักครู่ สังเกตด้านหน้าจะมีป้าย Index Living Mall
เลี้ยวกลับมายัง ถ.ราชพฤกษ์แล้วค่ะ ถัดจากวงเวียนมาก็จะเจอกับ The Walk ราชพฤกษ์ ทันที ส่วน Home Pro ที่เราผ่านมาสักครู่ก็จะอยู่ขวามือ
เลย The Walk มาก็จะเจอปั๊ม LPG และปั๊มน้ำมันบางจาก
อาคารพาณิชย์ฝั่งขวามือข้างๆกัน มีร้านอาหาร หมูตุ๋นฮ่องเต้, ลูกชิ้นบางโพ, คลีนิคทันตกรรมราชพฤกษ์, สมบูรณ์อาหารสัตว์, The Wedding Studio, วรรณกฤษณ์การไฟฟ้า และ คลีนิครักษาสัตว์ ส่วนสำนักงานขายย้ายไปอยู่ที่เดียวกับโครงการค่ะ
อาคารพาณิชย์ฝั่งตรงข้ามมี 7-11 ค่ะ หากต้องการเดินข้ามถนนไปให้ระวังสักนิดนะคะ เพราะถ.ราชพฤกษ์เป็นถนนใหญ่รถขับกันเร็วมาก ข้างๆเซเว่นมีร้านก๋วยเตี๋ยวลูกชิ้น, หมูตุ๋นหม้อไฟรสเด็ด, อิน-เมด เฟอร์นิเจอร์ ขายที่นอน และ ร้านเอสพี แม็กซ์ ไทร์ ขายยางรถยนต์
ทางเข้าไปยัง Site โครงการ Kirin Condo ให้สังเกตป้าย Gigs Town Hotel หรือป้าย สภ.บางกรวยค่ะ เลี้ยวซ้ายเข้าไปเลย
จากแผนที่ เราอยู่บน ถ.ราชพฤกษ์ กำลังจะเลี้ยวเข้า ซ.บางขนุน 5 เส้นสีเขียว และเลี้ยวซ้ายเข้า ซ.โครงการ Kirin Condo เส้นสีชมพู ค่ะ ก็จะเจอ ตำแหน่งโครงการสีน้ำเงิน ด้านขวามือ
ภาพทางเข้าซอยบางขนุน 5 อีกภาพชัดๆ จากกล้อง Canon ซ้ายมือจะมีซุ้มวินมอเตอร์ไซค์อยู่ค่ะ
ซุ้มวินมอเตอร์ไซค์หน้าปากซอยบางขนุน 5
บริเวณปากซอยมีอาคารพาณิชย์สูง 4 ชั้นครึ่งด้านซ้ายมือ
เลยอาคารพาณิชย์ไป จะเจอทางแยก มีป้ายบอกทางสีเขียวดังภาพ ซอยบางขนุน 5 ตรงไปจะออกสู่ ถ.นครอินทร์ แต่เราจะเลี้ยวขวาไปตามลูกศรแดง และฝั่งขวามือของเราจะมี 7-11 เปิดให้บริการค่ะ
7-11 ขนาดใหญ่ มีที่จอดรถรองรับลูกค้าด้านหน้าได้หลายคัน
เลี้ยวขวามาแล้วค่า ออกสู่ ซ.Gigs Town จะเจอโครงการทาวน์โฮม Cluster Ville3 ด้านซ้ายมือ ถนนทางเข้าโครงการ Kirin Condo จะอยู่ถัดจาก Cluster Ville 3 เลยค่ะ ข้างๆกันเลย

เลี้ยวเข้าไปตามเส้นทางสีแดงนะคะ บริเวณทางเข้าโครงการจะอยู่ตรงกลาง ระหว่าง Cluster Ville3 กับทางเข้าที่ดินข้างเคียง สีม่วงในภาพ
ภาพโครงการ Cluster Ville 3 และทางเข้าโครงการ Kirin Condo ให้เห็นกันชัดๆ
ด้านข้างทางเข้าจะมีอพาร์ทเมนท์สูง 2-3 ชั้นสีส้มๆอยู่ด้านหน้า
เลี้ยวเข้ามายัง ซ.โครงการ Kirin Condo แล้วค่ะ พื้นที่โครงการจะอยู่ลึกจากปากซอยประมาณ 60 เมตร ผ่านที่ดินเปล่าข้างเคียงไปเล็กน้อย ถนนโครงการจะอยู่ติดรั้ว Cluster Ville3 ในอนาคตจะถมสูงขึ้น 50 ซม. ตามเส้นสีน้ำเงิน
ถึงแล้วค่ะ โครงการ Kirin Condo – ราชพฤกษ์ ด้านขวามือ
UPDATE 2018 ตอนนี้ถนนหน้าโครงการเป็นคอนกรีตเรียบร้อยแล้วค่ะ
UPDATE 2018 ก่อสร้างไปจะ 8 ชั้นแล้วค่ะ
::: จุดขับรถขึ้นทางด่วน :::
โครงการอยู่ไม่ไกลจาก ถ.กาญจนาภิเษกค่ะ โดยสามารถวิ่งจาก ถ.นครอินทร์ ออกสู่ถ.กาญจนาภิเษกมุ่งหน้าบางบัวทอง หรือวิ่งออกสู่ ถ.ธนบุรี-ปากท่อ ก็ได้
หรือหากต้องการใช้ทางพิเศษศรีรัช ด่านที่ใกล้ที่สุดคือ ด่านยมราช โดยจะวิ่งจาก ถ.บรมราชชนนี ข้ามสะพานพระราม 8 หรือ วิ่งจากถ.ราชวิถี ข้ามสะพานซังฮี้ แล้วมาขึ้นทางด่วนบริเวณนางเลิ้ง ด่านยมราช เพื่อมุ่งหน้าสู่บางปะอิน หรือพระราม 9 ได้
หรือหากต้องการใช้ ถ.บรมราชชนนี เพื่อวิ่งสู่พุทธมณฑล-ศาลายา จากถ.ราชพฤกษ์ ให้ขึ้นสะพานข้ามแยกไปก่อนนะคะ แล้วค่อยกลับรถใต้สะพานข้ามคลองบ้านไทร แล้วจึงเลี้ยวซ้าย ออก ถ.บรมราชชนนี
::: การเดินทางโดยรถไฟฟ้า :::
โครงการนี้ไม่ได้เป็นโครงการตามแนวรถไฟฟ้าค่ะ แต่ก็สามารถใช้วินมอเตอร์ไซค์หน้าปากซอยไปยัง รถไฟฟ้า “สถานีตลิ่งชัน” ได้ในระยะทางประมาณ 6.6 กิโลเมตร โดยสถานีนี้เป็นสถานี Interchange ของโครงข่ายรถไฟฟ้าในอนาคตถึง 3 สายด้วยกัน คือ
1. รถไฟฟ้าสายสีแดงอ่อน ซึ่งแบ่งออกเป็นช่วงดังต่อไปนี้
ช่วงบางซื่อ-ตลิ่งชัน : ก่อสร้างเสร็จแล้ว แต่ยังไม่เปิดให้บริการ
ช่วงตลิ่งชัน- ศิริราช : คาดว่าแล้วเสร็จปี 2561
ช่วงตลิ่งชัน – ศาลายา : คาดว่าแล้วเสร็จปี 2562
2. รถไฟฟ้า BTS ส่วนต่อขยาย สายสีเขียวอ่อน (ช่วงบางหว้า-ตลิ่งชัน) : ปัจจุบันกำลังรอพิจารณาโครงการ คาดว่าแล้วเสร็จปี 2564
3. รถไฟฟ้าสายสีส้ม (ช่วงตลิ่งชัน-ศูนย์วัฒนธรรม) : อยู่ในแผนก่อสร้างปี2560 คาดว่าแล้วเสร็จปี 2564
นอกจากนี้ หากวิ่งจากเส้นราชพฤกษ์ไปทางทิศเหนือ ก็จะมี รถไฟฟ้าสายสีม่วง(ช่วงเตาปูน-บางใหญ่) สถานีที่ใกล้ที่สุดคือ สถานีบางรักใหญ่ (9 กม.) ซึ่งปัจจุบันสร้างเสร็จแล้วกำลังจะเปิดให้บริการภายในเดือนสิงหาคมนี้ค่ะ
::: การเดินทางโดยรถประจำทาง :::
ข้อเสียของทำเลบริเวณถนนราชพฤกษ์นี้คือมีรถเมล์วิ่งผ่านแค่สายเดียวค่ะ คือสาย 751 เป็นรถเมล์ฟรี วิ่งจากสะพานพระราม 4 ไปยัง BTS บางหว้า โดยสายนี้จะวิ่งเส้นราชพฤกษ์ตรงยาวจากปากเกร็ดไปเพชรเกษมค่ะ แต่อาจจะรถน้อย คอยนานสักหน่อย จริงๆมีอีกสาย คือสาย 89 เลี้ยวขวาจากเพชรเกษม (รพ.พญาไท3) ที่แยกบีทีเอสบางหว้า ไปสุดแค่ถนนสวนผักเท่านั้นค่ะ ไม่ผ่านหน้าโครงการ แต่ปากซอยบางขนุน 5 ทางเข้าโครงการก็ยังมีวินมอเตอร์ไซค์นะคะ เดินออกมาประมาณ 300 เมตร
อัตราค่าบริการวินตำหนักพ่อปู่เสือปากทาง สภ.อ.บางกรวย (หน้าปากซอยบางขนุน 5)
:: รถเมล์สายที่ผ่าน ::
751
:::: สถานที่สำคัญใกล้เคียง ::::
ห้างสรรพสินค้า
– The Walk ราชพฤกษ์ : 1.5 กม.
– Home Work : 2.2 กม.
– Home Pro ราชพฤกษ์ : 2.6 กม.
– The Crystal ราชพฤกษ์ : 2.8 กม.
– ตลาดสดกรุงนนท์ : 3.8 กม.
– Think Cafe : 5.2 กม.
– ตลาดพระราม 5 : 7.7 กม.
– เมเจอร์ปิ่นเกล้า : 7.7 กม.
– The Circle : 8.7 กม.
– Lotus Plusmall : 9.9 กม.
– เซ็นทรัลรัตนาธิเบศร์ : 10.8 กม.
– เซ็นทรัลปิ่นเกล้า : 11.3 กม.
– เซ็นทรัลเวสต์เกตท์ : 12.1 กม.
สถานศึกษา
– รร.วัดซองพลู : 1.5 กม.
– มหาวิทยาลัยราชพฤกษ์ : 2.5 กม.
– รร.มหาสวัสดิ์ราษฏรบำรุง : 3 กม.
– รร.บดินทรเดชานนทบุรี : 4.6 กม.
– รร.เด่นหล้าพระราม5 : 6.1 กม.
– รร.วัดน้อยใน : 6.6 กม.
– รร.เตรียมอุดมศึกษาพัฒนาการนนทบุรี : 6.7 กม.
– รร.เทพสิรินทร์นนทบุรี : 9.4 กม.
ศูนย์การแพทย์
– รพ.ตาหูคอจมูก(EENT) : 7 กม.
– รพ.เลอลักษณ์ : 9 กม.
– รพ.ธนบุรี 2 : 9.9 กม.
– รพ.ศรีธัญญา : 10 กม.
– รพ.เจ้าพระยา : 10.5 กม.
– รพ.ศิริราช : 10.9 กม.
– รพ.ยันฮี : 10.9 กม.
– รพ.บางใหญ่ : 12 กม.
สถานที่ราชการ และอาคารสำนักงาน
– สำนักงานขนส่งกรุงเทพมหานคร พื้นที่ 2 : 6 กม.
– สถานีขนส่งสายใต้ใหม่ : 7.6 กม.
**ระยะทางวัดจากการเดินทางจากรถยนต์ สู่จุดหมาย โดยถนนที่ใกล้ที่สุด**
::: บริเวณรอบโครงการ :::
พื้นที่โครงการ Kirin Condo – ราชพฤกษ์ คือรูปสี่เหลี่ยมผืนผ้าสีน้ำเงินในแผนที่ด้านบนค่ะ ที่ดินประมาณ 2 ไร่ หันหน้ากว้างไปทางทิศตะวันออกเฉียงเหนือ/ตะวันตกเฉียงใต้ โดยมีพื้นที่ข้างเคียงดังนี้
ภาพถนนทางเข้าโครงการจะมีป้าย Billboard บอกทางอยู่ค่ะ เลี้ยวซ้ายเข้าไปเลยหลังเสาไฟฟ้า
ภาพถ่าย Panorama ให้เห็นภาพรวมของพื้นที่บริเวณข้างเคียงโครงการค่ะ จะเห็นว่าโครงการอยู่ติดกับ Cluster Ville 3, ฝั่งขวามือของทางเข้าโครงการ เป็นทางเข้าของที่ดินข้างเคียง และอพาร์ทเมนท์สูง 2-3 ชั้นค่ะ ด้านหน้าอพาร์ทเมนท์มีร้านขายอาหารและน้ำชงอยู่

จากถนนหน้าโครงการ มองไปด้านขวามือ เป็นทางออกสู่ถนนราชพฤกษ์ ขวามือที่เห็นคือโครงการ Cluster Ville 3
มองไปด้านซ้ายมือกันบ้างค่ะ ก็จะเห็นพื้นที่ข้างเคียง อาคารอพาร์ทเมนท์สูง 2-3 ชั้น
ทางเข้าที่ดินข้างเคียงของโครงการ ถนนโรยหินคลุก ตัดผ่านหน้าอพาร์ทเมนท์

อาคารอพาร์ทเมนท์สูง 2-3 ชั้น

ด้านหน้าอพาร์ทเมนท์มีร้านขายน้ำ และเตนท์ขายอาหารอยู่ค่ะ สามารถเดินมากินได้ แต่อร่อยไม่อร่อยไม่ทราบนะคะ
ภาพถ่าย Panorama จากถ.ทางเข้าโครงการ มองไปยังฝั่งตรงข้าม ทางทิศตะวันตกเฉียงใต้ จะเห็นอาคารสูง 7 ชั้นกำลังก่อสร้าง และถนนซอยกิ๊กส์ทาวน์ ซึ่งทะลุออก ถ.บางกรวย-จงถนอม ไปยังถ.บางกรวย-ไทรน้อยได้ค่ะ

จากทางออกโครงการหากวิ่งตรงไปก็จะเจอกับทางโค้งข้างหน้าบังคับเลี้ยวซ้าย
มีป้ายไฟประชาสัมพันธ์ของสภ.บางกรวยตั้งอยู่
ทางเข้าหมู่บ้านเบญญาภา พื้นที่ติดกับโครงการเราจะอยู่ฝั่งนี้ค่ะ
ตรงข้ามกับบ้านเบญญาภา เป็นบริษัทสยาม โอ แพ็ค สูง 6 ชั้นครึ่ง
ข้าง Siam O Pack เป็นหมู่บ้านลีลาวดี
ฝั่งตรงข้ามหมู่บ้านลีลาวดี เป็นซอยข้างหมู่บ้านเบญญาภา
จากถนนดังกล่าว วิ่งตรงไปเรื่อยๆเลยหมู่บ้านลีลาวดีไปสักนิด ก็จะเจอกับโรงแรม Gigs Town Hotel ค่ะ อยู่ด้านขวามือ
:::: ตัวโครงการ Kirin คอนโด ราชพฤกษ์ ::::
ตัวโครงการ Kirin Condo-ราชพฤกษ์ เป็นคอนโด Low Rise ราคาต่ำล้าน สูง 8 ชั้น จำนวน 5 อาคาร บนที่ดินขนาด 2-1-60 ไร่ มียูนิตพักอาศัยทั้งหมด 385 ยูนิต และร้านค้าอีก 2 ยูนิต โดยทั้ง 5 อาคารนี้มีผังพื้นเหมือนกันทั้งหมดค่ะ กลับด้านกันเท่านั้น และมีแบบห้องแบบเดียว แต่ต่างขนาดกันเล็กน้อย นั่นก็คือ 22.4 และ 23.5 ตร.ม.
ซึ่งโครงการคิรินถือว่าเป็นคอนโดแห่งเดียวในทำเลนี้เลยเพราะส่วนใหญ่พื้นที่โดยรอบจะถูกพัฒนาเป็นบ้านเดียวและทาวน์โฮม ในราคา 3 ล้านขึ้นไป นอกจากนั้นก็จะเป็นอพาร์ทเมนท์ให้เช่า เนื่องจากมีอาคาร Office Building อยู่หลายแห่งในละแวกเหมือนกันค่ะ ตัวโครงการมีแนวคิดแบบ Minimal Japanese โดยมีแนวคิดเพื่อให้คนที่เริ่มทำงาน งบน้อย สามารถมีที่อยู่อาศัยเป็นของตนเองได้ ในราคาที่ต้องจ่ายรายเดือนพอๆกับเช่าอพาร์ทเมนท์ ตกแต่ง Fully Furnished สามารถเข้าอยู่ได้เลย ในราคาไม่ถึงล้านบาท

โครงการประกอบด้วย 5 อาคารด้วยกัน นั่นก็คืออาคาร A,B,C,D และ E โดยวางเรียงกันตามภาพ มีถนนวนรอบโครงการ กว้างประมาณ 6 เมตร ด้านหน้าติดถนนทางเข้าหลักจะเป็นสวนสาธารณะทั้งหมดเพื่อเพิ่มความเป็นส่วนตัวให้กับทุกยูนิต แต่ละอาคารจะมียูนิตร้านค้า 1 ยูนิตที่ชั้น 1 ยกเว้นอาคาร C ซึ่งจะเป็นสำนักงานนิติบุคคลค่ะ โดยที่ชั้นล่างจะไม่มียูนิตพักอาศัยเลย จะเป็นที่จอดรถทั้งหมด ประมาณ 128 คัน (คิดเป็น 33%) และมีที่จอดรถจักรยานยนต์แยก
เนื่องจากบริเวณรอบๆโครงการส่วนใหญ่เป็นอาคารแนวราบค่ะ จึงไม่ค่อยมีปัญหาเรื่องวิวเท่าไหร่ถึงแม้จะอยู่ตรงข้ามกับ Cluster Ville ทาวน์โฮม 3 ชั้นแต่อาคารก็ห่างกันโดยประมาณเกือบ 30 เมตร แต่ข้อเสียของการจัดผังแบบนี้คือวิวที่ได้จะได้เป็นวิวห้องฝั่งตรงข้ามเสียส่วนใหญ่เลยค่ะ ระยะห่างระหว่างอาคารประมาณ 6 เมตร มีแค่อาคาร A กับ E และปลายอาคารฝั่งทิศตะวันออกเฉียงใต้เท่านั้น ที่วิวดี
ส่วนเรื่องแดด อาคารที่โดนแดดช่วงบ้ายเต็มๆคืออาคาร E ฝั่งทิศตะวันตกเฉียงใต้ ถึงแม้ฝั่งนี้จะวิวดีที่สุดแต่ข้อเสียก็คือร้อนที่สุดเช่นกันค่ะ เนื่องจากระยะห่างระหว่างอาคารนั้นไม่เยอะมาก ประมาณ 6 เมตร จึงค่อนข้างจะช่วยบังแดดสำหรับคนที่อยู่ยูนิตล่างๆได้บ้าง

มาชมผังพื้นกันบ้างค่ะ โครงการนี้ผังพื้นจะเหมือนกันทุกอาคารแค่กลับด้านกันเท่านั้น ผังพื้นที่เรานำมาให้ชมคืออาคาร E ชั้นล่างจะเป็นโถงทางเข้าซึ่งด้านหน้าติดสวน และยูนิตร้านค้า 1 ยูนิต แบ่งเป็นสองห้อง (ยกเว้นอาคาร C จะเป็นสำนักงานนิติบุคคล) ใต้อาคารเป็นที่จอดรถทั้งหมด
ส่วนชั้น 2-8 จะเป็นยูนิตพักอาศัยทั้งหมดค่ะ จำนวนยูนิตต่อชั้นเท่ากับ 11 ยูนิต มี 1 แบบ 2 ขนาด คือ 22.4 จะอยู่ตรงกลาง สีเหลือง ส่วน 23.5 จะเป็นห้องมุม สีครีม มีบันไดหนีไฟที่ด้านหลังอาคาร และโถงลิฟท์ Corridor เป็นรูปตัว I โดยประตูห้องพักจะหันหน้าตรงกันทั้งหมด
::: ภาพถ่าย MODEL :::
มาชมหน้าตาอาคารภาพรวมทั้งหมดของโครงการกันค่ะ ทางเข้าโครงการจะอยู่บริเวณลูกศรสีเขียว ซึ่งสามารถวนไปด้านหลังอาคาร วนไปที่ว่างระหว่างอาคาร ซึ่งเป็นถนนทางเข้าที่จอดรถใต้อาคาร และวนออกทางลูกศรสีขาวด้านซ้ายมือได้ค่ะ
ภาพบรรยากาศป้ายหน้าโครงการ
ภาพอีกมุมหนึ่งเพื่อให้เห็นพื้นที่ข้างเคียงของโครงการโดยคร่าว ด้านหน้าโครงการติดถนนทางเข้าเป็นสวนสาธารณะพักผ่อนส่วนกลางทั้งหมด
ซุ้มประตูทางเข้าโครงการ
ภาพจำลองซุ้มประตูทางเข้า
ภาพจำลองซุ้มประตูทางเข้ามองไปยังสวนพักผ่อนหน้าโครงการ

ซุ้มประตูทางออกบริเวณท้ายโครงการ
อาคารทุกหลังจะเหมือนกันค่ะ คือชั้น 1 เป็นที่จอดรถใต้อาคารทั้งหมด และยูนิตร้านค้าด้านหน้า ส่วนชั้น 2-8 เป็นยูนิตพักอาศัย

ภาพสวนสาธารณะพักผ่อนส่วนกลางหน้าโครงการ ลงต้นไม้ใหญ่ให้ร่มเงา และมีม้านั่งและซุ้มพักผ่อนเป็นระยะๆ
ภาพบรรยากาศสวนด้านหน้าโครงการ
ระยะห่างระหว่างอาคารประมาณ 6 เมตร มีหลังคากันฝนสำหรับเดินไปมาระหว่างอาคาร
ภาพบรรยากาศโซนพักผ่อนบริเวณคอร์ทกลางของอาคาร
ด้านหลังของโครงการติดกับบ้านเบญญาภา เป็นบันไดหนีไฟค่ะ
การวนรถเข้าที่จอดรถด้านหลังอาคาร สามารถจอดซ้อนคันได้แบบไม่มีที่กันฝนนะคะ และถอยกลับรถได้บริเวณด้านในสุด
ภาพถ่ายเพื่อให้เห็นการวนรถจากทางเข้า ไปยังซุ้มทางออก พื้นที่ข้างเคียงด้านหลังโครงการเป็นที่ดินเปล่าของบุคคลอื่น
มาชมด้านข้างของอาคารค่ะ ห้องทั้งหมดมีแบบเดียว แต่สองขนาด คือขนาด 22.4ตร.ม. ตำแหน่งในกรอบสีฟ้าตรงกลาง และห้องขนาด 23.5 ตร.ม. ตำแหน่งห้องมุมในกรอบสีแดง
::: หน้า Site โครงการ :::
มาถึงหน้า Site โครงการกันแล้วค่ะ พื้นที่โครงการจะติดกับรั้ว Cluster Ville 3 ในอนาคตถนนจะถมสูงขึ้น 50 ซม. เป็นถนนลาดยาง กว้าง 6 เมตร
มาชมภาพถ่าย Panorama ให้เห็นภาพรวมทั้งหมดกันก่อน ปลายสุดของที่ดินฝั่งขวามือเป็นที่ตั้งของ Camp คนงาน ถัดไปก็จะเป็นที่ดินข้างเคียงก่อนถึงอพาร์ทเมนท์ 2-3 ชั้นด้านหน้าที่เราเห็นกัน ตอนนี้โครงการเริ่มก่อสร้างไปได้สองอาคาร คืออาคาร A กับ B ซึ่ง Sold Out ไปเรียบร้อยแล้ว
โครงการติดรั้วฝั่งทิศตะวันออกเป็นหมู่บ้านเบญญาภาสูง 2 ชั้นทั้งหมด ตรงหน้าเราคือที่ตั้งของอาคาร C
ถัดจากอาคาร C ก็จะเป็นอาคาร D และอาคาร E ตามลำดับสุดที่ Camp คนงาน

ความคืบหน้าการก่อสร้าง กำลังหล่อคานคอดินเตรียมเทพื้นชั้น 2
ฝั่งติดอาคาร A ก็เป็น Camp คนงานเช่นกัน อนาคตจะเป็นถนนทางออกโครงการ กว้าง 6 เมตร
ด้านข้าง Camp คนงานฝั่งติดอาคาร A เป็นที่ดินส่วนบุคคลแล้วค่ะ มีรั้วกั้น
::: แบบห้องทั้งหมด ของโครงการ Kirin คอนโด ราชพฤกษ์ :::
แบบห้องของโครงการมีแบบเดียว สองขนาด คือ
โดยจะขายแบบ Fully Furnished เฟอร์นิเจอร์ยี่ห้อ SB และ IKEA สุขภัณฑ์ยี่ห้อ American Standard มีผ้าม่าน ฟูก และแอร์ (Central Air 12000 BTU) 1 ตัวติดให้ภายในห้องนอน เพดานสูง 2.4 เมตร
:: ผังพื้นห้อง ::
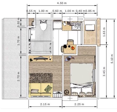
มาชมผังพื้นห้องกันคร่าวๆก่อนเข้าไปชมห้องตัวอย่างกันนะคะ ประตูทางเข้าห้องจะอยู่บริเวณห้องนั่งเล่น ตรงกลางระหว่างโซฟา กับทีวีค่ะ เปิดเข้ามาก็จะเจอกับห้องนอน ซึ่งมีตู้เสื้อผ้าภายใน Build ให้เสร็จ ทางเดินระหว่างห้องนั่งเล่นไปห้องครัวกว้างประมาณ 60 ซม. ห้องครัวและห้องทานอาหารจะอยู่ด้วยกันในพื้นที่กะทัดรัดมีโต๊ะทานอาหารติดตั้งให้ที่มุมห้อง ซ้ายมือเป็นห้องน้ำที่ขนาดพอๆกันกับห้องครัว ส่วนขวามือเป็นพื้นที่ระเบียงที่ค่อนข้างกว้างขวางอยู่ค่ะ
:::: ห้องตัวอย่าง ::::
::: ห้องขนาดพื้นที่ใช้สอย 22.4 ตร.ม. :::
เข้ามาชมภายในห้องตัวอย่างกันค่ะ ประตูทางเข้าห้องจริงจะเป็นบานมาตรฐาน HDF บานเปิดสวิงไปทางโต๊ะวางทีวี
เข้าห้องไปก็จะเจอโซนนั่งเล่นเป็นอันดับแรก วัสดุพื้นกระเบื้องไวนิลลายไม้สีโทนอ่อนสบายตา ผนังฉาบเรียบทาสีขาว
เฟอร์นิเจอร์ที่ได้ก็จะได้โซฟาสีขาว กับตู้ข้างโซฟา
ตัวโซฟานั่งได้ 2 ที่นั่งก็จริงแต่อาจจะแน่นหน่อยนะคะสำหรับคนตัวใหญ่ แต่ก็สวีทดีค่ะ
ชั้นวางของข้างโซฟาสามารถดึงออกมาเป็นโต๊ะทำงานหรือวางNotebook ขนาดเล็กได้ ซึ่งเก็บของได้เยอะพอสมควรค่ะ
ระยะโซฟาถึงทีวีประมาณ 2.7 เมตร ข้างตู้วางทีวีเป็นทางเดินสู่ห้องครัวกว้าง 60 ซม.
ตู้วางทีวีเป็นบานเปิดออกด้านข้างแบบนี้ ใต้ทีวีมีปลั๊กไฟและสายดินติดตั้งให้ ความกว้างของผนังทีวีประมาณ 1.55 เมตรค่ะ สามารถวางทีวีขนาด 40 นิ้ว กำลังดี
ปลั๊กไฟและสวิตช์ไฟทั้งหมดในห้องตกแต่งจะยี่ห้อ Chang แต่ของจริงที่ได้จะเป็น Panasonic นะคะ
บริเวณห้องนอนเชื่อมต่อกับห้องนั่งเล่น ประตูบานเลื่อนอลูมิเนียมสีธรรมชาติกระจกใส ซึ่งหากใครต้องการให้ห้องนอนเป็นส่วนตัวมากกว่านี้ก็สามารถซื่อสติ๊กเกอร์กระจกฝ้าขุ่นๆ มาติดได้ค่ะ ก็จะได้แสงธรรมชาติจากภายนอกอยู่ แต่มีความเป็นส่วนตัวมากขึ้น
มือจับประตูเป็นแบบเซาะร่องมาตรฐาน
ภายในห้องนอนวางเตียงขนาด Queen Size โดยโครงการ Build ชุดเตียงให้เสร็จค่ะ ห้องนอนขนาด 2.25 x 3.45 เมตร
ภาพจากปลายเตียงไปยังหัวเตียง
บริเวณหัวเตียงก็ Build Low Wall สำหรับวางของกระจุกกระจิกได้
พื้นที่ข้างเตียงซ้ายมือ เหลือ 55 ซม. กับ 20 ซม.
พื้นที่ปลายเตียงเหลือประมาณ 55 ซม. แต่ไม่ต้องห่วงเรื่องระยะเปิดตู้เสื้อผ้าค่ะ บานตู้เป็นบานเลื่อน แคบหน่อย แต่ประหยัดเนื้อที่ เดินสะดวก
ความสูงเพดานจริงจะประมาณเส้นประสีเหลืองค่ะ 2.4 เมตร ส่วนหน้าต่างจะไม่มีลูกฟักกระจกข้างให้ค่ะ สีฟ้าที่เห็นในรูปจะเป็นผนังทาสีฉาบเรียบมาตรฐาน
หน้าต่างเป็นบานเลื่อนอลูมิเนียม กว้างประมาณ 1.2 x 2.2 เมตร มีลูกฟักกระจกด้านล่าง มือจับหน้าต่างเป็นแบบเซาะร่องเหมือนกับประตู
มีราวผ้าม่านให้แบบนี้
แอร์ที่ได้จะติดในห้องนอน ยี่ห้อ Central Air ขนาด 12000 BTU

ดวงไฟมาตรฐานทั้งหมดได้เป็นโคม Down Light LED ติดอยู่ที่ฝ้าแบบฝังหลอดแนวนอน
ภาพจากหัวเตียงมองไปยังปลายเตียงค่ะ ช่องว่างระหว่างเตียงเป็นตู้เสื้อผ้า ซึ่งในห้องตัวอย่างนี้อาจจะติดเสาภายในนะคะ แต่ห้องจริงจะกว้างเต็มพื้นที่ตู้เลย ผนังข้างเตียงหากใครต้องการติดชั้นวางของลอยก็สามารถทำได้ค่ะ ประหยัดพื้นที่ดี
บานเลื่อนเป็นบานไม้สังเคราะห์ปิดผิวลามิเนต เปิดสองฝั่ง ภายในห้องจริงจะมีตู้เก็บของลิ้นชักเพิ่มให้ค่ะ
มือจับแบบฝังอยู่ที่บาน จับเลื่อนเปิดบานได้สะดวก
พื้นที่ปลายเตียงก็มีปลั๊กไฟให้เช่นกัน เผื่อใครอยากต่อทีวีแบบแขวนที่ผนังก็สามารถเสียบปลั๊กบริเวณนี้ได้
ภาพจากหน้าต่างห้องนอน มองย้อนกลับไปยังห้องนั่งเล่นค่ะ
เข้าไปชมในโซนห้องครัวกันบ้าง ทางเดินกว้าง 60 ซม. หากใครตัวใหญ่คงจะแคบสักหน่อยนะคะ ถ้าได้ห้องขนาด 23.5 ตร.ม. ทางเดินนี้ก็จะกว้างขึ้นตาม หากต้องการทำเป็นครัวปิดก็สามารถกั้นประตูเพิ่มได้ค่ะ หากเป็นบานกระจกก็จะดูโปร่งขึ้น
ภายในห้องครัวก็จะได้เฟอร์นิเจอร์ทุกอย่างตามนี้เลย ยกเว้นตู้เย็น ไมโครเวฟ และ Accessories ตกแต่ง
เข้ามาในห้องครัว มองไปด้านซ้ายมือจะเป็นผนังในส่วนของตู้เสื้อผ้าของห้องนอนที่ยุบเข้าไป ให้เกิดพื้นที่มุมของห้องครัว เป็นโต๊ะทานอาหารหรืออาจทำเป็นโต๊ะทำงานก็ได้ ซึ่งโต๊ะตัวนี้โครงการก็ติดมาให้เลยค่ะ
โต๊ะทานอาหารสีขาวแบบพับเก็บได้เมื่อไม่ต้องการใช้งานเพื่อประหยัดเนื้อที่ รุ่น Norberg ของ IKEA
เคาน์เตอร์ครัวของ SB Furniture เหลือพื้นที่วางตู้เย็นด้านข้าง
ซิงค์อ่างล้างจานสแตนเลสยี่ห้อ MEX ขนาดไม่เล็กไม่ใหญ่จนเกินไป Top ลามิเนตสีขาว พื้นที่ใต้อ่างเป็นแบบนี้
ก๊อกน้ำอ่างล้างจาน มือจับแบบก้านโยก
มือจับบานเปิดตู้แบบเซาะร่องด้านบน
ออกไปชมกันที่ระเบียงกันบ้างค่ะ ประตูระเบียงวัสดุเดียวกับห้องนอน
พื้นที่ระเบียงขนาด 1.65×0.85 เมตร ปูกระเบื้องเซรามิกขนาด 30×30 ซม. ลดระดับลงจากพื้นห้องแบบนี้
ราวกันตกเหล็กทาสีน้ำมันสีขาว
เหลือพื้นที่วางเครื่องซักผ้าด้านล่าง และมี Coil ร้อนแอร์ติดลอยอยู่ด้านบนพื่อประหยัดเนื้อที่ สามารถแขวนราวตากผ้าได้
ไฟระเบียงหลอดฟลูออเรสเซนส์สี Warm White
จากระเบียงมองเข้ามาภายในห้องจะเจอกับห้องน้ำพอดีค่ะ
วัสดุประตูห้องน้ำ UPVC แบบมีเกล็ดระบายอากาศด้านล่าง

ลูกบิดสแตนเลสมาตรฐาน
พื้นห้องน้ำปูกระเบื้องเซรามิกขนาด 40×40 ซม. ลดระดับลงจากพื้นห้องครัวเล็กน้อย ห้องจริงที่ได้จะแยกส่วนเปียกส่วนแห้งนะคะ โดยพื้นในโซน Shower จะลดระดับลงอีกจากเส้นสีแดง

ไฟเพดานได้ดาวน์ไลท์ 1 ดวง และหลอดฟลูออเรสเซนส์ 1 ดวงเหนือกระจก

มองไปด้านซ้ายมือ จะเจอกับโถสุขภัณฑ์ และอ่างล้างมือ ไม่มีชั้นวางของเหนือโถสุขภัณฑ์นะคะ ต้องติดตั้งเอง แต่ก็เป็นไอเดียที่ดีช่วยเพิ่มพื้นที่ใช้สอยในแนวดิ่งภายในห้องน้ำ
มีชุดบานกระจกติดให้เสร็จค่ะ ยกเว้น Accessories กระจกด้านข้าง ผนังปูกระเบื้องเซรามิกจรดเพดาน
อ่างล้างหน้ายี่ห้อ American Standard

พื้นที่ใต้อ่างดีไซน์แบบโมเดิร์น มีเซรามิกครอบท่อดักกลิ่น
ก๊อกน้ำดีไซน์โมเดิร์นยี่ห้อ Modona
โถสุขภัณฑ์ยี่ห้อ American Standard แบบสองชิ้น
สายชำระพลาสติกสีขาวยี่ห้อ American Standard
มีที่วางกระดาษทิชชู่ติดให้แบบนี้ด้วยค่ะ
โซน Shower ขนาดประมาณ 1.4 x 0.6 ซม. พืนห้องจริงจะลดระดับแยกส่วนเปียกส่วนแห้ง บริเวณเส้นสีแดง
ฝั่งตรงข้ามสามารถวางชั้นวางของ และที่แขวนผ้าเช็ดตัวได้
หัวก๊อกฝักบัวยี่ห้อ American Standard ขนาดไม่เล็กไม่ใหญ่จนเกินไป
มีที่วางขวดสบู่ติดให้แบบนี้ด้วยค่ะ
:::: สรุปรายการวัสดุ และสิ่งที่โครงการให้ (กรกฏาคม 2559) ::::
วัสดุโดยรวม
เฟอร์นิเจอร์
ห้องน้ำ และสุขาภิบาล
งานไฟฟ้า
**รายละเอียด Spec ของวัสดุต่างๆอาจจะมีการเปลี่ยนแปลงเป็นรุ่นที่เทียบเท่า สามารถสอบถามที่โครงการเพิ่มเติมได้ค่ะ
:::: ราคา (30 ต.ค. 61) ::::
ราคาเริ่มต้น 980,000 บาท
ราคาเฉลี่ยต่อ ตร.ม. ประมาณ 43,700 – 66,900 บาท
– เว็ปไซต์โครงการ : www.kirincondo.co
– Line@ : http://line.me/ti/p/%40evx3527i
**ข้อมูลราคาและ โปรโมชั่นอาจมีการเปลี่ยนแปลง โปรดติดต่อสำนักงานขายเพื่อสอบถามรายละเอียดเพิ่มเติม (095-061-6666)
:::: สรุป ::::
• ทำเลที่ตั้งโครงการ โครงการตั้งอยู่ที่ ถ.ราชพฤกษ์ ภายในในซอย Gigs Town สามารถเข้าได้จากซอยบางขนุน 5 อยู่ฝั่ง The Walk โดยเลย The Walk มาประมาณ 1 กม. และตรงกันข้ามกับ The Crystal พอดี โดยมีสะพานลอยให้เดินข้ามไม่ไกลจากปากซอย และยังมีห้างดังอีกหลายห้าง เช่น Homepro ราชพฤกษ์, Baan & Beyond, Index Living mall ใกล้กับ มหาวิทยาลัยราชพฤกษ์ ตลาดกรุงนนท์ และตลาดพระราม 5 และอยู่ห่างจากวงเวียนแยกพระราม 5 1.4 กม. เท่านั้นค่ะ
โดยโครงการนี้ถือเป็นของแปลกในย่านถนนเส้นราชพฤกษ์เนื่องจากส่วนใหญ่เป็นที่อยู่อาศัยในแนวราบ บ้านเดี่ยวและทาวน์โฮม ในระยะ 300 เมตรจากถนนหลัก ราคา 3-5 ล้านบาท ซึ่งโครงการคิรินถือเป็นโครงการราคาย่อมเยาว์สำหรับคนงบน้อยที่ต้องการหาที่อยู่อาศัยและทำงานในละแวกทำเลสามารถจับต้องได้ ซื้อและอยู่ได้จริง ทำเลบริเวณภายในซอยส่วนใหญ่เป็นหมู่บ้าน บ้านพักอาศัย และบริษัท พื้นที่ข้างเคียงโครงการขนาบข้างด้วยหมู่บ้าน Cluster Ville3 และหมู่บ้านเบญญาภา ด้านหน้าโครงการก็เป็นอพาร์ทเมนท์สูง 2-3 ชั้น หน้าอพาร์ทเมนท์พอจะมีของกินอยู่บ้าง แต่ข้อดีคือแถวนี้ห้างเยอะจริงๆค่ะ ถึงแม้การเดินทางจะลำบากสักหน่อยถ้าไม่มีรถยนต์ส่วนตัว
• การเดินทางโดยรถยนต์ส่วนตัว การเดินทางในละแวกโครงการส่วนใหญ่จะใช้รถยนต์ส่วนตัวกันเป็นหลักค่ะ เนื่องจากถนนราชพฤกษ์มีรถสาธารณะผ่านน้อยและนานๆจะโผล่มาสักคัน โครงการอยู่ใกล้วงเวียนพระราม 5 ซึ่งสามารถเดินทางสู่ถ.กาญจนาภิเษก,บางใหญ่,บางบัวทอง, ติวานนท์ และบรมราชชนนี ได้ภายใน 30 นาที ซอยบางขนุน 5 ก็ไม่ใช่ซอยตันค่ะ มีทางลัดมากมายสามารถวิ่งออก ถ.นครอินทร์ บริเวณมหาวิทยาลัยราชพฤกษ์ และ สามแยกบางกรวย ออกถ.บางกรวยไทรน้อย-เทอดพระเกียรติ ได้
• การเดินทางโดยรถสาธารณะ อย่างที่บอกไปแล้วว่าถนนราชพฤกษ์มีรถสาธารณะผ่านน้อยจริงๆค่ะ มีแค่สายเดียว คือ 751 เป็นรถเมล์ฟรี วิ่งจากสะพานพระราม 4 ไปยัง BTS บางหว้า และมีจำนวนรถแค่ 5 คันเท่านั้น ส่วนสายอื่นก็อาจจะมีวิ่งผ่านแค่ราชพฤกษ์ช่วงปลาย ไม่ผ่านหน้าโครงการ แต่หน้าปากซอยบางขนุน 5 มีวินมอเตอร์ไซค์ให้บริการค่ะ เดินออกมา 300 เมตร ชื่อวินตำหนักพ่อปู่เสือปากทางสภ.อ.บางกรวย และโครงการนี้ไม่ได้เป็นโครงการตามแนวรถไฟฟ้าค่ะ แต่ก็อยู่กึ่งกลางระหว่างโครงข่ายรถไฟฟ้าที่กำลังจะมาถึง อย่างเส้นรัตนาธิเบศร์ก็จะเป็นรถไฟฟ้าสายสีม่วง สถานีบางรักใหญ่(9 กม.) บริเวณแยกราชพฤกษ์ตัดกับบรมราชชนนี ก็จะเป็นรถไฟฟ้าสถานีตลิ่งชัน ซึ่งเป็นสถานีจุดเปลี่ยนของรถไฟฟ้า 3 สายด้วยกัน คือ รถไฟฟ้า BTS, รถไฟฟ้าสายสีแดงอ่อน และรถไฟฟ้าสายสีเขียวค่ะ ในระยะทางห่างจากโครงการ 6.6 กม. ซึ่งก็สามารถใช้บริการวินมอเตอร์ไซค์หน้าปากซอยมายังรถไฟฟ้าได้หากสร้างเสร็จทั้งหมดแล้วไม่เกิน 5 ปี
• การออกแบบโครงการและวัสดุ โครงการเป็นคอนโด Low Rise 8 ชั้น 5 อาคาร (A-D) วางผังรูปตัว I เรียงกัน ระยะห่างระหว่างอาคารประมาณ 6 เมตร ยูนิตพักอาศัยทั้งหมด 385 ยูนิต (ต่อชั้น 11 ยูนิต) และร้านค้าอีก 2 ยูนิต บริเวณชั้นล่างของอาคารเป็นยูนิตร้านค้า และที่จอดรถใต้อาคารทั้งหมด 128 คันคิดเป็น 33% แบบห้องจะคล้ายๆห้อง Type เล็กสุดของโครงการลุมพินีค่ะ ซึ่งเป็นแบบห้องขนาดเล็กที่การพิสูจน์แล้วว่าสามารถอยู่อาศัยได้จริงในพื้นที่ขนาดนี้ ห้องมีแบบเดียว 2 ขนาด ก็คือ 22.4 และห้อง 23.5 โดยห้อง 23.5 จะเป็นห้องหัวมุมอาคารทั้ง 4 มุม
โครงการขายแบบ Fully Furnished ความสูงเพดาน 2.4 เมตร เฟอร์นิเจอร์ SB และ IKEA มีฟูก, ผ้าม่าน และแอร์ Central Air ขนาด 12000 BTU ติดให้ วัสดุพื้นที่ได้จะเป็นกระเบื้องไวนิลลายไม้นะคะ ซึ่งผิวสัมผัสจะค่อนข้างยืดหยุ่นกว่าลามิเนต แต่ก็ราคาถูกกว่าตามกันไป ส่วนวัสดุอื่นๆจะเป็นมาตรฐานทั้งหมดค่ะ กระเบื้องภายในห้องน้ำและระเบียงเป็นเซรามิก ปูจรดเพดาน มีฉากบานเลื่อนกั้นโซนระหว่างห้องนอนและห้องนั่งเล่น โดยบานเลื่อนทั้งหมดทั้งภายในและภายนอกวัสดุอลูมิเนียมสีธรรมชาติ ระบบไฟ Panasonic ไฟที่ได้ก็เป็นโคมดาวน์ไลท์ LED ค่ะ
• สิ่งอำนวยความสะดวกและระบบรักษาความปลอดภัย สิ่งอำนวยความสะดวกภายในโครงการจะเป็นส่วนหย่อมหน้าโครงการแบ่งกั้นโซนเป็นเส้นก๋วยเตี๋ยวระหว่างถนนหน้าโครงการกับตัวอาคารทั้ง 5 และยูนิตร้านค้าใต้อาคารซึ่งก็ยังไม่ทราบนะคะว่าจะเป็นร้านอะไรต้องรอลุ้นกันต่อไป ที่จอดรถระหว่างอาคารอาจจะกลับรถลำบากสักหน่อยถ้าจำนวนรถเยอะมากจริงๆเพราะวิ่งอ้อมมาจากด้านหลังอาคารก็จะติดกับสวนด้านหน้า แต่ก็สามารถกลับรถได้ค่ะ มีกล่อง Mail Box ,ระบบรักษาความปลอดภัย 24 ชม. รปภ. และ CCTV เข้า-ออกโครงการด้วยระบบ Key Card และแม่บ้านทำความสะอาดโครงการ
:::: คะแนน ::::
| ทำเลที่ตั้งโครงการ | 8 | โครงการอยู่ใกล้ห้างสรรพสินค้าขนาดใหญ่หลายแห่งในรัศมี 1-3 กม. ห่างจากปากซอยบางขนุน 5 300 เมตร สอดคล้องกับการขยายตัวของเมือง |
| การเดินทางโดยรถยนต์ส่วนตัว | 8.1 | เดินทางสะดวกด้วยถนนราชพฤกษ์ ออกสู่ถนนเส้นหลักหลายสาย และทางลัดภายในซอย |
| การเดินทางโดยรถสาธารณะ | 5.8 | ไม่ค่อยสะดวกนัก รถน้อย คอยนาน แต่มีวินมอเตอร์ไซค์อยู่หน้าปากซอยไม่ไกลนัก |
| บ้านและวัสดุ | 7.7 | ห้องขนาดกะทัดรัดที่สามารถอยู่ได้จริง ถึงแม้จะมีการเซฟค่าวัสดุบางประการแต่ก็ได้ของดีระดับมาตรฐานตลาด ในราคาย่อมเยาและตกแต่งพร้อมสามารถเข้าอยู่ได้เลย |
| สิ่งอำนวยความสะดวก | 6.4 | มีสวนสาธารณะหน้าโครงการซึ่งไม่ค่อย Private เท่าไหร่ มีกล่อง Mail Box และระบบรักษาความปลอดภัย 24 ชม. เข้าออกโครงการด้วยระบบ Key Card และ CCTV รอบโครงการ |
| ความคุ้มค่ากับราคา | 7.6 | โครงการเหมาะสำหรับคนงบน้อยที่ต้องการหาที่อยู่อาศัยและทำงานอยู่ในโซนราชพฤกษ์ |
| คะแนนรวมเฉลี่ย | 7.27 | ดี |
:::: สอบถามรายละเอียดเพิ่มเติมได้ที่ ::::
สำนักงานขาย : 095-061-6666 (เปิดทุกวัน 11.00-20.00 น.)
WEBSITE : http://www.kirincondo.com
E-MAIL : sales@kirincondo.com
หากท่านเห็นว่ารีวิวนี้มีประโยชน์ โปรดกด Like เพื่อเป็นกำลังใจให้ทีมงาน ขอบคุณค่ะ
หากท่านมีความคิดเห็นหรือข้อมูลเพิ่มเติมเกี่ยวกับตัวโครงการ สามารถ Comment ได้ที่ด้านล่างของรีวิวค่ะ