
บ้านแฝด เฌอริช ลาดพร้าว 71 Cherish Ladprao 71
Cherish ลาดพร้าว 71 บ้านแฝด 3.5 ชั้น ใจกลางลาดพร้าว ฟังก์ชั่นครบ จบในหลังเดียว เอกสิทธิ์เพียง 4 ยูนิต พื้นที่ใช้สอยมากกว่า 328 ตร.ม. 4 ห้องนอน 5 ห้องน้ำ ห้องนั่งเล่นแบบ Duo living เพดานสูง 6 เมตร ห้องนอนแบบ Penthouse ให้พื้นที่ทั้งชั้น พร้อมที่จอดรถ 3 คัน + ระบบ Home Automation และ CCTV ทุกหลัง ราคาเริ่มต้น 11.9 ล้านบาท* (ณ.วันที่ 1 ม.ค.63)

| ชื่อโครงการ | เฌอริช ลาดพร้าว 71 Cherish Ladprao 71 |
| เจ้าของโครงการ | บริษัท เคนชิน พรอพเพอร์ตี้ จํากัด |
| ลักษณะโครงการ | บ้านแฝด 3.5 ชั้น |
| พื้นที่โครงการ | 0-1-60 ไร่ |
| จำนวนบ้าน | 4 ยูนิต |
| เนื้อที่บ้าน | เริ่มต้น 38-42 ตร.ม. |
| พื้นที่ใช้สอย | เริ่มต้น 313-328 ตร.ม. |
| จำนวนห้อง | 4 ห้องนอน 5 ห้องน้ำ |
| ที่จอดรถทั้งหมด | 3 คัน |
| โซน | เขตลาดพร้าว |
| ขนส่งสาธารณะ |
|
| ที่ตั้ง | ซอยนาคนิวาส 48 แยก 14 แขวงลาดพร้าว เขตลาดพร้าว กทม. |
| กำหนดการ | เปิดจอง 23-24 พ.ย. 62 |
| ปีที่สร้างเสร็จ | n/a |
| ราคา | ราคาเริ่มต้น 11.9 ล้านบาท* (ณ.วันที่ 1 ม.ค.63) |
| ค่าส่วนกลางและกองทุน | n/a |
| สถานที่สำคัญใกล้เคียง |
|
| สิ่งอำนวยความสะดวก |
|
| จุดเด่นของโครงการ | Cherish ลาดพร้าว 71 บ้านแฝด 3.5 ชั้น ใจกลางลาดพร้าว ฟังก์ชั่นครบ จบในหลังเดียว เอกสิทธิ์เพียง 4 ยูนิต พื้นที่ใช้สอยมากกว่า 328 ตร.ม. 4 ห้องนอน 5 ห้องน้ำ ห้องนั่งเล่นแบบ Duo living เพดานสูง 6 เมตร ห้องนอนแบบ Penthouse ให้พื้นที่ทั้งชั้น พร้อมที่จอดรถ 3 คัน + ระบบ Home Automation และ CCTV ทุกหลัง |
ที่ตั้งโครงการ
ซอยนาคนิวาส 48 แยก 14 แขวงลาดพร้าว เขตลาดพร้าว กทม.
HOUSE TYPE
SIDE PLAN
First Floor Plan
Mezzanin Floor Plan
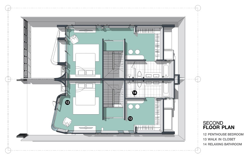
Second Floor Plan
Thrid Floor Plan
GALLERY
สอบถามรายละเอียดเพิ่มเติมได้ที่
Tel : 090-951-9462
Website : http://www.kenshinproperty.com