
บ้านพรพิศ 3 อยุธยา Baan Pornpis 3 Ayutthaya ใกล้ Ayutthaya City Park และ Central อยุธยา
Baan Pornpis 3 อยุธยา บ้านจาก บริษัท ตติเชษฐ์ (2015) จำกัด โครงการตั้งอยู่ ตำบลบ้านกรด อ.บางปะอิน จ.พระนครศรีอยุธยา บนทำเลศักยภาพ ติด Big C พระนครศรีอยุธยา ใกล้ศูนย์การค้า ทั้ง Central อยุธยา, Ayutthaya City Park และ Global House พระนครศรีอยุธยา
เดินทางเข้า-ออกเมืองได้สะดวกสบายด้วยถนนสายเอเชีย และบริเวณรอบโครงการยังใกล้สถานที่ท่องเที่ยวชื่อดังอย่าง วัดใหญ่ชัยมงคล, ตลาดน้ำอโยธยา และอุทยานประวัติศาสตร์พระนครศรีอยุธยา เป็นต้น
บ้านพรพิศ 3 อยุธยา เป็นโครงการบ้านเดี่ยว 2 ชั้น ตั้งอยู่บนพื้นที่โครงการประมาณ 65 ไร่ จำนวนบ้าน 145 หลัง พื้นที่ใช้สอยบ้าน เริ่มต้น 217-391 ตร.ม. ฟังก์ชันบ้าน 3-4 ห้องนอน, 3-4 ห้องน้ำ พร้อมที่จอดรถ 2 คัน
สิ่งอำนวยความสะดวกภายในโครงการ อาทิ คลับเฮาส์, สระว่ายน้ำ, ห้องซาวน่า, ฟิตเนส, สวนสาธารณะ, กล้อง CCTV พร้อมเจ้าหน้าที่รักษาความปลอดภัยตลอด 24 ชม.

| ชื่อโครงการ | บ้านพรพิศ 3 อยุธยา / Baan Pornpis 3 Ayutthaya |
| เจ้าของโครงการ | บริษัท ตติเชษฐ์ (2015) จำกัด |
| ลักษณะโครงการ | บ้านเดี่ยว 2 ชั้น |
| พื้นที่โครงการ | ประมาณ 65 ไร่ |
| จำนวนบ้าน | 145 หลัง |
| เนื้อที่บ้าน | รอข้อมูลจากทางโครงการ |
| พื้นที่ใช้สอย | 217-391 ตร.ม. |
| จำนวนห้อง | 3-4 ห้องนอน, 3-4 ห้องน้ำ |
| ที่จอดรถทั้งหมด | 2 คัน |
| โซน | พระนครศรีอยุธยา |
| เส้นทางคมนาคม |
|
| ที่ตั้ง | ตำบลบ้านกรด อ.บางปะอิน จ.พระนครศรีอยุธยา 13160 |
| กำหนดการ | รอข้อมูลจากทางโครงการ |
| ปีที่สร้างเสร็จ | รอข้อมูลจากทางโครงการ |
| ราคา | รอข้อมูลจากทางโครงการ |
| ค่าส่วนกลาง | รอข้อมูลจากทางโครงการ |
| สถานที่สำคัญใกล้เคียง |
|
| สิ่งอำนวยความสะดวก |
|
| Tel | 035-881-888-9 |
| Line | https://line.me/ti/p/~0852198001 |
| Website | https://www.baanpornpis.com/ |
ที่ตั้งโครงการ
ตำบลบ้านกรด อ.บางปะอิน จ.พระนครศรีอยุธยา 13160
พิกัดโครงการ : https://maps.app.goo.gl/CQjKWGkjWWr6nid78
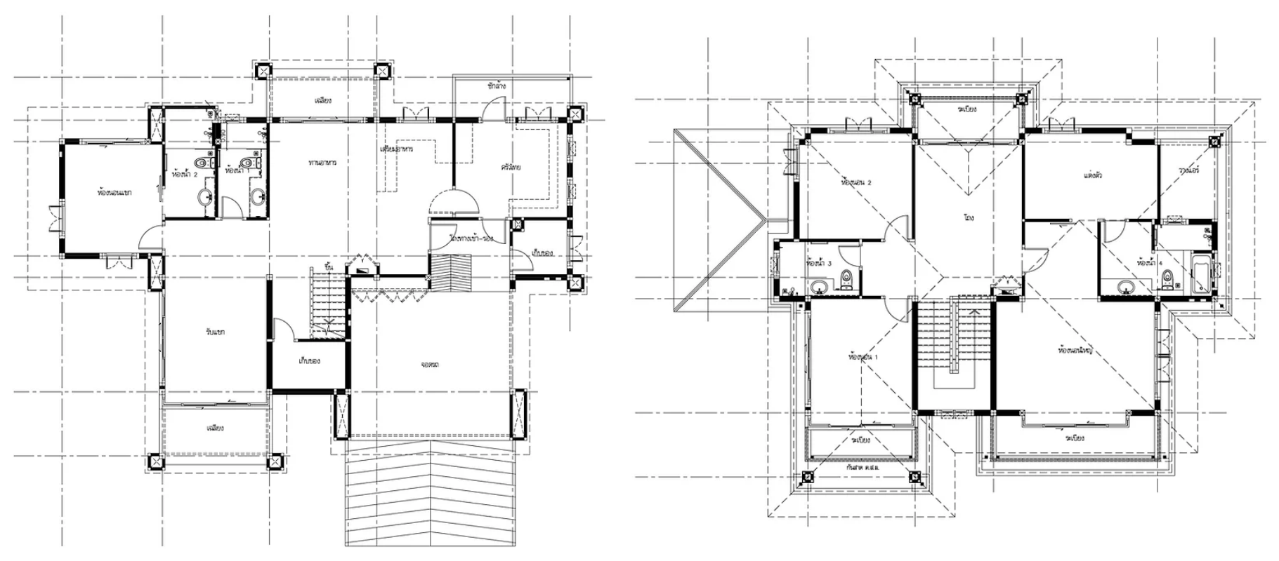
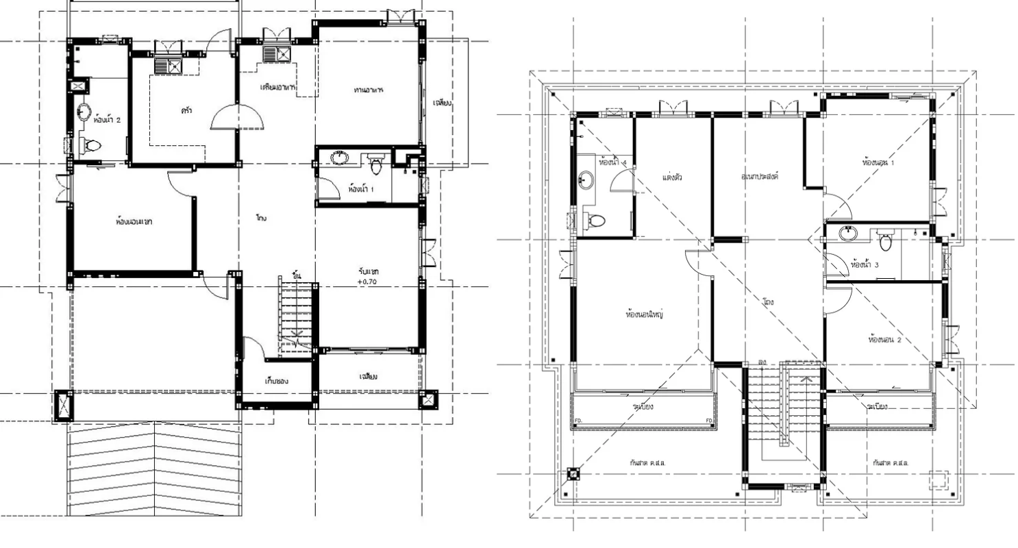
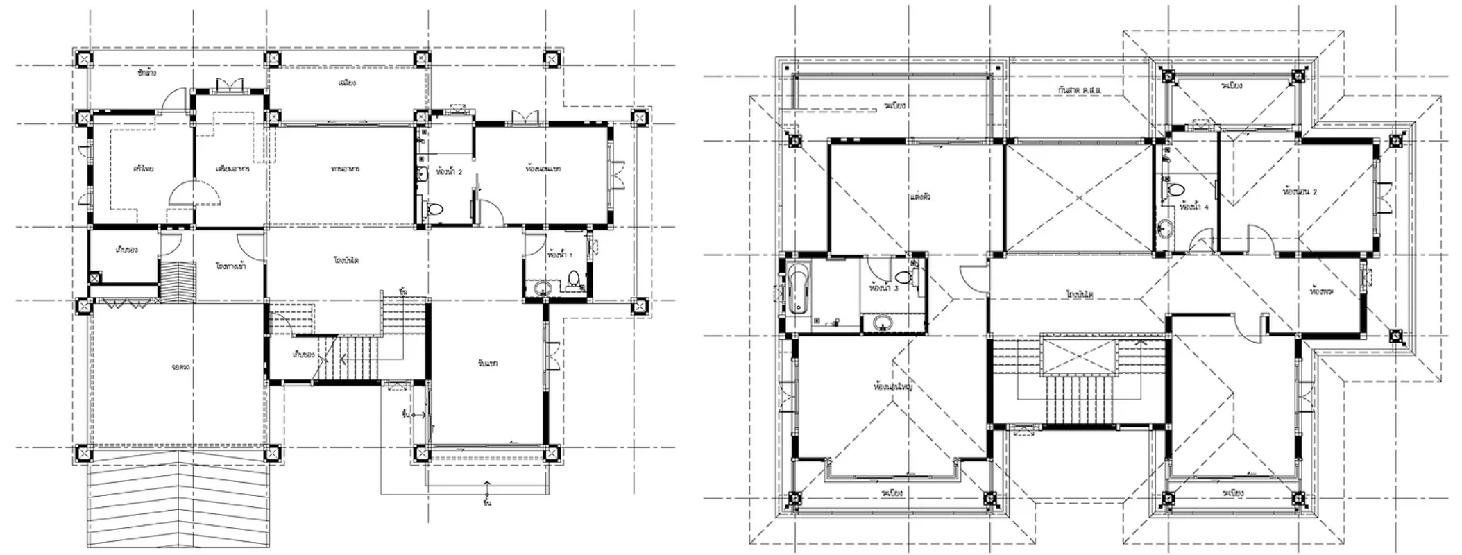
HOUSE TYPE
โครงการ บ้านพรพิศ 3 อยุธยา มีแบบบ้านให้เลือกทั้งหมด 4 แบบ ดังนี้
แปลนบ้านชั้น 1 | แปลนบ้านชั้น 2
แปลนบ้านชั้น 1 | แปลนบ้านชั้น 2
แปลนบ้านชั้น 1 | แปลนบ้านชั้น 2
แปลนบ้านชั้น 1 | แปลนบ้านชั้น 2
GALLERY
ภาพและบรรยากาศจำลองโครงการ บ้านพรพิศ 3 อยุธยา
ภาพและบรรยากาศจำลองโครงการ บ้านพรพิศ 3 อยุธยา
สอบถามรายละเอียดเพิ่มเติมได้ที่
Tel : 035-881-888-9
Website : https://www.baanpornpis.com/
บ้านเดี่ยว อยุธยา ทำเลอื่นๆ ที่น่าสนใจ…
บริทาเนีย อยุธยา เริ่ม 4.5-8 ล้าน*
อณาสิริ อยุธยา 2 เริ่ม 4.29-6 ล้าน*
ศุภาลัย ริเวียร่า อยุธยา เริ่ม 7.74 ล้าน*
ศุภวัฒนาลัย บางไทร เริ่ม 1.59-5.8 ล้าน*
ศุภาลัย พาร์ควิลล์ เกาะเรียน-อยุธยา เริ่ม 5 ล้าน*
ศุภาลัย พรีโม่ เกาะเรียน-อยุธยา เริ่ม 2 ล้านต้น ๆ*
บ้านพรพิศ 3 อยุธยา
บ้านแฝด เปรมประชา กลอรี่ อยุธยา
สิรีน มิรา อยุธยา เริ่ม 4.89 ล้าน*
บ้านเดี่ยว ชัยพฤกษ์ อยุธยา เริ่ม 7-15 ล้าน*
วรารักษ์ ประตูน้ำพระอินทร์ เริ่ม 1.6 ล้าน*