
รีวิว คอนโด แอ็บสแตร็กส์ พหลโยธิน พาร์ค ABSTRACTS PHAHONYOTHIN PARK
สนใจฝาก ซื้อ, ขาย หรือเช่า คอนโด Abstracts พหลโยธิน ได้ที่ 061-6418789 / 083-0505274 คุณปลาทอง
Line id : pla33333
สวัสดีผู้อ่าน Homenayoo ทุกคนค่ะ วันนี้เราจะพาไปชมคอนโดมิเนียมโครงการ Abstracts พหลโยธิน พาร์ค จาก BTS Assets เป็นโครงการคอนโดมิเนียมบนถนนพหลโยธิน อยู่ในย่านชุมชน ใกล้ห้างสรรพสินค้าโลตัสลาดพร้าว, เซ็นทรัลลาดพร้าว, ยูเนี่ยนมอล, ร้านอาหาร, ร้านค้า, สถานศึกษาทั้งโรงเรียนหอวัง, ม.เกษตรศาสตร์ ไม่ไกลจากจุดขึ้น-ลงทางด่วน, รถไฟฟ้าสายสีน้ำเงิน MRT พหลโยธิน และสายสีเขียวในอนาคต สถานีพหลโยธิน 24
แอ็บสแตร็กส์ พหลโยธิน พาร์ค เป็นคอนโดมิเนียม High Rise 4 อาคาร โดยมีอาคารพักอาศัย 3 อาคาร สำหรับอาคารที่สร้างเสร็จพร้อมอยู่มี 1 อาคารคืออาคาร A สูง 34 ชั้น และอาคารจอดรถ 1 อาคาร มีห้องให้เลือก 3 แบบคือ Studio, 1 bedroom และ 2 bedroom โดยขนาดพื้นที่ใช้สอยจะเริ่มตั้งแต่ 25.10 ตร.ม. สร้างเสร็จพร้อมอยู่ปี 2556
สิ่งอำนวยความสะดวกภายในโครงการครบครัน อาทิ Lobby ขนาดใหญ่, ฟิตเนส, ห้องสมุด, ห้องสำหรับเด็ก, ห้องกิจกรรม, ห้องอเนกประสงค์, สระว่ายน้ำ 2 แห่งและพื้นที่สวนในอาคาร และในสวนส่วนกลางนอกอาคารขนาดใหญ่ถึง 8 ไร่ , กล้องวงจรปิดภายในโครงการ และรปภ.ตลอด 24 ชั่วโมง ลิฟต์โดยสาร, อาคารจอดรถภายในโครงการ ราคา Resale ปัจจุบันราคาเริ่มต้นประมาณ 2.97 ล้านบาท (เฉลี่ย 118,800 บาท/ตร.ม.) (เม.ย.2561)
วันนี้เราจะพาท่านผู้อ่านไปสำรวจสถานที่ วิเคราะห์ทำเล และชมห้องตัวอย่างของโครงการว่าเป็นอย่างไร

| ชื่อโครงการ | แอ็บสแตร็กส์ พหลโยธิน พาร์ค ABSTRACTS PHAHONYOTHIN PARK |
| เจ้าของโครงการ | บีทีเอส แอทเซ็ทส์ |
| ลักษณะห้องและขนาดห้อง | – Studio / 25.10 ตร.ม. – 1 Bed / 37.35 – 66.0 ตร.ม – 2 Bed /58.10 – 58.25 ตร.ม. |
| เนื้อที่ทั้งหมด | 21 ไร่ 2 งาน 98.00 ตร.ว. |
| จำนวนอาคาร | 3 อาคาร (อาคาร A สร้างเสร็จพร้อมอยู่) |
| จำนวนชั้น | 34 ชั้น |
| จำนวนห้อง | 1012 ยูนิต |
| ที่จอดรถทั้งหมด | 50% |
| โซน | ลาดพร้าว, จตุจักร |
| ขนส่งสาธารณะ | รถไฟฟ้า MRT พหลโยธิน 800 ม. |
| รถโดยสารที่ผ่าน | n/a |
| ที่ตั้ง | ถนนพหลโยธิน แขวงจอมพล เขตจตุจักร กรุงเทพมหานคร |
| กำหนดการ | สร้างเสร็จพร้อมอยู่ |
| ปีที่สร้างเสร็จ | พ.ศ. 2556 |
| ราคา | เริ่มต้น 2.97 ล้านบาท ( Resale ) |
| ราคาเฉลี่ยต่อ ตร.ม | เริ่มต้น 118,800 บ./ตร.ม. |
| สถานที่สำคัญใกล้เคียง |
|
| สิ่งอำนวยความสะดวก | – สระว่ายน้ำ, ฟิตเนส, ซาวน่า – รปภ., กล้องวงจรปิดโครงการ, ประตู Key Card – รถรับส่ง สตรีม, สวนหย่อม, ห้องสมุด, อื่นๆ (Lobby, ห้องสันทนาการสำหรับเด็ก, สตรีมรูม) |
| จุดเด่นของโครงการ | ด้วยแนวคิด “Park In The Park” ให้คุณสูดอากาศบริสุทธิ์ ชมวิวสวย 180 องศา ของกรุงเทพมหานคร ในสระว่ายน้ำหรูบนชั้นสูงสุดของอาคารระฟ้า แต่งแต้มสวนสวย Sky Garden เปิดโล่งโปร่งสบายสูง 3 ชั้น พร้อมสระว่ายน้ำใจกลางตัวอาคาร ซึ่งแวดล้อมล้อมด้วยสวนสวยภายในโครงการราว 8 ไร่ ที่จะเติมเต็ม “สีเขียว” ที่ขาดหายไปให้ชีวิต…ใกล้ชิดธรรมชาติมากกว่าที่เคย |
คอนโดติดรถไฟฟ้า MRT พหลโยธิน
คอนโดโดยรอบ MRT พหลโยธิน (เชื่อมต่อรถไฟฟ้าสายสีเขียวเข้ม BTS ห้าแยกลาดพร้าว)
ที่ตั้งโครงการ
ถนนพหลโยธิน แขวงจอมพล เขตจตุจักร กรุงเทพมหานคร
พิกัด google map : 13°49’05.1″N 100°33’53.0″E
แผนที่โครงการ
ที่ตั้งโครงการโครงการ Abstracts พหลโยธิน พาร์ค ตั้งอยู่บนถนนพหลโยธิน ซึ่งเป็นถนนหลักเส้นใหญ่ที่มีการจราจรคึกคัก ไม่ไกลจากแยกรัชโยธินและห้าแยกลาดพร้าว จึงเป็นเส้นที่เชื่อมต่อกับถนนหลายสายเดินทางได้สะดวก เดินทางด้วยรถสาธารณะก็สะดวกเพราะใกล้ MRT พหลโยธินอีกทั้งในอนาคตจะมีรถไฟฟ้าสายสีเขียววิ่งผ่าน จึงทำให้การเดินทางสะดวกยิ่งขึ้น ไม่ไกลจากสถานที่ราชการ สถานศึกษาและห้างสรรพสินค้าใหญ่ๆหลายแห่งทั้งโลตัสลาดพร้าว, เซ็นทรัลลาดพร้าวและยูเนี่ยนมอล
การเดินทางด้วยรถยนต์ส่วนตัว ถือว่าสะดวกทีเดียวเพราะบนถนนพหลโยธิน เป็นถนนที่ปัจจุบันอาจมีบางช่วงเวลาที่ติดขัดเพราะกำลังก่อสร้างทางรถไฟฟ้าสายสีเขียว แต่เป็นถนนเส้นยาว และไม่ไกลจากแยกรัชโยธิน, ห้าแยกลาดพร้าวจึงเชื่อมกับถนนหลักอื่นๆได้อีกหลายสาย ตรงไปยังรามอินทรา, สายไหม และไปยังตัวเมืองกรุงเทพ เขตราชเทวี, พญาไท, ถนนพระราม 1 ได้
ถ้าไปยังแยกรัชโยธินตรงเข้าถนนรัชดาภิเษก มุ่งหน้าไปยังพระราม 9, สุทธิสาร, รัชดาและห้วยขวางได้ หรือจะตรงไปยังนนทบุรีก็วิ่งเข้าประชาชื่น, วงศ์สว่าง และไปยังติวานนท์ได้เช่นกัน ถ้าไปยังแยกเกษตรก็ไปถนนเกษตร-นวมินทร์และงามวงศ์วาน วิ่งเข้าจังหวัดนนทบุรีได้ค่ะ อีกทั้งถนนเหล่านี้ก็จะมีถนนซอยที่ลัดเลาะและเชื่อมต่อกัน ดังนั้นถ้ารู้เส้นทางก็ช่วยเลี่ยงรถติดบนเส้นพหลโยธินได้นะคะ
หรือถ้าไปยังห้าแยกลาดพร้าวเป็นจุดที่เชื่อมกับถนนหลายสายเช่นกัน ถนนลาดพร้าวเส้นนี้เชื่อมกับถนนโชคชัย 4 , ถนนรัชดาภิเษกวิ่งตรงไปเลียบด่วนรามอินทรา-อาจณรงค์ อีกเส้นทางคือเชื่อมกับถนนวิภาวดีรังสิตวิ่งตรงเข้าตัวเมืองกรุงเทพได้ ส่วนอีกเส้นคือตรงจากถนนพหลโยธินวิ่งผ่านห้าแยกลาดพร้าวมาเรื่อยๆก็เข้าเขตพญาไท ไปยังตัวเมืองกรุงเทพได้เช่นกัน อีกทั้งที่ตั้งโครงการยังไม่ไกลจากทางด่วน, โทลเวย์ดอนเมือง ดังนั้นทำให้สะดวกต่อการเดินทางทั้งในตัวเมืองกรุงเทพฯและรอบนอก
ทางด่วน ที่ตั้งโครงการนั้นยังอยู่ไม่ไกลกับจุดขึ้น-ลงทางด่วน ใกล้ห้าแยกลาดพร้าวก็มีจุดขึ้นดอนเมืองโทลล์เวย์ เส้นนี้เชื่อมกับทางด่วนอีกหลายสายทั้งศรีรัชและทางด่วนเฉลิมมหานคร จึงเดินทางในเมืองและรอบตัวเมืองกรุงเทพได้สะดวก
การเดินทางด้วยรถสาธารณะ ถือว่าสะดวกมากทีเดียว หน้าโครงการมีรถประจำทางวิ่งผ่านหลายสาย แท็กซี่ก็เรียกได้ไม่ยาก ในปัจจุบันรถไฟฟ้าที่ใกล้ที่สุดคือรถไฟฟ้าสายสีน้ำเงิน สถานีพหลโยธิน
จากโครงการสามารถเดินหรือนั่งวินมอเตอร์ไซค์มาก็ได้ค่ะ เพราะจากปากซอยที่ติดกับถนนพหลโยธินนั้นจะมีวินอยู่หน้า Lotus ลาดพร้าว หรือถ้าไม่รีบก็รอรถเมล์ที่วิ่งผ่านห้าแยกลาดพร้าวก็ได้เช่นกัน สำหรับสถานีพหลโยธินนั้นทางเข้า-ออกจะอยู่ติดกับถนนลาดพร้าว ใกล้ยูเนียนมอลล์ และถนนพหลโยธินใกล้เซ็นทรัลลาดพร้าว
การเดินทางด้วยรถสาธารณะในอนาคต ก็จะดวกสำหรับการเข้า-ออกตัวเมืองมากขึ้น เพราะหน้าโครงการจะมีรถไฟฟ้าสายสีเขียวส่วนต่อขยายวิ่งผ่าน สถานีที่ใกล้ที่สุดคือสถานีพหลโยธิน 24 สำหรับสายสีเขียวนี้จะวิ่งไปเชื่อมกับสายสีน้ำเงินที่สถานีพหลโยธินค่ะ
ขณะนี้กำลังอยู่ในขั้นตอนก่อสร้าง คาดว่าแล้วเสร็จปี 2563 โดยสถานีที่ก่อสร้างอยู่เริ่มจากสถานีห้าแยกลาดพร้าว(ในวงกลมสีแดง) ซึ่งเป็นสถานีที่เชื่อมกับสายสีน้ำเงินตรงสถานีพหลโยธิน
ความอุดมสมบูรณ์ เนื่องจากที่ตั้งโครงการอยู่ในย่านพักอาศัย ดังนั้นสองข้างทางจึงมีร้านค้าและร้านอาหารมากมาย และที่สะดวกที่สุดคือหน้าโครงการเป็นที่ตั้งของโลตัส ลาดพร้าวอยูในระยะเดินจากโครงการไปได้ ในนั้นก็จะมีทั้งของใช้ และร้านค้า ร้านอาหารต่างๆ ไม่จำเป็นต้องขับรถไปซื้อของเลยค่ะ หรือถ้าเบื่อๆอยากเดินห้างที่มีร้านค้าเยอะกว่าก็ไปยังเซ็นทรัลลาดพร้าวได้ไม่ยาก อยู่ในระยะที่เดินไปได้ไม่เหนื่อย และตรงข้ามเซ็นทรัลลาดพร้าวก็จะเป็นยูเนี่ยนมอล ซึ่งก็มีร้านค้าและร้านอาหารมากมาย หรือวันหยุดอยากไปเที่ยวตลาดนัดจตุจักรก็ไม่ไกลจากโครงการเลย
ถ้าไปแยกรัชโยธินจะมีทั้ง เมเจอร์รัชโยธิน และAvenue รัชโยธิน หรือถ้าอยากไปตลาดสดก็ตรงไปอีกหน่อยจะมีตลาดบางเขนและตลาดอมรพันธ์ หรือถ้าอยากไปตลาดนัดก็มีทั้งตลาดนัดจตุจักรตรงถนนพหลโยธิน และตลาดนัดหัวมุมตรงถนนเกษตร-นวมินทร์
อีกทั้งถนนพหลโยธินจะเป็นเส้นที่มีอาคารสำนักงานและศูนย์ราชการทั้งกรมป่าไม้, กองพันทหารราบที่ 2 และสนง.เขตบางเขน สำหรับสถานศึกษาก็มีทุกระดับทั้งประถมไปจนถึงระดับอุดมศึกษา คือมีโรงเรียนหอวัง, โรงเรียนบางบัว, ม.ศรีปทุม, ม.ราชภัฎพระนคร, ม.จันทรเกษม และม.เกษตรศาสตร์ เรียกได้ว่าเป็นย่านที่คึกคักและมีครบทุกแบบ
แยกและถนนสำคัญใกล้เคียง
การเดินทาง
เรามีภาพการเดินทางโดยรถมาให้ชมกัน เส้นทางการเดินทางตามลูกศรแดง โดยเริ่มเดินทางจาก ถนนพหลโยธิน → ตรงผ่านห้าแยกลาดพร้าว → กลับรถ → เลี้ยวซ้ายเข้าซอยข้างโลตัส → ตรงไปประมาณ 160 ม. ก็จะถึงโครงการ Abstracts พหลโยธิน พาร์ค แล้วค่ะ
จาก BTS หมอชิต (สายสีเขียว) จุดนี้จะเป็นจุดที่เชื่อมกับสายสีน้ำเงินที่สถานีจตุจักร
ตรงไปตามถนนพหลโยธิน มุ่งหน้าไปยังห้าแยกลาดพร้าว ตามป้ายบอกทางไปรัชโยธิน
จากห้าแยกลาดพร้าวให้ตรงไปมุ่งหน้าไปทางรัชโยธินค่ะ
ตรงไปจะมีป้ายบอกไปเซ็นทรัล ให้วิ่งตามป้ายค่ะ ด้านซ้ายจะผ่าน MRT พหลโยธิน(สายสีน้ำเงิน)
จากถนนพหลโยธินผ่านเซ็นทรัลลาดพร้าวทางซ้ายมือ และยูเนี่ยนมอลทางขวามือ
ตรงไปจะเห็นโลตัสทางขวามือ และตึกช้างอยู่ไม่ไกล ที่ตั้งโครงการจะหลังโลตัสค่ะ
ตรงผ่านโรงเรียนหอวังทางซ้ายมือ ซึ่งเป็นโรงเรียนที่อยู่ใกล้โครงการที่สุด
ผ่านโรงเรียนหอวังเพียง 150 ม.ก็จะถึงที่กลับรถ ให้กลับรถได้เลย
เมื่อกลับรถแล้ว ด้านซ้ายมือจะเป็นกองปราบปราม ให้ตรงไปค่ะ
กลับรถมาเพียง 75 ม.ก็จะเจอกับโลตัส ให้เลี้ยวซ้ายเข้าถนนทางเข้าของโลตัสได้เลย
ตรงเข้ามาถนนตรงนี้จะใช้ร่วมกับโลตัสนะคะ จะเห็นป้ายโครงการอยู่ไม่ไกล
ด้านในสุดของถนนจะเป็นพื้นที่โครงการ ตรงเข้าไปด้านในได้เลยค่ะ
บริเวณโดยรอบโครงการ
โครงการ Abstracts พหลโยธิน พาร์ค เป็นโครงการที่มีถนนทางเข้า-ออกร่วมกับโลตัสลาดพร้าว ปากทางเข้าติดกับถนนพหลโยธิน โดยรอบเป็นบ้านพักอาศัย ไม่มีตึกสูงใกล้เคียงอาคารพักอาศัย ส่วนอาคารสูงที่อยู่ติดกับพื้นที่โครงการก็อยู่ใกล้สวนและอาคารจอดรถทำให้ไม่โดนบังวิว ด้านหน้ามีโลตัสอยู่ติดกับโครงการเลยทำให้สะดวกต่อลูกบ้าน เพราะไม่ต้องไปไหนไกลก็เดินไปจับจ่ายใช้สอยได้ง่าย
หน้าโครงการเป็นถนนข้างโลตัส ลาดพร้าว ปากทางเข้าเป็นถนนพหลโยธิน
จากโครงการเดินไปยังโลตัสลาดพร้าวได้สะดวกมากค่ะ ทางเข้า-ออกอยู่ไม่ไกลเลย ดังนั้นถ้าหิวตอนดึกๆหรือต้องซื้อของก็เดินทางโครงการมาได้ไม่เปลี่ยว
ปากทางเข้าติดกับถนนพหลโยธิน ทางเข้า-ออกเป็นทางเดียวกับถนนของโลตัส
ด้านขวามุ่งหน้าไปยังแยกรัชโยธิน ด้านบนจะเห็นการก่อสร้างเส้นทางรถไฟฟ้าสายสีเขียว
ด้านซ้ายตรงไปยังห้าแยกลาดพร้าว จากโครงการเดินไปยังโรงเรียนหอวังและเซ็นทรัลลาดพร้าวได้
สถานที่สำคัญ
โครงการ
โครงการ Abstracts พหลโยธิน พาร์ค เป็นโครงการที่มีพื้นที่สีเขียวขนาดใหญ่ โดยมีอาคารพักอาศัย 3 อาคารและอาคารจอดรถ 1 อาคาร ปัจจุบันอาคารพักอาศัยที่สร้างเสร็จพร้อมอยู่มีเพียงอาคาร A ส่วนอาคาร B-C อยู่ในระหว่างการก่อสร้าง อาคารจะเรียงตัวโดยอาคารด้านหน้าสุดคืออาคาร A ส่วนด้านในคืออาคารจอดรถซึ่งจะมีรถรับ-ส่งลูกบ้านคอยบริการ
พื้นที่ส่วนกลางที่เป็นสวนจะมีขนาดใหญ่มาก ดังนั้นถ้าใครชอบพื้นที่สีเขียวไว้เดินเล่น ออกกำลังกายหรือนั่งพักผ่อน ก็จะมีมุมหลากหลายในสวน ทั้งพื้นที่นั่งเล่น, ทางเดินรอบสวนซึ่งกว้างพอให้วิ่งออกกำลังกายได้เลย
อาคารพักอาศัยอาคาร A เป็นอาคารสูง 34 ชั้น ด้านหน้าทางเข้าร่วมกับอาคารอื่นๆ
ถนนทางเข้าจะเป็นวงเวียน จะเห็นว่าต้นไม้และความร่มรื่นในโครงการมีอยู่มากและหลากหลายมุม
เมื่อวนมาก็จะเป็นทางเข้า-ออกสำหรับคนเดินเท้า
วนจากทางเดินคนเข้าก็จะเป็นทางเข้า-ออกรถ โดยประตูเป็นประตูไม้กระดกกั้นค่ะ แบ่งเป็น 2 ช่องสำหรับลูกบ้านและแขกตรงนี้จะมี รปภ.ประจำตลอด 24 ชั่วโมง
ซุ้มประตูทางเข้า ตรงนี้จะเป็นจุดรับ-ส่งผู้โดยสาร มีหลังคาจากซุ้มประตูไปจนเกือบถึงตัวอาคาร ซุ้มเป็นเหมือนไม้สีน้ำตาลตกแต่งให้เข้ากับธรรมชาติของสวนในโครงการ
ทางเดินด้านหน้าอาคาร A
จากด้านหน้าอาคาร A จะมีทางเดินไปยังอาคารจอดรถ โดยมีหลังคาให้ตลอดแนว
พื้นที่สวนส่วนกลางในโครงการ จะเห็นว่ามีต้นไม้หลากหลายทั้งสนามหญ้า ต้นไม้ใหญ่และไม้พุ่ม
ทางเดินในสวนและพื้นที่นั่งเล่น ทางเดินนี้ยาวพอจะวิ่งออกกำลังกายในสวนได้ค่ะ
พื้นที่สวนในโครงการ มีต้นไม้ใหญ่มากมาย ถ้าวันไหนอากาศดีๆก็มานั่งเล่น นั่งปิกนิคในสวนได้นะคะ
ทางเดินในสวน
มุมนี้มีทางเดินและมุมนั่งเล่น ทางเดินไปยังอาคารจอดรถก็จะขนานกับพื้นที่สวนตรงไปจนถึงด้านในสุดของโครงการ
พื้นที่นั่งเล่นในสวน มีต้นไม้ใหญ่ตลอดทุกจุดของสวนเลยค่ะ
ทางเดินและมุมปิกนิคในสวน
ตรงนี้โครงการทำเป็นเหมือนมุมบาร์บีคิว มีเตรียมซิงค์และโต๊ะเตี้ยสามารถมานั่งเล่น ทำอาหารทานในสวนได้นะคะ
มุมสนามเด็กเล่น ก็จะมีเครื่องเล่นหลากหลาย
พื้นที่นั่งเล่นในสวนอีกมุม มุมนี้สามารถจัดเป็นกิจกรรมนันทนาการ หรือล้อมวงจัดกิจกรรมต่างๆได้เลยค่ะ
ทางเดินตรงไปยังอาคารจอดรถ
อาคารจอดรถ 16 ชั้น
มีรถบริการรับ-ส่งลูกบ้าน ตรงนี้ก็จะมีรปภ.ประจำอาคารตลอด 24 ชั่วโมง
ภายในอาคารจอดรถค่ะ
ต่อไปเราจะพาชมอาคาร A ซึ่งเป็นอาคารที่สร้างเสร็จเป็นที่เรียบร้อยแล้ว สำหรับอาคารนี้ชั้น 1 จะแบ่งพื้นที่เป็นสามส่วน โดยมีห้องพักอาศัยซ้ายและขวา ส่วนตรงกลางเป็น Lobby
ประตูทางเข้า-ออกอาคาร A ค่ะ
เข้ามาด้านในจะเป็น Lobby มีโต๊ะและเก้าอี้นั่งหลายมุม
ทางเดินไปยังปีกซ้ายของอาคาร ด้านนี้จะมีเคาน์เตอร์ Information
ทางเดินไปยังปีกขวาของอาคาร ด้านนี้จะมีห้องซักผ้าของอาคาร A อยู่ที่ชั้น 1
แปลนชั้น 2 ของอาคาร A เป็นชั้นพักอาศัยตรงกลางยังคงเป็นพื้นที่ของ Lobby ที่ฝ้าสูงขึ้นมา
แปลนชั้น 3 ของอาคาร A เป็นชั้นพักอาศัยทั้งหมด มีลิฟต์โดยสาร 6 ตัวและลิฟต์เซอร์วิส 2 ตัว แบ่งเป็นสองฝั่งทำให้แต่ละห้องจะเดินไม่ไกลเพื่อมาใช้ลิฟต์ค่ะ
แปลนชั้น 4-11 ของอาคาร A เป็นชั้นพักอาศัยทั้งหมด ห้องที่อยู่ฝั่งทางทิศเหนือจะได้วิวสวนส่วนกลางของโครงการ
โถงลิฟต์ของแต่ละฝั่งค่ะ
ทางเดินภายในอาคาร
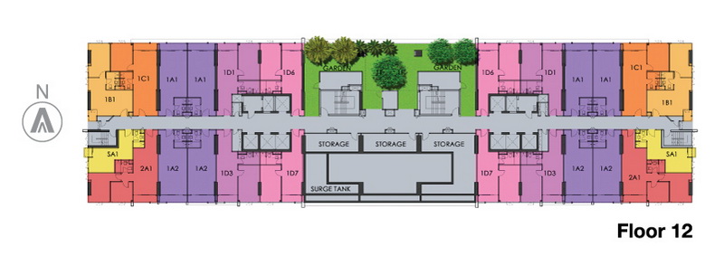
แปลนชั้น 12 ของอาคาร A ชั้นนี้มีห้องพักอาศัย, ห้องงานระบบและพื้นที่สวน จะมีมุมสวนและมุมนั่งเล่น
แปลนชั้น 12A ของอาคาร A ชั้นนี้มีห้องพักอาศัยและพื้นที่ส่วนกลางที่มีสระว่ายน้ำตรงกลาง มีห้องสมุดและห้องสำหรับเด็กอยู่ติดกับสระ
ทางเดินภายในอาคารที่เป็นพื้นที่ส่วนกลาง
ทางเข้า-ออกส่วนกลางของแต่ละฝั่ง
ฝั่งนี้จะเป็นห้องสมุด
ภายในห้องสมุดจะมีโต๊ะทำงาน เก้าอี้สำหรับนั่งอ่านหนังสือและชั้นหนังสือ สามารถมานั่งใช้บริการตรงนี้ได้ตลอด
พื้นที่ตรงกลางเป็นสระว่ายน้ำและมุมนั่งเล่น
มุมนั่งเล่นจะมีสวนเล็กๆ ให้ความสดชื่น
สระว่ายน้ำเป็นสระแนวยาว สามารถออกกำลังกายได้ ในโครงการมี 2 สระด้วยกัน สำหรับสระนี้เป็นสระในร่มก็จะสะดวกถ้าจะมาว่ายตอนเที่ยงหรือฝนตก
วิวจากสระว่ายน้ำค่ะ
มุมนั่งเล่นริมสระ
ติดกับสระอีกฝั่งก็จะเป็นห้องสำหรับเด็ก
ภายในพื้นและผนังก็จะเหมาะสำหรับเด็ก คือผนังจะมีส่วนที่บุนวมกันเด็กวิ่งชนขอบเสา ภายในมีเครื่องเล่นและของเล่นสำหรับเด็กหลากหลาย
มุมอีกมุมในห้องสำหรับเด็กค่ะ
มุมอีกมุมในห้องสำหรับเด็กค่ะ
แปลนชั้น 14 ของอาคาร A เป็นชั้นพักอาศัย ชั้นนี้จะมียูนิตไม่มากนักเพราะบางส่วนเป็นพื้นที่ของสระว่ายน้ำชั้น 12A
แปลนชั้น 15-19 ของอาคาร A เป็นชั้นพักอาศัยทั้งหมด
แปลนชั้น 20-21 ของอาคาร A เป็นชั้นพักอาศัยทั้งหมด
แปลนชั้น 22 ของอาคาร A เป็นชั้นพักอาศัยและพื้นที่ส่วนกลางที่เป็นสวน มีมุมนั่งเล่นและต้นไม้ในสวน ดังนั้นถ้าไม่อยากลงไปนั่งเล่นในสวนด้านล่างก็มานั่งเล่นที่สวนในร่มนี้ได้นะคะ
แปลนชั้น 23 ของอาคาร A เป็นชั้นพักอาศัยและพื้นที่ส่วนกลางที่เป็นห้องฟิตเนสและห้องกิจกรรมสำหรับออกกำลังกาย
ทางเดินตรงกลางระหว่างพื้นที่อาคารฝั่งซ้ายและขวา
ด้านนี้เป็นห้องกิจกรรมสำหรับออกกำลังกาย
ภายในจะกว้างสามารถโยคะหรือเต้นออกกำลังกายได้ มีหน้าต่างกระจกทำให้ได้วิวตัวเมือง
อีกฝั่งจะเป็นห้องฟิตเนส ภายในกว้างและมีอุปกรณ์หลากหลาย ทั้งสำหรับเวทและคาดิโอ มีลู่วิ่งสำหรับออกกำลังกาย 2 เครื่อง และดัมเบล 1 ชุด
เครื่องเล่นเวทแบบนี้ 1 เครื่อง
เก้าอี้ปรับระดับสำหรับออกกำลังกาย 1 ตัว
เครื่องเล่นเวทแบบนี้ 1 เครื่อง
เครื่องเล่นเวทแบบนี้ 1 เครื่อง
เครื่องเล่นเวทแบบนี้ 1 เครื่อง
เครื่องเล่นเวทแบบนี้ 1 เครื่อง
เครื่องเล่นเวทแบบนี้ 1 เครื่อง
เครื่องวิ่งวงรี 2 เครื่องและจักรยาน 1 เครื่อง
เครื่องเล่นเวทแบบนี้ 1 เครื่อง
จักรยาน 3 เครื่อง
แปลนชั้น 24 ของอาคาร A เป็นชั้นพักอาศัยและมีพื้นที่นั่งเล่นภายในอาคาร
แปลนชั้น 25-33 ของอาคาร A เป็นชั้นพักอาศัยทั้งหมด
แปลนชั้น 34 ของอาคาร A เป็นพื้นที่ส่วนกลางและห้องงานระบบ
สระว่ายน้ำชั้นบนสุด เป็นสระแบบกลางแจ้ง
มีพื้นที่นั่งเล่นใกล้สระ
มุมนั่งเล่นมีต้นไม้ ไม้พุ่มให้ความสดชื่น
สระเป็นสระแนวยาวขนาดใหญ่ เหมาะสำหรับออกกำลังกาย วันที่มีถ่ายทำรีวิวโครงการกำลังปิดเพื่อทำความสะอาดสระดังนั้นน้ำจึงจะแห้งแบบที่เห็นนะคะ
วิวที่ได้จากสระค่ะ เป็นวิวสูงที่ไม่มีตึกไหนบัง ริมสระก็ยังมีต้นไม้ให้ความสดชื่น
วิวอีกมุมของสระค่ะ จะเห็นว่าสระกว้างพอเหมาะสำหรับว่ายออกกำลังกาย
ริมสระมีมุมนั่งเล่น
มุมนั่งเล่นอีกมุมริมสระ
ห้องด้านข้างสระจะมีห้องประชุม
ภายในเป็นห้องกว้าง สามารถจัดประชุมต่างๆได้
ด้านนอกเป็นพื้นที่นั่งเล่น
อีกห้องจะเป็นห้องอเนกประสงค์
ภายในก็กว้างจัดเป็นห้องประชุมหรือห้องกิจกรรมต่างๆของลูกบ้านได้
ด้านนอกเป็นพื้นที่นั่งเล่น
แบบห้องในโครงการ
Abstracts พหลโยธิน พาร์ค โดยมีทั้งหมด 9 แบบ คือ
SA : Studio ขนาด 25.10 ตร.ม.
1A : 1 Bedroom ขนาด 37.35 – 41.05 ตร.ม.
1C : 1 Bedroom ขนาด 49.15 – 50.0 ตร.ม.
1D : 1 Bedroom ขนาด 43.85 – 45.85 ตร.ม.
1E : 1 Bedroom ขนาด 45.30 – 46.15 ตร.ม.
1F : 1 Bedroom ขนาด 46.95 ตร.ม.
1G : 1 Bedroom ขนาด 66.00 ตร.ม.
2A : 1 Bedroom ขนาด 58.10-58.25 ตร.ม.
ห้องตัวอย่าง
Abstracts พหลโยธิน พาร์ค มีให้ชม 1 แบบ คือ
*โครงการขายแบบ Fully Furnished ชุดเคาน์เตอร์ครัว, ตู้เสื้อผ้าในห้องนอน, เฟอร์นิเจอร์ทั้งโซฟาและเตียง พร้อมกับเครื่องใช้ไฟฟ้าตามที่เห็นเลยค่ะ
** แต่ละห้องจะมีการตกแต่งละเฟอร์นิเจอร์แตกต่างกันไปเนื่องจากเป็นห้องแบบ Resale
1A : 1 Bedroom ขนาด 37.35 – 41.05 ตร.ม. ภายในแบ่งพื้นที่ใช้สอยเป็นสัดส่น ฟังก์ชั่นต่างๆครบครัน เป็นห้องแบบ 1 ห้องนอนที่มีหน้ากว้างถึง 4 ม.แทบจะเท่ากับทาวน์โฮมบางหลังเลยค่ะ ถือว่ากว้างมากทีเดียว ด้านหน้าแบ่งเป็นห้องครัวและห้องน้ำ ถัดไปเป็นห้องนั่งเล่น ซึ่งจากการที่เป็นห้องหน้ากว้างทำให้ห้องนั่งเล่นกว้าง สามารถวางโซฟาตัวใหญ่ได้ ด้านในสุดคือห้องนอน ซึ่งอยู่ติดกับระเบียง ประตูระเบียงก็เป็นประตูกระจกทำให้มีแสงธรรมชาติส่องเข้ามาในห้อง ระเบียงกว้างสามารถวางเครื่องซักผ้า, โต๊ะนั่งเล่นและราวตากผ้าได้
ประตูห้องเป็นประตูไม้สีน้ำตาล มือจับเป็นแบบก้านโยกมีตาแมว และด้านข้างประตูเป็นหมายเลขห้อง
พื้นห้องส่วนแรกที่เข้าไปเป็นห้องครัว พื้นจึงปูด้วยกระเบื้องเซรามิคขนาด 60×60 ซม.สีครีม
เข้ามาด้านในส่วนแรกจะเป็นห้องครัว ด้านขวามือคือห้องน้ำ โดยห้องนอนที่อยู่ด้านในสุดจะมีประตูกั้นด้วยกระจก ดังนั้นแสงธรรมชาติสามารถส่องเข้ามาจากทางระเบียงมาถึงหน้าห้องได้ ห้องจึงดูสว่าง
ทางเดินพื้นที่ด้านหน้าระหว่างเคาน์เตอร์ครัวและห้องน้ำกว้างประมาณ 1.2 ม.ทำให้เดินผ่านสะดวก
ประตูจะมีตัวล็อคด้านในให้อีกชั้นเพื่อความปลอดภัย
ด้านนี้เป็นห้องครัว เคาน์เตอร์เป็นเคาน์เตอร์แนวยาวไปกับผนัง
ขนาดเคาน์เตอร์ไม่ใหญ่นัก เมื่อวางเตาและอ่างล้างจานไปแล้วจะเหลือพื้นที่สำหรับเตรียมอาหารอีกเล็กน้อย เหนือเคาน์เตอร์ผนังปูกระเบื้องทำให้ง่ายต่อการทำความสะอาด เหนืออ่างล้างจานมีที่แขวนอุปกรณ์ครัว เหนือเตามีเครื่องดูดควัน
ด้านบนเป็นชั้นวางของและตู้เก็บของ
ด้านล่างเป็นตู้เก็บของและชั้นวางของ สามารถวางไมโครเวฟไว้ชั้นด้านล่างได้ ซึ่งจะสะดวกต่อการใช้งาน
ติดกับเคาน์เตอร์ครัวเป็นพื้นที่สำหรับวางตู้เย็น สามารถวางตู้เย็นเครื่องใหญ่กว่านี้แบบ 2 ประตูได้
ตรงข้ามครัวเป็นห้องน้ำ ประตูห้องน้ำเป็นสีน้ำตาลเข้มโทนเดียวกับประตูทางเข้าห้องพัก
พื้นห้องน้ำลดระดับลงไปเล็กน้อย พื้นปูด้วยแกรนิตโต้แบบหยาบขนาด 60×60 ซม. สีครีม
ผนังก็ยังเป็นแกรนิตโต้สีครีมขนาด 60×60 ซม. ภายในแบ่งพื้นที่โซนแห้งและเปียกในระดับหนึ่ง
ติดกับประตูจะเป็นโถสุขภัณฑ์ของ Kohler พร้อมสายชำระที่ที่ใส่ทิชชู่
ตรงกับประตูเป็นอ่างล้างหน้า เหนืออ่างล้างหน้ามีกระจกเงาบานใหญ่ให้
พื้นที่เคาน์เตอร์ขนาดกว้างพอให้วางของใช้ต่างๆ ด้านข้างมีปลั๊กพร้อมฝาครอบเพื่อความปลอดภัย ด้านล่างมีตู้เก็บของ
ด้านนี้เป็นส่วนอาบน้ำค่ะ มีฉากกั้นอาบน้ำแบบม่าน ถ้าจะให้สะดวกกว่านี้แนะนำติดตั้งฉากกั้นอาบน้ำแบบกระจกเพื่อจะได้แยกโซนแห้งและเปียกชัดเจน ดูแลรักษาความสะอาดง่ายกว่า
พื้นระดับเดียวกันแต่มีขอบขั้นขึ้นมาเพื่อกั้นไม่ให้น้ำไหลมายังส่วนแห้ง
ฝักบัวและที่วางสบู่ ตรงนี้คงต้องติดตั้งชั้นวางของเองนะคะ จะไม่เห็นเครื่องทำน้ำอุ่นเพราะห้องน้ำเป็นแบบระบบน้ำร้อน
ถัดจากครัวเป็นห้องนั่งเล่น
พื้นเป็น Engineered Wood ลายไม้สีน้ำตาลอ่อนชิ้นเล็ก ทำให้เมื่อปูแล้วจะเหมือนแผ่นไม้จริง
ห้องนั่งเล่นจะกว้างแบ่งเป็นมุมโซฟากับมุมทานอาหารและมีพื้นที่สำหรับวางชั้นวางของได้
ติดกับครัวจะเป็นมุมทานอาหารและชั้นวางของ
มุมนี้สามารถวางโต๊ะสำหรับ 2 ที่นั่งได้สบาย สามารถเดินเข้า-ออกใช้งานได้สะดวก
ด้านนี้เป็นมุมของชั้นวางของ, ชั้นวางรองเท้าและชั้นวางทีวี ถ้าใครจะวางโต๊ะทานอาหารสำหรับ 2 ที่นั่งไว้ข้างทีวีก็ทำได้เช่นกันค่ะ แล้วทำพื้นที่ด้านล่างชั้นวางทีวีให้เป็นตู้เก็บรองเท้า ด้านบนมีชั้นและตู้เก็บของ
ตู้เก็บรองเท้าแบ่งสัดส่วนชัดเจน เก็บได้หลายคู่ ด้านบนก็วางของชิ้นเล็กๆอย่างกุญแจห้อง กุญแจรถได้
ด้านนี้เป็นโซฟาและมุมทานอาหาร จะเห็นว่าระยะห่างระหว่างสองส่วนมีเยอะพอสมควร ถ้าย้ายโต๊ะทานอาหารไปไว้ข้างทีวี ก็สามารถวางโซฟาตัวใหญ่กว่านี้ หรือจะวางเป็นโต๊ะทำงานแทนก็ได้
โซฟาสำหรับ 2 ที่นั่ง ด้านหน้าวางโต๊ะกาแฟก็ยังเหลือพื้นที่ใช้สอยอีกพอสมควร ดังนั้นถ้าจะวางโซฟาชุดหรือแบบ L-shape ก็ทำได้
ถัดไปเป็นห้องนอน ประตูห้องเป็นประตูกระจกบานเลื่อน กรอบอลูมิเนียม กระจกใสทำให้มีแสงผ่านจากระเบียงมายังห้องนั่งเล่นได้ แต่ก็ยังกั้นให้มีความเป็นส่วนตัว
พื้นห้องนอนเป็น Engineered Wood แบบเดียวกัน
ภายในห้องนอนจะกว้างและสว่าง เพราะอยู่ติดกับระเบียงทำให้มีแสงธรรมชาติส่องเข้ามาในห้อง
เตียงสามารถวางขนาด 5-6 ฟุตได้ พื้นที่ข้างเตียงถ้าวางขนาด 5 ฟุตตแบบนี้ก็จะเหลือพื้นที่ด้านข้างเยอะ
หัวเตียงทั้งสองข้างสามารถวางโต๊ะหัวเตียงได้และยังมีพื้นที่เหลือ ดังนั้นถ้าวางเตียง 6 ฟุตที่ใหญ่กว่านี้ก็ยังมีพื้นที่ด้านข้างเหลือให้เดินผ่านใช้งานสะดวก
ประตูห้องนอนถ้าติดตั้งม่านก็จะเพิ่มความเป็นส่วนตัวได้ ถ้ามีแขกมาก็สามารถปิดม่านเพื่อบังไม่ให้เห็นห้องนอนได้ค่ะ
ปลายเตียงเป็นตำแหน่งของตู้เสื้อผ้า, โต๊ะเครื่องแป้งและโต๊ะทำงาน หน้าบานตู้เสื้อผ้าเป็นกระจกเงาสะดวกต่อการแต่งตัว ถัดไปเป็นโต๊ะเครื่องแป้งวางของได้เล็กน้อยและมีตู้เก็บของที่หน้าบานเป็นกระจกเอาไว้แต่งหน้าได้ ถัดไปเป็นมุมโต๊ะทำงานค่ะ
ระยะห่างระหว่างปลายเตียงกับโต๊ะมีเหลือให้เดินผ่านได้สะดวก
ภายในตู้เสื้อผ้าก็แบ่งเป็นสัดส่วน มีชั้นแขวนและลิ้นชักเก็บของ
ด้านข้างนี้เป็นระเบียง ประตูเป็นประตูกระจกบานเลื่อน ด้านนี้เป็นกระจกทั้งหมดทำให้ห้องดูสว่างและโปร่ง
พื้นระเบียงเป็นกระเบื้องเซรามิค พื้นลดระดับลงไปเล็กน้อยจากพื้นห้องนอน
ภายนอกวางเครื่องซักผ้า ด้านบนแขวนคอมเพลสเซอร์แอร์ได้ มีระแนงช่วยบังเพื่อความสวยงาม
ราคา (เม.ย.2561)
เนื่องจากโครงการนี้ได้ SOLD OUT หมดนานแล้ว ดังนั้นห้องที่ปล่อยขายหลังจากนี้จึงจะเป็นลักษณะ Resales หรือปล่อยเช่าค่ะ ซึ่งราคาจะขึ้นอยู่กับสภาพภายในห้อง และ การตกแต่งของเจ้าของห้อง หรือผู้เช่าเดิม หากผู้สนใจสามารถติดต่อเอเจนซี่ หรือเจ้าของห้อง เพื่อตกลงราคาซื้อขายกันต่อไปได้ค่ะ ซึ่งราคาที่เรานำเสนอด้านล่างนั้น เป็นเพียงการเก็บข้อมูลของผู้เขียนเท่านั้นนะคะ
บทสรุปโครงการ
ทำเลที่ตั้งโครงการ – โครงการ Abstracts พหลโยธิน พาร์ค ตั้งอยู่บนถนนพหลโยธิน ซึ่งเป็นถนนหลักเส้นใหญ่ที่มีการจราจรคึกคัก ไม่ไกลจากแยกรัชโยธินและห้าแยกลาดพร้าว จึงเป็นเส้นที่เชื่อมต่อกับถนนหลายสายเดินทางได้สะดวก เดินทางด้วยรถสาธารณะก็สะดวกเพราะใกล้ MRT พหลโยธินอีกทั้งในอนาคตจะมีรถไฟฟ้าสายสีเขียววิ่งผ่าน จึงทำให้การเดินทางสะดวกยิ่งขึ้น ไม่ไกลจากสถานที่ราชการ สถานศึกษาและห้างสรรพสินค้าใหญ่ๆหลายแห่งทั้งโลตัสลาดพร้าว, เซ็นทรัลลาดพร้าวและยูเนี่ยนมอล
ความอุดมสมบูรณ์ – ที่ตั้งโครงการอยู่ในย่านพักอาศัย ดังนั้นสองข้างทางจึงมีร้านค้าและร้านอาหารมากมาย และที่สะดวกที่สุดคือหน้าโครงการเป็นที่ตั้งของโลตัส ลาดพร้าวอยูในระยะเดินจากโครงการไปได้ ในนั้นก็จะมีทั้งของใช้ และร้านค้า ร้านอาหารต่างๆ ไม่จำเป็นต้องขับรถไปซื้อของเลยค่ะ หรือถ้าเบื่อๆอยากเดินห้างที่มีร้านค้าเยอะกว่าก็ไปยังเซ็นทรัลลาดพร้าวได้ไม่ยาก อยู่ในระยะที่เดินไปได้ไม่เหนื่อย และตรงข้ามเซ็นทรัลลาดพร้าวก็จะเป็นยูเนี่ยนมอล ซึ่งก็มีร้านค้าและร้านอาหารมากมาย หรือวันหยุดอยากไปเที่ยวตลาดนัดจตุจักรก็ไม่ไกลจากโครงการเลย
ถ้าไปแยกรัชโยธินจะมีทั้ง เมเจอร์รัชโยธิน และAvenue รัชโยธิน หรือถ้าอยากไปตลาดสดก็ตรงไปอีกหน่อยจะมีตลาดบางเขนและตลาดอมรพันธ์ หรือถ้าอยากไปตลาดนัดก็มีทั้งตลาดนัดจตุจักรตรงถนนพหลโยธิน และตลาดนัดหัวมุมตรงถนนเกษตร-นวมินทร์
อีกทั้งถนนพหลโยธินจะเป็นเส้นที่มีอาคารสำนักงานและศูนย์ราชการทั้งกรมป่าไม้, กองพันทหารราบที่ 2 และสนง.เขตบางเขน สำหรับสถานศึกษาก็มีทุกระดับทั้งประถมไปจนถึงระดับอุดมศึกษา คือมีโรงเรียนหอวัง, โรงเรียนบางบัว, ม.ศรีปทุม, ม.ราชภัฎพระนคร, ม.จันทรเกษม และม.เกษตรศาสตร์ เรียกได้ว่าเป็นย่านที่คึกคักและมีครบทุกแบบ
การเดินทางด้วยรถยนต์ส่วนตัว – สำหรับคนขับรถ ถือว่าสะดวกเพราะอยู่บนถนนพหลโยธิน เป็นถนนที่ปัจจุบันอาจมีบางช่วงเวลาที่ติดขัดเพราะกำลังก่อสร้างทางรถไฟฟ้าสายสีเขียว แต่เป็นถนนเส้นยาว และไม่ไกลจากแยกรัชโยธิน, ห้าแยกลาดพร้าวจึงเชื่อมกับถนนหลักอื่นๆได้อีกหลายสาย ตรงไปยังรามอินทรา, สายไหม และไปยังตัวเมืองกรุงเทพ เขตราชเทวี, พญาไท, ถนนพระราม 1 ได้
ถ้าไปยังแยกรัชโยธินตรงเข้าถนนรัชดาภิเษก มุ่งหน้าไปยังพระราม 9, สุทธิสาร, รัชดาและห้วยขวางได้ หรือจะตรงไปยังนนทบุรีก็วิ่งเข้าประชาชื่น, วงศ์สว่าง และไปยังติวานนท์ได้เช่นกัน ถ้าไปยังแยกเกษตรก็ไปถนนเกษตร-นวมินทร์และงามวงศ์วาน วิ่งเข้าจังหวัดนนทบุรีได้ค่ะ อีกทั้งถนนเหล่านี้ก็จะมีถนนซอยที่ลัดเลาะและเชื่อมต่อกัน ดังนั้นถ้ารู้เส้นทางก็ช่วยเลี่ยงรถติดบนเส้นพหลโยธินได้
หรือถ้าไปยังห้าแยกลาดพร้าวเป็นจุดที่เชื่อมกับถนนหลายสายเช่นกัน ถนนลาดพร้าวเส้นนี้เชื่อมกับถนนโชคชัย 4 , ถนนรัชดาภิเษกวิ่งตรงไปเลียบด่วนรามอินทรา-อาจณรงค์ อีกเส้นทางคือเชื่อมกับถนนวิภาวดีรังสิตวิ่งตรงเข้าตัวเมืองกรุงเทพได้ ส่วนอีกเส้นคือตรงจากถนนพหลโยธินวิ่งผ่านห้าแยกลาดพร้าวมาเรื่อยๆก็เข้าเขตพญาไท ไปยังตัวเมืองกรุงเทพได้เช่นกัน อีกทั้งที่ตั้งโครงการยังไม่ไกลจากทางด่วน, โทลเวย์ดอนเมือง ดังนั้นทำให้สะดวกต่อการเดินทางทั้งในตัวเมืองกรุงเทพฯและรอบนอก
การเดินทางด้วยรถสาธารณะ –การเดินทางโดยไม่ใช้รถ ถือว่าสะดวก หน้าโครงการมีรถประจำทางวิ่งผ่านหลายสาย แท็กซี่ก็เรียกได้ไม่ยาก ในปัจจุบันรถไฟฟ้าที่ใกล้ที่สุดคือรถไฟฟ้าสายสีน้ำเงิน สถานีพหลโยธินและในอนาคตก็จะมีรถไฟฟ้าสายสีเขียวส่วนต่อขยายวิ่งผ่านหน้าโครงการเลยค่ะ
การออกแบบโครงการและวัสดุ – การออกแบบสำหรับภายนอกนั้นในเรื่องความสวยงามอาจขอข้ามนะคะ เพราะความชอบไม่เหมือนกัน พื้นที่ภายในโครงการเป็นกลุ่มอาคาร 3 อาคารและอาคารจอดรถ 1 อาคาร รอบด้านไม่มีอาคารสูงบังวิว ปัจจุบันอาคาร A สร้างเสร็จพร้อมอยู่และมีอาคารจอดรถพร้อมใช้งานแล้ว
การออกแบบฟังก์ชั่นภายในถือว่าครบครัน ขนาดห้องเป็นห้องหน้ากว้างทำให้การจัดวางเฟอร์นิเจอร์วางได้ลงตัว ห้องดูกว้างและโปร่งเนื่องจากมีระเบียงห้องที่ประตูเป็นประตูกระจกทำให้แสงธรรมชาติส่องเข้ามาในห้องได้ ห้องนั่งเล่นกว้างแม้จะเป็นห้องแบบ 1 ห้องนอน ห้องนั่งเล่นก็สามารถรองรับแขก 5-6 คนได้สบาย
วัสดุ – วัสดุถือว่าให้มาแบบมาตรฐาน ห้องเป็นแบบ Resale ดังนั้นแต่ละห้องจะได้เฟอร์นิเจอร์แตกต่างกันออกไป พื้นห้องเป็น Engineered Wood, พื้นห้องน้ำและห้องครัวเป็นแกรนิตโต้ขนาด 60×60 ซม., ระเบียงเป็นกระเบื้องเซรามิค,ไฟดาวน์ไลท์, กรอบประตูระเบียงและประตูห้องนอนเป็นกรอบอลูมิเนียม, กระจกเขียวตัดแสงและกระจกใส
สิ่งอำนวยความสะดวก – ให้มาแบบจัดเต็มทีเดียว หน้าโครงการตรงประตูทางเข้า-ออกติดตั้ง CCTV และมีระบบรักษาความปลอดภัยตลอด 24 ชม. สำหรับอาคาร A ภายในอาคารจะมีพื้นที่นั่งเล่น Lobby ขนาดใหญ่, ฟิตเนส, ห้องสมุด, ห้องสำหรับเด็ก, ห้องกิจกรรม, ห้องอเนกประสงค์, สระว่ายน้ำ 2 แห่งและพื้นที่สวน ในร่มหลายจุด และในโครงการเองนั้นก็มีสวนส่วนกลางขนาดใหญ่ถึง 8 ไร่ มีพื้นที่ในสวนสำหรับเดิน,วิ่งออกกำลังกาย นั่งเล่นและมุมเด็กเล่น อีกทั้งสวนก็มีต้นไม้ใหญ่เยอะมากทีเดียว ทำให้โครงการดูร่มรื่น และพื้นที่จอดรถ 50% สำหรับคนที่เดินทางด้วยรถไฟฟ้าก็จะสะดวกเพราะมีโปรโมชั่นรถไฟฟ้า BTS ฟรี 10 ปี โดยให้เดินทางได้ฟรี 25 สถานี ส่วนสถานีส่วนต่อขยายต้องเติมเงินในบัตรเอง
*Abstracts Citizen รับสิทธิ์โดยสารรถไฟฟ้า BTS ไม่จำกัดจำนวนเที่ยว ฟรี 10 ปี สำหรับ 25 สถานีที่กำหนด ได้แก่ หมอชิต สะพานควาย อารีย์ สนามเป้า อนุสาวรีย์ชัยสมรภูมิ พญาไท ราชเทวี สยาม ชิดลม เพลินจิต นานา อโศก พร้อมพงษ์ ทองหล่อ เอกมัย พระโขนง อ่อนนุช สนามกีฬาแห่งชาติ ราชดำริ ศาลาแดง ช่องนนทรี สุรศักดิ์ สะพานตากสิน กรุงธนบุรี วงเวียนใหญ่
คะแนน
| ทำเลที่ตั้งโครงการ | 8.0 | อยู่บนถนนพหลโยธิน เป็นย่านพักอาศัยไม่ไกลจากสถานศึกษา, โรงพยาบาล, สำนักงานและสถานที่ราชการ ไปยังร้านอาหาร ห้างสรรพสินค้าไม่ยาก ไม่ไกลรถไฟฟ้าสายสีเขียวและสายสีน้ำเงิน |
| การเดินทาง ใช้รถ | 7.5 | เดินทางสะดวกเชื่อมต่อออกไปได้หลายเส้นทางทั้งรัชดาภิเษก, เกษตร-นวมินทร์, เลียบด่วนรามอินทรา, ลาดพร้าว ไม่ไกลจากทางด่วน แต่รถติดเป็นบางช่วง |
| การเดินทาง ไม่ใช้รถ | 7.75 | หน้าโครงการมีรถโดยสารประจำทางวิ่งผ่านเป็นระยะ เรียก TAXI ได้ไม่ยาก ในอนาคตมีรถไฟฟ้าสายสีเขียว สถานีพหลโยธิน 24 (สามารถเพิ่มคะแนนได้เมื่อรถไฟฟ้าสร้างเสร็จ) |
| ห้องและวัสดุ | 7.75 | Fully Furnished เฟอร์นิเจอร์พร้อมเครื่องใช้ไฟฟ้า แปลนห้องแบ่งได้เป็นสัดส่วนลงตัว |
| สิ่งอำนวยความสะดวก | 8.5 | ด้านหน้าโครงการมี CCTV และมีระบบรักษาความปลอดภัยตลอด 24 ชม., Lobby, ฟิตเนส, สระว่ายน้ำ 2 แห่ง, พื้นที่สวนในร่มและสวนส่วนกลางขนาดใหญ่พื้นที่ประมาณ 8 ไร่ พร้อมบัตรรถไฟฟ้า |
| ความคุ้มค่ากับราคา | 8.0 | ราคาเริ่มต้นตอนนี้อยู่ที่ประมาณ 118,800 บาท/ ตร.ม. ทำเลใกล้รถไฟฟ้า, ไม่ไกลโรงเรียน, ห้างสรรพสินค้า สถานที่ราชการและตลาดสด |
| คะแนนรวมเฉลี่ย | 7.91 | ดี |
หากเพื่อนๆเห็นว่ารีวิวนี้มีประโยชน์ ช่วยกด Like เพื่อเป็นกำลังใจให้ทีมงาน ขอบคุณค่ะ
และมีความคิดเห็นหรือข้อมูลเพิ่มเติมเกี่ยวกับตัวโครงการ สามารถ Comment ได้ที่ด้านล่างของรีวิวค่ะ