
รีวิว คอนโด ทากะ เฮาส์ เอกมัย 12 Taka Haus Ekamai 12 ใกล้ BTS เอกมัย
สวัสดีผู้อ่านชาว HOMENAYOO ทุกคนค่ะ วันนี้ทีมงานจะขอมาอัพเดทโครงการใหม่ในซอยเอกมัย จาก แสนสิริ กับโครงการ “Taka Haus เอกมัย 12” โดยตัวโครงการจะตั้งอยู่ระหว่างเอกมัยซอย 12 และเอกมัยซอย 10 เดินทางสะดวกมีรถรับส่ง BTS เอกมัย และ BTS ทองหล่อ ความอุดมสมบูรณ์ในวงกว้างสูง และใกล้แหล่งอำนวยความสะดวกหลายแห่ง เช่น Big C เอกมัย, Major เอกมัย, Gateway เอกมัย เป็นต้น
ทากะ เฮาส์ เอกมัย 12 เป็นคอนโด Low Rise จำนวน 2 อาคาร สูง 7 และ 8 ชั้น บนที่ดินประมาณ 3 ไร่ เป็นโครงการที่พัฒนาร่วมกันของแสนสิริ และ TOKYO (โตคิว) เป็นบริษัทร่วมทุนในชื่อ Sansiri TK One Company Limited Concept โครงการคือ TAKA แปลว่าเหยี่ยว สื่อถึงความรักอิสระ และปราดเปรียว ห้องพักอาศัยมีทั้งหมด 269 ยูนิต มีห้องให้เลือกแบบ 1 ห้องนอน และ 2 ห้องนอน พื้นที่ใช้สอย 30 – 71.50 ตร.ม คาดว่าสร้างเสร็จพร้อมอยู่ปี 2562
สิ่งอำนวยความสะดวกภายในครบครัน มีจุดเด่นในเรื่องของพื้นที่ส่วนกลางที่ออกแบบมาได้น่าใช้งาน ใช้วัสดุและมีเทคโนโลยีใหม่ๆมาให้ใช้งานหลากหลาย อาทิ Lobby, Library, Co- Kitchen Space, Entertainment Room, Game Room, Fitness, Tree House, สระว่ายน้ำระบบเกลือ ประกอบด้วย Endless Jet Pool (สระว่ายน้ำทวนกระแส) และ Under Water Trade Mill (ลู่วิ่งใต้น้ำ), Laundry Room, Electric Vehicle Charging Station นอกจากนั้นยังมี Sansiri Home Service Application, Smart Locker, Access Card Control, กล้องวงจรปิดภายในโครงการ ที่จอดรถ 136 คัน หรือ 50%(ไม่รวมจอดซ้อนคัน) และ รปภ.ตลอด 24 ชั่วโมงในราคาเริ่มต้น 6.99 ล้านบาท

| ชื่อโครงการ | ทากะ เฮาส์ เอกมัย 12 Taka Haus Ekamai 12 |
| เจ้าของโครงการ | แสนสิริ / Sansiri |
| เนื้อที่ทั้งหมด | ประมาณ 3 ไร่ |
| จำนวนตึก | 2 อาคาร |
| จำนวนชั้น | 7 ชั้น 1 อาคาร / 8 ชั้น 1 อาคาร |
| จำนวนห้อง | 269 ยูนิต |
| ลักษณะห้องและขนาดห้อง |
|
| ที่จอดรถทั้งหมด | 136 คัน หรือ 50% (ไม่รวมจอดซ้อนคัน) |
| จำนวนลิฟท์ | อาคารละ 2 ตัว |
| โซน | เอกมัย |
| ขนส่งสาธารณะ | รถไฟฟ้า BTS เอกมัย, BTS ทองหล่อ |
| รถโดยสารที่ผ่าน | n/a |
| ที่ตั้ง | ซอยเอกมัย 12 ถนนสุขุมวิท 63 แขวงคลองตันเหนือ เขตวัฒนา กทม. |
| กำหนดการ | n/a |
| ปีที่สร้างเสร็จ | พ.ศ.2562 |
| ราคา | เริ่มต้น 6.99 ล้านบาท |
| ราคาเฉลี่ยต่อ ตร.ม | ประมาณ 170,000 บาท/ตร.ม. |
| ค่าส่วนกลางและกองทุน |
|
| สถานที่สำคัญใกล้เคียง |
|
| สิ่งอำนวยความสะดวก |
|
| จุดเด่นของโครงการ | “Taka Haus เอกมัย 12″ คอนโดใหม่ ใจกลางเมือง ใกล้รถไฟฟ้า BTS เอกมัย และ รร.นานาชาติเอกมัย |
ที่ตั้งโครงการ
ซอยเอกมัย 12 ถนนสุขุมวิท 63 แขวงคลองตันเหนือ เขตวัฒนา กทม.
พิกัด : 13.729239, 100.591716
อย่างที่รู้จักกันดีว่าทำเลสุขุมวิทเป็นทำเลที่ฮอตมาแต่ไหนแต่ไร โดยเฉพาะสุขุมวิทตอนกลางที่เรียกว่าเป็น Prime สุขุมวิท คือช่วงตั้งแต่แยกอโศกจนถึงเอกมัย โดยโซนเอกมัยนี้ถือเป็นโซนที่รองรับการขยายตัวมาจากทางทองหล่อและพร้อมพงษ์ โดยเอกมัยจะมีความสะดวกต่างๆพอกันแต่จะมีความสงบที่มากกว่า สำหรับสภาพแวดล้อมโดยรวมของซอยเอกมัย คึกคัก อุดมไปด้วย คอนโดหรูๆ อาคาร Residential, Community Mall และร้านอาหารที่คึกคักทั้งกลางวันและกลางคืน, มีปั๊มน้ำมัน, อู่ซ่อมรถ มีพร้อมสรรพทุกสิ่งอย่างในตัวซอยเลยทีเดียว
โครงการ Taka Haus เอกมัย 12 ตั้งอยู่ระหว่างซอยเอกมัย 12 และซอยเอกมัย 10 สภาพแวดล้อมรอบๆโครงการโดยรวมค่อนข้างสงบเงียบ ถนนภายในซอยเอกมัย 12 เป็นถนนกว้าง 2 เลน ช่วงต้นซอยจะมีคอนโด High Rise อยู่บ้าง ส่วนภายในซอยจะเป็นบ้านเดี่ยวหลังใหญ่ๆ มีพื้นที่เยอะ, Service Apartment, โรงแรมและร้านอาหารบรรยากาศดีๆ
สำหรับการเดินทางของโครงการนี้สะดวกทั้งการเดินทางด้วยรถยนต์และรถสาธารณะค่ะ
โดยคนไม่ใช้รถยนต์ส่วนตัว จากตัวโครงการจะมีพี่วินและ Taxi วิ่งผ่านไปมาพอสมควร สามารถนั่งออกมาที่ปากซอยเอกมัยเพื่อใช้ BTS เอกมัย ( ใช้เส้นทระยะทางจากโครงการถึง BTS ประมาณ 1.7 กม. ) ซึ่งไม่ต้องห่วงเพราะทางโครงการมี Shuttle Bus รับส่งทั้ง BTS เอกมัยและ BTS ทองหล่อเลยค่ะ เดินทางได้สะดวกเพราะอยู่ใจกลางเมืองในแหล่งห้างสรรพสินค้าอยู่แล้ว อยากไปช็อปปิ้ง สามารถขึ้นรถไฟฟ้าไปได้ทั้ง Emporium, Emquatier, Terminal 21 ก็ไม่ไกล นั่งไป 2 -3 สถานีก็ถึง สะดวกค่ะ นอกจากนั้นจะมีป้ายรถเมล์หน้าปากซอยเอกมัย 12 ห่างจากโครงการไปประมาณ 650 เมตร และจะมีรถเมล์สาย 23, 23ส, 72, 545ร วิ่งผ่านค่ะ
สำหรับการเดินทางด้วยรถยนต์ส่วนตัว ก็สะดวกค่ะ โดยจากซอยเอกมัย 12 จะมีทางลัดที่สามารถเชื่อมได้หลายเส้นทาง คือจากซอยเอกมัย 12 เชื่อมโดยตรงกับซอย สุขุมวิท 71 ใช้วิ่งไปออกแยกคลองตันและออกเพชรบุรีเพื่อวิ่งไปพัฒนาการได้ จะช่วยลดเวลารถติดบนเส้นเอกมัยได้ นอกจากนั้นก็จะเชื่อมไปซอยเอกมัย 10 และซอยชัยพฤกษ์ ที่ใช้ลัดมาออกเส้นสุขุมวิทได้ แต่รถอาจจะติดมากหน่อย โดยส่วนการเข้าถึงตัวโครงการสามารถใช้ได้หลากหลายเส้นทางเลยค่ะ เนื่องจากตัวซอยเอกมัยนี้จะเชื่อมต่ออยู่กับถนนหลักคือถนนสุขุมวิทและถนนเพชรบุรี
นอกจากนั้นยังมีทางลัดเป็นซอยย่อยเชื่อมไปทองหล่อและซอยปรีดีพนมยงค์ได้ โดยความเหมือนกันของซอยเอกมัย ทองหล่อ และซอยปรีดีพนมยงค์คือเป็นซอยที่เชื่อมถนนสุขุมวิท เเละ ถนนเพชรบุรีตัดใหม่เข้าด้วยกัน ทางลัดต่างๆจึงสามารถใช้หลบเลี่ยงรถติดในบางจุดของถนนหลักได้ค่ะ และนอกจากนั้นยังใกล้จุดขึ้นลงทางด่วนรามอินทรา – อาจณรงค์และทางด่วนศรีรัชทั้งขาเข้าและออกเมืองอีกด้วย
พอมองให้กว้างออกมาอีกหน่อย จะเห็นว่าถัดจากสุขุมวิทก็จะสามารถเชื่อมต่อกับถนนพระราม 4 และจากเพชรบุรีก็จะสามารถเชื่อมต่อกับถนนพระราม 9 ได้ ซึ่งตรงนี้มีทางด่วนเอกมัย-รามอินทราด้วย ถนนที่ล้อมรอบเอกมัยพวกนี้รถติดทั้งนั้นค่ะ แต่ถ้ารู้จักใช้ทางลัดต่างๆที่อยู่รอบๆ เราจะพบว่าตรงนี้เดินทางด้วยรถยนต์ได้สะดวกทีเดียว
จุดขึ้นทางด่วนที่ใกล้โครงการที่สุดจะเป็นจุดขึ้นทางด่วนรามอินทรา – อาจณรงค์ฝั่งวิ่งขึ้นเหนือมีระยะทางจากโครงการประมาณ 2.9 กม. ใช้เวลาเดินทางประมาณ 8-10 นาที
โดยจากจุดขึ้นทางด่วนรามอินทรา – อาจณรงค์ภาพบนจะสามารถใช้วิ่งเส้นรามอินทรา – อาจณรงค์ ขึ้นไปทางรังสิต, อยุธยา และทางด่วนศรีรัชทั้งฝั่งออกชลบุรี และเข้าอนุสาวรีย์ชัยสมรภูมิค่ะ
สำหรับจุดขึ้นทางด่วนเฉลิมมหานครฝั่งมุ่งหน้าชลบุรี โดยจะมีระยะทางจากโครงการประมาณ 6.8 กม. ใช้เวลาเดินทางประมาณ 15 – 25 นาที
ความอุดมสมบูรณ์ ของโครงการนี้ในระยะเดินจะมีพอสมควร ส่วนใหญ่จะเป็นร้านคาเฟ่และร้านอาหารที่มีราคาแพงหน่อยค่ะ โดยจะมีร้านคาเฟ่ เช่น ร้าน Coffee Bean by Dao , Beary Tales Cafe, Nikko Cafe ร้านอาหารบรรยากาศดีใกล้ๆ มี The Accidental Butcher, Vanilla Garden และ Featherstone Bistro Cafe & Lifestyle Shop นอกจากนั้นก็จะมีร้านก๋วยเตี๋ยวแบบร้านข้างทางอยู่ใกล้โครงการ (ตรงข้ามร้าน Vanilla Garden) ส่วนร้านสะดวกซื้อใกล้ๆจะไม่มีเลย ต้องออกมาหน้าปากซอยเอกมัย 12 จะมี 7-11 ค่ะ
ส่วนความอุดมสมบูรณ์ในวงกว้างเรียกได้ว่าสูงเลยทีเดียวค่ะ โดยส่วนใหญ่จะอยู่บนซอยเอกมัยเส้นหลัก จะมีร้านอาหารและร้านสะดวกซื้อมากมายกระจายไปทั่วบริเวณ เช่น Park Lane เอกมัย ด้านในมี True Coffee, ร้านอาหารญี่ปุ่น, Max Value ส่วนซอยที่มีร้านอาหารเยอะๆ ขึ้นชื่อก็จะมีซอยแจ่มจันทร์ และซอยทองหล่อ 10 ภายในซอยมีร้านอาหารชิคๆเพียบ
รวมไปถึงโซนใกล้เคียงคือซอยทองหล่อที่มีความอุดมสมบูรณ์เหลือเฟือ ทั้งอาหารไทยและต่างชาติ ของความของหวาน ร้านกลางวันหรือร้านแฮงก์เอาต์กลางคืนมีหมด ที่สำคัญคือมีทางลัดเชื่อมจากตัวซอยเอกมัยออกไปได้สะดวกอีกด้วยค่ะ
ส่วนตลาดที่ใกล้โครงการจะอยู่ช่วงท้ายๆซอยฝั่งถนนเพชรบุรี คือตลาดสดเอกมัย ที่จะมีผัก, ผลไม้, อาหารสด, ดอกไม้และข้าวของเครื่องใช้, อาหารพร้อมทานทั้งกับข้าวและร้านก๋วยเตี๋ยว
และห้างใหญ่ที่ใกล้โครงการจะมี Big C เอกมัย, Major เอกมัย และ Gateway เอกมัยค่ะ
การเดินทาง
การเดินทางวันนี้เริ่มจากถนนสุขุมวิทมุ่งหน้าพระโขนง บริเวณแยกอโศก ขับตามแนว BTS มาจนถึงซอยสุขุมวิท 63 หรือซอยเอกมัย แล้วเลี้ยวซ้ายเข้าซอย ขับตรงไปจนถึงซอยเอกมัย 12 เลี้ยวขวา ตรงไปอีกประมาณ 600 เลี้ยวขวาเข้าซอยเชื่อมเอกมัย 10 เข้าซอยไปประมาณ 80 เมตร จะเห็นที่ตั้งโครงการอยูทางซ้ายมือค่ะ
สรุปการเดินทาง แยกอโศก > ถนนสุขุมวิท > ซอยสุขุมวิท 63 (เอกมัย) > ซอยเอกมัย 12 > ซอยเชื่อมเอกมัย 12 – 10 > Taka Haus เอกมัย 12
เริ่มจากแยกอโศก บนถนนสุขุมวิทฝั่งมุ่งหน้าพระโขนง จากตรงนี้ถ้าเราเลี้ยวซ้ายจะสามารถตรงไปออกถนนเพชรบุรีได้ ซึ่งเราสามารถใช้เส้นเพชรบุรีเดินทางไปโครงการได้เช่นกัน แต่การเดินทางวันนี้เราจะยึดเส้นสุขุมวิทจึงต้องขับตรงผ่านแยกไปค่ะ
ผ่านห้าง Jasmin City ทางซ้ายมือ
และผ่าน Villa Market
ถัดมาจะถึงสถานี BTS พร้อมพงษ์ ซ้ายมือเป็น Emquartier ขวามือเป็น Emporium
ขับตรงมาเรื่อยๆ ผ่าน Miracle Mall
ถัดมาผ่าน Rain Hill เป็น Community Mall รวมร้านอาหารและร้าน Shopping เสื้อผ้าหลากหลายร้าน
ตรงมาอีกหน่อยถึง BTS ทองหล่อ
เลย BTS มาหน่อยจะเห็นซอยสุขุมวิท 55 หรือซอยทองหล่อทางซ้ายมือ ซึ่งซอยนี้จะเป็นแหล่งรวมร้านอาหารนานาชาติ ศูนย์การค้าและ Community Mall มากมาย และเป็นซอยที่เชื่อมต่อกับซอยเอกมัยที่ตัวโครงการตั้งอยู่อีกด้วยค่ะ
ผ่านซอยทองหล่อมาเราจะเห็นซอยเศรษฐบุตรทางซ้ายมือ หน้าซอยมี Major เอกมัย
ตรงมาอีกหน่อยจะเห็น BTS เอกมัย และซอยสุขุมวิท 63 หรือซอยเอกมัยทางซ้าย เราก็เลี้ยวซ้ายเข้าซอยไปเลยค่ะ
เข้าซอยเอกมัยแล้วขับตรงต่อไปประมาณ 1.2 กม. จะถึงซอยเอกมัย 12 ทางขวามือ เลี้ยวเข้าซอยแล้วตรงไปอีกประมาณ 560 เมตร จะถึงซอยเชื่อมระหว่างซอย 12 และซอย 10 ทางขวามือ เลี้ยวเข้าซอยแล้วขับตรงต่อไปประมาณ 80 เมตร โครงการจะอยู่ทางขวามือค่ะ
เข้ามาในซอยเอกมัยลักษณะซอยจะเป็นถนน 2 เลน ขนาดมาตรฐาน หน้าปากซอยมีคิวพี่วินขนาดใหญ่คอยให้บริการสำหรับใครที่เดินทางมาด้วยรถไฟฟ้า BTS เอกมัย ก็สามารถมาใช้บริการพี่วินเพื่อไปยังตัวโครงการได้ค่ะ
ภายในซอยเอกมัยก็จะเต็มไปด้วยร้านอาหารและอาคาร Residence มากมาย น้องๆซอยทองหล่อเลยค่ะ
ผ่าน Park Lane เป็น Community Mall อีกแห่งในซอยเอกมัย
เข้าซอยเอกมัยมาประมาณ 800 เมตร จะเห็น Big C เอกมัยทางขวามือ เป็น Hyper Market ใหญ่ที่ใกล้โครงการที่สุดค่ะ
ถัดมาหน่อยมี Healty Land สำหรับนวดผ่อนคลาย
จากปากซอยเอกมัยมาประมาณ 1.1 กม. จะถึงซอยเอกมัย 12 จุดสังเกตคือ 7 – 11 หน้าปากซอยทางซ้ายมือ
เข้าซอยเอกมัย 12 มาแล้ว จะเป็นซอยขนาดใหญ่ กว้าง 4 เลนช่วงต้นซอยจะมีคอนโด High Rise อยู่ 2 โครงการ
ถัดมาช่วงกลางๆซอยส่นใหญ่จะเป็นบ้านเดี่ยวหลังใหญ่ๆ Sevice Apartment และทาวน์โฮมติดถนนบรรยากาศสงบ เรียบร้อยผิดกับบนซอยเอกมัยหลักเลยค่ะ
สังเกตร้าน Coffee Bean By Dao ทางซ้าย และบ้านสีฟ้าทางขวา จะถึงซอยเชื่อมไปเอกมัยซอย 10
เราเลี้ยวขวาเพื่อเข้าซอยเช่ือมเข้าเอกมัย 10
เข้ามาภายในซอยจะเป็นซอยเล็กๆ กว้าง 2 เลน ไม่มีฟุตบาท
เข้าซอยมาประมาณ 80 เมตร จะเห็นที่ตั้งโครงการ Taka Haus เอกมัย 12 ทางซ้ายมือค่ะ
ถนนและแยกที่สำคัญรอบโครงการ
สถานที่สำคัญรอบๆโครงการ
รอบๆโครงการ
พื้นที่ติดโครงการ
มาดูบรรยากาศรอบๆโครงการของจริงกันบ้างค่ะ เริ่มจากที่ดินตัวโครงการตอนนี้ตั้งป้ายล้อมที่ดินเอาไว้เรียบร้อย
ด้านหน้าโครงการติดกับ Thea Service Apartment สูง 8 ชั้น
ติดกับ Thea ทางฝั่งขวามือเป็นบ้านเดี่ยวสูง 3 ชั้น
ติดกับโครงการทางฝั่งซ้ายมือเป็นร้าน The Accidental Butcher ส่วนถนนซอยที่เห็นจะเชื่อมออกไปทางเอกมัยซอย 10 ค่ะ
ติดกับโครงการทางฝั่งขวามือเป็นบริษัท Rentokil Initial บริษัทกำจัดแมลง
ออกจากซอยย่อยมาบนถนนซอยเอกมัย 12 เส้นหลัก ฝั่งตรงข้ามจะเป็นร้านอาหาร Vanilla Garden
ติดกับร้าน Vanilla Garden เป็นแมนชั่น เลอ ชาโตว สูงประมาณ 20 ชั้น
หันมาดูทางฝั่งซ้ายมือเป็นคอนโด Casa Viva สูง 30 ชั้น ชั้นล่างมี ร้าน Coffee Bean by Dao
บรรยากาศโดยรวมในซอยเอกมัย 12 สะอาด สงบค่ะ
มีร้าน Cafe และร้านอาหารภายในซอยหลายร้าน (เรียงจากภาพซ้ายไปขวาจะมีร้านชื่อ Beary Tales, ร้านอาหารญี่ปุ่น, 24 Owls Cafe & Bistro, Nikko Cafe เป็นต้นค่ะ )
ส่วนสภาพแวดล้อมโดยรวมกลางๆซอยจะเป็นบ้านเดี่ยวหลังใหญ่ ที่ดินเยอะ
ช่วงใกล้ๆต้นซอยจะเริ่มมีฟุตบาทให้เดินสะดวกแล้วค่ะ
บริเวณต้นซอยเอกมัย 12 จะมีคอนโด M thonglor 10 และ Ceil by แสนสิริ เป็นคอนโด High Rise ทั้ง 2 โครงการ
ฝั่งซ้ายมือมีคิวพี่วินให้ใช้บริการ ที่เราสามารถขอเบอร์เพื่อเรียกให้เข้าไปรับที่โครงการได้หรือรอหน้าโครงการก็มีพี่วินวิ่งผ่านไปมาเป็นประจำอยู่แล้วค่ะ
อัตราค่าโดยสารจากต้นซอยเอกมัย 12 ไป BTS เอกมัย ราคา 20 บาท ถ้ามาจากตัวโครงการก็อาจจะมีราคาเพิ่มขึ้นมาอีกนิดหน่อยค่ะ
มาถึงปากซอยเอกมัย 12 จะเจอสี่แยกที่เชื่อมกับถนนเอกมัยเส้นหลักและซอยทองหล่อ 11 ค่ะ
สำหรับ Sale Office ของโครงการจะตั้งอยู่ที่ CEIL Condo ชั้นล่างนะคะ
การตกแต่งด้านหน้าดัดแปลงมาจากงานดีไซน์ตัว Facade ของโครงการ
เข้ามาภายใน Sale Office จะเจอกับโถงต้อนรับ
ฝั่งซ้ายมือมีเคาน์เตอร์เจ้าหน้าที่คอยให้ข้อมูล
ห้องโถงด้านในจะเป็นโถงฝ้าเพดานสูง มีที่นั่งรับรองหลายชุดค่ะ
ฝั่งขวามือมี Model และห้องตัวอย่าง
ตัวโครงการ
โครงการ Taka Haus เอกมัย 12 เป็นโครงการคอนโด Low Rise 2 อาคาร สูง 7 ชั้น + ชั้นใต้ดิน 1 อาคาร และ 8 ชั้น 1 อาคาร จำนวนห้องพักอาศัย 269 ยูนิต เป็นโครงการที่พัฒนาร่วมกันของแสนสิริ และ TOKYO (โตคิว) เป็นบริษัทร่วมทุนในชื่อ Sansiri TK One Company Limited โดย กลุ่มแสนสิริจะถือหุ้นในสัดส่วน 70% และ กลุ่มโตคิวฯ จะถือหุ้นในสัดส่วน 29% ค่ะ
ตัวโครงการตั้งอยู่ระหว่างซอยเอกมัย 10 และ 12 งานออกแบบมาจากคำว่า TAKA ในภาษาญี่ปุ่น ที่แปลว่าเหยี่ยว การออกแบบจึงใช้ Concept รังเหยี่ยว ตัวอาคารสีขาว ล้อมด้วย Facade สีส้มที่สามารถเลื่อนปรับเปลี่ยนได้ จุดเด่นคือส่วนกลางที่ออกแบบมาให้อย่างดี และสวยงามน่าใช้งานค่ะ
ภายในโครงการจะแยกเป็น 2 อาคารคือ Building A และ Building B โดย Building A จะมี 7 ชั้น + ชั้นใต้ดิน 1 ชั้น Building B เป็นอาคารพักอาศัยล้วน สูง 8 ชั้น
ภาพรวมทางฝั่งทิศใต้ จะเป็นอาคาร A
ภาพรวมอาคารทางฝั่งทิศตะวันออก หรือด้านหลังโครงการ
ภาพรวมอาคารทางฝั่งทิศเหนือ จะเห็นอาคาร B และช่องทางเดินระหว่างตัวอาคาร
ซูมให้ดูช่องทางเดินจะสามารถ Take View สวนส่วนกลางได้ และสามารถระบายอากาศได้ดีอีกด้วย
สำหรับทางเข้าโครงการจะมีทางแยกรถและทางคนเดิน
เข้ามาด้านในจะเห็นส่วน Drop Off และ Facility หลัก ที่มีอาคารทั้ง 2 โอบล้อมไว้ ทำให้เกิดความเป็นส่วนตัว
ส่วนกลางที่เราเห็นชัดๆจากตัว Model จะเป็นส่วนสระว่ายน้ำด้านนอกและสวนหย่อม
มาดูที่แปลนอาคารกันต่อเลยค่ะ เริ่มจาก Master Plan จะเห็นว่าตัวโครงการตั้งอยู่ติดถนนในซอยที่เชื่อมซอยเอกมัย 10 และเอกมัย 12 มีทางเข้าออกโครงการทางเดียวติดถนนซอยหน้าโครงการ หน้าทางเข้าจะมี Guard House รักษาความปลอดภัย
ภายในโครงการจะแยกเป็น 2 อาคารคือ Building A และ Building B โดย Building A จะมี 7 ชั้น + ชั้นใต้ดิน 1 ชั้น ภายในอาคารที่ชั้น 1 จะประกอบด้วยส่วนกลางที่มาใช้ได้ทั้ง 2 อาคารคือ Library, Entertainment Room, Co – Kitchen, Tree House, Game Room, Laundry และสำนักงานนิติบุคคล ส่วน Building B เป็นอาคารพักอาศัยล้วน สูง 8 ชั้น ภายในจะมี Lobby และ Mail Room
ส่วนลิฟท์โดยสารจะมีอาคารละ 2 ตัว เป็นลิฟท์แบบล็อคชั้น คิดเป็นอัตราส่วนลิฟท์อาคาร A 45 : 1 อัตราส่วนลิฟท์อาคาร B 90 : 1 ใช้งานกันได้สะดวก เหลือๆ ไม่แออัดค่ะ
ระหว่างอาคารจะเป็นสวนและทางเดินในสวน ลักษณะการวางอาคารจะจัดล้อมส่วนกลางไว้ทำให้ได้พื้นที่ส่วนกลางร่วมกันที่มีขนาดใหญ่กว่าแยกแต่ละอาคาร
ถนนภายในโครงการจะเป็นถนนเส้นสั้นๆ วิ่งเชื่อมไปยังที่จอดรถที่อาคาร A ซึ่งจะมีที่จอดรถชั้นใต้ดิน 1 ชั้น จนถึงชั้น 4 รวมที่จอดรถในช่องจอด 136 คัน คิดเป็น 50% (ไม่รวมจอดซ้อนคัน) โดยระหว่างทางจะผ่าน EV Charger Station ติดกับทางเข้า และจุด Drop Off ที่จะมีทางเดินเชื่อมไปยังทางเข้าสู่ตัวอาคาร A และอาคาร B
ผังชั้นใต้ดินของอาคาร A จะเป็นที่จอดรถใต้ดินค่ะ
ภาพรวมของอาคาร A ที่ชั้น 1 และ 2 เราจะเห็นโพเดียมที่เป็นส่วนกลางหลักทั้งหมด ซึ่งการจัดส่วนกลางไว้ระหว่างอาคารแบบนี้จะทำให้เกิด Space ที่เป็นส่วนตัว ดูร่มรื่น และได้ความเชื่อมต่อของทั้ง 2 อาคาร
ภายในห้อง Entertainment Room เชื่อมต่อกับ Co – Kitchen บรรยากาศโปร่งโล่ง มุมมองเปิดกว้าง สามารถมองเห็นวิวสวนด้านนอกได้

บรรยากาศจำลองภายในสวนหย่อมระหว่างอาคาร มองย้อนไปทาง Tree House และห้องออกกำลังกายด้านใน
ผังโครงการชั้น 2 ที่อาคาร A เป็นส่วนของที่จอดรถ, Exercise Room และอาคาร B จะเป็นยูนิตพักอาศัยทั้งชั้น
ภายในห้องออกกำลังกายเป็นห้องขนาดไม่ใหญ่ มีมุมเปิดโล่งมองเห็นสวนกลาง งานตกแต่งใช้หินอ่อน Pallisandro Classico สีอ่อนซ่อนไฟ LED และพรมที่ใช้เป็นชนิดเดียวกันกับที่ใช้ในโครงการ 98 Wireless ด้วยค่ะ
บรรยากาศจำลองห้อง Game Room มีห้อง Bike Simulator เป็นจุดวางจักรยานพร้อมวิวเสมือนจริงจากจอภาพ เราสามารถเอาจักรยานส่วนตัวมาใช้ได้ และอีกจะมีโต๊ะปิงปองให้ ส่วนพื้นที่ตรงกลางสามารถปรับเปลี่ยนพื้นที่เป็น YOGA Area ได้ ซึ่งสามารถปรับเปลี่ยนฟังก์ชั่นโดยรวมได้ด้วยบานเลื่อนกระจกด้านใน
ผังโครงการชั้น 3 ที่อาคาร A จะมีส่วนกลางคือ Endless Pool, สวนหย่อม, ห้องแต่งตัว ส่วนพื้นที่ด้านในอาคารจะเป็นยูนิตพักอาศัยแล้วค่ะ และฝั่งอาคาร B จะเป็นยูนิตพักอาศัยทั้งชั้นเช่นกัน โดยจะมีการแบ่งโซนด้วยทางเดินตัดกลางอาคาร ซึ่งโซนด้านหลังถึงแม้จะเดินไกลกว่าหน่อยแต่จะมียูนิตน้อยกว่าโซนฝั่งโถงลิฟท์
บรรยากาศสระว่ายน้ำที่อาคาร A เป็นสระแบบ Endless Pool เป็นสระระบบเกลือ ขนาดประมาณ 5.85 x 16 เมตร มีนวัตกรรม Endless Jet Pool หรือ สระว่ายน้ำทวนกระแส และ Under Water Trade Mill หรือ ลู่วิ่งใต้น้ำ ที่เป็นนวัตกรรมช่วยให้สามารถออกกำลังกายในสระได้โดยที่สระไม่ต้องมีขนาดใหญ่มากก็ได้ และผู้สูงอายุยังสามารถมาใช้งานได้ เป็นการออกกำลังการที่ช่วยถนอมเข่าด้วยค่ะ
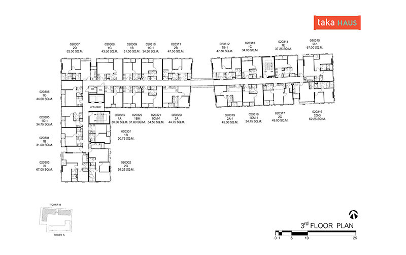
ผังโครงการชั้น 4 – 8 จะเป็นชั้นห้องพักอาศัยเหมือนกันหมด โดย
ผังโครงการชั้น 8 จะมีเฉพาะชั้นอยู่อาศัยที่อาคาร B
แปลนขยายสำหรับอาคาร A
แปลนขยายสำหรับอาคาร B
แบบห้อง
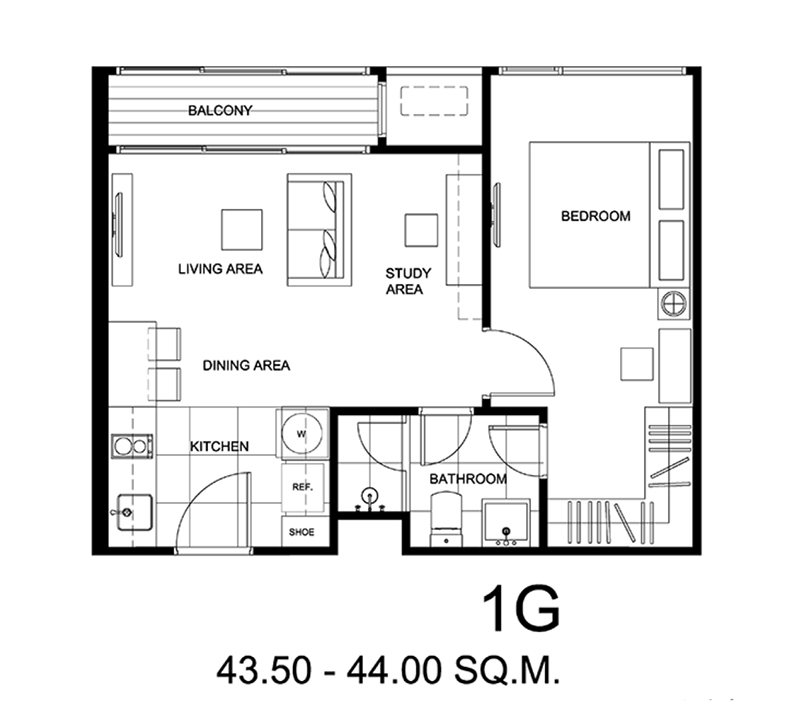
แบบห้องในโครงการจะมี 1 Bedroom และ 2 Bedroom พื้นที่ใช้สอย 30 – 71.50 ตร.ม ที่จะแบ่งย่อยออกได้อีกหลากหลายแบบ คือ
ห้องตัวอย่าง
ห้องในโครงการนี้จะขายแบบ Fully Fitted ในห้องมาตรฐานได้ Digital Door Lock YALE, ชุดครัวครบชุด เคาน์เตอร์และตู้เก็บของ, Hob&Hood, ชุดตู้เก็บรองเท้า, เครื่องปรับอากาศ 2 – 3 ตัว, Home Automation, และ Alexa (Echo Dot by Amazon) ความสูงฝ้าเพดาน (อาคาร A 2.60 เมตร และ อาคาร B 2.50 เมตร)
ห้องตัวอย่างที่ทางโครงการมีให้ชมจะมีทั้งหมด 2 แบบ เป็นห้องแบบ 1F 1 Bedroom ขนาด 41.50 ตร.ม. และแบบ 2I 2 ห้องนอน ขนาด 67 ตร.ม. ซึ่งวันนี้เราจะพาชมกันทั้ง 2 แบบเลยนะคะ
เริ่มกันที่ห้องแบบ 1F 1 Bedroom ขนาด 41.50 ตร.ม. แปลนห้องนี้จะเป็นห้อง 1 Bedroom ที่มีขนาดค่อนข้างกว้าง การจัดแบ่งพื้นที่ห้องแยกเป็นสัดส่วนชัดเจน โดยส่วนแรกเมื่อเข้าไปในห้องจะเป็นส่วนครัว ได้เป็นครัวแบบเปิด ถัดเข้าไปจะเป็นส่วน Living Area ขนาดกว้าง ที่สามารถแบ่งเป็นพื้นที่ส่วนทานอาหาร, Study Area และห้องนั่งเล่นได้ นอกจากนั้นยังมีฟังก์ชั่นพิเศษจากการออกแบบให้ตัวระเบียงเป็นแบบกึ่ง Indoor สามารถเปิดประตูระเบียงเพื่อเพิ่มพื้นที่การใช้งานส่วน Living Area ได้
ส่วนห้องน้ำและห้องนอนจะเชื่อมอยู่กับส่วน Living Area โดยห้องน้ำจะสามารถเข้าออกได้ 2 ทาง คือจาก้หองนั่งเล่นและห้องนอน ภายในแยกส่วนแห้งส่วนเปียกเรียบร้อย และห้องนอนก็จะมีส่วน Walk – in Closet ติดกับทางเข้าห้องน้ำค่ะ 
เรามาดูห้องตัวอย่างกันต่อเลยค่ะ เริ่มจากประตูห้องจะติดตั้ง Digital Door Lock ยี่ห้อ Yale
ส่วนแรกของห้องจะเป็นพื้นที่ห้องครัว ปูพื้นด้วยกระเบื้องแกรนิตโต้ช่วยให้ทำความสะอาดง่าย
ติดกับประตูทางเข้ามีชั้นวางรองเท้าและเก็บของ
พื้นที่ส่วนครัวจะติดตั้งเคาน์เตอร์และตู้ให้ 2 ฝั่ง
ชุดครัวชิ้นหลักฝั่ง-วามือเป็นเคาน์เตอร์และตู้ลอยตัวแบบ Built – in
เคาน์เตอร์ครัวติดตั้งซิงค์ล้างจานและเตาไฟฟ้ามาให้ และยังเหลือพื้นที่เตรียมอาคารอีกพอสมควร ส่วน Top ครัวได้เป็นหินควอทซ์ ดูดซับน้ำได้น้อยและทนต่อแรงขีดข่วน
ซิงค์ล้างจานได้ของ MEX พร้อมก๊อกน้ำเย็น ขนาดอ่างกลางๆพอใช้งานได้สะดวก
ก๊อกน้ำได้ยี่ห้อ MEX เช่นกัน
ส่วนเตาไฟฟ้าได้เป็นเตาเซรามิค 2 หัว ยี่ห้อ MEX
เคาน์เตอร์ด้านล่างมีตู้เก็บของและลิ้นชักเก็บของ พร้อมช่องแบ่งช้อน ส้อม
ตู้เก็บของด้านบนจะแบ่งเป็นชั้นๆ มีทั้งหมด 3 บาน บานเปิดเป็น Soft Closed ทั้งหมด
ที่พิเศษกว่าเคาน์เตอร์ทั่วไปคือจะมีโต๊ะทานอาหารแบบเลื่อนเก็บได้ ขนาด 1 ที่นั่งติดตั้งมาให้
เวลาที่เราเลื่อนโต๊ะเก็บ ก็จะสามารถใช้งานช่องเก็บของเล็กๆข้างเคาน์เตอร์ได้
อีกฝั่งเป็นพื้นที่วางตู้เย็น และเครื่องซักผ้า มีตู้เก็บของด้านบน
จากห้องครัวจะเป็นส่วนของ Living Area
พื้นห้อง Living Area จะเป็นลามิเนตหนา 8 มม.
สำหรับพื้นที่ส่วนห้องนั่งเล่นจะสามารถวางโซฟาขนาด 2 – 3 ที่นั่งได้
ฝั่งตรงข้ามสามารถติดตั้งตู้สำหรับวางทีวีได้
ระยะห่างสามารถวางโต๊ะกลาง และเก้าอี้เล็กได้อีก 1 ตัว
พื้นที่อีกฝั่งจัดเป็นมุมทำงาน ซึ่งสามารถวางโต๊ะทำงานไซส์มาตรฐานได้สบายๆ ใช้งานได้สะดวก
ให้ดูระยะการใช้งานจะเห็นว่ากว้างพอสมควร สามารถนั่งทำงานและมีระยะขยับเก้าอี้ได้นิดหน่อย
กลับมาที่ส่วนระเบียงท่ีเชื่อมต่อกับห้องนั่งเล่น ที่เป็นแบบ Double Balcony ประตูเชื่อมเป็นบานเลื่อน 3 ตอน กรอบอลูมิเนียม กระจก Laminate แบบ Low – E ช่วยลดอุณหภูมิห้อง
มือจับประตูแบบเซาะร่องมาตรฐาน
อย่างที่บอกว่าโครงการนี้ออกแบบระเบียงแบบ Bouble Balcony ให้สามารถเปิดเพื่อใช้พื้นที่เชื่อมต่อจากห้องนั่งเล่นได้
ผนังส่วนระเบียงก็จะใช้เป็นช่องแสง ความสุงจากพื้นถึงฝ้า ตวหน้าต่างเป็นบานเลื่อน 2 ตอน เปิดสลับได้
นอกจากนั้น Facade ด้านนอกเราก็สามารถเลื่อนปรับเปลี่ยนทิศทางได้ โดยฟังก์ชั่นนี้จะมีในทุกห้องยกเว้นห้องที่ Facade ตรงกับห้องนอนจะไม่สามารถเลื่อนปรับได้นะคะ
ส่วนพื้นที่ระเบียงจะมีขนาดกลางๆ ใช้ตากผ้า, เก็บของได้
ส่วนที่วางคอมเพรสเซอร์แอร์ก็แยกไว้เป็นสัดส่วน มีประตูปิด และกริลบังสายตามาให้เพื่อความเรียบร้อย
กลับเข้ามาในห้อง มองไปอีกฝั่งเราจะเห็นส่วนของห้องน้ำและห้องนอน
เราเข้ามาดูในส่วนของห้องน้ำกันก่อน
ภายในห้องน้ำตกแต่งด้วยกระเบื้องลายหินอ่อน และกระเบื้องลายไม้ ทำให้ได้อารมณ์ที่แตกต่างกัน
จากภายในห้องน้ำเราจะเห็นทางเข้าออก 2 ฝั่ง ทางซ้ายมือเป็นทางเข้าจากห้องนอน และขวามือจากห้องนั่งเล่น
อุปกรณ์ที่ได้ในห้องจะมีชุดอ่างล้างมือ พร้อมไฟซ่อนและกระจกเงาที่มีชั้นเก็บของซ่อนอยู่ด้านหลัง
ตัวอ่างล้างมือได้เป็นอ่างทรงสี่เหลี่ยม พร้อมก๊อกน้ำเย็น ยี่ห้อ Cotto
ใต้อ่างล้างมือมีตู้เก็บของ สามารถใช้เก็บของได้พอสมควร
ข้างอ่างล้างมือก็จะมีชั้นวางของ เป็นมุมที่ใช้วางพวกเครื่องหอมได้
ติดกับอ่างล้างมือเป็นโถสุขภัณฑ์ ในห้องมาตรฐานจะได้เป็นโถธรรมดา ส่วน Washlet จะได้เฉพาะตอน Pre Sale เท่านั้นค่ะ ระยะการใช้งานพอใช้งานได้สะดวก
พื้นที่ส่วนห้องอาบน้ำกั้นแยกมาให้เป็นสัดส่วน ด้านในตกแต่งด้วยกระเบื้องลายไม้ ติดตั้งฝักบัวแบบ Hand Shower และ Rain Shower มาให้ครบ
ฝักบัวขนาดใหญ่ดีค่ะ
ระยะยืนอาบน้ำประมาณ 1.1 x 1 เมตร กว้างพอให้ยืนอาบได้สะดวก
กลับออกมาดูที่ห้องนอนกันต่อ
พื้นห้องนอนจะปูด้วยลามิเนตต่อเนื่องจากห้องนั่งเล่นไปเลยแบบนี้ค่ะ
ภายในห้องนอนขนาดกว้างพอสมควร ใช้งานได้สบายๆ
มีช่องแสงทางฝั่งเตียงนอน 1 จุด
ช่องแสงเป็นหน้าต่างบานกระทุ้งและบานฟิกซ์ขนาดใหญ่ ตัวบานกระทุ้งสามารถเปิดได้พอสมควร
ขนาดเตียงสามารถใช้เตียงคิงส์ไซส์ได้เลย สำหรับคนที่ชอบนอนกว้างๆ
ระยะข้างเตียงเหลือเว้นระยะไว้ให้รางผ้าม่านนิดหน่อย
ฝั่งปลายเตียงติดตั้งเต้าเสียบและช่องรับสัญญาณมาให้เผื่อติดทีวีปลายเตียง
ระยะที่เหลือปลายเตียงพอให้เดินผ่านได้เท่านั้นเพราะฉะนั้นถ้าใครติดทีวีก็ต้องติดผนังแบบจอแบนเท่านั้นนะคะ
พื้นที่อีกฝั่งของห้องเป็นส่วน Walk – in Closet
ระยะใช้งานที่เหลือข้างเตียงฝั่งนี้ค่อนข้างกว้าง พอให้ใช้งานได้สบายๆ ถ้าใครมีเสื้อผ้าไม่เยอะก็สามารถเปลี่ยนตู้ข้างเตียงเป็นโต๊ะเครื่องแป้งได้นะ
ด้านในส่วน Walk – in Closet จะอยู่ติดกับทางเข้าห้องน้ำ พื้นที่พอให้ติดตั้งตู้ได้ 2 หลัง
ฝั่งตรงข้ามตู้ก็จะเป็นทางเข้าห้องน้ำค่ะ
ถ้าเข้าห้องน้ำจากทางห้องนอนก็จะเห็นมุมมองประมาณนี้ค่ะ
มาต่อกันที่ห้องตัวอย่างแบบที่ 2 เป็นห้องแบบ 2I ขนาด 67 ตร.ม. ตำแหน่งเป็นห้องมุม 2 ห้องนอน ฟังก์ชั่นในห้องจะได้ฟังก์ชั่นพิเศษมาเพิ่มที่ไม่ค่อยเห็นในโครงการอื่นๆคือ Terrace หน้าห้อง ที่เหมือนเป็นส่วนโถงต้อนรับหน้าบ้าน มีพื้นที่กว้างพอสมควร จริงๆแล้วดูเหมือนให้มาแทนระเบียงค่ะ สามารถปรับเป็นห้องเก็บของหรือจัดสวนเล็กๆเป็นที่นั่งพักผ่อนได้
ส่วนฟังก์ชั่นอื่นๆภายในห้องจะมีห้องนั่งเล่นและห้องทานอาหารขนาดกว้าง, ครัวปิด, ห้องน้ำ 2 ห้อง เป็นห้องน้ำเล็ก สามารถเข้าได้จากห้องรับแขก และห้องน้ำในห้อง Master Bedroom ที่จะมีอ่างอาบน้ำติงตั้งมาให้ด้วยค่ะ และห้องนอน 2 ห้อง
มาดูของจริงกันเลย เริ่มจากประตูทางเข้าจะมีช่องระบายอากาศเป็นรูๆ ซึ่งจะได้เฉพาะห้องแบบนี้ ที่มี Terrace ภายในเท่านั้น
เข้ามาในห้องจะเจอส่วน Terrace เป็นโถงยาว และฝั่งซ้ายมือจะเป็นห้องนั่งเล่น
พื้นที่ด้านใน Terrace ค่อนข้างกว้าง ปลายสุดมีช่องแสงและหน้าต่างให้เปิดระบายอากาศ สามารถใส่ฟังก์ชั่นได้หลากหลาย อย่างในห้องตัวอย่างที่ทางโครงการจัดมาให้ดูนี้จะติดตั้งชั้นวางของขนาดใหญ่ และมีที่นั่งพักผ่อนหรือนั่งใส่รองเท้า นอกจากนั้นใครเป็นสายสุขภาพก็ยังมีที่ทางให้เก็บจักรยานและอุปกรณ์ออกกำลังกายบางส่วนได้ด้วย
จากส่วน Terrace เข้าไปยังส่วนห้องนั่งเล่น จะมีประตูบานเลื่อนกั้นอีกชั้น เหมือนเป็นการแบ่งโซนพักอาศัยกลายๆ
พื้นห้องด้านในปูด้วยลามิเนต ลายไม้
เข้ามาด้านในจะเจอกับพื้นที่โถงกว้าง แบ่งเป็นห้องทานอาหารร่วมกับห้องนั่งเล่น
ก่อนจะเข้าไปดูด้านใน หันกลับมาดูทางฝั่งประตูบานเลื่อน จะมีตู้เก็บของและชั้นวางรองเท้าติดตั้งมาให้ด้วย
พื้นที่ส่วนโถงนี้จะมีลักษณะเป็นทรง L – Shape มีช่องแสงที่ปลายสุด 1 จุด
ขนาดโต๊ะทานอาหารสามารถวางโต๊ะขนาด 4 ที่นั่งได้กำลังดี
ขยับมาดูในส่วนห้องนั่งเล่น จะมีมุมให้จัดหลากหลาย ทั้งโซนนั่งดูทีวีปกติ และโซนนั่งชมวิวติดช่องแสงด้านนอก
ขนาดโซฟาที่เหมาะกับพื้นที่จะเป็นโซฟาขนาด 2 – 3 ที่นั่งกำลังดีค่ะ
มาดูมุมนั่งพักผ่อนริมหน้าต่าง จะเห็นว่าช่องแสงจะได้เป็นกระจกแบบเข้ามุมช่วยให้เห็นมุมมองที่กว้างขึ้น
มองย้อนกลับไปทางฝั่งห้องทานอาหาร เราจะเห็นห้องครัวที่อยู่ติดกับส่วนทานอาหาร
ครัวที่ได้จะเป็นครัวปิด ประตูบานเลื่อน 3 ตอนขนาดใหญ่
พื้นที่ในห้องครัวจะได้ชุดครัวมาตรฐานมาครบชุด ตาามแบบห้องที่แล้วค่ะ
พื้นที่ยืนทำครัวก็พอใช้งานได้สะดวก
กลับออกมาที่โถงพักผ่อน เราจะเข้าไปดูด้านในส่วนห้องนอนและห้องน้ำกันต่อ
เริ่มกันที่ห้องน้ำทางซ้ายมือนะคะ ห้องนี้จะเป็นห้องน้ำที่ใช้รับรองแขก และห้องนอนรอง
ภายในห้องน้ำตกแต่งด้วยโทนเดียวกับห้องที่แล้ว แยกส่วนเปียกส่วนแห้งเรียบร้อย
ระยะการใช้งานอ่างล้างมือและโถสุขภัณฑ์เหมาะสม
อีกด้านจะเป็นห้องอาบน้ำ มีฉากกั้นอาบน้ำติดตั้งมาให้ ด้านในได้ทั้งฝักบัวแบบ Rain Shower และ Hand Shower
พื้นที่ยืนอาบน้ำประมาณ 1.4 x 0.9 เมตร กว้างพอให้ยืนอาบได้สะดวก
ถัดมาเราไปดูในห้องนอนรองกันต่อ
ภายในห้องมีช่องแสงขนาดใหญ่ 1 จุด เป็นหน้าต่างบานฟิกซ์และบานกระทุ้ง สำหรับฟังก์ชั่นภายในห้องนี้นอกจากจะจัดเป็นห้องนอนรองแล้วก็ยังสามารถจัดเป็นห้องทำงานหรือห้องอ่านหนังสือได้ค่ะ
อย่างในห้องตัวอย่างจัดเป็นห้องงานอดิเรก ก็มีพื้นที่ให้ติดตั้งชั้นวางของและโต๊ะทำงานได้พอสมควร
ถัดมาเรามาดูในห้อง Master Bedroom กันต่อเลยค่ะ
เข้ามาภายในห้องจะเจอกับส่วน Walk – in Closet และห้องน้ำก่อน
เราเข้าไปดูในห้องน้ำกันก่อนเลยค่ะ
ภายในห้องน้ำจะแยกส่วนแห้งส่วนเปียก พวกอุปกรณ์ให้ห้องน้ำก็จะได้ตามมตรฐานนะ แต่จะมีพิเศษเพิ่มมาคืออ่างอาบน้ำและกระจกเงาบานใหญ่ขึ้น
ให้ดูกระจกเงา ที่ได้เป็นบานคู่มีตู้เก็บของซ่อนด้านหลัง
อ่างล้างมือและโถสุขภัณฑ์มาตรฐาน ระยะการใช้งานพอดีๆ
ไปดุด้านในส่วนห้องอาบน้ำกันต่อ
ภายในห้องอาบน้ำจะมีทั้งส่วนอาบน้ำฝักบัวและอ่างอาบน้ำแยกจากกัน ติดกับอ่างจะมีช่องแสงบานใหญ่ 1 บาน
สำหรับพื้นที่ยืนอาบน้ำก็ไม่ได้แคบ 1.2 x 1 เมตร ยืนอาบสบายๆ
อ่างอาบน้ำเป็นไซส์มาตรฐาน มีที่วางของรอบๆ
กลับออกมาที่ส่วนห้องนอน พื้นที่ห้องนอน Master Bedroom ค่อนข้างกว้าง
หันกลับมาดูทางฝั่ง Walk – in Closet จะมีพื้นที่วางโต๊ะเครื่องแป้ง
ขนาดเตียงสามารถวางคิงส์ไซส์ได้สบายๆ
ช่องแสงในห้องนี้เป็นแบบเข้ามุม บานใหญ่ รับแสงกันได้เต็มที่
มุมจากฝั่งห้องนอนมองย้อนไปทางโต๊ะเครื่องแป้งค่ะ
สวิทช์ไฟและปลั๊กในห้องใช้ของ SIEMENS
อุปกรณ์อัจฉริยะที่มีมาให้ Home Automation, และ Alexa (Echo Dot by Amazon)
ราคา(ต.ค.2560)
สรุป
ทำเลที่ตั้งโครงการ : TAKA HAUS เอกมัย 12 ตั้งอยู่ระหว่างซอยเอกมัย 12 และซอยเอกมัย 10 สะดวกทั้งการเดินทางด้วยรถยนต์ส่วนตัวและรถสาธารณะ มี Shuttle bus จากโครงการรับส่ง สภาพแวดล้อมรอบๆโครงการโดยรวมค่อนข้างสงบเงียบ ช่วงต้นซอยจะมีคอนโด High Rise อยู่บ้าง ส่วนภายในซอยจะเป็นบ้านเดี่ยวหลังใหญ่ๆ มีพื้นที่เยอะ, Service Apartment, โรงแรมและร้านอาหารบรรยากาศดีๆ
มีความอุดมสมบูรณ์สูงเนื่องจากทองหล่อ และเอกมัยเต็มไปด้วยแหล่งอาหารการกิน และแหล่งตระเวนราตรีที่ครึกครื้นและเต็มไปด้วยสีสัน ในระยะเดิน รอบๆ ของกินเพียบบบค่ะ ออกมาเจอเอกมัย เชื่อมไปทองหล่อ ร้านอาหารเป็นร้อย เปิดทั้งกลางวันกลางคืน มีทั้งโรงพยาบาล,โรงหนัง, วัด, ห้างสรรพสินค้า, Community mall นอกจากสาธารณูปโภคเหล่านี้ก็ยังมี ปั๊มน้ำมัน อู่ซ่อมรถอยู่อีกด้วย
เรียกได้ว่าใครชอบทานอาหารนอกบ้าน ชอบ Hang Out ตระเวนราตรี มาอยู่โซนนี้ มีร้านดีๆให้เลือกเพียบค่ะ แต่ก็เป็นโซนที่มีค่าครองชีพค่อนข้างสูงนะคะ ถึงจะมีร้านข้างทางอยู่บ้าง ร้านส่วนใหญ่ย่านทองหล่อเอกมัย ก็ตกมื้อละ 250 บาทต่อหัวขึ้นไปโดยเฉลี่ย ซึ่งก็เชื่อมโยงกับราคาที่ดินในโซนนี้ซึ่งขึ้นชื่อว่าราคาแพงอยู่แล้วค่ะ
การเดินทางด้วยรถยนต์ส่วนตัว : สำหรับคนขับรถที่ตั้งนับว่าอยู่ใจกลางเมือง ซึ่งตัวซอยเอกมัย 12 เป็นซอยที่เชื่อมระหว่างถนนเอกมัย(สุขุมวิท 63) กับถนนปรีดี พนมยงค์(สุขุมวิท 71) และเป็นถนนที่เชื่อมต่อกับทองหล่อซอย 10 ที่สามารถใช้ไปทะลุถนนทองหล่อ ไปถนนเพชรบุรี, สุขุมวิท, อโศก, พร้อมพงษ์, พระราม 4 ได้ นอกจากนั้นยังสามารถใช้ซอยเอกมัย 10 เป็นทางลัดเลี่ยงรถติดตรงปากซอยเอกมัยมาออกถนนสุขุมวิทที่ซอย 65 ได้
นอกจากนั้นยังสามารถเข้าสู่จุดต่างๆได้ง่าย อยู่ใกล้จุดขึ้นลงทางด่วน ใช้ได้ทั้งเส้นรามอินทรา-อาจณรงค์, ทางด่วนศรีรัช และทางด่วนเฉลิมมหานคร ส่วนเส้นทางรอบข้างทั้งสุขุมวิท เพชรบุรีตัดใหม่ พระรามสี่ สามเส้นทางนี้เวลาเร่งด่วนนี่การจราจรหนาแน่นแทบทั้งหมดนะคะ เเต่ว่าทางรถติดเหล่านี้ก็พาไปได้ทุกทิศ เพียงเเค่ว่าช่วงเวลาไหนติดมากติดน้อยเท่านั้นเองค่ะ
การเดินทางด้วยรถสาธารณะ : ถึงแม้ตัวโครงการจะไกลจาก BTS ไปหน่อย แต่ยังเดินทางได้สะดวกอยู่เพราะมี Shuttle Bus ของโครงการ วนรับส่งอยู่ ทั้งสถานีทองหล่อและเอกมัย สบายมาก ทำให้การเดินทางด้วยรถไฟฟ้าสะดวกขึ้นมาก นอกจากนั้นแล้วก็จะมีพี่วินกับ Taxi ผ่านไปมาตลอดอยู่แล้วค่ะ
การออกแบบโครงการและวัสดุ : การออกแบบโครงการจากแนวคิดจากชื่อ TAKA ซึ่งแปลว่า รังเหยี่ยว ตัวอาคารใช้โทนสีขาวและ Facade สีส้มซึ่งสามารถปรับเลื่อนไปมาได้จากในห้องนั่งเล่น
แบบห้องในโครงการจะมีให้เลือกมากกว่า 30 แบบ โดยจะมีห้องแบบ 1 Bedroom และ 2 Bedroom มีขนาด 30 ตร.ม.- 71.50 ตร.ม. การวางผังห้องจะได้กลิ่นอายญี่ปุ่นอยู่ ทั้งการจัดแยกพื้นที่แต่ละห้องแยกเป็นสัดส่วน ฟังก์ชั่นพิเศาอย่าง Terrace ทางเข้าห้องค่ะ
ตัวห้องขายแบบ Fully Fitted คือ Digital Door Lock YALE, ได้ชุดตู้เก็บรองเท้า, ชุดเคาน์เตอร์ครัวทั้งหมดTop ครัวหินควอตซ์, Hob&Hood และซิงค์ล้างจาน MEX, แอร์ 2-3 ตัว, ความสูงจากพื้นถึงฝ้าเพดาน (อาคา A 2.60 เมตร และ อาคาร B 2.50 เมตร) พื้นได้ลามิเนต,แกรนิตโต้ (แต่ผนังห้องน้ำได้กรุกระเบื้องหินอ่อน,กระเบื้องลายไม้) พวกเฟรมวงกบอลูมิเนียมได้อย่างหนาเป็นพาวเดอร์โค๊ท ห้องน้ำได้ของ COTTOและ Rain Shower
สิ่งอำนวยความสะดวก : พื้นที่ส่วนกลางทำออกแบบมาสวย และฟังก์ชั่นเยอะ สำหรับ 269 ยูนิตนี่เหลือๆเลย โดยจะประกอบด้วย Lobby, Library, Co- Kitchen Space, Entertainment Room, Game Room, Fitness, Tree House, สระว่ายน้ำระบบเกลือ ประกอบด้วย Endless Jet Pool (สระว่ายน้ำทวนกระแส) และ Under Water Trade Mill (ลู่วิ่งใต้น้ำ), Laundry Room, Electric Vehicle Charging Station นอกจากนั้นยังมี Sansiri Home Service Application, Smart Locker
ลิฟท์โดยสารอาคารละ 2 ตัว ระบบรักษาความปลอดภัย มีรปภ. และกล้องวงจรปิด 24 ชั่วโมง
คะแนน
| ทำเลที่ตั้งโครงการ | 8.5 | ตั้งอยู่ระหว่างซอยเอกมัย 10 และ 12 โซนเอกมัย เดินทางสะดวก ใกล้ทางด่วน มี Shuttle Bus รับส่ง BTS เอกมัยและทองหล่อ |
| การเดินทาง ใช้รถ | 8.0 | เดินทางสะดวก เชื่อมต่อถนนสายสำคัญได้หลายสาย มีซอยลัดต่างๆ ให้เลือกใช้เยอะ หลีกเลี่ยงรถติดช่วงเร่งด่วน เช้า-เย็น |
| การเดินทาง ไม่ใช้รถ | 8.5 | สะดวกมาก มีบริการรถรับ-ส่ง ไปสถานีรถไฟฟ้า วินมอเตอร์ไซค์ และ Taxi มีผ่านหน้าโครงการตลอดทั้งวัน |
| ห้องและวัสดุ | 8.0 | แปลนห้องแบ่งได้เป็นสัดส่วนลงตัว มี Layout ให้เลือกหลากหลาย ขายแบบ Fully Fitted วัสดุที่ได้ มีความใส่ใจรายละเอียด คุณภาพเหมาะมาตรฐานเหมาะสมกับราคา |
| สิ่งอำนวยความสะดวก | 9.0 | มีให้ใช้แบบเหลือๆ มีฟังก์ชั่นที่ใช้เทคโนโลยีใหม่ๆเยอะ และออกแบบได้สวย วัสดุส่วนกลางก็ใช้ของดี น่าใช้งาน |
| ความคุ้มค่ากับราคา | 8.5 | ราคาเริ่มต้น ประมาณ 170,000บาท/ ตร.ม. ได้ทำเลเอกมัย ทองหล่อ ในละแวกรถไฟฟ้า, ใกล้ทางด่วน ใกล้ห้าง ส่วนที่มีมูลค่าสูงของโครงการคือทำเลที่ดินย่านนี้ที่เริ่มหายาก และมีความอุดมสมบูรณ์ รายล้อมด้วยสิ่งอำนวยความสะดวกต่างๆครบครันตัวโครงการเป็นส่วนตัว ยูนิตไม่มาก ส่วนกลางดีและใช้ของมีคุณภาพ |
| คะแนนรวมเฉลี่ย | 8.41 | ดีมาก |
สอบถามรายละเอียดเพิ่มเติมได้ที่
Tel : 1685
Website : https://www.sansiri.com
หากเพื่อนๆเห็นว่ารีวิวนี้มีประโยชน์ ช่วยกด Like เพื่อเป็นกำลังใจให้ทีมงาน ขอบคุณค่ะ
และมีความคิดเห็นหรือข้อมูลเพิ่มเติมเกี่ยวกับตัวโครงการ สามารถ Comment ได้ที่ด้านล่างของรีวิวค่ะ