logo

รีวิว บ้านเดี่ยวชั้นเดียว แนวโมเดิร์น พร้อมร้านค้า วัสดุ มอก. งบประมาณก่อสร้าง 1.45 ล้านบาท

โพสโดย : pure / วันที่ : 1 December 2017

รีวิว บ้านเดี่ยวชั้นเดียว แนวโมเดิร์น พร้อมร้านค้า วัสดุ มอก. งบประมาณก่อสร้าง 1.45 ล้านบาท

16

สวัสดีค่ะ คุณผู้อ่าน วันนี้มีรีวิวบ้านสวย ๆ มาฝากกันอีกเช่นเคย สำหรับบ้านหลังนี้เป็นผลงานการก่อสร้างจาก คุณ Sarawoot Klahan ปลูกสร้างเป็นบ้านพักอาศัยชั้นเดียว ออกแบบแนวโมเดิร์นทรอปิคอล มาพร้อมร้านขายของด้านหน้า + ระเบียงกว้าง ๆ

ภายนอกเน้นโทนสีเทาอ่อน และ สีควันบุหรี่ ออกแบบให้มีความโปร่งโล่ง ให้เข้ากับทิศทางของลมและแดด และมีการยกตัวบ้านให้สูงเล็กน้อยเพื่อให้ตัวบ้านรับลมได้ตลอดเวลา เหมาะมากสำหรับการพักผ่อน

พื้นที่ใช้สอยรวมกว่า 130 ตร.ม. ฟังก์ชั่นบ้าน 3 ห้องนอน, 2 ห้องน้ำ, 1 ห้องรับแขก, 1 ห้องครัว พร้อมเฉลียงบ้าน และ ที่จอดรถ งบประมาณก่อสร้างรวม 1.45 ล้านบาท*

สำหรับคนที่มองหาไอเดียไปสร้างบ้านกันอยู่ ตามมาดูกันต่อได้เลยค่ะ

หมายเหตุ : ทางเพจไม่ได้รับสร้างบ้านนะคะ เราลงให้ดูเป็นไอเดียเท่านั้นค่ะ

(ราคาก่อสร้างที่ลงเป็นราคาจากเจ้าของบ้าน ราคาสร้างจริงอาจจะขึ้นอยู่กับเจ้าของบ้านในการเลือกวัสดุในการก่อสร้าง และค่าแรงของพื้นที่ ที่จะทำการก่อสร้างค่ะ)

  • บ้านชั้นเดียวแนวโมเดิร์นทรอปิคอล
  • พื้นที่ใช้สอย ประมาณ 130 ต.ร.ม.
  • ขนาด 3 ห้องนอน, 2 ห้องน้ำ, 1 ห้องรับแขก, 1 ห้องครัว พร้อมเฉลียงบ้าน และ ที่จอดรถ
  • งบประมาณก่อสร้าง 1.45 ล้านบาท

14

หน้าบ้านพร้อมร้านขายของชำ

10

ร้านขายของแบบห้องกระจก พร้อมระเบียงกว้างด้านหน้าบ้าน

21

ระเบียงกว้างด้านหน้าบ้านพร้อมม้านั่งปูนเข้ามุม

12

ภาพด้านข้างบ้าน

11

ภายในร้านค้า เข้า-ออกได้ 3 ทาง

13

ห้องรับแขกขนาดใหญ่

17

ทางเข้าห้องน้ำ

18

20

ห้องน้ำ

22

ส่วนอาบน้ำ

19

ห้องครัว

23

24

25

26

27

ภาพ 3 มิติ

23754944_1734359326596945_6259715906150432720_n

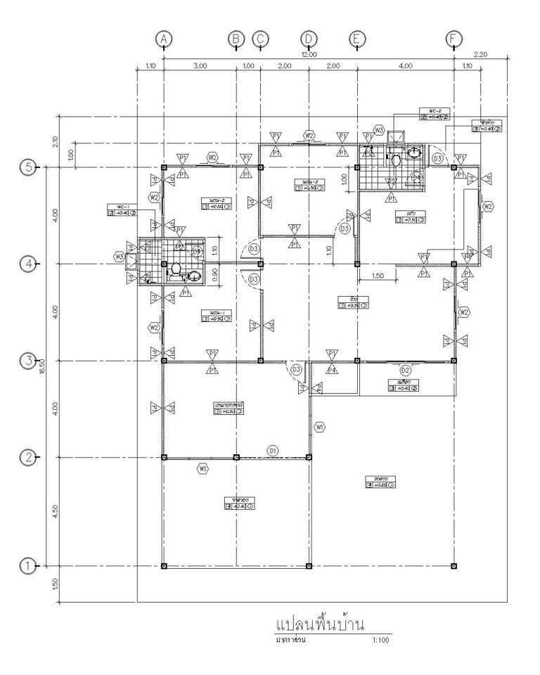
แปลนบ้าน

ขอขอบคุณข้อมูลและภาพประกอบจาก : คุณ Sarawoot Klahan


สนใจลงโฆษณากับทาง Homenayoo ติดต่อสอบถามรายละเอียดได้ที่
คุณวันเฉลิม  086-1290293 
LINE ID : 123456786205
Email : wanchalearm.t@gmail.com
ทางเราเป็นเว็บไซต์ให้ข้อมูล ไม่ใช่เจ้าของโครงการนะครับ