รีวิว : บ้านชั้นเดียว ดีไซน์คอทเทจ พื้นที่ใช้สอย 64.5 ตร.ม. งบประมาณ 770,000 บาท
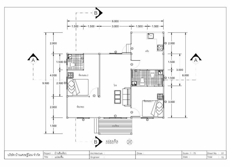
บ้านสำเร็จรูปจาก บ้านเศรษฐีโฮม สำหรับหลังนี้เป็นบ้านชั้นเดียว ปลูกสร้างบนที่ดินยกสูงกว่าที่ดินด้านนอก หลังคาทรงจั่ว มุงกระเบื้องหลังคาลอนคู่ตราช้างสีเขียวตัวบ้านแต่งไม้เฌอร่าหนา 8 มม. ทาสีเทาอ่อน บัวล่างใช้สีเทาเข้ม ตัดกับวงกบประตู-หน้าต่างสีขาวเข้ากันได้อย่างลงตัว ตัวบ้านกว้าง ประมาณ 9 เมตร x ลึก 8 เมตร ฟังก์ชั่นภายในบ้าน 2 ห้องนอน, 3 ห้องน้ำ, 1 ห้องรับแขก, 1 ห้องครัว พร้อมมุมห้องพระ และระเบียงพักผ่อน + ม้านั่งเล่น
โครงสร้างบ้านเป็นเหล็กเสา ขนาด 5×5 นิ้ว วัสดุทั้งหมดเกรดมาตรฐาน ลูกค้าสามารถปรับเปลี่ยนสเปคบางอย่าง เช่น สีของหลังคา, สีภายนอกบ้าน และ กระเบื้องภายในบ้านได้ตามความต้องการ งบประมาณหลังนี้อยู่ที่ 770,000 บาท* ปลูกสร้างบนที่ดินลูกค้า ใช้เวลาก่อสร้างประมาณ 2 เดือน ราคานี้ไม่รวมที่ดิน-ของตกแต่งบ้าน และเฟอร์นิเจอร์ ลองไปดูภาพเพิ่มเติมกันค่ะ
บรรยากาศด้านหน้าบ้าน
ชานพักหน้าบ้าน พร้อมม้านั่งพักผ่อน
ทางเข้าบ้าน ติดตั้งประตูบ้านไม้สีเข้ม มือจับก้านโยก ส่วนเสาเหล็กคู่หน้าติดไฟกิ่งให้ 1 คู่
ห้องโถงปูพื้นแกรนิตโต้ ผนังด้านในเป็นแผ่นสมาร์ทบอร์ด หนา 8 มม. ฝ้าเพดานดรอปฟ้า ฝังไฟดาวน์ไลท์สวยงาม
มองย้อนกลับมาฝั่งหน้าบ้าน
ห้องนอนใหญ่ พร้อมห้องน้ำในตัว
ภายในห้องรองรับเตียงนอนขนาด 5 ฟุต กำลังพอดี
รองรับตู้เสื้อผ้า + โต๊ะเครื่องแป้งได้ครบ ภายในห้องมีหน้าต่างกระจกบานเลื่อนให้ 1 ชุด
ห้องน้ำได้ชุดสุขภัณฑ์ครบเซ็ท ปูพื้นกระเบื้องเซรามิค ผนังตกแต่งกระเบื้องผิวมัน มีหน้าต่างบานกระทุ้ง พร้อมมุ้งลวดให้ 1 บาน
อ่างล้างหน้าแบบตั้งพื้น + โถสุขภัณฑ์ พร้อมสายชำระครบชุด
พื้นที่สำหรับทำเป็นห้องพระ
ห้องนอน 2 พร้อมห้องน้ำในตัว
ห้องน้ำตกแต่งสวย ให้สุขภัณฑ์มาตรฐานครบชุด + หน้าต่างบานกระทุ้งพร้อมมุ้งลวด 1 บาน
ห้องครัว ก่อครัวปูนเข้มมุม ฝังซิงค์ล้างจาน มีพื้นที่เหลือให้วางตู้กับข้าว, ชั้นวางของ และตู้เย็นได้ครบถ้วน
ภายในห้องครัว ยังมีห้องน้ำให้อีก 1 ห้อง ติดตั้งสุขภัณฑ์มาตรฐานให้ครบชุดค่ะ
ติดต่อสั่งซื้อบ้านสำเร็จรูป หรือ สอบถามข้อมูลเกี่ยวกับบ้านเพิ่มเติม