รีวิว : ตกแต่งคอนโด ขนาด 31.78 ตร.ม. งบไม่เกิน 60,000 บาท ความภูมิใจชิ้นแรกในชีวิต
เอาไอเดียการตกแต่งคอนโดพร้อมอยู่มาฝากกันค่ะ เรื่องจาก สมาชิกหมายเลข 1576312 Pantip.com
เมื่อ Promotion ค่าธรรมเนียมการโอน 0.01%ประหลาดใจ ค่าจดจำนองเพียง 0.01%ประหลาดใจ พร้อมกับโบนัสออก และอายุที่กำลังจะขึ้นเลข 3 ชักช้าอยู่ใย เอ้า!!!! ฮา ฮา ไห้ ….ด้วย Promotion 0.01% นี้จะหมดลงสิ้นเดือน เม.ย.2559 นี้
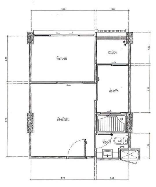
เราเลยตัดสินใจซื้อคอนโดเป็น ทรัพย์สินชื่อตัวเองเป็นชิ้นแรกในชีวิต (อารมณ์แบบภูมิใจ ปลื้ม ตื่นเต้น ดีใจ หลายๆอย่างรวมกันก็เกิดขึ้น) เราเลยอยากจะแชร์การตกแต่งของเราที่ ได้ inspiration จาก Internet หลายๆแหล่งรวมกันมาเป็นห้องของเราใน Concept Build in เองค่ะ จะเป็น Style ไหนเราก็ไม่รู้แล้วอะ มั่วๆรวมกันเลยออกมาแบบนี้ มาดูแปลนห้องกันก่อนดีกว่า ตามแปลนจะ 31 ตร.ม. แต่วัดจริงๆ ทางสัญญาระบุไว้ว่า 31.78 ตร.ม. เราก็ไม่รู้ว่าจะต่างกันมากมั้ย ดูไม่ออกอะ
พื้นฐานตัวห้องจะแยกเป็นสัดส่วน เป็น 1 ห้องนั่งเล่น 1 ห้องน้ำ 1 ห้องครัว และ 1 ห้องนอนตาม layout เลยค่ะ
และโครงการราคานี้รวม แอร์ 2 ตัว เครื่องทำน้ำอุ่น 1 เครื่อง Shower box (ตู้อาบน้ำ) และ เฟอร์นิเจอร์ครัว Built in ค่ะ
ห้องเป็นสัดส่วน เปิดเข้ามาจะเจอพื้นที่ส่วน Living room ด้านขวามือของประตูจะเป็นห้องน้ำ มองตรงไปเป็นส่วนห้องนอน และด้านนอกจะเป็นห้องครัวและระเบียงตามลำดับค่ะ
เรามาเริ่มกันที่แบบห้องเดิมๆกันก่อน ด้วยภายในห้องเป็นสีขาวทั้งหมด เราเลยอยากได้ให้มีสี ทำให้ห้องไม่โล้นเกินไป ดูตาม Internet ดูไป ดูมา มาสะดุดที่ห้องสีเทา ประกอบกับประตูห้องเป็นสีเทาอยู่แล้วเลยอยากให้เป็นโทนเดียวกัน เราเลือกทาเฉพาะฝั่งปลายเตียง/ฝั่งวางทีวี และฝั่ง Sofa bed ที่มีส่วนยื่นออกมาเพื่อเป็นการเล่นเฉดสีค่ะ
ไปเลือกสีที่ Home Pro ค่ะ ได้เฉดนี้มา ส่วนยี่ห้อก็ตามสะดวกเลยค่ะ เราแค่มีข้อแม้ว่า ขอให้ไม่มีกลิ่นเพราะจะติดตั้ง Furniture หลังจากทาสีอีก 2 วันค่ะ (BegerShield Air Fresh D 140-5) ราคาก็ตกประมาณ 700-800 บาทค่ะ สำหรับแกลลอนเล็กค่ะ
ได้สีแล้ว รออะไร ทาเลย เราตัดสินใจจ้างช่างเพราะเรากลัวเละนั้นเอง ภาพประกอบตามนี้ค่ะ
เมื่อทาเสร็จแล้ว ก็ต่อด้วย Furniture ซิคะ เราตัดสินใจไป IKEA และใช้แต่ที่นี้เป็นหลักเลยค่ะ เพราะขี้เกียจไปหาหลายที่ (เราไม่ได้ค่าโฆษณาแต่อย่างใด แค่ไปรอบเดียวขนทีเดียวจบไม่ต้องคุมหลายรอบค่ะ)
โดยเดินดู idea จาก showroom ภายในประกอบกับ ภาพตัวอย่างใน Internet ต่างๆค่ะ มาดูจำนวนของกันเลยดีกว่า เดินกันหลายรอบในการไปขนจากชั้นวาง (เราแนะนำถ้าซื้อจำนวนเยอะและ ขนาดใหญ่อย่างเรา ให้ทางพนักงานจัดการให้เถอะค่ะ 200 บาทไทยถ้วน บอกเลยเราเหนื่อยมากกก)
มาถึงตอนจ่ายตังค์เราช็อคแพรพพพพพ ค่าขนส่งไม่เท่าไร เจอค่าประกอบติดตั้งและ ค่าเจาะรูมีเงิบคร่า ค่าประกอบติดตั้ง 7% จากราคาของ และค่าเจาะรูยึดผนัง รูละ 50 บาทค่ะ ไงหละคะ Concept Build in เองของช้าน เงิบไปมั้ยหละ แต่ขนของ จ่ายเงินเรียบร้อยแล้วไงคะ ทำไงได้ ก็ต้องลุยซิครัชรออะไร
มาดู Furniture กันต่อเลย เริ่มที่ห้องนอน เราเลือกเตียงที่ไม่มีหัวนอนเพราะคิดว่า เสียดายพื้นที่ ห้องยิ่งแคบๆ อยู่ แต่ยังต้องมีสักอย่างไว้วางมือถือหรือแว่นตา เลยดูจาก Internet เลยไปสะดุดกับ ไม้ระแนง แขวนทุกสิ่งค่ะ
– จัดซิคะรออะไร จัดไป 3 ชุด ต่อกันเป็นแผงยาวบนหัวเตียง ผลออกมาเลยมาเป็นแบบนี้ค่ะ
– ที่นอนเราเลือกรุ่น เฮิฟโวค ที่นอนพอกเก็ตสปริง ทำจากสปริงที่แยกบรรจุในถุงผ้า เหร่ยยยยย มันดีงามพูดเลย ฟูกดูดวิญญาณมากอะ ราคาย่อมเยาว์ ให้เราไปซื้อยี่ห้อดีๆ ก็หลายหมื่นอยู่ เลยตัดสินใจเนี้ยะแหละ ขี้เกียจหาแหละ55555555 เราเพิ่มดีเทล ด้วยโคมไฟ 2 หลอด เผื่อแต่งหน้าหรืออ่านหนังมือ ตรงหัวนอน เท่านี้ก็เป็นอันจบส่วนห้องนอนค่ะ
– ปลายเตียง: Make up Zone ของเรา ใช้วิธีเจาะติดกระจก และโต๊ะพับ และเก็บเครื่องสำอางค์ทั้งหลายในลิ้นชักน้อยๆ ในราคาย่อมเยาว์
– อีกด้านหนุ่งของปลายเตียง เนื่องด้วยตู้เสื้อผ้าไม่สามารถรองรับปริมาณเสื้อผ้าเราไว้ได้พอ เราเลยจัดนี่เลยค่ะ ราวแขวนผ้า สำหรับเสื้อผ้าทำงานที่ใส่ประจำ ทำเป็น 3 ระดับ สำหรับแขวน 2 ระดับ และ สำหรับพาดกางเกงหรือกระโปรง
– อีกอันข้างกระจก คืออยากได้มานาน ไอ้แขวนๆๆ เหมือนต้นไม้อะ อันนี้ราคาย่อมเยาว์เลยสอยเลย ไม่คิดมาก
– เก้าอี้เราใช้ลังกระดาษอัดสำหรับเก็บของมานั่ง ซื้อมา 80 บาทจากตลาดนัดรถไฟรัชดานะเอร่ออออ
ขอบอกว่าอีก 1 อย่างที่ลืมไม่ได้คือ “ผ้าม่าน”
ประเด็นคือโครงการเค้าแถมม่านโปร่งมาอะนะ แต่ม่านทึบไม่มี เอาหละหว่า!!!! ฉิบแล้วตรู
ถามราคาผ้าม่านโครงการ ป๊าดดดดดดดดดด 6,000-7,000 คือไร!!! เอาผ้ามาเย็บ จะ 6,000 เลยหรอ
เรานี้ซีดเลยครัช ตอนแรกจะหน้าใหญ่ คิดไปมา พอๆๆๆ เจียมกระบาลบางๆของตัวเองก่อน ไปเจอร้านผ้าม่านที่จตุจักรครัช มีรุ่นพี่แนะนำค่ะ ชื่อร้าน บวรกิจผ้าม่าน อยู่จตุจักร ตรงประตูแถวคิวรถตู้อะ อย่าถามว่าประตูที่เท่าไร โครงการอะไร ขออภัยไม่ได้จำ 5555 มีแต่เบอร์โทร 081-818-4580 โทรไปเองนะครัช ไม่มีส่วนลดจากเราทั้งนั้น555555
เหร่ยๆๆๆ แต่ขอบอกว่า ถูกมาก!!!!!!!!! เราไปเดินดูผ้าม่านจาก IKEA คือก็มีที่ชอบอะนะ แต่อุเหม่ สั้นครัช คือยังไงก็ต้องสั่งตัด คือไรต้องเสียตังค์แพง แต่จำเป็นไง เดี๋ยวมีคนส่องกล้องทางไกลเข้าห้องมาทำไง ยิ่งสวยๆๆอยู่ กร๊ากกกก5555 ขนาดและราคาตามนี้เลยครัช คือใจเราอะ อยากทำผ้าม่าน 2 แบบ
1.ม่านจีบ: ไว้เป็นผ้าม่านปิดหน้าต่าง อันนี้จำเป็นและเร่งด่วนนนนน ราคา 2,850 บาท รีบเลยรออะไร สีตามนี้ ตอนเลือกในเล่ม พอเป็นม่านจริงตามนี้เลยค่ะ แอบตกใจตอนเข้าไปเห็น โอ้ววววว Metallic วาววววมาเชียว ตอนเลือกผ้าก็ไม่คิดว่าจะวาวขนาดนี้ แต่โดยรวมออกมาก็โอเคอยู่ค่ะ
2.ม่านม้วน: ไว้เป็นม่านกั้นระหว่างห้องนอนกับ Living zone อยากให้ดูโล่งๆ ไปดูใน Internet เจอแบบนี้ โปะเชะเลยยยย ม่านม้วน พี่เค้ามาวัดเรียบร้อย พอตีราคามาเท่านั้นแหละ เอิ่ม- -! สงบนิ่ง ปฏิบัติ หลายคนก็บอกราคาถูกแล้วนะ ก็ไม่เถียง แต่เงินในกระเป๋าเราไม่สู้ เลยต้องร้องเพลง พี่อ้อม สุนิสา ถอยยยยยดีกว่า>,<
จบจริงๆแหละส่วนของห้องนอน ในอนาคตที่วางไว้ เราอยากทำประตูบานเลื่อนใต้หน้าต่าง คือห้องเราอะ มีพื้นที่ว่างใต้หน้าต่างลึกเข้าไปประมาณ 30 ซ.ม. สามารถเป็นที่เก็บของได้อีก เป็นระเบียบ ไว้ทำแล้วจะเอามาแชร์ค่าเสียหายนะครัช^_^
มาต่อกัน Highlight ของห้องเลยคือ Living zone ขอบอกว่า เหมาะเจาะ โปะเชะมากกกจน งง ว่าเออมันพอดีเหลือเกิน
เปิดห้องเข้ามาด้านขวาเป็นห้องน้ำเราไม่ยุ่งเพราะพร้อมใช้ แต่ใจจริงอยากติดตู้และแต่งอีกหน่อยไว้ถ้าแต่งแล้วจะมาแชร์กันนะคะ ส่วนด้านซ้ายเมื่อเปิดเข้าตัวห้องเป็นผนังสีขาวโล่งๆ มีเต้าเสียบ 2 จุด
เราตัดใจใช้ตรงนั้นเป็นตู้เสื้อผ้า อยากจะทำเป็น Build in คร่า ดูตามหลายๆร้านในเน็ต เป็นไงหละคะมี 20,000 up ค่ะ เอาใหม่งั้นไปลองเลือกทำเองของ IKEA ไงหละคะ เจอหน้าบานไปก็ 10,000 up แหละ ยังไม่รวมโครงตู้และอุปกรณ์ภายใน เหมือนเดิมค่ะ
พี่อ้อม สุนิสาเข้าส่งเลย ถอยดีกว่า>,< มาเจอตู้เสื้อผ้าถูไถได้ ในราคา 8,990 ประเด็นคือต้องเป็นตู้บานเลื่อนค่ะ เลยแพง จะเป็นบานเปิดเข้า-ออก ไม่ได้ค่ะ กินพื้นที่ ต้องบานเลื่อนเท่านั้น แต่ให้ประหยัดก็ ใช้แบบเปิดดึงเข้า-ออก ประหยัดไปได้อีกค่ะ
แต่!!!ไม่พอเสื้อผ้าเราค่ะ เลยต้องสอยตระกร้าหวายมาจาก ตลาดนัดหัวมุมอยู่แถวๆ ฝุ่งริมถนนอะ สอยมาในราคาใบละ 550 บาทไทยถ้วน เนื่องจากไปซื้อคนสุดท้าย อุเหม่ เจ้าของร้านใจดีลดให้เหลือ 500 บาทไทยถ้วยหนะ ถามว่าหวายจริง หวายปลอม บอกเลยว่า….ดูไม่เป็น!!!!
จะหวายจริงปลอม แต่อยากได้มานานก็สอยซิคะ รออะไร ช่ามันเหอะ
และเพราะตู้เสื้อผ้า เลยทำให้เราเสียเต้าเสียบ ปลั๊กไป 1 อัน นั้นไง ทำไงหละทีนี้ เลยต้องเดินรางไฟมาใหม่ให้ใกล้ Sofa bed ของเราเพื่อให้ได้ใช้สอย เหมือนเดิมค่ะ ใครทำเป็นก็จะประหยัดไปอีก เราโชคดี ขอให้ช่างที่มาติดตั้งแอร์ของโครงการทำให้ก็ซื้อของมาให้เค้าค่ะ รางสายไฟซื้อมา 2 สีคือ ขาวกับเทา เพราะมีส่วนที่ทาสีด้วยได้ดูเนียนๆ เต้าเสียบเราซื้อแบบธรรมดามาเพราะสามารถใช้ได้ 3 ตัวเป็นแบบที่เห็นค่ะ
เป็นอันเสร็จส่วน Living Zone เป็นที่เรียบร้อยค่ะ เรายังมีอีกโซนนั้นก็คือ โต๊ะวางทีวี
อะ!!! มาต่อที่ชั้นวางทีวี อายนะ ทีวีเรายังเป็นทีวีตู้อยู่เลย55555 ตกทอดมาตั้งแต่พี่ แม่ซื้อให้ตอนพี่เรียน ไปอยู่หอ ก็ใหม่ของผม แต่เก่าของพี่มาถึงเราก็เป็น 10 ปีแล้วอะ ก็ยังใช้ต่อไป
ส่วนชั้นวางทีวีเราเอาชั้นวางของเก่าจากที่มีอยู่ ซื้อมาจาก Big C ทั้งหมด 3 ชิ้น (2 ชั้น 3 ชั้นและ 4 ชั้น) ราคาถ้าจำไม่ผิดก็ 299/399-499/599-699 บาท จำตัวเลขไม่ได้ซื้อมาจะ 3 ปีแล้วค่ะ
แบบเป็นสีขาว-ดำ อยู่แล้ว มันก็พอดีเลย เราก็จับวางนอนและซ้อนกัน 2 ชั้นเพราะจะได้ดูทีวีในระดับสายตาไม่สูงหรือเตี้ยะเกินไปค่ะ อีกอันก็วางตั้งข้างๆเพื่อเก็บของค่ะ
(อนาคตเราอยากซื้อหน้าบานมาติด หรืออาจจะทำไม้มาปิดไว้สักอย่าง ยังคิดไม่ออก เราแค่อยากให้มันปิดมิดชิดและด้านบนจะติดชั้นแบบเหนือ Sofa bed อีกอันเพื่อได้เก็บของด้วย แต่ขอดูกำลังทรัพย์ก่อนค่ะ)
เป็นอันเสร็จสิ้นจริงๆของ Living Zone ในตอนนี้ค่ะ สำหรับส่วนระเบียง ห้องครัวหรือห้องน้ำถ้าทำอะไรเพิ่มจะมาแชร์นะคะ^__^
มาช่วงสุดท้ายในกระทู้นี้กันแล้วหละค่ะ นั้นก็คือ ค่าใช้จ่ายในการตกแต่งห้องนี้ค่ะ มาเฉลยกันซิว่า ค่าใช้จ่ายเท่าไรและมีอะไรบ้างค่ะ
ค่าใช้จ่ายในการตกแต่งห้องนี้ (เฉพาะห้องนอนและห้องนั่งเล่นนะคะ แต่ก็มีบางชิ้นเอาไปติดที่ ห้องครัว/ระเบียงและน้องน้ำค่ะ)
ตามที่เห็นค่าใช้จ่ายอยู่ที่ 50,000 ต้นๆ แต่สามารถประหยัดไปอีก
1. ถ้าทาสีเอง จะประหยัดค่าแรง และค่าของ เราจ่าย 1,200 บาทกับพื้นที่ 1 ใน 3 ของห้องค่ะ (เราซื้อสีไป 2 กระป๋องเล็กคือตอนแรกซื้อกระป๋องเดียว แต่ช่างบอกไม่พอ อะๆๆ ซื้อเพิ่ม พอทาเสร็จครัช กระป๋องเดียวยังเหลือ!!!! คือไร ไม่งั้นประหยัดไปได้อีกเกือบ 800 แล้วช่างดอยสีที่เหลือหายไปเลยจร้า แหมะ!!! ท่องไว้ พุธโธๆๆๆๆ ห้ามโกรธ ช่างมัน)
2. ถ้าเจาะผนังยึด Furniture เอง แต่เราก็ทำไม่เป็นค่ะ เลยให้พี่ช่างคู่รักที่เคยอ่านใน Review บางกระทู้มา ก็พึ่ง IKEA ทั้งหมดค่ะ
3. ถ้าซื้อ Furniture เป็นชุดก็สามารถประหยัดไปได้อีกหน่อยค่ะ เอาจริงๆช่วงนี้ Promotion ชุด Furniture เยอะนะ เราไปเดินดูมา 3 รอบแต่เราไม่ชอบ อยากแต่งเองก็ต้องยอมรับไปค่ะ
4. ถ้าเช็คราคาหลายๆเจ้า ช่วยได้นะเรื่องนี้เราว่าถ้าเช็คราคาก่อนหลายๆ ที่ ถ้าหลายๆ คนมีเวลาก็น่าจะหาของและเช็คราคามีของที่คล้ายๆกัน ก็น่าจะได้ราคาถูกลงนะคะ (แต่เราสารภาพเลยว่าเราขี้เกียจค่ะ เราไปเดินดู Home Pro / Concept / SB design square มาเหมือนกันค่ะ หลายชิ้นคุณภาพดีกว่าจริงๆ แต่เราอยาก All in One ขี้เกียจติดต่อ รอหลายเจ้า หรือถ้าใครมี furniture เก่าที่มีมาขัดสี ฉวีวรรณ แต่งตัวให้ใหม่ก็น่าจะใช้ได้ แต่สำหรับเราเอาวะที่เดียวเนี้ยะแหละ

เรามองว่าบางอย่างมันก็แพงเกินไป บางอย่างก็ถูก ไว้เป็นไอเดียสำหรับใครที่กำลังดูแบบตกแต่งห้องกันนะคะ แต่เราก็สนุกนะ ดูแบบห้องไปเรื่อยๆ เลือกของไปเรื่อยๆ สนุก เพลิน จนแต่งห้องเสร็จเราก็ภูมิใจนะ
อย่างน้อยก็เป็นสมบัติชิ้นแรกของเราจริงๆ สร้างมากับน้ำพักน้ำแรงเรา
จบแล้วคร่า กระทู้ของเรา กำลังสนุกเลย ความสุขเล็กๆ น้อยๆ เราสร้างขึ้นมาได้ ด้วยตัวเราเอง เย้!!!เยี่ยม สุดท้ายนี้หวังว่ากระทู้ของเราจะเป็นแรงบันดาลใจให้กับหลายๆคนนะคะ
ปล. ไว้แต่งระเบียงหรือแต่งอะไรเพิ่ม แต่งเสร็จจะมาแชร์นะคะ ว่าจะออกมาในรูปแบบไหนกันบ้าง^__^
ขอให้สนุกกับการแต่งห้องนะคะทุกคน Enjoy your weekend นะคะ
ขอขอบคุณข้อมูลและภาพประกอบจาก : สมาชิกหมายเลข 1576312 Pantip.com