รีวิว : สร้างบ้านชั้นเดียวสไตล์โมเดิร์นลอฟท์ กลางไร่ แบบพอเพียง ด้วยงบประมาณ 1.03 ล้านบาท* รวมบิวท์อินภายใน
วันนี้มีรีวิวการสร้างบ้านเจ๋งๆ มาฝากเพื่อนๆกันอีกแล้วค่ะ เรื่องราวจากคุณ สหายสายธาร สมาชิก Pantip.com ที่ได้มาแชร์รีวิว การสร้างบ้านชั้นเดียวสไตล์ลอฟท์ บนที่ดินขนาดใหญ่ ห้อมล้อมด้วยไร่ และ พื้นที่สีเขียว ธรรมชาติสุดๆไปเลย ใครที่กำลังหาแรงบันดาลใจในการทำบ้าน ห้ามพลาดนะคะ 🙂
>————————–<
เรื่องเริ่มจากเจ้าของกระทู้ มีโอกาสได้ซื้อที่ดินจากญาติผู้ใหญ่ประมาณ 1 ไร่ แถวๆกำแพงแสนนครปฐม
พอจะเก็บหอมรอบริบได้นิดหน่อยจึงอยากจะสร้างบ้านที่ตอบสนองความต้องการของตัวเอง (เรื่องของเรื่องคือเจ้าของกระทู้ไม่ชอบการอยู่บ้านลักษณะหมู่บ้านจัดสรรเท่าใดนัก)
เริ่มจากประมาณ เดือน 5 ปีที่แล้ว เจ้าของกระทู้ทำการออกแบบตัวบ้านเคร่าๆขึ้นมาโดยใช้โปรแกรม Skecthup ขึ้นมา
เมื่อพอใจในลักษณะของตัวบ้านแล้วก็ส่งแปลนสถาปัตย์ให้น้องวิศวกรโครงสร้างทำแบบโครงสร้างและรายการคำนวน ตามหลักการออกแบบ ส่วนงานระบบไฟฟ้า ประปา เจ้าของกระทู้ก็ออกแบบเอง
ตัวบ้านกำหนดให้เป็นลักษณะ Loft Style ผนังอิฐมวลเบา (ตกก้อนละ 21 บาทสั่งที่ร้านวัสดุที่กำแพงแสน) ปูนเปลีอยขัดมัน
โครงสร้างตัวบ้าน คสล. พื้นสำเร็จ finish ด้วยแกรนิตโต้ (มีพี่ใจดีมอบให้มา ขอขอบคุณมา ณ โอกาสนี้ด้วยครับ)
หลังคาโครงสร้างเหล็ก มุงด้วยเมทัลชีส หนา 0.40 มิล.TCT กรุฉนวน PE หนา 5 มิล. (เจ้าของกระทู้ออกแบบให้พื้นที่ว่างเหนือฝ้าค่อนข้างเยอะ ทำให้ความร้อนที่เกิดขึ้นน้อยลง)
งานระบบไฟฟ้าเดินท่อร้อยสาย ชนิด EMT. อุปกรณ์ fiiting ชนิด Raintight
งานระบบสุขาภิบาลใช้ท่อ PVC ท่อน้ำทิ้งใช้ PVC 8.5 ท่อน้ำดี ใช้ PVC 13.5
การจ่ายน้ำให้บ้าน ผ่านกรอง เข้าถังเก็บแล้วสูบจ่ายด้วยปั๊มน้ำอัตโนมัติ เพื่อรองรับเครื่องทำน้ำอุ่น
เมื่อการออกแบบแล้วเสร็จสมบูรณ์ ก็เริ่มต้นการก่อสร้างด้วย การเช็คราคาวัสดุก่อสร้างในท้องที่ สรุปว่ารายการใหญ่ๆสั่งที่นี่ ส่วนรายการย่อยๆเฉพาะทาง เจ้าของกระทู้ซื้อจาก กทม.
เช่น กระเบื้องห้องน้ำ สุขภัณฑ์ อุปกรณ์ไฟฟ้า โคมไฟ(อันนี้มีดราม่ากับ โคมยี่ห้อหนึ่ง ที่สั่งในงาน บ้านและสวนที่เมืองทอง)
อย่างแรกก็ต้องปรับพื้นที่ไว้ก่อน ค่าใช้จ่ายไม่มากมายเพราะไม่ต้องถมที่ดินเดิม หมดไป หลักพัน ต่อมาก็ลงเข็มตามที่คำนวนและ ตามการสำรวจดินในแถบนั้น (เจ้าของกระทู้เช็คกับงานก่อสร้างใน ม.เกษตร) แล้วก็เริ่มตอกเข็ม
ดูวันเดือนปีที่ผลิดว่าเข็มได้อายุหรือยัง ราดน้ำตรวจสอบรอบร้าวเข็มคร่าวๆ ว่าเข็มเสียหายระหว่างขนส่งหรือไม่
เริ่มงานตอกเข็ม 2 วันก็แล้วเสร็จ ตรวจสอบเข็ม ทำระดับตัดหัวเข็ม เตรียมงาน footing
จากนั้นก็เริ่มงานฐานราก เอากล้องมาเช็ค line ให้ช่างแล้วเสร็จ เจ้าของกระทู้ ใช้รถขุดขนาดเล็กมาขุดแล้วให้ช่างแต่งหลุม
ใช้แบบอิฐบล๊อค เพื่อความรวดเร็ว เจ้าของกระทู้มีธุระเข้า กทม. กลับมา ปรากฏว่าทุบแบบไปสองหลุม ทำใหม่ เจอช่างบอกเอาดินกลบ ก็ไม่เห็นแล้ว บิดๆ เบี้ยวๆ line ที่เปิดให้ไม่มีผลในการทำงาน
แก้ไขเสร็จก็เทคอนกรีต footing ตอม่อ พร้อมเข้าแบบเทลีนคอนกรีต เพื่อให้ป้องกันวัชพืช ใต้ถุนบ้านและเพื่อความสะดวกในการทำงาน งานนี้มี wire mesh 4 มิล วางกันแตก
เทเสร็จก็เตรียมงานเข้าแบบคานรับพื้น งานนี้ต้องทำงานผ่านมือถือเนื่องจาก เจ้าของกระทู้ติดงานที่ กทม. จึงต้องทำงานผ่าน line เป็นส่วนใหญ่ มาตรวจอีกทีก็เสาร์ อาทิตย์
ต่อมาก็งานผูกเหล็กคาน งานนี้ต้องมาดูเรื่องเหล็กเสริม การวางเหล็ก ทีมช่างยังไม่ค่อยชำนาญเท่าไร ต้องแก้ไขบ่อย
ทั้งเรื่องเหล็กปลอกเอย เหล็กเมนเอย กว่าจะเข้าที่ก็อาศัยการทำแบบงานเหล็กใน Skecthup พร้อมทำ bar cut list ให้ช่างแต่ก็ยังมีตัดเหล็กผิด
งานนี้อธิบายเป็นภาพ เมื่อผูกเหล็กผิดก็ต้องทำให้ดูว่าต้องผูกอย่างไร ดูกันในคอมพิวเตอร์ กันให้กระจ่าง
ผูกเหล็กเสร็จก็ปิดแบบ พื้นหล่อในที่บริเวณห้องน้ำก็เข้าแบบล่าง วางเหล็ก พร้อมวาง Sleeve สำหรับระบบสุขาภิบาล เจ้าของกระทู้ลงมือเอง
ตรวจแบบเสร็จก็เทคาน สั่งคอนกรีตจาก Plant มาเท แรงงานพี่ๆน้องๆ หลานๆ มาช่วยกัน แล้วเสร็จ ก็รอเวลาแกะแบบ มีปลวกมีอะไรไหม เนื่องจากเครื่องจี้คอนกรีตไม่มีใช้
ช่วงเทคานก็สั่งแผ่นพื้นมารอ เนื่องจากปริมาณไม่เยอะ เลยสั่งได้แผ่นพื้นที่คุณภาพค่อนข้างจะไม่ถูกใจ เจ้าของกระทู้ วางแล้วมันหงุดหงิดใจ แต่ก็ต้องทำใจ
วางแผ่นพื้น ตู๊แผ่นด้านล่างเรียบร้อยก็เท Topping ก่อนเทก็วาง wire mesh แล้วก็โหลดปูนมาเท ขัด พร้อมทำหน้าลาย
คาน พื้น แล้วเสร็จก็ไล่เทเสา ปัญหาเรื่องเข้าแบบ เรื่องดิ่งเสาและ line เสา ยังต้องควบคุมอย่างใกล้ชิด มีพี่ๆน้องๆหลานๆ มาช่วยกันเทเสา
เจ้าของกระทู้เทเสารวดเดียวในแต่ละต้น ผลงานปลวกเล็กน้อย ถือว่าผ่าน แม้ไม่มีเครื่องจี้คอนกรีต
แกะแบบเสา รอเสาได้อายุ ก็สั่งเหล็กโครงหลังคา เหล็กเสาชานด้านนอก มาทั้งพ่นทั้งทาสีกันสนิม
ขึ้นโครงสร้างหลังคา แล้วก็เริ่มงานก่อผนัง เกร๊าส์หัวเสา
เริ่มทำงานระบบสุขาภิบาลห้องน้ำ งานนี้เจ้าของกระทู้จัดการเอง ในฐานะทำงานระบบมา
วางบ่อวงสำหรับถังเกรอะ เนื่องจากที่ไร่ไม่มีระบบระบายน้ำสาธารณะ เจ้าของกระทู้จึงใช้ระบบ ถังเกรอะ ถังซึม งานนี้เจ้ลงทุนทำเอง
ผลงานก็อย่างที่เห็น ยกให้เขาเรื่องนี้เลย
โครงหลังคาแล้วเสร็จก็ สั่งหลังคา มาเริ่มมุงกันเลย งานนี้เจ้าของกระทู้ก็จัดเองอีกตามเคย ขึ้นไปมุงแล้วนึกถึงตอนออกค่ายสร้างสมัยเรียน ขึ้นมาเลย
หลังคาที่ใช้ก็เป็นเมทัลชีส หนา 0.40 มม. TCT (ความหนารวมเคลือบ) พร้อมกรุฉนวน PE หนา 5 มม.
มุงหลังคาสองคน กับช่าง คนส่งแผ่นก็ หลานๆที่ว่างๆ ช่วงเสาร์ อาทิตย์ มาช่วยกันหาตังค์กินขนม
มุงหลังคาเสร็จไปหนึ่งส่วน งานก่อก็ไปได้พอสมควร ทำงานได้มีร่มเงาบ้าง
งานมันหนัก ก็ต้องกิน เด็กๆ ผู้ใหญ่ทั้งหลายเขาชอบกันนัก กินกันหลายคนนะครับอย่าตกใจ
หลังจากอิ่มหนำสำราญ ก็เริ่มงานโครงสร้างเหล็กรองรับ ชานด้านนอกบ้าน ตั้งเสา เซ็ตตงเหล็ก
มาดูงานก่องานฉาบบ้าง เริ่มจากฉาบภายใน จะสังเกตุเห็นเสาเอ็น และเอ็นทับหลังทุกผนัง อันนี้จำเป็นมาสำหรับประตูหน้าต่าง
เมื่อถึงเวลาจะฉาบ ก็จะต้องมีตาข่ายกรงไก่ แปะเข้าไประหว่างวัสดุสองชนิด เพื่อป้องกันผนังร้าว กรณีนี้คือเอ็นทับหลังและเสาเอ็นกับตัวอิฐมวลเบานั่นเอง การฉาบผนังปูนเปลือย สำคัญสุดเลยคือช่างครับ เวลาช่างขึ้นปูน แล้วรอเวลาขัดนี่ ช่างที่เป็นงานจะดูออกว่าควรขัดตอนไหน
จริงๆนี่ปูนหมาดเกือบแห้งเลยทีเดียว หากปั่นปูนเร็ว หรือหากน้ำไม่ถึงก็ทำใจ เจ้าของกระทู้ไม่ได้ผสมสีเพิ่ม เพื่อให้ผนังเข้มขึ้น เนื่องจากชอบสีที่อ่อนและความดิบ ที่ดิบจริงๆ
ลองดูแต่ละห้อง เจ้าของกระทู้ชอบเรื่องแสงให้เข้าตัวบ้าน จึงทำหน้าต่างใหญ่ๆและในส่วนที่ต้องการแสงสวยๆ ทำให้บ้านเล็กๆดูกว้างขึ้น อันนี้ห้องนอนหลัก (ไม่อยากเรียกห้องนอนใหญ่)
ส่วนมุมนี้จะมีอาร์มแชร์วางในอนาคตไว้นั่งอ่านหนังสือ
ส่วนนี่ก็ห้องนอน 2 ส่วนดำๆนั่นก็ เฉาก๊วยเดินตรวจงาน เริ่มโต
ต่อมาห้องโถง เจ้าของกระทู้เน้นโล่งๆ ไม่มีผนังกั้นที่ซับซ้อนอะไร ทำให้ดูกว้าง ที่สำคัญคนในบ้านจะได้ใกล้ชิดกัน ไม่ว่าอยู่ส่วนไหนของบ้านก็ยังได้ยินได้เห็นกันและกัน ไม่รู้สึกโดดเดี่ยว
จะมีผนังเล็กๆกั้นเพื่อจัดสัดส่วนบ้าน และก็จะเป็นเก้าอี้ยาวตัว L ไว้รองรับโต๊ะรับประทานอาหารในอนาคต ด้านในสุดก็เป็นครัว เล็กๆ ขนาดสองเตา หนึ่งซิงค์ ติดครัวเป็นห้องน้ำ ด้านซ้ายสุดเป็นพื้นลดระดับสำหรับส่วนพักผ่อน ไว้ดูทีวี และอื่นๆ
มีน้องๆมาเยี่ยมเยือนบ้าง น้องๆแนะนำช่างงานก่อฉาบมาให้ มาตรวจทีมช่างให้ทำงานเอาปริมาณหรือเอาฝีมือ เนื่องจากงานก่อ ฉาบ งานเสาเอ็น ทับหลัง คิดราคาเป็นตารางเมตร และ เมตร ตามลำดับ
ดูภายในแล้ว ก็ตามฉาบภายนอกต่อ ค่อยเป็นค่อยไป ช่างผัวเมียสองครอบครัวได้วันละแผงสองแผง เน้นคุณภาพหน่อย จบงานเจ้าของกระทู้มีโบนัสให้เล็กน้อย เป็นสินน้ำใจ
ด้านหลังบ้าน ข้างๆก็มีครัวไทยเอาไว้ ทำไรหนักๆ แต่จากการใช้งานมาสักระยะ กลายเป็นที่เตรียมอาหารให้ คุณเฉาก๊วย และบรรดาแมวๆ ซะส่วนใหญ่
ช่วงฉาบขัดมันภายนอก ก็เริ่งงานมุงหลังคาอีกโซน ช่วงแผ่นเมทัลชีทชนกับผนังสำคัญมากครับเรื่อง Flashing หากติดตั้งไม่ได้โอกาสรั่วซึมสูง ต้องเน้นกับช่างเป็นพิเศษ เรื่องการติดตั้งตามวิธีของผู้ผลิต
ผนังภายในภายนอกแห้งดีแล้วก็ต้องเคลือบผิวป้องกันฝุ่นแลรักษาตัวผิวขัดมันไว้ พอดีน้องแนะนำเคมีภัณฑ์ตัวหนึ่งมาให้ใช้ เลยสั่งมาใช้ ตัวนี้เป็นแบบกึ่งเงา (เจ้าของกระทู้มีความเห็นว่าใช้ได้ ไม่เป็นน้ำมันหมูเอามาลูบผนัง)
สินค้านี้ไม่ได้แอบแฝงโฆษณานะครับ ใครจะใช้ผลิตภัณฑ์อะไร ตามสบาย ตามความพอใจ ซึ่งบางท่านก็อาจไม่พอใจตัวนี้ก็ได้ เอามาให้ดูเป็นตัวอย่างเฉยๆ
งานนี้ไม่ต้องการประสบการณ์ เจ้ลุยเอง เคลือบสองรอบครับ รอแห้ง แล้วเคลือบทับอีกรอบ
มาถึงส่วนผนังตกแต่ง โซนพักผ่อน เจ้าของกระทู้ใช้อิฐ บปก. แถวตลาดบองมาเช่ ตกแผ่นละ 6 บาท
กระเบื้องห้องน้ำก็เริ่มกรุ เจ้าของกระทู้เลือกใช้ ขาว – ดำ ตามความชอบส่วนตัว หามาจาก บุญถาวร
ภายนอกก็ปูพื้นไม้เทียม เจ้าของกระทู้ใช้ไม้คอนวูด 4″ แล้วทาย้อมด้วย Beger Aqua stain อันนี้ชอบมากสีใกล้เคียงธรรมชาติ ไม่เหม็น ถือว่าผ่าน
งานสถาปัตย์ใกล้ๆเสร็จ งานระบบไฟฟ้าก็เริ่มเข้ามา งานนี้เดินลอย ท่อ EMT ใช้ Fitting Raintight ทีมช่างก็เป็นพี่ที่ทำงานร่วมกันมานาน ปกติแกไม่รับงานบ้าน แกเล่นงานโรงงานซะส่วนใหญ่ จึงได้ความดิบและดูไม่เฟค
ครัวก็เริ่มปูกระเบื้อง เจ้าของกระทู้ใช้ Top แกรนิตโต้สีดำ ผนังก็ไปหาเอาที่ homepro พื้นแกรนิตโต้ก็ได้พี่ชายใจดีให้มา
งานสุขาภิบาล เจ้าของกระทู้ก็จัดการเอง
ด้านหลังส่วนครัวไทย ก็แล้วเสร็จ
งานระบบไฟฟ้าเริ่มลากสาย เก้าอี้ก็สำเร็จ เจ้าของกระทู้ทำเอง อยากได้มาก
เริ่มงานติดตั้งประตูหน้าต่าง งานฝ้าภายนอกภายใน ก็เริ่มตาม
ช่วงนี้เจ้าของกระทู้ก็เริ่มงาน ภายใน ในส่วนที่อยากได้ ก็ต้องใช้ Skecthup อีกรอบ ร่วมกับ Layout นิดหน่อย อยากจะได้แบบนั่งดื่มชิลล์ๆ
งานฝ้าภายใน ภายนอกก็เหลือรอทาสี เจ้าของกระทู้ทาเองเช่นเคยกับ พี่ๆน้องๆ หลานๆ ส่วนงานติดตั้งโคมไฟ เจ้าของกระทู้ก็ทำเอง เช่นกัน
เรื่องโคมไฟนี่เจ้าของกระทู้สั่งโคมจากงานบ้านและสวน จากบริษัทโคมเจ้าใหญ่ทีเดียว จ่ายตังค์ที่งาน อีกหนึ่งอาทิตย์รับของ ก่อนสั่งเซลล์โทรเช็คของแล้วว่ามี พอถึงวันส่งของ ก็มีการเลื่อนอีก 1 สัปดาห์ แจ้งว่าขาดบางตัว อะโอเคเราไม่คิดมาก
พอครบอาทิตย์ทีนี้ครับ แจ้งเราว่าโคมที่สั่งยังไม่ได้ผลิต รอ 5 เดือน ผลิตจากเมืองจีน พระเจ้าช่วยบริษัทมันด้วย ผมก็งงใหญ่ เลยไปที่โชว์รูมเลย
ไปลดโคมตัวโชว์มาได้บางส่วน บางส่วนต้องเปลี่ยนแบบ แถมยังเจอป้ายลดราคาฉลองโชว์รูมใหม่ แม่เจ้า ของให้ตรูยังไม่มีเลย ยังจะทำโปร
เริ่มเคลียร์ความสะอาด เก็บงาน
ลืมแนะนำไป แม่คลอดทิ้งไว้ 4 ชีวิต เลื้ยงจนตัวโตขนาดนี้บ้านยังไม่เสร็จ
จากนั้นก็ติดม่านซะ
แล้วก็ขึ้นงานเคาท์เตอร์บาร์
ปรับที่รอบบริเวณ
แล้วก็มีคนเฝ้าบ้าน
Rain Chain
หน้าบ้านก่อนจะฝนตก
จบด้วยระยะไกลแล้วกัน
สรุปค่าเสียหาย หลังจากรวบรวมใบเสร็จและตรวจสอบรายการค่าใช้จ่าย
รวมเบ็ดเสร็จ 1,027,123.00 บาท
แยกเป็น
– โครงสร้าง + สถาปัตย์ = 688,867.00 บาท
– ค่าแรง โครงสร้าง + สถาปัตย์ = 203,412.00 บาท
– อินทีเรีย เคาน์เตอร์บาร์ = 35,000.00 บาท
– ไฟฟ้า = 54,528.00 บาท
– ค่าแรงไฟฟ้า = 25,000.00 บาท
– ประปา = 20,316.00 บาท
*ดูแล้วค่าแรงจะเกินงบที่ตั้งไว้เยอะ ลากยาวไปหน่อย*
ค่าเฉลี่ยตก ตร.ม. ละประมาณ 13,000.00 บาท
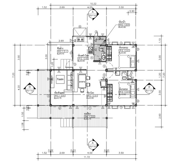
แถมแปลนบ้านให้ไปศึกษาค่ะ
ขอขอบคุณข้อมูลและภาพประกอบจาก : คุณ สหายสายธาร สมาชิก Pantip.com