พิงค์ คอนโด เดอะเซ็นเตอร์พีซ (เชียงใหม่) Ping Condo The Centerpiece

Ping Condo The Centerpiece จาก เทพพนอม กรุ๊ป โครงการตั้งอยู่บนถนนเวียงพิงค์ ต.ช้างคลาน อ.เมือง จ.เชียงใหม่ บนทำเลทอง เป็นแหล่งเศรษฐกิจของเชียงใหม่ บนทำเลช้างคลาน สามารถเข้าออก ได้หลายเส้นทางรองรับการเดินทางสู่จุดหมายสำคัญๆ ของเมืองเชียงใหม่ ครอบคลุมทุกกลุ่มความต้องการของผู้บริโภค
พิงค์ คอนโด เดอะเซ็นเตอร์พีซ เป็นคอนโด Low-Rise 4-6 ชั้น 2 อาคาร พื้นที่โครงการขนาด 9 ไร่ จำนวนห้อง 154 ยูนิต มีห้องพักให้เลือกแบบ Studio, 1 Bed, 2 Bed ขนาดเริ่มต้น 30-60 ตร.ม. โครงการสร้างเสร็จพร้อมอยู่กลางปี 2558
สิ่งอำนวยความสะดวกภายในโครงการครบครัน อาทิ Lobby, Mailbox, ฟิตเนส, สวนหย่อม, ระบบ Key Card Access, กล้องวงจรปิด CCTV ภายในโครงการ พร้อมระบบรักษาความปลอดภัยตลอด 24 ชม. ราคาเริ่มต้น 1.69 ล้านบาท* (ช่วงเปิดตัว)

| ชื่อโครงการ | พิงค์ คอนโด เดอะเซ็นเตอร์พีซ Ping Condo The Centerpiece |
| เจ้าของโครงการ | เทพพนอม กรุ๊ป |
| ลักษณะห้องและขนาดห้อง | – Studio : 30.00 ตร.ม. – 1 bed : 45.00 ตร.ม. – 2 Bed : 60.00 ตร.ม. |
| เนื้อที่ทั้งหมด | ประมาณ 9 ไร่ |
| จำนวนตึก | 2 อาคาร |
| จำนวนชั้น | – อาคาร A : 6 ชั้น – อาคาร B : 4 ชั้น |
| จำนวนห้อง | n/a |
| ที่จอดรถทั้งหมด | n/a |
| โซน | เชียงใหม่ |
| ขนส่งสาธารณะ | n/a |
| รถโดยสารที่ผ่าน | n/a |
| ที่ตั้ง | เลขที่ 2 ถนนเวียงพิงค์ ต.ช้างคลาน อ.เมือง จ.เชียงใหม่ |
| กำหนดการ | พ.ศ. 2557 |
| ปีที่สร้างเสร็จ | คาดว่าแล้วเสร็จกลางปี 2558 |
| ราคา | เริ่มต้น 1.69 ล้านบาท* (ช่วงเปิดตัว) |
| ราคาเฉลี่ยต่อ ตร.ม | ประมาณ 57,000 บาท/ ตร.ม. |
| ค่าส่วนกลางและกองทุน | – ค่าส่วนกลาง 35 บาท/ ตร.ม. – ค่ากองทุน 300 บาท/ ตร.ม. |
| สถานที่สำคัญใกล้เคียง | 1. เชียงใหม่ ไนท์บาซ่าร์ 2. พันธ์ทิพย์ พลาซ่า 3. เซ็นทรัล แอร์พอร์ต พลาซ่า 4. โรงพยาบาลแม่และเด็ก 5. โรงเรียนมงฟอร์ตวิทยาลัย 6. วัดหัวฝาย 7. วัดศรีปิงเมือง 8. วัดชัยมงคล 9. สนามบินเชียงใหม่ |
| สิ่งอำนวยความสะดวก | – ฟินเนส – CCTV – Key Card – รปภ. 24 ชม. |
| จุดเด่นของโครงการ | คอนโดแต่งครบ ใจกลางเมืองเชียงใหม่ ราคาเริ่มต้น 999,000 บาท |
ที่ตั้งโครงการ
เลขที่ 2 ถนนเวียงพิงค์ ต.ช้างคลาน อ.เมือง จ.เชียงใหม่
:: ภาพประกอบการเดินทาง ::
พิกัด Google : 18.772668, 98.992766
การเดินทางเริ่มเดินทางจาก แยกสนามบิน ⇒ ถ.มหิดล ขับตรงไปอีกประมาณ 800 ม.เลี้ยวเข้า ถ.ศรีปิงเมือง ⇒ ถ.ศรีปิงเมือง 4 ถึงโครงการ Ping Condo The Centerpiece เชียงใหม่ *ใกล้ รพ.แม่และเด็กฯ
ภาพประกอบการเดินทาง เราจะเริ่มกันที่แยกสนามบิน ซ้ายไป ถ.ทิพย์เนตร ขวามือไปหางดง ส่วนเราขับตรงไป ถ.ศรีปิงเมืองค่ะ

จากแยกสนามบินขับตรงไปประมาณ 800 ม. เราจะเลี้ยวเข้า ถ.ศรีปิงเมืองทางลัดไปช้างคลานได้ค่ะ ปากทางคือโครงการ One Plus มหิดล-เชียงใหม่
จากนั้นเลี้ยวขวาไป ถ.ศรีปิงเมือง 4
ขับตรงไปอีก 1 กม.ถึงทางเข้าโครงการค่ะ
ถึงโครงการ Ping Condo The Centerpiece เชียงใหม่
:: โดยรอบโครงการ ::
ศูนย์การค้า
หน่วยงานอื่น ๆ
ศูนย์การแพทย์
สถานศึกษา
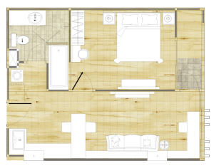
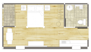
UNIT TYPE
TYPE : Studio / Deluxe / Exclusive
GALLERY
สอบถามรายละเอียดเพิ่มเติมได้ที่
TEL : 053-222-222 กด 2 หรือ 081-882-2288
WEBSITE : http://pingcondo.com/detail/