รีวิว คอนโด ลากูน่า บีช รีสอร์ท จอมเทียน LAGUNA BEACH RESORT JOMTIEN
ทำเลที่ทุกคนหมายปอง
ในบรรดาคอนโดมิเนียมทั้งหมดในเมืองพัทยา Laguna Beach Resort Jomtien เป็นโครงการที่มีทำเลดีที่สุดแล้ว เพราะอยู่ห่างจากชายหาดจอมเทียนเพียงไม่กี่นาทีโดยการเดินเท้า และอยู่ใกล้กับถนนจอมเทียน 2 ซึ่งเป็นย่านที่พักอาศัยที่มีราคาและมีต้นไม้เขียวปกคลุม
เลิศหรูไร้ขีดจำกัด
สิ่งอำนวยความสะดวกของ Laguna Beach Resort Jomtien จัดได้ว่าดีที่สุดแล้วในบรรดาอสังหาริมทรัพย์ทั้งหมดในพัทยา อาทิ สระว่ายน้ำสไตล์ลากูนขนาด 1,300 ตารางเมตรพร้อมเครื่องสร้างคลื่นและหาดทรายเทียม ถ้ำจาคุซซี่และสวนน้ำ Laguna Beach Resort Jomtien คือความลงตัวระหว่างเงินที่จ่ายและสิ่งที่ได้มาครอบครอง นี่คือความคุ้มค่าสูงสุดในย่านอีสเทิร์นซีบอร์ดในวันนี้
ดื่มด่ำไม่มีสิ้นสุด
สิ่งอำนวยความสะดวกเหนือชั้น ชุดเฟอร์นิเจอร์แถมกับยูนิต และทำเลริมหาดที่ตราตรึงใจ
| ชื่อโครงการ | ลากูน่า บีช รีสอร์ท / LAGUNA BEACH RESORT |
| เจ้าของโครงการ | ไฮทส์ โฮลดิ้ง |
| ลักษณะห้องและขนาดห้อง | Studio, 1 Bed, 2 Bed |
| เนื้อที่ทั้งหมด | 4 ไร่ 3 งาน 50.00 ตร.ว |
| จำนวนตึก | 3 อาคาร |
| จำนวนชั้น | 8 ชั้น |
| จำนวนห้อง | 660 ยูนิต |
| ที่จอดรถทั้งหมด | n/a |
| โซน | พัทยา, ชลบุรี |
| ขนส่งสาธารณะ | n/a |
| รถโดยสารที่ผ่าน | n/a |
| ที่ตั้ง | ถนนจอมเทียนสาย 2 ต.หนองปรือ อ.บางละมุง จ.ชลบุรี |
| กำหนดการ | n/a |
| ปีที่สร้างเสร็จ | พ.ศ. 2557 |
| ราคา | เริ่มต้น 2.229 ล้านบาท (20 พ.ย. 56) |
| ราคาเฉลี่ยต่อ ตร.ม | n/a |
| สถานที่สำคัญใกล้เคียง | 1. ตลาดน้ำ 4 ภาค 2. สวนนงนุช 3. สวนแสดงช้างไทย 4. อันเดอร์ วอเตอร์เวิลด์ 5. จุดชมวิว เขาพระตำหนัก 6. Walking Street พัทยา 7. เทสโก้ โลตัส 8. บิ๊กซี 9. Outlet Mall 10. Homework 11. Makro |
| สิ่งอำนวยความสะดวก | – สระว่ายน้ำ – ชายหาด – ฟิตเนส – รปภ. และ CCTV 24 ชม. – Wi-Fi – ประตู Key Card |
| จุดเด่นของโครงการ | ทำเลที่ทุกคนหมายปอง ใน บรรดาคอนโดมิเนียมทั้งหมดในเมืองพัทยา Laguna Beach Resort Jomtien เป็นโครงการที่มีทำเลดีที่สุดแล้ว เพราะอยู่ห่างจากชายหาดจอมเทียนเพียงไม่กี่นาทีโดยการเดินเท้า และอยู่ใกล้กับถนนจอมเทียน 2 ซึ่งเป็นย่านที่พักอาศัยที่มีราคาและมีต้นไม้เขียวปกคลุมเลิศหรูไร้ขีดจำกัด สิ่ง อำนวยความสะดวกของ Laguna Beach Resort Jomtien จัดได้ว่าดีที่สุดแล้วในบรรดาอสังหาริมทรัพย์ทั้งหมดในพัทยา อาทิ สระว่ายน้ำสไตล์ลากูนขนาด 1,300 ตารางเมตรพร้อมเครื่องสร้างคลื่นและหาดทรายเทียม ถ้ำจาคุซซี่และสวนน้ำ Laguna Beach Resort Jomtien คือความลงตัวระหว่างเงินที่จ่ายและสิ่งที่ได้มาครอบครอง นี่คือความคุ้มค่าสูงสุดในย่านอีสเทิร์นซีบอร์ดในวันนี้ดื่มด่ำไม่มีสิ้นสุด สิ่งอำนวยความสะดวกเหนือชั้น ชุดเฟอร์นิเจอร์แถมกับยูนิต และทำเลริมหาดที่ตราตรึงใจ |
ที่ตั้งโครงการ
ถนนจอมเทียนสาย 2 ต.หนองปรือ อ.บางละมุง จ.ชลบุรี
คลิก เพื่อดูแผนที่ขนาดใหญ่
แปลนอาคาร








Floor Plan – Tower A 1st – 8th Floor








Floor Plan – Tower B 1st – 8th Floor








Floor Plan – Tower C 1st – 8th Floor
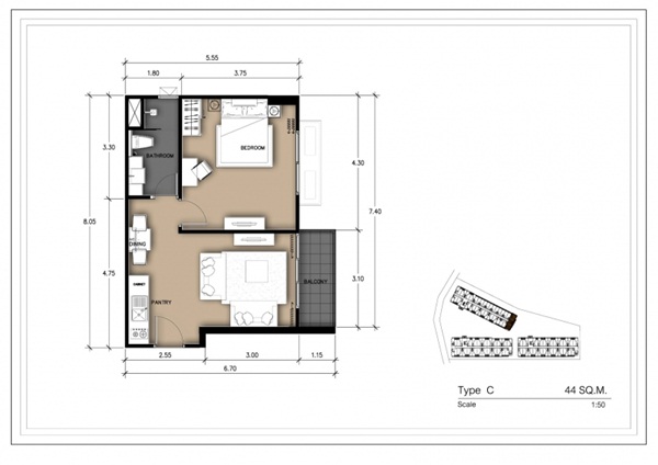
แปลนห้อง



Tower A : Type A / Type B / Type C


Tower B : Type A / Type A1





Tower B : Type B1 / Type D / Type D1 / Type E / Type F
Tower C : Type A / Typa A2 / Type B
แกลเลอรี
สนใจติดต่อสอบถามเพิ่มเติมได้ที่
Tel : +66 (0) 85 282 6454
Website : http://www.heights-holdings.com/projectDetails.php?project_id=10&lang=th