
คอนโด ลา กาซิตา หัวหิน La Casita Huahin โครงการใหม่จาก แสนสิริ
La Casita รีสอร์ทคอนโดใหม่ สไตล์สแปนิช ใจกลางเมืองหัวหิน ใกล้ Bluport และ รพ.กรุงเทพหัวหิน เริ่ม 2.19 ล้านบาท

| ชื่อโครงการ | ลา กาซิตา หัวหิน La Casita Huahin |
| เจ้าของโครงการ | บริษัท แสนสิริ จำกัด (มหาชน) / Sansiri |
| เนื้อที่ทั้งหมด | รอข้อมูลจากทางโครงการ |
| จำนวนตึก | 1 อาคาร |
| จำนวนชั้น | 8 ชั้น |
| จำนวนห้อง | รอข้อมูลจากทางโครงการ |
| ลักษณะห้องและขนาดห้อง |
|
| ที่จอดรถทั้งหมด | รอข้อมูลจากทางโครงการ |
| จำนวนลิฟต์ | 2 ตัว |
| โซน | หัวหิน |
| ขนส่งสาธารณะ |
|
| รถโดยสารที่ผ่าน | n/a |
| ที่ตั้ง | ถนนเพชรเกษม ต.หัวหิน อ.หัวหิน จ.ประจวบคีรีขันธ์ 77110 |
| กำหนดการ | เปิดขาย 31 มี.ค.-1 เม.ย. 2561 |
| ปีที่สร้างเสร็จ | รอข้อมูลจากทางโครงการ |
| ราคา | เริ่มต้น 2.19 ล้านบาท (เม.ย.2561) |
| ราคาเฉลี่ยต่อ ตร.ม | เริ่มต้น ประมาณ 75,000 บาท/ตร.ม. (เม.ย.2561) |
| ค่าส่วนกลางและกองทุน | รอข้อมูลจากทางโครงการ |
| สถานที่สำคัญใกล้เคียง |
|
| สิ่งอำนวยความสะดวก |
|
| จุดเด่นของโครงการ | La Casita รีสอร์ทคอนโดใหม่ สไตล์สแปนิช ใจกลางเมืองหัวหิน |
ที่ตั้งโครงการ
ถนนเพชรเกษม ต.หัวหิน อ.หัวหิน จ.ประจวบคีรีขันธ์ 77110
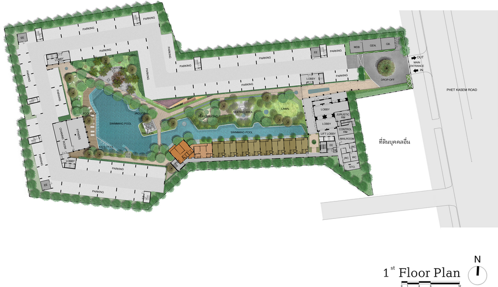
:: FLOOR PLAN ::
แปลนอาคารชั้น 1
แปลนอาคารชั้น 2
แปลนอาคารชั้น 3-8
ดูแปลนอาคาร PDF เพิ่มเติม คลิก
:: UNIT TYPE ::
1A-11 ห้องนอน 1 ห้องน้ำขนาดพื้นที่ 26.50 ตร.ม.
1B-1 1 ห้องนอน 1 ห้องน้ำ ขนาดพื้นที่ 34.50 – 35.00 ตร.ม.
2A-1 2 ห้องนอน 1 ห้องน้ำ ขนาดพื้นที่ 48.25 ตร.ม.
2B-1 2 ห้องนอน 2 ห้องน้ำ ขนาดพื้นที่ 58.25 ตร.ม.
:: GALLERY ::
ภาพบรรยากาศจำลองบริเวณพื้นที่ส่วนกลาง สระว่ายน้ำ และ สวนพักผ่อน
ภาพบรรยากาศจำลองบริเวณ Lobby Lounge
ภาพบรรยากาศจำลองบริเวณ Lobby Lounge
ภาพบรรยากาศจำลองบริเวณสวนพักผ่อน
ภาพบรรยากาศจำลองภายในห้องพัก
ภาพห้องตัวอย่างภายในห้องพัก
ภาพห้องตัวอย่างภายในห้องพัก
ภาพห้องตัวอย่างภายในห้องพัก
สอบถามรายละเอียดเพิ่มเติมได้ที่
Tel : 1685
Website : https://www.sansiri.com