
คอนโด โฮล์ม เอกมัย 22 HOLME Ekkamai 22 เริ่ม 3.9 ล้าน*
HOLME เอกมัย 22 คอนโดมิเนียมที่ตอบโจทย์ ด้วยการออกแบบตัวอาคารมีความโดดเด่นทางด้านสถาปัตยกรรม และตกแต่งภายในที่สวยมีเอกลักษณ์ ให้ความรู้สึกใกล้ชิดธรรมชาติ เหมือนการใช้ชีวิตอยู่ที่บ้าน
โดยลักษณะอาคารสูง 8 ชั้น และตัวอาคารจะถูกแบ่งเป็น 2 อาคาร เว้นช่องว่างกลางอาคารให้ลมพัดผ่าน โดยมีทางเชื่อมกันที่ชั้นล่างกับชั้นดาดฟ้าเพื่อใช้พื้นที่ส่วนกลางร่วมกันได้
โฮล์ม เอกมัย 22 มีความเป็นส่วนตัว เพียง 90 ยูนิต ในส่วนของห้องชุดเริ่มตั้งแต่ 1 ห้องนอน 1 ห้องน้ำ ขนาดพื้นที่ 33.75-43.00 ตารางเมตร ห้องชุด 2 ห้องนอน 2 ห้องน้ำ ขนาดพื้นที่ 60.50-77.25 ตารางเมตร และดูเพล็กซ์ขนาดพื้นที่ 66.75-101.00 ตารางเมตร
สิ่งอำนวยความสะดวกภายในโครงการครบครัน เช่น Lobby สระว่ายน้ำ ห้องออกกำลังกาย ห้องซาวน่า-สตรีม สวนดาดฟ้า ห้องเด็กเล่น ห้องสมุด Co-Working Space และ Shuttle Service ที่มีให้เพื่ออำนวยความสะดวกผู้อยู่อาศัยในการเดินทางระหว่างโครงการกับสถานีรถไฟฟ้า ราคาเริ่มต้น 3.9 ล้านบาท*
ลงทะเบียนรับข้อมูลและสิทธิพิเศษ คลิก : holme-ekkamai22.com

| ชื่อโครงการ | โฮล์ม เอกมัย 22 HOLME Ekkamai 22 |
| เจ้าของโครงการ | บริษัท เอส เอ ฟิวเจอร์ พร็อพเพอร์ตี้ จำกัด |
| เนื้อที่ทั้งหมด | 0-3-99 ไร่ |
| จำนวนตึก | 1 อาคาร |
| จำนวนชั้น | 8 ชั้น |
| จำนวนห้อง | 90 ยูนิต |
| ลักษณะห้องและขนาดห้อง |
|
| ที่จอดรถทั้งหมด | 62% |
| จำนวนลิฟต์ | 2 ตัว |
| โซน | เขตวัฒนา |
| ขนส่งสาธารณะ |
|
| ที่ตั้ง | 68/16 ซอย ปรีดี พนมยงค์ 41 แขวง คลองตันเหนือ เขตวัฒนา กรุงเทพมหานคร 10110 |
| กำหนดการ | เปิดลงทะเบียน* |
| ปีที่สร้างเสร็จ | รอข้อมูลจากทางโครงการ |
| ราคา | เริ่มต้น 3.9 ล้านบาท* (ราคา ณ วันเปิดตัว*) |
| ราคาเฉลี่ยต่อ ตร.ม | รอข้อมูลจากทางโครงการ |
| ค่าส่วนกลางและกองทุน | รอข้อมูลจากทางโครงการ |
| สถานที่สำคัญใกล้เคียง |
|
| สิ่งอำนวยความสะดวก |
|
| จุดเด่นของโครงการ | “HOLME Ekkamai 22” สัมผัสกับ Private Living บนทำเลที่เชื่อมต่อ เอกมัย-เพชรบุรี-สุขุมวิท พร้อมตอบโจทย์ครบทุกมิติของคนเมือง เริ่ม 3.9 ล้าน* |
ที่ตั้งโครงการ
68/16 ซอย ปรีดี พนมยงค์ 41 แขวง คลองตันเหนือ เขตวัฒนา กรุงเทพมหานคร 10110
พิกัด Google Maps : https://goo.gl/maps/dHKMQwY2gFP7pQ1z7
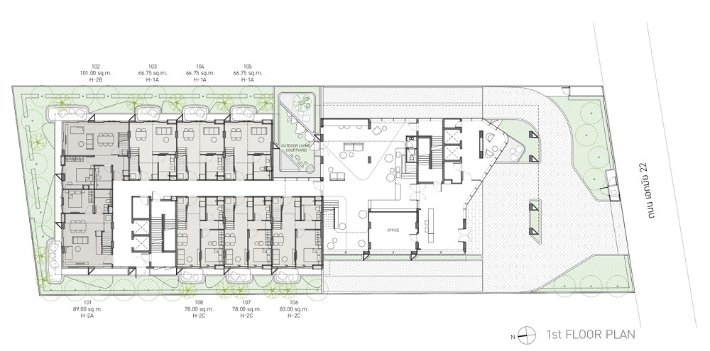
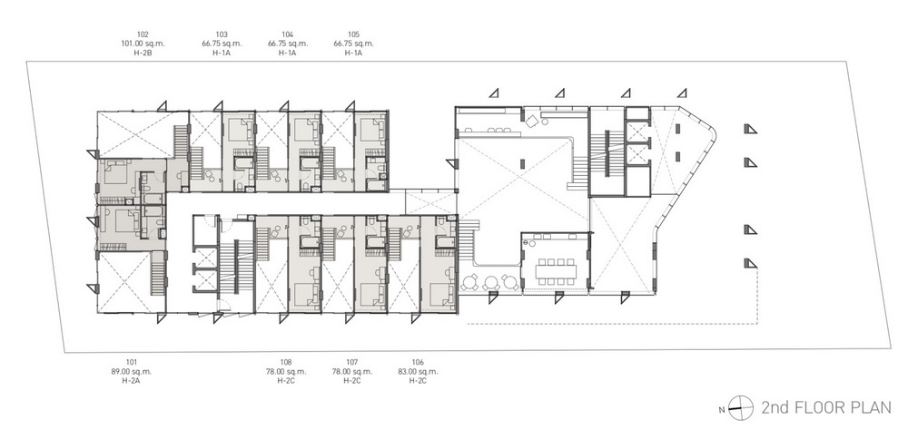
FLOOR PLAN
แปลนอาคารชั้น 1
แปลนอาคารชั้น 2
แปลนอาคารชั้น 3
แปลนอาคารชั้น 4-7
แปลนอาคารชั้น 8
แปลนอาคารชั้นดาดฟ้า
GALLERY
ลงทะเบียนรับข้อมูลและสิทธิพิเศษ คลิก : holme-ekkamai22.com
สอบถามรายละเอียดเพิ่มเติมได้ที่
Tel : 062 142 9797
Website : holme-ekkamai22.com